Skip to main content

Orpheuspad 10, Amersfoort

Page 1

Groene omgeving Zonnige tuin Eigen parkeerplaats Nabij voorzieningen en binnenstad Energielabel A H47
Hendriks
Orpheuspad 10 , 3816 RS Amersfoort
Huizen
van

Soort Type Kamers

Woonoppervlakte

Perceeloppervlakte

Inhoud Bouwjaar Tuin Garage Verwarming Isolatie Energielabel

Kenmerken

eengezinswoning tussenwoning 4 94 m² 83 m² 355 m³ 2008 achtertuin, voortuin, zonneterras geen garage c.v.-ketel volledig geïsoleerd A

De in deze brochure getoonde informatie wordt door Hendriks makelaardij met zorg samengesteld, doch voor de juistheid en volledigheid daarvan kan niet wor den ingestaan en kunnen hieraan geen rechten worden ontleend. Spel- en typefouten voorbehouden. De plattegronden zijn geproduceerd voor promotionele doeleinden en ter indicatie. Er kunnen geen rechten aan worden ontleend. Maten zijn niet eigenhandig opgemeten. Indien er twijfel bestaat over de accuratie van de gegevens aangaande deze brochure, is de geïnteresseerde zelf verantwoordelijk voor het nameten van deze gegevens. Voor meer informatie wordt u doorverwezen naar www.hendriks.nl

Verkoper vertelt

In 2017 de keuze gemaakt om een woning aan te kopen op het Orpheuspad en uiteindelijk ben ik in mei hier komen wonen.

De omgeving is zeer groen en het huis is van alle gemakken voorzien. Hierdoor is het zeer prettig wonen. Nu een aantal jaren verder is het huis nog steeds zeer aangenaam. Binnenkort wordt dit nog beter met de realisatie van het nieuwe winkelcentrum.

Met de fiets is de binnenstad van Amersfoort bereikbaar binnen 10 minuten. Ondanks het mooie wonen ben ik toe aan een volgende stap. Ik wens de volgende bewoner veel woonplezier.

Amersfoort: Friesestraat 161, T 033 - 465 55 79
Te koop bij

Tuingerichte woonkamer

Je stapt de woning binnen via de entree en komt in de hal met de trapopgang met trapkast, gardero behoek en het separate toilet met fontein terecht. Vanuit de hal kom je in de woonkamer.

In de tuingerichte woonkamer zul je blij verrast zijn door de lichte uitstraling, dit komt mede door de dubbele deuren die toegang verlenen tot de tuin. De woonkamer biedt ruimte voor een gezellige zithoek en een eettafel waar je lekker kunt dineren met familie en vrienden. De ruimte is daarnaast afgewerkt met een laminaatvloer en lichte afwer king van wanden en plafond. Weet jij al hoe jij de woonkamer gaat indelen?

welkom thuis!
huizen van hendriks
fijne lichtinval

Open keuken

De open keuken is aan de voorzijde van de woning gesitueerd en is geplaatst in een hoekopstelling. De keuken beschikt uiteraard over diverse inbouwap paratuur, zoals een 5-pits gaskookplaat, combioven, magnetron, afzuigkap, vaatwasmachine en een nieuwe koelkast (2022). Laat de hobbykok in jezelf maar naar boven komen!

huizen van hendriks
eet smakelijk! wat ga jij bereiden?

welterusten hoe deel jij het in?

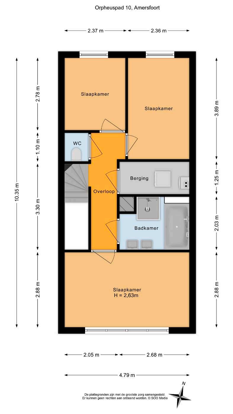
Via de trapopgang naar de eerste verdieping kom je allereerst op de overloop terecht. Op deze verdieping zijn 3 slaapkamers, de badkamer, een tweede toilet en de berging met CV-installatie, wasmachine-aansluiting en de mechanische ven tilatie.

De vertrekken variëren in formaat, zijn volledig naar eigen wens in te richten en voorzien van een lami naatvloer. Gebruik jij alle kamers als slaapkamer of deel je bijvoorbeeld één kamer als thuiskantoor of hobbykamer in?

Drie slaapkamers

huizen van hendriks

Nette

badkamer

ontspannen

was de dag van je af!

De badkamer is deels betegeld en uitgerust met een ligbad, douche en een dubbel wastafelmeu bel. Hier kun je heerlijk tot rust komen!

huizen van hendriks

genieten ga lekker zitten

Vanuit de woonkamer krijg je middels de open slaande deuren toegang tot de zonnige tuin. De tuin is onderhoudsvriendelijk, heeft veel zonuren en is toegankelijk via een achterom. Plaats een gezellige loungeset en het genieten zal hier vanzelf gaan! Daarnaast is de tuin voorzien van bestrating, een elektrisch zonnescherm en een aangebouwde houten berging.

De woning heeft een vrije ligging in de rustige, groene wijk Schuilenburg aan een plantsoen/ parkje. Aan de voorzijde is er speelgelegenheid voor kinderen en aan de achterzijde een mandelig binnenterrein. Er liggen diverse parken in de directe omgeving zoals de Groengordel, Waterwingebied en De Schammer, waar je heerlijk kan wandelen of fietsen.

Zonnige tuin

huizen van hendriks
Orpheuspad 10 3816 RS Amersfoort
Orpheuspad 10 3816 RS Amersfoort

Amersfoort

De wijk Schuilenburg is een ruim opgezette, groene en kindvriendelijke woonwijk.

Doordat de huizen voornamelijk zijn gebouwd in de zesti ger- en zeventiger jaren hebben we te maken met een zeer ruime bouwaard. De kamers zijn groot en licht en er zijn veelal doorzon-woonkamers.

De wijk is met name in het koopaanbod ruim opgezet waarbij ook veel straten autoloos of autoluw zijn, ideaal voor mensen die van rust en veiligheid houden. In de wijk is een winkelcentrum aanwezig, maar de meeste bewoners wijken uit naar de zuidkant richting het Euterpeplein en het Neptunusplein.

Iets verder doorfietsen en je rijdt zo naar de historische bin nenstad of richting het buitengebied.

Dat maakt het heel comfortabel, groen en kindvriendelijk wonen in Schuilenburg. Logistiek gezien ben je overal in een mum van tijd. Uitvalswegen liggen vlakbij, het centraal station is te fietsen en de stad etc. ligt om de hoek. Kortom, een ideale ligging!

heerlijk
wonen in Amersfoort
noorden kadastrale kaart

Lokaal makelaarschap

Wij geloven sterk in lokaal makelaarschap. Kennis van de buurt, de omgeving en de daarbij behorende ontwikkeling van de huizenprijzen zijn onmisbaar om voor jou het maximale resultaat te boeken.

Met Hendriks Makelaardij kies je voor: • makelaars die al jarenlang verbonden zijn met de regio • kennis van de lokale woningmarkt • een verkoopplan afgestemd op jouw woning • maximale exposure van je huis • bezichtigingen ook in het weekend • netwerk met honderden woningzoekers

Verkoop je je huis met Hendriks dan ben je met de eigen app 24/7 op de hoogte van het verkoopproces. Bezichtigingsverzoeken bereiken je direct en beantwoord je snel en discreet op het moment dat het jou uitkomt.

Ook je huis verkopen? Onze makelaars komen graag en vrijblijvend bij je langs. We maken dan direct een gratis waardebepaling. Hendriks Makelaardij werkt op basis van no cure no pay. En betalen doe je pas bij verkoop. Friesestraat 161 033 - 465 55 79 amersfoort@hendriks.nl www.hendriks.nl

onze makelaarskantoren huizen van hendriks
WHATSAPP FOTO’S WONING ADRES WAARDE + + = Friesestraat 161 033 - 465 55 79 amersfoort@hendriks.nl www.hendriks.nl Ook je huis verkopen? WhatsApp de foto’s en het adres van je woning naar 06 44 33 78 72 en ontvang een gratis waardebepaling!

Turn static files into dynamic content formats.

Create a flipbook
Orpheuspad 10, Amersfoort by Hendriks Makelaardij - meer makelaar - - Issuu