Skip to main content

Oosterveldstraat 29, Heel

Page 1


HuizenHendriks van

Zwembad

Souterrain

Dubbel bewonen mogelijk

Nulopdemeter

Luxe woning

Soort Type

Kamers

Woonoppervlakte

Perceeloppervlakte

Inhoud

Bouwjaar

Tuin

Kenmerken

eengezinswoning

vrijstaande woning

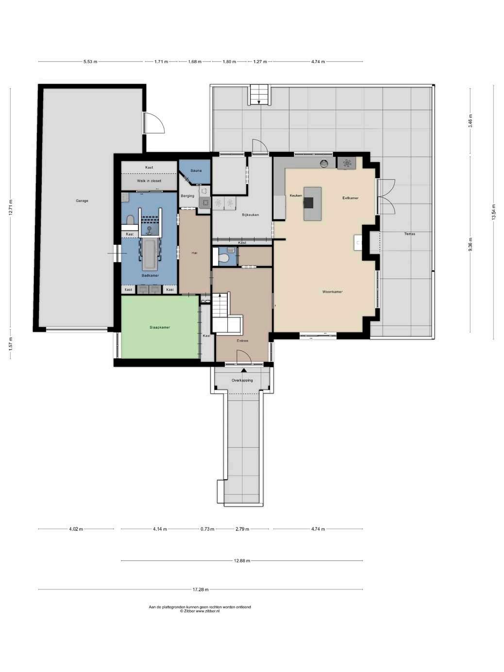
4

249 m²

622 m²

1126 m³

1965

achtertuin, voortuin, zijtuin

Garage

Verwarming

Isolatie

Energielabel

aangebouwd steen

c.v.-ketel, warmtepomp volledig geïsoleerd

De in deze brochure getoonde informatie wordt door Hendriks makelaardij met zorg samengesteld, doch voor de juistheid en volledigheid daarvan kan niet worden ingestaan en kunnen hieraan geen rechten worden ontleend. Spel- en typefouten voorbehouden. De plattegronden zijn geproduceerd voor promotionele doeleinden en ter indicatie. Er kunnen geen rechten aan worden ontleend. Maten zijn niet eigenhandig opgemeten. Indien er twijfel bestaat over de accuratie van de gegevens aangaande deze brochure, is de geïnteresseerde zelf verantwoordelijk voor het nameten van deze gegevens. Voor meer informatie wordt u doorverwezen naar www.hendriks.nl

Verkoper vertelt

Met trots presenteer ik u mijn woning aan de Oosterveldstraat 29 in Heel, een huis dat we sinds 2020 een grondige en liefdevolle renovatie hebben laten ondergaan.

Wij hebben afgelopen jaren volop genoten van alle comfort en luxe. Het was een waar genoegen om dit project te realiseren, en ik ben ervan overtuigd dat de nieuwe eigenaar hier net zo van zal genieten als ik heb gedaan.

Met de Lange Vlieter en de Boschmolenplas liggen 2 grindmeren op wandelafstand waar je heerlijk kan relaxen en genieten van het water en de bossen. De tennis en Padel banen liggen op de hoek van de straat voor de sportievelingen. De Jumbo en diverse andere winkels ligt in het centrum vlakbij om boodschappende doen. Heel heeft een uitgebreid en gevarieerd verenigingsleven waar je je als buitenstaander makkelijk bij aan kan sluiten, zeer open bevolking. De Oosterveldstraat is een zeer rustige en veilige straat, waar de mensen elkaar nog kennen.

Roermond: Sint Christoffelstraat 1-3, T 0475 - 31 12

hoogwaardig

Wat een ruimte! luxe voorzieningen

Overal in de woning vind je hoogwaardige materialen en verfijnde details terug. Van de vloeren tot de plafonds, alles is met zorg en aandacht voor detail afgewerkt. De badkamers zijn uitgerust met luxe voorzieningen, waardoor ze aanvoelen als privé spa’s. Deze hoogwaardige afwerking zorgt voor een luxueuze sfeer en verhoogt het wooncomfort aanzienlijk. Elk detail is zorgvuldig gekozen om een gevoel van elegantie en verfijning te creëren.

huizen

ruime slaapkamer

luxe badkamer

Deze woning is volledig gasloos en door de hoeveelheid zonnepanelen volledig nulopdemeter. Dit draagt bij aan een duurzamer en milieuvriendelijker leven. Moderne verwarmingssystemen en hoogwaardige isolatie zorgen voor een aangenaam binnenklimaat het hele jaar door. Met deze woning draag je bij aan een kleinere ecologische voetafdruk. Deze woning is klaar voor de toekomst en biedt een comfortabele en duurzame leefomgeving.

Slaap lekker

Extra ruimte

dubbele bewoning

extra ruimte

Met twee aparte ingangen en voldoende voorzieningen is deze woning ideaal voor dubbele bewoning. Dit maakt het een perfecte keuze voor gezinnen die dicht bij elkaar willen wonen maar toch hun eigen privacy willen behouden. Daarnaast biedt het uitstekende mogelijkheden voor het creëren van een mantelzorgwoning of kangoeroewoning.

Het souterrain biedt een overvloed aan extra ruimte die je naar eigen wens kunt benutten. Stel je voor: een thuisbioscoop voor filmavonden, een fitnessruimte om in vorm te blijven, of een speelkamer waar de kinderen zich kunnen uitleven. Deze veelzijdige ruimte verhoogt je wooncomfort aanzienlijk en biedt talloze mogelijkheden voor persoonlijke invulling. Het is de perfecte plek voor hobby’s, opslag of extra leefruimte, afhankelijk van je behoeften.

met zwembad

privésauna

Duik in het kristalheldere water van je eigen verwarmde zwembad, ongeacht het seizoen. Dankzij de warmtepomp geniet je het hele jaar door van een aangename watertemperatuur. Deze luxe voorziening biedt een oase van rust en plezier in je eigen achtertuin, perfect voor ontspanning en recreatie. Of je nu baantjes wilt trekken om fit te blijven of gewoon wilt ontspannen met familie en vrienden, dit zwembad voegt een ongekende waarde toe aan je woongenot.

Ontspan en kom tot rust in je eigen privé sauna. Deze luxe voorziening biedt de perfecte plek om te ontspannen na een lange dag en draagt bij aan het gevoel van luxe en comfort dat deze woning biedt. De sauna is een ideale plek om te ontsnappen aan de dagelijkse stress en te genieten van een moment van rust en welzijn. Het is een waardevolle toevoeging aan de woning, die bijdraagt aan je algehele gezondheid en welzijn.

Heel

Per 1 januari 2007 is de gemeente Maasgouw ontstaan door samenvoeging van de kernen Maasbracht, Brachterbeek, Heel, Panheel, Thorn, Wessem, Linne, Beegden, Stevensweert en Ohé en Laak. Daardoor is een gemeente ontstaan van 24.508 inwoners met een oppervlakte van 5.802 hectare. Uit een oude Romeinse nederzetting is het dorp Heel ontstaan. Een oude burcht (thans nog onderdeel van huize Sint Anna) werd in de 17e eeuw herbouwd en in de 18e eeuw uitgebreid. In onze eeuw ging het aanzien deels verloren door de omringende gebouwen van een medisch instituut. De kerktoren is uit de 12e eeuw en gedeeltelijk gebouwd van maaskeien. Het dorp is nog altijd landelijk met in het centrum een mooi pleintje met een charmant kapelletje omgeven door lindebomen. Aan de noordzijde van de rijksweg ligt het natuurgebied de Heelderpeel met bos en zandverstuivingen, een natuurbad en een camping. Ten zuiden van deze weg ligt de Tuspeel met een rijke flora en fauna. In de omgeving zijn grote waterplassen ontstaan door ontgrinding.

heerlijk wonen in Heel
noorden kadastrale kaart

Lokaal makelaarschap

Wij geloven sterk in lokaal makelaarschap. Kennis van de buurt, de omgeving en de daarbij behorende ontwikkeling van de huizenprijzen zijn onmisbaar om voor jou het maximale resultaat te boeken.

Met Hendriks Makelaardij kies je voor:

• makelaars die al jarenlang verbonden zijn met de regio

• kennis van de lokale woningmarkt

• een verkoopplan afgestemd op jouw woning

• maximale exposure van je huis

• bezichtigingen ook in het weekend

• netwerk met honderden woningzoekers

Verkoop je je huis met Hendriks dan ben je met de eigen app 24/7 op de hoogte van het verkoopproces.

Bezichtigingsverzoeken bereiken je direct en beantwoord je snel en discreet op het moment dat het jou uitkomt.

HEERHUGOWAARD

ALKMAAR LANDSMEER HOORN

Ook je huis verkopen? Onze makelaars komen graag en vrijblijvend bij je langs. We maken dan direct een gratis waardebepaling. Hendriks Makelaardij werkt op basis van no cure no pay. En betalen doe je pas bij verkoop.

Sint Christoffelstraat 1-3 0475 - 31 12 00 roermond@hendriks.nl www.hendriks.nl

PURMEREND ZAANDAM

A’DAM WEST

HOOFDDORP HAARLEM

LEIDEN

MONNICKENDAM

A’DAM NOORD

AMSTERDAM

ALMERE AMSTELVEEN

BUSSUM

HILVERSUM

(2x) (2x)

MAARSSEN

VLEUTEN DE MEERN UTRECHT

NIEUWEGEIN WIJK BIJ DUURSTEDE

AMERSFOORT

MEPPEL

ZWOLLE

APELDOORN

NIJMEGEN ARNHEM

‘S-HERTOGENBOSCH

TILBURG REESHOF BREDA

EINDHOVEN (2x) (2x)

TILBURG WEERT

ROERMOND

Turn static files into dynamic content formats.

Create a flipbook