Skip to main content

Morgenweg 7, Sint Odilienberg

Page 1

HuizenHendriks van

Groen altijd nabij

Ruime woonkamer

Lekker klussen

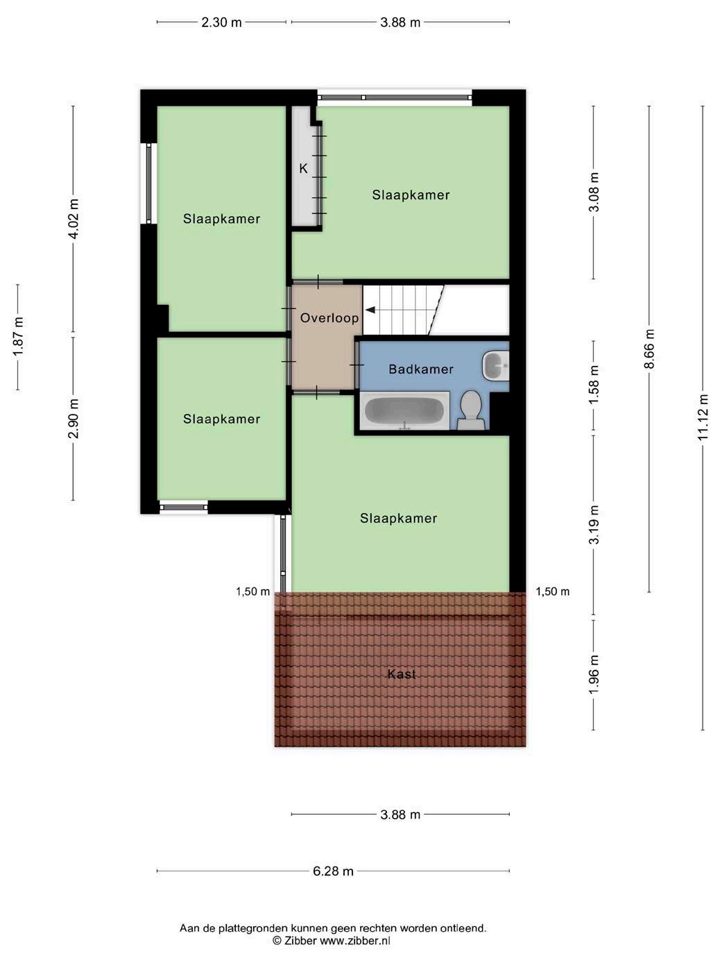
Veel slaapkamers

Met garage

Morgenweg 7 , 6077 GW Sint Odilienberg
H54

De in deze brochure getoonde informatie wordt door Hendriks makelaardij met zorg samengesteld, doch voor de juistheid en volledigheid daarvan kan niet worden ingestaan en kunnen hieraan geen rechten worden ontleend. Spel- en typefouten voorbehouden. De plattegronden zijn geproduceerd voor promotionele doeleinden en ter indicatie. Er kunnen geen rechten aan worden ontleend. Maten zijn niet eigenhandig opgemeten. Indien er twijfel bestaat over de accuratie van de gegevens aangaande deze brochure, is de geïnteresseerde zelf verantwoordelijk voor het nameten van deze gegevens. Voor meer informatie wordt u doorverwezen naar www.hendriks.nl

Verkoper vertelt

Deze riante kluswoning is pas echt een mooie kans!

De woning is gelegen nabij diverse fraai wandel en fiets routes en ligt aan een rustige straat in een karakteristieke buurt van Sint- Odiliënberg.

Deze twee-onder-kaper uit 1972 is een echte opknapper met veel kamers en een fijne tuin. Steek jij je twee rechterhanden uit de mouwen en realiseer hier je droom woning? Mis deze kans niet!

Kenmerken eengezinswoning 2-onder-1-kapwoning 7 110 m² 300 m² 463 m³ 1972 achtertuin, zijtuin aangebouwd steen c.v.-ketel dakisolatie, gedeeltelijk dubbel glas E Soort Type Kamers Woonoppervlakte Perceeloppervlakte Inhoud Bouwjaar Tuin Garage Verwarming Isolatie Energielabel
Roermond: Sint Christoffelstraat 1-3, T 0475 - 31 12 00
Te koop bij

Omringd door groen!

ruime woonkamer

leuk zicht op buiten

Stap binnen in de lange doorzon woonkamer die zoveel mogelijkheden biedt. De muur- en vloerafwerking mogen een opfrisbeurt gebruiken, maar dit geeft je de kans om het helemaal naar eigen smaak in te richten. De open trap naar de eerste verdieping geeft een speels karakter aan de woonkamer.

huizen van hendriks

Wat een ruimte...

open keuken standaard indeling

De keuken, hoewel gedateerd uit de jaren ‘80, kan een ware transformatie ondergaan en de inbouwapparatuur kan helemaal naar jouw wensen worden geïnstalleerd. Ook heb je vanuit hier toegang tot de inpandige berging.

De badkamer met ligbad, toilet en wastafel kan met een moderne touch een oase van ontspanning worden.

huizen van hendriks

vier slaapkamers

ruime zolderverdieping

Op de eerste verdieping zijn vier ruime slaapkamers en een badkamer. De vloeren zijn momenteel bekleed met linoleum en vloerbedekking, maar die kunnen wel een update gebruiken.

De ruime zolder op de tweede verdieping is een waardevolle aanvulling op deze woning. De houten dekvloer en het dakraam creëren een fijne ruimte. Bovendien biedt het hellende dak een uitstekende gelegenheid om zonnepanelen te plaatsen en zo bij te dragen aan een duurzame huis.

huizen van hendriks
Lekker licht
Morgenweg 7 6077 GW Sint Odilienberg
Morgenweg 7 6077 GW Sint Odilienberg
Morgenweg 7 6077 GW Sint Odilienberg
Morgenweg 7 6077 GW Sint Odilienberg

Sint Odilienberg

Het kerkdorp Sint Odiliënberg maakt, sinds de herindeling van 1 januari 2007, samen met Herkenbosch, Posterholt, Melick, Montfort en Vlodrop deel uit van de gemeente Roerdalen. Deze gemeente telt een inwonersaantal van 21.286 en bestrijkt een gebied van circa 8.900 hectare.

Dit dorp is aan de Roer gelegen en wordt gedomineerd door beide torens van de zeer bezienswaardige basiliek. Meer herinneringen aan het rijke verleden van Sint Odilienberg zijn te vinden in het interessante streekmuseum De Roerstreek.

Sint Odiliënberg beschikt over diverse voorzieningen. Er zijn o.a. een basisschool, een peuterspeelzaal, diverse winkels, een gemeentehuis, een bank, een huisarts, een tandarts, een bibliotheek en diverse sportvoorzieningen. Iedere woensdagmorgen wordt er een weekmarkt gehouden op de parkeerplaats aan de Willem Alexanderlaan (tegenover verzorgingshuis Petrusberg).

heerlijk wonen in Sint Odilienberg

noorden kadastrale kaart

Lokaal makelaarschap

Wij geloven sterk in lokaal makelaarschap. Kennis van de buurt, de omgeving en de daarbij behorende ontwikkeling van de huizenprijzen zijn onmisbaar om voor jou het maximale resultaat te boeken.

Met Hendriks Makelaardij kies je voor:

• makelaars die al jarenlang verbonden zijn met de regio

• kennis van de lokale woningmarkt

• een verkoopplan afgestemd op jouw woning

• maximale exposure van je huis

• bezichtigingen ook in het weekend

• netwerk met honderden woningzoekers

Verkoop je je huis met Hendriks dan ben je met de eigen app 24/7 op de hoogte van het verkoopproces. Bezichtigingsverzoeken bereiken je direct en beantwoord je snel en discreet op het moment dat het jou uitkomt.

Ook je huis verkopen? Onze makelaars komen graag en vrijblijvend bij je langs. We maken dan direct een gratis waardebepaling. Hendriks Makelaardij werkt op basis van no cure no pay. En betalen doe je pas bij verkoop.

Sint Christoffelstraat 1-3 0475 - 31 12 00 roermond@hendriks.nl www.hendriks.nl

TILBURG REESHOF BREDA ‘S-HERTOGENBOSCH TILBURG WEERT ROERMOND NIJMEGEN ARNHEM APELDOORN BUSSUM MEPPEL ALMERE AMSTELVEEN AMSTERDAM A’DAM NOORD MONNICKENDAM PURMEREND ZAANDAM ALKMAAR LANDSMEER HOORN HEERHUGOWAARD A’DAM WEST HOOFDDORP HAARLEM (2x) (2x) AMERSFOORT LEIDEN HILVERSUM EINDHOVEN (2x) (2x) ZWOLLE NIEUWEGEIN WIJK BIJ DUURSTEDE VLEUTEN DE MEERN UTRECHT MAARSSEN onze makelaarskantoren huizen van hendriks
WHATSAPP FOTO’S WONING ADRES WAARDE + + = Sint Christoffelstraat 1-3 0475 - 31 12 00 roermond@hendriks.nl www.hendriks.nl Ook je huis verkopen? WhatsApp de foto’s en het adres van je woning naar 06 44 33 78 72 en ontvang een gratis waardebepaling!

Turn static files into dynamic content formats.

Create a flipbook