Meester Kooningsplaats 4 Eindhoven

Page 1

HuizenHendriks van

Eigen oprit Ideaal voor gezinnen 12 zonnepanelen Rustige ligging H51
Meester Kooningsplaats 4 , 5612 KS Eindhoven

De in deze brochure getoonde informatie wordt door Hendriks makelaardij met zorg samengesteld, doch voor de juistheid en volledigheid daarvan kan niet worden ingestaan en kunnen hieraan geen rechten worden ontleend. Spel- en typefouten voorbehouden. De plattegronden zijn geproduceerd voor promotionele doeleinden en ter indicatie. Er kunnen geen rechten aan worden ontleend. Maten zijn niet eigenhandig opgemeten. Indien er twijfel bestaat over de accuratie van de gegevens aangaande deze brochure, is de geïnteresseerde zelf verantwoordelijk voor het nameten van deze gegevens. Voor meer informatie wordt u doorverwezen naar www.hendriks.nl

Verkoper vertelt

“Dit huis, ons thuis, heeft ons gezin door de jaren heen gekoesterd en gevuld met gelukkige momenten. De ruime lichte woonkamer was de plaats waar we samenkwamen om te ontspannen.

De keuken was het epicentrum van ons huiselijke leven, waar we samen kookten en maaltijden deelden aan de eettafel. De tuin, met overkapping waar we menig avonden buiten door hebben gebracht.

De slaapkamers waren onze persoonlijke toevluchtsoorden, waar onze kinderen groeiden en dromen deelden. Alles is bereikbaar binnen 10 minuten loopafstand zoals dicht bij het stadscentrum, station, winkels en scholen. Het is gelegen in een rustig hofje.

Dit huis heeft ons niet alleen onderdak geboden, maar ook liefde, comfort en de mogelijkheid om samen te groeien. We dragen de mooie herinneringen met ons, maar nu is het tijd voor een nieuwe

familie om hier hun eigen gelukkige hoofdstuk te beginnen. Mogen zij net zoveel vreugde en warmte vinden als wij hier hebben ervaren.”

Kenmerken eengezinswoning eindwoning 5 116 m² 163 m² 416 m³ 2002 achtertuin, voortuin parkeerplaats, geen garage c.v.-ketel volledig geïsoleerd Soort Type Kamers Woonoppervlakte Perceeloppervlakte Inhoud Bouwjaar Tuin Garage Verwarming Isolatie
Eindhoven: Aalsterweg 5, T 040 - 293 05 00
Te koop bij

lichte woonkamer

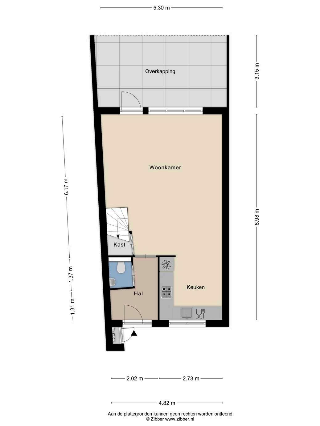
open keuken

Parkeer de auto gemakkelijk op de eigen oprit en kom de woning binnen via de entree. De hal verleent op zijn beurt weer toegang tot de woonkamer en de toiletruimte.

Wanneer jij de woonkamer binnenstapt zie jij het direct voor je! Een comfortabele bank dichtbij het raam met leuk zicht op de tuin, en een gezellige eettafel dichtbij de open keuken. In deze woonkamer kun je qua inrichting meerdere kanten op. De ruimte heeft een goede basis dankzij de laminaatvloer en het stucwerk op de wanden. Hoe zou jij de ruimte indelen?

De open keuken staat in een ruime hoekopstelling en is voorzien van een gasfornuis, combi-oven, koelkast, vriezer en een vaatwasser. Daarnaast valt ook hier het daglicht optimaal naar binnen via het grote raam aan de voorzijde.

Open indeling
huizen van hendriks

Alle ruimte

ruime vertrekken verzorgde afwerking

Op de eerste verdieping zijn drie slaapkamers gelegen – één grote slaapkamer aan de achterzijde en twee slaapkamers aan de voorzijde. Alle vertrekken zijn verzorgd afgewerkt met een laminaatvloer en stucwerk op de wanden.

huizen van hendriks

Compleet ingericht

nette badkamer

vier slaapkamers

In het midden van de verdieping bevindt zich de badkamer. De ruimte is volledig betegeld en ingericht met een ligbad inclusief douchevoorziening, dubbele wastafel en een toilet.

De vierde slaapkamer is van goede afmetingen en is eveneens afgewerkt met een laminaatvloer. Hier zijn de cv-opstelling en de witgoedaansluiting gevestigd en biedt de buitendeur toegang tot het balkon.

huizen van hendriks

Volop genieten met overkapping

Het grote genieten zet zich voort in de achtertuin op het noorden. De tuin is onderhoudsvriendelijk aangelegd met bestrating, borders en een overkapping zodat je ook tijdens een Hollands buitje kunt blijven zitten.

Tot slot biedt de stenen berging met elektra de mogelijkheid om fietsen en tuinspullen netjes op te bergen.

tuin op het noorden huizen van hendriks
Meester Kooningsplaats 4 5612 KS Eindhoven
Meester Kooningsplaats 4 5612 KS Eindhoven
Meester Kooningsplaats 4 5612 KS Eindhoven

heerlijk wonen in Eindhoven

Deze jonge Brabantse stad heeft een moderne uitstraling met een warm, bourgondisch centrum. Binnen een eeuw is dit boerenstadje uitgegroeid tot een aantrekkelijke dynamische stad met ruim 220.000 inwoners. De gemeente Eindhoven omvat naast de gelijknamige stad Eindhoven ook het dorp Acht en Meerhoven. Qua inwonersaantal is dit de vijfde stad van Nederland.

Het bourgondische is terug te vinden in de verschillende soorten cafés, terrasjes en restaurants met vele soorten wereldkeukens. De stad heeft een acties sociaal en cultureel centrum waarbij alle soorten kunst evenementen worden georganiseerd zoals Dutch Design Week en GLOW. Daarnaast is de werkomgeving erg gezond in deze high tech omgeving. Bedrijven als Philips, DAF en ASML zorgen voor een hoge instroom aan expats. Inclusief veel groen in de nabije omgeving van het centrum maakt Eindhoven tot een heerlijke stad waar het plezierig wonen, werken en leven is.

Het woonklimaat in Eindhoven is zéér aantrekkelijk.

Eindhoven
noorden kadastrale kaart

Lokaal makelaarschap

Wij geloven sterk in lokaal makelaarschap. Kennis van de buurt, de omgeving en de daarbij behorende ontwikkeling van de huizenprijzen zijn onmisbaar om voor jou het maximale resultaat te boeken.

Met Hendriks Makelaardij kies je voor:

• makelaars die al jarenlang verbonden zijn met de regio

• kennis van de lokale woningmarkt

• een verkoopplan afgestemd op jouw huis

• maximale exposure van je huis

• bezichtigingen ook in het weekend

• netwerk met honderden woningzoekers

Verkoop je je huis met Hendriks dan ben je met de eigen app 24/7 op de hoogte van het verkoopproces. Bezichtigingsverzoeken bereiken je direct en beantwoord je snel en discreet op het moment dat het jou uitkomt.

Ook je huis verkopen? Onze makelaars komen graag en vrijblijvend bij je langs. We maken dan direct een gratis waardebepaling. Hendriks Makelaardij werkt op basis van no cure no pay. En betalen doe je pas bij verkoop.

Aalsterweg 5 040 - 293 05 00 eindhoven@hendriks.nl www.hendriks.nl

TILBURG REESHOF BREDA ‘S-HERTOGENBOSCH TILBURG WEERT ROERMOND NIJMEGEN ARNHEM APELDOORN BUSSUM MEPPEL ALMERE AMSTELVEEN AMSTERDAM A’DAM NOORD MONNICKENDAM PURMEREND ZAANDAM ALKMAAR LANDSMEER HOORN HEERHUGOWAARD A’DAM WEST HOOFDDORP HAARLEM (2x) (2x) AMERSFOORT LEIDEN HILVERSUM EINDHOVEN (2x) (2x) ZWOLLE NIEUWEGEIN WIJK BIJ DUURSTEDE VLEUTEN DE MEERN UTRECHT MAARSSEN onze makelaarskantoren huizen van hendriks
WHATSAPP FOTO’S WONING ADRES WAARDE + + = Aalsterweg 5 040 - 293 05 00 eindhoven@hendriks.nl www.hendriks.nl Ook je huis verkopen? WhatsApp de foto’s en het adres van je woning naar 06 44 33 78 72 en ontvang een gratis waardebepaling!

Turn static files into dynamic content formats.

Create a flipbook
Issuu converts static files into: digital portfolios, online yearbooks, online catalogs, digital photo albums and more. Sign up and create your flipbook.