Skip to main content

Brochure-Lisdodde_16

Page 1


HuizenHendriks van

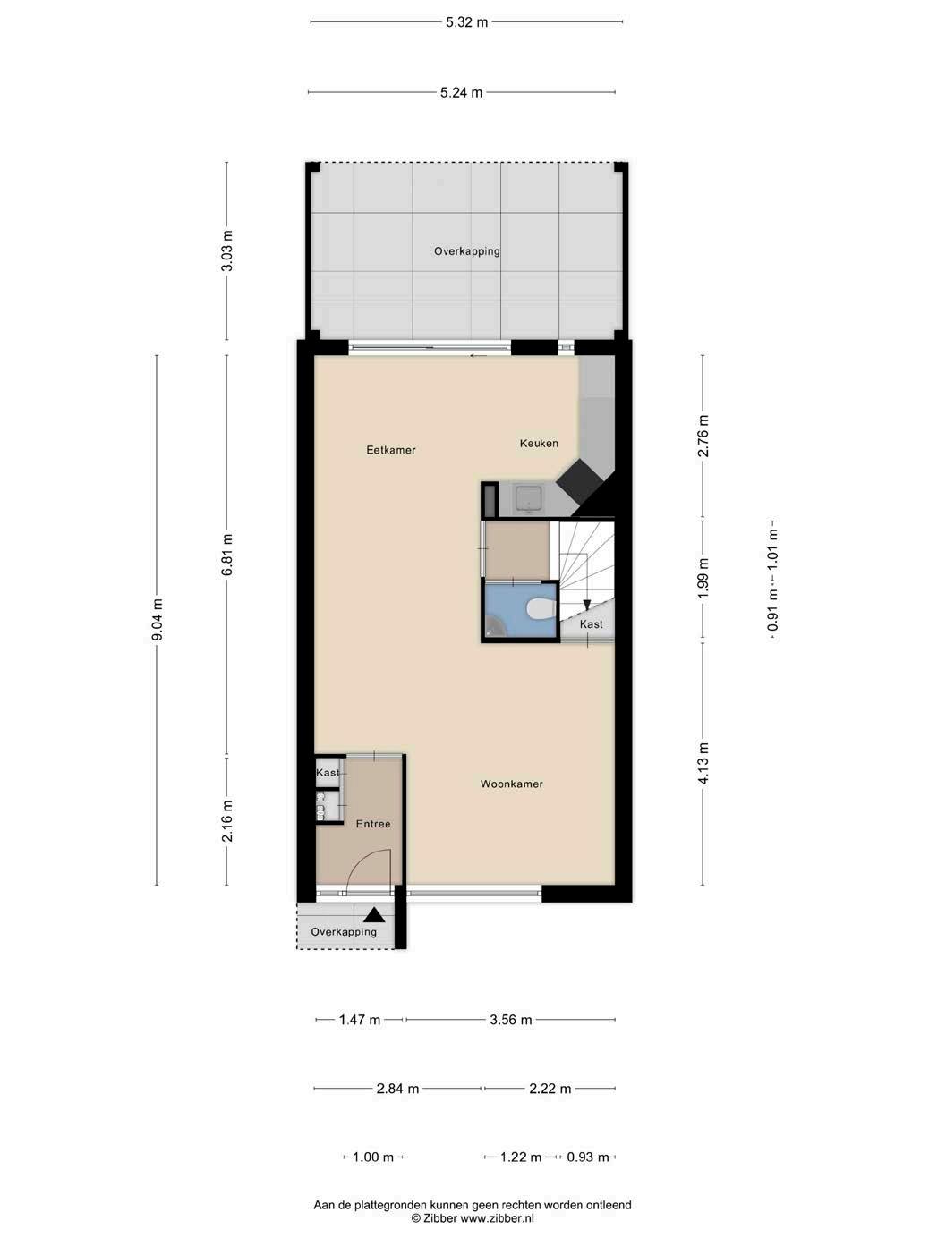
Praktische en ruime indeling

Fijne tuin met overkapping

Modern en netjes afgewerkt

Energielabel A

Gelegen in de populaire wijk Kroeten

Soort eengezinswoning

Type tussenwoning

Kamers 4

Woonoppervlakte 93 m²

Perceeloppervlakte 135 m²

Inhoud 328 m³

Bouwjaar 2000

Tuin achtertuin, voortuin

Garage geen garage

Verwarming stadsverwarming

Isolatie volledig geïsoleerd

Energielabel A

De in deze brochure getoonde informatie wordt door Hendriks makelaardij met zorg samengesteld, doch voor de juistheid en volledigheid daarvan kan niet worden ingestaan en kunnen hieraan geen rechten worden ontleend. Spel- en typefouten voorbehouden. De plattegronden zijn geproduceerd voor promotionele doeleinden en ter indicatie. Er kunnen geen rechten aan worden ontleend. Maten zijn niet eigenhandig opgemeten. Indien er twijfel bestaat over de accuratie van de gegevens aangaande deze brochure, is de geïnteresseerde zelf verantwoordelijk voor het nameten van deze gegevens. Voor meer informatie wordt u doorverwezen naar www.hendriks.nl

Verkoper vertelt

Met veel plezier hebben wij de afgelopen jaren in deze woning gewoond. Nu is het tijd voor een nieuwe stap, maar we laten met een goed gevoel een fijn huis achter, klaar voor nieuwe bewoners om er hun thuis van te maken.

De woning is gelegen in een rustige, groene wijk, op slechts 15 minuten rijden van het stadscentrum. Daarnaast is winkelcentrum Heksenwiel op 2 minuten rijafstand. In de directe omgeving zijn op loopafstand diverse scholen, speeltuinen en andere voorzieningen te vinden, wat het een ideale locatie maakt voor starters of jonge gezinnen.

Het huis is instapklaar en met zorg onderhouden. De prettige ligging, de kindvriendelijke sfeer in de buurt en het comfort van de woning maken het een fijne plek om te wonen.

Wij hopen dat de volgende bewoners er net zo van zullen genieten als wij dat hebben gedaan.

Ga lekker zitten

fijne lichtinval

voldoende ruimte

De woonkamer is een fijne plek, met een grote raampartij die zorgt voor een heerlijke lichtinval. Zie je jezelf al zitten met een mok thee op de bank of misschien met vrienden aan de eettafel voor een gezellig diner?

Wat maak jij klaar?

complete keuken modern ingericht

De L-vormige keuken is compleet en modern ingericht met kunststof blad en beschikt over alle inbouwapparatuur, zoals een vaatwasser, combimagnetron en inductiekookplaat. Door de open verbinding kun je goed contact houden met elkaar. Pluspunt: het zicht en de schuifpui naar de tuin!

Heerlijk ontwaken

3 slaapkamers

voldoende ruimte

We nemen je mee naar boven: hier bevinden zich drie comfortabele slaapkamers, allemaal net zo licht en verzorgd als de rest van de woning. Een mogelijkheid voor ieder gezinslid om zijn of haar eigen plekje te creëren, of voor iemand die thuiswerkt en een aparte werkplek zoekt. En de badkamer? Die biedt alles wat je nodig hebt, waaronder een ruime inloopdouche, maar ook een groot whirlpool bad waar je heerlijk even kunt ontspannen na een lange dag.

houten overkapping Genieten modern aangelegd

Loop je via de lichte schuifpui naar buiten, dan wacht de fijne achtertuin op je, compleet met een hoogwaardige houten overkapping. Regen of zon: hier kun je het hele jaar door genieten van jouw eigen stukje buitenplezier. De tuin is strak en modern aangelegd. Er is ook een stenen berging en achterom, wat de tuin niet alleen mooi maakt, maar ook handig.

Breda

Breda de Bourgondische en Culturele stad in West-Brabant is omgeven door bossen en heidevelden zoals het Mastbos, Liesbos en de Galderse Heide. Je vindt in Breda mooie parken zoals het Valkenberg met het beroemde Kasteel van Breda in het hartje van de stad. De afgelopen jaren zijn er in Breda veel vernieuwingen in gang gezet of inmiddels afgerond, dit in het kader van de campagne: Breda, stad met karakter!

De binnenstad is opnieuw ingericht en werd in 2009 en 2017 uitgeroepen tot Beste Binnenstad van Nederland! Het stadspark Valkenberg is vernieuwd, de restauratie van de Grote of Onze Lieve Vrouwe kerk is voltooid. Daarnaast is in 2007 de haven heropend en is het nieuwe Centraal Station, annex Spoorzone het visitekaartje van Breda.

De binnenstad van Breda, met een groots gevarieerd aanbod van winkels, ademt een gemoedelijke sfeer uit. Het mooie marktplein met de vele gezellige terrassen bepalen het beeld van het stadscentrum. Door zijn gunstige ligging t.o.v. Antwerpen en Rotterdam, met de autosnelwegen A16, A27, en de A58 is Breda een geliefde woonstad waar het goed wonen, werken en ontspannen is!

heerlijk wonen in Breda
noorden kadastrale kaart

HEERHUGOWAARD

ALKMAAR LANDSMEER HOORN

ZAANDAM

(2x)

A’DAM WEST

HOOFDDORP HAARLEM

LEIDEN

Lokaal makelaarschap

Wij geloven sterk in lokaal makelaarschap. Kennis van de buurt, de omgeving en de daarbij behorende ontwikkeling van de huizenprijzen zijn onmisbaar om voor jou het maximale resultaat te boeken.

Met Hendriks Makelaardij kies je voor:

• makelaars die al jarenlang verbonden zijn met de regio

• kennis van de lokale woningmarkt

• een verkoopplan afgestemd op jouw woning

• maximale exposure van je huis

• bezichtigingen ook in het weekend

• netwerk met honderden woningzoekers

Verkoop je je huis met Hendriks dan ben je met de eigen app 24/7 op de hoogte van het verkoopproces.

Bezichtigingsverzoeken bereiken je direct en beantwoord je snel en discreet op het moment dat het jou uitkomt.

Ook je huis verkopen? Onze makelaars komen graag en vrijblijvend bij je langs. We maken dan direct een gratis waardebepaling. Hendriks Makelaardij werkt op basis van no cure no pay. En betalen doe je pas bij verkoop.

Markendaalseweg 329-A35 076 - 524 77 88 breda@hendriks.nl www.hendriks.nl

PURMEREND

MONNICKENDAM

A’DAM NOORD

AMSTERDAM

AMSTELVEEN

ALMERE

BUSSUM

HILVERSUM

VLEUTEN DE MEERN UTRECHT MAARSSEN

AMERSFOORT

(2x) (2x)

NIEUWEGEIN WIJK BIJ DUURSTEDE

MEPPEL

ZWOLLE

APELDOORN

ARNHEM

(2x)

NIJMEGEN

‘S-HERTOGENBOSCH

BREDA

EINDHOVEN

TILBURG WEERT

ROERMOND

Turn static files into dynamic content formats.

Create a flipbook