Korenbloemstraat 5, Nijmegen

Page 1

HuizenHendriks van

4
Omzettingsvergunning
H53
Korenbloemstraat 5 , 6542 NH Nijmegen
studentenkamers
Tuin op het Zuid-Westen Centraal gelegen

Soort Type Kamers

Woonoppervlakte Perceeloppervlakte

Inhoud Bouwjaar Tuin Garage Verwarming Isolatie Energielabel

Kenmerken

eengezinswoning eindwoning 6 75 m² 149 m² 355 m³ 1948 achtertuin, voortuin geen garage c.v.-ketel dubbel glas E

De in deze brochure getoonde informatie wordt door Hendriks makelaardij met zorg samengesteld, doch voor de juistheid en volledigheid daarvan kan niet worden ingestaan en kunnen hieraan geen rechten worden ontleend. Spel- en typefouten voorbehouden. De plattegronden zijn geproduceerd voor promotionele doeleinden en ter indicatie. Er kunnen geen rechten aan worden ontleend. Maten zijn niet eigenhandig opgemeten. Indien er twijfel bestaat over de accuratie van de gegevens aangaande deze brochure, is de geïnteresseerde zelf verantwoordelijk voor het nameten van deze gegevens. Voor meer informatie wordt u doorverwezen naar www.hendriks.nl

Verkoper vertelt

De woning is sinds 2008 verhuurd aan 4 studenten. Het is een praktische woning in een rustige veilige woonwijk met alle benodigde voorzieningen in de buurt.

De verwarming is per kamer afzonderlijk regelbaar. Ruime koelkasten en alle apparatuur voor het koken aanwezig. Ruime tuin op het zuiden. De meeste studenten wonen er de gehele studietijd.

Nijmegen: Burchtstraat 124, T 024 - 381 82 50
Te koop bij

lichte vertrekken

Je komt binnen in de hal met toegang tot de voormalige woonkamer, keuken, trap naar boven, toiletruimte en de kelder met een stahoogte van 1,87 meter.

De voormalige doorzon woonkamer is opgesplitst in momenteel twee slaapkamers. Een slaapkamer aan de voorzijde en een slaapkamer aan de achterzijde van de woning. Beide ruimtes zijn aangenaam licht en in de voorste slaapkamer zijn twee vaste kasten.

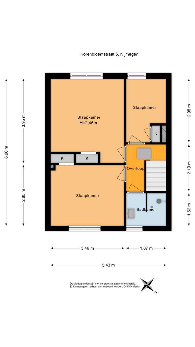
Aangekomen op de eerste verdieping bestaat de indeling uit drie slaapkamers en een badkamer.

De slaapkamers variëren in grootte en zijn allen voorzien van vaste kasten. Ideaal voor de garderobe!

huizen van hendriks
Diverse mogelijkheden momenteel vijf kamers

Eenvoudige afwerking

afgesloten keuken handige serre

In de afgesloten keuken staat een rechte wandopstelling met een eenvoudige afwerking. Via de tussendeur kom je in de serre met een buitendeur naar de tuin.

Daarnaast bevindt de badkamer zich op de eerste verdieping. De ruimte is ingericht met een douche en een wastafel.

huizen van hendriks

zonnige ligging vrijstaande berging

Achter de woning ligt een tuin op het zuidwesten met een vrijstaande stenen berging. Het geheel is aangelegd met grotendeels bestrating en biedt alle ruimte voor een comfortabele loungeset. Tot slot is de tuin ook toegankelijk via een eigen achterom.

Veel zonuren

huizen van hendriks
Korenbloemstraat 5 6542 NH Nijmegen
Korenbloemstraat 5 6542 NH Nijmegen
Korenbloemstraat 5 6542 NH Nijmegen
Korenbloemstraat 5 6542 NH Nijmegen

heerlijk wonen in Nijmegen

Nijmegen

De vestingstad Nijmegen, schitterend gelegen aan de rivier de Waal, ligt tussen heuvels en bossen. In de stad zijn nog veel kenmerken van de Romeinse tijd terug te vinden, zoals Romeinse thermen en tempels. Aan het eind van de 19e eeuw ontwikkelde Nijmegen zich als een prachtige woonstad. De brede singels en statige huizen van de St.-Annastraat, de Van Schaeck Mathonsingel en de Oranjesingel stralen nog steeds de schoonheid en de grandeur uit van de 19e eeuw.

Het centrum van Nijmegen heeft recentelijk een nieuw, aantrekkelijker gezicht gekregen. Met een uitnodigende openbare ruimte, gezellige winkelstraten, veel groen en een gevarieerd cultureel aanbod.

Lokaal makelaarschap

Wij geloven sterk in lokaal makelaarschap. Kennis van de buurt, de omgeving en de daarbij behorende ontwikkeling van de huizenprijzen zijn onmisbaar om voor jou het maximale resultaat te boeken.

Met Hendriks Makelaardij kies je voor: • makelaars die al jarenlang verbonden zijn met de regio • kennis van de lokale woningmarkt • een verkoopplan afgestemd op jouw woning • maximale exposure van je huis • bezichtigingen ook in het weekend • netwerk met honderden woningzoekers

Verkoop je je huis met Hendriks dan ben je met de eigen app 24/7 op de hoogte van het verkoopproces. Bezichtigingsverzoeken bereiken je direct en beantwoord je snel en discreet op het moment dat het jou uitkomt.

Ook je huis verkopen? Onze makelaars komen graag en vrijblijvend bij je langs. We maken dan direct een gratis waardebepaling. Hendriks Makelaardij werkt op basis van no cure no pay. En betalen doe je pas bij verkoop. Burchtstraat 124 024 - 381 82 50 nijmegen@hendriks.nl www.hendriks.nl

onze makelaarskantoren huizen van hendriks
WHATSAPP FOTO’S WONING ADRES WAARDE + + = Burchtstraat 124 024 - 381 82 50 nijmegen@hendriks.nl www.hendriks.nl Ook je huis verkopen? WhatsApp de foto’s en het adres van je woning naar 06 44 33 78 72 en ontvang een gratis waardebepaling!

Turn static files into dynamic content formats.

Create a flipbook
Issuu converts static files into: digital portfolios, online yearbooks, online catalogs, digital photo albums and more. Sign up and create your flipbook.