Skip to main content

Kimbrenstraat 9, Apeldoorn

Page 1


HuizenHendriks van

Energielabel A

Drie slaapkamers

Leuke patio

Instapklaar

Luxe afwerking

Soort beneden + bovenwoning

Kamers 4

Woonoppervlakte 122 m²

Inhoud 430 m³

Bouwjaar 2009

Tuin patio/atrium

Garage garagebox, parkeerkelder

Verwarming c.v.-ketel

Isolatie volledig geïsoleerd, hr-glas

Energielabel A

De in deze brochure getoonde informatie wordt door Hendriks makelaardij met zorg samengesteld, doch voor de juistheid en volledigheid daarvan kan niet worden ingestaan en kunnen hieraan geen rechten worden ontleend. Spel- en typefouten voorbehouden. De plattegronden zijn geproduceerd voor promotionele doeleinden en ter indicatie. Er kunnen geen rechten aan worden ontleend. Maten zijn niet eigenhandig opgemeten. Indien er twijfel bestaat over de accuratie van de gegevens aangaande deze brochure, is de geïnteresseerde zelf verantwoordelijk voor het nameten van deze gegevens. Voor meer informatie wordt u doorverwezen naar www.hendriks.nl

Verkoper vertelt

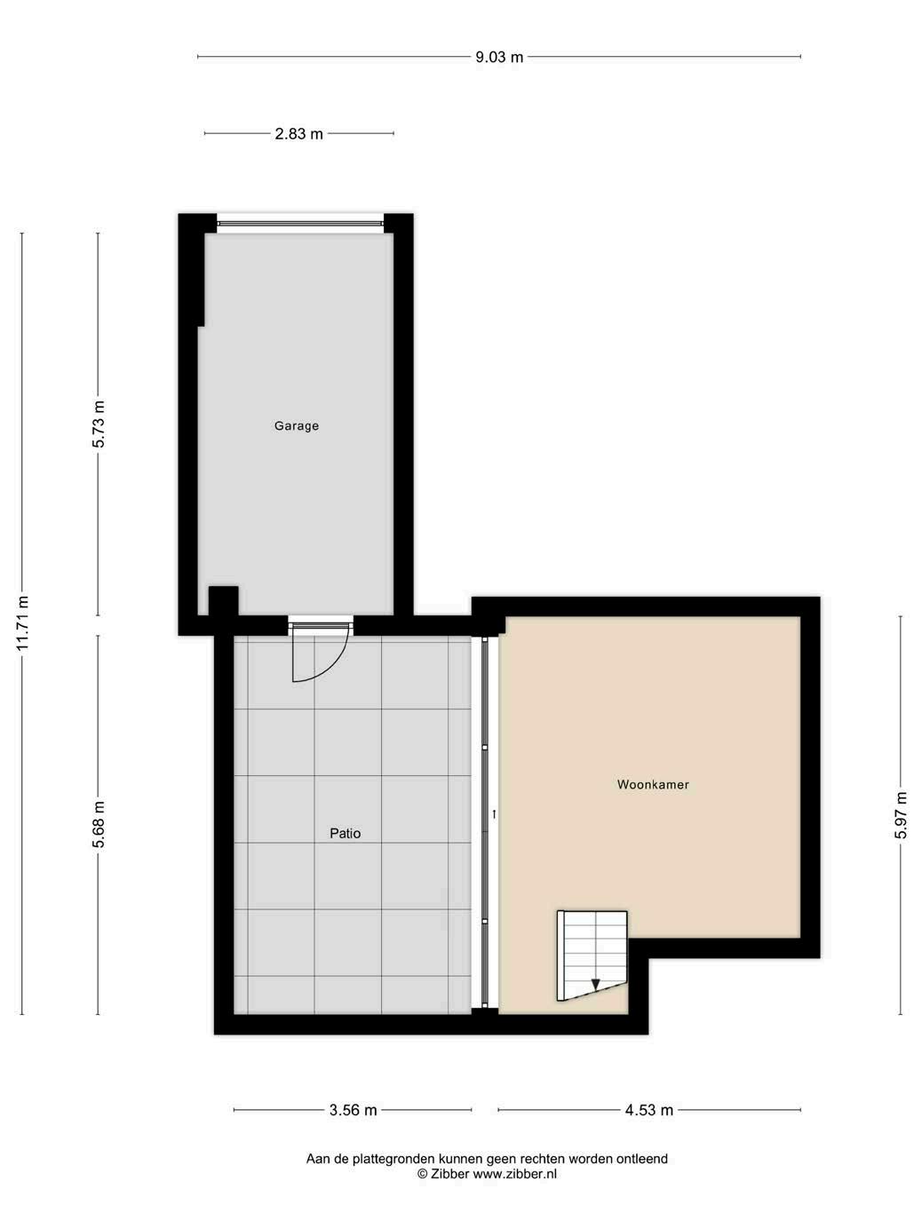
In december 2021 hebben wij deze woning gekocht. Wij vielen direct voor de speelse indeling van de woning. Binnenkomen op straatniveau en dan via de nieuwe keuken naar de verzonken woonkamer met direct aanliggende patio. In de lente, zomer en herfst is het heerlijk rustig zitten en liggen in de woonkamer en patio. Afgeschermd van de wind kan je hier van de vroege uren tot laat in de avond heerlijk verblijven.

Vanuit de patio kan je makkelijk doorlopen naar de inpandige garage. Nooit meer ‘s ochtends te hoeven krabben en de auto veilig en overdekt geparkeerd te hebben staan zonder dat de auto in de weg staat; want er is ook nog een inpandige berging voor de opslag van spullen die je niet dagelijks nodig hebt.

Het is heerlijk dichtbij het bos. Binnen 5 minuten sta je in het orderbos en binnen 10 minuten in park Berg en Bos en maken we in de weekenden mooie wandelingen en fietstochten.

Iets vergeten te kopen voor de maaltijd; of nog even snel een pakketje ophalen? In 5 minuten loop je naar het winkelcentrum Ordenplein.

Moderne keuken

moderne keuken

moderne keuken

De voordeur van de woning bevindt zich aan de voorzijde, aan de straatkant. Bij binnenkomst treft u een nette hal die toegang biedt tot het toilet en de keuken. Grote ramen zorgen voor veel natuurlijk licht. De keuken is voorzien van schiereiland, modern, luxe afwerking en voorzien van alle benodigde apparatuur met onder andere een spoelbak met Quooker, koelkast, vaatwasser, combi-oven, stoomoven, inductiekookplaat met ingebouwde afzuiging, ideaal voor het bereiden van maaltijden.

Lichte woonkamer

lichte woonkamer grote raampartijen

Bij binnenkomst in de lichte woonkamer valt direct op hoe ruim en helder het appartement is. De woonkamer is voorzien van grote raampartijen die zorgen voor veel natuurlijk daglicht. De open indeling van de woonkamer biedt talloze mogelijkheden voor het creëren van een royale zithoek en een eetkamer. Schuifdeuren geven toegang tot de zonnige patio.

huizen

3 ruime slaapkamers

drie ruime slaapkamers

flexibel in te delen!

De drie slaapkamers bieden volop mogelijkheden. De grootste slaapkamer is ruim, biedt plaats aan een groot bed en grenst aan een walk in closet. De tweede slaapkamer kan gebruikt worden als kinderkamer of kantoor, en de derde slaapkamer is perfect voor gasten of als hobbyruimte.

Zonnige patio

zonnige patio

fijne buitenruimte

De patio is een onderhoudsarme fijne buitenruimte grenzend aan de woonkamer. De patio, voorzien van een vlondervloer, biedt de mogelijkheid te genieten van een kop koffie of een goed boek. Het is de ideale plek om te ontspannen en van de zonuren te genieten. Het terras biedt voldoende ruimte voor het plaatsen van een lounge set of buitentafel, waardoor u optimaal van de buitenlucht kunt genieten.

noorden kadastrale kaart

heerlijk wonen in Apeldoorn

Apeldoorn

Apeldoorn heeft de laatste jaren een gezonde groei doorgemaakt en is het levendige centrum van de Veluwe. De gemeente telt inmiddels ca. 168.000 inwoners en is de grootste stad op de Veluwe en de twaalfde stad van Nederland. Het stedelijke gebied van Apeldoorn is onderverdeeld in ruim 40 wijken. En dan is er nog het landelijk gebied waar bijna 20.000 mensen wonen, verdeeld over de bij Apeldoorn behorende dorpen Beekbergen, Ugchelen, Beemte Broekland, Hoenderloo, Hoog Soeren, Lieren, Loenen, Nieuw Milligen, Uddel, Wenum Wiesel, deels Radio Kootwijk en Klarenbeek.

Door de vele parken, heemtuinen, maar vooral ook door de uitgestrekte natuurgebieden die rondom de stad zijn gelegen, is Apeldoorn met recht het ‘Groene hart van de Veluwe’. De Koninklijke Houtvesterij Het Loo vormt één van Nederlands grotere aaneengesloten natuurgebieden met een oppervlakte van 10.500 hectare. In deze natuurlijke omgeving leven onder andere edelherten, reeën en wilde zwijnen. Apeldoorn is ook een ‘Koninklijke Stad’, bekend om Paleis Het Loo met zijn prachtige tuinen, Koninklijke Stallen en Het Aardhuis, voormalig jachtchalet van koning Willem II. Het woonklimaat in Apeldoorn is zéér aantrekkelijk.

HEERHUGOWAARD

ALKMAAR LANDSMEER HOORN

ZAANDAM

(2x)

A’DAM WEST

HOOFDDORP HAARLEM

LEIDEN

Lokaal makelaarschap

Wij geloven sterk in lokaal makelaarschap. Kennis van de buurt, de omgeving en de daarbij behorende ontwikkeling van de huizenprijzen zijn onmisbaar om voor jou het maximale resultaat te boeken.

Met Hendriks Makelaardij kies je voor:

• makelaars die al jarenlang verbonden zijn met de regio

• kennis van de lokale woningmarkt

• een verkoopplan afgestemd op jouw woning

• maximale exposure van je huis

• bezichtigingen ook in het weekend

• netwerk met honderden woningzoekers

Verkoop je je huis met Hendriks dan ben je met de eigen app 24/7 op de hoogte van het verkoopproces.

Bezichtigingsverzoeken bereiken je direct en beantwoord je snel en discreet op het moment dat het jou uitkomt.

Ook je huis verkopen? Onze makelaars komen graag en vrijblijvend bij je langs. We maken dan direct een gratis waardebepaling. Hendriks Makelaardij werkt op basis van no cure no pay. En betalen doe je pas bij verkoop.

Zwolseweg 208 055 - 521 92 77 apeldoorn@hendriks.nl www.hendriks.nl

PURMEREND

MONNICKENDAM

A’DAM NOORD

AMSTERDAM

AMSTELVEEN

ALMERE

BUSSUM

HILVERSUM

VLEUTEN DE MEERN UTRECHT MAARSSEN

AMERSFOORT

(2x) (2x)

NIEUWEGEIN WIJK BIJ DUURSTEDE

MEPPEL

ZWOLLE

APELDOORN

ARNHEM

(2x)

NIJMEGEN

‘S-HERTOGENBOSCH

BREDA

EINDHOVEN

TILBURG WEERT

ROERMOND

Turn static files into dynamic content formats.

Create a flipbook