Keulsebaan 80, Roermond

Page 1

HuizenHendriks van

Instapklaar

Zonnige tuin

Inclusief serre

Keuken in nieuwstaat

Vernieuwde badkamer

Keulsebaan 80 , 6045 GL Roermond
H54

De in deze brochure getoonde informatie wordt door Hendriks makelaardij met zorg samengesteld, doch voor de juistheid en volledigheid daarvan kan niet worden ingestaan en kunnen hieraan geen rechten worden ontleend. Spel- en typefouten voorbehouden. De plattegronden zijn geproduceerd voor promotionele doeleinden en ter indicatie. Er kunnen geen rechten aan worden ontleend. Maten zijn niet eigenhandig opgemeten. Indien er twijfel bestaat over de accuratie van de gegevens aangaande deze brochure, is de geïnteresseerde zelf verantwoordelijk voor het nameten van deze gegevens. Voor meer informatie wordt u doorverwezen naar www.hendriks.nl

Verkoper vertelt

Wij zijn in 1983 voor dit huis gegaan om dichter bij ons ouders te wonen, we hebben hier een gezin gesticht maar de kinderen inmiddels het huis uit.

Wij hebben hier altijd graag gewoond en vele uurtjes geklust. Naar onze smaak is het dan ook een mooie woning en gunnen de kandidaten nog vele leuke jaren op dit heerlijke plekje in Roermond.

We hebben veel verbouwt en willen nu graag dichter bij onze kinderen en kleinkinderen gaan wonen, dat is voor ons de hoofdzakelijke reden om te gaan verhuizen.

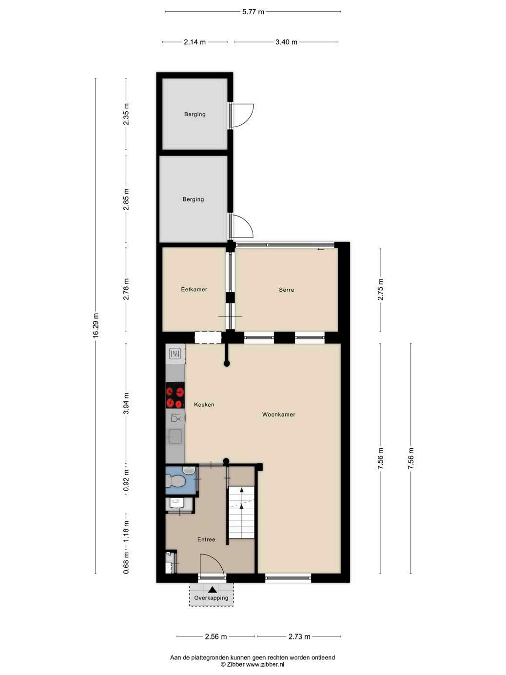
Kenmerken eengezinswoning tussenwoning 5 94 m² 124 m² 451 m³ 1952 achtertuin geen garage muurisolatie, grotendeels dubbelglas C Soort Type Kamers Woonoppervlakte Perceeloppervlakte Inhoud Bouwjaar Tuin Garage Isolatie Energielabel
Roermond: Sint Christoffelstraat 1-3, T 0475 - 31 12 00
Te koop bij

Lichte woonkamer

welkom thuis

ga lekker zitten

Je komt de woning binnen via de overdekte entree en stapt binnen in de hal. In de hal treffen we de meterkast, het separate toilet met fonteintje, de trap naar de kelder en de trapopgang naar de eerste verdieping.

Deze prachtige woonkamer is een ware droom voor iedereen die op zoek is naar een lichte en ruime leefruimte. Met voldoende ruimte voor zowel een comfortabele zithoek biedt deze woonkamer de perfecte setting voor al jouw dagelijkse activiteiten en sociale bijeenkomsten. Een van de hoogtepunten van deze woonkamer is de hoogwaardige afwerking met de nieuwe tegelvloer en de lichte kleuren op de wanden. Daarnaast krijg je middels de woonkamer toegang tot de serre.

huizen van hendriks

Goed onderhouden keuken

eet smakelijk aan tafel

De keuken van deze woning is zeer goed onderhouden en is voorzien van alle moderne gemakken, zoals een vaatwasser, koelkast, inductie kookplaat, magnetron en afzuigkap.

Grenzend aan de keuken treffen we de eetkamer waar je de ruimte hebt om een gezellige eethoek te plaatsen.

huizen van hendriks

welterusten

vernieuwde badkamer

De bovenverdieping van deze woning heeft een uitstekende indeling met twee ruime slaapkamers, een inbouwkast en een recent vernieuwde badkamer. De afwerking en kwaliteit van deze verdieping zijn van zeer hoog niveau.

De badkamer is onlangs volledig gerenoveerd en biedt alle moderne voorzieningen die men kan wensen. Zo is er een nieuwe douche, een nieuw toilet en een prachtig wastafelmeubel. De kwaliteit van deze badkamer en alle bijbehorende voorzieningen is jongstleden vernieuwd, wat betekent dat alles nog in uitstekende staat verkeert. De slaapkamers zijn beide ruimtelijk en kunnen gemakkelijk worden ingericht naar eigen smaak. Daarnaast is er een handige inbouwkast aanwezig, waardoor er voldoende opbergruimte is voor kleding en andere spullen.

Goed bemeten slaapkamers

huizen van hendriks

Heerlijke

serre

zonnige tuin

genieten

De tuin bevindt zich op het zuidwesten, waardoor je hier gedurende de hele dag geniet van een overvloed aan zonlicht. Deze ligging is ideaal voor liefhebbers van tuinieren, omdat het een optimale omgeving biedt voor het laten groeien van diverse planten en bloemen.

Een van de meest opvallende kenmerken van de tuin is de aanwezigheid van een serre. Deze serre biedt de mogelijkheid om in alle seizoenen van het jaar te genieten van de tuin, ongeacht het weer. Het is een rustige en aangename ruimte om te ontspannen, te lezen of gewoon te genieten van het uitzicht op de tuin.

De tuin is bovendien voorzien van essentiële voorzieningen zoals water en elektra.

huizen van hendriks
Keulsebaan 80 6045 GL Roermond
Keulsebaan 80 6045 GL Roermond
Keulsebaan 80 6045 GL Roermond

heerlijk wonen in Roermond

Roermond is een stad die rijk is aan monumenten. Door de eeuwen heen was de stad Hanzestad en hoofdstad van Gelre en nu nog is het de bisschopstad van Limburg. Na de gemeentelijk herindeling op 1 januari 2007 bestaat de gemeente Roermond uit de kernen Roermond, Swalmen, Herten, Maasniel, Leeuwen en Asenray. De gemeente telt een inwonersaantal van 54.310 en bestrijkt een gebied van circa 7.100 hectare.

Ook natuurliefhebbers komen aan hun trekken. Direct voor de poorten van de stad, langs de Maas, ligt een uitgestrekt waterrecreatie-gebied: de Maasplassen. Een aaneenschakeling van kleine en grote meren, gelegen in een groen en weids landschap. Aan de oostkant van de gemeente ligt het schitterende nationaal park: de Meinweg, waarin adders en wilde zwijnen voorkomen.

Het historische stratenpatroon van de Roermondse binnenstad herbergt een attractief winkelcentrum. Behalve winkelketens, treft u hier een grote diversiteit aan kleinschalige zaken die samen met de vele horeca gelegenheden, het gezellige karakter van de stad bepalen.

Roermond
noorden
kadastrale kaart

Lokaal makelaarschap

Wij geloven sterk in lokaal makelaarschap. Kennis van de buurt, de omgeving en de daarbij behorende ontwikkeling van de huizenprijzen zijn onmisbaar om voor jou het maximale resultaat te boeken.

Met Hendriks Makelaardij kies je voor:

• makelaars die al jarenlang verbonden zijn met de regio

• kennis van de lokale woningmarkt

• een verkoopplan afgestemd op jouw woning

• maximale exposure van je huis

• bezichtigingen ook in het weekend

• netwerk met honderden woningzoekers

Verkoop je je huis met Hendriks dan ben je met de eigen app 24/7 op de hoogte van het verkoopproces. Bezichtigingsverzoeken bereiken je direct en beantwoord je snel en discreet op het moment dat het jou uitkomt.

Ook je huis verkopen? Onze makelaars komen graag en vrijblijvend bij je langs. We maken dan direct een gratis waardebepaling. Hendriks Makelaardij werkt op basis van no cure no pay. En betalen doe je pas bij verkoop.

Sint Christoffelstraat 1-3 0475 - 31 12 00 roermond@hendriks.nl www.hendriks.nl

TILBURG REESHOF BREDA ‘S-HERTOGENBOSCH TILBURG WEERT ROERMOND NIJMEGEN ARNHEM APELDOORN BUSSUM MEPPEL ALMERE AMSTELVEEN AMSTERDAM A’DAM NOORD MONNICKENDAM PURMEREND ZAANDAM ALKMAAR LANDSMEER HOORN HEERHUGOWAARD A’DAM WEST HOOFDDORP HAARLEM (2x) (2x) AMERSFOORT LEIDEN HILVERSUM EINDHOVEN (2x) (2x) ZWOLLE NIEUWEGEIN WIJK BIJ DUURSTEDE VLEUTEN DE MEERN UTRECHT MAARSSEN onze makelaarskantoren huizen van hendriks
WHATSAPP FOTO’S WONING ADRES WAARDE + + = Sint Christoffelstraat 1-3 0475 - 31 12 00 roermond@hendriks.nl www.hendriks.nl Ook je huis verkopen? WhatsApp de foto’s en het adres van je woning naar 06 44 33 78 72 en ontvang een gratis waardebepaling!

Turn static files into dynamic content formats.

Create a flipbook
Issuu converts static files into: digital portfolios, online yearbooks, online catalogs, digital photo albums and more. Sign up and create your flipbook.