Hofdael 45, Geldrop

Page 1

HuizenHendriks van

Gewilde locatie

2 Slaapkamers

Eigen parkeerplaats

Snel beschikbaar

Ruim appartement

Hofdael 45 , 5664 GL Geldrop
H51

Soort

Kamers

Woonoppervlakte

Inhoud

Bouwjaar

Tuin

Garage

Kenmerken

Energielabel

APlus

De in deze brochure getoonde informatie wordt door Hendriks makelaardij met zorg samengesteld, doch voor de juistheid en volledigheid daarvan kan niet worden ingestaan en kunnen hieraan geen rechten worden ontleend. Spel- en typefouten voorbehouden. De plattegronden zijn geproduceerd voor promotionele doeleinden en ter indicatie. Er kunnen geen rechten aan worden ontleend. Maten zijn niet eigenhandig opgemeten. Indien er twijfel bestaat over de accuratie van de gegevens aangaande deze brochure, is de geïnteresseerde zelf verantwoordelijk voor het nameten van deze gegevens. Voor meer informatie wordt u doorverwezen naar www.hendriks.nl

Verkoper vertelt

Ik ben hier bijna 10 jaar geleden komen wonen.

Ik werd een dagje ouder en wilde graag dicht bij voorzieningen wonen zonder de auto of de fiets te hoeven nemen.

Dit appartement heeft me meer gebracht dan dat: Ik heb vaak gezellig iets gedronken met een vriendin op het horeca plein ( 1 minuut lopen ) en bouwde met veel bewoners een fijne band op. Mooie herinneringen bewaar ik ook aan wandelen door de kasteeltuin met de kleinkinderen, letterlijk tegenover me.

Het appartement is heel licht en het balkon is ruim. Met een grote huiskamer en 2 ruime slaapkamers heeft het me aan ruimte niet ontbroken. Ik kan écht zeggen dat het een fijne, centrale plek is in een mooi dorp.

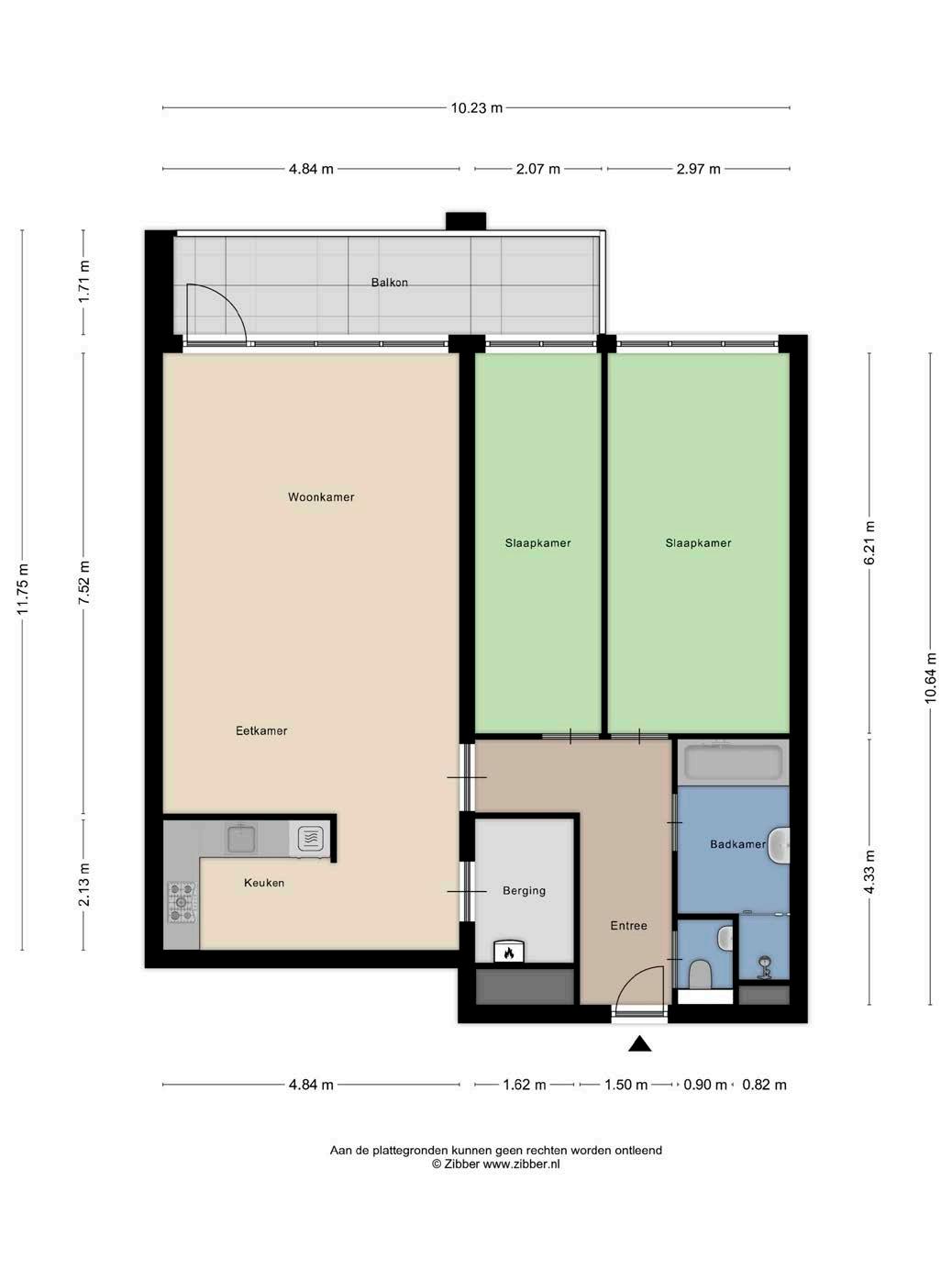
portiekflat 4 103 m² 365 m³ 2000 geen tuin inpandig, parkeerkelder, parkeerplaats
Eindhoven: Aalsterweg 5, T 040 - 293 05 00
Te koop bij
kom binnen
Goed onderhouden eigen parkeerplaats

Veiligheid en comfort zijn gegarandeerd in dit appartementencomplex, dat niet alleen snel beschikbaar is, maar ook voldoet aan het politiekeurmerk “Veilig Wonen”. De entree is beveiligd met een video-/intercominstallatie, waardoor u altijd controle heeft over wie het gebouw betreedt. De uitstekende isolatievoorzieningen zorgen voor een aangenaam binnenklimaat en dragen bij aan een duurzame leefomgeving.

Dit royale appartement is een toonbeeld van ruimtelijkheid en comfort. Met een eigen berging en parkeerplaats in de afgesloten parkeergarage, biedt het u niet alleen veiligheid maar ook het gemak van directe toegang tot uw woning.

huizen van hendriks

Ruime woonkamer

ontspanning

licht en comfort

De royale woonkamer is een uitnodigende ruimte die naadloos overgaat in een sfeervol balkon, waar u kunt genieten van de buitenlucht en het uitzicht over de levendige omgeving.

huizen van hendriks

Open keuken

helemaal compleet

wat maakt u klaar?

De keuken, met een praktische L-opstelling, is het hart van het huis waar culinaire creativiteit tot leven komt. Het is de ideale plek voor het bereiden van zowel snelle snacks als uitgebreide diners, waarbij u kunt genieten van de interactie met gasten terwijl u kookt. De keuken is uitgerust met moderne apparatuur en biedt voldoende opbergruimte voor al uw keukengerei.

huizen van hendriks

De twee goed bemeten slaapkamers zijn ontworpen met oog voor rust en privacy. Ze bieden een serene ontsnapping aan de levendigheid van het stadsleven. Hier kunt u zich terugtrekken voor een ongestoorde nachtrust of een moment van ontspanning, waarna u elke dag weer fris en uitgerust aan een nieuwe dag begint.

De badkamer is een privé-spa waar u zich kunt onderdompelen in het comfort van een warm bad of de verfrissing van een ruime inloopdouche. Met hoogwaardige afwerkingen en een stijlvolle inrichting is dit de plek waar u zichzelf kunt verzorgen en ontspannen, klaar om de dag te beginnen of juist af te sluiten.

huizen van hendriks
nette badkamer 2 slaapkamers welterusten

Woningbreed balkon

zonnig

optimaal genieten

Ervaar het ultieme gemak van wonen in het kloppende hart van Geldrop, waar u slechts enkele passen verwijderd bent van een diversiteit aan winkels, het gemeentehuis, postkantoor, banken, de bibliotheek en het Weverijmuseum. Het Anna Ziekenhuis, het schilderachtige Kasteelpark, het NS-station en het culturele centrum “Weeffabriek” zijn allen op loopafstand. Dit is een unieke kans om te genieten van het bruisende stadsleven gecombineerd met de rust en het comfort van uw eigen appartement.

huizen van hendriks
Hofdael 45 5664 GL Geldrop
Hofdael 45 5664 GL Geldrop

Geldrop

Geldrop, vier kilometer ten oosten van Eindhoven, ontwikkelde zich sinds de vorige eeuw van industriegemeente (textiel en wol) tot woongemeente met eigen werkgelegenheids-centrum.

In het hart van de gemeente ligt een wandelpark met het kasteel uit 1616 en een natuurinformatiecentrum. In dat kasteel vinden exposities en andere culturele evenementen onderdak. Daar is ook de gemeentelijke oudheidskamer ondergebracht.

Gedeeltelijk op Geldrops grondgebied liggen enkele natuurgebieden waarvan de Strabrechtse Heide met 1500 ha het grootste is.

In Geldrop zijn alle mogelijke voorzieningen aanwezig, o.a. een ziekenhuis, winkels, een verscheidenheid aan sportvoorzieningen, musea en uitgaansmogelijkheden.

Het woonklimaat in Geldrop is zéér aantrekkelijk.

heerlijk
wonen in Geldrop noorden kadastrale kaart

HEERHUGOWAARD

ALKMAAR

LANDSMEER HOORN

ZAANDAM

HAARLEM

HOOFDDORP

A’DAM WEST

Lokaal makelaarschap

Wij geloven sterk in lokaal makelaarschap. Kennis van de buurt, de omgeving en de daarbij behorende ontwikkeling van de huizenprijzen zijn onmisbaar om voor jou het maximale resultaat te boeken.

Met Hendriks Makelaardij kies je voor:

• makelaars die al jarenlang verbonden zijn met de regio

• kennis van de lokale woningmarkt

• een verkoopplan afgestemd op jouw woning

• maximale exposure van je huis

• bezichtigingen ook in het weekend

• netwerk met honderden woningzoekers

Verkoop je je huis met Hendriks dan ben je met de eigen app 24/7 op de hoogte van het verkoopproces. Bezichtigingsverzoeken bereiken je direct en beantwoord je snel en discreet op het moment dat het jou uitkomt.

Ook je huis verkopen? Onze makelaars komen graag en vrijblijvend bij je langs. We maken dan direct een gratis waardebepaling. Hendriks Makelaardij werkt op basis van no cure no pay. En betalen doe je pas bij verkoop.

Aalsterweg 5 040 - 293 05 00 eindhoven@hendriks.nl www.hendriks.nl

PURMEREND

MONNICKENDAM

A’DAM NOORD

AMSTERDAM

AMSTELVEEN

MEPPEL

ZWOLLE

ALMERE

HILVERSUM

APELDOORN BUSSUM

AMERSFOORT LEIDEN

(2x) (2x)

MAARSSEN

VLEUTEN DE MEERN UTRECHT

(2x) (2x)

NIEUWEGEIN

WIJK BIJ DUURSTEDE

NIJMEGEN ARNHEM

‘S-HERTOGENBOSCH

TILBURG REESHOF BREDA

TILBURG WEERT ROERMOND

EINDHOVEN

onze makelaarskantoren huizen van hendriks

Ook je huis verkopen?

WhatsApp de foto’s en het adres van je woning naar 06 44 33 78 72 en ontvang een gratis waardebepaling!

WHATSAPP FOTO’S WONING ADRES WAARDE + + =
5
- 293 05 00
Aalsterweg
040
eindhoven@hendriks.nl www.hendriks.nl

Turn static files into dynamic content formats.

Create a flipbook
Issuu converts static files into: digital portfolios, online yearbooks, online catalogs, digital photo albums and more. Sign up and create your flipbook.