Skip to main content

Het Verlaat 252, Apeldoorn

Page 1


HuizenHendriks van

Energielabel A

Wonen aan het water

Oprit met carport

144 m2 wonen

8 zonnepanelen

Kenmerken

Soort eengezinswoning

Type tussenwoning

Kamers 5

Woonoppervlakte 144 m²

Perceeloppervlakte 135 m²

Inhoud 511 m³

Bouwjaar 2007

Tuin achtertuin, voortuin

Garage carport, geen garage

Verwarming c.v.-ketel, vloerverwarming gedeeltelijk, gashaard

Isolatie volledig geïsoleerd, hr-glas

Energielabel A

De in deze brochure getoonde informatie wordt door Hendriks makelaardij met zorg samengesteld, doch voor de juistheid en volledigheid daarvan kan niet worden ingestaan en kunnen hieraan geen rechten worden ontleend. Spel- en typefouten voorbehouden. De plattegronden zijn geproduceerd voor promotionele doeleinden en ter indicatie. Er kunnen geen rechten aan worden ontleend. Maten zijn niet eigenhandig opgemeten. Indien er twijfel bestaat over de accuratie van de gegevens aangaande deze brochure, is de geïnteresseerde zelf verantwoordelijk voor het nameten van deze gegevens. Voor meer informatie wordt u doorverwezen naar www.hendriks.nl

Verkoper vertelt

Met pijn in mijn hart ga ik dit fantastische huis verlaten. Ik ga een nieuwe toekomst, dat samenwonen heet, tegemoet.

Het uitzicht aan het water is HET pluspunt van het huis en als je geluk hebt zwemt er zelfs een schildpad voorbij.

goed ingedeeld moderne keuken huizen

Met een woonoppervlakte van 144 m2 biedt deze woning volop ruimte voor het hele gezin. De royale indeling zorgt ervoor dat iedereen zijn eigen plekje kan vinden, terwijl de gezamenlijke ruimtes uitnodigen tot samenzijn. De ruime woonkamer en open keuken vormen het hart van het huis, ideaal voor gezellige avonden en familiediners.

Slaap lekker

4 slaapkamers verzorgde badkamer

Op de eerste verdieping vind je drie ruime slaapkamers en een moderne badkamer. De slaapkamers zijn geschikt voor kinderen van alle leeftijden, met voldoende ruimte voor studie en spel. De badkamer is uitgerust met een inloopdouche, ligbad, wastafel met meubel en een tweede toilet.

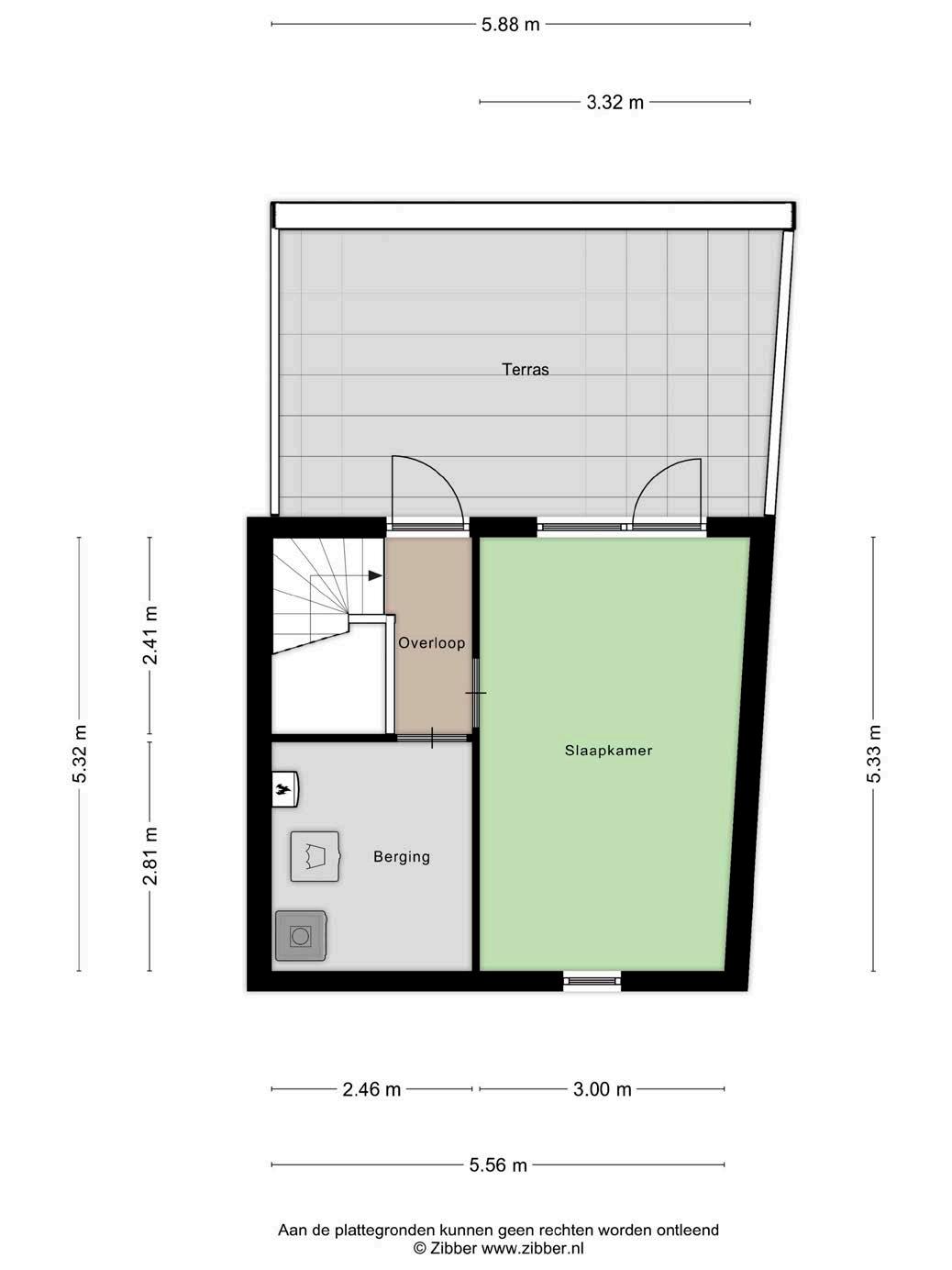
De tweede verdieping heeft een vierde slaapkamer met airco en een ruime berging waar de cv-ketel en witgoedaansluiting zijn gesitueerd. Vanuit de slaapkamer heb je toegang tot het dakterras, waar je kan genieten van het prachtige uitzicht.

genieten

zonnig

De woning ligt prachtig aan het water, wat een serene en ontspannende sfeer creëert. Het uitzicht op het kabbelende water biedt een gevoel van rust en ruimte dat je zelden in stedelijke gebieden vindt. Hier kun je genieten van rustige ochtenden met een kop koffie aan de waterkant en ontspannen avonden terwijl je de zon ziet ondergaan. Voor gezinnen biedt het water ook tal van recreatiemogelijkheden, zoals vissen of bootje varen. Het dagelijks leven krijgt hier een extra dimensie van ontspanning en plezier, ideaal voor een gezin dat houdt van de natuur.

Aan het water

In

het

eigen oprit

groen nabij voorzieningen

Deze woning beschikt over een oprit met carport, wat een groot voordeel is voor gezinnen met een of meerdere voertuigen. De carport beschermt je auto tegen weersinvloeden zoals regen en sneeuw, wat de levensduur van je voertuig ten goede komt.

De woning is gelegen in de jonge, groene en speels opgezette wijk Osseveld-Oost, een fijne plek om rustig te wonen en voor kinderen zijn er speelplaatsen waar ze lekker kunnen spelen met de buurkinderen. Je woont hier op een prettige locatie met de nabije omgeving voor voorzieningen als winkels, scholen een bushalte en een NS station.

noorden kadastrale kaart

heerlijk wonen in Apeldoorn

Apeldoorn

Apeldoorn heeft de laatste jaren een gezonde groei doorgemaakt en is het levendige centrum van de Veluwe. De gemeente telt inmiddels ca. 168.000 inwoners en is de grootste stad op de Veluwe en de twaalfde stad van Nederland. Het stedelijke gebied van Apeldoorn is onderverdeeld in ruim 40 wijken. En dan is er nog het landelijk gebied waar bijna 20.000 mensen wonen, verdeeld over de bij Apeldoorn behorende dorpen Beekbergen, Ugchelen, Beemte Broekland, Hoenderloo, Hoog Soeren, Lieren, Loenen, Nieuw Milligen, Uddel, Wenum Wiesel, deels Radio Kootwijk en Klarenbeek.

Door de vele parken, heemtuinen, maar vooral ook door de uitgestrekte natuurgebieden die rondom de stad zijn gelegen, is Apeldoorn met recht het ‘Groene hart van de Veluwe’. De Koninklijke Houtvesterij Het Loo vormt één van Nederlands grotere aaneengesloten natuurgebieden met een oppervlakte van 10.500 hectare. In deze natuurlijke omgeving leven onder andere edelherten, reeën en wilde zwijnen. Apeldoorn is ook een ‘Koninklijke Stad’, bekend om Paleis Het Loo met zijn prachtige tuinen, Koninklijke Stallen en Het Aardhuis, voormalig jachtchalet van koning Willem II. Het woonklimaat in Apeldoorn is zéér aantrekkelijk.

HEERHUGOWAARD

ALKMAAR LANDSMEER HOORN

ZAANDAM

(2x)

A’DAM WEST

HOOFDDORP HAARLEM

LEIDEN

Lokaal makelaarschap

Wij geloven sterk in lokaal makelaarschap. Kennis van de buurt, de omgeving en de daarbij behorende ontwikkeling van de huizenprijzen zijn onmisbaar om voor jou het maximale resultaat te boeken.

Met Hendriks Makelaardij kies je voor:

• makelaars die al jarenlang verbonden zijn met de regio

• kennis van de lokale woningmarkt

• een verkoopplan afgestemd op jouw woning

• maximale exposure van je huis

• bezichtigingen ook in het weekend

• netwerk met honderden woningzoekers

Verkoop je je huis met Hendriks dan ben je met de eigen app 24/7 op de hoogte van het verkoopproces.

Bezichtigingsverzoeken bereiken je direct en beantwoord je snel en discreet op het moment dat het jou uitkomt.

Ook je huis verkopen? Onze makelaars komen graag en vrijblijvend bij je langs. We maken dan direct een gratis waardebepaling. Hendriks Makelaardij werkt op basis van no cure no pay. En betalen doe je pas bij verkoop.

Zwolseweg 208 055 - 521 92 77 apeldoorn@hendriks.nl www.hendriks.nl

PURMEREND

MONNICKENDAM

A’DAM NOORD

AMSTERDAM

AMSTELVEEN

ALMERE

BUSSUM

HILVERSUM

VLEUTEN DE MEERN UTRECHT MAARSSEN

AMERSFOORT

(2x) (2x)

NIEUWEGEIN WIJK BIJ DUURSTEDE

MEPPEL

ZWOLLE

APELDOORN

ARNHEM

(2x)

NIJMEGEN

‘S-HERTOGENBOSCH

BREDA

EINDHOVEN

TILBURG WEERT

ROERMOND

Turn static files into dynamic content formats.

Create a flipbook