Skip to main content

Hessenweg 261, Achterveld

Page 1


HuizenHendriks van

Riante kavel

Karakteristiek

Oprit en garage Instapklaar!

Dichtbij natuur

Soort villa

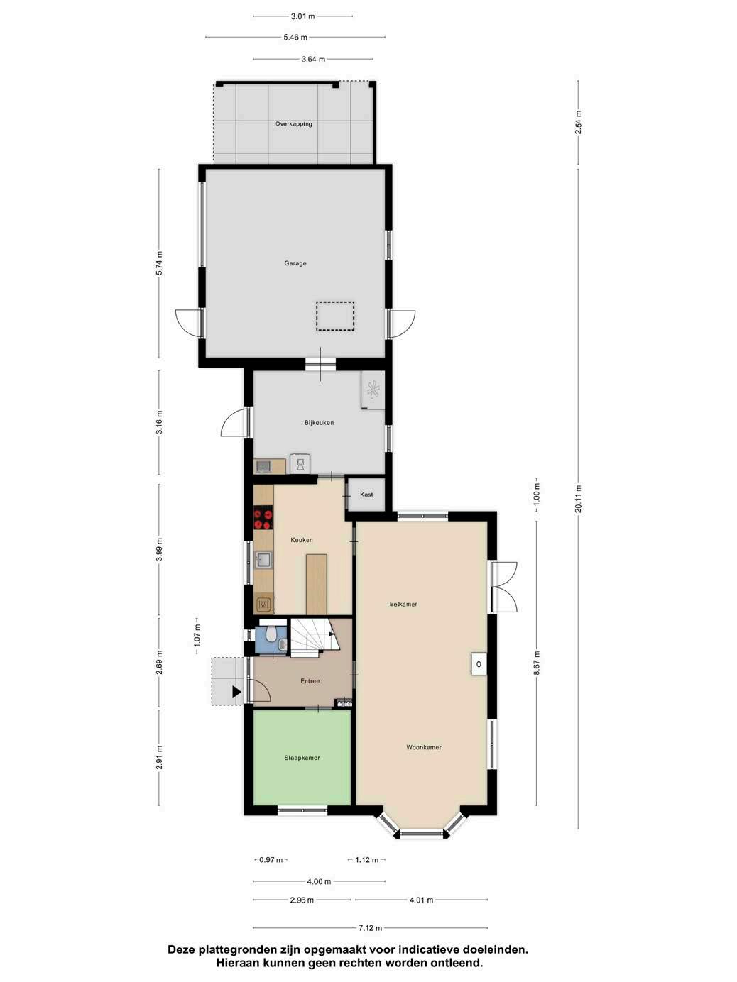
Type vrijstaande woning Kamers 6

Woonoppervlakte 140 m²

Perceeloppervlakte 1088 m²

Inhoud 711 m³

Bouwjaar 1930

Tuin achtertuin, voortuin, zijtuin, tuin rondom, zonneterras

Garage aangebouwd steen, garage met carport

Verwarming c.v.-ketel, houtkachel

De in deze brochure getoonde informatie wordt door Hendriks makelaardij met zorg samengesteld, doch voor de juistheid en volledigheid daarvan kan niet worden ingestaan en kunnen hieraan geen rechten worden ontleend. Spel- en typefouten voorbehouden. De plattegronden zijn geproduceerd voor promotionele doeleinden en ter indicatie. Er kunnen geen rechten aan worden ontleend. Maten zijn niet eigenhandig opgemeten. Indien er twijfel bestaat over de accuratie van de gegevens aangaande deze brochure, is de geïnteresseerde zelf verantwoordelijk voor het nameten van deze gegevens. Voor meer informatie wordt u doorverwezen naar www.hendriks.nl

Verkoper vertelt

Na 41 jaar aan de Hessenweg te hebben gewoond gaan wij nu met pijn in ons hart deze mooie stek verlaten. We gaan nu kleiner wonen, met slaapkamer en badkamer op de begane grond.

We hebben destijds voor deze woning gekozen omdat we het een ideale plek vonden voor ons en de kinderen. Midden in het dorp, met scholen, supermarkt enzovoort op loopafstand. Het is een heerlijk licht huis, met veel ruimte voor ons gezin. Rondom ons huis hebben we een mooie grote tuin aangelegd met veel mogelijkheden. (siertuin en/of groentetuin). Het tuinhuis achter in de tuin maakt het compleet om hiervan te genieten. Ook heb je de hele dag de keuze om een plekje in de zon of juist in de schaduw te zitten.

Wij vonden dit een fantastische plek om te wonen en hopen dat de toekomstige bewoners hier ook een hele fijne plek gaan krijgen.

jaren ‘30

karakteristiek

Deze vrijstaande woning combineert de unieke sfeer van de jaren ‘30 met moderne voorzieningen. Met originele glas-in-looddeuren, paneeldeuren in het gehele huis en een charmante erker, biedt de woning een klassieke uitstraling. Deze karakteristieke elementen geven het huis charme en warmte.

De woonkamer heeft vele ramen en is daardoor aangenaam licht. De massief houten planken vloer, gestuukte wanden en houtkachel dragen bij aan een warme en uitnodigende sfeer. De openslaande deuren naar de tuin zorgen ervoor dat binnen en buiten moeiteloos in elkaar overlopen, ideaal voor lange zomerdagen.

Modern

schiereiland vloerverwarming

De keuken is niet alleen stijlvol maar ook functioneel. Uitgerust met een pvc-vloer met vloerverwarming en een schiereiland. De keuken is voorzien van moderne inbouwapparatuur zoals een 4-pits inductiekookplaat en een combi-oven. Koken wordt een waar plezier in deze praktische en uitnodigende ruimte, terwijl je gasten aan het eiland zitten.

4 slaapkamers

welterusten functioneel

Met vier slaapkamers, waarvan één op de begane grond, biedt deze woning volop ruimte. De twee grotere slaapkamers op de eerste verdieping zijn voorzien van vaste kasten, ideaal voor opbergruimte.

vernieuwd Opfrissen compleet

De badkamer, vernieuwd in 2020, is volledig modern en praktisch ingericht. Met een toilet, ligbad, wastafelmeubel, een inloopdouche en vloerverwarming biedt de ruimte alle comfort die je nodig hebt. De hedendaagse styling en hoogwaardige materialen maken het een ontspannende plek. Vanaf de badkamer heb je toegang tot het dakterras.

Details

sfeer

dakterras

Laat je verrassen door de details in de woning. De openslaande deuren naar de tuin aan de zijkant biedt een mooie overgang tussen binnen en buiten.

Vanaf de badkamer heb je toegang tot het dakterras.

Garage

bijkeuken

schuur

De bijkeuken is een praktische aanvulling op de keuken en biedt ruimte voor een wasmachine, droger en vriezer. De royale stenen garage en schuur zijn ideaal voor opslag of als werkruimte. De ruime zolder boven de garage biedt extra opslagmogelijkheden.

fraaie tuin

verzorgd

De fraai aangelegde tuin rondom het huis biedt rust en privacy. Met een schuur, overkapping en een tuinhuisje, is er genoeg ruimte voor opslag en ontspanning. De groentetuin is perfect voor wie graag eigen groenten kweekt, en vormt een uitnodiging tot zelfvoorzienend leven. Het is perfect voor wie van tuinieren houdt.

Riante kavel

dorp

natuur

Gelegen aan de Hessenweg in Achterveld, biedt deze woning het beste van twee werelden: de rust en charme van een dorpsomgeving gecombineerd met de nabijheid van steden zoals Leusden en Amersfoort. De locatie is ideaal voor natuurliefhebbers met natuurgebieden zoals De Schammer en de Veluwe dichtbij.

Achterveld

De plaats Achterveld ligt ten oosten van de gemeente Leusden, op slechts 7 kilometer van Amersfoort. Zeg je Achterveld, dan zeg je gezelligheid. Het dorp heeft een pittoresk centrum met nieuwe woningen en een nieuw dorpsplein. Hier ontmoet je je buren en dorpsgenoten tijdens de diverse evenementen en activiteiten die er door het hele jaar heen worden georganiseerd. Een bloeiend verenigingsleven waarvoor vrijwilligers zich inzetten en de mooiste natuur binnen handbereik maken wonen in Achterveld speciaal.

Met de steden Amersfoort en Leusden op steenworpafstand, woon je in Achterveld in een landelijke omgeving met volop groen. De natuur in en rond het dorp nodigt uit tot een heerlijke wandeling langs smalle paden en ruisende beekjes of een prachtige fietstocht in de groene omgeving van de Gelderse Vallei. De schapen en koeien grazen in de wei, je kunt prachtig hardlopen of een ronde wielrennen tussen de akkers en weilanden in de directe omgeving en je bent direct in het uitgestrekte buitengebied. Deze omgeving is jouw thuis!

heerlijk wonen in Achterveld
noorden kadastrale kaart

HEERHUGOWAARD

ALKMAAR LANDSMEER

ZAANDAM

(2x)

A’DAM WEST

HOOFDDORP HAARLEM

LEIDEN

Lokaal makelaarschap

Wij geloven sterk in lokaal makelaarschap. Kennis van de buurt, de omgeving en de daarbij behorende ontwikkeling van de huizenprijzen zijn onmisbaar om voor jou het maximale resultaat te boeken.

Met Hendriks Makelaardij kies je voor:

• makelaars die al jarenlang verbonden zijn met de regio

• kennis van de lokale woningmarkt

• een verkoopplan afgestemd op jouw woning

• maximale exposure van je huis

• bezichtigingen ook in het weekend

• netwerk met honderden woningzoekers

Verkoop je je huis met Hendriks dan ben je met de eigen app 24/7 op de hoogte van het verkoopproces.

Bezichtigingsverzoeken bereiken je direct en beantwoord je snel en discreet op het moment dat het jou uitkomt.

Ook je huis verkopen? Onze makelaars komen graag en vrijblijvend bij je langs. We maken dan direct een gratis waardebepaling. Hendriks Makelaardij werkt op basis van no cure no pay. En betalen doe je pas bij verkoop.

Friesestraat 161 033 - 465 55 79 amersfoort@hendriks.nl www.hendriks.nl

HOORN

PURMEREND

MONNICKENDAM

A’DAM NOORD

AMSTERDAM

AMSTELVEEN

ALMERE

BUSSUM

HILVERSUM

VLEUTEN DE MEERN UTRECHT MAARSSEN

AMERSFOORT

(2x) (2x)

NIEUWEGEIN WIJK BIJ DUURSTEDE

MEPPEL

ZWOLLE

APELDOORN

ARNHEM

(2x)

NIJMEGEN

‘S-HERTOGENBOSCH

BREDA

EINDHOVEN

TILBURG WEERT

ROERMOND

Turn static files into dynamic content formats.

Create a flipbook