Skip to main content

Heelkruid 60, Amersfoort

Page 1


HuizenHendriks van

Ruime drive-in woning

Speelse indeling

Energielabel A

Fijne ligging

Soort eengezinswoning

Type tussenwoning

Kamers 5

Woonoppervlakte 117 m²

Perceeloppervlakte 185 m²

Inhoud 462 m³

Bouwjaar 1998

Tuin achtertuin, voortuin

Garage inpandig

Verwarming c.v.-ketel

Isolatie volledig geïsoleerd

Energielabel A

De in deze brochure getoonde informatie wordt door Hendriks makelaardij met zorg samengesteld, doch voor de juistheid en volledigheid daarvan kan niet worden ingestaan en kunnen hieraan geen rechten worden ontleend. Spel- en typefouten voorbehouden. De plattegronden zijn geproduceerd voor promotionele doeleinden en ter indicatie. Er kunnen geen rechten aan worden ontleend. Maten zijn niet eigenhandig opgemeten. Indien er twijfel bestaat over de accuratie van de gegevens aangaande deze brochure, is de geïnteresseerde zelf verantwoordelijk voor het nameten van deze gegevens. Voor meer informatie wordt u doorverwezen naar www.hendriks.nl

Verkoper vertelt

Na 18 fijne jaren in ons huis, waar onze dochter is geboren en onze beide kinderen zijn opgegroeid, is het tijd voor een nieuwe stap. Ons lichte en ruime huis heeft een prachtig vrij uitzicht en een zonnige tuin op het zuidwesten, grenzend aan een sloot waar we met de kano en in de winter met de schaatsen veel plezier hebben gehad.

De afgelopen vijf jaar hebben we de keuken en badkamer vernieuwd en zonnepanelen geïnstalleerd. De buurt biedt alles wat je nodig hebt: een winkelcentrum en basisscholen op 2 minuten fietsen, een speelveld voor de kinderen, en een gezellige kerstboomtraditie met de buren. Het centrum van Amersfoort is in 20 minuten met de fiets bereikbaar, en met de auto ben je snel op de snelweg. En de auto kun je parkeren op je eigen oprit. Voor natuurliefhebbers zijn er prachtige wandel-, hardloop- en fietsmogelijkheden in de omgeving.

We verkopen ons huis omdat we naar Spanje emigreren. We hopen dat jij hier net zoveel geluk en mooie herinneringen zult vinden als wij!

speelse indeling Instapklaar

ruime woonkamer

Stap binnen in de ruime woonkamer, waar de houten vloer direct een warme en uitnodigende sfeer creëert. Deze ruimte nodigt uit tot gezellige avonden met het gezin of vrienden. Dankzij de grote ramen valt er veel natuurlijk licht binnen. Je hebt mooi vrij uitzicht op een groene speelplek voor kinderen.

Deze instapklare en speelse woning ligt in de kindvriendelijke wijk Nieuwland, een rustige omgeving waar je de levendigheid van de stad even achter je kunt laten, maar toch dichtbij alle voorzieningen zit. Perfect voor gezinnen die op zoek zijn naar een plek waar kinderen veilig op kunnen groeien en buiten spelen.

open keuken inbouwapparatuur

De keuken is recent vernieuwd en biedt alles wat je nodig hebt om heerlijke gerechten te bereiden. Met een 4-pits inductiekookplaat, oven, koelkast en een vaatwasser die in 2023 is vervangen, is koken hier een genot. Het composiet aanrechtblad en Bora geïntegreerd afzuigsysteem voegen een vleugje luxe toe. De heetwaterkraan biedt extra gemak, ideaal voor snelle kopjes thee of het bereiden van maaltijden.

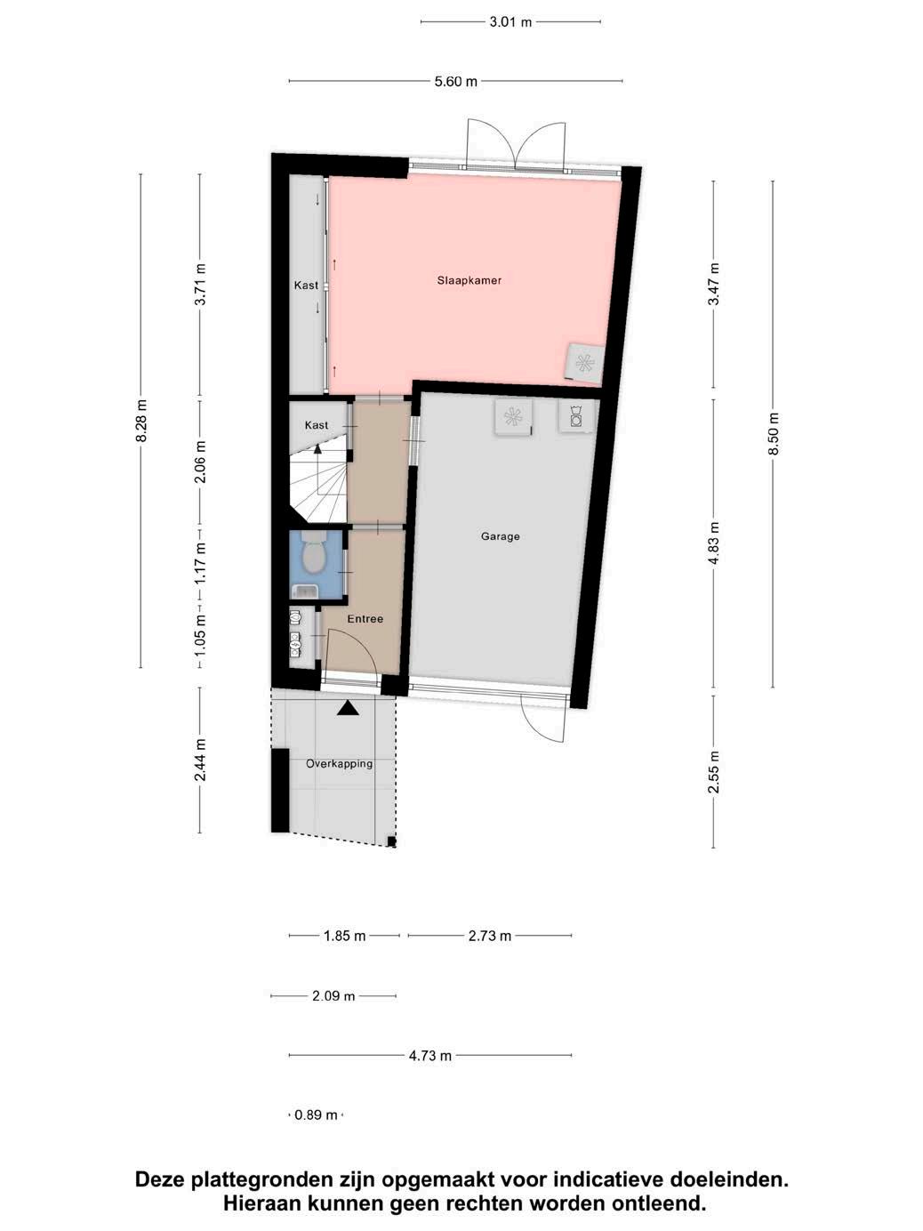
Vier slaapkamers

multifunctioneel

slaap lekker

De woning beschikt over vier ruime slaapkamers, waarvan er drie op de tweede verdieping zijn gelegen. Iedere slaapkamer is voorzien van een moderne laminaatvloer, wat bijdraagt aan de strakke uitstraling. Op de begane verdieping bevindt zich de vierde ruimte die je als slaapkamer, maar ook als hobbyruimte of kantoor kunt inrichten. Deze kamers bieden voldoende ruimte voor een gezin met opgroeiende kinderen, waarbij ieder lid zijn of haar eigen plekje heeft.

opfrissen

uitzicht

De moderne badkamer (2019) is voorzien van een inloopdouche, dubbele wastafelmeubel en een toilet. Ideaal voor het starten of eindigen van de dag.

Vanaf de eerste en tweede verdieping heb je uitzicht over de gezellige tuin en het water.

noorden kadastrale kaart

heerlijk wonen in Amersfoort

Amersfoort

De jonge en modern vormgegeven woonwijk Nieuwland is gelegen aan de noordkant van Amersfoort. De wijk is in de 90-er jaren gebouwd in het buitengebied van de gemeente Hoogland. Nieuwland is erg ruim van opzet, waarbij veel gebruik is gemaakt van groen en water. Dit zijn twee kernwoorden welke veelal voorbijkomen in deze leuke woonwijk. De wijk is op te delen in vier delen, namelijk: het Stadskwartier, de Lage Hoven, de Hoge Hoven en het Waterkwartier.

In het hart van de wijk ligt het winkelcentrum De Nieuwe Hof. Hier vind je verschillende winkels, zoals een supermarkt, bakker en drogist. Verder zijn er in Nieuwland voldoende (basis)scholen, sportfaciliteiten en er is een goede verbinding met het openbaar vervoer.

Vanuit Nieuwland ben je binnen enkele minuten op de A1 en A28.

Proef sfeer in Nieuwland en je zult worden verrast!

HEERHUGOWAARD

ALKMAAR LANDSMEER

ZAANDAM

(2x)

A’DAM WEST

HOOFDDORP HAARLEM

LEIDEN

Lokaal makelaarschap

Wij geloven sterk in lokaal makelaarschap. Kennis van de buurt, de omgeving en de daarbij behorende ontwikkeling van de huizenprijzen zijn onmisbaar om voor jou het maximale resultaat te boeken.

Met Hendriks Makelaardij kies je voor:

• makelaars die al jarenlang verbonden zijn met de regio

• kennis van de lokale woningmarkt

• een verkoopplan afgestemd op jouw woning

• maximale exposure van je huis

• bezichtigingen ook in het weekend

• netwerk met honderden woningzoekers

Verkoop je je huis met Hendriks dan ben je met de eigen app 24/7 op de hoogte van het verkoopproces.

Bezichtigingsverzoeken bereiken je direct en beantwoord je snel en discreet op het moment dat het jou uitkomt.

Ook je huis verkopen? Onze makelaars komen graag en vrijblijvend bij je langs. We maken dan direct een gratis waardebepaling. Hendriks Makelaardij werkt op basis van no cure no pay. En betalen doe je pas bij verkoop.

Friesestraat 161 033 - 465 55 79 amersfoort@hendriks.nl www.hendriks.nl

HOORN

PURMEREND

MONNICKENDAM

A’DAM NOORD

AMSTERDAM

AMSTELVEEN

ALMERE

BUSSUM

HILVERSUM

VLEUTEN DE MEERN UTRECHT MAARSSEN

AMERSFOORT

(2x) (2x)

NIEUWEGEIN WIJK BIJ DUURSTEDE

MEPPEL

ZWOLLE

APELDOORN

ARNHEM

(2x)

NIJMEGEN

‘S-HERTOGENBOSCH

BREDA

EINDHOVEN

TILBURG WEERT

ROERMOND

Turn static files into dynamic content formats.

Create a flipbook