Gunninglaan 35, Apeldoorn

Page 1

HuizenHendriks van

Jaren 30 woning

Mooie locatie

Authentieke details

Tuin

op het zuiden

Parkeren op eigen terrein

Gunninglaan 35 , 7314 NB Apeldoorn
H48

Mijn ouders hebben dit huis meer dan 40 jaar geleden gekocht. Zij hebben altijd met veel plezier gewoond in deze fijne, rustige buurt.

De in deze brochure getoonde informatie wordt door Hendriks makelaardij met zorg samengesteld, doch voor de juistheid en volledigheid daarvan kan niet worden ingestaan en kunnen hieraan geen rechten worden ontleend. Spel- en typefouten voorbehouden. De plattegronden zijn geproduceerd voor promotionele doeleinden en ter indicatie. Er kunnen geen rechten aan worden ontleend. Maten zijn niet eigenhandig opgemeten. Indien er twijfel bestaat over de accuratie van de gegevens aangaande deze brochure, is de geïnteresseerde zelf verantwoordelijk voor het nameten van deze gegevens. Voor meer informatie wordt u doorverwezen naar www.hendriks.nl

Kenmerken eengezinswoning 2-onder-1-kapwoning 5 104 m² 270 m² 436 m³ 1932 achtertuin, voortuin, zijtuin geen garage c.v.-ketel, vloerverwarming gedeeltelijk dakisolatie, gedeeltelijk dubbel glas E Soort Type Kamers Woonoppervlakte Perceeloppervlakte Inhoud Bouwjaar Tuin Garage Verwarming Isolatie Energielabel
Verkoper vertelt
Apeldoorn: Zwolseweg 208, T 055 - 521 92 77
Te koop bij

Gezellige spotverlichting

tijdloos karakter

sfeervolle erker

Bij het betreden van de woning voel je meteen de tijdloze klasse. Originele details, zoals de granitovloer en prachtige glas-in-loodramen, getuigen van het rijke verleden van deze woning. Bovendien is de gehele woning netjes onderhouden.

In de hal bevinden zich de meterkast, het toilet met fontein, de toegang tot de kelder en de trapopgang naar de eerste verdieping. Vanuit de hal is er tevens toegang tot de woonkamer.

De woonkamer kenmerkt zich door een heerlijke doorzonopstelling en heeft een sfeervolle erker aan de voorzijde. Dit in combinatie met de extra zijramen zorgt ervoor dat de ruimte licht, luchtig en ruimtelijk aanvoelt.

huizen van hendriks

Landelijke stijl

aparte keuken lichtovergoten serre

In de aparte keuken staat een keurig keukenblok in landelijke stijl. De rechte opstelling biedt voldoende werk- en opbergruimte en diverse inbouwapparatuur, waaronder een gaskookplaat, combi magnetron en een vaatwasser.

Vanuit zowel de woonkamer als de keuken heb je toegang tot de serre, wat zorgt voor extra woonruimte en een prachtige verbinding met de tuin.

huizen van hendriks

drie slaapkamers

zolder met mogelijkheden

Op de eerste verdieping bevinden zich drie slaapkamers van goed formaat, elk met zijn eigen karakter en charme, en een wat gedateerde maar nette badkamer met douche, bad en wastafel met meubel. Vanuit de badkamer is er toegang tot het balkon.

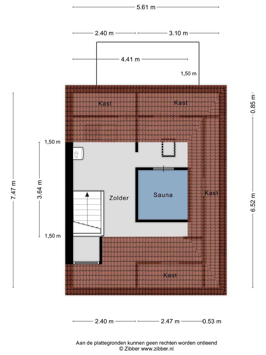
De zolderverdieping is een veelzijdige ruimte die naar eigen wens kan worden ingericht. Momenteel is er een sauna geïnstalleerd, maar je kunt deze ruimte eenvoudig omtoveren tot een extra slaapkamer, een studeerkamer of een hobbyruimte. De keuze is aan jou!

De cv-ketel en de aansluiting voor de wasapparatuur zijn gesitueerd op zolder.

Karakteristieke vertrekken

huizen van hendriks

Heerlijke buitenruimte

royale achtertuin

zonnige zuiden

De royale achtertuin tuin, gelegen op het zonnige zuiden, is verzorgd aangelegd met betegeling, kunstgras en beplanting. Er is ook een vrijstaande stenen berging aanwezig met elektra, ideaal voor het opbergen van fietsen en tuingereedschap.

huizen van hendriks
Gunninglaan 35 7314 NB Apeldoorn
Gunninglaan 35 7314 NB Apeldoorn
Gunninglaan 35 7314 NB Apeldoorn

heerlijk wonen in Apeldoorn

Apeldoorn

Apeldoorn heeft de laatste jaren een gezonde groei doorgemaakt en is het levendige centrum van de Veluwe. De gemeente telt inmiddels ca. 168.000 inwoners en is de grootste stad op de Veluwe en de twaalfde stad van Nederland. Het stedelijke gebied van Apeldoorn is onderverdeeld in ruim 40 wijken. En dan is er nog het landelijk gebied waar bijna 20.000 mensen wonen, verdeeld over de bij Apeldoorn behorende dorpen Beekbergen, Ugchelen, Beemte Broekland, Hoenderloo, Hoog Soeren, Lieren, Loenen, Nieuw Milligen, Uddel, Wenum Wiesel, deels Radio Kootwijk en Klarenbeek.

Door de vele parken, heemtuinen, maar vooral ook door de uitgestrekte natuurgebieden die rondom de stad zijn gelegen, is Apeldoorn met recht het ‘Groene hart van de Veluwe’. De Koninklijke Houtvesterij Het Loo vormt één van Nederlands grotere aaneengesloten natuurgebieden met een oppervlakte van 10.500 hectare. In deze natuurlijke omgeving leven onder andere edelherten, reeën en wilde zwijnen. Apeldoorn is ook een ‘Koninklijke Stad’, bekend om Paleis Het Loo met zijn prachtige tuinen, Koninklijke Stallen en Het Aardhuis, voormalig jachtchalet van koning Willem II. Het woonklimaat in Apeldoorn is zéér aantrekkelijk.

noorden kadastrale kaart

Lokaal makelaarschap

Wij geloven sterk in lokaal makelaarschap. Kennis van de buurt, de omgeving en de daarbij behorende ontwikkeling van de huizenprijzen zijn onmisbaar om voor jou het maximale resultaat te boeken.

Met Hendriks Makelaardij kies je voor:

• makelaars die al jarenlang verbonden zijn met de regio

• kennis van de lokale woningmarkt

• een verkoopplan afgestemd op jouw woning

• maximale exposure van je huis

• bezichtigingen ook in het weekend

• netwerk met honderden woningzoekers

Verkoop je je huis met Hendriks dan ben je met de eigen app 24/7 op de hoogte van het verkoopproces. Bezichtigingsverzoeken bereiken je direct en beantwoord je snel en discreet op het moment dat het jou uitkomt.

Ook je huis verkopen? Onze makelaars komen graag en vrijblijvend bij je langs. We maken dan direct een gratis waardebepaling. Hendriks Makelaardij werkt op basis van no cure no pay. En betalen doe je pas bij verkoop.

Zwolseweg 208 055 - 521 92 77 apeldoorn@hendriks.nl www.hendriks.nl

TILBURG REESHOF BREDA ‘S-HERTOGENBOSCH TILBURG WEERT ROERMOND NIJMEGEN ARNHEM APELDOORN BUSSUM MEPPEL ALMERE AMSTELVEEN AMSTERDAM A’DAM NOORD MONNICKENDAM PURMEREND ZAANDAM ALKMAAR LANDSMEER HOORN HEERHUGOWAARD A’DAM WEST HOOFDDORP HAARLEM (2x) (2x) AMERSFOORT LEIDEN HILVERSUM EINDHOVEN (2x) (2x) ZWOLLE NIEUWEGEIN WIJK BIJ DUURSTEDE VLEUTEN DE MEERN UTRECHT MAARSSEN onze makelaarskantoren huizen van hendriks
WHATSAPP FOTO’S WONING ADRES WAARDE + + = Zwolseweg 208 055 - 521 92 77 apeldoorn@hendriks.nl www.hendriks.nl Ook je huis verkopen? WhatsApp de foto’s en het adres van je woning naar 06 44 33 78 72 en ontvang een gratis waardebepaling!

Turn static files into dynamic content formats.

Create a flipbook
Issuu converts static files into: digital portfolios, online yearbooks, online catalogs, digital photo albums and more. Sign up and create your flipbook.