Skip to main content

Groeseindstraat 94, Tilburg

Page 1


HuizenHendriks van

Ruime gezinswoning

Gelegen nabij het stadscentrum

Instapklaar afwerkingsniveau

Energielabel C

Zonnige achtertuin met grote berging

Soort eengezinswoning

Type tussenwoning

Kamers 4

Woonoppervlakte 108 m²

Perceeloppervlakte 154 m²

Inhoud 383 m³

Bouwjaar 1931

Tuin achtertuin

Garage geen garage

Verwarming c.v.-ketel, vloerverwarming gedeeltelijk

Isolatie dakisolatie, vloerisolatie, grotendeels dubbelglas

Energielabel C

De in deze brochure getoonde informatie wordt door Hendriks makelaardij met zorg samengesteld, doch voor de juistheid en volledigheid daarvan kan niet worden ingestaan en kunnen hieraan geen rechten worden ontleend. Spel- en typefouten voorbehouden. De plattegronden zijn geproduceerd voor promotionele doeleinden en ter indicatie. Er kunnen geen rechten aan worden ontleend. Maten zijn niet eigenhandig opgemeten. Indien er twijfel bestaat over de accuratie van de gegevens aangaande deze brochure, is de geïnteresseerde zelf verantwoordelijk voor het nameten van deze gegevens. Voor meer informatie wordt u doorverwezen naar www.hendriks.nl

Verkoper vertelt

Heerlijke woning dichtbij het centrum! Bij binnenkomst werden wij gelijk verrast door de sfeer en charme van het huis, wat een heerlijk ruime woonkamer en keuken. Een fijne plek waar je zelfs als niet-kok graag achter het aanrecht staat.

De woning heeft een prachtige lichtinval en vanuit de openslaande tuindeuren geniet je praktisch de hele dag van de zon in de tuin. De woning is afgewerkt met luxe en duurzame producten zoals een eiken visgraatvloer, Bora kookplaat, kokend water kraan en zonnepanelen.Het geheel straalt luxe en comfort uit zonder het karakter van de woning te verliezen.

Centrum, supermarkt, basisschool en speeltuin op loopafstand van de woning, kortom alles in de buurt.

Wij wensen de toekomstige bewoners net zoveel woonplezier als wij hebben ervaren de afgelopen jaren.

Ruim en sfeervol

ruim en sfeervol

l-woonkamer

De L-vormige woonkamer is een ware eyecatcher. De eiken visgraatvloer ademt luxe en warmte uit, perfect voor gezellige avonden met het gezin. Dankzij de openslaande tuindeuren stroomt het daglicht naar binnen, waardoor de ruimte nog groter en lichter aanvoelt. De vaste trapkast biedt extra opbergruimte, ideaal voor spelletjes, boeken of seizoensdecoraties. Voeg hier de vloerverwarming aan toe, en je hebt een ruimte die uitnodigt tot ontspanning en samenzijn, ongeacht het seizoen.

Deze woning heeft een energielabel C, wat betekent dat het niet alleen comfortabel, maar ook energiezuinig is. De 9 zonnepanelen op het dak zorgen voor een lagere energierekening en een duurzame levensstijl. Met een woonoppervlakte van bijna 110 m² en een perceeloppervlakte van 154 m² biedt dit huis voldoende ruimte voor het hele gezin.

Luxe woonkeuken

luxe keuken met praktische bijkeuken

De in 2019 volledig vernieuwde woonkeuken is een droom voor iedere kookliefhebber. Uitgerust met hoogwaardige inbouwapparatuur waaronder een inductiekookplaat, oven, magnetron, vaatwasser en koel-vriescombinatie, biedt deze keuken alles wat je nodig hebt om je culinaire vaardigheden te ontplooien. Het strakke design en de praktische indeling maken koken een plezierige ervaring.

Een praktische bijkeuken is onmisbaar voor een efficiënt huishouden. Deze ruimte biedt niet alleen een wasmachine-aansluiting, maar ook voldoende opbergruimte voor schoonmaakmiddelen, voorraad en andere huishoudelijke benodigdheden. Zo blijft de rest van je huis netjes en opgeruimd. De bijkeuken is slim geplaatst direct naast de keuken, waardoor je alles binnen handbereik hebt en huishoudelijke taken moeiteloos kunt uitvoeren.

Hoe deel jij ze in?

hoe deel jij ze in?

ruime kamers

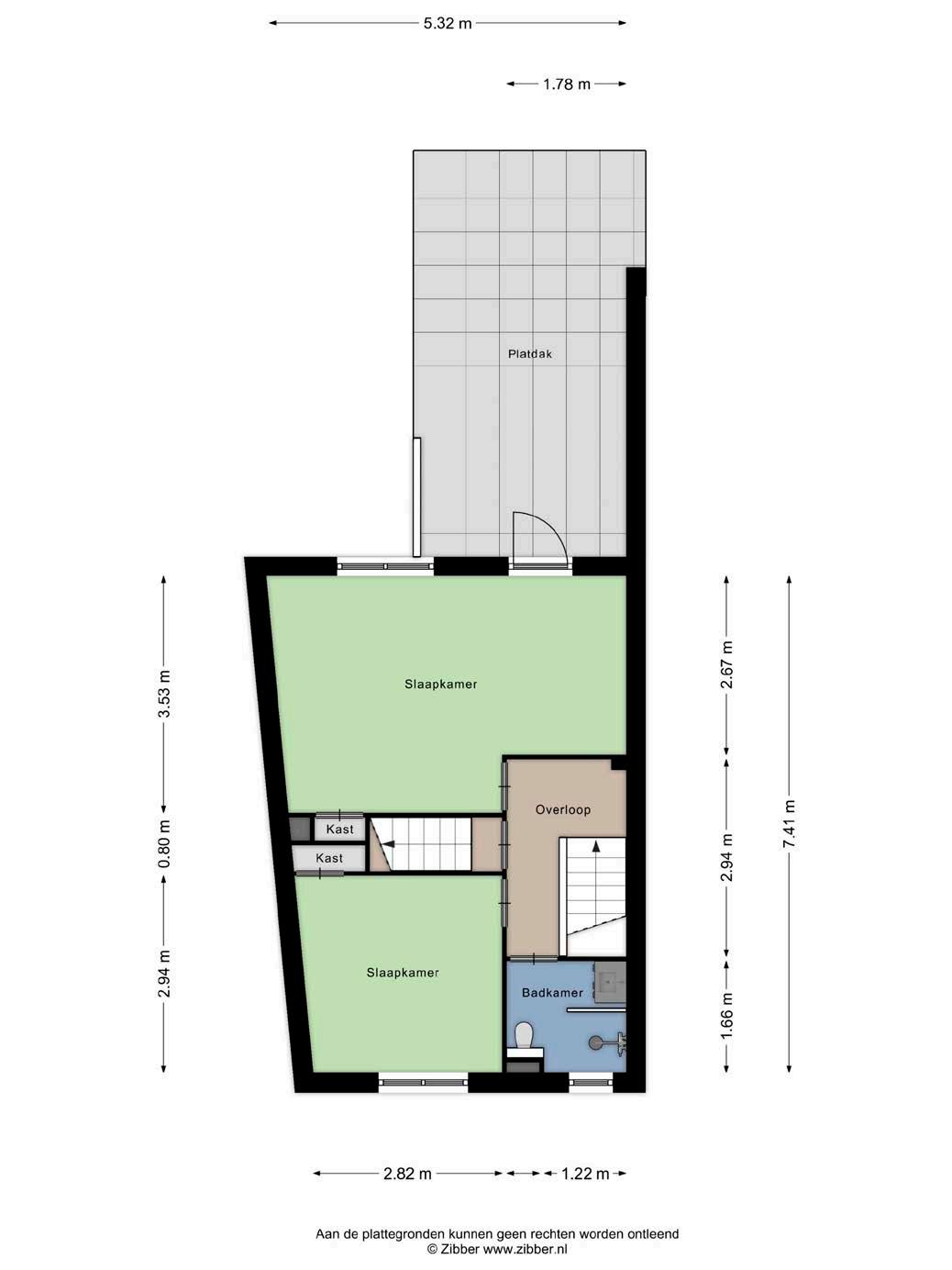
De eerste verdieping biedt twee ruime slaapkamers, perfect voor een gezin met kinderen. Beide kamers zijn royaal bemeten en bieden voldoende ruimte voor een tweepersoonsbed, kasten en een bureau. De frisse stucwerk wand- en plafondafwerking zorgt voor een moderne uitstraling en een rustige sfeer.

De moderne badkamer op de eerste verdieping is ingericht met oog voor detail en comfort. De inloopdouche biedt een ontspannen douche-ervaring, het wandcloset zorgt voor een strakke uitstraling en het brede badmeubel biedt voldoende opbergruimte voor al je badkamerbenodigdheden.

De tweede verdieping, compleet gerenoveerd in 2021, biedt een riante open ruimte die perfect is als derde slaapkamer. Dankzij de twee dakramen en de dakkapel is deze ruimte licht en luchtig, en biedt het talloze mogelijkheden voor gebruik.

heerlijk wonen in Tilburg

Tilburg

Tilburg is momenteel de 7e stad van Nederland met een grote diversiteit aan bedrijvigheid, woningbouw, onderwijs en cultuur. Er is hard aan de weg getimmerd de laatste jaren; vele centrumlocaties rondom de oude stadshaven en NS-werkplaats zijn recent omgetoverd tot bruisende gebieden met vele woningen, bedrijven en horeca.

Het bijzondere aan Tilburg is de grote diversiteit aan wijken met elk hun eigen, unieke karakter. Van het levendige stadscentrum tot rustige en “groene” woonwijken, er is voor ieder wat wils! De gemeente Tilburg omvat ook de mooie plaatsen Berkel-Enschot, Udenhout en Biezenmortel. Hier beleef je nog het echte “dorpsgevoel” met alle stedelijke voorzieningen toch heel dichtbij!

In de omgeving liggen prachtige natuurgebieden, zoals de Loonse en Drunense Duinen, de Oisterwijkse Bossen en Vennen en Moerenburg. Hier kun je heerlijk wandelen, fietsen en ontspannen in de natuur.

Ook qua onderwijs staat de stad hoog in aanzien. Naast Tilburg University zijn er vele scholen op alle denkbare niveaus.

Tilburg is ook bekend om zijn uitgebreide evenementenkalender. Van de Tilburgse Kermis tot diverse festivals zoals Incubate, Roadburn en Spoorpark Live. De stad biedt een ruime diversiteit aan sportfaciliteiten. Niet alleen voetbal en (ijs)hockey, maar bv. ook golf, tennis, rugby, zwemsporten, atletiek, sportvissen, fitness en ga zo maar door.

De rest van Nederland is uitstekend te bereiken via de vele (snel)wegen en het openbaar vervoer met maar liefst 3 treinstations.

noorden kadastrale kaart

HEERHUGOWAARD

ALKMAAR LANDSMEER HOORN

ZAANDAM

HOOFDDORP HAARLEM (2x)

A’DAM WEST

Lokaal makelaarschap

Wij geloven sterk in lokaal makelaarschap. Kennis van de buurt, de omgeving en de daarbij behorende ontwikkeling van de huizenprijzen zijn onmisbaar om voor jou het maximale resultaat te boeken.

Met Hendriks Makelaardij kies je voor:

• makelaars die al jarenlang verbonden zijn met de regio

• kennis van de lokale woningmarkt

• een verkoopplan afgestemd op jouw woning

• maximale exposure van je huis

• bezichtigingen ook in het weekend

• netwerk met honderden woningzoekers

Verkoop je je huis met Hendriks dan ben je met de eigen app 24/7 op de hoogte van het verkoopproces.

Bezichtigingsverzoeken bereiken je direct en beantwoord je snel en discreet op het moment dat het jou uitkomt.

Ook je huis verkopen? Onze makelaars komen graag en vrijblijvend bij je langs. We maken dan direct een gratis waardebepaling. Hendriks Makelaardij werkt op basis van no cure no pay. En betalen doe je pas bij verkoop.

Besterdring 223 013 - 549 91 90 tilburg@hendriks.nl www.hendriks.nl

PURMEREND

MONNICKENDAM

A’DAM NOORD

AMSTERDAM

AMSTELVEEN

LEIDEN

ALMERE

BUSSUM

HILVERSUM

MAARSSEN

VLEUTEN DE MEERN UTRECHT

AMERSFOORT

(2x) (2x)

NIEUWEGEIN WIJK BIJ DUURSTEDE

MEPPEL

ZWOLLE

APELDOORN

ARNHEM

(2x)

NIJMEGEN

‘S-HERTOGENBOSCH

BREDA

TILBURG

EINDHOVEN

WEERT

ROERMOND

Turn static files into dynamic content formats.

Create a flipbook