Skip to main content

Groenstraat 74, Melick

Page 1

HuizenHendriks van

Unieke ligging

Gasloos

Rust en privacy

Wat een uitzicht!

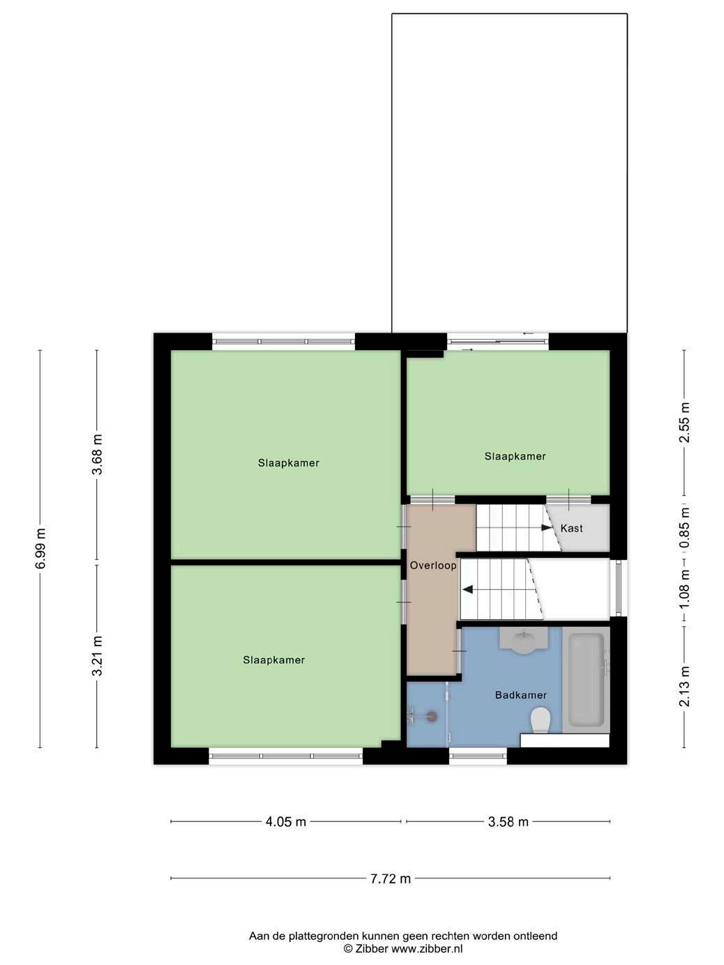
Groenstraat 74 , 6074 EL Melick Vier slaapkamers
H54

Soort Type Kamers

Woonoppervlakte

Perceeloppervlakte

Inhoud Bouwjaar

Tuin

Garage Energielabel

Kenmerken

eengezinswoning

vrijstaande woning

9

143 m²

1750 m²

573 m³

1970

achtertuin, tuin rondom

geen garage

A

De in deze brochure getoonde informatie wordt door Hendriks makelaardij met zorg samengesteld, doch voor de juistheid en volledigheid daarvan kan niet worden ingestaan en kunnen hieraan geen rechten worden ontleend. Spel- en typefouten voorbehouden. De plattegronden zijn geproduceerd voor promotionele doeleinden en ter indicatie. Er kunnen geen rechten aan worden ontleend. Maten zijn niet eigenhandig opgemeten. Indien er twijfel bestaat over de accuratie van de gegevens aangaande deze brochure, is de geïnteresseerde zelf verantwoordelijk voor het nameten van deze gegevens. Voor meer informatie wordt u doorverwezen naar www.hendriks.nl

Verkoper vertelt

Een heerlijke woning en een thuis op een unieke plek

met een prachtig uitzicht. Hier zijn onze dochters op een fantastische manier opgegroeid en hebben wij als gezin genoten van wat deze plek en dit huis te bieden hebben.

Voor de kenners, de buurt Waterschei is een zeer gewilde, gezellige en pittoreske buurt. Binnen een paar minuten ben je wandelend bij de Roer in de groene Melicker Ohe, de Driestruik en de Meinweg, maar je bent ook binnen vijftien minuten fietsen in het centrum van het mooie Roermond.

Voor ons is het tijd voor een volgende stap, maar zullen deze unieke plek altijd in ons hart houden.

Roermond: Sint Christoffelstraat 1-3, T 0475 - 31 12 00
Te koop bij

Ruimte voor een comfortabele eethoek

welkom thuis

eet smakelijk

De woonkeuken is het hart van het huis, waar gezelligheid en culinaire passie samenkomen. Met een prachtig uitzicht over het groene dal is dit de plek waar je gasten ontvangt, kinderen huiswerk maken en waar de lekkerste gerechten op tafel komen. De keuken is uitgerust met hoogwaardige apparatuur en biedt alle ruimte voor het bereiden van uitgebreide maaltijden. Het is een ruimte die inspireert en uitnodigt tot het creëren van mooie momenten samen.

huizen van hendriks

Fijne lichtinval

strakke afwerking

hoe deel jij het in?

De woonkamer, met zijn strakke afwerking en warme uitstraling, nodigt uit tot ontspannen avonden en gezellige familiebijeenkomsten.

huizen van hendriks

Ruimte is geen luxe, maar een noodzaak voor groeiende gezinnen. Deze woning biedt met vier ruime slaapkamers genoeg plek voor iedereen. Of het nu gaat om een rustige thuiswerkplek, een speelkamer voor de kinderen of een extra logeerkamer voor gasten, de mogelijkheden zijn eindeloos. De kamers zijn licht en luchtig, en bieden een neutraal canvas voor jouw persoonlijke inrichting. Hier vindt elk gezinslid zijn eigen plekje, terwijl er ook genoeg ruimte is voor samenzijn.

De badkamer is een toonbeeld van moderne elegantie, met een inloopdouche, wastafel en een designradiator. Hier begin je je dag fris en eindig je hem ontspannen.

huizen van hendriks
Lichte vertrekken
vier slaapkamers moderne badkamer

Groene omgeving

strategische ligging

alles binnen handbereik

Stel je voor: je woont op een plek waar de charme van het dorpse leven en de serene rust van de natuur samensmelten. Deze woning, strategisch gelegen nabij de dorpskern, biedt het beste van twee werelden. Aan de achterzijde strekt het Roerdal zich uit, een groen panorama dat rust en ruimte ademt. Hier geniet je van de nabijheid van lokale winkels en voorzieningen, terwijl je ook de vrijheid ervaart van het landelijke leven. Een locatie die zowel praktisch als pittoresk is, een zeldzaamheid die nu binnen handbereik ligt.

De tuin is een verlengstuk van het huis, met een perfecte ligging voor maximale zonuren. Het is een plek waar je in alle privacy kunt genieten van de buitenlucht, een barbecue met vrienden of gewoon een moment van rust met een goed boek.

huizen van hendriks
Groenstraat 74 6074 EL Melick
Groenstraat 74 6074 EL Melick
Groenstraat 74 6074 EL Melick

Melick

Het kerkdorp Melick maakt, sinds de herindeling van 1 januari 2007, samen met Herkenbosch, Sint Odiliënberg, Posterholt, Montfort en Vlodrop deel uit van de gemeente Roerdalen. Deze gemeente telt een inwonersaantal van 21.286 en bestrijkt een gebied van circa 8.900 hectare.

De gemeente is omgeven door een rijkdom aan natuurschoon. Bekend is het natuurreservaat De Meinweg, een nationaal park. Het ligt tussen de voormalige spoorlijn Roermond/Mönchengladbach en de Duitse grens, en het fraaie Roerdal, dat zich slingerend een weg door onze omgeving baant.

Melick beschikt over diverse voorzieningen. Er is onder andere een basisschool, een peuterspeelzaal, enkele winkels (met o.a. een supermarkt), banken, huisartsen, een postagentschap en diverse sportvoorzieningen waaronder een zwembadcomplex, een sportpark en een tennispark. Iedere vrijdagavond is er koopavond en iedere dinsdag vindt er een weekmarkt plaats op het Kerkplein.

Melick ligt in een bosrijke omgeving, op korte afstand van de Duitse grens en ongeveer drie kilometer van Roermond.

heerlijk wonen in Melick
noorden kadastrale kaart

HEERHUGOWAARD

ALKMAAR

LANDSMEER HOORN

ZAANDAM

A’DAM WEST

HAARLEM

HOOFDDORP

LEIDEN

Lokaal makelaarschap

Wij geloven sterk in lokaal makelaarschap. Kennis van de buurt, de omgeving en de daarbij behorende ontwikkeling van de huizenprijzen zijn onmisbaar om voor jou het maximale resultaat te boeken.

Met Hendriks Makelaardij kies je voor:

• makelaars die al jarenlang verbonden zijn met de regio

• kennis van de lokale woningmarkt

• een verkoopplan afgestemd op jouw woning

• maximale exposure van je huis

• bezichtigingen ook in het weekend

• netwerk met honderden woningzoekers

Verkoop je je huis met Hendriks dan ben je met de eigen app 24/7 op de hoogte van het verkoopproces. Bezichtigingsverzoeken bereiken je direct en beantwoord je snel en discreet op het moment dat het jou uitkomt.

Ook je huis verkopen? Onze makelaars komen graag en vrijblijvend bij je langs. We maken dan direct een gratis waardebepaling. Hendriks Makelaardij werkt op basis van no cure no pay. En betalen doe je pas bij verkoop.

Sint Christoffelstraat 1-3 0475 - 31 12 00 roermond@hendriks.nl www.hendriks.nl

PURMEREND

MONNICKENDAM

A’DAM NOORD

AMSTERDAM

AMSTELVEEN

(2x) (2x)

ALMERE

BUSSUM

HILVERSUM

MAARSSEN

VLEUTEN DE MEERN UTRECHT

AMERSFOORT

(2x) (2x)

NIEUWEGEIN

WIJK BIJ DUURSTEDE

MEPPEL

ZWOLLE

APELDOORN

NIJMEGEN ARNHEM

‘S-HERTOGENBOSCH

TILBURG REESHOF BREDA

TILBURG WEERT ROERMOND

EINDHOVEN

onze makelaarskantoren huizen van hendriks

WhatsApp de foto’s en het adres van je woning naar 06 44 33 78 72 en ontvang een gratis waardebepaling!

WHATSAPP FOTO’S WONING ADRES WAARDE + + =
Christoffelstraat 1-3
- 31 12 00
Sint
0475
roermond@hendriks.nl www.hendriks.nl Ook je huis verkopen?

Turn static files into dynamic content formats.

Create a flipbook