Genneperweg 87, Eindhoven

Page 1

HuizenHendriks van

Leuk appartement!

Instapklaar

Met leuke tuin

Gewilde locatie

Snel beschikbaar

Genneperweg 87 , 5654 AG Eindhoven
H51

De in deze brochure getoonde informatie wordt door Hendriks makelaardij met zorg samengesteld, doch voor de juistheid en volledigheid daarvan kan niet worden ingestaan en kunnen hieraan geen rechten worden ontleend. Spel- en typefouten voorbehouden. De plattegronden zijn geproduceerd voor promotionele doeleinden en ter indicatie. Er kunnen geen rechten aan worden ontleend. Maten zijn niet eigenhandig opgemeten. Indien er twijfel bestaat over de accuratie van de gegevens aangaande deze brochure, is de geïnteresseerde zelf verantwoordelijk voor het nameten van deze gegevens. Voor meer informatie wordt u doorverwezen naar www.hendriks.nl

Verkoper vertelt

bezichtiging

Dit appartement met zijn instapklare staat en onderhoudsvriendelijke tuin maakt dit een meer dan fijne plek om te wonen. Gelegen in een gewilde buurt, is deze woning absoluut de moeite waard.

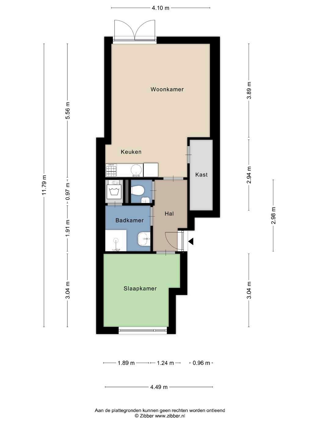
Zodra je binnenstapt in dit appartement, wordt je begroet met een warme en uitnodigende sfeer. Zo is er een lichte en ruime woonkamer, een moderne keuken, één slaapkamer, de badkamer en de achtertuin op het noorden.

Om de puntjes op de i te zetten, is dit appartement snel beschikbaar. Je hoeft niet lang te wachten voordat je kunt genieten van je nieuwe woning.

Nieuwsgierig geworden? Neem snel contact op met ons kantoor en plan een bezichtiging met één van onze makelaars. Zij verwelkomen je graag aan de Genneperweg 87 in Eindhoven.

Kenmerken benedenwoning 2 43 m² 142 m³ 1930 achtertuin geen garage E Soort Kamers Woonoppervlakte Inhoud Bouwjaar Tuin Garage Energielabel
Direct online een
inplannen? Ga naar onze website.
Eindhoven: Aalsterweg 5, T 040 - 293 05 00
Te koop bij

Middels de voortuin stap je via de eigen entree de woning binnen. De hal verleent toegang tot alle vertrekken die in de woning aanwezig zijn. Te beginnen in het woon- en eetgedeelte.

thuis Een nieuw thuis! kom binnen huizen van hendriks
welkom

Lichte woonkamer

voldoende daglicht diverse apparatuur

De woonkamer is voorzien van een nette afwerking. Op de vloer ligt laminaat dat zorgt voor een warme en uitnodigende sfeer.

Het daglicht stroomt rijkelijk naar binnen, waardoor de woonkamer een lichte en luchtige sfeer heeft.

De keuken heeft een wandopstelling en biedt voldoende ruimte om heerlijke maaltijden te bereiden. Tevens ben je hier voorzien van inbouwapparatuur, waaronder een koelkast met vriesvak en een 4 pits gaskookplaat.

huizen van hendriks

slaap lekker!

spoel de dag van je af!

Bij binnenkomst vind je op links de enige slaapkamer die in de woning is gesitueerd. Het vertrek is van goed formaat, lekker licht en netjes afgewerkt waardoor je hem vrijwel direct kunt betrekken.

En dan is er nog de badkamer. De ruimte is van grond tot plafond betegeld en heeft een verzorgde uitstraling. De indeling bestaat uit een douchecabine, designradiator en een wastafel. Het toilet bevindt zich in een separate ruimte.

Een slaapkamer

huizen van hendriks

fijne buitenruimte

Tuin op het noorden genieten!

De tuin is gelegen op het noorden en is volledig bestraat. Op een zonnige dag biedt deze tuin een fijne plek om te ontspannen en te genieten van de buitenlucht.

Daarnaast heb je nog de beschikking over een eenvoudige houten berging. Hoewel deze niet bijzonder groot is, is het voldoende om tuingereedschap, fietsen en andere spullen op te bergen.

huizen van hendriks

Fijne woonomgeving

centrale locatie

voorzieningen nabij

Aan het Franz Leharplein bevinden zich direct de winkels. Als je de andere kant op gaat, vind je op loopafstand het mooie natuur- en recreatiegebied ‘De Genneper Parken’. Ook zijn er scholen in de buurt en het stadscentrum en het station zijn goed te bereiken met de fiets.

Daarnaast ligt de woning op slechts enkele minuten rijden van de snelweg, het Maxima Medisch Centrum, ASML en op 1 km afstand van de High Tech Campus Eindhoven.

huizen van hendriks
Genneperweg 87 5654 AG Eindhoven
Genneperweg 87 5654 AG Eindhoven

heerlijk wonen in Eindhoven

Deze jonge Brabantse stad heeft een moderne uitstraling met een warm, bourgondisch centrum. Binnen een eeuw is dit boerenstadje uitgegroeid tot een aantrekkelijke dynamische stad met ruim 220.000 inwoners. De gemeente Eindhoven omvat naast de gelijknamige stad Eindhoven ook het dorp Acht en Meerhoven. Qua inwonersaantal is dit de vijfde stad van Nederland.

Het bourgondische is terug te vinden in de verschillende soorten cafés, terrasjes en restaurants met vele soorten wereldkeukens. De stad heeft een acties sociaal en cultureel centrum waarbij alle soorten kunst evenementen worden georganiseerd zoals Dutch Design Week en GLOW. Daarnaast is de werkomgeving erg gezond in deze high tech omgeving. Bedrijven als Philips, DAF en ASML zorgen voor een hoge instroom aan expats. Inclusief veel groen in de nabije omgeving van het centrum maakt Eindhoven tot een heerlijke stad waar het plezierig wonen, werken en leven is.

Het woonklimaat in Eindhoven is zéér aantrekkelijk.

Eindhoven
noorden kadastrale kaart

Lokaal makelaarschap

Wij geloven sterk in lokaal makelaarschap. Kennis van de buurt, de omgeving en de daarbij behorende ontwikkeling van de huizenprijzen zijn onmisbaar om voor jou het maximale resultaat te boeken.

Met Hendriks Makelaardij kies je voor:

• makelaars die al jarenlang verbonden zijn met de regio

• kennis van de lokale woningmarkt

• een verkoopplan afgestemd op jouw woning

• maximale exposure van je huis

• bezichtigingen ook in het weekend

• netwerk met honderden woningzoekers

Verkoop je je huis met Hendriks dan ben je met de eigen app 24/7 op de hoogte van het verkoopproces. Bezichtigingsverzoeken bereiken je direct en beantwoord je snel en discreet op het moment dat het jou uitkomt.

Ook je huis verkopen? Onze makelaars komen graag en vrijblijvend bij je langs. We maken dan direct een gratis waardebepaling. Hendriks Makelaardij werkt op basis van no cure no pay. En betalen doe je pas bij verkoop.

Aalsterweg 5 040 - 293 05 00 eindhoven@hendriks.nl www.hendriks.nl

TILBURG REESHOF BREDA ‘S-HERTOGENBOSCH TILBURG WEERT ROERMOND NIJMEGEN ARNHEM APELDOORN BUSSUM MEPPEL ALMERE AMSTELVEEN AMSTERDAM A’DAM NOORD MONNICKENDAM PURMEREND ZAANDAM ALKMAAR LANDSMEER HOORN HEERHUGOWAARD A’DAM WEST HOOFDDORP HAARLEM (2x) (2x) AMERSFOORT LEIDEN HILVERSUM EINDHOVEN (2x) (2x) ZWOLLE NIEUWEGEIN WIJK BIJ DUURSTEDE VLEUTEN DE MEERN UTRECHT MAARSSEN onze makelaarskantoren huizen van hendriks
WHATSAPP FOTO’S WONING ADRES WAARDE + + = Aalsterweg 5 040 - 293 05 00 eindhoven@hendriks.nl www.hendriks.nl Ook je huis verkopen? WhatsApp de foto’s en het adres van je woning naar 06 44 33 78 72 en ontvang een gratis waardebepaling!

Turn static files into dynamic content formats.

Create a flipbook
Issuu converts static files into: digital portfolios, online yearbooks, online catalogs, digital photo albums and more. Sign up and create your flipbook.