Skip to main content

De Lingst 86, Haelen

Page 1

HuizenHendriks van

Gelijkvloerswonen mogelijk

Prachtig uitzicht

Ruime tuin rondom

Energielabel A

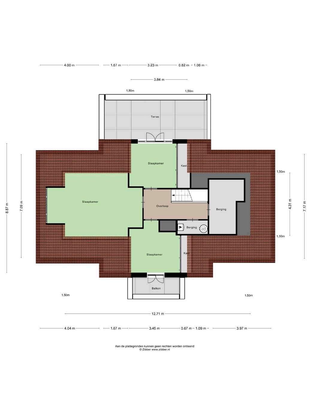
De Lingst 86 , 6081 GK Haelen Riante slaapkamers
H54

Soort

Type

Kamers

Woonoppervlakte

Perceeloppervlakte

Inhoud

Bouwjaar

Tuin

Garage

Verwarming

Isolatie

Energielabel

Kenmerken

eengezinswoning

vrijstaande woning

5

186 m²

658 m²

769 m³

2000

achtertuin, tuin rondom

aangebouwd steen

c.v.-ketel

volledig geïsoleerd A

De in deze brochure getoonde informatie wordt door Hendriks makelaardij met zorg samengesteld, doch voor de juistheid en volledigheid daarvan kan niet worden ingestaan en kunnen hieraan geen rechten worden ontleend. Spel- en typefouten voorbehouden. De plattegronden zijn geproduceerd voor promotionele doeleinden en ter indicatie. Er kunnen geen rechten aan worden ontleend. Maten zijn niet eigenhandig opgemeten. Indien er twijfel bestaat over de accuratie van de gegevens aangaande deze brochure, is de geïnteresseerde zelf verantwoordelijk voor het nameten van deze gegevens. Voor meer informatie wordt u doorverwezen naar www.hendriks.nl

Verkoper vertelt

De woning is ontworpen met een oog voor comfort en duurzaamheid, wat resulteerde in ruime kamers, een praktische indeling en gebruik van hoogwaardige materialen. De tuin rondom het huis is in de loop der jaren uitgegroeid tot een groene oase, waar de seizoenen zich van hun mooiste kant laten zien.

Binnen biedt de woning een warme en uitnodigende sfeer. De grote ramen zorgen voor veel natuurlijk licht en de leefruimtes zijn zodanig ingericht dat ze zowel voor dagelijks gebruik als voor het entertainen van gasten ideaal zijn. De keuken, het hart van het huis, is de plek waar vele maaltijden zijn bereid en waar vrienden en familie samen zijn gekomen.

Door de jaren heen is de woning met veel zorg onderhouden. Elk onderhoud of renovatie werd uitgevoerd met respect voor de oorspronkelijke kwaliteit en stijl die de bouwers voor ogen hadden. Dit is een huis dat leeft, dat ademt, en dat klaarstaat om zijn warme muren te openen voor een nieuwe eigenaar.

Nu de tijd is gekomen om deze bijzondere plek over te dragen, in de wetenschap dat Lingst 86 klaar is om nieuwe herinneringen te maken met iemand die de woning zal waarderen en liefhebben.

We wensen de nieuwe bewoners dan ook veel geluk, en ik hoop dat de volgende bewoners net zoveel vreugde en comfort zullen vinden in dit huis als dat wij dat hebben ervaren.

Roermond: Sint Christoffelstraat 1-3, T 0475 - 31 12 00
Te koop bij
licht

ruime woonkamer

riante eethoek

Gelijkvloers wonen is een luxe die je nu of in de toekomst zal waarderen. Dit huis biedt de mogelijkheid om alle essentiële leefruimtes op de begane grond te hebben. Dit betekent geen trappen meer lopen voor senioren of mensen met beperkte mobiliteit, wat een gevoel van veiligheid en onafhankelijkheid geeft. Het is een investering in de toekomst, die zorgt voor een comfortabele en toegankelijke leefomgeving, ongeacht wat het leven je brengt.

huizen van hendriks
Ruim en

Moderne keuken

familiekeuken met bijkeuken

Stap binnen in een wereld waar duurzaamheid hand in hand gaat met comfort. Met dit huis, pronkend met Energielabel A, profiteer je van een energiezuinige leefomgeving die niet alleen vriendelijk is voor de portemonnee, maar ook voor onze planeet. De zorgvuldige isolatie, hoogwaardige beglazing en slimme energieoplossingen zorgen ervoor dat jouw energierekening laag blijft, terwijl je geniet van een behaaglijk en warm thuis. Dit is wonen met een groen hart, waar je elke maand weer de vruchten van plukt.

De keuken is voorzien van moderne apparatuur en bied de ideale ruimte om te genieten van culinaire meesterwerken.

Daarnaast is er ook nog een bijkeuken die kan dienen als extra opslagruimte en/of de was/droog ruimte.

huizen van hendriks

Ruime slaapkamers

riante slaapkamers

heerlijke privacy

Elke slaapkamer in dit huis voelt als een persoonlijk toevluchtsoord. Ze zijn royaal in oppervlak, bieden ruimte aan kingsize bedden en laten volop natuurlijk licht binnen. Hier kan elk gezinslid zich terugtrekken en ontspannen in alle rust. Of het nu gaat om een tienerkamer met ruimte voor huiswerk én hobbies, een gastenkamer die bezoek welkom heet, of een master bedroom die uitnodigt tot een goede nachtrust – deze slaapkamers vormen de perfecte privéplekken binnen het huiselijke leven.

De moderne badkamer heeft een ligbad, douchecabine, nette wastafelmeubel en een ruim ligbad. De ideale plek om te ontspannen en op te frissen.

huizen van hendriks
Een

tuin rondom

groene oase heerlijk genieten

De tuin die dit huis omarmt, is een ruime groene oase waar de zorgen van de wereld lijken te verdwijnen. Het is een privéparadijs waar kinderen veilig kunnen spelen, waar je kunt tuinieren in de vruchtbare aarde, en waar vrienden en familie samenkomen voor onvergetelijke zomerbarbecues. Het hele jaar door leeft de tuin, verandert van kleur, en biedt je een plek om te ontspannen, te spelen en simpelweg te genieten van de buitenlucht. Dit is een tuin die niet alleen ruimte biedt aan je groene vingers, maar ook aan je ziel.

huizen van hendriks
De Lingst 86 6081 GK Haelen
De Lingst 86 6081 GK Haelen
De Lingst 86 6081 GK Haelen

Haelen

Haelen is een kerkdorp gelegen in het hart van het prachtige Leudal. Of je nu op zoek bent naar rust en natuur of juist levendigheid en activiteiten, Haelen heeft het allemaal. Het dorp heeft een actief verenigingsleven, wat betekent dat er altijd wel iets te doen is. Van sportclubs tot muziekverenigingen en van toneelgroepen tot carnavalsverenigingen. Bovendien worden er het hele jaar door evenementen en festiviteiten georganiseerd. Denk aan de Haelense optocht met carnaval, de jaarlijkse paardenmarkt en de braderie tijdens Koningsdag.

Ook op het gebied van voorzieningen zit je goed in Haelen. Het dorp heeft een basisschool, een supermarkt, een bakker, een slager en diverse andere winkels en diensten die je nodig hebt voor je dagelijkse boodschappen. Daarnaast zijn er meerdere sportfaciliteiten, zoals een voetbalveld en een tennisbaan. Voor verdere voorzieningen kun je terecht in de nabijgelegen steden Roermond en Weert, die beide op korte afstand van Haelen liggen.

heerlijk wonen in Haelen
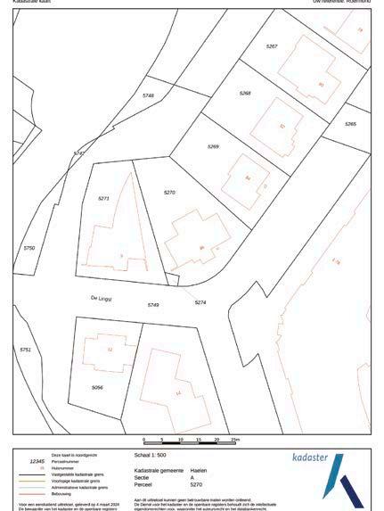
noorden kadastrale kaart

Lokaal makelaarschap

Wij geloven sterk in lokaal makelaarschap. Kennis van de buurt, de omgeving en de daarbij behorende ontwikkeling van de huizenprijzen zijn onmisbaar om voor jou het maximale resultaat te boeken.

Met Hendriks Makelaardij kies je voor:

• makelaars die al jarenlang verbonden zijn met de regio

• kennis van de lokale woningmarkt

• een verkoopplan afgestemd op jouw woning

• maximale exposure van je huis

• bezichtigingen ook in het weekend

• netwerk met honderden woningzoekers

Verkoop je je huis met Hendriks dan ben je met de eigen app 24/7 op de hoogte van het verkoopproces.

Bezichtigingsverzoeken bereiken je direct en beantwoord je snel en discreet op het moment dat het jou uitkomt.

HEERHUGOWAARD

ALKMAAR LANDSMEER HOORN

Ook je huis verkopen? Onze makelaars komen graag en vrijblijvend bij je langs. We maken dan direct een gratis waardebepaling. Hendriks Makelaardij werkt op basis van no cure no pay. En betalen doe je pas bij verkoop.

Sint Christoffelstraat 1-3 0475 - 31 12 00 roermond@hendriks.nl www.hendriks.nl

PURMEREND ZAANDAM

A’DAM WEST

HOOFDDORP HAARLEM

LEIDEN

MONNICKENDAM

A’DAM NOORD

AMSTERDAM

ALMERE AMSTELVEEN

BUSSUM

HILVERSUM

(2x) (2x)

MAARSSEN

VLEUTEN DE MEERN UTRECHT

NIEUWEGEIN WIJK BIJ DUURSTEDE

AMERSFOORT

MEPPEL

ZWOLLE

APELDOORN

NIJMEGEN ARNHEM

‘S-HERTOGENBOSCH

TILBURG REESHOF BREDA

EINDHOVEN (2x) (2x)

TILBURG WEERT

ROERMOND

onze makelaarskantoren huizen van hendriks
WHATSAPP FOTO’S WONING ADRES WAARDE + + = Sint Christoffelstraat 1-3 0475 - 31 12 00 roermond@hendriks.nl www.hendriks.nl Ook je huis verkopen? WhatsApp de foto’s en het adres van je woning naar 06 44 33 78 72 en ontvang een gratis waardebepaling!

Turn static files into dynamic content formats.

Create a flipbook