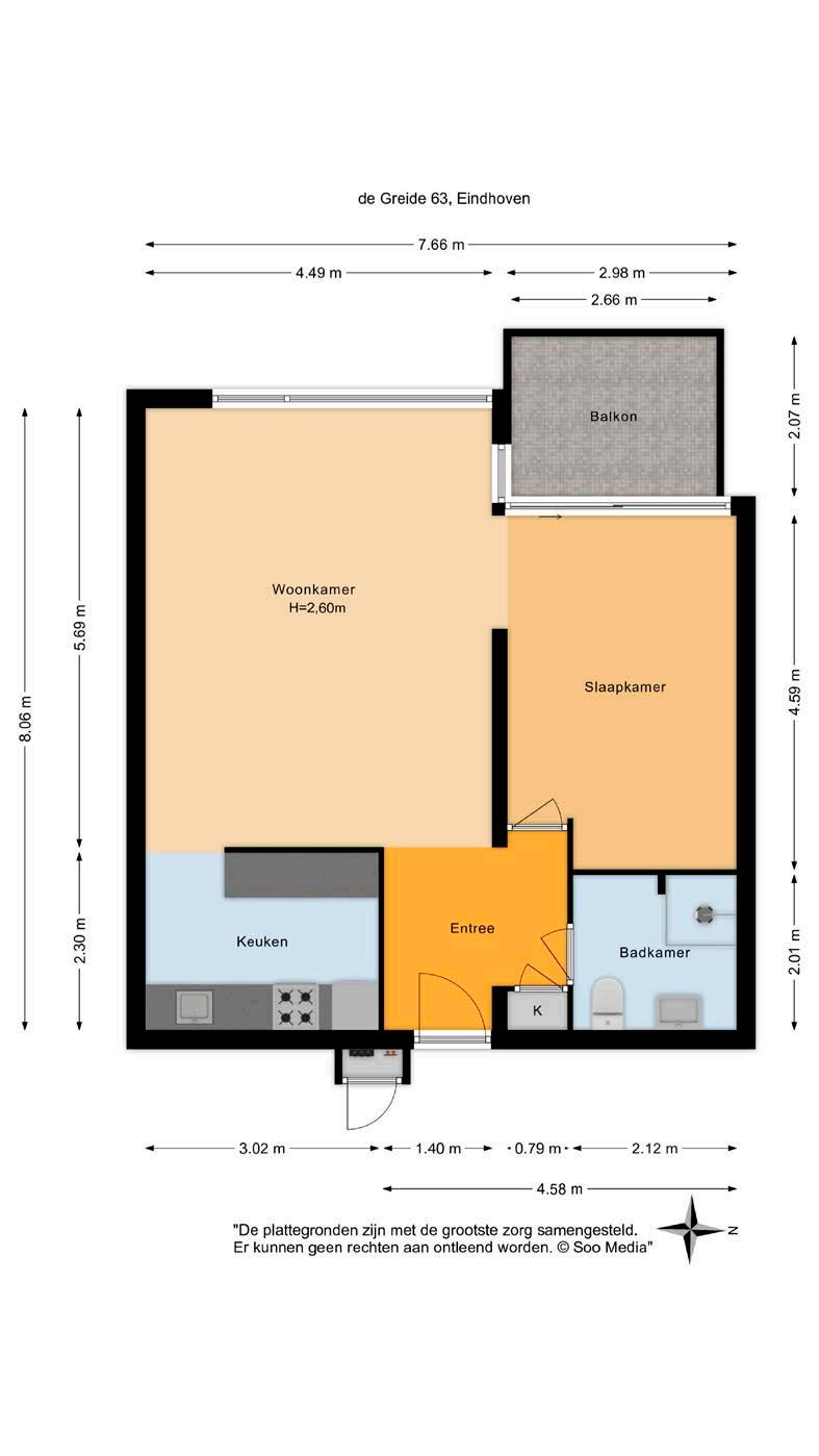
de Greide 63, Eindhoven

Page 1

HuizenHendriks van

Ideaal voor starters

Nabij Woenselse Markt

Twee kamers

Nabij TU/e

de Greide 63 , 5622 NE Eindhoven
H51

Soort

Kamers

Woonoppervlakte

Inhoud

Bouwjaar

Tuin

Garage

Verwarming

Isolatie

Energielabel

Kenmerken

galerijflat 2

58 m²

190 m³

1977

geen tuin

geen garage

blokverwarming

dubbel glas

C

De in deze brochure getoonde informatie wordt door Hendriks makelaardij met zorg samengesteld, doch voor de juistheid en volledigheid daarvan kan niet worden ingestaan en kunnen hieraan geen rechten worden ontleend. Spel- en typefouten voorbehouden. De plattegronden zijn geproduceerd voor promotionele doeleinden en ter indicatie. Er kunnen geen rechten aan worden ontleend. Maten zijn niet eigenhandig opgemeten. Indien er twijfel bestaat over de accuratie van de gegevens aangaande deze brochure, is de geïnteresseerde zelf verantwoordelijk voor het nameten van deze gegevens. Voor meer informatie wordt u doorverwezen naar www.hendriks.nl

Verkoper vertelt

Starters opgelet! Dit tweekamerappartement aan de Greide 63 in Eindhoven is echt ideaal.

Door de centrale ligging zijn alle voorzieningen, waaronder de Woenselse Markt en TU/e nabij gelegen. Dit maakt het de perfecte uitvalsbasis voor jou als starter!

Eindhoven: Aalsterweg 5, T 040 - 293 05 00

Te koop bij

elfde verdieping

gratis parkeren

Wanneer je aankomt bij het appartementencomplex kun je de auto er gratis parkeren. Via de centrale entree betreed je het appartementencomplex. Hier bevinden zich het bellentableau en de brievenbussen. Op de elfde verdieping kom je vanuit de lift in de ruime, gezamenlijke hal die toegang verleent aan zes appartementen.

Welkom!
huizen van hendriks

Fijn thuiskomen

ruime woonkamer

heerlijk licht

Je komt het appartement binnen in de ruime entree met toegang tot de badkamer, slaapkamer en woonkamer. De woonkamer is ruim opgezet en heerlijk licht. Dat is pas fijn thuiskomen.

huizen van hendriks

Lekker kokkerellen

gezellige keuken

creëer een bar

De keuken is betrokken bij de woonkamer en geplaatst in een rechte wandopstelling waar je allerlei lekkere gerechten klaar kunt maken. Creëer een gezellige bar door barkrukken te plaatsen waaraan gasten kunnen plaatsnemen.

huizen van hendriks

ruime slaapkamer

Fijn ontwaken complete badkamer

Ook de slaapkamer is ruim opgezet. Middels de schuifpui heb je toegang tot het balkon. Dat is pas fijn ontwaken.

De badkamer is met een douche, wastafel en toilet van alle gemakken voorzien. Tevens bevindt zich hier de aansluiting voor de wasapparatuur.

huizen van hendriks

Beschut buiten zitten

ruim balkon

eigen, inpandige berging

Het ruime balkon is dé plek om beschut buiten te zitten. Plaats hier een leuk zitje en geniet van je eigen buitenruimte.

Op de vijftiende verdieping is een groot gezamenlijk dakterras. Deze is toegankelijk voor alle bewoners, heeft een goede zonligging en een prachtig uitzicht over de hele stad.

De fiets kun je kwijt in de gezamenlijke fietsen berging of in je eigen, inpandige berging. Bovendien leent de berging zich handig voor opslagruimte.

huizen van hendriks
de Greide 63 5622 NE Eindhoven
de Greide 63 5622 NE Eindhoven

heerlijk wonen in Eindhoven

Deze jonge Brabantse stad heeft een moderne uitstraling met een warm, bourgondisch centrum. Binnen een eeuw is dit boerenstadje uitgegroeid tot een aantrekkelijke dynamische stad met ruim 220.000 inwoners. De gemeente Eindhoven omvat naast de gelijknamige stad Eindhoven ook het dorp Acht en Meerhoven. Qua inwonersaantal is dit de vijfde stad van Nederland.

Het bourgondische is terug te vinden in de verschillende soorten cafés, terrasjes en restaurants met vele soorten wereldkeukens. De stad heeft een acties sociaal en cultureel centrum waarbij alle soorten kunst evenementen worden georganiseerd zoals Dutch Design Week en GLOW. Daarnaast is de werkomgeving erg gezond in deze high tech omgeving. Bedrijven als Philips, DAF en ASML zorgen voor een hoge instroom aan expats. Inclusief veel groen in de nabije omgeving van het centrum maakt Eindhoven tot een heerlijke stad waar het plezierig wonen, werken en leven is.

Het woonklimaat in Eindhoven is zéér aantrekkelijk.

Eindhoven
noorden kadastrale kaart

Lokaal makelaarschap

Wij geloven sterk in lokaal makelaarschap. Kennis van de buurt, de omgeving en de daarbij behorende ontwikkeling van de huizenprijzen zijn onmisbaar om voor jou het maximale resultaat te boeken.

Met Hendriks Makelaardij kies je voor:

• makelaars die al jarenlang verbonden zijn met de regio

• kennis van de lokale woningmarkt

• een verkoopplan afgestemd op jouw woning

• maximale exposure van je huis

• bezichtigingen ook in het weekend

• netwerk met honderden woningzoekers

Verkoop je je huis met Hendriks dan ben je met de eigen app 24/7 op de hoogte van het verkoopproces. Bezichtigingsverzoeken bereiken je direct en beantwoord je snel en discreet op het moment dat het jou uitkomt.

Ook je huis verkopen? Onze makelaars komen graag en vrijblijvend bij je langs. We maken dan direct een gratis waardebepaling. Hendriks Makelaardij werkt op basis van no cure no pay. En betalen doe je pas bij verkoop.

Aalsterweg 5 040 - 293 05 00 eindhoven@hendriks.nl www.hendriks.nl

TILBURG REESHOF BREDA ‘S-HERTOGENBOSCH TILBURG WEERT ROERMOND NIJMEGEN ARNHEM APELDOORN BUSSUM MEPPEL ALMERE AMSTELVEEN AMSTERDAM A’DAM NOORD MONNICKENDAM PURMEREND ZAANDAM ALKMAAR LANDSMEER HOORN HEERHUGOWAARD A’DAM WEST HOOFDDORP HAARLEM (2x) (2x) AMERSFOORT LEIDEN HILVERSUM EINDHOVEN (2x) (2x) ZWOLLE NIEUWEGEIN WIJK BIJ DUURSTEDE VLEUTEN DE MEERN UTRECHT MAARSSEN onze makelaarskantoren huizen van hendriks
WHATSAPP FOTO’S WONING ADRES WAARDE + + = Aalsterweg 5 040 - 293 05 00 eindhoven@hendriks.nl www.hendriks.nl Ook je huis verkopen? WhatsApp de foto’s en het adres van je woning naar 06 44 33 78 72 en ontvang een gratis waardebepaling!

Turn static files into dynamic content formats.

Create a flipbook
Issuu converts static files into: digital portfolios, online yearbooks, online catalogs, digital photo albums and more. Sign up and create your flipbook.