Dassenburcht 20, Apeldoorn

Page 1

HuizenHendriks van

20 , 7325 CJ Apeldoorn
Dassenburcht
Warmtepomp Gasloos Prachtige ruim opgezette wijk
H48
4 slaapkamers Label A+++

De in deze brochure getoonde informatie wordt door Hendriks makelaardij met zorg samengesteld, doch voor de juistheid en volledigheid daarvan kan niet worden ingestaan en kunnen hieraan geen rechten worden ontleend. Spel- en typefouten voorbehouden. De plattegronden zijn geproduceerd voor promotionele doeleinden en ter indicatie. Er kunnen geen rechten aan worden ontleend. Maten zijn niet eigenhandig opgemeten. Indien er twijfel bestaat over de accuratie van de gegevens aangaande deze brochure, is de geïnteresseerde zelf verantwoordelijk voor het nameten van deze gegevens. Voor meer informatie wordt u doorverwezen naar www.hendriks.nl

Verkoper vertelt

Dit is het fijnste huis dat ik ooit heb gehad: de buurt is heerlijk thuiskomen, omgeven door erg mooie huizen, kleinschalig opgezet en alle voorzieningen (winkels, trein) zijn heel dichtbij. Het is een kindvriendelijke wijk en wat mij vooral zo is opgevallen is dat iedereen erg vriendelijk is en ik heb aan beide zijden heel fijne buren.

Heel bijzonder aan de woning is het energieverbruik: gasloos, warmtepomp, heerlijke vloerverwarming, zonnepanelen: nooit zorgen over je maandlasten en iedere keer ben ik opnieuw verrast dat je altijd thuis komt in een aangenaam warm (of koel in de zomer!) huis. Je hoeft nooit meer om te kijken naar de verwarming.

Ik ga deze woning zeker missen maar ben blij dat anderen er nu van gaan genieten.

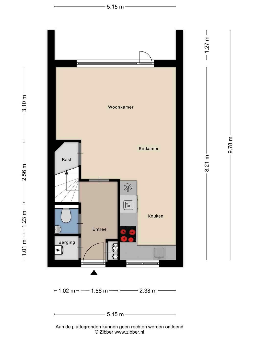
Kenmerken eengezinswoning tussenwoning 5 110 m² 110 m² 392 m³ 2015 achtertuin, voortuin geen garage vloerverwarming
warmtepomp volledig
hr-glas A3xPlus Soort Type Kamers Woonoppervlakte
Inhoud Bouwjaar Tuin Garage Verwarming Isolatie Energielabel
geheel,
geïsoleerd,
Perceeloppervlakte
Apeldoorn: Zwolseweg 208, T 055 - 521 92 77
Te koop bij

Moderne keuken

welkom thuis

eet smakelijk

Stap binnen en laat je verrassen door de strakke afwerking op de begane grond. De prachtige keuken nodigt je uit met zijn schitterende ontwerp en overvloed aan licht.

huizen van hendriks

Tuingerichte woonkamer

strakke afwerking

hoe deel jij het in?

De tuingerichte woonkamer biedt de perfecte ruimte voor zowel een gezellige zithoek als een sfeervolle eethoek. Hier voel je je direct thuis.

huizen van hendriks

Lichte slaapkamers

welterusten

nette badkamer

Op de eerste verdieping ontdek je maar liefst 3 slaapkamers, waarvan 2 royaal bemeten. Genoeg ruimte voor een groeiend gezin, een thuiskantoor, of zelfs een hobbykamer.

De nette badkamer is uitgerust met een douche, wastafelmeubel en een toilet.

En als kers op de taart is de zolder op de tweede verdieping een prachtige, multifunctionele ruimte die je naar eigen wens kunt inrichten. Deze ruimte is ingedeeld als vierde slaapkamer.

Op de overloop tref je de aansluiting voor het witgoed en de warmtepomp.

huizen van hendriks

Stap naar buiten en laat de verzorgd aangelegde tuin je omarmen. Hier geniet je van de frisse lucht, de groene omgeving, en de mogelijkheid om buiten te ontspannen en te entertainen. Een verlengstuk van je woongenot, omringd door rust en privacy.

Daarnaast beschikt de tuin over een handige berging met overkapping en verlichting. Hier kun je op warme zomerdagen heerlijk in de schaduw zitten. genieten

huizen van hendriks
Verzorgd aangelegd ga lekker zitten
Dassenburcht 20 7325 CJ Apeldoorn
Dassenburcht 20 7325 CJ Apeldoorn
Dassenburcht 20 7325 CJ Apeldoorn

noorden kadastrale kaart

heerlijk wonen in Apeldoorn

Apeldoorn

Apeldoorn heeft de laatste jaren een gezonde groei doorgemaakt en is het levendige centrum van de Veluwe. De gemeente telt inmiddels ca. 168.000 inwoners en is de grootste stad op de Veluwe en de twaalfde stad van Nederland. Het stedelijke gebied van Apeldoorn is onderverdeeld in ruim 40 wijken. En dan is er nog het landelijk gebied waar bijna 20.000 mensen wonen, verdeeld over de bij Apeldoorn behorende dorpen Beekbergen, Ugchelen, Beemte Broekland, Hoenderloo, Hoog Soeren, Lieren, Loenen, Nieuw Milligen, Uddel, Wenum Wiesel, deels Radio Kootwijk en Klarenbeek.

Door de vele parken, heemtuinen, maar vooral ook door de uitgestrekte natuurgebieden die rondom de stad zijn gelegen, is Apeldoorn met recht het ‘Groene hart van de Veluwe’. De Koninklijke Houtvesterij Het Loo vormt één van Nederlands grotere aaneengesloten natuurgebieden met een oppervlakte van 10.500 hectare. In deze natuurlijke omgeving leven onder andere edelherten, reeën en wilde zwijnen. Apeldoorn is ook een ‘Koninklijke Stad’, bekend om Paleis Het Loo met zijn prachtige tuinen, Koninklijke Stallen en Het Aardhuis, voormalig jachtchalet van koning Willem II. Het woonklimaat in Apeldoorn is zéér aantrekkelijk.

HEERHUGOWAARD

ALKMAAR

LANDSMEER HOORN

ZAANDAM

A’DAM WEST

HOOFDDORP

LEIDEN

Lokaal makelaarschap

Wij geloven sterk in lokaal makelaarschap. Kennis van de buurt, de omgeving en de daarbij behorende ontwikkeling van de huizenprijzen zijn onmisbaar om voor jou het maximale resultaat te boeken.

Met Hendriks Makelaardij kies je voor:

• makelaars die al jarenlang verbonden zijn met de regio

• kennis van de lokale woningmarkt

• een verkoopplan afgestemd op jouw woning

• maximale exposure van je huis

• bezichtigingen ook in het weekend

• netwerk met honderden woningzoekers

Verkoop je je huis met Hendriks dan ben je met de eigen app 24/7 op de hoogte van het verkoopproces. Bezichtigingsverzoeken bereiken je direct en beantwoord je snel en discreet op het moment dat het jou uitkomt.

Ook je huis verkopen? Onze makelaars komen graag en vrijblijvend bij je langs. We maken dan direct een gratis waardebepaling. Hendriks Makelaardij werkt op basis van no cure no pay. En betalen doe je pas bij verkoop.

Zwolseweg 208 055 - 521 92 77 apeldoorn@hendriks.nl www.hendriks.nl

PURMEREND

MONNICKENDAM

A’DAM NOORD

AMSTERDAM

AMSTELVEEN

HAARLEM (2x) (2x)

ALMERE

BUSSUM

HILVERSUM

MAARSSEN

VLEUTEN DE MEERN UTRECHT

NIEUWEGEIN WIJK BIJ DUURSTEDE

AMERSFOORT

MEPPEL

ZWOLLE

APELDOORN

NIJMEGEN ARNHEM

‘S-HERTOGENBOSCH

TILBURG REESHOF BREDA

EINDHOVEN (2x) (2x)

TILBURG WEERT

ROERMOND
onze makelaarskantoren huizen van hendriks

WhatsApp de foto’s en het adres van je woning naar 06 44 33 78 72 en ontvang een gratis waardebepaling!

WHATSAPP FOTO’S WONING ADRES WAARDE + + =
208
- 521 92 77
Zwolseweg
055
apeldoorn@hendriks.nl www.hendriks.nl Ook je huis verkopen?

Turn static files into dynamic content formats.

Create a flipbook
Issuu converts static files into: digital portfolios, online yearbooks, online catalogs, digital photo albums and more. Sign up and create your flipbook.