Skip to main content

Bosstraat 21, Swalmen

Page 1


HuizenHendriks van

Sfeervol verbouwd

Uitstekend onderhouden

Jaren ‘30 architectuur

Lekker ruim

Schitterende indeling op de begane grond

Soort eengezinswoning

Type hoekwoning

Kamers 9

Woonoppervlakte 155 m²

Perceeloppervlakte 321 m²

Inhoud 597 m³

Bouwjaar 1933

Tuin achtertuin

Garage geen garage

Verwarming c.v.-ketel

Isolatie dakisolatie, muurisolatie, vloerisolatie, hr-glas

Energielabel C

De in deze brochure getoonde informatie wordt door Hendriks makelaardij met zorg samengesteld, doch voor de juistheid en volledigheid daarvan kan niet worden ingestaan en kunnen hieraan geen rechten worden ontleend. Spel- en typefouten voorbehouden. De plattegronden zijn geproduceerd voor promotionele doeleinden en ter indicatie. Er kunnen geen rechten aan worden ontleend. Maten zijn niet eigenhandig opgemeten. Indien er twijfel bestaat over de accuratie van de gegevens aangaande deze brochure, is de geïnteresseerde zelf verantwoordelijk voor het nameten van deze gegevens. Voor meer informatie wordt u doorverwezen naar www.hendriks.nl

Verkoper vertelt

Welkom in ons prachtige huis, waar rust, privacy en comfort samenkomen. Hier wonen wij met ontzettend veel plezier, omgeven door groen, zonder inkijk en met een tuin die uitnodigt tot ontspannen. Het huis biedt alles wat je je maar kunt wensen: twee moderne badkamers, drie royale slaapkamers met de mogelijkheid tot een vierde, en vloerverwarming voor ultiem comfort.

Op een steenworp afstand vind je scholen, het station, de dorpskern én het bos, ideaal voor het dagelijks leven en recreatie. Dit huis is een echte thuishaven, waar je na een lange werkdag of vakantie volledig tot rust komt. De zomeravonden zijn perfect voor een barbecue met vrienden in de tuin, genietend van een vuurtje. In de winter biedt de ruime en lichte keuken, het hart van het huis, een centrale plek om samen te komen, waar je vanuit elke ruimte contact hebt met elkaar.

Dankzij de airconditioning slapen we heerlijk koel, zelfs op warme dagen. De schuur en kelder zorgen voor

meer dan genoeg opbergruimte en het speelhuisje is een waar avontuur voor de kleintjes. Met een ruime oprit en parkeergelegenheid voor de deur is er altijd plek voor de auto.

Dit huis straalt charme uit en dat was precies wat ons jaren geleden aansprak. Met zorg hebben we de originele uitstraling behouden en gecombineerd met moderne elementen tijdens de verbouwing. Het is een woning met karakter en een ziel, klaar om een nieuwe familie met open armen te ontvangen.

Kom zelf de sfeer ervaren en ontdek waarom dit huis zo speciaal is!

jaren ‘30 stijl

Authentieke details hedendaags wooncomfort

Deze woning heeft een complete metamorfose ondergaan waarbij de klassieke jaren ‘30 stijl prachtig samengaat met hedendaags wooncomfort. Denk aan authentieke details zoals glas-in-loodramen en originele tegels, gecombineerd met moderne voorzieningen zoals vloerverwarming en energiezuinige installaties. Deze unieke mix zorgt voor een warme, uitnodigende sfeer waarin je meteen thuis voelt, terwijl je geniet van alle gemakken van nu

Smakelijk eten

centrale keuken nieuwste apparatuur

De keuken is het kloppende hart van deze woning, ontworpen met oog voor detail en uitgerust met de nieuwste apparatuur. De keuken vormt een centrale ontmoetingsplek waar je kunt koken, eten en samenkomen. Aan de voorzijde bevindt zich een gezellige eetkamer, ideaal voor familiediners en intieme avonden met vrienden. Aan de achterzijde vind je een fraai uitgebouwde zitkamer die uitkijkt op de tuin, perfect voor ontspannen momenten met het gezin.

Slaap lekker

vier slaapkamers

voldoende ruimte

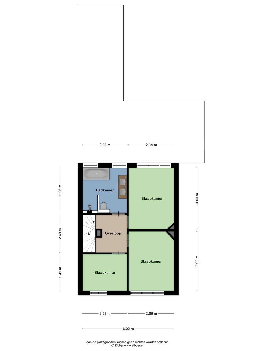
Deze woning biedt maar liefst vier slaapkamers, waardoor er voldoende ruimte is voor elk gezinslid en zelfs voor gasten. Op de eerste verdieping bevinden zich drie ruime slaapkamers, elk met grote ramen die voor veel natuurlijk licht zorgen. De tweede verdieping is geheel gewijd aan de masterbedroom, een serene en ruime toevluchtsoord met voldoende opbergruimte en een prachtig uitzicht. Hier ontwaak je elke ochtend met een glimlach.

fraai aangelegd

verrassend groot

De tuin is een oase van rust en ruimte, fraai aangelegd en verrassend groot. Hier kunnen kinderen veilig spelen, terwijl jij geniet van een kopje koffie op het terras. De tuin is zo ontworpen dat hij onderhoudsarm is, zodat je meer tijd hebt om van je woning te genieten. Of je nu van tuinieren houdt, een plek zoekt om te ontspannen of graag buiten eet, deze tuin biedt het allemaal.

Onderhoudsarm

Swalmen

Sinds de gemeentelijk herindeling op 1 januari 2007 behoort Swalmen tot de gemeente Roermond. De gemeente Roermond bestaat uit de kernen Roermond, Swalmen, Herten, Maasniel, Leeuwen en Asenray. De gemeente telt een inwonersaantal van 54.310 en bestrijkt een gebied van circa 7.100 hectare.

Het riviertje de Swalm stroomt dwars door Swalmen en bepaalt grotendeels het boeiende landschap. Swalmen heeft een leuk centrum met een karakteristiek raadhuis. Aan de zuidkant van het dorp ligt een statig landgoed, het voorname kasteel Hillenraad.

Swalmen beschikt over diverse voorzieningen. Er zijn o.a. basisscholen, een middelbare school, een kinderdagverblijf, peuterspeelzalen, een bibliotheek, banken, huisartsen, tandartsen en sportvoorzieningen met o.a. een zwembadcomplex en een sportcentrum. Daarnaast biedt het gezellige centrum van Swalmen een diversiteit aan winkels. In Swalmen ligt ook een treinstation met verbindingen naar Roermond en Venlo.

heerlijk wonen in Swalmen
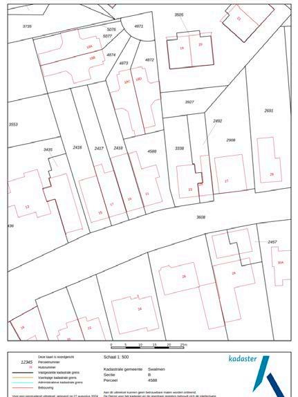
noorden kadastrale kaart

Lokaal makelaarschap

Wij geloven sterk in lokaal makelaarschap. Kennis van de buurt, de omgeving en de daarbij behorende ontwikkeling van de huizenprijzen zijn onmisbaar om voor jou het maximale resultaat te boeken.

Met Hendriks Makelaardij kies je voor:

• makelaars die al jarenlang verbonden zijn met de regio

• kennis van de lokale woningmarkt

• een verkoopplan afgestemd op jouw woning

• maximale exposure van je huis

• bezichtigingen ook in het weekend

• netwerk met honderden woningzoekers

Verkoop je je huis met Hendriks dan ben je met de eigen app 24/7 op de hoogte van het verkoopproces.

Bezichtigingsverzoeken bereiken je direct en beantwoord je snel en discreet op het moment dat het jou uitkomt.

HEERHUGOWAARD

ALKMAAR LANDSMEER HOORN

Ook je huis verkopen? Onze makelaars komen graag en vrijblijvend bij je langs. We maken dan direct een gratis waardebepaling. Hendriks Makelaardij werkt op basis van no cure no pay. En betalen doe je pas bij verkoop.

Sint Christoffelstraat 1-3 0475 - 31 12 00 roermond@hendriks.nl www.hendriks.nl

PURMEREND ZAANDAM

(2x)

A’DAM WEST

HOOFDDORP HAARLEM

LEIDEN

MONNICKENDAM

A’DAM NOORD

AMSTERDAM

AMSTELVEEN

VLEUTEN DE MEERN

ALMERE

BUSSUM

HILVERSUM

UTRECHT MAARSSEN

AMERSFOORT

(2x) (2x)

NIEUWEGEIN WIJK BIJ DUURSTEDE

MEPPEL

ZWOLLE

APELDOORN

ARNHEM

(2x)

NIJMEGEN

‘S-HERTOGENBOSCH

BREDA

TILBURG

EINDHOVEN

WEERT

ROERMOND

Turn static files into dynamic content formats.

Create a flipbook