Biest 130, Weert

Page 1

HuizenHendriks van

Gelegen

Biest 130 , 6001 AT Weert
vijf slaapkamers Onder architectuur (uit)gebouwd
Privacyvolle tuin Mogelijkheid tot
stadsvilla H56
op top locatie nabij centrum Karakteristieke

De in deze brochure getoonde informatie wordt door Hendriks makelaardij met zorg samengesteld, doch voor de juistheid en volledigheid daarvan kan niet worden ingestaan en kunnen hieraan geen rechten worden ontleend. Spel- en typefouten voorbehouden. De plattegronden zijn geproduceerd voor promotionele doeleinden en ter indicatie. Er kunnen geen rechten aan worden ontleend. Maten zijn niet eigenhandig opgemeten. Indien er twijfel bestaat over de accuratie van de gegevens aangaande deze brochure, is de geïnteresseerde zelf verantwoordelijk voor het nameten van deze gegevens. Voor meer informatie wordt u doorverwezen naar www.hendriks.nl

Verkoper vertelt

Bijzondere architectuur, dichtbij het centrum van Weert en de A2, een fijne, rustige achtertuin, een dakterras voor een kop koffie op zondagmorgen, en ook nog eens drie ruime slaapkamers, een kantoortje en een hele ruime zolder. Dat waren de belangrijkste redenen om dit nieuwbouwhuis in 2007 te kopen.

Voor extra leefruimte is in 2011 een aanbouw geplaatst. Al met al 16 jaar met veel plezier gewoond, maar nu is het tijd voor een volgende stap en hopen we dat de volgende bewoners er met net zoveel plezier zullen wonen! Maar daar hebben we alle vertrouwen in.

Kenmerken herenhuis tussenwoning 6 188 m² 243 m² 666 m³ 2007 achtertuin vrijstaand steen c.v.-ketel, vloerverwarming gedeeltelijk volledig geïsoleerd, hr-glas APlus Soort Type Kamers Woonoppervlakte Perceeloppervlakte Inhoud Bouwjaar Tuin Garage Verwarming Isolatie Energielabel
Weert: Emmasingel 34, T 0495 - 45 04 85
Te koop bij

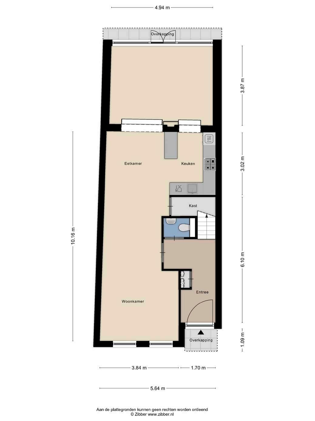
Heerlijk lichte woonkamer!

lichte woonkamer

mooie uitbouw

De woonkamer is zeer sfeervol en is afgewerkt met een houten vloer en strak gestucte wanden in neutrale kleuren. Aan de voorzijde is meer dan genoeg ruimte voor het plaatsen van een fijne zithoek en heb heb je een fantastisch uitzicht over het kanaal. Vanuit de woonkamer heb je toegang tot de handige provisiekast.

Aansluitend aan de keuken bevindt zich een onder architectuur gebouwde uitbouw. Deze ruimte is voorzien van een tegelvloer met vloerverwarming en sfeervolle gashaard. Een ideale ruimte voor diverse doeleinde zoals een zitkamer, speelkamer of kantoor aan huis.

huizen van hendriks

Van alle gemakken voorzien

moderne keuken met inbouwapparatuur

Vanuit de eetkamer heb je toegang tot de moderne open keuken. De keuken is geplaatst in een L-opstelling met een werkeiland waardoor je hier mee dan voldoende opbergruimte hebt. Verder is de keuken van alle gemakken voorzien met een koelkast, vaatwasser, oven, gasfornuis en afzuigkap en vloerverwarming.

huizen van hendriks

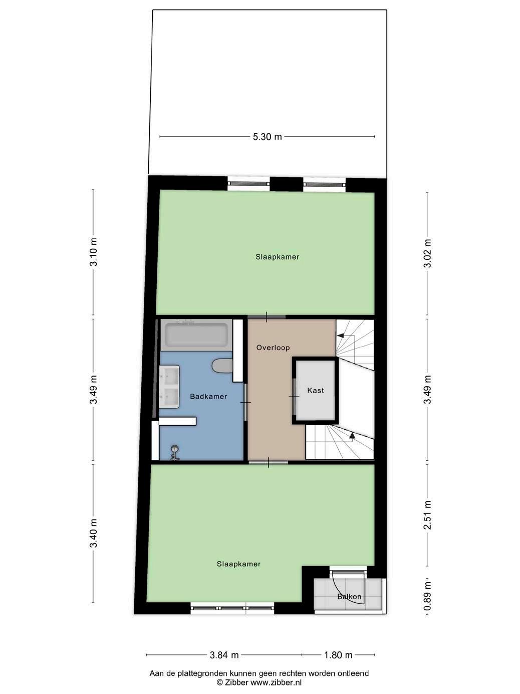
Vijf ruime

slaapkamers

vijf ruime slaapkamers

netjes afgewerkt

Vanuit de overloop heb je hier toegang tot twee ruime slaapkamers, badkamer en bergkast. Beide slaapkamers zijn van een ruim formaat en afgewerkt met een laminaatvloer en strak gestucte wanden. De voorste slaapkamer heeft tevens toegang tot het balkonnetje met heerlijk uitzicht.

Vanuit de overloop heb je hier toegang tot nog eens twee slaapkamers en een handige aparte wasruimte. Ook hier zijn de kamers netjes afgewerkt met een laminaatvloer en strak gestucte wanden.

huizen van hendriks

Moderne badkamer

moderne badkamer

voorzien van alle gemakken

De moderne badkamer ligt centraal op de verdieping en is geheel betegeld. Verder ben je hier voorzien van een inloopdouche, ligbad, een badkamermeubel met dubbele wastafel en een vrij hangend toilet.

huizen van hendriks

Heerlijk groene tuin

privacyvolle achtertuin

zonnige dakterras

Vanuit de openslaande deuren in de aanbouw heb je toegang tot de strak aangelegde tuin op het zuidoosten. De tuin is voorzien van een royaal terras, een gazon en diverse vaste beplanting.

Aan de achterzijde van de tuin bevind zich de garage voorzien van elektra. Achter de garage bevindt zich een eigen oprit.

Tevens heb je vanuit de overloop toegang tot het heerlijke dakterras met uitzicht over de tuin en de groene omgeving achter de woning.

huizen van hendriks

Groene omgeving

karakteristieke locatie

groene omgeving

De woning heeft een centrale ligging op een karakteristieke locatie en ligt nabij het stadscentrum met alle voorzieningen op loopafstand; hierbij kun je denken aan supermarkten, sportverenigingen en scholen. De woning heeft een goede bereikbaarheid, binnen een paar minuten sta je op het NS station of zit je met de auto op de A2.

huizen van hendriks
Biest 130 6001 AT Weert
Biest 130 6001 AT Weert
Biest 130 6001 AT Weert
Biest 130 6001 AT Weert
Biest 130 6001 AT Weert

Leven in een bruisende stad en de rust vinden in omliggende natuurgebieden, dit kan in Weert; de groenste stad ter wereld. In Weert is er altijd wel iets te doen. Er zijn namelijk vele winkels, lekkere restaurants en gezellige terrassen te vinden.

Ook met kinderen is het ideaal om in Weert te wonen. Er is een groot aanbod met scholen in Weert, zo is er altijd wel een basisschool en een middelbare school op fietsafstand te vinden. Verder is er voor jonge gezinnen genoeg leuks te doen in Weert. Het beschikt onder andere over een bioscoop, een zwembad, tientallen sportverenigingen en meerdere speeltuinen.

Weert is niet voor niets de stad in het groen. In 2014 werd Weert uitgeroepen tot de groenste stad van de wereld. Er is dus een fijne balans tussen het stadsleven en de voordelen van het wonen in het groen. In de omgeving van Weert zijn verschillende natuurgebieden te vinden. In deze gebieden kunt u zich heerlijk terugtrekken en genieten van fiets- en wandelroutes die wonen in Weert nog leuker maken.

De bereikbaarheid van Weert is ook een pluspunt. Zo heeft u in vijf minuten de A2 bereikt. Niet alleen met de auto bereikt u snel andere locaties, ook op het gebied van openbaar vervoer is Weert gunstig gelegen. Dit komt mede door het Intercity station in Weert. Ideaal voor kinderen die gaan studeren. In de gemeente Weert zijn ook vijf kerkdorpen te vinden: Altweerterheide, Laar, Swartbroek, Tungelroy en Stramproy.

heerlijk wonen in Weert

Weert
noorden kadastrale
kaart

Lokaal makelaarschap

Wij geloven sterk in lokaal makelaarschap. Kennis van de buurt, de omgeving en de daarbij behorende ontwikkeling van de huizenprijzen zijn onmisbaar om voor jou het maximale resultaat te boeken.

Met Hendriks Makelaardij kies je voor:

• makelaars die al jarenlang verbonden zijn met de regio

• kennis van de lokale woningmarkt

• een verkoopplan afgestemd op jouw woning

• maximale exposure van je huis

• bezichtigingen ook in het weekend

• netwerk met honderden woningzoekers

Verkoop je je huis met Hendriks dan ben je met de eigen app 24/7 op de hoogte van het verkoopproces. Bezichtigingsverzoeken bereiken je direct en beantwoord je snel en discreet op het moment dat het jou uitkomt.

Ook je huis verkopen? Onze makelaars komen graag en vrijblijvend bij je langs. We maken dan direct een gratis waardebepaling. Hendriks Makelaardij werkt op basis van no cure no pay. En betalen doe je pas bij verkoop.

Emmasingel 34 0495 - 45 04 85 weert@hendriks.nl www.hendriks.nl

TILBURG REESHOF BREDA ‘S-HERTOGENBOSCH TILBURG WEERT ROERMOND NIJMEGEN ARNHEM APELDOORN BUSSUM MEPPEL ALMERE AMSTELVEEN AMSTERDAM A’DAM NOORD MONNICKENDAM PURMEREND ZAANDAM ALKMAAR LANDSMEER HOORN HEERHUGOWAARD A’DAM WEST HOOFDDORP HAARLEM (2x) (2x) AMERSFOORT LEIDEN HILVERSUM EINDHOVEN (2x) (2x) ZWOLLE NIEUWEGEIN WIJK BIJ DUURSTEDE VLEUTEN DE MEERN UTRECHT MAARSSEN onze makelaarskantoren huizen van hendriks
WHATSAPP FOTO’S WONING ADRES WAARDE + + = Emmasingel 34 0495 - 45 04 85 weert@hendriks.nl www.hendriks.nl Ook je huis verkopen? WhatsApp de foto’s en het adres van je woning naar 06 44 33 78 72 en ontvang een gratis waardebepaling!

Turn static files into dynamic content formats.

Create a flipbook
Issuu converts static files into: digital portfolios, online yearbooks, online catalogs, digital photo albums and more. Sign up and create your flipbook.
Biest 130, Weert by Hendriks Makelaardij - meer makelaar - - Issuu