Beatrixlaan 7, Roermond

Page 1

7 , 6042 HL Roermond Rustige straat Charmante wijk Riant woonhuis Lekker klussen Zonnige tuin H54
Hendriks van
Beatrixlaan
Huizen

Soort Type Kamers

Woonoppervlakte

Perceeloppervlakte

Inhoud Bouwjaar Tuin Garage Verwarming Isolatie Energielabel

Kenmerken

eengezinswoning 2-onder-1-kapwoning 7 123 m² 277 m² 575 m³ 1959 achtertuin, zijtuin geen garage c.v.-ketel geen isolatie F

De in deze brochure getoonde informatie wordt door Hendriks makelaardij met zorg samengesteld, doch voor de juistheid en volledigheid daarvan kan niet worden ingestaan en kunnen hieraan geen rechten worden ontleend. Spel- en typefouten voorbehouden. De plattegronden zijn geproduceerd voor promotionele doeleinden en ter indicatie. Er kunnen geen rechten aan worden ontleend. Maten zijn niet eigenhandig opgemeten. Indien er twijfel bestaat over de accuratie van de gegevens aangaande deze brochure, is de geïnteresseerde zelf verantwoordelijk voor het nameten van deze gegevens. Voor meer informatie wordt u doorverwezen naar www.hendriks.nl

Verkoper vertelt

Met enig pijn in het hart moet ik afstand doen van het ouderlijk huis De woning is gelegen aan een rustige straat vlakbij het centrum. De duiventil achterin de tuin heeft vele jaren centraal gestaan in het leven van mijn vader.

In het voorjaar hebben we regelmatig met de familie mee mogen genieten van de tuin. We hopen dat de volgend eigenaar net zo van deze plek kan genieten.

Roermond: Sint Christoffelstraat 1-3, T 0475 - 31 12 00
Te koop bij

Zodra je binnenkomt in de goed bemeten woonkamer word je aangenaam verrast door de fijne hoeveelheid daglicht dat in de kamer neerstrijkt. De afwerking is gedateerd, wat maakt dat je hier direct aan de slag kunt met de nieuwste trends en kleuren om er binnen de kortste keren een fijn nieuw thuis van te maken.

huizen van hendriks
welkom thuis! hoe pak jij het aan?

Nette keuken

Via de woonkamer en de hal kom je in de dichte keuken. Hier tref je een eenvoudig keukenblok die is geplaatst in een wandopstelling en uitgevoerd in een lichte kleur. Verder zijn er een koelkast, gasfornuis en een afzuigkap aanwezig.

Je kunt er voor kiezen om de muur tussen de woonkamer en de keuken weg te halen waardoor er een grote open ruimte ontstaat waar je dan bijvoorbeeld een luxe kookeiland kunt plaatsen.

huizen van hendriks
plaats je droomkeuken toegang tot de tuin

slaap lekker optimaal ontspannen

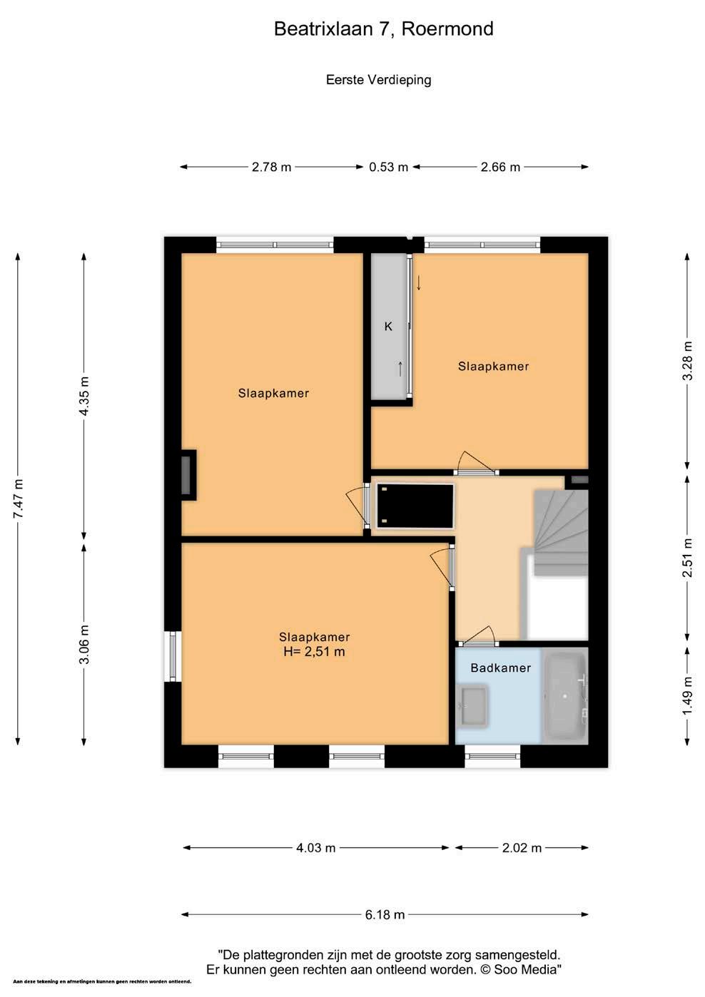
Middels de vaste trap begeven we ons naar de eerste verdieping. Je vindt hier een drietal slaapkamers en de badkamer. De kamers variëren van formaat, zijn lekker licht en afgewerkt in jaren 80 sfeer waardoor je hier ook je creativiteit helemaal de vrije loop kunt laten.

En dan is er nog de badkamer, dé plek waar je even heerlijk kunt ontspannen. De ruimte is van grond tot plafond betegeld en maakt daarmee een verzorgde indruk. Echter is de ruimte gedateerd waardoor je hier je eigen spa aan huis kunt creëren.

Vanaf de overloop heb je via een vlizotrap welke is weggewerkt in het met schroten beklede plafond. toegang tot een praktische bergzolder.

Drie slaapkamers

huizen van hendriks

Via de woonkamer en één van de bergingen heb je toegang tot de achtertuin. De tuin is gelegen op het zuidwesten en is aangelegd met een vijver en een zonneterras. Echter is onderhoud een vereiste. In één van de bergingen is een grote duiventil gerealiseerd.

fijne buitenruimte
huizen van hendriks
Tuin op het zuidwesten genieten van de zon!
Beatrixlaan 7 6042 HL Roermond
Beatrixlaan 7 6042 HL Roermond
Beatrixlaan 7 6042 HL Roermond

heerlijk wonen in Roermond

Roermond

Roermond is een stad die rijk is aan monumenten. Door de eeuwen heen was de stad Hanzestad en hoofdstad van Gelre en nu nog is het de bisschopstad van Limburg. Na de gemeentelijk herindeling op 1 januari 2007 bestaat de gemeente Roermond uit de kernen Roermond, Swalmen, Herten, Maasniel, Leeuwen en Asenray. De gemeente telt een inwonersaantal van 54.310 en bestrijkt een gebied van circa 7.100 hectare.

Ook natuurliefhebbers komen aan hun trekken. Direct voor de poorten van de stad, langs de Maas, ligt een uitgestrekt waterrecreatie-gebied: de Maasplassen. Een aaneenschakeling van kleine en grote meren, gelegen in een groen en weids landschap. Aan de oostkant van de gemeente ligt het schitterende nationaal park: de Meinweg, waarin adders en wilde zwijnen voorkomen.

Het historische stratenpatroon van de Roermondse binnenstad herbergt een attractief winkelcentrum. Behalve winkelketens, treft u hier een grote diversiteit aan kleinschalige zaken die samen met de vele horeca gelegenheden, het gezellige karakter van de stad bepalen.

Lokaal makelaarschap

Wij geloven sterk in lokaal makelaarschap. Kennis van de buurt, de omgeving en de daarbij behorende ontwikkeling van de huizenprijzen zijn onmisbaar om voor jou het maximale resultaat te boeken.

Met Hendriks Makelaardij kies je voor: • makelaars die al jarenlang verbonden zijn met de regio • kennis van de lokale woningmarkt • een verkoopplan afgestemd op jouw woning • maximale exposure van je huis • bezichtigingen ook in het weekend • netwerk met honderden woningzoekers

Verkoop je je huis met Hendriks dan ben je met de eigen app 24/7 op de hoogte van het verkoopproces. Bezichtigingsverzoeken bereiken je direct en beantwoord je snel en discreet op het moment dat het jou uitkomt.

Ook je huis verkopen? Onze makelaars komen graag en vrijblijvend bij je langs. We maken dan direct een gratis waardebepaling. Hendriks Makelaardij werkt op basis van no cure no pay. En betalen doe je pas bij verkoop.

Sint Christoffelstraat 1-3 0475 - 31 12 00 roermond@hendriks.nl www.hendriks.nl

onze makelaarskantoren huizen van hendriks
WHATSAPP FOTO’S WONING ADRES WAARDE + + = Sint Christoffelstraat 1-3 0475 - 31 12 00 roermond@hendriks.nl www.hendriks.nl Ook je huis verkopen? WhatsApp de foto’s en het adres van je woning naar 06 44 33 78 72 en ontvang een gratis waardebepaling!

Turn static files into dynamic content formats.

Create a flipbook
Issuu converts static files into: digital portfolios, online yearbooks, online catalogs, digital photo albums and more. Sign up and create your flipbook.