Amsterdamstraat 47, 's-Hertogenbosch

Page 1

HuizenHendriks van

Instapklaar

Vijf

Vrij

Ruime serre

Amsterdamstraat 47 , 5224 XB ‘s-Hertogenbosch
uitzicht
slaapkamers
Energielabel C H58

De in deze brochure getoonde informatie wordt door Hendriks makelaardij met zorg samengesteld, doch voor de juistheid en volledigheid daarvan kan niet worden ingestaan en kunnen hieraan geen rechten worden ontleend. Spel- en typefouten voorbehouden. De plattegronden zijn geproduceerd voor promotionele doeleinden en ter indicatie. Er kunnen geen rechten aan worden ontleend. Maten zijn niet eigenhandig opgemeten. Indien er twijfel bestaat over de accuratie van de gegevens aangaande deze brochure, is de geïnteresseerde zelf verantwoordelijk voor het nameten van deze gegevens. Voor meer informatie wordt u doorverwezen naar www.hendriks.nl

Verkoper vertelt

32 jaar met plezier hier gewoond en nog steeds, maar helaas wordt voor ons het huis te groot met 4 slaapkamers.

Kinderen zijn hier opgegroeid en naar school gegaan. Altijd goede contacten gehad met de buren, weinig veranderingen van huiseigenaren. Voorheen bouwval aan de overkant van de straat, nu prachtig appartement gebouwd met mooie supermarkt ( Hoogvliet ) en div winkels/ frietzaak . Vorig jaar is de hele straat vernieuwd betreffende weg en stoep en nieuwe rioollening, tuin perkjes. Op loop afstand van de winkelcentrum de Helftheuvel, bushalte op loopafstand. Vrij uitzicht geen bewoning tegenover ons, makkelijk voor de deur parkeren.

In de afgelopen jaren veel vernieuwd aan ons huis, overal kunststof kozijnen op alle ramen en deuren rolluiken, in alle ramen uitneembare horren, dubbel openslaande deuren naar de achtertuin met pliche hor deuren, mooie overkapping geplaatst met

recent open schuivende glas deuren erin. Beneden en boven airco laten plaatsen. Over de gehele voorkant elektrische zonneluifel.

Kenmerken eengezinswoning tussenwoning 6 118 m² 136 m² 417 m³ 1966 achtertuin, voortuin geen garage c.v.-ketel dubbel glas C Soort Type Kamers Woonoppervlakte Perceeloppervlakte Inhoud Bouwjaar Tuin Garage Verwarming Isolatie Energielabel
‘s-Hertogenbosch: Orthenseweg 22, T 073 - 687 65 43
Te koop bij

Hoe richt jij het in?

lichte woonkamer

netjes afgewerkt

Bij binnenkomst tref je een keurige entree en hal met meterkast en toilet. Je wordt meteen verwelkomd door de lichte woonkamer, voorzien van airconditioning voor het ultieme comfort. De woonkamer biedt voldoende ruimte voor een ruime zithoek en een gezellige eethoek. De ruimte is netjes afgewerkt met een tegelvloer.

Via de woonkamer heb je toegang tot de gezellige serre, die de perfecte overgang tussen binnen en buiten biedt.

huizen van hendriks

Diverse apparatuur

halfopen keuken

nette badkamer

Je loopt door naar de nette halfopen keuken in L-opstelling. Hier vind je hoogwaardige inbouwapparatuur, waaronder een Quooker, vaatwasser, inbouw koffieapparaat en een gasfornuis met oven. De keuken biedt ook toegang tot de serre.

De nette en frisse badkamer is uitgerust met een ligbad met whirlpool en douchekop, een toilet en een wastafelmeubel.

huizen van hendriks

5 slaapkamers

volop mogelijkheden

Je neemt de trap naar de overloop op de eerste verdieping. Hier wachten vier comfortabele slaapkamers op je, allemaal voorzien van veel natuurlijk licht en afgewerkt met tapijt op de vloer en behang op de wanden. De hoofdslaapkamer is uitgerust met airconditioning voor een aangename nachtrust. Een van de slaapkamers wordt momenteel gebruikt als inloopkast, maar biedt natuurlijk ook de mogelijkheid voor een thuiswerkplek of hobbyruimte.

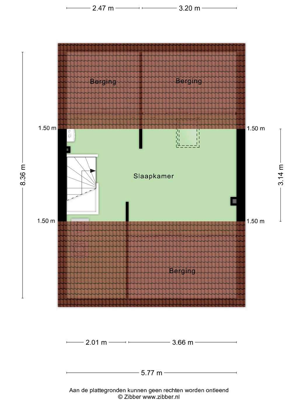
Met de vaste trap bereik je de zolder met een praktische overloop met wasmachineaansluiting en de cv-ketel. Hier bevindt zich ook een open slaapkamer met een dakraam. Ook deze verdieping is prima afgewerkt.

huizen van hendriks
Veel lichtinval

Genieten!

zonnige tuin

gunstige ligging

Geniet van de noordoostelijk gelegen tuin, fraai aangelegd met sierbestrating waardoor je weinig omkijken hebt naar het onderhoud. Hier kun je heerlijk van het zomerse weer genieten! De berging met inpandige achterom biedt een praktische opslagruimte.

Deze woning is gunstig gelegen in de kindvriendelijke wijk Kruiskamp. Snelwegen A2 en A59 zijn binnen handbereik, terwijl het overdekte winkelcentrum De Helftheuvel op slechts vijf minuten fietsen ligt. Scholen, kinderdagverblijven, het Beatrixpark en sportvoorzieningen liggen allemaal op korte afstand. Het bruisende centrum van ‘s-Hertogenbosch is op slechts een kwartiertje fietsafstand gelegen en in een mum van tijd ben je bij recreatiegebied Het Engelermeer waar je heerlijk kunt wandelen of zwemmen.

huizen van hendriks
Amsterdamstraat 47 5224 XB ‘s-Hertogenbosch
Amsterdamstraat 47 5224 XB ‘s-Hertogenbosch
Amsterdamstraat 47 5224 XB ‘s-Hertogenbosch

‘s-Hertogenbosch

Welkom in ‘s-Hertogenbosch! Als woningzoekende ben je op zoek naar een stad waar je je helemaal thuis voelt. In deze stad, ook wel bekend als Den Bosch, hebben we een grote verscheidenheid aan wijken en buurten waar jij je perfect kunt settelen.

Horeca

In ‘s-Hertogenbosch is er voor ieder wat wils op het gebied van horeca. Zo zijn de pleinen rondom de Sint-Jan, zoals het Kerkplein, de Parade en de Markt, voorzien van verschillende terrassen en restaurants. De Korte Putstraat is dé culinaire straat van Den Bosch. De Korte Putstraat is een begrip in Den Bosch en ver daar buiten. Deze culinaire straat dankt haar bekendheid aan haar historische uiterlijk, de diversiteit aan horecagelegenheden en bovenal aan de buitengewoon gemoedelijke sfeer die er heerst. Ga naar de wijk Uilenburg voor gezellige bruine cafés en voor een wat moderner aanbod van hippe horecazaken kun je het Paleiskwartier bezoeken.

Recreatie

Zoek je recreatiemogelijkheden in de buurt? Dan zijn er genoeg opties in ‘s-Hertogenbosch. Het is een stad omringd door de prachtige natuur van de Meijerij. Je kan dan ook wandelen of fietsen in de omliggende bossen. In de binnenstad is er altijd wel wat te beleven maar er is ook genoeg te doen. Bijvoorbeeld een boottochtje over de Dieze. De Binnendieze is met recht één van de grootste publiekstrekkers van ’s-Hertogenbosch.

Soort bebouwing

‘s-Hertogenbosch kent een gevarieerd aanbod aan soorten bebouwing. In het centrum van de stad vind je vooral appartementen en huizen in de kenmerkende Bossche stijl. Deze panden hebben vaak een prachtige gevel en een rijk verleden. In de omliggende wijken zijn er juist meer

heerlijk wonen in ‘s-Hertogenbosch

noorden kadastrale kaart

Lokaal makelaarschap

Wij geloven sterk in lokaal makelaarschap. Kennis van de buurt, de omgeving en de daarbij behorende ontwikkeling van de huizenprijzen zijn onmisbaar om voor jou het maximale resultaat te boeken.

Met Hendriks Makelaardij kies je voor:

• makelaars die al jarenlang verbonden zijn met de regio

• kennis van de lokale woningmarkt

• een verkoopplan afgestemd op jouw woning

• maximale exposure van je huis

• bezichtigingen ook in het weekend

• netwerk met honderden woningzoekers

Verkoop je je huis met Hendriks dan ben je met de eigen app 24/7 op de hoogte van het verkoopproces. Bezichtigingsverzoeken bereiken je direct en beantwoord je snel en discreet op het moment dat het jou uitkomt.

Ook je huis verkopen? Onze makelaars komen graag en vrijblijvend bij je langs. We maken dan direct een gratis waardebepaling. Hendriks Makelaardij werkt op basis van no cure no pay. En betalen doe je pas bij verkoop.

Orthenseweg 22 073 - 687 65 43 shertogenbosch@hendriks.nl www.hendriks.nl

TILBURG REESHOF BREDA ‘S-HERTOGENBOSCH TILBURG WEERT ROERMOND NIJMEGEN ARNHEM APELDOORN BUSSUM MEPPEL ALMERE AMSTELVEEN AMSTERDAM A’DAM NOORD MONNICKENDAM PURMEREND ZAANDAM ALKMAAR LANDSMEER HOORN HEERHUGOWAARD A’DAM WEST HOOFDDORP HAARLEM (2x) (2x) AMERSFOORT LEIDEN HILVERSUM EINDHOVEN (2x) (2x) ZWOLLE NIEUWEGEIN WIJK BIJ DUURSTEDE VLEUTEN DE MEERN UTRECHT MAARSSEN onze makelaarskantoren huizen van hendriks
WHATSAPP FOTO’S WONING ADRES WAARDE + + = Orthenseweg 22 073 - 687 65 43 shertogenbosch@hendriks.nl www.hendriks.nl Ook je huis verkopen? WhatsApp de foto’s en het adres van je woning naar 06 44 33 78 72 en ontvang een gratis waardebepaling!

Turn static files into dynamic content formats.

Create a flipbook
Issuu converts static files into: digital portfolios, online yearbooks, online catalogs, digital photo albums and more. Sign up and create your flipbook.