Architectural Project 3 Tenement City

Page 1

P3SA ALAN TANG HEI SHUN

Access

Cycling path between Amsterdam Centraal Stationsplein and Amsterdam Azartplein

Amsterdam, the capital of the Netherlands, is a metropolis where 1,468,120 people live.

The city is 219 km², of which 53 km² of water. The population density is 4,459/km². It is one of the main port cities on the North Sea and is known for its canals and islands.

The buildings are located between Java and KNSM Islands, which underwent significant urban development in the 1990s. Java Eiland urban design comprises small built parcels between quays and interior gardens. Channels were dug to remind the historical center urban fabric. KNSM is composed of large-scale buildings to remind the previous function of the site, part of the city’s docklands. The Diener and Diener project is medium-scale, serving as an entrance gate to this new area.

Precedent

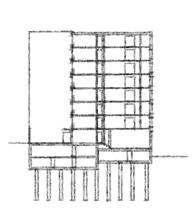
“Hoogkade” KNSM- und Java Eiland, Amsterdam, Netherlands

Hoogkarg, the long bar, is the essential part of the housing program: 124 meters long, 26 m wide, 25 m high, 180 parking places, 127 dwelling units.

2
site

Typical floors

First Floor

Outdoor area

basement

Outdoor area

Staircase/elevator and corridor

3
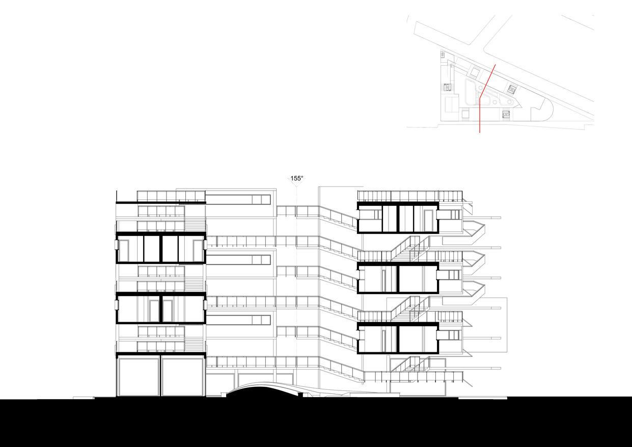
parti
GROUND LEVEL Plan TYPICAL FLOOR Plan LOCATION Plan NORTH SECTION NORTH ELEVATION SOUTH ELEVATION WEST ELEVATION WEST SECTION
4 Studio flat duplex flat 2-bedrooms apartment allocation Studio flat 85m 2 duplex flat 140m 2 2-bedroom apartment 100m 2 unit type spatial character FRONT RIVER AND BACKYARD GARDEN PODIUM AS SEMI-PUBLIC AREA, TOWERS AS PRIVATE AREA HIDE SEPERATED PROGRAM BY USING SAME FACADE LOOK RECESS FACADE TO GENERATE COMMUNAL SPACE kitchen x1 kitchen x1 kitchen x1 tolilet x1 tolilet x1 tolilet x1 bedroom x1 bedroom x1 bedroom x2 bedroom bedroom changing room x1 changing room x1 changing room x1 drying Green x1 drying Green x1 drying Green x1 living room x1 living room x1 internal staircase x1 living room x1 kitchen kitchen kitchen internal Stair tolilet tolilet tolilet bedroom livingroom livingroom livingroom changing room changing room changing room drying Green drying Green drying Green

site

From previous study on Kowloon city, To Kwa Wan is undergoing a lower pace of development, the local resisdent a still preserving a lot of local living style, from the previous study To Kwa Wan is also facing the similar fate of gradually being redeveloped, the unique indentity and landmarks will eventually wiped away if the local community or identity are forgotten under thoose gradual inplecation of ‘successful model’ of shopping complexes and highrise with thoose podiums without a proper consideration of context.

to kwa wan

5

pedetrian flow

Resisdent lifestyle

All activities are being pushed to the pedestrian street level, create more bond between local resisdent and shopkeepers and nearby community.

To preserve this kind of quality, without blocking the street too much, tried to drag the pedestrains inside instead.

6
The back alley is dark, dirty and dangerous, sometimes even blocked by obstacle pedestrian are less likely to pass through. Main Access to site Back alley Actural Boundary pushed resident out of the building, it seems the tenament buildings are only a machine for living. Penetrating through the site

The mix of functions

Staircase shop

background

There were a lot of staircase shop in To Kwa Wan, unfortunately In 2011, old buildings in Mong Kok and Ma Tau Wai Road caught fire one after another. The arson case of food stalls in Fa Yuen Street resulted in 9 deaths and 34 injuries. Since then, the Buildings Department has strictly investigated tenement buildings in various districts and strengthened law enforcement. The staircase shops are being kicked out. But still there are some remained elements we can take a look on.

The Staircase shop usually have two wayshopfront with one side facing the street and one side toward the building interior, the shopkeeper usually have a great relationship to the tenements’ resisdent.

Shopfront Resisdent’s path

7

SUNLIGHT HOURS

ADVERAGE SUNLIGHT HOURS PER DAY

8
SUMMER WINTER

Typical facade Detail

9

Since cantileved balconies are not legal for new building in Hong Kong anymore

To preserve the spatial quality, rearranging the orientation of blocks Created another way of semi-private zone, similar to balcony, also with the function of ventilation and drag in natural light.

10 4/F Plan
new arrangement 5/F Plan
original arrangement

shop near entrance stair

11

Similar to the cantilived balcony, Staircase shop is no longer legal in new building, so this approach try to ‘recreate the Staircase shop by program and orientation, also the closed relation of vertical cores and shops resisdent will still passing through them before leaving or arriving their apartments.

14
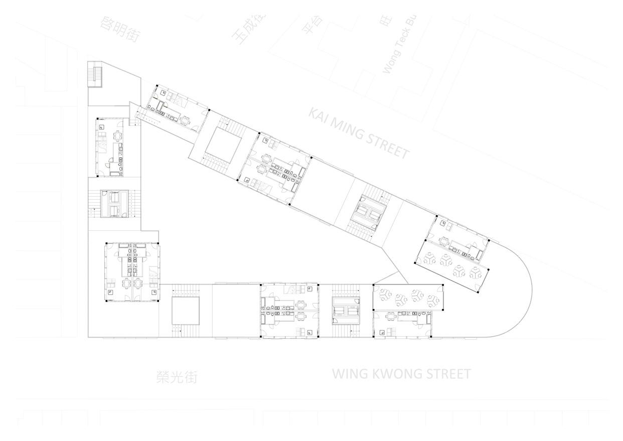
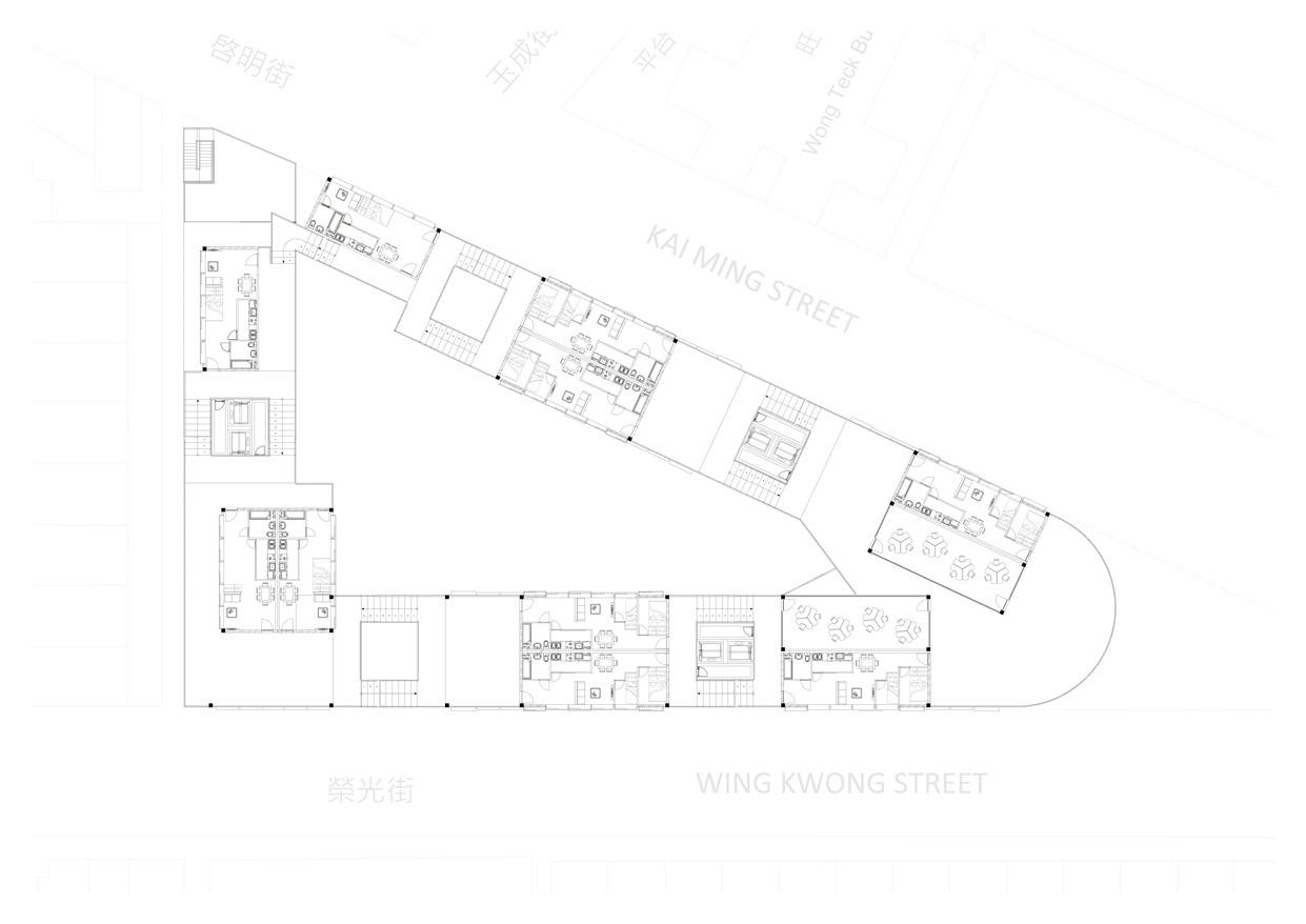
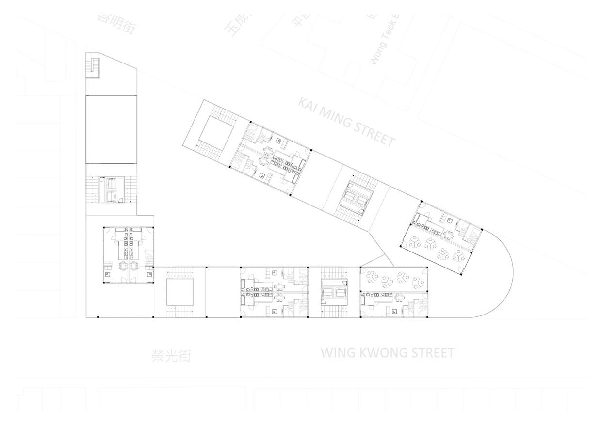
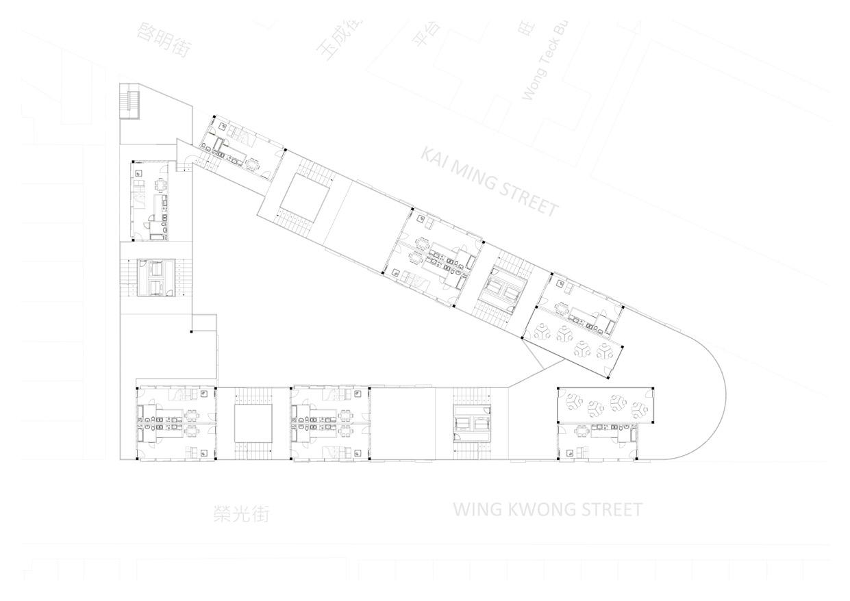
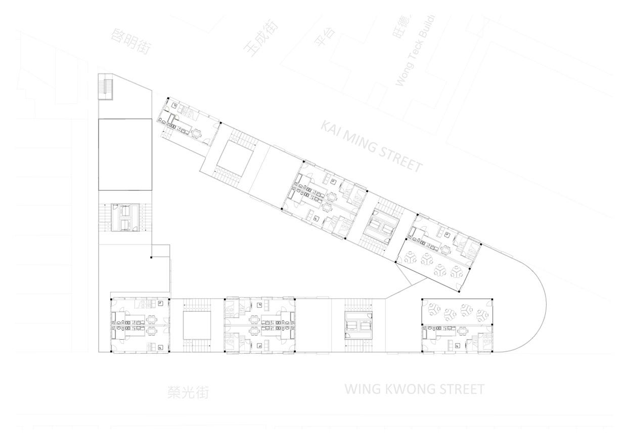
plans
1/F Plan 2/F Plan 3/F Plan entrance/ exit 4/F Plan
G/F Plan
15 typical Apartment layout 12m 4.5m 10m 4.5m typical studio layout legend studio flat Shop 2 bedroom flat staircase lift multifuction/ workshops room multifuction court common deck 6/F Plan roof Plan 5/F Plan
16
SOUTH ELEVATION
section a elevation 3 elevation 1 elevation 2 section b NORTH Plan existing back alley
17
sectional perspective section
multi-levels entrance and court Benefited by the openings Stack effect & Cross Ventilation

back alley treatment

strategy

block back alley by multipurpose court

Set back resisdential level facade

set back backside of shops and recessing street level

each levels

18 Isos view
huge
interior workshop room exterior space on
communal space playing Mahjong bbq/ parties clothes laundry

Iconic Landmark

土瓜灣愛華大廈

Corner Tong Lau Eiver House

19
20
Original facade design for round corner
21
22
Original courtyard design, (Too many empty spaces)
23
24
Internal view
25

Community centers

26
27
28
Courtyard garden
29

Double height Entrance

30
31
32 huge communal space interior
workshop room
Notice or Art display from community center
33 Communal space on each levels huge communal space Communal space for various activities

PHYSICAL Model

34
35

PHYSICAL Model

36
37

Turn static files into dynamic content formats.

Create a flipbook
Issuu converts static files into: digital portfolios, online yearbooks, online catalogs, digital photo albums and more. Sign up and create your flipbook.
Architectural Project 3 Tenement City by Heishun Alantang - Issuu