

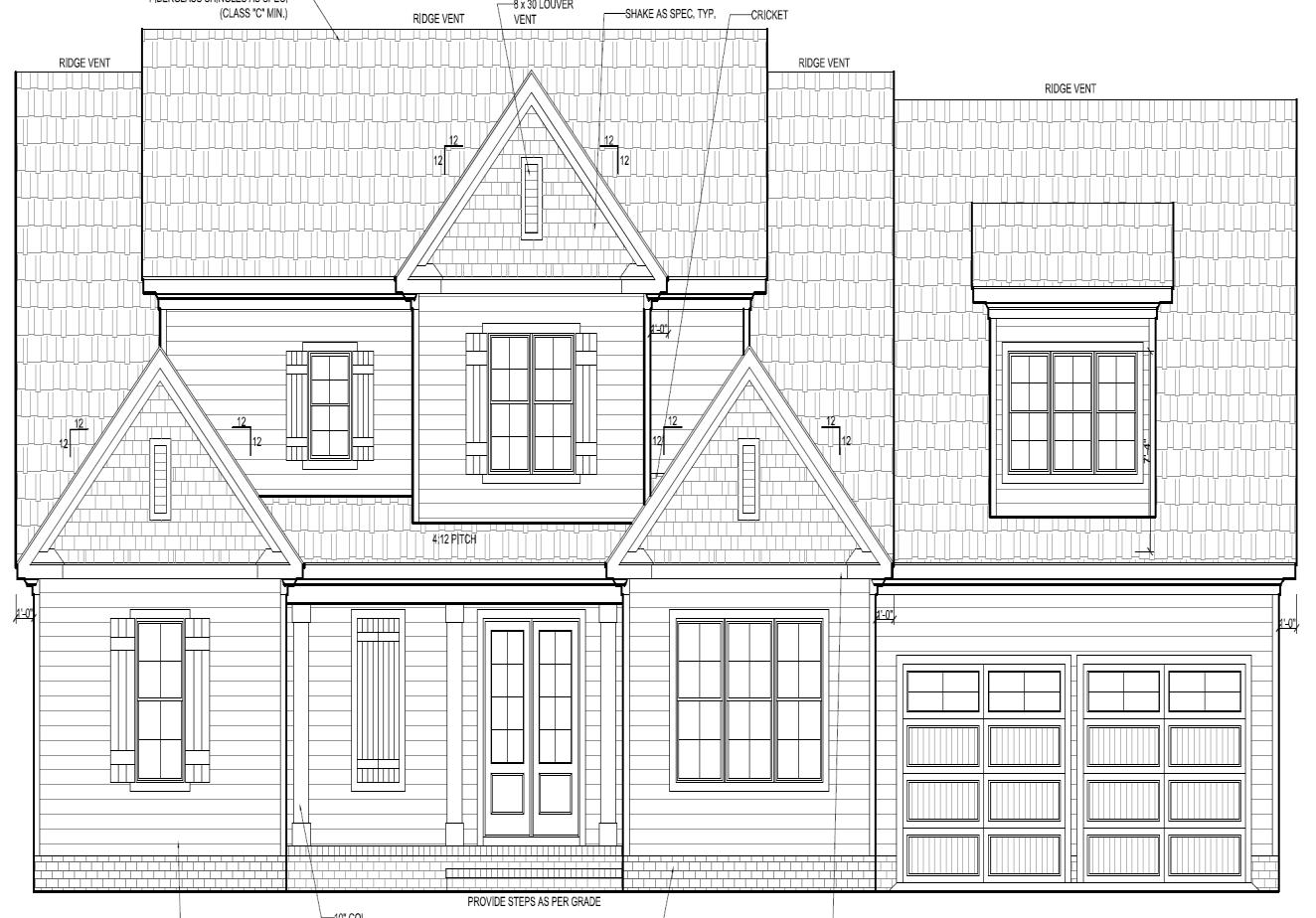
exterior SELECTIONS
Callahan|lot#573
Please understand the actual colors of your selections may vary slightly from your monitor and these pictures. We cannot guarantee that the color you see accurately portrays the true color or texture of the product.









































































interior SELECTIONS Callahan|lot#573
Please understand the actual colors of your selections may vary slightly from your monitor and these pictures. We cannot guarantee that the color you see accurately portrays the true color or texture of the product.

Fireplace Surround: Level 5 Tile Surround: Amalfi Satin Blue, 4x4 straight










kitchen SELECTIONS Callahan|lot#573
Please understand the actual colors of your selections may vary slightly from your monitor and these pictures. We cannot guarantee that the color you see accurately portrays the true color or texture of the product.









laundry room SELECTIONS
Callahan|lot#573
Please understand the actual colors of your selections may vary slightly from your monitor and these pictures. We cannot guarantee that the color you see accurately portrays the true color or texture of the product.










owner’s bathroom SELECTIONS
Callahan|lot#573
Please understand the actual colors of your selections may vary slightly from your monitor and these pictures. We cannot guarantee that the color you see accurately portrays the true color or texture of the product.










powder bathroom SELECTIONS
Callahan|lot#573
Please understand the actual colors of your selections may vary slightly from your monitor and these pictures. We cannot guarantee that the color you see accurately portrays the true color or texture of the product.








bathroom #2 SELECTIONS
Callahan|lot#573
Please understand the actual colors of your selections may vary slightly from your monitor and these pictures. We cannot guarantee that the color you see accurately portrays the true color or texture of the product.












bathroom #3 SELECTIONS
Callahan|lot#573
Please understand the actual colors of your selections may vary slightly from your monitor and these pictures. We cannot guarantee that the color you see accurately portrays the true color or texture of the product.

















lighting SELECTIONS
Callahan|lot#573
Please understand the actual colors of your selections may vary slightly from your monitor and these pictures. We cannot guarantee that the color you see accurately portrays the true color or texture of the product.
