
9LancasterDr Nashua,NH




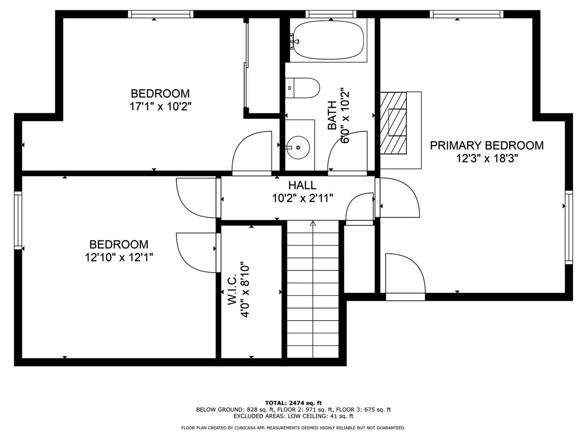
4 Bedrooms
2.75 Bathrooms Built in 1972 .25 Acre Lot
2,637 Sq Ft

Finished Basement w/in-law potential!

$ 529,900



















![]()

9LancasterDr Nashua,NH




4 Bedrooms
2.75 Bathrooms Built in 1972 .25 Acre Lot
2,637 Sq Ft

Finished Basement w/in-law potential!

$ 529,900



















Open concept kitchen/dining
Stainless appliances, kitchen island
Two first-floor bedrooms
First floor laundry + full bath
Upstairs dormer for extra headroom
Finished basement w/secondary kitchen, bath, bedrooms & walkout to patio (in-law potential!)



Heating: Baseboard
Cooling: None (Window AC’s)
Water Heater: On Demand
Fuel: Natural Gas
Water: Public
Sewer: Public
Electric: Circuit Breaker(s)












