



















![]()




















Mature landscaping and fully fenced yard
Oversized driveway w/separate parking
Inviting living room with cathedral ceilings, wood fireplace and large bay window
Granite counters in kitchen; gas range
4 Season sunroom w/skylights and access to deck leading to backyard
Primary ensuite on main floor w/half bath
Bright, natural light throughout
Fully finished lower level w/family room, secondary fireplace, and flex/den space.
Laundry in lower level with 3/4 bath

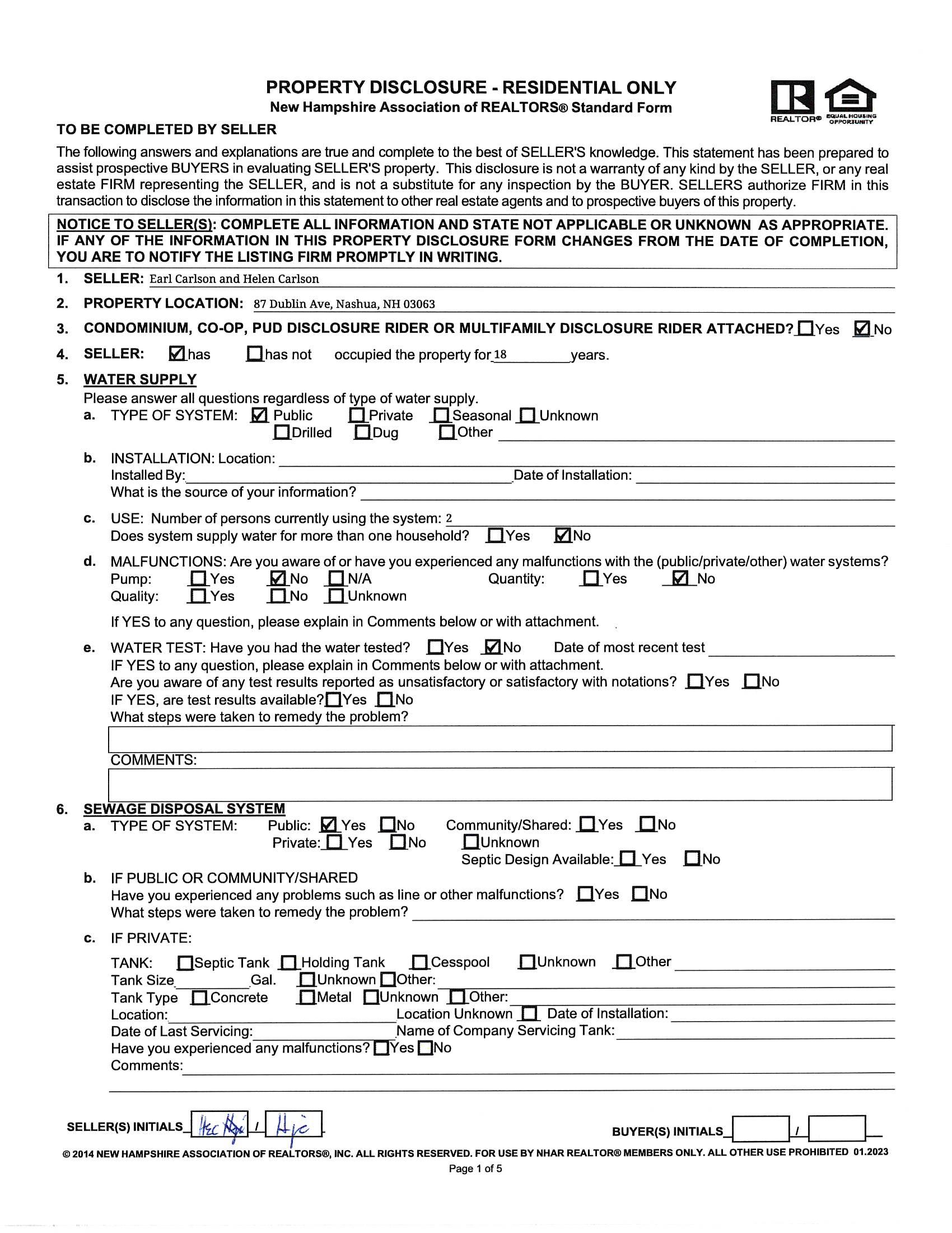
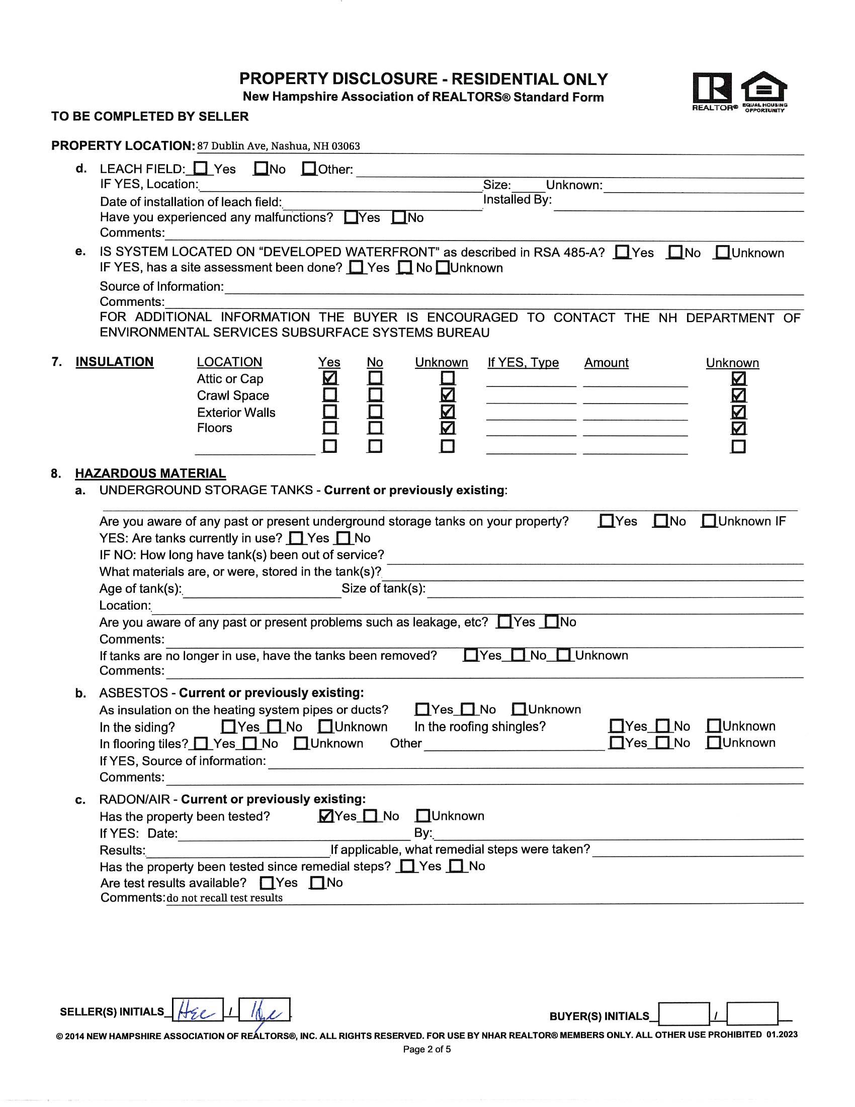
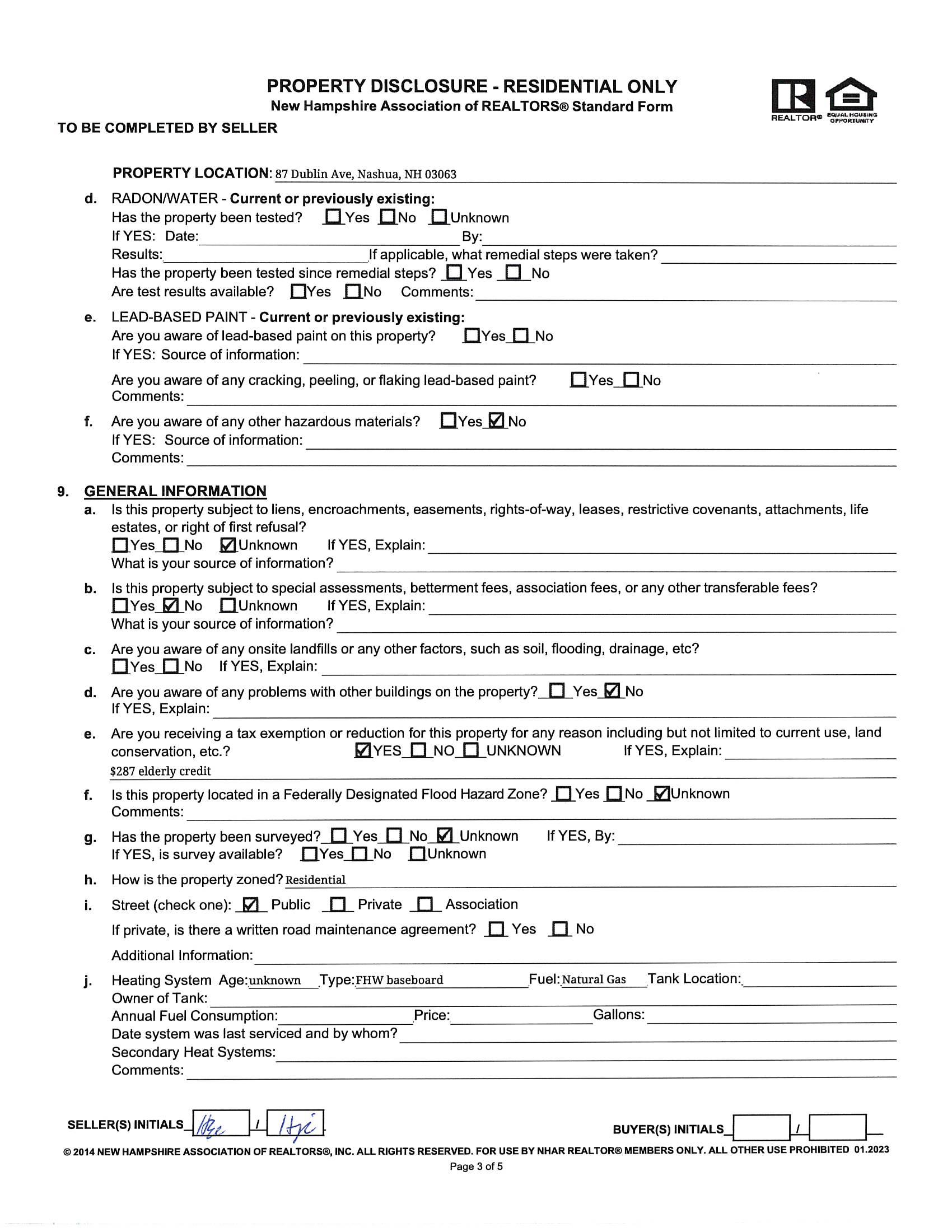
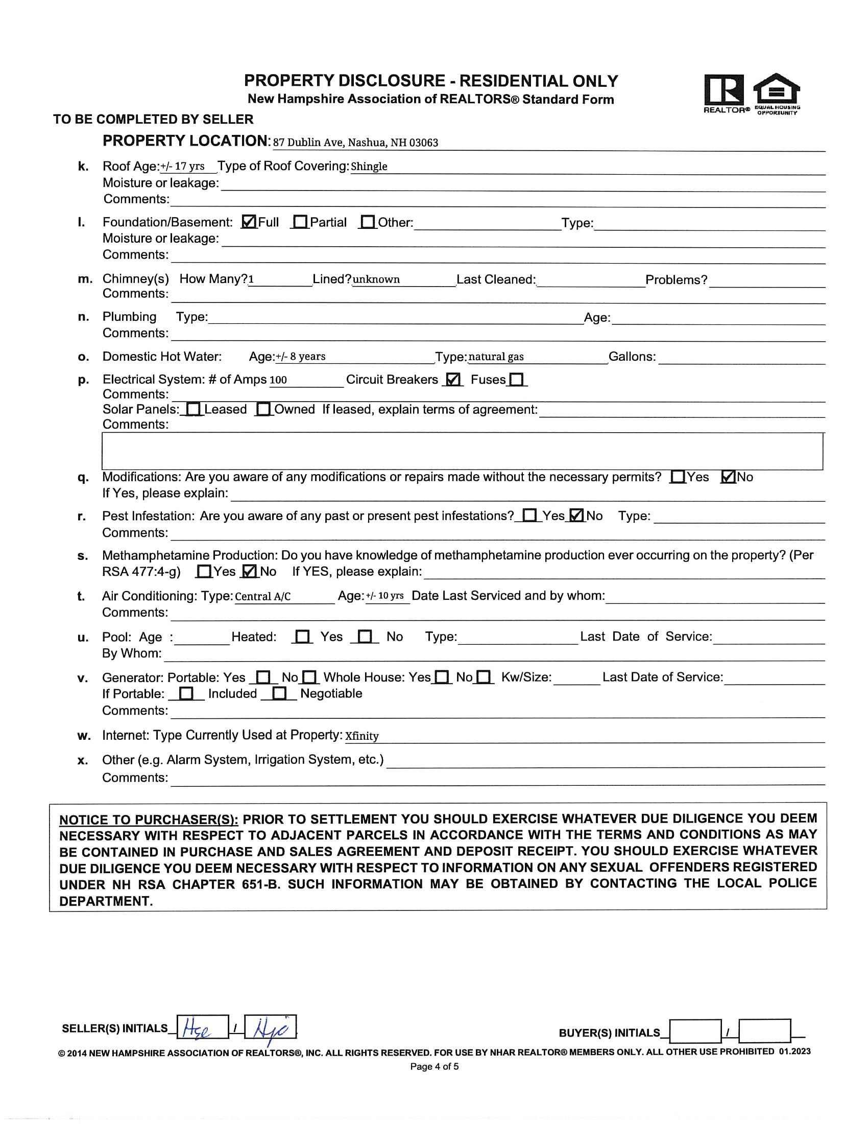
Heat: Baseboard, Hot Water
Fuel: Natural Gas
Cooling: Central AC
Water: Public
Sewer: Public
Electric: 100 Amp Circuit Breakers












Disclaimer:This information is believed to be correct but is subject to change and is not warranteed.
CARLSON, H EARL &







