SUMMER INTERNSHIP PORTFOLIO 2024

Page 1

harsh kumar | school of planning and architecture

selected works 2022-2024

portfolio

Language: English,

education

highschool ix-x cbse board, new delhi

2018-2020

intermediate xi-xii s.k.m. college, nawada(magadh university)

2021-2026

bachelor in architecture school of planning and architecture, new delhi

software proficiency

video editing

drafting da Vinci resolve

autocad

3d modeling

bim rhino 3d sketchup grasshopper

2016-2018 revit

presentation

photoshop illustrator indesign figma ms office suite

lumion vray enscape rendering design builder e-quest

simulation

experience & Workshops

Louis I. Kahn Trophy 2023-2024

msl trophy 2022-2023

solar decathlon India 2023-2024

AI ChatGPT 101 by growth school spakriti (insatlation society) coordinator google ux design by coursera

freelancing since 2020

+91 7992278046 RAJ257253@GMAIL.COM NAWADA, BIHAR
Hindi
content karwaan socio cultural transit hub 01 nirvana center for wellness and rejuvenation 02 qube avenue the commercial district 03 msl trophy 2022-2023 universal accessibility 04 lik trophy 2023-2024 diyara raja ka mehal 05 freelancing vector art and walkhrough 06

01. sem 04

karwaan: socio cultural transit hub

exhibition & AUDITORIUM BLOCK

SECOND FLOOR LAYOUT

FIRST FLOOR LAYOUT

GROUND FLOOR LAYOUT

sindhi
site:
camp bus stand, jaipur, rajasthan
east elevation
south elevation

02. sem 05

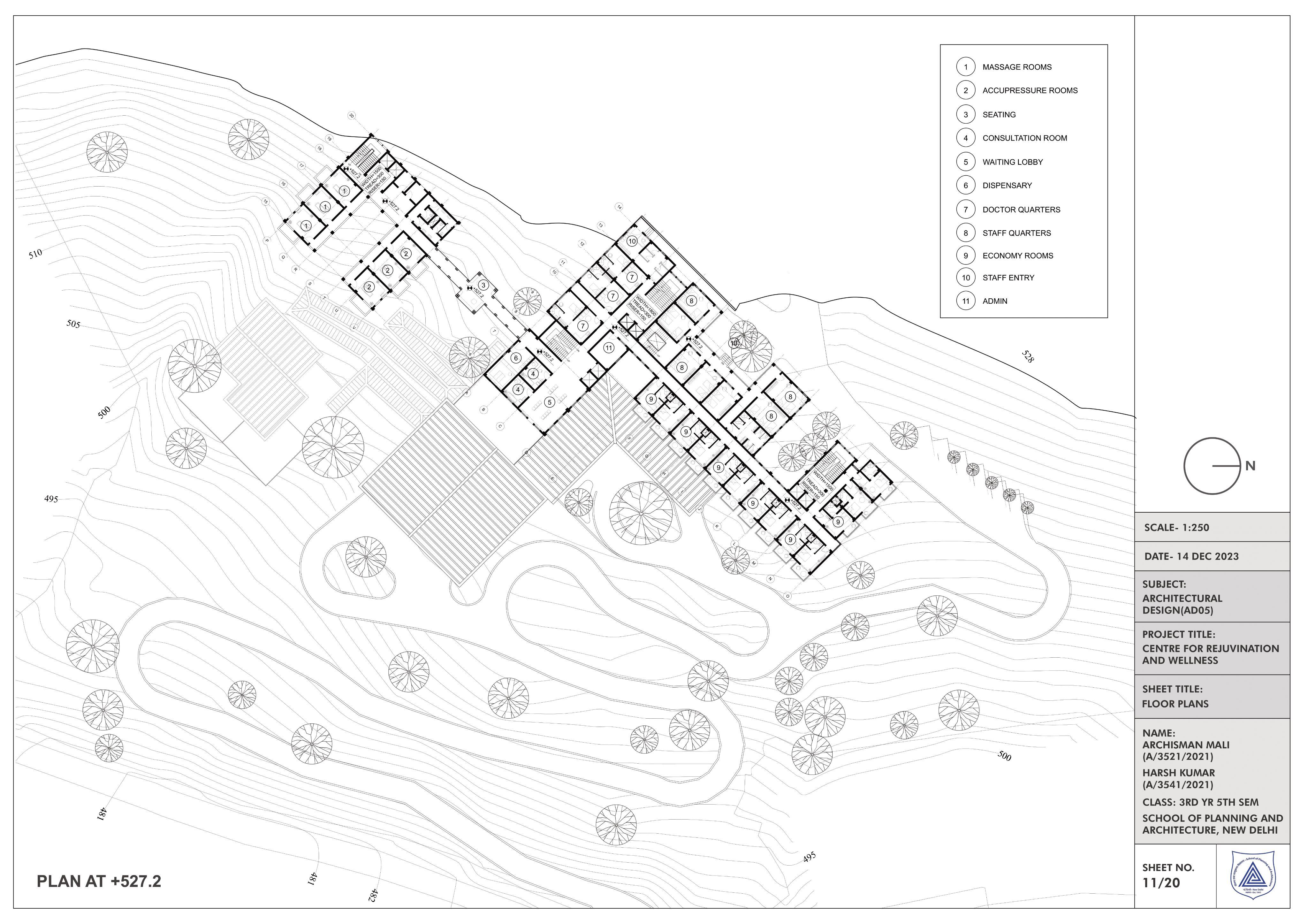
nirvana: center for wellness and rejuvenation

roof plan
plan at +530 plan at +520
section bb’
section aa’

03. sem 06

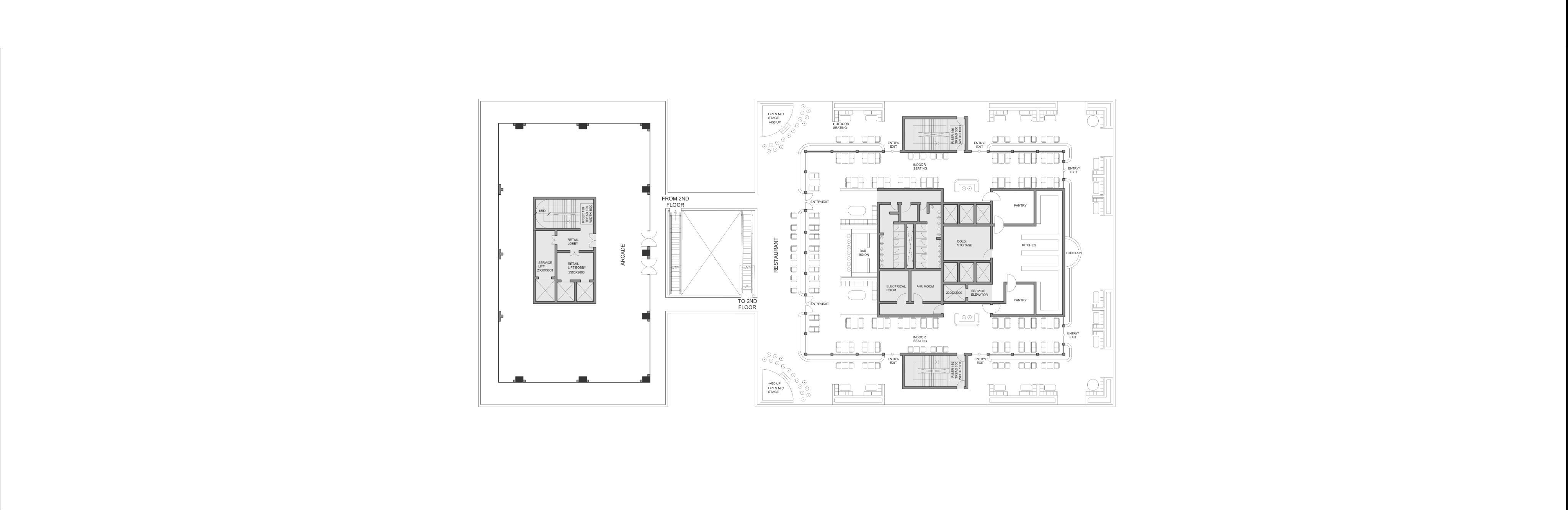
QUBE AVENUE:

THE COMMERCIAL DISTRICT

restaurant plan layout

office floor layout

1.ground coverage area

2.vertical extrusion for retail

3.two division for retail

4.vertical extrusion for office

restaurant plan layout

5.elevation of office cube

office floor layout

2022-23

04.
mohammad shaheer landscape trophy
before after
first floor plan second floor plan Louis I. Kahn Trophy 2023-24 05.
freelance 05.

https://drive.google.com/drive/folders/1UNwwLuwUJb4-1FqVwUqT13aUKM72xHhQ?usp=sharing

harsh kumar +91 7992278046 RAJ257253@GMAIL.COM

Turn static files into dynamic content formats.

Create a flipbook