PORTFOLIO

Harsh Kumar
School of Planning and Architecture, New Delhi
Selected works 2021-2024

ABOUT ME
As a fourth-year architecture student, I have honed my skills in design, technical drawing, and creative problem-solving during my academic journey. My portfolio showcases a diverse range of projects that demonstrate my ability to blend aesthetic vision with practical functionality. Through rigorous studio work and real-world internships.
_Education
2016-2018
Highschool IX-X
CBSE Board(92%)
2018-2020
Intermediate XI-XII
S.K.M. College, Nawada(84%)
2021-2026
Bachelor in Architecture
School of Planning and Architecture, New Delhi(8.3 CGPA)
_Software proficiency
2D DRAFTING
AUTOCAD
REVIT
3D MODELING
RHINO 3D
GOOGLE SKETCHUP
REVIT
GRASSHOPPER
BLENDER 3D
ENERGY MODELING
DESIGN BUILDER
E-QUEST
CLIMATE STUDIO
HONEYBEE
_Experience & Workshops
2023-2024
SPAKRITI Coordinator The Installation society
2024
Google UX Design by Coursera
2020-2021
Graphic Designer for FAK3 esp. and PNC esp.
2018-present
Freelancing in UX design, 3D visualization, etc
2024
AI & ChatGPT 101 by Growth School
VIDEO EDITING
DA VINCI RESOLVE
(Proficient) (Beginner)
ADOBE PREMIERE PRO
PRESENTATION
ADOBE PHOTOSHOP
ADOBE ILLUSTRATOR
(Proficient) (Proficient)
(Intermediate) (Intermediate) (Intermediate) (Beginner) (Beginner) (Beginner)
ADOBE INDESIGN
FIGMA
MS OFFICE SUITE
RENDERING
LUMION 3D
VRAY
(Proficient) (Proficient)
(Proficient)
ENSCAPE
(Intermediate) (Intermediate)
(Proficient)
(Proficient) (Proficient) (Beginner) (Beginner)
_Competitions
2023-2024
Louis I. Kahn Trophy by NASA India
2022-2023
Mohammad Shaheer Landscape Trophy by NASA India
2023-2024
Solar Decathlon India
Net-Zero Energy Building Challenge
2024
CP kukreja trophy 2024 by NASA India
2024
Treehouse 2024 by Volume Zero
_Skill chart
_Electives
SEM 03
ENERGY SIMULATION BY DR. BANDANA JHA
SEM 04
INTRODUCTION TO UX DESIGN BY AR. ANUBHAV GUPTA
SEM 07
INDUSTRIAL DESIGN by DR. PARAG ANAND
SEM 07
DESIGN STRATEGY & INNOVATION by AR. NIMESH PILA
English Hindi Magahi _Languages (Proficient) (Proficient) (Native)
CONTENTS








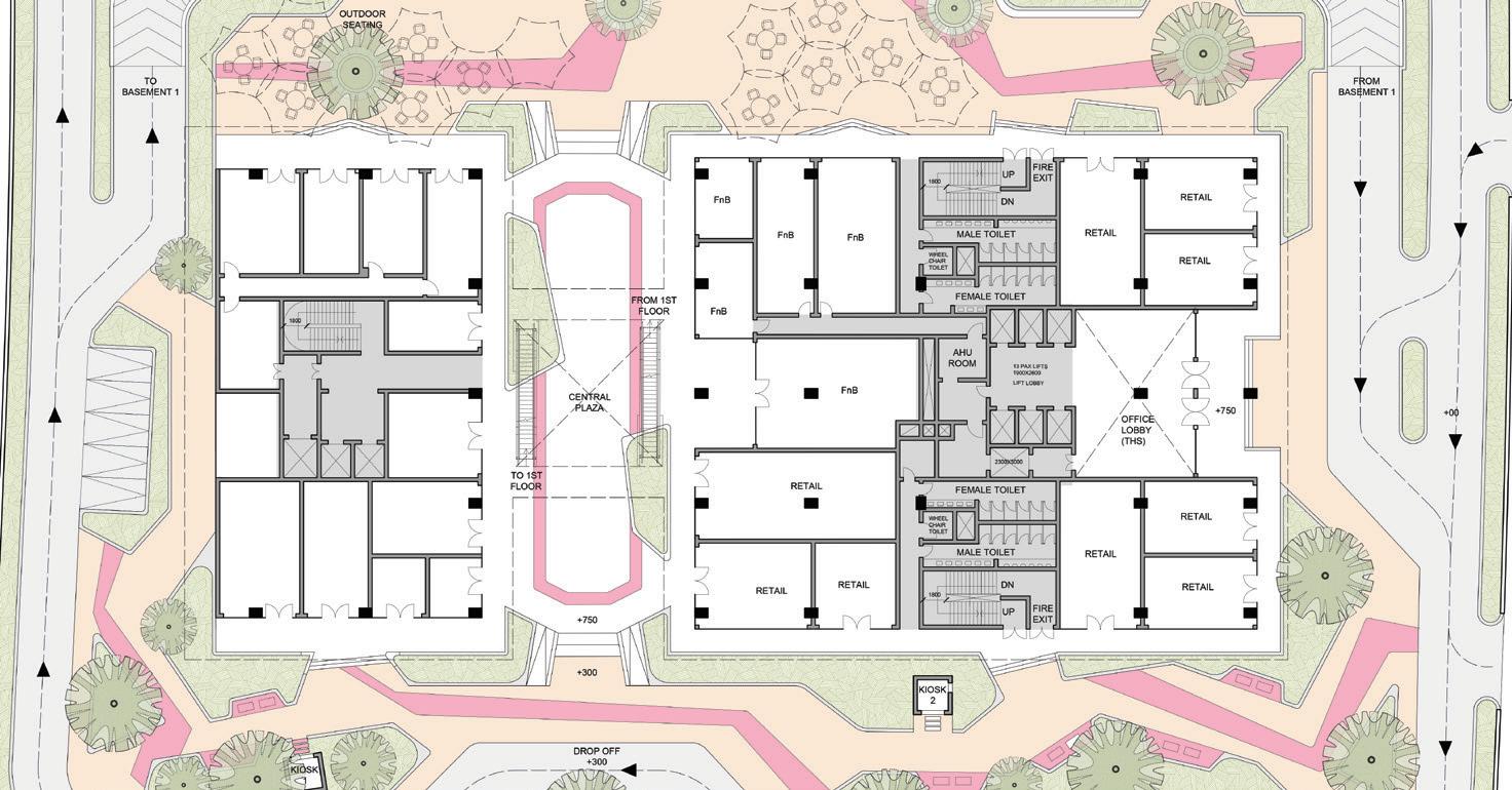
01 QUBE: HIGHRISE MIXED USE
The project is a modern mixed-use development integrating retail spaces on the lower three floors with premium office spaces above. The design emphasizes functionality and aesthetics, with distinct zones for retail and office use, ensuring seamless circulation and accessibility. The façade combines clean lines and warm tones, giving the building a dynamic urban presence. Sustainable features, such as energy-efficient glazing and green landscaping, enhance environmental performance. This project creates a vibrant commercial hub, contributing to the architectural and economic fabric of Noida.




01. MASSING OF BUILDING CONSIDERING SETBACK.

02. SEPARATION OF RETAIL AND OFFICE AREAS

03. PROVIDING THE ACCESS ACCROSS THE SITE

PLAN

A modern mixed-use building featuring warm-toned façades, dynamic verticality, and retail spaces on the lower floors seamlessly integrated with office spaces above.



A vibrant mixed-use building featuring cascading terraces, lush greenery, and a welcoming public plaza, blending retail spaces with office areas for a dynamic urban environment.

02 KIRAN: TREEHOUSE by
The word “Kiran,” derived from Sanskrit, signifies “ray of light” or “beam of light.” It embodies the essence of illumination, guiding and uplifting with a radiant presence, much like a solitary sunbeam filtering through a dense forest canopy or shimmering across a tranquil water surface. The design draws inspiration from this “Kiran”, aiming to recreate the enchanting play of filtered light in the surrounding forest and the gleaming reflections on the nearby water stream. space and a dedicated stepped library.

SITE & LOCATION

(19.54N, 73.75E)
The site is located in the Shendi region of Maharashtra, near a dam. Several small water streams flow from the dam, creating a serene and picturesque setting—an ideal location for a tranquil treehouse retreat.

Elevated amidst the canopy, the treehouse blends geometric precision with natural harmony, offering a seamless connection to its lush surroundings & the filtered sunlight.
CONCEPT
Nestled among tall trees, the structure will allow sunlight to filter through the canopy and enter the house through skylights, floor to ceiling windows and a “Jali”. The light reflecting off a wall of glass blocks resembles the gleaming of water, adding an ethereal quality to the space. Natural materials like locally sourced wood harmonize the treehouse with the forest.



1. A simple geometric form establishes the core structure.
PLAN & SECTION


EXPLODED ISOMETRIC VIEW
TIMBER STRUCTURAL MEMBERS
WALL ASSEMBLY OF TIMBER PANELS SUPPORTED BY TIMBER FRAMEWORK
SKY-LIGHT FOR STAIRWELL
TIMBER ROOF
STEPPED LIBRARY
EXTENDED TIMBER PANEL FOR SHADING
WOODEN ‘JALI’ FOR FILTERED SUNLIGHT
TIMBER WINDOW FRAME SUPPORTING GLASS SLIDING DOOR
BALCONY GLASS BLOCKS FOR REFLECTED SUNLIGHT ENTRANCE

The design embraces filtered sunlight, creating a warm and inviting ambiance while seamlessly blending with the natural surroundings. Extended timber panels and sustainable features enhance the space’s harmony with nature

03 Zenora: Wellness and Rejuvenation Centre (Solar Decathalon India 2023)
Introducing **Zenora**, a luxurious wellness center set against the serene hills of Sikkim. Zenora is designed to offer an unparalleled sanctuary of tranquility and rejuvenation, integrating cutting-edge sustainable practices to compete in the prestigious Solar Decathlon India NZEB competition. With a focus on blending opulence with sustainability, this project aims to create an environmentally conscious retreat, harnessing solar energy to achieve net-zero energy consumption while providing a lavish, immersive experience for its guests.


Foundational Form with a stable base.
FLOOR PLANS

Adaptation to Terrain to integrate additional blocks.


Separation of spaces for better ventilation




Showcasing a blend of modern elegance and serene functionality, the front view of the wellness center features high arched windows that invite ample natural light, providing a tranquil atmosphere and breathtaking views of the surrounding hills


Nestled against the stunning valley of Pchekhani, the all-day dining area offers expansive views and a seamless blend of indoor and outdoor environments, featuring outdoor seating with a cozy fire pit for a truly immersive dining experience.


Rotor size - 5.5 m tall , 3.1 m diameter
Swept area - 16 sq m
Operating wind speeds - Cut in at sustained 4.5 m/s, safety cut out at 25 m/s
Rotor Speed - 100 - 260 RPM
Mast - roof mounted (6m tilt down) & ground (15-18m tilt down)
Blades and spokes - carbon fibre


The site experiences abundant amount of wind flow for the duration of the entire year This has encouraged the utilization of the wind potential of the site to the maximum possibility. While in the winter months the onset of proper wind movement allows the effective utilization of wind potential for harnessing energy to the maximum possiblity , but with the onset of the summer months, the production rates falls due to which the total harnessed energy goes down a formidable amount.





CONSTRUCTION AND MATERIALS


2024 NASA India Community space Kolkata, West Bengal

04 VISVIVA : COMMUNITY SPACE
The project aims at creating safe community spaces which instill a sense of belonging and harmony within the residents. Replicating this design module along the entire periphery of the factory will provide ample safe community spaces, thus preserving the site’s cultural heritage and fostering community pride.
















_residential area










CONTEXT SENSITIVITY: Installation of the Howrah Bridge, one of the many achievements of the Jessop Company

UNIVERSAL ACCESSIBILITY:
Wooden ramp as the major access for upper level
SUSTAINABILITY: Reuse of steel from factory
WELL BEING: Dedicated play area for kids ensuring safety
AESTHETICS: Installation helping relieve the visual imposition of the black facade
SENSORY ELEMENTS: Incorporation of interactive installations like pipe railings producing musical notes when struck
PROMOTING ARTS: Amphitheater for local music academy performances
SENSE OF BELONGING AND IDENTITY: Involvement of community in the construction of modular seating
STRUCTURAL SYSTEM: Reused structural steel members supporting the wooden deck
SOCIAL GATHERING: Traditional concept of seating around trees adapted promoting social gathering


Features steel structures inspired by the iconic Howrah Bridge. The red and white beams, combined with gracefully curved staircases, create a dynamic and inviting environment for community activities.
2020-24
Harsh Kumar

05 Miscellaneous: Working Drawing, Installations, Vector art & UI/UX

Within this section lies a collection of work that embodies my architectural journey. You’ll discover the meticulous working drawings from my 7th semester studio, reflecting my attention to detail. Additionally, there’s a glimpse into “Spakriti,” the vibrant installation society where I played a pivotal role. Explore my digital art ventures, including vector illustrations and innovative UI/UX designs, each piece showcasing my diverse skill set. WD PORTFOLIO









VECTOR




UX DESIGN PROJECT












