Skip to main content

Portfolio

Page 1


14 THE ARTery | GEORGIA TECH ARTS SQUARE 04 FRONT YARD | GEORGIA TECH VISITOR CENTER

30 SHIFT | A GREAT LAKES COMMUNITY CENTER 22 THE EMBRACE | TIME OUT YOUTH + TRANSITIONAL HOUSING

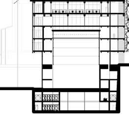
1PARKING

2BIKE

3SWAG

4VISITOR

7EXHIBIT SPACE

View Point:

EXTERIOR ATRIUM

Exterior performance and gathering space with water collection vault underneath.

WATER COLLECTION VAULT

THE ARTery | GEORGIA TECH ARTS SQUARE

2023 | Portman Studio | First Place

Location: Atlanta, Georgia

Team Members: Carson Harris & Harrison Novak

View Point:

PERFORMANCE HALL FLYSPACE

The fly space for the performance hall becomes a jewel box at the entry level. Revealing the catwalks and lights for the performance hall. These catwalk-like elements are then reflected in the exterior circulation corridors that face the Randall Brothers Building.

View Point:

Excavated double height recital hall and rehearsal space. REHEARSAL AND RECITAL HALL

View Point:

Existing Randall Brothers Building to be adapted into a market space with booths for local retailers and students to sell merchandise and food.

RANDALL BROTHERS BUILDING
TECH SQUARE
MIDTOWN
DOWNTOWN
ENGLISH AVENUE
MARIETTA ARTERY
SCIENCE SQUARE

Who is The Artery for?

Georgia Tech students, faculty, and under served surrounding neighborhoods

What is The Artery/Art?

Skilled or intentional expression. A space to define skills and find new ways to express yourself or your intentions.

What is The Artery/Art?

Providing access to facilities and arts related technology for interdisciplinary collaboration

250,000 sf Office/ Other

200,000 sf Hotel

WALLACEST.

RETAIL/STUDENT DINING

RETAIL/MARKET

MEDIA / MAKER STUDIOS

FILM/PERFORMANCE

HOTEL/OFFICE
NORTH AVENUE

Offices:

AR/VR/CONFERENCE

Conference/Gallery space is available for interdisciplinary groups to meet and facilitate initiatives + programs to educate community on arts technologies. This space opens up to an exterior corridor that connects to a public pedestrian bridge that takes you to Science Square.

Offices:

This entry level serves as a public gallery space with views into the fly space of the performance hall. GALLERY ticketing

Enter into the gallery/lobby space to purchase a ticket before circulating down the escalators to the performance hall. TICKETING

Offices:

This space seats 400, including the balcony level, and is utilized for student and community performances PERFORMANCE HALL

For our cladding strategy we are proposing a perforated metal panel rain screen. By providing larger perforations at panels that receive less light and smaller perforations at panels that receive more light, we create a facade system that shades the exterior walkway and optimizes natural lighting that can bleed into the interdisciplinary gallery spaces.

large perforations | less sun exposure

small perforations | greater sun exposure

perforations

FRONT YARD | GEORGIA TECH VISITOR CENTER

2023 | Arch 6039 (Advanced Studio)

Location: Atlanta, GA

Instructor: Howard Wertheimer

Located on North Avenue, directly across from historic Tech Tower & Tech Green this Visitor Center is the new front door to campus. It serves as a apace for visitors, current students, & Alumni to learn more about Georgia Tech’s campus, history, & future goals. It is a hub for information & education, bridging the gap between potential, current, and past students; connecting them back to their campus

BOBBY
HAMPTON INN
DANIEL GUGGENHEIM BUILDING
BOBBY
HAMPTON INN
DANIEL GUGGENHEIM BUILDING

1PARKING

2BIKE PARKING / BIKE RENTAL

3SWAG SHOP

4VISITOR DROP OFF

5PASEO

6EXTERIOR PATIO

7EXHIBIT SPACE

9VISITOR INFORMATION DESK

11CLASSROOM/ORIENTATION

13ACRCADE

14AMPHITHEATER

15LOBBY

16OPEN OFFICE

18SOLAR PANELS

19COFFEE

20ROOFTOP GARDEN

INSPIRE APARTMENTS

7EXHIBIT

THE BREAK CONNECTION TO EXISTING

- Proportions of existing structure

- Preservation of the space frame

- Interaction with the water

- Reuse of existing material

The proportions of the existing building are kept, but broken into two linear bars.

Each bar has specific programmatic uses.

One bar is shifted to physically touch the water of the river, while the other bar occupies half of the space frame.

THE SHIFT

SHIFT | A GREAT LAKES COMMUNITY CENTER

2019 | Arch 4520

Location: Detroit, Michigan

Team Members: Claire Hicks, Wilson Marshall, Katherine Massa, Sarah Nail, & Harrison Novak

An adaptive reuse design using the Brodhead Armory’s existing materials and longitudinal proportions to create a single mass that appears as two shifted bars. The two bars foster a renewal for the city’s water and connect the community of Detroit to the river through various experiences where the water interacts with the building. Just as water provides rejuvenation, Shift is designed to bring the vibrant people of Detroit through a path of reflection to re-imagine the future.

THE PATHS

The Shift creates two converging paths.

A path for the people coming from the surrounding neighborhoods.

A path for the water flowing from the river through a canal.

VISUAL

Interaction with water

- Gallery

- Offices

PHYSICAL

Interaction with water

- Classrooms

- Walking Pier

SECTIONAL QUALITIES

QUALITIES

Varied conditions of Interaction

- Path (Who)

- Water (What)

- Building (How)

Offices:

OFFICE

Office space is available for the Great Lakes Commission to meet and facilitate initiatives + programs to educate local citizens on sustainable water issues.

EXHIBITION SPACE a

Exhibition Space:

Preserved Brodhead armory artifacts, such as frescos and wood carvings by David Fredenthal, will be displayed in the exhibition space to commemorate Detroit’s naval history.

View Point:

VIEW POINT

A curved glass mezzanine level allows views of the Detroit River + Belle Isle as well as the gallery space below.

Water Feature:

WATER FEATURE

Water, collected from the city, flows beside the exterior path. It then travels through small channels under the path as it is filtered, before cascading into the river. Visitors learn about the importance of clean water through this exposed filtration system.

Classroom:

Classrooms, labs, and study spaces are available to be used by the Great Lakes Commission for implementing programs that educate the public on water issues faced in Detroit, the United States, and around the world.

Auditorium:

An auditorium is available to be used for educational lectures, community meetings, and conferences. Being fully submerged in the water, the space offers an immersive experience with the Detroit River – allowing light to diffuse through the water and create reflections throughout the space.

As a part of the adaptive reuse strategy, we propose re-purposing the amroy’s current limestone cladding. By kerfing the stone with a circular saw and breaking off the excess, we create a curved and textured modular cladding system. This system optimizes natural lighting within the building by filtering direct light, capturing indirect light, and adjusting the aperture density to suit the ideal lighting conditions for each program space.

TIME OUT YOUTH CENTER TRANSITIONAL

Apartment and dorm style housing on upper floors. Emergency housing and home away from home located on main floor.

Center used by youths ages 11 to 18 in addition to staff. Youth spaces located on lower floors, offices and medical suite located on upper floor.

View Point:
View Point:
HOUSING

THE EMBRACE | TIME OUT YOUTH + TRANSITIONAL HOUSING

2018 | Arch 3510

Location: Charlotte, North Carolina

Team Members: Kylie Walker & Harrison Novak

Embrace encompasses three desires from Time Out Youth: green space, safety, and individual spaces that allow the youth to fully be themselves. The proposal centers on a programmed green space in which the two buildings act as an urban wall embracing and protecting the site. Details to further encompass their vision are a connection underground to ensure the safety and dignity of the youth, the Home Away from Home, and the re-imagining of a basement hideaway with the double volume Drop in Space that is embedded in the site.

LOOM CHAIR | PRODUCT DESIGN

2019 | ARCH 4240

Location: Clemson, South Carolina

The loom chair is a plywood chair that uses loom techniques to capture a specific aesthetic while also maintaining a high level of comfortability. The chair is made of plywood and one continuous piece of rope. This chair went through two mock up stages before the final prototype. Many adaptations were focused on the back of the chair to add comfort and structure.

Holes for rope follow ergonomic curve for comfort

The initial mock up had many issues -- Scale chair down -- Add structure to back of chair

Things to consider -- Heighten chair back -- Angle chair back

Grooves in plywood for rope to sit in

Joints glued and hammered together

Things to consider -- Add grooves at the top of the chair for the rope to sit in

Mock Up pt. 1
Mock Up pt. 2
Final Prototype

FIBERGLASS | WALL

2019 | Research Internship

Designer: Joseph Choma

Team Members: Sarah Nail, Harrison Novak

This project was an exploration of fiberglass as a folded composite material. We began with a simple folded tile by David Huffman and researched how this pattern could become a wall system with structural depth.

FIBERGLASS | COLUMN

2019 | Research Internship

Designer: Joseph Choma

Team Members: Sarah Nail, Harrison Novak

This project further explored fiberglass as a foldable composite material.

Chalking Pattern

For this collection of signs I matched the formating to the room signs. This set of signs looked at different percentages of women graduating, working, and with parter positions in the architecture field.

WOMEN IN LEADERSHIP | INSTALLATION

2017 | Art 3090

Location: Clemson, South Carolina

Women in Leadership is an exploration of what it means to be a woman in the architectural field. Through the use of satire I created a collection of signs that make a statement about how an individuals gender affects their ability to move into leadership roles in the architectural field. This collection of signs speaks to the gender gap within the profession, particularly partner/principal positions.

ADMINISTRATIVE HALLWAY

https://eqxdesign.com/blog/2017/2/14/eqxd-metrics-key-findings-from-the-2016-equity-in-architecture-survey

Symbols can be simple and still have a large impact. I wanted to use symbols to convey a message about women in leadership roles.

STAIR SIGNAGE

By juxtaposing signs that used typical male and female symbols I created a confrontation with gender norms in relation to leadership roles. ELEVATOR SIGNAGE

Modera Gulch | Multi-Family Residential

2020 | Cooper Carry Architects

Location: Nashville, Tennesee

This project is a fteen story 378 unit apartment building in Nashville. This project utilizes concrete podium construction with Prescient post and beam structure from levels six to the roof.

Site Visit Photo - Corner of10th and Division

One Bedroom Unit Plan

MUSC Health | Clinic Upfit

2018 | Stubbs Muldrow Herin architects

Location: Daniel Island, South Carolina

This 4,700 square foot clinic is located in a mixed use project on Daniel Island. The program calls for exam rooms, administrative offices, a break room, nurse station, and reception area. The existing tenant space was an unusual shape and had large windows located along two of the walls, however by locating the offices by these windows to allow in natural light and the exam rooms towards the interior to provide privacy the irregularly shaped space began to find its program.

Turn static files into dynamic content formats.

Create a flipbook