
5 minute read
week 10 Design for health and sensory experience audit
Sensory richness refers to the variety of sensory experiences that individuals can experience while interacting with various objects and materials.
Based on stage 1 analysis, a sensory audit of the study location, including visual, touch, smell, sound, and taste.
Advertisement
Sensory audit
Use of colour as a vision sensory for a cycle lane, murals, art market as well as street art

Water features as to promote the play and touch

Change of level throughout site is more interact with body movement
Farming views towards listed building and green spaces
Creataing green bu ers accross busy streets to protect from noise
Flexible Public open spaces in order to facilitate open maarkets and community activi ties as to tackle the smell sensory


Di erent texture paving to facilitate easier access for visually impared.

3.1 Access and connections to existing streets
3.2 The primary internal street layout or network of mobility.

3.3 Blue / Green infrastructure / Open space network
3.4 Location of centers / non-residential
3.5 Townscape / city image structure
3.1 Access and connections to existing
the site located in Oxford, United kingdom the site located in Jericho, Oxford boundary of oxford


The Site
The proposed site in Jericho, Oxford, spans 4.23 hectares and is located between Woodstock Road and Walton Street. It is a popular educational area for the University of Oxford, with residential and student housing playing signi cant roles. The site's terrain is at, but a gentle slope towards the Oxford Canal is considered on the west side, about 5 km away.
Access and connections to existing streets

Site and Primary route bus stop
Rootedness and connectivity are essential aspects of human interaction of residential
Secondary arterial road primary arterial road the green network
The arterial street is connected to Woodstock road.
The arterial street is connected to Walton street
Rootedness and connectivity are essential aspects of human interaction of Universities
Primary route structure
The primary arterial, serving as a secondary arterial, connects Woodstock Road and Walton Street, aiming to maximize both qualitative and quantitative pedestrian interconnectivity, ideally serving as the major site connection.
Connections
Existing Street
The proposed master plan will be realized by retaining the existing roadway on site, providing a sense of rootedness and visual and physical connections to the site. The existing street will be welcomed by the principal route and de ned by the secondary arterial.
Neighbourhood Context
The planned setting is interconnected with each other and has its own relationship of centres of activity, with a distance of 15 minutes walk.
The plan layout, on the other hand, is o ered in one character of courtyard spatial with the location of entrance point is fronted.
The pedestrian walkway is a crucial element in achieving zero net carbon emissions in a planned site. Its interaction with other footpaths enhances the master plan's connectedness, utilizing di erent urban tissue resources. Approaches are primarily from the institutional sector and the residential-commercial area region to provide users with opportunities for access. Scale cul-de-sac

The goal is to enhance user security by limiting access to residential areas to one in and one out.
Primary road
Outside the masterplan design, the primary route linking the main road prioritises pedestrian and bike safety.


Peri centric
The route will be adjusted to be the fastest to avoid heavy tra c and to promote the master plan with various routes and angles.

Creative factory renovation ecological landscape working + productive landscape houses and blue/green infrastructures community open spaces transitional landscape


+ Productive landscape
Blue / Green infrastructure / Open space network
Green networks water inlet distribution water inlet distribution outer of materplan
The River Thames is used for water supply during the dry season, along with waste
The rainy season is the time of year when natural precipitation supplies water.
Leisure waterway Storage + Event lawn Filtering pond Water buffering space water sewerage outlet
The term "river revitalization" refers to the process of restoring and improving the health and beauty of a river.

The water activation space is an important place for a variety of activities.
The space designated for water puri cation.


The phrase "water bu ering space" refers to the region that acts as a barrier between water and other
Scale 1500
0 0.5km residential grain involves establishing a suitable connection with the existing street patterns, sizes, and proportions in the local area. commercial grain mixed use grain low density residential high density residential low density commercial high density commercial low density office low density education
Built form is the three-dimensional arrangement of buildings, blocks, roadways, and spaces that serves as the foundation of design code and varies greatly depending on area type.
New urban construction should be designed to complement the current grain pattern in an urban block/area.



Compact, walkable development forms are being promoted to enhance well-being and placemaking.
Memorable characteristics or groupings of buildings, places, uses, or activities that foster inclusion and togetherness.

Well-designed houses and structures are functional, accessible, and long-lasting, with interior and exterior areas that promote the health and well-being of their occupants and everyone who visit them.
A compact, walkable community reduces energy consumption, promotes health, and e ciently uses land. It boosts CO2 absorption, preserves ecosystems, minimizes ood risk, and reduces warming and air pollution, thereby promoting adaptation and preserving natural ecosystems.



Rapid social and economic change, such as long-term expansion or diversi cation in rural communities or town centres, enables well-designed structures and spaces to support a variety of uses throughout time.




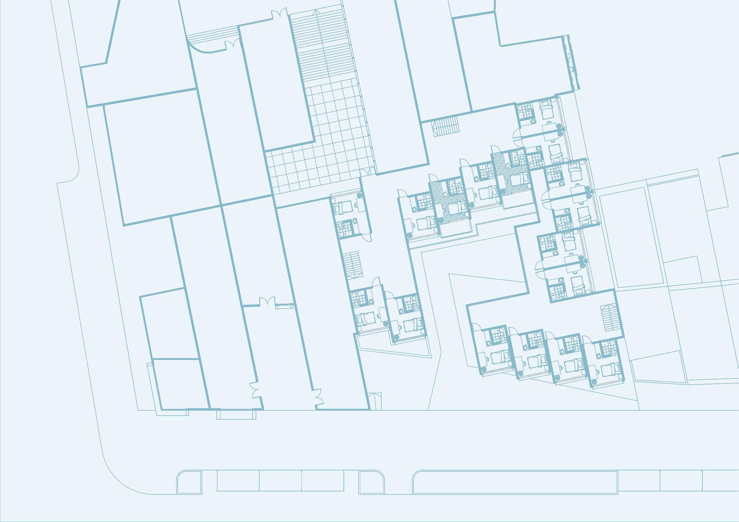
Residential Design Commercial Design Mixed Use Design


The Building Base Windows
The ground oor may be redesigned to enhance its connection with the street, using contrasting materials and incorporating active uses.







Window design depends on area character, with city centres allowing fully glazed façades, while others may limit glazing to 35%.
Detailing
A region's identity can be distinguished by the use of a speci c type of brick, in uenced by its color, material quality, and environmental in uences.
garden create more harmony in the neighbourhood


To provide high-quality, convenient, and useful spaces, well-designed buildings connect with their surrounding exterior spaces, including private and shared areas, and parking. These places are intended to adapt to the local character and, if feasible, should include plants. The size, form, and location of an exterior amenity area may be established by taking into account the building's setting, access to public and open spaces, and the planned use of the space.
Sections
scale 1 : 500 solar panel placed scale 1 : 500 connected to a strategy to enhance social interaction. scale 1 : 200 communal area communal area pedestrian communal area
Residential structures with varying heights and levels are designed to encourage interaction.
Sunken gardens o er a range of feelings and appealing locations.
The roof garden was installed to improve sustainable practices.
The pedestrian is pleased with the completely accessible path with a bicycle lane.
Water features and the water ltration area.
The water collecting and storage method.
Theresidentialapproachtothefocal pointiscrucialintermsofattractiveness.
Theconnectionbetweenpublicspace andtwodi erentlandusesiscrucial.
Focusesonimprovingconnectivity between o ces, commercial areas, andeducationalareas.
Thelocationiseasilyaccessiblefrom publicparkingspaceswithina2-minutewalk, anditalsofeaturesasecureroutestructure.


A vista is a picturesque view or panorama, commonly seen at mountain peaks or rest stations, that distinguishes between two elements of an environment, such as if an arch is incorporated into a location.
The focus is on the intricate details of each structure, rather than the road through it and the end of the view.

The educational area is easily accessible and connected.
The approach from the commercial area aims to provide facilities and amenities.



