




Our Team








![]()













Concept
Program
Library/Atelier
ConceptBoard
MaterialsBoard
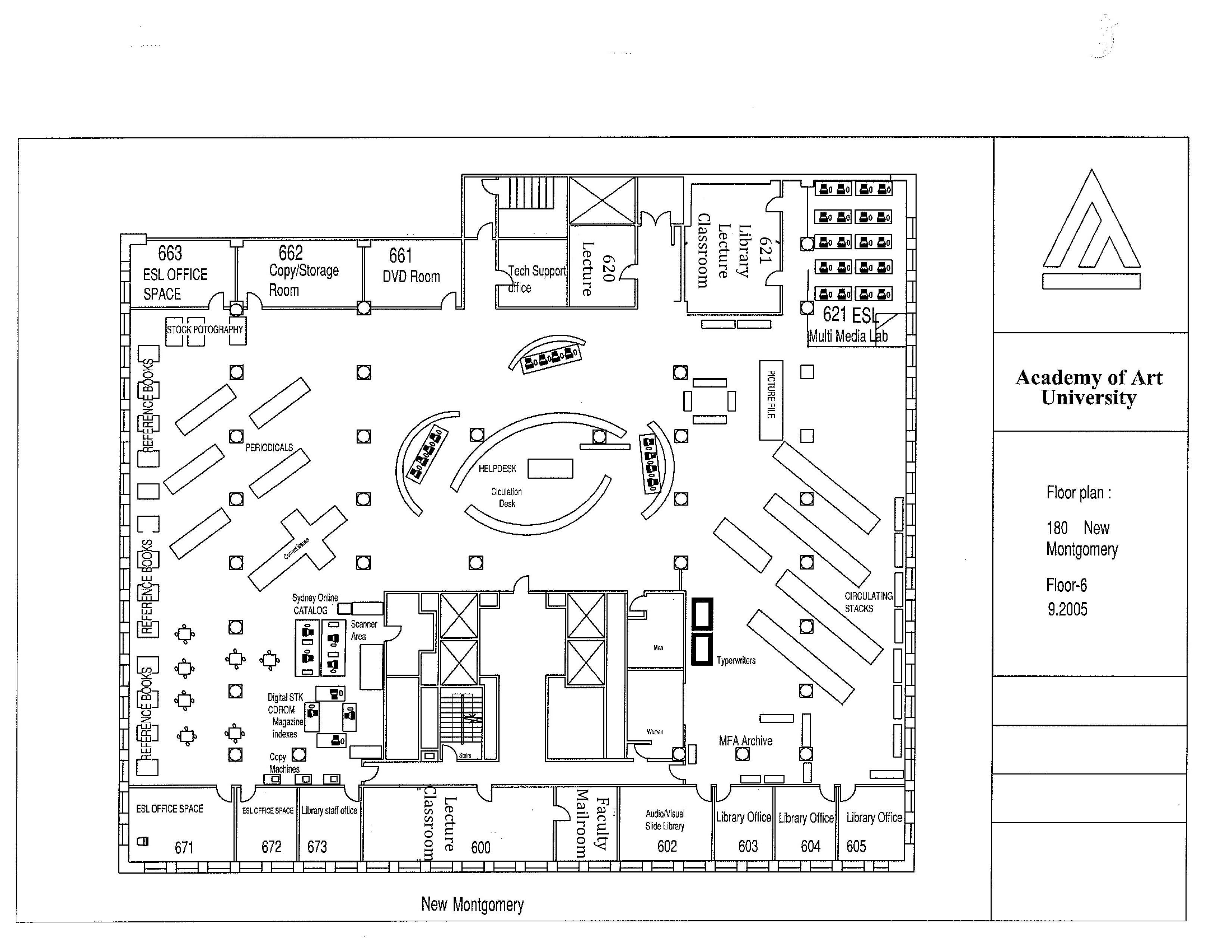
FurniturePlan
Elevation
Renderings


This commercial design studio challenges students toredesignandreimaginetwocampusbuildingsthat needimprovedfunctionality.Ourclasshasgiventhe projectthreecorecomponents.Thecomponentswill focus on Education, the Online and Onsite Community,andPublicRelations.
The mission is to create a dedicated space for student’s educational needs with a seamless integration of online students while safely increasing engagement opportunities with the public.
Education| Community| Public Relations



Thispresentationhasbeenpreparedwithan interactivecomponent. PleaseuseyourcellphonetoscantheQRCode. Thecodewillallowyoutoaccessadditional informationaboutthepresentation. Enjoy.




Thebuildingsarebothnestledinthebusyfinancialdistrictof downtownSanFrancisco.AAUroughlyhasanenrollmentof 7800students.AAUhasbeenanearlypioneerofonline learningandhasbeenofferingonlinecoursessince2003. BecauseAAUishometostudentsaroundtheworldtheyhave chosentofocusoncreatingspacesthatencouragebuilding community.


OurProcess: StrategicPlanning ConceptDevelopment Design Increasedengagementfor onsiteandonlinestudents
Client Needs:
TotalRenovation
LackofSunlight




Study/Collabspaces Increasedawareness Sponsorships
Highdisposableincome
Fewercoffeeshops
Littleentertainment
Neighboringgym(withnobar)

Currentspaceisdark,outdatedandunderutilized.


Entryway
CirculationDeskandLibrarianOffice
ComputerLab
LibraryStacks
Classrooms
ScreeningRoom
Offices














CorkFlooring FeltWallPanels

ALWMoonRing











PolishedConcrete

CalacattaGoldMarble MapleSlatsSpicedWalnut Maple
ALWOptimaPendants


BlackMatte

WhitePolishedConcrete
TarkettGeoknitTileCarpet
PorcelainSubwayTile

AntiqueBrass
BiophilicDesign

TheLoftisdividedintotwodistinctzonesfornoise considerations.

Breezeway
CirculationDeskandLibrarianOffice
ComputerLab
Cafe
LibraryStacks
PrintingandStorage
HuddleandTutorZone
WellnessCenter
Classrooms
ScreeningRoom
CollaborationZone
DraftingRoom
ClubZone
CatalogingandDigitization









WhiteConcreteFlooring
Maplewoodcladding
BiophilicGreenWalls


Concretebacksplash
WhitePorcelainSubwayTiles
MapleCounterwithMarbletop




SustainableFeltpanelwalls
Maplewoodcladceiling
CorkFlooring














MAINENTRANCE
JEWELBOX
THREADS
RECEPTION/COATCHECK
CAFE
INFORMATIONDESK
RADIOSTATION
DEPARTMENTEXHIBITION
FOYER
LOUNGEAREA
THEATER
VIPROOM
MEZZANINE/SOUNDBOOTH

UBERLOUNGE








RedUpholsteryFabric
MetalSeparation














CustomMetalHangers


TintedGlass
PolishedConcreteFloor













wheretheinteractivenessbegin.



Whatwe’veallbeenwaitingfor.

Wherethehard-workisshownoff.





Hardware/software



Interactive Holographic3D modelsfromthe tipofyourfinger.

Polymer nanofilmglued toglass.

















= 3DHologramFanVideoWallSolution OfferedbySuperbHolo Company#2


https://www.superbholo.com/3d-hologram-video-wall/

3DHolographicDisplay(solo&wall)
3DHolographicLiveStreaming
SmartV3DModeller
Solo&WallHolographic


https://hypervsn.com/holographic-live-st Company#3

polymernanofilm, 90%transparency, nohardwarerequired, noglueneeded, attachtoglassfor installation

http://www.htuled.com/









