BIM-Revit Project

Page 1


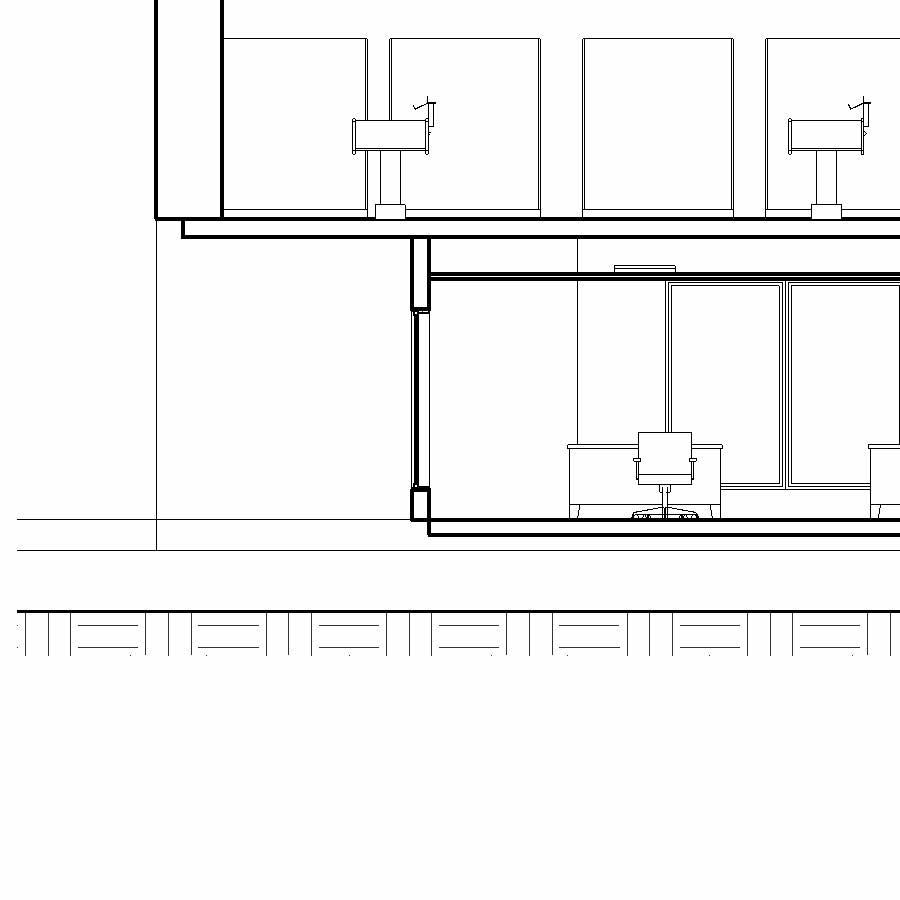
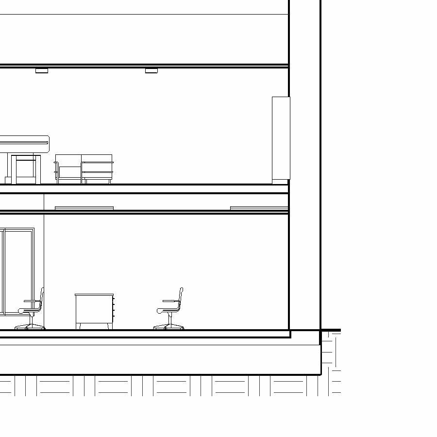
The Black Barn is located in the Netherlands. It is in a busy area near the streets and also on a historic development with many wooden black facades on all sides.

Turn static files into dynamic content formats.

Create a flipbook
Issuu converts static files into: digital portfolios, online yearbooks, online catalogs, digital photo albums and more. Sign up and create your flipbook.