Mills Peninsula Medical Center + Valley Specialty Center

Page 1

MILLS PENINSULAMEDICALCENTER

BURLINGAME, CA

BUILDING METRICS:

NUMBER
FLOORS ACUTE
PROGRAM
OF
CARE HOSPITAL 6 + LOWER LEVEL
NUMBER
HOSPITALBUILDINGAREA
OF BEDS
450,000
241
MEDICALOFFICE BUILDING AREA
GSF
200,000 GSF
H o s p i t e I M i R a p a c a m a n I st Pr o j e c t P e n i n s u a 2 8 J u n e 2 0 0 5 C o n s t r u c t o n D o c u m e n t s Lower Level Level 1 A r c 11 I o c t u r e P a t› it ‹ n g ï n e r i o r D e s ‹ g n ANSHEN+ALL
2 8 J u n e 2 0 0 5 C o n s t r u c t o n D o c u m e n t s
Family Birthing Center
R e p I a c e m e n t H o s p i t a I M i s Pr o e c t P e n i n s u a
Level 2 RPT/OT/ST Staff
Ar c h ! t e c t u r e PI a n n i n g I n t e r o r D e s i g n
Level 3
Behavioral Health ea 32 Bed Skilled Nursing Facilities
2 8 J u n e 2 0 0 5 C o n s t r u c t o n D o c u m e n t s
35
Bed Acute Care
Level 4
R e p a c e m e n t H o s p t a I M i s Pr o e c t P e n i n s u a
35 Bed Acute Care 35 Bed Acute Care Level 5
% .Ro
35 Bed Acute Care
Level 6
Ar c h î t e c t u r e PI a n n i n g I n t e r o r D e s i g n
35
Bed Acute Care
NORTH BUILDING ELEVATION
s - P e n i n s u I a M i I I 2 0 J u y 2 0 Q 4 ANSHEN+AL LEN
SOUTH BUILDING ELEVATION EASTBUILDING ELEVATION WESTBUILDING ELEVATION View of Main Entry Facade

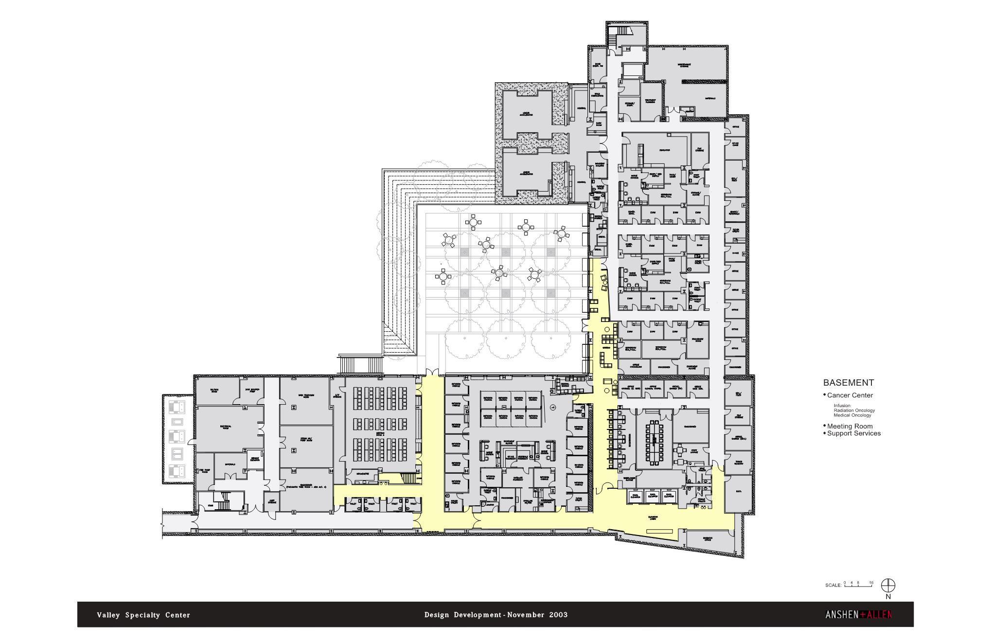
VALLEYSPECIALTYCENTER

SAN JOSE, CA

BUILDING METRICS:

PROGRAM NUMBER OF FLOORS

SPECIALTYOUTPATIENTCLINIC 5 + BASEMENT

GROSS BUILDINGAREA 244,000 GSF

PROJECTTEAM

ANSHEN +ALLEN:

Peter Schlosser

Joe Brogden

Suniya Malhotra

Annie Coull

Dennis Lappe

Richard Felix-Ashman

Steve Bruneel

Danielle Kilmer

Prescott Reavis

Hardik Udani

CONSTRUCTION MANAGER

GENERALCONTRACTOR

CURTAIN WALLCONTRACTOR

STOREFRONTENGINEER

TURNER CONSTRUCTION

McCARTHYCONSTRUCTION

ARCHITECTURALGLASS & ALUMINUM

Turn static files into dynamic content formats.

Create a flipbook
Issuu converts static files into: digital portfolios, online yearbooks, online catalogs, digital photo albums and more. Sign up and create your flipbook.