111 Main + 95 State at City Creek, Salt Lake City, UT

Page 1

Hardik Udani, AIA, LEED AP

PORTFOLIO - SELECTPROJECTS

1. 111 MAIN, SALTLAKE CITY, UT(TYPE: OFFICE)

2. 95 STATEAT CITYCREEK & SOCIALHALL PAVILION, SALTLAKE CITY, UT(TYPE: MIXED USE- OFFICE, CULTURAL& RETAIL)

3. AMERICAN BUDDHIST CULTURALSOCIETY (ABCS) TEMPLE, SAN FRANCISCO, CA (TYPE: CULTURALAND RESIDENTIAL)

4. INFINITE 101 & 131, SOUTH SAN FRANCISCO, CA. (TYPE: LIFE SCIENCESR&D/OFFICE, PARKING &AMENITYFITNESS CENTER, CONFERENCE, RESTAURANT)

5. GENESIS NORTH TOWERAND GARAGE SOUTH SAN FRANCISCO, CA(TYPE: LIFE SCIENCES- R&D/OFFICEANDAMENITIESFITNESS CENTER & CONFERENCE`

3 5 4 1
2

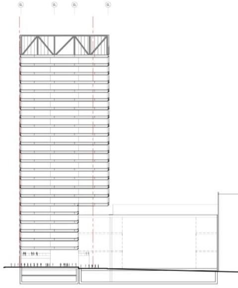
111 MAIN

SALTLAKE CITY, UTAH

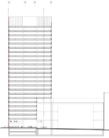
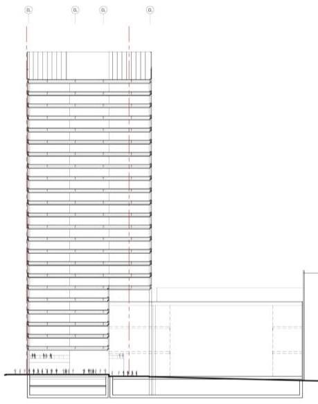
TOWER METRICS

PROGRAM NUMBER OF FLOORS

BUILDING HEIGHT OFFICE 24 387’-0”

TYPICALFLOORAREA

OFFICEAREA

GROSS BUILDINGAREA

STATUS

PROJECTTEAM

SOM:

CRAIG HARTMAN

KEITH BOSWELL

STEVE SOBEL

BRIAN MULDER

HARDIK UDANI

LISAFOLLMAN

FRANCESCAOLIVEIRA

GARYHE

ALEXANDRABARRETT

MARK SARKISIAN,SE

PETER LEE,SE

ALWINTSUI, SE

GENERALCONTRACTOR

CURTAIN WALLCONTRACTOR

STOREFRONTENGINEER

20,925 GSF

447,000 GSF

512,700 GSF COMPLETED 2017

OKLAND CONSTRUCTION

STEELENCOUNTERS

ECKERSLEYO’CALLAGHAN

SOUTH
SOUTH STATE STREET MAIN STREET
MAIN
ECCLES THEATER
E100
E200
111
NEW

111 MAIN (TOWER)

NEW ECCLESTHEATER

PROPERTYLINE, EXTENTOF BUILDING L1-L4

EXTENTOFTOWERABOVE

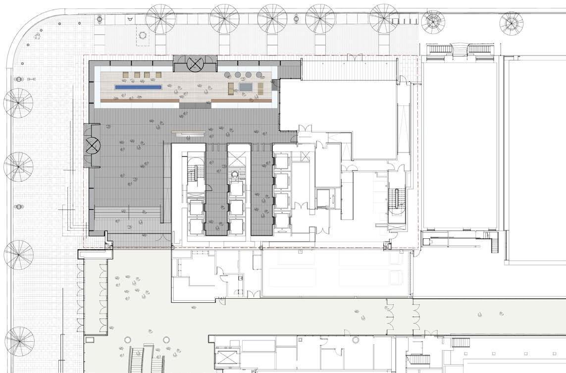
GROUND FLOOR PLAN

PROJECT

SKIDMORE,

NAME OR PHASE
OWINGS & MERRILLLLP
MAIN
OWINGS & MERRILLLLP
111
SKIDMORE,
111 MAIN SKIDMORE, OWINGS & MERRILLLLP

TYPICALLOW-RISE LEVELS 05-15

Gross Measured: 20,875 sf

Floor Rentable: 18,825 sf

111 MAIN
SKIDMORE, OWINGS & MERRILLLLP
42’-6” 47’-3” 33’-0”
36’-6” 155’-0”
15’ 30’ 20’
135’-0””
30’

TYPICALHIGH-RISE LEVELS 18-24

Gross Measured: 20,875 sf

Floor Rentable: 19,500 sf

MAIN
111
SKIDMORE, OWINGS & MERRILLLLP
42’-6” 47’-3” 40’-0”
155’-0”
15’ 30’ 20’ 30’
36’-6”
135’-0””
111 MAIN SKIDMORE, OWINGS & MERRILLLLP
Easement above Level 5
PROJECTSITEAND PROPERTY LINE
West Structural Elevation Air
Property Line

THEATER MAIN ENTRY

SCHEMEA

• PERIMETER MOMENTFRAME WITH TRANSFER OVER WINTERGARDEN

• TOWER SOUTH COLUMNS EXTEND TO BASEMENT

SCHEME B

• COMPOSITE STRUCTURALSYSTEM

• TOWER SOUTH COLUMNS HUNG FROM ROOFTOPTRUSS

SCHEME C

• ALLCONCRETE SHEAR WALL CORE WITH MOMENTFRAMEAND GRAVITYBEAMS

• TOWER SOUTH COLUMNS EXTEND TO BASEMENT

111 MAIN

SKIDMORE, OWINGS & MERRILLLLP

111 S Main Tower UPAC 111 S Main Tower UPAC 111 S Main Tower UPAC
STRUCTURALALTERNATIVES STUDIED FOR RESOLVING CANTILEVER

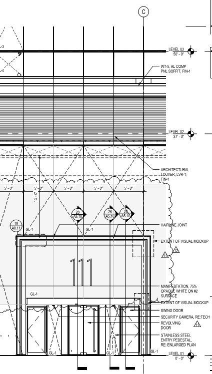
ALL-GLASS LOBBYWALL

• 10’WIDE BY35’TALLLAMINATED CLEAR GLASS

• 2’DEEPBY2½” WIDE GLASS STABILIZING FINS

• LAMINATED CLEAR GLASS SKYLIGHT

• GRAVITYSUPPORTEDALL-GLASSASSEMBLY LATERALLYTIEDTO BASE BUILDING STRUCTURE WITHADOUBLE PINNED CONNECTIONALLOWING +/-14”TO +/- 18” OF VERTICALMOVEMENT

• STEELRAILAND ROLLERALLOWING +/-3½” IN PLANE SEISMIC DRIFT

• GLASS FABRICATED IN GERSTHOFEN, GERMANY ANDASSEMBLED ON SITE USING SPECIALTY EQUIPMENTPROCUREDTHROUGHTHE GLAZING MANUFACTURER

• LOBBYWALLENGINEERING BYECKERSLEY O’CALLHAN

ALL-GLASS FAÇADE DESIGN
Δ=Δ GRAVITY +Δ SEISMIC =Δ G-DL+SDL +Δ G-LL +Δ EH +Δ EV Δ G-DL+SDL DEAD +
Δ G-LL
Δ EH SEISMIC HORIZONTAL Δ EV SEISMIC VERTICAL
SUPERIMPOSED LOADS
LIVE LOADS
PERFORMANCE CRITERIA 111 MAIN SKIDMORE, OWINGS & MERRILLLLP
CAMBER = 1.5” to 2”
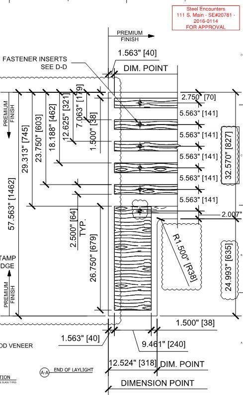
CONSTRUCTION DETAILS 111 MAIN SKIDMORE, OWINGS & MERRILLLLP
111 MAIN SKIDMORE, OWINGS & MERRILLLLP

STRUCTURALGLASS ENTRIES

• 20’WIDE BY20’TALLSTEELAND GLASS ENTRIESARE WRAPPED BYCLEAR, LAMINATED STRUCTURALGLASS

• LEAFS OF NATURALEUCALYPTUS LAMINATED INTOTHE GLAZING MAKEUP

• SOLID EUCALYPTUS FINS HUNG FROM STEEL CLIPS WITH INTEGRALHARDWAREAND STRUCTURALSILICONE

ALL-GLASS ENTRYDESIGN
111 MAIN SKIDMORE, OWINGS & MERRILLLLP
CONSTRUCTION DETAILS 111 MAIN
OWINGS & MERRILLLLP
SKIDMORE,
111 MAIN SKIDMORE, OWINGS & MERRILLLLP

SKIDMORE,

HIGH PERFORMANCE INSULATED

GLAZING UNIT

8” VERTICAL FIN

OPAQUE WHITE CERAMIC FRIT ON #2 SURFACE OF GLASS

METAL BAND ON BACKPAN: STERLING SILVER

SHADOWBOX BACKPAN: ECLIPSE GRAY

CORRUGATED METAL EXTRUSIONS: STERLING SILVER

INSULATED GLAZING UNIT- ULTRA CLEAR

LOW IRON W/HEAT STRENGTHENED OUTBOARD LITE

111 MAIN
OWINGS & MERRILLLLP
3/4” 1/8” 1-1/2” 3 3/4” SPACING ON CENTER

PEARLESCENTWHITE

PPG - UC117183VL

DURANAR VL

SILVER SHADOW

PPG - UC106707XL

DURANAR XL

GL-3: SHADOWBOX GLASS

GL-3: VISION GLASS

CERAMIC FRITON #2 SURFACE

INTERIOR VERTICALAND HORIZONTAL MULLIONS: SILVER SHADOW

METALBACK PAN: SILVER SHADOW

HORIZONTALMETALEXTRUSIONS: PEARLESCENTWHITE

111 MAIN
OWINGS & MERRILLLLP 2014.08.14 SHADOWBOX COLOR SELECTION
SKIDMORE,
111 MAIN SKIDMORE, OWINGS & MERRILLLLP

95 STATEATCITY CREEK

SALTLAKE CITY, UTAH

TOWER METRICS PROGRAM

TYPICAL

MEETINGHOUSE

515,000 GSF

GSF 640,700 GSF

GROSS BUILDINGAREA 20,925 GSF

PROJECTTEAM

SOM:

MICHAELDUNCAN

KEITH BOSWELL

SEAN REGASA

GREG WILLIAMS

HARDIK UDANI

ALEX WELSH

SHUANG XU

MARK SARKISIAN,SE

PETER LEE,SE

RUPAGARAI, SE

ALEX ZHA, SE

GENERALCONTRACTOR

CURTAIN WALLCONTRACTOR

STOREFRONTENGINEER

OKLAND CONSTRUCTION

STEELENCOUNTERS

ECKERSLEYO’CALLAGHAN

NUMBER OF FLOORS
HEIGHT OFFICE & MEETINGHOUSE 25
BUILDING
392’-3”
FLOORAREA
AMENITY
OFFICE +
AREA
125,000
111 Main
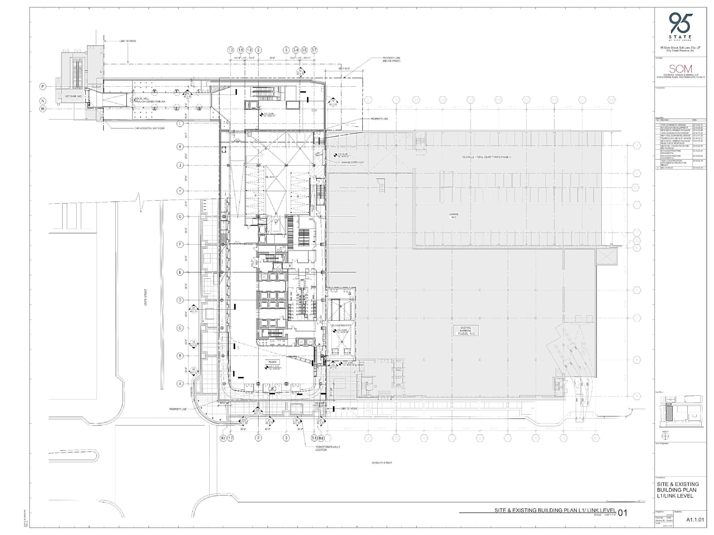
LEVEL01 PLAN
114’-1
95 State Social Hall Plaza Pavilion
277’-6 ” 95 STATEATCITYCREEK SKIDMORE, OWINGS & MERRILLLLP
Pedestrian Tunnel
95 STATEATCITYCREEK SKIDMORE, OWINGS & MERRILLLLP
PLAN - LEVEL3 MEETINGHOUSE
Chapel Cultural Hall
95 STATEATCITYCREEK SKIDMORE, OWINGS & MERRILLLLP
(E) Harmon’s

VIEW FROM NORTHAT

Chapel- Stone fins with Exterior IGU and Interior

LaminatedArt Glass

12-36”W x 30”D

Tapered stone fins

60” on center

Office- Stone fins with

Insulated Glass Units

12-36”W x 18”D

Tapered stone fins

60” on center

VIEW FROM NORTH WEST AT
Chapel- Interior LaminatedArt Glass Layers of fused colored glass laminated to Fluted Glass - Jamie Carpenter Design (JCDA) - Fabricator: Bullseye Glass
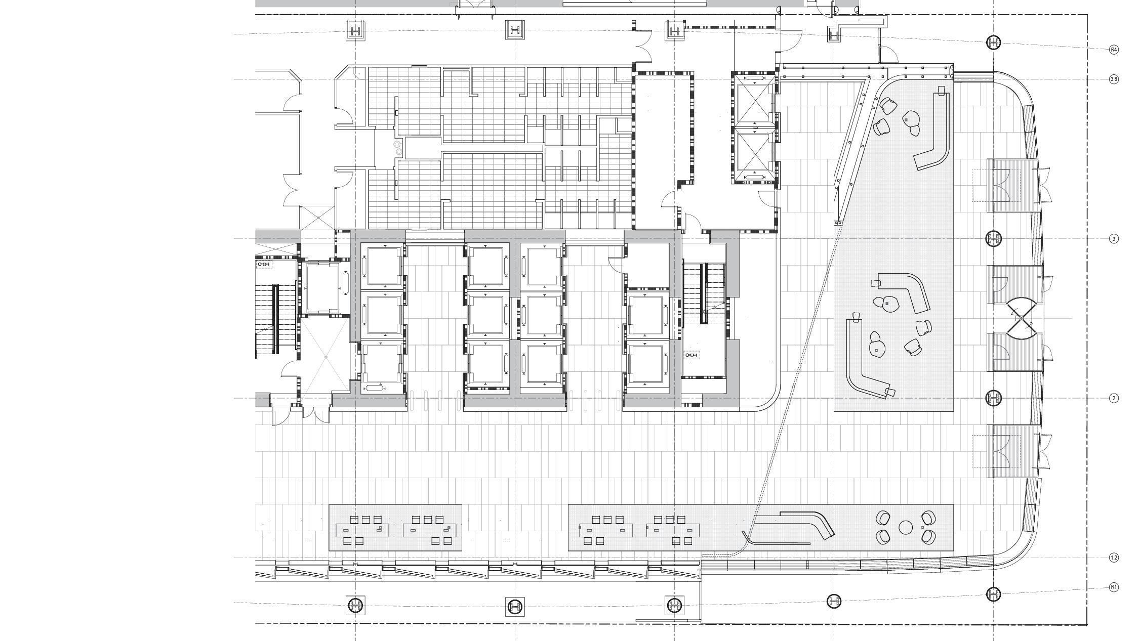
LOBBYLEVELPLAN 95 STATEATCITYCREEK SKIDMORE, OWINGS & MERRILLLLP
Social Hall Pavilion & Pedestrian Tunnel to City Creek

Turn static files into dynamic content formats.

Create a flipbook
Issuu converts static files into: digital portfolios, online yearbooks, online catalogs, digital photo albums and more. Sign up and create your flipbook.