再製‧空間

Page 1

城市與自然的空間產生,虛空間的再製與重生之路‧ReproductionSpace

01_進城序曲‧街道重組的生活博物館Content02_簷域‧青創機器人研究中心03_霧型氣候‧都市湯屋04_光譜慢行‧旅人與兒童圖書館01_IntotheCity‧ReorganizeStreetintheLivingMuseum02_ThefieldofRoof‧YouthEntrepreneurshipCenter03_Mistmicroclimate‧HotspringinCity04_SlowwalkingonSpectrum‧Library

Aldo Rossi 曾經以「廣場城市」的類型來設計San Cataldo 但是,在未來當兩條街面臨鐵路高架化和車站汰換的命運時,嘉義市一直有兩條以車站為起點、圓環為末點的進城序曲,當人的活動留下了外加物件,成為城市中的日常物件,當建築物脫離機能與形式,成為了城市中的紀念物;喚起生者對「城市」的記憶。Cemetery,那麼城市便有了普遍記憶。這兩條街也構成了嘉義的城市記憶。要如何保留因為他們而產生的城市記憶?城市、街廓、建築、日常物件,他們一起成為城市記憶,而日常物件開始堆疊出了生活的痕跡。當城市記憶從城市開始消失,我選擇將最小的日常物件抽離,看物件與人如何產生關係,成為生活博物館。

基地_嘉義火車站前廣場&嘉義北門車站廣場01_Into01_進城序曲‧街道重組的生活博物館theCity‧ReorganizeStreetintheLivingMuseum

未來20205 嘉義鐵路高架化影響了兩個車站...年 2020 年 因為北門車站的正面性而聚集的日常記憶因為嘉義車站的正面性而聚集的日常記憶嘉義車站周邊平面|2020年北門車站周邊平面| 2025 年 嘉義車站周邊平面| 原本的日常記憶被新的住宅大樓 百貨公司完全抹除掉 2025 年 原本的日常記憶因為新車站讓原本連接城市的街口改變而漸漸消淡北門車站周邊平面|

甚麼是嘉義人的紀念物和日常物件?嘉義的城市記憶是甚麼?那這個城市記憶讓人能回憶城市每一座城市都有屬於它的城市記憶這其實是Rossi但都讓人聯想到威尼斯畫中的建築、橋梁、河堤和划船的人等等任何景象如何留住嘉義的城市記憶?兩個車站即將消失未來開始建立屬於它的城市記憶兩個車站嘉義城從最早城市那麼當人在城市中的活動便成為了城市中當建築物脫離了機能和形式後紀念物般的存在成為一種印象便成為了日常物件就會開始有了普遍記憶兩條街兩個圓環這並不是威尼斯假想後畫出的威尼斯...

紀念物 & 日常物件 當建築物脫離了機能和形式後 便成為了城市中紀念物般的存在... Symbol & Daily Object 11 Chia-YiofSymbol 最一開始的嘉義 而生活的痕跡也沿著這個軸線長了出來城內以四個城門和市役所為中心發展那時還有城牆衍伸出了十字的軸線 The清朝時期Origin City Wall brings Symbols and Daily Objects 1906-1945 1906年後 城牆倒塌 日本政府拆除了城門兩個圓環開始分別跟嘉義車站和日本官員宿舍在西和北城門遺址上設立圓環連成了兩條往城外發展的軸線生活痕跡也跟著轉為向外延伸

12 嘉義北門車站和嘉義製材所等的出現阿里山林業的發展後讓北門車站的軸線出現彎折而嘉義車站的軸線則依舊未變 The Growth of Symbols and Daily Objects The Decline of Symbols and Daily Objects 1945-2020 2020阿里山林業的結束導致車站和製材所的停駛北門車站的軸線也因此縮短成為北門車站和檜意生活村之間的小街但嘉義車站的軸線至今仍在持續

呈現日常生活與紀念性共存的狀態...圓環成為了原本的公園以外對於這時候的嘉義人來說只剩下了紀念性...圓環已經完全地移除了日常生活/公園對於這時候的嘉義人來說同時也具有正面性的地標 紀念物 & 日常物件 嘉義人如何看待它?如何因為它影響了生活?嘉義噴水圓環身為嘉義紀念物紀念物如何出現?紀念物如何存在? 圓環是一個家門前公園對於這時候的嘉義人來說是日常生活的一部份...]1970-[]1955-1970[]1915-1955[ 「其實我在童年時 後來改成七彩噴水池就只能遠望他欣賞他了老人坐在水池邊聊天坐在鍊條上盪呀盪的玩耍我們喜歡站在水池看噴水他是可以靠近的 可能圓環不再是構成嘉義記憶的城市元素但對於過去的嘉義人來說圓環只剩下城市中心的記憶多上了一層城市中心的紀念性因為日本政府對噴水池的改建與塑造對於圓環的記憶除了日常生活的玩耍和聊天以外可惜...」它不只存在單層的記憶對於外來的嘉義人來說 Symbol & Daily Object 13 Chia-YiofSymbol 日常記憶和紀念性的重疊日常生活的記憶紀念性 公園/城市中心公園噴水圓環

-舊圓環 Old Fountain-舊圓環 Old Fountain-

-噴水池 Fountain-

[ 1915-1955 ] [ 1955-1970 ] [ 1970- ]

14

日常記憶和紀念性的重疊

-噴水池 Fountain-噴水池 Fountain-

-基地 Site-

-圍欄 Fence-草地-圍欄Grassland-Fence-

Symbol & Daily Object 17 Chia-YiofObjectDaily

紀念物 & 日常物件

18 勾勒出景象讓人回憶嘉義時這些那些那些那些記得的不是華麗的建築形式與外觀當回憶走在嘉義街道的時候小攤販老闆的叫賣聲在遮雨棚下聊天的歐巴桑用盆栽圍出的小花園那些在二樓陽台的曬衣架日常物件從他們開始建構想像出街道樣貌

紀念物 & 日常物件

Symbol & Daily Object 19 Chia-YiofObjectDaily

20

21 MuseumLivingtheinStreetReorganize Site|Living生活博物館x 在2025年新車站汰換的前提下在兩條從車站廣場通在新大樓面前加入日常生活的記憶在2025年鐵路高架化的前提下嘉義車站提醒著曾經的城市記憶北門車站往都市的轉角加入紀念性和日常物件讓廣場溢入建築讓兩條軸線重回紀念性和日常性重疊的狀態恢復成為足以構成城市記憶的兩條街道

22 Site|Living Museum x 2 生活博物館x 2 StationHokumonSite|NearbyStationChia-YiSite|Nearby在2025年新車站汰換的前提下在兩條從車站廣場通在新大樓面前加入日常生活的記憶在2025年鐵路高架化的前提下嘉義車站中山路提醒著曾經的城市記憶共和路北門車站往都市的轉角加入紀念性和日常物件讓廣場溢入建築讓日常生活記憶保存讓兩條軸線重回紀念性和日常性重疊的狀態恢復成為足以構成城市記憶的兩條街道

23 MuseumLivingtheinStreetReorganize 嘉義車站x生活博物館 & 北門車站x生活博物館 Chia-Yi Station Design & Hokumon Station Design

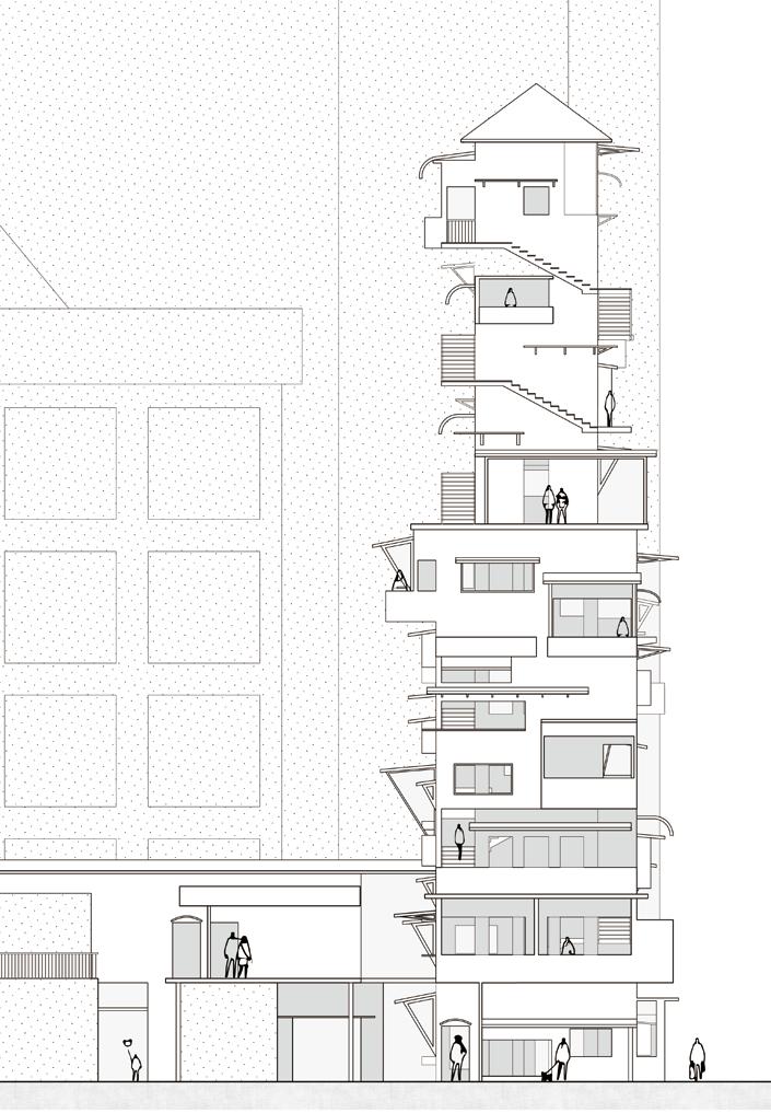
24 用由日常物件組成的高塔在最後 回望物件和新大樓之間讓真正的生活博物館徘迴在日常物件的外掛而生活博物館就在這退縮上預計退縮7m的人行道鐵路高架化的周邊規劃和讓一切開始的舊嘉義車站讓一切轉變的新嘉義車站

25 MuseumLivingtheinStreetReorganize 嘉義車站x生活博物館 & 北門車站x生活博物館 Chia-Yi Station Design & Hokumon Station Design

展覽空間生活博物館包含著藝術家進駐空間 進駐店家 日常物件和新的住宅大樓之間讓真正的生活博物館徘迴在真正的生活博物館因為兩者之間的對比當地住宅

31 MuseumLivingtheinStreetReorganize 嘉義車站x生活博物館 & 北門車站x生活博物館 Chia-Yi Station Design & Hokumon Station Design 因車站的紀念性聚集的街道 生活博物館 北門車站廣場

32 北門車站 火車軌道 新 北門車站

33 MuseumLivingtheinStreetReorganize 嘉義車站x生活博物館 & 北門車站x生活博物館 Chia-Yi Station Design & Hokumon Station Design 活動溢入建築內部讓北門車站廣場的空間與量體提高到350cm將空間置入到日常物件中用一個220cm高的平台和北門車站廣場的街道再現重新將兩條連接城市把日常物件收在50cm的厚牆中

展覽空間生活博物館包含著藝術家進駐空間 進駐店家 當地住宅 前兩者是生活博物館 讓產生日常日件的活動從原本基地上溢入在基地內把日常物件重現後兩者是基地現況

器人實驗場、對外展示空間。的空間原型與組織結合。利用大屋頂引導場域感,串聯辦公空間、機第三階段以機能隨形的方式思考機器人研發中心的空間如何與桂離宮形成空間上現象的透明性,即在一個空間內同時感受體驗其他空間。與固定的木柱圍塑出的場域界定。空間組織為相同的矩形單元相連,織。空間原型為透過屋頂的重複性延伸的空間感以及利用可動的門扇第二階段以分析日本體作為塑第一階段以結構作為設計的起始,利用構造塑造空間,以純粹的結構造建築空間的內在邏輯。桂離宮為設計的開始,演繹其空間感知原型與組

基地_臺灣當代文化實驗場02_Roof02_簷域‧機器人研發青年創業中心Zone‧YounthResearchandCreatCenterofRobotC-Lab

AType

Plan1F ASection BSection

並為其心動並與設計發生關聯從身為一位敏感的旅人開始思考如何識別到場所感這是一個關於場所精神的設計而只是透過它們甚至不是空間本身也就是此刻被指的不是建築物看到或感覺到了什麼當我爬上...當我越過...當我沿著...場所經驗通常被這樣提起令人印象深刻的但說到提供行為發生的場所空間「場所感」?之際 基04_The03_尋光‧自然旅人和兒童圖書館RoofaboutMist‧TheSoupinCity地_台北市陽明山上 01Type 02Type 03Type

ModelsConcept

也寧靜下來不僅形成景空間形成水滴回到最初的接待室霧氣最終集結到屋頂的大斜板解決加上錯落的安排量體的單元化創造對霧氣得更多可能營造出視覺上的曖昧並改變動線的形成透過溫泉本身霧氣的存在動線視線上的問題 基04_The04_霧簷屋‧都市型營業用湯屋RoofaboutMist‧TheSoupinCity地_台北市大安區復興南路一段135巷35號 ModelsExperimentDiagramConcept

Plan2FModelsPlan1FPlanB1

施 neil19980116@gmail.com(+886)9630223061998_01_16昊 2020_09_01-2021_02_262013-20162021_03_08-2021_08_162016-20212022_01_06-求學歷程工作經歷 國立嘉義高級工業職業學校-製作綠建築候選標章-進行競圖洪大為建築師事務所|正職台北科技大學-執行專案設計翁仲毅建築師事務所|正職建築系 綜合高中建築科 -進行測繪-繪製細部修復大樣圖胡宗雄建築師事務所|正職

Turn static files into dynamic content formats.

Create a flipbook
Issuu converts static files into: digital portfolios, online yearbooks, online catalogs, digital photo albums and more. Sign up and create your flipbook.
再製‧空間 by Hao Shih - Issuu