TF-PBL-Elex Sandown 22 Showguide

Page 1

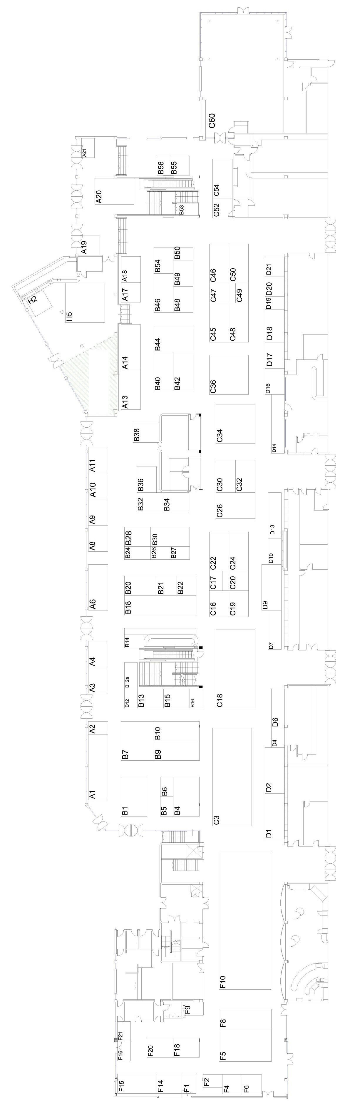
Sandown Park, Surrey Thursday 3rd & Friday 4th November Exhibition Guide This showguide has been produced in association with ... TOOLFAIR 2022 PROFESSIONAL BUILDER POWER TOOLS • HAND TOOLS • BUILDING EQUIPMENT Professional LIVE! ELEX 2022 PROFESSIONAL ELECTRICIAN The Electricians’ Exhibition Sponsored by Click here for standplan

BUILDING BUSINESS

On the behalf of Hamerville Media Group, the organisers of the UK’s leading regional events for the construction industry, welcome to Sandown.

Toolfair, Professional Builder Live and Elex are designed to give a live experience of the industry’s number one trade magazines: Professional Builder, Professional Electrician and Professional Heating and Plumbing Installer. The wide range of exhibitors, including most leading brands, will help you find new commercial opportunities and ways of working. The show gives you the chance to meet the major manufacturers and give them your feedback about their products.

It’s well worth having a look at the seminar programmes that are taking place as they have been designed to offer you practical advice on real key industry issues.

We hope you enjoy your visit.

1 TOOLFAIR PROFESSIONAL BUILDER Professional LIVE! AND ELEX 2022 PROFESSIONAL ELECTRICIAN The Electricians’ Exhibition Sponsored by 2022
2 ABAX UK ..........................................B21 Action Can......................................B12a Anton by Crowcon............................F20 A-Plan Insurance..............................B13 Armeg................................................B9 Big Wipes........................................C19 Bisley Workwear..............................B18 Blaklader Workwear............................D2 Bott Smartvan....................................F5 C K Tools............................................A6 Cloud9 Trading....................................B6 Checkatrade....................................A18 Comodo Workwear............................B24 CraftDrew........................................C20 DEWALT..................................Sports Bar Eibenstock........................................F14 Fergus Software Systems ................F16 Fischer Fixings ................................B20 Ford Motor Company........Paddock Area Gas Logic............................................A9 GloForce..............................................F1 HiKOKI Power Tools ............................B7 HB42......................................OS SPACE Hook Up Solutions..................OS SPACE EXHIBITORS TOOLFAIR PROFESSIONAL BUILDER 2022 Professional LIVE! AND
3 Hultafors Tools....................................A1 IRWIN....................................Sports Bar Isuzu UK............................Paddock Area Metabo..............................................B4 Mafell......................................OS Space Milwaukee........................................F10 Packexe..............................................A2 Price Doctor........................................D4 Pyramex..........................................B18 Reisser Crate Mate............................F6 Refina................................................F8 REMS ..............................................B12 Robins & Day..........................OS Space Stabila................................................F8 Stanley Black and Decker......Sports Bar StealthMounts....................................F8 StorageTek........................................B5 Thanet Tool Supplies........................B18 Trade Survey......................................D6 Triple X Trading ................................B53 Vantainer..................................B14 / OS Velocity Pro Gear..............................B10 WD-40 Company..............................B26 Wera Tools........................................C18 EXHIBITORS Sandown Park, Surrey Thursday 3rd & Friday 4th November
4

ABAX UK – B21

Do you know where your equipment and tools are, and what they are doing? Your business assets are valuable and critical to your income. Work smarter with ABAX Telematics and help keep all your tools and assets safe! Get a real-time overview of all your portable assets in one app.

ABAX UK Ltd., Alla Business Centre, London Rd, Peterborough PE2 8AN Tel: 01733 563947 Website: www.abax.com

Action Can – B12A

Developed to meet the exacting requirements of professional engineers and manufactured in its UK and European facilities, the Action Can range offers product choice, proven performance, and full in-house quality control. Its products hold many approvals, and the company aims to meet professional grade standards every time. “Tested, Trusted and Approved”.

CRC Industries UK Ltd, Wylds Road, Bridgwater TA6 4DD Tel: 01278 727272 Website: www.crcind.com

Anton by Crowcon – F20

Anton by Crowcon designs, manufactures and distributes portable test equipment for the UK heating engineer, and has done so since 1988. Offering swift turnaround for service and calibration, the company focuses on practical and robust solutions that meet the needs of hardworking engineers.

Anton by Cowcon, 172 Brook Dr, Abingdon OX14 4SD Tel: 01235 557780 Website: www.antonbycrowcon.com

A-Plan Insurance – B13

As a broker, A-Plan provides an advised and tailored service with high standards of personal care to its clients, ensuring policies closely match their needs. With over 100 branches across the country, A-Plan provides a local service, in branch or over the ‘phone.

A-Plan. 2 Des Roches Square, Witney OX28 4LE Tel: 01865 241 441 Website: www.aplan.co.uk

Armeg – B9

Armeg designs and manufactures quality power tool drilling accessories for professionals. Home to unrivalled expertise, Armeg is synonymous with smart design, enduring quality and performance you can trust. Visit the stand to see its new Roofing Bolt Driver which has been designed to make driving roofing bolts easier and help prevent camming out.

Armeg Ltd., Callywhite Ln, Dronfield S18 2XJ Tel: 01246 411081 Website: www. armeg.com

5

Big Wipes – C19

The market leading Big Wipes range with antiviral (EN14476) and antibacterial (EN1276) efficacy offers professional tradespeople an allin-one cleaning and disinfecting solution for hands, tools and surfaces. Dermatologically tested and non-toxic, Big Wipes cleaning wipes also contains four great skin conditioners which all help to nourish and protect the skin.

Sycamore UK Ltd, Willowbank House, 84 Station Road, Marlow, Buckinghamshire SL7 1NX Tel: 0845 680 0884 Website: www.bigwipes.com

Bisley Workwear – B18

Bisley Workwear offers a comprehensive range of Workwear, Safetywear and Protectivewear using the latest innovation in garment construction and testing. Bisley will be introducing a new trade and leisure hoodie at the show in the FLX & MOVE™ range, plus some seriously eye catching Hi-Viz workwear.

Thanet Tool Supplies, Orbital Park, Monument Way, Willesborough, Ashford TN24 0HB Tel: 01233 501010 Website: www.bisleyworkwear.co.uk

Blaklader – D2

Blåkläder is a family-owned business that has been developing, manufacturing and selling workwear since 1959. It’s become one of Europe’s largest manufacturers of heavy-duty work garments, producing around 4,5 million garments a year at our own factories. Visit the stand to see the latest developments.

Blåkläder Workwear Ltd., 1 Chapel Street, Warwick CV34 4HL Tel: 448000288234 Website: www.blaklader.com

bott Smartvan – F5

The one stop shop for a full van conversion. From vehicle graphics through to self-fit, fully customisable van racking solutions, bott has you covered. Its specialist team is on hand around the clock to support with the conversion of your van. Visit the stand for a chance to win a surprise bundle with a Systainer themed competition.

bott Smartvan, Bude-Stratton Business Park, Bude, Cornwall EX23 8LY Tel: 0800 915 6013 Website: www.bottsmartvan.co.uk

Checkatrade.com – A18

Join the UKs number 1 Trade Directory and get a Fuel card worth up to £200*. Whether you are a new trade looking to build your business or looking to fill a few gaps in your diary, Checkatrade will help you get local, relevant work. *For offer T’s & C’s please visit: https://join.checkatrade.com/fuel-terms

Checkatrade Building 2000,Lakeside North Harbour, Western Road, Portsmouth PO6 3EN Tel: 03330 329 557 Website: www.checkatrade.com

6

C K Tools – A6

C.K Tools produces innovative, high quality tools, designed to satisfy the most demanding needs of trade professionals. C.K’s wide range of products are all engineered to offer great performance, durability, accuracy and strength to achieve the best results. Visit the stand for a chance to win a brand-new EV Installation Tool Kit, worth over £1,200RRP. One kit will be given out at each show.

Carl Kammerling International Ltd, 7500 Daresbury Park, Daresbury, Cheshire WA4 4BS Tel: 01758 701 070

Website: www.carlkammerling.com

CLC Work Gear – A1

For over thirty-five years, CLC Work Gear has been making rugged, innovative tool storage solutions aimed at meeting the needs of professional tradespeople. Its products are made for the most heavyduty work environments out there.

Hultafors Group UK Limited Unit N3 Gate 4, Eltham Mills Ind Estate, Holmfirth HD9 4DS Tel: 01484 85 44 88 Website: www.snickersuk.com

Cloud9 Trading – B6

Cl9ud is back at the Sandown event with a range of gadgets to make your working day easier. See the latest wireless in van chargers, hard wearing kevlar cables guaranteed unbreakable and 18w fast charging plugs and cables. Exclusive show offers will also be available.

CL9UD Trading Ltd 3/200 Station Road, Westcliff on Sea, Essex Tel: 07770 666607

Website: sittingoncloud9.com

Comodo Workwear – B24

Comodo Workwear designs clothing that provides a comfortable and aesthetically pleasing fit and feel to construction workers. Designed by a tradesman for tradespeople, Comodo understands the uncomfortable positions all trades get in completing tasks, and its goal is to help solve those problems.

Comodo Workwear, 31 Linksway, Leigh on Sea, Essex SS9 4QY Tel: 07702380740 Website: www.comodoworkwear.com

CraftDrew – C20

CraftDrew manufactures professional tools for small and large workshops, including timber gluing presses, movable hydraulic work tables and adjustable and fixed drying racks. The factory, based in Poland, is equipped with a wide selection of machinery such as laser cutters, steel benders and cnc’s.

CraftDrew, Unit 2, Pegasus Court, North Lane, Aldershot GU12 4QP Tel: 0739 8211166

7

DEWALT – Sports Bar

DEWALT is a market-leading manufacturer of premium power tools, accessories, anchors and fixings that provides a fully integrated system solution for various applications. DEWALT tools offer unparalleled performance, with durable construction for a professional finish. Rely on DEWALT to get the job done, with a 3-year guarantee on every tool.

DEWALT 210 Bath Road, Slough, Berkshire SL1 3YD Tel: 01753 567055 Website: www.dewalt.co.uk

Eibenstock – F14

EIBENSTOCK power tools are manufactured in Germany to the highest industrial standards. They are designed and manufactured for professional use with powerful, robust motors and gearboxes, ensuring durability and reliability over many years of use. The range includes specialist diamond core drills, chasers, Megamixer paddle mixers, grinders and slow-speed drills.

Eibenstock, Unit 7 Factory Rd, Upton, Poole BH16 5SL Website: www.eibenstock.co.uk

Fergus Software Systems – F16

Fergus is the brainchild of Dan Pollard, a veteran Tradie. After going bust once and burning out once, Dan figured out that a trades business needs proper systems in place to keep it running – without running its owner into the ground. Fergus helps trades businesses across the UK manage the costs of running a trades business, keep jobs on track and find profitability. Visit the stand for more information.

Fergus Software Ltd., 22 Lever St, Manchester M1 1EA Tel: 0808 196 0868 Website: www.fergus.com

Fischer Fixings – B20

When it comes to standard, steel, or chemical fixings, professionals worldwide rely on the innovative products, systems and services provided by fischer. Visit the stand at the Sandown event to see the latest products, including a wide range of frame fixings.

Fischer Fixings Ltd., Whitely Rd, Hithercroft Industrial Estate, Wallingford OX10 9AT Tel: 01491 827900 Website: www.fischer.co.uk

Ford Motor Company – Paddock Area

Visitors can learn how to plug in and charge, measure the benefits of living with an electrified vehicle and find out what model is best suited to their personal or business needs. They can also find out all there is to know about the science of electrification technology and how to reduce CO2 emissions and motoring running costs. Experts will be on hand to help answer questions.

Ford Motor Company, 6 Dukes Gate, Acton Lane, London W4 5DX Tel: 0208 735 2000

Website: www.ford.co.uk

8
9

Logic4training – A9

Logic4training is the leading training and assessment provider for the building services sector, encompassing gas, electrical, plumbing, oil, renewables, air conditioning and new entrants courses. Training and assessment is delivered from its high-spec facilities in Northolt, Basildon, Luton and Sittingbourne. Visit the stand to chat to the team to find out more.

Gas Logic, 1 Rowdell Rd, Northolt UB5 5QR Tel: 020 8845 7222 Website: www.logic4training.co.uk

GloForce – F1

GloForce have a new range of work lights and machine lights which have magnetic goosenecks and clamped goosenecks with a range of lengths, enabling users to get light, right where they need it. They are extremely bright, dimmable, battery operated, so cordless and mobile, with run times of over 7 hours per charge.

GloForce Ltd., 81-83 Stokes Croft, Bristol, Avon BS1 3RD Tel: +44 (0)3335 777 505 Website: www.gloforce.com

HB42 – Outside Space

HB42, a range of high performing Trade Strength Sealants, Adhesives and Fillers since 2013. Known for its All-in-One Sealants based on advanced hybrid polymer technology, HB42 seals, sticks and fills delivering outstanding adhesion and strength. The range also includes 2-part fillers, silicones, primer-sealers and waterproofing products, all designed to meet the exacting standard of the building and decorating trade.

HB42, 74 Oldfield Road, Hampton, Middlesex TW12 2HR Tel: 020 8979 8284 Website: www.hb42.co.uk

HiKOKI Power Tools – B7

HiKOKI UK proudly supplies high performance power tools to professional trades people. Boasting a comprehensive range of corded and cordless power tools, alongside an extended 5 year warranty; the HiKOKI team have got you covered! Visit the stand to see the latest developments.

HiKOKI Power Tools, Precedent Drive, Rooksley, Milton Keynes, Buckinghamshire MK13 8PJ Tel: 01908 660663 Website: www.hikoki-powertools.co.uk

Hook Up Solutions – Outside Space

We look forward to welcoming visitors to our stand and introducing our ultimate steel beam move and installation service. Considered to be the safest, easiest and fastest steel beam move and installation service for restricted access sites. Take the stress, labour costs and injury risk out of steel beam handling and installation.

Hook Up Solutions Limited, Unit 1, Royston Road, BALDOCK, Herts SG7 6PA Tel: 01462 499 642 Website: www.steelbeamlifter.co.uk

10

Hultafors Tools – A1

Hultafors develops innovative workwear, sustainable tools and forward-thinking solutions to give professional users the best of functionality, safety, protection and efficiency. Visit the stand to see the latest products from CLC Work Gear, Scangrip, Solid Gear and Hellberg.

Hultafors Group UK Limited Unit N3 Gate 4, Eltham Mills Ind Estate, Holmfirth HD9 4DS Tel: 01484 85 44 88 Website: www.snickersworkwear.co.uk

IRWIN – Sports Bar

Innovation is the hallmark of IRWIN. For more than 100 years, it's been an idea that has permeated the culture of the company, and it continues to be its driving force. From product development to distribution and use in the field, the company dedicates itself to delivering quality tools that meet the stringent requirements of professional tradespeople.

Stanley Black & Decker, 210 Bath Road, Slough, Berkshire SL1 3YD Tel: 01543 447000 Website: www.stanleyblackanddecker.com

Isuzu – Paddock Area

As the winner of the 2021 Pick-up of the Year award from the 4x4 Magazine, the Isuzu D-Max is setting standards high in the pick-up truck world. Awarded the maximum five-star safety rating in the new Euro NCAP (New Car Assessment Programme) test. The Isuzu D-Max ticks all the boxes for its impressive capability, durability and reliability, to become the smartest, strongest and safest Isuzu D-Max of all time.

Isuzu UK 64 Great North Rd, Birchwood, Hatfield AL9 5JN Tel: 01707 282930 Website: www.isuzu.co.uk

Mafell – Outside Space

Mafell will be demonstrating a range of premium German manufactured power tools aimed at professional carpenters and Joiners, including the well known and innovative P1cc Jigsaw. Also on show will be the DDF40 Duo Dowler and tools such as the KSS 40 18V crosscut saw with unique flexible guide.

NMA Tools, Unit 1, Brookfoot Business Park, Brookfoot Ln, Brighouse HD6 2SD

Tel: 01484 400488 Website: www.nmatools.co.uk

Makita – C3

Makita will be showcasing its 80v Max (40v Max x2) 355mm (14") XGT Power Cutter with brushless motor technology, which provides all the power you will need. The CE001G features both anti-restart & lock-off functions, electric brake, and Makita’s ‘Active Feedback Sensing Technology’ (AFT) to protect the operator and the machine.

Makita UK, Michigan Drive, Tongwell, Milton Keynes, Bucks MK15 8JD

Tel: 01908 211678 Website: www.makitauk.com

11
12

Metabo – B4

Metabo offers sustainable system solutions from tools and accessories to service, delivering value today and for the future. The company offers an extensive range for professional users focused on the competence areas of metal industry and metal trades, construction trades and renovation.

Metabo UK Ltd., Nursling Industrial Estate, 25 Majestic Rd, Nursling, Southampton SO16 0YT Tel: 023 8073 2000 Website: www.metabo.com

Milwaukee Tool UK – F10

Milwaukee is one of the fastest growing power tool brands in the market. At the stand, you will see a wide range of trade specific solutions. Whether it is through the company’s world leading M12™, M18™, its jobsite lighting, time saving accessories or innovative hand tools and storage systems.

Milwaukee Tool UK Globeside Business Park Unit 3, Fieldhouse Lane, Marlow SL7 1HZ Tel: 01628 894400 Website: www.ttigroup.com

Nuprol – B15

The NUPROL Equipment Hard Case is as versatile as it is protective. With its generous dimensions, ergonomic design, and impact resistant construction you can have faith that your items are safe and secure when in transit. IP67 rated you can have peace of mind, knowing your equipment is protected.

Nuprol Ltd., Unit 11 Epsom Business Park, Kiln Lane, Surrey KT17 1JS Tel: 01372 847530 Website: www.nuprol.com

Multi Trades Training - F2

Multi Trades Training delivers high-quality on-site construction apprenticeships, online NVQs and plant fast track construction courses. The company has an ever-expanding selection of courses and apprenticeship training for you to choose from. Visit the stand for more information.

Multi Trades Training, 12 Enborne Way, Brimpton, Berkshire Tel: 02034 883801 Website: www.mttraining.co.uk

Packexe – A2

Packexe provides secure, leak-proof protection with a certified low slip surface. Each product has a carefully crafted adhesive to ensure they can stay in place for up to six weeks and removed without fear of leaving sticky residue. Once removed, they are fully recyclable.

Packexe Ltd., 9-13 Marsh Green Road North, Marsh Barton, Exeter EX2 8NY

Tel: 01392 438191 Website: www.packexe.co.uk

13

Price Doctor – D4

Price Doctor is an online application to price enquiries and then create accurate quotes. Send professional looking quotes or estimates in minutes, allowing you to win more work for even less time and effort. Everything you need to manage enquiries right through to successful invoices all in one place.

DIY Doctor Ltd., Workshop, Newbury Works, Coleford, Somerset BA3 5RX Tel: 01373 228230 Website: www.pricedoctor.co.uk

Pyramex – B18

Pyramex delivers high-quality safety products through its innovative and stylish product lines. Founded in 1991, Pyramex has more than 3,000 distributors in over 65 countries and is committed to investing countless hours to research, design and testing to ensure its products meet the highest safety standards.

Thanet Tool Supplies, Orbital Park, Monument Way, Willesborough, Ashford TN24 0HB Tel: 01233 501010 Website: www.pyramexsafety.com

Reisser Crate Mate – F6

Reisser Crate Mate is a practical and adaptable system of cases and accessories that has been designed to deliver safe and professional storage, organisation and transport of a wide variety of items. The system can be expanded and customised to meet your individual requirements, without compromising on performance or quality.

Reisser Crate Mate, Units 10-12 Botany Business Park, Lower Macclesfield Road, Whaley Bridge, High Peak CK23 7DQ Tel: 07812 014602 Website: www.reisser.co.uk

Refina – F8

REFINA specialises in stainless steel trowels which are rust free and durable, and stocks the largest range of specialist stainless steel trowels in the UK for the plaster, render, floor, concrete, repair and paint trades. It also stocks FINATEX premium laying on trowels, SUPERFLEX skimming trowels, PLAZIFLEX skimming trowels and spatula-rules, skimming spatula-rules, CLIKCLAK sponge floats and plastic trowels.

Refina Ltd., Unit 7 Factory Road,, Poole Dorset BH16 5SL Tel: 01202 632270 Website: www.refina.co.uk

REMS - B12

REMS manufactures a range of pipe tools including wall-chasers, endoscope cameras, diamond core drills, recipro saws, pipe cutters, pipe threaders, pipe benders, press-fit guns, pipe freezers, pressure testers, solar filling and flushing stations and butt welders.

REMS (U.K.) Ltd, Unit 5, Ash Industrial Estate Flex Meadow, Harlow, Essex CM19 5TJ Tel: (0)1279 413698 Website: www.rems.de

14
15 KEEP UP-TO-DATE WITH THE LATEST TRADE PRODUCTS ALL YEAR ROUND WITH THE UK’S LEADING TRADE TITLES! Available free-of-charge in all leading merchants & wholesalers across the country.

Robins & Day – Outside Area

Robins & Day by Stellantis &You London West is part of the largest Citroën dealer group in the UK. Offering a wide range of van sizes, competitive finance options along with manufacturer training technicians for aftercare, you can be sure that your business vehicles are our number one priority.

Robins & Day Citroën West London, 634 Chiswick High Road London, W4 5RY Tel: 0208 987 4000

Website: www.robinsandday.co.uk

Scangrip – A1

Scangrip provides a strong and comprehensive range of work lights designed to fit your needs. As one of Europe's leading manufacturers of innovative LED work lights, it is always reaching for that extra brightness, that extra operation time, those little touches that make a real difference when you need the best work light you can get.

Hultafors Group UK Limited Unit N3 Gate 4, Eltham Mills Ind Estate, Holmfirth HD9 4DS Tel: 01484 85 44 88 Website: www.snickersworkwear.co.uk

SPIT UK – A10

SPIT have just launched the PULSA 27E, a compact gas nailer designed just for electricians. This tool saves time and money by instantly fixing all sorts of cable, conduit, trunking, junction/back boxes and much more, directly into concrete, steel, timber and block.

SPIT also offer a large range of cable and conduit mounting accessories, including 18th edition compliant metal fixings.

ITW Construction Products, Cross Keys House, 50-52 The Broadway, Crawley RH10 1HB Tel: 07798 637451

Website: www.itwcp.com

Stabila – F8

Stabila are the industry’s most relied on and accurate spirit levels and lasers. They are constructed with a FIXED MOULDED VIAL which measures absolutely accurately even under demanding conditions with no readjustment necessary. All of Stabila products are distinguished by permanent accuracy, optimal handling qualities and attractive design.

Website: www.stabila.com

STANLEY – Sports Bar

STANLEY® is a leading global manufacturer of hand tools, power tools and accessories, and a flagship brand of the Stanley Black & Decker Corporation. STANLEY® Tools works alongside real tradespeople every-day to make sure its tools for trade are designed to help you give your best to every job.

Stanley Black & Decker, 210 Bath Road, Slough, Berkshire SL1 3YD Tel: 0114 244 8883

Website: www.stanleytools.co.uk

16

StealthMounts – F8

NEW FOR 2022! StealthMounts safely store and organise batteries, tools and spirit levels in your workshop, van, trailer & pick-ups, you can even keep batteries on your belt. StealthMounts have been made to be used with many known brands of power tools. Available in different brand colours.

Website: www.stealthmounts.org

StorageTek – B5

StorageTek is an innovative storage solution for consumables and tools in the van or workshop. The durable multi-compartment cases are supplied in a drawer system. The cases are locked in place while travelling and can be removed at the job. Visit the stand to see the StorageTek demo.

Website: https://storagetek.uk

Thanet Tool Supplies – B18

Thanet Tool Supplies has designed a dual brand contractors stand featuring Bisley Workwear, the number one Workwear brand in Australia, and Pyramex Safety Products, one of the largest global manufacturers of safety glasses. Bisley will introduce a new trade & leisure hoodie in the FLX & MOVE™ range. Pyramex will be using the show to launch a new, full line of PREMIUM workgloves.

Thanet Tool Supplies, Orbital Park, Monument Way, Willesborough, Ashford TN24 0HB Tel: 01233 501010 Website: www.thanettoolsupplies.co.uk

Trade Survey – D6

Trade Survey will be showing the latest rotary and cross line laser technology from Leica, together with damp meters from Protimeter. Also on show will be the latest video inspection cameras, lasers and electrical test equipment from Laserliner. Tradetuff and JCB LED lighting solutions will also be on display covering all aspects of rechargeable work lights and site lights.

Trade Survey, Unit 21 Western Rd, Stratford-upon-Avon CV37 0AH Tel: 0800 292 2188

Website: www.tradesurvey.co.uk

Triple X Trading – B53

All of the brand’s drill bits come with a 10 year guarantee. If you manage to break or damage them in anyway the company will replace them. (Terms & Conditions Apply). Visit the stand for more information.

Triple X Trading Ltd., Unit 104, 91 Mayflower Street, Plymouth, Devon PL1 1SB Website: www.drillallsales.com

17

Unilite – A4

Unilite are back at Sandown and are showcasing all their latest products, including new head torches and work lights. These will be available at special show prices, so a great time to grab a bargain! Make sure you pop over to the stand!

Unilite, The LAB Moons Moat Drive, Redditch B98 9FG Tel: 01527 584344 Website: www.unilite.co.uk

Vantainer – B14 & Outside

The Vantainer van racking system offers the ideal solution to transport tools and equipment safely, quickly and in an organised system. This is accomplished through a unique patented case system which enables all systainer® cases to be stacked and linked together. Manufactured in Germany by Tanos, the systainer® cases are renowned the world over for their functionality.

Vantainer, Greenbox Business Center, College Rd, Swanley BR8 7LT Tel: 020 3691 8833 Website: www.vantainer.com

Velocity Pro Gear – B10

Velocity Pro Gear offers affordable, premium, and innovative lines from backpacks to open totes. Its products are engineered to the highest standard for all trades and its team of Professionals have worked in a variety of Construction industries, that has enabled them to design and construct the tool storage you need.

Velocity Progear, Unit 4, Broadfield Barns, Kidderminster Road, Droitwich WR9 0PP Tel: 0845 544 2723 Website: www.velocity-progear.com

WD-40 Company – B26

WD-40® Specialist is a range of nine products developed over the past 11 years by the iconic company for specific roles which transcend throughout the day-to-day challenges faced by professional tradespeople.”The array of Specialist lubricants and cleaners essentially elevate WD-40®’s legendary Multi Use Product to another level of speciality”.

WD-40 UK, 252 Upper Third St, Milton Keynes MK9 1DZ Tel: 01908 555400 Website: www.wd40.co.uk

Wera Tools – C18

Wera is a leading global manufacturer of screw-driving tools, known worldwide for their innovation, functionality and unbeatable level of quality. Each product is designed to challenge existing standards and push boundaries, to ensure the user experience is easier, safer and full of joy!

Wera Tools (UK) Ltd., Railway View, Clay Cross, Chesterfield S45 9FR Website: www.wera-tools.co.uk

18

H&P

TRAINING ZONE

in association with

11.00 – 11.30

Changes to Part L, what you need to know How to comply with the increased energy performance standards as set in the new Building Regulations Presented by GTEC

12.00 – 12.30

Cut Down on Business Admin UK Country Manager at Fergus, James Chillman, will be talking about how to strike a better work/life balance by cutting down your business admin. Presented by Fergus

13.00 – 13.30

Heat pumps, the future of heating post 2025? Be ahead of the competition and start installing now. Presented by GTEC

14.00 – 14.30

Smart heating, how to reduce consumers heating costs See the opportunities in the heating solutions for future homes Presented by GTEC

19
HEATING AND PLUMBING
20 Stand C18
21 ELEX 2022 PROFESSIONAL
ELECTRICIAN The Electricians’ Exhibition
Sponsored
by
22 ELEX 2022 PROFESSIONAL ELECTRICIAN The Electricians’ Exhibition Sponsored by Advanced Access......................................................C52 Aico............................................................................C34 Alltrade......................................................................B34 Alpha Electronics........................................................B54 Ansell Electrical Products..........................................A11 A-Plan Insurance........................................................B13 BEG............................................................................C22 Big Change................................................................C47 Big Wipes..................................................................C19 Blaklader......................................................................D2 Bott Smartvan..............................................................F5 CAME BPT UK..............................................................D7 Cavius........................................................................C49 Checkatrade..............................................................A18 Chint..........................................................................B42 CLICK........................................................................B44 Circ Pro ....................................................................A19 Consumer Units........................................................D19 DDS (Digital Direct Security)......................................C30 DEWALT..........................................................Sports Bar ECA............................................................................C32 Electricals 24/7..........................................................B27 Electric Center............................................................H2 Electro-Replacement Ltd (ERL)..................................D13 Elite Security Products..............................................A14 Ford Motor Co....................................................Paddock Fergus Software Systems..........................................F16 Fujikura Europe..........................................................C17 Gap Lighting ..............................................................C24 GARO........................................................................C46 Google Nest................................................................A20 GloForce......................................................................F1 Hager........................................................................C48 Hamilton Litestat Group..............................................C26 Hik MICRO..................................................................C16 Hensel Electric..........................................................B50 Hook Up Solutions................................................outside Hultafors Tools..............................................................A1 Hylec-APL..................................................................B49 Ideal Industries..........................................................C45 IET..............................................................................H5 IRWIN..............................................................Sports Bar EXHIBITORS
23 Isuzu..................................................................Paddock Joint Industry Board..................................................B16 Kewtech Corporation..................................................B36 Knipex Tools UK............................................................B1 Ledvance..................................................................B32 Makita..........................................................................C3 Megger .....................................................................A13 Milwaukee..................................................................F10 Metrel UK..................................................................D16 MTi..............................................................................D1 NAPIT........................................................................C36 NightSearcher............................................................D18 Ovia Lighting..............................................................B46 Price Doctor................................................................D4 QuickFixJB..................................................................F9 Quickwire..................................................................F21 Quinetic......................................................................B28 RF Solutions................................................................A8 Ring..........................................................................D21 Robins & Day........................................................Outside Rolec..........................................................................F18 Saving Light Bulbs....................................................D10 Schneider Electric......................................................C54 SPIT UK......................................................................A10 Super Rod..................................................................D14 Surge Protection Devices..........................................D20 Switchtec..................................................................D17 STANLEY..........................................................Sports Bar Test Instrument Solutions..........................................B30 The Electrical Academy................................................A3 Thanet Tool Supplies..................................................B18 Trade Skills 4U..........................................................B22 Unicrimp....................................................................A17 Unilite International......................................................A4 Varilight......................................................................B48 Velbus........................................................................A21 Velocity Pro Gear........................................................B10 Wera Tools................................................................C18 Wiha Tools (UK)............................................................D9 Wilson Electrical Distributors......................................B38 Wise Controls............................................................C50 Wiska ........................................................................B40 ZAPTEC UK..................................................................F4 EXHIBITORS Sandown Park, Surrey Thursday 3rd & Friday 4th November
24

Advanced Access – C52

Relied on for 25 years, Advanced Access is the go-to trade only distributor for the UK’s leading brands in Access Control, Door Entry and CCTV, including all essential locking and accessory requirements. The company offers high levels of product knowledge, with friendly and efficient service, making it the number one choice for UK Installers.

Advanced Access, Unit 1b, Spinney View, Stone Cir Rd, Round Spinney Industrial Estate, Northampton NN3 8RF

Tel: 01604 647555 Website: www.advanced-access.co.uk

Aico – C34

Aico, an Ei Company, is a European market leader in home life safety, pioneering technologies and offering high quality alarms, developed and manufactured in Ireland. Aico expanded its Connected Home offering through HomeLINK. A high-tech software team that innovates home integration and analytic technologies.

Aico Ltd., Mile End Business Park, Maesbury Road, Oswestry, Shrops SY10 8NN Tel: 0870 758 4000 Website: www.aico.co.uk

Alltrade – B34

Smart Home, security and networking are lucrative new areas of business for electricians. Alltrade is a leading distributor serving these sectors, backing up its extensive product range with nationwide trade counters, free training, free delivery and free technical planning/support. Drop by the stand and chat over how your business can expand into these new areas, fully supported by Alltrade.

Alltrade, Unit 4, Sussex House, Business Park, 274 Old Shoreham Rd, Hove BN3 7EU Tel: 0344 225 2700 Website: www.alltrade.co.uk

Alpha Test Instrument Centre – B54

The UK’s leading Test Equipment Suppliers & Calibration Services. Check out the stand for the latest Multifunction Testers, Earth Leakage Clamps, Multimeters, PAT Testers, Two Pole Testers, Non-Contact Voltage Testers, Thermal Imaging Cameras & Electrical wiring accessories from Megger, Fluke, Seaward, Kewtech, Metrel & Martindale + many more!

Alpha Test Instrument Centre Unit 6 Spectrum Business Estate, Bircholt Road, Parkwood, Maidstone, Kent ME15 9YP Tel: 01622 690 187 Website: www.alpha-electronics.com

Ansell Lighting – A11

Ansell Lighting is a recognised market leader in the design and manufacture of high quality luminaires. Through its distribution channel the company supplies lighting fixtures for a variety of applications including NHS buildings, schools and colleges, retail as well as industrial units.

Ansell Electrical Products Limited, Unit 6B Stonecross Industrial Park, Yew Tree Way, Warrington WA3 3JD Tel: +44 (0)1942 433 502 Website: www.anselluk.com

25

A-Plan Insurance – B13

As a broker, A-Plan provides an advised and tailored service with high standards of personal care to its clients, ensuring policies closely match their needs. With over 100 branches across the country, A-Plan provides a local service, in branch or over the ‘phone.

A-Plan. 2 Des Roches Square, Witney OX28 4LE Tel: 01865 241 441 Website: www.aplan.co.uk

BEG (UK) –C22

With over 45 years of supplying innovative sensor solutions, BEG will be exhibiting its core product ranges at the Sandown event. The company’s new Dali range of compact PIR sensors, DACO will also be on display, along with Occulog, which provides a simple traffic light visual indication of the air quality in the room.

B.E.G. UK Ltd. Apex Court Grove House Camphill Road West Byfleet, Surrey KT14 6SQ Tel: 0870 850 5412 Website: www.beg-luxomat.com

BigChange – C47

BigChange is the complete Job Management Platform for the Fire Safety industry. It brings together CRM, job scheduling, live tracking, field resource management, financial management and business intelligence into one simple and easy to integrate platform. BigChange eliminates paperwork, providing real-time 24/7 visibility of jobs and instant reporting to customers.

BigChange, 3150 Century Way, Thorpe Park Gardens, Leeds LS15 8ZB Tel: 0113 457 1000 Website: www.bigchange.com

Big Wipes – F20

The market leading Big Wipes range with antiviral (EN14476) and antibacterial (EN1276) efficacy offers professional tradespeople an allin-one cleaning and disinfecting solution for hands, tools and surfaces. Dermatologically tested and non-toxic, Big Wipes cleaning wipes also contains four great skin conditioners which all help to nourish and protect the skin.

Sycamore UK Ltd, Willowbank House, 84 Station Road, Marlow, Buckinghamshire SL7 1NX Tel: 0845 680 0884 Website: www.bigwipes.com

Blaklader – D2

Blåkläder is a family-owned business that has been developing, manufacturing and selling workwear since 1959. It’s become one of Europe’s largest manufacturers of heavy-duty work garments, producing around 4,5 million garments a year at our own factories. Visit the stand to see the latest developments.

Blåkläder Workwear Ltd., 1 Chapel Street, Warwick CV34 4HL Tel: 448000288234 Website: www.blaklader.com

26
27

bott Smartvan – F5

The one stop shop for a full van conversion. From vehicle graphics through to self-fit, fully customisable van racking solutions, bott has you covered. Its specialist team is on hand around the clock to support with the conversion of your van. Visit the stand for a chance to win a surprise bundle with a Systainer themed competition.

bott Smartvan, Bude-Stratton Business Park, Bude, Cornwall EX23 8LY Tel: 0800 915 6013 Website: www.bottsmartvan.co.uk

CAME UK – D7

CAME is a leading manufacturer of automation equipment, including intercom receivers, door entry panels, automated gate motors, barriers, turnstiles, and a range of other products. Optimise business revenue and performance by installing the most advanced equipment on the market. Visit the stand at the Sandown event to find out how you can join one of the best installers in the industry.

CAME UK, Willow Farm Business Park, 1B Sills Rd, Castle Donington, Derby DE74 2US Tel: 0115 921 0430 Website: www.came.com

Cavius – C49

Cavius has been at the forefront of the fire alarm industry since 2004. The alarm design has revolutionised the smoke alarm industry, bringing not only an extremely well-functioning alarm, but a compact one too! Cavius Alarms use the highest quality components to ensure quality, reliability and stability.

Cavius, 27 LAURISTON STREET, EDINBURGH, EH3 9DQ Website: www.cavius.com

C K Tools – A6

C.K Tools produces innovative, high quality tools, designed to satisfy the most demanding needs of trade professionals. C.K’s wide range of products are all engineered to offer great performance, durability, accuracy and strength to achieve the best results. Visit the stand for a chance to win a brand-new EV Installation Tool Kit, worth over £1,200RRP. One kit will be given out at each show.

Carl Kammerling International Ltd, 7500 Daresbury Park, Daresbury, Cheshire WA4 4BS Tel: 01758 701 070 Website: www.carlkammerling.com

CLICK – B44

Scolmore’s Click wiring accessories range remains a firm favourite with electrical contractors and Elucian by Click is an extensive metal consumer unit range which includes AFDDs and protective devices. Visit the stand and take a look at our wiring accessory ranges including: Mode, Deco, Deco+, Define, Definity, New Media and our ClickSmart+ range. Plus you could bag yourself some Click Smart+ Goodies!

Scolmore Group, 1 Scolmore Park, Lichfield Road Ind. Est., Tamworth, Staffs B79 7XB Tel: 01827 63454 Website: www.scolmore.com

28

Checkatrade – A18

Join the UKs number 1 Trade Directory and get a Fuel card worth up to £200*. Whether you are a new trade looking to build your business or looking to fill a few gaps in your diary, Checkatrade will help you get local, relevant work. *For offer T’s & C’s please visit: https://join.checkatrade.com/fuel-terms

Checkatrade Building 2000,Lakeside North Harbour, Western Road, Portsmouth PO6 3EN Tel: 03330 329 557 Website: www.checkatrade.com

Chint Europe – B42

Chint Shield offers a complete low voltage electrical solution for domestic, commercial and industrial installations, with many products designed, manufactured and assembled in the UK. Continuous investment in quality people has allowed Chint Shield to develop a strong commercial and technical team, capable of supporting the needs of its growing customer base.

Chint Europe (UK) Ltd Units 9 & 11. Spark Business Park Hamilton Road, Stockport SK1 2AE Tel: 0161 762 9333 Website: www.chint.co.uk

Consumer Units – D19

Consumer Units was launched in 2020, with the aim of providing contractors with high quality consumer units and accessories at affordable prices. Its first product to launch was the 10 way, high integrity, fully loaded, split load board complete with an SPD. Following on from its success, a range of straight boards have now been launched. (2 way - 20 way), RCBO's, MCB's & RCD's.

Consumer Units, Unit 1 Herbert St, Oldham OL9 9LQ Tel: 0161 620 6621 Website: www.consumerunitsltd.co.uk

DDS – C30

Official Distributor of Uniview (UNV) & AJAX Security Systems; supplying professional IP CCTV & Wireless Security Alarm systems to TRADE. DDS offers a complete range of IP & HD Cameras, Recorders, PoE and Wifi solutions. It also supplies hybrid systems that support both HD & IP cameras. AJAX is an innovative award winning Wireless Security Alarm System developed in the EU.

DDS, 7, Osprey Court, Hinchingbrooke Business Park Kingfisher Way, Huntingdon PE29 6FN Tel: 01480 459809 Website: www.digitaldirectsecurity.co.uk

DEWALT – Sports Bar

DEWALT is a market-leading manufacturer of premium power tools, accessories, anchors and fixings that provides a fully integrated system solution for various applications. DEWALT tools offer unparalleled performance, with durable construction for a professional finish. Rely on DEWALT to get the job done, with a 3-year guarantee on every tool.

DEWALT 210 Bath Road, Slough, Berkshire SL1 3YD Tel: 01753 567055 Website: www.dewalt.co.uk

29
30

ECA – C32

ECA is the UK’s leading trade association that represents and supports the interests of businesses and organisations involved in electrotechnical and engineering services design, installation, inspection, testing, maintenance and monitoring. It offers Membership to businesses across the electrotechnical and engineering services industry achieving the highest industry standards and certifications.

ECA, Rotherwick House, 3 Thomas More St, St Katharine’s & Wapping, London E1W 1YZ

Tel: 020 7313 4856

Website: www.eca.co.uk

Electricals 24/7 – B27

Electricals 24/7 is an independent family run wholesaler, offering unrivalled service and expertise, a wide range of products and stock availability, unbeatable trade prices and next day delivery throughout the UK. There will be some excellent EV chargers showcased at the Sandown event, plus great show deals on its EV Chargers.

Electricals 24/7 UNIT 1, COOMBER WAY IND ESTATE, CROYDON, Greater London, CR0 4TQ

Website: www.electricals247.co.uk

The Electrical Academy – A3

The Electrical Academy - Kent's Number One Skills Training Centre for the electrical industry. Whether you're just starting out on your electrical journey, changing your career or need a technical update, take a look at our wide variety of accredited City & Guilds electrician courses held in Maidstone. The Electrical Academy's experienced trainers offer a variety of courses to suit your individual needs.

The Electrical Academy, Unit 1, Union Park, Bircholt Rd, Maidstone ME15 9XT

Tel: 01622 962455

Website: www.theelectricalacademy.co.uk

Electric Center – H2

Electric Center seeks to bring a new approach to customer service in the world of electrical wholesaling harnessing the power of its local branch network, expertise and relationships with suppliers. Visit the stand at the Sandown event to chat to the team and find out more.

Electric Center, PO Box 1, Tatton Street, Knutsford, Cheshire WA16 6AY Website: www.electric-center.co.uk

ERL – D13

ERL offers an extensive range of products, including Access Control and Door Entry, Time Switches, Smart Home Security and more. Its knowledgeable staff, together with comprehensive product support and advice, will help find the perfect solution for your commercial or domestic installations.

ERL, Moor Park Industrial Centre, 1, Tolpits Ln, Watford WD18 9EU

Tel: 01923 255344

Website: www.electroreplacement.com

31

ESP – A14

ESP’s core ranges currently include CCTV, Access Control, Emergency Lighting, Fire Protection and Smart Security. The Sangamo range of time switches and heating controls is also part of the ESP product portfolio. The latest development of the category sees the launch of a brand new 24/7 Colour IP CCTV range, which will take its CCTV offer to another level, visit the ESP stand to learn more!

ESP, Unit 7, Target Park, Shawbank Road, Lakeside, Redditch B98 8YN Tel: 01527 515150 Website: www.espuk.co.uk

Fergus Software Systems – F16

Fergus is the brainchild of Dan Pollard, a veteran Tradie. After going bust once and burning out once, Dan figured out that a trades business needs proper systems in place to keep it running – without running its owner into the ground. Fergus helps trades businesses across the UK manage the costs of running a trades business, keep jobs on track and find profitability.

Fergus Software Ltd., 22 Lever St, Manchester M1 1EA Tel: 0808 196 0868 Website: www.fergus.com

Ford Motor Company – Paddock

Visitors to the Ford Motor stand can learn how to plug in and charge, measure the benefits of living with an electrified vehicle and find out what model is best suited to their personal or business needs. They can also find out all there is to know about the science of electrification technology and how to reduce CO2 emissions and motoring running costs.

Ford Motor Company, 6 Dukes Gate, Acton Lane, London W4 5DX Tel: 0208 735 2000 Website: www.ford.co.uk

Fujikura – C17

Fujikura is one of the world's leading manufacturers of fibre optic cables and equipment for installation, measurement and testing. The Fujikura name has become synonymous with fibre optic fusion splicers and the company has become one of the world's leading suppliers to telecommunication companies around the globe.

Fujikura, C51 Barwell Business Park, Leatherhead Rd, Chessington KT9 2NY Tel: 020 8240 2000 Website: www.fujikura.co.uk

Gap Lighting – C24

GAP Lighting is a recognised leader in Smart LED lighting solutions and colour control systems. As the company celebrates 24 years in the industry, its love for lighting continues, as does its commitment to offering highly efficient multifunctional products created to be contemporary in design with unique features ideal for a wide range of project solutions.

Gap Lighting, Unit 14, Schooner Park, Schooner Court, Crossways Business Park, Dartford DA2 6NW Tel: 01322 620100

Website: www.gaplighting.co.uk

32
33

GARO – C46

GARO offers a range of premium EV charging stations and solutions backed by Nordic expertise and comprehensive warranties. It also has a full range of European Manufactured consumer units, enclosures, components, switchgear and CEE plugs and sockets. Visit the stand to find out about the latest developments.

GARO, Unit 16, Urban Express Park, Aston Hall Rd, Birmingham B6 7FH Tel: 0121 389 9444 Website: www.garo.co.uk

Google Nest – A20

Google Nest products work seamlessly together to make homes more helpful, so your customers can stay informed, comfortable and secure. And with devices powered by Hey Google, such as Nest Mini, they can control compatible connected home products with their voice. Meet the team and find out how you can become a Nest Pro and build the helpful home.

Google Nest, 20, 22 The Broadway, Newbury RG14 1AU Website: http://g.co/nest/pro

GloForce – F1

GloForce have a new range of work lights/machine lights which have magnetic goosenecks and clamped goosenecks with a range of lengths, enabling users to get light, right where they need it. They are extremely bright, dimmable, battery operated, so cordless and mobile, with run times of over 7 hours per charge.

GloForce, 81-83 Stokes Croft, Bristol BS1 3RD Tel: 0333 577 7505 Website: www.gloforce.com

Hager – C48

Hager’s new Power and Lighting board, available in 125A and 200A ratings, is based around a new energy meter developed specifically to provide greater flexibility through different distribution board configuration options. The 200A Power and lighting board delivers the greatest level application flexibility of any standard Power and Lighting board available today.

Hager Ltd, Hortonwood 50, Telford TF1 7FT Tel: +441952675605 Website: www.hager.com

Hamilton Litestat – C26

A British company, Hamilton designs, develops and manufactures innovative electrical accessories of the highest quality. With a vast product range spanning: decorative switch plates and sockets, smart lighting & blind control, and audio solutions, Hamilton is a one-stopshop for all wiring requirements for both domestic and hotel projects.

R Hamilton & Co. Ltd. Unit G Quarry Industrial Estate Mere Warminster Wiltshire BA12 6LA Tel: 01747 860088 Website: www.hamilton-litestat.com

34

Hensel Electric – B50

Hensel, a global leading manufacturer of IP rated cable junction boxes and distribution boards for all weather usage, including explosive zones, has huge UK stocks for next day delivery. Visit the stand at Sandown to experience the brand’s innovative products with 90 years of German manufacturing history.

Hensel Electric UK Ltd., Anglo Office Park, Ground Floor, Unit 5, Lincoln Rd, High Wycombe HP12 3FU Tel: 0345 066 0055 Website: www.hensel-electric.de

HikMICRO – C16

HikMicro is a leading provider of thermal imaging equipment and solutions. Specializing in SoC and MEMS design, development, and manufacturing, the company offers thermal detectors, cores, modules, cameras and total solutions to the global market, serving customers in more than 100 countries and regions..

Website: www.hikmicrotech.com

HiKOKI Power Tools – B7

HiKOKI UK proudly supplies high performance power tools to professional trades people. Boasting a comprehensive range of corded and cordless power tools, alongside an extended 5 year warranty; the HiKOKI team have got you covered!

HiKOKI Power Tools, Precedent Drive, Rooksley, Milton Keynes, Buckinghamshire MK13 8PJ

Tel: 01908 660663

Website: www.hikoki-powertools.co.uk

Hook Up Solutions – Outside

We look forward to welcoming visitors to our stand and introducing our ultimate steel beam move and installation service. Considered to be the safest, easiest and fastest steel beam move and installation service for restricted access sites. Take the stress, labour costs and injury risk out of steel beam handling and installation.

Hook Up Solutions Limited, Unit 1, Royston Road, BALDOCK, Herts SG7 6PA

Tel: 01462 499 642 Website: www.steelbeamlifter.co.uk

Hultafors Tools – A1

Hultafors develops innovative workwear, sustainable tools and forward-thinking solutions to give professional users the best of functionality, safety, protection and efficiency. Visit the stand to see the latest developments across the brands.

Hultafors Group UK Limited Unit N3 Gate 4, Eltham Mills Ind Estate, Holmfirth HD9 4DS

Tel: 01484 85 44 88

Website: www.snickersworkwear.co.uk

35
36

Hylec-APL – B49

Specialist manufacturer and supplier of electrical and electronic components, Hylec-APL is showcasing its latest range of products for Electrical Contractors. The majority of Hylec products are its own successful patented designs, others are some of the best examples of electrical and electronic components available globally and only available in the UK & Ireland exclusively through Hylec.

Hylec-APL Ltd., 5 Everitt Cl, Denington Industrial Estate, Wellingborough NN8 2QE

Tel: 01933 234400 Website: www.hylec-apl.com

Ideal Industries – C45

IDEAL INDUSTRIES is exhibiting the 32A Gen II Lever wire connectors certified for use with the In-Sure® Box for enclosure installation plus the SpliceLine® and Push In connectors, Twin and Earth Stripper, FT45® Feed-Thru Modular Plug Solution, Lockout/Tagout kits and new Test & Measurement range on stand C45.

Ideal Industries, Unit 3, Boulevard, Europa Blvd, Warrington WA5 7TN Tel: 01925 444446 Website: www.idealind.com

IET – H5

Visit the IET stand at ELEX to find out more about the recent changes to the IET Wiring Regulations. Get 20% off Amendment 2:2022 to BS 7671:2018 18th Edition of the IET Wiring Regulations and all updated guidance on the stand.

The Institution of Engineering and Technology, Michael Faraday House, Six Hills Way, Stevenage, Herts SG1 2AY Tel: 01438 767328 Website: www.theiet.org/wiringregs

IRWIN – Sports Bar

Innovation is the hallmark of IRWIN. For more than 100 years, it's been an idea that has permeated the culture of the company, and it continues to be its driving force. From product development to distribution and use in the field, the company dedicates itself to delivering quality tools that meet the stringent requirements of professional tradespeople.

Stanley Black & Decker, 210 Bath Road, Slough, Berkshire SL1 3YD Tel: 01543 447000 Website: www.stanleyblackanddecker.com

Isuzu – Paddock

The Isuzu D-Max is setting standards high in the pick-up truck world. Awarded the maximum five-star safety rating awarded Max in the tough new Euro NCAP test. The Isuzu D-Max ticks all the boxes for its impressive capability, durability and reliability, to become the smartest, strongest and safest Isuzu D-Max of all time.

Isuzu UK 64 Great North Rd, Birchwood, Hatfield AL9 5JN Tel: 01707 282930 Website: www.isuzu.co.uk

37

Joint Industry Board – B16

The JIB is an impartial organisation that sets the standards for employment, welfare, grading and apprentice training in the electrical contracting industry. The Electrotechnical Certification Scheme (ECS) is the sole ID and competence card scheme for electrotechnical operatives in the UK. The JIB administers the ECS scheme in England, Wales and Northern Ireland.

Joint Industry Board, Unit 2, White Oak Square, London Rd, Swanley BR8 9AG Tel: 01322 661600 Website: www.jib.org.uk

Kewtech Corporation – B36

The KT66EV is the ultimate EV testing solution on the market, which includes the comprehensive KT66DL 12-in-1 multifunction tester along with the KEWEVSE testing adapter. Visit the Kewtech stand for a full product demonstration and to see the full range of Safe Isolation kits, PAT testers and 18th Edition accessories.

Kewtech Corporation Ltd., Suite 3 Halfpenny Court Halfpenny Lane, Sunningdale, Berkshire SL5 0EF Tel: 01522 546 905 website: www.kewtechcorp.com

Knipex Tools – B1

KNIPEX specialises in the manufacture of high quality pliers. Designed and manufactured with the highest degree of reliability and subjected to rigorous tests, KNIPEX products are trusted by professional users in 100 countries throughout the world. Meet the team at this year’s show and see for yourself why KNIPEX is the only choice for the professional.

Knipex Tools, Oakley House Headway Business Park, 3 Saxon Way W, Corby NN18 9EZ Tel: 07464 847278 Website: www.knipex.com

Ledvance – B32

LEDVANCE is a leading international business and has embedded in it a deserved reputation for innovative lighting products and applications. The product range includes traditional lighting, modern LED lamps and standardised over-the-counter luminaires. Additionally, it has a portfolio of connected smart lighting solutions for residential homes and buildings.

Ledvance UK Ltd., Aquila House, Delta Cres, Westbrook, Warrington WA5 7NR Tel: 01925 465000 Website: www.ledvance.com

Makita – A21

Makita will be showcasing its 80v Max (40v Max x2) 355mm (14") XGT Power Cutter with brushless motor technology, which provides all the power you will need. The CE001G features both anti-restart & lock-off functions, electric brake, and Makita’s ‘Active Feedback Sensing Technology’ (AFT) to protect the operator and the machine.

Makita UK, Michigan Drive, Tongwell, Milton Keynes, Bucks MK15 8JD Tel: 01908 211678 Website: www.makitauk.com

38
39

Megger – A13

Megger will be exhibiting its range of low voltage installation test instruments. The company will also showcase the MET1000, a multifunctional voltage and current tester providing electricians with a versatile and robust hand-held all-in-one meter and the DCM305E Earth leakage clampmeter, designed to measure differential current to aid fault finding.

Megger, Archcliffe Road, Dover, Kent CT17 9EN Tel: 01304 502100

Website: www.megger.com

Metrel – D16

Metrel was established in 1957 and has become one of world’s leading manufacturers of measuring and testing equipment. It is one of the few companies in our industry that develops and manufactures products at a single location, starting with design and eding with final assembly, quality control and calibration.

Metrel UK, Unit 16 1st Quarter Business Park, Blenheim Road, Epsom, Surrey KT19 9QN Tel: 01924 245 000

Website: www.metrel.co.uk

Milwaukee Tool UK – F10

Milwaukee is one of the fastest growing power tool brands in the market. At the stand, you will see a wide range of trade specific solutions. Whether it is through the company’s world leading M12™, M18™, its jobsite lighting, time saving accessories or innovative hand tools and storage systems.

Milwaukee Tool UK Globeside Business Park Unit 3, Fieldhouse Lane, Marlow SL7 1HZ Tel: 01628 894400

Website: www.ttigroup.com

MK (authorised licensee) – A19

The MK Sentry circuit protection product range has been in production for more than 40 years. The extensive product range fully complies with the requirement of the 18th Edition Regulations. CircPro (UK) Limited are the registered company to provide the sales and distribution to the UK market.

MK Sentry, 3c Lamson Road, Rainham, Essex RM13 9YY Tel: +44 (0)170 8986 180 Website: www.circpro.co.uk

MTi – D1

MTi offers a wide range of test equipment from the UK’s leading manufactrers, including Megger and Fluke. Visit the MTi stand and get hands on with the latest test equipment, including the new EV multifunction tester and adaptor from ETHOS. You could also win a Fluke T6-1000 PRO worth £268.00!

A Division Bristol Group Unit 12, Access 18, Bristol BS11 8HT Tel: 01179 386 400

40

NAPIT – C36

NAPIT are a leading Government approved and United Kingdom Accreditation Service (UKAS) accredited membership scheme operator in the building services and fabric sector. With a wealth of experience, technical expertise and a vast array of products and services, NAPIT offers the complete solution for certification, training, and business support services.

NAPIT, 4th Floor, Mill 3 Pleasley Vale Business Park, Mansfield, Nottinghamshire NG19 8RL

Tel: 0345 543 0330 Website: www.napit.org.uk

NightSearcher – D18

NightSearcher is continually innovating to deliver new and improved LED lighting solutions. The company embraces the latest in technology to make industry-leading and renowned products. Its new Kanga Star work light features an ingenious, hybrid power system and accepts rechargeable batteries from seven of the world’s leading power tool brands.

NightSearcher, Unit 4, Applied House, Fitzherbert Spur, Farlington, Portsmouth PO6 1TT

Tel: 023 9238 9774 Website: www.nightsearcher.co.uk

OVIA Lighting – B46

OVIA offers installers an extensive range of high quality, competitivelypriced products. Ovia has released its fourth catalogue issue and sitting within the overall collection is the premium range of inceptor products: Inceptor Duo, Inceptor Hi-Lite and Inceptor U-Lite. Ovia is offering a dedicated lighting design service, allowing customers to access free lighting design schemes for commercial projects.

Scolmore Group, 1 Scolmore Park, Lichfield Road Ind. Est., Tamworth, Staffs B79 7XB

Tel: 01827 63454 Website: www.scolmore.com

Price Doctor – D4

Price Doctor is an online application to price enquiries and then create accurate quotes. Send professional looking quotes or estimates in minutes, allowing you to win more work for even less time and effort. Everything you need to manage enquiries right through to successful invoices all in one place.

DIY Doctor Ltd., Workshop, Newbury Works, Coleford, Somerset BA3 5RX Tel: 01373 228230 Website: www.pricedoctor.co.uk

QuickFix JB – F9

QUICKFIX-JB 3 and QUICKFIX-JB 4 has been designed for use with Wago 221 Series Connectors. Complied with IP20 standard, no screwdriver is required and is Flame Retardant EN60598. Designed and manufactured in the UK.

QuickFix JB, Suite 33, Milton Keynes Business Centre, Foxhunter Drive, Linford Wood, Milton Keynes MK14 6GD Tel: 0800 0862261 Website: www.quickfixjb.co.uk

41
42

Quickwire – F21

Quickwire boasts an exciting range of new products that offer a timesaving alternative to traditional lighting connection methods. Using the Quickwire system can help electricians save significant time and cost when on site. Visit the stand at Sandown to chat to the team and find out more.

Quickwire, Ruscombe Business Park, Ruscombe Ln, Twyford, Reading RG10 9JW

Tel: 0118 384 0025 Website: www.quickwire.co.uk

Quinetic – B28

The Quinetic Wireless Switch range - easy to use with simple and flexible installation. No battery and no wiring to the switch. Ideal for lighting, workshops & sheds, listed buildings, conservatories, assisted living & many other applications. Standard receivers controlled via switches and Wi-Fi receivers controlled via an app, Alexa & Google Home.

TLC Direct, TLC Building, Newton Rd, Crawley, West Sussex RH10 9TS

Tel: 01293 848030 Website: www.tlc-direct.co.uk

RF Solutions – A8

RF Solutions has been manufacturing radio modules, remote control systems for over 30 years, and most recently IOT Sensors. The UK's leading supplier of RF remote control and Telemetry systems are suitable for a wide range of domestic and industrial applications providing an open line of sight of up to 16Km+.

RF Solutions, William Alexander House, 1 William Way, Burgess Hill RH15 9AG

Tel: 01444 227900 Website: www.rfsolutions.co.uk

Ring – D21

Ring is thrilled to be supporting trade professionals across the UK through the Ring Professional Programme. Visit the stand at the Sandown event to find out more about the programme and how to help your customers create safer neighbourhoods, and chat with the team directly.

Ring, c/o The Beacon Agency, 59a Peach St, Wokingham RG40 1XP Tel: 0118 901 0449 Website: www.beaconagency.co.uk

Robins & Day – Outside

Robins & Day by Stellantis &You London West is part of the largest Citroën dealer group in the UK. Offering a wide range of van sizes, competitive finance options along with manufacturer training technicians for aftercare, you can be sure that your business vehicles are our number one priority.

Robins & Day Citroën West London, 634 Chiswick High Road London, W4 5RY Tel: 0208 987 4000 Website: www.robinsandday.co.uk

43

Rolec – F18

As the UK prepares for a net-zero future, Rolec plays a pivotal role in ensuring that both drivers and businesses are equipped for the nation’s electrification plans. With over 10 years of experience in the electric vehicle charging industry and over 290,000 chargepoints installed, Rolec continues to serve the industry with its innovations in charging hardware and software.

Rolec, Ralphs Lane, Frampton West, Boston, Lincolnshire PE20 1QU

Tel: 01205 724754 Website: www.rolec-serv.co.uk

Saving Light Bulbs – D10

Saving Light Bulbs provides high quality LED lighting products and solutions. Its range includes all the latest LED lamps from GU10’s to G125 Globes, the highest quality LED tape, including RGBW and the continuous COB tape. To complement this the company supplies and designs lighting control systems including DMX and Rako.

Saving Light Bulbs, Farnham Rd, Holt Pound, Farnham GU10 4LE Tel: 01420 520521

Website: www.saving-light-bulbs.co.uk

Schneider Electric – C54

Schneider Electric believes that access to energy and digital is a basic human right, so they empower everyone to make the most of their energy and resources - ensuring that Life Is On everywhere, for everyone, at every moment.

Schneider Electric, 80 Victoria Street, London SW1E 5JL Tel: 01952 220358 Website: www.se.com

SPIT UK - A10

SPIT have just launched the PULSA 27E, a compact gas nailer designed just for electricians. This tool saves time and money by instantly fixing all sorts of cable, conduit, trunking, junction/back boxes and much more, directly into concrete, steel, timber and block.

SPIT also offer a large range of cable and conduit mounting accessories, including 18th edition compliant metal fixings.

ITW Construction Products, Cross Keys House, 50-52 The Broadway, Crawley RH10 1HB Tel: 07798 637451 Website: www.itwcp.com

STANLEY – Sports Bar

STANLEY® is a leading global manufacturer of hand tools, power tools and accessories, and a flagship brand of the Stanley Black & Decker Corporation. STANLEY® Tools works alongside real tradespeople every-day to make sure its tools for trade are designed to help you give your best to every job.

Stanley Black & Decker, 210 Bath Road, Slough, Berkshire SL1 3YD Tel: 0114 244 8883

Website: www.stanleytools.co.uk

44
45

Super Rod – D14

Welcome to the “World of Rod”! We like to think of Super Rod as a big family, offering a range of labour-saving tools, designed to meet the needs of tradesmen involved with the installation of cable. These tools save time, reduce frustration and increase productivity!

Super Rod, Torfaen Business Centre, Unit 12 Gilchrist Thomas Industrial Estate, Blaenavon, Pontypool NP4 9RL Tel: 01495 792000 Website: www.super-rod.co.uk

Surge Protection Devices – D20

SPD and its partners have been solving problems in Lightning & Surge Protection for over 50 years. Its devices are European designed and manufactured, state of the art products, which exceed the requirements of the latest standards. With over 3000 products in its range, SPD are the market’s Surge Protection specialists, with a device to suit every installation.

Surge Protection Devices, Ash Royd Farm, Royd Road Meltham, Holmfirth, West Yorkshire HD9 4BG Website: www.surgedevices.co.uk

Switchtec – D17

Switchtec has been a UK franchisee for world-wide manufacturers of quality components for the over 40 years. Its products are ideally suited for the Electrical Wholesale market with over seven thousand product lines ex-stock. Visit the stand to view a wide range of surge protection, switchgear, control components, cable termination and audible and visual alarms.

Switchtec Ltd., Brooms Road, Stone Business Park, Stone ST15 0SH Tel: 01785 818600 Website: www.switchtec.com

Test Instrument Solutions – B30

Visit the stand to see the new TIS 700 Elite Downloading Pat Tester, which stores results onto an SD card and produces professional reports, without costly software. Also the new MFTPRO Tester, which carries out all the tests from the 18th Edition Plus, Power Quality Analysis, Voltage Drop & Earth Leakage Tests.

Test Instrument Solutions, First Floor Middle Mill, Carlinghow Mills, Bradford Road, Batley, West Yorkshire WF17 8LN

Tel: 01924 471 600 Website: www.testinstrumentsolutions.co.uk

Thanet Tool Supplies – B18

Thanet Tool Supplies has designed a dual brand contractors stand featuring Bisley Workwear, the number one Workwear brand in Australia, and Pyramex Safety Products, one of the largest global manufacturers of safety glasses. Bisley will introduce a new trade & leisure hoodie in the FLX & MOVE™ range. Pyramex will be using the show to launch a new, full line of PREMIUM workgloves.

Thanet Tool Supplies, Orbital Park, Monument Way, Willesborough, Ashford TN24 0HB

Tel: 01233 501010 Website: www.thanettoolsupplies.co.uk

46

Trade Skills 4U – B22

Trade Skills 4U are the UK’s leading specialist electrical training company. Come and pay us a visit and find out how we can help you achieve your goals whether you want to specialise in a new skills such as EV charging point installation or simply retrain as an electrician.

Trade Skills 4U Mitre court, Fleming Way, Crawley RH10 9JY Tel: 01293 529777

Website: www.tradeskills4u.co.uk

Unicrimp – A17

Unicrimp offers a comprehensive range of cable accessory products. Marketed under Q-Crimp, the range includes cable ties, crimp terminals, PVC tape, copper tube terminals, cable clips, and brass/ nylon glands. The Q-Fire fire-rated product range will help installers satisfy the latest regulations. Unicrimp also supplies OB1, the multisurface sealant and adhesive brand.

Scolmore Group, 1 Scolmore Park, Lichfield Road Ind. Est., Tamworth, Staffs B79 7XB

Tel: 01827 63454

Website: www.scolmore.com

Unilite – A4

Unilite is back at Sandown and will be showcasing all its latest products, including new head torches and work lights. These will be available at special show prices, so a great time to grab a bargain! Make sure you pop over to the stand!

Unilite, The LAB, Winyates Way, Moons Moat North Industrial Estate, Redditch B98 9FG

Tel: 01527 584344

Website: www.unilite.co.uk

Varilight – B48

Varilight, the UK’s number one dimmer switch and decorative wiring accessory manufacturer, will display a selection of its extensive range of over 5000 products, including the brand’s Urban Screwless range. Also on show will be the V-Pro Smart WiFi dimmer.

Systems-M-Arena, Carylls Lea, Faygate Lane, Horsham RH12 4SJ Tel: 01293 851563

Velbus – A21

Velbus® digital building control modules offer the professional installer an easy to install and commission, fully wired ‘Smart home’ solution for heating and lighting. This standalone decentralised system means installation and future additions are easy. The market leading 10 warranty ensures your customers have worry free ownership.

MDAR Ltd., 32 Newton Road, Strixton, Northamptonshire NN29 7QN

Tel: 01933 213697

Website: www.mdar.co.uk

47

TITLE!

48 KEEP UP-TO-DATE WITH THE LATEST ELECTRICAL PRODUCTS ALL YEAR ROUND WITH THE UK’S LEADING TRADE
Available free-of-charge in all leading electrical wholesalers across the country.

Velocity Pro Gear – B10

Velocity Pro Gear offers affordable, premium, and innovative lines from backpacks to open totes. Its products are engineered to the highest standard for all trades and its team of Professionals have worked in a variety of Construction industries, that has enabled them to design and construct the tool storage you need.

Velocity Progear, Unit 4, Broadfield Barns, Kidderminster Road, Droitwich,WR9 0PP Tel: 0845 544 2723 Website: www.velocity-progear.com

Wera Tools – C18

Wera is a leading global manufacturer of screw-driving tools, known worldwide for their innovation, functionality and unbeatable level of quality. Each product is designed to challenge existing standards and push boundaries, to ensure the user experience is easier, safer and full of joy!

Wera Tools (UK) Ltd., Railway View, Clay Cross, Chesterfield S45 9FR Website: www.wera-tools.co.uk

Wiha Tools – D9

Wiha seeks to make daily life easier for users with a product assortment of innovative hand tool solutions geared towards user needs. This is why Wiha develops, designs and manufactures products that meet the strictest requirements for quality, functionality, durability and ergonomic design. Visit the stand to see the latest products available.

Wiha Tools Ltd 17 The Courtyard Buntsford Gate, Bromsgrove B60 3DJ Website: www.wiha.com

Wilson Electrical Distributors – B38

Wilsons are an independent Electrical Wholesaler, founded in 1977, based in the South of England but able to offer a nationwide service. We currently have 12 branches, all holding large stocks, so we can support our customers' needs with immediate effect whilst offering competitive pricing.

Wilson Electrical Distributors, Midleton Industrial Estate Rd, Guildford GU2 8XW Tel: 01483 502602 Website: www.wilsonelectrical.co.uk

Wise Controls – C50

The Wise Box Direct Kit from Wise Controls is the new way to control your lighting outside and in, using an App. With no need for any WiFi hub, this is a simple control system. Visit the stand to see the latest products and a range of lighting from Mr Resistor.

Wise Controls, 9-23 Lydden Road Wandsworth, London SW18 4LT Website: www.wisecontrols.com

49

Wiska – B40

Established in 2000, WISKA UK is the UK's market leader in the manufacture and supply of Junction Boxes, Cable Glands and Gel/ Gel Jointing products. Its products are designed, developed and tested extensively by a team of highly skilled Designers and Engineers at its facilities in Germany.

WISKA UK Ltd. Unit 7 Hurling Way, St Columb Major Business Park, St Columb Major, Cornwall TR9 6SX Tel: 01208 816062 Website: www.wiska.co.uk

Zaptec – F4

Award winning Zaptec combines the latest tech with human-centred design to offer highly intuitive and efficient EV chargers ‘Zaptec Go & Pro’ and EV charging systems that ensure easier access to personal electric transport. Visit the stand to find out more.

Zaptec, 5 Barber St, Broseley TF12 5NR Tel: 07949 409832 Website: www.zaptec.com

50
51

IET THEATRE

10.30 – 11.00

BS 7671 AMENDMENT 2 OVERVIEW

The Wiring Regulations have been significantly updated for 2022; join this seminar to hear about the significant changes and learn what you need to know to stay safe and compliant. BS 7671:2018+A2:2022 topics will include, Requirements for AFDD’s, RCDs & Risk Assessments, A new method for determining the requirement to provide over-voltage protection SPDs, Labelling and Testing and certification.

Presen ted by NAPIT JPEL 64 exper ts, with su pport fr om a p an el of man ufactur ing exper ts

11.40 – 12.10

IET INDUSTRY FORUM

The IET hosts the industry forum to debate the hottest topics in the industry today with an expert panel from the IET, ECA, and NAPIT. Forum 1 –Inspection & Testing – changes in BS 7671:2018+A2:2022 – Focussing on Neutral Current Diversion (NCD) and changes to Model Forms for certification and reporting in BS 7671:2018+A2:2022.

Presented by IET

12.15-12.45

MAINTAINING LIGHTING LEVELS

Jake and Tim will be discussing the need to maintain lighting levels should there be a power failure and how as a contractor, you can best comply with BS5266 and the associated standards.

Pr esented b y Ovia

12.50 – 13.20

HOW TO CODE THE OBSERVATIONS FOUND DURING EICR’S

This interactive debate and lively discussion has been updated for 2022 to align with BS 7671:2018+A2:2022. Using real-world examples, come along to find out how to deal with the problems encountered when coding observations found while carrying out EICRs.

Pr esented b y NAPIT

13.25 – 13.55

IET INDUSTRY FORUM

The IET hosts the industry forum to debate the hottest topics in the industry today with an expert panel from the IET, ECA, and NAPIT. Forum 2 – Consumer Units – changes in BS 7671:2018+A2:2022 Loading, incorporation of switchgear, AFDDs and RCDs and changes in BS 7671:2018+A2:2022.

Presented by IET

14.00 – 14.30

TECHNOLOGY TO PROMOTE RESIDENT SAFETY AND PROVIDE SAFER HOMES

With technological advancements progressing the connected home, we examine how this translates to resident safety, the benefits it can bring to proactive management of housing stock and how this facilitates a solution-focused approach. We also examine another dimension to resident safety through monitoring home health data and see how smarter, healthier homes lead to safer communities.

Presen ted by Aico

14.35 – 15.05

SURGE PROTECTION BASICS

Explore the basics of surge protection, along with current regulations and amendments expected within the 2nd amendment of the 18th Edition

Presented b y Surge Protection Devices

52
ELEX 2022 PROFESSIONAL ELECTRICIAN The Electricians’ Exhibition Sponsored by

Sandown

IET LEARNING LOUNGE

10.40 – 11.10

WHEN TO REFERENCE PART 7 OF BS7671

Special locations are a big part of the requirements that often do not get referenced by contractors. Jake and Tim will be discussing when to use Part 7 – Special locations of the regulations within specific installations.

Presen ted by Click

11.15 – 11.45

FOCUS ON AFDDS

AFDDs were introduced as a recommendation with the publication of the 18th edition Amendment 2 mandates their use for certain circuits with specific building types. This seminar looks at the practical implications of designing, installing, testing, certification and fault diagnostics using these devices

Presen ted by Hager with supp or t from NAPIT J PE L 64 experts

12.30 – 13.00

THE WITHDRAWAL OF BS 7671:2018+A1:2020

This is of major importance to electrical installers as, on 27th September 2022, BS 7671:2018+A1:2020 will be withdrawn. This is the first time any version of BS 7671 will have been withdrawn. The presentation will explain what the implications are from contractual and legal points of view and will provide an overview of the technical aspects of BS 7671 that will, effectively, change overnight.

Pr esented by IET

14.15–14.45

THE IMPORTANCE OF LOAD CONTROL WHEN INSTALLING EVSE

This seminar provides information on how to do it along with design considerations.

Presen ted by Garo

53
Park, Surrey Thursday 3rd & Friday 4th November
TOOLFAIR 2022 PROFESSIONAL BUILDER POWER TOOLS • HAND TOOLS • BUILDING EQUIPMENT Professional LIVE! ELEX 2022 PROFESSIONAL ELECTRICIAN The Electricians’ Exhibition Sponsored by Sandown Park, Surrey Thursday 3rd & Friday 4th November IET SEMINAR THEATRE * DOWNSTAIRS IET LEARNING LOUNGE H&P TRAINING ZONE FREE BACON ROLLS & T-SHIRTSENTRANCE *

Turn static files into dynamic content formats.

Create a flipbook
Issuu converts static files into: digital portfolios, online yearbooks, online catalogs, digital photo albums and more. Sign up and create your flipbook.