HAISUM_ARCHITECTURE_PORTFOLIO

Page 1


Designer

Selected Work

DESIGN PHILOSPHY

ABOUT ME

I'm Haisum Basharat, a multidisciplinary designer passionate about projects with a positive social impact. My design philosophy centers on curiosity, collaboration, and making a difference. I strive for excellence and build strong team relationships.

Growing up in Pakistan, I was immersed in a rich cultural environment, which taught me to be adaptable and street smart. This upbringing fuels my creative approach and ability to navigate diverse challenges in the design world.

My biggest strength is my family and I also offer strong extensive training in research, creative design, conceptual thinking and digital fabrication.

WEAVING ARCHITECTURE: COMMUNITY AND CULTURE

Architectural discourse at the intersection of textile industry and sustainability.

Course: Thesis Project, Spring 2023

Prof. Cara Liberatore, Prof. Evan Farley, School: Rhode Island School of Design

Type: Individual Project

Location Faislabad, Punjab, Pakistan

The textile industry has long been criticized for its detrimental impact on the environment and cultures.

Architecture has historically perpetuated cultural and environmental injustices. My thesis seeks to advocate for architectural representation that supports cultural empowerment, environmental sustainability, and local agency. Through creative investigation, it seeks to heal communties by leveraging architecture as a tool for positive social change and cultural preservation.

Focusing on textiles supply, I took design inspiration from weaving thread and designed a textile campus which provides living, manufacuturing and harbesting aligning with local culture and ecology.

WEAVE ITERATION #1
WEAVE ITERATION #2
WEAVE ITERATION #3
WEAVE ITERATION #4
TRANSLATING 2D INTO 3D
EXISTING COLONIAL GRID
ROTATING COLONIAL GRID
BREAKING DOWN SCALE

RECLAIMING LAND: BUILDING RESILIENCE

Architectural discourse around sustainability and context based solutions.

Course: Thesis Project, Fall 2019

Thesis Advisor: Dr. Gulzar Haider, School: Beaconhouse National University

Type: Individual Project

Sofwares: AutoCAD, Sketchup, Photoshop, Lumion

Location: Lahore, Pakistan

One of the rising challenges that the cities face is climate change and my thesis offers a new approach to reimagine communties affected by climate change. By studying context of the site, my design offers accessible architecture solution for these communties.

By analyzing local culture and needs of the community, architecture adopts a new identity one that arises from its context.

Context

River Ravi is considered to be heart of the city of Lahore. In recent times, banks of the river have been inhabited by indigenious communities that are pushed to the margins of the city.

Site Conditions

These informal settles are affected by seasonal floods during moonsoon season and are characterized by density of population, lack of living spaces and make-shift structures.

Redirecting Water Through Design

Through a thorough study of boundaries, thresholds, and walls, I designed the boundary wall to redirect the water flow of the river during moonsoon to prevent flooding while also mitigating the impact of flooding in the area.

The whole intervention steps down towards the river. The design accommodates seasonal floods, with the modules on the highest levels to accomodate local communties. At river level, boat-rides to the Mughal monument are available, promoting tourism to the site.

Agricultural zone for local farming
Housing zone for local community
Public park for local events and tourism

Throughout the year, river becomes a site for tourist attraction to immerse with river and engage in the practice of agriculture.

Seasonal Floods As Resource

During the flood season, the design of wall calms the water down submerging bottom level underneath, which allows for soil and mud deposit.

WINTER SEASON
FLOODING SEASON
TOURISM
MUD DEPOSIT COLLECTION

Communal spaces for visitors and local people to interact and exchange cultures.

Wall Design for younger kids and disabled people to enjoy the riverfront

Trees provide natural shading lowering the carbon foot print
Communal housing for local communtiy
EXPERIENTIAL VISUALS

ACADEMIC: VIEW ON: THE VESSEL

Course: Advanced Studio, Spring, 2022

Professor: Evan Farley, Maxim School: Rhode Island School of Design

Type: Individual Project

Sofwares: Rhino, Sketchup, Photoshop, Illustrator

Location: Olneyville, Providence

This project focuses on urban revitalization efforts in providence. Once the City’s major manufacturing corridor, the Olneyville neighborhood is a relic of old industry that is currently undergoing an active revitalization effort. I used ceramics for design inspiration and designed makers space on vacant parking lot that can leave a postive impact.

Attended ceramics workshop for learning slip casting and mold making.

First phase of the project starts with finding objects for making moulds. I used industrial objects like PVD pipe for making moulds with clay and plaster.

After the mould, second phase included clip casting through moulds which included pouring slip clay into plaster mould, the moisture from clay is absorbed by the plaster leaving thin layer of layer ready to be demoulded

Mould Making
Ceramics: Slip Casting
Slip casted ceramic
Clay Moulding
Plaster moulds filled with liquid
Plaster moulds
Slip casted ceramic

Located in Olneyville, Providence current site conditions include vacant parking lots with little to no use surrounded by industrial buildings.

Pet-G Acrylic sheet heated and morphed through vaccum forming and ceramic vessel slip casted through plaster moulds
Ceramics After Firing

Studio spaces for cermic artists in the back for privacy, connected with outdoors for healthy conditions.

Factory space for artist and local workers for production.

Public park as communal space for cultural exhange and hosting exhibitons for the factory.

Open floor plan allows for transparent space connecting the building with surrounding context and community.

Ceramic Factory
Isometric Drawing
Public park as communal space for cultural exhange and hosting exhibitons for the factory.
Factory space for artists and local workers for production of ceramics.

PROFESSIONAL: CULTURAL ARTS CENTER

Course: Core Studio, Fall, 2022

Professor: Jacqueline Shaw

School: Rhode Island School of Design

Type: Individual Project

Sofwares: Rhino, Photoshop, Illustrator

Location: Providence, RI

This project explores the concept of duality deep, shallow, above and below ground. I designed the pavilion in open space at John Brown Museum as a way open up conversation for legacy of slavery and used that as a concept to design with pavilion expressing heirarchal relations into space hence the above and below relationship.

Folding Experiment

Using bristol board, I started to play with foldings trying out multiple iterations understanding multiple ways in which surfaces can be folded to create spatial enclosure.

Mountain Fold
Valley Fold
Transformation of surface into space
Located at John Brown Museum in Providence, my design connects below and above the ground in relation to the museum and its history.
Folding Pavilion
Model Photos
Above the Ground Below the Ground

Company: Moods Studio

Team: Haisum Basharat, Gulzar Haider

Type: Architectural Representation

Softwares: Premiere Pro, After Effects, Photoshop Location Lahore, Pakistan

SHADOW BELONGS TO LIGHT: "Light is giver of all presence. All materials in nature, mountain, streams, air and human are made of light. The dark shadow is part of light" - Louis Kahn

This project is a conceptual investigation on studying light as an inherent quality of space. As architects we tend to focus on light for understanding space but I shot this film which highlight shadow to be more powerful with it's silent nature. This is an experiment on visual story tellling and how spaces reflects and can communicate certain narratives.

https://drive.google.com/file/d/1XZuJfYy3faKggxYAy oIGbzVYnfxnrykZ/view?usp=sharing

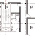
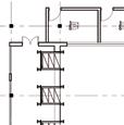
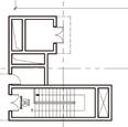
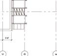
WHAT CHEER: FLOWER FARM

This project implements digital technology like Climate Studio to provide sustainable high performing design solutions.

Course: Integrated Building Systems, Fall 2023

Advisor: Prof. Jonathan Knowles, School: Rhode Island School of Design

Type: Team Projects

Team: Haisum, Jiayi, Yuqi, Sneha, Peter Softwares: Revit, Rhino, Grasshopper, Climate Studio, Enscape

The Flower Cheer Farm project in Olneyville, Providence involved a team effort to redesign the farm and provide digital solution for efficient building performance. I was tasked with

1. Massing Studies

2. Environmental Analysis

3. Facade Detail

I utilized climate studio to collect site data on solar orientation and wind direction which was used for massing studies and optimizing building performance.

Massing
Solar Optimization
Massing Diagrams

Turn static files into dynamic content formats.

Create a flipbook
Issuu converts static files into: digital portfolios, online yearbooks, online catalogs, digital photo albums and more. Sign up and create your flipbook.