
3 minute read
cubix x cultural hub
King Salman University Project Location: Sinai, Egypt
Project Description:
Advertisement
King Salman University is a large-scale project designed to provide a modern and innovative educational environment that embraces contemporary Islamic architectural elements. The campus features a variety of colleges, student housing, and communal spaces that foster collaboration and creativity.

Design Process:
The design process for King Salman University was driven by a deep understanding of the needs of students and staff, as well as the broader community. We worked closely with the client to develop a comprehensive brief that incorporated the latest in sustainable design practices and contemporary Islamic architectural elements.
Design Features:
Contemporary Islamic architectural elements, such as domes, arches, and intricate geometric patterns. Collaborative and green spaces, including communal courtyards, gardens, and plazas, that encourage interaction and creativity. A main bath with palm trees, a prominent feature that evokes a sense of tranquility and spiritual renewal. Sustainable design features, including energy-efficient lighting, water-conserving fixtures, and locally sourced materials. Student housing that provides a comfortable and convenient living space for students, with communal spaces for socializing and studying.
The King Salman University Building at Sinai University is a contemporary Islamic-style building that serves as a prominent landmark on campus. The building was designed to reflect the values and traditions of Islamic architecture while incorporating modern design elements. The design process for this project began with extensive research into Islamic architecture, including the use of geometric patterns, calligraphy, and traditional building materials. We worked closely with the client to understand their vision for the building and to incorporate their input into the design process. We created a series of sketches and models to explore different design options and to refine the final design.

King Salman University, Location Sinai- egypt CDC ABDELHALIM IBRAHEM
This student housing project was designed to provide a comfortable and convenient living space for students on campus. The building features a modern and sleek design with an emphasis on natural light and open spaces.




















Alahsaa complex
The proposed architecture project in Alahsaa city, KSA is a contemporary complex that consists of various facilities that will serve as a cultural hub for the city. The complex will include a cinema, theater, commercial stores, cafes, and a hotel, all connected by two plazas and an inner courtyard. The project will have a significant impact on the city’s cultural landscape and will provide a space for people to come together and enjoy various cultural events.
The complex will be designed with a modern aesthetic that reflects the city’s forward-thinking mindset. The buildings will be sleek and contemporary, with a focus on functionality and practicality. The use of glass facades and open spaces will provide plenty of natural light and promote a sense of openness and accessibility.
The cinema and theater will be the centerpiece of the complex, with state-of-the-art facilities that can accommodate a large audience. The commercial stores will offer a range of products and services, catering to the needs of visitors to the complex. The cafes and restaurants will provide a space for people to relax and socialize, while the hotel will offer comfortable accommodation for visitors who wish to stay overnight.

The plazas and inner courtyard will be designed to promote community interaction, with plenty of seating areas and green spaces. The plazas will be perfect for hosting outdoor events, while the inner courtyard will provide a peaceful retreat for visitors to relax and recharge.
Overall, the proposed architecture project in Alahsaa city, KSA is an exciting development that will provide a much-needed cultural space for the city. Its contemporary design and range of facilities will attract visitors from all over the region, helping to put the city on the map as a cultural destination.





The two buildings linked by a bridge offer a unique architectural feature, which not only adds visual interest but also allows for better traffic flow and accessibility for patrons. The interactive space linking the two masses is a great addition, providing a dynamic area for people to gather and socialize before or after their movie experience.
With the modern design elements, the cinema will attract a younger and more diverse audience who are looking for an immersive experience. The use of glass facades will bring in natural light and provide stunning views of the surrounding environment, adding to the overall movie-going experience. The incorporation of wood elements creates a warm and inviting atmosphere, making patrons feel comfortable and relaxed during their visit.


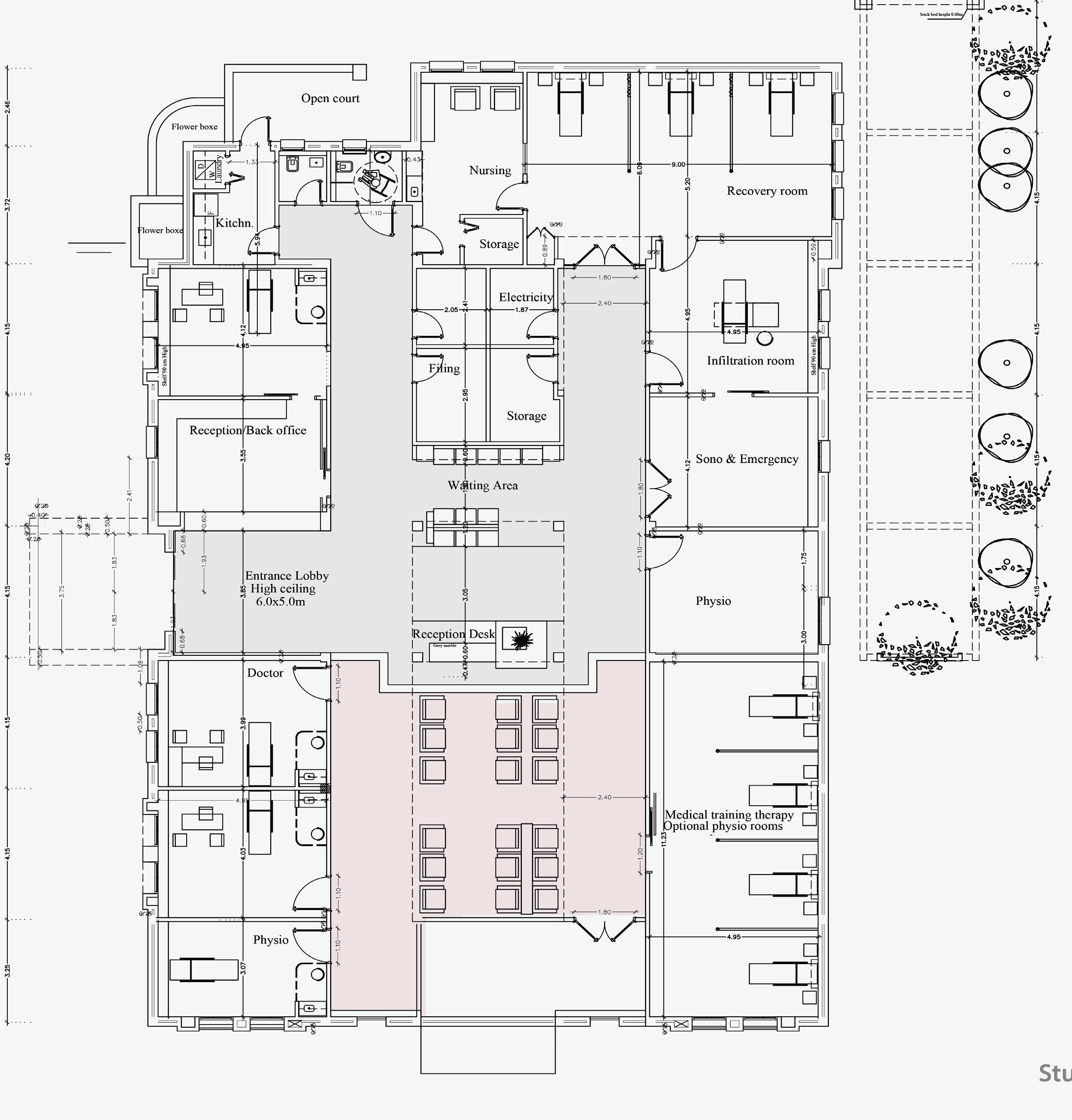
musculoskeletal center location: Gouna - egypt 2020
The Musculoskeletal Center is a state-of-the-art medical facility located in the heart of El Gouna, a picturesque city on the Red Sea known for its traditional architecture and commitment to sustainability. The center is designed to provide advanced treatments for patients with musculoskeletal conditions in a beautiful and comfortable environment.

The design of the Musculoskeletal Center is inspired by the traditional architecture of El Gouna, which features a mix of Mediterranean and North African styles. The building is designed to blend in seamlessly with the surrounding landscape and incorporate sustainable building practices.
The Musculoskeletal Center is a multi-story building that includes a spacious lobby, medical treatment rooms, and administrative offices. The building is oriented around a central courtyard, which provides natural light and ventilation to the interior spaces. The courtyard is planted with native plants and features a water feature that creates a calming atmosphere for patients and visitors.
The exterior of the building is finished with traditional materials such as stone and plaster, which are sourced locally to minimize the environmental impact of the building. The building is also designed to maximize natural light and reduce energy consumption, with features such as solar panels and high-efficiency lighting.


















