Skip to main content

Yiben Business Weekly Vol.165

Page 1

奢侈风格,成就无二现代豪宅;

卓绝品质,打造幸福生活园地

在澳洲,购房者多久才能攒下房子首付

卖房时这些决定可能让您损失6万多澳元

反常的强劲市场使卖方处于有利地位

折扣率的下降预示着市场的上升

塑造澳大利亚家庭和我们生活方式的五大装修趋势

壹本日报合集

区域解读 Linden Park SA 5065

免责声明

Unless otherwise stated, Guiding Star Group reserves all copyright in the content and design of this magazine. Guiding Star Group owns all suck copyright or uses it under license or applicable law. You must not link to, publish, or make any commercial or public use of this magazine or its content, except as permitted by statute or with Guiding Star Group prior written consent. Advertising Terms and Conditions must be in writing 48 hours before copy delaine. All editorials or advertisements appearing in Yiben Weekly magazine are subject to copyright, and cannot be reproduced in whole or in part. No views of information contained in articles and advertisement appearing in Yiben weekly magazine are endorsed by the publisher. The publish reserves the right to refuse, withdraw or amend article or advertisements without explanation. Artworks are accepted on condition that publisher cannot guarantee their safe return, the publisher will not be liable for any damage or loss caused by late publication, error of failure of advertisement to appear. Part of contents from Internet may be credited in Yiben weekly magazine under the creative commons deed ( CC BYSA 3.0). Should there be any object, please contact Guiding Star Group. Appropriate royalties would be made to the verified author in accordance with relevant laws.

03 07 09 12 14 16 20 35
2023
VOL.165
CONTENTS 目录 Copyright Statement

卓绝品质,打造幸福生活园地

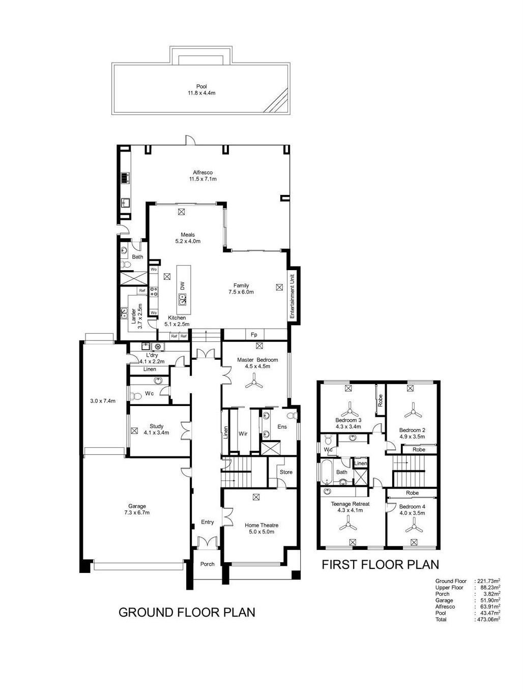
31 STURDEE STREET, LINDEN PARK

平整的大道延伸至车库前,修剪一新的灌木丛包 围着眼前这座豪宅。靠近细细观察,只见—— 摩登现代的外观引人注目,奢侈优雅的风格卓 绝出色,3.5米的挑高大气非凡。这栋位于31 STURDEE STREET, LINDEN PARK的别墅地 理位置相当优越,无论是周边环境还是房屋本身, 都令人向往不已。别墅占地占地765平方米,共 设计了4间卧室,3间浴室,3车位,足以满足 人们关于家的一切设想。

穿过门厅,进入室内,右手边即是家庭影院。全

3
;奢侈风格,成就无二现代豪宅;

屋铺就灰褐色地毯,摆放着深灰色布艺沙发,一 张浅色针织地毯铺在中间,圆形茶几被放置于其 上,整个空间层次感十足,显得十分独特。

继续往里,走廊的左侧是一间独立书房。书房光 线充足,十分安静,很适合主人在家办公或学习。

在来到一楼最里侧,感受无与伦比的开放式生活 空间之前,同样位于这层楼的主人套房将吸引所 有人的目光。主人套房中配有步入式衣帽间和盥 洗室,随时能为主人带来最好的居住体验,让主 人每天醒来时都能感觉神清气爽、精力充沛。主 卧以浅色为主,显得十分干净柔软,令人放松。

盥洗室中铺就瓷砖,打理起来十分方便。双台盆

继续往里,现代厨房、餐厅和休闲客厅共同组成 了一个开放式生活空间,承载着主人一家欢喜与 快乐。

开放式厨房以浅色为主,装修豪华,一应器具应 有尽有:石质台面、玻璃防溅板、充足的存储空 间以及优质的欧洲西门子厨用电器,能为主人提 供创造美味佳肴所需的一切。

此外,为了满足一家人的储物需求,设计师还特 意设计了步入式餐储室,相信哪怕是最挑剔的买 家也一定会满意。用餐区在开放式厨房的右侧:

4
的设计也能充分满足主人的需求。

一张木制长桌搭配数把布艺靠椅,显示出清新自 然的风格。

休闲客厅延续了整个空间的色彩运用,也以浅色 为主。如云朵一般的多人沙发仿佛在招呼人赶紧 坐下。电视墙下方的木色柜子十分古朴,与右侧 的壁炉共同营造出了一种静谧、随意的氛围。

拾级而上,就来到了通铺毛绒地毯的二楼。二楼 设有一间休闲客厅,三间宽敞的卧室,所有卧室 均配有内置衣柜,并由豪华主浴室提供服务。

毫无疑问,这是独属于主人一家的自在空间,将 为他们的幸福生活增别样的光彩。

除了室内空间之外,属于这栋豪宅的室外娱乐空 间同样十分耀眼。穿过一楼的滑动门即可从起居 区来到风景如画的私人后院,这里不仅配有户外 厨房,户外用餐区,还设计了全瓷砖泳池。无论 何时,主人都可以尽情享受独处、招待朋友、投 入运动!更令人惊喜的是,主人还可以从家里直 接进入 Warrego Crescent Reserve——这里有 网球场、篮球场和游乐场。

最后,这栋豪宅还享有优质教育资源以及便捷的 生活。这里距Linden Park小学仅几步之遥,并 且属于Glenunga高中学区。从这里出发,很短 的车程即可到达CBD和Burnside Village,肆 意享受都市生活。

YIBEN BUSINESS WEEKLY 商业周刊

详细的住宅参数:

-占地765平方米

-四间卧室

-三间浴室

-三车库

-一楼3.5m挑高

-豪华家庭影院室

-Klipsch 扬声器系统

-豪华厨房:欧洲西门子电器

-经专业设计与景观美化的后院

-太阳能系统

-瓷砖泳池

有意请联系:

Alexi Broikos:0408080375

Victor Velgush:0419815933

YIBEN BUSINESS WEEKLY 商业周刊

在澳洲, 购房者多久才能攒下房子首付

最新研究显示,首次购房者需要8年多的时间才 能攒够首付。一项针对澳大利亚首次购房者的调 查显示,近90%的人对自己的能力和储蓄时间感

到压力,他们认为账单和家庭开支是最大的障碍。

与此同时,29%的首次购房者正从家人那里获得

7 YIBEN BUSINESS WEEKLY 商业周刊

某种形式的帮助,高于去年的21%。Canstar的 2023年首次购房者调查显示,首次购房者平均每 月节省1605澳元,比去年同期增加188澳元。

根据这项研究,储蓄的增加使单个购房者节省 20%首付的时间缩短了近两年,但仍然需要8年 零8个月。对于一对夫妇来说,这一增长将节省 近一年的储蓄时间,缩短到四年多一点。Canstar 的编辑兼财经评论员Effie Zahos说,储蓄数据 显示,尽管生活成本面临挑战,但首次购房者的 决心还是坚定的。

她说:“房地产价格在继续上涨,但租金也在升至 历史高点。”

四分之一的首次购房者不知道他们存了多少钱, 13%的人说他们没有能力存钱。阻碍储蓄的因素 包括账单和家庭开支,其次是房租和外出就餐。 Zahos表示,年轻人需要对自己的储蓄持现实态度。

她说:“专注于你实际可以节省的钱,灵活安排时 间可以减轻压力,直到你的财务状况好转,你可 以增加储蓄余额。”她说,父母的银行也发生了 变化,许多父母提供“风险较小”的帮助,比如

允许孩子住在家里免房租,而不是自己掏腰包。

来自悉尼大学和RMIT大学的澳大利亚住房和城 市研究所(AHURI)的研究数据显示,与前几代人 相比,进入市场的购房者减少了三分之一。报告 显示,现代首次购房者面临的房价是前几代人的 三倍,而他们的收入只有前几代人的1.6倍。

“我们的研究确实表明,在过去30年里,30岁 至34岁家庭的住房拥有率大幅下降;悉尼大学的 Stephen Whelan教授说:“在20世纪50年代 中后期出生的人中,65%的人在30岁至34岁 之间拥有房产,而在20世纪80年代中后期出生 的人中,这一比例仅为45%。”

“房屋拥有率的下降是在房价上涨近三倍的情况下 发生的,这表明房价上涨和负担能力下降与澳大利 亚家庭推迟进入住房市场有关。”“但更重要的是, 虽然这可能在一定程度上只是代表了年轻澳大利亚 人买房的延迟,但我们的研究表明,随着这些年轻 人年龄的增长,他们不太可能‘赶上’买房。”

Whelan教授表示,这增加了那些退休但仍在租 房的人陷入贫困的可能性。

8

卖房时这些决定 可能让您损失6万多澳元

一份新报告发现,房主选择在市场外出售房屋, 可能会让自己少赚数万澳元。

但房地产经纪人表示,在某些情况下,在网上挂 牌可以使最终售价增加数十万甚至数百万澳元。

《2023 PropTrack场外销售业绩报告》发现, 平均而言,场外销售的房屋的售价比realestate. com.au上列出的价格低4.3%。单元房也出现了 折扣,场外销售平均下降了1.2%。

PropTrack高级经济学家Paul Ryan表示,在一 些地区,价格差异可能超过6万澳元。Ryan表 示:“这项研究的结果表明,平均而言,通过公开 销售活动在网上列出房产,卖家将获得更好的总 体效果。”

“虽然一些卖家可能会试图通过不在网上做广告 来省钱,但这项分析显示,最终售价中潜在的收 入损失远远超过了广告的初始成本。”该数据将

9 YIBEN BUSINESS WEEKLY 商业周刊

2022年在场外出售的房产的售价与realestate. com.au上列出的房产的售价进行了比较。在本 分析中,“off-market”包括所有与realestate. com.au上的房源不匹配的销售,也可以包括其 他平台上的独家房源。

卖家会损失多少

新南威尔士州、昆士兰州和西澳大利亚州的卖家 看到了一些最大的差异,卖家可能会在场外出售 数万澳元。在悉尼,场外出售的房屋价格平均比 挂牌销售价格低4.3%,相当于损失了6万多澳元。 新南威尔士州其他地区的房价差距超过10%。

在珀斯,场外卖房者的平均亏损率为4.9%,而布 里斯班的亏损率为3.6%。墨尔本卖家在场外出售 房屋的风险为2.6%,接近3万澳元。

来自布莱顿Atria real estate的墨尔本房地产经 纪人兼拍卖师Simone Chin估计,大约80-90% 的卖家在开始场外活动后,会通过在网上列出他们

的房产来获得更好的结果。“人们有时试图在一开 始就悄悄地这么做,但结果并不像业内一些人希望 人们想象的那么好或那么频繁,”Chin表示。

她说,虽然场外活动在非常热门的市场中可以发 挥作用,但限制买家群体可能会留下很多问题, 尤其是在当前的环境下。“随着周期的推移,这 些买家不仅会定期被选中,而且还有海外买家, 有外籍人士,还有可能没有在街上参与检查的人, 但他们正在网上进行研究。”

“如果你认为你只是悄悄地、谨慎地做这件事, 他们就是你错过的买家。“这有点像你在出售一 个秘密,你可能只有三个买家在看它,而不是 100个买家,这对你的价格来说要好得多。”

高端市场的价差更大

PropTrack报告发现,价格较高地区的场外销售 表现最差。Ryan表示:“在2022年房地产价格 增长放缓期间,中位数价格高于全国中位数价格

10 YIBEN BUSINESS WEEKLY 商业周刊

约72.5万澳元的地区的场外销售表现最差。”“在 这些地区,场外销售的价格比realestate.com. au网站上的价格低5%以上。”

来自Richard Matthews Real Estate的悉尼 经纪人兼拍卖师Matthew Everingham说,一 位客户最近同意在网上出售其历史悠久的六卧室 Homebush庄园,从而获得了150万澳元的溢价。

Everingham表示:“考虑到房子的特点,他们肯 定更倾向于私下、低调地出售它,而且我们确实 让很多人来看了房子。”

尽管场外市场对这处房产兴趣浓厚,但买家的出 价仍在550万澳元左右,卖家同意在网上公布 这处房产。他们的底价是600万澳元,最终以 742.5万澳元成交,比拍卖时的底价高出140万 至150万澳元。

“作为一名经纪人,我不认为它值742.5万澳元, 但市场认为它值。如果我们不去那里,不去探索 它,不把它放到网上,不搞一场盛大的拍卖活动, 我们永远也不可能做到这一点。显然,这是非常 值得的。”

“(投放市场的成本)可能在8,500或9,000澳 元左右,这似乎是一大笔钱,但在这个价格点上, 这是一个很小的代价。因此,在整个计划中,一 笔小小的支出,让他们获得了近150万澳元的奖 励。”“毫无疑问,激烈的市场营销活动和对合 适物业的激烈竞争,无疑会为我们的业主带来最 高的价格。”

不便因素

除了隐私和成本问题,Everingham表示,由于“不 方便的因素”,卖家可能不愿意进行在线销售活动。 他说:“在你的家里进行全面的宣传活动,开放参 观等等,会带来不便。”“尽管我认为这有点言 过其实。如果你计划得当,通常不会太不方便。”

但当面对这些数字时,他说大多数业主通常都很 乐意进行公众活动。“大多数对此感到紧张的业 主当然很乐意在市场营销方面花一点钱,让他们 的房产在四周的时间里接受检查,从而得到一个 高得多的价格。”

Ray White Glenelg在阿德莱德的销售主管兼负 责人Adam Keane说,这种不方便的因素可能是 年轻家庭首先考虑的问题。Keane表示:“我们接 待了很多家庭,最大的问题是保持这个地方干净 整洁,每周都要接受公开检查。”

但让买家看到他们的竞争对手可能会改变游戏规 则,他说,并指出最近的一笔交易在网上拍卖后 又获得了13.5万澳元的收入。

Keane表示:“我们约有16或17家集团通过场 外交易,但没能让任何人提出90万澳元或更高的 报价,而这正是业主所追求的数字。”“我对他们说, 让我们重新评估一下。让我们把住在那里的房客 搬走,把房子打扫干净,拍下来,放到市场上, 然后搞个拍卖活动。”他说:“在三周的时间里, 我们接待了80多个团体,并在拍卖会上以103.5 万澳元的价格出售了它,有12个注册竞标者。”

11 YIBEN BUSINESS WEEKLY 商业周刊

反常的强劲市场 使卖方处于有利地位

传统上,冬季是房地产市场的淡季,但在一些城 市和地区,更强劲的销售量和不合时宜的高买家 需求表明,卖家在未来几个月将处于黄金地位。

部分地区销量回升

与去年同期相比,悉尼和堪培拉6月份的房地产

交易分别增长了13.5%和8.5%。珀斯和霍巴特 也录得同比增长。到目前为止,2023年全国月销 量低于2022年。然而,在过去几周,销售一直 在回升。如果这种趋势持续下去,7月份的销售 量将超过去年。

2021年和2022年的市场非常强劲,因此2023

12 YIBEN BUSINESS WEEKLY 商业周刊

年的销量相对较低。然而,与2019年和2020 年相比,销售额有所上升。去年这个时候,除了 堪培拉以外,所有地区的销量都在下降。这表明 买家今年没有感受到冬天的寒意,而是大举出征。

高参与度的买家数量有所增加

6月份,在realestate.com.au网站上与房产 互动的高参与度买家数量在全国范围内同比增长 0.6%。事实上,在过去的四个月里,我们看到平 台上的高参与度买家数量达到了过去五年的最高 水平。即使在2021年,当市场非常强劲时,高 度参与的买家数量也低于过去几个月的记录。推 动这一增长的地区是布里斯班、珀斯、堪培拉和 悉尼,以及新南威尔士州、昆士兰州(QLD)和南 澳大利亚州(SA)。

然而,并不是每个首府城市和地区的高参与度买 家数量都有所增加。即便如此,由于大多数地区 的房源数量一直在下降,在澳大利亚大部分地区, 每套房源的高参与度买家数量比去年有所增加。 其中五个首府城市的房价增长达到了两位数,珀 斯每套房源的买家数量增长了38.8%。

即使是在墨尔本和阿德莱德,总体上高度参与的 买家数量有所减少,但每套房源的参与买家数量 也比去年多。

房价反弹

房价已连续六个月上涨。在2023年6月进一步 上涨0.3%之后,现在的价格仅比一年前低0.1%。

从所有首府城市的房价来看,现在的房价略高于 一年前,上涨了0.06%。悉尼的房价中位数比去 年的低点高出4.5%,目前仅比2022年2月创下 的峰值低3%。

拍卖清盘率依然强劲

拍卖清盘率比去年同期高出23%,仅比市场强劲 的2021年低9%。

悉尼和墨尔本主要主导着拍卖市场,整个2023年, 这两个城市的清盘率都在60%以上。市场上可用 房产的短缺导致预定拍卖数量减少,但这两个城 市的拍卖数量仍高于疫情前。

在接下来的几个月,7月和8月是传统上比较安 静的月份,许多买家和卖家选择推迟到春季开始。 然而,今年到目前为止,我们在澳大利亚各地看 到了一些非季节性的趋势,这表明买家并没有等 到天气转暖。

房地产市场目前面临的最大问题是库存不足,而 由于需求仍然很高,想买房的人的选择有限。然而, 那些卖房的人正受益于买家的高需求和来自其他 供应商的低竞争,这在很大程度上是价格上涨的 原因。

13

折扣率的下降 预示着市场的上升

全国房价已经连续六个月上涨,6月份又上涨了 0.3%。因此,全国房屋价值现在只比一年前低 0.1%。市场正在回升,最糟糕的低迷时期似乎已 经过去。

买家的需求也在增加,由于可用库存仍然很低, 与年初相比,更多房产的售价高于要价。这有助 于支撑房屋价值。

当一处房产的售价低于首次公布的价格时,就被 称为卖方折扣,这是衡量房地产市场健康状况的 众多指标之一。与年初相比,6月份以低于要价 的价格售出的房产比例有所下降。超过要价的销 售份额也有所增加,而以要价成交的销售份额也 有所增加。

如果这种趋势继续下去,房价将继续上涨。高于 或低于要价的房产数量能告诉我们什么市场信 息?如果更多房产的售价低于要价,这是需求下 降的迹象,价格可能会下跌。

当市场开始疲软,价格开始下跌时,打折就发生了。 由于卖家和中介根据最近的销售情况来给房产定 价,买家在市场上看到的价格和卖家认为自己房 子的价值之间可能存在预期差距。毕竟,一处房

产只值买家愿意支付的价格。

相比之下,高于要价的房产所占比例的增加表明, 卖家对房屋价值的预期实际上被低估了,因为强 劲的环境和需求推动价格上涨的速度快于预期。 例如,在疫情之前,由于市场一直在经历低迷, 低于要价的销售份额很高。

当澳大利亚进入封锁状态时,低于要价的房产比 例刚刚开始下降,导致价格上涨。但是,随着房 地产市场适应疫情的最初冲击和随后的封锁,以 低于要价的价格出售的房产大幅下降,达到多年 来的最低水平。

目前的数据表明,市场再次处于转折点,以低于 要价的价格出售的房产越来越少,而以要价出售 的房产越来越多。2021年10月,超过70%的 销售额达到或高于要价。

然而,有关即将加息的传言给购房者带来了不确 定性,打压了市场。到2022年5月第一次加息时, 以低于要价的价格出售的房产比例增加了。上个 月,47.2%的房产以低于要价的价格成交。这仍 然是相当高的;然而,这一比例低于六个月前,也 低于2019年1月达到69.7%的峰值。

14 YIBEN BUSINESS WEEKLY 商业周刊

首府城市和区域的供应商折扣水平

自今年年初以来,除霍巴特(Hobart)外,所有首 府城市低于要价的销售份额都有所下降,以要价 或更高的价格出售的房产比例更高。

悉尼在要价及以上的房产销售中所占的份额显著 增加,是所有首府城市中涨幅最大的。但从1月 到6月,珀斯和布里斯班的份额也有所增加。地 区经济需要更长的时间才能复苏。昆士兰州和西 澳大利亚州的房产销售达到或高于要价;然而,其 他州需要更长的时间来改善。

大都市地区的表现更为强劲,销售额高于要价。 珀斯的房价顶住了低迷,尽管几乎所有其他城市 的房价都在2022年达到了最高点和最低点,但 珀斯的房价仍未达到峰值。

销售高于要价最多的地区

在构成珀斯地铁的6个SA4地区中,有5个地区 的房价高于要价的比例最高。

前十名中的其他五个地区位于昆士兰州和南澳大

利亚州,主要是布里斯班SA4地区。

成交价低于要价最多的地区

尽管强劲的需求推高了城市房价,但在偏远地区, 情况却截然不同。疫情期间繁荣的地区正开始出 现市场泡沫。这在一些“生活方式”地区很明显, 比如拜伦湾的故乡里士满-特威德。

销售额低于要价比例最大的十大地区中,有六个 在新南威尔士州。在这些地区价格大幅上涨之后, 我们开始看到一些证据表明,疫情期间在该国某 些地区出现的区域复苏正在回落。

这对未来几个月的房地产市场意味着什么

尽管冬季待售房产较少,但拍卖清盘率仍然强劲, 销售量高于2022年下半年。可能还会有进一步 的加息,但自去年5月以来已经加息12次,结 束可能近在眼前。市场预期还会有一到两次加息。

在高需求和低上市数量的结合下,以低于要价的 价格出售的房产数量将进一步下降,从而在短期 内推高房价。

15 YIBEN BUSINESS WEEKLY 商业周刊

塑造澳大利亚家庭和我们生活 方式的五大装修趋势

在过去的50年里,建筑和室内设计发生了很多变 化,最重要的是风格以及我们如何选择将其融入 我们的家园。

从20世纪70年代住宅的经典砖和红木色调,到

21世纪初的极简主义运动,再到过去几年的“绿 色化”,我们的住宅经历了相当大的演变。在过 去的五十年里,澳大利亚人拥有和经营的Carpet Court公司一直走在潮流运动的最前沿,不断改 变和扩大他们的产品,让澳大利亚人能够实现他

16 YIBEN BUSINESS WEEKLY 商业周刊

们的梦想家园。

到2023年,它们将迎来50周年纪念,它们的影 响力将继续塑造我们的家庭和生活方式。Darren Palmer是他们的长期大使和著名室内设计师,了 解他对过去50年来一些最具影响力的住房趋势的 见解。

他回顾了1973年以来发生了多大的变化,当时粗 毛地毯主导了carpet Court的展厅,而今天的趋 势是,它们是如何影响我们的家庭和生活方式的。

1. 极简主义和极简主义

极简主义和极简主义之间的摇摆是一种来来去去 的趋势。前一个十年可能喜欢夸张和丰富的颜色 和材料,而下一个十年可能会对所有的东西都是 白色做出反应。例如,20世纪80年代都是颓废 的年代,而90年代则更为简朴。

但现在看来,这两者似乎是巧合。Palmer提到, 尽管粗野主义和华丽的内饰或多或少相互矛盾,但 目前都很流行。一方面,今天的装修者可能会选择

暗、更情绪化的黑蛋白石的Grand Oak人字形 木地板。“有些人想要创造一个温暖的家的怀旧 感觉,而有些人想要一个完全干净的外观,这就 是为什么我们看到极简主义和野蛮主义被接受的 原因——因为它们可以兼而有之。”

2. 国际影响

Palmer说,尽管澳大利亚在地理上是一个相当孤 立的国家,但澳大利亚在很大程度上继承了海外 的趋势和审美。20世纪80年代,孟菲斯风格的 设计——大胆的几何形状、时髦的颜色和醒目的 图案——从意大利飞来,为澳大利亚各地的房屋 增添了光彩。

在21世纪初,来自巴厘岛和泰国的影响很普遍, 从泰国寺庙的门到装饰室内的佛像,应有尽有。 从2010年代到现在,我们再次将目光投向了国 界之外,以获得更广阔的视野。Palmer提到,这

17 YIBEN BUSINESS WEEKLY 商业周刊

可能是为什么现在的风格不像过去几十年那样同 质化的一个关键原因。

Palmer说:“我们看到了社交媒体的繁荣,我们 看到了Pinterest和Instagram,我们看到了来自 世界各地的许多信息,以及不同设计师的观点。”“我

认为,那时我们看到了更广泛的设计风格的扩散, 事情发生得更快,更多的是相互叠加。”

3.经住时间考验的设计

尽管多年来潮流来来去去,但经典、永恒的设计 一直是不变的。中性的色调,传统的形状,微妙

的纹理和精心制作的家具总是很流行,并且一直 是人们的最爱。在设计自己的项目时,Palmer选 择了Carpet Court系列的常年作品。

它们具有永恒的品质,尤其是在窗户方面, Palmer更喜欢经久不衰的窗户装饰风格——比如 透明窗帘、卷帘和种植园百叶窗。Palmer说,选 择经典设计的决定尤其与经济有关,因为当资金充 裕时,翻新者通常会更愿意做一些更古怪的事情。

事实上,考虑到目前的经济状况,那些不会过时

的设计、装饰、陈设和色彩现在可能特别受欢迎, 尤其是对那些想要在预算范围内进行投资物业装 修的人来说。

他表示:“我认为,人们需要做一些具有广泛市场 吸引力、经典且长寿的东西,这样他们就不必在 短时间内重做。”“这就是我喜欢Carpet Court 系列的原因,也是我喜欢与它们合作的原因之一, 因为它们太经典了,你可以随心所欲地设计它 们。”“在这一领域有50年的历史,他们能满足 顾客的需求也就不足为奇了。”

4. 可持续发展第一

可持续性和能源效率现在可能是人们最关心的问题, 但并非一直如此。例如,20世纪70年代、80年代 和90年代的住宅大多没有隔热层。“10年前,这 就是生态意识——一个流行词,”Palmer说。

现在,鉴于气候变化等全球性挑战,澳大利亚的

18 YIBEN BUSINESS WEEKLY 商业周刊

他说:“如果你不考虑你使用的材料和它们的来源, 太阳能,以及你如何加热和冷却你的空间,以及 我们现在自动想到的所有这些事情,你就会错过 市场。”“这是人们所期望的。”

5. 个人表达

在过去,特别是在整个20世纪70年代,住房设 计要统一得多。Palmer说,在80年代,当自我 表达变得更加流行时,这一切都改变了。但也许 现在比以往任何时候都更重要的是,澳大利亚人 在他们的装修和建筑上打上了自己的印记。

Palmer说,现在出现的最大趋势之一是个性化, 这在很大程度上与我们有如此多的灵感来源可供 选择有关。他说:“人们受教育程度更高,因为他 们有更多的参考点,这样他们就可以形成自己的 个人审美。”

事实上,这也是Palmer喜欢与Carpet Court 合作的另一个重要原因:“他们为客户提供灵 感、信息和教育,让人们在家里更自在地表达自 己。”“Carpet Court希望激励澳大利亚人创造 他们的梦想家园,通过这种教育,他们绝对可以

做到。”

至于如何把自己投入到装修中,Palmer说地毯是 自我表达的绝佳媒介。他说:“我认为地毯就像艺 术一样,表达了一种极致主义。”“地毯更像是 一个更大的宣言——它们更有图案,更鲜艳,更 有宣言感,它们有更多的图案,更极致主义。”

Palmer还表示,个人表达是任何装修或建筑项目 的最佳方式。最终,而不是跟随流行的趋势,装 修者应该考虑他们的个人喜好,创造一个真正激 发快乐的家——特别是考虑到设计对我们的生活 方式、健康和整体情绪有多大的影响。

他说:“你的环境反映了你和你的个性,这是理想 的结果。”“表达自己总是会让你感觉更好。看 到自己的倒影总是会让你感觉更好。你有一个属 于你的空间。”

因此,如果你想要进行装修,并对事物进行自己 独特的诠释,那么选择像Carpet Court这样长 期存在的市场领导者是值得的,他们以前经历过 这一切,他们的专业知识可以让你的家居设计梦 想成真。

19 YIBEN BUSINESS WEEKLY 商业周刊

如何获得阿德莱德已售罄的世界杯比赛门票 2023年女足世界杯将在阿德莱德举行的五场比赛 门票已经全部售罄,渴望观看现场直播的球迷们 不应放弃希望——预计将有更多的门票在可容纳 15000人的Hindmarsh体育场发售。

官方的说法是,“分配的门票已经用完了”,但 可能会有更多的门票可用,因为一些分配给企业 合作伙伴和主要赞助商的门票(但他们不需要) 会重新公开出售。给球迷们的建议是,继续查看 FIFA website fifa.com/tickets,希望在有票的 时候能买到这样的票。

那些无法亲临现场观看比赛的球迷被敦促到节日 广场的国际足联球迷节现场参与活动,那里所有 的比赛——不仅仅是在阿德莱德进行的比赛—— 都在大屏幕上直播,入场是免费的。

南澳高中正在整治校园手机使用问题

近30所高中将从周一起禁止在校园内使用手机, 因为校长们反映文化发生了变化,并对“无聊” 的青少年要求参加校园活动感到惊讶。

最后一批学校将执行教育部的一项法令,禁止学 生在上课时间使用手机。目前已经有131所学校

20 YIBEN BUSINESS WEEKLY 商业周刊
壹本日报|
如何获得阿德已售罄的世界杯比赛 门票;南澳高中整治校园手机使用 问题;南澳教师抗议工作量过重

采取了打击措施,但从周一开始,最后27所学校 将实行“禁用手机”规定。教育部长Blair Boyer 周日表示,虽然没有确切的数据,但他说,有“大 量的轶事”证据表明,禁令减少了学生暴力、欺 凌和其他反社会行为。

他说,许多学校报告说,他们的“文化”发生了变化, 学生们现在聊天、做运动或参加其他课外活动。

南澳教师抗议工作量过重

为了向州政府施压,要求其解决“超负荷工作” 的问题,教师们将停止完成诸如给家长发送通讯 或在午休时间工作等任务。

从今天开始,教师工会鼓励公立学校的工作人员 “停止从事与学生的教与学没有直接关系的工作”。

自今年年初以来,Australian Education Union 一直在与政府就一项新的企业谈判协议进行谈判。

澳大利亚教育联盟主席Andrew Gohl表示,一 个关键问题是工作量不断增加。

游乐设施在运行过程中失灵

Cairns Show出现了令人震惊的镜头,显示人们

在“故障”后被困在 55m 高的游乐设施的最高处。

Cairns Show主席Ian Allen表示,新的 55m 高游乐设施“勇士”在游乐过程中出现故障警报, 迫使停止运行。“正在运行的发电机过热,所以 他们让所有人都下来了。”他说。

Allen先生表示,事发时车上有 16 人。他们报销 了所有乘客的门票,在这次故障发生之前,他并 没有意识到该游乐设施有任何问题。

州政府对赌博公司渗透情况展开调查

在获得许可的场所出现品牌“酒廊”后,州政府 已对该州酒吧和俱乐部被赌博公司渗透的情况展 开调查。

昆士兰州总检察长 Yvette D'Ath 已对赌博公司渗 透到该州酒吧和俱乐部的情况展开调查。布里斯 班著名的Lord Alfred位于 Petrie Terrace设有

立博酒廊Ladbrokes Lounge,全州其他场所也 将提供类似的服务。

D'Ath 女士已写信给昆士兰俱乐部和昆士兰酒店 协会,确认酒类和博彩监管办公室正在调查这种 做法以及是否违反了该州的博彩法。

21 YIBEN BUSINESS WEEKLY 商业周刊

昆士兰州科学家开发犬癌症疫苗

昆士兰州的一位科学家开发出了一种实验性疫苗, 可以延缓狗的癌症,在某些情况下甚至可以完全 治愈它。

大约 10 年前,兽医病理学家兼教授 Rachel

Allavena 开始研究如何利用细菌植物危险信号 “唤醒”动物免疫系统。她发现,当癌症肿瘤被 注射她的实验性免疫治疗疫苗时,它会刺激狗的 免疫系统,开始对抗癌细胞,最终缩小或根除肿瘤。

身患绝症的狗的寿命开始比预期长几个月,其中 一些狗已经度过了余下的自然生命。

新州的Civic Link计划

耗资 1,020 万澳元的人行道、广阔的花园和半个 足球场大小的公园将为数千名帕拉马塔新居民提 供放松和玩耍的场所。

耗资 1,060 万澳元的Parramatta步行和自行

车道将快速投入建设,为蓬勃发展的中央商务 区的 3600 套新住宅提供支持。州政府计划开 放 Civic Link,其中包括一条从火车站附近的 Parramatta 广场到 Powerhouse Parramatta 和前滩的人行道。

Parramatta议会于 2017 年首次通过的这条连 接线将横跨四个街区,长约 490m。

职业顾问没有时间提供建议

职业顾问表示,平均每天要与 560 名学生打交道, 其中三分之一的学生不知道自己想做什么工作。

Career Tools 的一项新的全国性研究揭露了澳大 利亚学校职业顾问承受的巨大工作量,并警告说, 学生才是需要咨询的主力军。职业顾问表示,目 前的工作量意味着不能及时的为学生提供建议, 这导致了学生的延迟就业和失业。

报告发现,随着人工智能改变许多行业以及技术 的快速发展,青少年需要做好准备。

22 YIBEN BUSINESS WEEKLY 商业周刊

南澳公立幼儿园年中将恢复招生

四岁的Lozen和她的弟弟Atreyu迫不及待地要 上幼儿园了。

这对兄弟姐妹将和大约4000名孩子一起进入这所 幼儿园,这是十年来公立幼儿园首次在年中入学的 一部分。2014年,政府幼儿园的入学人数被限制 为每年一名。教育工作者表示,这将为家庭提供更 多的选择,但人们担心找不到足够的合格工人。

南澳大学幼儿项目主任Susie Raymond表示,

她一直听说整个行业都认为这是“具有挑战性的”。

阿德沉没的游艇被找回

在Grange Jetty码头附近打捞一艘沉没游艇的马 拉松式努力已经结束,但周末并非没有更多的麻烦。

这艘标志性的游艇在上世纪90年代和21世纪初 曾多次参加悉尼至霍巴特的比赛,周五从Grange Jetty码头的沙洲中被解救出来,预计将于周六返 回。然而,当游艇被拖离North Haven海滩时, 遇到了更多的麻烦。

23 YIBEN BUSINESS WEEKLY 商业周刊
壹本日报| 南澳公立幼儿园年中将恢复招生; 阿德沉没的游艇被找回;阿德莱德 房地产代理正在接受调查

一位消息人士告诉《广告商》,这艘船在周六 “遇到了一些困难”,不得不在周六和周日离开 North Haven海岸线。

阿德莱德房地产代理正在接受调查

一家失败的房地产中介公司正因前客户的投诉接 受消费者监管机构的调查,该公司由一名前餐馆 老板转行的商业地产经纪人和另一名著名的阿德 莱德商人创办。

Matthew Trim和前商业伙伴Remo Russo是 商业房地产机构commercial Adelaide的创始 董事,该公司在消费者和商业服务部门的调查中 于5月19日破产清算。调查围绕着三位前客户 提出的投诉展开,他们要求通过州政府的Agents Indemnity Fund获得逾58万澳元的赔偿。

该基金向因注册土地代理、物业转易人或物业管 理公司或其雇员的不法行为而蒙受经济损失的人 士提供赔偿。

2023年湖边街头艺人节被取消

一个以黄金海岸为基地的大型街头表演在其十周 年庆典之前取消了其在阳光海岸的主要活动。

Buskers by the Lake 创始人Cindy Jensen 本周宣布,距离开幕仅五周的十周年庆典活动将 被取消。已有 200 多名艺术家被锁定参加这个 节日,该节日于 2014 年在黄金海岸开始,随后 Jensen 女士表示,她被阳光海岸委员会吸引到北 部的Kawana湖区。

市议会发言人表示,该组织尚未收到“主办方关 于活动已被取消的任何建议”, Jensen女士对 此说法提出异议,并表示她已于本月早些时候以 书面形式告知市议会取消主要活动的意图。

人工智能警报系统帮助昆州ambos

昆士兰救护车服务中心推出了人工智能技术,帮 助预测紧急呼叫可能来自何处。

昆士兰州救护车服务部门部署了澳大利亚首个智 能软件程序,昆士兰人等待紧急帮助的时间将缩 短。美国设计的名为

LiveMUM 的项目使用昆士

兰救护车服务中心两年的数据来预测紧急 3-0 呼 叫可能来自何处,并提醒调度员哪里可能存在覆 盖范围缺口。

QAS 产品经理 Kate Rowan 表示,新信息系统

的服务已经取得了一些巨大成功,该系统首先在

24 YIBEN BUSINESS WEEKLY 商业周刊

黄金海岸和该州部分地区进行试用,然后于上个 月在布里斯班部署。

澳大利亚的器官捐献同意率大幅下降

近年来,越来越少的澳大利亚家庭对器官捐赠说 “是”,这令人担忧。

根据DonateLife 的数据,到 2022 年,全国有 54% 的家庭同意捐赠,这一比例低于 2019 年的 59% 。一个人捐献自己的器官和组织需要得到家 人的同意,无论他们是否在澳大利亚器官捐献者 登记册上。

“同意率的下降意味着……获得移植机会的人数 减少。”器官和组织管理局首席执行官Lucinda Barry说。

北领地将使用金属探测器来搜查刀具

北领地政府将通过警察棍棒法和武器法,而涉及 斧头和砍刀的犯罪行为将受到更严厉的处罚,但 保释法不会改变。

领土政府宣布,领土警察将开始在公共场所使用 刀具探测棒,同时将加强有关武器犯罪的法律。 然而,保释法将保持不变,对现行立法进行四个 月的审查后,建议不再进行进一步的修改。

斧头也将被添加到《武器控制法》的“受控武器” 清单中,这意味着涉及斧头和砍刀的暴力犯罪将 引发不准保释的推定。

北领地新的刑事责任法将如何运作

北领地的刑事责任年龄很快将从 10 岁提高到 12 岁,这在澳大利亚尚属首次。

领土政府将刑事责任年龄从 10 岁提高到 12 岁的 改革将于下周初生效。

此前,北领地政府于去年 11 月通过了提高年龄 的立法,这在澳大利亚尚属首例。

从 8 月 1 日起,所有被监禁的 10 岁和 11 岁儿 童都将被释放,但政府发言人表示,目前没有这 些年龄段的儿童被拘留。

25 YIBEN BUSINESS WEEKLY 商业周刊

2023年皇家阿德莱德展职位空缺

再过一个多月,皇家阿德莱德展就将拉开帷幕, 组织者正在寻找数千名工人来帮助活动进行,同 时也能轻松赚钱。

作为该州最大的活动之一,皇家阿德莱德展将于 9月2日星期六开始,并将于9月10日结束, 让工人们有机会在不到十天的时间里赚大钱。执 行总裁Will Rayner说,虽然活动组织者为这场 秀“兴奋”起来,但他们迫切需要数千名员工。

“你几乎可以感觉到空气中弥漫着春天的气

息,所以我们真的很兴奋,”Rayner女士告诉 7NEWS。

南澳研发可即时提供健康信息的手环

印在医疗警报手环上的新二维码,让临床医生和 救护人员在紧急情况下可以即时查看病人的医疗 记录,“将拯救生命”。

这一创新意味着医疗专业人员可以在关键时刻立 即获得关键的医疗信息,而不必等待电话,也不 必试图与担心的亲属或困惑的病人交谈。官员们 表示,通过让医务人员迅速了解病人的年龄、医

26 YIBEN BUSINESS WEEKLY 商业周刊
壹本日报|
数千个高薪工作岗位!2023年皇 家阿德莱德展职位空缺;南澳研发 可即时提供健康信息的手环; 南
澳老年护理之家项目构想

疗状况、过敏、药物、特殊设备、紧急联系人和 专业护理指示,这将挽救生命。

药剂师也可以在配药时检查潜在的问题。

南澳老年护理之家项目构想

ACH集团在Playford健康区投资4000万澳元 的Healthia老年护理、健康和教育住宅项目将从 下个月开始接收首批住户。

住宅护理院由八个专门建造的单层住宅组成,位 于村庄环境中,通过相互连接的人行道连接。每 栋房子都有12个独立的私人房间,带套间,还有 一个大的开放式起居室、厨房和用餐区。

中央大楼为居民提供健康、福利和社会服务,包 括健身房、咨询室、发廊、咖啡馆、活动厅和行 政区域。

昆士兰州风电场未能创造就业机会

当地政府会议获悉,昆士兰州的一个风电场未能 创造出真正的就业机会。

Goondiwindi市长Lawrence Springborg在 2023 年布什理事会大会上表示,他所在的地区 正在建设全国最大的陆上风电场开发项目之一, 但几乎没有收到任何回报。据信该农场已投资 25 亿澳元,但其中只有一部分是政府资金。

“如果你只花 1 亿澳元建设水坝或水利基础设施 项目,你就会在建筑、道路和扩大农业区方面获 得数百个就业机会,”他说。“但是对于风电场 来说,你几乎什么也得不到,零。”

州长承认知道旗舰火车制造项目井喷

州长 Annastacia Palaszczuk 承认,在发布包含 先前数字的新闻稿之前,她就知道昆士兰州旗舰 火车制造项目 24 亿澳元的井喷。

交通部长马克·贝利本月因悄悄更新昆士兰火车制 造计划的成本而面临广泛审查,该计划从 71 亿澳 元飙升至 95 亿澳元。6 月 30 日,政府媒体发布 了有关该计划的新闻稿——这是在 Maryborough 建造 65 列火车的一项重要选举承诺。

媒体新闻稿的第一行称,铁路制造计划将耗资 71

27 YIBEN BUSINESS WEEKLY 商业周刊

亿澳元,但贝利先生在两周后被迫承认,他已经 知道预计成本增加了三分之一,达到 95 亿澳元。

神奇蘑菇如何帮助澳人治疗厌食症

一项世界首例使用迷幻物质治疗厌食症的研究为超 过一百万患有饮食失调的澳大利亚人带来了希望。

一种致幻物质在帮助治疗厌食症方面显示出良好 的效果。美国一项小型早期试验发现,裸盖菇素 疗法使用了迷幻蘑菇中发现的一种关键的精神活 性成分,具有“有益”的结果,并在某些情况下 导致饮食失调缓解。

这项研究于周二发表在《自然医学》杂志上,没 有发现严重的不良副作用,“大多数参与者都认 为这种治疗非常有意义”并且是一种“积极”的 体验。

六天内两艘船沉没

一艘船在卧龙岗港神秘地倾覆,这是六天内第二 起此类事件。

周二早上 7 点左右,据报道一艘船倾覆后,紧急

服务人员被呼叫到港口。他们发现一艘半舱巡洋 舰被溢入水中的柴油完全淹没。

专业的危险品处理人员在船只周围放置了防护罩, 以防止柴油进一步喷入港口。

新南威尔士州警方已证实,他们不会就这两起事 件进行任何潜在的刑事调查。该场地已移交给新 南威尔士州港口。

Jad NehMetalah将在帕拉马塔扩建酒吧

一位 Gogglebox 明星兼酒店大师正在扩大他在帕 拉马塔的投资组合,并首次开设了一家“有趣” 酒吧。

NehMetalah 的餐厅和活动场所位于风景如画的 Parramatta 公园,这是他在出售 Burwood 的

The Picnic 咖啡馆后进军悉尼大西部的尝试,这 让他有信心明年在 Parramatta 开设一家酒吧。

“这里将有美味的食物、香醇的鸡尾酒和美好的 时光。”他说。

该酒吧的位置仍处于保密状态,但NehMetalah 相信它将获得支持。

28 YIBEN BUSINESS WEEKLY 商业周刊

南澳龙虾捕捞季节将延长

改变南澳大利亚州两个捕鱼区龙虾季节日期,旨 在为南澳大利亚州的商业渔民提供更大的灵活性, 以进入国际市场。

周三,南澳州长Peter Malinauskas在阿德莱德

举行的Trans-Tasman Lobster Conference上 宣布了这一变化,这是2007年以来的第一次。 从2024年9月1日起,目前允许全年捕鱼的北 方地区临时安排将成为永久性安排。

从今年开始,原定于10月1日的南区演出季将

提前到9月1日。

阿德莱德计划将CBD空置区建设为住宅区

将阿德莱德CBD商店上方的空间改造成住宅,以 缓解住房危机。

CBD建筑审计将作为州/市议会联合研究的一 部分进行,旨在促进住房供应和人口增长。州长 Peter Malinauskas在公布耗资50万澳元的 Capital City Committee研究报告时说,所谓 的城市建筑适应性再利用将加速急需的住房存量 释放。

29 YIBEN BUSINESS WEEKLY 商业周刊
壹本日报|
美味持续!政府计划延长南澳龙虾捕 捞季节;阿德计划将CBD空置区建 设为住宅区;RAA大楼成为阿德最高 建筑之一

他说:“我们正在尽一切努力缓解住房压力,适应 性再利用是将住房迅速推向市场的一种创新方式。”

RAA大楼成为阿德最高建筑之一

阿德莱德最具标志性的建筑点亮了城市的天际线, 其引人注目的多色显示屏由绿色能源供电。

澳大利亚最大的会员制组织澳大利亚皇家建筑 师协会(RAA)是灯光展览的幕后组织者,该展 览装饰了位于国王威廉街91号的Santos and Westpac大楼。它的特色是三个当地建造的标志, 由6000个最新、最高效的多色led照亮,这些 led在周二晚上首次打开。

首席营销官Michael Healy说,决定确保RAA 标志由可再生能源驱动,绿色能源表明了该组织 对可持续发展的承诺。

退休村改造成无家可归者收容所

随着州政府忙于应对昆士兰州的住房危机,布里斯 班北部的一个退休村将改造成无家可归者收容所。

继过去六个月对Toowoomba, Clayfield 和

Redland Bay 进行了类似收购之后,又以 410 万澳元收购了Rothwell工厂。

据州政府称,这 18 个空置单元将耗资 160 万澳 元进行翻新,然后租户将在年底前入住。

它将作为老年昆士兰人的紧急住房,然后在无家 可归者服务提供商和住房部的帮助下转移到长期 住所。

铁路工地发生恐怖坠落事件

周二下午,布里斯班内城一处工地发生工作场所 事故,导致一名 54 岁男子生命垂危。

这名男子从 Dutton 公园博戈路车站坠落 12m,

造成严重内伤。这名受伤工人目前仍在亚历山德 拉公主医院,情况危急,他的儿子也在 Boggo路 工地工作。

26日早上,CFMMEU 成员在布里斯班中央商务 区采取抗议行动,数百人放下工具并在城市街道 上游行,据称,自该项目启动以来,监管机构已 就 Cross River Rail 工地的安全问题发出了 300 多份执法通知。

30 YIBEN BUSINESS WEEKLY 商业周刊

新州将公立学校早餐计划增加到1000份

新州政府承诺耗资 800 万澳元将 500 所学校的 健康早餐计划增加一倍至 1000 所,以解决家庭 的生活成本压力。

East Hills 公立学校新装修的早餐餐厅确保学生 在上课前不会挨饿,现在州政府扩大了健康饮食 计划,以帮助解决生活成本危机。未来四年,参 与Foodbank早餐健康计划的公立学校数量将翻 一番,从 500 所增至 1000 所,耗资 800 万澳元。

新州州长Chris Minns在参观该计划的早期采用

者East Hills公立学校时宣布了这一消息,并在 升级后于本周重新开放的食堂为学生提供服务。

新南威尔士州护理人员开始新一轮罢工

在工会谴责州政府提出的“侮辱性”加薪提议后, 新南威尔士州的护理人员将开始为期一周的罢工 行动。

在拒绝州政府的加薪提议后,全州医护人员从周

一波新的罢工行动于26日开始,医护人员拒绝输 入患者账单信息、报告关键绩效指标并拒绝参加 特殊活动。

此次罢工将持续一周,救护人员将拒绝响应可由 私人提供者完成的非紧急转移工作。

新南威尔士州地区医院免费停车

州政府透露,患者和游客很快就可以在地区医疗 机构免费停车。

新南威尔士州政府透露,从下个月开始,患者和 游客将能够在全州的地区医院和医疗机构免费停 车。地区州立医院的工作人员已经可以使用免费 停车位,该计划将从 8 月 1 日起扩大范围。

卫生部长Ryan Park于周三上午参观新的Tweed Valley Hospital现场,与议员Justine Elliot和 卫生服务工会秘书Gerard Hayes一起讨论免费 停车问题。

31 YIBEN BUSINESS WEEKLY 商业周刊
三起 24 小时内拒绝响应非紧急转移工作。

阿德西部沿海郊区房产市场蓬勃发展

业内专家表示,耗资1.5亿澳元的Fort Largs住 宅开发项目,加上联邦政府的核动力潜艇交易, 正激发人们对Lefevre Peninsula沿岸房地产的 兴趣。

房地产经纪人报告说,近几个月来,人们的兴趣越 来越大,在已经上涨的市场上,这种做法推高了价 格。Kate Smith说,对该地区发展的预期,以及 现在的实际迹象,尤其是在Fort Largs前警察学 院旧址的重新开发正在形成之际,正在吸引买家。

Smith女士说:“现在所有的道路都在修建中,你 会看到一些备受尊敬的建筑商把他们的标志挂在 那里。”

阿德莱德山议会放弃澳大利亚日官方活动

出于对原住民“文化和价值观”的尊重,南澳大利 亚州多个地方议会放弃了官方的澳大利亚日庆祝活 动,包括公民入籍仪式。

阿德莱德山议会是最新一个不支持在1月26日 举行的“任何活动”的地方,并将把颁奖典礼和

32 YIBEN BUSINESS WEEKLY 商业周刊
壹本日报|
开发与就业热潮:阿德西部沿海郊 区房产市场蓬勃发展;阿德莱德山 议会放弃澳大利亚日官方活动;澳 洲平价葡萄酒出口下降

公民入籍仪式从这一天推迟。它加入了Unley, Mitcham 和Port Adelaide Enfield Council的 行列,选择不正式庆祝国庆日。

《广告人》透露,Prospect也指出了可能发生的 变化,而Onkaparinga市议会目前正在就在澳大 利亚日举行活动进行社区咨询。

澳洲平价葡萄酒出口下降

对美国和英国平价葡萄酒销售的大幅下滑,已导致 葡萄酒出口下降10%,原因是当地生产商急切地 等待着与中国的贸易突破。

Wine Australia的最新数据显示,截至今年6月 的12个月里,澳大利亚葡萄酒出口额降至18.7 亿澳元,降至6.21亿升,降幅为1%。英国和美 国仍然是最大的两个出口目的地,销售额分别为 3.64亿澳元和3.59亿澳元,但这两个数字比去 年分别下降了14%和18%。

总体而言,价格较低的葡萄酒受到的冲击最大,每 升售价在2.5澳元至4.99澳元之间的葡萄酒销售 额下降20%,至4.84亿澳元。

冒险家父子踏上探险之旅

他们的第一次一起探险差点被一头 400 公斤重 的灰熊咬伤——冒险家Geoff Wilson和Kitale Wilson父子即将踏上激动人心的新探险之旅。

备受赞誉的黄金海岸冒险家Geoff Wilson和他的 儿子Kitale第一次一起踏上探险之旅时,差点遭 到一只灰熊的袭击。他们希望他们最新的冒险之 旅——为期两年的一系列从南极到北极的探险活 动,以提高人们对气候变化的认识——将会更加 顺利。

下个月,两人将乘坐碳中和游艇 Nanook X 出发, 开始第一段旅程,从黄金海岸到 Patagonia,南 下南极洲,北上北极。

南岸泻湖和海滩将为世界杯开放

布里斯班市长发言人表示,标志性的南岸泻湖和 海滩将在国际足联女足世界杯的大型比赛中及时 开放。

布里斯班市长发言人表示,布里斯班标志性的南岸 泻湖和街道海滩将于 8 月 12 日重新开放,以配 合该市举办的最大规模的 FIFA 女足世界杯比赛。

街道海滩的大部分地区已被围起来,自 7 月 10

33 YIBEN BUSINESS WEEKLY 商业周刊

日维护工作开始以来,泻湖已完全排干。最初的通 知称维护将持续到8月底,但完成日期已修改为8 月12日。

感染流感的儿童人数增加

数万名昆士兰人已经接受了州政府提供的免费流感 疫苗注射服务,但随着感染儿童人数的增加,该州 尚未摆脱困境。

几天之内,数万名昆士兰人接受了州政府提供的免 费流感疫苗注射服务,但卫生部长警告说,该州尚 未摆脱困境。卫生部长Shannon Fentiman表示,

过去几周,感染流感的 5 至 17 岁儿童人数有所 增加,其中 114 人住院。

住院患者中只有 3% 接种了疫苗。根据周六正式

开始的州政府资助的疫苗接种闪电战,所有昆士兰 人都可以在八月底之前免费接种流感疫苗。

外国人购房的速度是官方数据的两倍

由于新证据对官方数据提出严重质疑,有人呼吁紧 急调查外国人购买了多少澳大利亚房屋。

《每日电讯报》今天透露,2020-21 财年支付新 南威尔士州海外买家附加费的人数是新南威尔士州

外国投资审查委员会 (FIRB) 在该财年批准的人数 的两倍多,分别为 2107 人和 974 人。

在 5 月的联邦议会听证会上,联邦财政部官员告 诉一国参议员马尔科姆·罗伯茨,2021-22 年涉 及住宅的交易中只有 0.74% 是由外国人购买的。

但澳大利亚国民银行 (NAB) 对房地产经纪人进行 的一项长期且备受推崇的调查显示,该财年外国购 买二手房的比例超过 2%,购买新房的比例为 4% 至 8%。

新州紧急护理诊所开业

该州第一家紧急护理诊所在 Corrimal 开业后, 每年可帮助多达 12,000 人不用前往不堪重负的 Wollongong医院急诊科就诊。

每年,多达 12,000 名患者可以免去不堪重负的 Wollongong医院急诊科的麻烦,该医院的等待时 间和罢工率仍然很高,而该州首批紧急护理诊所之 一在 Corrimal 开业。

UCC 位于 Corrimal 医疗和牙科中心,每周 7 天 营业,营业时间为上午 8 点至晚上 8 点,是继 Maroubra 和悉尼北岸的诊所在过去一周开始治 疗患者后,新南威尔士州开设的第三家诊所。

34 YIBEN BUSINESS WEEKLY 商业周刊

Linden Park SA 5065

1.区域概况/概述

Linden Park位于南澳州首府阿德莱德的东南方向,常住人口为2007人(2016 Census)。Linden Park的东 北部紧邻Hazelwood Park,南部紧邻St Georges,西南部临近Glenunga。此区归Burnside Council管辖。

35
区域 解读

2.学区情况/学校介绍

周边公立学校

Linden Park Primary School,Linden Park 5065

公立小学,1-7年级,男女同校,951名在校生

Burnside Primary School,Burnside 5066

公立小学,1-7年级,男女同校,813名在校生

Glenunga International High School,Glenunga 5064

公立中学,8-12年级,男女同校,1756名在校生

Glen Osmond Primary School,Myrtle Bank 5064

公立小学,1-7年级,男女同校,368名在校生

Marryatville High School,Marryatville 5068

公立中学,8-12年级,男女同校,1315名在校生

Marryatville Primary School,Kensington 5068

公立小学,1-7年级,男女同校,591名在校生

周边私立学校

Seymour College,Glen Osmond 5064

1-12年级,758名在校生

St Patrick's Special School,Toorak Gardens 5065 男女同校,52名在校生

Loreto College,Marryatville 5068

1-12年级,572名在校生

St Peter's Collegiate Girls' School,Stonyfell 5066

1-12年级,663名在校生

36 YIBEN BUSINESS WEEKLY 商业周刊

3.人口构成

Linden Park的大小约为0.8平方公里。2011年Linden Park的人口为1887人。到2016年,人口为2007人,在 此期间该地区的人口增长率为6.4%。Linden Park的主要年龄组是10-19岁。Linden Park的家庭主要是有 子女的夫妇,每月可能偿还1800-2399澳元的抵押贷款还款。一般来说,Linden Park的居民从事专业职 业。2011年,Linden Park 75%的房屋是自有住房,而2016年为74.5%。(资料来源:澳大利亚统计局)

37 YIBEN BUSINESS WEEKLY 商业周刊

4.配套设施

Linden Park区内公共配套设施齐全,满足日常生活 需求。有学校、公园、杂货店、服装店等。

Linden Park区附近有学校、风味餐馆、公园等。

Linden Park距离Adelaide市中心约6.6公里,开车需 11分钟即可到达市中心。公交线路围绕整个Linden Park,公共交通十分便利。

38 YIBEN BUSINESS WEEKLY 商业周刊

5.行情观察

独栋房屋

在过去的12个月里,Linden Park已经卖出了30套独栋房屋,售价中位数为$1.4M,同比减少13.3%。平均 需要44天即可售出,房东减价为2.9%。

单元房

在过去的12个月里,Linden Park已经卖出了14套单元房,售价中位数为$532K,同比增加36.4%,平均需 要41天即可售出。

数据来源:

关于学区情况/学校介绍、人口构成、行情观察:

https://www.propertyvalue.com.au/suburb/linden%20park-5065-sa

39 YIBEN BUSINESS WEEKLY 商业周刊

Turn static files into dynamic content formats.

Create a flipbook