Skip to main content

Yiben Business Weekly Vol.153

Page 1

超凡品质,无限优雅

理想生活,从完美家居开始

过去10年房价涨幅最大的郊区

建造更多房屋是解决租金危机的方法

澳洲联储分析显示2023年将有多少借款人陷入困境

国际学生成群结队地返回,加剧了全国的租金短缺

房价又开始上涨了。这是“死猫反弹”还是市场已经触底?

壹本日报合集

区域解读 Joslin SA 5070

Copyright Statement

免责声明

Unless otherwise stated, Guiding Star Group reserves all copyright in the content and design of this magazine. Guiding Star Group owns all suck copyright or uses it under license or applicable law. You must not link to, publish, or make any commercial or public use of this magazine or its content, except as permitted by statute or with Guiding Star Group prior written consent. Advertising Terms and Conditions must be in writing 48 hours before copy delaine. All editorials or advertisements appearing in Yiben Weekly magazine are subject to copyright, and cannot be reproduced in whole or in part. No views of information contained in articles and advertisement appearing in Yiben weekly magazine are endorsed by the publisher. The publish reserves the right to refuse, withdraw or amend article or advertisements without explanation. Artworks are accepted on condition that publisher cannot guarantee their safe return, the publisher will not be liable for any damage or loss caused by late publication, error of failure of advertisement to appear. Part of contents from Internet may be credited in Yiben weekly magazine under the creative commons deed ( CC BYSA 3.0). Should there be any object, please contact Guiding Star Group. Appropriate royalties would be made to the verified author in accordance with relevant laws.

03 07 09 12 15 17 20 35
2023 VOL.153
CONTENTS 目录

超凡品质,无限优雅

理想生活,从完美家居开始

15 Goode Avenue, Craigburn Farm, SA 5051

晚风微拂,霞光灿灿,精致的前院里喷泉流淌, 如茵的绿草轻轻摇曳,直叫人醉心于生活的美好。

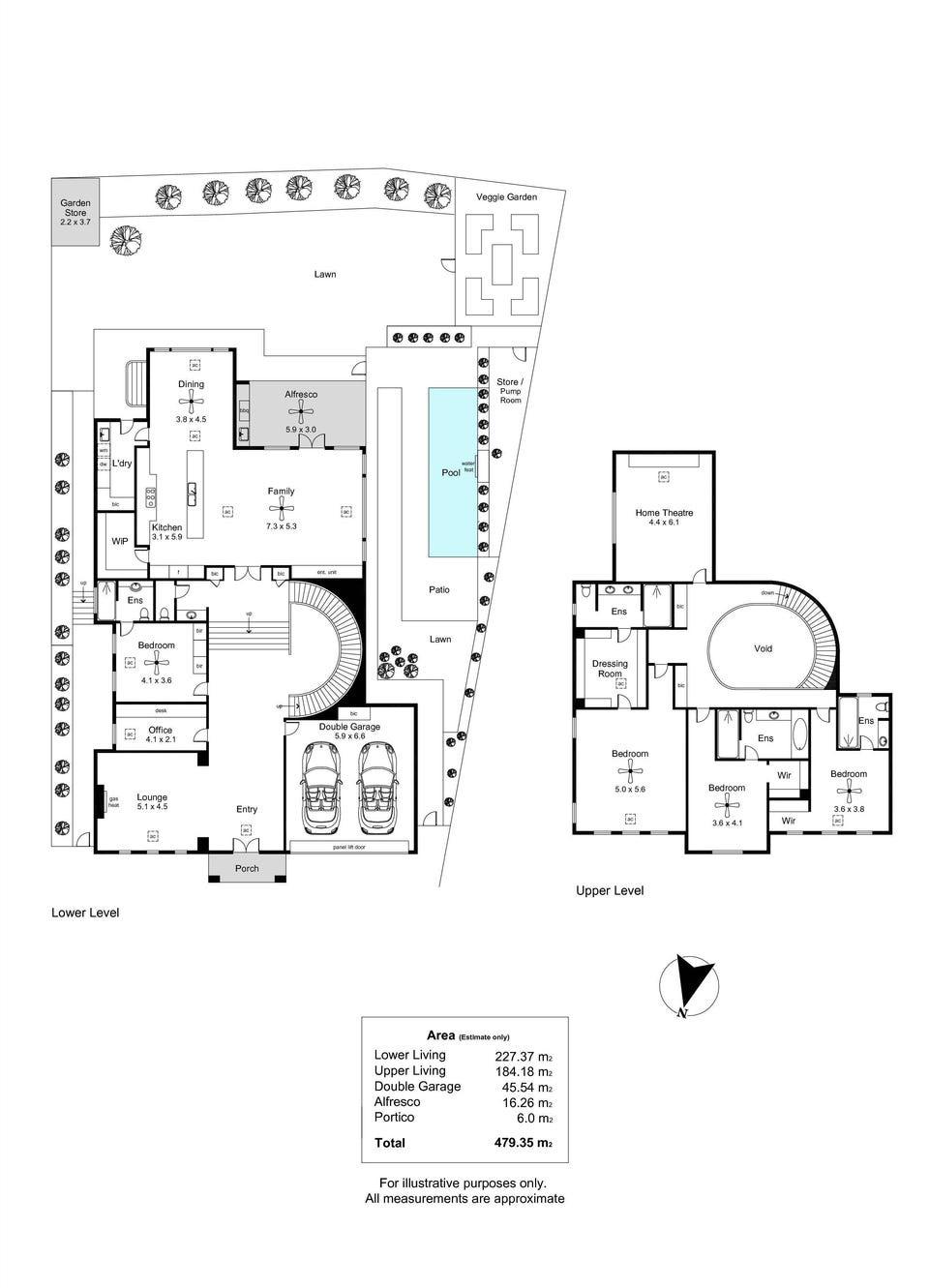
当人们亲见位于15 Goode Avenue, Craigburn Farm, SA 5051的这栋顶级别墅时,很难不沉浸 在它的宏伟与优雅之中。这栋别墅建于2017年, 由Alan Sheppard Constructions精心打造, 占地达到了828平方米,拥有四间卧室,四间浴室, 家庭影音室及室内双车库,力图为追求幸福的人 们打造一个完美的“乌托邦”。

当人们推开大门,步入室内,首先感受到的是3.6 米挑高带来的舒适与开阔。进屋后,左手边便是 带燃气壁炉的正式起居区,两张浅色皮质沙发相 对摆放,深色木制茶几更添严肃,在这里接待客

人无疑十分合适。再往里走,则是带定制书桌与 书架的家庭书房/办公室,专为主人处理事务而

3

设立,安静而私密。一楼还设计了一间豪华客卧, 全瓷砖套间浴室和独立化妆间宛如五星级套房, 定能让来访的友人拥有最佳的体验。

继续往里,便来到了由厨房和休闲客厅组成的开 放式生活空间。厨房足以令每一个烹饪爱好者露 出微笑——厨用器具一应俱全,凯撒石台面低调 而奢华,双水槽岛台实用大气,玻璃橱柜展示着 精致的瓷质餐具,900mm 燃气灶台将见证美食 的诞生,集成洗碗机为家庭带来便利,隐藏在厨 房后面的步入式储藏室能轻松满足整个家庭的储 物需求。毫无疑问,这里将成为与家人共度美好 时光的理想中心。

厨房右侧的休闲客厅宽敞明亮,后院的风光被巨 大的玻璃窗引入室内。在阳光灿烂的春天清晨, 在清风阵阵的秋日傍晚,在小雪飘飞的冬季午后, 这里都一如既往的静谧舒适,让人从心底感到惬 意与放松。

通往二楼的弧形楼梯蜿蜒有致,两盏枝形吊灯照 亮着这独特的设计,为这令人印象深刻的空间增 添了额外的奢华气息。二楼共设有三间卧室,每 间卧室都拥有独立的盥洗室和衣帽间,只为给主 人带去最便捷舒心的生活。

在这栋每个细节都尽善尽美的别墅中,二楼的家

4

庭影音室绝对是不容错过的。位于二楼的家庭影 院配备了爱普生投影仪和高品质环绕声系统,是 享受家庭电影之夜的完美场所。而除了家庭影院 之外,一楼充满生趣的菜园同样让人移不开目光。 想象这样的画面:孩子们在阳光下挥动着手中的 小铲子,种下一把把菜籽。时间推移,绿油油的 菜苗冒出了头,孩子们的欢笑声不绝于耳……谁 能拒绝这样触手可得的幸福生活?此外,一楼的 全瓷砖magna泳池也格外引人注目,在夏天傍晚, 谁能拒绝跃进泳池游上几圈呢?

最后,还需要提到的是,别墅所在的地区拥有丰 富的自然美景,Craigburn Farm, Blackwood

和周边郊区拥有众多保护区和公园非常适合 孩子们活动。这个抢手的地址还位于著名的 Blackwood 学校分区内,是成长型家庭的完美选 择。且其靠近St Peter's campus of Concordia College (R-12) (康科迪亚学院R-12的圣彼 得校区),驱车片刻即可到达热门的St John's Grammar School(圣约翰文法学校)。

总而言之,这栋坐落在Blackwood Park Estate 的别墅,凭借其奢侈精致、优雅大方给人们留下 了深刻的影响,而其所在的优越位置也为它招揽 了更多的青睐。毫无疑问,这栋可称完美的住宅 是开启无限未来的理想起点。

YIBEN BUSINESS WEEKLY 商业周刊

详细的住宅参数:

•占地828平方米

•四间卧室

•四间浴室

•室内双车库

•一楼天花板高3.6米

•二楼天花板高3米

•家庭影院

•精致厨房:凯撒石台面;900mm 燃气灶台

•学习/家庭办公室

•菜园

•全瓷砖 magna 泳池(太阳能加热)

•保安系统

•太阳能发电系统

•附近学校:Blackwood;St Peter's campus of Concordia College (R-12); St John's Grammar School

•预估售价:$2,495,000 - $2,545,000

有意请联系:

Peter Jeffrey:0419827383

Fraser Maggi:0434139703

YIBEN BUSINESS WEEKLY 商业周刊

过去10年房价 涨幅最大的郊区

与大流行期间利率创下历史新低的飙升相比, 2022年房价的下跌相形见绌。从更长远的角度来 看,在过去的10年里,几乎所有的郊区都经历了

在过去10年里,澳大利亚房主的财富大幅增加。

7 YIBEN BUSINESS WEEKLY 商业周刊
价格的上涨,有些甚至涨了两倍。

自2013年以来,澳大利亚的房价平均上涨了 83%。地区房价上涨了92%,而首都地区的房价 在10年期间上涨了80%。

有许多因素推动了价值的非凡增长。首先是现金利 率的稳步下降。自2013年以来,现金利率一直在 下降,在2020年11月达到0.1%的历史低点。

这降低了抵押贷款成本,提高了购房者的借贷能力。 这种影响在2020年底和2021年尤为明显,强劲 的住房需求推动房价创纪录地增长了22%。

第二个因素是持续的人口增长和土地稀缺,特别是 在靠近城市中心的郊区。由于大型CBD附近的房 屋建造空间有限,周边郊区的房价飙升,使许多澳 大利亚人负担不起。因此,大量人口迁移到地区和 较小的首都,导致这些地区的价格强劲上涨。

这些趋势已经出现了一段时间,随着在家工作变 得更加正常化,这种趋势被大流行大大加速。为 了更好地了解受上述因素影响最大的郊区,我们

研究了过去10年房价涨幅最大的郊区。

拜伦湾的房价涨幅位居榜首,自2013年3月以 来,房价中位数上涨了362%。Bright、Suffolk Park和Berry的房屋需求也很高,同期价格上涨 了约3.6倍。Kingscliff和Burradoo也是房价 涨幅最大的郊区之一。

房价10年来涨幅最大的郊区

就单位而言,Noosa Heads和Jindabyne在价 格增长方面领先,中位数分别增长了279%和 260%。Currumbin Waters和Ettalong Beach 的公寓价格也大幅上涨,现在是10年前的2.6倍。

这些增长最快的郊区,无论是住宅还是公寓,大 多数都位于区域地区,这表明我们的城市因大流 行病而向地区迁移。在经历了2022年大部分时 间的下跌之后,随着需求继续超过新上市房屋的 供应,房价在最近几个月略有反弹。

8 YIBEN BUSINESS WEEKLY 商业周刊

建造更多房屋 是解决租金危机的方法

在过去一年中,realestate.com.au 广告租金中 位数增长了11%,而新数据显示,租金空置率仍 然极低。在全国范围内,租金空置率仅为 1.5%,

不到大流行前的一半。美国的一些地区比这要紧 得多:阿德莱德和珀斯的空置率都低于1%。我们 看到这些低空置率和快速增长的租金的原因是,

9 YIBEN BUSINESS WEEKLY 商业周刊

相对于想要租房的人数,可用的出租物业没有以 前那么多。解决这场危机的办法是增加出租房屋 的供应。这意味着更多的房地产投资将更多的租 金带入市场。

在这方面有一些好消息。

投资者在新抵押贷款中所占的份额越来越大(尽 管新投资者贷款的数量正在下降,而新住房贷款 则普遍下降)。在过去一年左右的时间里,投资 者占新抵押贷款价值的三分之一左右。这比 2020 年有了显着增长,当时该份额不到四分之一。

而且,更重要的是,我们看到租赁存量中的出租 物业数量有所增加。这与我们在大流行期间看到 的情况发生了变化,当时许多投资者卖光了他们 的出租物业,而相对较少的人买入。这意味着在 大流行期间,出租物业的总数实际上略有下降, 这种情况并不常见。

投资者在哪里购买?

但这些投资者在哪里购买?这能告诉我们摆脱租 金危机的途径吗?

我们可以看待这个问题的一种方法是查看澳大利 亚哪些地区的租赁供应增长最快。我通过查看首 次上市的出租物业来做到这一点,这些出租物业 是我们以前从未见过的 realestate.com.au 上列 出的出租物业。

绝大多数新的出租物业位于我们建造新房的地区。

这并不奇怪。租赁存量的新增加只能来自新建的 房屋,或者通过转换以前自住的房屋。如果我们 专注于租赁供应的净增长(新上市的租赁物业, 从租赁存量中删除物业的投资者销售减少),这 种情况不会改变。建造新房的地区租金存量净增 幅最大。

10 YIBEN BUSINESS WEEKLY 商业周刊

相对于现有租赁存量的规模,租赁供应中增加的 一些最大的部分来自墨尔本的西部和西北部, Geelong, Ballarat,珀斯的南部和西南部,悉尼 的Baulkham Hills和Blacktown以及布里斯班 的东部。

墨尔本的内郊和黄金海岸的出租物业数量也大幅 增加;但这些地区已经拥有庞大的租赁市场,因此 作为份额,增幅小于其他一些地区。

相比之下,租赁供应的总增长与当地市场状况之 间并没有很强的关系。一个地区的租金增长是否 强劲,空置率是否低,或者最近的价格增长是否 强劲(或疲软),至少从总体上看,似乎并不像我 们是否建造了更多的房屋那么重要。

毫无疑问,这些特定于市场的因素对个人投资者 决定买什么和在哪里买非常重要。但是,总的来说, 建造更多的房屋对于增加租赁数量至关重要。

但目前还没有多少缓解的迹象

不幸的是,对于租房者来说,租房市场可能会在 一段时间内保持极度紧张,因此租金可能会继续 快速增长。我们目前正处于租金危机中,因为我 们没有足够的租金。解决这个问题最终意味着我 们必须建造更多的房屋。这是唯一长期可持续的 解决方案。不幸的是,如果有的话,我们正朝着 另一个方向前进。

随着利率上升和住房建筑商计划的实施,新独立 式住宅的批准数量有所下降。自2019年以来, 新的半独立式住宅和公寓的批准一直处于适度水 平,远低于我们在15岁左右看到的公寓建设激增。 如果我们要解决租房危机,并更广泛地提高住房 负担能力,就需要加快建造新住房的步伐。

但是,即使我们今天就改变了这一点,缓解租赁 市场的压力也需要时间——建造房屋不是一蹴而 就的。为了解决租房者的短期压力,还需要改变 其他政策。特别是,提高联邦租金援助将是对受 租金危机打击特别严重的低收入家庭的有针对性 和有效的救济。

11 YIBEN BUSINESS WEEKLY 商业周刊

澳洲联储分析显示2023年 将有多少借款人陷入困境

2023年对借款人来说将是艰难的一年。抵押贷款 利率一直在以有记录以来最快的速度增长,许多 借款人今年推出固定利率时将面临挑战。澳大利 亚储备银行(RBA)的最新分析表明,虽然大多 数借款人将能够应对这种调整,但有些人将陷入 困境。这包括一些无法支付更高还款额的借款人 和其他无法再融资的借款人。

抵押贷款利率在过去一年中翻了一番多,上升了 3.5个百分点。虽然许多借款人继续受到固定利率 期限的更高还款的影响,但这些低利率中的大多 数将在明年到期。随着高通胀带来的生活成本压 力,2023年对许多家庭来说将是紧张的一年。

但借款人的风险有多大?还款额是否会增加到足 以迫使人们出售房产或违约?是否会有大量的“抵 押贷款囚犯”无法为更好的交易进行再融资?澳 洲联储最近的《金融稳定评估报告》深入探讨了 这些风险。

15%的借款人将难以应对更高的还款额

这是澳洲联储对利率上升、通货膨胀和失业对借款 人影响的分析的结果。澳洲联储估计,借款人的“闲 置现金流”(支付抵押贷款还款和其他费用后剩余 的资金)将大幅下降。据估计,大约四分之一的借 款人的闲置现金流将在今年下降25%以上。

12 YIBEN BUSINESS WEEKLY 商业周刊

对于大约15%的借款人来说,他们的闲置现金流 估计会变成负数,这意味着他们再也负担不起贷 款。很难说这些脆弱的借款人将如何应对。有些 人将能够增加收入,或减少开支以继续支付抵押 贷款。鉴于就业前景仍然良好 - 失业率保持在非

常低的3.5% - 希望在这种情况下的许多人能够自 己解决。然而,劳动力市场状况的恶化-特别是 失业率的大幅增加-可能意味着今年将有更多的 家庭陷入困境。

大量储蓄将帮助一些借款人解决困难的财务状况

随着利率的下降,许多借款人在疫情期间大幅增 加了重新提取或抵消账户的抵押贷款提前还款。

几乎一半的借款人在抵押贷款账户中存了超过一 年的还款额。这些借款人有足够的储蓄来弥补相 当长一段时间的收入缺口。

但大约40%的借款人储蓄的抵押贷款还款不到3 个月。虽然其中一半是固定利率或投资者贷款, 通常将储蓄存放在其他地方,但如果他们的还款 变得负担不起,20%的借款人似乎几乎没有储蓄 可以依靠。不幸的是,这些低储蓄借款人与那些 在加息后将有负闲置现金流的借款人之间可能存 在很强的重叠。这些借款人可能会很快拖欠还款。

好消息是,贷款人将与这些借款人合作 - 无论是 通过只付息期还是延期还款 - 试图为借款人和贷

13 YIBEN BUSINESS WEEKLY 商业周刊

方获得最佳结果,借款人能够留在家中。

在最坏的情况下,几乎所有借款人都可以通过出 售房屋来偿还贷款

对于一些借款人来说,更高的还款额在财务上是 无法克服的。不幸的是,他们可能需要卖掉他们 的房子。对于这些借款人来说,过去几年的价格 上涨意味着几乎所有人都能够出售他们的房产以 全额偿还贷款。

目前,不到2%的贷款覆盖了超过90%的房产价 值,很少有人欠下超过房屋价值的贷款。

更高的利率意味着16%的借款人是无法再融资的 “抵押贷款囚犯”

要进行再融资,借款人必须满足更新的服务能力 评估。这要求他们证明他们能够以当前利率以及 300个基点的缓冲来偿还新的抵押贷款还款。这

意味着借款人必须能够证明如果利率上升到8.59%,他们可以还款。已经有16%的借款人无法 满足这一测试,因此无法再融资以获得更好的交易。

这可能会使借款人承受更大的压力 - 因为他们被 困在支付没有竞争力的利率。有人呼吁减少可偿 还性缓冲,但更好的解决方案是“同比”还款借款人可以在没有新的服务能力评估的情况下转 移到新的贷方,前提是他们没有错过任何贷款还 款。认识到处于这种境地的大量借款人,一些贷 方开始提供这种途径,以获得更好的利率和更低 的还款额。

2023 年对许多人来说仍然是艰难的一年

澳洲联储的分析强调,虽然大多数借款人将能够 应对对更高利率的调整,但有些人将举步维艰。 虽然澳洲联储目前已暂停加息,但更高的利率、 通货膨胀和租金上涨的结合将使 2023 年对许多 人来说是艰难的一年。

14 YIBEN BUSINESS WEEKLY 商业周刊

国际学生成群结队地返回, 加剧了全国的租金短缺

根据最近的数据,国际学生人数达到了2019年2 月以来的最高水平。根据澳大利亚统计局的数据,

仅在2023年2月,就有14.2万名学生签证持有 者抵达澳大利亚,比2022年2月增加了190%。

15 YIBEN BUSINESS WEEKLY 商业周刊

首都城市租金压力加大

留学生人数的急剧增加恰逢海外租房搜索量的增 加,PropTrack的数据显示,过去三个月海外租 房搜索量比2019年同期增长了34%,这给本已 紧张的租房市场增加了更多压力。

大多数租房搜索都青睐拥有大型大学的首府城市, 其中墨尔本和悉尼最受欢迎。随着首都城市租金 同比上涨13%,住房和单元房租金涨幅均超过 10%,这引发了一些问题——国际学生将何去何 从?他们要住在哪里?我们怎样才能在帮助他们 的同时,缓解整个租赁市场的压力?

缓解租赁市场压力的解决方案

“供应就是答案,”flatmates.com.au 的

Claudia Conley说。“我们需要在市场上提供更 多的租赁房源,以帮助缓解国际学生面临的压力, 以及更好的住房负担能力。”

来自 rentstar.com.au 的Katie Bursnall表示, 自从以前的一些学生宿舍在Covid期间变成了住 宅以来,负担能力已成为一个主要问题。“由于租 金仍然如此之高,这些房产的许多业主选择留在住

用性要少得多,这给住宅市场带来了更大的压力。”

需要专门建造的学生宿舍

根据学生住宿委员会执行主任Torie Brown的说 法,增加学生供应和缓解租赁市场压力的一种方 法是建造专门建造的学生宿舍。“我们在澳大利 亚中央商务区建造的学生宿舍越多,我们在私人 租赁市场上竞争的学生就越少,”她说。“这意 味着将有更多的床位和更多的关于他们将住在哪 里的保证,并且将有更多的住宅物业可供寻找出 租房屋的人使用。”

房主可以敞开大门

根据Conley女士的说法,另一种选择是让那些家 里有空余卧室的人出租。“最近的数据显示,澳 大利亚有12万间备用卧室,”她说。“我们希望 看到其中一些人被列入名单,以帮助减轻国际学 生的压力。”

因此,随着国际学生成群结队地返回澳大利亚, 除非针对学生的住房需求采取措施,否则目前的 租房危机将变得更加严峻。

16

房价又开始上涨了。 这是“死猫反弹”

还是市场已经触底?

17 YIBEN BUSINESS WEEKLY 商业周刊

在大流行期间,房价上涨接近创纪录水平,但去 年下半年,大部分地区的房价开始下跌。头条新 闻开始出现警告称,经济将以数十年来最快的速 度下滑。房价下跌,再加上有关经济状况类似衰 退的说法,以及利率上升导致房地产价值进一步 下跌的预测,在潜在购房者和卖家中引起了焦虑。

但在市场开始降温仅仅九个月后,就有迹象表明 市场可能再次回暖。修正结束了吗?房地产市场 已经触底了吗?

PropTrack资深经济学家Eleanor Creagh表 示:“在经历了九个月的价格下跌之后,全国房 价已经扭转了下跌趋势。”“去年最后几个月开 始放缓的房价下跌,现在正在走高。”事实上, PropTrack的数据显示,3月份全国房价连续第 三个月上涨。Creagh女士说:“全国房价在3月 份继续稳定,并小幅上涨0.13%,使本季度迄今 为止的累计反弹达到0.49%。”

“除了霍巴特、达尔文和布里斯班,每个首府城 市的房价都出现了反弹,其中悉尼、珀斯和墨尔 本的涨幅最大。”

推动市场状况的因素

尽管迄今为止,利率一直是价格下跌的主要驱动 因素,但加息的影响正在被许多因素抵消。澳大 利亚房地产协会主席Hayden Groves表示:“澳

大利亚央行开始采取积极措施,通过加息来抑制

通胀,这立即影响了澳大利亚的房地产市场。”

“但我们已经看到,随着人口增长和供应短缺支 撑需求,市场跌幅趋于稳定。”去年的净移民人 数约为32万人,而2021年新冠疫情高峰期的净 移民人数仅为5940人。整个2023年,这一数 字可能会保持强劲。

Creagh女士说,通过移民实现的人口增长与有限 的库存相结合,推动了价格上涨。“尽管抵押贷 款负担能力和借贷能力的显着下降意味着价格进 一步下跌,但已经推动的大幅紧缩对价格的下行 压力正在被移民强劲反弹和非常紧张的租赁市场 带来的积极需求驱动因素所抵消。”“与去年同 期相比,进入市场的房产减少,这创造了更具竞 争力的购买环境并提振了房屋价值,因为仍然有 足够的买家需求来帮助保持价格弹性。”

“抵押贷款悬崖”的影响

虽然有一些因素推动了全国市场的调整,但并不 能保证触底反弹。澳洲联储估计,当抵押贷款持 有人将非常低的固定利率转为更高的可变利率时, 他们将面临所谓的“抵押贷款悬崖”。

Groves 先生说:“仅在800年,'抵押贷款悬崖' 的临近将影响约000万抵押人,这可能会导致供 应增加,特别是在更实惠的地区。因此,面临抵 押贷款还款上调的借款人一直在勒紧裤腰带,有

18 YIBEN BUSINESS WEEKLY 商业周刊

证据显示,全国范围内的家庭支出都在减少。

Creagh表示:“随着消费者支出将大幅放缓, 经济活动将在未来几个月走弱,因为已经实现的 加息的全面影响将影响到家庭、企业和经济状 况。”“如果通胀压力比预期更持久,央行加息

幅度超过预期,房价下跌可能会再次出现,特别 是如果我们看到未来几个月库存水平上升,房价 的支撑支柱消失,再加上加息带来的下行压力, 房价可能会下跌。”

复苏已经开始了吗?

尽管房价企稳,抵押贷款利率上升,各种经济因 素都在发挥作用,但在预测未来6至12个月的 房地产市场时,房主、投资者和专家都在对冲他 们的赌注。

鉴于这种不确定性,专家们说,现在说市场已经 见底可能还为时过早。房价走势将受到许多变量 的影响,包括冲击市场的供应水平和利率走势。

克里格表示:“如果澳大利亚央行暂停紧缩周期,

触底过程可能会继续,随着不确定性的缓解,房 价反弹趋稳,价值企稳。”

“如果上市环境仍然受到限制,市场上的房产 数量减少,供应持续低迷,这可能会继续为价 格提供底部,并抵消加息滞后效应带来的下行压 力。”“来自租赁供应短缺和国际移民反弹的积 极需求驱动因素也依然存在。”

Groves也认为,不断上升的生活成本压力和不断 上升的利率这两股相互冲突的力量,意味着新的 市场“繁荣”的可能性仍不得而知。“无论哪种 情况,市场的突破都将是利率上升与经济衰退威 胁之间竞争的赢家。经济衰退可能导致市场萎缩, 住房供应不足,而需求增加可能导致价格上涨。”

“在利率上升停止和生活成本压力稳定之前,大 多数澳大利亚市场将在底部反弹一段时间,恢复' 繁荣'条件的机会很小。”“负担能力接近历史低 点,工资增长仍低于通货膨胀,一些基本经济指 标表明,今年剩余时间和2024年房地产价值将 保持稳定。”

19 YIBEN BUSINESS WEEKLY 商业周刊

阿德新航线开通

为了极大地推动当地旅游业和寻求有竞争力的机 票的南澳大利亚人,阿德莱德机场将从7月开始 迎来一家提供直飞亚洲航班的新航空公司。

阿德莱德将从7月开始有新的直飞吉隆坡航班, 这将是该航空公司首次直飞阿德莱德和马来西亚。

Batik Air Malaysi(前身为Malindo Air)每周

将运营三班从阿德莱德飞往吉隆坡的航班,周一、

周三和周五上午8点40分出发,周二、周四和周 日从吉隆坡返回阿德莱德,晚上11点10分出发。

这项新服务出台之际,国际旅游业正在从疫情的封 锁中恢复过来,阿德莱德机场总经理Brenton Cox 正在推行一项雄心勃勃的计划,即网络愿景2050 计划,阿德将实现直飞37个城市的美好计划。

南澳房地产市场表现强劲

南澳的房地产市场表现非常强劲,阿德莱德和周 边地区的房价攀升至历史新高。

最新的Valuer-General季度报告显示,今年第 一季度的房价上涨了0.75%,过去12个月的

20 YIBEN BUSINESS WEEKLY 商业周刊
壹本日报|
起飞!新航空公司将开通从阿德莱 德出发的海外直飞亚洲航班;南澳 房地产市场表现强劲;离婚率上升; 澳洲未来两年移民将持续上升

房价上涨了3.85%,阿德莱德房价中值达到了

67.5万澳元的历史新高。这意味着过去三个月的 价格上涨了5,000澳元,过去一年的价格上涨了 25,000澳元。相比之下,PropTrack的数据显示,

同期墨尔本房价下跌3.9%,悉尼房价下跌0.8%。

在全州范围内,房屋价值有所上升——本季度上 涨0.84%,至60万澳元——与去年同期相比上 涨9.09%。价格上涨的部分原因是本季度销售量 下降,供应不足推高了南澳许多地区的价格。

澳洲离婚率上升

统计数据显示,在澳大利亚,结婚20年以上的夫 妇越来越多地选择离婚,这给他们带来了独特的 经济和情感挑战。

澳洲未来两年移民将有71.5万移民

一份被泄露的内阁简报承认,未来两年预计将增 加71.5万名移民,联邦政府因此被指责暗中打造 一个“大澳大利亚”。

未来两年,澳大利亚将迎来大规模移民潮——约 71.5万人——这将进一步加剧该国日益严重的租 房危机。周五,新州和北领地领导人获悉,5月份 的预算将显示,到7月份,净海外移民人数将超 过40万。该预测将纳入预算,显示2023-2024 年移民人口净增长将达到31.5万人。10月份, 政府预测2022-23年和2023-24年的净海外移 民将只有23.5万人。

专家们称之为“grey

divorce”,他们认为,新 冠肺炎疫情、社交媒体、离婚耻辱感减少以及女 性感觉更有权力等因素加剧了这一新兴趋势。他 们说,虽然“不忠仍然是离婚的主要因素”,但 对于许多年纪较大的夫妇来说,决定分手只是反 映了“it’s time”的时刻。

澳大利亚家庭研究所(Australian Institute of Family Studies)今年3月发布的数据显示,在 2021年批准的56244对离婚中,超过四分之一 的夫妇结婚20年或更长时间,而上世纪80年代

今年1月,财政部长Jim Chalmers表示,这个 数字可能要高得多。

新州拨款22亿促进初级医疗保健普及

从明年开始,新州父母只需花19澳元就能让孩子 在药店接种疫苗,这是旨在改善初级保健服务的 22亿澳元预算支出的一部分。

从7月起,新州还将开始通过初级保健网络资助 全科医生的非工作时间方案,优先考虑解决地区

21 YIBEN BUSINESS WEEKLY 商业周刊
和90年代这一比例约为五分之一。

的保健短缺问题。政府还将启动“MyMedicare” 计划,该计划将向全科医生提供大笔资金,帮助 管理慢性病患者。这项服务旨在提供更全面的病 情管理,摆脱目前按预约收费的收费模式。

根据这一方案,医院必须与负责经常需要住院治 疗的病人的全科医生联系。还将有更多的资金用 于确保全科医生在老年护理机构为病人提供适当 的服务。

维州实行新房产税

维多利亚州人可能会被迫征收一项新的房产税, 以帮助Andrews政府的社会和经济适用房议程提 供资金。

《The Sunday Herald Sun》透露,州政府已经

开始着手建立新的开发商捐款,以增加该州的财 政收入。这些讨论还包括规划改革和改善住房供 应,但不包括在即将出台的国家预算中。一年前, 维州政府被迫取消了8亿澳元的社会住房税,这 笔税本来可以每年为1700套新的社会住房提供 资金。

政府在该税宣布后不到两周就抛出了这一政策, 该政策还将包括加快建筑和规划审批的关键改革。 但房地产和建筑行业猛烈抨击了拟议中的1.75% 的社会住房税,该税将使每套新房的中位数价格 再增加2万澳元。

布里斯班家庭的电费飙升

布里斯班的电费飙升 32.5%,因为该市的生活成 本涨幅居全国之首,住房、医疗和教育也更加昂贵。 该市受到住房、医疗、高等教育成本上涨以及三 月份季度电价上涨 32.5%的冲击。与珀斯4.5% 和霍巴特8.9%的涨幅相比,电价涨幅是全国最 大的。昆士兰电价的大幅上涨部分归因于去年电 费回扣的取消。

澳大利亚统计局的新数据促使代理财长Stirling Hinchliffe承认“还有更多工作要做”以帮助昆 士兰人度过生活成本危机。

两个布里斯班危机避难所关闭

在两个临时危机避难所关闭后,住房倡导者和州 政府当局正忙于寻找最多可容纳100人的住所。

内布里斯班的Big Bird Backpackers是最多可 容纳60人的非正式危机避难所,由于据报道存在 租赁纠纷,该公司表示将于周五关闭。房屋部门 证实,上周在拍卖会上出售该建筑后,另外50名 居民也将被迫离开邻近的Spring Hill住宿地点 Cliveden Mansion。住房部女发言人表示,它已 经专门成立了一个团队来帮助那些需要庇护的人, 并在布里斯班为那些因避难所关闭而滞留的人找 到了一些住宿地点。

22 YIBEN BUSINESS WEEKLY 商业周刊

阿德莱德房价再创新高

在房价上涨方面,阿德莱德是全国领先的。

最新数据显示,阿德莱德的房价在过去一个月里 以比其他任何首府城市更快的速度上涨后,再次 创下新高。PropTrack最新的房价指数报告显示, 阿德莱德的房价在4月份上涨了0.41%,这是全 国有记录以来最强劲的月度涨幅。这一增长意味 着房地产价格达到了新的峰值,目前该市的房价 中位数为65.1万澳元。

与去年4月相比,目前的价格上涨了5.23%,比

2020年3月疫情开始时上涨了45.5%。

阿德为解决住房危机新建房屋

为解决住房危机,Noarlunga Downs、Aldinga 和Golden Grove将新建近2000套住房。

Noarlunga Downs、Aldinga和Golden Grove的 土地将用于建造1900套新住房,并将于2025年开 始建设。这些房屋将被分配到三个地点,其中600 个将在Noarlunga Downs建造,800个在Aldinga 建造,500个在Golden Grove建造。Noarlunga Downs超过15%的土地将被指定用于经济适用房,

23 YIBEN BUSINESS WEEKLY 商业周刊
壹本日报|
阿德莱德房价再创新高;阿德为解 决住房危机新建房屋;南澳医疗系 统改革;澳洲联邦政府计划延迟部 分基础设施项目

同时还将在那里建造80套社会住房。

首批住宅预计将于2026年完工。Noarlunga Downs地块将由renew SA和南澳大利亚住 房管理局交付,而renew SA将于本周开始为 Aldinga地块寻找开发合作伙伴。

南澳医疗系统改革

卫生工作者威胁要采取工业行动,反对一项关于 “perfect week”护理的官方计划,同时对陷入 困境的医疗系统进行更广泛的改革。

泄露的文件显示,南澳卫生部正在制定一项27条 计划,以应对日益严重的救护车拥堵和医院危机。

这包括举行特别会议,授权护理人员治疗而不是 将他们送到医院,将私人医疗保险患者送到适当 的病房,将"普通医学"小组纳入急诊科,以及制 定新的出院目标,例如中午前50%的人出院。

除此之外,还计划成立一个由高级卫生主管组成 的新小组委员会。

澳洲联邦政府计划延迟部分基础设施项目

澳洲的成本井喷、供应链问题、劳动力短缺和重

大基础设施项目资金不足将受到审查,因为联邦 政府正在为削减或推迟被认为不具有全国重要性 的道路建设铺平道路。

工党已承诺在未来10年投入1,200亿澳元用于 基础设施建设,但将于周一宣布一项重大审查的 细节,预计将显示许多目前承诺的项目资金不足, 无法按时或在预算范围内交付。已经在建的项目 不会被削减,但那些在基础设施投资计划(IIP)中 没有足够资金或资源的项目可能会面临变化,因 为政府计划将重点放在确保能够真正交付重大的 “国家塑造”基础设施上。

各州和各地区同意了这项审查,将需要90天才能 完成,这意味着削减或改变受影响的道路升级将 不包括在即将到来的5月9日的联邦预算中。

新州冲浪俱乐部餐厅计划公布

在悉尼南部一个翻新的冲浪俱乐部里,有一个 300人的许可餐厅,有一个户外露台和一个底层亭。

一家多产的悉尼酒店集团计划在标志性的 Cronulla冲浪俱乐部建造一家拥有300名顾客 的特许餐厅和户外露台,该计划于周二接受仔细 研究。Sutherland Local Planning Panel将评

24 YIBEN BUSINESS WEEKLY 商业周刊

估North Cronulla冲浪救生俱乐部的申请,该 俱乐部将在一层设置一个售货亭,在一层开设一 家有执照的餐厅,这将由一家多产的悉尼酒店集 团执行。

萨瑟兰郡议会拥有St Cronulla王子街62号的 场地,并将该建筑租给了该俱乐部。

维州生活成本飙升

维州五分之一的个体经营者因为生活压力飙升,贷 款条件紧缩,被迫取消或推迟支付自己的养老金。

Henry Australia的最新调查结果显示,70%的 独立收入者——包括技工、美发师、自由职业者 和咨询师——不得不动用自己的积蓄勉强度日, 而40%的人在过去3个月里试图获得额外的资金, 因为做生意的成本飙升。在寻求额外帮助的人中, 有一半表示,他们被拒绝贷款或难以获得帮助, 主要是因为他们是自雇人士。

这项全国性调查发现,70%的受访者现在在用品 和服务上支付更高的费用,尽管他们的工资水平赶 不上通货膨胀。但维多利亚州的情况是全国最差的, 超过三分之一的当地受访者(36%)在过去三个月的 收入比上一季度减少了,全国平均水平为28%。

大批中国学生进入昆士兰大学

申请签证前往昆士兰学习的中国学生数量创下历 史新高,各大学已被警告不要“过度依赖”外国 收入。

学者Salvatore Babones此前发表了一篇论文, 估计昆士兰大学2017年15%的收入来自中国留 学生,他说,当国际边界猛然关闭时,大学应该 从大流行中吸取教训。

民政事务部的数据显示,今年前两个月,中国留 学生申请了2600多份签证,甚至超过了疫情前 的水平。

政府应对海平面上升的战略

昆士兰州的沿海社区将从州政府获得400万澳元, 以应对气候变化对昆士兰州造成的海平面上升的 影响。

这笔资金将提供给议会,用于建设基础设施,以 防止海平面上升,并应对风暴潮淹没和海岸侵蚀 等灾害。环境部长Meaghan Scanlon表示,州 政府和议会已经分析了未来几十年天气状况预计 将如何恶化,并确定了需要紧急准备的社区。

她说:“在我们减轻危害并加速实现低碳经济的 同时,我们还需要适应,以便我们能够应对气候 变化的影响。”

25 YIBEN BUSINESS WEEKLY 商业周刊

捷星航空推出特价机票

廉价航空公司捷星航空(Jetstar)推出了从阿德莱 德到热门旅游目的地的返程航班,价格低得令人 难以置信。

也许是时候计划一次海外度假了,因为捷星航空 正在推出一系列国内和国际航班的优惠,以庆祝 他们的19周年。这家廉价航空公司提供一系列飞 往巴厘岛和悉尼等国际和国内目的地的低价航班。

为了庆祝这一里程碑,捷星航空还提供国内和国 际航班的免费返程服务。

这家廉价航空公司在广告中称,7月中旬至8月

初从阿德莱德飞往巴厘岛(登巴萨)的往返航班只 需251澳元。

阿德莱德大规模修建经济适用房

南澳州政府宣布在阿德莱德中央商务区中心新建 近400套公寓,以改善经济适用房。

为了促进经济适用房的发展,两座公寓楼将在 阿德莱德中央商务区的中心地带拔地而起。 Franklin St公交车站将成为一个拥有392套公 寓的社区的所在地,该州政府从阿德莱德市议会 (Adelaide City Council)手中买下这片土地后, 该社区将由35%的经济适用房组成。州政府宣布,

26 YIBEN BUSINESS WEEKLY 商业周刊
壹本日报|
捷星航空成立19周年,推出超低 特价机票!阿德大规模修建经济适 用房;阿德公司研发新化肥产品; 阿德创造200多个就业岗位

到2028年,将包括至少137套可负担的单间、 一居室和两居室公寓,其中51套出售,86套出租。

这一开发项目将成为CBD首个旨在改善租赁结果 的建设租赁项目。

阿德公司研发新化肥产品

磷酸盐矿商Centrex和阿德莱德Neutrog Australia将共同为广阔的农业市场开发新的化肥 产品。

磷酸盐矿商Centrex与阿德莱德Neutrog Australia签署了一项协议,共同为广阔的农业市 场开发新的有机和生物肥料产品。Centrex的子公 司Agriflex与Neutrog签署了一份谅解备忘录, 并表示新产品有可能提高农民的土壤碳水平,降低 成本和二氧化碳强度,同时保持当前的生产水平。

Centrex在给澳大利亚证券交易所的一份声明中 表示:“Agriflex和Neutrog澳大利亚公司计划 合作,共同开发、生产和销售应用磷矿尾矿的有 机和生物肥料产品,为Agriflex创造一个全新的 市场和收入来源,同时进一步降低其Ardmore磷 矿的风险。”

Bedford为阿德创造200多个就业岗位

残疾人服务集团Bedford公布了投资4500万澳 元在阿德莱德北部建设一个制造业中心的计划, 将创造200多个就业岗位。

新工厂将建在Main North Rd Saints Shopping Centre附近的土地上,专门为商业细木工和建筑 行业生产家具和零部件。拥有商业厨房、饮料生 产设施和公共娱乐区的食品和饮料中心也将成为 Bedford第一家社会企业培育食品和饮料的新家。 与Bedford为NDIS参与者提供就业支持的传统 模式不同,新合资企业将为大中型食品和饮料生 产商提供服务,它将招募各种能力的人——包括 那些自认为处于社会弱势地位的人。

该项目预计将在今年晚些时候开工,并于2025 年完工,目前尚待议会批准,预计将在建设期间 创造约100个就业岗位。

维多利亚救护车等待时间未达标

新数据显示,超过三分之一患者等待救护车救助 的时间过长。

周二发布的最新季度卫生绩效数据显示,维州各 医院未能实现其目标,即在2023年1月至3月 期间,在15分钟内对85%的全州一级法规病例 做出反应。他们及时响应了65.2%的病例,这是

27 YIBEN BUSINESS WEEKLY 商业周刊

自疫情开始以来救护车连续第13个季度未能达到 85%的目标。这是该行连续第六个季度的应对目 标低于70%。

尽管与上一季度(当时的响应时间达到60.2%的 新低)相比,时间提高了5个百分点,但与去年 同期相比仍有所下降。

西澳大型建筑公司倒闭

西澳大利亚州的建筑行业再次受到打击,一家著 名的砖厂宣布关闭。

澳大利亚最大的砖制造商成为建筑业危机的最新 受害者,该公司被迫关闭了西澳的一家主要工厂。 混凝土砌块和砖生产商Brickworks周四透露, 由于建筑活动减少,其西澳大利亚子公司Austral 近年来一直处于亏损状态。因此,该公司做出了 关闭该州最后一个制造中心的“艰难决定”,该 中心位于珀斯东南约46公里处的Cardup。

该公司在一份声明中表示:“经过慎重考虑,我们 决定关闭卡达工厂,专注于销售过剩库存。”

高中辍学率达到10年新高

在过去三年中,昆士兰 12 年级的学生人数急剧

下降,目前的上学比率低于十年前的水平。

专家认为,Covid大流行破坏了对学术成果的关 注以及在职业的转变方面发挥了重要作用。澳大 利亚统计局最新的学校数据显示,2022年12年 级学生中只有82.2%(本应在 2017年7年级开 始上高中)进入了最后一年的学业。

与十年前相比,这相当于现在完成中学学业的学 生减少了11,180人,其中大多数辍学学生是男性。 昆州房地产价值再次上涨

强劲的住房需求抵消了借贷能力的恶化,住宅价 值连续第四个月上涨至 721,000澳元,仅比去年 4 月的峰值低2.88%。

根据最新的PropTrack房价指数,自2020年 Covid-19大流行开始以来,布里斯班的住宅价值 (房屋和单元房)录得惊人的43.1%的累计增长。

自大流行开始以来,包括黄金海岸和阳光海岸房 地产在内的昆士兰地区的住宅价值累计增长了 50.4%,仅次于塔斯马尼亚地区的51.5%。

28 YIBEN BUSINESS WEEKLY 商业周刊

南澳为60万弱势群体提供免费流感疫苗

作为南澳卫生部冬季需求战略的一部分,南澳将 为60万弱势群体提供免费流感疫苗。

这次的免费疫苗与去年同时期的免费疫苗有所不 同,只对有需要的弱势群体免费开放,因为今年 南澳卫生系统采用了最新的科技,号称“Hi-tech eyes and ears”,可以实时监控州内的医院系统, 将可以更好地协调州内各医院,确保资源被分配 到最需要的地方,同时包括及时将救护车转移到 有急诊能力的医院。

本周启动的“Hi-tech eyes and ears”将与医院

和南澳救护车服务运营中心联系起来,并将在设 Tonsley的南澳虚拟护理服务中心,于2025年 搬到位于Mile End的新南澳救护车服务总部。

Wi-Fi先驱抨击阿德大学合并想法

阿德莱德大学毕业生、Wi-Fi先驱Neil Weste表 示:“在大学合并计划下,我们的大学将从卓越中 心变成地区死水。”

阿德莱德大学(Adelaide University)和南澳大利 亚大学(University of South Australia)拟议中 的合并将降低该校的研究和教学水平。其中包括 毕业于阿德莱德大学的Neil Weste,他在上世纪

29 YIBEN BUSINESS WEEKLY 商业周刊
壹本日报|
冬季到来,南澳为60万弱势群体 提供免费流感疫苗;Wi-Fi先驱抨 击阿德大学合并;麦当劳加盟商在 南澳领导反工会欺凌运动

90年代发明Wi-Fi方面发挥了重要作用。Weste 教授在网上发起了一项反对合并的请愿,他还表 示,他不会给任何合并后的大学进行捐助。

Weste教授在他的请愿书中概述了他反对合并的 理由,他表示:“我当然不会向合并后的大学捐款。” 他拒绝透露他打算何时离开阿德莱德大学。

麦当劳加盟商在南澳领导反工会欺凌运动

麦当劳(McDonald’s)的一家特许经销人承认领 导了一场“非法”的反工会欺凌运动,并同意达 成一项具有里程碑意义的和解。

澳大利亚历史上第一次有一家全球快餐业巨头承 认在他的店里领导了一场“非法”的反工会运动, 并迫使员工放弃长期雇佣关系。麦当劳Murray Bridge店的现任和前任员工已经解决了由SDA 提出的索赔,SDA代表快餐业员工,代表他们起 诉前加盟商Delbridge投资有限公司,并将获得 数千澳元的赔偿。

麦当劳和SDA之间的协议是在联邦法院进行为期 10天的审判之前达成的,预计届时将有许多工人 站在证人席上,揭露他们的工作条件。

澳洲购买扑热息痛新规定

在澳洲药品管理局做出决定后,澳大利亚人购买

扑热息痛将不得不遵守新规定。

对乙酰氨基酚(扑热息痛)的包装尺寸将被削减, 但根据减少与使用该药物有关的死亡人数的新措 施,限制将不会像最初计划的那样严格。按照最 初的计划,从2025年2月起,超市里出售的每 包止痛药将从20片减少到16片。然而,医疗监 管机构已经对公众的担忧做出了让步,将允许化 学家出售更大包装的药品。

从2025年2月起,药店可出售的片剂数量将从 100种降至50种。

澳大利亚最大的住房用地释放

对于许多年轻家庭来说,能买得起地仍然是实现 “澳大利亚梦”的最后途径之一。

但是,无论是在大城市还是在大城市的边缘地区, 都极度缺乏建造房屋的土地,这意味着对许多人 来说,这个梦想正在迅速溜走。即使面对不断上 升的利率和创纪录的高通胀,在昆士兰东南部等 地,对空置土地的竞争也导致价格飙升近30%。 2021年,维多利亚州的峰值开发机构警告称,到 2025年,吉朗的房屋和土地价格可能飙升至100 万澳元,估计到2024年初,新房用地将用完。

但是,全国各地的当局正在采取措施,帮助缓解 压力,并为我们的首都城市和最大的地区城镇的

30 YIBEN BUSINESS WEEKLY 商业周刊

爆炸性增长提供食宿。

澳洲生活成本压力飙升

Foodbank首席执行官表示,随着越来越多的澳 大利亚人向慈善机构寻求帮助,“一份工作不再 是抵御生活成本危机的盾牌”。

根据参议院委员会的调查结果,生活成本压力在 过去6个月里已经“恶化”为一场危机,越来越 多绝望和缺钱的澳大利亚人转向慈善机构寻求支 持。在周二公布预算时,Albanese政府将公布一 系列措施,以帮助感受经济危机的民众。但是, 联合政府成立的生活成本委员会的一份中期报告 声称,在工党的领导下,澳大利亚人将“过得更好”, 这一说法尚未成为现实。

报告指出:“相反,在过去六个月里,生活成本压 力已经恶化为生活成本危机。”

市长再次呼吁检疫中心收容流浪者

布里斯班市长Adrian Schrinner多次呼吁将 Pinkenba检疫中心用于收容无家可归的人。

Schrinner先生在周二的布里斯班市议会会议上 提出一项倡议,呼吁州和联邦政府开放 Pinkenba 住所。“很明显,当前的住房危机正在迫使越来 越多的人,包括妇女和儿童住在布里斯班的街道。” Schrinner先生说。

3 月,联邦政府确认不会将Pinkenba用于紧急 住宿,该站点将由澳大利亚国防军使用,并将在 紧急情况下使用——例如自然灾害。

昆州一女士服用Ozempic后心脏骤停

一名昆士兰妇女声称,她在服用名人热销的减肥 药Ozempic几天后差点死于心脏病。

来自 Warwick的Heather Shute告诉《星期日 邮报》,她的全科医生建议她停止服用她依赖了 30年的胰岛素,并改用高剂量的 semaglutide 药物。几天之内,Shute女士陷入了昏迷并心脏 骤停。

Ozempic已成为一种热门商品,并且作为一种快 速减肥药受到名人和普通民众的大量需求,以至 于糖尿病患者一直难以获得这种药物。

31 YIBEN BUSINESS WEEKLY 商业周刊

南澳周末迎来流星雨

本周末,一场罕见的流星雨和月食的双重事件预 计将照亮南澳大利亚的天空。

一年一度的Eta水瓶座流星雨和半影月食将给我 们带来惊喜,流星雨将在整个周末达到高峰,而 月食将在5月6日凌晨出现。南澳大学的天文学 家Mary Adam说,今年的流星雨可以在周五到 周日的凌晨3点到日出之间用肉眼看到。

“流星雨每年都会发生,这是地球穿过哈雷彗星 的碎片,”Adam女士说。

南澳博物馆的预算再次被削减

南澳最重要的机构之一南澳博物馆正受到另一届 政府的资金压力。

减少冷冻机的使用,削减安保和清洁费用,以及 裁员,都是南澳博物馆为应对110万澳元的赤字 而计划的成本节约措施。这些极端措施是通过向 反对派公布的信息自由文件披露的。2023年2 月22日的一份董事会简报警告说;“赤字很可能 会超过最初预测的110万澳元”,“所有其他主 要支出都已经过审查,并在可能的情况下削减, 包括大幅削减安全和清洁成本”。

32 YIBEN BUSINESS WEEKLY 商业周刊
壹本日报|
设置闹钟!流星雨将在本周末划过 南澳;南澳博物馆的预算再次被削 减;阿德Newmarket酒店出售;老 年护理行业加薪

该博物馆下一财政年度的年度政府拨款被削减了 近60万澳元。

阿德Newmarket酒店以3850万的价格出售

阿德莱德Newmarket Hotel以3850万澳元的 价格出售给Australian Unity。

在阿德莱德最繁忙的十字路口建造两座32层公 寓楼的计划被搁置了,Australian Unity公司 斥资3850万澳元收购了位于CBD的地标性建 筑Newmarket酒店。2016年,One North Terrace (Aust) Pty Ltd以1080万澳元的价格购 买了位于北台和西台交界处的这块3000平方米 的土地,售价是其三倍多。

该项目的开发许可将于7月到期。

澳洲老年护理行业加薪

澳大利亚财政部长Jim Chalmers表示,联邦政 府已“想尽办法”在未来4年拨出113亿澳元, 为25万名老年护理人员加薪。

在Fair Work Commission的支持下, Albanese政府的一项选举承诺——为全国数十万 老年护理人员“历史性”加薪15%——将于7月 1日生效,全部费用包含在下周的预算中。老年

护理部长Anika Wells表示,加薪标志着该行业 发生了“翻天覆地的变化”,并将为该行业增加 1万名员工。

这一显著增长意味着注册护士每年可以多赚1万 多澳元。

西澳审计员指责政府近6亿的RAT支出

西澳在Covid快速抗原检测上花费了近6亿澳元, 收到该州审计员的强烈指责。

西澳大利亚州政府因花费近6亿澳元用于新冠 病毒快速抗原检测而受到指责——该州的审计员 目瞪口呆地说,她“从未见过”在没有“适当考 虑影响”的情况下,项目成本如此之高。审计长 Caroline Spencer周三发布了她关于该州202122年Covid应对措施的报告,特别关注麦高恩政 府购买了价值5.8亿澳元的RATs,因为预计大 规模感染浪潮从未到来。

西澳政府总共为一个人口约270万的州购买了近 1.11亿次检测。

维州修改停车规则

墨尔本市政府公布了其对CBD停车场进行全面改 革的计划。

33 YIBEN BUSINESS WEEKLY 商业周刊

据维多利亚州的高峰商业倡导机构称,议会计划 向驾车者收取周日停车费用,这会让人们远离城 市。墨尔本市周四公布了最终的停车和路边管理 计划,其中包括对非高峰停车费的调整,以及引 入非工作时间收费停车。《星期日先驱太阳报》 上周透露,市政委员会计划将收费停车场延长至 周日及晚上8点半以后。

作为市政委员会翻修城市路边停车位计划的一部 分,CBD所有的计价器停车将被限制在两小时内, 而驾车者周日停车将被罚款。

电影节将在黄金海岸举办至2026年

州长 Annastacia Palaszczuk 宣布为黄金海岸的 电影业提供更多资金。

州长 Annastacia Palaszczuk 在 Screen Forever 电影节开幕式上宣布了该州电影业的一

系列新举措,包括为黄金海岸的电影业提供更多 资金,以及一项在 2026 年之前举办这一著名活 动的协议。

“今天,我很高兴地宣布,我们已经与Screen Producers Australia 达成协议,让Screen Forever在黄金海岸再举办三年。”州长说。

政府仍未决定是否扑杀鳄鱼

从昆士兰人口稠密的东海岸捕杀“适度”数量的 大型鳄鱼的提议在提出九个月后仍在审查中。

在这个想法公开提出九个多月后,州政府仍在考虑 由一个独立小组推动从人口稠密地区清除240万 多条鳄鱼。一个专家委员会的任务是审查和评估环 境与科学部 (DES) 河口鳄鱼管理计划的有效性。

虽然州政府表示支持该建议,但仍未决定在报告 公开发布九个多月后是否继续实施该措施。

34 YIBEN BUSINESS WEEKLY 商业周刊

区域 解读 历史概况:

Joslin SA 5070

Joslin是阿德莱德的郊区,位于Norwood Payneham St Peters。它是矩形的,从Payneham Road(东南)延伸到 River Torrens和Torrens Linear Park(西北),但是从Lambert Road(东北)沿着大道到St Peters的下一个十字街只 有350米。O-Bahn公交线路穿过郊区的西角,但附近没有车站。

1.区域概况/概述

Joslin位于南澳州首府阿德莱德的东北部,常住人口为1,147(2016 Census)。Joslin的西部紧邻St Peters, 东部面向Royston Park,北部紧邻Walkerville,南部面向Evandale。此区归Norwood Payneham St Peters Council管辖。

35

2.学区情况/学校介绍

周边公立学校

East Adelaide School,St Peters 5069 公立小学,1-7年级,男女同校,732名在校生

East Adelaide School,St Peters 5069

公立小学,1-7年级,男女同校,781名在校生

Marden Senior College,Marden 5070

公立中学,11-12年级,男女同校,757名在校生

Open Access College,Marden 5070

1-12年级,男女同校,5600名在校生

Felixstow Community School,Felixstow 5070

1-7年级,男女同校,男女同校,91名在校生

Norwood Primary School,Norwood 5067

公立小学,1-7年级,男女同校,407名在校生

Vale Park Primary School,Vale Park 5081

公立小学,1-7年级,男女同校,475名在校生

Walkerville Primary School,Walkerville 5081

公立小学,1-7年级,男女同校,688名在校生

周边私立学校

St Peter's College,St Peters 5069

1-12年级,1396名在校生

St Andrew's School - 19-21 Smith Street Campus,Walkerville 5081

36 YIBEN BUSINESS WEEKLY 商业周刊
私立小学

3.人口构成

Joslin的面积约为0.5平方公里。2011年,Joslin的人口为1,130人。到2016年,人口为1,147人,在此期间该 地区的人口增长率为8.1%。Joslin的主要年龄组是50-59岁。Joslin的家庭主要是有孩子的夫妇,每月可能 偿还3000澳元- 3999澳元的抵押贷款。一般来说,Joslin的人从事专业职业。2011年,Joslin有72.8%的房屋 是自住房屋,而2016年为74.5%。

(资料来源:澳大利亚统计局)

37 YIBEN BUSINESS WEEKLY 商业周刊

4.配套设施

Joslin区内公共配套设施齐全,满足日常生活需 求。有购物广场、养老院、公园等。

Joslin区附近有酒店、学校、餐厅、商场等。

Joslin距离Adelaide市中心约5.1公里,开车需12分 钟即可到达市中心。公交线路围绕整个Joslin,公 共交通十分便利。

38 YIBEN BUSINESS WEEKLY 商业周刊

5.行情观察

独栋房屋

在过去的12个月里,Joslin已经卖出了14套独栋房屋,售价中位数为$1.6M,同比增长2.2%。平均需要61 天即可售出,房东减价为-1.4%。

数据来源:

关于学区情况/学校介绍、人口构成、行情观察:

https://www.propertyvalue.com.au/suburb/joslin-5070-sa#Unit

39 YIBEN BUSINESS WEEKLY 商业周刊

Turn static files into dynamic content formats.

Create a flipbook
Yiben Business Weekly Vol.153 by YIBEN Media - Issuu