
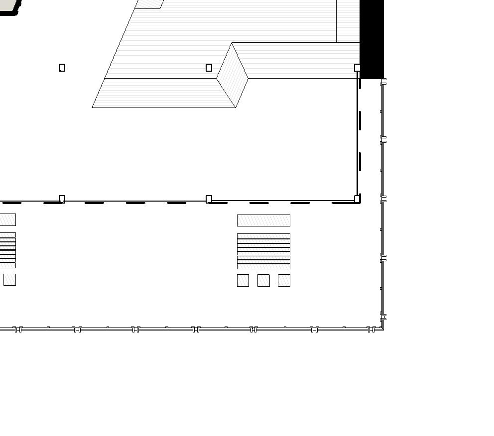
Fishermans Beach viewing platform - October 2024
![]()

Fishermans Beach viewing platform - October 2024
This concept design shows the site design as it currently is, plus elements proposed for removal are marked in red.




REMOVE EXISTING COOLROOM AND SHED STRUCTURE FROM FRONT OF THE SITE.
REMOVE TIMBER SCREENING AND EXTEND ENCLOSED STORAGE ARE TOWARDS ROAD.
REMOVE CURRENT SHIPPING CONTAINER AND REPLACE WITH FIT-FOR-PURPOSE STRUCTURE.


REMOVE DECKING LEVELS TO CREATE MORE ROOM AND ACCESSIBLE SURFACES. OLDER CAFE BLINDS WILL ALSO BE REMOVED.
REMOVE CURRENT STEEL COLUMNS AND OLDER CAFE BLINDS TO CREATE A MORE OPEN SPACE.





Section 1 : 200 1
DEMOLITION - VIEW ING PLATFORM



REMOVE EXISTING GATES.

REMOVAL OF TEMPORARY ACCESSIBLE TOILET AND REPLACE WITH PERMANENT ACCESSIBLE TOILET IN A MORE APPROPRIATE LOCATION.
NEW BIN STORAGE AREA WILL BE CONSTRUCTED IN A DIFFERENT LOCATION, ALLOWING BETTER USE OF VIEWING DECK.
MAINTAIN SEATING AND VIEW ING AREA FOR PUBLIC AT ALL TIMES.


REMOVE EXISTING FENCE TO IMPROVE PUBLIC ACCESS AND VISUAL PERMEABILITY OF SITE. NOMINATE FIXED FURNITURE ITEMS. ALL OTHER BAR FURNITURE TO BE REMOVED AND STORED OUTSIDE OF OPERATIONAL TIMES. THIS WILL ALLOW FOR MULTIPLE USES BY THE COMMUNITY OUTSIDE OF COMMERCIAL OPERATIONS.



This concept design showcases the proposed new site concept.
FOLLOWING REMOVAL OF GATES RETRACTABLE BOLLARDS WILL BE INSTALLED. BOLLARDS WILL BE USED DURING COMMERCIAL OPERATING TIMES ONLY.
FOOD TRUCK ZONE


PROVIDE DDA COMPLIANT TOILET ACCESSED FROM PLATFORM. ACCESS TO PUBLIC FACILITIES BELOW TO BE MAINTAINED.
EXTEND FOOTPRINT OF EXISTING TOW ER FOR BINS AND OTHER STORAGE. ALIGN WITH BACK W ALL OF NORTH TOW ER.
FURNITURE STORAGE ZONE UNDER ROOF LINE.
FIT FOR PURPOSE COMMERCIAL BAR AREA.
CONSIDER DANPAL OR SIMILAR TRANSLUCENT PRODUCT ON SOUTH FACADE OF ROOF STRUCTURE TO PROVIDE PROTECTION FROM W IND AND DRIVEN RAIN




CONSIDER DANPAL OR SIMILAR TRANSLUCENT ROOF MATERIAL TO MAINTAIN LIGHT AND PROVIDE W EATHER PROTECTION
EXTENSION OF ROOF STRUCTURE FOR AN ADDITIONAL BAY. DANPAL AT UPPER LEVEL. CAFE BLINDS AT LOW ER LEVEL
NO STRUCTURE IN LAST BAY TO MAINTAIN VISUAL ACCESS TO BEACH AND SURROUNDS
RETAIN FIXED FURNITURE






MAINTAIN CLEAR AREA IN FRONT OF VIEW ING AREA. NO BINS
MAINTAIN SEATING AND VIEWING AREA FOR PUBLIC AT ALL TIMES.
REMOVE EXISTING FENCE TO IMPROVE PUBLIC ACCESS AND VISUAL PERMEABILITY OF SITE

Section 1 : 200 1 PROPOSED CONCEPT PLAN





This cross section shows the proposed concept design as viewed as if you are located out over the ocean looking at the multi-use site.









This cross section shows the proposed concept design as viewed as if you are located to the south on top of the Torquay Marine Rescue Service building looking at the multi-use site.












This concept design showcases the proposed new site concept shown from above.




















