Trama 175 Gabriel Rivera Arquitectos Casa Binocular - Cover

Page 1

175

REVISTA DE ARQUITECTURA Y DISEÑO

175 AÑO 45

$12,90

Diverso habitat | Casas

URBANISMO: Jardín Botánico de Cuenca. Fase I |

ARQUITECTURA: Casa Hacienda | Rehabilitación Media agua | Casa Alangasí | Casa Nadya | Casa Puente | Casa Barranco | Casa Tejo | Casa Patio | Casa Doble Soga | Casa Binocular | Casa Tejona | HISTORIA: Oskar Etwanik. Su huella en la Arquitectura Moderna en Ecuador | DISEÑO: IWI |ACTUALIDAD: La Candelaria | Centro de Atención Diurno del Adulto Mayor | XXIII Convocatoria Internacional para publicación de Proyectos en la revista Trama: Casa Mínima

Casa Binocular

Por: Gabriel Rivera Arquitectos

GABRIEL RIVERA ARQUITECTOS

Ubicación: Puembo, Distrito Metrpolitano de Quito

Diseño: Gabriel Rivera Arquitectos.

Construcción: Gabriel Rivera Arquitectos.

Equipo Gabriel Rivera Arquitectos: Gabriel Rivera, Diego Rivera, Belén Andrade, Danilo Yambay, Francisco Balarezo, Margarita Quishpe.

Año construcción: 2022.

Fotografía: JAG Studio

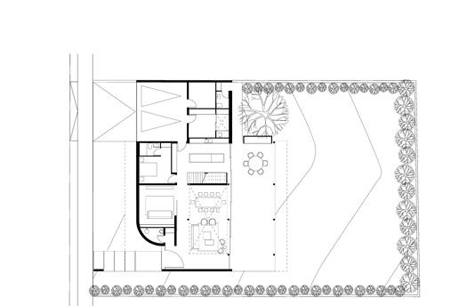
La Casa Binocular, ubicada en Puembo, parroquia de Quito, es una vivienda unifamiliar construida en la época de post pandemia. Sus propietarios, una familia joven, tenían la necesidad de crear un refugio sólido, para ver crecer a sus hijos, en un ambiente seguro y rodeado de naturaleza. Estas premisas, sumadas a la visual al paisaje desde el terreno, un apropiado asoleamiento y algunas otras características del lote, dieron como resultado un partido arquitectónico claro.

La Casa Binocular, se cierra en planta baja hacia la calle, logrando una sensación de protección, y se abre al jardín posterior, a través de un gran porche cubierto, integrando los espacios interiores al exterior. La doble altura, en sala y comedor, permite una relación entre planta alta y planta baja, logrando un espacio fluido, e invitan-

do a los espacios de descanso, a bajar y a relacionarse también con el porche exterior cubierto y el jardín posterior.

La visual, un factor determinante en este proyecto, se enmarca y se potencializa gracias al uso de dinteles y jardineras, que permiten enmarcarla. La fachada occidental, con el dormitorio principal y una terraza, tiene visuales a Quito y reciben todo el sol de la tarde; mientras que la fachada oriental, con dormitorios secundarios y un espacio de juego, tiene visuales al jardín posterior.

Tiene estructura vista de hormigón armado, columnas metálicas redondas, paredes blancas, mamparas corredizas, madera, luz cenital, estos son algunos de los elementos característicos del proyecto.

50 revista trama arquitectura+diseño
52 revista trama arquitectura+diseño
Implantación Planta baja Fachada lateral Fachada frontal Planta alta Fachada posterior

Turn static files into dynamic content formats.

Create a flipbook
Issuu converts static files into: digital portfolios, online yearbooks, online catalogs, digital photo albums and more. Sign up and create your flipbook.
Trama 175 Gabriel Rivera Arquitectos Casa Binocular - Cover by Gabriel Rivera Arquitectos - Issuu