portafoliosimple2

Page 1

PORTAFOLIO
ARQ. GONZALO SUSANIBAR

TESIS: MERCADO GASTRONOMICO

Mercado Gastronómico con puestos de venta, restaurantes y un patio central.

TESIS: MERCADO GASTRONOMICO

Mercado Gastronómico con fachada en celosías de madera y vidrio, estructura de concreto y areas verdes al exterior.

TESIS: MERCADO GASTRONOMICO

Planta explotada por nivel y su estructura, del Centro Gastronómico.

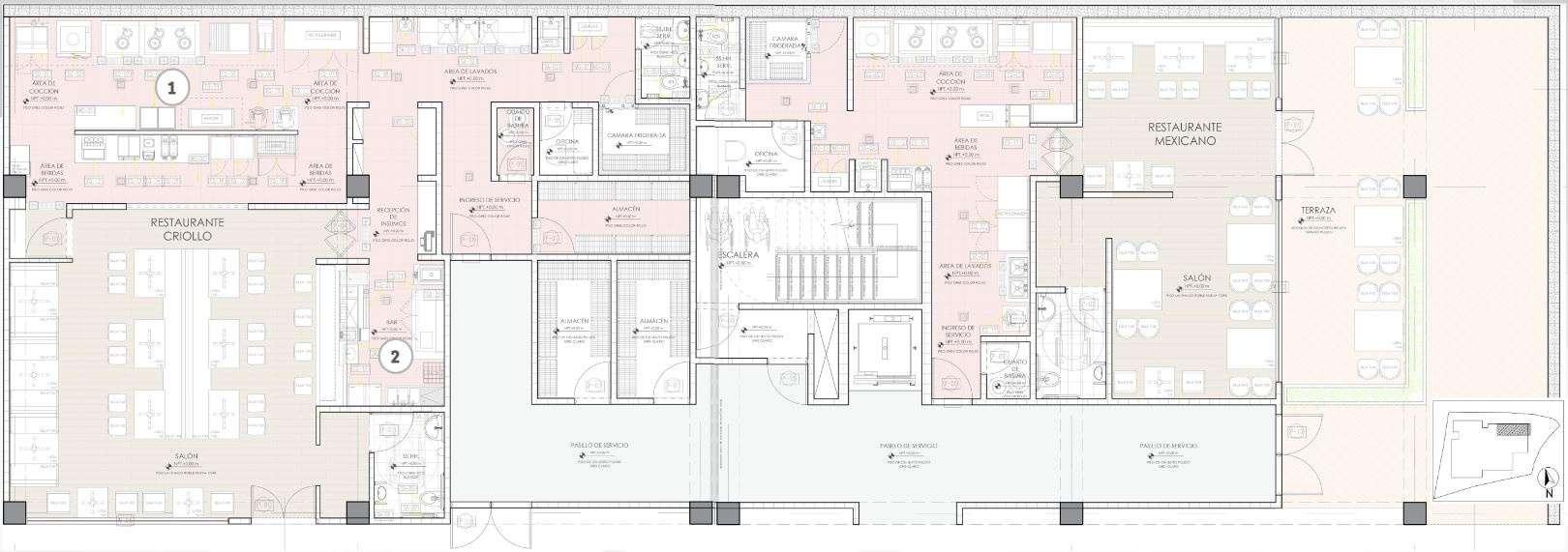
TESIS: MERCADO GASTRONOMICO

Planta a detalle de un restaurante, con detalle del bar, cocina y materiales correspondientes.

STAND WARAS COCINA PERUANA

Modulo de venta Waras cocina peruana, para la venta de comida peruana.

STAND WARAS

COCINA PERUANA

El Stand Waras utiliza elementos de madera, como la madera en su fachada, armadura metálica en su estructura, y elementos de acero inoxidable en sus accesorios.

STAND MOBIL LUBTEC

Modulo de venta Mobil, para la promoción de aceites y productos automotrices.

STAND MOBIL LUBTEC

El Stand Mobil utiliza elementos verdes, madera en su fachada, armadura de madera en su estructura, y elementos metálicos de mobiliario.

REMODELACIÓN LABORATORIO OFICINA

Remodelación de laboratorio y oficina, para el piso, paredes, mobiliarios y techo.

REMODELACIÓN LABORATORIO OFICINA

Se realizo la remodelación de un laboratorio, se incorporo celosías de madera, luces led, dicroicos y mobiliario nuevo, cambio de piso, color de muros y cielo raso.

STAND MENORCA CASAS

Modulo de venta Menorca, para la venta y promoción de lotes y viviendas.

STAND MENORCA CASAS

El Stand Menorca utiliza elementos verdes, madera en su fachada, armadura de madera en su estructura.

MAQUETA BICENTENARIO

Realización de maqueta del proyecto Bicentenario, para la venta de los lotes proyectados en la maqueta.

MAQUETA BICENTENARIO

Se realizo la la maqueta con cartón corrugado, micro corrugado, cartón maqueta, cartulina, arboles y mobiliarios a escala, cobertura de acrílico.

GRACIAS

Turn static files into dynamic content formats.

Create a flipbook