作品集 portfolio

Page 1


selected works 17'-24'

Portfolio by Ginyong Poon

潘 正阳 Poon Ginyong

联系 | Contact

+86 151-0153-2390 ginyong8@gmail.com

| Content

教育 | Education

- Tsinghua University (China) - Master in Architecture, 2022-2025 under Prof. Li Xiaodong GPA: 3.80/4.00

- Taylor's University (Malaysia) - Bachelors in Architecture, 2019-2020

Dean's List for Sem 4,5&6 GPA: 3.49/4.00

实践 | Practice

- Site Superviser| reMIX Studios (Beijing, China), Mar-Jul 2024 involvements: Project Management, On-site solutions, Detail Construction. project: Peter Pan Beijing, Italian Restaurant

- Internship| reMIX Studios (Shenzhen, China), Jul-Sep 2023 involvements: Design, 3D Modelling, Rendering genre: Educational, F&B, Competition

- Assistant Architect | PORT 25 Architects (Malaysia), Aug 2021-Aug 2022 involvements: Design, Construction Drawings, 3D Modelling, Rendering, Site Supervising genre: Residential, F&B, Cinema, Warehouse

- Internship | O2 Design Atelier (Malaysia), May-Jun 2021 involvements: Design, Construction Drawings, 3D Modelling, Rendering genre: Residential

SELECTED WORKS 17'-24'

01 Inside-Out

| Academic & Competition

Exploring Spatial Poetics, Bachelor's Semester 4, 2019

02 THU SOA

Space & Learning, THU School of Architecture, Beijing, 2022

03 Tea Pavilion

Rural Revitilization, Songyang, Zhejiang, 2023

04 the Light Filter

International Velux Competition, Regional Winner, 2024

实践与其他 |Practice & Others

01 Installations

Taylor's Archi Fest 2019, PAASWEE Morphosis Exhibition 2019

02 PORT 25

RoRRu Japanese Handroll Bar, Cinema: GSC TRX

03 reMIX Studio

Gaoxin Middle School & SIAT University, Shenzhen | Peter Pan Beijing

04 Others

Football team member of Tsinghua School of Architecture

- 1st Runner-up of 清华大学马约翰杯 , 2 times Champion of 清华大学文科杯

Spatial

设计从《阴翳礼赞》一书和《头脑特工队》 诗学”这一主题,探讨光、影及情感在空间表达上的可能性。

The design draws inspiration from the and the film 《Inside Out》, exploring by examining the possibilities of light, expression.

Poetics

《头脑特工队》中汲取灵感,围绕“空间 诗学”这一主题,探讨光、影及情感在空间表达上的可能性。

the book 《 In Praise of Shadows 》 exploring the theme of "spatial poetics" light, shadow, and emotion in spatial

Book, In Praise of Shadows (Concentric)

01 设计概念 Design Concept

阴影在东方美学中起着至关重要的作用,与西方文化明亮直白 的特性形成鲜明对比。西方美学常常强调光线、清晰和现代性, 营造出一种可能令人不安的氛围,而东方则珍视黑暗中蕴含的 微妙之美、亲密与自然。正如《阴翳礼赞》所述,置身于柔和 的昏暗光线中,阴影轻盈地交织,带来深层的宁静感和与自然 的联系。这些阴影,尽管常被西方文化的强光所掩盖,却是东 方传统美的不可或缺的一部分。它们体现了柔和、温暖和模糊 的价值观,这不仅在空间设计中至关重要,也为日常物品和体 验赋予了独特的、含蓄的优雅

Shadow is central to Oriental aesthetics, contrasting sharply with the bright and explicit nature of Western culture. While Western aesthetics often highlight light, clarity, and modernity— sometimes overwhelming—the Orient cherishes the subtle beauty in darkness, intimacy, and nature. As 'In Praise of Shadows' illustrates, the gentle play of shadows in dim light fosters tranquillity and a deep connection to nature. Although often eclipsed by Western glare, shadows are essential to the beauty and depth of Oriental tradition, embodying softness, warmth, and ambiguity that permeate both spaces and daily life.

02 设计策略 |Design Strategy

Movie, Inside-Out (Linear)

01 设计概念 Design Concept

"在成长过程中,经历失落是揭示其重要性的关键。离开熟悉 的邻里和珍贵的记忆,转而生活在一间光秃秃的新居中成为 莱利的现实。这段旅程始于一个名为莱利的普通少女,她的 内心世界包含着快乐、悲伤、愤怒、恐惧和厌恶,而父母则 生活在外部世界中。她的童年一直幸福美满,直到一家人从 明尼苏达州搬到旧金山,留下了她快乐的过去。灾难降临时, 快乐和悲伤意外地被从总部扔进了她的记忆中,只剩下恐惧、 愤怒和厌恶掌控了她的情感。对于快乐、悲伤和莱利的情绪 来说,应对这种失落成为一段转变和挑战的旅程,这对成长 至关重要。通过这一经历,莱利开始意识到每种情感的重要性。 失落让人意识到先前的角色,突显了曾经被视为理所当然的 事物的重要性。在成长的过程中,被低估的元素必须被抛弃, 以便它们真正的重要性得以显现。"

In growth, experiencing loss is crucial to uncover its significance. Moving away from a familiar neighborhood and cherished memories to a stark new dwelling with bare walls becomes Riley's reality. This journey begins with a typical young girl named Riley, whose internal world houses Joy, Sadness, Anger, Fear, and Disgust, while her parents reside in the external world. Her childhood was blissful until the family's relocation from Minnesota to San Francisco, leaving behind her happy past. Disaster strikes when Joy and Sadness are inadvertently cast out of headquarters into her memories, leaving Fear, Anger, and Disgust in charge. For Joy, Sadness, and Riley's emotions, navigating this loss becomes a transformative and challenging journey essential for growth. Through this ordeal, Riley comes to appreciate the importance of each emotion. Loss allows for the realization of its previous role, highlighting the significance of once taken-for-granted aspects. In the process of growth, underappreciated elements must be shed for their true importance to shine.

02 设计策略 |Design Strategy

线性路径 Linear Circulation 03 模型 |Maquette

Spatial Poetics | Maqquete

In Praise of Shadows 同心路径 Concentric Circulation
Studio Instructor: Prof. Martijn De Geus, Chen
Archi Building

Building 2050

Li Xiaodong, Ast.Prof.
Chen, George Kunihiro

01 设计概念 Design Concept

设计背景 Design Background

A Space that encourage design through creative experimentations and research to provoke thoughts & conversations 本项目是清华大学建筑学院为期八周的适应性再利用设计工作坊。设计策略强调 保留现有结构框架和核心要素,同时引入针对性的干预措施,如功能重组、交通 流线优化和立面重新设计。项目旨在为建筑学学生营造一个面向未来的学习环 境,特别注重提升跨学科合作与创新空间的品质。

This project is an eight-week studio centered on the adaptive reuse of the School of Architecture at Tsinghua University. The approach emphasizes retaining the existing structural framework and core elements, while introducing targeted interventions such as programmatic reorganization, circulation reconfiguration, and facade redesign. The objective is to cultivate a future-oriented learning environment for architecture students, with a particular focus on enhancing spaces that promote interdisciplinary collaboration

现况 Existing Conditions Linear Block - Conventional

< Supplementary

02 功能分析 Program Formation

功能重组 Program Re-arrangment

01 Existing Design 02 Existing Structures

功能环 Program Loop

重新安排的功能布局被设计成一个环形,并嵌入到 现有结构中。这个环形的主要功能空间贯穿整个建 筑,为使用者提供连续的空间体验。

The re-arranged programs were design to form a loop that is inserted into the existing structure.A loop of primary programs that runs through the building giving users a continuity of space.

功能环 Interlocking Program Loop

功能环的整合经过精心设计,与现有结构 框架和辅助功能紧密相扣,确保新干预措 施与原有建筑之间的和谐与连贯性。

The insertion of the program loop is designed to interlock seamlessly with the existing structural framework and supporting functions.

1. 消防梯| Existing Fire Stairs

2. 电梯间| Lift Core

3. 厕所| W.C.

4. 主入口| Entrance

5. 行政办公| Admin Office

6. 展览| Crit/ Exhibition Space

7. 多媒体图书馆| Media Space/ Library

8. 机械室| Fabrication Lab

9. 工坊办公| Workshop's Office

10. 模型工坊| Model Workshop

11. 厨房| Kitchen

12. 咖啡厅| Cafe

13. 储藏室| Storage/Archive

03 结构构思| Massing Study

01. 移除部分结构| Removing of Existing Structures

Removing parts of existing structures including previous additions to prepare for the next interventions

02. 置入功能| Inserting of New Programs

A loop of Existing & New Programs were organised in a loop and inseted intto the existing structures.

03. 结构符合环形| Stucture Follows Loop

The Loop was then stretch out to follow the form of existing structure, new addition was added at rear to form a loop.

04. 现状结构| Undulating Planes

1. 消防梯| Existing Fire Stairs

2. 电梯间| Lift Core

3. 厕所| W.C.

4. 教室口| Faculty Office

5. 行政办公| Admin Office

6. 展览| Crit/ Exhibition Space

7. 多媒体图书馆| Media Space/ Library

8. 机械室| Fabrication Lab

9. 阅读室| Reading Room

10. 研究所| Research Lab

11. 研讨室| Discussion

12. 报告厅| Auditorium

13. 等候区| Auditorium Foyer

Different programs follow by vertical circulations were design to form an undulating loop within existing structure.

04 结构构思| Structural Studies

01. 现状结构| Existing Structures

The existing structure in the architecture building comprised of several cluster of different additions to the old building.

02. 移除部分结构| Removing Selected Structures

Several selected structure were removed to clean up the overall form for further interventions. Previous addition clusters were removed too.

03. 增加部分结构| Inserting New Structure

New Structure were added and front and rear of the building to make a complete loop circulation.

功能环 Along the Green Belt

图像展示了展览区、工作室空间和会议室等关键功能空间如何 在功能环中实现无缝连接,营造出流畅且连贯的空间体验。

The images demonstrate how essential spaces, including the exhibition area, studio space, and meeting rooms, are seamlessly interconnected within the programmatic loop, creating a fluid and cohesive spatial experience.

展览环| Exhibition Ring
展览环| Exhibition Ring
中庭| Atrium

01 Mesh

Window

外立面设计 Double Facade Design

该建筑设计了两层立面,以应对北京的极端气候条件。一层网格用于过滤进入室内的 光线,结合低辐射玻璃窗系统,当底部开启时,能够实现交叉通风并提供额外的热调节。

Two layers of facade were designed for this building to withstand Beijing's extreme weather conditions. A mesh layer filters light into the interior, while a Low-E glass window system, which enables cross ventilation when the bottom is open, provides additional thermal regulation.

阶梯式平台 Cascading Platforms 这些平台设计成逐级向中央空间延伸,从而改善 了各楼层之间的视觉连贯性和互动性。

The platforms are designed to cascade down towards the central space, facilitating improved visual connectivity and interaction between the different floors.

Atrium

设计教室 Studio Space

屋顶花园 Roof Garden

报告厅 Lecture Hall

展览环 Exhibtion Ring

展览区 Exhibtion Space

次入口 Secondary Entrance

Studio Instructor:
Prof. Li Xiaodong

|Design Concept

场地位于阳村南侧,面向广阔的茶园,西侧是村庄的主要 入口,东侧为历史悠久的张家祠堂。我们希望创造一个让 游客能够与古镇、茶田和大山产生对话的空间。进入空 间后,游客可以感受到开放的视野,享受清风拂面、茶 香满园、雨声潺潺的自然体验,唤起宁静与和谐的感受。

设计重点突出场地的自然特性,弱化建筑的存在感,增强与 自然的连续性。游客中心面朝茶园和群山,通过廊桥、二层 平台等与周边环境形成丰富的互动,同时利用通透的建筑空 间,模糊室内外的边界,强化了游客中心作为开放公共空间 的特性。

The site is located on the southern edge of Yang Village, facing tea plantations and bordered by the village entrance to the west and the historic Zhang Family Ancestral Hall to the east. Rather than isolating the site, the design aims to create a space that fosters a dialogue between visitors, the ancient village, and the surrounding landscape.

The proposal emphasizes the site's natural features, minimizing architectural impact to enhance continuity with the environment. The visitor center, facing the tea gardens and mountains, uses open, transparent spaces to blur the lines between indoors and outdoors, creating a welcoming public area that connects seamlessly with nature.

设计融入了当地山下阳茶文化,通过开放空间展示茶文化产 品,提升了游客的参与感和体验度。随着饮茶人数的增加, 游客中心附近的茶园提供采茶、制茶、品茶等体验活动,促 进了茶业经济的发展。

The design incorporates local Yang tea culture, with open spaces that showcase tea-related products and enhance visitor engagement. As tea consumption grows, the nearby tea garden offers activities like tea picking, processing, and tasting, further boosting the local tea industry. Songyang Rural Revitilization | Tea Pavilion

总平面图| Site Plan

鸟瞰图| Aerial View 首层平面图|

02 设计策略 |Massing Strategy

01. 场地分区| Spatial Planning

1,000 square meters of built-up area are confined to the east side, with a central visual screen creating a pavilion effect.

02. 连廊链接| Bridging

A bridge was designed to link the pavilion with the main structure, creating a central space.

1. 水院| Water Garden

2. 停车坪| Parking

3. 候车亭| Pick-up

4. 公共厕所| Public Toilet

5. 咨询台| concierge

6. 休息厅| Lounge

7. 农业品购物区| Agriculture Shop

8. 洗手间| Lavatory

9. 四季苑 Seasonal Garden

10. 内院| Inner Courtyard

11. 电梯| Lift

03. 三院三景| Three Garden

Three distinct gardens were designed, extending from the water entrance to the central garden and the inner courtyard.

04. 平面化| Adding Planes

Planes were designed to keep the building lightweight and ensure it harmonizes with the surrounding serenity.

1. 茶吧| Tea Bar

2. 茶坊| Tea Workshop

3. 影音会议厅| Auditorium

4. 休息厅| Lounge

5. 茶室| Tea Room

6. 电梯| Lift

7. 办公室| Office

Parking

水院| Water Garden
停车坪| Parking 公共厕所 Public Toilet
Tea Bar 四季苑 Seasonal Garden
Songyang Rural Revitilization | Tea Pavilion
廊道| Connecting Bridge
连廊 Corridor
连桥 Bridge

景观策略 |Landscape Strategy

四季院| Seasonal Garden
Songyang Rural Revitilization | Tea Pavilion
the Studio Instructor: Light
Prof. Li Xiaodong

Decline of Fireflies Population

Firefly populations are diminishing due to habitat loss, exacerbated by light pollution , pesticides, and climate change, promoting critical conservation endeavors to safeguard their existence and ecosystem.

Impact on Mating

Artificial light inteferes with biolumine-scent signals reduces mating success.

Disruption of Behavior

Excessive light pollution alters natural behavior affects feeding and breeding cycles.

02 设计概念 |the Buffer Belt

Advancing the fireflies' survival line to create a buffer zone for firefly-human coexistence.

Identifying light leakages caused by man-made struc-tures within the buffer zone.

Glass "Wall" as Filter

The design concept analyzes urban light pollution, identifying spectra detrimental to firefly behavior. Specialized filtered glass is integrated into two walls, shielding fireflies while maintaining visibility.The walls serve as a common ground for fireflies and humans, fostering harmonious coexistence and enabling nature discovery while acting as barriers against light pollution, exemplifying the delicate interplay between nature and human interaction.

Pushed-back of Fireflies Habitat Boundary

03 日照研究 |Daylight Investigation

·visible spectrum

·light simulation

光照模拟 |Light Simulation

模型模拟 |Model Simulation

·shadow-casting simulation

The Spectrum of light mainly seen by the firflies appeares to be more on the green side.
Using normal glass does not help to shade out the space behind it and it is stil visible for fireflies
Specialised fitered glass helps to cast a deep shadow behind it allowing fireflies to behave usual under an ideal environment.
01 Simulation of fireflies' Visible Light
01 Simulation of Humans' Visible Light (on Model)
02 Transparent glass with no shadow
02 Simulation of fireflies' Visible Light (on Model)
03 Filtered Glass with shadow

b. the Hardened-

c. the Tourist Tower ecological damage caused by man-made harden soil adapeted reuse of

a. the Water Pavilion

Resting on the water's surface, it provides shade for water fireflies and and offers humans close water access.

06 设计概念 |Visual Comparison

The right images shows the different visual perceptions of the same scene by humans and fireflies, illustrating full-spectrum brightness and filtered darkness. Human Vision Firefly Vision

b. the Screen

Positioned midway on the hill, it acts as a light filter, seamlessly filling cavities within the forest while providing a tranquil retreat.

c. the Tower

Situated on higher ground, it blends discreetly trees, offering both shade and a panoramic lookout

模型 |Maquette
Velux

该研究模型旨在评估设计的比例和结构完整 性。我们借此探索了设计的可建造性,并进一 步研究了设计在实际应用中的可行性。

The study model was created to evaluate the proportions and structural integrity of the design. It allowed us to explore the feasibility of construction and to investigate additional aspects of the design's practicality and implementation.

Practice & Others

Render of Gaoxin Middle Schhool rendered by Author

02

(Assitant Architect) PORT 25 Architects

03

01 (Internship) reMIX Studio (Sports) Football (Bachelor's) Installations

04

|Installation

展览装置 Exhibition Installtion, 2019

Taylor's Architecture Festival, Students' Exhibition

在泰勒大学首届建筑节中,我担任活动核心委员会成员并主导展览装置设计。

该装置采用模块化结构,通过定制连接部件可实现多种排列组合,顺序展示从 本科生到研究生的作品,并巧妙融入了阅读座椅。整个项目从概念设计到施工 建设均由团队独立完成,确保了设计的完整性和施工的高标准。

(主要参与:方案设计;设计深化;后期制作 Contribution: Conceptual Design, Design Development, Construction

At the inaugural Taylor's Architecture Festival, aimed at showcasing student work and promoting the School of Architecture, my role was as a core committee member and lead designer for the exhibition installation. The modular fixture was configurable in various arrangements, sequentially showcasing work from undergraduate to graduate students with integrated seating. The entire project, from concept to construction, was executed by the team.

模块化组件通过专门的连接件牢固地固定在一起,确保其能够 抵抗学校风洞产生的风力。

The modular components were securely fastened using specialized connectors, ensuring their stability against the wind forces generated by the school's wind tunnel.

Installation Isometric View
Walking Through
Models & Exhibition Boards

装置竞赛 Installation Competition, 2019

PAM Annual Architecture Student Works Exhibition

由马来西亚建筑师协会(PAM)主办的年度竞赛汇集了马来西亚各建筑院校 的学生。今年,参赛者的任务是仅使用C型钢梁和钢质屋顶瓦片设计一个展 览装置。团队开发了互锁的六边形模块,形成自我支撑的结构,稳固地固定 展品。我负责设计模块化组件及展览装置的整体形式。该创新设计为团队赢 得了两项大奖。

主要参与:方案设计;设计深化;后期制作 Contribution: Conceptual Design, Design Development, Construction

The annual competition organized by Pertubuhan Akitek Malaysia (PAM) brings together architecture students from across Malaysia. This year, participants were tasked with designing an exhibition installation using only C-channel steel beams and steel roof shingles. The team developed interlocking hexagonal modules to create a self-supporting structure that securely held the exhibition materials. My role was to design the modular components and the overall form of the installation. This innovative design earned the team two awards.

Student's Work with the Installation
Study Models on Installation Awards

Design 01 ( 待定 Unbuilt) 2022

RoRRu Japanese Handroll Bar | EKO Cheras, Malaysia

该项目是一家位于吉隆坡商业楼内的日式手卷吧。设计概念源于日本街头美 食文化,吧台作为中心元素,占据了大部分空间。回收的百叶窗板用于打造 外部,突出可持续性和文化共鸣。我的职责是将概念转化为整体设计,并融 入回收材料。然而,最终业主选择了更具科幻感和青春活力的风格,因此设 计未被采纳。

平面图 Floor Plan

主要参与:方案设计;设计深化 Contribution: Conceptual Design, Design Development

This project involved designing a Japanese handroll bar in a commercial building in Kuala Lumpur. The concept drew inspiration from Japanese street food culture, with the bar as the central feature, occupying most of the space. Reclaimed louver panels were used to create the exterior, emphasizing sustainability and cultural resonance. My role focused on translating the concept into a cohesive design, integrating reclaimed materials. However, the design was not adopted as the owner preferred a more sci-fi and youthful aesthetic.

© PORT 25

右侧图片展示了设计的三层 结构:百叶墙板、吧台座椅 和顶部灯光装置。

The right image displays the three layers of design: the louvered wall panels, bar seating, and overhead lighting installation.

Entrance
Bar Seatings

Design 02 ( 建成 Built ) 2022

RoRRu Japanese Handroll Bar | Publika, Malaysia

这是同一品牌的第二个设计提案,并成功落地。设计保留了以吧台为中心 的核心概念,同时增加了侧座,以满足不同客户的需求。整体风格趋向于 科幻和酒吧氛围,紧密契合客户的愿景。我参与了项目的各个阶段,从初 步设计到施工图绘制及施工,确保概念得到充分实现。整个过程中,我积 累了从概念到落地的宝贵经验。

平面图 Floor Plan

主要参与:方案设计;设计深化;施工图;施工驻场

Contribution: Conceptual Design, Design Development, Construction Drawings, Site Supervision

This was the second proposal for the same brand, and it was successfully realized. The design retained the core concept of a prominent bar seating area as the focal point while introducing additional side seating to meet diverse customer needs. The overall aesthetic adopted a more sci-fi and bar-like atmosphere, aligning closely with the client's vision. I was involved in every stage of the project, from initial design to detailed drawings and construction, ensuring the concept was faithfully executed. Throughout the process, I gained valuable experience in completing a project from concept to realization.

© PORT 25

一个大型灯具被设计安装在店铺前方,以呼应店 内的吧台座位。

A large light fixture was designed for the front of the store to complement and visually connect with the bar seating inside.

Main Render of RoRRu
Completion Image

建成 Built ) 2023

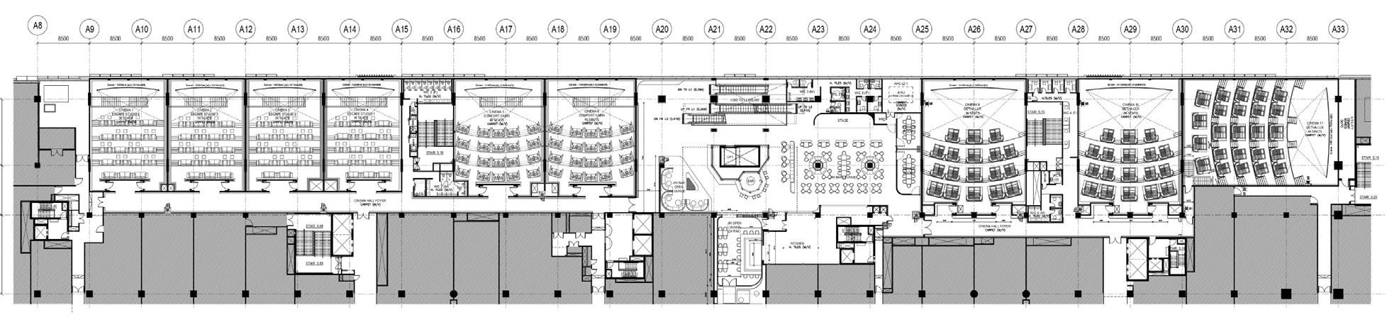
该项目是为GSC影院设计的高端分店,GSC影院是马来西亚主要的影院连锁之一。

项目位于吉隆坡最大的购物中心之一——TRX。这一项目对细节的要求非常高, 我在其中参与了多个关键环节,包括施工图、技术图纸、细节设计、渲染,以及 制作演示文稿文件。该项目在我工作期间占用了大量时间和精力,因为过程中涉 及了众多细节和调整。

主要参与:设计深化;施工图

Contribution: Design Development, Construction Drawings

This project involved the design of a high-end branch for GSC Cinema, one of Malaysia's leading cinema chains. Located in TRX, one of the largest malls in Kuala Lumpur, the project demanded significant attention to detail. My contributions spanned several key areas, including the development of construction drawings, technical drawings, detailed design, renderings, and the creation of presentation materials. This project was a major focus during my tenure, requiring substantial time and effort due to the numerous details and alterations that arose throughout the process.

GSC Aurum Cinema |TRX, Malaysia
Entrance & Lobby
Cinema Hall Floor Plan
Cinema Hall Section
Cinema Hall & Private Movie Hall

( 建成 Built ) 2024

彼得潘餐厅扩建 Peter Pan Italian Restaurant Extension | Beijing, China

该项目为现有餐厅的二期扩建。在前期设计中,我延续了原有设计语言, 引入了庭院,并在空间中融入了手工琉璃砖和不锈钢元素,以注入新的设 计特色。二期还大量使用了玻璃,以柔化室内外界面,将庭院和周围花园 融入餐厅。此外,作为项目施工期间的驻场设计师,我参与了各尺度的深 化设计和现场调整,以确保项目的高完成度。

主要参与:方案设计;设计深化;施工驻场

Contribution: Schematic Design, Design Development, Site Supervision

This project is a Phase II expansion of an existing restaurant. In the preliminary design, I continued the original design language by incorporating a courtyard and introducing handcrafted glass bricks alongside stainless steel elements to infuse new character into the space. Phase II also utilized extensive glazing to soften the interior-exterior interface, integrating the courtyard and surrounding garden into the restaurant. Additionally, as the on-site designer for the project, I was involved in detailed design development and on-site adjustments to ensure a high-quality completion.

拆改图 Demolition & Addition

首层平面图 First Floor Plan

Section

现有结构 Existing

连接建筑空间

© reMIX Studio

Existing Structures

Photo Taken © Boom Studio

实践 |Practice - 临界工作室 reMIX Studio-

( 待建成 Under Construction) 2024

深圳理工大学规划 SIAT Campus Design | Shenzhen, China

这是深圳一所大学的校园设计,采用生物气候设计充分利用自然资源。设计包 括雨水收集水景和环形布局,连接建筑群以优化交通流线。我参与了项目的后 期阶段,将二维图纸转化为三维模型,以识别和解决设计中的差异,力求实现 设计的完整性。

主要参与:翻模;后期深化校对 Contribution: 3D Modelling, Identifying Discrepancies

This is a campus design for a university in Shenzhen, utilizing bioclimatic principles to maximize natural resources. The design includes water features for rainwater storage and a loop layout connecting clusters of buildings to optimize circulation. I contributed in the later stages, transforming 2D drawings into 3D models to identify and resolve design discrepancies, aiming to ensure the design's full realization.

© reMIX Studio
鸟瞰图 Isometric View
硕士公寓 Graduate Dorm (My Project)

( 竞赛入围 Competition) 2023

Gaoxin Middle School (Shenzhen, China)

该项目是深圳高新中学的设计竞赛,旨在扩建现有校园。设计概念为“垂直森林中的水平校 园”,旨在打造一个低碳、可持续的校园环境,使学校与自然环境有机融合。我参与了项目 的后期阶段,负责制作图纸、渲染图和Photoshop效果图。此外,我还制作了设计演示视频, 以全面呈现我们的设计理念,确保设计概念得到充分表达。

鸟瞰图 Isometric View

主要参与:影片制作;绘图;渲染 Contribution: Walk through Video, Drawings , Rendering

This project is a middle school design competition in Shenzhen, focused on the expansion of Gaoxin Middle School. The concept, "Horizontal Campus in a Vertical Forest," aimed to create a low-carbon school environment. I contributed in the later stages, producing drawings, renderings, Photoshop work, and a walkthrough video to support the design.

硕士公寓 Graduate Dorm (My Project)

© reMIX Studio

其它 |Others (Hobbies & Involvements)

(Sports)

School Team Football

在清华大学期间,我有幸加入了建筑学院的足球队。我非常幸运能够成为清华建 筑学院历史上最为出色的队伍之一的一员,这支队伍由一群才华横溢的球员组成, 他们为我们的集体成功做出了重大贡献。我们一起赢得了两次小型比赛的冠军, 并在享有盛誉的清华大学五四杯(马约翰杯)中获得亚军,这也是我们队伍十年 来首次打进决赛。成为这支队伍的一员,为我带来了宝贵的经历,并促成了持久 的友谊。

During my time at Tsinghua University, I had the privilege of joining the Architecture School's football team. I was fortunate to be part of one of the most accomplished squads in the history of the Tsinghua Architecture School, composed of exceptionally talented players who significantly contributed to our collective success. Together, we won two minor competitions ( (((( and achieved the first runner-up position in the prestigious Tsinghua University Ma Cup (((((), marking the first time in a decade that our team reached the finals. Being part of this team provided me with invaluable experiences and fostered lasting friendships.

建筑学院队 Team School of Architecture

清华大学文科杯冠军2023

清华大学马约翰杯亚军2024

清华大学文科杯冠军2024

Turn static files into dynamic content formats.

Create a flipbook
Issuu converts static files into: digital portfolios, online yearbooks, online catalogs, digital photo albums and more. Sign up and create your flipbook.
作品集 portfolio by Poon Ginyong - Issuu