

ARCHITECTURE PORTFOLIO GIO PADILLA
Architecture Student
VOL. 01 Academic / Non Academic 2020-2024
Contents
ACADEMIC
Proposed Navotas Ferry Service System
Architectural Design 07: Urban Planning and Community Development
Architectural Design 08: Design of Complex Structures page 01 page 03
Proposed Medium-Rise Socialized Housing Development in Caloocan City
Proposed Beach Resort in Nasugbu, Batangas
Architectural Design 06: Site Development Planning and Landscaping page 05
Proposed City Museum in Caloocan City
Architectural Design 05: Space Planning 02 page 06
Proposed Two (2) - Storey Residence Plans
Building Technology 03: Construction Drawings in Wood, Steel & Concrete page 07
Proposed Two (2) - Storey Residence BIM
Computer Aided Drafting & Design for Architecture 02: Building Information Modeling page 08
NON-ACADEMIC
Proposed Two-Storey Residence in Binan, Laguna
Schematic Design Phase page 09
Proposed Three-Storey Mixed-Use Duplex in Quezon City
Schematic Design Phase page 10
Proposed Residential Buildings in Texas, USA
Schematic Design Phase page 12
LULAN
Proposed Navotas Ferry Service System
The designer intends to propose a transport terminal that prioritizes efficient flow of passengers as the primary end-users of such typology Amorphous Architecture is evident in the planning layout, as well as in the overall form of the building This is an aspiration to the residents for they will get to maximise public transport through ferry service as an alternative mode of transport

















SIPACALMACENSTATION














ANLAW
Proposed Beach Resort in Nasugbu, Batangas




CALOOCAN’S CANVAS
Proposed Museum in Caloocan City












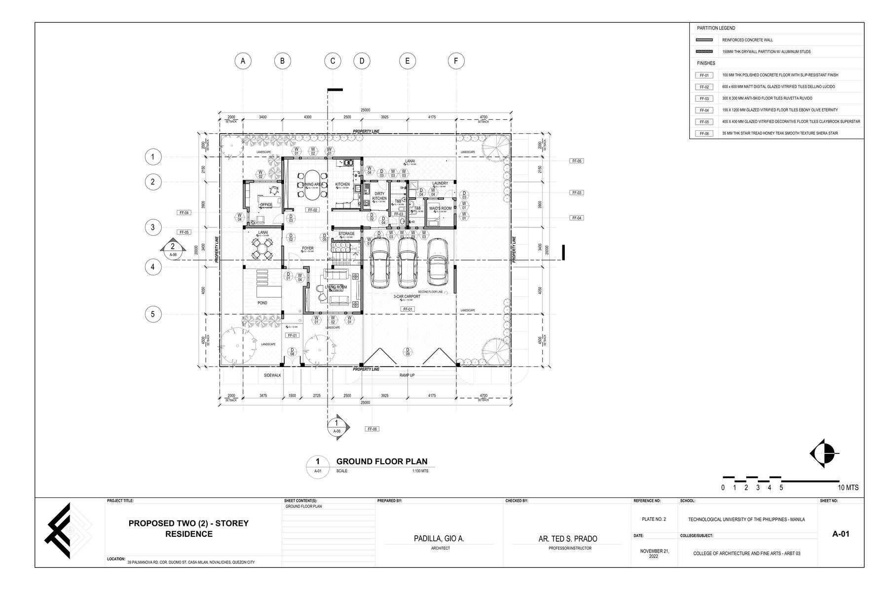
Proposed
Two (2) - Storey Residence Plans
Software Used: AutoCAD 2021



Proposed
Two (2) - Storey Residence BIM
Software Used: Revit 2023


Proposed Two-Storey Residence in Binan, Laguna
Design Workflow: Revit 2024, SketchUp 2023, Lumion 10




Proposed Three-Storey Mixed-Use Duplex
Design Workflow: Revit 2024, SketchUp 2023, Lumion 10








Proposed Residential Buildings in Texas, USA
Design Workflow: Revit 2024, SketchUp 2023, Lumion 10




email: gioabinojapadilla30@gmail.com
mobile number: +63 935 058 6788
Facebook: https://www.facebook.com/gio.padilla.610