Architecture Internship Portfolio| Gajanan bhamare

Page 1


Gajanan J Bhamare

Indian

DOB-02-07-1999

AGE - 21

Languages- Marathi,Hindi,English

Email IDbhamaregajanan99@gmail.com

Phone-9096091973

Address- Nashik ( Maharashtra )

Education:

Shri chhatrapati shivaji vidhyalay , nashik

SSC

Bhosala military college , nashik

HSC

Sinhagad college of architecture , pune (Present)

Software:

Autocad

Sketchup

Twin motion

Photoshop

InDesign

Adobe Premier Pro Keyshot Rhino Lumion

Vray

Adobe After Effects

Adobe Audition

Add-on:

Videography

Photography

Cinematic, Short-film, Blogging

Model Making Handmade , Clay

Initiative

Sketching

Student Committee Head (Sinhagad College Of Architecture)

Landscaping Terrace gardening, Plantation.

Graphic Design

Music Flute

Social Service

Green revolution

IPTA- Theatre Group

1

Mass Media Centre

Nagpur

2

Architecture Campus Research Centre

Bhopal

3

Housing

Pune

4 5 6

Landscape

Dapoli

Dapoli

Working Drawing Interests

Academics+professional

7

I am eager to learn and explore diverse ideas that lead to innovation. I would like using innovative and exemplary techniques to explore modern architecture respecting the ecological balance while perusing the same.

C O N T E N T

MASS MEDIA INSTITUTE

The semester called for The Institute of Mass Media located. The design is inspired by the traditional Indian Gurukul concept where maximum indoor and the outdoor connection is maintained. The proposal indulges green pockets in between with a wide spread of areas around tackling the hot climate of Nagpur.

Sem-VIII

Location:Nagpur

Site Area:18,000 sq.m

Duration:14 week

Widespread of spaces

through spaces

Making the user follow the burble leading to the element of surprise.

Site plan

Transition
Breeze from the south
Green pockets

The proposal intends to give users a similar feeling of GURUKUL like that as earlier the students were taught by one Guru sitting under a tree.

The areas are planned like that of the temple with transition spaces throughout the entrance (gopuram), between the gathering spaces (ardh mandapa) ,classes (mandapa) and the library (garbhagriha).The classes are arranged at an eccentric side of the site to avoid the noise and to provide privacy.

Green transition spaces between classes

Moving ahead on this path of circulation (from entrance) eventually leads silent zone(the library)

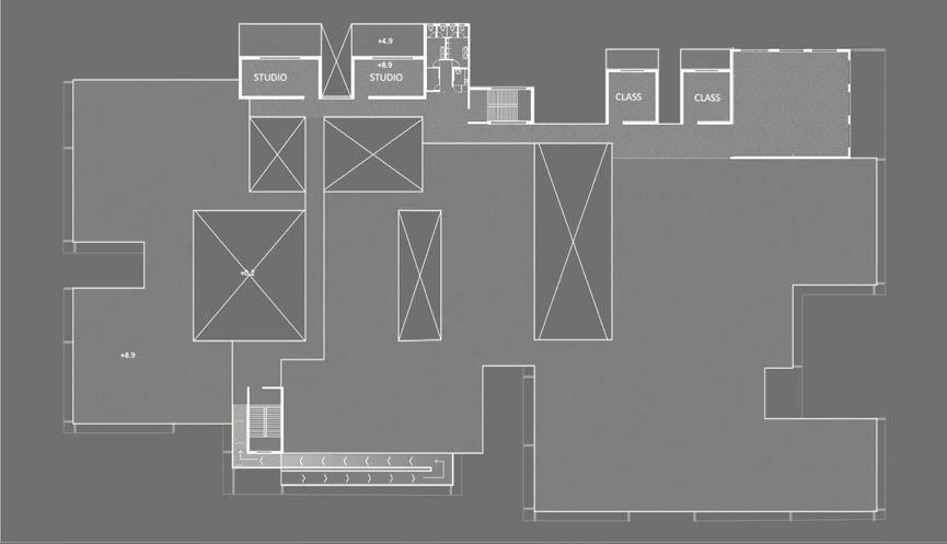
Ground floor plan

First floor plan

Second floor plan

SECTION BB`

Terracotta jalli has been provided in order to reduce heat gain from southern side incorporating Ventury effect. Provision of jallis not only help to in reduction of inside temperature but also helps in minimalising the outside noise and filters the air whilst allowing the privacy.

To tackle the problems of heat gain,air and noise pollution and privacy ,different materialized jali at the southern side was given a thought of.

Initial stage facade design detail

EXPLODED AXONOMETRIC VIEW

RESEARCH CENTRE

Historical sites are always worth exploring as you will definitely find something you never knew. Our aim was to explore site near Bhopal while designing the project of Research Centre on the site of our choice which was in midst of the hills. The chosen site had the maximum number of trees and large rocks. The project is designed so as to blend with natural organic form of the Bhimbetka caves.

Sem-VI

Location:Bhopal

Site Area:8,000 sq.m

Duration:3 week

The site selected was isolated from existing Bhimbetka caves and consisted of two large rocks which acted as the entrance of the research centre which was inspired from the actual entrance of the caves.

The areas are designed in an organic manner without sabotaging the existing trees which was the main challenge. The geometry of the structure was incorporated within the geometry of the caves.

plan showing node points

Site

showing existing trees and rocks Node points within the site with clear visuals

Organic pathways between caves

GROUND FLOOR PLAN

SECTION AA`

EXPLODED AXONOMETRIC VIEW

Marked areas denote organic openings and node points formed due to the natural arrangements of rocks. such openings and node points are also visible in the axonometric view of the structure.

SECTION BB`

HOUSING

The semester aims to introduce the students to the new aspect of the Housing.A social housing was to be designed near shivajinagar pune fulfilling all the requirements.Believing that common gathering spaces can reduce one’s feeling of isolation , my design is inspired by traditional wadas and chawls where interactive spaces play a vital role.The spaces are well planned keeping in mind the basic of requirements of a user.

Sem-VII

Location:Shivajinagar,Pune

Site Area:24,000 sq.m

Duration:15 week

Biophilic Environment

The form generated using basic principle of chawl & wada

Schematic sketch showing interaction between spaces

Design planning inspired by the basic necessities of the daily chores of an individuals

View from point A

Initial stage of concept development

Flow of movement

SECTION BB`

Fenestration detail

Climbers on louvers and mesh
Breeze movement
Initial horizontal sectional sketch of housing

Isometric floor plan

Unit A

Symmetrical units

East side facade

Isometric floor plan (double height penthouse)

Isometric Floor plan

Unit B

SECTION

Entrance

Clubhouse

Recreational Amenities

EXPLODED AXONOMETRIC VIEW (clubhouse)

ARCHITECTURE CAMPUS

The intent of the project was to design and plan a campus on a beach facing contoured site by asking the students to design an Institute consisting of hostels and staff residential area. The design is planned in such a way that by keeping intact the natural terrain of the contours , the spaces arranged are differentiable.

Sem-V

Location: Dapoli

Site Area:18,000 sq.m

Duration: 16 weeks

Existing contours on site

Initial concept of providing views

Wind flow from West crossing the spaces making its way upwards towards the East.

Natural terrain kept as it was and used for landscaping

Symmetrical planning along an axis passing through existing trees

Segregation of Residential and Institutional spaces

Primary

Secondary

Tertiary

Circulation Green areas

Underground spaces

Proposed site view from point A
SECTIONAL ELEVATION BB`
Hostel plan
Hostel unit Plan Staff quarter Plan

RESIDENTIAL VIEW

INSTITUTE VIEW

Symmetrical arrangements of units

LANDSCAPE

-Arranged and won in successful events like-

-KMATM (event head) (MODEL COMPETITION AT PUNE)

-Fashion show(participant,winner)

Sinhagad karandak bricks fashion show Symbiosis fashion show

-Various College activities and events arranged.

Being close to nature is always ecstatic TREKKING and TRAVELLING is something I have always been interested in.

Gajanan bhamare
Gajanan bhamare Traveller prashant SCOA official
Exploded GIF of the model
Ink sketch
Scribble Art
Pencil sketch
Watercolor sketch

Turn static files into dynamic content formats.

Create a flipbook
Issuu converts static files into: digital portfolios, online yearbooks, online catalogs, digital photo albums and more. Sign up and create your flipbook.