

RELATÓRIODEAUDITORIA
ORDEMDEAUDITORIAN.:2371/2024/1
UNIDADEAUDITADA:DMAE-DEP.MUNICIPALDEÁGUAEESGOTOS-PORTOALEGRE
MUNICÍPIO:PORTOALEGRE
PERÍODOEXAMINADO:01/01/2020a01/06/2024
EQUIPEDEAUDITORIA:ANDREYREICHELTAZAMBUJA FABIOALEXBELING
GUILHERMEGRASSIMANFRIN LEANDROLOBATOCAMARGO LEANDROTORRES
MARCELOKIPPERDASILVA
Apresenteanálisefundamenta-senodispostonosartigos31e70a75da ConstituiçãoFederal;noartigo70daConstituiçãoEstadual;naLeiComplementarFederaln. 101/2000;naLeiEstadualn11424/2000(LeiOrgânicadoTCE/RS);naResoluçãon 1028/2015(RegimentoInternodoTCE/RS),enasdiretrizesepráticasdasNormasdeAuditoria Governamental–NAG(Resoluçãon.946/2012)edasNormasBrasileirasdeAuditoriadoSetor Público–NBASP(Resoluçãon1108/2019)
Oexamedositensauditados,levadoaefeitoporprocedimentoamostral,evidenciou asseguintesinconformidades:

ESTADODORIOGRANDEDOSUL TRIBUNALDECONTAS
DIREÇÃODECONTROLEEFISCALIZAÇÃO SERVIÇODEAUDITORIADEPORTOALEGRE
SUMÁRIO
1INTRODUÇÃO

2SISTEMADEPROTEÇÃOCONTRACHEIAS(SPCC)DEPORTOALEGRE
3EVENTOCLIMÁTICOEXTREMODEABRIL/MAIODE2024
4ESTUDOSEDOCUMENTOSREFERENCIAISPARAAAUDITORIA
5AUDITORIADOTCE-RS
5.1ConcepçãodoSistemadeProteçãoContraCheias
5.1.1FalhasdosDiques
512FalhasEstruturaisdasComportas/Portões13e14doMuroda Mauá
5.1.3RedesConectadasDiretamenteaoGuaíbaeaoArroioDilúvio
5.1.4FalhasEstruturaisnasEstaçõesdeBombeamentoPluvialede ÁguaBruta
52ManutençãodoSistemadeProteçãoContraCheias
5.2.1FalhanaManutençãodasComportas/PortõesdoMurodaMauá
5.2.2FalhanaManutençãodaEBAP13
523ExtravasamentosemCondutosForçados
5.3GestãodoSistemadeProteçãoContraCheias
5.3.1FragilidadesnaIncorporaçãodasCompetênciasdoDEP
532FaltadeInvestimentoseProjetosnaMelhoriadoSPCC
5.3.3FalhadeGovernançaeGestãodeRiscosparaOperação, ManutençãoeMonitoramentodoSPCC
534FaltadeEstruturaçãodePessoal-Nãoatendimentodospleitos dereposiçãodeservidoresedereestruturação/modernizaçãodo quadrogeraldoDMAE
5.3.5ImplementaçãoIntempestivadoPlanodeResiliência
5.3.6RecomendaçõesGeraisParaMelhoriadoSPCC
6ANEXO-ANÁLISEEXPEDIENTESREPOSIÇÃODEPESSOAL 7ANEXO-ANÁLISEEXPEDIENTESREESTRUTURAÇÃO/MODERNIZAÇÃO QUADROGERALDECARGOS
8ANEXO-ANÁLISEEXPEDIENTESCONTRATAÇÕESTEMPORÁRIAS
9CONCLUSÕES
10PROPOSTADEENCAMINHAMENTO

ESTADODORIOGRANDEDOSUL TRIBUNALDECONTAS
DIREÇÃODECONTROLEEFISCALIZAÇÃO SERVIÇODEAUDITORIADEPORTOALEGRE
1INTRODUÇÃO

Trata-sedefiscalização,namodalidadeauditoriadepropósitoespecífico,como objetivodeidentificarascausaseasresponsabilidadespelasfalhasdoSistemadeProteção ContraCheiasdePortoAlegre,sobencargodoDepartamentoMunicipaldeÁguaeEsgotos (DMAE),duranteoeventometeorológicoextremodemaiode2024,oqualprovocouinundações nasbaciashidrográficasdequasetodososriostributáriosàbaciadoGuaíba,causandoa maiorcheiajáregistradanacapitalPortoAlegre,superandoahistóricacheiadoanode1941
Oescopoconstitui-sedaanálisedosimpactosidentificadosnomunicípiodePorto Alegreeasuacorrelaçãocomasfalhasnosistemadeestruturaseequipamentoscujafunção eraevitaraentradadeáguanasregiõesbaixasdacidadeAfiscalizaçãofoirealizadasobtrês enfoques:(i)análisedaadequaçãoconceitualdosprojetosedasobrasdosistemaconstruído; (ii)doplanejamentoeexecuçãodamanutençãodestasestruturas;e(iii)dagestãoe organizaçãomunicipalparaefetivaçãodosistemadeproteçãoParaoplanejamentodas questõesdeauditoriatambémforamconsideradasasdeclaraçõespúblicasdosgestorese técnicosmunicipaisduranteoseventosclimáticos,estudosindependentesequestionamentos provenientesdeinstituições,órgãostécnicosedasociedadecomoumtodo
AequipetambémrecepcionouaRepresentaçãon10/2024(Processon0175180200/24-9)doMinistérioPúblicodeContas-MPC,cujoobjetoestavaincluídonoescopoe planejamentodaAuditoria,utilizando-seomaterialencaminhadoenquantosubsídioparaas análisesDemaneirasucinta,ospontosrequeridospeloMPCforam(a)aanálisequantoa omissõesdaAdministraçãoMunicipalnaoperaçãoemanutençãodoSistemadeProteção ContraCheias(SPCC),asconsequênciasduranteoeventode2024eaindividualizaçãodas responsabilidades;(b)aaveriguaçãodaadequadaexecuçãodoContratonº201000006244-3 deserviçosdemanutençãoeletromecânicapreventivanoSPCC;e(c)averificaçãoda contribuiçãododesligamentodaenergianoalagamentoderegiõesdosBairrosCidadeBaixae MeninoDeusTodosospontosforamexaminadospelaEquipedeAuditoriaetratadosnesse relatórionamedidadaconstataçãodasirregularidades
AformaçãodaEquipedeAuditoriacontoucomintegrantesdesignadospeloCentro EspecializadoparaAuditoriadeObrasPúblicasemcolaboraçãoaoServiçodeAuditoriadePorto Alegre,tendoemvistaosdesafiostécnicoseoperacionaisdaauditoria
Abrangeu-senaanálise,especialmente,osexercíciosde2018a2024,tendoem vistaaatuaçãodasúltimasgestõesnaoperaçãoemanutençãodosistemadeproteção, entretanto,adocumentaçãoeasobrasanalisadasdatamdesdeadécadade1960,iniciadas peloextintoDepartamentoNacionaldeObraseSaneamento(DNOS)
Éimportantedestacarqueaauditoria,nestemomento,nãoteveocondãode apurardanosfinanceirosouimputarresponsabilidadespararessarcimentoaoerário.É notórioqueacatástrofedecorrentedascheiasedafalhadoSPCCcausouseverosprejuízosà PortoAlegre,porémadeterminaçãodessemontanteéalvodemilharesdeaçõesjudiciais individuaisedeumaAçãoCivilPúblicadoMinistérioPúblicoEstadualdoRSIsso,todavia,não impedeque,nofuturo,apósadeterminaçãojudicialdosvaloreseaimputaçãodaobrigaçãode ressarcimento,ocontroleexterno,utilizandooteordesterelatório,correlacioneosmontantes 3
digitalmente por: Marcelo Kipper da Silva em 14/07/25, Leandro Lobato Camargo em 14/07/25, Leandro Torres em 14/07/25, Fabio Alex Beling em 14/07/25 e outro(s).

ESTADODORIOGRANDEDOSUL TRIBUNALDECONTAS
DIREÇÃODECONTROLEEFISCALIZAÇÃO SERVIÇODEAUDITORIADEPORTOALEGRE

financeirosfixadoscomascondutasapuradase,noâmbitodestaCorte,atribuaa responsabilidadeporeventualressarcimentoaoerário
Diantedascircunstâncias,osexamesrealizadosforamlimitadospelafaltadedados, documentoseacessoaedificaçõeseestruturas,devidoaosimpactosdaenchentena administraçãomunicipaleaograndevolumededocumentosaanalisarAofimdafiscalização, foramidentificadososresponsáveispelasfalhas,considerandooprazoprescricionaldosatos administrativoseaextensãodasresponsabilidades.
2SISTEMADEPROTEÇÃOCONTRACHEIAS(SPCC)DEPORTOALEGRE
SegundooPlanoMunicipaldeSaneamentoBásicodoMunicípiodePortoAlegre1Volume1(peça6718423,p11),acapitalgaúchacaracteriza-seporapresentargrandepartede suaáreaurbanasituadaemzonabaixa(baixaaltitude),comgrandesdificuldadesde drenagemrelacionadasàvariaçãodeníveisdoLagoGuaíba,queéocorporeceptorfinaldas águaspluviaisdacidadeAvariaçãodeníveisdoLagoGuaíbaprovoca,comoconsequência,a elevaçãodosníveisdeáguaemarroiosenosistemademacrodrenagemdacidadeaele conectados
Omunicípiopassou,aolongodoséculoXX,pordiversoseventossignificativosde cheia,comoode1941,quefoiomaioreventoregistradonaqueleséculo,chegandoas águasaatingiracotade4,75mnocaisdoporto2 .
Aocorrênciadoeventodecheiade1941(4,75m)edeoutros,comoosocorridosnos anosde1965(2,72m)e1967(3,13m)3,queatingiramcotasmenores,impulsionarama realizaçãodeestudosparaaimplantaçãodeumsistemadeproteçãocontracheias(SPCC), constituídopordiques(comcotadecoroamentoaproximadamente1,25macimadacotada cheiade1941),estaçõesdebombeamentodeáguaspluviais(casasdebombas)econdutossob pressão(condutosforçados).
Talsistemafoiconcebido,eparcialmenteimplantado,nasdécadasde1960e 1970peloextintoDepartamentoNacionaldeObraseSaneamento(DNOS).
SegundoconstanosítionaInternetdoDMAE4,oSPCC(cenárioexistentequando daocorrênciadacheiademaiode2024)écompostodecercade65quilômetrosdediquesde proteção,alémde23estaçõesdebombeamentodeáguaspluviais(EBAPS)oucasasde bombas(CB)epossui2698metrosdemurodeconcretoarmadoentreasavenidasMauáe CasteloBranco–oMurodaMauá–com14comportasdeproteçãocontrainundações.
ConformedadosexistentesrelativosaoestudodeviabilidadedoSPCCdePorto Alegre,osistematevesuacotadeproteçãodefinidaapartirdaenchentede1941,cotade 4,75m,acrescidadeumamargemdesegurançade1,20m(peça6718447,p7)Isso equivaleaoníveldeproteçãode6m,referênciaquelastreouoSPCC,inclusiveacotade coroamentodosistemadediquesImportanteconsiderarqueumacota6mnocaisdoPorto, nasubidadaságuasdeenchente,conduzaumalinhad’águamaiselevadaempontos àmontante,demodoqueosistemadediquesdazonanortetemcoroamentosemcotasmaiores 4
Assinado digitalmente por: Marcelo Kipper da Silva em 14/07/25, Leandro Lobato Camargo em 14/07/25, Leandro Torres em 14/07/25, Fabio Alex Beling em 14/07/25 e outro(s). Confira a autenticidade do documento em www.tce.rs.gov.br. Identificador: PRE.FE77.2360.2A1D.FC7C.62D4.

ESTADODORIOGRANDEDOSUL TRIBUNALDECONTAS
DIREÇÃODECONTROLEEFISCALIZAÇÃO SERVIÇODEAUDITORIADEPORTOALEGRE
que6m,conformesedepreendedoanteprojeto(peça6718447,p20):

EmPortoAlegreosdiques–quedarãoorigemaospôlderesprojetados–terão acotadecoroamentoentre6e7metrosesuaextensãoatingirá aproximadamente42.000metros,contando-senestetotalos2.472,80metrosda cortinadeconcretodaAvenidaMauá
(Grifonosso)
AFiguraabaixodemonstraosprincipaiselementosdoSPCCcomaconfiguraçãode 2015(representativodacondiçãoemabril/maiode2024)
Figura1–SistemadeProteçãoContraCheiasdePortoAlegre

Fonte:PlanoMunicipaldeSaneamentoBásicodoMunicípiodePortoAlegre(peça6718423,p 12).
Assinado digitalmente por: Marcelo Kipper da Silva em 14/07/25, Leandro Lobato Camargo em 14/07/25, Leandro Torres em 14/07/25, Fabio Alex Beling em 14/07/25 e outro(s). Confira a autenticidade do documento em www.tce.rs.gov.br. Identificador: PRE.FE77.2360.2A1D.FC7C.62D4.


DIREÇÃODECONTROLEEFISCALIZAÇÃO SERVIÇODEAUDITORIADEPORTOALEGRE
Afunçãodosdiques,murosecomportaséimpedir,nocasodeumacheia,a entradadeáguaprovenientedosarroioseriosparaasregiõesprotegidas,quesãodenominadas depôlderes
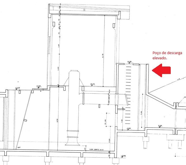
AsEstaçõesdeBombeamentodeÁguasPluviais(EBAPs),ouCasasdeBombas (CBs)comoeramchamadaspeloDEP,têmcomofunçãoreceberaságuaspluviaisdasregiões debaixaaltitude,atravésderedesdedrenagem,eencaminhá-lasparaoGuaíbaoualgum arroio,sejaporaçãodagravidade,atravésdecomportas,sejaporbombeamentoAfimde operaremtambémemcondiçõesemqueoGuaíbaeafluentesestãoelevados,verifica-se queaconcepçãodessesequipamentospreviucâmarasdedespejoherméticase pressurizadasouelevadasemcotasmaioresouiguaisde6metros(peça6779620)
AlocalizaçãodasbombasedoscomandoselétricosdasEBAPsevidenciauma premissaconceitualrelevantedoSPCCdePortoAlegre,umavezqueessescomponentesestão instaladosabaixodacotareferencialdeproteção,fixadaem6metrosTalcaracterísticaé compatívelcomalógicadosistema,cujoobjetivocentraléimpedirainundaçãodaárea protegidadacidade–especialmenteemníveisquepossamcomprometerasestruturasde bombeamentolocalizadasnointeriordessazonaresguardadaAindaqueatualmenteexistam tecnologiascomobombassubmersíveis–inexistentesouincipientesàépocadoprojeto,na décadade1970–,bemcomoapossibilidadedeelevaçãodosequipamentosparacotas superioresàdeproteção,taismedidasseriamdesnecessáriascasoosistemaoperassede acordocomaspremissasoriginalmenteadotadas
Areferênciade6metrosquebalizouoníveldeproteçãotambémmerecemaiores reflexõessobreosníveisfísicosdasestruturaseonívelfuncionaldaproteçãodoSPCC Paraosdiques,oqueincluiomurodeconcretodaMauá,oníveldeproteçãoéumabarreira físicaqueimpedeainvasãodaságuasdoGuaíbaeafluentes,sendorazoávelqueaproteção físicaefuncionalsejamequivalentes.
ParaasEBAPs,énotórioqueaoperaçãoemumacondição-limite emqueonível doGuaíbaseencontrepróximoàcotade6metrosouacima comprometeaeficiênciado bombeamento.Essalimitaçãoocorreespecialmentenasestaçõesemquehácâmarasde expurgoelevadas,nãopressurizadas,esituadasnamesmacotade6metrosNessassituações, ogradientehidráulicoentreacâmaradedescargaeocorporeceptordaságuastorna-semuito reduzido,dificultandoouimpedindooescoamento.Dessaforma,olimitefuncionaldessas EBAPséligeiramenteinferioraolimitefísicodaelevaçãodesuascâmarasdeexpurgonão pressurizadasAindaqueessacondiçãoinviabilizeaeficiênciadobombeamento,elanão deveriaimportarnoretornodaságuasdoGuaíbaaointeriordosistema.
Nasregiõesdacidadequepossuembaixaaltitudeequeestãoprotegidaspelo sistemadeproteçãocontracheias,asredesdedrenagemnãosãoconectadasdiretamenteao GuaíbaouaalgumArroioafluenteaoGuaíbaAsredesdedrenagemnessasregiõessão direcionadasparaasestaçõesdebombeamentopluvial(EBAP),querecebemaságuasda cidadeeasencaminhamparaodestinofinal(Guaíbaouafluente)
Oscondutosforçadossãoredesdedrenagemprojetadosparalevaraságuas 6

ESTADODORIOGRANDEDOSUL TRIBUNALDECONTAS
DIREÇÃODECONTROLEEFISCALIZAÇÃO SERVIÇODEAUDITORIADEPORTOALEGRE

provenientesderegiõesaltas(acimadacota9m)dacidadediretamenteparaoGuaíba,sem passarpelossistemasdasestaçõesdebombeamentopluvial(EBAP)Estescondutosforçados foramprojetadosparatransportaraságuassobpressão,deformaquemesmocomonível elevadodoGuaíbaaságuasdeveriamescoarnosentidodacidadeparaorio
Nasdécadasde60e70,épocadaconcepçãoeimplantaçãoparcialdoSPCC,o DNOSeraoórgãofederalresponsávelpelaexecuçãodasgrandesobrasdesaneamentoede recursoshídricosnopaís.ComaextinçãodoDNOS5em1990,aprefeituramunicipal,por meiodoDepartamentodeEsgotosPluviais(DEP)6,passouaserresponsávelpelocontroledo sistema,oqualconsistenoacompanhamentodasituaçãodosarroios,dosdiquesdeproteção contraascheias(incluídooMurodaMauá)edascasasdebombas7 .
Maistarde,houveaextinçãodoDEP,determinadapeloart14daLeiComplementar nº817/20178,sendo,apartirdasuapublicação9,transferidasascompetênciasrelativasàs obraseaosprojetosdeengenhariaparaaSecretariaMunicipaldeInfraestruturae MobilidadeUrbana(SMIM)easdemaisatribuições,relativasàexecuçãoeàconservaçãode esgotospluviais,paraaSecretariaMunicipaldeServiçosUrbanos(SMSURB)Atransiçãofoi regulamentadapelosDecretosMunicipaisnº19851/201710 enº19904/201711,que estabeleceramamanutençãodasunidadesorganizacionaisdosórgãosextintos,dentreeleso DEP,nasSecretariasMunicipaiscriadasaté31/03/2018
PormeiodaLeinº1250412,de24dejaneirode2019,asatribuiçõesdo DepartamentoMunicipaldeÁguaeEsgotos(DMAE)especificadasnaLeinº2.31213,de15 dedezembrode1961,foramalteradasvisandoàincorporaçãodasfunçõesdoDEP,sendoa autarquiaautorizada,mediantecondiçõesestabelecidasemconvênio,aatuartambém"na manutenção,naconservação,nacontrataçãoenaexecuçãodeobraseserviços,expansão, desenvolvimentoeoperaçãodoSistemadeEsgotosPluviais,deDrenagemedeProteçãocontra Cheias"domunicípio,bemcomoa"gerir,operar,manter,conservarerecuperarosistemaeseus componentes,inclusivecomrelaçãoatodasasfunçõeseseçõesdaDivisãodeObraseProjetos doDEP"14
Paraoexercíciodasnovasatribuições,areferidaleiautorizouaretençãoeutilização dosvaloresdatarifadeesgotocobradaemdecorrênciadousodaredepluvialparaescoamento doesgotosanitário(Tarifa3-EsgotoMisto),estabelecidapeloart.2ºdaLeiComplementarnº 206/198915,limitando-seaatuaçãodoDMAEaovalortotaldatarifadeesgotoretidaAlém disso,foiestabelecidaanecessidadederepassedevalorespeloMunicípioparaocasode contrataçãoeexecuçãodeobrasnecessáriasàexpansão,aodesenvolvimentoeàoperaçãodo SistemadeEsgotosPluviais,dedrenagemedeproteçãocontracheiasdomunicípio
AassunçãodefinitivadascompetênciasconferidasaoDEPveiocomaedição daLeiMunicipalnº12.939,de23deDezembrode202116,sendoacrescidas,aoconjunto decompetênciasdoDMAE,asatribuiçõesrelativasaosistemadeesgotospluviais,drenageme deproteçãocontraenchentesOnovodiplomatambémrevogouosdispositivosquefaziam mençãoàretençãoeàlimitaçãodautilizaçãodosvaloresprovenientesdaTarifa3-Esgoto Misto(§§1ºe2ºdoart3º,§únicodoart3º-Aeart3º-B),bemcomoretirouanecessidadede celebraçãodeconvêniosparaoestabelecimentodascondiçõesdeatuaçãodoDMAE(revogado 7
Assinado digitalmente por: Marcelo Kipper da Silva em 14/07/25, Leandro Lobato Camargo em 14/07/25, Leandro Torres em 14/07/25, Fabio Alex Beling em 14/07/25 e outro(s). Confira a autenticidade do documento em www.tce.rs.gov.br. Identificador: PRE.FE77.2360.2A1D.FC7C.62D4.

ESTADODORIOGRANDEDOSUL TRIBUNALDECONTAS
DIREÇÃODECONTROLEEFISCALIZAÇÃO SERVIÇODEAUDITORIADEPORTOALEGRE
oart.3º-C)17 .

1Disponívelem:https://prefeiturapoabr/dmlu/plano-municipal-de-saneamento-basicoConsultado em20-08-2024
2Noartigo"Chuvasevazõesdagrandeenchentede1941emPortoAlegre/RS",Silveira(2020) anotaqueonívelmáximodaenchentede1941apresentaumasériededúvidas,sendoquehá registros de máximos variando entre 4,62m a 4,76m.Disponível em: http://hdlhandlenet/10183/217187Acessoem:07/04/2025
3Silveira(2020,p13)compilaascotasmáximasregistradasparaoGuaíbaentreosanosde1899 e2015Disponívelem:http://hdlhandlenet/10183/217187ACessoem:07/04/2025
4Disponívelem:https://prefeiturapoabr/dmae/informacoes-esgoto-pluvialConsultadoem15-082024
5ExtintopelaLeiFederaln8029/1990(art1º,I,alínea'c')
6OórgãofoiconcebidodentrodaestruturadaadministraçãocentralizadadoMunicípio (Executivo),comsubordinaçãodiretaaoPrefeitoMunicipal,consoantedispostonoart1ºdaLei Municipaln3780/1973Disponívelem:http://leismunicipais/jcngu,consulta07/11/2024
7Vide histórico relatado no sítio da Prefeitura Municipal Disponível em: https://www2portoalegrersgovbr/dep/defaultphp?psecao=63,consultaem07/11/2024
8Disponívelem:http://leismunicipais/mscdv,consultaem07/11/2024Anteriormente,aLei Complementarn810/2017jáhaviatransferidoaoSecretárioMunicipaltitulardaSMIMas atribuiçõesdedireçãosuperiordoDEPDisponívelem:http://leismunicipais/gvfon,consultaem 07/11/2024
9PublicaçãonoDOPAem31/08/2017
10Disponívelem:http://leismunicipais/lfvsp,consultaem07/11/2024
11Disponívelem:http://leismunicipais/pmetv,consultaem07/11/2024
12Disponívelem:http://leismunicipais/quwpe,consultaem07/11/2024
13Disponívelem:http://leismunicipais/ofheu,consultaem07/11/2024
14ALeiComplementarnº897/2021tambémdeterminouatransferênciaaoDMAEdas competênciasrelativasàformulação,coordenação,articulaçãoeexecuçãodeprojetosdeobras públicasmunicipaisdeampliaçãodasestruturasexistentesdomanejodeáguaspluviaisurbanas econtroledecheias,bemcomoasuamanutençãoeconservação,nostermosdaLeinº 12504/2019Disponívelem:http://leismunicipais/hiyvb
15Disponívelem:http://leismunicipais/mcaug,consultaem07/11/2024Posteriormente,pormeio daLeiComplementarn914/2021,odispositivofoirevogado,sendoasdefiniçõessobreatarifa deesgotomistoestabelecidasnoart2º-A
16Disponívelem:http://leismunicipais/suezk,consultaem07/11/2024
17Nomesmosentido,aLeiComplementarnº914/2021revogouoart2º,incluindooart2º-Ana LeiComplementarnº206/1989,queestabeleceuapossibilidadedaaplicaçãodaTarifade Esgoto(Tarifa3-EsgotoMista)nocumprimentodascompetênciasdoDMAE(art3ºdaLeinº 2312/1961),semanecessidadedecelebraçãodeconvênio
3EVENTOCLIMÁTICOEXTREMODEABRIL/MAIODE2024
Entreofinaldomêsdeabrileiníciodomêsdemaiode2024,oRioGrandedoSul enfrentouumeventometeorológicoextremoDeacordocomumestudodoInstitutoNacionalde PesquisasEspaciais1-INPE,esteevento,ocorridoentreosdias27deabrile2demaio,foio piorjáenfrentadopeloestadodoRioGrandedoSul
Segundoesseinstituto,oeventofoiresultadodeumacombinaçãodesistemas meteorológicosatuantesemdiferentesescalasEmmaiorescala,aatuaçãodoElNiñocontribui paraaintensificaçãodofluxobaroclíniconatroposferamédiae,geralmente,favoreceepisódios deprecipitaçõesacimadamédianoSuldoBrasilAlémdisso,oOceanoAtlânticoTropical tambémencontrava-semaisaquecidoemrelaçãoasuamédiaclimatológica,oqueelevao conteúdodeumidadedisponível.
Naescalasinótica2,umbloqueioatmosféricoestabelecidoemlatitudesmédiasno 8
digitalmente por: Marcelo Kipper da Silva em 14/07/25, Leandro Lobato Camargo em 14/07/25, Leandro Torres em 14/07/25, Fabio Alex Beling em 14/07/25 e outro(s). Confira a autenticidade do documento em www.tce.rs.gov.br. Identificador: PRE.FE77.2360.2A1D.FC7C.62D4.

ESTADODORIOGRANDEDOSUL TRIBUNALDECONTAS
DIREÇÃODECONTROLEEFISCALIZAÇÃO SERVIÇODEAUDITORIADEPORTOALEGRE

OceanoPacíficocolaborouparaamanutençãodeumacondiçãodeelevadainstabilidade atmosféricasobreoRioGrandedoSulAolongodoperíododechuvasintensasprevaleceuuma circulaçãointensaassociadaajatosdebaixosníveiscomtransportedearquenteeúmidoda regiãoamazônicadirecionadoprincipalmenteparaoestadodoRioGrandedoSul
Emmédiosníveis,apresençadeumcavadodeondalongafavoreciaaformaçãode sistemasdebaixapressãonasuperfície
Porfim,oavançoeainteraçãodefrentesfriascomessamassadearmaisquentee úmidocontribuíramparaepisódiosdetempestadesseveras,comregistrosdevendavais, tornadosedequedadegranizodetamanhosignificativo(entre4cme6cm)emvárias localidadesdoRioGrandedoSul,comoemVenâncioAires/RS,emBarrosCassal/RS,em Espumoso/RS,emSantaCruzdoSul/RS,emJacuizinho/RS,emPassosdeTorres/RSeem PassodoSobrado/RS
Segundoartigocientíficoescritoporpesquisadoresdeinstituiçõesdeensinoe pesquisasituadasnoRioGrandedoSul3,odesastrehidrológicoqueocorreunoRSfoicausado poreventosdechuvamuitointensoseprolongadosqueatingiramumavastaregiãoquase simultaneamente
Nesteartigoforamidentificadososlocaiscomosmaioresvolumesdechuva ocorridosemperíodosdetempodeterminados.Amaiorquantidadedechuvaem24horasfoi registradanomunicípiodeSegredo,totalizando386,2mm4,entreas18hdodia29deabrileas 18hdodia30deabril
Omaiorvolumedechuvaem48horasfoiregistradopelopluviômetrolocalizado próximoàbarragemdaPCHRastrodeAuto,registrando575,4mm,ocorridosdas6hdodia30 deabrilàs6hdodia2demaioNomesmolocalocorreuamáximaprecipitaçãoem72horas, cujovolumefoide729,6mm,dodia29deabril,às14h,atéodia2demaio,às14h
Esteúltimopluviômetroregistrouomaiorvolumeacumuladodechuvaem14dias, com1008,2mmentre29deabrile12demaioIstoequivaleaumvolumedechuvadepouco maisdemillitrosdeáguaparacadametroquadradodeterreno
SegundooInstitutoNacionaldeMeteorologia5–INMET,foramobservadosos seguintesvolumestotaisdechuvaaolongodomêsdemaiode2024,conformetabelaabaixo:
Município Totaldechuvaemmaiode2024(mm)Médiaesperadaparamaio(mm) CaxiasdoSul
Emfunçãodestesvolumesextraordináriosdechuva,diversascidadesdoestado, 9
Assinado digitalmente por: Marcelo Kipper da Silva em 14/07/25, Leandro Lobato Camargo em 14/07/25, Leandro Torres em 14/07/25, Fabio Alex Beling em 14/07/25 e outro(s). Confira a autenticidade do documento em www.tce.rs.gov.br. Identificador: PRE.FE77.2360.2A1D.FC7C.62D4.

ESTADODORIOGRANDEDOSUL TRIBUNALDECONTAS
DIREÇÃODECONTROLEEFISCALIZAÇÃO SERVIÇODEAUDITORIADEPORTOALEGRE

inclusiveacapital,PortoAlegre,sofreraminundaçõesOcomparativoabaixoentreasimagens desatélitedaregiãometropolitanadacapital,comfoconoDeltadoJacuí,dedatasanteselogo depoisdasprecipitações,dãoadimensãodoevento.
Quadro1–Imagensdesatélitedeanteselogodepoisdasprecipitações

Fonte:(peça6718430,p15)
Nolivro"AEnchentede24"6,osautorestraçaramumalinhadotempodosprincipais eventosdacheianacapitaldoestado: 10
a autenticidade do documento em www.tce.rs.gov.br. Identificador: PRE.FE77.2360.2A1D.FC7C.62D4.

ESTADODORIOGRANDEDOSUL TRIBUNALDECONTAS DIREÇÃODECONTROLEEFISCALIZAÇÃO SERVIÇODEAUDITORIADEPORTOALEGRE

1°demaio:oGuaíbaestáemelevaçãoPassade1,61m,navéspera,paramaisde 2meprovocaofechamentopreventivodosbareserestaurantesdaorlaAofinaldanoitesupera acotadealerta(2,50m)echegaa2,70m.
2demaio:cotadeinundaçãode3metrosésuperada,eoCaisMauáécobertoA cheiaavançasobreasilhas,eosterminaisMercado,RodoviáriaeSãoPedrodaTrensurbsão fechadosIntersuspendeatividadesnoCentrodeTreinamento(CT),emoradoresdaHípica deixamsuascasasNaZonaNorte,bueiroscomeçamavazar
3demaio:réguaquemedeoníveldolagonoCaisMauáélevadapelacorrenteza duranteamadrugada(outraseriaposteriormenteinstaladanoGasômetro)Aspontessobreo Guaíbasãobloqueadas,eumacasadebombasdaAvenidaMauáentraempaneOCTdo Grêmio,aEstaçãoRodoviáriaeoMercadoPúblicosãoinundados.Prefeituraorientaa evacuaroCentro,eamaiorpartedasentradasesaídasdacapitalébloqueadaCeasae AeroportoSalgadoFilhosuspendemoperações.Ànoite,olagosuperaos4,76mde1941e configuraapiorcheiajáregistrada.
4demaio:mediçãoultrapassaos5metros,emaisde500moradoresdoHumaitáse refugiamnaArenadoGrêmio.BairrosdaszonasNorte,SuleCentrotêmdiversospontos afetadosNoSarandi,diquesextravasamefamíliassãoremovidasàspressasAUsinado GasômetrovirapontodedesembarquedemoradoresresgatadosPacientesdohospitalMãede Deusprecisamsertransferidos
5demaio:cheiaatingecotarecordede5,35mnamadrugada,valorqueseria posteriormentecorrigidopara5,37m.PontosdosbairrosMeninoDeus,PraiadeBelas,eos estádiosdoIntereGrêmiosãoinundadosMoradoresdoCristalprecisamserresgatadospor voluntários,ecercade70%dacidadeenfrentafaltadeabastecimentodeágua
Outrafontedetalhandoacronologiadacheiaencontra-senoreportejornalístico datadode10/05/2024(peça6779636)7
AduraçãodosníveiselevadosdoGuaíbafoioutracaracterísticadoeventoque agravouosdanossentidospelapopulaçãoConformeseverificanográficoabaixo,oGuaíba permaneceuaproximadamente1mêsinteiroacimadacotadeinundação(cotaacimada elevação3,6mnaUsinadoGasômetro)8
–NíveisdoLagoGuaíbanoreferencialdocaisdoPortoMauá

ESTADODORIOGRANDEDOSUL TRIBUNALDECONTAS
DIREÇÃODECONTROLEEFISCALIZAÇÃO SERVIÇODEAUDITORIADEPORTOALEGRE


Fonte:(peça6718430,p14)
OSPCCdePortoAlegre,concebidoeconstruídoemdécadaspassadas,não conseguiuevitarqueacheiade2024atingisseacidadedeformacontundentee abrangente.Destaca-sequehaviaaexpectativadequeomurodaMauá,integrantedosistema deproteçãodecheias,conferisseproteçãoatéonívelde6mdoGuaíba(aproximadamente3 metrosacimadoníveldoCaisMauá)Nãoobstante,acidadefoiinundadamesmocomo Guaíbanãosuperandoos6m,oqueérepresentativodaperplexidade,surpresaedrama causadosnapopulaçãodacapitalduranteocatastróficoeventoenquantoaságuasavançavam empraticamentetodaaregiãobaixadoterritóriodePortoAlegre
Noponto,desdejáficaclaroquemesmooeventoclimáticosendoextremoe inevitável,comelevadasprecipitaçõeseníveisdeáguasemprecedentesregistradosemPorto Alegre,aelevaçãodoGuaíbanãosuperouacotareferencialprojetadadoSPCCjána décadade1970,quandoasmudançasclimáticassequerestavamnaagendamundial.Logo, quandoseanalisaofuncionamentoeasfalhasdoSPCC,afasta-sedeplanoaexcludente deresponsabilidadeemrazãodaforçamaiorpelaexcepcionalidadedoeventoclimático de2024.Afinal,oGuaíbanãosuperouareferênciadeprojetode1970.Pior:asfalhasde estanqueidadedoSPCCocorreramemcotasinferioresàhistóricacheiade1941,aindana manhãdodia03/05/2024Emais:passados50anosdesdeaconcepçãodoSPCCediantedo cenárioatual,marcadopormudançasclimáticasepelamaiorfrequênciadeeventosextremos, seriaesperadoqueesseníveldeproteçãofosse,nomínimo,mantidoouampliadodesdeentão oquenãoocorreu
Alémdaregiãocentral,azonanortedacapitaltambémfoiseveramenteimpactada comafalhadosistemadediques,osquaisouromperamoutiveramsuacotadecoroamento superadapelaságuas,revelandogravesfragilidadesnainfraestruturalocal,aexemplodo ocorridonoabastecimentodeáguadePortoAlegre,enainfraestruturaregional,aexemploda interdiçãodoaeroportoSalgadoFilho,oqualficouaproximadamente6mesesforadeoperação.

ESTADODORIOGRANDEDOSUL TRIBUNALDECONTAS
DIREÇÃODECONTROLEEFISCALIZAÇÃO SERVIÇODEAUDITORIADEPORTOALEGRE

EstimativasdaPrefeituradePortoAlegrerevelamque39422edificaçõesforam impactadascomacheia;11,8%dapopulaçãodacapitalfoiafetada,oequivalentea160mil pessoas9,conformedivulgadonoportaleletrônicocriadoparaconsolidarosimpactosdoevento 10Alémdosdanosàsmoradias,houveumimpactomuitoseveroaosetorcomercial,industriale deserviços11,quealémdasperdasdecorrentesdoalagamento,ficaramsempoderoperarpor pelomenos1mês,oque,segundooinformadopelaSecretariaMunicipaldeDesenvolvimento EconômicoeTurismo(SMDET)12,equivaleriaaR$1,5bilhões/mêsemperdas
AindaconsoantedocumentoelaboradopelaPrefeituraMunicipal(peça6718424), apresentadoem31/05/202413,emeventorealizadonoInstitutoLing,ocustopúblicoda destruiçãofoiestimadoentreR$6eR$8bilhões,sendocompostopeloimpactoeconômicofinanceiroadvindodareduçãodereceitasdetributos,taxasetarifas,bemcomopelasdespesas diretamenterelacionadasaoenfrentamentodacrise(manutençãoegestãodeabrigos,causa animaledemaiscontrataçõesnecessárias)epelasdespesasnecessáriasparaareconstrução dainfraestruturadacidade(incluídasobrasdereconstruçãodedrenagemesegurançahídrica).
Conformeolivro"AEnchentede24"14,osnúmerosdosimpactosdascheiasna capitalforamassimretratados:
Principaisimpactosnacapital:
5mortos
160210pessoasafetadas
39422edificaçõesilhadas
Bairroscommaispessoasafetadas: Sarandi26042moradores
MeninoDeus17.522
Humaitá12617
CidadeBaixa9.338
Floresta7522
PontaGrossa6631
CentroHistórico6558
SãoGeraldo6546
Arquipélago6411
Empresasprejudicadas: 45.970
29048deserviços 11.320docomércio
5496indústrias 106outras
Infraestruturamunicipaldanificada: Águaeesgoto
19EstaçõesdeBombeamentodeÁguaPluvial(Ebap)
5EstaçõesdeBombeamentodeÁguaBruta(Ebab)

ESTADODORIOGRANDEDOSUL TRIBUNALDECONTAS
DIREÇÃODECONTROLEEFISCALIZAÇÃO SERVIÇODEAUDITORIADEPORTOALEGRE
4EstaçõesdeTratamentodeEsgoto(ETE)
Equipamentospúblicos
186praças
12parqueselargos
1.081quilômetrosdevias
Educação
100escolasparticulares
44colégiosestaduais
16colégiosmunicipais
Saúde
22unidadesdesaúde
2hospitais
3farmáciaspopulares
4clínicasdafamília

Alémdoscustospúblicosrelativosaoenfrentamentodacriseevoltadosà reconstruçãoerecuperaçãoestruturaldacidadeedopróprioSPCC,asfalhasnosistemade proteção,decorrentesdaomissãodediversosagentespúblicos,tambémderamcausa àpropositurademilharesdeaçõesindividuais15noPoderJudiciáriodoEstado16,postulandoa condenaçãodomunicípioaopagamentodeindenizaçõespordanosmoraisemateriais,bem comoaproposituradeAçãoCivilPúblicapeloMinistérioPúblicoEstadual(peça6718425,p.5a 65),postulando,alémdacondenaçãodedanosmateriaisemoraisindividuais,acondenaçãoa títulodedanosmoraiscoletivoscausadosàpopulação,novalordeR$50000000,00(cinquenta milhõesdereais).
1Disponívelem:https://wwwgovbr/inpe/pt-br/assuntos/ultimas-noticias/relatorio-do-inpe-explicaevento-meteorologico-que-causou-a-tragedia-no-rs/chuvas-rio-grande-do-sulpdf/view Consultadoem10-12-2024
2Emmeteorologia,aescalasinótica(tambémchamadadegrandeescalaouescalaciclônica) refere-seasistemasmeteorológicosqueabrangemcentenasamilharesdequilômetroseduram diasasemanas
3COLLISCHONN,Walter;FAN,FernandoMainardi;POSSANTTI,Iporã;DORNELLES,Fernando; PAIVA,Rodrigo;SAMPAIO,Matheus;MICHEL,Gean;MAGALHÃESFILHO,FernandoJC; MORAES,SofiaRoyer;MARCUZZO,FranciscoFernandoNoronha;MICHEL,RossanoDalla Lana;BESKOW,TamaraLeitzkeCaldeira;BESKOW,Samuel;FERNANDES,Elisa;LAIPELT, Leonardo;RUFFO,Anderson;KOBIYAMA,Masato;COLLORES,GilbertoLoguercio;BUFFON, Franco;DUARTE,Emanuel;LIMA,Stefany;MEIRELLES,FernandoSC;ALLASIA,Daniel 2025(aceito)TheexceptionalhydrologicaldisasterofApril-May2024insouthernBrazilRevista BrasileiradeRecursosHídricos–RBRH,ISSN1415-4366V1,2025
4Ummmdechuvaequivaleaumlitrodeáguapormetroquadradodeterreno
5Disponívelem:https://portalinmetgovbr/uploads/notastecnicas/EventosExtremos-Brasil-Maio2024pdfConsultadoem10-12-2024
6Aenchentede24AndréMalinoski,MarceloGonzattoeRodrigoLopes-PortoAlegre: BesouroBox,2024176p;16x23cm
7Disponívelem:https://gauchazhclicrbscombr/geral/noticia/2024/05/em-grafico-veja-como-foi-oavanco-do-guaiba-sobre-porto-alegre-clw0tuxpj00lb011hvcc9dsddhtmlAcessoem:10/06/2025 8Éimportanteconsiderarque,adependerdolocaldemonitoramentodoníveldoGuaíba,acota máximaobservadapodevariar,sejapelousodereferenciaisdistintos,sejapelascondições hidrodinâmicasdocursod'água,conformedetalhaoestudodoSGB(2024),"Avaliaçãoindireta donívelmáximodaságuasdodeltadoRioJacuínaregiãocentraldePortoAlegre,entreas estaçõesCaisMauáC6eUsinadoGasômetro,nagrandecheiademaiode2024"Disponível em:https://rigeosgbgovbr/handle/doc/24911Acessoem:05/03/2025
Assinado digitalmente por: Marcelo Kipper da Silva em 14/07/25, Leandro Lobato Camargo em 14/07/25, Leandro Torres em 14/07/25, Fabio Alex Beling em 14/07/25 e outro(s). Confira a autenticidade do documento em www.tce.rs.gov.br. Identificador: PRE.FE77.2360.2A1D.FC7C.62D4.

ESTADODORIOGRANDEDOSUL TRIBUNALDECONTAS
DIREÇÃODECONTROLEEFISCALIZAÇÃO SERVIÇODEAUDITORIADEPORTOALEGRE

9Disponívelem:https://gauchazhclicrbscombr/porto-alegre/noticia/2024/05/enchente-atingiu-46bairros-e-afetou-diretamente-157-mil-pessoas-em-porto-alegre-aponta-mapeamento-daprefeitura-clw6vhmvo0047014e6mmiriamhtmlAcessoem:10/02/2025
10Disponívelem:https://prefeiturapoabr/inundacoesAcessoem:11/02/2024
11SegundooreportadopelaPrefeitura:"[]Foramimpactados,diretamente,45970CNPJs,[]O segmentodeserviçofoiomaisafetado,com29048estabelecimentosAindústriateve5496 empresasimpactadaseocomércio,11320Agriculturaepecuáriativeram106locaisatingidos diretamenteOsnúmerosrepresentam17%dasempresasdePortoAlegree35%daforçade trabalho da cidade, cerca de 310 mil trabalhadores formais" Disponível em: https://prefeiturapoabr/smdet/noticias/mais-de-45-mil-atividades-economicas-foram-impactadaspela-enchente-na-capitalAcessoem:10/02/2025
12Disponível em: https://prefeiturapoabr/smdet/noticias/mais-de-45-mil-atividades-economicasforam-impactadas-pela-enchente-na-capitalAcessoem:10/02/2025
13Vide notícias veiculadas sites da Prefeitura e do portal gaúcha ZH: https://prefeiturapoabr/gp/noticias/plano-porto-alegre-forte-e-plataforma-reconstruir-saoapresentadosehttps://gauchazhclicrbscombr/porto-alegre/noticia/2024/05/prefeitura-da-capitalestima-custo-publico-de-ate-r-8-bilhoes-para-recuperar-destruicao-da-cheiaclwuy9ohm00a401465ptryd3dhtmlConsultadoem11/03/2025
14Aenchentede24AndréMalinoski,MarceloGonzattoeRodrigoLopes-PortoAlegre: BesouroBox,2024176p;16x23cm
15Vide notícia veiculada em 30/04/2025 Disponível em: https://wwwcorreiodopovocombr/not%C3%ADcias/cidades/n%C3%BAcleo-enchentes-dojudici%C3%A1rio-ga%C3%BAcho-completa-seis-meses-de-atua%C3%A7%C3%A3o-11604103 16Em20/03/2025,aEquipedeAuditoriaencaminhousolicitaçãoaoTribunaldeJustiçapara obtençãodemaioresinformaçõesarespeitodoquantitativodeaçõesajuizadascontrao municípioerespectivosvaloresenvolvidosNoentanto,oórgãonãoapresentounenhuma respostaAtualmente,asaçõesindividuaisencontram-sesuspensasVidenotíciaveiculadaem 09/04/2025,disponívelem:
https://wwwcorreiodopovocombr/not%C3%ADcias/cidades/justi%C3%A7a-suspendea%C3%A7%C3%B5es-individuais-contra-o-munic%C3%ADpio-de-porto-alegre-relacionadas%C3%A0-enchente-de-maio-de-2024-11597141
4ESTUDOSEDOCUMENTOSREFERENCIAISPARAAAUDITORIA
AEquipedeAuditoriaobteveacesso,duranteocursodaauditoria,aumasériede documentoseestudosqueforamproduzidosparaaconstruçãodoSPCCeoutroselaborados paraodiagnósticodesituaçõesqueocorreramduranteacheiademaiode2024
Emvistadarelevânciadestesdocumentos,destacam-senestaseçãoalgunsdestes subsídios,osquaisforamabaseparaaavaliaçãodoeventocatastróficoem2024
Noanode1968oDNOSconcluiuodenominadoEstudodeViabilidadeTécnicoEconômicadasObrasdeDefesadePortoAlegre,CanoaseSãoLeopoldo,Contra Inundações(peça6718446)(peça6718447)
Esteestudotevecomoobjetivodefinirumaestratégiadeproteçãodascidadesda regiãometropolitanadePortoAlegrequevinhamsofrendocomcheiashistóricas,emespeciala cheiade1941,quefoiamaiordetodasatéentãoForamcompiladoseanalisadososdados linigráficos1disponíveisapartirdoanode1899paraformarumasérieestatísticadeníveis máximosdosrios.Tambémforamrealizadoslevantamentosdecampoparareconstituiraslinhas deinundaçãodosanosde1941e1967
Apartirdestesdadosforamestudadasalternativasdeprojetos,comvistasaproteger ascidadesdosefeitosdainundaçãodoGuaíbaedemaisriosAsoluçãoadotadaparaadefesa 15
Assinado digitalmente por: Marcelo Kipper da Silva em 14/07/25, Leandro Lobato Camargo em 14/07/25, Leandro Torres em 14/07/25, Fabio Alex Beling em 14/07/25 e outro(s). Confira a autenticidade do documento em www.tce.rs.gov.br. Identificador: PRE.FE77.2360.2A1D.FC7C.62D4.

ESTADODORIOGRANDEDOSUL TRIBUNALDECONTAS
DIREÇÃODECONTROLEEFISCALIZAÇÃO SERVIÇODEAUDITORIADEPORTOALEGRE

dasregiõesinundáveisfoiaformaçãodeumasériedepôlderes2,medianteaconstruçãodeum sistemadediques3,comcotasdecoroamentoemtornode6e7metroseaconstruçãode casasdebombasEssedocumento,portanto,éessencialparaacompreensãodaorigemdo atualSPCCemPortoAlegre.
Maisrecenteefundamentalparaapresenteauditoria,destacam-sequatroestudos realizadosporengenheirosdoDMAEsobreainundaçãode2024:
AnáliseInundaçãoSarandiparaProcessosRev1(peça5980863);
AnáliseInundaçãoZNeCentroparaProcessosRev1(peça6718448);
AnálisepreliminarZNpeloMDT(peça6718449);
RelatórioparaDCSobreDiquesSarandi(peça6718450)
1)Oestudodenominado“AnáliseInundaçãoSarandiparaProcessosRev1” possuiumaseçãoinicial,ondeéapresentandaumadescriçãogeraldoSPCCnaregiãodo SarandiNestaseçãosãoreferidososdiquesquecompõemosistemadeproteçãonestebairroe ascasasdebombasexistentesnaregiãoTambéméfeitomençãoaoestudorealizadopelo DNOSem1968quedeuorigemaosistemadeproteçãocontracheias.
Posteriormente,éfeitaumaanálisequantoaocomportamentodosistemade proteçãonoeventoextremodemaiode2024.Sãoreferidososvolumesextremosde precipitaçãoocorridosnoRioGrandedoSuleascotasextremasocorridasnosriosquechegam àregiãometropolitanaPorfimsãonarradasasfalhasocorridasnosdiquesdestaregiãoda cidade.
2)Oestudodenominado“AnáliseInundaçãoZNeCentroparaProcessosRev1” possuiumaseçãoinicial,ondeéapresentadaumadescriçãogeraldoSPCCnaZonaNorte, CentroeCidadeBaixaNestaseçãosãoreferidososdiquesquecompõemosistemade proteçãonestesbairros,ascasasdebombasexistenteseomurodaMauá.Tambéméfeito mençãoaoestudorealizadopeloDNOSem1968quedeuorigemaosistemadeproteçãocontra cheias
Emseguida,éfeitaumaanálisequantoaocomportamentodosistemadeproteção noeventoextremodemaiode2024Sãoreferidososvolumesextremosdeprecipitação ocorridosnoRioGrandedoSuleascotasextremasocorridasnosriosquechegamàregião metropolitana
Posteriormente,sãodetalhadasascincoprincipaisformasdeentradadaságuas nasregiõesprotegidasdacidade:
Aprimeiraformarefere-seapontosdedeficiênciadosistemadediques, incluindoodiquedoArroioAreia,viadutosdaBR-290eUsinadoGasômetro
Asegundaformadeentradadeáguaparadentrodacidadefoidecorrentede deficiênciasnosistemadecomportas4,emespecialodenominadoportão 14.
Aterceiraformadeentradadeáguaparadentrodosistemadeproteçãosedeu atravésdetampasdoscondutosforçados5
Aquartaformadeentradadeáguasedeuatravésderedesque,apesarde localizadasemáreaprotegidapelosistemadeproteção,conectam-se diretamenteaoArroioDilúvio,causandoextravasamentoporpoçosdevisita 16

ESTADODORIOGRANDEDOSUL TRIBUNALDECONTAS
DIREÇÃODECONTROLEEFISCALIZAÇÃO SERVIÇODEAUDITORIADEPORTOALEGRE

ebocasdelobo6àmedidaqueoníveldoGuaíbarepresouoDilúvio. Porfim,aquintaformadeentradadeáguasedeuatravésdealgumas estaçõesdebombeamentodeáguaspluviaiseestaçõesdebombeamento deáguabruta
3)Oestudodenominado“AnálisepreliminarZNpeloMDT"fazumaanáliseda inundaçãocausadaporextravasamentosnosdiquesdazonanortedacidadeutilizando,imagens desatéliteobtidasduranteacheiaealgumasfotostomadasnoslocaisNestasimagensé possívelidentificarlocaisondeaságuasextravasaram,passandosobretrechosdosdiquese rodoviasÉfeitaumaanálisedostrechosquesofreramextravasamento,comparandocomum modelodigitaldoterreno7,mostrandoqueessestrechosestavamcomcotasinferioresàscotas estabelecidasnoestudodoDNOS
4)Oestudodenominado“RelatórioparaDCSobreDiquesSarandi”tratadas intervençõesnecessáriasparaarecuperaçãodafuncionalidadeedasegurançanosistemade diquesnobairroSarandi,nazonanortedePortoAlegre
Oestudopossuiumaseçãoinicial,ondeéapresentadooestudoelaboradopelo DNOSem1968eemseguidafazumadescriçãogeraldoSistemadeProteçãoContraCheiasna regiãodoSarandiNestaseçãosãoreferidososdiquesquecompõemosistemadeproteção nestebairroeascasasdebombasexistentesnaregião
Após,éfeitoumrelatodocomportamentodosistemadeproteçãonoeventoextremo demaiode2024edasfalhasocorridasnosistemaSãoreferidososvolumesextremosde precipitaçãoocorridosnoRioGrandedoSuleascotasextremasocorridasnosriosquechegam àregiãometropolitana
Porfim,foirealizadoumrelatodasaçõesemergenciaisdecurtoprazoparaa recomposiçãodascondiçõesdesegurançadosistemadediquesdobairroSarandi
ODMAEtambémdisponibilizouparaaEquipedeAuditoriaumlaudotécnicode avaliaçãoestruturaldacomportanúmero14doSPCC,elaboradoporumaempresa contratada(peça6718451).Tendoemvistaafalhadestacomportaduranteoeventodecheia, quepermitiuaentradadegrandesvolumesdeáguanacidade,foicontratadoestelaudopara quehouvesseumaavaliaçãodocomportamentoestruturaldareferidacomportaedascondições deinstalaçãodamesma.Aconclusãodolaudofoinosentidodequeacomportanãotinhasido corretamentedimensionadaparasuportarosesforçosdeumacheiaequeafixaçãonaestrutura deconcretoeradeficiente
AelaboraçãodetodosestesestudosporpartedoDMAEfoiimportante,poispermitiu aelucidaçãodasprincipaiscausasquelevaramàinundaçãodacidadeduranteoeventoextremo decheiaocorridoemmaiode2024IstomostraqueoDMAE,apósaocorrênciadacheia, buscoudiagnosticarascausaseprocurarsoluçõesparaasfalhasdosistemadeproteção.
Cita-setambémoRelatórioFinaldoProgramadoGovernoHolandêsdeRedução deRiscodeDesastreseSuporteaSurtos(DRRS), (peça6718430)datadodeagostode 2024,produzidoapóspedidodeajudadoDMAE,afimdeavaliarasenchentes,reavaliaro SPCCeaconselharsobremedidasparamelhoraraproteçãodacidade.

ESTADODORIOGRANDEDOSUL TRIBUNALDECONTAS
DIREÇÃODECONTROLEEFISCALIZAÇÃO SERVIÇODEAUDITORIADEPORTOALEGRE

Adisponibilizaçãodestesdocumentosfoiválidoparaarealizaçãodestaauditoria, sendoqueaEquipelançoumãodessesestudosparadocumentarasfalhasocorridasepara determinararesponsabilizaçãodosagentespúblicos
OutrodocumentoconsultadoparaaavaliaçãodoSPCCdePortoAlegrefoioPlano MunicipaldeSaneamentoBásico(PMSB)dePortoAlegrede2015,documentoquetratao saneamentodacidadedeformaintegrada,sendoadrenagemumadasdimensões,aoladodo abastecimentodeágua,tratamentodeesgoto,resíduossólidoselimpezaurbana(peça 6718423),(peça6718431)e(peça6718452).
Tambémpertinenteàauditoria,cabereferiroCadernodeEncargosdo DepartamentodeEsgotosPluviais(DEP)(peça6718453),instituídopeloDecretonº14786, de30dedezembrode2004,oqualseguevigenteemrazãodaausênciadeoutrodocumento maisatualizado,nostermosdoart.3ºdaLein.12.939,de23dedezembrode2021(Leique incorporouoDEPaoDMAE)
Porfim,relacionam-seosseguintestrabalhosproduzidosnoâmbitodoTCE-RSe queforamfontedeinformaçãoparaaconstruçãodopresenterelatório:
InspeçãoEspecial7015-0200/17-0-avaliou,noanode2016/2017,aoperação econservaçãodascasasdebombasdosistemadeproteçãodecheiasdePorto Alegre,aoladodeumasériedeoutroscontratosenvolvendoamanutençãoe conservadadrenagempluvialdacapitalsobaentãoresponsabilidadedoDEP Aauditoriaentãorealizada,quecontoucomaidainloconascasasdebombas, encontrouumasituaçãobastanteprecáriademanutençãoestruturale operacionaldessesequipamentos
InspeçãoEspecial363-0200/19-4-constatouaqualidadedecrescenteda eficiênciaoperacionaldoDMAEnotratamento,distribuiçãoecoletadeáguae esgotoavaliouaatividadedoDMAEentreosanosde2017-2021Emparaleloà depreciaçãooperacional,constatou-seareduçãodoquadrodepessoalda autarquia,aingerênciaindevidadaadministraçãocentralizadanaautonomia administrativaefinanceiradoDMAEeoimpulsodagestãonosentidoda concessãodosserviçosdeáguaeesgotoDestaca-sequeapartirde2019o DMAEpassouaseroenteresponsávelpelaoperaçãoemanutençãodosistema deproteçãodecheiasdePortoAlegre
1Dadoslinigráficossãoosdadosregistradoscontinuamenteouporamostragem,davariaçãodos níveisdeágua
2Pôlderoupólderéumaporçãodeterrenosbaixos,planosealagáveisquesãoprotegidos continuamentedealagamentospormeiodediques
3Diqueéumabarragemfeitademateriaisdiversos(pedra,terra,areia,madeira,alvenaria, concretoetc),paradesviarouconterainvasãodaáguadomarouderio
4Comportaéumaportamóvelqueretémoulibertaaáguadeumarepresa,barragem,diqueou canal
5Condutossobpressãooucondutosforçadossãoascanalizaçõesondeolíquidoescoasobuma pressãosuperioràatmosférica
6Poçosdevisitasãocaixasdeinspeçãodaredepluvialebocasdelobosãoestruturasde captaçãodaságuaspluviais
7ModelodigitaldoterrenoéumarepresentaçãomatemáticadeumapartedasuperfíciedaTerra considerandosuasaltitudes,apresentandoascotasdoterreno,dosolo,semconsideraras construções,árvoresedemaisobjetosacimadoníveldoterreno
Assinado digitalmente por: Marcelo Kipper da Silva em 14/07/25, Leandro Lobato Camargo em 14/07/25, Leandro Torres em 14/07/25, Fabio Alex Beling em 14/07/25 e outro(s). Confira a autenticidade do documento em www.tce.rs.gov.br. Identificador: PRE.FE77.2360.2A1D.FC7C.62D4.

ESTADODORIOGRANDEDOSUL TRIBUNALDECONTAS DIREÇÃODECONTROLEEFISCALIZAÇÃO SERVIÇODEAUDITORIADEPORTOALEGRE
5AUDITORIADOTCE-RS
5.1ConcepçãodoSistemadeProteçãoContraCheias

5.1.1FalhasdosDiques
Situaçãoencontradapelaequipedeauditoria
AregiãonortedomunicípiodePortoAlegrepossuiumasériedediquesquefazem partedosistemadeproteçãocontracheias.Umdiqueéumaconstrução,emformadebarragem, destinadaarepresarouconteroavançodeáguasOsdiquesdosistemadeproteçãocontra cheiasdePortoAlegreforamconstruídoscomterra(argila)
ConformeoPlanoMunicipaldeSaneamentoBásicodoMunicípiodePortoAlegreVolumeI(peça6718454,p3),osseguintesdiquesestãolocalizadosnaregiãonortedo município:
DiqueAutoestrada,diqueexterno,executadocomargilaConstituídodapista daBR290,desdesuaconfluênciacomaAv.AssisBrasilatéaPontedo Guaíba.PôlderdrenadopelasCBsVilaFarrapos5e6.Ligações:arroiosPasso dasPedrasedaAreia
DiqueSantoAgostinho(oudaFiergs),diqueinterno,executadocom argilaAcompanhaaVilaSantoAgostinhoatéaAssisBrasil,daíseguindoesta avenidaIncompleto,semestaçõesdebombeamento DiqueSarandi,diqueinterno,executadocomargilaAcompanhaoArroio PassodasPedras(incompleto,apenasmargemdireitaconcluída)Pôlder drenadopelasCBs9e10.
DiqueMontante,diqueinterno,executadocomargila.AcompanhaoArroioda Areia(incompleto,apenasmargemesquerdaconcluída)Pôlderdrenadopela CBSílvioBrumLigações:condutosforçadosdaAreia,CarneirodaFontoura, GonçalodeCarvalho
Afunçãodosdiqueséimpedir,nocasodeumacheia,aentradadeáguaproveniente dosarroioseriosparaasregiõesprotegidas,quesãodenominadasdepôlderes Aimagemaseguir,produzidapeloDMAE(peça5980863,p.6),permiteumavisão dosdiquescitados,comexceçãodoDiqueMontante,queficamaisàoestedaregião
–Delimitaçãodosdiquesexternosdazonanorte 19

ESTADODORIOGRANDEDOSUL TRIBUNALDECONTAS
DIREÇÃODECONTROLEEFISCALIZAÇÃO SERVIÇODEAUDITORIADEPORTOALEGRE


Fonte:DMAE(peça5980863,p6)
Alémdisso,existeumsistemadediquesprojetadosnoentornodachamadaVilaAsa Branca,cujoprojetooriginalremontaaoanode2010,porémestesistemanãofoiexecutado atéoanode2024.
Duranteoeventodecheiademaiode2024ocorreuaentradadeáguanospôlderes dazonanorte,provenientedediversospontossobrealgunsdosdiquesdaregiãoConformea cronologiadoevento,afalhanodiqueSarandipassouaocorrernamadrugadadodia 04/05/2024,01:001aproximadamente,momentoemqueoníveldoGuaíbaencontrava-seentre 4,50me5,00m2
Numestudorealizadoem1968(peça6718446),oDNOSdefiniuascotas necessáriasparaosdiquesporintermédiodautilizaçãodeummodelofísicoreduzido(peça 6718447,p2)Nafiguraaseguirpode-seobservaralgunspontosaolongodorioGravataíem 20
Assinado digitalmente por: Marcelo Kipper da Silva em 14/07/25, Leandro Lobato Camargo em 14/07/25, Leandro Torres em 14/07/25, Fabio Alex Beling em 14/07/25 e outro(s). Confira a autenticidade do documento em www.tce.rs.gov.br. Identificador: PRE.FE77.2360.2A1D.FC7C.62D4.

ESTADODORIOGRANDEDOSUL TRIBUNALDECONTAS
DIREÇÃODECONTROLEEFISCALIZAÇÃO SERVIÇODEAUDITORIADEPORTOALEGRE
queoDNOSestipulouascotasdosdiques
Figura4–ProjetodoDNOSparaosdiquesdazonanorte


Fonte:(peça6718447,p.11).
ConstanumrelatóriodoDMAE(peça6718448,p.6)oseguinteparágrafosobrea cotadosdiques:
Destaforma,osdiquesnoPontoAdafigura(avAssisBrasil)foramprojetados comcoroamentonacota7,00menoPontoBdafigura(DiquedoArroioAreia) nacota6,60mUmpoucoadiantedoPontoBacristadoDiquedaBR290foi definidacomcota6,50m,retornandoàcota7,00noDiqueNavegantesJápara oCaisMauá(muro)acotaéde6,00m.Parafinsderegistro,destacamosqueao longodosanoshouvemudançasdereferênciasdenível,ondenoSistemaAtual doMunicípioestascotascorresponderiamavaloresentre6,60me5,60m
OspontosA,BeCsãoaquelescontidosnafiguraacima.OestudodoDNOSdefiniu ascotasdecoroamentodosdiques,masnãoapresentouosprojetosdosdiques
AequipedeauditoriasolicitouparaoDMAEquefossemfornecidososprojetosdos 21
Assinado digitalmente por: Marcelo Kipper da Silva em 14/07/25, Leandro Lobato Camargo em 14/07/25, Leandro Torres em 14/07/25, Fabio Alex Beling em 14/07/25 e outro(s). Confira a autenticidade

ESTADODORIOGRANDEDOSUL TRIBUNALDECONTAS
DIREÇÃODECONTROLEEFISCALIZAÇÃO SERVIÇODEAUDITORIADEPORTOALEGRE

diquesdomunicípiodePortoAlegre,porémoDMAEforneceuapenasosprojetosdosdiques maisrecentes
Algunsdestesdiquesantigospodemtersidoconstruídosduranteaexecuçãode avenidaserodovias,talcomoaBR290,portantoosprojetospodemnãoterfeitopartedoacervo doDNOSOupodeterocorridooextraviodealgumeventualprojetoqueestavasobaguardado DNOSquandoocorreuatransferênciadasresponsabilidadesdessedepartamentoparao municípionadécadade90.Ofatoéqueaequipedeauditorianãoconseguiuteracessoaos projetosdosdiquesmaisantigosexistentesnomunicípio
Damesmaforma,nãoseencontrouregistrodequandoforamexecutadosmuitosdos diques,ouquetenhahavidoalteraçãoposterioràconstruçãodosmesmos
ODMAEelaborouumaanálise(peça6718449)dosdiquesdazonanortedo municípioutilizandoimagensdesatéliteeummodelodigitaldoterreno3(MDT),quepermite identificarascotas(altitudes)doterrenonaslocalizaçõesescolhidassobreaimagemde satélite.Nestaanálise,foramidentificadosvárioslocaisondeascotasdosdiquesestãoabaixo dosvaloresprojetadospeloDNOSAseguirserãodemonstradosalgunsdoslocaisidentificados
DiqueparaleloàavenidaAssisBrasil,nº8800:
Alinhahorizontalvermelhanoperfilcontidonaimagemaseguirrepresentaacotade 5,4m,aqual,segundooDMAE,foionívelatingidopelainundaçãonestapartedacidadeO mesmoocorrenosperfisdasdemaisimagensabaixo
Observandooperfil,constata-sequeumagrandeextensãododiqueestáemcota inferioraoníveldainundação,oquesignificaqueaságuasescoaramparadentrodopôlderpor estapartedodique.

ESTADODORIOGRANDEDOSUL TRIBUNALDECONTAS


DiquelindeiroàFIERGS:
VisualizandooperfildodiquelindeiroàFIERGSconstata-sequeamaiorparteda estruturaestáemcotainferioraoníveldainundação,oquesignificaqueestediquenãoofereceu nenhumaproteçãocontraacheia
–DiquelindeiroàFIERGS.
Confira a autenticidade do documento em www.tce.rs.gov.br. Identificador: PRE.FE77.2360.2A1D.FC7C.62D4.

ESTADODORIOGRANDEDOSUL TRIBUNALDECONTAS
DIREÇÃODECONTROLEEFISCALIZAÇÃO SERVIÇODEAUDITORIADEPORTOALEGRE


Naimagemabaixo,feitacomauxiliodeumveículoaéreonãotripulado(drone),podeseobservaraságuasescoandosobreestediqueemáquinasqueforamutilizadasparatentar aumentaraalturaeconteraságuas.
Figura7–DiquelindeiroàFIERGS.
Assinado digitalmente por: Marcelo Kipper da Silva em 14/07/25, Leandro Lobato Camargo em 14/07/25, Leandro Torres em 14/07/25, Fabio Alex Beling em 14/07/25 e outro(s). Confira a autenticidade do documento em www.tce.rs.gov.br. Identificador: PRE.FE77.2360.2A1D.FC7C.62D4.

ESTADODORIOGRANDEDOSUL


Emrelaçãoaestedique,jáexistianoanode2015ainformaçãonoPlanoMunicipal deSaneamentoBásicoVolume2-Prognóstico,ObjetivoseMetas4dequeumaextensãode aproximadamente2.500metrosestavacomcotainferioràdorestantedosistemadeproteçãojá implantado,conformetrechoaseguirreproduzido(peça6718431,p10):
Porfim,osestudosdoPDDrUtambémconstataramanecessidadede recomposiçãodecercade2500mdediquesjuntoaoArroioSantoAgostinhoe àAvAssisBrasil,cujocoroamentoestáemcotainferioràdorestantedo sistemadeproteçãojáimplantado
Ouseja,ostécnicosdoDEPjásabiamdesde2015queestediquenãoiria fornecerproteçãoadequadaemcasodeumgrandeeventodecheiaNãoháregistrodeque tenhasidofeitaarecomposiçãodestediquepeloDEP,ouposteriormentepeloDMAE,para corrigirestadeficiêncianaaltura
Pôlder9(DiquedoSarandi):
NodiquedoPôlder9(figuraabaixo),tambémhaviadiversostrechoscom cotasabaixodoníveldeinundação,permitindoaentradadaságuas.
–DiquedoPôlder9 25

ESTADODORIOGRANDEDOSUL TRIBUNALDECONTAS


Afotodesatéliteabaixoapontaalgunstrechosdodiquecomcotasabaixodonívelde inundaçãocomáguainvadindooPôlder9
Figura9–DiquedoPôlder9(DiquedoSarandi)
digitalmente por: Marcelo Kipper da Silva em 14/07/25, Leandro Lobato Camargo em 14/07/25,
Torres em 14/07/25, Fabio Alex Beling em 14/07/25 e outro(s). Confira a autenticidade do documento em www.tce.rs.gov.br. Identificador: PRE.FE77.2360.2A1D.FC7C.62D4.


Pôlder10(DiquedoPassodasPedras):

Comrelaçãoaestepôlder(figuraabaixo),oDMAEfezaseguinteanálise(peça 6718449,p14):
Otrecho01eracaracterizadoporocupaçãonostaludesdemontanteede jusantedodiqueEstafragilização,somadaaospontosdecotasinferioresa 4,80m,levaramaogalgamentoerupturatotaldodiqueem3pontoseparcial em1pontoEmfunçãodapequenalarguradodiqueaprecisãodoMDTfica maisprejudicadaOdiqueteveumagrandeextensãolineardecotasuperada peloníveldaenchente,razãopelaqualcontribuiusignificativamenteparaa elevaçãomaisrápidadoníveld’água.



Conclui-se,doexpostoacima,queosdiquesdazonanortedacidadepossuíam diversostrechosemqueacotadecoroamentoerainferioràcotaalcançadapelaáguasdurante acheiademaiode2024etambéminferioraovalorprojetadonoestudodoDNOS.Ouseja,as águasultrapassaramosdiquesporqueestesnãotinhaaaltura(cotadecoroamento)que deveriamter,conformeoestudodoDNOS
Aimagemabaixoédeumlevantamentoaerofotogramétrico5realizadoem1982O DMAEfezoseguintecomentário(peça5980863,p15)sobreestelevantamento:
SobreaquestãoderesidênciassobreaestruturadoDiquePassodasPedras, entendemosoportunodeformacomplementartrazeraimagemdomapeamento Aerofotogramétricode1982,ouseja,ondeemteseagestãodosdiqueserado DNOS,ondeépossívelidentificarquejáhaviaconsiderávelnúmerode residênciassobreaestrutura
Figura11–AerofotogramétricocomlevantamentotopográficododiquePassodasPedras(1982)

ESTADODORIOGRANDEDOSUL TRIBUNALDECONTAS
DIREÇÃODECONTROLEEFISCALIZAÇÃO SERVIÇODEAUDITORIADEPORTOALEGRE


Nafotoabaixo,datadademaiode2024,édemonstradacontinuidadedoproblemada décadade80,poiséclaraaocupaçãoirregulardotaludeedocoroamentopormoradiasque fragilizamodique,sendoperceptívelinclusiveaescavaçãodaestrutura
Figura12–Diquerompidoemlocalfragilizadopelasocupações
Confira a autenticidade do documento em www.tce.rs.gov.br. Identificador: PRE.FE77.2360.2A1D.FC7C.62D4.



Astrêsfotosaseguirdemonstramalgunslocaisondehouverompimentodestedique
–Ponto01derupturadodique

e outro(s). Confira a autenticidade do documento em www.tce.rs.gov.br. Identificador: PRE.FE77.2360.2A1D.FC7C.62D4.


Figura14–Ponto02derupturadodique

–Ponto03derupturadodique.
do documento em www.tce.rs.gov.br. Identificador: PRE.FE77.2360.2A1D.FC7C.62D4.



Emquepesemasresidênciasestaremsobreodiquedesdepelomenososanos 1980,éresponsabilidadedopoderpúblicomunicipalmanteraintegridadedosistemade proteçãocontracheias,comodeterminadonoPlanoMunicipaldeSaneamentoBásico.
NoPlanoMunicipaldeSaneamentoBásico,Volume3-Programas,Participação SocialeIndicadores(peça6718452,p84),édefinidoque:
OProgramadeManutençãoeOperaçãodoSistemadeProteçãocontraCheias abrangeumconjuntodeaçõespreventivasecorretivasqueobjetivamassegurar oadequadofuncionamentodoconjuntodosequipamentosexistentes,quando daocorrênciadecondiçõesoperacionaisemsituaçõescríticas(chuvasintensas nacidadedePortoAlegre,associadasounãoacheiasdoLagoGuaíbaeseus afluentes)Esseprogramacontemplaaçõesdemanutenção(revisãoperiódica doparquedeCasasdeBombas,revisãoesimulaçõesdeaberturaefechamento doconjuntodecomportasdosistemadediquesemonitoramentoda estabilidadedosdiques)edeoperação(regramentodaoperaçãodascasas debombasetreinamentodeseusoperadores)
(Grifou-se)

ESTADODORIOGRANDEDOSUL

moradias,osgestorespermitiramafragilizaçãodestestrechos,oquefoideterminanteparao rompimentodasestruturaseaconsequenteinundaçãodacidade
DiqueMontante:
OutrolocalcitadonoanálisedoDMAEemquehouvefalhafoiodiquedoarroioda Areia(diqueMontante)juntoàBR290,conformeimagemabaixo

Emumestudofinalizadoemjulhode2018pelaMETROPLAN(peça6718455,p 144),noâmbitodocontratoparaEstudoseProjetosparaMinimizaçãodoEfeitodasCheiase EstiagemnaBaciadoRioGravataí,jáhaviaodiagnósticodequetaldiqueprecisavaserelevado emaproximadamente1(um)metroparaevitarainundaçãodopôldernocasodeumacheia, conformetextoaseguir:


Osistemadeproteçãoexistentelocaliza-senazonanortedomunicípiodePorto AlegrealestedoAeroportoSalgadoFilho,ondehojeselocalizaachamadaVila Dique
Assimulaçõesrealizadasindicamquehátransbordamentododiquepara eventosmaisextremos,porissosepropõeaelevaçãodacotadodique para6,30m,aproximadamente1,0memmédiadadaacotavariáveldo diqueexistenteemtornode5,30m
OproblemaaserresolvidonessaregiãoécausadopelascheiasdoRio Gravataínamargemesquerda
AFigura43apresentaalocalizaçãodasestruturas.Asoluçãoproposta consistenaelevaçãododiqueexistenteprotegendooladooesteondese localizaoAeroporto,regiõesindustriaisedeexpansão
(Grifou-se)
AFigura43citadaéreproduzidaaseguirecorrespondeexatamenteaumdospontos ondeocorreuaentradadeáguadorioGravataíidentificadospeloDMAE,naporçãosuperiorda imagemondeháumacurvaparaesquerdanodique

ESTADODORIOGRANDEDOSUL TRIBUNALDECONTAS
DIREÇÃODECONTROLEEFISCALIZAÇÃO SERVIÇODEAUDITORIADEPORTOALEGRE


Questionou-separaaMETROPLAN,atravésdeumarequisiçãodedocumentos,se ostécnicosdoDEPouDMAEdaPrefeituraMunicipaldePortoAlegreparticiparamdaanálise desteestudoesefoidadaciênciadorelatóriofinaldoreferidoestudoparaostécnicosdoDEP ouDMAE
Emresposta,foiinformadopelaMETROPLAN(peça6718432)que: [...]eminúmerasoportunidadesforamenviadosconviteseinformaçõesa (sic)PrefeituradePortoAlegre,quantoa (sic)participaçãoeandamento dos trabalhos referentes aos estudos referentes ao contrato número 004/2015,conformedemonstramdocumentosemanexo.Nãopossuímos ainformaçãosetaisdocumentoschegaramaoDEPeDMAE
OgestordaMETROPLANenviou,juntamentecomarespostadarequisição,cópiade algunsofícios(peça6718456)encaminhadosaoPrefeitoMunicipaldePortoAlegre,nosanosde 2015e2016.
AtravésdoOfícioDIDno022/2015Circular(peça6718456,p.2),de1ºdejunhode 2015,aMETROPLANinformaahomologaçãodocontratodenominadoEstudoseProjetospara 35
Assinado digitalmente por: Marcelo Kipper da Silva em 14/07/25, Leandro Lobato Camargo em 14/07/25, Leandro Torres em 14/07/25, Fabio Alex Beling em 14/07/25 e outro(s). Confira a autenticidade do documento

ESTADODORIOGRANDEDOSUL TRIBUNALDECONTAS
DIREÇÃODECONTROLEEFISCALIZAÇÃO SERVIÇODEAUDITORIADEPORTOALEGRE

MinimizaçãodoEfeitodasCheiaseEstiagemnaBaciadoRioGravataí,noPlanoNacionalde GestãodeRiscoeRespostaaDesastresNaturais-PAC2PrevençãodeInundaçõesRSO ofíciosolicitaoacompanhamentoeapoiopararealizaçãodosestudosnabaciadorioGravataí. Aofinaldodocumentoésolicitadaadesignaçãodeumrepresentantetécnicodosmunicípios paraparticipardasreuniõesdeacompanhamentodocontratoeparaapoiotécnico
Posteriormente,pormeiodoOfícioDIDnº48/2016(peça6718456,p4),de24de maiode2016,aMETROPLANconvidouoprefeitodePortoAlegreparaparticipardaSegunda ReuniãoPúblicareferenteaocontrato
ConsultandoosítionaInternetdaMETROPLAN,pode-selerdiversasnotíciasde reuniõesparadiscussãodaProteçãocontraCheiasdoRioGravataíeAfluentesemAlvoradae PortoAlegre Asreuniõescontaramcomaparticipaçãoderepresentantesdeentidadese municípios,inclusiveomunicípiodePortoAlegre,comodestacamosseguintesrecortes:
ReuniãoRDC10-EstudoseProjetosparaminimizaçãodoefeitodasCheiase EstiagemnaBaciadoRioGravataí:6
NestaQuinta-feira(20/07/15)foirealizadamaisumadasreuniõesquetratam dosEstudoseProjetosparaminimizaçãodoefeitodasCheiaseEstiagemna BaciadoRioGravataí,nasededaFundaçãoEstadualdePlanejamento MetropolitanoeRegional(Metroplan)Empauta,a1ªReuniãoPúblicaqueserá realizadanestasegunda-feira(24/08/15),naCâmaradeVereadoresde Gravataí,paraapresentaçãodoPlanodeTrabalhoparacomunidadeEstiverem presentesrepresentantesdaPrefeituradeGravataí,DEPPrefeituradePorto AlegreeGerenciamentodoComitêdeGerenciamentodaBaciaHidrográficado RioGravataí
MetroplanrealizareuniãodasAlternativaseProjetosparaMinimizaçãodo EfeitodasCheiaseEstiagensnaBaciadoRioGravataí:7
AreuniãosobreasCheiasnaBaciadoRioGravataíocorreunestaquinta-feira (21/01/16),nasededaFundaçãoEstadualdePlanejamentoMetropolitanoe Regional(Metroplan)TécnicosdoGrupodeTrabalhodebateramoESTUDODE ALTERNATIVASEPROJETOSPARAMINIMIZAÇÃODOEFEITODAS CHEIASEESTIAGENSNABACIADORIOGRAVATAÍ
AEmpresaConsórcio(COHIDRO/MJ/ENCOP)apresentouaconsolidaçãoda BasedeDadosparafinalizaçãoDiagnostico,ondea1ªversãoparaanaliseserá disponibilizadanapróximasemana.
PresentesnaReunião:RepresentantedaPrefeituradePortoAlegre/DEP, APABG/SEMAeDRH/SEMA
MetroplanrealizareuniãodasAlternativaseProjetosparaMinimizaçãodo EfeitodasCheiaseEstiagensnaBaciadoRioGravataí:8
AreuniãosobreasCheiasnaBaciadoRioGravataíocorreunestaquinta-feira
Assinado digitalmente por: Marcelo Kipper da Silva em 14/07/25, Leandro Lobato Camargo em 14/07/25, Leandro Torres em 14/07/25, Fabio Alex Beling em 14/07/25 e outro(s). Confira a autenticidade do documento em www.tce.rs.gov.br. Identificador: PRE.FE77.2360.2A1D.FC7C.62D4.

ESTADODORIOGRANDEDOSUL
DIREÇÃODECONTROLEEFISCALIZAÇÃO SERVIÇODEAUDITORIADEPORTOALEGRE

(17/03/2016),nasededaFundaçãoEstadualdePlanejamentoMetropolitanoe Regional (Metroplan) A Empresa Consórcio (COHIDRO/MJ/ENCOP) apresentouoVôoaerofotogramétrico,levantamentodecampoeOProduto6 (RelatórioDiagnóstico/BasedeDados)queencontra-seemfaseconclusiva
PresentesnaReuniãorepresentantedoMinistérioPúblico,PrefeituradePorto Alegre–DEP,Cachoeirinha,Gravataí,APABG/SEMA,DRH/DIPLAeComitê Gravatahy
Alémdisso,oestudoépúblicoeestádisponívelnaInternetdesdepelomenos2022, empastacompartilhada,9portantopoderiafacilmenteserconsultadopelostécnicosdoDMAEe porqualquercidadão
Assimsendo,eradeconhecimentodogestormunicipaledetécnicosdoDEPa existênciadeumcontratoemandamentopararealizaçãodeestudosrefentesàprevençãode cheiaseestiagensnabaciadorioGravataí,baciaqueincluipartedomunicípiodePorto AlegreEstudoestequeapontoufragilidadesnosdiquesdazonanortedacidadequepoderiam permitir,equedefatopermitiram,aentradadeáguaprovenientedorioGravataínacidade duranteacheiademaiode2024
NãoháregistrodequeoDEPtenhatomadomedidasparacorrigiraalturados diques,conformeapontadonoestudo,portantooMunicípionegligenciouasfragilidades diagnosticadasDamesmaforma,nãoháregistrodequeoDEPtenhatomadomedidaspara corrigiraalturadosdiquescontíguosaoarroioSantoAgostinhoeàAvAssisBrasil,conforme diagnosticadonoPlanoMunicipaldeSaneamentoBásicoVolume2,novamentecaracterizando negligência
Comofoidiscutidonasprimeirasseçõesdestetrabalho,oDEPfoiextintopeloartigo 14daLeiComplementarnº817/2017,sendo,apartirdasuapublicação,transferidassua competênciasrelativasàsobraseaosprojetosdeengenhariaparaaSecretariaMunicipalde InfraestruturaeMobilidadeUrbana(SMIM)easdemaisatribuições,relativasàexecuçãoeà conservaçãodeesgotospluviais,paraaSecretariaMunicipaldeServiçosUrbanos(SMSURB)
DeacordocomaLeiMunicipalnº12504,de24dejaneirode2019,ascompetências doantigoDEPforamrepassadasaoDMAE.Assimsendo,apartirde24deabrilde2019,a responsabilidadepelosdiquesetodoorestantedosistemadeproteçãocontracheiaspassou paraoDMAEDamesmaformaqueexpostoacima,nãoháregistrodequeoDMAEtenha tomadomedidasparacorrigirosproblemasdosdiquesdepoisqueassumiuaresponsabilidade peladrenagemurbanaeproteçãocontracheiasnacapital
Conformejácitadoanteriormente,deacordocomoPlanoMunicipaldeSaneamento Básico-Volume3(peça6718452,p84),omunicípiopossuioProgramadeManutençãoe OperaçãodoSistemadeProteçãoContraCheias,queeraderesponsabilidadedaDivisãode ConservaçãodoDEP,sendoestacompetência,posteriormentetransferidaaoDMAEpelas leisnº12504,de24dejaneirode2019enº12939,de23dedezembrode2021

ESTADODORIOGRANDEDOSUL TRIBUNALDECONTAS
DIREÇÃODECONTROLEEFISCALIZAÇÃO SERVIÇODEAUDITORIADEPORTOALEGRE

Oprograma,comojáreferidolinhasacimaemtrechotranscritodoPlanoMunicipalde Saneamento,prevêanecessidadedemonitoramentodaestabilidadedosdiques,atividade que,contudo,foinegligenciadaporsucessivasgestõesmunicipais,asquaisforamlenientesao permitiremaocupação,construçãoepermanênciaderesidênciassobreosdiques,oque claramentefragilizouaestruturadesseselementosintegrantesdosistemadeproteçãocontra cheiasHouvetambémnegligênciadesucessivasgestõesdoDEPeposteriormentedoDMAE, asquaisnãomonitoraramadequadamenteaalturadosdiquesetampoucotomaramaçãopara altearasestruturasapontadascomodeficientesnosestudosdaMetroplan
Solicitou-se,pormeioderequisiçãodeinformações(peça6486949),paraqueo DMAEinformassesobreoreferidomonitoramentodaestabilidadedosdiques,respondendoaos seguintesquesitos:
a)InformarcomooDMAEtemrealizadoomonitoramentodaestabilidadedos diques,desdequeassumiuasatribuiçõesdoDEP
b)Informaraaçõesdemonitoramentodosdiquesrealizadasapartirdascheias de2023.
c)Informarosetorresponsávelporestemonitoramento
ODMAEnãorespondeuformalmentearequisiçãodedocumentosdentrodo prazoestipulado(dia27-03-2025)e45diasapósesteprazoaindanãohavia respondido.EmcontatocomaauditoriainternadaPMPAfoiobtidacópiadoSEI 2510000002687-8comatramitaçãoparcialdarespostadarequisição(peça6718457)
Emrelaçãoaoquesito"a",nãohánoSEI2510000002687-8nenhumaexplanação porpartedealgumadiretoriaougerênciaresponsável,decomooDMAEestariarealizandoo monitoramentodaestabilidadedosdiquesdesdequeassumiuasatribuiçõesdoDEP
Quantoaoquesito"c",inicialmenteaDiretoriadeGestãoeDesenvolvimentodo DMAE(DD)informouque"nãoéatribuiçãodestaDDarealizaçãodasatividadestranscritas abaixoeobjetodoquestionamento"(peça6718457,p.3),ouseja,informouquenãocabeaelao monitoramentodaestabilidadedosdiques
PosteriormenteaDiretoriadeTratamentodeÁguaeEsgotos(DT)informouque (peça6718457,p5):
informamos que é de responsabilidade desta DT a manutenção eletromecânicadetodooparqueindustrialdoDMAEquecontemplaasestações detratamentobombeamentoereservatórioseporafinidadedademandae tambémdispordeestruturaeprofissionaishabilitadoseexperientescaldeirariae usinagemauxilianamanutençãodascomportasdocais
Destaformaamanutençãodosdiquesrequerumconhecimentoespecíficoem grandesinfraestruturasurbanasestáticasesãoconstituídosdeelementosde naturezamuitodiversadaáreadeconhecimento,atribuiçõeseestrutura disponívelnestaDTqueévoltadaaprocessosindustriaisdinâmicos,químicose 38

ESTADODORIOGRANDEDOSUL TRIBUNALDECONTAS DIREÇÃODECONTROLEEFISCALIZAÇÃO SERVIÇODEAUDITORIADEPORTOALEGRE
biológicossuportadosporequipamentoeletromecânicos

Daleituradestainformação,conclui-sequeaDTtambémentendequenãocabeaela omonitoramentodaestabilidadedosdiques
Em08-04-2025aDiretoriadeOperaçõesdoDMAE(DO)informouque:
Ematençãoàsolicitaçãodemanifestação33152913,informamosquenenhuma dasatividadeselencadasnainicialéatribuiçãodestaDiretoriadeOperações Osdiquesfazempartedaestruturadeproteçãocontracheiasecompeteà CCO/GDCO/DT"controlaremanterofuncionamentodosistemadeproteção contracheias",conformeoincisoVII,Art174,doDecreto21539/2022Ainda, conformeoArt.175doDecreto21.539/2022,aEquipedeProteçãoContra CheiasestásubordinadaàCCO/GDCO
DaleituradasrespostasdasdiretoriasdoDMAE,verifica-sequenãoháuma entendimentoclaroeinequívocodaresponsabilidadesobreomonitoramentodosdiques,embora oDecreto21.539/2022façaumamençãogenéricasobreosistemadeproteçãocontracheias. Assimsendo,naprática,nãohavianenhummonitoramentodosdiquesporpartedo DMAE
Conformeoartigo134,incVIIdoDecretoMunicipalnº20758(peça6718433),de15 deoutubrode2020,cabeàCoordenaçãodeControleOperacionaldoDMAE:
VII-controlaremanterobomfuncionamentodosistemadeproteçãocontra cheias;
Segundooartigo136domesmodecreto,cabeàEquipedeProteçãoContraCheias doDMAE:
I-executarasatividadesnecessáriasàoperaçãodasEBAPsdoSistemade ProteçãoContraCheias(SPCC);
II-prestarorientaçõestécnicasrelativasàsunidadesoperacionaisdoSPCC;
[]
X-executaroutrasatividadescorrelatas
Atarefadecontrolaremanterobomfuncionamentodosistemadeproteçãocontra cheiasincluiomonitoramentodaestabilidadedosdiques,conformepreconizadopeloPlano MunicipaldeSaneamento,sendoessa,portanto,umaatividadecompreendida,noentendimento daEquipedeAuditoria,noincisoXcitado,"outrasatividadescorrelatas",comodecompetência daEquipedeProteçãodeCheiasdoDMAE
digitalmente por: Marcelo Kipper da Silva em 14/07/25, Leandro Lobato Camargo em 14/07/25, Leandro Torres em 14/07/25, Fabio Alex Beling em 14/07/25 e outro(s). Confira a autenticidade do documento em www.tce.rs.gov.br. Identificador: PRE.FE77.2360.2A1D.FC7C.62D4.

ESTADODORIOGRANDEDOSUL TRIBUNALDECONTAS
DIREÇÃODECONTROLEEFISCALIZAÇÃO SERVIÇODEAUDITORIADEPORTOALEGRE

Posteriormente,oDecretoMunicipalnº20758foisubstituídopeloDecretoMunicipal nº21539,de24dejunhode2022,masasatribuiçõesforammantidas
Conformeoartigo174doDecretoMunicipalnº21539/2022(peça6718458),cabe àCoordenaçãodeControleOperacionaldoDMAEaresponsabilidadetantopeloSPCCquanto porumasériedeoutrasatividadesenvolvendooesgotocloacaleacaptaçãoedistribuiçãode água:
I-realizaraoperaçãoeanálisedosdadosregistradosnasEstaçõesde Bombeamentoereservatórios,sugerindomodificações,visandomelhoriasno sistemadeabastecimentodeáguaeconduçãodeesgotocloacaleáguas pluviais;
II-orientareacompanharproblemasdedesabastecimentodeáguatratadae bombeamentodeesgotocloacaleáguaspluviais;
III-acompanharasatividadesnecessáriasparaainspeçãoerecuperação estruturaldereservatórioseestaçõeselevatórias;
IV-elaborarrelatóriosoperacionaisedeconsumoenergiaelétricanasestações elevatórias,visandoàotimizaçãodossistemas;
V-organizarparadasoperacionaisemergenciaiseprogramadasnosistemade abastecimentodeáguatratada,conduçãodeesgotocloacalepluvial;
VI-garantiroabastecimentodeáguatratadaatravésdecaminhãotanqueàs áreasnãocontempladaspelarededistribuição;
VII-controlaremanterobomfuncionamentodosistemadeproteção contracheias;
(Grifou-se)
Conformeoartigo175doDecretoMunicipalnº21539,cabeàEquipedeProteção ContraCheiasdoDMAE:
I-executarasatividadesnecessáriasàoperaçãodasEBAPsdoSistemade ProteçãoContraCheias(SPCC);
II-prestarorientaçõestécnicasrelativasàsunidadesoperacionaisdoSPCC;
X-executaroutrasatividadescorrelatas.
Destaforma,deacordocomosartigoscitadosdoDecretoMunicipalnº21539,o DMAEpossuidoissetoresquepossuemcompetênciaseresponsabilidadesrelacionadosaos diquesdosistemadeproteçãocontracheias,inclusiveomonitoramentodaestabilidadedestes
digitalmente por: Marcelo Kipper da Silva em 14/07/25, Leandro Lobato Camargo em 14/07/25, Leandro Torres em 14/07/25, Fabio Alex Beling em 14/07/25 e outro(s). Confira a autenticidade do documento em www.tce.rs.gov.br. Identificador: PRE.FE77.2360.2A1D.FC7C.62D4.

ESTADODORIOGRANDEDOSUL TRIBUNALDECONTAS
DIREÇÃODECONTROLEEFISCALIZAÇÃO SERVIÇODEAUDITORIADEPORTOALEGRE

diquesEstessetoressãoaCoordenaçãodeControleOperacionaleEquipedeProteçãoContra Cheias
AchefiadestessetoresforamocupadaspelosenhorCarlosOliveiraCardoso, responsávelpelaCoordenaçãodeControleOperacionaldoDMAEde2019a2024epelo senhorMarcosGoulartMachado,líderdaEquipedeProteçãoContraCheiasdoDMAEdesde 2019(peça6718459),conformerelatóriosdeocupantesdecargos(peça6718460)(peça 6718434)(peça6718461)(peça6718462)(peça6718463)(peça6718464).Esteúltimotambém eraoúnicoservidorlotadonaSeçãodeGerenciamentodoSistemadeProteçãoContraCheias daSMSURB,antesdaassunçãodessasatividadespeloDMAE(peça6718435)
Osocupantesdestescargosagiramcomnegligênciapois,conformerelatado,não realizavamomonitoramentodosdiques,apesardeestaremincumbidosdissoporforçado DecretoMunicipalnº21539edoPlanoMunicipaldeSaneamentoIgualmente,nãotomaram providênciasparaquefossesanadaaocupaçãoirregularcomresidênciasecorrigiras deficiênciasdealturadosdiques,conformeapontadonoPlanoMunicipaldeSaneamentoe estudorealizadopelaMETROPLAN
Ademais,taisprovidênciasconfiguramaçõesquedeveriamtersidoimplementadas emcumprimentoaoPlanodeResiliência,instituídopelaLeiMunicipalnº12.629/2019,que estabeleceu,deformaexpressa,comoobjetivodomunicípioaprevençãoderiscos,combase empráticasdegestãodedesastresrelacionadosainundações,alagamentosedeslizamentosO planotambémprevêagarantiadeinfraestruturaadequadaàsfamíliasresidentesemáreasde risco,mediantefiscalizaçãoeprevençãodeocupaçõesirregulares,entreoutrasmedidasSenão, vejamos:
Art3ºOMunicípiodePortoAlegrebuscarátornar-sereferênciaemresiliência urbananaAméricaLatinaatéoanode2025,pormeiodosseguintestemas, comseusrespectivosobjetivos: ()
III-prevençãoderisco:
a)possuirumagestãoderiscodedesastresquepromovaasuaredução, principalmente,emcasodeinundação,alagamentoedeslizamento;e
b)garantirinfraestruturaadequadaàsfamíliasqueresidememáreasderisco elevadopormeiodafiscalização,daprevençãodeocupações,do monitoramentodasáreasderiscoedasaçõesestratégicasdeplanejamento;
Ainda,éimportantedestacarqueoMunicípiodePortoAlegreestásubmetidoaos devereslegaisinstituídospelaLeiComplementarMunicipalnº872/2020,queapresenta princípios,diretrizeseobjetivosrelacionadosàadoçãodemedidasdeprevençãoeadaptação àsmudançasclimáticasquantoaosriscosdeinundações,bemcomoatinentesao desenvolvimentodeaçõeseprogramaspermanentesvoltadosàassistência,àremoçãoouà relocaçãodapopulaçãodeáreasvulneráveisouatingidasporeventosdecorrentesdas mudançasclimáticasparamoradiasseguras: 41

ESTADODORIOGRANDEDOSUL TRIBUNALDECONTAS
DIREÇÃODECONTROLEEFISCALIZAÇÃO SERVIÇODEAUDITORIADEPORTOALEGRE

SeçãoIDosPrincípios
Art3ºAPolíticainstituídaporestaLeiComplementareasaçõesdela decorrentesdevemobservarosprincípiosqueregemaAdministraçãoPúblicae aspolíticasambientais,notadamenteosseguintes:
(...)
V-aprecauçãonassituaçõesdeameaçadedanossériosouirreversíveis;
()
SeçãoIIDasDiretrizes
Art4ºSãodiretrizesgeraisdaPolíticadeSustentabilidade,Enfrentamentodas MudançasClimáticaseUsoRacionaldaEnergia:
()
IV-cooperarcomospreparativosparaaprevençãoeaadaptaçãoaos impactosdamudançadoclima,desenvolvendoeelaborandoosplanos adequadoseintegradosparaagestãodezonascosteiras,recursoshídricose agricultura,bemcomoparaaproteçãoearecuperaçãoderegiões particularmenteafetadasporsecaseinundações;
()
SeçãoIDosObjetivos
Art5ºAimplementaçãodaPolíticainstituídaporestaLeiComplementartem comoobjetivos:
(...)
IV-implementaraçõesdeprevençãoeadaptaçãoàsalteraçõesproduzidas pelosimpactosdasmudançasclimáticas,visandoaproteger,principalmente,os estratosmaisvulneráveisdapopulação;
XIV-adotarmedidaseestratégiasparaamitigaçãodamudançadoclimapor meiodareduçãodeemissõesdeGEEedofortalecimentodasremoçõespor sumidourosdessesgases,bemcomoparaaidentificaçãodevulnerabilidades noMunicípiodePortoAlegre,estabelecendomedidasadequadasdeadaptação eresiliênciaeimpedindoainterferênciaantrópicaeperigosanosistema climático,prevenindo,minimizando,mitigando,compensandooureparandoos impactosedanosgerados;
XXIII-adotarmedidasdeprevençãoefortalecimentodaresiliênciaeda capacidadeadaptativalocalconcernentesaoaumentodoníveldoLago Guaíba,aalagamentoseadeslizamentosdeencostas,bemcomoaoutros fenômenosouocorrênciasprovenientesdosprocessosdemudançasnaturais;
XXIV-desenvolver,emcaráterpermanente,açõeseprogramasvoltadosà prevençãodedanos,assimcomoàassistência,àremoçãoouàrelocação

ESTADODORIOGRANDEDOSUL TRIBUNALDECONTAS DIREÇÃODECONTROLEEFISCALIZAÇÃO SERVIÇODEAUDITORIADEPORTOALEGRE

dapopulaçãodeáreasvulneráveisouatingidasporeventosdecorrentes dasmudançasclimáticasparamoradiasseguras,pormeiodesoluções habitacionaisdefinitivas,promovendoarequalificaçãoambientaldessasárease ocontrolesobreseuusoesuaocupação; ()
XXX-fortaleceraresiliênciadoMunicípiodePortoAlegreaosefeitosinevitáveis dasmudançasdoclimanasdimensõesinstitucional,socialoucomunitária, ambientaledeinfraestruturaurbana,estimulandoefortalecendoaorganização eaintegraçãoentreosentesdaFederação,asinstituiçõespúblicaseda sociedadecivileapopulaçãoemgeral,priorizandoascomunidadesmais vulneráveisaosefeitosdasmudançasclimáticas,demodoadesenvolver capacidadeadaptativaedereduçãodosriscosurbanos,absorvendoas perturbações,ereorganizando,frenteamudanças,acapacidadedemantero essencialdassuasfunções,estruturas,identidadeseretroalimentações;
(Grifou-se)
Restouevidenciada,portanto,acaracterizaçãodeculpagraveouerrogrosseiro, tendoemvistaqueaomissãodosagentesimplicougraveinobservânciadodeverdecuidadoe afastou-sedoreferencialdo"administradormédio",poiseranotóriaeperceptívelporpessoade diligêncianormalanecessidadederesoluçãodosproblemasidentificadosdesdeadécadade80 (ocupação)e2015(altura)
Comoatenuantes,pode-sereferirqueafaltadegovernançaedaimplementaçãode umapolíticadegestãoderiscos,aliadaàausênciadainterlocuçãoentrediversosórgãos municipais,ocorridaemsucessivasgestões,sãofatorespreponderantesparaaocorrênciadas falhas.Portanto,outrosagentesconcorreramparaqueestasituaçãoseestabelecessee permanecessesemsolução(videachado"FalhadeGovernançaeGestãodeRiscospara Operação,ManutençãoeMonitoramentodoSPCC")
Aausênciadeengenheirocivileapequenaquantidadedeservidoresna CoordenaçãodeControleOperacionaledeapenasumservidoratuandonaEquipedeProteção ContraCheias,conformediscutidonoitemsobreaFragilidadesnaIncorporaçãodas CompetênciasdoDepartamentodeEsgotosPluviais,tambémsãoatenuantesAinda,a diversidadedeatividadesdiferentesexercidapelaCoordenaçãodeControleOperacional, envolvendoágua,esgotoepluvial,alémdosistemadeproteçãocontracheias,possivelmente sobrecarregandoacoordenação,éumatenuante
Consequênciasparaaadministraçãoesociedade
Comoconsequênciadasituaçãoinadequadadediversostrechosdosdiquesemque ascotasestavamabaixodovalorprojetadoedetrechosfragilizadospelaocupaçãoparaa construçãoderesidências,houveoextravasamentoeentradadaságuasdacheiademaiode 2024paraospôlderes,causandoinúmerosproblemaseprejuízosparaacidadedePortoAlegre
Consequentemente,aausênciadasaçõesnecessáriasresultouemprejuízos


significativosaoeráriomunicipal,aindanãototalmentequantificados,masquejáperfazem quantiaestimadaentreR$6aR$8bilhões
Leiseoutrasnormasaplicáveisaocaso
LeiFederalnº10406/2002,Artigo186; LeiMunicipalnº12.939/2021; DecretoMunicipalnº19275/2015(PlanoMunicipaldeSaneamentoBásico);
LeiMunicipalnº12629/2019(PlanodeResiliência);
Lei Complementar Municipal nº 872/2020 (Política de Sustentabilidade, EnfrentamentodasMudançasClimáticaseUsoRacionaldaEnergia).
Conclusõesdaequipedeauditoria
Portanto,houvedescumprimentodoProgramadeManutençãoeOperaçãodo SistemadeProteçãocontraCheiaspresentenoPlanoMunicipaldeSaneamentoBásicode 2015,emespecialquantoàatividadedemonitoramentodaestabilidadedosdiques
Emborasejaevidentequehouveanegligênciaporpartedesucessivasgestões municipais,quepermitiramapermanênciaderesidênciassobrediques,situaçãoquefragilizou essasestruturas,aoDMAE,nacondiçãoderesponsávelpeloSPCC,competiaomonitoramento adequadodaestabilidadeealturadosdiques
Noentanto,nãoérazoávelqueafaltadeprovidênciasporpartedegestões passadassirva,agora,comosubterfúgioparaqueasgestõesmaisrecentespossamse omitirquantoàsresponsabilidadeslegalmenteassumidas,precipuamentedefinidasem legislaçõescontemporâneaspublicadasporelaspróprias.
Talraciocíniolevariaàconclusãodequeseriaadmitidaafaltadeprovidênciasad aeternumporpartedosgestoresresponsáveis,demodoaisentarasrecentesgestõesque sinalizaramparaatençãoàresiliência,prevençãoderiscoseenfrentamentodasmudanças climáticas,masquenapráticanãoadotaramasprovidênciascabíveisnoquetangeaoadequado funcionamentodoSPCC
Responsabilização
Responsável1
Matrizderesponsabilização
Nome: CarlosOliveiraCardoso(CPF:436192900-91)
Função: ResponsávelpelaCoordenaçãodeControleOperacional
Períodode exercício: 24/04/2019a31/05/2024
Conduta:
Negligenciouanecessidadedemonitoramentodosdiques,conformepreconizaoPlanode SaneamentoMunicipal,enãoadotoumedidastempestivasparaacorreçãodasfragilidades identificadasdesde2015noPMSBe2018emestudorealizadopelaMETROPLAN

ESTADODORIOGRANDEDOSUL TRIBUNALDECONTAS
DIREÇÃODECONTROLEEFISCALIZAÇÃO SERVIÇODEAUDITORIADEPORTOALEGRE
Nexode causalidade:
Culpabilidade:

Aonãomonitorarosdiquesecorrigirasfragilidadesdosdiques,estaspermaneceramatéa ocorrênciadacheia,quecausourompimentoseextravasamentosdeágua,contribuindoparaa inundaçãodazonanortedePortoAlegre,aqualresultouemprejuízossignificativosaoerário municipal,aindanãototalmentequantificados,masquejáperfazemquantiaestimadaentreR$6a R$8bilhões
ComoresponsávelpelaCoordenaçãodeControleOperacionaletendoaatribuiçãodecontrolare manterofuncionamentodosistemadeproteçãocontracheias,eraesperadoquetomasseas providênciasparamonitorarecorrigirasfragilidadesdosdiquesAomissãocaracterizaculpa graveouerrogrosseiro,umavezqueimplicougraveinobservânciadodeverdecuidadoeafastousedoreferencialdo"administradormédio",sendonotóriaeperceptívelporpessoadediligência normalanecessidadedecorrigirosproblemasconhecidosdesde1980(ocupações)e2015 (altura)nosdiquesComoatenuantesàculpabilidadedoagente,cabeponderarqueafaltade governança,aausênciadeumapolíticadegestãoderiscoseafalhanacomunicaçãoentre diversosórgãosmunicipaisaolongodeváriasgestõescontribuíramsignificativamenteparaa permanênciadessasdeficiênciasPortanto,outrosagentestambémsãoresponsáveispela situaçãoepelafaltadecorreçãonaalturadosdiques(problemaapontadopeloPMSBepor estudosdaMETROPLAN)Aausênciadeengenheirocivil,apequenaquantidadedeservidores naCoordenaçãodeControleOperacionaleadiversidadedeatividadesexercidapela CoordenaçãodeControleOperacional,envolvendoágua,esgotoepluvial,alémdoSPCCtambém sãoatenuantes
Responsável2
Nome: MarcosGoulartMachado(CPF:881029800-44)
Função: LíderdaEquipedeProteçãoContraCheias
Períodode exercício: 24/04/2019a31/05/2024
Conduta:
Nexode causalidade:
Culpabilidade:
Negligenciouanecessidadedemonitoramentodosdiques,conformepreconizaoPlanode SaneamentoMunicipal,enãoadotoumedidastempestivasparaacorreçãodasfragilidades identificadasdesde2015noPMSBe2018emestudorealizadopelaMETROPLAN
Aonãomonitorarosdiquesecorrigirasfragilidadesdosdiques,estaspermaneceramatéa ocorrênciadacheia,quecausourompimentoseextravasamentosdeágua,contribuindoparaa inundaçãodazonanortedePortoAlegre,aqualresultouemprejuízossignificativosaoerário municipal,aindanãototalmentequantificados,masquejáperfazemquantiaestimadaentreR$6a R$8bilhões
ComoresponsávelpelaEquipedeProteçãoContraCheias,esperava-sequeoagente,em conjuntocomaCoordenaçãodeControleOperacional,agisseparacorrigirasfalhasnosdiquesA omissãocaracterizaculpagraveouerrogrosseiro,umavezqueimplicougraveinobservânciado deverdecuidadoeafastou-sedoreferencialdo"administradormédio",sendonotóriaeperceptível porpessoadediligêncianormalanecessidadedecorrigirosproblemasconhecidosdesde1980 (ocupações)e2015(altura)nosdiquesComoatenuantesàculpabilidadedoagente,cabe ponderarqueafaltadegovernança,aausênciadeumapolíticadegestãoderiscoseafalhana comunicaçãoentrediversosórgãosmunicipaisaolongodeváriasgestõescontribuíram significativamenteparaapermanênciadessasdeficiênciasPortanto,outrosagentestambémsão responsáveispelasituaçãoepelafaltadecorreçãonaalturadosdiques(problemaapontadopelo PMSBeporestudosdaMETROPLAN)Tambématenuamaresponsabilidadeaausênciade engenheirocivilnaequipeeofatodeoagentetersidooúnicoservidorlotadonaEquipede ProteçãoContraCheias,sendoresponsávelpordiversasatividades,envolvendo,aoperaçãode 23EBAPsetodoocomplexosistemadeproteçãocontracheias,paraoqualpressupor-se-iaa necessidadedoacompanhamentodasituaçãodetodososarroiosedaadequaçãodascasasde bombas,dosdiques,domurodaMauáedascomportas,atividadesessascujodesempenho envolvemconhecimentostécnicosespecíficosdeengenhariacivil,mecânica,elétricaehidráulica
Notas
1Disponívelem:https://gauchazhclicrbscombr/porto-alegre/noticia/2024/05/dique-extravasa-efamilias-comecam-a-ser-removidas-do-entorno-no-bairro-sarandiclvsa3wco020b014atounnu7nhtmlAcessoem:08/04/2025
2ConformeníveisdaestaçãoCaisMauá-C6,disponibilizadospelaAgênciaNacionaldasÁguas (ANA) Disponívelem:https://wwwgovbr/ana/pt-br/assuntos/noticias-e-eventos/noticias/ana45
Assinado digitalmente por: Marcelo Kipper da Silva em 14/07/25, Leandro Lobato Camargo em 14/07/25, Leandro Torres em 14/07/25, Fabio Alex Beling em 14/07/25 e outro(s). Confira a autenticidade do documento em www.tce.rs.gov.br. Identificador: PRE.FE77.2360.2A1D.FC7C.62D4.


DIREÇÃODECONTROLEEFISCALIZAÇÃO SERVIÇODEAUDITORIADEPORTOALEGRE
publica-dados-em-tempo-real-de-monitoramento-do-nivel-do-lago-guaiba-em-porto-alegre-rs Acessoem:07/04/2025
3ModelodigitaldoterrenoéumarepresentaçãomatemáticadeumapartedasuperfíciedaTerra considerandosuasaltitudes,apresentandoascotasdoterreno,dosolo,semconsideraras construções,árvoresedemaisobjetosacimadoníveldoterreno
4Disponívelem:https://prefeiturapoabr/dmlu/plano-municipal-de-saneamento-basicoConsultado em20-08-2024
5Umlevantamentoaerofotogramétricoéonomedadoparaaespecialidadecartográficaque oferecedadosdeumdeterminadoterrenopormeiodefotografiasaéreas
6Disponível em: http://wwwmetroplanrsgovbr/conteudo/2577/?Reuni%C3%A3oRDC10EstudoseProjetosparaminimiza%C3%A7%C3%A3odoefeitodasCheiaseEstiagemnaBaciadoRioGravata% Consultadoem04-12-2024
7Disponível em: http://wwwmetroplanrsgovbr/conteudo/2688/? Metroplanrealizareuni%C3%A3odasAlternativaseProjetosparaMinimiza%C3%A7%C3%A3odoEfeitodasCheias Consultadoem04-12-2024
8Disponível em: http://wwwmetroplanrsgovbr/conteudo/2725/? Metroplanrealizareuni%C3%A3odasAlternativaseProjetosparaMinimiza%C3%A7%C3%A3odoEfeitodasCheias Consultadoem04-12-2024
9Dsiponívelem:https://drivegooglecom/drive/folders/1gqxVnDJyr34vmuwLYKyRtIquO2RHF0a Acessoem:11/02/2025
5.1.2FalhasEstruturaisdasComportas/Portões13e14doMurodaMauá
Situaçãoencontradapelaequipedeauditoria
Apartedosistemadeproteçãocontracheias,compostopelomurodaMauáedique daCasteloBrancopossuiumasériedecomportas/portões,numtotaldequatorze,queservem parapermitiroacessoàáreaportuáriaparapedestreseveículosEstascomportasforam projetadasparaseremfechadasnaocorrênciadeeventosdecheiaparaimpediraentradadas águasnaáreaprotegida
Ascomportas/portões13e14(P13eP14)situam-sejuntoàantigapontedovão móvel,sobreoGuaíba,conformefiguraabaixo
Figura18–Localizaçãodascomportas/portõesdoSPCC.
Assinado digitalmente por: Marcelo Kipper da Silva em 14/07/25, Leandro Lobato Camargo em 14/07/25, Leandro Torres em 14/07/25, Fabio Alex Beling em 14/07/25 e outro(s). Confira a autenticidade do documento em www.tce.rs.gov.br. Identificador: PRE.FE77.2360.2A1D.FC7C.62D4.


DIREÇÃODECONTROLEEFISCALIZAÇÃO SERVIÇODEAUDITORIADEPORTOALEGRE

Fonte:RelatóriofotográficodoDMAE(peça6718465,p2)
ConformenoticiadonosítiodeGZH1nainternet2,nodia3demaiode2024a comportanúmero14cedeuparcialmente,momentoemqueseestimaqueoníveldo Guaíbaencontrava-sea4,30m,abaixoaindadoníveldacheiade1941.
ODMAE,emdocumentofornecidoparaaEquipedeAuditoria(peça6718448,p22), apontouestecomoosegundotipodeentradadeáguaparadentrodoSPCC,conformetexto abaixoextraídododocumento:
Assinado digitalmente por: Marcelo Kipper da Silva em 14/07/25, Leandro Lobato Camargo em 14/07/25, Leandro Torres em 14/07/25, Fabio Alex Beling em 14/07/25 e outro(s). Confira a autenticidade do documento em www.tce.rs.gov.br. Identificador: PRE.FE77.2360.2A1D.FC7C.62D4.

ESTADODORIOGRANDEDOSUL TRIBUNALDECONTAS
DIREÇÃODECONTROLEEFISCALIZAÇÃO SERVIÇODEAUDITORIADEPORTOALEGRE

OsegundotipodeentradadeáguaparadentrodoSPCCfoidecorrentede deficiênciasnosistemadecomportas.Apesardeemumprimeiromomento algumaspessoasteremapontadocomoacausadasinundaçõesaspequenas infiltraçõesdecorrentesdosistemadevedaçãodascomportas,asquaispodem serabsorvidaspeloprópriosistemadedrenagemurbanaedirecionadoparaas EBAPs,ograndeafluxodeáguaparadentrodoSistemasedeupelo rompimentodoconjuntodenominadoPortão14Nesteponto,ondeháimpacto muitoconsideráveldajunçãodosriosJacuíeGravataí,háumsistemaformado pordoisportões,umdelesqueencontrava-sefechadoemtesedesde1984, quandodaimplantaçãodoTRENSURB,eooutrointegrandooSistemaViárioe deacionamento(fechamento)quandodaelevaçãodoníveldoLagoGuaíba
AfiguraabaixoextraídadodocumentodoDMAEdemostraasituaçãodoportãono dia3demaio,jáapresentandofalhaepermitindoaentradadaságuas
Figura19–Rupturadoportão14em3demaiode2024

Fonte:RelatóriodoDMAE(peça6718448,p.24)
Posteriormentehouveafalhatotaldaestrutura,permitindoaentrada,sem resistência,deumavazãoexpressivadeáguanacidadeEmvistoriarealizadanodia4de setembrode2024,aEquipedeAuditoriaregistrouasseguintesfotografiasdolocaldeinstalação 48
Assinado digitalmente por: Marcelo Kipper da Silva em 14/07/25, Leandro Lobato Camargo em 14/07/25, Leandro Torres em 14/07/25, Fabio Alex Beling em 14/07/25 e outro(s). Confira a autenticidade do documento em www.tce.rs.gov.br. Identificador: PRE.FE77.2360.2A1D.FC7C.62D4.

ESTADODORIOGRANDEDOSUL TRIBUNALDECONTAS
DIREÇÃODECONTROLEEFISCALIZAÇÃO SERVIÇODEAUDITORIADEPORTOALEGRE
dacomporta14:

Figura20–Passagemondeficaacomporta14

Fonte:AcervodaEquipedeAuditoria
Verifica-sequeosdoisladosdacomportaforamafetados,ficandosembarreirapara aentradadaságuas.
Figura21–Passagemondeficaacomporta14.
Assinado digitalmente por: Marcelo Kipper da Silva em 14/07/25, Leandro Lobato Camargo em 14/07/25, Leandro Torres em 14/07/25, Fabio Alex Beling em 14/07/25 e outro(s). Confira a autenticidade do documento em www.tce.rs.gov.br. Identificador: PRE.FE77.2360.2A1D.FC7C.62D4.

ESTADODORIOGRANDEDOSUL TRIBUNALDECONTAS
DIREÇÃODECONTROLEEFISCALIZAÇÃO SERVIÇODEAUDITORIADEPORTOALEGRE


Pormeiodafotoacima,constata-sequevelocidadecomqueaságuasescoaramfoi tãofortequedestruiuopavimentoecausouumacrateranolocal.
Assinado digitalmente por: Marcelo Kipper da Silva em 14/07/25, Leandro Lobato Camargo em 14/07/25, Leandro Torres em 14/07/25, Fabio Alex Beling em 14/07/25 e outro(s). Confira a autenticidade do documento em www.tce.rs.gov.br. Identificador: PRE.FE77.2360.2A1D.FC7C.62D4.

ESTADODORIOGRANDEDOSUL TRIBUNALDECONTAS DIREÇÃODECONTROLEEFISCALIZAÇÃO SERVIÇODEAUDITORIADEPORTOALEGRE


Fonte:AcervodaEquipedeAuditoria
Aestruturademetalvisívelnestafotoéoquerestoudeumdosladosdacomporta, quedáacessoàáreadoTRENSURB
ChamouaatençãodaEquipedeAuditoriaaaparentefragilidadedacomporta14 emcomparaçãocomascomportasdomurodaMauáConformepode-severificarnasfiguras abaixo,acomporta7,localizadanomurodaMauá,possuiumaestruturamuitomaisrobustaque acomporta14,apesardeter7,7metrosdelargura,emcomparaçãocomacomporta14,que tem10metrosdelargura
Nãohárelatodequeacomporta7,ouasdemaiscomportasdomurodaMauá, tenhamfalhadofrenteàpressãodaságuasdacheiademaiode2024.
Figura23–Comporta7nomurodaMauá,apósainundação

ESTADODORIOGRANDEDOSUL TRIBUNALDECONTAS
DIREÇÃODECONTROLEEFISCALIZAÇÃO SERVIÇODEAUDITORIADEPORTOALEGRE


Fonte:RelatóriodoDMAE(peça6718465,p24)
Figura24–Comporta14doSPCC
Assinado digitalmente por: Marcelo Kipper da Silva em 14/07/25, Leandro
em 14/07/25, Leandro Torres em 14/07/25, Fabio Alex Beling em 14/07/25 e outro(s). Confira a autenticidade do documento em www.tce.rs.gov.br. Identificador: PRE.FE77.2360.2A1D.FC7C.62D4.

ESTADODORIOGRANDEDOSUL TRIBUNALDECONTAS
DIREÇÃODECONTROLEEFISCALIZAÇÃO SERVIÇODEAUDITORIADEPORTOALEGRE


Fonte: https://gauchazhclicrbscombr/geral/noticia/2024/05/ha-possibilidade-dorompimento-de-outros-portoes-diz-diretor-geral-do-dmae-clvr0j2wq026p011wqe827or8.html . Consultadoem12-09-2024
Estadiferençanaestruturadascomportascontribuiuparaafalhadascomportas13e 14
Paraapurarafalha,oDMAEsolicitouumlaudo(peça6718451)deavaliação estruturalparaverificaroocorridocomacomporta14,cujasconclusõesforam:
Comojáconstatadopelocolapsodacomportaemmaiode2024,ageometria adotada,ascondiçõesdefixaçãoeasvedaçõesprevistasrealmentenão seriamcapazesdeatenderosesforçosdecorrentesdapressão hidrostáticaÉimportantesalientarqueasanálisesaquiapresentadasnão avançaramparaocampodahidrodinâmicaAposiçãodaComporta14fazcom queelasofraaçãodiretadachegadadavazãodoRioJacuíaoLagoGuaíba Logo,éprovávelqueosesforçossobreaestruturasejamaindamaioresNo entanto,acomportajádemonstraincapacidadedesuportemesmoparaas açõesestáticas
Astensõesmáximaseosdescolamentosaoqualacomportaestevesubmetida jáforamamplamenteapresentadosnositensanterioresDemodogeral,na condiçãoinstalada,aestruturanãoseriacapazdesuportarosesforçosaquefoi submetidaOprojetooriginalsubestimouaaçãodaságuas,criandoum 53

ESTADODORIOGRANDEDOSUL TRIBUNALDECONTAS DIREÇÃODECONTROLEEFISCALIZAÇÃO SERVIÇODEAUDITORIADEPORTOALEGRE

elementomuitoesbeltoparavencerograndevãodapassagemsobaAv CasteloBranco
Masalémdosproblemasdeordemestrutural,amesmaaindaapresentouuma sériedeoutrasdeficiênciasAsFiguras19,20e21aseguirilustramasmás condiçõesdefixaçãodacomportaedostrilhosnaestruturadeconcretoFica evidentenasimagensabaixaquantidadedepontosdeapoio,areduzida capacidadedecargadosdispositivosdefixação,alémdasmáscondiçõesdos trilhos
Apenasdoispontosdetravamentolateraiseramresponsáveispelafixaçãoda comportaàestruturadeconcreto,alémdostrilhos,quepoucorepresentavamna fixaçãodamesma,poistemapenasafunçãodeorientaraberturaefechamento damesma,semconferirqualquerrobustezaoconjunto
AolongodesterelatórioforamapontadosinúmerosproblemasnaComporta14 Masdentretodososfatores,oquetemmaiorpreponderâncianafalhada estruturaéabaixarigidezdosperfismetálicosquecompõemaconjunto, vistoasgrandesdeformaçõesencontradasnasanálisesNotadamente,as vigashorizontaissãoincapazesdeatenderademandaexigidaAschapasde paramentocomespessuradeapenas8,0mmtambémnãosãocapazesde atenderassolicitaçõesgeradaspelapressãohidrostática
Porfim,osegundoaspectoquegerouafalhadacomportaforamasdeficientes condiçõesdefixaçãodamesmajuntoàestruturadeconcretoOcorreto funcionamentodoconjuntoexigemaiorquantidadedepontosdeapoio,nãosó naslaterais,mastambémnaporçãoinferiordacomporta
(GrifoNosso)
Destaforma,olaudoconfirmaahipótesedaEquipedeAuditoriadequea estruturadacomporta14eradeficiente.Abaixarigidezdosperfismetálicosquecompõema comportaeadeficiêncianafixaçãodestaforamosfatorespreponderantesparaafalha
Duranteacheiadenovembrode2023,acomporta13,quetemasmesmas dimensõesdacomporta14porémdivididaemduasfolhas,jáhaviafalhadosobapressão daágua,conformenoticiadopelaimprensa3em21denovembrode2023Afotoabaixo,obtida danotícia,demonstraacomporta13deformadapelaaçãodapressãodaságuase permitindoainundaçãodaregiãojáem2023.Pode-seobservarquefoiformadaumafresta entreasfolhasdacomporta,quepermitiuaentradadaságuas
Figura25–Comporta13doSPCCduranteacheiadenovembrode2023



Fonte:https://gauchazh.clicrbs.com.br/porto-alegre/noticia/2023/11/comporta-cede-apressao-e-agua-invade-ruas-do-4o-distrito-na-capital-clp7yzry30023015t5at92le0html
Nodia22denovembrode2023foinoticiadopelaimprensa4queaentradadeágua nacomporta13foicontidapelaconstruçãodeumpequenodiqueprovisório,feitodepedrase saibroAindasegundoanotícia,oDiretor-GeraldoDMAEafirmouqueaprobabilidademaior seriadequeaestruturaestivessemalvedadaecomproblemasdefixação
Apósestacheia,oDMAEiniciouumtrabalhodemanutençãonascomportas,através doContraton.20.10.00006244-3(peça6718466),conformeregistradonorelatórioenviadopela empresacontratada(peça6718436,p3-5),masnãohouveumaanálisedeengenhariaa respeitodosmotivosquelevaramàfalhaemnovembrode2023Oitem"FalhanaManutenção dosPortões/ComportasdoMurodaMauá"desterelatóriodeauditoriaabordacomdetalheseste contratoeosproblemasdemanutençãoconstatadosnaauditoria
Conformefotosabaixo,tiradaspelaEquipedeAuditoriaapósaenchentedemaiode 2024,acomporta13aindaapresentavaadeformaçãoeafrestaqueseobservanafoto realizadapelaimprensaapósoeventodenovembrode2023,oquepermitiuuma"considerável infiltração"deáguaparadentrodaáreaprotegida,conformeobservadonorelatóriodoDMAE (peça6718436,p27)Paratentarconteressaentradadeáguapelacomportaduranteacheia,o DMAEcolocousacosdeareiaeaterroemfrenteaela.

ESTADODORIOGRANDEDOSUL TRIBUNALDECONTAS DIREÇÃODECONTROLEEFISCALIZAÇÃO SERVIÇODEAUDITORIADEPORTOALEGRE
Figura26–Comporta13apósenchentede2024


–Comporta13-detalhedafrestaentreasfolhasdacomporta
Assinado digitalmente por: Marcelo Kipper da Silva em 14/07/25, Leandro Lobato Camargo em 14/07/25, Leandro Torres em 14/07/25, Fabio Alex Beling em 14/07/25 e outro(s). Confira a autenticidade do documento em www.tce.rs.gov.br. Identificador: PRE.FE77.2360.2A1D.FC7C.62D4.

ESTADODORIOGRANDEDOSUL TRIBUNALDECONTAS
DIREÇÃODECONTROLEEFISCALIZAÇÃO SERVIÇODEAUDITORIADEPORTOALEGRE


Tendoemvistaafalhadacomporta13frenteaoeventodecheiadenovembrode 2023,seriaesperadoqueosresponsáveispelamanutençãoinvestigassemseascomportasda avenidaCasteloBrancoestavamcorretamenteprojetadas,fabricadaseinstaladasparasuportar osesforçosnocasodeumagrandecheia.Talinvestigaçãoseriaaindamaisnecessáriafrente àevidentediferençaestruturalentreascomportas13e14eascomportasdomurodaMauá, algoqueosengenheirosdoDMAEdeveriamtersequestionado
Solicitou-se,pormeiodeumarequisiçãodedocumentoseinformações(peça 6430848),quefosseinformadose,apósaocorrênciadafalhadacomporta13,quecedeusoba pressãodaáguaemnovembrode2023,foirealizadaumainvestigaçãoparaverificarseesta estruturaeasdemaiscomportasdaAvenidaCasteloBrancoedomurodaMauáestavam corretamenteprojetadas,fabricadaseinstaladasparasuportarosesforçosnocasodeuma cheia
Emresposta,foiinformadooseguinte(peça6718467):
Informamosqueapósoeventodenovembro/2023,oTRENSURBinformouque iriaprocederaconstruçãodemurointernoemsuaárea,nointuitodecriaçãode barreiraparaentradadeáguapeloportão13Destaforma,nãonosfoi demandadonenhumaintervençãonesteportão.Apesardaexecuçãodo

ESTADODORIOGRANDEDOSUL TRIBUNALDECONTAS
DIREÇÃODECONTROLEEFISCALIZAÇÃO SERVIÇODEAUDITORIADEPORTOALEGRE

referidomuro,oníveldeáguanoeventoextremodemaio/2024foisuperiorao níveldaconstrução,ocorrendoextravasamentoparadentrodosistemaneste local(fotoemanexo)
Porestemotivoepelafragilidadedosoutrosportõesdestetrechoidentificadas duranteeapósoeventoextremodemaio/2024,oDMAEdesenvolveuprojetode fechamentodefinitivodosportõesquenãopossuíammaiscirculaçãoviária, entreelesoportão13,esubstituiçãodosportões11(parcial),12e14(parcial) porcomportasdevidamentedimensionadasparaeventualnovacheiano Guaíba
Taisintervençõesestãoemcontrataçãopelaslicitações2410000011922-6e 2410000011853-0,respectivamente,ambasemfasedejulgamento
(Grifou-se)
Portanto,foiadotadaumasoluçãoatravésdaconstruçãodeumpequenomurona áreadoTRENSURB,soluçãoquenãoatacouaorigemdoproblemaqueeraafragilidade estruturaldoportãocomportaEcomoagravante,nãofoiconsertadaacomporta13, permanecendoadeformaçãoatéaocorrênciadoeventode2024,oquepermitiuoinfluxode águanaáreaquedeveriaestarprotegida
Anecessáriainvestigaçãoqueidentificouacausadafalhanacomporta14 iniciouatravésdolaudotécnico,quecomprovouainadequaçãodascomportas,equesomente foirealizadoemjulhode2024,apósagrandecheiademaiode2024
Conformeoartigo175doDecretoMunicipalnº21539/2022(peça6718458),cabeà EquipedeProteçãoContraCheiasdoDMAE:
VI-registrar,encaminharàsáreasresponsáveiseacompanhartodasas demandasdemanutençãoelétricasemecânicasnosgruposmotoresbombas, tubulaçõesecomportasdasEBAPsedomurodaMauá;
PortantocabiaàEquipedeProteçãoContraCheiasrelatarquehouveumafalha estruturalnacomporta13esolicitaraosetorcompetenteumaanálisedetalhadadestafalhae nãoaceitarapenasasoluçãopropostapelaTRENSURBdeconstruirummuronaáreadesua responsabilidade.Comoatenuantes,cita-seofatodehaverapenasumservidoratuandona EquipedeProteçãoContraCheias,conformediscutidonoitemsobreaFragilidadesna IncorporaçãodasCompetênciasdoDEPAdemais,esteservidorpossuiformaçãoem engenhariaelétrica,nãotendoconhecimentoespecializadoemestruturasmetálicas.
Segundooartigo162doDecretoMunicipalnº21539(peça6718458),cabe àGerênciadeManutençãoIndustrial(GMAN),unidadedetrabalho(UT)subordinadaàDiretoria deTratamentodeÁguaeEsgotos:
I-orientar,coordenarecontrolarosserviçosnecessáriosàmanutenção,tanto preventivaquantocorretiva,dosequipamentoseinstalaçõeseletromecânicasdo 58

ESTADODORIOGRANDEDOSUL TRIBUNALDECONTAS
DIREÇÃODECONTROLEEFISCALIZAÇÃO SERVIÇODEAUDITORIADEPORTOALEGRE
DMAE;

IV-promoveracoleta,organizaçãoeinterpretaçãodeinformaçõestécnicas sobreequipamentoseletromecânicosehidráulicos,sugerindodiretrizes, especificações,instruções,planosespecíficosepadrõesdemanutenção;
Daleituradoartigo162,infere-sequeaGerênciadeManutençãoIndustrialdeveria teragidonosentidodequefosserealizadaumainvestigaçãotécnicaparadeterminaroque causouafalhanoportão13frenteaoeventodenovembrode2023etomadoprovidênciaspara corrigiroproblemaeconsertaracomporta,poisédesuaresponsabilidade"promoveracoleta, organizaçãoeinterpretaçãodeinformaçõestécnicassobreequipamentoseletromecânicose hidráulicos"e"orientar,coordenarecontrolarosserviçosnecessáriosàmanutenção,tanto preventivaquantocorretiva,dosequipamentoseinstalaçõeseletromecânicasdoDMAE"
Destaforma,deacordocomosartigoscitadosdoDecretoMunicipalnº21539,o DMAEpossuidoissetoresquepossuemcompetênciaseresponsabilidadesrelacionadoscomas comportasdosistemadeproteçãocontracheiasEstessetoressãoaGerênciadeManutenção IndustrialeaEquipedeProteçãoContraCheias
AchefiadestessetoresforamocupadaspelosenhorRafaelSpiesLopes,gerente responsávelpelaGerênciadeManutençãoIndustrialdaDiretoriadeTratamentodeÁguae Esgotos,desde01/08/2021(peça6718468)até31/10/2024(peça6718469)epelosenhor MarcosGoulartMachado,líderdaEquipedeProteçãoContraCheiasdoDMAEdesde2019 (peça6718459),conformerelatóriosdeocupantesdecargos(peça6718463)(peça 6718464)EsteúltimotambémeraoúnicoservidorlotadonaSeçãodeGerenciamentodo SistemadeProteçãoContraCheiasdaSMSURB,antesdaassunçãodessasatividadespelo DMAE(peça6718435)
Asomissõescaracterizamculpagraveouerrogrosseiro,umavezqueimplicaram graveinobservânciadodeverdecuidadoeafastaram-sedoreferencialdo"administradormédio", sendonotóriaeperceptívelporpessoadediligêncianormalqueeranecessáriaainvestigação dosindíciosdefalhanosportõeseacorreçãocéleredosproblemas
Registram-se,comocircunstânciasatenuantes,queambosossetoresapresentam fragilidadesparaaconsecuçãodesuasatribuições.
AGMANéresponsávelpelamanutençãodossistemasdeabastecimentodeágua, esgotocloacalepluvial,abarcando,assim,todosossistemasgeridospeloDMAEApesarda amplaabrangênciadesuaatuação,foramconstatadasfragilidadesnaestruturaçãodepessoal, demodoqueosetornãoteveaalocaçãosuficientedeservidoresparaaadequadaabsorçãodas atividadesdemanutençãoeletromecânicadoSPCC,consoanteapontadonoachado “FragilidadesnaIncorporaçãodasCompetênciasdoDEP”
EnquantonaEquipedeProteçãoContraCheias,oEngenheiroEletricistaMarcos 59


GoulartMachado,foioúnicoservidorlotado,sendodesignadocomolíderdeumaequipesem subordinados,sendo-lheatribuídaaresponsabilidadepordiversasatividades,envolvendo,a operaçãode23EBAPsetodoocomplexosistemadeproteçãocontracheias,paraoqual pressupor-se-iaanecessidadedoacompanhamentodasituaçãodetodososarroioseda adequaçãodascasasdebombas,dosdiques,domurodaMauáedascomportasexistentes, atividadesessascujodesempenhoenvolvemconhecimentostécnicosespecíficosdeengenharia civil,mecânica,elétricaehidráulica
Consequênciasparaaadministraçãoesociedade
Asvulnerabilidadesefalhasdascomportas13e14daAvenidaCastelo BrancopermitiramoinfluxodegrandesvolumesdeáguanobairroNavegantes,contribuindo paraainundaçãodacidadedePortoAlegre.
Consequentemente,aausênciadasaçõesnecessáriasresultouemprejuízos significativosaoeráriomunicipal,aindanãototalmentequantificados,masquejáperfazem quantiaestimadaentreR$6aR$8bilhões
Leiseoutrasnormasaplicáveisaocaso
LeiFederalnº10406/2002,artigo186
DecretoMunicipal21539/2022
LeiComplementarMunicipal133/1985,Artigo196,V
Conclusõesdaequipedeauditoria
Conclui-sequeafalhadascomportasdaavenidaCasteloBranco,emespeciala13e 14,permitiramaentradadegrandesvolumesdeágua,afetandotodaaregião.
Asfalhasdecorreramdaestruturaefixaçãodeficientesdascomportas,conforme demonstradopelolaudotécnicoencomendadopeloDMAE
Eraesperadoqueafalhaparcialdoportão13,jáem2023,fossesuficienteparaque oDMAEprocedessearevisãogeraldosportõesdoSPCC,emespecialdaquelescujaestrutura destoavadosdemais,comooportão14
Nãoháregistro,contudo,dequehouveumaverificaçãodaadequaçãodas comportasdaavenidaCasteloBrancoapósacheiadenovembrode2023,sendoqueolaudo estruturaldosequipamentossófoirealizadoapósacheiademaiode2024.Assimsendo,houve negligênciadoDMAE,responsávelpelamanutençãodascomportas
Responsabilização
Responsável1
Matrizderesponsabilização
Nome: RafaelSpiesLopes(CPF:008563180-94)

Função: GerentedeManutençãoIndustrial Períodode exercício: 01/08/2021a31/05/2024
Conduta:
Nexode causalidade:
Culpabilidade:

Nãoinvestigou,apósacheiadenovembrode2023,seascomportasdaavenidaCasteloBranco estavamcorretamenteprojetadas,fabricadaseinstaladasparasuportarosesforçosnocasode umagrandecheiadoGuaíba
Ascondutasomissivasresultaramnafaltadeaçõescorretivasnecessáriasnascomportas13e14 peloDMAE,providênciasquepoderiamterevitadoasfalhasocorridasnaenchentedemaiode 2024,aqualresultouemprejuízossignificativosaoeráriomunicipal,aindanãototalmente quantificados,masquejáperfazemquantiaestimadaentreR$6aR$8bilhões
Eraexigíveldoresponsávelcondutadiversa,diantedocontextoqueocercavaComogerentede ManutençãoIndustrial,eraesperadoquedeterminassearealizaçãodeumainvestigaçãotécnica paraverificarseacomporta13haviasidocorretamenteprojetada,fabricadaeinstalada,eque,ao menos,providenciasseoseuconsertoapósosdanoscausadospelascheiasdenovembrode 2023Talinvestigaçãopermitiriaaemissãodeumparecertécnicosobreainadequaçãoestrutural dascomportas13e14parasuportarapressãodaságuasemcasodeumagrandecheiado GuaíbaCombasenesseparecer,poderiamtersidoadotadasprovidênciascomoasubstituição dascomportasouatémesmoseufechamentodefinitivo medidaque,inclusive,foiadotadapelo municípioemrelaçãoàcomporta13,apósaenchentede2024Aomissãocaracterizaculpagrave ouerrogrosseiro,umavezqueimplicougraveinobservânciadodeverdecuidadoeafastou-sedo referencialdo"administradormédio",sendonotóriaeperceptívelporpessoadediligêncianormal queosepisódiosdemandavamaçãodeinvestigaçãoereparoRegistra-se,comouma circunstânciaatenuante,queaGMANéresponsávelpelamanutençãodossistemasde abastecimentodeágua,esgotocloacalepluvial,abarcando,assim,todosossistemasgeridos peloDMAEApesardaamplaabrangênciadesuaatuação,foramconstatadasfragilidadesna estruturaçãodepessoal,demodoqueosetornãoteveaalocaçãosuficientedeservidoresparaa adequadaabsorçãodasatividadesdemanutençãoeletromecânicadoSPCC,consoanteapontado noachado“FragilidadesnaIncorporaçãodasCompetênciasdoDEP”
Responsável2
Nome: MarcosGoulartMachado(CPF:881029800-44)
Função: LíderdaEquipedeProteçãoContraCheias
Períodode exercício: 28/04/2019a01/06/2024
Conduta:
Nexode causalidade:
Nãoregistroue/oudiligenciouaosetorcompetenteparaqueseprocedesseaumaanálise detalhadadafalhadacomporta13,apósosdanosocorridosem2023,assimcomonãoadotou providênciasparaquefosserealizadaarevisãogeraldascomportasapósasfalhasocorridas naqueleano
Ascondutasomissivasresultaramnafaltadeaçõescorretivasnecessáriasnascomportas13e14 peloDMAE,providênciasquepoderiamterevitadoasfalhasocorridasnaenchentedemaiode 2024,aqualresultouemprejuízossignificativosaoeráriomunicipal,aindanãototalmente quantificados,masquejáperfazemquantiaestimadaentreR$6aR$8bilhões
Culpabilidade: Eraexigíveldoresponsávelcondutadiversa,diantedocontextoqueocercavaComolíderda EquipedeProteçãoContraCheias,eraesperadoquerelatasseafalhadosportõesaosetor competenteaindaem2023esolicitasseumainvestigaçãodascausasDamesmaforma,era esperadoomonitoramentocontínuodosequipamentosdoSPCC,oqueidentificariaas fragilidadesquepermitiramapassagemdaságuaspelosportõesAomissãocaracterizaculpa graveouerrogrosseiro,umavezqueimplicougraveinobservânciadodeverdecuidadoeafastousedoreferencialdo"administradormédio",sendonotóriaeperceptívelporpessoadediligência normalqueosepisódiosdemandavamaçãodereparoComoatenuantes,cita-seofatodeo agentetersidooúnicoservidorlotadonaEquipedeProteçãoContraCheias,sendoresponsável pordiversasatividades,envolvendo,aoperaçãode23EBAPsetodoocomplexosistemade proteçãocontracheias,paraoqualpressupor-se-iaanecessidadedoacompanhamentoda situaçãodetodososarroiosedaadequaçãodascasasdebombas,dosdiques,domurodaMauá edascomportasexistentes,atividadesessascujodesempenhoenvolvemconhecimentostécnicos específicosdeengenhariacivil,mecânica,elétricaehidráulica
digitalmente por: Marcelo Kipper da Silva em 14/07/25, Leandro Lobato Camargo em 14/07/25, Leandro Torres em 14/07/25, Fabio Alex Beling em 14/07/25 e outro(s). Confira a autenticidade do documento em www.tce.rs.gov.br. Identificador: PRE.FE77.2360.2A1D.FC7C.62D4.


1Disponível em: https://gauchazhclicrbscombr/geral/noticia/2024/05/ha-possibilidade-dorompimento-de-outros-portoes-diz-diretor-geral-do-dmae-clvr0j2wq026p011wqe827or8html Consultadoem12-09-2024
2Disponívelem:https://wwwyoutubecom/live/vDugi5Yp4Rw?si=I31CF3bqRmNf7UF&t=24119 Acessoem:11/05/2025
3Disponível em: https://gauchazhclicrbscombr/porto-alegre/noticia/2023/11/comporta-cede-apressao-e-agua-invade-ruas-do-4o-distrito-na-capital-clp7yzry30023015t5at92le0html Consultadoem25-09-2024
4Disponívelem:https://gauchazhclicrbscombr/colunistas/jocimar-farina/noticia/2023/11/dmaeconclui-reparo-em-comporta-que-cedeu-clp9pdzgc000q016xlpkvh5bihtmlConsultadoem09-102024
5.1.3RedesConectadasDiretamenteaoGuaíbaeaoArroioDilúvio
Situaçãoencontradapelaequipedeauditoria
Nasregiõesdacidadequepossuembaixaaltitudeequeestãoprotegidaspelo sistemadeproteçãocontracheias,asredesdedrenagemnãosãoconectadasdiretamenteao GuaíbaouaalgumArroioafluenteaoGuaíbaAsredesdedrenagemnessasregiõessão direcionadasparaasestaçõesdebombeamentopluvial(EBAP),querecebemaságuasda cidadeeasencaminhamparaodestinofinal(Guaíbaouafluente).
Estaéaconcepçãoprojetadanosistemadeproteçãocontracheias,porémexistem algunslocaisnacidadeemqueestaregranãoéatendida,havendoredesqueestãoconectadas diretamenteaoGuaíbaouaoarroioDilúvio,conformeseráexplicado
Duranteacheiademaiode2024,ocorreuoretornodaságuasdoGuaíbaatravés destasredesconectadasdiretamenteaoGuaíbaounoDilúvio
Ouseja,aságuasescoaramemsentidoinverso,tendoemvistaoelevadonívelda águanoGuaíba
NodocumentoquetratasobreaanálisedainundaçãonaZonaNorteenoCentro, produzidopeloDMAE(peça6718448,p29),constaoseguinteparágrafosobreafalha emredesqueapesardelocalizadasnaáreaprotegidapeloSPCCligavam-sediretamenteao ArroioDilúvio:
Aquartaformadeentradadeáguasedeuatravésderedesqueapesarde localizadasnaáreaprotegidapeloSPCCligavam-sediretamenteaoArroio Dilúvio,causandoextravasamentoporPVseBLsàmedidaqueoníveldoLago GuaíbarepresouoreferidocórregoTalsituaçãoocorreunasAvenidasBorges deMedeirosePraiadeBelas,ondeoSPCCdeveriaserfechado,ouseja, deveriahaverumcoletorgeralaolongodaAvIpirangadestinandoaEBAP15 HápossibilidadedesituaçãosimilarterocorridonaAvMauácomaruaCaldas Júnior,ondehouveextravasamentoatravésdepoçodevisitajuntoaoMuroda MauáTalsituaçãopodeserdecorrentederedeligadadiretamenteaoLago, atravésdocais,ouderedeantigaquehaviasidotamponadaquandoda implantaçãodoSPCCequehouverompimentoemfunçãodapressãoexercida peloníveleáguadolagoduranteacheiaEmfunçãodeaindaestarelevado


estenível,nãohouveaindaviabilidadetécnicadesondagemnestelocalparaa corretaidentificaçãoHaveráaindanecessidadedeumarevisãogeraldasredes, afimdeidentificarsenãoháoutrassituaçõessimilaresaindanãoidentificadas
ConformenoticiadonositedeGZH1,nodia3dejunhode2024,aáguachegava atéaalturadojoelhonaavenidaAurelianodeFigueiredoPintoenaavenidaBorgesdeMedeiros tambémhaviapontoscomalagamentos.Ainda,conformeanotícia:
ODepartamentoMunicipaldeÁguaeEsgotos(Dmae)informouquenaquela região,oescoamentodaságuaspluviaisépormeiodagravidadeparaoArroio DilúvioComooníveldoGuaíbasegueelevado,oarroiotambémestácoma capacidadecomprometida,oquefazcomqueaáguaquedeveriaescoar, retornepelasbocasdelobo.
-Aliaáguaescoaporgravidadeenãoédirecionadaporcasadebombas Então,acabavariandocomoníveldoArroioDilúvioedoGuaíba,queocorrede subiredescerporvezesaodiaComoonívelaindaestáalto,acabarepresando duranteodiaEutenhorecebidoalgunsrelatosejápediparaumaequipe verificaraliseháalgumaalternativadiferentepraagentefazernaquelaregião paratentardrenaraquelaágua-explicouodiretor-geraldoDMAE,Mauricio Loss
ÉpossívelvisualizaralgumasdessasredesnoscadastrosoficiaisdaPrefeiturade PortoAlegre2Afiguraabaixodemonstraocadastrodaregiãoabrangendoaesquinadas avenidasIpirangacomBorgesdeMedeiros,ondeseobservaumaredepluvialdediâmetro800 mmlocalizadanaAv.BorgesdeMedeirossendoligadadiretamenteaoarroioDilúvio.Tambémé possívelvisualizarumaredepluvialdediâmetro1200mmnaAvPraiadeBelassendoligada diretamenteaoarroioDilúvioSãoestasredesqueoDiretor-GeraldoDMAErefereeque permitiramoretornodaságuasdoGuaíba.
ApesardestasredesestaremligadasaoarroioDilúvioenãodiretamenteaoGuaíba, estespontosdedescargaestãolocalizadosmuitopróximosàfozdoDilúvioDestaforma qualquerelevaçãodoGuaíbarefletediretamentenoníveldoarroionestelocal,fenômenoque éconhecidoemhidráulicafluvialcomoremanso.



Fonte:CadastrosoficiaisdaprefeituradePortoAlegre,disponívelem: https://dmweb.procempa.com.br/dmweb/expedienteUnico.seam?cid=1126.Consultadoem2310-2024
TambémépossívelvisualizarestasredesnoantigocadastrodoDEP,registradoem papel,quefoidigitalizadoporscannernoanode2006,conformefiguraabaixoPelaconvenção docadastrodoDEP,umalinhaintercaladacomumtraço,umpontoeoutrotraço,significauma rededediâmetro800mmeumaredeintercaladacomduasletrasVsignificaumaredede1200 mm,correspondendoaosmesmosdiâmetrosinformadosnocadastroatual.
Assinado digitalmente por: Marcelo Kipper da Silva em 14/07/25, Leandro Lobato Camargo em 14/07/25, Leandro Torres em 14/07/25, Fabio Alex Beling em 14/07/25 e outro(s). Confira a autenticidade do documento em www.tce.rs.gov.br. Identificador: PRE.FE77.2360.2A1D.FC7C.62D4.

ESTADODORIOGRANDEDOSUL TRIBUNALDECONTAS
DIREÇÃODECONTROLEEFISCALIZAÇÃO SERVIÇODEAUDITORIADEPORTOALEGRE


Fonte:CadastroantigodigitalizadodoDEP
Estasredesdeveriamtersidomodificadaseprovavelmentedirecionadasparauma estaçãodebombeamentopluvial,paraevitarasituaçãoqueocorreuduranteaenchentedemaio de2024,oquenãofoifeitoemsucessivasgestõesmunicipaisaolongodosanos
PesquisandonotíciasnaInternetsobrealagamentosnestaregião,encontra-seuma de23deoutubrode20153noticiandooseguinte:
Pelaquintavez,DEPtentadrenaráguanobairroPraiadeBelas
Moradoresconvivemcomalagamentosemresidências,bareseruashámaisde duassemanas
Quatrocaminhõeshidrojato,duasbombasdesucção,umcaminhão-bombae40 operáriosfazemparteda"operaçãodeguerra"coordenadapeloDepartamento deEsgotosPluviais(DEP)natardedestasexta-feiranobairroPraiadeBelas, naCapital.Estaéaquintatentativadedarvazãoàáguaquehámaisdeduas semanastomacontaderuasnosarredoresdaPraçaEspanha,incluindoa movimentadaAvenidaPraiadeBelas
Destavez,oobjetivoésugarpartedaáguaqueretornadaredede abastecimento,represadapeloArroioDilúviodevidoàcheiadoGuaíbaEssa

ESTADODORIOGRANDEDOSUL TRIBUNALDECONTAS
DIREÇÃODECONTROLEEFISCALIZAÇÃO SERVIÇODEAUDITORIADEPORTOALEGRE

águaestásendolevadaparaoutraredecomcapacidadedebombeamento Alémdisso,oshidrojatosestãosendousadosparalimparosencanamentos
Alémdeosistemanobairroserantigo-e,porisso,nãoestáligadoanenhuma casadebomba-,oproblemaéagravadopelolixo.
OdiretordoDEP,TarsoBoelter,contaqueoutrasquatrotentativasjáforam feitasparatentarsolucionaroproblemaTrêsdelascomcaminhõeshidrojatose aquarta,feitanestamadrugada,usandoummergulhadornoArroioDilúvio,para tentardesobstruirasaídadarededeabastecimentoNenhumaresolveuo problema.Nestaquintainvestida,osoperáriosficarão"atéresolver",dizBolter.
Umaobraemergencialestásendoestudada:ainversãodecercade60metros darede,entreaBarãodoGravataíeaAurelianoFigueiredo,fazendoqueesse trechoestejaligadoaumadascasasdebombaAindanãohávalorefontedo investimentoprevistos
Destaforma,constata-sequeem2015jáhaviaumdiagnósticodasituaçãodaredes conectadasdiretamenteaoDilúvioeciênciadoDiretorGeraldoDEP,propondoinclusiveuma obraparasolucionaroproblemaPorém,infere-sequenãofoiexecutadatalobra,tendoemvista queoproblemapersistiuatéacheiade2024easredesligadasaoarroioDilúviocontinuamno cadastro
Nacheiadenovembrode2023,novamentehouvealagamentosnaAvPraiade Belas,conformenoticiadopelaMetSul(figuranasequência)4:
AságuasdoGuaíbarefluíramtambémnaáreacentral,nobairroPraiadeBelas, outropontocríticoderefluxodeenchenteemcheiasdegrandeporteque atingemacidadedePortoAlegreAáguaseacumulavanaalturada churrascariaGarcias
Figura30–Notíciasobreorefluxoemgaleriasdedrenagempluvial



Fonte:https://metsulcom/com-comportas-abertas-guaiba-invade-porto-alegre-com-peixes-nasruas/
Damesmaforma,analisandoocadastronaregiãocentraldacidade,naAv.Mauánº 892,próximoàesquinadaruaCaldasJúnior,conformefiguraaseguir,verifica-sequetambém háredesligadasdiretamenteaoGuaíbaNestelocalexistemcasasdebombas,demodoque essasredes,alémdeexporemocentrodacidadeaoretornodaságuasdoGuaíba,são desnecessáriasparaadrenagem,poisexisteumaredequerecebeaságuasdetodasasredese asdirecionaparaacasadebombas
–CadastroderedesdosistemamunicipalDMWEB
Assinado digitalmente por: Marcelo Kipper da Silva em 14/07/25, Leandro Lobato Camargo em 14/07/25, Leandro Torres em 14/07/25, Fabio Alex Beling em 14/07/25 e outro(s). Confira a autenticidade do documento em www.tce.rs.gov.br. Identificador: PRE.FE77.2360.2A1D.FC7C.62D4.



Fonte:CadastrosoficiaisdaprefeituradePortoAlegre,disponívelem: https://dmweb.procempa.com.br/dmweb/expedienteUnico.seam?cid=1126.Consultadoem23-102024
Questionou-seaoDMAEparaqueinformassequaisprovidênciasforamtomadas,a partirdascheiasde2023,pararesolverorefluxodeáguanasredesconectadasaoarroioDilúvio (peça6486721)Emrespostafoiinformadooseguinte(peça6718470):
InformamosqueapósoEventoClimáticoExtremodemaio/2024procedemosa aberturadoprocesso2410000004903-1,destinadoespecificamenteà elaboraçãodeprojetodeimplantaçãoderedesparainterceptaçãodas descargasligadasdiretamenteaoArroioDilúvionasAvenidasPraiadeBelase BorgesdeMedeirosTalprojetoestásendodesenvolvidopeloContrato 2110000003117-9eemfunçãodacomplexidadedomesmoemdecorrência dasinterferênciasdeveestarconcluídonesteprimeirosemestre/2025,sendo necessárioposteriormentearealizaçãodelicitaçãoparaContrataçãoda ExecuçãodaObra
Destaforma,constata-sequesófoitomadaumaprovidênciaconcretaparaasolução permanentedorefluxodeáguanasredesconectadasaoarroioDilúvioapósaocorrênciada grandecheiademaiode2024OprocessoSEI2410000004903-1foiinstauradonodia3de junhode2024comaseguinteredação(peça6718471):
TendoemvistaaextremafragilidadedoSistemadeProteçãoContraCheias


decorrentedaexistênciade02redesinterligadasdiretamenteaoArroioDilúvio nasAvPraiadeBelaseBorgesdeMedeiros,quetemlevadoàcontinuidadeda inundaçãonaregião,solicitamoselaborarprojetodecoletorgeralqueconduzaà EBAP16ouàEBAP15(previstooriginalmentenoPDDrU)deformaprioritária atravésdoContratodeProjetosdeDrenagem
Ouseja,apósacheiademaiode2024foireconhecidapelaDiretoriadeGestãoe DesenvolvimentodoDMAE"a extrema fragilidade do Sistema de Proteção Contra Cheiasdecorrentedaexistênciade02redesinterligadasdiretamenteaoArroioDilúvio",porém talfragilidadejáeradeconhecimentodoDEPdesdepelomenos2015Acrescenta-setambémo fatodequenacheiadenovembrode2023houvealagamentonaregião,conformenoticiadopela MetSul
Segundooartigo90doregimentointernodoDMAE(peça6718458),cabeàDiretoria deGestãoeDesenvolvimento(DD),unidadedetrabalho(UT)subordinadaàDiretoria-Geral:
I-elaboraresupervisionarasatividadesrelacionadascomoplanejamentodos sistemasdeabastecimentodeágua,esgotamentosanitário,drenageme unidadesadministrativas;
Segundooartigo91doregimentointernodoDMAE(peça6718458),cabe àGerênciadePlanejamento(GPLA),unidadedetrabalho(UT)subordinadaàDiretoriade GestãoeDesenvolvimento:
I-formulareatualizarosplanoseprogramasdestinadosàampliaçãodos sistemasdeabastecimentodeágua,reduçãodeperdas,coletaetratamentode esgotosanitárioesistemasdedrenagem;
III-estudarascondiçõesatuaisdossistemasdeágua,deesgotamentosanitário ededrenagem,propondoasalteraçõesquesefizeremnecessáriasàobtenção demelhoraproveitamentodosmesmos;
TendoemvistaohistóricoderefluxodeáguanasredesconectadasaoarroioDilúvio, conformerelatadopelaimprensadesde2015eoseventosdeinundaçãorecentesde2023,seria esperadoqueaDiretoriadeGestãoeDesenvolvimento(DD)doDMAEbuscasseumasolução técnicaadequadaparaesteproblema,determinandoàGerênciadePlanejamento(GPLA)e/ouà GerênciadeProjetos(GPRO)56aelaboraçãodeestudoseprojetosparasolucionarorefluxo,o quesomenteocorreuapósacheiademaiode2024,conformeexplicadoacima
Comoconsequência,asituaçãocontinuousemsoluçãoetambémcontribuiu,de formaincisiva,paraainundaçãodosbairrosCentro,MeninoDeuseCidadeBaixa,ocorridaem maiode2024

ESTADODORIOGRANDEDOSUL TRIBUNALDECONTAS
DIREÇÃODECONTROLEEFISCALIZAÇÃO SERVIÇODEAUDITORIADEPORTOALEGRE

Diantedoexposto,verifica-sequeasresponsabilidadespelasituaçãoe consequênciasrecairiam,commaioroumenorgrau,acadaumdosgestoresresponsáveispelo DEP7epelaSMIM,antesdaincorporaçãodefinitivadasatividadesdosistemasdedrenageme doSPCCpeloDMAEem2022,quandoasresponsabilidadespassaramaserdaDiretoriade GestãoeDesenvolvimentoTodavia,paraosfinsdessaauditoria,aqualavaliouasúltimas gestõesafrentedoExecutivoMunicipaledoDMAE,asquaispoderiamteradotadomedidas pararesoluçãodessesproblemas,entende-sepossívelaimputaçãodaresponsabilidadeaos titularesdaDiretoriadeGestãoeDesenvolvimento(DD)
Destaforma,éimputávelaosocupantesdocargo/funçãodeDiretordeGestãoe DesenvolvimentodesdeaassunçãodefinitivadascompetênciasdoDEPpeloDMAEem2022,a responsabilidadepelaomissãoemdeterminaroplanejamentodemelhoriasnosistemade drenagem,consistentenaelaboraçãodeestudoseprojetosparasolucionarorefluxonessas redes
Noperíodoocargo/funçãofoiocupadopelosseguintesagentespúblicos:
MarcusViniciusCaberlon(PeríododeOcupaçãodoCargo:06/06/2022a 30/01/2023)(peça6718472);
MarcoAntonioGilFaccin(PeríododeOcupaçãodoCargo:08/03/2023atéo momento)(peça6718473);
Asomissõescaracterizamculpagraveouerrogrosseiro,umavezqueimplicaram graveinobservânciadodeverdecuidadoeafastaram-sedoreferencialdo"administradormédio", sendonotóriaeperceptívelporpessoadediligêncianormalqueeranecessáriaaadequaçãodo sistemapluvial.
Comoatenuantedaresponsabilidadedessesagentes,pode-semencionarque, consoanteregistradonoachado"FragilidadesnaIncorporaçãodasCompetênciasdoDEP",a GPLAnuncateveoingressodeumefetivodeservidoressuficienteparaarealizaçãode competênciasrelacionadasaoplanejamentodeprojetosdeinfraestruturaedossistemasde drenagemeproteçãocontracheias,bemcomoaGPROnãodispunhadeservidorespara atuaçãoexclusivanossistemasdedrenagemedeproteçãocontracheias
Alémdisso,háqueseconsiderarocontextodeincapacitaçãooperacional generalizadadoDMAE,conformeapontadonoachado"FaltadeEstruturaçãodePessoal", especialmenteparaabsorçãodascompetênciasincorporadas,comprejuízosaoplanejamento deprojetoseaocumprimentosatisfatóriodasdemaisatividadesincumbidasaoDMAErelativas aosistemadedrenagemeàoperação,manutençãoecontroledoSPCC,circunstânciasque foramdeterminantesparaainexecuçãodasaçõesnecessáriasparaaidentificaçãodasfalhas existenteseparaofracassodoórgãonagestão,manutenção,conservaçãoeoperaçãodo sistema
Consequênciasparaaadministraçãoesociedade OretornodeáguapelasredesconectadasdiretamenteaoGuaíbaeaoarroio 70
digitalmente por: Marcelo Kipper da Silva em 14/07/25, Leandro Lobato Camargo em 14/07/25, Leandro Torres em 14/07/25, Fabio Alex Beling em 14/07/25 e outro(s). Confira a autenticidade do documento em www.tce.rs.gov.br. Identificador: PRE.FE77.2360.2A1D.FC7C.62D4.

ESTADODORIOGRANDEDOSUL TRIBUNALDECONTAS
DIREÇÃODECONTROLEEFISCALIZAÇÃO SERVIÇODEAUDITORIADEPORTOALEGRE

Dilúviocontribuiu,deformaincisiva,paraainundaçãodosbairrosCentro,MeninoDeuseCidade Baixa,ocorridaemmaiode2024
Consequentemente,aausênciadasaçõesnecessáriasresultouemprejuízos significativosaoeráriomunicipal,aindanãototalmentequantificados,masquejáperfazem quantiaestimadaentreR$6aR$8bilhões
Leiseoutrasnormasaplicáveisaocaso
LeiFederalnº10406/2002,artigo186 DecretoMunicipal21.539/2022.
LeiComplementarMunicipal133/1985,artigo196,V
Conclusõesdaequipedeauditoria
OretornodeáguapelasredesconectadasdiretamenteaoGuaíbaeaoarroio Dilúviocontribuiu,deformaincisiva,paraainundaçãodosbairrosCentro,MeninoDeuseCidade Baixa,ocorridaemmaiode2024.
Emborasejaevidentequehouveanegligênciaporpartedesucessivasgestões municipais,quenãoadotaramprovidênciasparadesconectaressasredes,umavezqueera sabidoqueocorreriaoretornodaáguanessespontosemcasodecheiadoGuaíba,aoDMAE, nacondiçãoderesponsávelpeloSPCC,competiaaadequaçãodosistemadeesgotopluvial
Noentanto,nãoérazoávelqueafaltadeprovidênciasporpartedegestões passadassirva,agora,comosubterfúgioparaqueasgestõesmaisrecentespossamse omitirquantoàsresponsabilidadeslegalmenteassumidas,precipuamentedefinidasem legislaçõescontemporâneaspublicadasporelaspróprias
Talraciocíniolevariaàconclusãodequeseriaadmitidaafaltadeprovidênciasad aeternumporpartedosgestoresresponsáveis,demodoaisentarasrecentesgestõesque sinalizaramparaatençãoàresiliência,prevençãoderiscoseenfrentamentodasmudanças climáticas,masquenapráticanãoadotaramasprovidênciascabíveisnoquetangeaoadequado funcionamentodoSPCC
Responsabilização
Responsável1
Matrizderesponsabilização
Nome: MarcoAntonioGilFaccin(CPF:804093500-87)
Função: Engenheiro-DiretordaDiretoriadeGestãoeDesenvolvimento
Períodode
exercício: 08/03/2023a31/12/2024
Conduta: Omissãoemdeterminaroplanejamentoeaelaboraçãodeestudoseprojetosparasolucionaro refluxonasredesdasAvenidasBorgesdeMedeirosePraiadeBelas,conectadasdiretamenteao ArroioDilúvio,bemcomoorefluxonarededaAvenidaMauáeRuaCaldasJúnior,conetadas diretamenteaoGuaíba
Assinado digitalmente por: Marcelo Kipper da Silva em 14/07/25, Leandro Lobato Camargo em 14/07/25, Leandro Torres em 14/07/25, Fabio Alex Beling em 14/07/25 e outro(s). Confira a autenticidade do documento em www.tce.rs.gov.br. Identificador: PRE.FE77.2360.2A1D.FC7C.62D4.

ESTADODORIOGRANDEDOSUL TRIBUNALDECONTAS
DIREÇÃODECONTROLEEFISCALIZAÇÃO SERVIÇODEAUDITORIADEPORTOALEGRE
Nexode causalidade:

Aausênciadoplanejamentodeestudoseexecuçãodeprojetosparaisolarasredesdedrenagem pluvialperpetuouumacondiçãofavorávelaorefluxodeáguanasredesduranteacheia,oque contribuiu,deformaincisiva,paraainundaçãodosbairrosCentro,MeninoDeuseCidadeBaixa, ocorridaemmaiode2024,resultandoemprejuízossignificativosaoeráriomunicipal,aindanão totalmentequantificados,masquejáperfazemquantiaestimadaentreR$6aR$8bilhões
Culpabilidade: Eraexigívelcondutadiversadoagente,pois,nacondiçãodeDiretordaDiretoriadeGestãoe Desenvolvimento(DD),cabiaaeleplanejaresupervisionarasatividadesdossistemasde drenagemDessaforma,erasuaresponsabilidadebuscarumasoluçãoparaorefluxodaságuas, querepresentavaumafalhaevulnerabilidadenosistemaAomissãocaracterizaculpagraveou errogrosseiro,umavezqueimplicougraveinobservânciadodeverdecuidadoeafastou-sedo referencialdo"administradormédio",sendonotóriaeperceptívelporpessoadediligêncianormal anecessidadedeadequaçãodosistemapluvialdiantedosepisódiospretéritosNoentanto,há atenuantesaconsiderarAGerênciadePlanejamentoeProjetos(GPLA)nuncatevepessoal suficienteparaplanejarprojetosdeinfraestruturaedossistemasdedrenagemeproteçãocontra cheiasDamesmaforma,aGerênciadeProjetos(GPRO)nãocontavacomservidoresdedicados aessasáreasAlémdisso,oDMAEenfrentavaumaincapacidadeoperacionalgeneralizada, especialmenteparaassumirasnovascompetências,oqueprejudicouoplanejamentodeprojetos eocumprimentodeoutrasatividadesligadasàdrenagemeaoSPCCEssascondiçõesforam decisivasparaqueasaçõesnecessáriasàidentificaçãodefalhasnãofossemrealizadas,eparao insucessodoórgãonagestão,manutenção,conservaçãoeoperaçãodosistema
Responsável2
Nome: MarcusViniciusCaberlon(CPF:198669250-72)
Função: DiretordaDiretoriadeGestãoeDesenvolvimento
Períodode exercício: 06/06/2022a30/01/2023
Conduta:
Nexode causalidade:
Omissãoemdeterminaroplanejamentoeaelaboraçãodeestudoseprojetosparasolucionaro refluxonasredesdasAvenidasBorgesdeMedeirosePraiadeBelas,conectadasdiretamenteao ArroioDilúvio,bemcomoorefluxonarededaAvenidaMauáeRuaCaldasJúnior,conetadas diretamenteaoGuaíba
Aausênciadoplanejamentodeestudoseexecuçãodeprojetosparaisolarasredesdedrenagem pluvialperpetuouumacondiçãofavorávelaorefluxodeáguanasredesduranteacheia,oque contribuiu,deformaincisiva,paraainundaçãodosbairrosCentro,MeninoDeuseCidadeBaixa, ocorridaemmaiode2024,resultandoemprejuízossignificativosaoeráriomunicipal,aindanão totalmentequantificados,masquejáperfazemquantiaestimadaentreR$6aR$8bilhões
Culpabilidade: Eraexigívelcondutadiversadoagentepois,nacondiçãodeDiretordaDiretoriadeGestãoe Desenvolvimento(DD),cabiaaeleplanejaresupervisionarasatividadesdossistemasde drenagemDessaforma,erasuaresponsabilidadebuscarumasoluçãoparaorefluxodaságuas, querepresentavaumafalhaevulnerabilidadenosistemaAomissãocaracterizaculpagraveou errogrosseiro,umavezqueimplicougraveinobservânciadodeverdecuidadoeafastou-sedo referencialdo"administradormédio",sendonotóriaeperceptívelporpessoadediligêncianormal anecessidadedeadequaçãodosistemapluvialdiantedosepisódiospretéritosNoentanto,há atenuantesaconsiderarAGerênciadePlanejamentoeProjetos(GPLA)nuncatevepessoal suficienteparaplanejarprojetosdeinfraestruturaedossistemasdedrenagemeproteçãocontra cheiasDamesmaforma,aGerênciadeProjetos(GPRO)nãocontavacomservidoresdedicados aessasáreasAlémdisso,oDMAEenfrentavaumaincapacidadeoperacionalgeneralizada, especialmenteparaassumirasnovascompetências,oqueprejudicouoplanejamentodeprojetos eocumprimentodeoutrasatividadesligadasàdrenagemeaoSPCCEssascondiçõesforam decisivasparaqueasaçõesnecessáriasàidentificaçãodefalhasnãofossemrealizadas,eparao insucessodoórgãonagestão,manutenção,conservaçãoeoperaçãodosistema
Notas
1Diponívelem:https://gauchazhclicrbscombr/porto-alegre/noticia/2024/06/bairro-praia-de-belasregistra-novos-alagamentos-nesta-segunda-feira-clwyspize0006015dmm1sik2rhtmlConsultado em23-10-2024
2Disponível em: https://dmwebprocempacombr/dmweb/expedienteUnicoseam?cid=1126 Consultadoem23-10-2024
3https://gauchazhclicrbscombr/porto-alegre/noticia/2015/10/pela-quinta-vez-dep-tenta-drenar72
Assinado digitalmente por: Marcelo Kipper da Silva em 14/07/25, Leandro Lobato Camargo em 14/07/25, Leandro Torres em 14/07/25, Fabio Alex Beling em 14/07/25 e outro(s). Confira a autenticidade do documento em www.tce.rs.gov.br. Identificador: PRE.FE77.2360.2A1D.FC7C.62D4.


DIREÇÃODECONTROLEEFISCALIZAÇÃO SERVIÇODEAUDITORIADEPORTOALEGRE
agua-no-bairro-praia-de-belas-4885348html¿
4Disponível em: https://metsulcom/com-comportas-abertas-guaiba-invade-porto-alegre-compeixes-nas-ruas/Acessoem:13/05/2025
5AGPROnãotevesuascompetênciasatualizadasnoRegimentoInternodoDMAE,demodoque nanormativaaindaconstamascompetênciasdaextintaGerênciadeProjetoseObras Considerandoapenasascompetênciasrelativasaprojetos,podeseextrairqueaGPROpossui atribuiçõesrelacionadasàorientaçãoeaosupervisionamentodasatividadesatinentesà elaboraçãodeprojetosdeampliaçãoemelhorianossistemasdeágua,esgotosanitárioe drenagem
6AGPROnãotevesuascompetênciasatualizadasnoRegimentoInternodoDMAE,demodoque nanormativaaindaconstamascompetênciasdaextintaGerênciadeProjetoseObras Considerandoapenasascompetênciasrelativasaprojetos,podeseextrairqueaGPROpossui atribuiçõesrelacionadasaorientaçãoeaosupervisionamentodasatividadesatinentesà elaboraçãodeprojetosdeampliaçãoemelhorianossistemasdeágua,esgotosanitárioe drenagem
7CombasenarespostaapresentadapeloExecutivoMunicipal,oDEPnãopossuiaumregimento internocomodevidodetalhamentodascompetênciasdosseussetoresinternos
5.1.4FalhasEstruturaisnasEstaçõesdeBombeamentoPluvialedeÁguaBruta
Situaçãoencontradapelaequipedeauditoria
Osistemadeproteçãocontracheiasdomunicípiocontaatualmentecom23Estações deBombeamentodeÁguasPluviais(EBAPs),ouCasasdeBombas(CBs)comoeram chamadaspeloDEP,quetêmcomofunçãoreceberaságuaspluviaisdasregiõesdebaixa altitude,atravésderedesdedrenagem,eencaminhá-lasparaoGuaíbaoualgumarroio,sejapor açãodagravidade,atravésdecomportas,sejaporbombeamento
NolivroPreveniréoMelhorRemédio1,quetratadeenchentede1941edosistema deproteçãoconstruído,escritopeloentãoDiretor-GeraldoDEPem1992,existeumaexplicação paraofuncionamentodasestaçõesdebombeamentopluvialoucasasdebombas(CBs):
Normalmente,emtemposeco,osriosestãoemnívelbaixo,eoescoamento passanaturalmentepelaCBschegandoaosriosearroiosporgravidadeMesmo assimasbombassãoacionadasperiodicamenteparadarmaiorvelocidadeaos esgotos,reduzindoasedimentaçãonoscanosecanais;
ComaocorrênciadechuvasnasregiõesdosriosformadoresdoGuaíba,suas águaselevam-seesuaentradapeloscanaisdedescargadaCBséobstruída porcomportas;
Ocorrendo,simultaneamenteounão,chuvasemPortoAlegre,aságuassão drenadasparaospoçosdasCBs,ondeentãosãobombeadasparaosriosou arroios
Assimascasasdebombasatuamtantoemrelaçãoàentradadainundação comoemrelaçãoàdrenageminternadacidade
Emoutroparágrafo,olivrofazreferênciaaoníveldecheiaquefoiusadocomo parâmetrodeproteçãodacidade:

ESTADODORIOGRANDEDOSUL TRIBUNALDECONTAS
DIREÇÃODECONTROLEEFISCALIZAÇÃO SERVIÇODEAUDITORIADEPORTOALEGRE

Oprojeto,deresponsabilidadedoDNOS(DepartamentoNacionaldeObrase Saneamento)tomoucomoreferênciaaenchentede1941,estabelecendo-sea cotadecoroamento6,0m,possibilitandoumamargemdesegurançade1,25m
Ouseja,asestaçõesdebombeamentodeáguaspluviaisforamprojetadaspara permitirumfuncionamentoadequadodadrenagemdacidadetantoemsituaçõesdeníveis normaisdoGuaíbaquantoemsituaçõesdecheia,atéolimitefuncionaldascâmarasdeexpurgo Nasseçõesiniciaisdestetrabalhoéapresentadoumafiguracomalocalizaçãodasestaçõesde bombeamentodeáguaspluviais
AfimdeoperaremtambémemcondiçõesemqueoGuaíbaestáelevado,verifica-se queaconcepçãodessesequipamentospreviucâmarasdedespejoherméticasepressurizadas ouelevadasàcotade6metros(peça6779620),conformeatabelaabaixo:
Quadro2–CotasesoluçõesdascâmarasdedespejodasEBAPs
EBAP CotaLimiteda
8 3m VilaFarrapos-AceleraescoamentoatéaEBAPnº5 9 8m 10 6,5m ..
11AeB 5,2m DiqueArroioCavalhada-TampaHermética 12 6m
13 3,55m TampaHermética
14 6m DiqueDilúvio
15 6m DiqueDilúvio 16 6m 17 - TampaHermética 18 - TampaHermética 19 5,8m DiqueDilúvio 20 6m 21 3,2m AsaBranca-Conduzacanaldedrenageminterno 22 - TrincheiradaCeará
Fonte:(peça6779620).
ConformejádetalhadonaseçãointrodutóriaquecaracterizouoSPCC,éimportante reiterarqueolimitefuncionaldasEBAPs nasestaçõesemquehácâmarasdeexpurgo elevadasenãopressurizadas ésensivelmenteinferioraolimitefísicodessascâmarasEm umasituaçãodecheiacomníveldoGuaíbaatingindoacotalimitede6metros,essasEBAPs nãoteriamcapacidadedebombeareficientementeaáguadointeriordosistemaparaocorpo receptorNoentanto,essalimitaçãooperacionalnãodeveriaimportarnoretornodaságuasdo Guaíbaaointeriordosistema.

ESTADODORIOGRANDEDOSUL TRIBUNALDECONTAS
DIREÇÃODECONTROLEEFISCALIZAÇÃO SERVIÇODEAUDITORIADEPORTOALEGRE

Nodia3demaiode2024,houvediversosregistrosdamídia,emtransmissõesao vivo,pelainternet2etambémpormeiodevídeosefotosemredessociais,quemostramo refluxodaságuaspelasgaleirasdedescargadasEBAPs17e18,comaságuasvertendo atravésdopisodestasestações,momentoemqueoGuaíbaencontrava-seentreas cotas3,70me4,59m,aindaabaixodoreferencialde4,71mde1941
AfotoabaixoilustraáguasvertendoatravésdopisodaEBAP173,queselocaliza naesquinadaRuaSiqueiraCamposeAvenidaPadreTomé,juntoaoPalácioFloresdaCunha, sededesteTribunaldeContas
Figura32–ExtravasamentodeáguanaEBAP17

Fonte:VídeoanônimoDeoutroângulo,noreporteaovivodaRádioGaúcha4Data03/05/2024, 10:12,cotadoGuaíbaentre3,70me4,59m.
OpróprioDMAE,emdocumentointerno(peça6718448,p29),enumeraestacomo umadasformasdeentradadaságuasdoGuaíbanacidade:
Porúltimo,aquintaformadeentradadeáguasedeuatravésdosEquipamentos (EBAPseEstaçõesdeBombeamentodeÁguaBruta)Conformedivulgado, houvedeficiêncianasEBAPs17e18,ambaslocalizadasnaAvMauá, decorrentedoníveldopoçodedescargadentrodasEstações,osquais deveriamserelevadosnamesmacotadoSPCCoudeveriampossuirtampas 75
Assinado digitalmente por: Marcelo Kipper da Silva em 14/07/25, Leandro Lobato Camargo em 14/07/25, Leandro Torres em 14/07/25, Fabio Alex Beling em 14/07/25 e outro(s). Confira a autenticidade do documento em www.tce.rs.gov.br. Identificador: PRE.FE77.2360.2A1D.FC7C.62D4.

ESTADODORIOGRANDEDOSUL TRIBUNALDECONTAS
DIREÇÃODECONTROLEEFISCALIZAÇÃO SERVIÇODEAUDITORIADEPORTOALEGRE
herméticasfortementeestruturadaspararesistiràpressão

Damesmaforma,orelatórioelaboradoporespecialistasholandeses5(peça 6718430,p17)mencionao"retornodoescoamentonasbombasdevidoàfaltadeválvulasde retenção"comoumadasformascomoaságuasinvadiramacidadeEmboraoreferidorelatório indiqueaausênciadessasválvulas(tambémchamadasdecomportasdegravidade),asEBAPs analisadaspelaauditoriadefatoaspossuem,sendoquenãoforamdiagnosticadasfalhasem seufuncionamentoduranteaenchenteContudo,issonãopermiteafirmarcomsegurança queessasfalhasnãotenhamocorrido,sendorecomendávelqueoDMAEatenteparaa revisãodaefetivafuncionalidadedessesequipamentos.
Duranteasvisitasinlocorealizadaspelaequipedeauditoria,verificou-seque tambémocorreurefluxodeáguasnaEBAPnúmero13,localizadanoParqueMarinhadoBrasil EssaEBAPpossuiamesmaconcepçãodasEBAPs17e18,mas,diferentemente,nãofoialvo deregistrosprévios doDMAEconstatandofalhasAlémdisso,tambémteveaçõesde manutençãorecentes,oqueseráabordadoemitemespecíficodesterelatórioPode-seobservar nafotoumsacocomareiaquefoicolocadosobreatampametálica(pintadacomfaixas amarelas)natentativadetentarimpedirorefluxodaágua

Outrasituaçãoderefluxofoiidentificadanasestaçõesdebombeamentodeágua bruta(EBABs)SãoJoãoeMoinhosdeVentodoDMAE,localizadasnaavenidaVoluntáriosda PátriaEstasEBABspossuemtubulaçõesquecaptamaáguadoGuaíba,estandoenterradasno solo,passandoporbaixodaavenidaCasteloBrancoeasdirigematéumpoçodecaptaçãopara posteriorbombeamentoparaasestaçõesdetratamentodeáguaOpróprioDMAEreferiuemum

ESTADODORIOGRANDEDOSUL TRIBUNALDECONTAS DIREÇÃODECONTROLEEFISCALIZAÇÃO SERVIÇODEAUDITORIADEPORTOALEGRE

relatório(peça6718448,p30)quehouveextravasamentonestasEBABsOextravasamentose deuatravésdastampasegradesdopoçoquepodemservisualizadasnafotoabaixo
Figura34–PoçodecaptaçãodasEBABs

Fonte:AcervodaEquipedeAuditoria.
AentradadeáguaporEBAPséalgoespecialmentegrave,pelofatodelasedar justamenteporumafalhaemumequipamentoquedeveriaservirdedefesaparaacidadecontra asenchentesOutrossim,nãoéaceitáveleesperadaaocorrênciaderefluxoemEBABs, estaçõesdestinadasàcaptaçãodeáguabruta
Em5desetembrode2018,doisengenheirosdoDMAEencaminharamum despacho(peça6718437),autuadonoprocessoSEI180000087475-9,solicitandoanálisedo projetoedaobradascasasdebombas17e18,nosseguintestermos:
AoCMO
Solicitamosqueseencaminheparaasáreasdeengenhariadeobraseprojetos daSecretáriaMunicipaldeInfraestruturaMobilidade(SMIM),preferencialmente aostécnicosdaantigaDOPdoDEP,opedidodeanálisedoprojetoedaobra dascasasdebombas17e18nointuitodeavaliarsenacondiçãoquefoi concebidaouconstruídanãorestouumafalhanaproteçãoemrelaçãoas(sic) 77


cheiasdorioaníveissuperioresa(sic)cota3,00matéoníveldacota6,00m
Duranteosprocessoseencaminhamentodemanutençãodecomportasnesses locaisosengenheiros verificaramapossibilidadedehaverfalhanosistemade descargadasbombaspossibilitandootransbordamentodaságuasdoGuaíba nosnichosapósascomportasdegravidadeedescargadentrodoprédiodas casasdebombas,quandohouveremníveisdecheiaelevados.Aparentementea únicabarreirasãotampasdeferrocomum(chapaxadrez)nopisoeinstaladas, noentendimentodeambos,semoobjetivodevedaçãodaqueleponto,massim apenasparaimpedirquedasnopoçoCasoseconstateoproblemainformamos queseránecessário(sic)osajustespararepararoproblemaoquantoantes paraevitarafalhadosistemadosmurosdaMauá
Em22dejaneirode2019houveumencaminhamentoaosetorDOP/DEP-SMIM, paraconhecimento,análiseemanifestação(peça6718474,p4)
Emresposta,foielaboradoumrelatóriofotográfico(peça6718475)demonstrandoas fragilidadesdaEBAP17Asfigurasaseguirdemonstram,noprojetoenolocal,astampasde ferroinstaladasquenãoforamprojetadasparasuportarapressãoascendentedaságuas, quandooníveldoGuaíbaestáacimade3,30m,conformeconstanorelatório:
Pontovulnerável–possibilidadedeextravasaracâmaradedespejoquando níveldoGuaíbasobeacimadacota3,30meavedaçãonãosuportarapressão.

Fonte:ProcessoSEI180000087475-9
Assinado digitalmente por: Marcelo Kipper da Silva em 14/07/25, Leandro Lobato Camargo em 14/07/25, Leandro Torres em 14/07/25, Fabio Alex Beling em 14/07/25 e outro(s). Confira a autenticidade do documento em www.tce.rs.gov.br. Identificador: PRE.FE77.2360.2A1D.FC7C.62D4.


DIREÇÃODECONTROLEEFISCALIZAÇÃO SERVIÇODEAUDITORIADEPORTOALEGRE
Figura36–Tampasdeferrosemvedação

Fonte:ProcessoSEI180000087475-9
Afotoacima,dointeriordaEBAP,possuiaseguintelegenda:
Vedaçãoemchapasmetálicasquedeveriamimpedirorefluxonacâmarade despejo,maspermitiroacessoàmanutençãodascomportasdedescargae válvulasFlap.
Juntamentecomesterelatóriofotográfico,foiemitidoumparecerpelo engenheiroRobertoFredericoKranz,em31dejaneirode2019(peça6718474,p.10),como seguinteconteúdo:
digitalmente por:
da
em 14/07/25,
em 14/07/25,
em 14/07/25, Fabio Alex Beling em 14/07/25 e outro(s). Confira a autenticidade do documento em www.tce.rs.gov.br. Identificador: PRE.FE77.2360.2A1D.FC7C.62D4.

ESTADODORIOGRANDEDOSUL TRIBUNALDECONTAS
DIREÇÃODECONTROLEEFISCALIZAÇÃO SERVIÇODEAUDITORIADEPORTOALEGRE
AoGS-SMIM

SimhávulnerabilidadenascâmarasdedespejodasCB17eCB18,ver informação5970072,masnadaqueumaretificaçãonaconstruçãonãopossa resolver,tipoimplantaçãodepoçosdevisita(PVs)comtampasestanques semelhantesasutilizadasnosCondutosForçadosPluviais
FinalmenteregistramosanecessidadedeumaqualificaçãodaCB17como espaçourbanodaregiãoeaí,seriaoportuno,inclui-la(sic)nasmedidas compensatóriasdeempreendimentosnaregião,DiretrizesdoEmpreendimento CaisMauáououtros
Existemalternativasmodernasdebombeamentoquedispensamaestrutura apresentadanaCB17não(sic)seriaesteomomentoapropriadopara inovaçõesnosetor?
Em20defevereirode2019,aCOORDENAÇÃODEMANUTENÇÃOE OPERAÇÕES-SMSURBsolicitouàSMIMeGS(peça6718474,p16):Favorretornarcom sugestõeseaçõesconcretasparaanecessidadeevulnerabilidadenasCBs.
Em21demaiode2019houveumdespachopelogestordaDIVISÃODEOBRASE PROJETOS(ESGOTOSPLUVIAIS)-SMIM,nosseguintestermos(peça6718474,p18):
A SO-SMIM
FAVOR FAZER RELAÇÃO DE ITENS DE MELHORIAA SEREM IMPLEMENTADOSNASCB's,ATENDENDOPRÓPRIAINDICAÇÃOCOMO ABAIXODESCRITO:
"hávulnerabilidadenascâmarasdedespejodasCB17eCB18,verinformação 5970072,masnadaqueumaretificaçãonaconstruçãonãopossaresolver,tipo implantaçãodepoçosdevisita(PVs)comtampasestanquessemelhantesas utilizadasnosCondutosForçadosPluviais
FinalmenteregistramosanecessidadedeumaqualificaçãodaCB17como espaçourbanodaregiãoeaí,seriaoportuno,inclui-lanasmedidas compensatóriasdeempreendimentosnaregião,DiretrizesdoEmpreendimento CaisMauáououtros
Existemalternativasmodernasdebombeamentoquedispensamaestrutura apresentadanaCB17nãoseriaesteomomentoapropriadoparainovaçõesno setor?"
Incluircomandoeletrônicoàdistância,quadrodecomandoparaacoplarGrupo Gerador,sistemadeproteçãocontrasurtosnoQuadroElétricoPrincipal
Posteriormente,houvenovodespachosomenteem02deoutubro2023,apósa cheiadesetembrode2023,ondeaCOORDENAÇÃODEOBRASESPECIAISDE 80
Assinado digitalmente por: Marcelo Kipper da Silva em 14/07/25, Leandro Lobato Camargo em 14/07/25, Leandro Torres em 14/07/25, Fabio Alex Beling em 14/07/25 e outro(s). Confira a autenticidade do documento em www.tce.rs.gov.br. Identificador: PRE.FE77.2360.2A1D.FC7C.62D4.

ESTADODORIOGRANDEDOSUL
SERVIÇODEAUDITORIADEPORTOALEGRE

ESGOTAMENTOSANITÁRIOEDEDRENAGEM-GDA/DG/DMAEencaminhaoprocessoSEI aoDD-DMAE,porsolicitação(peça6718474,p19)
Assimsendo,apesardetersidofeitoumdespachopelogestordaDIVISÃODE OBRASEPROJETOS-SMIM,em21demaiode2019,solicitandoumarelaçãodeitensa seremmelhorados,nãohánoprocessoumarespostaaestedespacho,caracterizandoinérciado responsávelporatenderasolicitação
AEquipedeAuditoriasolicitouosprojetosdetodasasEBAPs,juntamentecomtoda adocumentaçãorelacionada,comoestudos,memoriaisdescritivos,memoriaisdeprojetoetcFoi fornecidamuitopoucadocumentação,basicamentealgunsdesenhosdasEBAPs,nãosendo alcançadonenhumdocumentodescritocomomemoriaisouestudosespecíficosrelacionadosao projetooriginal;somenteestudosparaampliaçãodaEBAPsProvavelmenteamaiorparteda documentaçãotenhasidoperdidanatransiçãoderesponsabilidadesobreosistemadeproteção entreoantigoDNOSeoDEPe/ouentreoDEPeoDMAE
ExaminandoosdesenhosdaEBAP17,nãoseidentificounenhumelementoque evitasseoextravasamentoidentificadopelosengenheirosdoDMAE.Ouseja,aEquipe concordacomasconclusõessobreasvulnerabilidadesaquehaviamchegadoosengenheiros doDMAE.
Porém,nosdesenhosrelativosàEBAP18,existeumapranchadeprojetoque detalhaumelementodevedação(borracha)eparafusosdefixaçãoquedeveriamtersido utilizadonastampasdestaEBAPtornando-asvedadasàáguapressurizada(herméticas), conformepode-seobservarnafiguraaseguir.
EstastampasprecisamserpressurizadasporqueseocorrerumacheiadoGuaíba,o aumentodoníveldeáguapodefazercomqueocorraoextravasamentodestas,seastampas assimnãoforemAborrachadevedaçãoserveparapreencherasfrestasentreatampametálica eabaseondeelaestáapoiada,eosparafusosservemparafixaratampa,poisaáguaexerce umaforçadebaixoparacimaquetendealevantaratampa,situaçãolimiteque,se concretizada,permiteapassagemdaáguaeinundaointeriordaCB
Figura37–DetalhedevedaçãodaCB18.



Fonte:ProjetosDNOS
Damesmamaneira,nosprojetosdaEBAP13tambémexisteumdetalhamento mostrandotampaspressurizadasAfiguraabaixodemostraumrecortedaplantabaixada EBAP,comassetasemvermelhoindicandoaposiçãodasduastampaspressurizadas.Atampa doladoesquerdodaplantaequivaleàtampada2ªfiguradestaseção"TampametálicanaEBAP 13"
www.tce.rs.gov.br. Identificador: PRE.FE77.2360.2A1D.FC7C.62D4.

ESTADODORIOGRANDEDOSUL TRIBUNALDECONTAS
DIREÇÃODECONTROLEEFISCALIZAÇÃO SERVIÇODEAUDITORIADEPORTOALEGRE


Fonte:ProjetosDNOS
Nafiguraaseguir,demonstra-seumrecortecommaisampliaçãoondesepodeler "TAMPAPRESSURIZADA"
Figura39–PlantabaixaampliadadaCB13
Assinado digitalmente por: Marcelo Kipper da Silva em 14/07/25, Leandro Lobato Camargo em 14/07/25, Leandro Torres em 14/07/25, Fabio Alex Beling em 14/07/25 e outro(s). Confira a autenticidade do documento em www.tce.rs.gov.br. Identificador: PRE.FE77.2360.2A1D.FC7C.62D4.

ESTADODORIOGRANDEDOSUL


Fonte:ProjetosDNOS
Nãoexistenenhumregistrodequetenhahavidoalteração,aolongodotempo,dos projetosoualgumareformadasEBAPs13,17e18quetenhaalteradoassuascaracterísticas maisimportantesDestaforma,ouasEBAPs13e18nãoforamexecutadasconformeos projetos,ouasborrachasdevedaçãoeparafusosdefixaçãoforamremovidosposteriormente Dequalquerforma,aausênciadasborrachasdevedaçãoeparafusosdefixaçãonastampas tornouestasEBAPssuscetíveisaoextravasamentodaságuasemcasodecheiadoGuaíba
OutrasEBAPspossuemumaconcepçãodiferente,ondeaságuassãodescarregadas pelasbombasemumpoçoelevado,comcotasuperiorcompatívelcomoníveldeinundação. Destaforma,nãoocorreextravasamentoemcasodecheiaenãoénecessáriaautilizaçãode tampasherméticasIstoexplicaanãoocorrênciadeextravasamentonestetipodeEBAPdurante acheia.Afiguraabaixodemonstraessaconcepção,adotadanaEBAP16.
–DetalhedaEBAP16 84

ESTADODORIOGRANDEDOSUL TRIBUNALDECONTAS DIREÇÃODECONTROLEEFISCALIZAÇÃO SERVIÇODEAUDITORIADEPORTOALEGRE


Existeumregistrodemanutençãorecente,realizadaem2022,dastampasdaEBAP 13,ondeocorreuasubstituiçãodastampasantigaspornovasForamcolocadastampasnão pressurizadas,cabendoportantoresponsabilizaçãodosagentespornãoseguiremosprojetos Issoéabordadonoitem"FalhanaManutençãodaEBAP13"desterelatório.
ConsultandooandamentodoprocessoSEI18.0.000087475-9(peça6718476,p.4), verifica-sequeocorreuumdespachoem21demaiode2019,sendoquehouveconclusão,sem movimentaçãonaunidade,nodia27desetembrode2022Otermoconclusãonessecasoéum registrodeencerramentodoprocessonaunidade,oquenãoquerdizerquetenhaocorridoo fimdadiscussãodamatériaouainclusãodedocumentosquepoderiamdarotemacomo encerrado
RequisitadoàAuditadaparaqueinformasseemqualunidadeoreferidoSEIesteve 85


nesseperíodo(21-05-2019a02-10-2023)equalo(s)servidor(es)responsável(eis)poragir, obteve-seaseguinteresposta(peça6075626):
Em21052019oexpediente180000087475-9foirecebidonoGabineteda SecretariaMunicipaldeInfraestruturaeMobilidadeUrbana-SMIM,pela servidora edespachadoparaDivisãodeObraseProjetos(EsgotosPluviais) daSMIM,sendorecebidonamesmadatapeloservidorMarcoAntonioLima BenitesqueporsuavezdespachouoexpedienteparaosetordeServiçode Obras(SO-DOP-SMIM)unidadedetrabalhodaDiretoria-GeraldeDrenagem UrbanadaSMIMNamesmadataoreferidoprocessofoirecebidopeloservidor RobertoFredericoKranz,sendoconcluídonamesmaunidadedetrabalhoem 27092022semmovimentaçãoEm02102023,oexpedientefoireabertona unidadedeCoordenaçãodeObrasEspeciaisdeEsgotamentoSanitárioede DrenagemdoDMAE(C-DRENAGEM-DMAE)
Assimsendo,constata-sequehouveinérciadogestorMarcoAntonioLima BenitesedoengenheiroRobertoFredericoKranzematendercomsugestõeseações concretas para a necessidade e vulnerabilidade nas CBs conforme solicitado pelaCOORDENAÇÃODEMANUTENÇÃOEOPERAÇÕES-SMSURB
Destaforma,verifica-sequeem2018haviaumasuspeitadeproblemascomas EBAPs17e18,detectadasporengenheirosresponsáveispelamanutençãodasmesmas. TalsuspeitafoiconfirmadapelaanálisedopróprioengenheiroRobertoFredericoKranz,em janeirode2019,porémnãofoidadaumasoluçãotécnicaquecorrigissetais vulnerabilidadesatéomomentodaocorrênciadaschuvasdemaiode2024.
ÉimportantedestacarqueseriaesperadocondutadiversadoengenheiroRoberto KranzedogestorMarcoAntonioLimaBenites,poistinhamplenaciênciaeconhecimentotécnico paracompreenderasconsequências,nocasodeumagrandecheia,danãocorreçãodas vulnerabilidadesdasEBAPsPorémelesseomitiram,eoprocessoSEIficousemandamentopor umlongoperíodo
Emconsequência,asvulnerabilidadesnãoforamcorrigidas,permitindooinfluxode grandesvolumesdeáguanocentrodePortoAlegreemmaiode2024,contribuindo, incisivamente,paraainundaçãoqueocorreu
Asomissõescaracterizamculpagraveouerrogrosseiro,umavezqueimplicaram graveinobservânciadodeverdecuidadoeafastaram-sedoreferencialdo"administradormédio", sendonotóriaeperceptívelporpessoadediligêncianormalqueeranecessáriao encaminhamentodealgumasoluçãoparaagravefragilidadeidentificadadeformacélere
EmvistoriarealizadainloconaEBAP17,nodia4desetembrode2024,aequipede auditoriaconstatouoiníciodarealizaçãodeobrasparaacorreçãodasreferidas vulnerabilidades,conformefoiinformadopeloengenheirodoDMAEqueestavaacompanhandoa EquipedeAuditoriaAsfotosabaixoilustramasobrasdedemoliçãoqueestavamem


andamento,paraposterioralteraçãodaestruturadaEBAPparasuportaroníveldeenchentedo GuaíbaPosteriormente,em14denovembrode2024jáhaviaarmadurasdeaçoeformas instaladasaguardandoaconcretagemnolocal,conformea3ªfiguradasequênciaabaixo.
Figura41–ObradedemoliçãonaCasadeBombas17.

Fonte:AcervodaEquipedeAuditoria
Figura42–ObradedemoliçãonaCasadeBombas17
PRE.FE77.2360.2A1D.FC7C.62D4.



Fonte:AcervodaEquipedeAuditoria
Figura43–ObraparaconcretagemnaCasadeBombas17
Assinado digitalmente por: Marcelo Kipper da Silva em 14/07/25, Leandro Lobato Camargo em 14/07/25, Leandro Torres em 14/07/25, Fabio Alex Beling em 14/07/25 e outro(s). Confira a autenticidade do documento em www.tce.rs.gov.br. Identificador: PRE.FE77.2360.2A1D.FC7C.62D4.

ESTADODORIOGRANDEDOSUL TRIBUNALDECONTAS
DIREÇÃODECONTROLEEFISCALIZAÇÃO SERVIÇODEAUDITORIADEPORTOALEGRE


Fonte:AcervodaEquipedeAuditoria
Assimsendo,decorridosquatromesesdoiníciodainundação,foraminiciadasobras paramelhoriaesaneamentodasvulnerabilidadesdaEBAPs17e18Havia,portanto,tempo hábil,acontardoanode2018,paraqueasmesmasmedidastivessemsidotomadaspara corrigirasvulnerabilidadeseevitaroinfluxodeáguanasEBAPs,oquecontribuiriapara minimizaroumesmoimpedirainundaçãonocentrodacidade
Consequênciasparaaadministraçãoesociedade
AsvulnerabilidadesexistentesnasEBAPs17e18eEBABsMoinhosdeVentoeSão JoãopermitiramoinfluxodegrandesvolumesdeáguanacidadedePortoAlegre,contribuindo, incisivamente,paraainundaçãoocorridanacapital.
Consequentemente,aausênciadasaçõesnecessáriasresultouemprejuízos significativosaoeráriomunicipal,aindanãototalmentequantificados,masquejáperfazem quantiaestimadaentreR$6aR$8bilhões
Leiseoutrasnormasaplicáveisaocaso
LeiMunicipalnº2312/1961,artigo3°; LeiFederalnº10406/2002,artigo186
RegimentoInternodoTribunaldeContasdoEstado(AprovadopelaResoluçãonº 89

ESTADODORIOGRANDEDOSUL TRIBUNALDECONTAS
DIREÇÃODECONTROLEEFISCALIZAÇÃO SERVIÇODEAUDITORIADEPORTOALEGRE
1028/2015),art139;
LeiComplementarMunicipal133/1985,artigo196,V
Conclusõesdaequipedeauditoria

Conclui-sequehaviavulnerabilidadesemEBAPseEBABs,localizadasnocentroe emoutroslocaisdePortoAlegre,quepermitiramaentradadegrandesvolumesdeágua.
AsvulnerabilidadesdasEBAPs17e18jáhaviamsidoidentificadasnoanode2018 porengenheirosdoDMAE
Porém,houveinérciaporpartedeservidoresmunicipais,easvulnerabilidadesnão foramsolucionadasatempodeimpedirainundaçãodocentrodacidadeemmaiode2024. Obrasparacorrigirestasvulnerabilidadesforaminiciadassomenteapósaenchente
Responsabilização
Responsável1
Matrizderesponsabilização
Nome: RobertoFredericoKranz(CPF:240947900-63)
Função: Engenheiro
Períodode
exercício: 21/05/2019a27/09/2022
Conduta:
Nexode causalidade:
Culpabilidade:
DeixoudeatenderasolicitaçãodaCoordenaçãodeManutençãoeOperações-SMSURB, encaminhadaviaprocessoSEIporsuachefiaimediata,parafornecersugestõeseações concretasparaasnecessidadesevulnerabilidadesdasEBAPs17e18
Aodeixardeatenderaosolicitado,nãohouvecorreçãodasvulnerabilidadesdasEBAPs17e18 Essasvulnerabilidadespermaneceramatéomomentoemqueocorreuaenchentedemaiode 2024,permitindoaentradadaságuasdoGuaíbanocentrodacidadedePortoAlegree contribuindo,incisivamente,paraainundaçãoaqualresultouemprejuízossignificativosaoerário municipal,aindanãototalmentequantificados,masquejáperfazemquantiaestimadaentreR$6a R$8bilhões
HouvecondutaomissivadoservidoraonãocumpriratarefadeterminadapelachefiaimediataEra esperadodoagentecondutadiversaemrazãodaposiçãoqueocupava,emespecialnocontexto fáticoecircunstânciascaracterizados,deciênciadeumavulnerabilidadegravenaestanqueidade dascasasdebombas.Comoagravante,destaca-seolongotempo,maisde3anos,queo processoadministrativoficousemimpulso,de21/05/2019até27/09/2022Aomissãocaracteriza culpagraveouerrogrosseiro,umavezqueimplicougraveinobservânciadodeverdecuidadoe afastou-sedoreferencialdo"administradormédio",sendonotóriaeperceptívelporpessoade diligêncianormalanecessidadedecorrigirasgravesfragilidadesidentificadas Responsável2
Nome: MarcoAntonioLimaBenites(CPF:368601900-00)
Função: ChefedaDivisãodeObraseProjetos(EsgotosPluviais)daSMIM Períodode exercício: 21/05/2019a27/09/2022
Conduta:
DeixoudeatenderasolicitaçãodaCoordenaçãodeManutençãoeOperações-SMSURB, encaminhadaviaprocessoSEI,parafornecersugestõeseaçõesconcretasparaasnecessidades evulnerabilidadesdasEBAPs17e18
Assinado digitalmente por: Marcelo Kipper da Silva em 14/07/25, Leandro Lobato Camargo em 14/07/25, Leandro Torres em 14/07/25, Fabio Alex Beling em 14/07/25 e outro(s). Confira a autenticidade do documento em www.tce.rs.gov.br. Identificador: PRE.FE77.2360.2A1D.FC7C.62D4.

ESTADODORIOGRANDEDOSUL TRIBUNALDECONTAS
DIREÇÃODECONTROLEEFISCALIZAÇÃO SERVIÇODEAUDITORIADEPORTOALEGRE
Nexode causalidade:
Culpabilidade:

Aodeixardeexigirqueosubordinadoatendesseaosolicitado,nãohouvecorreçãodas vulnerabilidadesdasEBAPs17e18Essasvulnerabilidadespermaneceramatéomomentoem queocorreuaenchentedemaiode2024,permitindoaentradadaságuasdoGuaíbanocentroda cidadedePortoAlegrecontribuindo,incisivamente,comasuainundaçãoaqualresultouem prejuízossignificativosaoeráriomunicipal,aindanãototalmentequantificados,masquejá perfazemquantiaestimadaentreR$6aR$8bilhões
Houvecondutaomissivadoservidoraonãoexigirocumprimentodatarefapeloservidor subordinadoEraesperadodoagentecondutadiversaemrazãodaposiçãoqueocupava,em especialnocontextofáticoecircunstânciascaracterizados,deciênciadeumavulnerabilidade gravenaestanqueidadedascasasdebombasComoagravante,destaca-seolongotempo,mais de3anos,queoprocessoadministrativoficousemimpulso,de21/05/2019até27/09/2022A omissãocaracterizaculpagraveouerrogrosseiro,umavezqueimplicougraveinobservânciado deverdecuidadoeafastou-sedoreferencialdo"administradormédio",sendonotóriaeperceptível porpessoadediligêncianormalanecessidadedecorrigirasgravesfragilidadesidentificadas
Notas
1PreveniréoMelhorRemédio:sistemasdeproteçãocontrainundaçõesealagamentosdePorto Alegre-PortoAlegre:PrefeituraMunicipal,1992p38
2Disponívelem:https://wwwyoutubecom/watch?v=vDugi5Yp4Rw&t=2480sConsultadoem2008-2024
3Vídeo da transmissão ao vivo da mídia disponível em: https://wwwyoutubecom/live/vDugi5Yp4Rw?si=cxX5CQf5M5uOfSdW&t=8070 Acesso em 11/02/2025
4Disponível em: https://wwwyoutubecom/watch?app=desktop&v=vDugi5Yp4Rw&t=8070s Acessoem:07/04/2025
5Disponívelem:
https://prefeiturapoabr/sites/default/files/usudoc/sites/dmae/DRRS%20Porto%20Alegre%20%20final%20report%2025%20August%202024%20PT0.pdf.Consultadoem30-08-2024
5.2ManutençãodoSistemadeProteçãoContraCheias
5.2.1FalhanaManutençãodasComportas/PortõesdoMurodaMauá
Situaçãoencontradapelaequipedeauditoria
Preliminarmente,importareferirqueopresenteregistrotratadefalhasna manutençãodascomportasdoSPCCrelacionadasaocumprimentodeficientedocontratode manutençãocorretivaepreventivadosequipamentosdosistemafirmadoem2021Difere,em essência,doapontesobreaconcepçãodosportões13e14emrazãodequelásãoapuradasas causaseresponsáveispelafragilidadeestruturaldessesportões,oquefoideterminanteparaos colapsosevidenciadosemmaiode2024
OSPCCdePortoAlegreécompostopor14comportas,quesãoestruturasmóveis metálicasprojetadas–ouassimdeveriamser–paraque,quandofechadas,nãopermitama entradadaságuasprovenientesdolagoGuaíbaaointeriordacidade,paraasáreasprotegidas denominadaspôlderesConstatou-se,todavia,quandocolocadasàprovanagrandeenchentedo anode2024,quealgumasdelasnãosuportaramaspressõeshidráulicasaplicadas, apresentandofalhasnãosóestruturais,comotambémdevedação
ÉimportantedestacarqueoDMAEpossui(vigênciaprorrogadaatéago/2025)o Contraton 201000006244-3(peça6718466)1paraamanutençãodasestruturasdoSPCC, 91

cujoobjetoéassimdesignado:

Contratação de prestação de serviços técnicos especializados para manutençãoeletromecânicapreventivaecorretivaemEquipamentos IndustriaisdoSistemadeProteçãoContraCheiasdePortoAlegre(SPCCPMPA),incluindoofornecimentodemateriaisepeçasdereposição,abrangendo asEstaçõesdeBombeamentodeÁguasPluviais(EBAPs),os14portões comportasdoCaisMauáeAvenidaCasteloBrancoequaisqueroutros equipamentosquefazemparteouquevenhamaintegraroSPCC-PMPA,soba responsabilidadedoDMAE
(Grifonosso)
ÉresultadodaConcorrênciaPública62443/2020(peça6718438)2efoiassinadoem 29/07/2021comaempresaBOMBASSINOSINDECOMLTDAEPP(CNPJ01894407/000172)pelovalordeR$3386506,46para12mesesdeserviçoÉgeridopelaGerênciade ManutençãoIndustrial-GMANdoDMAEAordemdeinícioautorizouocomeçodasatividadesa partirdodia23/08/2021(peça6718477)
AscompetênciasdaGerênciadeManutençãoIndustrial-GMANsãodefinidasnoart. 162doDecretonº21539/2022:
Art162ÀGerênciadeManutençãoIndustrial,unidadedetrabalho(UT) subordinadaàDiretoriadeTratamentodeÁguaeEsgotos,compete:
I-orientar,coordenarecontrolarosserviçosnecessáriosàmanutenção,tanto preventivaquantocorretiva,dosequipamentoseinstalaçõeseletromecânicas doDMAE;
II-colaborarcomosdemaisórgãosdoDMAEnoestudo,aquisiçãoeinstalação denovosequipamentos;
III-coordenarafiscalizaçãodasinstalaçõeseletromecânicasdelegadasa terceiros;
IV-promoveracoleta,organizaçãoeinterpretaçãodeinformaçõestécnicas sobreequipamentoseletromecânicosehidráulicos,sugerindodiretrizes, especificações,instruções,planosespecíficosepadrõesdemanutenção;
V-orientar,coordenarecontrolarosserviçosnecessáriosàoperaçãoe manutençãodeequipamentoselétricosemecânicoseconfecçãodepeçasnas oficinasdaGerência;
VI-coordenarafiscalizaçãodeserviçosdemanutençãorealizadospor terceiros;
VII-participardeestudosdenovasinstalações,duranteoprojetodasmesmas, paraqueosfuturosserviçosdemanutençãosejamrápidos,seguros,práticose eficientes;e


DIREÇÃODECONTROLEEFISCALIZAÇÃO SERVIÇODEAUDITORIADEPORTOALEGRE
VIII-executaroutrasatividadescorrelatas (Grifonosso)
AlémdaGMAN–responsávelpelamanutençãodascomportas,manutenção preventivaecorretivadasEBAPs–,aGerênciadeDistribuiçãoeCondução(GDCO)também atuanoSPCCemrazãodaoperaçãodascomportasedasunidadesdebombeamentopluvial (peça6718478,p19):
AGDCO-GerênciadeDistribuiçãoeConduçãoatuanaoperaçãodas comportasdoCaisMauáedeunidadesdebombeamentodeágua,esgotoe pluvial.Tambémrealizaaoperaçãoemanutençãoderedesdeáguadegrande porteenaoperaçãodascomportas.AoperaçãodascasasdeEBAPsé terceirizadasobcoordenaçãodaGDCOAoperaçãoésupervisionada permanentemente(24horasx7dias)peloCCO-CentrodeControle OperacionaldaC-CONTROLE
Oquadrodossetoresresponsáveispelaoperaçãodascompetênciasanteriormente atribuídasaoDEPevidenciaasatividadesrelacionadasaGDCOeGMAN:
Quadro3–SetoresresponsáveispelaoperaçãodascompetênciasdoextintoDEP
DIRETORIAGERÊNCIA
DO GPLA
ATIVIDADERELACIONADA
Cadastrotécnico,análisedenovosempreendimentoseprojetosdeinfraestruturapública, planejamentodosistemadedrenagemeproteçãocontracheias,análisedeprojetose vistoriaemreservatóriosdeamortecimentoparaemissãodeHabite-se
GPRO Execuçãoefiscalizaçãodeprojetosdedrenagem
GEOB Fiscalizaçãodeobrasdedrenagemprópriasedeterceiros
GDCO
DT
GMAN
AtuanaoperaçãodascomportasdoCaisMauáedeunidadesdebombeamentode água,esgotoepluvialTambémrealizaaoperaçãoemanutençãoderedesdeáguade grandeporteenaoperaçãodascomportas.AoperaçãodascasasdeEBAPsé terceirizadasobcoordenaçãodaGDCOAoperaçãoésupervisionadapermanentemente (24horasx7dias)peloCCO-CentrodeControleOperacionaldaC-CONTROLE
AtuanamanutençãoindustrialdeunidadesdoDMAEAtuatambémnamanutençãodas comportasAmanutençãopreventivaecorretivadasEBAPsecomportasé contratadasobcoordenaçãodaGMAN.Amanutençãodeemergênciaérealizadapelas equipesdaGMANpermanentemente(24horasx7dias)
Ainda,conformeoDespachoàDT(DiretoriadeTratamento-DMAE):
AC-CONTROLEéintegradaaindapelaEquipedeProteçãoContraCheias(EQPRCHEIA),quepossuiassuascompetênciasprevistasnoart.175doDecreto nº21539/2022:
Art175ÀEquipedeProteçãoContraCheias,unidadedetrabalho(UT) subordinadaàCoordenaçãodeControleOperacional,compete:
I-executarasatividadesnecessáriasàoperaçãodasEBAPsdoSistemade ProteçãoContraCheias(SPCC);
II-prestarorientaçõestécnicasrelativasàsunidadesoperacionaisdoSPCC;
III-operarasEBAPs,atravésdosistemasupervisório,viarádioecontato 93
Assinado digitalmente por: Marcelo Kipper da Silva em 14/07/25, Leandro Lobato Camargo em 14/07/25, Leandro Torres em 14/07/25, Fabio Alex Beling em 14/07/25 e outro(s). Confira a autenticidade do documento em www.tce.rs.gov.br. Identificador: PRE.FE77.2360.2A1D.FC7C.62D4.

ESTADODORIOGRANDEDOSUL TRIBUNALDECONTAS
DIREÇÃODECONTROLEEFISCALIZAÇÃO SERVIÇODEAUDITORIADEPORTOALEGRE
telefônico;

IV-controlar,acompanharefiscalizaromododeoperaçãodasEBAPs, executadaporempresascontratadasouequipespróprias,registrandotodasas ocorrênciasrelevantes;
V-inspecionarosserviçosnospoçosdesucçãoerecalque,nasgaleriasde chegadaeconduçãodesaídanoâmbitodasEBAPs;
VI-registrar,encaminharàsáreasresponsáveiseacompanhartodasas demandasdemanutençãoelétricasemecânicasnosgruposmotores bombas,tubulaçõesecomportasdasEBAPsedomurodaMauá;
VII-acionaroplanodefechamentodascomportasdecontençãodomuroda Av.Mauá;
VIII-elaborarrelatóriosoperacionaisedeconsumoenergiaelétricanas estaçõeselevatórias,visandoàotimizaçãodossistemas;
IX-acompanharasatividadesnecessáriasparaainspeçãoerecuperação estruturaldasestaçõeselevatórias;e
X-executaroutrasatividadescorrelatas
(Grifonosso)
Deformabreve,pode-seconcluirqueasatribuiçõesdaEQ-PRCHEIA/CCONTROLE/GDCOestãorelacionadasaocontroledeoperação,enquantoaGMANfoi designadaparaamanutençãodoSPCCEssasatribuiçõessãofundamentaisparaasequência daanálise
Apósocolapsodascomportasemmaiode2024,conformeamplamentenoticiado3 , aEquipeTécnicadoTribunaldeContasdoEstadodoRioGrandedoSulrealizounãosóa análisedocumentaldaprestaçãodoContraton.20.10.00006244-3comotambémauditoriain loconascomportasdosistemadeproteção
Previamente, destaca-se o conteúdo a seguir, contido no processo n 2110000006604-5(processoreferenteaosregistrosdeatividadesdocontraton 20.10.00006244-3,AnexoBdoEdital(peça6718479)):
Manutençãopreventivaétodaaaçãosistemáticadecontroleemonitoramento, comoobjetivodereduzire/ouimpedirfalhasnodesempenhodos equipamentosAempresaContratadadeveráelaboraremconjuntocoma Supervisão,umPlanodeManutençãoPreventivaparatodososequipamentos cobertosnestacontratação,submetendo-oaaprovaçãodaSupervisão,e efetuandoasdevidascorreções,casonecessárioOPlanodeManutenção Preventivadeveserapresentadoematé15diasapósaOrdemdeInício
()
ParaelaboraçãodoPlanodeManutençãoPreventivadeverãoser 94
digitalmente por: Marcelo Kipper da Silva em 14/07/25, Leandro Lobato Camargo em 14/07/25, Leandro Torres em 14/07/25, Fabio Alex Beling em 14/07/25 e outro(s). Confira a autenticidade

ESTADODORIOGRANDEDOSUL TRIBUNALDECONTAS DIREÇÃODECONTROLEEFISCALIZAÇÃO SERVIÇODEAUDITORIADEPORTOALEGRE

consideradasasinstruçõescontidasnomanualdofabricante,paracada equipamento,bemcomoprocedimentosinternosdoDMAE.Damesma forma,asnormastécnicasaplicáveisaosequipamentoseaosprocessos envolvidosdevemseratendidas
AContratadadeveráexecutartodososserviçosprogramadosnoPlanode ManutençãoPreventiva,salvoimpossibilidadetécnicadevidoaeventos fortuitos,ouemconcordânciacomaSupervisão.Oconteúdomínimodo PlanodeManutençãoPreventivadeveser:
-Equipamentoemqueserárealizadaamanutenção;
-Atividadesaseremrealizadas;
-Responsávelpeloserviço;
-Dataprogramadapararealizaçãodoserviço;
-Materiaiseinsumosnecessários
(Grifonosso)
Ainda:
Aperiodicidadedasvisitasdemanutençãopreventivaemcadaestação deveráserdefinidapeloPlanodeManutençãoPreventiva (Grifonosso)
AfimdeverificaroconteúdopresentenodocumentodoPlanodeManutenção Preventiva(PMP)eacessarosrelatórioscomplementares,comorelatóriosdevistoria,estes foramsolicitadosformalmenteaoDMAEpormeiodaRequisiçãodeDocumentoseInformações (RDI) n 662112(peça6195245),tendoemvistaquenãoforamidentificados tais documentos em nenhum dos processos administrativos conhecidos ou disponibilizadosatéentãoàEquipedeAuditoria:
1-Solicita-seadisponibilizaçãodo(s)Plano(s)deManutençãoPreventiva (PMP)elaborado(s)duranteocontratoemquestão,conformeitem2.1 "SERVIÇOSDEMANUTENÇÃOPREVENTIVA",ParteB-Especificações GeraisdoProjeto-Edital Adicionalmente,informaremqualprocessoSEIo PMPconsta,juntamentecomonúmerodedocumento
2-Apósvistoriarealizadaem23/11/2022nosportõesdecontençãodoDC Navegantes,SãoPedroeCairu,conformeOS8601-MEI/PRV,foi encaminhadoumrelatóriocomfotosedescriçãodeserviçosaseremrealizados Solicita-sedisponibilizaçãodoRelatóriodeVistoria.
3-Nosdias25e26dejulhode2023foirealizadavistoriaeplanejamentode intervençõesnosnasComportasP1aP14(conformeresumoderelatório semanal,contudonãofoiidentificadaaOScorrespondentenoprocesson

ESTADODORIOGRANDEDOSUL TRIBUNALDECONTAS DIREÇÃODECONTROLEEFISCALIZAÇÃO SERVIÇODEAUDITORIADEPORTOALEGRE

2110000006604-5)Solicita-seadisponibilizaçãodorelatórioelaboradoapósa vistoriaindicandooplanejamentodasintervenções
Emresposta,osseguintesdocumentosforamdisponibilizados(peça6718439):
1.PlanodeManutençãoPreventiva(peça6195253);
2Vistoriarealizadaem23/11/2022nascomportas(peça6718482);
2.1PortãoCairu(Portão12)(peça6718483);
22PortãoDCNavegantes(Portão14)(peça6718484);
23PortãoSãoPedro(Portão11)(peça6718440);
3RegistrodevistoriadaP1aP14em25e26/07/23(peça6718485)
Abaixoregistra-setrechoquantoaosserviçosdemanutençãonosPortõesdaMauá, conformePlanodeManutençãoPreventiva(peça6195253)(documentodatadode15/09/2021):
SãoserviçosdemanutençãopreventivaaseremrealizadosnosportõesdaMauá:
•Lubrificação
•Limpezageralnoentornodostrilhos.
•Testaroacionamento(abrirefecharosportões)
•Verificarpontosdeoxidação,lixarepintar
Recomendamosarealizaçãodestesserviçosemcadaumdosportões1 vezacada4meses(3vezesporano)
(Grifonosso)
Comointuitodeidentificarasaçõesrealizadasnascomportasesuaperiodicidadeno intervaloentreoiníciodaprestaçãocontratualeaenchentedoanode2024,foielaboradoo registrocompiladodasatividades(peça6718486),conformeosrelatóriosdeserviços concluídoseemandamento(peça6718487)doprocesso21.10.000006604-5:
Quadro4–Relaçãodeatividadesexecutadasnocontratodemanutençãocorretivaepreventiva Diada autorização/ conclusão
Atividade4
Identificador
1 23/11/2022 Vistoriadosportõesdecontenção(DCNavegantes,SãoPedroeCairu) 533300/22
2 22/12/2022 Preventivasnosportõesdacaisdoporto5 561900/22
3 26/07/2023 VistoriaComportasdeContençãoP1aP14 354300/23
4 27/09/2023 Travarportõescomtravasdebarraroscada 462400/23
5 29/09/2023 Aberturaefixaçãodosportõesdecontenção/CaisdoPorto 468300/23
6 20/11/2023 Fechamentodosportões12e14docaisdoportocomauxíliodomunk 561300/23
7 24/11/2023 Remoçãodostrilhosquebradosdosportões12e14docaisdoporto 561302/23
8 27/11/2023 Aberturaetravamentodosportõesdecontençãodocaisdoportocomauxílio demunk 561303/23
Assinado digitalmente por: Marcelo Kipper da Silva em 14/07/25, Leandro Lobato Camargo em 14/07/25, Leandro Torres em 14/07/25, Fabio Alex Beling em 14/07/25 e outro(s). Confira a autenticidade do documento em www.tce.rs.gov.br. Identificador: PRE.FE77.2360.2A1D.FC7C.62D4.

ESTADODORIOGRANDEDOSUL TRIBUNALDECONTAS
DIREÇÃODECONTROLEEFISCALIZAÇÃO SERVIÇODEAUDITORIADEPORTOALEGRE

9
23/03/2024
ReformaGeralnoPortãoP14incluindoainstalaçãodenovotrilhoedetroles 6 143700/24 10 25/04/2024
Construçãodeestruturacomlonaparaareformadoportãodecontenção14 143702/24
Destaca-sequeavistoriarealizadaem25e26dejulhodoanode2023pelaequipe doDMAE(peça6718485)–item3dasRespostadaRDIn662112,jácitadaanteriormente–foi realizadaematendimentoaoregistradonoprocessoSEIn2310000006127-3pelaEquipede ProteçãoContraCheias-DMAE(EQ-PRCHEIAS)em04/07/2023(peça6718488),conformein verbis:
Considerandoqueestamosentrandoemperíododechuvasacimadamédia, tendoemvistaaprevisãodefenômenoatmosférico"ElNiño"paraesteano, commaiorintensidadeeriscodealagamentoseenchentes.Considerandoque oDMAEestáresponsávelpeloSPCC,foiabertoopresenteexpedientepara verificaçãoeorganizaçãodasaçõesdasdiversasáreas,casoseja necessárioofechamentodascomportas/portõesdomurodaMauá. Acredita-sesernecessáriomovimentartodososatoresdoDMAE,paraque todasasmedidassejameficazesetempestivasSabe-sequeascomportas sofreramreforma,portantoeventualfechamentonãodeveserproblema, contudoacredita-seserimportanteverificarnodetalhecadaetapa
Umaverificaçãopréviadetectoualgunsproblemasdefácilresolução, porémquedependemdeoutrasáreasdoDepartamento,considerandoque anovaestruturanãopreviurecursosconcentradosnaEquipedeProteção. Somadoaisso,seránecessárioadisponibilidadedealgunsrecursosparao ajustedetalhadodosistemaMauá,comoexemploavedaçãofinadosportões ondepodesernecessárioautilizaçãodesacosdeareia,tendoemvistaque desdeasuaconstrução,nãosechegounessaetapa
Umrecursodesumaimportânciaéadisponibilidadedepessoalda manutenção,pararealizaçãodeumacionamentopreventivo,independente dosjárealizadosporaquelaárea,duranteeventuaismanutenções preventivas,esseseriaparaavaliareventuaisfalhasnosistemaatempode promoverosajustesJáfoialinhadoessadisponibilidadecomaC-MANINDDMAE,restandoapenasesseacionamento.Essestestesdevemserrealizados omaisbrevepossível,epodemseracompanhadospelaGerênciadaGDCO []
(Grifonosso)
Registra-setambémqueem18/07/2023e21/07/2023aindaocorreramosseguintes registrosviae-mail(peça6718441):
E-mailde18/07/2023:Foiagendadavistorianos"PortõesdaMauá" (comportas)comasequipesdaGMAN,EQ-Desinfec,EQ-AtperdaseCControle.Apresentou-serelatóriofotográficocomasintervençõespreviamente identificadaspelaEquipedeproteçãoparacheias,comdestaqueparaas comportasP12(semtrilhoinferiorerevisãodosuperior)eP14(semtrilho 97


inferiorerevisãodosuperior)

P12semtrilhos,conformee-mail
E-mailde21/07/2023:Apósvistoriapelasequipes,foiratificadaanecessidade deintervençãonascomportas12e14,alémdeoutrasintervenções necessáriaspelaGerênciadeManutenção
Conformejádestacado,afrequênciaestabelecidaparamanutençãopreventivadas comportasfoidetrêsvezesaoano(peça6195253,p3)Contudo,transcorreu-seumperíodo de15meses(23/08/2021a23/11/2022)desdeaemissãodaordemdeinício(peça6718477) atéqueocorresseaprimeiravistorianosportões,e16mesesparaoiníciodasatividades preventivas(23/12/2022),conformerelatórioextraídodoprocesso2110000006604-5(peça 6718489),caracterizandodescumprimentodoPMPtantopelaGMAN-DMAEquantopela contratada.
Ainda,constata-sequeasintervençõesrealizadasnosmesesdedezembrode2022 ejaneirode2023foraminsuficientesparamanutençãodascondiçõesmínimasparaoadequado funcionamentodascomportas,tendoemvistaoconteúdodose-mailsdosdias18/07/2023e 21/07/2023(peça6718441),quedemonstramaausênciadetrilhosouanecessidadedereparos (inclusive,jáconstatadanavistoriade23/11/2022)
Após2mesesdaadvertênciacomunicadaviadespacho(peça6718488)pelaEquipe deProteçãoContraCheias(EQ-PRCHEIA),nãohouvequalquerregistrodereparonositens pontuados(apesardavistoriarealizada21/07/2023)nosrelatóriosdisponíveispelaGMAN–responsávelpelamanutençãodascomportas–,resultandonachegadadoperíododechuvasde setembrode2023comosequipamentossemosdevidosajustesReforça-setalafirmaçãotendo emvistaque,nodia25/09/2023,ascomportasforamfechadasapóselevaçãodoGuaíba7 , conformenoticiadopelositeGZH:

ESTADODORIOGRANDEDOSUL TRIBUNALDECONTAS
DIREÇÃODECONTROLEEFISCALIZAÇÃO SERVIÇODEAUDITORIADEPORTOALEGRE

ParafecharoportãolocalizadonaCairú,foinecessárioremoveroasfaltodos trilhosinferiores.NoportãodapontedoGuaíba,aEmpresaPúblicade TransporteeCirculação(EPTC)chegouafecharotrânsitoNolocal, funcionáriosdoDmaeestavamsoldandoapartedecimadotrilho,queestava quebrada
PermaneciamabertososportõesnaAvenidaMauá,naimediaçãodaAvenida SepúlvedaedoembarqueaoCatamarãMasascomportasterãoofechamento avaliadoeaaçãopodeocorrercasooníveldoGuaíbasubaaindamais
(Grifonosso)
Ressalta-sequetaisproblemasrelatadosnareportagemcitadaacimajáhaviamsido identificadosna vistoria 23/11/2022pelaprópriaGMAN(peça6718483),conforme disponibilizadonestedocumento–reestruturaçãodotrilhoinferioresubstituiçãodosuperior–, todavianãoháevidênciasdequeprovidênciastenhamsidotomadaspararesolverasituação Infere-seconclusãoanálogaparaasoutrascomportas,tendoemvistaquenãoháregistrode qualquermanutençãoresolutivanasestruturasatéadatadaelevaçãodaságuasemsetembro de2023,quandoomunicípiodePortoAlegrehaviaapresentadorecordedechuvas8(447,3mm noacumuladodomêsdesetembro/2023)
Em20/11/2023,ouseja,quasedoismesesapósacheiadesetembro,ocorreunovo eventoclimáticocomprecipitaçõessuperioresa325mm,cercadetrêsvezesmaiordoquea normalclimatológicadereferência,conformeoInstitutoNacionaldeMeteorologia9Novamente, foinecessárioofechamentodascomportas10,sendoreabertasem27/11/202311Éimportante registrarque,duranteaenchentedenovembrode2023,acomporta13jáapresentavafalha, cedendoàpressãohidrostática,conformenoticiado12
Diantedetodososacontecimentos,aGMAN-DMAEecontratadatardaramainiciaro diagnósticoemanutençãodosportões(15meses)alémdepostergaremdemasiadamentetodas asmedidasnecessáriaspararepará-los.Somenteemmarçode2024–conformerelatório–foraminiciadasasatividadesdemanutençãocorretivasefetivas,comoaretiradadacomporta14 paramanutenção(peça6718490,p75)
QuantoàestruturadefiscalizaçãodaGMANparaoContraton.20.10.000062443demanutençãodoSPCC,informa-sequefoidesignadoem13/08/2021(acontardodia23/08) oservidorMarceloLuísDiel(CoordenaçãodeManutençãoIndustrial/GMAN)(peça6718477) comogestordocontrato,parasupervisionar,gerenciarefiscalizarosserviços(acumulavaas funçõesdegestorefiscaldeserviços)Após,ocorreramasseguintesalterações:
Acontarde01/07/2022,aPortaria1526/2022(peça6718491)alterouofiscal deserviçoMarceloDielparaMarcosFranzoiEm03/10/2022,Marcos solicitouexoneração;
Acontarde01/07/2023,aPortaria1747/2023(peça6718492),foidesignado oservidorDeivideAlissonWintercomofiscaldeserviço.Em07/03/2024 foiexonerado,apedido; Em22/04/2024,aPortaria1012(peça6718442)cessouosefeitosda Portaria1747/2023,quedesignavaoDeivideAlissonWintercomofiscalde 99


DIREÇÃODECONTROLEEFISCALIZAÇÃO SERVIÇODEAUDITORIADEPORTOALEGRE
serviço;
Em22/04/2024aPortaria1019(peça6718493)cessouosefeitosdaPortaria 1748/2023,quedesignouoMarceloLuisDielcomofiscaldecontrato;
Acontarde22/04/24a23/08/24,aPortaria1013(peça6718494)designou MarceloLuisDielcomofiscaldecontratoeLucasLorenzeSilvacomo fiscaldeserviço;
Apartirdosdocumentosdisponibilizadosquantoàfiscalizaçãocontratual,observa-se tantoperíodosdeacúmulodefunçõesquantovacânciasnoContraton201000006244-3para fiscaldecontratoefiscaldeserviço:
Entre23/08/2021e01/07/2022oservidorMarceloLuisDielpermaneceu acumulandooscargosdefiscaldecontratoedeserviços;
Entre03/10/2022e01/07/2023nãohouvequalquerdesignaçãoparafiscalde serviços; InconsistêncianaPortaria1012/2024quecessouefeitosapartirde22/04/2024 daPortaria1747/2023,tendoemvistaqueoservidorDeivideAlissonWinterfoi exoneradoapedidoem07/03/2024,gerandovacânciadocargodefiscalde contratonoperíodo(entre07/03/2024e22/04/2024)
Apesardeidentificadosperíodosdeincompletudedoquadrofiscalizatório, circunstânciaquepodeserregistradacomoumaatenuantedaresponsabilização,observa-se queofiscalMarceloLuisDielpermaneceudesignadocomofiscaldurantetodooperíodo devigênciacontratualqueantecedeuaenchentedoanode2024.Ainda,oservidoranuiu comodocumentodoPlanodeManutençãoPreventiva(peça6195253)apresentadopela contratada–deuprosseguimentoàprestaçãocontratualsemqualquerobjeção,pressupondo aceitaçãododocumentoelaboradopelaBombasSinosindústriaeComércioLtda–noqualnão trouxequalquerdiagnósticoquantoaatividadescorretivasnecessáriasparaoadequado funcionamentodascomportasGiza-sequeoobjetodocontratoenvolviaamanutenção preventivaecorretiva.
Deformaobjetiva:nãoerapossívelarealizaçãodeatividadespreventivas efetivasemumsistemaquecareciadecorreçõesestruturaisoufuncionais.Nãoérazoável umplanoquetragatãosomenteasugestãodelubrificaçãodetrilhosetestesde fechamentodecomportassemqualquerressalvaoumençãoaequipamentosquesequer possuíamtrilhosouosapresentavamdanificados,semcondiçõesfuncionaismínimas.
Tampoucoérazoávelaceitarqueumplanodemanutençãonãopartada consultaeestudoprévioaosmanuaiseaosprojetosdosequipamentosamanter,oque, emcotejoàsituaçãoentãoexistenteem2021,evidenciariaasfalhasdeterminantesparao fracassodoSPCCemmaiode2024.
Alémdomais,constata-sequeoCadernodeEncargosdoDepartamentodeEsgotos Pluviais(DEP)(peça6718453,p.49)jáestabeleciaoprocedimentodetesteparafechamento dosPortõesdeEstanqueidadedoSPCCcomfrequênciaanual:

ESTADODORIOGRANDEDOSUL TRIBUNALDECONTAS
DIREÇÃODECONTROLEEFISCALIZAÇÃO SERVIÇODEAUDITORIADEPORTOALEGRE

PortõesdeestanqueidadedoSistemadeProteçãocontraCheias:anualmente deveserrealizadoumtestedefechamentocompletodestesdispositivos.
(Grifonosso)
EconformeaLein12939,de23dedezembrode2021(LeiqueincorporouoDEP aoDMAE),oCadernodeEncargosestávigente:
Art3°Atéquesejaelaboradoumnovoinstrumentoregulador,permaneceem vigoroCadernodeEncargosinstituídopeloDecretonº14786,de30de dezembrode2004.
(Grifonosso)
Tendoemvistaquenãoforamatendidosostestesanuais,ficamaisumavez, reforçadoqueosistemadecomportasfoinegligenciadopelafiscalização(GMAN)epela contratada,responsáveispelamanutençãodoSPCC.
Esperava-secondutadiversadosresponsáveis(fiscalMarceloLuisDiele contratadaBombasSinosIndústriaeComércioLtda)pelaelaboração/aprovaçãodoPlanode ManutençãoPreventiva,namedidaemqueeranecessárioodiagnósticopréviodascorreções queosistemarequeriaafimdaadequadaformulaçãodoPMP.Contudo,nãoháindíciosdeque oplanotenhacontadocompréviavistoriaaosequipamentosexistentes,sendorelacionadas apenasatividadespreventivasdeformagenérica,asquaisdesconsideravamoestadorealdos equipamentos.
Eraexigíveldaempresaquecumprisseostermospactuados,conformeoartigo66 daLeiFederal8666/1993(leiválidaquandodalicitaçãorealizada),assimcomocabiaà fiscalizaçãoexigiressecumprimentopelosmeiosdisponíveis(artigo67)Ainda,pertinenteao casoemtela,oartigo70dareferidaLeiconfirmaqueoacompanhamentodoórgãoouda fiscalizaçãonãoreduzemaresponsabilidadedacontratadanocasodedanoscausadosà administraçãoouaterceiros
Ascondutas,tantodosagentespúblicosquantodaempresacontratada,caracterizam culpagraveouerrogrosseiro,umavezqueimplicaramemgraveinobservânciadodeverde cuidadoeafastaram-sedoreferencialdo"administradormédio",sendonotóriaeperceptívelpor pessoadediligêncianormalquequalquerplanodemanutençãoprecisariacontarcomuma avaliaçãodeprojetosemanuaisdosequipamentosamanter,alémdeinspeçõestempestivase periódicas
Constata-seaindacorresponsabilidadedolíderdaEquipedeProteçãoContraCheias EQ-PRCHEIA/GDCO,namedidaemquenãoháevidênciasderealizaçãodostestesanuaisem atendimentoàfrequênciaestabelecidanoCadernosdeEncargosdoDEPEsperava-se, portanto, conduta diversa do responsável (Marcos Goulart Machado), identificando tempestivamenteosproblemasoperativospresentesnosportõesatravésdostestesde fechamento,tendoemvistaquenãoerapossível,sequer,realizarofechamentode


determinadosportões,consequênciadetrilhosdanificadosouinexistentesRatifica-sequea atividadeeracrucialcomoalertaprimárioparaumapossíveltomadadeprovidênciasque poderiamteratenuadoosefeitosdaenchente,principalmenteembairroscomoHumaitá, Navegantes,SãoGeraldo,CentroHistóricoetantosoutrosimpactados
Registra-se,comoumacircunstânciaatenuante,ofatodequeoagentefoioúnico servidorlotadonaEquipedeProteçãoContraCheias,sendoresponsávelpordiversas atividades,envolvendo,aoperaçãode23EBAPsetodoocomplexosistemadeproteçãocontra cheias,paraoqualpressupor-se-iaanecessidadedoacompanhamentodasituaçãodetodosos arroiosedaadequaçãodascasasdebombas,dosdiques,domurodaMauáedascomportas existentes.
Diantedacomplexidadeediversidadedastarefasquealémdeenvolvero monitoramentocontínuo,fiscalização,operaçãodesistemascomplexoserespostaa emergências,aindaexigemconhecimentostécnicosespecíficosdeengenhariacivil,mecânica, elétricaehidráulica,nãoerarazoáveloexercíciodessasatividadesporapenasum profissional.
QuantoàadvertênciarealizadapelaC-CONTROLE/GDCO(peça6718488) conformedocumentoassinadoem04/07/2023,nenhumaatividaderesolutivafoirealizada tempestivamentepelafiscalizaçãodaGMANepelacontratada,permanecendooSPCCsobrisco defalha
Ratifica-sequenãoháoporquêdaexistênciadeumdocumento–Planode ManutençãoPreventiva–senãoforadequadamenteelaboradoecumprido.Alémdedeficiente, constatou-sequesomenteem23/11/2022(peça6718489)foirealizadaaprimeiraatividadede manutençãonosportõesNãoérazoávelquesomente15mesesapósoiníciodaprestação contratualtenhasidoestreadaalgumaatividadenessesequipamentos,oque descumpriuopróprioplanoelaboradopelaContratada,anuídopelafiscalização,oqual estabelecia3atividadespreventivasanuaisnosportões
Conformeregistros(peça6718487),constata-sequeasatividadesquedeveriamter sidorealizadasnosprimeirosmesesdaprestaçãocontratual,iniciadaem23/08/2021,foram retardadasatéavéspera(27/04/2024)dadatadamaiorenchentedePortoAlegreemmaiode 2024.Observa-sequeerainiciadaamanutençãodacomporta14quandoaenchenteprecipitou asuarecolocação,inferindo-sequefoinecessárioagiràspressasequeoserviçonãotenhasido totalmenteconcluídoparagarantirasegurançaqueaestruturadeveriaprover
Figura44–ConstruçãodeestruturacomlonaparareformadoPortão14em23/04/2024

ESTADODORIOGRANDEDOSUL TRIBUNALDECONTAS DIREÇÃODECONTROLEEFISCALIZAÇÃO SERVIÇODEAUDITORIADEPORTOALEGRE

Fonte:(peça6718495)

Ainda,informa-secomplementarmentequeaEquipeTécnicadoTribunaldeContas realizouvistorianosdias04e05desetembrode2024nascomportasatingidaspelaenchente, alémdeoutrasestruturas,comoestaçõesdebombeamentodeáguaspluviais(EBAPs)e estaçõesdebombeamentodeáguabruta(EBABs)Observou-sequeasmesmascondições problemáticasde2022seguiamnosegundosemestrede2024,comoocomprometimento detrilhosedeestruturasdeconcretoarmado,emespecialnosportões12e14
Figura45–Vistoriaem23/11/22realizadapeloDMAEnaComporta14Trilhossuperioresdanificadose concretocomarmaduraaparente.Trilhoinferiorinexistente.

ESTADODORIOGRANDEDOSUL TRIBUNALDECONTAS
DIREÇÃODECONTROLEEFISCALIZAÇÃO SERVIÇODEAUDITORIADEPORTOALEGRE


Fonte:AcervodaEquipedeAuditoriadoTCE/RS
Figura46–Vistoriade04/09/2024peloTCE/RSConstataçãodeconcretoarmadoetrilhosnasmesma condiçõesdaprimeiravistoriarealizadapeloDMAE(23/11/22)noportão14
Assinado digitalmente por: Marcelo Kipper da Silva em 14/07/25, Leandro Lobato Camargo em 14/07/25, Leandro Torres em 14/07/25, Fabio Alex Beling em 14/07/25 e outro(s). Confira a autenticidade do documento em www.tce.rs.gov.br. Identificador: PRE.FE77.2360.2A1D.FC7C.62D4.



Fonte:AcervodaEquipedeAuditoriadoTCE/RS
Figura47–Vistorianacomporta12realizadaem23/11/22peloDMAETrilhosdanificadoseestrutura deconcretosemmanutenção

Fonte:AcervodaEquipedeAuditoriadoTCE/RS.
Figura48–Vistorianacomporta12realizadaem23/11/22peloDMAEAsfaltosobreotrilho inferior/ausênciadetrilho.
Assinado digitalmente por: Marcelo Kipper da Silva em 14/07/25, Leandro Lobato Camargo em 14/07/25, Leandro Torres em 14/07/25, Fabio Alex Beling em 14/07/25 e outro(s). Confira a autenticidade do documento em www.tce.rs.gov.br. Identificador: PRE.FE77.2360.2A1D.FC7C.62D4.


Fonte:AcervodaEquipedeAuditoriadoTCE/RS

Figura49–VistorianaComporta12nodia04/09/24peloTCE/RSPersisteafaltademanutençãona estruturadeconcretoarmadoquesustentaostrilhossuperioresAusênciadetrilhoinferiorNão identificou-seintervençãoefetivanaestruturadesdequandovistoriadapelasequipesdoDMAEem 23/11/22(imagemacima)e21/07/23.
do documento em www.tce.rs.gov.br. Identificador: PRE.FE77.2360.2A1D.FC7C.62D4.

ESTADODORIOGRANDEDOSUL TRIBUNALDECONTAS
DIREÇÃODECONTROLEEFISCALIZAÇÃO SERVIÇODEAUDITORIADEPORTOALEGRE


Fonte:AcervodaEquipedeAuditoriadoTCE/RS
Importatambémoregistrodaentradadeáguaatravésdefrestasexistentesnas lateraisenaáreainferiordascomportasemdecorrênciadafaltadevedação.Asituaçãojáhavia sidoenfrentadanacheiadenovembrode2023,quandofoinecessáriooreforçodetodosos portõescom190toneladasdesacosdeareia13 Nestesentido,énecessáriaarevisãode mecanismosquemantenhamaestanqueidadedascomportasdoSPCC,levando-seem consideraçãoqueossacosdeareiasãoummeiopaliativoemuitasvezesnãoestanqueparaa contençãodaságuasdoGuaíba
Consequênciasparaaadministraçãoesociedade
AmanutençãoinadequadanascomportasdoSPCCresultouemgraves vulnerabilidadesnosistema.Osproblemas,quejáeramdeconhecimentodaGMAN/DMAEeda contratadamuitoantesdaenchentedemaiode2024,foramumadascausasdoalagamentodo centrodePortoAlegre,econsequentecomprometimentodamobilidadeurbanaaolongodaAv Mauá,umadasprincipaisviasdeacessoàcidade.
Complementa-seque,apesardosproblemasdedimensionamentoestruturaldas comportas,reportadosnoitem"FalhasdasComportas13e14"desterelatório,ratifica-sequea faltademanutençãoéfatorcrucialparaodesempenhoinadequadodequalquerestruturae responsávelcomplementarmentepelocolapsoprecoceverificadoem2024
Consequentemente,aausênciadasaçõesnecessáriasresultouemprejuízos significativosaoeráriomunicipal,aindanãototalmentequantificados,masquejáperfazem quantiaestimadaentreR$6aR$8bilhões.
107


Leiseoutrasnormasaplicáveisaocaso
LeiMunicipalnº2312/1961,art3°;
DecretoMunicipalnº21.539/2022,arts.162e175; LeiFederalnº10406/2022,art186;
RegimentoInternodoTribunaldeContasdoEstado(AprovadopelaResoluçãonº 1028/2015),art139;
LeiFederalnº8.666/1993,arts.66,67e70.
Conclusõesdaequipedeauditoria
Constata-sequeacontratadaefiscalizaçãoGMAN/DMAEnegligenciarama elaboraçãodoPlanodeManutençãoPreventiva,resultandonafaltadeumdiagnósticoaderente àrealidadeprecáriaemqueoSPCCseencontravaAlémdisso,apósasvistoriasrealizadaspela fiscalizaçãoGMAN/DMAEepelacontratada,pode-seafirmarqueambaspossuíam conhecimentodascondiçõesdeconservaçãodascomportas(vistoriaem23/11/2022,Ordemde Serviçon8601(peça6718496,p12)e26/07/2023,medianteOrdemdeServiço354300 (peça6718485)),contudonenhumaatividaderesolutivafoirealizadatempestivamente.
Ressalta-se,ainda,odescumprimentodoPlanodeManutençãoPreventiva–elaboradopelacontratadaeaprovadopelafiscalizaçãodaGMAN/DMAE–namedidaemque eraestabelecidaumafrequênciadeinspeçõestrêsvezesaoanonosequipamentosdoSPCC, contudoaprimeiraatividadedogêneronosportõesocorreu15mesesapósoiníciodaprestação contratual
Ainda,nãofoievidenciadaobservânciadafrequênciaanualdetestesdefechamento dosportões,conformeestabelecidonoCadernodeEncargosvigentepelomenosatéofinalde 2024Observa-sequeanãorealizaçãotempestivadaatividadepelaGDCOresultouna identificaçãotardiadosproblemasdeoperaçãodosportões,resultandonoagravamentodas enchentesemdiversosbairrosdePortoAlegre
Nãoérazoávelpermitirqueotempotranscorra–nestecaso,anos–sema realizaçãodemanutençõesetestesquepermitamtantooadequadofechamentodascomportas quantoàgarantiadaestanqueidadedosequipamentosdoSPCCTendoemvistaqueos gestoresecontratadaeramresponsáveiseestavamcientesdascondiçõeseaçõesnecessárias paraosreparos,contudo,sendonegligenciadas,constata-sesuacontribuiçãopormeiode omissãoparaoagravamentonoalagamentodomunicípiodePortoAlegreduranteacheiade maiode2024.
Responsabilização
Responsável1
Matrizderesponsabilização
Nome: MarceloLuisDiel(CPF:577925690-04)
Função: FiscaldeContrato-Engenheiro
Períodode exercício: 23/08/2021a31/05/2024

ESTADODORIOGRANDEDOSUL TRIBUNALDECONTAS
DIREÇÃODECONTROLEEFISCALIZAÇÃO SERVIÇODEAUDITORIADEPORTOALEGRE
Conduta:
Nexode causalidade:
Culpabilidade:

AnuiucomumPlanodeManutençãoPreventivasemoadequadodiagnósticoquantoàscondições reaisdascomportasAinda,descumpriuoPlanodeManutençãoPreventiva,iniciandovistoriasno sistemadeportões15mesesapósoiníciodaprestaçãocontratual,deixandodetomar providênciastempestivamenteparaarealizaçãodosreparosnecessáriosnascomportasdo SPCC
AoanuircomumPlanodeManutençãoPreventiva(PMP)inadequado,descumprirafrequênciade manutençõesestabelecidasnoPMPedeixardetomarprovidênciasparaqueamanutençãonas comportasdoSPCCfossemrealizadastempestivamente,contribuiuparaoinadequado funcionamentodosequipamentosdosistema,oquepermitiuaentradadaságuasdoGuaíbana cidadedePortoAlegrecontribuindosubstancialmenteparaainundaçãodemaioe2024,aqual resultouemprejuízossignificativosaoeráriomunicipal,aindanãototalmentequantificados,mas quejáperfazemquantiaestimadaentreR$6aR$8bilhões
Eraexigívelcondutadiversapeloagente,poisnacondiçãodeengenheiroefiscaldocontrato durantetodooperíodoqueantecedeuaenchente(desde13/08/2021),competia-lheinstara contratadaparaexecutaradequadamenteamanutençãocorretivaepreventivadosportões Ademais,comoagentelotadonaGerênciadeManutenção/DiretoriadeTratamento (GMAN/DMAE),erasuaincumbênciazelarpelobomestadodosequipamentosdoSPCC Ademais,oagenteanuiucomodeficientePlanodeManutençãoPreventiva(PMP), negligenciandoasmanutençõescorretivasnecessáriasnosistemaComoatenuante,registra-se que,duranteoperíododesuadesignação,oagenteacumulouasfunçõesdefiscaldecontratoe deserviços(23/08/2021a01/07/2022),bemcomoatuousemoapoiodeumfiscaldeserviços designado(03/10/2022a01/07/2023)Comoagravante,registra-seque,somentequandoalertado pelaGDCOdanecessidadedereparosnascomportas,foiiniciadaarealizaçãodevistoriase diagnósticosporpartedaGMAN–15mesesapósoiníciodaprestaçãocontratual,em descumprimentodoPMPApósarealizaçãodevistoriasetendoplenoconhecimentodas deficiências,oagentetardouainiciarosreparosnecessários,inviabilizandoaadequadacondição dosistemaparasuportaraenchentedoanode2024Acondutacaracterizaculpagraveouerro grosseiro,umavezqueimplicouemgraveinobservânciadodeverdecuidadoeafastou-sedo referencialdo"administradormédio",sendonotóriaeperceptívelporpessoadediligêncianormal quequalquerplanodemanutençãocontassecomumaavaliaçãodeprojetosemanuaisdos equipamentosamanter,alémdeinspeçõestempestivaseperiódicas
Responsável2
Nome: BombasSinosIndustriaeComercioLtda(CNPJ:01894407/0001-72)
Função: Contratada
Períodode
exercício: 23/08/2021a31/05/2024
Conduta:
Nexode causalidade:
ElaborouPlanodeManutençãoPreventivasemoadequadodiagnósticoquantoàscondições reaisdosportõesDescumpriuoPlanodeManutençãoPreventiva,iniciandovistoriasnosistema deportões15mesesapósoiníciodaprestaçãocontratualedeixoudetomarprovidências tempestivamenteparaarealizaçãodosreparosnecessáriosnascomportasdoSPCC
AoelaborarumPlanodeManutençãoPreventiva(PMP)apartirdeuminadequadodiagnóstico, descumprirafrequênciademanutençõesestabelecidasnoPMPedeixardetomarprovidências paraqueamanutençãonosportõesdoSPCCfossemrealizadastempestivamente,contribuiupara oinadequadofuncionamentodosequipamentosdosistema,oquepermitiuaentradadaságuas doGuaíbanacidadedePortoAlegrecontribuindosubstancialmenteparaainundaçãodemaiode 2024,aqualresultouemprejuízossignificativosaoeráriomunicipal,aindanãototalmente quantificados,masquejáperfazemquantiaestimadaentreR$6aR$8bilhões
Culpabilidade:
Eraexigívelcondutadiversapelaempresaresponsável,poisnacondiçãodecontratada,competialheaelaboraçãodeumPlanodeManutençãoPreventivaadequadoàscondiçõesreais apresentadaspelascomportasReforça-sequesomente15mesesapósoiníciodaprestação contratualforaminiciadasatividadesdevistorianosistemadeportões,emdescumprimentodo PMPTendoplenoconhecimentodasdeficiências,acontratadatardouainiciarosreparos necessários,inviabilizandoaadequadacondiçãodosistemaparasuportaraenchentedoanode 2024Acondutacaracterizaculpagraveouerrogrosseiro,umavezqueimplicouemgrave inobservânciadodeverdecuidadoeafastou-sedoreferencialdo"administradormédio",sendo notóriaeperceptívelporpessoadediligêncianormalquequalquerplanodemanutençãocontasse comumaavaliaçãodeprojetosemanuaisdosequipamentosamanter,alémdeinspeções tempestivaseperiódicas
Responsável3
Nome: MarcosGoulartMachado(CPF:881029800-44)
Assinado digitalmente por: Marcelo Kipper da Silva em 14/07/25, Leandro Lobato Camargo em 14/07/25, Leandro Torres em 14/07/25, Fabio Alex Beling em 14/07/25 e outro(s). Confira a autenticidade do documento em www.tce.rs.gov.br. Identificador: PRE.FE77.2360.2A1D.FC7C.62D4.


DIREÇÃODECONTROLEEFISCALIZAÇÃO SERVIÇODEAUDITORIADEPORTOALEGRE
Função: LíderdaEquipedeProteçãoContraCheias
Períodode exercício: 23/08/2021a31/05/2024
Conduta: NãorealizouostestesdefechamentodosportõesdoSPCC,conformefrequênciaanual determinadanoCadernodeEncargosdoDEP
Nexode causalidade:
Culpabilidade:
AnãorealizaçãodostestesdefechamentodosportõesdoSPCCnafrequênciaanual estabelecidapeloCadernodeEncargosdoDEPtardouodiagnósticodosproblemaspelaEQPRCHEIA/GDCO,resultandoemuminadequadodesempenhodasestruturasquepermitirama entradadaságuasdoGuaíbaparaointeriordopôlder,agravandoasconsequênciasdaenchente nacidadedePortoAlegre,aqualresultouemprejuízossignificativosaoeráriomunicipal,ainda nãototalmentequantificados,masquejáperfazemquantiaestimadaentreR$6aR$8bilhões
EraexigíveldolíderdaEQ-CHEIAS/GDCOcondutadiversa,namedidaemqueeraresponsável pelaoperaçãodosistemadeportõesdoSPCCEraesperadoodevidocumprimentodafrequência anualdetestesdefechamento,afimdediagnosticardeformatempestivaosproblemasdas estruturasAcondutacaracterizaculpagraveouerrogrosseiro,umavezqueimplicouemgrave inobservânciadodeverdecuidadoeafastou-sedoreferencialdo"administradormédio",sendo notóriaeperceptívelporpessoadediligêncianormalanecessidadedeinspeçõestempestivase periódicas,nostermosemodossugeridosnosmanuaiseprojetosdasestruturasRegistra-se, comoumacircunstânciaatenuante,ofatodequeoagentefoioúnicoservidorlotadonaEquipede ProteçãoContraCheias,sendoresponsávelpordiversasatividades,envolvendo,aoperaçãode 23EBAPsetodoocomplexosistemadeproteçãocontracheias,paraoqualpressupor-se-iaa necessidadedoacompanhamentodasituaçãodetodososarroiosedaadequaçãodascasasde bombas,dosdiques,domurodaMauáedascomportasexistentesDiantedacomplexidadee diversidadedastarefasquealémdeenvolveromonitoramentocontínuo,fiscalização,operaçãode sistemascomplexoserespostaaemergências,aindaexigemconhecimentostécnicosespecíficos deengenhariacivil,mecânica,elétricaehidráulica,nãoerarazoáveloexercíciodessasatividades porapenasumprofissional
Notas
1Disponívelem:https://tcerstcbr/r/t6Pb4Acessoem:16/05/2025
2Disponívelem:https://tcerstcbr/r/r6Pb4Acessoem:16/05/2025
3Acesso em: https://wwwcorreiodopovocombr/not%C3%ADcias/cidades/port%C3%A3o-14rompe-na-zona-norte-de-porto-alegre-11490461Disponívelem:26/05/2025
4Atividadesduplicadascomdatassemelhantesnãoforamincluídasnatabelacompilada
5Ocorreramaindaregistrodeatividadespreventivasnosportões11,12,13e14em05/01/2023 conformeOrdensdeServiçodoprocesson2110000006604-5Contudo,nãoconstamnos relatóriosmensaisresumidos
6Foramidentificadasordensdeserviçodatadasde18,19,20e21demarçode2023arespeito dafabricaçãodecavaletesparamanutençãodoportãodecontenção14.Contudo,nãoconstam nosrelatóriosmensaisdisponibilizados
7Disponívelem:https://gauchazhclicrbscombr/porto-alegre/noticia/2023/09/seis-comportas-saofechadas-em-porto-alegre-apos-elevacao-do-guaiba-clmzem590006w015nk1scay56html Acessoem:12/02/2025
8Disponívelem:https://portalinmetgovbr/noticias/balan%C3%A7o-porto-alegre-rs-teve-recordede-chuva-em-setembro-2023Acessoem12/02/2025
9Disponívelem:https://portalinmetgovbr/noticias/balan%C3%A7o-porto-alegre-rs-teve-chuvaacima-da-m%C3%A9dia-em-novembro-2023Acessoem12/02/2025
10Dsiponível em: https://g1globocom/rs/rio-grande-do-sul/noticia/2023/11/21/agua-do-guaibainvade-ruas-de-porto-alegre-nivel-esta-em-338mghtmlAcessoem:12/02/2025
11Disponível em: https://prefeiturapoabr/dmae/noticias/prefeitura-finaliza-reabertura-decomportas-do-sistema-contra-cheiasAcessoem:12/02/2025
12Dispnível em: https://gauchazhclicrbscombr/porto-alegre/noticia/2023/11/comporta-cede-apressao-e-agua-invade-ruas-do-4o-distrito-na-capital-clp7yzry30023015t5at92le0html Acesso em:12/02/2025
13Disponível em: https://gauchazhclicrbscombr/porto-alegre/noticia/2023/11/nivel-do-guaibaultrapassa-cota-de-inundacao-no-cais-maua-e-prefeitura-fecha-comportasclp6sm490000m015956anpmwkhtmlAcessoem:19/05/2025
Assinado digitalmente por: Marcelo Kipper da Silva em 14/07/25, Leandro Lobato Camargo em 14/07/25, Leandro Torres em 14/07/25, Fabio Alex Beling em 14/07/25 e outro(s). Confira a autenticidade do documento em www.tce.rs.gov.br. Identificador: PRE.FE77.2360.2A1D.FC7C.62D4.

ESTADODORIOGRANDEDOSUL TRIBUNALDECONTAS
DIREÇÃODECONTROLEEFISCALIZAÇÃO SERVIÇODEAUDITORIADEPORTOALEGRE
522FalhanaManutençãodaEBAP13
Situaçãoencontradapelaequipedeauditoria

OpresenteachadodeauditoriaenvolveaavaliaçãodofuncionamentodaEBAP13 duranteacheia,queessencialmentefalhoupelasmesmasrazõesconstatadasnasEBAPs17e 18,conformetratadoemitemanteriordesterelatórioContudo,optou-seporapartarapresente análise,pois,demododiversoaoocorridonasEBAPs17e18,adenº13foialvode reparoespecíficonodispositivodevedaçãoantesdagrandecheia,oquedeveriaterimpedidoa inundaçãonestaestação
Nodia04desetembro2024,apósasenchentesocorridasentreosmesesdeabrile maiodoanode2024,aEquipeTécnicadoTribunaldeContasdoEstadodoRioGrandedoSul realizouvistorianaEstaçãodeBombeamentodeÁguasPluviaisnº13(EBAP13)situadano ParqueMarinhadoBrasil
Constatou-seque,duranteoreferidoperíodo,foirealizadatentativadeimpedira passagemdeágua(retornodaságuasdoGuaíba)atravésdasjanelasdeinspeçãodaestação atravésdasobreposiçãodebags(sacosdeareia)acimadaschapasmetálicasexistentes, contudosemsucessoAbaixoseguemimagensdaEBAP13comdestaqueparaasbagssobre astampas:
Figura50–Vistoriainloconodia04/09/24doTCE/RSnaEBAP13.Setaindicandobagsobrechapa metálica

Assinado digitalmente por: Marcelo
da
em 14/07/25, Leandro
em 14/07/25,
Torres em 14/07/25, Fabio Alex Beling em 14/07/25 e outro(s). Confira a autenticidade do documento em www.tce.rs.gov.br. Identificador: PRE.FE77.2360.2A1D.FC7C.62D4.

ESTADODORIOGRANDEDOSUL TRIBUNALDECONTAS
DIREÇÃODECONTROLEEFISCALIZAÇÃO SERVIÇODEAUDITORIADEPORTOALEGRE


Figura51–Vistoriainloconodia04/09/24doTCE/RSnaEBAP13Detalhebagsobrechapametálica (paraempilhamentodasbagsfoiutilizadaestruturametálicaauxiliartipocesto)

Ocorreque,conformeprojeto,asreferidastampasdeveriamserherméticas,ouseja, paranãopermitirapassagemdaságuasdaenchenteatravésdosnichos,não necessitariamqualquerauxíliocomplementarparamanutençãodavedação–comoocasoda sobreposiçãodebagsAbaixoéapresentadooprojetoemdetalhes(peça6718443):
Figura52–IndicaçãodetampaspressurizadasconformeprojetonaEBAP13

Assinado digitalmente por: Marcelo Kipper da Silva em 14/07/25, Leandro Lobato Camargo em 14/07/25, Leandro Torres em 14/07/25, Fabio Alex Beling em 14/07/25 e outro(s). Confira a autenticidade do documento em www.tce.rs.gov.br. Identificador: PRE.FE77.2360.2A1D.FC7C.62D4.

ESTADODORIOGRANDEDOSUL TRIBUNALDECONTAS
DIREÇÃODECONTROLEEFISCALIZAÇÃO SERVIÇODEAUDITORIADEPORTOALEGRE



Observa-se,conformerelatórioobtidodoprocessoSEIn2110000006604-5 (referenteaosrelatóriosdoContraton201000006244-3,cujoobjetoé"Contratação de prestaçãodeserviçostécnicosespecializadosparamanutençãoeletromecânicapreventivae corretivaemEquipamentosIndustriaisdoSistemadeProteçãoContraCheiasdePortoAlegre (SPCC-PMPA),incluindoofornecimentodemateriaisepeçasdereposição,abrangendoas EstaçõesdeBombeamentodeÁguasPluviais(EBAPs),os14portõescomportasdoCaisMauá eAv CasteloBrancoequaisqueroutrosequipamentosquefazemparteouquevenhama integraroSPCC-PMPA",queaschapaspodres–conformedenominadasnorelatório(peça 6718497)–foramsubstituídasem07/03/2022,oportunidadeemqueafiscalizaçãodo contratodemanutenção(peça6718477)nãoseatentouparaanecessidadedesubstituílasadequadamenteportampasquegarantissemaestanqueidade.Vistoqueestavam devidamenteespecificadasemprojeto,constata-sequeoserviçorealizadoparasubstituiçãodas chapasnãoobservouadequadamenteasdefiniçõesdoprojetoexistente
Figura53–Relatóriode07/03/2022disponibilizadonoProcessoSEIn2110000006604-5



Afaltadodispositivocorretosobreosnichosdedescarga,capazesdeobstaculizara passagemdeáguapressurizadaemrazãodoelevadoníveldoGuaíba,contribuiu,deforma incisiva,paraainundaçãodaEBAP13,forçandoodesligamentodosequipamentosque bombeavamaságuaspluviais,comconsequenteagravamentodoalagamentonacidade,em especialnosbairrosMeninoDeuseAzenha


Ressalta-seaindaqueairregularidadequantoàstampasherméticasnaEBAP13 somentefoiobservadaeregistradapelaGDCOem28/11/2023,conformeProcessoSEI n180000087475-9,atravésdoAnexon26438057(peça6718498)eDespachon26438122 de29/11/2023(peça6718499)Extrai-setrecho,inverbis,doDespachon26438122:
AlémdasdescargasdasEBAPs17e18,informamosquefoiidentificado(sic) outrosdoispontoscomproblemasrelacionadosa(sic)cotadedescarga,umjá apresentandoocorrênciadeextravasamentosnesteeventodeelevaçãodo Guaíba
NaEBAP13,imagens26438057,háduasjanelasdeinspeçãonopoçode descarga,dentrodasaladebombas,nestespontosfoiconstatadogrande vazamentoduranteoacionamentodasbombasnodia21/11/2023,algoquenão haviasidoobservadoatéentãoEstasjanelasdeinspeção,nãoencontram-se (sic)pressurizadas.Nãosesabeaocerto,senuncaforamadequadamente fechadascomtampapressurizadaouseemalgummomento,desdesua construção,houveintervençãoqueresultounestacondição,sempressurização Observandooprojeto,verificou-sequedeveriamserpressurizadasedefatosua cotaébastanteinferioraodique(AvEdvaldoPereiraPaiva)Novaelevaçãodo Guaíbaacimade3,4mcausaráoproblemaobservadonovamente,podendo até,dependendodonívelqueoguaíbaatingir,inviabilizarofuncionamento daEBAP13egerarumalagamentodegrandeproporçãonaárea protegida,perímetroformadopelasavenidas:JosédeAlencar,Ipiranga, ÉricoVeríssimoeEdvaldoPereiraPaiva.Diantedocasosolicita-sereparo doproblema,sendoindicadoainstalaçãodeescotilhasadequadasà pressãodaqueleponto.
(Grifonosso)
OpedidodesubstituiçãodaschapasdeferromovidopelaEQ-PRCHEIA/GDCO tramitavaatravésdoSEIn.18.0.000087475-9,contudo,aenchentedoanode2024ocorreusem queaquestãoestivessesuperada
Ratifica-seatravésdeimagensoAnexon26438057:
Figura54–ImagensdoProcessoSEIn180000087475-9Anexon26438057

ESTADODORIOGRANDEDOSUL TRIBUNALDECONTAS
DIREÇÃODECONTROLEEFISCALIZAÇÃO SERVIÇODEAUDITORIADEPORTOALEGRE



em www.tce.rs.gov.br. Identificador: PRE.FE77.2360.2A1D.FC7C.62D4.

ESTADODORIOGRANDEDOSUL TRIBUNALDECONTAS
DIREÇÃODECONTROLEEFISCALIZAÇÃO SERVIÇODEAUDITORIADEPORTOALEGRE


Relata-sequenadataemqueaschapasforamsubstituídasatravésdocontratode manutenção(autorizadopelafiscalizaçãodaGMANeexecutadopelacontratada),07/03/2022,a fiscalizaçãodaGMANdeveriaterrealizadoodiagnósticoquantoànecessidadedacorretatroca, informandodeimediatoossetoresresponsáveisparaefetuaradevidaadequaçãodastampasao projetooriginalTodavia,emdecorrênciadepossívelausênciadeconsultaaosprojetosporparte da fiscalizaçãodemanutenção,somenteem28/11/2023foiidentificadapelaEQPRCHEIA/GDCOanecessidadedeinstalaçãodeescotilhasadequadasàpressãohidráulicanos pontosdedescargaemdecorrênciadefluxocontrárioaobombeamento,transcorrendoum períodosuperiora20meses,emquemedidasjápoderiamtersidotomadasparasaneamentoda questão.
Diantedocenárioapresentado,eraexigívelcondutadiversadoresponsávelpela fiscalizaçãocontratualAonãocomunicarossetoresresponsáveisarespeitodanecessidadede substituiçãoportampasherméticas-sejaporfaltadeconsultaaosprojetosexistentesououtro motivo-,tardouoprocessodealteraçãoportampasadequadasnadescargadasbombas daEBAP13Importaressaltarqueasescotilhasexistentescorroídasapresentavamriscoaos quetrabalhavamnolocal,sendosuatrocaemcaráteremergencialnecessária,contudocomviés provisórioEraexigívelqueofiscalcontratualcomunicasseimediatamenteanecessidadede substituição,sobpenadequequandoocorresseelevaçãodaságuasdoGuaíba,permitissea entradaindevidadeáguapelopoçoContudo,oatrasonodiagnósticoculminounafalha apresentadaeacentuouosproblemasdealagamentonacidadedePortoAlegre

ESTADODORIOGRANDEDOSUL TRIBUNALDECONTAS DIREÇÃODECONTROLEEFISCALIZAÇÃO SERVIÇODEAUDITORIADEPORTOALEGRE

AsatividadesdefiscalizaçãocontratualforamexercidaspeloservidorMarceloLuis Diel,ocupantedocargodeEngenheiro,oqualfoidesignadoparaoexercíciodessasfunçõesno períodode23/08/2021a31/05/2024
Poroutrolado,talcomoregistradonoachado"FalhanaManutençãodos Portões/ComportasdoMurodaMauá",asfalhasdafiscalizaçãonãoelidemaresponsabilidade contratualdaempresacontratadaBombaSinosIndústriaeComércioLtdapelaelaboraçãoe cumprimentodeumadequadoPlanodeManutençãoPreventiva(PMP),paraoqualpressuporse-iaumdiagnósticopréviodascorreçõesqueseriamnecessáriasparaocorretofuncionamento dasEBAPs,aderenteàsespecificaçõestécnicasconstantesnosrespectivosprojetos existentesContudo,nãoháindíciosdequeoplanotenhacontadocompréviavistoriadas estaçõesedosequipamentosexistentes,sendorelacionadasapenasatividadespreventivasde formagenérica,semconsideraraverificaçãodaadequaçãoestruturaldosequipamentos
Noponto,relativamenteaosserviçosdemanutençãopreventivaatinentesàsEBAPs, oPMP(peça6195253)estabeleceuaseguintelistadeserviços:
21MANUTENÇÃOMECÂNICAPREVENTIVA
211EBAPs
Fazempartedamanutençãomecânicapreventivadascasasdebombas:
•Acionamentodecadagrupoverificandoseexistemproblemascomo:vibração excessiva,correntedomotoracimadanominal,eixodabombatrancadoou “pesado”,vazamentosnosflangesenocorpodabombaRessalva:seonívelde águaestiverbaixo,paranãoocorrerproblemasdecavitação,ogrupodeveser desligadologoapósentraremregime
•Lubrificaçãodetodasasbombas
•Inspeçãovisual(quandopossível)dascomportas
•Acionamento(manualmenteepelosistemaelétrico,quandohouver)das comportastipoguilhotina
•Inspeçãovisualdasgrades
•Inspeçãovisualdaschapasegradesdepiso
•Inspeçãodaponterolante
•Apontamentodetodasaspendênciasconstatadasnoprontuáriodaestaçãoe comunicaçãoaoCoordenadordocontrato
()
31MANUTENÇÃOELÉTRICAPREVENTIVA
Nosprimeiros45diasdeexecuçãodocontratoserãopriorizadosserviçosde manutençãopreventivaelétricanasestaçõescomexceção,éclaro,deserviços urgentesdemanutençãocorretivaquesurgiremnesteínterim

ESTADODORIOGRANDEDOSUL TRIBUNALDECONTAS
DIREÇÃODECONTROLEEFISCALIZAÇÃO SERVIÇODEAUDITORIADEPORTOALEGRE

Duranteaexecuçãodestesserviçosdemanutençãopreventiva,serão realizadoslevantamentosdependênciasepossibilidadesdemelhorias.
Comestasinformações,serãoavaliadasemconjuntocomoDMAEas prioridadesdetrabalhosdemelhoria,bemcomoasnecessidadesdecomprae orçamentosdemateriaisquenãoestejamdisponíveisnoalmoxarifadodo DMAE
311EBAPS
Listadeserviçosaseremexecutadosemmanutençõespreventivas:
•Acionamentodecadagrupoverificandoseexistemproblemascomo:vibração excessiva,correntedomotoracimadanominal,eixodabombatrancadoou “pesado”,vazamentosnosflangesenocorpodabombaRessalva:seonívelde águaestiverbaixo,paranãoocorrerproblemasdecavitação,ogrupodeveser desligadologoapósentraremregime
•Limpezageraldoquadro.
•Aspiraçãodepoeiracomaspiradorindustrial
•Verificarconexões
•Limparcontatos
•Apertodeconexões
•Verificaçãodevaloresdecorrenteetensão
•Termografia
•Verificartampaseportas
•Verificarfixações
•Limparetestarexaustoreseventiladores.
(Grifonosso)
Nãoobstanteasnotóriaslacunasexistentes,oplanoestabeleceucomorotinaa realizaçãodelevantamentosdependênciasepossibilidadesdemelhorias,quandodaexecução deserviçosdemanutençõespreventivas.Alémdisso,foramprevistasrotinasdeinspeçãodas chapasedasgradesedeverificaçãodetampaseportas,atividadesintrinsecamente relacionadasaosequipamentosquefalharam
Portodooexposto,esperava-secondutadiversadosresponsáveis(fiscalMarcelo LuisDielecontratadaBombasSinosIndústriaeComércioLtda)pelaelaboração/aprovaçãodo PlanodeManutençãoPreventiva,namedidaemqueeranecessárioodiagnósticopréviodas correçõesqueosistemarequeriaafimdaadequadaformulaçãodoPMP
Ademais,eraexigíveldaempresaquecumprisseostermospactuados,conformeo artigo66daLeiFederal8666/1993(leiválidaquandodalicitaçãorealizada),assimcomocabiaà 119
Assinado digitalmente por: Marcelo Kipper da Silva em 14/07/25, Leandro Lobato Camargo em 14/07/25, Leandro Torres em 14/07/25, Fabio Alex Beling em 14/07/25 e outro(s). Confira a autenticidade do documento em www.tce.rs.gov.br. Identificador: PRE.FE77.2360.2A1D.FC7C.62D4.

ESTADODORIOGRANDEDOSUL TRIBUNALDECONTAS
DIREÇÃODECONTROLEEFISCALIZAÇÃO SERVIÇODEAUDITORIADEPORTOALEGRE

fiscalizaçãoexigiressecumprimentopelosmeiosdisponíveis(artigo67)Ainda,pertinenteao casoemtela,oartigo70dareferidaLeiconfirmaqueoacompanhamentodoórgãoouda fiscalizaçãonãoreduzemaresponsabilidadedacontratadanocasodedanoscausadosà administraçãoouaterceiros
Ascondutas,tantodosagentespúblicosquantodaempresacontratada,caracterizam culpagraveouerrogrosseiro,umavezqueimplicaramemgraveinobservânciadodeverde cuidadoeafastaram-sedoreferencialdo"administradormédio",sendonotóriaeperceptívelpor pessoadediligêncianormalquequalquerplanodemanutençãoprecisariacontarcomuma avaliaçãodeprojetosemanuaisdosequipamentosamanter,alémdeinspeçõestempestivase periódicas.
Consequênciasparaaadministraçãoesociedade
Avulnerabilidadecriadaatravésdainstalaçãodetampasnãopressurizadas-em descumprimentoaoestabelecidoemprojeto-eafaltadecomunicaçãotempestivaaossetores responsáveis,forçouodesligamentoprecocedobombeamentodaEBAP13,contribuindo,de formaincisiva,paraoagravamentodoacúmulodeáguaembairroscomoMeninoDeuse Azenha,alémdepermitiroinfluxodevolumesdeáguadoGuaíbaatravésdasjanelasde inspeçãodaEBAP13paradentrodopôlderprotegidopelodiquePraiadeBelas
Consequentemente,aausênciadasaçõesnecessáriasresultouemprejuízos significativosaoeráriomunicipal,aindanãototalmentequantificados,masquejáperfazem quantiaestimadaentreR$6aR$8bilhões
Leiseoutrasnormasaplicáveisaocaso
LeiMunicipalnº2312/1961,artigo3°; DecretoMunicipalnº21.539/2022,art.162; LeiComplementarMunicipalnº133/1985,art196,VeVII; LeiFederalnº10.406/2022,art.186; RegimentoInternodoTribunaldeContasdoEstado(AprovadopelaResoluçãonº 1028/2015),art.139; LeiFederalnº8666/1993,arts66,67e70
Conclusõesdaequipedeauditoria
Portanto,constatou-senegligênciaporpartedaempresacontratadaedafiscalização responsávelpeloContraton201000006244-3demanutençãodasestaçõesdebombeamento deáguaspluviaisquantoànecessidadedepréviaconsultadosprojetosdaEBAP13e imprudênciaquantoàsubstituiçãoporescotilhasinadequadassemadevidacomunicaçãoaos setoresresponsáveis
Diantedoapresentado,ficaevidentequeodescumprimentodoestabelecidoem projetocontribuiu,deformadeterminante,paraoagravamentodasenchentesnoMunicípiode PortoAlegre,namedidaemqueaentradadeáguapelosnichosforçouodesligamentoprecoce 120

ESTADODORIOGRANDEDOSUL TRIBUNALDECONTAS
DIREÇÃODECONTROLEEFISCALIZAÇÃO SERVIÇODEAUDITORIADEPORTOALEGRE

dobombeamentodaEBAP13,resultandonoacúmulodeáguaspluviaisembairroscomo MeninoDeuseAzenha
Responsabilização
Responsável1
Matrizderesponsabilização
Nome: MarceloLuisDiel(CPF:577925690-04)
Função: FiscaldeContrato-Engenheiro
Períodode
exercício: 23/08/2021a31/05/2024
Conduta:
Nexode causalidade:
AnuiucomumPlanodeManutençãoPreventivasemoadequadodiagnósticoprévioquantoàs condiçõesreaisdasEBAPseprovidênciasnecessáriasnosentidodesuaadequaçãoàs especificaçõestécnicasconstantesnosrespectivosprojetosexistentesAceitouorecebimentodo serviçodeinstalaçãodechapasmetálicas,sematentarparaosrequisitostécnicosprevistosno projetodaEBAP13,queexigiaainstalaçãodetampasherméticasparagarantiada estanqueidadeNãorelatouaossetorescompetentesarespeitodacorreçãonecessáriaA condutacaracterizaculpagraveouerrogrosseiro,umavezqueimplicouemgraveinobservância dodeverdecuidadoeafastou-sedoreferencialdo"administradormédio",sendonotóriae perceptívelporpessoadediligêncianormalquequalquerplanodemanutençãocontassecomuma avaliaçãodeprojetosemanuaisdosequipamentosamanter,alémdeinspeçõestempestivase periódicas.
AscondutasresultaramnamanutençãodetampasnãoherméticasnaEBAP13,atéomomento dascheiasemmaiode2024,contribuindoparaoprecocedesligamentodosmotoresque bombeavamaságuaspluviaisprovenientesdebairroscomoMeninoDeuseAzenha,bemcomo permitindooacúmulodeáguanessaslocalidades,alémdegerarpontosdeentradadaságuasdo GuaíbaparaointeriordopôlderdodiquePraiadeBelas
Culpabilidade:
Eraexigívelcondutadiversa,diantedocontextoqueocercavaComofiscalresponsávelpelo contratodemanutençãoenacondiçãodeengenheiro,esperava-sequerespeitasseao estabelecidonosprojetosnaEBAP13Tambémeraesperadoquecomunicasseossetores responsáveisdanecessidadedesubstituiçãodaschapasmetálicasportampaspressurizadas, alertandosobreosriscosdeentradadeáguapelosnichosdedescargaemcasodeelevaçãodo níveldoGuaíba
Responsável2
Nome: BombasSinosIndustriaeComercioLtda(CNPJ:01894407/0001-72)
Função: Contratada
Períodode
exercício: 23/08/2021a31/05/2024
Conduta:
Nexode causalidade:
ElaborouPlanodeManutençãoPreventivasemoadequadodiagnósticoquantoàscondições reaisdasEBAPseprovidênciasnecessáriasnosentidodesuaadequaçãoàsespecificações técnicasconstantesnosrespectivosprojetosexistentesNãorealizouvistoriastécnicas preventivascapazesdeidentificarasvulnerabilidadesexistentesnastampasmetálicase oportunidadesdemelhorias/correçõesnaEBAP13
AscondutasomissivasimplicaramaelaboraçãodeumPlanodeManutençãoPreventiva(PMP) falho,quenãoatentouparaasnecessidadesdeinstalaçãodetampasherméticas,em consonânciacomasespecificaçõestécnicasestabelecidasnoprojetodaEBAP13Afaltade substituiçãodastampascontribuiu,deformadeterminante,paraoinadequadofuncionamentoda EBAP13epermitiuaentradadaságuasdoGuaíbaparadentrodopôlderprotegidopelodique PraiadeBelas
Culpabilidade:
Eraexigívelcondutadiversapelaempresaresponsável,poisnacondiçãodecontratada,competialheaelaboraçãodeumPlanodeManutençãoPreventivaadequadoàscondiçõesreaisexistentes nasEBAPseaderenteàsespecificaçõestécnicasconstantesnosrespectivosprojetosexistentes Tambémeraexigívelqueacontratadaatentasseparaanecessidadedesubstituiçãoportampas herméticasemsuasrotinasdemanutençõespreventivasAcondutacaracterizaculpagraveou errogrosseiro,umavezqueimplicouemgraveinobservânciadodeverdecuidadoeafastou-sedo referencialdo"administradormédio",sendonotóriaeperceptívelporpessoadediligêncianormal quequalquerplanodemanutençãocontassecomumaavaliaçãodeprojetosemanuaisdos equipamentosamanter,alémdeinspeçõestempestivaseperiódicas
Assinado digitalmente por: Marcelo Kipper da Silva em 14/07/25, Leandro Lobato Camargo em 14/07/25, Leandro Torres em 14/07/25, Fabio Alex Beling em 14/07/25 e outro(s). Confira a autenticidade do documento em www.tce.rs.gov.br. Identificador: PRE.FE77.2360.2A1D.FC7C.62D4.

ESTADODORIOGRANDEDOSUL

523ExtravasamentosemCondutosForçados
Situaçãoencontradapelaequipedeauditoria
Duranteacheiademaiode2024ocorreu,emalgunslocaisdacidade, extravasamentodeáguaatravésdealgumastampasdecondutosforçados
Oscondutosforçadossãoredesdedrenagemprojetadospararlevaraságuas provenientesderegiõesaltas(acimadacota9m)dacidadediretamenteparaoGuaíba,sem passarpelossistemasdasestaçõesdebombeamentopluvial(EBAPs)Estescondutosforçados foramprojetadosparatransportaraságuassobpressão,deformaquemesmocomonível elevadodoGuaíbaaságuasdeveriamescoarnosentidodacidadeparaorioMas,paraque issoaconteça,énecessárioqueospoçosdevisitapossuamtampasherméticas,ouseja,tampas quepossamsuportarpressõeselevadas.
Sehouveralgumafalhanavedaçãodastampasdospoçosdevisitadestescondutos forçados,haveráovazamentodeágua,tendoemvistaapressãoelevadadentrodoscondutos Istoocorreuemalgunslocaisdacidade,conformenoticiadopelaimprensaedemonstradonas fotosaseguir.
Aimagemabaixo,postadanaredesocialXpeloDMAEnodia15dejunhode2024, demonstradoispoçosdevisita,localizadosnasavenidasPolôniaeAssisBrasil,emqueforam colocadossacosdeareia(bags)paraevitarqueapressãodaágualevantasseastampase aumentasseovazamentodeágua

ESTADODORIOGRANDEDOSUL TRIBUNALDECONTAS
DIREÇÃODECONTROLEEFISCALIZAÇÃO SERVIÇODEAUDITORIADEPORTOALEGRE


Fonte:PerfildoDMAEnaredesocialX1 .
NodocumentosobreaanálisedainundaçãonaZonaNorteeCentroproduzidopelo DMAE(peça6718448,p28),constaoseguinteparágrafosobreafalhanoscondutosfoçados:
AterceiraformadeentradadeáguaparadentrodoSPCCsedeuatravésde tampasdosCondutosForçadosEstetipodeelemento,quetemporfinalidade conduziráguasdaspartesacimadecota9mdiretamenteparaoLagoGuaíba semnecessidadedepassagempelasCasasdeBombas,acaboumostrando-se ineficienteemfunçãodaelevadacotadoLago,queresultouempressurizaçãoe rompimentodavedaçãodealgumasdastampas.
Nãoháinformaçãodequetodasastampasapresentaramvazamento,destaforma infere-sequesetratadeumproblemademanutençãodealgumasdastampasdoscondutos forçados,poisestasdevempossuirumavedaçãoadequadaqueimpeçaovazamentodaságuas, nocasodocondutoefetivamentetrabalharsobpressão
Naimagemaseguir,seguepostagemdaempresaMetSulnaredesocialXondese 123

ESTADODORIOGRANDEDOSUL TRIBUNALDECONTAS
DIREÇÃODECONTROLEEFISCALIZAÇÃO SERVIÇODEAUDITORIADEPORTOALEGRE

podevisualizarumvídeodaságuasrefluindoatravésdastampasdocondutoforçadoda AvPolônia,nodia3demaiode2024
Figura56–RefluxopelocondutoforçadoempostagemdaredesocialX

Fonte:PerfildoMetSulnaredesocialX2
SegundoaMetSul,oproblemaérecorrente345,ocorrendopelomenosdesde2015, bastandoparaqueissoocorra,queacotadoGuaíbaestejaacimade2,6mnocais.
Assim,trata-sedeumdefeitonoscondutosforçadosdedrenagemdeconhecimento públicoequevemocorrendoháanossemquetenhasidocorrigidopeloDEP,pelaSecretaria MunicipaldeServiçosUrbanos(queassumiuamanutençãopluvialapósaextinçãodoDEP)e posteriormentepeloDMAEAfalha,comovisto,contribuiuparaainundaçãodacidadenacheia demaiode2024
Questionou-seoDMAEsobreasprovidênciasqueforamtomadas,apartirdascheias 124


de2023,pararesolveroextravasamentodeáguaempoçosdevisitadecondutosforçados (peça6486880)Emrespostafoiinformadooseguinte(peça6718444):
InformamosqueapósoEventoExtremodemaio/2024efetuamosaContratação deEmpresaparadesenvolvimentodeprojetosdemelhoriaoperacionalde EBAPseCondutosForçados(Contrato2410000005542-2),ondeestásendo desenvolvidoprojetodemelhorianosistemadeTampasHerméticasdoCFs, quedevemestarconcluídosatéofinaldopresentemês,sendonecessárioapós aprovaçãodosprojetosarealizaçãodelicitaçãoparaasubstituiçãodastampas queapresentamdeficiências
Destaforma,constata-sequesófoitomadaumaprovidênciamaisassertivaparaa soluçãopermanentedoextravasamentonoscondutosforçadosapósaocorrênciadagrande cheiademaiode2024Ocontratofoiassinadopelaspartesem11dejulhode2024(peça 6718500)
Consequênciasparaaadministraçãoesociedade
OsextravasamentosdeáguapeloscondutosforçadosdasavenidasPolôniaeAssis BrasilcontribuiramparaainundaçãodacidadedePortoAlegreExistemnotíciasnaimprensada ocorrênciadestesvazamentosdesdeoanode2015,caracterizandonegligênciadoantigoDEPe atualmentedoDMAEnasoluçãodesteproblema.
Consequentemente,aausênciadasaçõesnecessáriasresultouemprejuízos significativosaoeráriomunicipal,aindanãototalmentequantificados,masquejáperfazem quantiaestimadaentreR$6aR$8bilhões
Leiseoutrasnormasaplicáveisaocaso
LeiMunicipalnº2312/1961,art3°;
DecretoMunicipalnº21539/2022,art114;
LeiComplementarMunicipalnº133/1985,art.196,V; LeiFederalnº10406/2002,art186
Conclusõesdaequipedeauditoria
Os extravasamentos de água pelos condutos forçados das avenidas Polônia,Missões,ErnestodaFontouraeAssisBrasildecorremdeproblemasdemanutenção dastampasdoscondutosforçados,poisestesdevempossuiralgumelementoquepropicieuma vedaçãoadequadaeimpeçaovazamentodaságuas,nocasodocondutoefetivamentetrabalhar sobpressão
TaisvazamentoscontribuíramparaainundaçãodacidadedePortoAlegreemmaio de2024

ESTADODORIOGRANDEDOSUL TRIBUNALDECONTAS
DIREÇÃODECONTROLEEFISCALIZAÇÃO SERVIÇODEAUDITORIADEPORTOALEGRE

Existemnotíciasnaimprensarelatandoaocorrênciadestesvazamentosdesdeoano de2015equecontinuaramaocorreraolongodosanos,caracterizandonegligênciatantodo antigoDEPquantodoDMAEnasoluçãodesteproblema
Segundooartigo114doRegimentoInternodoDMAE(peça6718458,p55),cabe àDiretoriadeOperações(DO),unidadedetrabalho(UT)subordinadaàDiretoria-Geral:
II-orientar,organizar,controlareexecutarasatividadesnecessáriasà manutenção,conservaçãoeampliaçãodasredeseequipamentospúblicos deágua,esgotoscloacalepluvial;
Portantoamanutençãodoscondutosforçadospluviaiséumaresponsabilidadeda DO,sendoatribuiçãodestadiretoriaorientarquantoaosprocedimentoseatividadesnecessárias paraamanutenção,conformeoartigo114
Segundooartigo115doregimentointernodoDMAE(peça6718458,p56),cabeàs GerênciasdeDistritalCentro,Leste,NorteeSul,unidadesdetrabalho(UT)subordinadasà DiretoriadeOperações:
I-planejar,supervisionarecontrolarasaçõesrelativasàmanutençãoderedes deágua,esgotocloacalepluvial,bemcomoorientarosserviçostécnicose administrativosrelacionadosàsCoordenaçõessubordinadas;
AsGerênciasdeDistritaissãovinculadasdiretamenteàDO,conformepode-se observarnoorganogramadoDMAE(peça6718501,p7),cabendoaelasaexecuçãodos serviçosdemanutençãoatravésdassuas"CoordenaçõesdePluvial",conformeoartigo118do RegimentoInternodoDMAE(peça6718458,p.58).
Tendoemvistaohistóricodeextravasamentosnoscondutosforçados,conforme relatadopelaimprensaeoseventosdeinundaçãorecentesde2023,seriaesperadoquea DiretoriadeOperaçõesdoDMAEbuscasseumasoluçãotécnicaadequadaparaestes problemas,oquesomenteocorreuapósacheiademaiode2024,comacontratação mencionadaacima
Destaforma,aresponsabilidadepelaomissãoemdeterminarquefosseelaborada umasoluçãotécnicaadequadaparaamanutençãodastampasdospoçosdevisitadestes condutosforçadosrecainocargodedireçãodaDiretoriadeOperações(DO),oqualfoiocupado pelasseguintespessoas:
LuizFernandoJacobsenAlbrecht,ocupantedocargodeDiretordaDOde 16/03/2017(peça6718502)a17/02/2021(peça6718503); 126
digitalmente por: Marcelo Kipper da Silva em 14/07/25, Leandro Lobato Camargo em 14/07/25, Leandro Torres em 14/07/25, Fabio Alex Beling em 14/07/25 e outro(s). Confira a autenticidade do documento em www.tce.rs.gov.br. Identificador: PRE.FE77.2360.2A1D.FC7C.62D4.


SérgioAntônioPavanattoCerentini,ocupantedocargodeDiretordaDOde 18/02/2021(peça6718445)a31/03/2022(peça6718504); JoséEduardoCoutinhoTessis,queexerceu,pordelegaçãodecompetênciado Diretor-GeraldoDMAE,asatribuiçõesdeDiretordaDOde01/04/2022(peça 6718505)até26/03/2023(peça6718506);
IsabelLeonBacilCosta,ocupantedocargodeDiretoradeOperaçõesde 27/03/2023(peça6718507)atéomomento(peça6718463,p.32)(peça 6718464,p.33),
Asomissõescaracterizamculpagraveouerrogrosseiro,umavezqueimplicaram graveinobservânciadodeverdecuidadoeafastaram-sedoreferencialdo"administradormédio", sendonotóriaeperceptívelporpessoadediligêncianormalqueeranecessáriaainvestigaçãoe correçãodosproblemashistóricosdeextravasamentodoscondutosforçados
Comoatenuantedaresponsabilidadedessesagentes,háqueseconsideraro contextodeincapacitaçãooperacionalgeneralizadadoDMAE,conformeapontadonoachado "FaltadeEstruturaçãodePessoal",especialmenteparaabsorçãodascompetências incorporadas,comprejuízosaoplanejamentodeprojetoseaocumprimentosatisfatóriodas demaisatividadesincumbidasaoDMAErelativasaosistemadedrenagemeàoperação, manutençãoecontroledosistemadeproteçãocontracheias,circunstânciasqueforam determinantesparaainexecuçãodasaçõesnecessáriasparaaidentificaçãodasfalhas existenteseparaofracassodoórgãonagestão,manutenção,conservaçãoeoperaçãodo sistema
Nesseaspecto,salienta-sequeaDOinstaurou,em10/05/2021,oexpediente 21.10.000003292-2(VideAnexo-AnáliseExpedientesReposiçãodePessoal),registrandoa solicitaçãodereposiçãodediversoscargos,emrazãodoriscodecolapsodasoperaçõespor contadafaltadeefetivodepessoalAdemandafoiatendidapormeiodecontratações temporárias,quealémdenãoteremsidopreenchidasporcompletoetereminiciadoapenasa partirdejulhode2022,consistiramemumquantitativototalautorizadoinferioraodemandado comonecessáriopelaDO
Responsabilização
Responsável1
Matrizderesponsabilização
Nome: IsabelLeonBacilCosta(CPF:827276860-72)
Função: DiretoradeOperações
Períodode exercício: 27/03/2023a31/05/2024
Conduta: Nãodeterminouaelaboraçãodeumasoluçãotécnicaadequadaparaamanutençãodastampas dospoçosdevisitadoscondutosforçados
Nexode causalidade: Osdefeitosnãosanadoslevaramaoextravasamentodeáguapelospoçosdeinspeçãodos condutosforçadosdasavenidasPolôniaeAssisBrasilecontribuíramparaainundaçãodacidade dePortoAlegreemmaiode2024,aqualresultouemprejuízossignificativosaoeráriomunicipal, aindanãototalmentequantificados,masquejáperfazemquantiaestimadaentreR$6aR$8 bilhões

ESTADODORIOGRANDEDOSUL TRIBUNALDECONTAS DIREÇÃODECONTROLEEFISCALIZAÇÃO SERVIÇODEAUDITORIADEPORTOALEGRE
Culpabilidade:

Eraexigívelcondutadiversadaagente,diantedocontextoqueacercavaComodiretoradaDO, cabiaaeladeterminarabuscadeumasoluçãoparaoextravasamentodaságuasAomissão caracterizaculpagraveouerrogrosseiro,umavezqueimplicougraveinobservânciadodeverde cuidadoeafastou-sedoreferencialdo"administradormédio",sendonotóriaeperceptívelpor pessoadediligêncianormalqueeranecessáriaainvestigaçãoecorreçãodosproblemas históricosdeextravasamentodoscondutosforçadosComoatenuante,háqueseconsideraro contextodeincapacitaçãooperacionalgeneralizadadoDMAE,especialmenteparaabsorçãodas competênciasincorporadas,comprejuízosaoplanejamentodeprojetoseaocumprimento satisfatóriodasdemaisatividadesincumbidasaoDMAErelativasaosistemadedrenagemeà operação,manutençãoecontroledosistemadeproteçãocontracheias,circunstânciasqueforam determinantesparaainexecuçãodasaçõesnecessáriasparaaidentificaçãodasfalhasexistentes eparaofracassodoórgãonagestão,manutenção,conservaçãoeoperaçãodosistema
Responsável2
Nome: JoséEduardoCoutinhoTessis(CPF:532700880-00)
Função: DiretoriadeOperações
Períodode exercício: 01/04/2022a26/03/2023
Conduta: Nãodeterminouaelaboraçãodeumasoluçãotécnicaadequadaparaamanutençãodastampas dospoçosdevisitadoscondutosforçados
Nexode causalidade:
Culpabilidade:
Osdefeitosnãosanadoslevaramaoextravasamentodeáguapelospoçosdeinspeçãodos condutosforçadosdasavenidasPolôniaeAssisBrasilecontribuíramparaainundaçãodacidade dePortoAlegreemmaiode2024,aqualresultouemprejuízossignificativosaoeráriomunicipal, aindanãototalmentequantificados,masquejáperfazemquantiaestimadaentreR$6aR$8 bilhões
Eraexigívelcondutadiversadoagente,diantedocontextoqueocercavaComodiretordaDO, cabiaaeledeterminarabuscadeumasoluçãoparaoextravasamentodaságuasAomissão caracterizaculpagraveouerrogrosseiro,umavezqueimplicougraveinobservânciadodeverde cuidadoeafastou-sedoreferencialdo"administradormédio",sendonotóriaeperceptívelpor pessoadediligêncianormalqueeranecessáriaainvestigaçãoecorreçãodosproblemas históricosdeextravasamentodoscondutosforçadosComoatenuante,háqueseconsideraro contextodeincapacitaçãooperacionalgeneralizadadoDMAE,especialmenteparaabsorçãodas competênciasincorporadas,comprejuízosaoplanejamentodeprojetoseaocumprimento satisfatóriodasdemaisatividadesincumbidasaoDMAErelativasaosistemadedrenagemeà operação,manutençãoecontroledosistemadeproteçãocontracheias,circunstânciasqueforam determinantesparaainexecuçãodasaçõesnecessáriasparaaidentificaçãodasfalhasexistentes eparaofracassodoórgãonagestão,manutenção,conservaçãoeoperaçãodosistema
Responsável3
Nome: LuizFernandoJacobsenAlbrecht(CPF:582548890-15)
Função: DiretoriadeOperações
Períodode exercício: 16/03/2017a17/02/2021
Conduta: Nãodeterminouaelaboraçãodeumasoluçãotécnicaadequadaparaamanutençãodastampas dospoçosdevisitadoscondutosforçados
Nexode causalidade: Osdefeitosnãosanadoslevaramaoextravasamentodeáguapelospoçosdeinspeçãodos condutosforçadosdasavenidasPolôniaeAssisBrasilecontribuíramparaainundaçãodacidade dePortoAlegreemmaiode2024,aqualresultouemprejuízossignificativosaoeráriomunicipal, aindanãototalmentequantificados,masquejáperfazemquantiaestimadaentreR$6aR$8 bilhões

ESTADODORIOGRANDEDOSUL TRIBUNALDECONTAS
DIREÇÃODECONTROLEEFISCALIZAÇÃO SERVIÇODEAUDITORIADEPORTOALEGRE
Culpabilidade:

Eraexigívelcondutadiversadoagente,diantedocontextoqueacercavaComodiretordaDO, cabiaaeledeterminarabuscadeumasoluçãoparaoextravasamentodaságuasAomissão caracterizaculpagraveouerrogrosseiro,umavezqueimplicougraveinobservânciadodeverde cuidadoeafastou-sedoreferencialdo"administradormédio",sendonotóriaeperceptívelpor pessoadediligêncianormalqueeranecessáriaainvestigaçãoecorreçãodosproblemas históricosdeextravasamentodoscondutosforçadosComoatenuante,háqueseconsideraro contextodeincapacitaçãooperacionalgeneralizadadoDMAE,especialmenteparaabsorçãodas competênciasincorporadas,comprejuízosaoplanejamentodeprojetoseaocumprimento satisfatóriodasdemaisatividadesincumbidasaoDMAErelativasaosistemadedrenagemeà operação,manutençãoecontroledosistemadeproteçãocontracheias,circunstânciasqueforam determinantesparaainexecuçãodasaçõesnecessáriasparaaidentificaçãodasfalhasexistentes eparaofracassodoórgãonagestão,manutenção,conservaçãoeoperaçãodosistema
Responsável4
Nome: SergioAntonioPavanattoCerentini(CPF:481734280-34)
Função: DiretoriadeOperações
Períodode exercício: 18/02/2021a31/03/2022
Conduta: Nãodeterminouaelaboraçãodeumasoluçãotécnicaadequadaparaamanutençãodastampas dospoçosdevisitadoscondutosforçados
Nexode causalidade: Osdefeitosnãosanadoslevaramaoextravasamentodeáguapelospoçosdeinspeçãodos condutosforçadosdasavenidasPolôniaeAssisBrasilecontribuíramparaainundaçãodacidade dePortoAlegreemmaiode2024,aqualresultouemprejuízossignificativosaoeráriomunicipal, aindanãototalmentequantificados,masquejáperfazemquantiaestimadaentreR$6aR$8 bilhões
Culpabilidade:
Eraexigívelcondutadiversadoagente,diantedocontextoqueacercavaComodiretordaDO, cabiaaeledeterminarabuscadeumasoluçãoparaoextravasamentodaságuasAomissão caracterizaculpagraveouerrogrosseiro,umavezqueimplicougraveinobservânciadodeverde cuidadoeafastou-sedoreferencialdo"administradormédio",sendonotóriaeperceptívelpor pessoadediligêncianormalqueeranecessáriaainvestigaçãoecorreçãodosproblemas históricosdeextravasamentodoscondutosforçadosComoatenuante,háqueseconsideraro contextodeincapacitaçãooperacionalgeneralizadadoDMAE,especialmenteparaabsorçãodas competênciasincorporadas,comprejuízosaoplanejamentodeprojetoseaocumprimento satisfatóriodasdemaisatividadesincumbidasaoDMAErelativasaosistemadedrenagemeà operação,manutençãoecontroledosistemadeproteçãocontracheias,circunstânciasqueforam determinantesparaainexecuçãodasaçõesnecessáriasparaaidentificaçãodasfalhasexistentes eparaofracassodoórgãonagestão,manutenção,conservaçãoeoperaçãodosistema
Notas
1Disponívelem:https://wwwinstagramcom/dmaepoa/Consultadoem15/06/2024
2Disponívelem:https://wwwinstagramcom/metsulmeteorologia/Consultadoem15/06/2024 3https://metsulcom/alerta-enchentes-em-porto-alegre-e-regiao-metropolitana/ 4https://metsulcom/com-comportas-abertas-guaiba-invade-porto-alegre-com-peixes-nas-ruas/ 5https://metsulcom/guaiba-reflui-pelo-esgoto-no-quarto-distrito-apos-subir-pelo-vento-sul/
53GestãodoSistemadeProteçãoContraCheias
5.3.1FragilidadesnaIncorporaçãodasCompetênciasdoDEP
Situaçãoencontradapelaequipedeauditoria Preliminarmente,cumpresalientarqueaincorporaçãodascompetênciasdoDEP peloDMAEjáfoiinicialmenteexaminadanorelatóriodeauditoriadoProcessodeInspeção Especialnº363-0200/19-4
Assinado digitalmente por: Marcelo Kipper da Silva em 14/07/25, Leandro Lobato Camargo em 14/07/25, Leandro Torres em 14/07/25, Fabio Alex Beling em 14/07/25 e outro(s). Confira a autenticidade do documento em www.tce.rs.gov.br. Identificador: PRE.FE77.2360.2A1D.FC7C.62D4.


Naoportunidade,oexameauditorialtevecomoenfoqueprincipalaanáliseda transiçãosobosaspectosorçamentárioefinanceiro,concluindopelaexistênciaderiscosde enfrentamentodegravesproblemasparaaimplementaçãodasnecessidadesoperacionais edeexpansãodosserviçosdedrenagemurbanaplanejadosemPortoAlegre,tendoem vista aausênciaderemuneraçãotarifáriapararealizaçãodeobrasdeexpansão, desenvolvimentoeoperaçãodosserviçosdedrenagem,aliadaaocenáriodegravesrestrições orçamentáriasentãovivenciadopelaPrefeituraMunicipal,assimcomoafaltadeprovimento depessoalparaassunçãodasdemandasdegestão,jurídicaseadministrativasdoDEPea situaçãodegravesrestriçõesdacapacidadeoperacionaldoDMAE,emdecorrênciadafalta depessoal.
Paramelhorentendimentodaanáliserealizadaseguetranscriçãodeexcertosdo relatóriodeauditoria(peça6718531,p106e107):
()
Verifica-seque,deacordocomasinformaçõesprestadas,asdespesasdas atividadesdoDEPtransferidasaoDMAEsãoestimadasemR$44milhõesao ano,nãoincluídosnessevalorcustosdeenergiaelétrica(R$2milhões), repavimentação,transporte,entreoutrasPorsuavez,osvaloresarrecadados naalíquotadaTarifa3–EsgotoPluvialsituam-seatualmenteemtornodeR$50 milhões/ano,umamédiade4,2milhõesaomêsHá,portanto,relativa compatibilidadeentreosvaloresdespendidos(R$46milhões+custosde repavimentaçãoetransporte)earrecadados(R$50milhões)
NoquedizrespeitoàsatividadesdeDrenagemUrbanaeProteçãoContra CheiasdoMunicípiodePortoAlegre,nostermosestabelecidosnaLeiMunicipal n2312/61enoConvênioqueestabeleceascondiçõesdeatuaçãodoDMAE, verifica-sequeosrecursosnecessáriosparasuaexecuçãoserãoprovidospela arrecadaçãodaTarifa3–EsgotoMistoe/ourepassadospelaAdministração Central,deformaagarantirqueosvaloresarrecadadosparaaremuneração dosserviçosdeáguaeesgotocloacalnãosejamdesviadosparaessefim
()
ConformeostermosdoConvênioquedefineostermosdaincorporaçãodas atividadesdoDEPpeloDMAE(peça2203922):
61-OsservidoresalocadospeloMUNICÍPIOparaoatendimentodoobjeto desteconvênioserãodisponibilizadosaoDMAEmediantecedência,comônus paraoDMAE,observadaalegislaçãopertinente.
Considerandoqueapenaspartedosservidoreseserviçosfoiabsorvidapelo DMAE,encaminhou-seRDIn132/2019(peça2203934),solicitandoovalor mensalestimadoparacobrirasdespesasdecorrentesdafolhadepagamentodo pessoaloriundodoDepartamentodeEsgotosPluviaiscedidosaoDMAEForam informados,naformadetabela,onomedecadaservidor,osalário correspondenteeosomatóriodosvaloresdespendidosmensalmente, totalizadosemR$492403,66/mês,ouR$6milhõesaoanoNote-sequeentre oscargosocupadospelosservidorescedidos,verifica-sehaverapenasum assistenteadministrativo

ESTADODORIOGRANDEDOSUL TRIBUNALDECONTAS
DIREÇÃODECONTROLEEFISCALIZAÇÃO SERVIÇODEAUDITORIADEPORTOALEGRE

Noentanto,nãoestãoincluídasnessevalordespesasadministrativas,jurídicas (demandasdeanálisespelaProcuradoriaMunicipalEspecializada–DMAE)e degestão,sendoquesomenteafolhadepagamentotransferidaaoDMAE representaR$6milhõesnocomprometimentodoorçamentodoDMAE,despesa quenãopodesercompensadacomosvaloresarrecadadospelaTarifa3Além disso,ofatodesecontarcomapenasumagenteadministrativoparaatendero aumentodedemandaqueastarefasdoDEPrepresentam,eestandooDMAE extremamentefragilizadonoatendimentodesuasprópriasnecessidades administrativas,conduzaumasituaçãotemeráriaquantoàcapacidadede atendimentoàsdemandasdoDEP.
Portanto,visualiza-seque,emboraacompetênciatécnicadoDMAEindiqueque aabsorçãodasfunçõesdemanutençãodosistemadedrenagemgaranta melhoraplicaçãodosrecursosdaTarifa3emelhoriadascondiçõesde manutençãodossistemasdedrenagem–oquejásevisualiza–comganho paraomunicípiotendoemvistaamaiorcapacidadetécnicaeoperacionaldo DMAE,asrestriçõesimpostasaoDMAEpeloChefedoExecutivo,com intervençãonaautonomiadaautarquia,impedindoarealizaçãodeconcursos pararecomposiçãoaomenosparcialdoquadrodeservidoresimportamsérias restriçõesàcapacidadedegestãodoDEPpeloDMAE 413CONCLUSÕES
Conclusivamente,aEquipedeAuditoriaavaliaquedeformagerale considerandoacapacidadeoperacionalecompetênciatécnicadoDMAE,há benefíciosnaincorporaçãodosserviçosdoDEPpeloDMAE.
Entretanto,considerando:
I(sic)nãohaverremuneraçãotarifáriaparaaimplementaçãodeobraseparaa operaçãodosserviçosdedrenagem,excetoparaatividadesdemanutenção–paraasquaisháumagradativareduçãoremuneratóriaatreladaàreduçãoda Tarifa3,equeaPMPAvivenciagravesrestriçõesorçamentárias; II(sic).nãohaverprovimentodepessoalparaaassunçãodasdemandasde gestão,jurídicaseadministrativasexigidasparaobomdesempenhodas atividadesdoDEP,equeoDMAEenfrentagravesrestriçõesdasuacapacidade operacionalemdecorrênciadafaltadepessoal,
avalia-seriscodeenfrentamentodegravesproblemasparaaimplementação dasnecessidadesoperacionaisedeexpansãodosserviçosdedrenagem urbanaplanejadosemPortoAlegre
Oreferidoprocessoencontra-seconclusonoGabinetedoRelator1,sendoquea análisedeesclarecimentos(Informação045/2022)eoParecerdoMPCnº1398/2025,anuiram asconclusõesdaauditoria,nosentidodequeainterferênciadoExecutivonoDMAEimpediua reposiçãodeseuquadrodepessoal,ocasionandoprejuízosasuacapacidadeoperacionale perdasfinanceirasàAutarquia.
Feitasasconsideraçõesiniciais,passa-seàanálisedatransiçãoeincorporaçãodas competênciasdoDEPpeloDMAE,comenfoquenosaspectosrelativosàestrutura
digitalmente por: Marcelo Kipper da Silva em 14/07/25, Leandro Lobato Camargo em 14/07/25, Leandro Torres em 14/07/25, Fabio Alex Beling em 14/07/25 e outro(s). Confira a autenticidade do documento em www.tce.rs.gov.br. Identificador: PRE.FE77.2360.2A1D.FC7C.62D4.


DIREÇÃODECONTROLEEFISCALIZAÇÃO SERVIÇODEAUDITORIADEPORTOALEGRE
organizacionaladministrativaedepessoalestabelecidanoórgãoparaocumprimentodas competênciasdoDEP
Inicialmente,impendeavaliarasituaçãoorganizacionalantesexistentenoDEPesua estruturaçãodepessoalaolongodosúltimosanos.Notocanteàestruturaorganizacional,o DEPconstituía-sepordiversasunidadesposicionadashierarquicamenteabaixodoDiretordo Departamento,sendoduasassessorias(AssessoriadePlanejamentoeProgramaçãoe AssessoriaComunitária),duasdivisões(DivisãodeConservaçãoeDivisãodeObraseProjetos) eumacoordenação(CoordenaçãodeApoioTécnicoAdministrativo)Paramelhorilustrar, colaciona-seabaixooúltimoorganogramavigente2(peça6718508):
–ÚltimoOrganogramadoDepartamentodeEsgotosPluviais-DEP

Oportunosalientarquenãohouveadevidanormatizaçãosobreasatribuiçõese competênciasdessasunidades,consoanterespostaapresentadapeloExecutivoMunicipalà RDI683544(peça6718509)(peça6718510)(peça6718511)
Paramelhorentendimentosobrecomoocorreuaabsorçãodascompetênciasdo DEPnasearaorganizacionaldoDMAE3,aEquipedeAuditoriaencaminhouaRDI641506(peça 6718532),solicitandoinformaçõesarespeitodequaisasdiretorias,gerênciaseequipes/setores queassumiramessasatividadesEmrespostaaoitem4darequisição,oenteauditado apresentouaseguinteinformação(peça6718512,p2e3):
Assinado digitalmente por: Marcelo Kipper da Silva em 14/07/25, Leandro Lobato Camargo em 14/07/25, Leandro Torres em 14/07/25, Fabio Alex Beling em 14/07/25 e outro(s). Confira a autenticidade do documento em www.tce.rs.gov.br. Identificador: PRE.FE77.2360.2A1D.FC7C.62D4.

ESTADODORIOGRANDEDOSUL TRIBUNALDECONTAS DIREÇÃODECONTROLEEFISCALIZAÇÃO SERVIÇODEAUDITORIADEPORTOALEGRE

4-Informara(s)Diretoria(s)/Gerência(s)queassumiramasatividadesoriginadas doDEP,conformeorganogramaapresentadoaestaEquipedeAuditoria(base 2023);
RESPOSTA
InformamosqueasDiretorias/Gerênciasqueassumiramasatividadesoriundas doDEPforamincorporadasnoâmbitodasDiretoriasdoDMAE,seintegrando àsdemaisatividadesdoDepartamentoAsDiretorias/Gerênciasqueabsorveram taisatividadessão:
1DiretoriadeOperações:
-GerênciaDistritalCentro;
-GerênciaDistritalLeste;
-GerênciaDistritalNorte;
-GerênciaDistritalSul;
-GerênciadeLogística;
2DiretoriadeTratamento:
-GerênciadeManutençãoIndustrial;
-GerênciadeDistribuiçãoeCondução;
3DiretoriadeDesenvolvimento:
-GerênciadePlanejamento;
-GerênciadeProjetos;
-GerênciadeObras;
4GabinetedoDiretor-GeralAdjunto:
-CoordenaçãodeObrasEspeciaisdeAbastecimento;
-CoordenaçãoObrasEspeciaisdeEsgotamentoSanitárioedeDrenagem;
-CoordenaçãodeGestãodeRecursos;
-CoordenaçãodeSaúdeeSegurançadoTrabalhador.
Arespostaapresentouaindaasseguintescomplementações,inseridasnoProcesso SEI24.10.000006687-44(peça6718478,p.9,17,19,20,27,29): GERÊNCIADEPLANEJAMENTO-DD/DMAE
Assinado digitalmente por: Marcelo Kipper da Silva em 14/07/25, Leandro Lobato Camargo em 14/07/25, Leandro Torres em 14/07/25, Fabio Alex Beling em 14/07/25 e outro(s). Confira a autenticidade do documento em www.tce.rs.gov.br. Identificador: PRE.FE77.2360.2A1D.FC7C.62D4.


()
Conformeoexposto,registramosquedesdequeoDMAEficouresponsável pelasatividadesdedrenagem,nãotivemosoingressodepessoal suficienteparaarealizaçãodasatividadesqueseriamnecessáriasnesta Gerência de Planejamento: cadastro técnico, análise de novos empreendimentoseprojetosdeinfraestruturapública,planejamentodo sistemadedrenagemeproteçãocontracheias,análisedeprojetose vistoriaemreservatóriosdeamortecimentoparaemissãodehabite-seNa atividadedeplanejamentoporexemplo,edevistoriaemreservatóriosnunca tivemosoingressodequadrotécnico,eemalgumasoutrasatividades,tivemos equipeporpequenoperíododetempo,nãoestandomaisdisponíveis
()
AGmanabsorveuasatividadesdemanutençãoeletromecânicadosistema deproteçãocontracheias,emespecialas23estaçõesdebombeamento pluvialemAbril/2019.Naquelemomento,recebeuoingressodeapenas2 servidoresdoextintoDEP.OEng°EletricistaMarceloLuisDiel,queestálotado naGMANeéofiscaldecontratodocontratodemanutençãoeletromecânicado SPCC(2010000006244-3),eoEng°MecânicoThierriMoraesdaRosaSilva (Cargoemcomissão),queseexoneroudodepartamentoem02/11/2020
()
AGMAN-GerênciadeManutençãoIndustrialatuanamanutençãoindustrial deunidadesdoDMAE.Atuatambémnamanutençãodascomportas.A manutençãopreventivaecorretivadasEBAPsecomportasécontratada sobcoordenaçãodaGMAN.Amanutençãodeemergênciaérealizadapelas equipesdaGMANpermanentemente(24horasx7dias)
()
AGDCO-GerênciadeDistribuiçãoeConduçãoatuanaoperaçãodas comportasdoCaisMauáedeunidadesdebombeamentodeágua,esgoto epluvial.Tambémrealizaaoperaçãoemanutençãoderedesdeáguade grandeporteenaoperaçãodascomportasAoperaçãodascasasdeEBAPsé terceirizadasobcoordenaçãodaGDCOAoperaçãoésupervisionada permanentemente(24horasx7dias)peloCCO-CentrodeControle OperacionaldaC-CONTROLE
()
Ressalta-seque,somenteapartirdeabrilde2022,asatividadesdaGMANe GDCOvieramparaaDiretoriadeTratamentodeÁguaeEsgotos,sendoque anteriormenteestasduasgerênciasestavamsobresponsabilidadedaDiretoria deOperações-DOconformeDecretoMunicipaln°21398/2022
()
4 - Informar a(s) Diretoria(s)/Gerência(s) que assumiram as atividades originadasdoDEP,conformeorganogramaapresentadoaestaEquipede Auditoria(base2023);

ESTADODORIOGRANDEDOSUL TRIBUNALDECONTAS
DIREÇÃODECONTROLEEFISCALIZAÇÃO SERVIÇODEAUDITORIADEPORTOALEGRE

DeacordocomareestruturaçãopromovidapeloDecreto21539/2022,a DiretoriadeOperações-DO/DMAEpermaneceucomdoiseixosprincipais deserviçosorigináriosdoDEP,extintoem2019.
Paraasatividadesdemanutençãoeconservaçãoderedesexistentes, foramcriadas04CoordenaçõesdePluvial(Centro,Leste,NorteeSul), vinculadasàsGerênciasDistritais,eumaEquipedaFábricadePrémoldados,vinculadaàGerênciadeLogística
Jáaadministraçãodosserviçosrelacionadosàlimpezaedragagemde valas,canais,arroiosebaciasdedetençãodomunicípio,foiabsorvidapela estruturadefiscalizaçãodecontratosimplantadanasCoordenaçõesde LogísticaIeII,daGerênciadeLogísticadaDO.
Ambasasatividadessãoexecutadas,emsuamaioria,atravésdaorganizaçãoe fiscalizaçãodeserviçosterceirizados,considerandoonúmeroinsuficientede servidoresadidosdoDEP-impeditivoparaaatuaçãoatravésdeequipes próprias.Assim,alémdasnovascoordenaçõescriadasespecificamentepara absorverosserviçospluviais,houveareorganizaçãodaestruturadeapoiodas GerênciasDistritaisafimdeviabilizaratransição,incluindoaunificaçãodas equipesdeprogramaçãodeserviços,administrativa,desub-almoxarifado,de cadastroderedes,decondutoresedefiscalização
5-Informarquaissãoasequipes/setoresdesignadoseresponsáveispela operação das competências anteriormente atribuídas ao DEP e que passaramaserexecutadaspeloDMAE Apresentarrelaçãodeservidores lotadosnessasequipes/setoresnoperíodoentre2019e2024(Informar NomeCompleto,Cargo/Função,SetordeLotação,DatasdeInícioeFimdo PeríododeLotação).
AmigraçãodosservidoresdoDEPparaoDMAEem2019transcorreuconforme registrosnoprocesso1910000002760-0sendoque,inicialmente(em 28/04/20219)foramrelotadasasliderançasconformeaPortaria6870985/2019e posteriormente(em01/05/2024),osdemaisservidoresconformeaPortaria 6871089/2019.Apósamovimentaçãoinicial,temocorridoamesclados servidoresdoquadrodoDMAEedosadidosdoDEP,afimdedarandamento àsatividadesbásicas,bemcomoparapropiciaratransferênciadeexpertises nasatividadesespecíficas
()
ÀGPES-DMAE,
Seguemabaixoasinformações,afimdeatenderaoitem5daRequisiçãoTCE 000341-24-51(29594715e29639186),combasenorelatadopelasáreas (restandopendentesasinformaçõesdaDOeGDA):
–SetoresresponsáveispelaoperaçãodascompetênciasdoextintoDEP DIRETORIA GERÊNCIA ATIVIDADE RELACIONADA
Cadastrotécnico,análisedenovosempreendimentoseprojetosdeinfraestruturapública, planejamentodosistemadedrenagemeproteçãocontracheias,análisedeprojetosevistoria emreservatóriosdeamortecimentoparaemissãodeHabite-se GPRO Execuçãoefiscalizaçãodeprojetosdedrenagem 135
digitalmente por: Marcelo Kipper da Silva em 14/07/25, Leandro Lobato Camargo em 14/07/25, Leandro Torres em 14/07/25, Fabio Alex Beling em 14/07/25 e outro(s). Confira a autenticidade


GEOB
GDCO
DT
GMAN
Fiscalizaçãodeobrasdedrenagemprópriasedeterceiros
AtuanaoperaçãodascomportasdoCaisMauáedeunidadesdebombeamentodeágua, esgotoepluvialTambémrealizaaoperaçãoemanutençãoderedesdeáguadegrandeporte enaoperaçãodascomportasAoperaçãodascasasdeEBAPséterceirizadasob coordenaçãodaGDCOAoperaçãoésupervisionadapermanentemente(24horasx7dias) peloCCO-CentrodeControleOperacionaldaC-CONTROLE
AtuanamanutençãoindustrialdeunidadesdoDMAEAtuatambémnamanutençãodas comportasAmanutençãopreventivaecorretivadasEBAPsecomportasécontratadasob coordenaçãodaGMANAmanutençãodeemergênciaérealizadapelasequipesdaGMAN permanentemente(24horasx7dias)
Paramelhorvisualizaçãodasunidadesresponsáveispelaoperaçãodas competênciasanteriormenteatribuídasaoDEP,combasenasinformaçõesprestadas,colacionaseasuarepresentaçãonoorganogramadoDMAE:
Figura58–OrganogramaDMAE-DiretoriadeTratamentodeÁguaeEsgotos-DT.

Figura59–OrganogramaDMAE-DiretoriadeGestãoeDesenvolvimento-DD

ESTADODORIOGRANDEDOSUL TRIBUNALDECONTAS
DIREÇÃODECONTROLEEFISCALIZAÇÃO SERVIÇODEAUDITORIADEPORTOALEGRE


Figura60–OrganogramaDMAE-GabinetedoDiretor-GeralAdjunto-GDA.

Assim,considerandoasinformaçõesprestadaspeloDMAE,verifica-sequeas atividadesoriundasdoDEPforamincorporadasdaseguinteforma:
a) ADiretoriadeOperações(DO)assumiuasatividadesmanutençãoe conservaçãoderedesexistentes,sendocriadas04CoordenaçõesdePluvial(Centro,Leste, NorteeSul),vinculadasàsGerênciasDistritais,eumaEquipedeFábricadePre-moldados, vinculadaàGerênciadeLogística.Assim,pode-seconsiderarqueessessetoresabsorveramas competênciasdas"SeçõesdeConservação"(Centro,Leste,NorteeSul)eda"Seçãode FabricaçãodePré-Moldados",ambasintegrantesdaDivisãodeConservaçãodoextintoDEP
ADOtambémassumiuaadministraçãodosserviçosrelacionadosàlimpezae dragagemdevalas,canais,arroiosebaciasdedetençãodomunicípio,sendotaisatividades absorvidaspelaestruturadefiscalizaçãodecontratosimplantadanasCoordenaçõesdeLogística 137

ESTADODORIOGRANDEDOSUL TRIBUNALDECONTAS DIREÇÃODECONTROLEEFISCALIZAÇÃO SERVIÇODEAUDITORIADEPORTOALEGRE

IeII,daGerênciadeLogísticaDadaainexistênciadeumsetordenomenclaturae especificidadesimilarnaestruturadoDEP,pode-seconsiderarqueessessetorestambém absorveramascompetênciasdas"SeçõesdeConservação".
ConformeassinaladopeloDMAE,ambasasatividadessãoexecutadas, majoritariamente,pormeiodaorganizaçãoefiscalizaçãodeserviçosterceirizados,demodoque, alémdasnovascoordenaçõescriadasespecificamenteparaabsorverosserviçospluviais,houve areorganizaçãodaestruturadeapoiodasGerênciasDistritaisparaviabilizaratransição,coma unificaçãodasequipesdeprogramaçãodeserviços,administrativa,desub-almoxarifado,de cadastrosderedes,decondutoresedefiscalização
b)ADiretoriadeTratamentodeÁguaeEsgotos(DT)assumiu,pormeioda GerênciadeManutençãoIndustrial(GMAN),asatividadesrelacionadasàmanutenção industrialdasunidadeseàmanutençãoeletromecânicapreventivaecorretivadosistemade proteçãocontracheias(23EstaçõesdeBombeamentoPluvial-EBAPs/"CasasdeBombas"e comportasdoMurodaMauáedoDiqueAutoestrada-"Freeway")Amanutençãode emergênciaérealizadapelasequipesdaGMANpermanentemente(24horasx7dias).
Alémdisso,assumiu,pormeiodaGerênciadeDistribuiçãoeCondução(GDCO),a operaçãodasEBAPsedascomportasdoSPCCAoperaçãodasEBAPséexecutadapor meiodecontrataçãoterceirizadasobacoordenaçãodaGDCO,sendosupervisionada permanentemente(24horasx7dias)peloCentrodeControleOperacionaldaCoordenação deControleOperacional(C-CONTROLE)
AC-CONTROLEéintegradaaindapelaEquipedeProteçãoContraCheias(EQPRCHEIA),quepossuiassuascompetênciasprevistasnoart175doDecretonº21539/2022:
Art175ÀEquipedeProteçãoContraCheias,unidadedetrabalho(UT) subordinadaàCoordenaçãodeControleOperacional,compete:
I-executarasatividadesnecessáriasàoperaçãodasEBAPsdoSistemade ProteçãoContraCheias(SPCC);
II-prestarorientaçõestécnicasrelativasàsunidadesoperacionaisdoSPCC;
III-operarasEBAPs,atravésdosistemasupervisório,viarádioecontato telefônico;
IV-controlar,acompanharefiscalizaromododeoperaçãodasEBAPs, executadaporempresascontratadasouequipespróprias,registrandotodasas ocorrênciasrelevantes;
V-inspecionarosserviçosnospoçosdesucçãoerecalque,nasgaleriasde chegadaeconduçãodesaídanoâmbitodasEBAPs;
VI-registrar,encaminharàsáreasresponsáveiseacompanhartodasas demandasdemanutençãoelétricasemecânicasnosgruposmotoresbombas, tubulaçõesecomportasdasEBAPsedomurodaMauá;
VII-acionaroplanodefechamentodascomportasdecontençãodomuroda AvMauá;
VIII-elaborarrelatóriosoperacionaisedeconsumoenergiaelétricanas estaçõeselevatórias,visandoàotimizaçãodossistemas; 138

ESTADODORIOGRANDEDOSUL TRIBUNALDECONTAS
DIREÇÃODECONTROLEEFISCALIZAÇÃO SERVIÇODEAUDITORIADEPORTOALEGRE

IX-acompanharasatividadesnecessáriasparaainspeçãoerecuperação estruturaldasestaçõeselevatórias;e
X-executaroutrasatividadescorrelatas
Assim,verifica-sequeaDTabsorveuascompetênciasantesexercidaspela"Divisão deConservação",incluindoa"SeçãodeGerenciamentodoSistemadeProteçãoContraCheias", bemcomoasfunçõesexercidaspelo"SetordeManutenção"da"CoordenaçãodeApoioTécnico Administrativo",unidadesdoextintoDEP
ConformeregistradopeloDMAE,somenteapartirdeabrilde2022(Decreto Municipalnº23398/2022),asatividadesdaGMANeGDCOforamtransferidasparaaDT,sendo queanteriormenteestavamsobresponsabilidadedaDO
c)ADiretoriadeGestãoeDesenvolvimento(DD)assumiu,pormeiodaGerência dePlanejamento(GPLA),asatividadesrelacionadasaocadastrotécnicodossistemasde drenagem,análisedenovosempreendimentoseprojetosdeinfraestruturapública, planejamentodosistemadedrenagemeproteçãocontracheias,análisedeprojetose vistoriaemreservatóriosdeamortecimentoparaemissãodehabite-se
Ademais,realizaaexecuçãoefiscalizaçãodeprojetosdedrenagem,atravésda GerênciadeProjetos(GPRO),bemcomoafiscalizaçãodeobrasdedrenagem,atravésda GerênciadeObras(GEPO).
Assim,podeseconsiderarqueaDDassumiuatividadesrelativasaoplanejamentode projetoseobrasrelacionadasaosistemadedrenagemeaoSPCC,oqueconduzàconclusãode queabsorveuparceladascompetênciasda"DivisãodeObraseProjetos"doextintoDEP
d)Emquepeseanãoapresentaçãodeinformaçõesclaraseprecisassobreas atividades assumidas peloGabinetedoDiretor-GeralAdjunto(GDA),combaseno organogramavigenteenosDecretosnº21398/20225enº21539/2022,verifica-sequea CoordenaçãodeObrasEspeciaisdeEsgotamentoSanitárioedeDrenagem(C-DRENAGEM) seriaaúnicaunidadecomatribuiçõesmaisespecificamenterelacionadasaosistemade drenagemAsdemaisunidades,ouserelacionamaoutrascompetênciasdoDMAE (CoordenaçãodeObrasEspeciaisdeAbastecimento-sistemadeabastecimentodeágua),ouse referemàgestãodeatividadesqueabarcamoórgãocomoumtodo(CoordenaçãodeGestãode RecursoseCoordenaçãodeSaúdeeSegurançadoTrabalhador)
Consoanteoprevistonoart.24doDecretoMunicipalnº21.539/2022,aCDRENAGEMpossuiasseguintesatribuições6:
Art24ÀCoordenaçãodeObrasEspeciaisdeEsgotamentoSanitárioede Drenagem,unidadedetrabalho(UT)subordinadaaoEscritóriodeGestãode ProjetosEspeciais,compete:
I-revisar,fiscalizare/ouatualizarprojetos,especificaçõeseorçamentos referentesaintervençõesespeciaisaseremrealizadasemSistemasde EsgotamentoSanitárioedeDrenagem;
II-supervisionar,controlarefiscalizaraexecuçãodeobrasespeciaisem SistemasdeEsgotamentoSanitárioedeDrenagem;
III-definircronogramas,planosdetrabalhoeprogramaçõesdeobrasespeciais 139

ESTADODORIOGRANDEDOSUL TRIBUNALDECONTAS
DIREÇÃODECONTROLEEFISCALIZAÇÃO SERVIÇODEAUDITORIADEPORTOALEGRE
juntoàsempresascontratadas;

IV-supervisionarecontrolaraelaboraçãodecadastrosdasobrasexecutadas;
V-estudaresugeriroaperfeiçoamentoprofissionaledemétodosdetrabalho emsuaárea;e
VI-executaroutrasatividadescorrelatas
Assim,aC-DRENAGEMtemcomoescopoarealizaçãodeatividades relacionadasaosupervisionamento,aocontroleeàfiscalizaçãodeprojetoseobrasespeciais relacionadas ao sistema de drenagem, o que, dada a inexistência de setorespecificamentecorrelato,conduzàconclusãodequeabsorveuparceladascompetências da"DivisãodeObraseProjetos"doextintoDEP
NotocanteàsubordinaçãodosetoraoGabinetedoDiretor-GeralAdjunto(GDA),não severificavantagemevidentenainserçãodeumaunidadecomcompetênciasrelacionadasà obrasespeciaisdosistemadedrenagemTalsituaçãorevelaafragmentaçãoedesconcentração dossetoresexistenteseresponsáveispelocontroleefiscalizaçãodeprojetoseobrasdosistema dedrenagem,osquaisforaminseridosemdiferentesDiretoriasdoDMAE(Diretoriade DesenvolvimentoeDiretor-GeralAdjunto)
FeitasasconsideraçõesarespeitodaabsorçãodascompetênciasdoDEPna estruturaorganizacionaldoDMAE,conclui-sepelaexistênciadefragilidadesnoprocessode incorporação,relativamenteaosseguintesaspectos:
1)Asatividadesrelacionadasàmanutençãoindustrialeàmanutenção eletromecânicadasEBAPsedosistemadeproteçãocontracheiasforamdisseminadasemuma únicaunidaderesponsávelportodasasestruturasdoDMAE(GMAN),aqualabrangenão somenteossistemasdedrenagemedeproteçãocontracheias,mastambémossistemasde águaeesgotos
Talcondição,alémdeimplicarpossíveisprejuízosàespecializaçãotécnicae coordenaçãofinalísticaquepoderiaseralcançadacomacriaçãodeumsetorespecíficoe dedicadoexclusivamenteaessasatividades,impõeanecessidadedeumaestruturaçãode pessoaladequadaesuficientementedimensionadaparagarantirosatisfatóriocumprimentodas competências
2)Asatividadesrelacionadasàoperaçãodas23EBAPs,dascomportaseao controleefuncionamentodosistemadeproteçãocontracheiasforamdisseminadasemuma únicaunidade(C-CONTROLE),tambémresponsávelpelaoperaçãoeacompanhamentodo sistemadeabastecimentodeágua(6EstaçõesdeBombeamentodeÁguaBruta-EBABse87 EstaçõesdeBombeamentodeÁguaTratada-EBATs)econduçãodeesgotocloacal(36 EstaçõesdeBombeamentodeEsgoto-EBEs)
Talcondição,alémdeimplicarpossíveisprejuízosàespecializaçãotécnicae coordenaçãofinalísticaquepoderiaseralcançadacomacriaçãodeumsetorespecíficoe dedicadoexclusivamenteaessasatividades,impõeanecessidadedeumaestruturaçãode pessoaladequadaesuficientementedimensionadaparagarantirosatisfatóriocumprimentodas competências
Assinado digitalmente por: Marcelo Kipper da Silva em 14/07/25, Leandro Lobato Camargo em 14/07/25, Leandro Torres em 14/07/25, Fabio Alex Beling em 14/07/25 e outro(s). Confira a autenticidade do documento em www.tce.rs.gov.br. Identificador: PRE.FE77.2360.2A1D.FC7C.62D4.


Ademais,nãoseverificavantagemevidentenainserçãodeumaunidadecom competênciasrelacionadasàdrenagemeàproteçãocontracheiasemumaDiretoriade TratamentodeÁguaeEsgotos(DT),circunstânciaqueremeteaoentendimentodequetais competênciasseriammenosprioritáriasqueasdemais,apontodeteremsidodepositadasem umaDiretoriavoltadaàconsecuçãodeoutrosobjetivos(tratamentodeágua)Omesmovale paraaEquipedeProteçãoContraCheias(EQ-PRCHEIA),unidadevinculadaaC-CONTROLE, responsávelporumconjuntodecompetênciascomplexasediversificadasquedemandam estruturaçãoeespecializaçõesadequadasdepessoalparagarantiadaeficiênciaesegurança dasoperações
Tambémnãosãoconhecidososmotivosparaessascompetênciasteremsido transferidasdaDOparaDT7 .
3)Asatividadesrelacionadasaoplanejamentodeprojetosdeinfraestruturaedos sistemasdedrenagemeproteçãocontracheiasforamdisseminadasnaGPLA,aopassoqueas atividadesdeexecuçãoefiscalizaçãodeprojetosdedrenagemforamdisseminadasnaGPROe asatividadesdefiscalizaçãodeobrasdedrenagementreguesàGEPO8
Ocorrequetodasessasgerências,vinculadasàDD,tambémpossuem responsabilidadeatinentesàsdemaiscompetênciasdoDMAE,relativasaossistemasde abastecimentodeáguaedeesgotamentosanitário9
Talcondição,alémdeimplicarpossíveisprejuízosàespecializaçãotécnicae coordenaçãofinalísticaquepoderiaseralcançadacomacriaçãodesetoresespecíficose dedicadosexclusivamenteaessasatividades,impõeanecessidadedeumaestruturaçãode pessoaladequadaesuficientementedimensionadaparagarantirosatisfatóriocumprimentodas competências
Caberegistrarqueasatribuiçõesatualmenteexercidasporessasgerências anteriormenteestavamsobresponsabilidadedaSMIM,tendosidogradualmentetransferidas paraoDMAE,apartirdaspublicaçõesdasLeisMunicipaisnº12504/201910enº12939/2021 11ASMIMfoicriadapelaLeiComplementarnº810/2017eextintapelaLeiComplementarnº 897,de15/01/202112
RelativamenteàestruturaçãodepessoalexistenteentãonoDEP,observou-seuma gradativareduçãodeservidoresaolongodosúltimosanos,precipuamentenoscargosde naturezaoperacional,antesdaincorporaçãodesuasfunçõespeloDMAE,consoante demonstradonoquadroabaixo: Quadro6–QuantitativosdeServidoresdoDEPaolongodosanos

ESTADODORIOGRANDEDOSUL TRIBUNALDECONTAS
DIREÇÃODECONTROLEEFISCALIZAÇÃO SERVIÇODEAUDITORIADEPORTOALEGRE

Legenda:N/I:NãoInformado
Fonte:Quadropreenchidocombasenosdadosextraídosdosrelatóriosmensaisdecargosda administraçãodireta(competência:mesesdedezembreoemêsdeabril/2018-última competênciacomoDEP)publicadosnoPortaldeTransparênciadePortoAlegre(peça 6718513).
Inicialmente,importasalientarqueoquadrodeservidoresdoDEPnuncafoi estabelecidolegalmente,demodoqueasuacomposiçãosemprefoisubordinadaàsdecisõesdo PrefeitoMunicipal,poisoórgãointegravaaestruturadaadministraçãodireta,carecendo, portanto,deautonomiaadministrativaefinanceira.
Apósasuaextinção,houvealotaçãode152servidoresnaSMSURBede 19servidoresnaSMIM,sendoque,posteriormente,comaassunçãodefinitivadascompetências peloDMAE13,houveaseguinteredistribuiçãodecargos14 (peça6718435)(peça6718514) (peça6718515):
88servidoresforamcedidosaoDMAE(21Engenheiros,63cargos operacionais15e4cargosdeoutrasfunções16),sendoque,noperíodode 2019a202417,ocorreram21aposentadoriase3vacânciasporexoneraçãoou falecimento;
7servidoresforamcedidosaoDMLU,DEMHABePREVIMPA; 76servidorespermaneceramnaSMSURBouSMIM,ouvagaramseuscargos antesdaassunçãodefinitivapeloDMAE
Emrespostaaoitem5daRDI641506(peça6718532),foramapresentadas informaçõessobreasequipes/setoresresponsáveispelaoperaçãodascompetências anteriormenteatribuídasaoDEP,comanominatadosrespectivosservidoreslotados,noperíodo de2019a2024(peça6718512)(peça6718478,p35a39)
Combasenasinformaçõesprestadas,verifica-sequedototalde88servidores oriundosdoDEPecedidosaoDMAE,67(sessentaesete)servidoresefetivosforam alocadosnossetorescompetentesparaexecuçãodosserviçosdedrenagemedecontrole econservaçãodoSistemadeProteçãocontraCheias.Alémdesseefetivodetrabalho,estas


unidadesforaminicialmentecompostaspor6(seis)servidorescomissionadosoriundosdoDEP, bemcomoporservidoresefetivosoriundosdeoutrosórgãosmunicipaisecedidosaoDMAEe porservidorespertencentesaoquadrodoDMAE,cujosquantitativosapresentaramvariaçãoao longodoperíodode2019a2024Abaixoseguequadroevolutivodosquantitativosdepessoal alocadosnestasatividades,noperíodode2019a202418:
Quadro7–ServidoresLotadosnoDMAEeAtuantesemFunçõesdoExtintoDEP
Cargo/Emprego
Fonte:Quadropreenchidocombasenasinformaçõesprestadasemrespostaaoitem5daRDI 641506(peça6718478,p.27a32e35a39),posteriormentecomplementadapelarespostaa RDI685030(peça6718533)(peça6718516)(peça6718517)Combasenosdados disponibilizados,foramelaboradasplanilhasparaapuraçãodosquantitativosdeservidores,nos exercíciosde2019a2024(peça6718518)(peça6718519)(peça6718534)(peça6718520) (peça6718521)(peça6718522)
Observa-seumadiminuiçãoconsideráveldeservidores,demodoqueas competênciasdoDEP,antesexercidasporaproximadamente200servidores(aomenos nosanosde2013e2014,conformeQuadro-QuantitativosdeServidoresdoDEP), passaramaserexercidasnoDMAEporcercade90servidores.Ademais,cumpredestacar queadiminuiçãodaforçadetrabalhoocorreunãosomentenaáreaoperacional,mastambémna

ESTADODORIOGRANDEDOSUL TRIBUNALDECONTAS
DIREÇÃODECONTROLEEFISCALIZAÇÃO SERVIÇODEAUDITORIADEPORTOALEGRE

áreadeengenharia(passoude25para18engenheiros,umareduçãodeaproximadamente 30%)vitalparaoplanejamentoeoacompanhamentoefiscalizaçãodossistemasdedrenageme deproteçãocontraascheias.
Asfragilidadesnoexercíciodessascompetênciasficamevidenciadasnas manifestaçõesexpostaspelasunidadesqueassumiramasatividadesnoDMAE,constantesno ProcessoSEI2410000006687-4,disponibilizadoemrespostaàRDI641506(peça6718478,p 9,10,12,13,15,17a20):
GERÊNCIADEPLANEJAMENTO-DD/DMAE DESPACHO
ÀDD
Ematendimentoaosolicitado,informamosquerecebemososseguintes servidoresadidosdoextintoDEPconformeperíodoseatividadesdescritasa seguir:
-MariaLuciaFrozi-Engenheira-iniciouem01/05/2019nestagerência, realizadoatividadesdecadastramentodeindicadoresnoSNISeformulaçãode normasparacadastramento,ficandonestaGPLAaté31/08/2022quandose aposentou;
-ElenMartendeLima-EngenheiraCartógrafa-iniciouem08/07/2019nesta gerênciaeficouresponsávelpelocadastrotécnicodedrenagemOcupavacargo deCCefoiexoneradaem01/07/2020;
-CristianeSassaharaBorges-Engenheira-Iniciouem01/04/2021nesta gerência e analisa projetos de reservatórios de amortecimento em empreendimentos,paraliberaçãodehabite-se;
-FelipeMalacarne-Engenheiro-Iniciouem01/04/2021nestagerênciae participacomorepresentantenasdiversascomissõesmunicipais,ficando responsávelpelaanálisedosprojetosdedrenagemetambémparticipade algunsassuntosdeplanejamentodedrenagempluvial;
-PauloNápoli-Engenheiro-Iniciouem25/03/2022nestagerênciaficando responsávelpelasanálisespréviasparalicenciamentodeempreendimentos, informandocondicionantesecalculandofaixasnãoedificáveisporexistênciade redesdedrenagememlotesApartirde03/06/24omesmoiniciouperíodode afastamentosporLicençasefériasparaaposentadoria
Conformeoexposto,registramosquedesdequeoDMAEficouresponsável pelasatividadesdedrenagem,nãotivemosoingressodepessoalsuficiente paraarealizaçãodasatividadesqueseriamnecessáriasnestaGerênciade Planejamento:cadastrotécnico,análisedenovosempreendimentoseprojetos deinfraestruturapública,planejamentodosistemadedrenageme proteçãocontracheias,análisedeprojetosevistoriaemreservatóriosde amortecimentoparaemissãodehabite-seNaatividadedeplanejamentopor exemplo,edevistoriaemreservatóriosnuncativemosoingressode quadrotécnico,eemalgumasoutrasatividades,tivemosequipepor pequenoperíododetempo,nãoestandomaisdisponíveis 144

ESTADODORIOGRANDEDOSUL TRIBUNALDECONTAS
DIREÇÃODECONTROLEEFISCALIZAÇÃO SERVIÇODEAUDITORIADEPORTOALEGRE

AtualmentecontamosapenascomosservidoresFelipeMalacarnee CristianeSassahara,trabalhandobasicamenteemanálisesdeprojetosde novosempreendimentos.
()
GERÊNCIADEDISTRIBUIÇÃOECONDUÇÃO-DT/DMAE ÀDT,
Emrespostaaodespachovimosinformarqueasatividadesoriundasdo DEPquesãorealizadasnaEQ-PRCHEIA/C-CONTROLE/GDCO/DT/DMAE estãodescritasnoDecretonº21.539de24dejunhode2022,noArt.175 conformeoapresentadoabaixo
Artigo175ÀEquipedeProteçãoContraCheias,unidadedetrabalho(UT) subordinadaàCoordenaçãodeControleOperacional,compete: (...)
Arelaçãodeservidoreslotadosnessasequipes/setoresnoperíodoentre2019e 2024(InformarNomeCompleto,Cargo/Função,SetordeLotação,Datasde InícioeFimdoPeríododeLotação)
-MarcosGoulartMachado-Engenheiro-iniciouem28/04/2019nesta gerência,lotadonoC-CONTROLEdesignadoparaLíderdeEquipeIIIna EQ-PRCHEIArealizandoasatividadesdefiscalizaçãoedemaisações relativasaotextoacima.
-MarceloRobertoRodriguesdeMenezes-AssistenteAdministrativoiniciouem01/05/2019nestagerência,lotadonaC-ADUTORASrealizando serviçosadministrativos;
-ElianaradosSantosdeAndrade-Telefonista-iniciouem28/04//2019nesta gerência,realizandoserviçosdeatendimentodesistemasdeinformaçãoe telefôniconoControleOperacional(CCO).
-EdimaraPeresBrigidoMonteiro-OperárioEspecializado-iniciouem 05/08/2019nestagerenciaefoirelotadaàGEPO/C-BENSIMIOVEISem 03/08/2021.
DIRETORIADEGESTÃOEDESENVOLVIMENTO-DMAE
AoGDA:
EmatençãoàRequisiçãodainicial,solicitamosinformarquantoaosservidores quecompõeaC-DRENAGEM
NoâmbitodestaDD,alémdasatividadesrealizadaspelaGPLAqueconstam noDespacho29571426,sãorealizadasasseguintesatividades:
-ExecuçãoeFiscalizaçãodeProjetosdeDrenagem:
EngºCivisCarlosJoséSchneider(acontarde01/04/2021),AugustoDamiani 145
digitalmente por: Marcelo Kipper da Silva em 14/07/25, Leandro Lobato Camargo em 14/07/25, Leandro Torres em 14/07/25, Fabio Alex Beling em 14/07/25 e outro(s). Confira a autenticidade do documento em www.tce.rs.gov.br. Identificador: PRE.FE77.2360.2A1D.FC7C.62D4.

ESTADODORIOGRANDEDOSUL TRIBUNALDECONTAS DIREÇÃODECONTROLEEFISCALIZAÇÃO SERVIÇODEAUDITORIADEPORTOALEGRE

(entre01/04/2021e01/07/2023,quandodesuaaposentadoria)eMarcos ViniciusPadilha(entre17/01/2022e17/03/2023)
EngºsMecânicosMarceloRodriguesViveiros(entre13/10/2021e22/03/2024, quandoseexonerou)eDanielOliveiraLima(acontarde25/06/2024), juntamentecomsuasdemaisatividadesdeprojetosemunidadede abastecimentodeáguaeesgotamentosanitário;
EngºEletricistaAdrianoRoquedeArruda,juntamentecomsuasdemais atividadesdeprojetosemunidadedeabastecimentodeáguae esgotamentosanitário;
-FiscalizaçãodeObrasdeDrenagemPrópriasedeTerceiros:
EngºsCivisMarceloDaldoneRobertoFredericoKranz(ambosacontarde 01/04/2021),PauloSoaresLuz,YvesPereiraMuller,CleberLemosCostae FábioTrindadeDeAngelis,juntamentecomasdemaisatividadesde fiscalizaçãodeobrasdeabastecimentoeesgotamentosanitário.
()
GERÊNCIADEMANUTENÇÃOINDUSTRIAL-DT/DMAE ÀDT
Ematençãoaodespacho29581228,informamos:
AGmanabsorveuasatividadesdemanutençãoeletromecânicadosistema deproteçãocontracheias,emespecialas23estaçõesdebombeamento pluvialemAbril/2019Naquelemomento,recebeuoingressodeapenas2 servidoresdoextintoDEPOEng°EletricistaMarceloLuisDiel,queestá lotadonaGMANeéofiscaldecontratodocontratodemanutenção eletromecânicadoSPCC(20.10.000006244-3),eoEng°MecânicoThierri MoraesdarosaSilva(Cargoemcomissão),queseexoneroudo departamentoem02/11/2020.
Osservidoresquedesempenharamsuasatividadesrelacionadasamanutenção dopluvialenãoestãomaisnoDMAEatualmentesão:
-Eng°MecânicoJocemarLuizdaSilva(Cargoemcomissão)Substituiuo Eng°Thierrieerafiscaldocontratodemanutençãomecânicadasebaps (001.000337.17.0.00000).Trabalhoumenosde3mesesefoiexoneradoem janeiro/2021,semreposição;
-Eng°MecânicoMarcosFranzoiDriTrabalhouentreoutrasatividadescomo fiscaldeserviçodocontrato2010000006244-3Desempenhousuasatividades entre20/05/2022a03/10/2022,quandopediuexoneração
-Eng°MecânicoDeivideAlissonWinter.Trabalhouentreoutrasatividadescomo fiscaldeserviçodoscontratos2010000006244-3e2110000005331-8 DesempenhousuasatividadesnaGMANentre01/07/2023a07/03/2024, quandopediuexoneração
Osservidoresquedesempenharamsuasatividadesrelacionadasamanutenção dopluvialatualmentesão: 146

ESTADODORIOGRANDEDOSUL TRIBUNALDECONTAS
DIREÇÃODECONTROLEEFISCALIZAÇÃO SERVIÇODEAUDITORIADEPORTOALEGRE

-Eng°EletricistaMarceloLuisDiel,queestálotadonaGMANdesde 28/04/19(30horas)eéofiscaldecontratodocontratodemanutenção eletromecânicadoSPCC(20.10.000006244-3);
-Eng°MecânicoLucaslorenzeSilva,lotadonaGMANdesde22/04/2024 (30horas)eéfiscaldeserviçodoscontratos2010000006244-3e 2110000005331-8
-Eng°MecânicoFernandoMarquesOurique,éocoordenadorde manutençãoindustrial,responsávelpelasequipesdemanutençãodo sistemadeabastecimentodeagua,esgotocloacalepluvial.Éfiscalde contratodocontrato2110000005331-8
-Eng°MecânicoRogerioAlvesdeOliveira,éoassistentetécnicodaGMAN eatuaprestandoapoionamanutençãodosistemadeabastecimentode agua,esgotocloacalepluvial,incluindoapoiotécnicoemnovasestações debombeamento
Eng°RafaelSpiesLopes,éoatualgerentedaGMAN,contemplandoa manutençãodosistemadeabastecimentodeagua,esgotocloacale pluvial
TécnicosindustriaisRobertoRufatto,JoséVanderleideOliveiraeJeferson NevesMachado,atuamnacoordenaçãodasequipesdemanutenção,que podematenderdemandasdiversasdequalquerunidadeoperacionaldo DMAE,incluindoasestaçõesdebombeamentopluvial
Alémdisso,qualqueroutroservidordaGMANpodeatuardiretamenteou indiretamentenamanutençãodopluvial,vistoquesãoconsideradas unidadesindustriaiscomoasestaçõesdeaguaeesgoto.
()
DIRETORIADETRATAMENTODEÁGUAEESGOTOS-DMAE ÀGDA,
ComasinformaçõesdaGDCO29590032eGMAN29675870,considerando que:
AGMAN-GerênciadeManutençãoIndustrialatuanamanutenção industrialdeunidadesdoDMAEAtuatambémnamanutençãodas comportasAmanutençãopreventivaecorretivadasEBAPsecomportasé contratadasobcoordenaçãodaGMAN.Amanutençãodeemergênciaé realizadapelasequipesdaGMANpermanentemente(24horasx7dias).
AGMANrecebeuemabrilde2019doisservidoresdoextintoDEPOEng° EletricistaMarceloLuisDiel,queestálotadonaGMANeéofiscaldecontrato docontratodemanutençãoeletromecânicadoSPCC(2010000006244-3),eo Eng°MecânicoThierriMoraesdarosaSilva(Cargoemcomissão),quese exoneroudodepartamentoem02/11/2020
OengmecânicoRogérioAlvesdeOliveira,éoassistentetécnicodaGMANe atuaprestandoapoionamanutençãodosistemadeabastecimentodeágua, esgotocloacalepluvial,incluindoapoiotécnicoemnovasestaçõesde 147
Assinado digitalmente por: Marcelo Kipper da Silva em 14/07/25, Leandro Lobato Camargo em 14/07/25, Leandro Torres em 14/07/25, Fabio Alex Beling em 14/07/25 e outro(s). Confira a autenticidade do documento em www.tce.rs.gov.br. Identificador: PRE.FE77.2360.2A1D.FC7C.62D4.

ESTADODORIOGRANDEDOSUL TRIBUNALDECONTAS
DIREÇÃODECONTROLEEFISCALIZAÇÃO SERVIÇODEAUDITORIADEPORTOALEGRE
bombeamento

Oeng.mecânicoJocemarLuizdaSilva(Cargoemcomissão)substituiuo Eng°Thierriqueerafiscaldocontratodemanutençãomecânicadas EBAPS(00100033717000000)Trabalhoumenosde3mesesefoi exoneradoemjaneiro/2021,semreposição;
OengmecânicoMarcosFranzoiDriTrabalhouentreoutrasatividadescomo fiscaldeserviçodocontrato20.10.000006244-3.Desempenhousuasatividades entre20/05/2022a03/10/2022,quandopediuexoneração
OengmecânicoDeivideAlissonWinterTrabalhouentreoutrasatividades comofiscaldeserviçodoscontratos2010000006244-3e2110000005331-8 DesempenhousuasatividadesnaGMANentre01/07/2023a07/03/2024, quandopediuexoneração
Oeng.mecânicoLucasLorenzeSilva,lotadonaGMANdesde22/04/2024(30 horas) e é fiscal de serviço dos contratos 2010000006244-3 e 2110000005331-8
OengmecânicoFernandoMarquesOurique,éocoordenadordemanutenção industrial,responsávelpelasequipesdemanutençãodosistemade abastecimentodeagua,esgotocloacalepluvialÉfiscaldecontratodocontrato 2110000005331-8
OengRafaelSpiesLopes,éoatualgerentedaGMAN,contemplandoa manutençãodosistemadeabastecimentodeágua,esgotocloacalepluvial
TécnicosindustriaisRobertoRufatto,JoséVanderleideOliveiraeJeferson NevesMachado,atuamnacoordenaçãodasequipesdemanutenção,que podematenderdemandasdiversasdequalquerunidadeoperacionaldoDMAE, incluindoasestaçõesdebombeamentopluvialAlémdisso,qualqueroutro servidordaGMANpodeatuardiretamenteouindiretamentenamanutençãodo pluvial,vistoquesãoconsideradasunidadesindustriaiscomoasestaçõesde aguaeesgoto
AGDCO-GerênciadeDistribuiçãoeConduçãoatuanaoperaçãodas comportasdoCaisMauáedeunidadesdebombeamentodeágua,esgoto epluvialTambémrealizaaoperaçãoemanutençãoderedesdeáguade grandeporteenaoperaçãodascomportasAoperaçãodascasasde EBAPséterceirizadasobcoordenaçãodaGDCO Aoperaçãoé supervisionadapermanentemente(24horasx7dias)peloCCO-Centrode ControleOperacionaldaC-CONTROLE
OengMarcosGoulartMachado-Engenheiro-iniciouem28/04/2019nesta gerência,lotadonoC-CONTROLEdesignadoparaLíderdeEquipeIIInaEQPRCHEIArealizandoasatividadesdefiscalizaçãoedemaisaçõesrelativasao textoacima
OservidorMarceloRobertoRodriguesdeMenezes-AssistenteAdministrativoiniciouem01/05/2019nestagerência,lotadonaC-ADUTORASrealizando serviçosadministrativos
AservidoraElianaradosSantosdeAndrade-Telefonista-iniciouem 148
Assinado digitalmente por: Marcelo Kipper da Silva em 14/07/25, Leandro Lobato Camargo em 14/07/25, Leandro Torres em 14/07/25, Fabio Alex Beling em 14/07/25 e outro(s). Confira a autenticidade do documento em www.tce.rs.gov.br. Identificador: PRE.FE77.2360.2A1D.FC7C.62D4.

ESTADODORIOGRANDEDOSUL TRIBUNALDECONTAS
DIREÇÃODECONTROLEEFISCALIZAÇÃO SERVIÇODEAUDITORIADEPORTOALEGRE

28/04//2019nestagerência,realizandoserviçosdeatendimentodesistemasde informaçãoetelefôniconoControleOperacional(CCO)
AservidoraEdimaraPeresBrigidoMonteiro-OperárioEspecializado-iniciou em05/08/2019nestagerência,efoirelotadaàGEPO/C-BENSIMIOVEISem 03/08/2021
Ressalta-seque,somenteapartirdeabrilde2022,asatividadesdaGMANe GDCOvieramparaaDiretoriadeTratamentodeÁguaeEsgotos,sendoque anteriormenteestasduasgerênciasestavamsobresponsabilidadedaDiretoria deOperações-DOconformeDecretoMunicipaln°21398/2022
Portanto,restou demonstrada a falta de estruturação de pessoal rigorosamenteemunidadesemqueforamidentificadasfragilidadesnoprocessode incorporação.
AGerênciadePlanejamento(GPLA),unidadevinculadaàDiretoriadeGestãoe Desenvolvimento(DD),responsávelpeloplanejamentodeprojetosdeinfraestruturaedos sistemasdedrenagemeproteçãocontracheias,nuncateveoingressodeservidoresparaa realizaçãodessascompetências,sendoreferidoqueaequipeatuacomapenasdois servidores,quetrabalhambasicamenteemanálisesdeprojetosdenovosempreendimentos
Relativamenteàsatividadesdeexecuçãoefiscalizaçãodeprojetosdedrenagem, atualmenteacargodaGerênciadeProjetos(GPRO),eàsatividadesdefiscalizaçãodeobras dedrenagem,sobaresponsabilidadedaGerênciadeObras(GEPO),asinformaçõesprestadas confirmam queosservidoresalocadosnãoatuamexclusivamentenessasfrentes, realizandotambématividadesemprojetosqueenvolvemoabastecimentodeáguaeo esgotamentosanitário
Diantedissoverifica-seaausênciadeservidoresalocadosdeformaexclusiva paraoexercíciodascompetênciasrelacionadasàexecuçãoefiscalizaçãodeobrase projetosdedrenagem,oquerevelaumfatorderiscoàespecializaçãoeaoadequado cumprimentodessascompetências,antesexecutadassemsobreposiçãodetarefasnoextinto DEP
AmesmasituaçãoseverificanaGerênciadeManutençãoIndustrial(GMAN),que possuiservidoresalocadosnamanutençãodossistemasdeabastecimentodeágua,de esgotocloacalepluvial,abarcando,assim,todosossistemasgeridospeloDMAE
Tambémháfortesindíciosdequeaestruturaçãodepessoalnãoésuficientemente adequadaparaosatisfatóriocumprimentodassuascompetências
Issoporque,noprocessonº22.0.000007066-5,oqualtratoudoencaminhamentode minutadeprojetodeleivisandoaautorizaçãoparacontrataçõestemporáriasdeengenheirose arquitetos,oDMAEapresentoumanifestaçãoquantoànecessidadedeautorizaçãoparainclusão de07(sete)Arquitetose31(trintaeum)Engenheiros,assimdistribuídos:EngenheiroCivil(15

ESTADODORIOGRANDEDOSUL TRIBUNALDECONTAS
DIREÇÃODECONTROLEEFISCALIZAÇÃO SERVIÇODEAUDITORIADEPORTOALEGRE

cargos),EngenheiroQuímico(3cargos),EngenheiroElétrico(6cargos)eEngenheiroMecânico (7cargos)(peça6718523,p71e72)
Adespeitodissoedajustificativainseridatersidofundamentadanaincorporaçãodas competênciaseestruturasdoDEP,oDMAEfoicontempladocomapenas02(dois)Engenheiros Civise02(dois)ArquitetosAbaixoseguetranscriçãodajustificativaapresentada(peça6718523, p123e191):
DMAE
ODepartamentoMunicipaldeÁguaeEsgotoincorporouoDepartamentode EsgotosPluviais(DEP)ecomissofoiassumidonovasestruturas Nãohá concursovigenteparaengenheirocivil,eareposiçãodealgunsengenheiros civisquesaíramsedeuporengenheiromecânico Existem400estruturaspara manter,entreprédiosadministrativos,reservatóriosecasasdebombas,todas emprecáriascondiçõesquedevemserreparadase/oureformadasenissoos arquitetosserãoindispensáveis
Tendoestasdemandasatendidaspelopresenteprocesso,enquantodaremos continuidade no resolver em definitivo com a homologação dos concursos públicos e a criação dos cargos faltantes, sendo possível atendermos aos projetoseentregasquePortoAlegreprecisaemerece
Caberegistrarqueessanecessidadetambémfoireveladanasproposiçõesdeprojeto delei,registradasnosexpedientes2010000001166-019e2210000004786-020,visandoà adequaçãodoquadrodepessoaldoDMAEequenãotiveramseguimentopelaadministração centralizada
Dessemodo,restaevidenciadoqueoquantitativodeservidoresatuantesem funçõesdoextintoDEP,alémdesermuitoinferioraoanteriormenteexistente,nãoreflete emumquadrodeservidoresalocadosexclusivamenteparaoatendimentodasatividades deesgotospluviais,dedrenagemedoSistemadeProteçãoContraCheias(SPCC)
AEquipedeProteçãoContraCheias(EQ-PRCHEIA),unidadesubordinadaà CoordenaçãodeControleOperacional(C-CONTROLE)evinculadaaGerênciadeDistribuiçãoe Condução(GDCO),responsávelpelaoperaçãode23EBAPs(CasasdeBombas)eportodoo complexoSistemadeProteçãoContraCheias(SPCC),paraaqualpressupor-se-iaa necessidadedoacompanhamentodasituaçãodetodososarroiosedaadequaçãodascasasde bombas,dosdiques,domurodaMauáedascomportasexistentes,foicompostaporapenas 01(um)servidordocargodeEngenharia(EspecialidadeMecânica),noperíodode2019a 2024(peça6718478,p.12e13)(peça6718460,p.55)(peça6718434,p.53)(peça6718461, p55)(peça6718462,p51)(peça6718463,p52)(peça6718464,p53)
Consoanteasinformaçõesprestadasemrespostaaoitem5daRDI641506(peça 6718478,p.12e13),esseagentefoioúnicoalocado,noâmbitodaC-CONTROLE,paraa operaçãodessascompetências,antesexecutadaspeloextintoDEP21,sendodesignadocomo líder(funçãogratificada)deumaequipeapenasporeleformada


DIREÇÃODECONTROLEEFISCALIZAÇÃO SERVIÇODEAUDITORIADEPORTOALEGRE
Deacordocomoart175doDecretonº21539/2022,aEQ-PRCHEIApossuias seguintescompetências:
Art175ÀEquipedeProteçãoContraCheias,unidadedetrabalho(UT) subordinadaàCoordenaçãodeControleOperacional,compete:
I-executarasatividadesnecessáriasàoperaçãodasEBAPsdoSistemade ProteçãoContraCheias(SPCC);
II-prestarorientaçõestécnicasrelativasàsunidadesoperacionaisdoSPCC;
III-operarasEBAPs,atravésdosistemasupervisório,viarádioecontato telefônico;
IV-controlar,acompanharefiscalizaromododeoperaçãodasEBAPs, executadaporempresascontratadasouequipespróprias,registrandotodasas ocorrênciasrelevantes;
V-inspecionarosserviçosnospoçosdesucçãoerecalque,nasgaleriasde chegadaeconduçãodesaídanoâmbitodasEBAPs;
VI-registrar,encaminharàsáreasresponsáveiseacompanhartodasas demandasdemanutençãoelétricasemecânicasnosgruposmotoresbombas, tubulaçõesecomportasdasEBAPsedomurodaMauá;
VII-acionaroplanodefechamentodascomportasdecontençãodomuroda AvMauá;
VIII-elaborarrelatóriosoperacionaisedeconsumoenergiaelétricanas estaçõeselevatórias,visandoàotimizaçãodossistemas;
IX-acompanharasatividadesnecessáriasparaainspeçãoerecuperação estruturaldasestaçõeselevatórias;e
X-executaroutrasatividadescorrelatas
Diantedacomplexidadeediversidadedastarefas,quealémdeenvolvero monitoramentocontínuo,fiscalização,operaçãodesistemascomplexoserespostaa emergências,aindaexigemconhecimentostécnicosespecíficosdeengenhariacivil,mecânica, elétricaehidráulica,nãoérazoáveloexercíciodessasatividadesporapenasum profissional
Nãobastasseisso,considerandoasinformaçõesprestadaspeloDMAEemresposta àRDI666502(peça6718535) (peça6718460) (peça6718434) (peça6718461) (peça 6718462) (peça6718463) (peça6718464),aprópriaC-CONTROLE,unidade hierarquicamenteacimadaEQ-PRCHEIAeresponsávelpelofuncionamentodoSPCC,não foiadequadamenteestruturada,dispondodeumefetivodetrabalhosituadoentre5a9 servidores,noperíodode2019a2024.Afragilidadedaunidadeétambémevidenciada pelafaltadeservidoresdeníveleassessoramentosuperior,representadopeloscargosda áreadeengenhariaearquitetura,especialidadesmaisapropriadasparaonível decomplexidadetécnicadasatividadesassumidas

ESTADODORIOGRANDEDOSUL TRIBUNALDECONTAS
DIREÇÃODECONTROLEEFISCALIZAÇÃO SERVIÇODEAUDITORIADEPORTOALEGRE

QuadrodePessoal-CoordenaçãodeControleOperacional(peça6718524) 2019 2020 2021 2022 2023 2024(Abril)
1Auxiliarde Serviços Técnicos (Coordenador)
1Agentede Serviços Externos 1Instalador
Hidrossanitário
1Operário Especializado
4Operadoresde Subestação
Total:8 Servidores
1Auxiliarde Serviços Técnicos (Coordenador)
1Instalador
Hidrossanitário
1Operário
Especializado
6Operadoresde Subestação
1Auxiliarde ServiçosTécnicos (Coordenador)
1Instalador
Hidrossanitário
1Operário
Especializado 5Operadoresde
Subestação
1Auxiliarde Serviços Técnicos (Coordenador) 1Instalador
Hidrossanitário
1Operário Especializado
3Operadoresde Subestação
1Auxiliarde Serviços Técnicos (Coordenador) 1Operário Especializado 3Operadoresde Subestação
1Auxiliarde Serviços Técnicos (Coordenador) 1Assistente Administrativo 2Operadoresde Subestação 1Agentede Saneamento (Temporário)
Total:9 Servidores
Total:8 Servidores
Total:6 Servidores
Total:5 Servidores
Total:5 Servidores
ImportasalientarqueaC-CONTROLEtambéméresponsávelpelaoperaçãoe acompanhamentodosistemadeabastecimentodeágua(6EstaçõesdeBombeamentodeÁgua Bruta-EBABse87EstaçõesdeBombeamentodeÁguaTratada-EBATs)econduçãode esgotocloacal (36EstaçõesdeBombeamentodeEsgoto-EBEs),oquedemonstraa vulnerabilidadedestaunidadeparaoatendimentodesuascompetências
Comefeito,taisfragilidadesforamdeterminantesparaafaltadeaçõesnecessárias paraoadequadofuncionamentodoSPCCe,consequentemente,parasegurançaeproteçãoda cidadequandodoeventoclimáticoocorridoemmaiode2024
Alémdessasirregularidades,verificou-seaindaqueaCoordenaçãodeObras EspeciaisdeEsgotamentoSanitárioedeDrenagem(C-DRENAGEM),unidadevinculadaao GabinetedoDiretor-GeralAdjunto(GDA),responsávelpelasupervisão,controleefiscalizaçãode obraseprojetosespeciaisemesgotamentosanitárioedrenagem,teveaalocaçãodeapenas01 (um)servidor,quepossuiafunçãogratificadadecoordenador,porémnãotemservidores hierarquicamentesubordinadosparacoordenarequepossamoferecerapoioaocumprimento dessascompetências
Porfim,nesseredesenhodascompetênciaseresponsabilidadesdoextintoDEP, cabetambémacríticadequehouveapriorizaçãodasaçõesrelacionadasàeficiênciada drenagemurbana,comfoconaconduçãodaságuaspluviaisincidentesnoperímetrourbano paraoGuaíba,conclusãotambémalcançadadaavaliaçãodoorçamentoalocadoparaessas atividades
Nãohouveaestruturaçãodeumsetorcujoobjetivofosseagestãoeo planejamentointegradodoselementosdeumsistemadeproteçãocontracheias(muro, diques,comportasecasasdebombas)comopapeldeevitarofluxodeáguadoGuaíba paraacidade.Nessesentido,conformevistonopresentetrabalho,osdiquesdemonstraram-se umdoselementosmaisfrágeisdetodooSPCC,poisapresentaramfalhasdecontinuidadeou estruturaisquecomprometeramafunçãodemanteracidadeprotegidadaságuasdoGuaíba.
152


Sendoumdoselementosmaissensíveisdosistema,eraesperadoaclara normatizaçãoarespeitodasresponsabilidadespornovosprojetosdediquesepelamanutenção dasestruturasexistentesContudo,comosedepreendedoart175doDecretonº21539/2022,a EQ-PRCHEIAfoiconcebidacomênfaseàoperaçãoeletro-mecânicadasEBAPsecomportas,de modoqueacompetênciapelosdiquesémalresolvidananormativaegenericamentetratadanos incisosII(caráterorientativo)eX(caráteracessório),aindaquesejaclaraaresponsabilidadedo DMAEnessequesitodesdeaediçãodaLeiComplementarnº897/2021,art14,confirmadapela ediçãodaLeiMunicipalnº12939/2021edoDecretonº21539/2022,noart2º,incisoV:
LeiComplementarnº897/2021
Art14-Aformulação,coordenação,articulaçãoeexecuçãodeprojetosde obraspúblicasmunicipaisdeampliaçãodasestruturasexistentesdomanejode águaspluviaisurbanasecontroledecheias,bemcomoasuamanutençãoe conservação,nostermosdaLeinº12504,de24dejaneirode2019,ficamsob acoordenaçãodoDepartamentoMunicipaldeÁguaeEsgotos(DMAE)atéque oExecutivoMunicipal,medianteencaminhamentodeprojetodelei,estruturea incorporaçãodefinitivadestascompetênciaspeloDMAE
LeiMunicipalnº12.939/2021
Art.1ºFicaalteradooart3ºdaLeinº2312,de15dedezembrode1961,e alteraçõesposteriores,conformesegue:
"Art3ºCompeteaoDMAE:
I-formular,planejar,executar,coordenarefiscalizartodasasatividades concernentes à construção, melhoramento, ampliação, exploração e conservaçãodosserviçosesistemasdeáguaeesgotoscloacalepluvial;
II-elaboraroPlanoGeraldoSistemadeEsgotosPluviais,ajustando-oaoplano deproteçãodePortoAlegrecontraenchentes;
III-estabeleceraprogramaçãoeprioridadesnaexecuçãodeplanoseprojetos;
"(NR)
Art2ºFicaalteradooart3-AdaLeinº2312,de1961,ealteraçõesposteriores, conformesegue:
"Art.3º-AFicaoDMAEautorizadoafigurarcomoparte,medianteaditamento, nosconvênios,contratoseoutrosacordosjáfirmadospeloMunicípio,vinculados àsnovascompetênciasligadasaossistemasdedrenagempluvialedeproteção contraenchentesfixadasnoart3ºdestaLei"(NR)

ESTADODORIOGRANDEDOSUL
Decretonº21539/2022

Art.2º-ODMAE,entidadeautárquica,criadapelaLeinº2312,de15de dezembrode1961,temporcompetências:
V-atuartambémnamanutenção,naconservação,nacontrataçãoena execuçãodeobraseserviços,expansão,desenvolvimentoeoperaçãodo sistemadeesgotospluviais,dedrenagemedeproteçãocontracheiasdo MunicípiodePortoAlegre.
Consequênciasparaaadministraçãoesociedade
AsfragilidadesexistentesnaestruturaorganizacionaldoDMAE,paraassumirnovas competênciaseatividadesqueanteseramderesponsabilidadedoDEP,resultaramemprejuízos aoplanejamentodeprojetoseàexecuçãoeficientedasfunçõesrelacionadasàgestão, manutenção,conservaçãoeoperaçãodoSPCC.Taisdeficiênciasforamdeterminantesparaa ausênciadeaçõesqueidentificassemasfalhasexistentesecontribuíramparao nãofuncionamentodosistema,comprometendoasegurançaeaproteçãodacidadeduranteo eventoclimáticoocorridoemmaiode2024.
Comoconsequência,aausênciadasaçõesnecessárias,decorrentedasfragilidades daestruturaçãoorganizacionalimplementada,resultouemprejuízossignificativosaoerário municipalEmboraaindanãototalmentequantificados,emrazãodaexistênciademilharesde açõesindividuaisedaAçãoCivilPúblicadoMinistérioPúblicoEstadual,postulandoa condenaçãodomunicípioaopagamentodeindenizaçõespordanosmateriaisemorais individuais,osprejuízos(custospúblicos),relativosaoenfrentamentodacriseevoltadosà reconstruçãoerecuperaçãoestruturaldacidade,foraminicialmenteestimadosentreR$6eR$8 bilhões,conformeestudoapresentadopelaprópriaPrefeituraMunicipal(peça6718424)
Leiseoutrasnormasaplicáveisaocaso PrincípiodaEficiência(art37,caputdaConstituiçãoFederal); LeiOrgânica(art.94,incisosII,IV,V,VIIeX); Decretonº21539/2022-Art2º,incisoV; LeiFederalnº10.406/2002,artigo186; RegimentoInternodoTribunaldeContasdoEstado(AprovadopelaResoluçãonº 1028/2015),art.139.
Conclusõesdaequipedeauditoria
Diantedetodooexposto,conclui-sequeasfragilidadesidentificadasnaestruturação organizacionaldoDMAE,paraaassunçãodascompetênciasdoextintoDEP,foramtambém determinantesparaofracassodoórgãonaimplementaçãodemelhoriasenagestão, manutenção,conservaçãoeoperaçãodoSPCC.

ESTADODORIOGRANDEDOSUL TRIBUNALDECONTAS
DIREÇÃODECONTROLEEFISCALIZAÇÃO SERVIÇODEAUDITORIADEPORTOALEGRE

Nessecontexto,aindaquediscricionáriaadecisãosobreaformadagestãodestas atividades-daqualdecorreuaextinçãodoDEP-,nãoérazoávelqueasatividadesantes executadaspelodepartamento(mesmoqueprecariamenteemalgunssetores)tenham sidonegligenciadasapóssuaextinção,semaelaboraçãodeumplanodetransição minimamenteviávelEssemomentodetransiçãorepresentou,inclusive,umaoportunidade relevantedeinflexão,quepossibilitavaareavaliaçãoereestruturaçãodasestruturasmunicipais responsáveispelosistemadeproteçãocontracheias oportunidadeessaque,noentanto,não foiaproveitada
Porconseguinte,foramidentificadascondutasculposasdosseguintesagentes públicos,asquais,diantedoselementosecircunstânciasqueserãoexpostas,evidenciama caracterizaçãodeculpagraveouerrogrosseiro,tendoemvistaqueimplicaramgrave inobservânciadodeverdecuidadoeafastaram-sedoreferencialdo"administradormédio",pois asfragilidadespoderiamserpercebidasporpessoadediligêncianormal:
-NelsonMarchezanJúnior(PrefeitoMunicipal)
Oagentefoidevidamentecientificadodointeiroteordorelatóriodeinspeçãoespecial constantedoprocessonº363-0200/19-4(peça6653040)(peça6653067)22,queapontoua existênciaderiscosdeenfrentamentodegravesproblemasparaaimplementaçãodas necessidadesoperacionaisedeexpansãodosserviçosanteriormenteprestadospeloDEP(e extintoporsuainiciativa),tendoemvistaafaltadecapacidadeoperacionaldoDMAEdecorrente dafaltadepessoal
Diantedessascircunstânciaseraesperadoqueoagenteagissecomzeloeatenção aoprincípiodaeficiênciaquandodaestruturaçãoorganizacionaldoDMAE,paraaadequada absorçãodascompetênciasrelativasaosistemadedrenagemedeproteçãocontracheias, especialmenteconsiderandooconjuntodecompetênciasacrescidasecomplexidadesexistentes.
Nãoobstante,pormeiodaemissãodosDecretosnº2022923,de26/04/2019enº 20.75824,de15/10/2020,oPrefeitodefiniuaestruturaorganizacionaldoDMAEpara incorporaçãodeparceladascompetênciasdoDEP,apartirde28/04/2019,sendoatribuídas:à C-CONTROLE,asatividadesrelacionadasàoperaçãodas23EBAPs,dascomportaseao controleefuncionamentodosistemadeproteçãocontracheias;àGMAN,asatividades relacionadasàmanutençãoindustrialeàmanutençãoeletromecânicadasEBAPsedosistema deproteçãocontracheias
Ambasasunidadesjápossuíamresponsabilidadeseatividadesvoltadasaos sistemasdeáguaedeesgotos,demodoqueadecisãoadotadapelogestorresponsávelde concentraçãodecompetênciasemumamesmaunidadeeemdetrimentodaespecialização, aliadaàpolíticaadotadadenãoreposiçãodepessoal,implicouprejuízosaocumprimentodas competênciasassumidas
AnormativatambéminseriuaEquipedeProteçãoContraCheiascomounidade subordinadadaC-CONTROLE25,formatodeorganizaçãoquefoiposteriormentemantidopelo PrefeitoMunicipalqueosucedeu
Ademais,durantesuagestãoocorreuaperdaderecursosfederaisdoPAC Prevenção(R$122milhões),quepreviaadestinaçãoderecursosparamelhoriasestruturais, aumentodacapacidade,aquisiçãodegeradoresdeenergiaeampliaçãodecasasdebombase àmacrodrenagemdoarroioMoinho(ProgramaDrenaPoa),bemcomofoicientificadodas conclusõesregistradasnasindicânciainstaurada(peça6718645),aqualapontoudiversos problemasnoplanejamentodosprojetos,dentreosquaisafaltadeestruturadepessoalpara
Assinado digitalmente por: Marcelo Kipper da Silva em 14/07/25, Leandro Lobato Camargo em 14/07/25,
em 14/07/25, Fabio Alex Beling em 14/07/25 e outro(s). Confira a autenticidade do documento em www.tce.rs.gov.br. Identificador: PRE.FE77.2360.2A1D.FC7C.62D4.

ESTADODORIOGRANDEDOSUL TRIBUNALDECONTAS
DIREÇÃODECONTROLEEFISCALIZAÇÃO SERVIÇODEAUDITORIADEPORTOALEGRE

acompanhamentoepriorizaçãodosprojetosTaiscircunstânciassãoagravantesedemandavam maioratençãonaestruturaçãoorganizacionaledepessoalparaviabilizaraelaboraçãoe execuçãodosprojetospertinentesàscompetênciasincorporadas.
-SebastiãodeAraújoMelo(PrefeitoMunicipal)
Oagentefoidevidamentecientificadodointeiroteordorelatóriodeinspeçãoespecial constantedoprocessonº363-0200/19-4(peça6653041)(peça6653068),queapontoua existênciaderiscosdeenfrentamentodegravesproblemasparaaimplementaçãodas necessidadesoperacionaisedeexpansãodosserviçosanteriormenteprestadospeloDEP, tendoemvistaafaltadecapacidadeoperacionaldoDMAEdecorrentedafaltadepessoal.
Diantedessascircunstânciaseraesperadoqueoagenteagissecomzeloeatenção aoprincípiodaeficiênciaquandodaestruturaçãoorganizacionaldoDMAEefetivadapelos Decretosnº2139826,de22/02/2022,enº21539,de24/06/2022,paraaadequadaabsorção dascompetênciasrelativasaosistemadedrenagemedeproteçãocontracheias,especialmente considerandooconjuntodecompetênciasacrescidasecomplexidadesexistentes
Noentanto,pormeiodasreferidasnormativas,oPrefeitoestabeleceuaestrutura organizacionaldoDMAEparaassunçãodefinitivadascompetênciasdoextintoDEP,apartirde 25/03/2022,sendoatribuídas:àGPLA,asatividadesrelacionadasaoplanejamentodeprojetos deinfraestruturaedossistemasdedrenagemeproteçãocontracheias;àGPRO,asatividades deexecuçãoefiscalizaçãodeprojetosdedrenagem;àGEPO,asatividadesdefiscalizaçãode obrasdedrenagem;C-CONTROLE,asatividadesrelacionadasàoperaçãodas23EBAPs,das comportaseaocontroleefuncionamentodosistemadeproteçãocontracheias;àGMAN,as atividadesrelacionadasàmanutençãoindustrialeàmanutençãoeletromecânicadasEBAPse dosistemadeproteçãocontracheias.
Todasessasunidadesjápossuíamresponsabilidadeseatividadesvoltadasaos sistemasdeáguaedeesgotos,demodoqueadecisãoadotadapelogestorresponsávelde concentraçãodecompetênciasemumamesmaunidadeeemdetrimentodaespecialização, aliadaàpolíticaadotadadenãoreposiçãodepessoal,implicouprejuízosaocumprimentodas competênciasassumidas.
OsreferidosdecretostambémmantiveramaEquipedeProteçãoContraCheias comounidadesubordinadadaC-CONTROLE27,bemcomotransferiramessasunidadespara dentrodaestruturadeumaDiretoria(DT)voltadaàconsecuçãodeoutrosobjetivos(tratamento deáguaeesgotos)
Noponto,cumpreressaltaraprovidênciaadotadapeloagenteapósaocorrênciadas falhasdoSPCCnaenchentedemaiode2024,relativaàcriaçãoda"DiretoriadeProteção ContraCheiaseDrenagemUrbana",pormeiodoDecretonº23120/202528 Taliniciativa corroboraaexistênciadefalhasnaestruturaçãoorganizacionalefetivadapelosDecretosnº 21398/2022e21539/2022Todavia,assevera-sequeessamedidaporsisónãogarantiráo adequadocumprimentodascompetênciassenãoforacompanhadadasuficientealocaçãode pessoalparaoexercíciodasatividades
Ademais,oagentetinhaplenoconhecimentodaperdaderecursosfederaisdoPAC Prevenção(R$122milhões)edaabrangênciaeimportânciadoprogramaparaomunicípio,que previaadestinaçãoderecursosparamelhoriasestruturais,aumentodacapacidade,aquisição degeradoresdeenergiaeampliaçãodecasasdebombaseàmacrodrenagemdoarroioMoinho (ProgramaDrenaPoa),bemcomotinhaciênciadaexistênciadesindicânciainstaurada(peça 6718645),aqualapontoudiversosproblemasnoplanejamentodosprojetos,dentreosquaisa

ESTADODORIOGRANDEDOSUL TRIBUNALDECONTAS
DIREÇÃODECONTROLEEFISCALIZAÇÃO SERVIÇODEAUDITORIADEPORTOALEGRE

faltadeestruturadepessoalparaacompanhamentoepriorizaçãodosprojetosTais circunstânciassãoagravantesedemandavammaioratençãonaestruturaçãoorganizacionale depessoalparaviabilizaraelaboraçãoeexecuçãodosprojetospertinentesàscompetências incorporadas
-DarcyNunesdosSantos(Diretor-Geral)
Oagentefoidevidamentecientificadodointeiroteordorelatóriodeinspeçãoespecial constantedoprocessonº363-0200/19-4(peça6653039)29,queapontouaexistênciaderiscos deenfrentamentodegravesproblemasparaaimplementaçãodasnecessidadesoperacionaise deexpansãodosserviçosanteriormenteprestadospeloDEP,tendoemvistaafaltade capacidadeoperacionaldoDMAEdecorrentedafaltadepessoal
Diantedessascircunstânciaseraesperadoqueoagenteagissecomzeloeatenção aoprincípiodaeficiênciaquandodaestruturaçãoorganizacionaldoDMAE,paraaadequada absorçãodascompetênciasrelativasaosistemadedrenagemedeproteçãocontracheias, especialmenteconsiderandooconjuntodecompetênciasacrescidasecomplexidadesexistentes
ApósatransferênciadosencargossobreoSPCCaoDMAE,cabiaaoseugestor,o Diretor-Geral,promoveraatualizaçãodoRegimentoGeraldodepartamento,devendodispor sobreascompetênciasdetodasasunidadesdetrabalhoquecompõemasuaestrutura organizacional,asereditadonaformadeumdecreto,ouseja,pormeiodeumainterlocução comoExecutivoMunicipal:
Art4ºODiretor-GeraldoDMAEpromoveránoprazode90(noventa)dias,a contardadatadeentradaemvigordesteDecreto,aatualizaçãodoRegimento GeraldoDMAE,oqualdeveráserpublicadonaformadeDecreto,dispondo sobreascompetênciasgeraisdetodasasunidadesdetrabalhoquecompõema estruturaorganizacional,asatribuiçõesgeraisdospostosdeconfiançaeoutras disposiçõesquesefizeremnecessárias(Decretonº20229/2019)
Nãoobstante,pormeiodaemissãodoDecretonº20.75830,de15/10/2020,definiuseaestruturaorganizacionaldoDMAEparaincorporaçãodeparceladascompetênciasdoDEP, sendoatribuídas:àC-CONTROLE,asatividadesrelacionadasàoperaçãodas23EBAPs,das comportaseaocontroleefuncionamentodosistemadeproteçãocontracheias;àGMAN,as atividadesrelacionadasàmanutençãoindustrialeàmanutençãoeletromecânicadasEBAPse dosistemadeproteçãocontracheias
Ambasasunidadesjápossuíamresponsabilidadeseatividadesvoltadasaos sistemasdeáguaedeesgotos,demodoqueadecisãoadotadapelogestorresponsávelde concentraçãodecompetênciasemumamesmaunidadeeemdetrimentodaespecialização, aliadaàpolíticaadotadadenãoreposiçãodepessoal,implicouprejuízosaocumprimentodas competênciasassumidas
AnormativatambéminseriuaEquipedeProteçãoContraCheiascomounidade subordinadadaC-CONTROLE31,formatodeorganizaçãoquefoiposteriormentemantidopelo PrefeitoMunicipalqueosucedeu
Ademais,duranteoperíododesuagestãoocorreuaperdaderecursosfederaisdo PACPrevenção(R$122milhões),quepreviaadestinaçãoderecursosparamelhorias estruturais,aumentodacapacidade,aquisiçãodegeradoresdeenergiaeampliaçãodecasasde bombaseàmacrodrenagemdoarroioMoinho(ProgramaDrenaPoa)Asconclusõesregistradas nasindicânciainstaurada(peça6718645)apontaramdiversosproblemasnoplanejamentodos projetos,dentreosquaisafaltadeestruturadepessoalparaacompanhamentoepriorizaçãodos 157
Assinado digitalmente por: Marcelo Kipper da Silva em 14/07/25, Leandro Lobato Camargo em 14/07/25, Leandro Torres em 14/07/25, Fabio Alex Beling em 14/07/25 e outro(s). Confira a autenticidade do documento em www.tce.rs.gov.br. Identificador: PRE.FE77.2360.2A1D.FC7C.62D4.

ESTADODORIOGRANDEDOSUL TRIBUNALDECONTAS
DIREÇÃODECONTROLEEFISCALIZAÇÃO SERVIÇODEAUDITORIADEPORTOALEGRE

projetos.Taiscircunstânciassãoagravantesedemandavammaioratençãonaestruturação organizacionaledepessoalparaviabilizaraelaboraçãoeexecuçãodosprojetospertinentesàs competênciasincorporadas
-AlexandredeFreitasGarcia(Diretor-Geral)
Oagenteregistrou,noexpediente1910000001067-7,ciênciasobreainspeção especialconstantedoprocessonº363-0200/19-4(peça6718525,p18),queapontoua existênciaderiscosdeenfrentamentodegravesproblemasparaaimplementaçãodas necessidadesoperacionaisedeexpansãodosserviçosanteriormenteprestadospeloDEP, tendoemvistaafaltadecapacidadeoperacionaldoDMAEdecorrentedafaltadepessoal
Diantedessascircunstânciaseraesperadoqueoagenteagissecomzeloeatenção aoprincípiodaeficiênciaquandodaestruturaçãoorganizacionaldoDMAEefetivadapelos Decretosnº21.39832,de22/02/2022,enº21.539,de24/06/2022,paraaadequadaabsorção dascompetênciasrelativasaosistemadedrenagemedeproteçãocontracheias,especialmente considerandooconjuntodecompetênciasacrescidasecomplexidadesexistentes
CompetiaaoDiretor-GeraldoDMAE(art274doDecretonº20758/2020)solicitar atualizaçõesdasatribuiçõesregimentaisquandoconstatadaanecessidade,pormeioda elaboraçãodeumaminutadedecretoaseremitidopeloExecutivoMunicipal,ouseja,pormeio deumainterlocuçãocomoPrefeitoMunicipale,ainda,detalharascompetênciasdasunidades pormeiodeInstruçõesNormativas:
Art.274.ODiretor-GeraldoDMAEdeverásolicitar,semprequesefizer necessárioeforrelevante,aatualizaçãodasatribuiçõesregimentaisdas unidadesdetrabalhoquecompõemoórgão,peloencaminhamentode minutadeDecretodealteração,totalouparcial,dasnormasestabelecidas nesteDecreto,respeitandooslimites,finalidadesbásicaselegislaçõesque justificamaexistênciaeaatuaçãodoDepartamento
ParágrafoúnicoSemprejuízododispostonocaputdesteartigo,oDiretorGeraldoDMAEpoderá,semprequesefizernecessário,promovero detalhamentodascompetênciaselencadasnesteRegimentoInternopor InstruçãoNormativa.
(Grifou-se)
Noentanto,pormeiodosdecretoseditadosdurantesuagestão,estabeleceua estruturaorganizacionaldoDMAEparaassunçãodefinitivadascompetênciasdoextintoDEP,a partirde25/03/2022,sendoatribuídas:àGPLA,asatividadesrelacionadasaoplanejamentode projetosdeinfraestruturaedossistemasdedrenagemeproteçãocontracheias;àGPRO, asatividadesdeexecuçãoefiscalizaçãodeprojetosdedrenagem;àGEPO,asatividadesde fiscalizaçãodeobrasdedrenagem;C-CONTROLE,asatividadesrelacionadasàoperaçãodas 23EBAPs,dascomportaseaocontroleefuncionamentodosistemadeproteçãocontracheias; àGMAN,asatividadesrelacionadasàmanutençãoindustrialeàmanutençãoeletromecânica dasEBAPsedosistemadeproteçãocontracheias
Todasessasunidadesjápossuíamresponsabilidadeseatividadesvoltadasaos sistemasdeáguaedeesgotos,demodoqueadecisãoadotadapelogestorresponsávelde concentraçãodecompetênciasemumamesmaunidadeeemdetrimentodaespecialização, aliadaàpolíticaadotadadenãoreposiçãodepessoal,implicouprejuízosaocumprimentodas competênciasassumidas

ESTADODORIOGRANDEDOSUL TRIBUNALDECONTAS
DIREÇÃODECONTROLEEFISCALIZAÇÃO SERVIÇODEAUDITORIADEPORTOALEGRE

OsreferidosdecretostambémmantiveramaEquipedeProteçãoContraCheias comounidadesubordinadadaC-CONTROLE33,bemcomotransferiramessasunidadespara dentrodaestruturadeumaDiretoria(DT)voltadaàconsecuçãodeoutrosobjetivos(tratamento deáguaeesgotos)
Noponto,cumpreressaltaraprovidênciaadotadapelaadministraçãomunicipalapós aocorrênciadasfalhasdoSPCCnaenchentedemaiode2024,relativaàcriaçãoda"Diretoria deProteçãoContraCheiaseDrenagemUrbana",pormeiodoDecretonº23120/202534Tal iniciativacorroboraaexistênciadefalhasnaestruturaçãoorganizacionalefetivadapelos Decretosnº21398/2022e21539/2022
Ademais,houveaperdaderecursosfederaisdoPACPrevenção(R$122milhões), quepreviaadestinaçãoderecursosparamelhoriasestruturais,aumentodacapacidade, aquisiçãodegeradoresdeenergiaeampliaçãodecasasdebombaseàmacrodrenagemdo arroioMoinho(ProgramaDrenaPoa).Asconclusõesregistradasnasindicânciainstaurada(peça 6718645)apontaramdiversosproblemasnoplanejamentodosprojetos,dentreosquaisafalta deestruturadepessoalparaacompanhamentoepriorizaçãodosprojetosTaiscircunstâncias sãoagravantesedemandavammaioratençãonaestruturaçãoorganizacionaledepessoalpara viabilizaraelaboraçãoeexecuçãodosprojetospertinentes
-MauricioLoss(Diretor-Geral)
Consoanteodispostonoart191doDecretonº21539/2022,eraresponsabilidadedo Diretor-GeraldoDMAEsolicitaratualizaçõesdasatribuiçõesregimentaisquandoconstatadaa necessidadepormeiodaelaboraçãodeumaminutadedecretoaseremitidopeloExecutivo Municipal,ouseja,pormeiodeumainterlocuçãocomoPrefeitoMunicipal,elhecabiaainda detalharascompetênciasdasunidadespormeiodeInstruçõesNormativas:
Art191ODiretor-GeraldoDMAEdeverásolicitar,semprequesefizer necessárioeforrelevante,aatualizaçãodasatribuiçõesregimentaisdas unidadesdetrabalhoquecompõemoórgão,peloencaminhamentode minutadeDecretodealteração,totalouparcial,dasnormasestabelecidas nesteDecreto,respeitandooslimites,finalidadesbásicaselegislaçõesque justificamaexistênciaeaatuaçãodoDepartamento.
ParágrafoúnicoSemprejuízododispostonocaputdesteartigo,oDiretor-Geral doDMAEpoderá,semprequesefizernecessário,promoverodetalhamento dascompetênciaselencadasnesteRegimentoInternoporInstrução Normativa
(Grifou-se)
Diantedessascircunstânciaseraesperadoqueoagenteagissecomzeloeatenção aoprincípiodaeficiênciaquantoàestruturaçãoorganizacionaldoDMAEquandodaassunçãodo cargo,paraaadequadaefetivaçãodascompetênciasrelativasaosistemadedrenagemede proteçãocontracheiassobsuagestão.
Noentanto,nãopromoveunenhumaatualizaçãonaestruturaorganizacionaldo DMAEparaassunçãodefinitivadascompetênciasdoextintoDEP,permanecendoasatribuições: àGPLA,asatividadesrelacionadasaoplanejamentodeprojetosdeinfraestruturaedossistemas dedrenagemeproteçãocontracheias;àGPRO,asatividadesdeexecuçãoefiscalizaçãode projetosdedrenagem;àGEPO,asatividadesdefiscalizaçãodeobrasdedrenagem;C159

ESTADODORIOGRANDEDOSUL
DIREÇÃODECONTROLEEFISCALIZAÇÃO SERVIÇODEAUDITORIADEPORTOALEGRE

CONTROLE,asatividadesrelacionadasàoperaçãodas23EBAPs,dascomportaseaocontrole efuncionamentodosistemadeproteçãocontracheias;àGMAN,asatividadesrelacionadasà manutençãoindustrialeàmanutençãoeletromecânicadasEBAPsedosistemadeproteção contracheias
Todasessasunidadesjápossuíamresponsabilidadeseatividadesvoltadasaos sistemasdeáguaedeesgotos,demodoqueadecisãoadotadapelogestorresponsávelpela manutençãodeconcentraçãodecompetênciasemumamesmaunidadeeemdetrimentoda especialização,aliadaàpolíticaadotadadenãoreposiçãodepessoal,implicouprejuízosao cumprimentodascompetênciasassumidas
AnormativavigentetambémmanteveaEquipedeProteçãoContraCheiascomo unidadesubordinadadaC-CONTROLE35,eessasunidadesabaixodaestruturadeuma Diretoria(DT)voltadaàconsecuçãodeoutrosobjetivos(tratamentodeáguaeesgotos)
Noponto,cumpreressaltaraprovidênciaadotadapelaadministraçãomunicipalapós aocorrênciadasfalhasdoSPCCnaenchentedemaiode2024,relativaàcriaçãoda"Diretoria deProteçãoContraCheiaseDrenagemUrbana",pormeiodoDecretonº23120/202536Tal iniciativacorroboraaexistênciadefalhasnaestruturaçãoorganizacionalefetivadapelos Decretosnº21398/2022e21539/2022equenãoforamrevistasnasuagestão
Ademais,houveaperdaderecursosfederaisdoPACPrevenção(R$122milhões), quepreviaadestinaçãoderecursosparamelhoriasestruturais,aumentodacapacidade, aquisiçãodegeradoresdeenergiaeampliaçãodecasasdebombaseàmacrodrenagemdo arroioMoinho(ProgramaDrenaPoa)Asconclusõesregistradasnasindicânciainstaurada(peça 6718645)apontaramdiversosproblemasnoplanejamentodosprojetos,dentreosquaisafalta deestruturadepessoalparaacompanhamentoepriorizaçãodosprojetosTaiscircunstâncias sãoagravantesedemandavammaioratençãonaestruturaçãoorganizacionaledepessoalpara viabilizaraelaboraçãoeexecuçãodosprojetospertinentes
Responsabilização
Responsável1
Matrizderesponsabilização
Nome: SebastiãodeAraújoMelo(CPF:159697971-20)
Função: PrefeitoMunicipal
Períodode exercício: 01/01/2021a31/12/2024
Conduta:
Nexode causalidade:
Nãopromoveuumaestruturaçãoorganizacionaladequadaparaaassunção,peloDMAE,das competênciasrelacionadasaossistemasdedrenagem,deesgotopluvialedeproteçãocontra cheias.
Acondutacomissivaatinenteàestruturaçãoorganizacionalinadequadadoórgão,para incorporaçãodascompetênciasrelacionadasaossistemasdedrenagem,deesgotopluvialede proteçãocontracheias,aliadaàpolíticaadotadadenãoreposiçãodepessoal,resultaramem prejuízosaoplanejamentodeprojetoseaocumprimentosatisfatóriodasdemaisatividades incumbidasaoDMAErelativasàoperação,manutençãoecontroledosistemadeproteçãocontra cheias,sendodeterminantesparaainexecuçãodasaçõesnecessáriasparaaidentificaçãodas falhasexistenteseparaofracassodoórgãonagestão,manutenção,conservaçãoeoperaçãodo sistemaConsequentemente,aausênciadasaçõesnecessárias,decorrentedasfragilidadesda estruturaçãoorganizacionalimplementada,resultouemprejuízossignificativosaoeráriomunicipal, aindanãototalmentequantificados,masquejáperfazemquantiaestimadaentreR$6aR$8 bilhões
Assinado digitalmente por: Marcelo Kipper da Silva em 14/07/25, Leandro Lobato Camargo em 14/07/25, Leandro Torres em 14/07/25, Fabio Alex Beling em 14/07/25 e outro(s). Confira a autenticidade do documento em www.tce.rs.gov.br. Identificador: PRE.FE77.2360.2A1D.FC7C.62D4.

ESTADODORIOGRANDEDOSUL TRIBUNALDECONTAS
Culpabilidade:

Eramexigíveiscondutasdiversaspeloagenteresponsável,poisnacondiçãodePrefeito Municipal,competia-lheestabeleceraestruturaorganizacionaldoDMAE(arts94,II,IV,VII,alínea cdaLeiOrgânica),comfulcronoatendimentodoprincípiodaeficiência(art37,caputda ConstituiçãoFederal),demaneiraapossibilitarosatisfatóriocumprimentodascompetências incorporadasAomissãoimplicougraveinobservânciadodeverdecuidado,afastando-sedoque eraesperadodo"administradormédio",poisasfragilidadesexistentesnaestruturaorganizacional poderiamserpercebidasporpessoadediligêncianormal,evidenciandoacaracterizaçãodeculpa graveouerrogrosseiroAprovidênciaadotadapeloagente,apósaocorrênciadasfalhasdo SistemadeProteçãoContraCheias,relativaàcriaçãodaDiretoriadeProteçãoContraCheiase DrenagemUrbana(Decretonº23120/2025),corroboraaexistênciadefalhasnaestruturação organizacionalpromovidapelosDecretosnº21398/2022e21539/2022Oagentefoitambém alertadosobreosriscosdaincorporaçãodasatividadesdoDEPpeloDMAE,emrazãodas restriçõesdacapacidadeoperacionaldoDMAE,emdecorrênciadafaltadepessoal,bemcomodo cenáriodeinsuficiênciadaremuneraçãotarifáriapararealizaçãodeobrasdeexpansão, desenvolvimentoeoperaçãodosserviçosdedrenagemedosistemadeproteçãocontracheias Talalertafoiregistradonorelatóriodeinspeçãoespecial,constantedoprocesso363-0200/19-4 Ademais,oagentetinhaplenoconhecimentodaperdaderecursosfederaisdoPACPrevenção (R$122milhões)edaabrangênciaeimportânciadoprogramaparaomunicípio,quepreviaa destinaçãoderecursosparamelhoriasestruturais,aumentodacapacidade,aquisiçãode geradoresdeenergiaeampliaçãodecasasdebombaseàmacrodrenagemdoarroiomoinho (ProgramaDrenaPoa),bemcomotinhaciênciadaexistênciadesindicânciainstaurada,a qualapontoudiversosproblemasnoplanejamentodosprojetos,dentreosquaisafaltade estruturadepessoalparaacompanhamentoepriorizaçãodosprojetosTaiscircunstânciassão agravantesedemandavammaioratençãonaestruturaçãoorganizacionaledepessoalpara viabilizaraelaboraçãoeexecuçãodosprojetospertinentesàscompetênciasincorporadas
Responsável2
Nome: NelsonMarchezanJunior(CPF:647771540-68)
Função: PrefeitoMunicipal
Períodode exercício: 01/01/2017a31/12/2020
Conduta:
Nexode causalidade:
Nãopromoveuumaestruturaçãoorganizacionaladequadaparaaassunção,peloDMAE,das competênciasrelacionadasaossistemasdedrenagem,esgotodepluviaisedeproteçãocontra cheias
Acondutacomissivaatinenteàestruturaçãoorganizacionalinadequadadoórgão,para incorporaçãodascompetênciasrelacionadasaossistemasdedrenagem,esgotodepluviaisede proteçãocontracheias,aliadaàpolíticaadotadadenãoreposiçãodepessoal,contribuiuparaos prejuízosevidenciadosnocumprimentosatisfatóriodaoperaçãodascomportasedas23EBAPs, nocontroleefuncionamentodosistemadeproteçãocontracheias(C-CONTROLE),ena manutençãoindustrialeeletromecânicadasEBAPsedemaiselementosdosistemadeproteção contracheias(GMAN)Consequentemente,aausênciadasaçõesnecessárias,decorrentedas fragilidadesdaestruturaçãoorganizacionalimplementada,resultouemprejuízossignificativosao eráriomunicipal,aindanãototalmentequantificados,masquejáperfazemquantiaestimadaentre R$6aR$8bilhões

ESTADODORIOGRANDEDOSUL TRIBUNALDECONTAS
Culpabilidade:

Eramexigíveiscondutasdiversaspeloagenteresponsável,poisnacondiçãodePrefeito Municipal,competia-lheestabeleceraestruturaorganizacionaldoDMAE(arts94,II,IV,VII,alínea cdaLeiOrgânica),comfulcronoatendimentodoprincípiodaeficiência(art37,caputda ConstituiçãoFederal),demaneiraapossibilitarosatisfatóriocumprimentodascompetências incorporadasAomissãoimplicougraveinobservânciadodeverdecuidado,afastando-sedoque eraesperadodo"administradormédio",poisasfragilidadesexistentesnaestruturaorganizacional poderiamserpercebidasporpessoadediligêncianormal,evidenciandoacaracterizaçãodeculpa graveouerrogrosseiroOagentefoitambémalertadosobreosriscosdaincorporaçãodas atividadesdoDEPpeloDMAE,emrazãodasrestriçõesdacapacidadeoperacionaldoDMAE,em decorrênciadafaltadepessoal,bemcomodocenáriodeinsuficiênciadaremuneraçãotarifária pararealizaçãodeobrasdeexpansão,desenvolvimentoeoperaçãodosserviçosdedrenageme dosistemadeproteçãocontracheiasTalalertafoiregistradonorelatóriodeinspeçãoespecial, constantedoprocesso363-0200/19-4.Ademais,durantesuagestãoocorreuaperdaderecursos federaisdoPACPrevenção(R$122milhões),quepreviaadestinaçãoderecursosparamelhorias estruturais,aumentodacapacidade,aquisiçãodegeradoresdeenergiaeampliaçãodecasasde bombaseàmacrodrenagemdoarroioMoinho(ProgramaDrenaPoa),bemcomofoicientificado dasconclusõesregistradasnasindicânciainstaurada,aqualapontoudiversosproblemasno planejamentodosprojetos,dentreosquaisafaltadeestruturadepessoalparaacompanhamento epriorizaçãodosprojetosTaiscircunstânciassãoagravantesedemandavammaioratençãona estruturaçãoorganizacionaledepessoalparaviabilizaraelaboraçãoeexecuçãodosprojetos pertinentesàscompetênciasincorporadas
Responsável3
Nome: DarcyNunesdosSantos(CPF:609533650-34)
Função: DiretorGeral
Períodode
exercício: 08/03/2018a31/12/2020
Conduta:
Nexode causalidade:
Nãopromoveuumaestruturaçãoorganizacionaladequadaparaaassunção,peloDMAE,das competênciasrelacionadasaossistemasdedrenagem,deesgotopluvialedeproteçãocontra cheias
Acondutacomissivaatinenteàestruturaçãoorganizacionalinadequadadoórgão,para incorporaçãodascompetênciasrelacionadasaossistemasdedrenagem,deesgotopluvialede proteçãocontracheias,aliadaàpolíticaadotadadenãoreposiçãodepessoal,resultaramem prejuízosaoplanejamentodeprojetoseaocumprimentosatisfatóriodasdemaisatividades incumbidasaoDMAErelativasàoperação,manutençãoecontroledosistemadeproteçãocontra cheias,sendodeterminantesparaainexecuçãodasaçõesnecessáriasparaaidentificaçãodas falhasexistenteseparaofracassodoórgãonagestão,manutenção,conservaçãoeoperaçãodo sistemaConsequentemente,aausênciadasaçõesnecessárias,decorrentedasfragilidadesda estruturaçãoorganizacionalimplementada,resultouemprejuízossignificativosaoeráriomunicipal, aindanãototalmentequantificados,masquejáperfazemquantiaestimadaentreR$6aR$8 bilhões

ESTADODORIOGRANDEDOSUL TRIBUNALDECONTAS DIREÇÃODECONTROLEEFISCALIZAÇÃO SERVIÇODEAUDITORIADEPORTOALEGRE
Culpabilidade:

Eramexigíveiscondutasdiversaspeloagenteresponsável,poisnacondiçãodeDiretor-Geral, competia-lheestabeleceraestruturaorganizacionaldoDMAE,promovendoaatualizaçãodo RegimentoGeraldodepartamento,devendodisporsobreascompetênciasdetodasasunidades detrabalho(Decretonº20229/2019,artigo4º),comfulcronoatendimentodoprincípioda eficiência(art37,caputdaConstituiçãoFederal),demaneiraapossibilitarosatisfatório cumprimentodascompetênciasincorporadasAomissãoimplicougraveinobservânciadodever decuidado,afastando-sedoqueeraesperadodo"administradormédio",umavezqueas fragilidadesexistentesnaestruturaorganizacionalpoderiamserpercebidasporpessoade diligêncianormal,evidenciandoacaracterizaçãodeculpagraveouerrogrosseiroOagentefoi tambémalertadosobreosriscosdaincorporaçãodasatividadesdoDEPpeloDMAE,emrazão dasrestriçõesdacapacidadeoperacionaldoDMAE,emdecorrênciadafaltadepessoal,bem comodocenáriodeinsuficiênciadaremuneraçãotarifáriapararealizaçãodeobrasdeexpansão, desenvolvimentoeoperaçãodosserviçosdedrenagemedosistemadeproteçãocontracheias. Talalertafoiregistradonorelatóriodeinspeçãoespecial,constantedoprocesso363-0200/19-4 Ademais,duranteoperíododesuagestão,ocorreuaperdaderecursosfederaisdoPAC Prevenção(R$122milhões),quepreviaadestinaçãoderecursosparamelhoriasestruturais, aumentodacapacidade,aquisiçãodegeradoresdeenergiaeampliaçãodecasasdebombaseà macrodrenagemdoarroioMoinho(ProgramaDrenaPoa)Asconclusõesregistradasna sindicânciainstaurada,apontaramdiversosproblemasnoplanejamentodosprojetos,dentreos quaisafaltadeestruturadepessoalparaacompanhamentoepriorizaçãodosprojetosTais circunstânciassãoagravantesedemandavammaioratençãonaestruturaçãoorganizacionalede pessoalparaviabilizaraelaboraçãoeexecuçãodosprojetospertinentesàscompetências incorporadas
Responsável4
Nome: AlexandredeFreitasGarcia(CPF:826508450-15)
Função: DiretorGeral
Períodode exercício: 01/01/2021a22/01/2023
Conduta:
Nexode causalidade:
Nãopromoveuumaestruturaçãoorganizacionaladequadaparaaassunção,peloDMAE,das competênciasrelacionadasaossistemasdedrenagem,deesgotopluvialedeproteçãocontra cheias
Acondutacomissivaatinenteàestruturaçãoorganizacionalinadequadadoórgão,para incorporaçãodascompetênciasrelacionadasaossistemasdedrenagem,deesgotopluvialede proteçãocontracheias,aliadaàpolíticaadotadadenãoreposiçãodepessoal,resultaramem prejuízosaoplanejamentodeprojetoseaocumprimentosatisfatóriodasdemaisatividades incumbidasaoDMAErelativasàoperação,manutençãoecontroledosistemadeproteçãocontra cheias,sendodeterminantesparaainexecuçãodasaçõesnecessáriasparaaidentificaçãodas falhasexistenteseparaofracassodoórgãonagestão,manutenção,conservaçãoeoperaçãodo sistemaConsequentemente,aausênciadasaçõesnecessárias,decorrentedasfragilidadesda estruturaçãoorganizacionalimplementada,resultouemprejuízossignificativosaoeráriomunicipal, aindanãototalmentequantificados,masquejáperfazemquantiaestimadaentreR$6aR$8 bilhões
Assinado digitalmente por: Marcelo Kipper da Silva em 14/07/25, Leandro Lobato Camargo em 14/07/25, Leandro Torres em 14/07/25, Fabio Alex Beling em 14/07/25 e outro(s). Confira a autenticidade do documento em www.tce.rs.gov.br. Identificador: PRE.FE77.2360.2A1D.FC7C.62D4.

ESTADODORIOGRANDEDOSUL TRIBUNALDECONTAS
DIREÇÃODECONTROLEEFISCALIZAÇÃO SERVIÇODEAUDITORIADEPORTOALEGRE
Culpabilidade:

Eramexigíveiscondutasdiversaspeloagenteresponsável,poisnacondiçãodeDiretor-Geral, competia-lheestabeleceraestruturaorganizacionaldoDMAE,promovendoaatualizaçãodo RegimentoGeraldodepartamento,devendodisporsobreascompetênciasdetodasasunidades detrabalho(Decretonº20758/2020,artigo274),comfulcronoatendimentodoprincípioda eficiência(art37,caputdaConstituiçãoFederal),demaneiraapossibilitarosatisfatório cumprimentodascompetênciasincorporadasAomissãoimplicougraveinobservânciadodever decuidado,afastando-sedoqueeraesperadodo"administradormédio",umavezqueas fragilidadesexistentesnaestruturaorganizacionalpoderiamserpercebidasporpessoade diligêncianormal,evidenciandoacaracterizaçãodeculpagraveouerrogrosseiroOagentefoi tambémalertadosobreosriscosdaincorporaçãodasatividadesdoDEPpeloDMAE,emrazão dasrestriçõesdacapacidadeoperacionaldoDMAE,emdecorrênciadafaltadepessoal,bem comodocenáriodeinsuficiênciadaremuneraçãotarifáriapararealizaçãodeobrasdeexpansão, desenvolvimentoeoperaçãodosserviçosdedrenagemedosistemadeproteçãocontracheias. Talalertafoiregistradonorelatóriodeinspeçãoespecial,constantedoprocesso363-0200/19-4 Ademais,houveaperdaderecursosfederaisdoPACPrevenção(R$122milhões),quepreviaa destinaçãoderecursosparamelhoriasestruturais,aumentodacapacidade,aquisiçãode geradoresdeenergiaeampliaçãodecasasdebombaseàmacrodrenagemdoarroioMoinho (ProgramaDrenaPoa)Asconclusõesregistradasnasindicânciainstauradaapontaramdiversos problemasnoplanejamentodosprojetos,dentreosquaisafaltadeestruturadepessoalpara acompanhamentoepriorizaçãodosprojetosTaiscircunstânciassãoagravantesedemandavam maioratençãonaestruturaçãoorganizacionaledepessoalparaviabilizaraelaboraçãoe execuçãodosprojetospertinentesàscompetênciasincorporadas
Responsável5
Nome: MauricioLoss(CPF:011042390-94)
Função: Diretor-Geral
Períodode exercício: 23/01/2023a31/12/2024
Conduta:
Nexode causalidade:
Nãoadotouprovidênciasnosentidodepromoverumaestruturaçãoorganizacionaladequadapara aassunção,peloDMAE,dascompetênciasrelacionadasaossistemasdedrenagem,deesgoto pluvialedeproteçãocontracheias
Acondutacomissivaatinenteàestruturaçãoorganizacionalinadequadadoórgão,para incorporaçãodascompetênciasrelacionadasaossistemasdedrenagem,deesgotopluvialede proteçãocontracheias,aliadaàpolíticaadotadadenãoreposiçãodepessoal,resultaramem prejuízosaoplanejamentodeprojetoseaocumprimentosatisfatóriodasdemaisatividades incumbidasaoDMAErelativasàoperação,manutençãoecontroledosistemadeproteçãocontra cheias,sendodeterminantesparaainexecuçãodasaçõesnecessáriasparaaidentificaçãodas falhasexistenteseparaofracassodoórgãonagestão,manutenção,conservaçãoeoperaçãodo sistemaConsequentemente,aausênciadasaçõesnecessárias,decorrentedasfragilidadesda estruturaçãoorganizacionalimplementada,resultouemprejuízossignificativosaoeráriomunicipal, aindanãototalmentequantificados,masquejáperfazemquantiaestimadaentreR$6aR$8 bilhões
Culpabilidade:
Eramexigíveiscondutasdiversaspeloagenteresponsável,poisnacondiçãodeDiretor-Geral, competia-lheestabeleceraestruturaorganizacionaldoDMAE,solicitandoalteraçõesno RegimentoGeralenormatizarodetalhamentodascompetênciasdecadaunidadedetrabalho (Decretonº21539/2022,artigo191),comfulcronoatendimentodoprincípiodaeficiência(art37, caputdaConstituiçãoFederal),demaneiraapossibilitarosatisfatóriocumprimentodas competênciasincorporadasNoentanto,oagentenãoadotouprovidênciasnosentidoda atualizaçãodaestruturaorganizacionaldoDMAE,visandoàadequaçãodoórgãoparao cumprimentodascompetênciasincorporadasdoextintoDEPAomissãoimplicougrave inobservânciadodeverdecuidado,afastando-sedoqueeraesperadodo"administradormédio", umavezqueasfragilidadesexistentesnaestruturaorganizacionalpoderiamserpercebidaspor pessoadediligêncianormal,evidenciandoacaracterizaçãodeculpagraveouerrogrosseiro Ademais,houveaperdaderecursosfederaisdoPACPrevenção(R$122milhões),quepreviaa destinaçãoderecursosparamelhoriasestruturais,aumentodacapacidade,aquisiçãode geradoresdeenergiaeampliaçãodecasasdebombaseàmacrodrenagemdoarroioMoinho (ProgramaDrenaPoa)Asconclusõesregistradasnasindicânciainstauradaapontaramdiversos problemasnoplanejamentodosprojetos,dentreosquaisafaltadeestruturadepessoalpara acompanhamentoepriorizaçãodosprojetosTaiscircunstânciassãoagravantesedemandavam maioratençãonaestruturaçãoorganizacionaledepessoalparaviabilizaraelaboraçãoe execuçãodosprojetospertinentesàscompetênciasincorporadas
Assinado digitalmente por: Marcelo Kipper da Silva em 14/07/25, Leandro Lobato Camargo em 14/07/25, Leandro Torres em 14/07/25, Fabio Alex Beling em 14/07/25 e outro(s). Confira a autenticidade do documento em www.tce.rs.gov.br. Identificador: PRE.FE77.2360.2A1D.FC7C.62D4.

ESTADODORIOGRANDEDOSUL TRIBUNALDECONTAS
DIREÇÃODECONTROLEEFISCALIZAÇÃO SERVIÇODEAUDITORIADEPORTOALEGRE
Notas
1Situaçãoem24/04/2025
2DocumentoapresentadoemrespostaaRDI641511

3AsunidadesorganizacionaisexistentesnoDEPforammantidasnasSecretariasMunicipais criadas(SMSURBeSMIM)atéaefetivaassunçãodascompetênciaspeloDMAE
4TambémdisponibilizadocomorespostaaRDI641506
5Disponívelem:http://leismunicipais/kzvpu
6AredaçãodoartigoapresentaincongruênciasaopreverasubordinaçãodosetoraoEscritóriode GestãodeProjetosEspeciais,oqualdeixoudeexistirapartirdoDecretonº21599/2022
7AGDCO(GerênciadeDistribuiçãoeCondução)integravaaDiretoriadeOperaçõesnaestrutura organizacionalanterior,promovidapeloDecretonº20758/2020
8AscompetênciasatribuídasaessasgerênciasestavamantesacargodaSMIM,sendo gradualmenteassumidaspeloDMAE,apartirdapublicaçãodasLeisMunicipaisnº12504/2019 e12939/2021ASMIMfoicriadapelaLeiComplementarnº810/2017eextintapelaLei Complementarnº897/2021,queatribuiuaoDMAEassuascompetências,conformedispostono seuart14:"Aformulação,coordenação,articulaçãoeexecuçãodeprojetosdeobraspúblicas municipaisdeampliaçãodasestruturasexistentesdomanejodeáguaspluviaisurbanase controledecheias,bemcomoasuamanutençãoeconservação,nostermosdaLeinº12504,de 24dejaneirode2019,ficamsobacoordenaçãodoDepartamentoMunicipaldeÁguaeEsgotos (DMAE)atéqueoExecutivoMunicipal,medianteencaminhamentodeprojetodelei,estruturea incorporaçãodefinitivadestascompetênciaspeloDMAE"
9Videarts97e99doDecretonº21539/2022Emconsultaaoreferidodecretoverifica-seque nãohouveadevidaatualizaçãoparaprevisãodasatribuiçõesdaGerênciadeObras(GEPO)e daGerênciadeProjetos(GPRO),demodoqueoart99aindaprevêasatribuiçõesdaextinta GerênciadeProjetoseObras,quedetinhaoconjuntodecompetênciasdeambasasgerências criadas
10Disponívelem:http://leismunicipais/quwpe
11Disponívelem:http://leismunicipais/suezk
12Oartigo14estabeleceuexpressamenteorepassedascompetências,atéaincorporação definitivapeloDMAE,ocorridacomapublicaçãodaLeinº12939/2021Art14Aformulação, coordenação,articulaçãoeexecuçãodeprojetosdeobraspúblicasmunicipaisdeampliaçãodas estruturasexistentesdomanejodeáguaspluviaisurbanasecontroledecheias,bemcomoasua manutençãoeconservação,nostermosdaLeinº12504,de24dejaneirode2019,ficamsoba coordenaçãodoDepartamentoMunicipaldeÁguaeEsgotos(DMAE)atéqueoExecutivo Municipal,medianteencaminhamentodeprojetodelei,estrutureaincorporaçãodefinitivadestas competênciaspeloDMAEDisponívelem:http://leismunicipais/hiyvb 13AassunçãodefinitivafoiformalizadacompublicaçãodaLeiMunicipalnº12939,de23de Dezembrode2021,porémascedênciasdosservidoresocorreramemmomentosdistintos, iniciando-seemabril/2019,continuandoemsetembro/2021eterminandoemmaio/2023
14InformaçõesobtidasjuntoaoExecutivoMunicipal,emrespostaaRDI641511 1520Operários,11Pedreiros,7Instaladores,6Operários(CLT),6OperáriosEspecializados,5 OperadoresdeMáquinas,5Apontadores,2AuxiliaresdeServiçosTécnicose1Eletricista 161Professor,1AuxiliardeServiçosGerais,1Telefonistae1Porteiro
17Situaçãoem01/09/2024
18Situaçãoem31/12decadaumdosexercíciosParaoexercíciode2024,considerou-sea situaçãoem30/04/2024
19Oprojetovisavaoincrementode04Arquitetose32Engenheiros
20Oprojetovisavaoincrementode07Arquitetose31Engenheiros,númerosexatosao apresentadocomonecessidadedecontrataçãotemporária
21ASeçãodeGerenciamentodoSistemadeProteçãoContraCheiasdoDEPtambémera compostaapenasporesseservidorquandodaextinçãodoórgão
22.OfícioDCFnº09196/2019,de08/11/2019.
23Disponívelem:http://leismunicipais/oxlqa
24Disponívelem:http://leismunicipais/eyoht
25AmbasvinculadasàGerênciadeDistribuiçãoeCondução(GDCO),daDiretoriadeOperações (DO)
26ODecretoentrouemvigor30diasapósadatadepublicação Disponívelem: http://leismunicipais/kzvpu
27AmbasvinculadasàGerênciadeDistribuiçãoeCondução(GDCO),daDiretoriadeTratamento 165
Assinado digitalmente por: Marcelo Kipper da Silva em 14/07/25, Leandro Lobato Camargo em 14/07/25, Leandro Torres em 14/07/25, Fabio Alex Beling em 14/07/25 e outro(s). Confira a autenticidade do documento em www.tce.rs.gov.br. Identificador: PRE.FE77.2360.2A1D.FC7C.62D4.

ESTADODORIOGRANDEDOSUL TRIBUNALDECONTAS
DIREÇÃODECONTROLEEFISCALIZAÇÃO SERVIÇODEAUDITORIADEPORTOALEGRE
deÁguaeEsgotos(DT)
28Disponívelem:http://leismunicipais/22oxt
29OfícioDCFnº635/2019
30Disponívelem:http://leismunicipais/eyoht

31AmbasvinculadasàGerênciadeDistribuiçãoeCondução(GDCO),daDiretoriadeOperações (DO)
32ODecretoentrouemvigor30diasapósadatadepublicação Disponívelem: http://leismunicipais/kzvpu
33AmbasvinculadasàGerênciadeDistribuiçãoeCondução(GDCO),daDiretoriadeTratamento deÁguaeEsgotos(DT)
34Disponívelem:http://leismunicipais/22oxt
35AmbasvinculadasàGerênciadeDistribuiçãoeCondução(GDCO),daDiretoriadeTratamento deÁguaeEsgotos(DT)
36Disponívelem:http://leismunicipais/22oxt
5.3.2FaltadeInvestimentoseProjetosnaMelhoriadoSPCC
Situaçãoencontradapelaequipedeauditoria
Relativamenteaosaspectosorçamentáriosefinanceirosdaspolíticaspúblicas atinentesaossistemasdeesgotospluviais,dedrenagemedeproteçãocontra enchentes,conformedadosinformadosaoTCE/RSpelomunicípionoSistemadeInformações paraAuditoriaePrestaçãodeContas-SIAPC1,houveaseguinteexecuçãoorçamentáriafinanceira,noperíodode2018a2023:
Ação3611/PPA-MELHORIANAINFRAESTRUTURAPARAMANEJODEÁGUASPLUVIAIS URBANAS
CódigoProjetoAtividade01756
Descrição:Elaboraçãodeprojetoseexecuçãodeobrasdemelhoriadosistemadedrenagem pluvialdoMunicípio.
ExecutivoMunicipal(valoresemR$)
Ano DotaçãoInicial Autorizada(LOA) Empenho Liquidação
Pagamento (Total) Pagamento RestosaPagar
2020 42534282,00 22406374,64 22255302,27 21852534,79 8685679,02 2021 56090233,00 19818660,22 18830682,99 18791622,31 11266689,72 2022 43741266,00 1454010,53 1281997,48 1281997,48 1281997,48 2023 43266792,00 315916,85 315916,85 315916,85 315916,85
DMAE(valoresemR$)
Ano DotaçãoInicial Autorizada (LOA) Empenho Liquidação Pagamento (Total) Pagamento RestosaPagar
2022 43741266,00 11103334,60 8350315,67 7508903,47 0,00 2023 43266792,00 24454863,22 19620299,36 19620299,36 7175769,44
Ação3000/3613/PPA-MELHORIANOSISTEMADEPROTEÇÃOCONTRACHEIAS2
CódigoProjetoAtividade01757
Descrição:Elaboraçãodeprojetoseexecuçãodeobrasdemelhoriasdosistemadeproteção 166
Assinado digitalmente por: Marcelo Kipper da Silva em 14/07/25, Leandro Lobato Camargo em 14/07/25, Leandro Torres em 14/07/25, Fabio Alex Beling em 14/07/25 e outro(s). Confira a autenticidade do documento em www.tce.rs.gov.br. Identificador: PRE.FE77.2360.2A1D.FC7C.62D4.

contracheiasdoMunicípio
ExecutivoMunicipal(valoresemR$)

Ano Dotaçãoinicial Autorizada(LOA) Empenho Liquidação Pagamento (Total) Pagamento RestosaPagar
2018 13689830,00 282554,31 282554,31 282554,31
2019 63379546,00
DMAE(valoresemR$)
Ano Dotaçãoinicial Autorizada(LOA) Empenho Liquidação Pagamento (Total) Pagamento RestosaPagar
Ação3610/PPA-MANUTENÇÃODOSISTEMADEDRENAGEMPLUVIAL
CódigoProjetoAtividade02797
Descrição:Manutençãopreventivaecorretivadasredesdedrenagempluvialintegrantesdo sistemadedrenagemdaCidade,garantindooseuplenofuncionamento.
ExecutivoMunicipal(valoresemR$)
Ano DotaçãoInicial Autorizada (LOA) Empenho Liquidação Pagamento (Total) Pagamento RestosaPagar
2020 48900000,00 45547835,91 40614667,29 40210514,15 5456401,75
2021 56739000,00 52066907,73 41351148,65 41322165,48 5558101,27
DMAE(valoresemR$)
Ano Dotaçãoinicial Autorizada (LOA) Empenho Liquidação Pagamento (Total) Pagamento RestosaPagar
2020 48900000,00 45547835,91 40614667,29 40210514,15 5456401,75 2021 56739000,00 52066907,73 41351148,65 41322165,48 5558101,27 2022 56402020,00 67312038,86 55460143,74 54597482,21 9838894,62 2023 61449001,00 82999364,60 70569097,21 70569097,21 11952980,18
Ação3604/PPA-DRAGAGEMEDESASSOREAMENTODEARROIOS CódigoProjetoAtividade4128
Descrição:Dragagemedesassoreamentodosarroioslicenciados,tratandoedestinando adequadamenteosresíduosretirados
DMAE(valoresemR$)

ESTADODORIOGRANDEDOSUL TRIBUNALDECONTAS DIREÇÃODECONTROLEEFISCALIZAÇÃO SERVIÇODEAUDITORIADEPORTOALEGRE
Ano DotaçãoInicial Autorizada(LOA)

2020 5240000,00 1403184,75 934854,76 934854,76 0,00
2021 8380920,00 1391000,00 629704,89
2022 9802000,00 16526567,14 10963766,85
2023 13501000,00 29056207,91 27531781,99
Aomesmotempoemqueseobservouumaumentogradativodaaplicaçãode recursosnosprojetos"Manutençãodosistemadedrenagempluvial"e"Dragageme Desassoreamentodearroios",verificou-sequenoprojeto"MelhorianoSistemadeProteção ContraCheias",alémdaaplicaçãotersidomuitoinferioraoestabelecidonasleisorçamentárias, nosexercíciosde2018a2021,constatou-seumexpressivodecréscimodaprevisão orçamentáriae,consequentemente,daaplicaçãoderecursosnosexercíciosde2022a2023
Noponto,aindaquenoplanoplurianualtenhasidoprojetadoodispêndiodo montantetotaldeR$334747600,00,paraoperíodode2022a2025(peça6718526,p200),as leisorçamentáriasdosexercíciosde2022a2024estabeleceramvaloresirrisóriosnaordemde R$3000,00aR$4000,00porano(peça6718527,p41,310e311)(peça6718536,p30,332 e333)(peça6718528,p288e289)Nessediapasão,asprópriasmetasdoprogramatambém foramdiminuídaspormeiodaLeideDiretrizesOrçamentáriaseLeiOrçamentáriaAnualde2023 (peça6718529,p1e25)
Talcenáriopodeserexplicadopelainexistênciadeprojetosvoltadosparamelhorias dosistemadeproteçãocontracheias,dadaainsuficiênciadoquadrotécnicoexistentenaárea deplanejamentodoDMAE(GerênciadePlanejamento-GPLA),consoantetratado,nopresente relatório,noitemsobreasfragilidadesnaincorporaçãodoDEPpeloDMAE.
Nocasodoperíodoorçamentárioimediatamenteanterior(2018a2021),que precedeuaassunçãodefinitivapeloDMAEdascompetênciasatinentesaoplanejamentode projetosdeobrasdossistemasdedrenagemedeproteçãocontracheias,tambémnãoforam seguidasasdiretrizesdeinvestimentosestabelecidasnoplanoplurianual(peça6718530,p. 166),queprojetouodispêndiodeR$315470000,00noperíodo
AindaqueosinvestimentosnaampliaçãoequalificaçãodoSPCCtenhamsido bastantedeficitáriosnosanosanalisados,énecessáriooregistrodeque,desdequeoDMAE assumiuaresponsabilidadepelosistema,houvearecomposiçãodasEBAPsparauma capacidadepróximaàdeprojeto
Emsetembrode2016,àsvésperasdaextinçãodoDEP,asEBAPsseencontravam emsituaçãobastantecrítica,comapenas44%dacapacidadedebombeamentoinstalada operante,conformeépossívelextrairdorelatóriodeauditoriaqueinaugurouaInspeção Especial7015-0200/17-0(peça6718551,p34-40)Aconclusãonaquelaoportunidadefoide que:
[]diantedeumcenárioemquemenosdametadedosistemade bombeamentoencontra-seoperante,émuitoprovávelqueacidadedePorto 168

ESTADODORIOGRANDEDOSUL TRIBUNALDECONTAS
DIREÇÃODECONTROLEEFISCALIZAÇÃO SERVIÇODEAUDITORIADEPORTOALEGRE

Alegresofracompontoscríticosdealagamento,tantoemdiasdegrandes cheiasdoGuaíba,comoemdiascomprecipitaçõesmaisintensaselocalizadas naregiãometropolitana
ComaassunçãodaresponsabilidadedadrenagemurbanapeloDMAE,a restauraçãodacapacidadeoperacionaldasEBAPsfoipriorizada,movimentoqueculminoucom aprevisãodeindicadorexclusivonoProgramadeMetasPROMETA2021-2024(peça6718537, p27)erepercutiunoPlanoPlurianual2022-2025(peça6718526,p43)porintermédiodameta nº18:
Meta18:Manteracapacidadedebombeamentodascasasdebombaspluviais em85%ProgramanoPPA:GestãodaCidadeAçãonº3610-MANUTENÇÃO DOSISTEMADEDRENAGEMPLUVIAL
Ação:MANUTENÇÃODOSISTEMADEDRENAGEMPLUVIALManutenção preventivaecorretivadasredesdedrenagempluvialintegrantesdosistemade drenagemdaCidade,garantindooseuplenofuncionamento
3610-Finalidade:Manterasredespluviaisdesassoreadaseemperfeitas condiçõesdefuncionamento,dandoescoamentoàságuaspluviais,evitando situaçõesdealagamentosnaCidade,bemcomoasdecorrênciasàsaúdee segurançapúblicas
Aofinalde2023,oindicadoralcançava85,67%(peça6718552,p19),o quedemonstravaumacapacidadedebombeamentosignificativamentemelhordoqueocenário em2016Navésperadagrandeenchente,oSistemadeMonitoramentoEstratégico(SME)do ExecutivodePortoAlegre3indicavaumpercentualoperacionalde88,61%dacapacidade instalada(peça6718553),oque,noentanto,nãoevitouainundaçãodacapital,dadaa defasagemsistêmicadoSPCC
EmboratenhamsidoalocadosrecursosparaarestauraçãodasEBAPs,asações adotadaspelasadministraçõesmunicipaisevidenciamclaramentequeaprioridadefoi direcionadamuitomaisàdrenagemurbanaemsituaçõesdechuvasintensas,porémde curtaduração,doqueàplenafuncionalidadedeumefetivosistemadeproteçãocontra cheias(SPCC)Paraumsistemacomoesse,éfundamentalconsideraradinâmicadabacia hidrográficaeeventospluviométricoscaracterizadosporvolumeselevadosdistribuídosaolongo deperíodosprolongadosAausênciadereferênciaexplícitaaoSPCCnadescriçãodaação edametaincluídasnoPPA,jáanteriormentetranscritas,reforçaessaconstatação
Estatisticamente,afrequênciadetranstornosassociadosàdeficiênciade bombeamentodasEBAPsémuitomaiorquandoconsideradasaschuvasintensasedecurta duração,asquaiscausamalagamentospontuaiseprecisamdedrenagemforçadapelasEBAPs nasáreasdebaixadeclividadedoterreno.Contudo,numcenáriocomoodacheiade2024,de menorprobabilidadedeocorrência,masplenamentepossível,amagnitudedostranstornosé incomparável,sendonotóriaecríticaadeficiênciadaculturaderiscoquetransparecena gestãopúblicasobexameenaspeçasdeplanejamento.Sobtalperspectiva,depreende-se queeventosextremosdecheiaeramumapossibilidadenegligenciadapeloplanejamento municipal,aindaqueprevisíveisemitigáveiscomaestruturaconstruídaemPortoAlegre(ao

ESTADODORIOGRANDEDOSUL TRIBUNALDECONTAS DIREÇÃODECONTROLEEFISCALIZAÇÃO SERVIÇODEAUDITORIADEPORTOALEGRE
menosnocentro,oSPCCpreviaumacotadeproteçãode6m)

Portanto,conclui-seque,emboraoMunicípiotenhaaplicadorecursosemredesde drenagemenaoperaçãoemanutençãodasEBAPsedascomportas,nãoatentouparaa realizaçãodeprojetose,consequentemente,paraarespectivaexecuçãoorçamentária, adequadaesuficiente,visandoaampliaçãoeatualizaçãodoSistemadeProteçãoContraCheias (SPCC)Ouseja,negligenciou-seanecessidadedetratamentosistêmicodoSPCCafim demanter,qualificareampliaraefetivadeproteçãodecheiasdacapitaldiantedeumeventoem queaságuasdoGuaíbaexcedessemacotacrítica
Paramelhorilustrar,cabereferirque,noperíodode2018a2023,apenas01(um) projetorelacionadoàproteçãocontracheias(modalidadedemanejodeáguaspluviais-Túnel Verde-execuçãodecanal,diquesecasasdebombas)foisubmetidoàautorizaçãodoPoder LegislativoparafinsdecontrataçãodeoperaçãodecréditojuntoaoBancoRegionalde DesenvolvimentodoExtremoSul(BRDE)4Nomesmoperíodoomunicípioobtevediversas autorizaçõesparaofinanciamentodeoutrosprojetos,oquedenotaqueexistiamoportunidades deinvestimentospelamunicipalidadenoSPCC:
Lei Autorizativa Objeto
Leinº 12490/20185
AutorizaçãoparacontrataçãodefinanciamentojuntoàCaixaEconômicaFederalatéovalordeR$ 270milhõesdereaisparaasoperaçõesdecréditodoProgramaAvançarCidades-Saneamento,do MinistériodasCidades,nostermosdaInstruçãoNormativanº22/2018,queregulamentaoprocesso seletivoparacontrataçãodeoperaçõesdecréditoparaaexecuçãodeaçõesdesaneamentoMutuáriosPúblicos
Leinº 12605/20196
AutorizaçãoparacontrataçãodefinanciamentojuntoaoBancoNacionaldeDesenvolvimento EconômicoeSocial(BNDES)eaoBancoRegionaldeDesenvolvimentodoExtremoSul(BRDE),até ovalordeR$120milhõesdereaisparaasoperaçõesdecréditodalinhadefinanciamento ModernizaçãodaAdministraçãoTributáriaedaGestãodosSetoresSociaisBásicos(PMAT)
Leinº 12606/20197
AutorizaçãoparacontrataçãodefinanciamentojuntoaoBancoRegionaldeDesenvolvimentodo ExtremoSul(BRDE),atéovalordeR$95000000,00,noâmbitodoprogramaAvançarCidadesSaneamento,doMinistériodoDesenvolvimentoRegional,destinadosàcontrataçãodeoperaçõesde créditoparaaexecuçãodeaçõesdesaneamentonamodalidadesAbastecimentodeÁguaAmpliaçãodeSubsistemasdoSistemadoAbastecimentoSãoJoãoeEstudoseProjetos/Manejode ResíduosSólidos-CentraldeTratamentodeResíduosSólidosnoMunicípiodePortoAlegre/RS
Leinº 12607/20198
AutorizaçãoparacontrataçãodefinanciamentojuntoàCaixaEconômicaFederal,atéovalordeR$ 61540483,00,paraasoperaçõesdecréditodoProgramadeAtendimentoHabitacionalatravésdo PoderPúblico(Pró-Moradia)doMinistériodeDesenvolvimentoRegional,comaplicaçãomodalidade UrbanizaçãoeRegularizaçãodeAssentamentosPrecáriosparaaconstruçãodosempreendimentos CondomínioCelClaudino,CondomínioTamandaréIeCondomínioTamandaréII,localizadosno BairroCristalenoBairroCamaquãdoMunicípiodePortoAlegre
Leinº 12608/20199
Leinº 12635/2019 10
Leinº 12657/2019 11
AutorizaçãoparacontrataçãodefinanciamentojuntoaoBancoNacionaldeDesenvolvimento EconômicoeSocial(BNDES),atéovalordeR$82000000,00,paraasoperaçõesdecréditoda linhadefinanciamentoBNDESFINEMSegurançaPública,destinadosafinanciaroprojetoPorto AlegreSegura
AutorizaçãoparacontrataçãodefinanciamentojuntoaoBancodoBrasilSA, atéovalordeR$50000000,00,paraasoperaçõesdecréditonalinhadefinanciamentoPrograma EficiênciaMunicipal,destinadosafinanciarObrasdeInfraestruturaViária-Pavimentação
AutorizaçãoparacontrataçãodefinanciamentojuntoàCaixaEconômicaFederal,atéovalordeR$ 130000000,00,paraasoperaçõesdecréditonalinhaFinanciamentoàInfraestruturaeao Saneamento(Finisa),destinadosafinanciarObrasdeInfraestruturaViária-Pavimentação 170
Assinado digitalmente por: Marcelo Kipper da Silva em 14/07/25, Leandro Lobato Camargo em 14/07/25, Leandro Torres em 14/07/25, Fabio Alex Beling em 14/07/25 e outro(s). Confira a autenticidade do documento em www.tce.rs.gov.br. Identificador: PRE.FE77.2360.2A1D.FC7C.62D4.

Leinº 12658/2019
12
Leinº 12904/2021
13
Leinº 12951/2022
14
Leinº 13306/2022
15
Leinº 13343/2022
16
Leinº 13344/2022
17
ESTADODORIOGRANDEDOSUL TRIBUNALDECONTAS
DIREÇÃODECONTROLEEFISCALIZAÇÃO SERVIÇODEAUDITORIADEPORTOALEGRE

AutorizaçãoparacontrataçãodefinanciamentojuntoàCaixaEconômicaFederal, atéovalordeR$10000000,00,paraasoperaçõesdecréditodoProgramaAvançarCidadesMobilidadeUrbanadoMinistériodeDesenvolvimentoRegional,comaplicaçãoeminvestimentosde mobilidade,nasmodalidades"TransportenãoMotorizado-ProjetoTransporteAtivo"e"Planode Mobilidade-ProjetoPesquisaOrigemeDestino(EDOM)"
AutorizaçãoparacontrataçãodeoperaçãodecréditojuntoaoBancodoBrasilSA,comgarantiada União,atéovalordeR$60000000,00,destinadosafinanciarObrasdeInfraestruturaViáriaPavimentação
AutorizaçãoparacontrataçãodefinanciamentojuntoaoBancoRegionaldeDesenvolvimentodo ExtremoSul(BRDE),atéovalordeR$45000000,00,destinadosainvestimentosemsaneamento, namodalidadeManejodeÁguasPluviais-TÚNELVERDE-EXECUÇÃODECANAL,DIQUESE CASASDEBOMBAS
AutorizaçãoparacontrataçãodefinanciamentojuntoaoBancoInteramericanodeDesenvolvimento (BID),comgarantiadaUnião,atéovalordeUS$150000000,00, destinadosàexecuçãodoProgramadeDesenvolvimentoeRecuperaçãodaInfraestruturaSocialdo MunicípiodePortoAlegre(POA+SOCIAL)
AutorizaçãoparacontrataçãodeoperaçãodecréditojuntoaoBancoInternacionalpara ReconstruçãoeDesenvolvimento/BancoMundial(BIRD-BM)eàAgênciaFrancesade Desenvolvimento(AFD),comagarantiadaUnião,atéovalorde€129600000,00,destinadosà execuçãodoProgramadeRevitalizaçãodaÁreaCentraldePortoAlegre(Centro+4D)
AutorizaçãoparacontrataçãodeoperaçãodecréditojuntoaoBancoRegionaldeDesenvolvimento doExtremoSul(BRDE),atéovalordeR$22000000,00,destinadosafinanciaroProjetoLuzdo Saber,quetratadeinstalaçãodeusinasdegeraçãodistribuídaem70(setenta)escolasmunicipaise deeficiênciaenergéticaemtodaaredemunicipaldeensino
Nomesmosentido,corroborandoaexistênciadeoportunidadesdeinvestimentos, apósaocorrênciasdoeventodecheiade2024,foiimediatamenteobtidaautorização,pormeio daLeinº13989/202418,paraacontrataçãodecréditoparainvestimentonasEBAPs,em comportas,emcortinasdeproteção,emcasasdebombas,emdiqueseemestaçõesde tratamentodeágua
NotocanteaocusteiodasatividadesincorporadaspeloDMAE,emrespostaàRDI 641506,oDMAEinformouqueareceitaanualarrecadadaem2023comaTarifadeEsgoto Pluvial(Tarifa3-pelousodasredesmistas)foideR$60308549,70(sessentamilhões, trezentoseoitomil,quinhentosequarentaenovereaisesetentacentavos),aopassoqueas despesasdecusteiototalizaramR$91.102.237,93(noventaeummilhões,centoedoismil, duzentosetrintaesetereaisenoventaetrêscentavos)easdespesascomos servidores/funcionáriosadvindosdoDEPtotalizouR$10.529.656,76(dezmilhões,quinhentose vinteenovemil,seiscentosecinquentaeseisreaisesetentaeseiscentavos)(peça6718512) (peça6718554)
Noponto,cumpreregistrarqueorelatóriodeauditoriadoProcessodeInspeção Especialnº363-0200/19-4apresentoualertasobreaexistênciaderiscosdeenfrentamentode gravesproblemasparaaimplementaçãodasnecessidadesoperacionaisedeexpansãodos serviçosdedrenagemurbanaplanejadosemPortoAlegre,tendoemvistaaausênciade remuneraçãotarifáriapararealizaçãodeobrasdeexpansão,desenvolvimentoeoperaçãodos serviçosdedrenagem,aliadaaocenáriodegravesrestriçõesorçamentáriasentãovivenciado pelaPrefeituraMunicipal
Diantedessecenáriodenotóriainsuficiênciadaremuneraçãotarifáriapara arealizaçãodeinvestimentosemobrasparaaexpansãoedesenvolvimentodossistemasde 171
Assinado digitalmente por: Marcelo Kipper da Silva em 14/07/25, Leandro Lobato Camargo em 14/07/25, Leandro Torres em 14/07/25, Fabio Alex Beling em 14/07/25 e outro(s). Confira a autenticidade do documento em www.tce.rs.gov.br. Identificador: PRE.FE77.2360.2A1D.FC7C.62D4.


esgotospluviaisedeproteçãocontracheias,eraesperadoqueosagentespúblicos responsáveisatentassemparaabuscadealternativasparaofinanciamentodoprograma governamental,hajavistasuarelevânciaparaamunicipalidadeeocaráteressencialdoserviço públicodesaneamentobásico,expressamenteestabelecidonaLeiOrgânicaMunicipal(art224)
Nestaperspectiva,oDMAEencerrouosexercíciosde2020a2023comexpressiva disponibilidadederecursosfinanceiros,quepoderiamtersidoutilizadosparafinanciar oprogramaorçamentário.Noentanto,essesvalorespermaneceramimobilizados,conforme demonstradonarespostaapresentadadoórgãoàRDI640814(peça6718555):
1-InformaradisponibilidadedecaixadoDMAEaofinaldosexercícios2020, 2021,2022,2023eprimeirosemestrede2024;
Dez/2020:R$278319454,08;
Dez/2021:R$302874050,86;
Dez/2022:R$329559960,92;
Dez/2023:R$361207773,05;
Jun/2024:R$370502464,77
Situaçãosemelhantetambémfoiobservadanoexercíciode201919,quandoa disponibilidadefinanceirapermaneceuimobilizada,apesardesersuficienteparaofinanciamento doprogramaorçamentário20,mesmoconsiderandoaparceladevaloresbloqueados,relativos aoprêmioANA/PRODES,conformedemonstradonarespostaapresentadoàRDI706978(peça 6718538)(peça6718556):
1-InformaradisponibilidadedecaixadoDMAEaofinaldosexercícios2016, 2017,2018e2019
AdisponibilidadedecaixadoDMAEaofinaldosexercícios2016,2017,2018e 2019,informamosabaixoosvalores,deacordocomosBalancetesde fechamentodeDezembro,conta11100000000000000000CAIXAE EQUIVALENTESDECAIXA:
-2016:R$154835874,61(sendoR$77476610,59valoresbloqueadosdo prêmioANA/PRODES);
-2017:R$157.437.363,08(sendoR$52.115.371,56valoresbloqueadosdo prêmioANA/PRODES);
-2018:R$191738407,78(sendoR$43730461,95valoresbloqueadosdo prêmioANA/PRODES);
-2019:R$259779011,87(sendoR$34004802,63valoresbloqueadosdo prêmioANA/PRODES)
(Grifou-se) 172

ESTADODORIOGRANDEDOSUL TRIBUNALDECONTAS
DIREÇÃODECONTROLEEFISCALIZAÇÃO SERVIÇODEAUDITORIADEPORTOALEGRE
Consequênciasparaaadministraçãoesociedade

Afaltadeprojetosvisandoaimplementaçãodemelhoriase,porconsequência,a faltadeinvestimentos,foramdeterminanteserefletiramnaausênciadeaçõesnecessáriaspara identificaçãodasfalhasexistenteseparaarealizaçãodemelhorias,ampliaçõeseatualizações noSistemadeProteçãoContraCheias
Comefeito,taisfragilidadesforamdeterminantesparaonãofuncionamentodo SPCC,queculminaramemprejuízosàsegurançaeproteçãodacidadequandodoevento climáticoocorridoemmaiode2024
Comoconsequência,aausênciadasaçõesnecessárias,decorrentedafaltade investimentoseprojetosnamelhoriadoSPCC,resultouemprejuízossignificativosaoerário municipal.Emboraaindanãototalmentequantificados,emrazãodaexistênciademilharesde açõesindividuaisedaAçãoCivilPúblicadoMinistérioPúblicoEstadual,postulandoa condenaçãodomunicípioaopagamentodeindenizaçõespordanosmateriaisemorais individuais,osprejuízos(custospúblicos),relativosaoenfrentamentodacriseevoltadosà reconstruçãoerecuperaçãoestruturaldacidade,foraminicialmenteestimadosentreR$6eR$8 bilhões,conformeestudoapresentadopelaprópriaPrefeituraMunicipal(peça6718424)
Leiseoutrasnormasaplicáveisaocaso
PrincípiodaEficiência(art37,caputdaConstituiçãoFederal);
LeiOrgânica(art94,incisosIIeX,art116eart224); LeiMunicipalnº12629/2019; LeiComplementarMunicipalnº872/2020; LeiMunicipalnº12297/2017(PlanoPlurianual2018-2021); LeiMunicipalnº12865/2021(PlanoPlurianual2022-2025); LeiFederalnº10.406/2002,artigo186; RegimentoInternodoTribunaldeContasdoEstado(AprovadopelaResoluçãonº 1028/2015),art139
Conclusõesdaequipedeauditoria
Diantedetodooexposto,conclui-sequeafaltadefinanciamentodoprograma governamental"MelhorianoSistemadeProteçãoContraCheias",foideterminanteparao fracassodoórgãonagestão,manutenção,conservaçãoeoperaçãodoSPCC
Porconseguinte,foramidentificadascondutasculposasdosseguintesagentes públicos,asquais,diantedoselementosecircunstânciasqueserãoexpostas,senãoimportam emdolo(eventual),evidenciamacaracterizaçãodeculpagraveouerrogrosseiro,tendoemvista queimplicaramgraveinobservânciadodeverdecuidadoeafastaram-sedoreferencialdo "administradormédio",poiseranotórioeperceptívelporpessoadediligêncianormala importânciadoadequadofinanciamentodoprogramagovernamentalparaaimplantaçãode melhoriasnoSPCC,diantedasinalizaçãodomunicípioparaatençãoaquestõesrelativasà resiliência,prevençãoderiscoseenfrentamentodasmudançasclimáticas(Leinº12.629/2019e LeiComplementarnº872/202021)edasdisposiçõesatinentesàmanutençãoeoperaçãodo 173

ESTADODORIOGRANDEDOSUL TRIBUNALDECONTAS
DIREÇÃODECONTROLEEFISCALIZAÇÃO SERVIÇODEAUDITORIADEPORTOALEGRE
SPCC,constantesnoPlanoMunicipaldeSaneamentoBásico22
-NelsonMarchezanJúnior(PrefeitoMunicipal)

Oagentefoidevidamentecientificadodointeiroteordorelatóriodeinspeçãoespecial constantedoprocessonº363-0200/19-4(peças2354015e2402251)23,queapontoua existênciaderiscosdeenfrentamentodegravesproblemasparaaimplementaçãodas necessidadesoperacionaisedeexpansãodosserviçosanteriormenteprestadospeloDEP, tendoemvistaafaltadecapacidadeoperacionaldoDMAEdecorrentedafaltadepessoal,bem comoaausênciaderemuneraçãotarifáriapararealizaçãodeobrasdeexpansão, desenvolvimentoeoperaçãodosserviçosdedrenagemedosistemadeproteçãocontracheias
Nesseaspecto,eramexigíveiscondutasdiversaspeloagenteresponsável,tendoem vistaqueoPrefeitoMunicipaléoagentepúblicoresponsávelpelainiciativadasleis orçamentárias(art116daLeiOrgânica)etambémpossuiacompetênciaprivativapara,em representaçãoaomunicípio,contrairempréstimos,medianteautorizaçãodoPoderLegislativo (art.94,XdaLeiOrgânica).
Emsentidocontrário,relativamenteaoprojeto"MelhorianoSistemadeProteção ContraCheias",oagentedescumpriucomasmetasestabelecidasnoPlanoPlurianual2018a 2021,quepreviaaaplicaçãodeR$315470000,00(peça6718530,p166),aopassoque,no períodode2018a2020,houvealiquidaçãodeR$503.506,12,emdespesasreferentesao programaComissooagenteagiucomnegligênciaquantoaocumprimentodoprogramade governo,emsentidocontrárioaoqueseriaesperadoapósainstituição,pormeiodaLei Municipalnº12.629/201924,deumplanoderesiliênciacomobjetivosvoltadosàprevençãode riscos,baseadonagestãoderiscosdedesastresesuareduçãoemcasodeinundação, alagamentoedeslizamento,bemcomonagarantiadeinfraestruturaadequadaàsfamílias residentesemáreasderiscos25;eapósoadventodaLeiComplementarnº872/2020, queinstituiuapolíticadesustentabilidade,enfrentamentodasmudançasclimáticaseuso racionaldaenergia,comobjetivosvoltadosàresiliência,prevençãoeadaptaçãoemitigaçãodos impactosdasmudançasclimáticasedeeventosextremos(aumentodoníveldoGuaíba, alagamentosedeslizamentos)
DuranteasuagestãofoimaterializadaaperdaderecursosfederaisdoPAC Prevenção(R$122milhões)26,queseriamdestinadosamelhoriasestruturais,aumentoda capacidade,aquisiçãodegeradoresdeenergiaeampliaçãodecasasdebombaseà macrodrenagemdoarroiomoinho(ProgramaDrenaPoa)Dessemodo,competiaaogestora buscadealternativasparaofinanciamentodeprogramasestruturaisdeigualrelevância,ao mesmotempoquetambémlheeraexigívelmaioratençãoeevitarareincidênciadasfalhasque ocorreramnoplanejamentodessesprojetos,apontadasemsindicânciainstaurada27(peça 6718645),dentreasquaisafaltadeestruturadepessoalparaacompanhamentoepriorização dosprojetos
Alémdisso,ogestordispunhadaalternativadeutilizarosrecursosfinanceiros própriosdoDMAE,quepermaneceramparalisadosnocaixadaautarquia,emborafossem suficientesparacumprirasmetasorçamentáriasprevistasparaoprograma.
174
digitalmente por: Marcelo Kipper da Silva em 14/07/25, Leandro Lobato Camargo em 14/07/25, Leandro Torres em 14/07/25, Fabio Alex Beling em 14/07/25 e outro(s). Confira a autenticidade do documento em www.tce.rs.gov.br. Identificador: PRE.FE77.2360.2A1D.FC7C.62D4.


-SebastiãodeAraújoMelo(PrefeitoMunicipal)
Oagentefoidevidamentecientificadodointeiroteordorelatóriodeinspeçãoespecial constantedoprocessonº363-0200/19-4(peças3234898e3350024),quealertousobrea existênciaderiscosdeenfrentamentodegravesproblemasparaaimplementaçãodas necessidadesoperacionaisedeexpansãodosserviçosanteriormenteprestadospeloDEP, tendoemvistaafaltadecapacidadeoperacionaldoDMAEdecorrentedafaltadepessoal,bem comoemrazãodaausênciaderemuneraçãotarifária
Nesseaspecto,eramexigíveiscondutasdiversaspeloagenteresponsável,tendoem vistaqueoPrefeitoMunicipaléoagentepúblicoresponsávelpelainiciativadasleis orçamentárias(art116daLeiOrgânica)etambémpossuiacompetênciaprivativapara,em representaçãoaomunicípio,contrairempréstimos,medianteautorizaçãodoPoderLegislativo (art94,XdaLeiOrgânica)
Emsentidocontrário,relativamenteaoprojeto"MelhorianoSistemadeProteção ContraCheias",oagentedescumpriucomasmetasestabelecidasnoPlanoPlurianual2022a 2025,estabelecendocomometa,nasleisorçamentáriasanuaisde2022a2024,aaplicaçãode valoresirrisóriosnaordemdeR$3000,00aR$4000,00poranoparaofinanciamentodesse programa28Osvaloressãomuitoinferioresaoestabelecidonoplanoplurianual,queprojetouo dispêndiodomontantetotaldeR$334.747.600,00,paraoperíodode2022a2025(peça 6718526,p200)Nosexercíciosde2022e2023,previamenteaoeventoclimático,oplano plurianualpreviaodispêndiode,respectivamente,R$11802000,00eR$67165660,00,a passoquehouvealiquidaçãode,respectivamente,R$1.752.247,02eR$141.921,72,valores precipuamenteempenhadosparaopagamentoderestosapagar
Comissooagenteagiucomnegligênciaedescasoquantoaocumprimentodo programadegoverno,emsentidocontrárioaoqueseriaesperadoparaumacidadeconsiderada "HUBderesiliência"equetinhainstituído,pormeiodaLeiMunicipalnº12629/2019,umplano deresiliênciacomobjetivosvoltadosàprevençãoderiscos,baseadonagestãoderiscosde desastresesuareduçãoemcasodeinundação,alagamentoedeslizamento,bemcomona garantiadeinfraestruturaadequadaàsfamíliasresidentesemáreasderiscosAdemais,a omissãoatentoucontraaLeiComplementarnº872/2020,queinstituiuapolíticade sustentabilidade,enfrentamentodasmudançasclimáticaseusoracionaldaenergia,com objetivosvoltadosàresiliência,prevençãoeadaptaçãoemitigaçãodosimpactosdasmudanças climáticasedeeventosextremos(aumentodoníveldoGuaíba,alagamentosedeslizamentos)
Outrossim,competiaaogestorabuscadealternativasparaofinanciamentode programasestruturaisderelevânciaparaossistemasdedrenagemedeproteçãocontracheias, hajavistaaperdaderecursosfederaisdoPACPrevenção(R$122milhões),ocorridanagestão anterior,queseriamdestinadosamelhoriasestruturais,aumentodacapacidade,aquisiçãode geradoresdeenergia,ampliaçãodecasasdebombaseàmacrodrenagemdoarroioMoinho (ProgramaDrenaPoa)


Noponto,ogestortinhaplenoconhecimentodaabrangênciaeimportânciado programaparaomunicípio,poisparticipoudagestãode2013a2016nacondiçãodeVicePrefeito29Ofato,inclusive,foimencionadopeloagenteemvídeo(peça6718557)amplamente divulgadoem202030Oagentetambémtinhaciênciadaexistênciadesindicânciainstaurada, queapontoudiversosproblemasnoplanejamentodosprojetos,dentreosquaisafaltade estruturadepessoalparaacompanhamentoepriorizaçãodosprojetos(peça6718645)
Alémdisso,ogestordispunhadaalternativadeutilizarosrecursosfinanceiros própriosdoDMAE,quepermaneceramparalisadosnocaixadaautarquia,emborafossem suficientesparacumprirasmetasorçamentáriasprevistasparaoprograma
Responsabilização
Responsável1
Matrizderesponsabilização
Nome: SebastiãodeAraújoMelo(CPF:159697971-20)
Função: PrefeitoMunicipal
Períodode
exercício: 01/01/2021a31/12/2024
Conduta:
Nexode causalidade:
NãocumpriucomasmetasorçamentáriasdeinvestimentoestabelecidasnoPlanoPlurianual 2022-2025,noprojeto/ação"MelhorianoSistemadeProteçãoContraCheias",bemcomonão adotouprovidênciastempestivasparabuscaderecursosparaofinanciamentodoprojeto orçamentário
Ascondutasomissivasatinentesàausênciadeinvestimentosnoprojeto/ação"Melhoriano SistemadeProteçãoContraCheias"resultaramemprejuízosàsegurançaeproteçãodacidade quandodoeventoclimáticoocorridoemmaiode2024Consequentemente,aausênciadasações necessárias,decorrentedafaltadeinvestimentoseprojetosvisandomelhoriasnoSPCC,resultou emprejuízossignificativosaoeráriomunicipal,aindanãototalmentequantificados,masquejá perfazemquantiaestimadaentreR$6aR$8bilhões

ESTADODORIOGRANDEDOSUL TRIBUNALDECONTAS
DIREÇÃODECONTROLEEFISCALIZAÇÃO SERVIÇODEAUDITORIADEPORTOALEGRE

Culpabilidade:
Eramexigíveiscondutasdiversaspeloagenteresponsável,poisnacondiçãodePrefeito Municipal,competia-lheainiciativaeelaboraçãodasleisorçamentárias(art116,IIIdaLei Orgânica),emconsonânciacomasdiretrizes,objetivosemetasestipuladasnoplanoplurianual, bemcomoeraesperadoqueadotasseprovidênciasnosentidodebuscaralternativas,parao financiamentodeprojetosvisandoaexecuçãodeobrasdemelhoriasnoSistemadeProteção ContraCheias(Projeto/Ação"MelhorianoSistemadeProteçãoContraCheiasdoPPA20222025)Emsentidocontrário,oagenteagiucomnegligênciaemrelaçãoaocumprimentodoprojeto governamental“MelhorianoSistemadeProteçãoContraCheias”,aoestabeleceraaplicaçãode valoresirrisórios(R$3000aR$4000)comometasprevistasnasLeisOrçamentáriasAnuaisde 2022a2024,descumprindoasdiretrizesestabelecidasnoPPA2022-2025,quepreviamparao períodoodispêndiototaldeR$334747600,00DiantedacertificaçãodacidadedePortoAlegre como"HUBderesiliência"edainstituiçãodoPlanodeResiliência,pormeiodaLeiMunicipalnº 12.629/2019,comobjetivosvoltadosàprevençãoderiscos,baseadonagestãoderiscosde desastresesuareduçãoemcasodeinundação,alagamentoedeslizamento,bemcomona garantiadeinfraestruturaadequadaàsfamíliasresidentesemáreasderiscos,eraesperada condutadiversapeloagentenotocanteaocumprimentodesseprojetogovernamentalAomissão tambématentoucontraaLeiComplementarnº872/2020,queinstituiuapolíticade sustentabilidade,enfrentamentodasmudançasclimáticaseusoracionaldaenergia,comobjetivos voltadosàresiliência,prevençãoeadaptaçãoemitigaçãodosimpactosdasmudançasclimáticas edeeventosextremos(aumentodoníveldoGuaíba,alagamentosedeslizamentos)Oagentefoi tambémalertadosobreosriscosdaincorporaçãodasatividadesdoDEPpeloDMAE,emrazão dasrestriçõesdacapacidadeoperacionaldoDMAE,emdecorrênciadafaltadepessoal,bem comodocenáriodeinsuficiênciadaremuneraçãotarifáriapararealizaçãodeobrasdeexpansão, desenvolvimentoeoperaçãodosserviçosdedrenagemedosistemadeproteçãocontracheias Talalertafoiregistradonorelatóriodeinspeçãoespecial,constantedoprocesso363-0200/19-4 Ademais,oagentetinhaplenoconhecimentodaperdaderecursosfederaisdoPACPrevenção (R$122milhões)edaabrangênciaeimportânciadoprogramaparaomunicípio,quepreviaa destinaçãoderecursosparamelhoriasestruturais,aumentodacapacidade,aquisiçãode geradoresdeenergiaeampliaçãodecasasdebombaseàmacrodrenagemdoarroiomoinho (ProgramaDrenaPoa),bemcomotinhaciênciadaexistênciadesindicânciainstaurada,a qualapontoudiversosproblemasnoplanejamentodosprojetos,dentreosquaisafaltade estruturadepessoalparaacompanhamentoepriorizaçãodosprojetosTaiscircunstânciassão agravantesedemandavamaçõespeloadministradorresponsável,nosentidodabuscade alternativasparaofinanciamentodeprogramasestruturaisdeigualrelevânciaparaossistemas dedrenagemedeproteçãocontracheias,bemcomoexigiamaioratençãonaestruturação organizacionaledepessoalparaviabilizaraelaboraçãoeexecuçãodosprojetospertinentes Restouevidenciadaacaracterizaçãodeculpagraveouerrogrosseiro,tendoemvistaquea omissãoimplicougraveinobservânciadodeverdecuidadoeafastou-sedoreferencialdo "administradormédio",poiseranotórioeperceptívelporpessoadediligêncianormalaimportância doadequadofinanciamentodoprogramagovernamentalparaaimplantaçãodemelhoriasno SPCC
Responsável2
Nome: NelsonMarchezanJunior(CPF:647771540-68)
Função: PrefeitoMunicipal
Períodode exercício: 01/01/2017a31/12/2020
Conduta:
Nexode causalidade:
NãocumpriucomasmetasorçamentáriasdeinvestimentoestabelecidasnoPlanoPlurianual 2018-2021,noprojeto/ação"MelhorianoSistemadeProteçãoContraCheias",bemcomonão adotouprovidênciastempestivasparabuscaderecursosparaofinanciamentodoprojeto orçamentário
Ascondutasomissivasatinentesàausênciadeinvestimentosnoprojeto/ação"Melhoriano SistemadeProteçãoContraCheias"resultaramemprejuízosàsegurançaeproteçãodacidade quandodoeventoclimáticoocorridoemmaiode2024Consequentemente,aausênciadasações necessárias,decorrentedafaltadeinvestimentoseprojetosvisandomelhoriasnoSPCC,resultou emprejuízossignificativosaoeráriomunicipal,aindanãototalmentequantificados,masquejá perfazemquantiaestimadaentreR$6aR$8bilhões
Assinado digitalmente por: Marcelo Kipper da Silva em 14/07/25, Leandro Lobato Camargo em 14/07/25, Leandro Torres em 14/07/25, Fabio Alex Beling em 14/07/25 e outro(s). Confira a autenticidade do documento em www.tce.rs.gov.br. Identificador: PRE.FE77.2360.2A1D.FC7C.62D4.

ESTADODORIOGRANDEDOSUL TRIBUNALDECONTAS DIREÇÃODECONTROLEEFISCALIZAÇÃO SERVIÇODEAUDITORIADEPORTOALEGRE

Culpabilidade:
Eramexigiveiscondutasdiversaspeloagenteresponsável,poisnacondiçãodePrefeito Municipal,competia-lheainiciativaeelaboraçãodasleisorçamentárias(art116,IIIdaLei Orgânica),emconsonânciacomasdiretrizes,objetivosemetasestipuladasnoplanoplurianual, bemcomoeraesperadoqueadotasseprovidênciasnosentidodebuscaralternativas,parao financiamentodeprojetosvisandoaexecuçãodeobrasdemelhoriasnoSistemadeProteção ContraCheias(Projeto/Ação"MelhorianoSistemadeProteçãoContraCheiasdoPPA20182021)DiantedainstituiçãodoPlanodeResiliência,pormeiodaLeiMunicipalnº12629/2019, comobjetivosvoltadosàprevençãoderiscos,baseadonagestãoderiscosdedesastresesua reduçãoemcasodeinundação,alagamentoedeslizamento,bemcomonagarantiade infraestruturaadequadaàsfamíliasresidentesemáreasderiscos,eraesperadacondutadiversa peloagentenotocanteaocumprimentodesseprojetogovernamentalAomissãotambém atentoucontraaLeiComplementarnº872/2020,queinstituiuapolíticadesustentabilidade, enfrentamentodasmudançasclimáticaseusoracionaldaenergia,comobjetivosvoltadosà resiliência,prevençãoeadaptaçãoemitigaçãodosimpactosdasmudançasclimáticasede eventosextremos(aumentodoníveldoGuaíba,alagamentosedeslizamentos)Oagentefoi tambémalertadosobreosriscosdaincorporaçãodasatividadesdoDEPpeloDMAE,emrazão dasrestriçõesdacapacidadeoperacionaldoDMAE,emdecorrênciadafaltadepessoal,bem comodocenáriodeinsuficiênciadaremuneraçãotarifáriapararealizaçãodeobrasdeexpansão, desenvolvimentoeoperaçãodosserviçosdedrenagemedosistemadeproteçãocontracheias Talalertafoiregistradonorelatóriodeinspeçãoespecial,constantedoprocesso363-0200/19-4 Ademais,durantesuagestãoocorreuaperdaderecursosfederaisdoPACPrevenção(R$122 milhões),quepreviaadestinaçãoderecursosparamelhoriasestruturais,aumentodacapacidade, aquisiçãodegeradoresdeenergiaeampliaçãodecasasdebombaseàmacrodrenagemdo arroioMoinho(ProgramaDrenaPoa),bemcomofoicientificadodasconclusõesregistradasna sindicânciainstaurada,aqualapontoudiversosproblemasnoplanejamentodosprojetos,dentre osquaisafaltadeestruturadepessoalparaacompanhamentoepriorizaçãodosprojetosTais circunstânciassãoagravantesedemandavamaçõespeloadministradorresponsável,nosentido dabuscadealternativasparaofinanciamentodeprogramasestruturaisdeigualrelevânciapara ossistemasdedrenagemedeproteçãocontracheias,bemcomoexigiamaioratençãona estruturaçãoorganizacionaledepessoalparaviabilizaraelaboraçãoeexecuçãodosprojetos pertinentesRestouevidenciadaacaracterizaçãodeculpagraveouerrogrosseiro,tendoemvista queaomissãoimplicougraveinobservânciadodeverdecuidadoeafastou-sedoreferencialdo "administradormédio",poiseranotórioeperceptívelporpessoadediligêncianormalaimportância doadequadofinanciamentodoprogramagovernamentalparaaimplantaçãodemelhoriasno SPCC
Notas
1Tambémforamutilizadososdadosorçamentáriosdisponibilizadosnoportaldetransparênciado município Disponível em: https://transparenciaportoalegrersgovbr/prestacao-contasorcamento/planejamento-orcamentario,consultaem21/03/2025
2NoPPA2018-2021,aAçãoOrçamentáriarecebeuanúmeração3000,enquantonoPPA20222025anúmeração3613
3Sistemadisponívelmediantecredenciaisnoendereço:https://smeprocempacombr/sme/ 4Foirealizadaconsultanoportaldeleismunicipaisetambémdosprojetosaprovadosno programaAvançarCidades-SaneamentonoportaldoMinistériodasCidades 5Disponívelem:http://leismunicipais/mkwsp 6Disponívelem:http://leismunicipais/oubgx 7Disponívelem:http://leismunicipais/sayov 8Disponívelem:http://leismunicipais/hwxos 9Disponívelem:http://leismunicipais/oxubg 10Disponívelem:http://leismunicipais/tbumx 11Disponívelem:http://leismunicipais/xcawm 12Disponívelem:http://leismunicipais/cwamx 13Disponívelem:http://leismunicipais/lqzmt 14Disponívelem:http://leismunicipais/czhvk 15Disponívelem:http://leismunicipais/05zkl 16Disponívelem:http://leismunicipais/08wa5 17Disponívelem:http://leismunicipais/08wa3
digitalmente por: Marcelo Kipper da Silva em 14/07/25, Leandro Lobato Camargo em 14/07/25, Leandro Torres em 14/07/25, Fabio Alex Beling em 14/07/25 e outro(s). Confira a autenticidade do documento em www.tce.rs.gov.br. Identificador:

ESTADODORIOGRANDEDOSUL TRIBUNALDECONTAS
DIREÇÃODECONTROLEEFISCALIZAÇÃO SERVIÇODEAUDITORIADEPORTOALEGRE
18Disponívelem:http://leismunicipais/1vbsu

19Noexercíciode2019,apartirdaediçãodaLeiMunicipalnº12504/2019,houveoinícioda incorporaçãodasfunçõesdoDEPpeloDMAE,sendoaautarquiaautorizada,mediante condiçõesestabelecidasemconvênio,aatuartambém"namanutenção,naconservação,na contrataçãoenaexecuçãodeobraseserviços,expansão,desenvolvimentoeoperaçãodo SistemadeEsgotosPluviais,deDrenagemedeProteçãocontraCheias"domunicípio,bem comoa"gerir,operar,manter,conservarerecuperarosistemaeseuscomponentes,inclusive comrelaçãoatodasasfunçõeseseçõesdaDivisãodeObraseProjetosdoDEP"
20OPPA2016-2019estabeleceucomometaaaplicaçãototaldeR$315470000,00,sendo previstoparaoexercíciode2019aaplicaçãodeR$87180000,00
21Disponívelem:http://leismunicipais/vxqgs
22Viderelatoregistradonoachado"FalhadeGovernançaeGestãodeRiscosparaOperação, ManutençãoeMonitoramentodoSPCC"
23OfícioDCFnº09196/2019,de08/11/2019
24Disponívelem:http://leismunicipais/usmfxAleifoiregulamentadaapenasem2023,coma ediçãodoDecretonº22263/2023,queestabeleceuainstituiçãodoComitêPermanentede Resiliência(CPR),órgãoqueatéomomentonãofoiinstaurado,consoanterespostaapresentada peloExecutivoDisponívelem:http://leismunicipais/0w1db
25OPlanodeResiliênciatinhacomoobjetivotornaroMunicípiodePortoAlegrereferênciaem resiliênciaurbananaAméricaLatinaatéoanode2025
26Vide notícias veiculadas, disponíveis em: https://g1globocom/rs/rio-grande-dosul/noticia/2019/01/07/prefeitura-de-porto-alegre-perde-r-1219-milhoes-previstos-para-obras-dedrenagem-do-municipioghtmlehttps://guaibacombr/2018/12/17/marchezan-admite-erros-masespera-recuperar-verba-federal-milionaria-para-drenagem/
27Videnotíciaveiculada,disponívelem:https://prefeiturapoabr/gp/noticias/comissao-concluisindicancia-sobre-perda-de-recursos
28Noperíodohouvesomenteaaplicaçãoderecursosparapagamentodecontratosfirmadosna gestãoanteriorederestosapagar
29Videnotíciasqueevidenciamaparticipaçãodoagenteematosdeassinaturadeeditalde licitação,bemcomoprogramadecampanhaveiculado,queapresentanotíciasobreoocorrido Disponível em: https://www2portoalegrersgovbr/dep/defaultphp? pnoticia=179513&PREFEITURA+APRESENTA+INVESTIMENTO+DE+R$+190+MILHOES+DO+DRENAPOA ehttps://g1globocom/rs/rio-grande-do-sul/noticia/2019/01/07/prefeitura-de-porto-alegre-perde-r1219-milhoes-previstos-para-obras-de-drenagem-do-municipioghtml
30Disponívelem:https://wwwyoutubecom/watch?v=KbVhNssjclw
533FalhadeGovernançaeGestãodeRiscosparaOperação,Manutençãoe MonitoramentodoSPCC
Situaçãoencontradapelaequipedeauditoria
EmavaliaçãoàgestãodoSPCC,umdosprincipaisreferenciaistécnicoséoPlano MunicipaldeSaneamentoBásico(PMSB)dePortoAlegrede2015(omaisrecenteeainda vigente),documentoquetrataosaneamentodacidadedeformaintegrada,sendoadrenagem umadasdimensões,aoladodoabastecimentodeágua,tratamentodeesgoto,resíduossólidos elimpezaurbana(peça6718558)(peça6718559)e(peça6718452)Odocumentofoiaprovado peloDecreto19275de29dedezembrode2015peloentãoPrefeito,emexercício,Sebastião Melo.
Noquetangeàdimensãodedrenagem,oumanejodeáguaspluviaisurbanasnos termosdoPMSB,verifica-sequeodocumentodedicaumaseçãoespecíficaparatratardo SPCC(peça6718452,p84-91),prevendoum"ProgramadeManutençãoeOperaçãodo SistemadeProteçãoContraCheias"eum"PlanodeMonitoramentoeAlertacontracheiasdo LagoGuaíba"
OProgramadeManutençãoeOperaçãodoSistemadeProteçãoContraCheiasé 179

ESTADODORIOGRANDEDOSUL TRIBUNALDECONTAS
DIREÇÃODECONTROLEEFISCALIZAÇÃO SERVIÇODEAUDITORIADEPORTOALEGRE

previstocomoumconjuntodeaçõespreventivasecorretivasparagarantirofuncionamentodo SPCC:
Esseprogramacontemplaaçõesdemanutenção(revisãoperiódicadoparque deCasasdeBombas,revisãoesimulaçõesdeaberturaefechamentodo conjuntodecomportasdosistemadediquesemonitoramentoda estabilidadedosdiques)edeoperação(regramentodaoperaçãodascasas debombasetreinamentodeseusoperadores)Tambémsobresponsabilidade daDC/DEP,estãoinseridosnesseprogramaoscontratosdeoperaçãodas casasdebombasdosistemadeproteçãocontracheiasedemanutençãodas casasdebombasdosistemadeproteçãocontracheias
(Grifonosso)
JáoPlanodeMonitoramentoeAlertacontraCheiasprevêainstituiçãodeumgrupo técnicoresponsávelunicamentepelomonitoramento/acompanhamentodiáriodosníveisdoLago Guaíba,vinculadaaoCentroIntegradodeComandodaCidadedePortoAlegre(CEIC),ea informaçãoaosdemaisórgãos(DEP,DMAE,EPTC,etc)quantoaoriscodeenchentesApartir dessegrupoqueseprevêaviabilizaçãodaevacuaçãodapopulaçãoemáreasderisco,emissão dealertas,mobilizaçãodeequipeseacionamentopreventivodosequipamentosdeproteção
OPMSBtambémdefinequeoPlanodeMonitoramentoeAlertaContraCheias deveráproporumconjuntodeprotocolostécnicoseoperacionaisvoltadosaomonitoramento diáriodosníveisdoLagoGuaíba,alémdaatualizaçãotecnológicadaestaçãodemonitoramento doRioTaquari,comremessadedadosaoCEIC
Comoatoresenvolvidos,citaoCentroIntegradodeCoordenaçãodeServiços (CEIC),aDefesaCivilMunicipal(GADEC)eoDEP,atribuindoasresponsabilidadesacadaum Sãopropostascapacitaçõesconstantesaosenvolvidos,controletecnológicosistemático, registroepublicaçãodoslaudosdasavaliaçõesdosdiques,comportasemuros,bem comoelaboraçãodedocumentostécnicos(manuais)detodososprocedimentos, funcionamento,responsáveis(inclusivecomoscontatosatualizadosdecadaum), tambémaserpublicadonossitesdosórgãosresponsáveis,ecompostospor organogramasechecklistsparanortearasatividades
Verifica-se,assim,queagestãodoSPCC-apesardetersidoumatarefacuja incumbênciafoitransferidadoDEPaoDMAEaolongodosanos-temgrandesimplicaçõescom umasériedeoutrosórgãoseentespúblicosquerealizamagestãoderisconomunicípiode PortoAlegre
Nessesentido,éesperadoqueoDMAEtenhainterfacescomoDepartamento MunicipaldeHabitação-DEMHABecomaAssistênciaSocialemrazãodasocupações irregularessobrediques,paraaevacuaçãodapopulaçãomaisvulneráveleparaoplanejamento denovasocupaçõespopularesemáreasnãoalagáveis,porexemplo.Osetordeaprovaçãode projetosdenovosempreendimentostambémprecisadialogarcomogestordoSPCC,afimde identificarseasintervençõesnãoafetamoníveldeproteçãodacapitalApastadoMeio AmbientetambéméumapotencialdemandantedepareceresdoDMAEarespeitodoSPCC,a

ESTADODORIOGRANDEDOSUL TRIBUNALDECONTAS
DIREÇÃODECONTROLEEFISCALIZAÇÃO SERVIÇODEAUDITORIADEPORTOALEGRE

fimdehaveradefiniçãodeáreasprotegidasoumitigaçõesambientaisTambémapastada educaçãopossuiinterfaces,afimdequeseinstruaapopulaçãoarespeitodarealidade,riscose açõesdeevacuaçãodecorrentesdasinundaçõesnacapital.
GanhadestaqueainterfacedoDMAEcomaDefesaCivil,poiséesperadaa interlocuçãoentreambososórgãosafimdeorganizarprotocolosdeemergênciaerotinasde inspeçãosobreoestadodosequipamentosdoSPCCnomunicípio
Ademais,taisprovidênciasconstituemaçõesquedeveriamtersidoadotadaspara ocumprimentodoPlanodeResiliênciainstituídopelaLeiMunicipalnº12629/2019,que estabeleceuexplicitamentecomoobjetivodomunicípioaprevençãoderisco,baseadaem práticasdegestãoderiscosdedesastresemcasodeinundação,alagamentoedeslizamentoe tambémassentadanagarantiadainfraestruturaadequadaàsfamíliasresidentesemáreasde risco,pormeiodafiscalizaçãoedaprevençãodeocupaçõesirregulares,entreoutrasmedidas Senãovejamos:
Art3ºOMunicípiodePortoAlegrebuscarátornar-sereferênciaemresiliência urbananaAméricaLatinaatéoanode2025,pormeiodosseguintestemas, comseusrespectivosobjetivos:
()
III-prevençãoderisco:
a)possuirumagestãoderiscodedesastresquepromovaasuaredução, principalmente,emcasodeinundação,alagamentoedeslizamento;e
b)garantirinfraestruturaadequadaàsfamíliasqueresidememáreasderisco elevadopormeiodafiscalização,daprevençãodeocupações,do monitoramentodasáreasderiscoedasaçõesestratégicasdeplanejamento;
Ainda,éimportantedestacarqueoMunicípiodePortoAlegreestásubmetidoaos devereslegaisinstituídospelaLeiComplementarMunicipalnº872/2020,queapresenta princípios,diretrizeseobjetivosrelacionadosàadoçãodemedidasdeprevençãoeadaptação àsmudançasclimáticasquantoaosriscosdeinundações,bemcomoatinentesao desenvolvimentodeaçõeseprogramaspermanentesvoltadosàassistência,àremoçãoouà relocaçãodapopulaçãodeáreasvulneráveisouatingidasporeventosdecorrentesdas mudançasclimáticasparamoradiasseguras:
SeçãoIDosPrincípios
Art3ºAPolíticainstituídaporestaLeiComplementareasaçõesdela decorrentesdevemobservarosprincípiosqueregemaAdministraçãoPúblicae aspolíticasambientais,notadamenteosseguintes:
V-aprecauçãonassituaçõesdeameaçadedanossériosouirreversíveis; 181
Assinado digitalmente por: Marcelo Kipper da Silva em 14/07/25, Leandro Lobato Camargo em 14/07/25, Leandro Torres em 14/07/25, Fabio Alex Beling em 14/07/25 e outro(s). Confira a autenticidade do documento em www.tce.rs.gov.br. Identificador: PRE.FE77.2360.2A1D.FC7C.62D4.

ESTADODORIOGRANDEDOSUL TRIBUNALDECONTAS
DIREÇÃODECONTROLEEFISCALIZAÇÃO SERVIÇODEAUDITORIADEPORTOALEGRE
(...)
SeçãoIIDasDiretrizes

Art4ºSãodiretrizesgeraisdaPolíticadeSustentabilidade,Enfrentamentodas MudançasClimáticaseUsoRacionaldaEnergia:
()
IV-cooperarcomospreparativosparaaprevençãoeaadaptaçãoaos impactosdamudançadoclima,desenvolvendoeelaborandoosplanos adequadoseintegradosparaagestãodezonascosteiras,recursoshídricose agricultura,bemcomoparaaproteçãoearecuperaçãoderegiões particularmenteafetadasporsecaseinundações;
()
SeçãoIDosObjetivos
Art5ºAimplementaçãodaPolíticainstituídaporestaLeiComplementartem comoobjetivos:
()
IV-implementaraçõesdeprevençãoeadaptaçãoàsalteraçõesproduzidas pelosimpactosdasmudançasclimáticas,visandoaproteger,principalmente,os estratosmaisvulneráveisdapopulação;
XIV-adotarmedidaseestratégiasparaamitigaçãodamudançadoclimapor meiodareduçãodeemissõesdeGEEedofortalecimentodasremoçõespor sumidourosdessesgases,bemcomoparaaidentificaçãodevulnerabilidades noMunicípiodePortoAlegre,estabelecendomedidasadequadasdeadaptação eresiliênciaeimpedindoainterferênciaantrópicaeperigosanosistema climático,prevenindo,minimizando,mitigando,compensandooureparandoos impactosedanosgerados;
XXIII-adotarmedidasdeprevençãoefortalecimentodaresiliênciaeda capacidadeadaptativalocalconcernentesaoaumentodoníveldoLago Guaíba,aalagamentoseadeslizamentosdeencostas,bemcomoaoutros fenômenosouocorrênciasprovenientesdosprocessosdemudançasnaturais;
XXIV-desenvolver,emcaráterpermanente,açõeseprogramasvoltadosà prevençãodedanos,assimcomoàassistência,àremoçãoouàrelocação dapopulaçãodeáreasvulneráveisouatingidasporeventosdecorrentes dasmudançasclimáticasparamoradiasseguras,pormeiodesoluções habitacionaisdefinitivas,promovendoarequalificaçãoambientaldessasárease ocontrolesobreseuusoesuaocupação;
()
XXX-fortaleceraresiliênciadoMunicípiodePortoAlegreaosefeitosinevitáveis dasmudançasdoclimanasdimensõesinstitucional,socialoucomunitária, ambientaledeinfraestruturaurbana,estimulandoefortalecendoaorganização eaintegraçãoentreosentesdaFederação,asinstituiçõespúblicaseda 182

ESTADODORIOGRANDEDOSUL TRIBUNALDECONTAS DIREÇÃODECONTROLEEFISCALIZAÇÃO SERVIÇODEAUDITORIADEPORTOALEGRE

sociedadecivileapopulaçãoemgeral,priorizandoascomunidadesmais vulneráveisaosefeitosdasmudançasclimáticas,demodoadesenvolver capacidadeadaptativaedereduçãodosriscosurbanos,absorvendoas perturbações,ereorganizando,frenteamudanças,acapacidadedemantero essencialdassuasfunções,estruturas,identidadeseretroalimentações;
(Grifou-se)
ApesardeseressaaconcepçãoplasmadanoPMSBedapublicaçãodeleis municipaisquesinalizavamparaatençãoàresiliência,prevençãoegestãoderiscose enfrentamentodasmudançasclimáticas,arealidadedosúltimosanosfoimuitodistinta
NoquetangeaoProgramadeManutençãoeOperaçãodoSistemadeProteção ContraCheias,conformeseverificounosachadosdeauditoriaespecíficos,osequipamentose estruturasdoSPCCcareciamdeadequadadocumentaçãoarespeitodeseusprojetos, operaçãoemanutençãoAlgunsprojetossequerforamencontrados,algunsequipamentosnão possuíamodetalhamentodesuaoperação,algunsapresentavamdivergênciasentreas premissasdeprojetoeascondiçõesoperacionais,todassituaçõesquepoderiamserevitadasse observadooPMSB,emespecialoVolIII(peça6718452)
Pela resposta à RDI 695179(peça6718457),quequestionaquantoà responsabilidadesobreomonitoramentoemanutençãodosdiques,observa-sequenãohá clarezadeentendimentopelasprópriasdiretoriasdoDMAEsobrequemteria responsabilidadesobreestasestruturas,jáqueanormativaquedefineascompetênciasnão institucionalizaessasresponsabilidadesdemaneiraobjetiva1.Ainstitucionalizaçãosignifica registrar,escrever,designarcargosefunções,definindoedeixandotransparenteosnomes, matrículasecontatosdosresponsáveis,comosugeridopeloPlanoMunicipaldeSaneamento Básico.
EmrespostaàRDI643532(peça6044669)agestãorespondeuquenãoháno DMAEumprocedimentoemformadedocumentorelacionadoexclusivamenteao fechamentodascomportas,nãoobstanteaexigênciadeverificaçãomensaldoestadodessas estruturaseseucorretofuncionamento,aberturaevedação,estabelecidanoCadernode Encargos,instituídopeloDecretonº14786/2004eemvigorporforçadaLeinº12939/2021(art 3º)OúnicomanualaqueseteveacessofoiodeoperaçãodasEBAPs(peça6043862),uma entreasváriasestruturaseequipamentosdoSPCC.
Quantoaoquestionamentosobreoplanejamentodemanutençõesdosistema,o documentodisponibilizadochamadoPlanodeManutençãoPreventiva,constituiumaentrega específicainerenteaocontratodemanutençãodosequipamentosdascasasdebombase comportas,nãosetratandodealgoinstitucionalizadonodepartamento(peça6195253)
NoquetangeaoinvestimentonamelhoriaeampliaçãodoSPCC,conformeanalisado notópicoespecíficodesterelatório,verificaram-sepoucasiniciativasmunicipaisparaacaptação derecursosnosúltimosanos,oqueenvolveapréviaelaboraçãodeanteprojetospeloDMAEea

ESTADODORIOGRANDEDOSUL TRIBUNALDECONTAS
DIREÇÃODECONTROLEEFISCALIZAÇÃO SERVIÇODEAUDITORIADEPORTOALEGRE

articulaçãocomassecretariasdaFazendaePlanejamentodomunicípioAinda,oquese verificoufoiaperdaderecursosfederaiscaptadosnopassado,osquaisnãocontaramcom projetostempestivamenteapresentadoseaprovados.
QuantoaoPlanodeMonitoramentoeAlertacontraCheias,verificou-sequeatuação conjuntadosdiversosentesdomunicípiopoderiatersidomelhorduranteainundaçãode2024, mas,essencialmente,deveriatersidomuitomaiseficaznocaráterpreventivo,afimde mitigarachancedefalhadoSPCCouminimizarosefeitosnocasodeocorrênciadoevento indesejado
RelativamenteaotratamentodagestãoderiscosnoâmbitodoDMAE, revelaram-sediscrepânciassignificativasquandodaanálisedoalinhamentodamatrizde riscosdoDMAE,incorporadanoplanejamentoestratégicodaautarquia(peça6718560),comas diretrizesdoPMSB,queestabelecemetaseaçõesparaohorizontetemporalde2015a20352 , bemcomo,deformamaisabrangente,destacaosriscosassociadosàdegradaçãoambiental, mudançasclimáticaseeventosextremos,comoenchentesesecasseveras
Constatou-seaausênciadeumaabordagemdetalhadaparaagestãoderiscos críticosqueimpactamdiretamenteosserviçosprestadospelaautarquiaQuestõescomo impactosambientais,mudançasclimáticas,impactosdasocupaçõesirregularessobreosistema dediques,falhasdeequipamentos,fragilidadesedefasagemestruturalnosistemadeproteção decheiaseinterrupçõesnofornecimentodeenergia todosapontadosnoPMSBcomo ameaçasestratégicas foramtratadasdeformasuperficialousequermencionadasnamatriz deriscosdoórgão
Essediagnósticoficaevidenciadonoplanejamentoestratégicodoórgãoparao períodode2022a2025(peça6718560)enodocumentooficial"AnáliseQualitativadeRiscose Oportunidades"(peça6718561),apresentadopeloDMAEcomoreferêncianorteadoraparao planejamentoestratégico,oqualpossuilacunasrelevantessobreagestãoderiscosque envolviamaoperaçãoemanutençãodoSPCC,consolidandoapriorizaçãodesproporcionalde questõesgenéricaseriscosdemenorimpacto,emdetrimentodeumaabordagemsobre osriscosdeelevadacriticidadeecompotencialparacausardanossignificativos
Comefeito,essaomissãoevidenciaainexistênciadeumapolíticadegestãode riscosconsolidadaeorientadaàsdemandasoperacionaismaisurgentesdoDMAE.Assim, aincongruênciaentreoplanejamentoestratégicomunicipal,consolidadonoPMSB, especialmentenoquetangeàidentificaçãoderiscosefraquezas,eaexecução operacionalpelaautarquiacomprometeuacapacidadedoDMAEdeanteciparameaçase adotarmedidasmitigadoraseficazes,expondoaautarquiaavulnerabilidadesque prejudicaramasuacapacidadedepreparaçãoederespostaparacriseseresiliência operacionaldiantedoeventoclimáticodemaiode2024.
Destacam-seabaixoasameaçasefraquezasidentificadaspelaautarquia.Deacordo comasinformaçõesfornecidaspeloDMAE,essasinformaçõessãorevisadas,nomínimo,uma vezporanoConsiderandoqueforamencaminhadasaesteTribunaldeContasnosegundo semestrede2024,aversãoapresentadaaseguircorrespondeàmatrizderiscomaisatualizada, 184
Assinado digitalmente por: Marcelo Kipper da Silva em 14/07/25, Leandro Lobato Camargo em 14/07/25, Leandro Torres em 14/07/25, Fabio Alex Beling em 14/07/25 e outro(s). Confira a autenticidade do documento em www.tce.rs.gov.br. Identificador: PRE.FE77.2360.2A1D.FC7C.62D4.

ESTADODORIOGRANDEDOSUL TRIBUNALDECONTAS
DIREÇÃODECONTROLEEFISCALIZAÇÃO SERVIÇODEAUDITORIADEPORTOALEGRE
comosriscoseoportunidadesrevisadosem04/09/2023(peça6718562)
Quadro8–Ameaças-RiscosExternos

N° Ameaças RiscosExternos
1 Ocupaçãoemáreas irregulares
2 Faltadeautonomia administrativaemrelaçãoà PMPA
3 Incertezasdiantedapossível ConcessãodoDMAE
4 Faltadeautonomiaparaa captaçãoderecursosem relaçãoàPMPA
5 ContrataçãodeAgênciade Regulação
6 Degradaçãoambientaldos mananciaissuperficiais
7 Aumentodeinadimplência emfunçãodacrise econômica
8 Dificuldadedeaquisiçãode insumosemateriais
Eliminação
*Implantarrededeáguaemárea “subnormal”(DD)
*Estabelecerfluxodeinformações DEMHAB-DMAE(DGA/GPL)
*InterlocuçãodoDMAEcomGPe demaisinstânciasdaPMPA:reforçar autonomiaadministrativae implementaçãodemetas(DA)
*ContinuidadedasatividadesdoDT (DA)
*InterlocuçãodaDGcomSMPAEe demaisórgãosmunicipaispara construçãodeestratégiadecaptação derecursoseparcerias(DG/DA)
*Estudosdasalternativasexistentes
*AçõesdaDGparasensibilizaçãodas AGERS/AGERSA(DG/DA)
*Manterrepresentatividadenos comitêsdebaciashidrográficas(DT)
*Monitoraroescopodooutorgamento decorposhídricos(DT)*Reativar EsgotoCerto(DT)
*ReativarcontratocomSERASA (DA/DT)
*Contratarempresaparaanálisede performance(DO)
*ReforçaraGLIC(DA)
*ReforçarDesenvolvimentode fornecedores(DA)
*Cadastrodemarcas(DA)
Quadro9–Fraquezas-RiscosInternos
AçõesparaControle/Mitigação/ Eliminação
1 Reduçãodacapacidadede trabalhointernodevidoà nãoreposiçãofuncionalnas equipes
2 Dificuldadederetençãode servidores(faltade autonomiaadministrativa)
InterlocuçãodaDGcomGPe demaisinstânciasdaPMPA,para restabeleceraautonomia administrativaepossibilitara reposiçãofuncionalContrataçãode pessoal(DG/DA)
Revisãodapolíticadebenefícios (DA/DT);PlanodeCargos(GT/DT)

ESTADODORIOGRANDEDOSUL TRIBUNALDECONTAS
DIREÇÃODECONTROLEEFISCALIZAÇÃO SERVIÇODEAUDITORIADEPORTOALEGRE
3
Deficiênciasna comunicaçãointernaenos alinhamentosdasoperações enadivulgaçãoàpopulação
4 EntradadaLei14133e suasexigências
5 Faltadeumdonodo processoGestãode Contratos
6 Servidoresdesmotivados
7 Faltadeferramentapara gerenciamentodeCustos
8 ParquedeEquipamentos antigosedesatualizados

Revisãodosfluxosdecomunicação internaeredistribuição-Equipese Processos
Estabeleceraçõesparaadaptaçãoà novalei:revisãodosfluxos,normas ecapacitação
CriarumGTparaestudar alternativasparaGestãode ContratosnoDMAE(DA/AGEST)
Desenvolvimentodelideranças: ProgramadeDesenvolvimentode Lideranças(PDL),Cultura Organizacional,MatrizdeExcelência Corporativa2023;Políticade benefícios(DA/GPES)
Implementaçãodesistemade Custos(DA/FIN)
Planodeinvestimentos2023/2024 nasplantasindustriais(DG/DA)
Conformeseobserva,asmedidasdecontrolepropostasrevelam-segenéricase, sobretudo,insuficientesparamitigarosriscosoperacionaiseambientaisqueenvolviamo SPCC.Diantedadocumentaçãoapresentadaeconsiderandoosriscoseameaçasinerentesàs atividadesqueenvolvemoSPCCeasuainter-relaçãocomoPMSB,passam-sealguns dospontosqueseapresentavamcomoessenciais:
-RiscoseAmeaçasExternas
a)RiscosAmbientais
MudançasClimáticaseEventosExtremos:
EmboraoPMSBabordesobreosdesafioseasvulnerabilidadesdecorrentesdas mudançasclimáticasetambémsobreosimpactoscausadosporeventosextremoscomo inundações,amatrizderiscosdoDMAEnãoabordaessasquestõesdeformadiretaeefetiva,o queacabaacarretandoemfaltadedeaçõespreventivas
Afaltadereferêncianamatrizsobreosriscosrelacionadosàsmudançasclimáticas tambémvaideencontroaosprincípios,diretrizeseobjetivosestabelecidosnaLeiComplementar nº872/2020,queinstituiuapolíticadeenfrentamentodasmudançasclimáticas
Éoportunomaisumavezreferirqueocontextodemudançasclimáticaspermite concluirqueoriscodoaumentodeeventosextremoseraprevisível,oquedeveriaconduzir,àluz dosprincípiosdaprevençãoedaprecauçãoamplamentereconhecidosnodireitoambiental,à atualizaçãodoSPCCparaníveisdeproteçãosuperioresàquelesplanejadosnadécadade1970, quandoapautaambientalsequerintegravaaagendainternacionalAssim,éprevisívelqueum níveldeproteçãode6metrosplanejadohá50anos,naatualidade,precisadereavaliação,de modoqueéinviávelconcluir,quandosetratadasfalhasdoSPCC,pelaaplicaçãoda excludentederesponsabilidadeporforçamaioremrazãodamagnitudedacheiade2024 emPortoAlegre. 186

ESTADODORIOGRANDEDOSUL TRIBUNALDECONTAS
DIREÇÃODECONTROLEEFISCALIZAÇÃO SERVIÇODEAUDITORIADEPORTOALEGRE

b)RiscosOperacionais
FalhasnoSistemadeProteçãocontraCheias:
AsfalhasnoSistemadeProteçãocontraCheiasidentificadasapartirdasenchentes de2024incluemdeficiênciasemcomportas(relacionadasàvedação,estruturaemanutenção),e vulnerabilidadesnasEstaçõesdeBombagemdeÁguaPluvial(EBAPs),entreoutrosproblemas MuitasdessasquestõesjáeramdeconhecimentointernodoDMAENoentanto,nãohouve menção de tais deficiências e potenciais riscos na análise de riscos do DepartamentoAdicionalmente,mesmoapósoseventosadversosocorridosnosegundo semestrede2023,constata-sequeasquestõesreferentesaosistemadeproteçãocontracheias nuncaforamincorporadasaoscritériosderiscosoperacionaisdoDMAE.Talnegligênciapode explicarafalhasistêmica,umavezquehouveumacompletainérciaedesconsideraçãoem relaçãoaessesriscosEstaomissãocomprometeuaeficáciadosistemacomoumtodo
Ocupaçãoemáreasirregulares:
EssepontofocalfoiclassificadocomoaprincipalfontederiscopeloJurisdicionado, recebendoumapontuaçãode0,65(riscosexternos)Entretanto,aoanalisarasaçõespara controle/eliminaçãodessaameaça,observa-sequeaabordagemselimitaaum"fluxode informaçõesentreoDEMHABeoDMAE"naimplementaçãoderedesdeabastecimentode água,desconsiderandooimpactosignificativodasocupaçõesirregularesnaeficáciadosdiques enaintensificaçãodasenchentesUmexemploclarodissoéaproliferaçãodeconstruções irregularessituadasdiretamentesobreosdiquesenasáreasadjacentes,comoocorrenobairro SarandiAlémdisso,opróprioDMAEreconheceuaimpossibilidadederealizarmanutenções adequadasnosdiquesdevidoàpresençaconsolidadaderesidênciasnaregiãoEstecenário ressaltaaexistênciadepontoscríticosamplamentereconhecidosquenãoforamcontemplados namatrizderisco,equejáeramconsideradosrelevantesatémesmonoPMSBde2015
InterrupçãonoFornecimentodeEnergia:
Aautarquiadependeexclusivamentedaredeelétrica,administradaporuma concessionáriaque,nosúltimosanos,temapresentadoexpressivosproblemasoperacionais Essadependênciaafetadiretamenteaoperaçãodemaquináriosessenciais,comoasestações debombeamento,asunidadesdetratamentodeesgoto(ETEs)eossistemasdedrenagem urbana,querequeremfornecimentoestávelecontínuoparaoplenofuncionamentoAsbombas querealizamacaptaçãoedistribuiçãodeáguapotávelutilizamsistemaselétricosparaoperar Qualquerinterrupçãonofornecimentodeenergiapodecausardesabastecimento,afetando diretamenteapopulação,especialmenteemperíodosdealtademanda,comodiasquentesou apóschuvasintensasNoqueserefereàdrenagemurbana,interrupçõeselétricascomprometem ofuncionamentodasbombasresponsáveispeloescoamentodaságuaspluviais,aumentando significativamenteoriscodealagamentosemáreasurbanaseagravandoosimpactosde eventosclimáticosextremos,comoseconstatounoanode2024
OPMSBde2015destacaanecessidadedesistemasalternativosdeenergiapara mitigarosimpactosdessasinterrupçõesSãoapontadassoluçõescomoousodebombas reservasadieselegeradoresdeenergiaqueasseguremaoperaçãocontínuadasestações 187

ESTADODORIOGRANDEDOSUL TRIBUNALDECONTAS
DIREÇÃODECONTROLEEFISCALIZAÇÃO SERVIÇODEAUDITORIADEPORTOALEGRE

duranteeventoscríticos,incluindoapagões,problemastécnicos,vandalismooudesastres naturaisEssaredundânciaenergéticaéessencialparagarantiraresiliênciadasoperaçõese evitarcolapsosnosserviçosdeabastecimentodeágua,tratamentodeesgotoedrenagem.
Apesardarelevânciadesterisco,quecomprometeserviçosessenciaisàpopulaçãoe àproteçãoambiental,anecessidadedesistemasredundantesdeenergiaparamaquinários fundamentais,comoascasasdebombas,nãofoiconsideradanamatrizderiscodoórgão jurisdicionado,evidenciandoumafalhasignificativanagestãoderiscosoperacionaisdoDMAE.
c)RiscosRegulatóriosedeConformidade
DesalinhamentocomoPlanodeResiliência:
AmatrizderiscodoDMAEnãocontemplaaparticipaçãoativanoComitê PermanentedeResiliência(CPR),conformeestipuladopeloDecretoMunicipaln22263/2023 Essaomissãoépreocupante,poisaparticipaçãonoCPRéfundamentalparaoalinhamentodas estratégiasdegestãoderiscosmunicipaiscomasdiretrizesderesiliência.Afaltade envolvimentodoDMAEnocomitêlimitaadiscussãodequestõescruciaisqueafetama infraestruturadesaneamentoearespostaaeventosadversosAlémdisso,comoaparticipação nocomitêdependedaAdministraçãoCentralizada,háoriscodequeimportantesaspectos relacionadosàsegurançahídricaeàsustentabilidadeurbananãosejamdevidamente abordados,comprometendoaeficáciadaspolíticasderesiliênciaeaproteçãodosserviços públicosessenciais.
-FraquezaseRiscosInternos
FalhasnaManutençãoPreventiva:
OPMSBaborda,deformaindireta,aimportânciadeplanosdeaçãovoltadosparaa manutençãopreventivaecorretivadossistemasEmboranãohajaumtratamentoexplícitosobre otema,oplanosublinhaanecessidadedeumagestãoeficientedossistemasparagarantirsua operaçãocontínuaeevitarfalhas,especialmenteemmomentoscríticosEstafaltadeenfoque diretoemmanutençãopreventivareflete-senamatrizderiscodoDMAE,quenãocontempla adequadamenteesteaspecto.Essaomissãoficouevidenteduranteoeventoclimáticode2024, quandooSPCCnãofuncionoudeformaeficaz,evidenciandoainsuficiênciadeumamanutenção maisrigorosaeconsistente,oquecomprometeuarespostaaodesastre
FalhasdeEquipamentoseInfraestrutura:
AsparadasoperacionaisemEstaçõesdeBombeamentodeÁguaPluvial(EBAPs), resultantesdaobsolescênciadosequipamentosedafaltademanutençãopreventiva,são questõesabordadasnoPMSB,assimcomoemqualquerplanejamentooperacionaldeentidades queatuamnosetordesaneamento.NocasodoDMAE,essanecessidadedeinvestimentospara modernizarsuainfraestruturaéamplamentereconhecida,comgestoresdoórgão frequentementeressaltandoaurgênciademelhorarosserviçosparaatenderadequadamenteàs demandasdapopulação,inclusivecomoargumentoparaaconcessãodosserviços.Noentanto, aoavaliarainclusãodessaquestãonamatrizderiscodoDMAE,observa-sequeelafoi classificadacomamenorpontuaçãoderiscointerno(0,25pontos),umvalorqueseencontra 188
Assinado digitalmente por: Marcelo Kipper da Silva em 14/07/25, Leandro Lobato Camargo em 14/07/25, Leandro Torres em 14/07/25, Fabio Alex Beling em 14/07/25 e outro(s). Confira a autenticidade do documento em www.tce.rs.gov.br. Identificador: PRE.FE77.2360.2A1D.FC7C.62D4.

ESTADODORIOGRANDEDOSUL TRIBUNALDECONTAS

abaixodoriscoassociadoàentradaemvigordanovaLeideLicitaçõesEssaavaliação evidenciaafaltadeumapolíticadegestãoderiscosrobustaealinhadaàsnecessidadesdo órgão,subestimandoagravidadedasfalhasdeequipamentoseinfraestrutura
TerceirizaçãodeAtividadesEssenciaispeloDMAE:
Aolongodosúltimosanos,observa-seummovimentocrescentede terceirizaçãodeatividadesporpartedoDMAE.Atividadesqueanteriormenteeram executadaspeloquadrotécnicoefetivopassaramasertransferidasparaempresasprivadaspor meiodecontratosdeterceirização.Aindaqueessapráticasejaconsolidadanoâmbitodoserviço público,éimprescindíveldestacarosriscosassociadosaessaestratégia,sobretudoquando envolvematividadesessenciais
Umadasprincipaispreocupaçõeséaperdadecontroleesupervisãodiretadas atividades.Comaexecuçãodelegadaaterceiros,oDMAEficaexpostoasituaçõesque fogemaoseucontroleimediato.Issoocorreporqueoacompanhamentodasatividades terceirizadasémaiscomplexoedistanciadoemrelaçãoàquelasexecutadasinternamente Ademais,aterceirizaçãopodeacarretaraprecarizaçãodotrabalho,resultandoemalta rotatividadedefuncionários,oquecomprometeacontinuidadeoperacionaleamanutençãodo conhecimentotécnicoespecializadoFuncionáriosterceirizados,porpossuíremvínculosde trabalhomaisfragilizados,nãodesenvolvemomesmoníveldecompromissoeidentidadecoma instituição,oquepodeimpactarnaqualidadedosserviçosprestados
Ocrescimentodaterceirizaçãodeserviçostambémimplicaanecessidadeda designaçãodeservidoresparaoseuadequadoacompanhamentoefiscalizaçãoporservidores qualificadoseemquantitativosuficienteparaoexercíciodessasatividades
Assim,conclui-sequeaterceirizaçãodeatividadesessenciais,expõeoDMAEa riscoscríticos,materiaiserelevantes Essesriscospossuemimpactosignificativona continuidadeoperacional.Todavia,observou-sequeessetematãocríticoerelevantenãofoi consideradonamatrizderiscodoDMAE
Adicionalmente,a"AnáliseQualitativadeRiscoseOportunidades"doDMAEnão contemplaautilizaçãodeferramentasfundamentaisdegestãoderiscos,comoasimulaçãode cenáriosadversoseomapeamentoestratégicodeeventoscríticosTaisinstrumentossão amplamentereconhecidoscomoessenciaisparaaantecipaçãodesituaçõesdecriseeparaa definiçãoderespostastempestivaseadequadas.
Constatou-se,portanto,afalhadagovernançaedagestãoderiscosdoSPCC,cujas providênciasnãoresidemapenasnasinterfacesparaoperarascasasdebombasdosistemaou manteradrenagemdacidadeeficienteEnvolvemtambémanecessidadedaimplementaçãode ummodeloadequadodegovernançaedegestãoderiscosalinhadoseintegradoscomo PMSB,bemcomoanecessidadedeinterlocuçãodoDMAEcomosmaisdistintosentespúblicos eprivadosqueexecutamatividadesdiretamenterelacionadascomagestãodoSPCC


Sãoilustrativasdessasfalhas,alémdasjácaracterizadasfalhasnamanutençãoe operaçãodosistema,algumasintervençõesnasestruturasdoSPCC,tantorecentesquanto contínuasnotempo, quenãotiveramaprovaçãooumonitoramentoadequados,oque comprometeuasegurançadacidadeAbaixosãorelacionadasalgumasdessasocorrências:
Ocupaçõesdeáreasdediques
ForamsolicitadasinformaçõesaoDEMHABsobrenotificaçõesoucientificaçõesjá feitasaoDEMHABporpartedoDEPouDMAEsobremoradiaslocalizadassobreosdiquesdo SPCCououtrasestruturasdosistema
Emresposta(peça6718539),ogestorafirmouqueapenastinhaconhecimentosobre oprocessoSEInº200000074575-9referenteaedificaçõesnoDiqueVilaAsaBranca,emquea ocupaçãoimpossibilitouaconstruçãodaproteçãodaregião,diqueessecujoprojetoremonta 2010ecujaexecuçãojáfoicontratada,masaté2024nãofinalizada
OPMSBVolIIjáapresentavaindíciosdequeosdiquesdedeterminadospolders estavamemcotasinferioresàprojetada,comoocasodaBaciadoArroioSantoAgostinho(peça 6718431,p.10),alémdeproblemasdeocupaçãoirregular,oquemotivou,naspropostasdo volumeIII,medidascorrespondentesdemonitoramentoeremediação
Essasinformaçõesdenotamque,emboraasocupaçõeshistoricamentetenham ocorridosobrediquesdoSPCC,poucoounadafoifeitopararegularizareprotegeressas estruturasporpartedosórgãosresponsáveisConsiderandoaindaasatribuiçõesdaDefesaCivil emtermosdeprevençãoereduçãodedesastres,éimportantequehajaumaaçãoconjuntados órgãomunicipaisparaomonitoramentodasestruturasquecompõemoSPCC
FalhasdoGasômetroeOrlaTrecho1
ForamconstatadospontosdefragilidadedoSPCCnasproximidadesdoCentro CulturalGasômetro,cujaedificaçãoemsicompõeosistema,fazendoaligaçãoentreaestrutura domurodaMauáeodiquedaavenidaEdvaldoPereiraPaivaNocantonortedaedificação,esta seligacomomurodaMauá,enquantonocantoaosulfazaligaçãocomodiquedaAvEdvaldo PereiraPaiva,sendoacotadeinundaçãoestabelecidaem6metros.Nestepontodetransição entreomuro,aedificaçãoeodique,percebem-seaberturascomunsdaedificaçãodo GasômetroparaoladodoGuaíbasemvedaçãoadequadaparaimpediraentradadeágua,além deumaporçãododiqueemcotainferioràsuacrista.
Figura61–LocalizaçãodasestruturasdoSPCCnasproximidadesdogasômetro




Legenda:Vermelho:MurodaMauá;Laranja:UsinadoGasômetro;Amarelo:DiquedaAvEdvaldoPereiraPaiva
OprojetoderevitalizaçãodoCentroCulturalGasômetrofoilicitadoem2015 (processoadministrativonº0010055201503),eoprojetoresultantemostraamanutençãode portaspré-existentesvoltadasaoGuaíbaeaindasugereaaberturadenovosacessosparaa mesmafachada,aparentementesemhaverconsideraçõessobreoSPCC
Figura62–ProjetoderevitalizaçãodoGasômetro-Seçãodafachadanorteindicandoasaberturas
Assinado digitalmente por: Marcelo Kipper da Silva em 14/07/25, Leandro Lobato Camargo em 14/07/25, Leandro Torres em 14/07/25, Fabio Alex Beling em 14/07/25 e outro(s). Confira a autenticidade do documento em www.tce.rs.gov.br. Identificador: PRE.FE77.2360.2A1D.FC7C.62D4.



Nestepontohouveentradadeáguaatravésdaedificaçãoeparaointeriordaárea protegidapeloSPCC, conformeregistradonaAnálisedeInundaçãoZNeCentro(peça 6718448,p21),configurandoumadasfragilidadesestruturaisdessesistemaAnalisandoo processoparaconcessãodoespaço4,pósenchentes,observou-seacontrataçãodeestudos paraumsistemadefechamentodasaberturas(peça6718563),comencargosdivididosentre poderconcedenteeconcessionáriaparaimplantação,operaçãoemanutenção,conforme delimitadonamatrizderiscos
Apartedodiqueabaixodacotadeinundação,emboranãotenhasidosuperadopelo níveldaágua,chegoumuitopróximodisso.Osprojetosmaisatuais,deautoriadoEscritório JaimeLerner,contratadoem2012pararevitalizaçãodaOrladoGuaíba,mostramumacotade 3,85m,abaixodorestantedodique,nacota6,00m
Figura63–Projeto-Detalhedaplantamostrandoapassagemdepedestres

ESTADODORIOGRANDEDOSUL TRIBUNALDECONTAS
DIREÇÃODECONTROLEEFISCALIZAÇÃO SERVIÇODEAUDITORIADEPORTOALEGRE


Nãofoipossívelobteracessoàdocumentaçãodoprocessodecontrataçãodeste projeto5,entretanto,asdiretrizesdaComissãodeAnáliseUrbanísticaeGerenciamento (CAUGE)paraelaboraçãoeposterioraprovaçãodoEstudodeViabilidadeUrbanísticadoprojeto dotrechoIdarevitalizaçãodaOrladoGuaíba(2012)indicamconsignaçõesfeitasportécnicos doDEPaoprojeto(peça6718564),entretantonadaéreferidoaoSPCCPorconseguinte,o projetoelaboradotratou-sedeumarevitalizaçãopaisagística,semofitodeconstituire/ouintervir nosistemadeproteçãocontracheias,portanto,sempreverestudostécnicoseestruturaispara conformaçãododiquenacotadeproteçãonemsoluçãotécnicaparaasuaconformaçãocoma paredeexternadoedifíciodogasômetro
Defato,comparandofotosdeantesedepoisdaintervenção,alémdelevantamento topográfico(peça6718565)(2015),constata-sequeacotadeprojetoapenasmanteveacota existentenestepontododique
Figura64–IntersecçãoGasômetro-Dique(antes)Assetasindicamareferênciadonívelpara comparação

ESTADODORIOGRANDEDOSUL TRIBUNALDECONTAS DIREÇÃODECONTROLEEFISCALIZAÇÃO SERVIÇODEAUDITORIADEPORTOALEGRE


Figura65–IntersecçãoGasômetro-Dique(depois)Assetasindicamareferênciadonívelpara comparação

do documento em www.tce.rs.gov.br. Identificador: PRE.FE77.2360.2A1D.FC7C.62D4.

ESTADODORIOGRANDEDOSUL TRIBUNALDECONTAS
DIREÇÃODECONTROLEEFISCALIZAÇÃO SERVIÇODEAUDITORIADEPORTOALEGRE

Ambososprojetos(gasômetroeorlatrecho1)tiveramintervençõesemestruturas quecompõeoSPCCe,emboratenhampassadopelaaprovaçãodetécnicosmunicipais, nenhumadasduascontrataçõescontoucomprotocolosespecíficosparaavaliaçãoda intervençãonosistema,oquedenotaumafragilidadenosprotocolosdesegurançaeaausência deadequadagovernançaegestãoderiscosporpartedopoderpúblicomunicipal
Mesmoquandotécnicosdaárea(DEPeDMAE)consignamdiretrizespara desenvolvimentodosempreendimentosnoâmbitodaCAUGEoudaavaliaçãodeprojetos contratados,nota-sequenadaémencionadosobreoSPCCNomesmosentido,quandoda delimitaçãodosencargosparaaconcessãodotrechoIdaOrladoGuaíbaconjuntamentecomo ParqueHarmonia,oitem4683defineerroneamentequenãopodemserrealizadasaberturas emcotasinferioresa3,23maoSistemadeProteçãoContraCheias,quandoacotadeproteção definidaéde6,00m(peça6718566).
FalhadaSeveroDullius
OrelatóriodoDMAE(peça6718448,p.18e19)indicaquehouveentradadeágua entreasrampasdaspontesdaAvenidaSeveroDullius,concluídaem2023Nosprojetos originaispercebe-seaconformaçãodeumtaludeúnicoelevadoemcota6,13m(peça6718540), entretantoaobraexecutadaaofimapresentaumcanalentreaspistasesquerdaedireita,ponto deentradadeáguaconformeseobservaemfotosaéreasenoprópriorelatórioEssafalha reforçaaposiçãodequenãoexisteumacompanhamentodosresponsáveispeloSPCCem intervençõesnasestruturascomponentesdosistemadeproteçãoEmboraoprojetoinicialmente tivesse,aparentemente,umasoluçãodecontençãodaáguaparacotascompatíveiscomaquelas doSPCC,nãoháqualquerobservaçãoconsignadanoscadernostécnicosounaspranchasde projetoquealertemquantoaessecritério,oquepoderiaterindicadoàempresaexecutoraou aosfiscaisdeobrasparaasalteraçõespromovidasnaestruturadodique
Cabepontuarqueasdeficiênciasdegovernançareportadastêmorigem,aomenos naesferamunicipal,nadécadade1990,momentoemqueomunicípioassumiua responsabilidadepeloSPCCIdentificam-semomentosaolongodessesanosdemaioroumenor preocupaçãodasgestõesmunicipaiscomatemática,masimpulsionadasprioritariamentepelos eventosseverosquerememoravamoscidadãosdacapitalparaosriscosqueaocupaçãoàbeira doGuaíbatrazemFoiassim,inclusive,apósacheiade1967,quesematerializouaconstrução doSPCCjánadécadade1970(peça6718446)
Aconstituição,em1973,eextinção,em2017,doDepartamentodeEsgotosPluviais (DEP)éoutrocapítulosímbolodessacarênciadegovernançanoSPCCComoreportadono processodeInspeçãoEspecial7015-0200/17-0quetramitounesteTCE-RS,oórgãopossuía dedicaçãoparaagestãodaságuaspluviaisurbanas,inclusivedoSPCC,oqueinfelizmentenão assegurouumagestãoeficientedoscomponentesdosistemaNaépocadaauditoria,em2016, apontava-seumestadolastimáveldascasasdebombasedesviosgeneralizadosnoscontratos demanutençãodasredesdedrenagem


Issodemonstraque,mesmonumcenárioideal,ondeumórgãoeraespecializadoe focadonagestãodoSPCC,comoeraoDEP,comquadrotécnicodedicadoaoplanejamentoda drenagemurbanadacapital,nãosegarantiuumagestãoeumagovernançaeficientesecapazes demanteremequalificaremaproteçãocontracheiasemPortoAlegre.Gize-sequeoDEPera umdepartamentodaadministraçãodiretae,portanto,comcondiçõesfacilitadasparaumaação integradaefluidaentreosdemaissetoresdoexecutivomunicipal
AextinçãodoDEPeadiluiçãodasresponsabilidadespelagestãodoSPCCentre diferentesórgãosdaPrefeiturae,emdefinitivoem2022,aoDMAE(autarquiamunicipal, integrantedaadministraçãoindireta),aindaquetenhasidoumaopçãodiscricionáriae legítima,trouxeineficiênciasàgovernançadaproteçãodacapitalcontrainundaçõesdo Guaíbajustamenteemmomentopropícioareestruturaçõesdoórgãoresponsávelpelo sistema.Perderam-seprocessos,documentosememóriasarespeitodoSPCC,oque contribuiuparaampliarosefeitosdanososdacheiademaiode2024
TambémnãoseaproveitouatransiçãodoDEPparaoDMAEpararediscutiras competênciaseresponsabilidadesdomunicípioquantoaoSPCCNoponto,háqueseponderar eventualextensãodacompetênciadaUniãoquantoaoplanejamentoepromoçãodadefesa contracalamidades,comoinundações,emconsonânciaaodispostonoart.21,XVIIIda ConstituiçãoFederal6 .
OSPCCfoiplanejadoeexecutadoemsuagrandemaioriapeloextintoDNOS,órgão daUnião,aindanadécadade1970Somenteem1990,jásobaégidedaCF/88,équePorto AlegreassumiuaresponsabilidadedemanteregeriraestruturaconcebidapelaUnião.Nãose identificarammanifestaçõesoupedidosdoMunicípioparaqueaUniãoassumissedevoltao SPCCdesdeentãoOuseja,jáhaviaumaestruturaconcebidaeexecutadapelaUnião,com níveldeproteçãoprevistoparaatenderàcotade6m.
Entende-sequeoarranjodemanteragestãodoSPCCsobaresponsabilidadedo Municípioérazoável,poiséoentelocalquetemmaiscondiçõesdeseapropriardarealidadee tempestivamenteadotarmedidasparaoperá-lo.Nãosefurta,porevidente,aUniãoda responsabilidade,aqualprecisaserchamadaparacustearasdespesaseventualmente decorrentescomoSPCC,emespecialparapromoveraatualizaçãodosistemacomaelevação doníveldeproteção,aindamaisnumcenáriodemudançasclimáticas.
Nesseponto,emdesfavoràsgestõesdoMunicípio,pesaofatodequeaUnião previuem2012adestinaçãoderecursosdoOrçamentoGeraldaUnião(OGU)daordemde R$236milhões(valoresnominaisde2012)(peça6779621)paraqualificaradrenagemea proteçãodecheiasnacapital,aexemplodoquefoioprogramaDrenaPOA(peça6779622). EssesvaloresseriamalcançadosàPortoAlegre,entequeficariaresponsávelpelosprojetose execuçãodasaçõesPartedessesrecursosfoiempregadanamacrodrenagemdoArroioAreia, contudoR$122milhõesnãoforamaplicadospelafaltadeprojetos,nãoapresentados tempestivamentepelomunicípiodePortoAlegre,oqueinclusivefoiexploradonacampanha eleitoralde2020(peça6718557)Otemaémaisbemanalisadonoitemde"Faltade InvestimentoseProjetosnaMelhoriadoSPCC".

ESTADODORIOGRANDEDOSUL TRIBUNALDECONTAS
DIREÇÃODECONTROLEEFISCALIZAÇÃO SERVIÇODEAUDITORIADEPORTOALEGRE
Consequênciasparaaadministraçãoesociedade

AdeficiêncianagovernançaenagestãoderiscosdoSPCCfoideterminantepara aocorrênciadeumasériedefragilidadesnaproteçãodacapitalcontrainundações,expondo-aa umriscocujamitigaçãoeraesperada,masqueculminoucomagrandeenchentedemaiode 2024
Importante,noponto,consideraraexistênciadediretrizeseinstruçõesconsignadas noPMSBde2015dePortoAlegrearespeitodoSPCCeaexpectativadeproteçãoatéacota6 metrosdoGuaíba
AfaltadeintegraçãoentreoDMAEeosdemaisatorespúblicoseprivadostambém possibilitouaaprovaçãodeprojetosalheiosaoSPCCquefragilizaramasestruturas componentesdosistema.
Damesmaforma,afaltadedocumentaçãodosprojetoseconceitosoriginaisdo sistemaprojetado,aliadoàfaltademonitoramentodosequipamentoseestruturasimpedirama tempestivaecorretatomadadeaçõesparamanutençãoecorreçãodosistema,sejaporfalhas decorrentesdodesgastenaturalpelotempo,oupelaaçãohumana.Comoobservadonos apontessobremanutençãodeequipamentos,percebe-sequeosserviçosnãotiveramporbase osprojetosoriginais,nempreviramarevisãodosprojetos,constituindomanutençõesde sistemasjádescaracterizados.
AfaltadedocumentaçãodisponívelparaacessoàAuditoriademonstraa incapacidadehistóricademanteredocumentarprojetosemanuaisdeoperaçãodosistema,com perdasubstancialdeconhecimentoaolongodotempo.
Ocenáriorevelado,portanto,édeumagrandedeficiênciahistóricadomunicípiode PortoAlegreemmanter,ampliareoperaroSPCCe,portanto,degarantirasegurançadacidade emfacedeinundaçõesocasionadapelascheiasdoGuaíba,riscoqueeradeconhecimentodo poderpúblicoepossuíamitigaçõesestabelecidasnoPMSB.
Ainexistênciadeumapolíticadegestãoderiscosalinhadacomoplanejamento estratégicomunicipal,consolidadonoPMSB,especialmentenoquetangeàidentificaçãode riscosefraquezas,comprometeacapacidadedoDMAEdeanteciparameaçaseadotarmedidas mitigadoraseficazes,expondoaautarquiaavulnerabilidadesquecomprometemsuacapacidade depreparaçãoederespostaparacriseseresiliênciaoperacionaldiantedeeventoscríticos
Comoconsequência,aausênciadasaçõesnecessárias,decorrentedafalhade governançaegestãoderiscosparaoperação,manutençãoemonitoramentodoSPCC,resultou emprejuízossignificativosaoeráriomunicipalEmboraaindanãototalmentequantificados,em razãodaexistênciademilharesdeaçõesindividuaisedaAçãoCivilPúblicadoMinistério PúblicoEstadual,postulandoacondenaçãodomunicípioaopagamentodeindenizaçõespor danosmateriaisemoraisindividuais,osprejuízos(custospúblicos),relativosaoenfrentamento dacriseevoltadosàreconstruçãoerecuperaçãoestruturaldacidade,foraminicialmente estimadosentreR$6eR$8bilhões,conformeestudoapresentadopelaprópriaPrefeitura

ESTADODORIOGRANDEDOSUL TRIBUNALDECONTAS
DIREÇÃODECONTROLEEFISCALIZAÇÃO SERVIÇODEAUDITORIADEPORTOALEGRE
Municipal(peça6718424)
Leiseoutrasnormasaplicáveisaocaso
LeiFederalnº10406/2002,artigo186;

RegimentoInternodoTribunaldeContasdoEstado(AprovadopelaResoluçãonº 1028/2015),art.139;
LeiOrgânicadoMunicípiodePortoAlegre,artigos89,94;
LeiMunicipalnº12629/2019(PlanodeResiliênciaCezarBusatto);
DecretoMunicipalnº22263/2023(regulamentouaLeidoPlanodeResiliência);
LeiComplementarMunicipalnº872/2020;
DecretoMunicipalnº20969/2021(ProgramadeIntegridadedaAdministração PúblicaMunicipal);
DecretoMunicipalnº19275/2015(PlanoMunicipaldeSaneamentoBásico);
DecretoMunicipalnº20229/2019artigo4º;
DecretoMunicipalnº20758/2020,artigo274;
DecretoMunicipalnº21539/2022,artigos2º,6ºe191
Conclusõesdaequipedeauditoria
Todasasfalhasaquielencadassãodecorrentesdeumagovernançamunicipalfalha, cujodesenhoeimplantaçãosãoderesponsabilidadediretadosgestoresmunicipaisA governançapassanãosópelaestruturaçãodaorganizaçãodosórgãos,designaçãode profissionaiscapacitadosedestinaçãodosrecursos(financeirosedepessoal)necessáriospara consecuçãodosobjetivosdaspolíticasdeproteção,masprincipalmentepelaadoçãodeuma políticaadequadadegestãoderiscos,pelapromoçãodainterlocuçãodosdiversosatores envolvidosepelainstitucionalizaçãodessaorganizaçãopormeiodenormativas,políticas, programas,ações,epormeiodeprotocolosdocumentadosepermanentes,impermeávela mudançasdegovernosedeequipes.
Conclui-sequehouvenegligênciaporpartedasgestõesmunicipaisnaestruturação deumagovernançaedeumapolíticadegestãoderiscossuficientesparaaoperação, manutençãoemonitoramentodoSPCC,bemcomoainterlocuçãocomoutrasentidadese agentesTambémforampreteridasaspropostasinseridasnoPlanoMunicipaldeSaneamento Básicoquevisavammitigarosriscosláidentificados
Assim,asresponsabilidadespelasituaçãoeconsequênciasrecaem,commaiorou menorgrau,acadaumdosgestoresàfrentedoExecutivodesde1990pelomenos.Todavia, paraosfinsdessaauditoria,aqualavaliouasúltimasgestõesafrentedoExecutivomunicipale doDMAE,asquaispoderiamteradotadomedidastempestivasparamudarocenáriode2024, entende-sequeessehistóriconãodeveservirdeatenuanteaqualquerconduta.Issoporque atemáticaambiental,mudançasclimáticaseeventosextremosganhoumuitaênfasenaúltima década,sendoumapreocupaçãomundial
Anecessidadedeadaptaçãodacondutahumananamaneiracomolidacomomeio 198

ESTADODORIOGRANDEDOSUL TRIBUNALDECONTAS
DIREÇÃODECONTROLEEFISCALIZAÇÃO SERVIÇODEAUDITORIADEPORTOALEGRE

ambienteéumanecessidade,aqualserefleteinclusiveemPortoAlegre,cidadequepossuia LeidoPlanodeResiliênciadesde2019(LeiMunicipalnº12629/2019)equeparticipaesedia forosdediscussão,aquienoexterior,paratornaracidademaisresilientefaceaessas mudançasimpostasNomesmosentido,aLeiComplementarMunicipalnº872/2020,instituiua políticadesustentabilidade,enfrentamentodasmudançasclimáticaseusoracionaldaenergia, comobjetivosvoltadosàresiliência,prevençãoeadaptaçãoemitigaçãodosimpactosdas mudançasclimáticasedeeventosextremos(aumentodoníveldoGuaíba,alagamentose deslizamentos)
Assim,nãoérazoávelqueosgestoresdoséculoXXItenhamsuacondutaatenuada emrazãodeinérciasverificadasporgestõesdoséculopassado.Oestadodaciênciaeda engenhariaeraoutra,ascondiçõesdemonitoramentoeprevisãodoclimahojesãomuitomais assertivas,háferramentasparamonitoramentodaschuvaseriosemtemporeal,assimcomoa possibilidadedealertaecomunicaçãoemtemporealcomapopulação,alémdeferramentasde simulaçãoeprediçãodeinundaçõesmuitomaismodernasdoqueaquelasdadécadade90
Tambémosinúmerosincidentesdecorrentesdeeventosextremoscadavezmais frequentesemdiferentespartesdomundodeveriamsersuficientesparaevidenciarqueorisco denovosdesastresécrescente,nãodesprezível,ecomconsequênciascadavezmaisseveras Dessamaneira,oriscoficoumuitomaisnítidoparaasgestõesmaisrecentesquando comparadasàsgestõesdadécadade1990,demodoqueseentendepossívelaimputaçãoda responsabilidadesemqualqueratenuação
Porconseguinte,foramidentificadascondutasculposasdosseguintesagentes públicos,asquais,diantedoselementosecircunstâncias,evidenciamacaracterizaçãodeculpa graveouerrogrosseiro,tendoemvistaqueimplicaramgraveinobservânciadodeverdecuidado eafastaram-sedoreferencialdo"administradormédio",poiseranotóriaanecessidadedeuma adequadagovernançaepolíticadegestãoderiscosparaoatingimentodosobjetivosvoltadosà resiliênciaeenfrentamentodasmudançasclimáticas,sendoperceptívelporpessoadediligência normal
PrefeitosMunicipais
EraexigívelcondutadiversadoPrefeitoMunicipal,que,nacondiçãodeadministrador responsávelpelomunicípio,tinhaodeverdeestabelecerumaestruturadegovernançaeuma políticadegestãoderiscoscompatíveiscomasdiretrizesemetasprevistasnoPMSB,demodo atornaragestãodoSPCCmaiseficienteecommaiorarticulaçãocomosdiversosatores públicoseprivadosenvolvidoscomosistema
AspolíticaspúblicasmunicipaissãodesenvolvidaseconduzidaspeloExecutivo Municipal,cabendoaoPrefeitoorganizarasestruturasnecessáriasparasuaconsecução,a exemplodoPlanoMunicipaldeSaneamentoBásico(2015).Portanto,osgestoresforam negligentesnaestruturaçãodegovernançaparaoperaçãoemanutençãodoSPCComitindo-se emexigir,dosdiretoresporelenomeados,ainstitucionalizaçãodeumaadequadapolíticade gestãoderiscosnoâmbitodoDMAE
AfaltadeaçõestambémvaideencontrocomasdiretrizesestabelecidasnoDecreto 199

ESTADODORIOGRANDEDOSUL TRIBUNALDECONTAS
DIREÇÃODECONTROLEEFISCALIZAÇÃO SERVIÇODEAUDITORIADEPORTOALEGRE

nº20969/2021,queinstituiuoProgramadeIntegridadedaAdministraçãoPúblicaMunicipal, prevendocomoumdosseusobjetivos"aperfeiçoaraestruturadegovernançapública,criare aprimoraragestãoderiscoseoscontrolesdaAdministraçãoPúblicadoMunicípiodePorto Alegre"
Tambémeramesperadascondutasdiversasemrazãodomunicípioser considerado"HUBderesiliência"7equetinhainstituído,pormeiodaLeiMunicipalnº 12.629/20198,umplanoderesiliênciacomobjetivosvoltadosàprevençãoderiscos,baseadona gestãoderiscosdedesastresesuareduçãoemcasodeinundação,alagamentoedeslizamento, bemcomonagarantiadeinfraestruturaadequadaàsfamíliasresidentesemáreasderiscos9
Ademais,registra-se,comocircunstânciaagravanteparaascondutasomissivas doPrefeitoSebastiãoMelo,ofatodequeoagentetinhatotalconhecimentodosriscos atinentesàsmudançasclimáticaseosseusefeitosemPortoAlegre,umavezqueparticipouda aberturadoevento"6ªConferênciadeMeioAmbiente",realizadoemnovembrode2022, sendotambémsignatáriodo"DocumentoFinalda6ªConferênciadeMeioAmbiente"(peça 6718567)Oeventocontoucomaparticipaçãodeváriosespecialistasnatemática,cujas apresentaçõesalertaramqueoaquecimentoglobaljáeraumarealidadeemPortoAlegree queasmudançasclimáticasimplicavamriscosdeelevaçãodoníveldoGuaíbaDentreas moçõesaprovadaspelaAssembleiada6ªConferênciaMunicipaldoMeioAmbiente,destaca-se adenº6:
6Queapolíticadeplanejamentourbanoincluaaprevençãoegestãoderiscos edeproteçãocontracheiaseinundações,açõesdeadaptação,resiliência, utilizandocomocritérioadinâmicadasbaciashidrográficaseascaracterísticas decadalocal
DiretoresGeraisdoDMAE
OgestoràfrentedoDMAEdetémresponsabilidadesobreagovernançaeagestão deriscosdaautarquiae,consequentemente,doSPCC,incumbindo-lhe,nacondiçãode administradordaautarquia,aimplementaçãodeumplanejamentoestratégicoedeummodelo degestãobaseadonaobservânciadessescritérios,bemcomodiligenciareproporalterações quegarantamumagestãomaisintegradadosistemaDessemodo,cabiaaosdiretoresgeraisdo departamentoimplementarumplanejamentoestratégicofundamentadoemumaadequada gestãoderiscos,bemcomopromoveraestruturaçãoadministrativadoenteparaatenderos encargosreferentesaoSPCCeparaconcretizaroPMSBpormeiodeaçõesdemonitoramento dosistema,bemcomoagarantiadamemóriadadocumentaçãoeprojetosexistentes,a institucionalizaçãodemanuais,procedimentoseprotocolosdocumentadosepúblicosea interlocuçãocomoutrosórgãoeagentesresponsáveis
Assucessivasnormativas10quedetalhavamoregimentointernodoDMAEatribuíam aoseuDiretor-Geralaresponsabilidadedepromoveratualizaçõesnasatribuiçõesregimentais semprequeidentificadaanecessidadeNessecontexto,competiaaoDiretor-Geralproporas normasnecessáriasàadministraçãodaautarquia,sejamedianteinterlocuçãocomoPrefeito paraaexpediçãodedecretos,sejapelaregulamentaçãodascompetênciasdasunidades internas,pormeiodeinstruçõesnormativas
200


Assim,verifica-senegligênciaporpartedosgestores,umavezqueeraexigido doDiretor-GeraldoDMAEimplementaraestruturadegovernançaeumplanejamento estratégicoconsistenteefundamentadonumaadequadapolíticadegestãoderiscos,condizente comasdiretrizesemetasestabelecidasnoPMSB,providênciasquesãonecessáriasàefetiva execuçãodasestratégiasdeproteçãocontracheiasatribuídasaoórgãoeprevistasnoPlano MunicipaldeSaneamentoBásico.
AomissãotambémvaideencontrocomasdiretrizesestabelecidasnoDecretonº 20969/2021,queinstituiuoProgramadeIntegridadedaAdministraçãoPúblicaMunicipal, prevendocomoumdosseusobjetivos"aperfeiçoaraestruturadegovernançapública,criare aprimoraragestãoderiscoseoscontrolesdaAdministraçãoPúblicadoMunicípiodePorto Alegre"
Tambémeramesperadascondutasdiversasemrazãodomunicípioser considerado"HUBderesiliência"11equetinhainstituído,pormeiodaLeiMunicipalnº 12629/201912,umplanoderesiliênciacomobjetivosvoltadosàprevençãoderiscos,baseado nagestãoderiscosdedesastresesuareduçãoemcasodeinundação,alagamentoe deslizamento,bemcomonagarantiadeinfraestruturaadequadaàsfamíliasresidentesemáreas deriscos13
Importanteaindaconsiderar,comoagravanteaosgestoresresponsáveisem2023e 2024,queascheiasdoGuaíbade2023deramindíciosdefalhasemalgunsequipamentosdo SPCC,oquenãodespertouoesperadosensodeurgênciaparamudançasnaconduçãoe/ou organizaçãodagestãoegovernançadosistema,sejapeloDMAE,sejapelosdemaisentese órgãosintervenientes,oumesmoparaainvestigaçãoecorreçãodosproblemas
Noponto,alémdacheiadesetembroenovembrode2023quedavasinaisdoriscoe fragilidadedoSPCC,naqueleanotambémseapontavaparaumaforteaçãodofenômenoElNiño,oquehistoricamentetemimportadoemperíodosmaischuvososnosuldoBrasilEsseera osentidodosboletinsdoInstitutoNacionaldeMeteorologia-INMET14desetembrode2023 (peça6718568)Inclusiveencontra-sematériadaMetsulMeteorologia15,sobotítulo"ElNiño acompanhamaioriadasgrandesenchentesdePortoAlegre",de28/09/2023(peça6718569)
Emnovembrode2023,oConsórcioAquatec,contratadodoDMAE16,alertousobrea existênciadeprognósticodequearegiãometropolitanadePortoAlegreteriachuvasacimada médiaatéabrilde2024(peça6718570)Oalertaserviucomojustificativaparaaprorrogaçãodo prazodeentregadocontrato,masnãoparaqueosgestoresatentassemparaosriscosque envolviamoSPCC.
Emjaneirode2024,aMetsulaindadestacava17paraaforteaçãodoElNiñonos primeirosmesesdesseano(peça6718541),oquetambémeradestacadopeloINMETemseu boletimdefevereirode202418 (peça6718571,p3):"[]continuidadedofenômeno,com intensidadefortenospróximos3mesesepermanênciadeElNiñoduranteatépelomenosabril de2024"


Essecenário,portanto,deveriaelevaropatamardeatençãoealertaparaqueos gestoresdoSPCC,demodopreventivo,agissemparagarantirafuncionalidadedosistema aindaem2023,oquerepresentaumagravanterelevantenocontextoemanálise.
Ademais,registra-se,comocircunstânciaagravanteparaascondutasomissivas doDiretor-GeralMaurícioLoss,ofatodequeoagentetinhatotalconhecimentodosriscos atinentesàsmudançasclimáticaseosseusefeitosemPortoAlegre,umavezquefoimediador dopainel"MudançasClimáticasePortoAlegreem2050"etambémsignatáriodo"Documento Finalda6ªConferênciadeMeioAmbiente"(peça6718567),eventorealizadoemnovembrode 2022,quecontoucomaparticipaçãodeváriosespecialistasnatemática,cujasapresentações alertaramqueoaquecimentoglobaljáeraumarealidadeemPortoAlegreequeasmudanças climáticasimplicavamriscosdeelevaçãodoníveldoGuaíbaDentreasmoçõesaprovadaspela Assembleiada6ªConferênciaMunicipaldoMeioAmbiente,destaca-seadenº6:
6Queapolíticadeplanejamentourbanoincluaaprevençãoegestãoderiscos edeproteçãocontracheiaseinundações,açõesdeadaptação,resiliência, utilizandocomocritérioadinâmicadasbaciashidrográficaseascaracterísticas decadalocal
Responsabilização
Responsável1
Matrizderesponsabilização
Nome: SebastiãodeAraújoMelo(CPF:159697971-20)
Função: PrefeitoMunicipal
Períodode exercício: 01/01/2021a31/12/2024
Conduta:
Nexode causalidade:
Nãoimplementouestruturadegovernançaeplanejamentoestratégicocomgestãoderiscos alinhadaaoPMSB,àLeiMunicipalnº12629/2019,àLeiComplementarnº872/2020eaoDecreto nº20969/2021TampoucoassegurouainterlocuçãodoDMAEcomoutrosentesparao cumprimentodosencargosdoSPCC,conformeoPMSB
Afalhanagovernançaegestãoderiscos,tantonoExecutivoquantonoDMAE,eaausênciade interlocuçãocomentespúblicos/privadosqueserelacionamcomoSPCCcomprometerama capacidadedegestãodoórgãoEssasomissõesforamdeterminantesparaofracassodoSPCC nainundaçãodemaiode2024Consequentemente,aausênciadasaçõesnecessárias, decorrentedafalhadegovernançaegestãoderiscosparaoperação,manutençãoe monitoramentodoSPCC,resultouemprejuízossignificativosaoeráriomunicipal,aindanão totalmentequantificados,masquejáperfazemquantiaestimadaentreR$6aR$8bilhões

ESTADODORIOGRANDEDOSUL
DIREÇÃODECONTROLEEFISCALIZAÇÃO SERVIÇODEAUDITORIADEPORTOALEGRE
Culpabilidade:

OPrefeitoMunicipaltinhaodeverdeestabelecerumaestruturadegovernançaegestãoderiscos paraoSistemadeProteçãocontraCheias(SPCC)Essaestruturadeveriaseguirasdiretrizesdo PlanoMunicipaldeSaneamentoBásico(PMSB),daLeiMunicipalnº12629/2019(Planode Resiliência),daLeiComplementarnº872/2020(LeideEnfrentamentodasMudançasClimáticas)e doDecretonº20969/2021(ProgramadeIntegridade),comoobjetivodetornaragestãodoSPCC maiseficienteeintegradaComoresponsávelpelapolíticadesaneamentodomunicípio,cabiaao Prefeitoorganizarasestruturasnecessáriasparasuaexecução,conformeoPMSBeas estratégiasdeproteçãocontracheiasIssoincluíagarantirqueoDMAEeoutrosórgãos municipaistivessemosmeiosparaamanutenção,operação,monitoramentoeampliação adequadasdoSPCCÉimportanteressaltarqueoPrefeitoéquemnomeiaosdiretoresdoDMAE, sendoesperadoqueexijadeseusescolhidosocumprimentodosencargosdefinidosnoPMSB, devendoservigilantequantoàconcretizaçãodessaspolíticaspelapessoaaquemdelegoua tarefa(culpainvigilando)AresponsabilidadedoPrefeitoseagravapelafaltadeaçõespara cumpriraLeiMunicipalnº12629/2019,aLeiComplementarnº872/2020eoDecretonº 20969/2021Comoagravante,tantoascheiasde2023noGuaíba,quejáindicavamfalhasno SPCC,quantoasprevisõesdemuitachuvaparaoprimeirosemestrede2024emPortoAlegre, nãoincutiramoesperadosensodeurgêncianoagenteNãohouvemudançasnagestãoou revisãodosistemaparamitigaressesriscos,apesardosalertasTambémagravaasituaçãoofato deoPrefeitosaberdosriscosdasmudançasclimáticasparaPortoAlegreEleparticipouda"6ª ConferênciadeMeioAmbiente"emnovembrode2022eassinouodocumentofinal,quedefendia anecessidadedeplanejamentourbanocomfoconaprevençãoegestãoderiscosdecheiase inundaçõesPortanto,restouevidenciadaacaracterizaçãodeculpagraveouerrogrosseiro,tendo emvistaqueaomissãoimplicougraveinobservânciadodeverdecuidadoeafastou-sedo referencialdo"administradormédio",poiseranotóriaeperceptívelporpessoadediligêncianormal anecessidadedeumaadequadagovernançaepolíticadegestãoderiscosparaoatingimentodos objetivosvoltadosàresiliênciaeenfrentamentodasmudançasclimáticas
Responsável2
Nome: NelsonMarchezanJunior(CPF:647771540-68)
Função: PrefeitoMunicipal
Períodode
exercício: 01/01/2017até31/12/2020
Conduta:
Nexode causalidade:
Nãoimplementouestruturadegovernançaeplanejamentoestratégicocomgestãoderiscos alinhadaaoPMSB,àLeiMunicipalnº12629/2019eàLeiComplementarMunicipalnº872/2020 TampoucoassegurouainterlocuçãodoDMAEcomoutrosentesparaocumprimentodos encargosdoSPCC,conformeoPMSB
Afalhanagovernançaegestãoderiscos,tantonoExecutivoquantonoDMAE,eaausênciade interlocuçãocomentespúblicos/privadosqueserelacionamcomoSPCCcomprometerama capacidadedegestãodoórgãoEssasomissõesforamdeterminantesparaofracassodoSPCC nainundaçãodemaiode2024Consequentemente,aausênciadasaçõesnecessárias, decorrentedafalhadegovernançaegestãoderiscosparaoperação,manutençãoe monitoramentodoSPCC,resultouemprejuízossignificativosaoeráriomunicipal,aindanão totalmentequantificados,masquejáperfazemquantiaestimadaentreR$6aR$8bilhões
Culpabilidade:
OPrefeitoMunicipaltinhaodeverdeestabelecerumaestruturadegovernançaegestãoderiscos paraoSPCCEssaestruturadeveriaseguirasdiretrizesdoPMSB,daLeiMunicipalnº 12629/2019(PlanodeResiliência)edaLeiComplementarMunicipalnº872/2020(Leide EnfrentamentodasMudançasClimáticas),comoobjetivodetornaragestãodoSPCCmais eficienteeintegradaComoresponsávelpelapolíticadesaneamentodomunicípio,cabiaao Prefeitoorganizarasestruturasnecessáriasparasuaexecução,conformeoPMSBeas estratégiasdeproteçãocontracheiasIssoincluíagarantirqueoDMAEeoutrosórgãos municipaistivessemosmeiosparaamanutenção,operação,monitoramentoeampliação adequadasdoSPCCÉimportanteressaltarqueoPrefeitoéquemnomeiaosdiretoresdoDMAE, sendoesperadoqueexijadeseusescolhidosocumprimentodosencargosdefinidosnoPMSB, devendoservigilantequantoàconcretizaçãodessaspolíticaspelapessoaaquemdelegoua tarefa(culpainvigilando)AresponsabilidadedoPrefeitoseagravapelafaltadeaçõespara cumpriraLeiMunicipalnº12629/2019eaLeiComplementarMunicipalnº872/2020Portanto, restouevidenciadaacaracterizaçãodeculpagraveouerrogrosseiro,tendoemvistaquea omissãoimplicougraveinobservânciadodeverdecuidadoeafastou-sedoreferencialdo "administradormédio",poiseranotóriaeperceptívelporpessoadediligêncianormala necessidadedeumaadequadagovernançaepolíticadegestãoderiscosparaoatingimentodos objetivosvoltadosàresiliênciaeenfrentamentodasmudançasclimáticas
Responsável3
Assinado digitalmente por: Marcelo Kipper da Silva em 14/07/25, Leandro Lobato Camargo em 14/07/25, Leandro Torres em 14/07/25, Fabio Alex Beling em 14/07/25 e outro(s). Confira a autenticidade do documento em www.tce.rs.gov.br. Identificador: PRE.FE77.2360.2A1D.FC7C.62D4.

ESTADODORIOGRANDEDOSUL TRIBUNALDECONTAS DIREÇÃODECONTROLEEFISCALIZAÇÃO SERVIÇODEAUDITORIADEPORTOALEGRE
Nome: DarcyNunesdosSantos(CPF:609533650-34)
Função: DiretorGeral
Períodode
exercício: 08/03/2018a31/12/2020
Conduta:
Nexode causalidade:
Culpabilidade:

Nãoimplementouestruturadegovernançaeplanejamentoestratégicocomgestãoderiscos alinhadaaoPMSB,àLeiMunicipalnº12629/2019eàLeiComplementarMunicipalnº872/2020 TampoucoassegurouainterlocuçãodoDMAEcomoutrosentesparaocumprimentodos encargosdoSPCC,conformeoPMSB
Afalhanagovernançaegestãoderiscos,tantonoExecutivoquantonoDMAE,eaausênciade interlocuçãocomentespúblicos/privadosqueserelacionamcomoSPCCcomprometerama capacidadedegestãodoórgãoEssasomissõesforamdeterminantesparaofracassodoSPCC nainundaçãodemaiode2024Consequentemente,aausênciadasaçõesnecessárias, decorrentedafalhadegovernançaegestãoderiscosparaoperação,manutençãoe monitoramentodoSPCC,resultouemprejuízossignificativosaoeráriomunicipal,aindanão totalmentequantificados,masquejáperfazemquantiaestimadaentreR$6aR$8bilhões
EraexigidodoDiretor-GeraldoDMAEcondutadiversa,pois,nacondiçãodeadministradorda autarquia,eletinhaodeverdecriarumaestruturadegovernançaeumplanejamentoestratégico queincluísseumaboagestãoderiscosIssodeveriaestardeacordocomasmetasdoPMSB,da LeiMunicipalnº12629/2019(PlanodeResiliência)edaLeiComplementarnº872/2020(Leide EnfrentamentodasMudançasClimáticas)TambémerapapeldoDiretororganizaroDMAEpara lidarcomasresponsabilidadesdoSPCCeseguiroPMSBIssoenvolviamonitorarosistema, guardardocumentoseprojetosimportantes,criarmanuaiseprocedimentospúblicos,ese comunicarcomoutrosórgãosEleeraresponsávelporgarantirqueoSPCCtivesseosmeiospara funcionarbem,oqueincluíadefinirclaramenteasfunções,criarepublicarprotocolosemanuais deaçãoecomunicaçãoEssasmedidaspoderiamterajudadoaidentificareresolverproblemas nosistema,evitandoaentradadeáguanasáreasprotegidasdacidadeTodasessasprovidências eramnecessáriasàefetivaexecuçãodasestratégiasdeproteçãocontracheiasatribuídasao órgãoeprevistasnoPMSBAausênciadeaçõesvoltadasaodevidocumprimentodaLei Municipalnº12629/2019edaLeiComplementarnº872/2020éumaagravanteda responsabilidadedoagentePortanto,restouevidenciadaacaracterizaçãodeculpagraveouerro grosseiro,tendoemvistaqueaomissãoimplicougraveinobservânciadodeverdecuidadoe afastou-sedoreferencialdo"administradormédio",poiseranotóriaeperceptívelporpessoade diligêncianormalanecessidadedeumaadequadagovernançaepolíticadegestãoderiscospara oatingimentodosobjetivosvoltadosàresiliênciaeenfrentamentodasmudançasclimáticas Responsável4
Nome: AlexandredeFreitasGarcia(CPF:826508450-15)
Função: DiretorGeral
Períodode exercício: 01/01/202122/01/2023
Conduta:
Nexode causalidade:
Nãoimplementouestruturadegovernançaeplanejamentoestratégicocomgestãoderiscos alinhadaaoPMSB,àLeiMunicipalnº12629/2019,àLeiComplementarMunicipalnº872/2020e aoDecretonº20969/2021TampoucoassegurouainterlocuçãodoDMAEcomoutrosentespara ocumprimentodosencargosdoSPCC,conformeoPMSB
Afalhanagovernançaegestãoderiscos,tantonoExecutivoquantonoDMAE,eaausênciade interlocuçãocomentespúblicos/privadosqueserelacionamcomoSPCCcomprometerama capacidadedegestãodoórgãoEssasomissõesforamdeterminantesparaofracassodoSPCC nainundaçãodemaiode2024Consequentemente,aausênciadasaçõesnecessárias, decorrentedafalhadegovernançaegestãoderiscosparaoperação,manutençãoe monitoramentodoSPCC,resultouemprejuízossignificativosaoeráriomunicipal,aindanão totalmentequantificados,masquejáperfazemquantiaestimadaentreR$6aR$8bilhões

ESTADODORIOGRANDEDOSUL TRIBUNALDECONTAS
Culpabilidade:

EraexigidodoDiretor-GeraldoDMAEcondutadiversa,pois,nacondiçãodeadministradorda autarquia,eletinhaodeverdecriarumaestruturadegovernançaeumplanejamentoestratégico queincluísseumaboagestãoderiscosIssodeveriaestardeacordocomasmetasdoPMSB,da LeiMunicipalnº12629/2019(PlanodeResiliência),daLeiComplementarnº872/2020(Leide EnfrentamentodasMudançasClimáticas)edoDecretonº20969/2021(ProgramadeIntegridade) TambémerapapeldoDiretororganizaroDMAEparalidarcomasresponsabilidadesdoSPCCe seguiroPMSBIssoenvolviamonitorarosistema,guardardocumentoseprojetosimportantes, criarmanuaiseprocedimentospúblicos,esecomunicarcomoutrosórgãosEleeraresponsável porgarantirqueoSPCCtivesseosmeiosparafuncionarbem,oqueincluíadefinirclaramenteas funções,criarepublicarprotocolosemanuaisdeaçãoecomunicaçãoEssasmedidaspoderiam terajudadoaidentificareresolverproblemasnosistema,evitandoaentradadeáguanasáreas protegidasdacidadeTodasessasprovidênciaseramnecessáriasàefetivaexecuçãodas estratégiasdeproteçãocontracheiasatribuídasaoórgãoeprevistasnoPMSBAausênciade açõesvoltadasaodevidocumprimentodaLeiMunicipalnº12629/2019,daLeiComplementarnº 872/2020edoDecretonº20969/2021éumaagravantedaresponsabilidadedoagentePortanto, restouevidenciadaacaracterizaçãodeculpagraveouerrogrosseiro,tendoemvistaquea omissãoimplicougraveinobservânciadodeverdecuidadoeafastou-sedoreferencialdo "administradormédio",poiseranotóriaeperceptívelporpessoadediligêncianormala necessidadedeumaadequadagovernançaepolíticadegestãoderiscosparaoatingimentodos objetivosvoltadosàresiliênciaeenfrentamentodasmudançasclimáticas
Responsável5
Nome: MauricioLoss(CPF:011042390-94)
Função: Diretor-Geral
Períodode exercício: 23/01/2023a31/12/2024
Conduta:
Nexode causalidade:
Nãoimplementouestruturadegovernançaeplanejamentoestratégicocomgestãoderiscos alinhadaaoPMSB,àLeiMunicipalnº12629/2019,àLeiComplementarnº872/2020eaoDecreto nº20969/2021TampoucoassegurouainterlocuçãodoDMAEcomoutrosentesparao cumprimentodosencargosdoSPCC,conformeoPMSB
Afalhanagovernançaegestãoderiscos,tantonoExecutivoquantonoDMAE,eaausênciade interlocuçãocomentespúblicos/privadosqueserelacionamcomoSPCCcomprometerama capacidadedegestãodoórgãoEssasomissõesforamdeterminantesparaofracassodoSPCC nainundaçãodemaiode2024Consequentemente,aausênciadasaçõesnecessárias, decorrentedafalhadegovernançaegestãoderiscosparaoperação,manutençãoe monitoramentodoSPCC,resultouemprejuízossignificativosaoeráriomunicipal,aindanão totalmentequantificados,masquejáperfazemquantiaestimadaentreR$6aR$8bilhões
Assinado digitalmente por: Marcelo Kipper da Silva em 14/07/25, Leandro Lobato Camargo em 14/07/25, Leandro Torres em 14/07/25, Fabio Alex Beling em 14/07/25 e outro(s). Confira a autenticidade do documento em www.tce.rs.gov.br. Identificador: PRE.FE77.2360.2A1D.FC7C.62D4.

ESTADODORIOGRANDEDOSUL TRIBUNALDECONTAS DIREÇÃODECONTROLEEFISCALIZAÇÃO SERVIÇODEAUDITORIADEPORTOALEGRE
Culpabilidade:

EraexigidodoDiretor-GeraldoDMAEcondutadiversa,pois,nacondiçãodeadministradorda autarquia,eletinhaodeverdecriarumaestruturadegovernançaeumplanejamentoestratégico queincluísseumaboagestãoderiscosIssodeveriaestardeacordocomasmetasdoPMSB,da LeiMunicipalnº12629/2019(PlanodeResiliência),daLeiComplementarnº872/2020(Leide EnfrentamentodasMudançasClimáticas)edoDecretonº20969/2021(ProgramadeIntegridade) TambémerapapeldoDiretororganizaroDMAEparalidarcomasresponsabilidadesdoSPCCe seguiroPMSBIssoenvolviamonitorarosistema,guardardocumentoseprojetosimportantes, criarmanuaiseprocedimentospúblicos,esecomunicarcomoutrosórgãosEleeraresponsável porgarantirqueoSPCCtivesseosmeiosparafuncionarbem,oqueincluíadefinirclaramenteas funções,criarepublicarprotocolosemanuaisdeaçãoecomunicaçãoEssasmedidaspoderiam terajudadoaidentificareresolverproblemasnosistema,evitandoaentradadeáguanasáreas protegidasdacidadeTodasessasprovidênciaseramnecessáriasàefetivaexecuçãodas estratégiasdeproteçãocontracheiasatribuídasaoórgãoeprevistasnoPMSBAausênciade açõesvoltadasaodevidocumprimentodaLeiMunicipalnº12629/2019,daLeiComplementarnº 872/2020edoDecretonº20969/2021éumaagravantedaresponsabilidadedoagenteComo agravante,tantoascheiasde2023noGuaíba,quejáindicavamfalhasnoSPCC,quantoas previsõesdemuitachuvaparaoprimeirosemestrede2024emPortoAlegre,nãoincutiramo esperadosensodeurgêncianoagenteNãohouvemudançasnagestãoourevisãodosistema paramitigaressesriscos,apesardosalertasTambémagravaasituaçãoofatodeoagentesaber dosriscosdasmudançasclimáticasparaPortoAlegreEleparticipouda"6ªConferênciadeMeio Ambiente"emnovembrode2022eassinouodocumentofinal,quedefendiaanecessidadede planejamentourbanocomfoconaprevençãoegestãoderiscosdecheiaseinundaçõesPortanto, restouevidenciadaacaracterizaçãodeculpagraveouerrogrosseiro,tendoemvistaquea omissãoimplicougraveinobservânciadodeverdecuidadoeafastou-sedoreferencialdo "administradormédio",poiseranotóriaeperceptívelporpessoadediligêncianormala necessidadedeumaadequadagovernançaepolíticadegestãoderiscosparaoatingimentodos objetivosvoltadosàresiliênciaeenfrentamentodasmudançasclimáticas
Notas
1Otemafoidetalhadonoaponte"Falhasdosdiques"desterelatório 2Devendoserrevisadoemprazonãosuperioraquatroanos,conformeDecretoFederaln 7217/2010(art25,§4º)
3https://wwwmatinaljornalismocombr/matinal/reportagem-matinal/prefeitura-gasometro-projetoreprovado-licitacao/https://wwwcamarapoarsgovbr/noticias/secretarios-detalham-andamentodas-obras-na-usina-do-gasometro
4https://prefeiturapoabr/smp/ppp-usina-do-gasometro
5Foijustificadaaimpossibilidadedeencontraroprocessofísico
6Art21CompeteàUnião:[]XVIII-planejarepromoveradefesapermanentecontraas calamidadespúblicas,especialmenteassecaseasinundações;
7PortoAlegrerecebeuotítulode"HubdeResiliência",em17/08/2023,certificaçãoconferidapelo EscritóriodasNaçõesUnidasparaaReduçãodoRiscodeDesastres(UNDRR)epeloComitêde CoordenaçãoGlobaldaIniciativaConstruindoCidadesResilientes2030(MCR2030)Videnotícia veiculadanositedaPrefeitura:https://prefeiturapoabr/gp/noticias/porto-alegre-recebe-titulo-dehub-de-resiliencia-durante-encontro-do-iclei
8Disponívelem:http://leismunicipais/usmfxAleifoiregulamentadaapenasem2023,coma ediçãodoDecretonº22263/2023,queestabeleceuainstituiçãodoComitêPermanentede Resiliência(CPR),órgãoqueatéomomentonãofoiinstaurado,consoanterespostaapresentada peloExecutivoDisponívelem:http://leismunicipais/0w1db 9OPlanodeResiliênciatinhacomoobjetivotornaroMunicípiodePortoAlegrereferênciaem resiliênciaurbananaAméricaLatinaatéoanode2025 10Decretosnº20229/2019(art4º);nº20758/2020(art274);enº21539/2022(arts2º,6ºe191) 11PortoAlegrerecebeuotítulode"HubdeResiliência",em17/08/2023,certificaçãoconferidapelo EscritóriodasNaçõesUnidasparaaReduçãodoRiscodeDesastres(UNDRR)epeloComitêde CoordenaçãoGlobaldaIniciativaConstruindoCidadesResilientes2030(MCR2030)Videnotícia veiculadanositedaPrefeitura:https://prefeiturapoabr/gp/noticias/porto-alegre-recebe-titulo-dehub-de-resiliencia-durante-encontro-do-iclei
12Disponívelem:http://leismunicipais/usmfxAleifoiregulamentadaapenasem2023,coma ediçãodoDecretonº22263/2023,queestabeleceuainstituiçãodoComitêPermanentede
Assinado digitalmente por: Marcelo Kipper da Silva em 14/07/25, Leandro Lobato Camargo em 14/07/25, Leandro Torres em 14/07/25, Fabio Alex Beling em 14/07/25 e outro(s). Confira a autenticidade do documento em www.tce.rs.gov.br. Identificador: PRE.FE77.2360.2A1D.FC7C.62D4.

ESTADODORIOGRANDEDOSUL TRIBUNALDECONTAS
DIREÇÃODECONTROLEEFISCALIZAÇÃO SERVIÇODEAUDITORIADEPORTOALEGRE

Resiliência(CPR),órgãoqueatéomomentonãofoiinstaurado,consoanterespostaapresentada peloExecutivoDisponívelem:http://leismunicipais/0w1db
13OPlanodeResiliênciatinhacomoobjetivotornaroMunicípiodePortoAlegrereferênciaem resiliênciaurbananaAméricaLatinaatéoanode2025
14Disponívelem:https://portalinmetgovbr/noticias/el-ni%C3%B1o-2023-saiba-detalhes-sobre-omonitoramento-previs%C3%B5es-e-os-poss%C3%ADveis-impactos-do-fen%C3%B4meno-nobrasilAcessoem:03/03/2025
15Disponívelem:https://metsulcom/el-nino-acompanha-maioria-das-grandes-enchentes-de-portoalegreAcessoem:03/03/2025
16Consórciocontratadoparaprestaçãodeserviçostécnicosespecializadosdegerenciamentoe assistênciatécnica,pormeiodecontratodedesempenhovisandooaumentodaeficiência operacionaldoserviçodeáguaesaneamentodoDMAE
17Disponívelem:https://metsulcom/2024-01-11-el-nino-pacifico-copernicus-noaa/Acessoem 03/03/2025
18Disponível em: https://dataservercptecinpebr/dataserverdiptc/web/Painel-Elnino/20232024/painelelninoboletimmensalno05pdfAcessoem03/03/2025
5.3.4FaltadeEstruturaçãodePessoal-Nãoatendimentodospleitosde reposiçãodeservidoresedereestruturação/modernizaçãodoquadrogeraldoDMAE
Situaçãoencontradapelaequipedeauditoria
Nosúltimos10(dez)anosobservou-seumarelevantereduçãodoquadrodepessoal doDMAE,verificando-sequeopercentualdecargosocupadospassoude49,0%em2014para 28,8%emabril/20241,oquesignificaaexpressivareduçãode808cargosocupados(perdade 43,56%),conformeseverificanoquadroaseguir:
Quadro10–QuadrodepessoaldoDMAEaolongodosanos
Ano CargosCriados Cargos Ocupados
decargos Variaçãoano anterior Peça
2014 3785 1855 49,0% (peça6718572)
2015 3742 1790
2016 3643 1721
(peça6718573)
(peça6718574)
2017 3662 1609 43,9% -6,5% (peça6718542)
2018 36322 1509
(peça6718575)
2019 3632 1366 37,6% -9,5% (peça6718576)
2020 3632 1296 35,7% -5,1% (peça6718577)
2021 3632 1277 35,2% -1,5% (peça6718578)
2022 3632 1178 32,4% -7,8% (peça6718543)
2023 3632 1069 29,4% -9,3% (peça6718579)
2024(Abril) 3632 1047 28,8% -2,1% (peça6718580)
Deacordocomoart4ºdaLeiMunicipalnº6203/19883,paraconsecuçãodassuas finalidades,oquadrodecargosdoDMAEéestruturadonosseguintesgrupos,conformea naturezadasrespectivasatribuições:
I-GrupoApoioàAdministração:atividadesdeapoioàsáreasdetributaçãoe arrecadação, à pesquisa, planejamento, orientação, coordenação e à administraçãotécnica;
II-GrupoOperacional:atividadesartesanaisouqueexijamhabilidademanual 207
Assinado digitalmente por: Marcelo Kipper da Silva em 14/07/25, Leandro Lobato Camargo em 14/07/25, Leandro Torres em 14/07/25, Fabio Alex Beling em 14/07/25 e outro(s). Confira a autenticidade do documento em www.tce.rs.gov.br. Identificador: PRE.FE77.2360.2A1D.FC7C.62D4.


especializada;
III-GrupoAtividadesComplementares:atividadesdeapoioeserviçosgerais;
IV-GrupoComunicação:atividadesdeapoioàsáreasdecomunicação;
V-GrupoFiscalizaçãoeVigilância:atividadesdevigilânciaedecontroledo cumprimentodalegislaçãopertinenteàrespectivaárea;
VI - Grupo Obras: atividades de apoio aos serviços de obras, arquitetura, engenhariaeatividadesafins;
VII - Grupo Saúde eAssistência: atividades de apoio à área de saúde e assistênciamédico-socialeoutrasatividadesafins;
VIII-GrupoTécnico-Profissional:atividadesdenaturezatécnico-profissional para cujo exercício é exigido curso de grau médio ou habilitação legal equivalente;
IX-GrupoExecutivoeAssessoramentoSuperior:atividadesdeexecuçãoe assessoramentosuperiordenaturezatécnico-científica,paracujoexercícioé exigidoníveluniversitárioouhabilitaçãolegalequivalente (Redaçãodadapela Leinº6412/1989)
Nesseaspecto,considerando-seapenasoscargosdemaiorrelevânciaparaoDMAE 4,observou-seumaexpressivaquedanoscargosdenaturezaoperacionaldaAutarquia,ouseja doscargosresponsáveispelaexecuçãodasatividadesfinalísticasdoórgão,assimcomonos cargospertencentesaogrupoobrasedeapoioàadministração,consoantedemonstradonos quadrosabaixo,referenteàevoluçãodoquadrodepessoalcomodetalhamentodoscargose seusrespectivosgrupos: Quadro11–EvoluçãoQuadrodePessoal-GrupoOperacional
Assinado digitalmente por: Marcelo Kipper da Silva em 14/07/25, Leandro Lobato Camargo em 14/07/25, Leandro Torres em 14/07/25, Fabio Alex Beling em 14/07/25 e outro(s). Confira a autenticidade do documento em www.tce.rs.gov.br. Identificador: PRE.FE77.2360.2A1D.FC7C.62D4.

Quadro12–EvoluçãoQuadrodePessoal-GrupoObras
Cargo Total Cargos Criados
TotalCargosOcupados

Quadro13–EvoluçãoQuadrodePessoal-GrupoApoioàAdministração
Cargo Total Cargos Criados
TotalCargosOcupados 20142015201620172018201920202021202220232024
AssistenteAdministrativo 400 236208186171149138137134118124123 Total 400 236208186171149138137134118124123
Aacentuadaquedanareposiçãodeservidoresimpactouaformaçãoeaorganização dasequipes.Nosúltimos5(cinco)anos,observou-seumarelevantefragilização,apontode haverumnúmeroexpressivodeequipesformadascomapenas01(um)servidor(entre19a26 equipes)Alémdecontrariaralógicadaformaçãodeumaequipe,paraqualsepressupõeum conjuntodenomínimo2(duas)pessoas,essasituaçãoevidenciaaconcessãoindevidade funçõesgratificadasaservidoresdesignadosparaliderarequipes,mesmosemsubordinados
Quadro14–Equipesformadascomapenas01(um)servidor
Equipede Proteção ContraCheias (GDCO)
ProteçãoContra Cheias(GDCO) EquipedeProteção ContraCheias(GDCO) EquipedeProteção ContraCheias(GDCO) EquipedeProteção ContraCheias(GDCO)

DIREÇÃODECONTROLEEFISCALIZAÇÃO SERVIÇODEAUDITORIADEPORTOALEGRE
Equipede Programação de Manutenção Mecânica (GMAN)
Equipede ApoioTécnico deRedes (GDCO)
Equipede ApoioTécnico deAdutoras (GDCO)
Equipede Relações Públicas (UCS)
Equipede Entregade Contas (GCON)
Equipede ControleI (GDCO)
Equipede ApoioTécnico (UCS)
Equipede Elétrica (GMAN)
Equipede Licenciamento Ambiental (GATE)
Equipede Cadastro,de Distribuiçãoe deControle Financeiroe dePessoal (PME)
Equipede Análises Instrumentais emAbsorção Atômica (GATE)
Equipede ObrasCivis (GEPO)
Equipede Controle (GLOG)
Equipede Biologia Aquáticae Ecotoxicologia (GTAG)
Equipede Programaçãode Manutenção Mecânica (GMAN)
EquipedeApoio TécnicodeRedes (GDCO)
EquipedeApoio Técnicode Adutoras(GDCO)
Equipede RelaçõesPúblicas (UCS)
EquipedeEntrega deContas (GCON)
Equipede ControleI(GDCO)
EquipedeApoio Técnico(UCS)
Equipede Manutençãode Pluvial(GMAN)
Equipede Licenciamento Ambiental(GATE)
Equipede Cadastro,de Distribuiçãoede Controle Financeiroede Pessoal(PME)
Equipede Sistemade Segurançae Telecomunicações (GSER)
EquipedeObras Civis(GEPO)
Equipede Controle(GLOG)
EquipePostode Atendimentoao ClienteII(GCLI)
EquipedeProgramação deManutençãoMecânica (GMAN)
EquipedeProgramação deManutençãoMecânica (GMAN)
EquipedeApoioTécnico deRedes(GDCO)
EquipedeApoioTécnico deAdutoras(GDCO)
EquipedeRelações Públicas(UCS)
EquipedeEntregade Contas(GCON)
EquipedeControleI (GDCO)
EquipedeApoioTécnico (UCS)
EquipedeManutençãode Pluvial(GMAN)
EquipedeLicenciamento Ambiental(GATE)
EquipedeCadastro,de DistribuiçãoedeControle FinanceiroedePessoal (PME)
EquipedeSistemade Segurançae Telecomunicações (GSER)
EquipedeObrasCivis (GEPO)
EquipedeControle (GLOG)
EquipeProjeto Hidrossanitário(GPLA)
EquipedeApoioTécnico deRedes(GDCO)
EquipedeApoioTécnico deAdutoras(GDCO)
EquipedeRelações Públicas(UCS)
EquipedeEntregade Contas(GCON)
EquipedeControleI (GDCO)
EquipedeEducação Ambiental(UCS)
EquipedeManutençãode Pluvial(GMAN)
EquipedeLicenciamento Ambiental(GATE)
EquipedosPlanos Diretores(GPLA)
EquipedeSistemade Segurançae Telecomunicações (GSER)
EquipedeGestãode Recursos Financeiros(GFIN)
EquipedeAtendimento VirtualIII(GCLI)
EquipeProjeto Hidrossanitário(GPLA)

EquipedeProgramação deManutençãoMecânica (GMAN)
EquipedeApoioTécnico deRedes(GDCO)
EquipedeApoioTécnico deAdutoras(GDCO)
EquipedeRelações Públicas(UCS)
EquipedeEntregade Contas(GCON)
EquipedeControleI (GDCO)
EquipedeApoioTécnico (UCS)
EquipedeManutençãode Pluvial(GMAN)
EquipedeQuímica I(GATE)
EquipedeCadastro,de DistribuiçãoedeControle FinanceiroedePessoal (PME)
EquipedeSistemade Segurançae Telecomunicações (GSER)
EquipedeGestãode Recursos Financeiros(GFIN)
EquipedeAtendimento VirtualIII(GCLI)
EquipeProjeto Hidrossanitário(GPLA)
Assinado digitalmente por: Marcelo Kipper da Silva em 14/07/25, Leandro Lobato Camargo em 14/07/25, Leandro Torres em 14/07/25, Fabio Alex Beling em 14/07/25 e outro(s). Confira a autenticidade do documento em www.tce.rs.gov.br. Identificador: PRE.FE77.2360.2A1D.FC7C.62D4.

ESTADODORIOGRANDEDOSUL TRIBUNALDECONTAS
DIREÇÃODECONTROLEEFISCALIZAÇÃO SERVIÇODEAUDITORIADEPORTOALEGRE
Equipede Apoioa Projetos Especiais (DT)
Equipede ControleIV (GDCO)
Equipede Análisesde Instrumentais I(GTAG)
Equipede Microbiologia Ambiental (GATE)
Equipede Lavageme Desinfecção de Reservatórios (GTAG)
EquipedeApoioa ProjetosEspeciais (DT)
EquipePostode Atendimentoao ClienteIII(GCLI)
Equipede Projetos Complementares (GEPO)
EquipedeSuporte aEducação Continuada (GPES)
EquipedeApoioa ProjetosEspeciais(DT)
EquipePostode AtendimentoPresencialIII (GCLI)
EquipedeGestãode ServiçosTerceirizados (GLOG)
EquipedeSuportea EducaçãoContinuada (GPES)
EquipedosPlanos Diretores(GPLA)
EquipedePerdas Comerciais(GCON)
EquipeETELami(GATE)
EquipedeControleIII (GDCO)
EquipedeProgramação deManutençãoElétrica (GMAN)
EquipeLaboratóriode Hidrômetro(GCON)
EquipedeGestãodo PatrimônioImobiliário (GSER)
EquipedoPonto Eletrônico(GPES)
EquipePostode AtendimentoPresencialIII (GCLI)
EquipedePerdas Comerciais(GCON)
EquipedeApoioTécnico dePerdas(GDCO)

EquipedoPonto Eletrônico(GPES)
EquipePostode AtendimentoPresencialIII (GCLI)
EquipedeGestãode ServiçosTerceirizados (GLOG)
EquipedeApoioTécnico dePerdas(GDCO)
EquipedeAlmoxarifadoI (GSUP)
EquipedeInstalação Mecânicas(GMAN)
EquipeETELami(GATE)
EquipedeControleIII (GDCO)
EquipedeProgramação deManutençãoElétrica (GMAN)
20Equipes 19Equipes 26Equipes 19Equipes 24Equipes
Fonte:TabelaelaboradaapartirdasinformaçõesobtidasemrespostaàRDI666502 (peça6718535)(peça6718434)(peça6718461)(peça6718462)(peça6718464)
Dentreasdiversasequipesdesfalcadas,destaca-seafaltadeestruturaçãoda
EquipedeProteçãoContraCheias,responsávelporacompanharasoperaçõesemanutenções dascasasdebombas(EBAPs),dascomportasedoMurodaMauáeseusportõesequipamentosqueintegramoSistemadeProteçãoContraCheias(SPCC)Taisatividadeseram deextremarelevânciadiantedasfalhasocorridasnoSPCCemrazãodasenchentesque assolaramacidade,econtinuamsendoessenciais,dadaaurgentenecessidadederecuperare implementarumsistemacapazdegarantiraproteçãodePortoAlegre
Cumpresalientarqueaausênciadereposiçãodepessoalfoiobjetodeapontamento norelatóriodeauditoriadoProcessodeInspeçãoEspecialnº363-0200/19-4(exercícios examinados2017a2019),sendofortementedestacadasasconsequênciaslesivasda irregularidade,comimpactosdiretosecomprometimentodacapacidadeoperacionalda Autarquia,implicandoriscosdecolapsoeparalisaçãodosserviçosessenciaisprestadosà 211

ESTADODORIOGRANDEDOSUL TRIBUNALDECONTAS
DIREÇÃODECONTROLEEFISCALIZAÇÃO SERVIÇODEAUDITORIADEPORTOALEGRE

populaçãoeresultando,ainda,emperdasdefaturamentodoórgão,decorrentesdeperdas físicasecomerciais,paraasquaisfoidemonstradaaefetivacorrelaçãoentreadiminuiçãoda forçadetrabalhoeoaumentodasperdas.
Comoimpactosnegativosdafaltadereposiçãodepessoaltambémforam salientadas as dificuldades de planejamento, projeto, contratação, fiscalização e acompanhamentocontratual,circunstânciasqueimpõemafragilizaçãodaestruturadoDMAE enquantoórgãodeengenhariaedasuacapacidadeparaelaboraçãodenovosprojetos reestruturanteseinvestimentoscomrecursosprópriosparaoatingimentodesuasmetas institucionais
Ademais,importantedestacarque,juntamentecomaausênciaderemuneração tarifária,afaltadeprovimentodepessoaleaconsequenterestriçãodacapacidade operacionaldoDMAE,emrazãodainterferênciadoExecutivonaautonomiadaautarquiaedo impedimentodanecessáriarecomposiçãodoquadrodeservidores,foramapontadascomo relevantesfatoresderiscoparaassunçãodascompetênciasdoDEPParamelhor entendimentodaanáliserealizadaseguetranscriçãodeexcertosdorelatóriodeauditoria(peça 6718531,p106e107):
Verifica-seque,deacordocomasinformaçõesprestadas,asdespesasdas atividadesdoDEPtransferidasaoDMAEsãoestimadasemR$44milhõesao ano, não incluídos nesse valor custos de energia elétrica (R$ 2 milhões), repavimentação,transporte,entreoutras.Porsuavez,osvaloresarrecadados naalíquotadaTarifa3–EsgotoPluvialsituam-seatualmenteemtornodeR$50 milhões/ano, uma média de 4,2 milhões ao mês Há, portanto, relativa compatibilidade entre os valores despendidos (R$ 46 milhões + custos de repavimentaçãoetransporte)earrecadados(R$50milhões)
NoquedizrespeitoàsatividadesdeDrenagemUrbanaeProteçãoContra CheiasdoMunicípiodePortoAlegre,nostermosestabelecidosnaLeiMunicipal n 2312/61enoConvênioqueestabeleceascondiçõesdeatuaçãodoDMAE, verifica-sequeosrecursosnecessáriosparasuaexecuçãoserãoprovidospela arrecadaçãodaTarifa3–EsgotoMistoe/ourepassadospelaAdministração Central,deformaagarantirqueosvaloresarrecadadosparaaremuneração dosserviçosdeáguaeesgotocloacalnãosejamdesviadosparaessefim ( )
ConformeostermosdoConvênioquedefineostermosdaincorporaçãodas atividadesdoDEPpeloDMAE(peça2203922):
61-OsservidoresalocadospeloMUNICÍPIOparaoatendimentodoobjeto desteconvênioserãodisponibilizadosaoDMAEmediantecedência,comônus paraoDMAE,observadaalegislaçãopertinente
Considerandoqueapenaspartedosservidoreseserviçosfoiabsorvidapelo DMAE,encaminhou-seRDIn 132/2019(peça2203934),solicitandoovalor mensalestimadoparacobrirasdespesasdecorrentesdafolhadepagamentodo pessoaloriundodoDepartamentodeEsgotosPluviaiscedidosaoDMAE.Foram 212
Assinado digitalmente por: Marcelo Kipper da Silva em 14/07/25, Leandro Lobato Camargo em 14/07/25, Leandro Torres em 14/07/25, Fabio Alex Beling em 14/07/25 e outro(s). Confira a autenticidade do documento em www.tce.rs.gov.br. Identificador: PRE.FE77.2360.2A1D.FC7C.62D4.

ESTADODORIOGRANDEDOSUL TRIBUNALDECONTAS
DIREÇÃODECONTROLEEFISCALIZAÇÃO SERVIÇODEAUDITORIADEPORTOALEGRE

informados, na forma de tabela, o nome de cada servidor, o salário correspondente e o somatório dos valores despendidos mensalmente, totalizadosemR$492403,66/mês,ouR$6milhõesaoano Note-sequeentre oscargosocupadospelosservidorescedidos,verifica-sehaverapenasum assistenteadministrativo
Noentanto,nãoestãoincluídasnessevalordespesasadministrativas,jurídicas (demandasdeanálisespelaProcuradoriaMunicipalEspecializada–DMAE)e degestão,sendoquesomenteafolhadepagamentotransferidaaoDMAE representaR$6milhõesnocomprometimentodoorçamentodoDMAE,despesa quenãopodesercompensadacomosvaloresarrecadadospelaTarifa3Além disso,ofatodesecontarcomapenasumagenteadministrativoparaatendero aumentodedemandaqueastarefasdoDEPrepresentam,eestandooDMAE extremamente fragilizado no atendimento de suas próprias necessidades administrativas, conduz a uma situação temerária quanto à capacidade de atendimentoàsdemandasdoDEP
Portanto,visualiza-seque,emboraacompetênciatécnicadoDMAEindiqueque a absorção das funções de manutenção do sistema de drenagem garanta melhor aplicação dos recursos da Tarifa 3 e melhoria das condições de manutençãodossistemasdedrenagem–oquejásevisualiza–comganho paraomunicípiotendoemvistaamaiorcapacidadetécnicaeoperacionaldo DMAE, as restrições impostas ao DMAE pelo Chefe do Executivo, com intervençãonaautonomiadaautarquia,impedindoarealizaçãodeconcursos pararecomposiçãoaomenosparcialdoquadrodeservidoresimportamsérias restriçõesàcapacidadedegestãodoDEPpeloDMAE 413CONCLUSÕES
Conclusivamente, a Equipe deAuditoria avalia que de forma geral e considerandoacapacidadeoperacionalecompetênciatécnicadoDMAE, hábenefíciosnaincorporaçãodosserviçosdoDEPpeloDMAE.
Entretanto,considerando:
I(sic)nãohaverremuneraçãotarifáriaparaaimplementaçãodeobraseparaa operaçãodosserviçosdedrenagem,excetoparaatividadesdemanutenção–paraasquaisháumagradativareduçãoremuneratóriaatreladaàreduçãoda Tarifa3,equeaPMPAvivenciagravesrestriçõesorçamentárias;
II(sic).nãohaverprovimentodepessoalparaaassunçãodasdemandas degestão,jurídicaseadministrativasexigidasparaobomdesempenho dasatividadesdoDEP,equeoDMAEenfrentagravesrestriçõesdasua capacidadeoperacionalemdecorrênciadafaltadepessoal,avalia-serisco de enfrentamento de graves problemas para a implementação das necessidades operacionais e de expansão dos serviços de drenagem urbanaplanejadosemPortoAlegre
(Grifou-se)
Diantedacontinuidadedareduçãodosquantitativosdeservidoresdoquadrogeral decargosdoDMAE,aEquipedeAuditoriaprocedeuàanáliseminuciosade96processos administrativosinstaurados,comtramitaçãonoperíodode2017a2024,referentesa 213
Assinado digitalmente por: Marcelo Kipper da Silva em 14/07/25, Leandro Lobato Camargo em 14/07/25, Leandro Torres em 14/07/25, Fabio Alex Beling em 14/07/25 e outro(s). Confira a autenticidade do documento em www.tce.rs.gov.br. Identificador: PRE.FE77.2360.2A1D.FC7C.62D4.

ESTADODORIOGRANDEDOSUL TRIBUNALDECONTAS
DIREÇÃODECONTROLEEFISCALIZAÇÃO SERVIÇODEAUDITORIADEPORTOALEGRE

solicitaçõesdereposiçãodepessoal,aproposiçõesdereadequaçãodoquadrodepessoaldo Departamento,aprojetosdeleivisandoaefetivaçãodecontrataçõestemporáriasedemais processospertinentes.
NesseperíodooDMAEteveseuspleitosadministrativossubordinadosàsdecisões doPrefeitoMunicipaledoComitêparaGestãodeDespesasdePessoal(CGDEP)5 , posteriormentesubstituídopeloComitêMunicipalparaGestãodeDespesasdePessoal(CMDP), apartirdaemissãodoDecreto21.514,de8dejunhode20226.Osreferidoscomitêstratam-se deinstânciasvinculadasdiretamenteaoGabinetedoPrefeito,possuindoatribuições relacionadasàfixaçãodediretrizesrelativasàpolíticadepessoalnoâmbitodaadministração diretaeindiretamunicipal;àanáliseeaprovaçãodacriação,transformaçãoeextinçãodecargos eempregosdaadministraçãodiretaeindiretamunicipal;eàanálisedanomeaçãode concursadosedaadmissãodeempregadosnoquadropermanente
Concluídaaanálisedosexpedientesinstaurados,constatou-sequeaestruturação depessoaldoDMAEmanteve-semuitoaquémdonecessárioparaoadequado cumprimentodassuascompetênciaslegais,sendoque,noperíodo,foramapresentados inúmerosalertastécnicossobreriscosdecolapsoeparalisaçãodosserviçosde abastecimentoetratamentodeáguaeesgotos,bemcomosobreanecessidadede reposição/incrementodeservidoresemrazãodaassunçãodasatividadesrelacionadasà conservação,operaçãoemanutençãodasredespúblicasdedrenagemecasasdebombas (SistemadeProteçãoContraCheias).
Aseguir,sãodestacadososprincipaisprocessosqueevidenciaramanecessidadede recomposiçãodoquadrodepessoaldaAutarquia,bemcomoosriscosdecorrentesdanão observânciadasdemandaspleiteadas.Essesprocessosdemonstramaexistênciadeumcenário deprecariedadeedeincapacidadeoperacionaldoórgãoparacumprirnãoapenasas competênciasrelacionadasaossistemasdedrenagemedeproteçãocontracheias,mastambém aquelasvinculadasaoabastecimento,bombeamentoetratamentodeáguasedeesgotos cloacais
Constata-se,portanto,queafaltadepessoalconfiguraumproblemaestrutural generalizado,comimpactosdiretossobreagestãoeaefetividadedetodososserviçossob responsabilidadedaAutarquia.
Abaixo,sãorelacionadososprocessos,cujasanálisespormenorizadasconstam noAnexo-AnáliseExpedientesReposiçãodePessoaldopresenterelatório:
•Processonº1810000003153-9(peça6718581);
•Processonº1810000009190-6(peça6718582);
•Processonº1910000001067-7(peça6718525);
•Processonº2010000006485-3(peça6718544);
•Processonº20.10.000007016-0(peça6718583);
•Processonº2110000000769-3(peça6718584);
•Processonº21.10.000002787-2(peça6718586); 214


•Processonº2110000003292-2(peça6718587);
•Processonº2210000011658-7(peça6718545);
•Processonº23.10.000005213-4(peça6718588);
Alémdainstauraçãodeprocessosquedemonstraramaprementenecessidadede recomposiçãodoquadrodeservidores,aadministraçãocentralizadatambémfoiinstadaase manifestarsobrepleitosdeincremento,reestruturaçãoemodernizaçãodoquadrodepessoaldo DMAE.EssesexpedientestiveramcomoobjetivooencaminhamentodeprojetosdeleiàCâmara Municipalparafinsdeincrementaronúmerodecargosoperacionaisnecessáriosàs composiçõesdeequipesedeadequaroórgãoaummodelocentradonogerenciamento, controle,acompanhamentoefiscalizaçãodecontrataçõesdeserviços,comadiminuiçãode cargosnãomaiscondizentescomaatualrealidadedoDMAE,emrazãodocrescenterepasseda execuçãodeserviçosaempresascontratadasedaconsequentediminuiçãodarealizaçãodireta dessesserviçosporservidoresouempregadospúblicos
Nesseaspecto,houveatramitaçãodetrêsprocessosadministrativos,paraosquaisa administraçãocentralizada,injustificadamente,nãodeuqualquerseguimento,bemcomonão apresentounenhumasoluçãoalternativaparamitigaçãodosriscosqueresultaramdessas decisõesAbaixo,sãorelacionadososprocessos,cujasanálisespormenorizadasconstam noAnexo-AnáliseExpedientesReestruturação/ModernizaçãoQuadroGeraldeCargosdo presenterelatório:
•Processonº20.10.000001166-0(peça6718589);
•Processonº2110000003952-8(peça6718590);
•Processonº2210000004786-0(peça6718591)
Paramelhorilustraraspropostasdecriaçãoedeextinçãodecargospretendidascom osreferidosprojetosdelei,colacionam-seasseguintestabelas:
Quadro15–Propostasdecriaçãodecargos
Processo
2010000001166-0 Propostoem 10/02/2020
Processo 2110000003952-8 Propostoem 07/07/2021
Processo 2210000004786-0 Propostoem 10/06/2022
Processo 22.10.000004786-0 (Projeto Reduzido)Proposto em11/08/2022


Assinado digitalmente por: Marcelo Kipper da Silva em 14/07/25, Leandro Lobato Camargo em 14/07/25, Leandro Torres em 14/07/25, Fabio Alex Beling em 14/07/25 e outro(s). Confira a autenticidade do documento em www.tce.rs.gov.br. Identificador: PRE.FE77.2360.2A1D.FC7C.62D4.

ESTADODORIOGRANDEDOSUL TRIBUNALDECONTAS
DIREÇÃODECONTROLEEFISCALIZAÇÃO SERVIÇODEAUDITORIADEPORTOALEGRE

Fonte:Dadosdasminutasdeprojetosdeleiconstantesnosprocessos2010000001166-0 (peça6718589,p.36a45),21.10.000003952-8(peça6718590,p.20a26)e22.10.0000047860(peça6718591,p1a16e62a75)
Feitasasconsideraçõessobreosexpedientesquetrataramsobreospedidosde reposiçãoedeincrementodepessoal,atravésdareadequaçãodoquadrogeraldecargosda autarquia,cabesalientarqueaincapacitaçãooperacionaldaentidadesónãofoipioremrazão daautorização,peloExecutivoMunicipal,dassolicitaçõesdecontrataçõestemporáriasde servidores,especialmenteparaoexercíciodeatividadesoperacionais,necessáriasparaa operaçãoemanutençãodosserviçosdeabastecimentoetratamentodeáguaeesgotos,bem comodamanutençãodosserviçosrelacionadosaosistemadedrenagem(esgotospluviais)
Noentanto,aomesmotempoqueessasprovidênciasmitigaramprejuízosainda maioresaocumprimentodasfunçõesdoórgão,tambémsemostraraminsuficientesparaqueo DMAEestivesseaptoaexerceradequadamentesuascompetênciasatinentesàoperação, manutenção,expansãoeaodesenvolvimentoeimplantaçãodemelhoriasnoSPCCOutrossim, asjustificativasapresentadasparaessascontrataçõesdenotamoplenoconhecimentodos problemasexistentesdefaltadepessoalpeloPrefeitoMunicipalesuasimplicaçõescoma incorporaçãodascompetênciaseestruturasdoDEP
Abaixo,sãorelacionadososprocessosinstauradosqueculminaramnaefetivaçãode sucessivascontrataçõestemporáriasparaodesempenhodeatividadesdenaturezacontínuae permanentenoâmbitodoDMAE,cujasanálisespormenorizadasconstamnoAnexo-Análise ExpedientesContrataçõesTemporáriasdopresenterelatório:
•Processonº2010000002341-3(peça6718546);
•Processonº2110000004664-8(peça6718592);
•Processonº22.0.000007066-5(peça6718523); 217

ESTADODORIOGRANDEDOSUL TRIBUNALDECONTAS
DIREÇÃODECONTROLEEFISCALIZAÇÃO SERVIÇODEAUDITORIADEPORTOALEGRE
•Processonº2210000007070-6(peça6718593);
•Processo230000064559-1(peça6718594);
•Processo23.10.000011948-4(peça6718595).

ApartirdaanálisedessesprocessosecombasenosrelatóriosobtidosnoPortalde Transparênciadomunicípio7 (peça6718547)enasinformaçõesobtidasdoDMAE(peça 6718519)(peça6718534)(peça6718520)(peça6718521)(peça6718522),verificou-sequeas admissõesdeservidorestemporáriostiveraminícioemdiferentesperíodos,sendoque,somente apartirdeabrilde2023,houveaalocaçãodeservidoresematividadesrelacionadasàs competênciasdoextintoDEP,atinentesaosistemadeesgotospluviaisAlémdisso,constatou-se que,noperíododenovembrode2021ajunhode2022,nãohouvenenhumacontratação temporáriaemvigor
Notocanteàscontrataçõesdeserviçosterceirizados,emrespostaàRDI642242 (peça6718596),oDMAEinformouque,noperíodode2019a2024,comoalternativaàfaltade reposiçãodepessoal,foramrealizadascontrataçõesparaaexecuçãodasatividadesqueseriam atribuiçõesdoscargosdeTécnicoIndustrial,MontadorEletromecânico,AuxiliardeServiços Técnicos,GuardasMunicipaiseOperáriosEspecializados(peça6718597)(peça6718598):
1-Diantedanecessidadedereposiçãodepessoal,informarse,noperíodode 2019a2024,houvearealizaçãodecontrataçõesdeserviçosterceirizadospelo DMAE,comoalternativaàimpossibilidadedeadmissãodepessoalporconcurso públicoouprocessoseletivoCasopositivo,apresentarrelação(informarnúmero doprocessoSEI,nomedacontratada,númeroeobjetodocontrato,datade assinaturaeperíododevigênciadocontrato)edisponibilizaracessoaos respectivosprocessos
Houvearealizaçãodecontrataçõesdeserviçosterceirizadosparaasatividades executadaspelosservidoresdetentoresdoscargosdetécnicoindustrial, montadoreletromecânico,auxiliardeserviçostécnicos,guardasmunicipaise operáriosespecializados(planilha29753769,comquadroresumodessas contratações);e,naGSUPpeloexpediente2010000007480-8deprestaçãode serviçodeauxiliardealmoxarifado,comatuaçãonosalmoxarifados.
Dessemodo,restaevidenciadoqueascontrataçõesdeserviçosterceirizados tambémnãoforamsuficientesparamitigaçãodosproblemasenfrentadosatinentesàcapacidade operacionaldoDMAE,demodoqueareposiçãoeoincrementodepessoalsãonecessáriospara queoórgãopresteadequadamenteassuascompetências
Emquepeseoconjuntodedadosapresentadosesituaçõesrelatadasjá seremsuficientesparaconclusãoquantoàinadequaçãodaestruturadepessoalexistenteno DMAEeoconsequenteimpactonocumprimentoenaqualidadedosserviçosprestadospela autarquia,tambémépertinenteaapresentaçãodosdadosindicadorescomparativosmais recentesdecapitaisbrasileirasecidadesdeportesemelhanteaPortoAlegre,nosmesmos moldes da apresentação feita e registrada pelo Diretor-Geral Adjunto no Processo2110000000769-38,osquaiscorroboramessaconclusão 218

ESTADODORIOGRANDEDOSUL TRIBUNALDECONTAS
DIREÇÃODECONTROLEEFISCALIZAÇÃO SERVIÇODEAUDITORIADEPORTOALEGRE

AfimdeatualizaroestudoregistradonoSEIinformado,aEquipedeAuditoriaextraiu osdadosmaisrecentesdosrelatóriosdoPortaldoSINISA9(SistemaNacionaldeInformações emSaneamentoBásico)(peça6718599)(peça6718548)(peça6718600)(peça6718601) (peça6718602)(peça6718603)(peça6718549),sendoosresultadossintetizadosnaplanilha emanexo(peça6718604)
Analisandoosdadosatualizados,inicialmente,verifica-seadiscrepânciado quantitativodepessoalprópriodoserviçodedrenagememanejodeáguaspluviaisinformado pelomunicípio(182servidores)eoquantitativodeservidoresefetivamenteatuantesnas atividadesdoextintoDEP(89servidoresem2023),consoanteasinformaçõesprestadaspelo DMAE,tambémconsignadasnoachado"FragilidadesnaIncorporaçãodasCompetênciasdo DepartamentodeEsgotosPluviais(DEP)".
Istoposto,constata-sequeapenasBelém-PApossuiumquadrodecolaboradores menordoqueodePortoAlegrePorém,acapitalparaense,juntamentecomRecife-PE,sãoas cidadesqueapresentamindicadoresdesaneamentosignificativamenteinferioresàcapital gaúcha,especialmentenoquedizrespeitoàcoletaetratamentodeesgotos(índicesde atendimentode19,34%e41,59%,respectivamente)Portanto,evidencia-seainadequaçãodo atualquadrodepessoalparaaexecuçãodascompetênciasdoDMAE,umavezque,mesmo considerandoonúmerodetrabalhadoresterceirizados,PortoAlegreencontra-seem desvantagememrelaçãoaoutrascidadesdeportesemelhante
Consequênciasparaaadministraçãoesociedade
Onãoatendimentodassolicitaçõesdereposiçãoedeincrementodeservidores,bem comodasproposiçõesquevisavamàreadequaçãoemodernizaçãodoquadrogeraldecargos doDMAE,resultouemprejuízosàestruturaçãoeàcapacidadeoperacionaldoórgãopara absorçãoecumprimentodascompetênciasrelacionadasaossistemasdedrenagemede proteçãocontracheias
Apolíticaadotadadenãoreposiçãoeincrementodepessoal,aliadaàsfragilidades atinentesàestruturaçãoorganizacionalinadequadadoórgão(achado"Fragilidadesna IncorporaçãodasCompetênciasdoDEP"),paraincorporaçãodascompetênciasrelacionadas aossistemasdedrenagem,deesgotopluvialedeproteçãocontracheias,resultaramem prejuízosaoplanejamentodeprojetoseaocumprimentosatisfatóriodasdemaisatividades incumbidasaoDMAErelativasàoperação,manutençãoecontroledosistemadeproteçãocontra cheias,sendodeterminantesparaainexecuçãodasaçõesnecessáriasparaaidentificaçãodas falhasexistenteseparaofracassodoórgãonagestão,manutenção,conservaçãoeoperaçãodo sistema
Afaltadeestruturaçãodepessoalimpactouaformaçãoeaorganizaçãodasequipes, resultandonumnúmeroexpressivodeequipesformadascomapenas01(um)servidor(entre19 a26equipes),nosúltimos5anos,dentreasquais,aEquipedeProteçãoContraCheiasA unidadeeraresponsávelpelaoperaçãode23EBAPs(CasasdeBombas)eportodoorestante docomplexoSPCC,paraaqualpressupor-se-iaanecessidadedoacompanhamentodasituação detodososarroiosedaadequaçãodascasasdebombas,dosdiques,domurodaMauáedas

ESTADODORIOGRANDEDOSUL TRIBUNALDECONTAS
DIREÇÃODECONTROLEEFISCALIZAÇÃO SERVIÇODEAUDITORIADEPORTOALEGRE

comportasexistentesTaisatividadeseramdeextremarelevânciae,diantedacomplexidadee diversidadedastarefasnecessárias,comoomonitoramentocontínuo,fiscalização,operaçãode sistemascomplexoserespostaaemergências,exigemconhecimentostécnicosespecíficosde engenhariacivil,mecânica,elétricaehidráulicapelomenosNãoerarazoável,portanto,o exercíciodessasatividadesporapenasumprofissionaltécnico
Aausênciadereposição,incrementoereestruturaçãodoquadrogeraldecargos teveimpactodiretonafaltadequalificaçãodoórgãoparaaexecuçãodeatividadesvoltadasao gerenciamento,fiscalizaçãoesupervisãodecontratos,atributosimprescindíveisparao acompanhamentodeprojetosedasobrasemandamento,voltadasàreestruturaçãoeà implementaçãodemelhoriasnossistemasdedrenagemedeproteçãocontracheias,que importamodispêndiodebilhõesdereaisOutrossim,aadequaçãodoquadrogeraldecargosdo DMAEtambémseimpõenocasodaefetivaçãodaconcessãoparcialdeserviçosdesaneamento almejadapelagestão,tendoemvistaanecessidadedoacompanhamento,regulaçãoe fiscalizaçãodosserviçosconcedidos
Ainjustificadaausênciadereposiçãoedeincrementodepessoal,decorrente dainérciadosadministradoresresponsáveis,foiaindautilizadacomofundamentoparaa efetivaçãodesucessivascontrataçõestemporárias,autorizadaspelaCâmaraMunicipal,pormeio dasLeisnº12715/2020,nº13032/2022,nº13113/2022,nº13345/2022,nº13561/2023,nº 13692/2023enº13779/2023Adespeitodailegalidadedarealizaçãodecontrataçõesporprazo determinadoparaatendimentodenecessidadespermanentes(atividadesdecarátercontínuoe permanente)enãotransitóriaseexcepcionais,ascontrataçõesocorreramemquantitativos inferioresaoestabelecidonasrespectivasleisautorizativas10eaoalmejadopeloDMAEemsuas proposiçõesdereadequaçãodoquadrogeraldecargos
Afaltadereposiçãoedeincrementodepessoaltambémresultounarealização excessivadehorasextraspelosservidores,demodoqueasobrecargadetrabalhoea submissãodejornadasexaustivastêmreflexosdiretosnasaúdefísicaementaldos trabalhadores,bemcomocomprometeaqualidadedosserviçosprestados,gerandoum ambientedetrabalhomaispropícioàocorrênciadeacidentesdetrabalho
Asdecisõespelanãoreposiçãodepessoalenãoincrementodoscargosatentaram contraosprincípiosdaeficiênciaedarazoabilidade(art.37,caputdaConstituiçãoFederaleart. 17daLeiOrgânicadePortoAlegre),bemcomoaosprincípiosimplícitosdamotivação,da continuidadedosserviçospúblicosedaprecaução(prevenção)Outrossim,implicaramofensa aodireitoaosaneamentopúblico,quepossuicaráterdeaçãodesaúdepúblicaedeserviço públicoessencialeconstitui-secomodireitoinalienávelgarantidoaoscidadãos(art224daLei Orgânica)OsatosadministrativospraticadospelosagentesdoExecutivoMunicipaltambém implicaraminterferêncianaautonomiaadministrativadoDMAE,econsequentemente, prejudicaramacapacidadedeautoadministraçãodoórgão,asseguradanoart5º,IdoDecretoLeinº200/1967
Consequentemente,afaltadeestruturaçãodepessoaleaincapacitaçãooperacional doDMAEparaocumprimentoadequadodascompetênciasrelacionadasaoSPCC,resultouem prejuízossignificativosaoeráriomunicipalEmboraaindanãototalmentequantificados,emrazão

ESTADODORIOGRANDEDOSUL TRIBUNALDECONTAS
DIREÇÃODECONTROLEEFISCALIZAÇÃO SERVIÇODEAUDITORIADEPORTOALEGRE

daexistênciademilharesdeaçõesindividuaisedaAçãoCivilPúblicadoMinistérioPúblico Estadual,postulandoacondenaçãodomunicípioaopagamentodeindenizaçõespordanos materiaisemoraisindividuais,osprejuízos(custospúblicos),relativosaoenfrentamentodacrise evoltadosàreconstruçãoerecuperaçãoestruturaldacidade,foraminicialmenteestimadosentre R$6eR$8bilhões,conformeestudoapresentadopelaprópriaPrefeituraMunicipal(peça 6718424).
Leiseoutrasnormasaplicáveisaocaso
PrincípiodaEficiência(art.37,caputdaConstituiçãoFederal);
LeiOrgânica(art94,IV,VeVII;art158,I;eart224);
PrincípiodaRazoabilidade(art.17daLeiOrgânica);
LeiMunicipalnº12629/2019;
LeiComplementarMunicipalnº872/2020; PrincípiosImplícitosdaMotivação,daContinuidadedosServiçosPúblicose daPrecaução(Prevenção);
LeiMunicipalnº12297/2017(PlanoPlurianual2018-2021);
LeiMunicipalnº12865/2021(PlanoPlurianual2022-2025);
Decreto-Leinº200/1967(art5º,I);
LeiMunicipalnº2312/1961(art2ºeart3º);
Decretonº21539/2022(art2º,incisoV)
LeiFederalnº10406/2002,artigo186;
RegimentoInternodoTribunaldeContasdoEstado(AprovadopelaResoluçãonº 1028/2015),art139
Conclusõesdaequipedeauditoria
Diantedetodooexposto,conclui-sequeaestruturaçãodepessoaldo DMAEmanteve-semuitoaquémdonecessárioparaosatisfatóriocumprimentodassuas competênciaslegais,situaçãoquefoitambémdeterminanteparaqueoórgãonãodispusesse dascondiçõesnecessáriasparaaadequadaabsorçãodascompetênciasincorporadasdoextinto DEP,especialmenteasrelacionadasàgestão,manutenção,conservaçãoeoperaçãodoSPCC, bemcomoaoplanejamentoeexecuçãodeobrasestruturantespraimplementaçãodasmelhorias queeramdemandadasparaoadequadofuncionamentodosistema
Nesseaspecto,énecessárioconsiderarocenáriodeincapacidadeoperacional generalizadaaoqualoórgãofoisubmetidonasúltimasgestõesAsprovidênciasadministrativas adotadas,emborainsuficientesparaasseguraraqualidadeidealdosserviçosprestados,foram prioritariamentedirecionadasaoatendimentomínimodascompetênciasrelacionadasaos sistemasdeabastecimentoetratamentodeáguaeesgotosEssediagnósticoéevidenciadono achado"FragilidadesnaIncorporaçãodasCompetênciasdoDEP",queapresentaa conclusãodequeoquantitativodeservidoresatuantesemfunçõesdoextintoDEP,alémdeser muitoinferioraoanteriormenteexistente,tambémnãorefleteemumquadrodeservidores alocadosexclusivamenteparaoatendimentodasatividadesdeesgotospluviais,dedrenageme doSPCC

ESTADODORIOGRANDEDOSUL TRIBUNALDECONTAS
DIREÇÃODECONTROLEEFISCALIZAÇÃO SERVIÇODEAUDITORIADEPORTOALEGRE

Portanto,comoconsequência,houveopreterimentonaalocaçãoderecursos humanosparaaexecuçãodasatividadesincorporadas,especialmenteaquelasvinculadasao SPCC.EssaconclusãotambéméreforçadapelasjustificativasapresentadaspeloPrefeito MunicipalnamensagemretificativaaoProjetodeLeinº027/23(peça6718594,p102a110), encaminhadaem15/09/2023,nasquaisseafirmaqueasnovasestruturasoriundasda incorporaçãodoDEPaindanãohaviamsidoplenamenteintegradasàsrotinasdoDMAEdevido àfaltadeefetivo(peça6718594,p108)
A conclusão ainda é corroborada pelo relato constante no processo23.10.000005213-4(peça6718588,p.3a5),registradopelaGPES,em07/06/2023, querevelaqueoórgãosódisporiadeequipesparaoatendimentodedemandasdemanutenção emergencial,estandoimpossibilitadoderealizarmanutençõespreventivas,sendotambém destacadoqueembrevenemasdemandasdemanutençãoemergencialpoderiamseratendidas emsuatotalidadeecomaagilidadenecessária
Logo,considerandotodososfatosecircunstânciasrelatados,épossívelconcluirque asomissõesadministrativas,praticadaspordiversosagentespúblicos,impediramqueoórgão estivessedotadodeumaestruturadepessoaladequadaparaaincorporaçãodasatividades relacionadasàdrenagemeaosistemadeproteçãocontracheias,condiçãoquerepresentaria umachancerealeconcretademitigaçãodosdanos,aindaqueoeventoclimáticofosseextremo einevitável.
IssoporquePortoAlegre,diferentedecidadescomoEldoradodoSul,dispõedeum sistemadeproteçãocontraenchentesjuntamentecomumprogramadegoverno,estabelecido emplanosplurianuais,quetranscendeumaisdeumagestãoeapresentavadiretrizesemetasde investimentosemmelhoriasnessesistemaComefeito,casooDMAEtivessesidoprovidocom umaadequadaestruturadepessoal,oenteteriamaiorcondiçõesparacumpriradequadamente ascompetênciasrelativasàgestão,àmanutençãoeàprópriaconcepçãodosistema,que apresentoufalhasquedemandavamaçõescorretivaseinvestimentosrelevantes
Consequentemente, além da possibilidade de responsabilização subjetiva dosagentesenvolvidos,tambémseverificamoselementosnecessáriosparaaplicaçãoda responsabilizaçãopelaperdadeumachance,poisasomissõesadministrativasprivaram oDMAEeapopulaçãodaoportunidadeconcretadeumarespostamaiseficaz,com potencialparamitigarosimpactosedanosdecorrentes Ressalta-sequea responsabilizaçãocombasenessateorianãoexigeacertezadoresultadofinal,masapenasa existênciadeumachancereal,legítimaeplausíveldequeelepudesseseralcançado,condições que,nocasoemanálise,estãopresentes
Porconseguinte,foramidentificadascondutasculposasdediversosagentespúblicos, asquais,diantedoselementosecircunstânciasqueserãominudentementeexpostasabaixo, evidenciamacaracterizaçãodeculpagraveouerrogrosseiro,tendoemvistaqueimplicaram graveinobservânciadodeverdecuidadoeafastaram-sedoreferencialdo"administradormédio", poiseranotórioeperceptívelporpessoadediligêncianormalaimportânciadaadequada estruturaçãodepessoalparaocumprimentodascompetênciasincorporadas,relativasao 222

ESTADODORIOGRANDEDOSUL TRIBUNALDECONTAS
DIREÇÃODECONTROLEEFISCALIZAÇÃO SERVIÇODEAUDITORIADEPORTOALEGRE

Antesdeadentrarnasquestõesespecíficasatinentesàresponsabilizaçãodecada agente,cumpreressaltarqueeraesperadacondutadiversaportodosessesagentes,emrazão dacientificaçãodointeiroteordorelatóriodeinspeçãoespecialconstantedoprocessonº3630200/19-4,queapontouaexistênciaderiscosdeenfrentamentodegravesproblemasparaa implementação das necessidades operacionais e de expansão dos serviços anteriormenteprestadospeloDEP(eextintoporsuainiciativa),tendoemvistaafaltade capacidadeoperacionaldoDMAEdecorrentedafaltadepessoal,emrazãodainterferênciado Executivonaautonomiadaautarquiaedoimpedimentodanecessáriarecomposiçãodoquadro deservidores.
Ademais,comoimpactosnegativosdafaltadereposiçãodepessoaltambémforam salientadas as dificuldades de planejamento, projeto, contratação, fiscalização e acompanhamentocontratual,circunstânciasqueconfiguravamafragilizaçãodaestruturado DMAEenquantoórgãodeengenhariaedasuacapacidadeparaelaboraçãodenovosprojetos reestruturanteseinvestimentoscomrecursosprópriosparaoatingimentodesuasmetas institucionais
Portanto,osagentesassumiramtodososriscospreviamentealertadospelaEquipe deAuditoria,relativosàincorporaçãodascompetênciasdoDEPpeloDMAE,numcenáriode incapacitaçãooperacionaldesteórgãoparaaadequadaabsorçãodessesserviçoseparaa expansãoeimplementaçãodemelhoriasnossistemasdedrenagemedeproteçãocontra cheias,riscosessesquesematerializaramcomoeventoclimáticoocorridoemmaiode2024
Alémdisso,osagentesagiramcomnegligênciaedescasoquantoaocumprimentodo programa/projetodegoverno"MelhorianoSistemadeProteçãoContraCheias"estabelecidonos PlanosPlurianuais(2018a2025),emsentidocontrárioaoqueseriaesperadoparaumacidade considerada"HUBderesiliência"equeinstituiu,pormeiodaLeiMunicipalnº12629/2019,um planoderesiliênciacomobjetivosvoltadosàprevençãoderiscos,combasenagestãoeredução dedesastres,notadamenteemcasosdeinundações,alagamentosedeslizamentos,alémda garantiadeinfraestruturaadequadaàsfamíliasresidentesemáreasderisco,pormeiodeações preventivasedefiscalizaçãoAdemais,ascondutasatentaramcontraaLeiComplementarnº 872/2020,queinstituiuapolíticadesustentabilidade,enfrentamentodasmudançasclimáticase usoracionaldaenergia,comobjetivosvoltadosàresiliência,prevençãoeadaptaçãoemitigação dosimpactosdasmudançasclimáticasedeeventosextremos(aumentodoníveldoGuaíba, alagamentosedeslizamentos)
Diantedessecontexto,sãopassíveisderesponsabilizaçãoosseguintesagentes públicos:
•NelsonMarchezanJúnior(PrefeitoMunicipal-Período:01/01/2017a 31/12/2020)
Oagentefoidevidamentecientificadodointeiroteordorelatóriodeinspeçãoespecial constantedoprocessonº363-0200/19-4(peça6653040)(peça6653067)11 223

ESTADODORIOGRANDEDOSUL TRIBUNALDECONTAS
DIREÇÃODECONTROLEEFISCALIZAÇÃO SERVIÇODEAUDITORIADEPORTOALEGRE

Diantedessascircunstânciaseraesperadoqueoagenteagissecomzeloeatenção aoprincípiodaeficiênciaquandodaestruturaçãodepessoaldoDMAE,paraaadequada absorçãoecumprimentodascompetênciasrelativasaosistemadedrenagemedeproteção contracheias,especialmenteconsiderandooconjuntodecompetênciasacrescidase complexidadesexistentes
Noentanto,ogestormanteveasubordinaçãodospedidosadministrativosde recomposiçãodepessoaldoDMAEaoComitêparaGestãodeDespesasdePessoal(CGDEP), combasenoDecretoMunicipalnº19651/2017,delegando,negligentemente,asdecisões relacionadasàgestãodepessoaldoDMAEaagentesquenãopossuemformaçãoou experiênciaprofissionalnaáreadesaneamento12 .
EssadecisãofoimantidamesmoapósosalertasfeitospelaEquipedeAuditoria, acarretandoprejuízosaoatendimentodasdemandasderecomposiçãodepessoaldaautarquia, umavezqueassolicitaçõesencaminhadaspeloDMAE,injustificadamente,nãoforamatendidas plenamentepeloCGDEP,emquepeseaexplanaçãosobreosriscosdecolapsoeparalisação dosserviçospúblicosprestados,conformeretratadonotópicodeanálisedoprocessonº 1810000003153-9Ressalta-se,ainda,queoPrefeitochancelouasautorizaçõesemitidaspelo referidocomitê,consentindo,portanto,comonãoatendimentoplenodassolicitações
Consequentemente,amanutençãodasubordinaçãodospleitosdereposiçãode pessoaldoDMAEàsdecisõesdaadministraçãocentralizada,atraiaresponsabilizaçãosubjetiva doPrefeitoMunicipaledosdemaisagentesintegrantesdoCGDEP,pelaadministraçãode pessoaldaautarquiae,consequentemente,pelasfalhasdegestãoverificadaseaquiapontadas
Ademais,ogestornãosemanifestouquandodaoportunidadedeadequaçãodo quadrodepessoaldoDMAE,atravésdepropostadeprojetodeleivisandoacriaçãoeextinção decargos,consignadanoexpedientenº20.10.000001166-0(peça6718589,p.14e15).Ainda quenãoconste,noreferidoprocesso,despachoouandamentoprocessualdemonstrandoasua cientificação,érazoávelinferirqueoadministradortinhaciênciadasreuniões,decisõese manifestaçõesproferidaspeloCGDEPduranteoperíododesuagestão,considerandoque competiaaocoordenadordoCGDEP(SecretáriodaSecretariaMunicipaldePlanejamentoe Gestão-SMPG)encaminharaoPrefeitoasconclusõesdocomitê13
Ainda,durantesuagestãoocorreuaperdaderecursosfederaisdoPACPrevenção (R$122milhões),quepreviaadestinaçãoderecursosparamelhoriasestruturais,aumentoda capacidade,aquisiçãodegeradoresdeenergiaeampliaçãodecasasdebombaseà macrodrenagemdoarroioMoinho(ProgramaDrenaPoa),bemcomofoicientificadodas conclusõesregistradasnasindicânciainstaurada,aqualapontoudiversosproblemasno planejamento,dentreosquaisafaltadeestruturadepessoalparaacompanhamentoe priorizaçãodosprojetosTaiscircunstânciassãoagravantesedemandavammaioratençãona estruturaçãoorganizacionaledepessoalparaviabilizaraelaboraçãoeexecuçãodosprojetos pertinentesàscompetênciasincorporadas
Frenteaoexposto,acondutaomissivadoagenteimpediuaprovisãodemelhoriasna 224
digitalmente por: Marcelo Kipper da Silva em 14/07/25, Leandro Lobato Camargo em 14/07/25, Leandro Torres em 14/07/25, Fabio Alex Beling em 14/07/25 e outro(s). Confira a autenticidade do documento em www.tce.rs.gov.br. Identificador: PRE.FE77.2360.2A1D.FC7C.62D4.

ESTADODORIOGRANDEDOSUL TRIBUNALDECONTAS
DIREÇÃODECONTROLEEFISCALIZAÇÃO SERVIÇODEAUDITORIADEPORTOALEGRE

estruturaçãodepessoaleaadequaçãodoquadrogeraldecargosdoDMAE,situaçãoque tambémrepercutiunagestãosubsequente,resultandonumcontextodeincapacitação operacionalgeneralizadadoórgãoparaconsecuçãodesuascompetências,sobretudonas atividadesrelacionadasaossistemasdedrenagemedegestão/planejamento,manutenção, conservaçãoeoperaçãodoSistemadeProteçãoContraCheias(SPCC)
•MembrosdoComitêparaGestãodeDespesasdePessoal(CGDEP)GestãoPrefeitoNelsonMarchezan
Osagentes,colegiadamente,emitiramasdecisõesregistradasnasautorizaçõesnº 139/201914enº047/2020(peça6718605,p9,10e56a58),constantesnoexpediente 1810000003863-0,que,injustificadamente,nãoatenderamospleitosdereposiçãodepessoal nosquantitativosdecargosdemandadospeloDMAE,acarretandoprejuízonaestruturaçãode pessoaldoórgãoe,consequentemente,naqualidadedosserviçosdesaneamento
Oatendimentoinsuficiente,registradonaautorizaçãonº139/2019,tambémrepercutiu nafaltadeprovidênciasparaoatendimentodosprocessosnº19.10.000001067-7e nº 2010000006485-3,posteriormenteinstauradosNessemesmoatodeautorização,oComitê concedeuumprazoparaqueoDMAEapresentasseprojetodeleicomareestruturaçãodo quadrodeservidoresparafinsdeatualizaçãocomasatuaisdemandasdodepartamento. Contudo,apesardaapresentaçãodoprojetodereadequaçãonoprocesso2010000001166-0, injustificadamente,nãohouvequalquerseguimentoe/ourespostapeloCGDEP,queteve conhecimentodaproposta,emreuniãoocorridanodia05/02/2020(peça6718589,p.47).
Ascondutas,comissivaseomissiva,ocorrerammesmoapósacientificaçãodo conteúdodorelatóriodeauditoriadainspeçãoespecialnº363-0200/19-4
Comefeito,amanutençãodasubordinaçãodospleitosdereposiçãodepessoaldo DMAEàsdecisõesdaadministraçãocentralizada,atraiaresponsabilizaçãosubjetivadoPrefeito MunicipaledosdemaisagentesintegrantesdoCGDEP,pelaadministraçãodepessoalda autarquiae,consequentemente,pelasfalhasdegestãoverificadaseaquiapontadas
Diantedessascircunstâncias,eraesperadoqueosagentesatuassemcomzeloeem observânciaaoprincípiodaeficiênciaaoproferiremsuasdecisõescolegiadas.Cabedestacar queasdeliberaçõesdocomitêeramtomadaspormaioriasimples(art2º,§6ºdaLeiMunicipalnº 19651/2017),nãosendoexigidaunanimidade,oquepermitiaqueeventuaisposicionamentos contráriosfossemformalmenteregistrados.Ademais,osagentesassumiram,imperitamente,a responsabilidadepordecisõesrelacionadasàgestãodepessoaldoDMAE,mesmosem possuíremformaçãoouexperiênciaprofissionalnaáreadesaneamento15
Frenteaoexposto,ascondutasdessesagentesimpediramaprovisãodemelhorias naestruturaçãodepessoaleaadequaçãodoquadrogeraldecargosdoDMAE,situaçãoque tambémrepercutiunagestãosubsequente,resultandonumcontextodeincapacitação operacionalgeneralizadadoórgãoparaconsecuçãodesuascompetências,sobretudonas atividadesrelacionadasaossistemasdedrenagemedegestão/planejamento,manutenção, conservaçãoeoperaçãodoSPCC

ESTADODORIOGRANDEDOSUL TRIBUNALDECONTAS
DIREÇÃODECONTROLEEFISCALIZAÇÃO SERVIÇODEAUDITORIADEPORTOALEGRE

Aseguir,sãorelacionadososagenteseosrespectivosatosdeliberativosque anuíram:
-JulianaGarciadeCastro16(SecretáriaMunicipaldaSecretariaMunicipalde PlanejamentoeGestão-01/11/2018a31/12/2020):Autorizaçõesnº139/2019enº047/2020
-LeonardoMaranhãoBusatto17(SecretárioMunicipaldaSecretariaMunicipalda Fazenda-01/01/2017a06/04/2020e30/11/2020a31/12/2020):Autorizaçãonº139/2019
-LizianedosSantosBaum18(SecretáriaAdjuntadaSecretariaMunicipaldaFazenda -07/04/2020a29/11/2020):Autorizaçãonº047/2020
-NelsonNemoFranchinniMarisco19(Procurador-GeraldaProcuradoriaGeraldo Município05/08/2019a19/04/2020):Autorizaçõesnº139/2019enº047/2020
-MarcoAntonioKaramSilveira20(SecretárioMunicipaldaSecretariaMunicipalde TransparênciaeControladoria-19/03/2020a31/12/2020):Autorizaçãonº047/2020.
•SebastiãodeAraújoMelo(PrefeitoMunicipal-Período01/01/2021a 31/12/2024)
Oagentefoidevidamentecientificadodointeiroteordorelatóriodeinspeçãoespecial constantedoprocessonº363-0200/19-4(peça6653041)(peça6653068).
Diantedessascircunstânciaseraesperadoqueoagenteagissecomzeloeatenção aoprincípiodaeficiênciaquandodaestruturaçãodepessoaldoDMAE,paraaadequada absorçãoecumprimentodascompetênciasrelativasaosistemadedrenagemedeproteção contracheias,especialmenteconsiderandooconjuntodecompetênciasacrescidase complexidadesexistentes
Noentanto,ogestormanteveasubordinaçãodospedidosadministrativosde recomposiçãodepessoaldoDMAEaoComitêparaGestãodeDespesasdePessoal(CGDEP), combasenoDecretoMunicipalnº19651/2017,oqualfoiposteriormentesubstituídopeloComitê MunicipalparaGestãodeDespesasdePessoal(CMDP),apartirdaemissãodoDecreto21514, de8dejunhode2022Comisso,asdecisõesrelacionadasàgestãodepessoaldoDMAE foram,negligentemente,delegadasaagentesquenãopossuemformaçãoouexperiência profissionalnaáreadesaneamento
EstadecisãofoiadotadamesmoapósosalertasfeitospelaEquipedeAuditoria, acarretandoprejuízosaoatendimentotempestivodasdemandasderecomposiçãodepessoalda autarquia,umavezqueassolicitaçõesencaminhadaspeloDMAE,injustificadamente,forampor diversasvezesindeferidaspeloCGDEP/CMDP,emquepeseaexplanaçãosobreosriscosde colapsoeparalisaçãodosserviçospúblicosprestadose,também,aapresentaçãode justificativasfundamentadasnaincorporaçãodascompetênciasdoDEP,conformeretratadonos tópicosdeanálisesdosprocessosnº2110000000769-3,nº2110000002787-2enº 22.10.000011658-7.
Ressalta-se,ainda,queoPrefeito,chancelouasdecisõesemitidaspeloCGDEP (peça6718584,p53e76)(peça6718586,p13),bemcomo,nacondiçãodemembrodo 226

ESTADODORIOGRANDEDOSUL TRIBUNALDECONTAS
DIREÇÃODECONTROLEEFISCALIZAÇÃO SERVIÇODEAUDITORIADEPORTOALEGRE

CMDP,anuiucomasautorizaçõesemitidaspeloreferidocomitê(peça6718586,p75e76) (peça6718545,p15a17,23a25),consentindo,portanto,comonãoatendimentoplenodas solicitações.Asdecisõespeloindeferimentoprejudicaramatempestividadeeignorarama urgênciaapresentada,bemcomodemandaramesforçosargumentativosporpartedo DMAE,paraoconvencimentoquantoànecessidadedoatendimentoplenodospedidosOs pleitossomenteforamautorizadospelaautorizaçãodiretadoPrefeitoapósumlongoeexaustivo trâmiteprocessual
CaberegistrarqueogestorencaminhouoProjetodeLei007/21(peça6718606), propondoarevogaçãodoart2ºdaLeiMunicipalnº2312/1961,queestabeleciaaautonomia administrativa,financeiraecontábildaautarquia.OprojetofoiaprovadopelaCâmaraMunicipale resultounasançãoepublicaçãodaLeiMunicipalnº12939/2021,demodoquearevogaçãodo dispositivoperdurouatéasuarepristinação,recentementeefetivadapelaLeiMunicipalnº 14.194/202521 .
Emquepeseainoperânciadoatoderevogação,oqualnãotinhaocondãoderetirar aautonomiaadministrativadoDMAE,atributoinerenteatodaautarquia,asseguradonoart5º, incisoIdoDecreto-Leinº200/1967,acondutaconstitui-secomoumaagravante,poisdemonstra atentativadeconferirlegalidadeaosatosadministrativosderestriçãodaautonomia administrativadodepartamento,praticadospeloCGDEP/CMDPduranteoperíododesua gestão
Consequentemente,amanutençãodasubordinaçãodospleitosdereposiçãode pessoaldoDMAEàsdecisõesdaadministraçãocentralizada,atraiaresponsabilizaçãosubjetiva doPrefeitoMunicipaledosdemaisagentesintegrantesdoCGDEP/CMDP,pelaadministração depessoaldaautarquiae,consequentemente,pelasfalhasdegestãoverificadaseaqui apontadas
AlémdamanutençãodasubordinaçãodoDMAEaoCGDEP/CMDP,ogestor, injustificadamente,nãodeuseguimentoàssolicitaçõesdereestruturaçãoemodernizaçãodo quadrogeraldoórgão,bemcomonãoapresentounenhumasoluçãoalternativaparamitigação dos riscos que resultaram dessas decisões As propostas, constantes nos processosnº2110000003952-8enº2210000004786-0,visavamoencaminhamentode projetosdeleiàCâmaraMunicipal,parafinsdeincrementaronúmerodecargosoperacionais necessáriosàscomposiçõesdeequipesedeadequaroórgãoaummodelocentradono gerenciamento,controle,acompanhamentoefiscalizaçãodecontrataçõesdeserviços,coma diminuiçãodecargosnãomaiscondizentescomaatualrealidadedoDMAE
Importanteasseverarqueasdecisõestambémnãoencontravamfundamentoem eventuaisrestriçõesimpostaspelaLeideResponsabilidadeFiscal,demodoquenãohaviauma situaçãodecomprometimentodolimitedegastoscomdespesasdepessoal.Essefatofoi confirmadoemrespostaapresentadapeloDMAE(peça6718607)(peça6718550),querelata queaúnicasituaçãodeimpedimentoseverificouemmarçode2024,emvirtudedecientificação feitaporesteTCE-RSdeajusterealizadoquealterouopercentualdadespesacompessoal, parafinsdeaderiraoentendimentoconstantenoOfícioCircularDCFnº11/2023Essarestrição perdurousomenteaté05/04/2024(peça6718608,p308)(peça6718609)(peça6718610), 227
Assinado digitalmente por: Marcelo Kipper da Silva em 14/07/25, Leandro Lobato Camargo em 14/07/25, Leandro Torres em 14/07/25, Fabio Alex Beling em 14/07/25 e outro(s). Confira a autenticidade do documento em www.tce.rs.gov.br. Identificador: PRE.FE77.2360.2A1D.FC7C.62D4.


tendoemvistaaretificaçãodacertidão22,emcumprimentoàdecisãocautelarproferidano processonº14724-0200/24-4
Tambémimpendedestacarque,noperíodoentrejulhode2018ajunhode2024, ocorreram3711atosadmissionaisdecorrentesdeconcursospúblicosnoExecutivoMunicipal (peça6718611)(peça6718640)(peça6718612),oquedemonstraqueaausênciadereposição edeincrementodeservidoresdoDMAEfoiumaopçãopolíticadogestor
Nesseaspecto,conformeregistradoemdiversosexpedientes23,aopçãopolíticade nãorecomporedenãoreadequaroquadrodecargosdodepartamentosesustentouna necessidadedeaguardarafinalizaçãodosestudosedefiniçõessobreasalternativasparaa prestaçãodosserviçosdeáguaeesgoto,pormeiodaconcessãodosserviços(peça6718584, p.94e95)(peça6718592,p.187a189)(peça6718593,p.45,121a123)(peça6718595,p. 92a93)Ocorreque,emagostode2021,jáexistiaoalertadequeosestudosdeconcessãonão seconcluiriamantesde18a24meses(peça6718584,p150e152),situaçãoqueseconfirmou comacelebraçãodo1ºAditivodoContratodeEstruturaçãodeProjetonº19.2.0506.1(peça 6718613)(peça6718614),oqualtevecomoobjetoaprorrogaçãodoprazopormais22meses 24eaampliaçãodosserviços,conformetambémconsignadonamanifestaçãoapresentadapelo DMAE(peça6718615)25.Portanto,ogestoradotouessadecisãomesmoestandocientedeque essesestudosdemorariam,decisãoestaqueimplicouevidentesprejuízosnaprestaçãodos serviçospúblicospelaautarquia
Comocircunstânciaagravante,registra-seofatodequeoPrefeitotinha plenoconhecimentosobreasituaçãodefragilidadedoDMAE,decorrentedafaltadepessoal, cujosimpactosrefletiam-senegativamentenãoapenasnocumprimentodasatividadesmais ordináriasdoórgão,relativasaossistemasdeabastecimentoetratamentodeáguaeesgotos, mastambém,eprincipalmente,naconsecuçãodascompetênciasincorporadasdoDEP, atinentesàdrenagemeàoperação,manutenção,expansãoeaodesenvolvimentoeimplantação demelhoriasnoSPCCEssaconclusãoéreforçadapelasjustificativasapresentadaspelopróprio administrador,namensagemretificativaaoProjetodeLeinº027/23(peça6718594,p102a 110),encaminhadaem15/09/2023,nasquaisseafirmavaqueasnovasestruturasoriundasda incorporaçãodoDEPaindanãohaviamsidoplenamenteintegradasàsrotinasdoDMAEdevido àfaltadeefetivo(peça6718594,p108)
Nãoobstanteaplenaciênciaquantoàprecariedadeexistentenosserviçosprestados pelaautarquia,oagenteutilizouaprópriainérciaadministrativa,relativaàdiminuiçãoconstante donúmerodeservidores,decorrentedaausênciademedidasparareposição,comofundamento paraarealizaçãodecontrataçõestemporárias,asquaisnuncaforamplenamenteefetivadasnos quantitativoslegalmenteautorizados
Ademais,apesardessasprovidênciasteremmitigadoprejuízosaindamaioresao cumprimentodasfunçõesdoórgão,tambémsemostraraminsuficientesparaqueoDMAE estivesseaptoaexerceradequadamentesuascompetênciasatinentesàoperação,manutenção, expansãoeaodesenvolvimentoeimplantaçãodemelhoriasnoSistemadeProteçãoContra Cheias(SPCC).

ESTADODORIOGRANDEDOSUL TRIBUNALDECONTAS
DIREÇÃODECONTROLEEFISCALIZAÇÃO SERVIÇODEAUDITORIADEPORTOALEGRE

Nessesentido,consoanteregistradonoexpedientenº220000007066-5,as contrataçõestemporáriasefetivadasde2(dois)cargosdeEngenheiroCivile2(dois)cargosde Arquitetonãoforamsuficientesparaoatendimentodasolicitaçãodoórgão,querelatavaa necessidaderealde07(sete)Arquitetose31(trintaeum)EngenheirosAlémdisso,a contrataçãoapresentoucomojustificativaaincorporação,pelaautarquia,dascompetênciase estruturasdoDEPTodavia,osservidorestemporariamenteadmitidosnãoforamalocadosparao exercíciodessascompetências,conformeverificadonasinformaçõesapresentadaspeloDMAE, emrespostaaoitem5daRDI641506(peça6718532)(peça6718478,p27a32e35a39), posteriormentecomplementadapelarespostaaRDI685030(peça6718533)(peça6718516) (peça6718517).
Caberegistrarqueessanecessidadetambémfoireveladanasproposiçõesdeprojeto delei,registradasnosexpedientes2010000001166-026e2210000004786-027,visandoà adequaçãodoquadrodepessoaldoDMAEequenãotiveramseguimentopelaadministração centralizada.
Ainda,oagentetinhaplenoconhecimentodaperdaderecursosfederaisdoPAC Prevenção(R$122milhões)edaabrangênciaeimportânciadoprogramaparaomunicípio,que previaadestinaçãoderecursosparamelhoriasestruturais,aumentodacapacidade,aquisição degeradoresdeenergiaeampliaçãodecasasdebombaseàmacrodrenagemdoarroioMoinho (ProgramaDrenaPoa),bemcomotinhaciênciadaexistênciadesindicânciainstaurada(peça 6718645),aqualapontoudiversosproblemasnoplanejamentodosprojetos,dentreosquaisa faltadeestruturadepessoalparaacompanhamentoepriorizaçãodosprojetosOsfatos, inclusive,forammencionadopeloagenteemvídeo(peça6718557)amplamentedivulgadoem 202028
Taiscircunstânciassãoagravantesedemandavammaioratençãonaestruturação organizacionaledepessoalparaviabilizaraelaboraçãoeexecuçãodosprojetospertinentesàs competênciasincorporadas
Diantedisso,ascondutasomissivasdoagenteimpediramaprovisãodemelhoriasna estruturaçãodepessoaleaadequaçãodoquadrogeraldecargosdoDMAE,resultandonum contextodeincapacitaçãooperacionalgeneralizadadoórgãoparaconsecuçãodesuas competências,sobretudonasatividadesrelacionadasaossistemasdedrenagemede gestão/planejamento,manutenção,conservaçãoeoperaçãodoSistemadeProteçãoContra Cheias(SPCC)
•MembrosdoComitêparaGestãodeDespesasdePessoal(CGDEP)/Comitê MunicipalparaGestãodeDespesasdePessoal(CMDP)-GestãoPrefeitoSebastiãoMelo
Osagentes,colegiadamente,emitiramasdecisõesregistradasnasdeliberaçõesnº 014/2021,nº062/2021,nº069/2021enº070/2021(peça6718584,p39,40,71,72,92a95), constantesnoexpediente2110000000769-3;nasdeliberaçõesnº046/2021,nº047/2021,nº 067/2021,nº068/2021enº059/2022(peça6718586,p.9a12,25a28e75a76),constantes noexpediente2110000002787-2;enasdeliberaçõesnº104/2023enº111/2023(peça 6718545,p15a17e23a25),constantesnoexpedienteProcessonº2210000011658-7;as 229
Assinado digitalmente por: Marcelo Kipper da Silva em 14/07/25, Leandro Lobato Camargo em 14/07/25, Leandro Torres em 14/07/25, Fabio Alex Beling em 14/07/25 e outro(s). Confira a autenticidade do documento em www.tce.rs.gov.br. Identificador:

ESTADODORIOGRANDEDOSUL TRIBUNALDECONTAS
DIREÇÃODECONTROLEEFISCALIZAÇÃO SERVIÇODEAUDITORIADEPORTOALEGRE

quais,injustificadamente,nãoatenderamospleitosdereposiçãodepessoalnosquantitativosde cargosdemandadospeloDMAE,acarretandoprejuízonatempestividadedaestruturaçãode pessoaldoórgãoe,consequentemente,nasuacapacidadeoperacionalenaqualidadedos serviçospúblicosdesaneamento
Comocircunstânciasagravantes,salienta-seque,asDeliberaçõesnº046/2021,nº 047/2021(peça6718586,p9a12),nº067/2021(peça6718586,p25e26)enº059/2022 (peça6718586,p.75e76),constantesnoexpedientenº21.10.000002787-2,aoindeferiremos pedidosdenomeaçõesdeeconomistasedeengenheirosmecânicos,emrazãodainexistência devacânciasnosúltimos12(doze)mesesedaLeiComplementarFederalnº173/2020, ignoraramaorientaçãojurídicaemitidapelaPGM(InformaçãoPMS-01nº7/2020(peça 6718641,p26a33)),emitidaem24/07/2020,queconcluiupelapossibilidadederealizaçãode concursospúblicosenomeaçõesdeservidoresefetivosparafinsdereposiçãodevacâncias ocorridasaqualquertempo,entendimentoposteriormenteconfirmadoemconsultarealizada juntoaesteTCE-RS(peça6718616,p28a31)
Assim,verificaram-seirregularidadesquantoàmotivaçãodosatosdecisórios emitidospeloCGDEP/CMDP,comevidentesprejuízosàtempestividadedoatendimentodas demandasdoDMAE,asquaissóforamposteriormenteatendidasporautorizaçãodiretado administrador,apósumlongoeexaustivotrâmiteprocessualComoconsequência,areposição plenadeengenheirosmecânicos,necessáriosdiantedoaumentodeequipamentos eletromecânicossobmanutençãoetambémdaassunção,pelodepartamento,dascompetências relativasàmanutençãodasEBAPs,estruturasintegrantesdosistemadeproteçãocontracheias, somentefoiautorizada4mesesapósasolicitaçãoencaminhadaaoCGDEP/CMDP29,sendo queacarênciaerareportadadesdejaneirode2021(peça6718617,p5)
AfaltademotivaçãoaindaserepetiuematodecisóriorecenteemitidopeloCMDP, comanuênciadoPrefeitoMunicipal,cujopleito30dereposiçãode02(dois)cargosde engenheirocivilfoiindeferido(peça6718618,p.22a24),emdecisãonãofundamentadaem argumentosjuridicamenteplausíveis,poisbaseou-seemsupostasvedaçõesdaleieleitoral(art 73,VdaLeiFederalnº9504/1997)edaLeideResponsabilidadeFiscal(art21,IIIdaLei ComplementarFederalnº101/2000),ignorandoasinformaçõesapresentadaspeloDMAE,as quaiscomprovaramaexistênciadecompensaçãofinanceiradiantedaocorrênciade04 vacânciasdocargodeengenheiro,bemcomo,indodeencontroaoposicionamentojurídico emitidopelaPGM(NotaTécnicaPMS-01nº251/2020),em10/08/2020(peça6718589,p.70a 74)
Emborataisprocessostenhamsidoinstauradosapósaocorrênciadaenchente,a negativaaospedidosdereposiçãodeengenheirosrevelaumacondutatemeráriadoPrefeito MunicipaledosmembrosdoCMDP,queimplicaprejuízosaoacompanhamentodeprojetose dasobrasemandamento,quevisamareestruturaçãoemelhoriasnossistemasdedrenageme deproteçãocontracheias,conformesalientadonasjustificativasapresentadasnessas solicitações(peça6718618,p1)(peça6718619,p5)
Outrossim,demonstramoentendimentodaadministraçãocentralizadaquantoà adequaçãodoquadroatualdeengenheirosdoDMAE,ignorandotodososestudosapresentados

ESTADODORIOGRANDEDOSUL TRIBUNALDECONTAS
DIREÇÃODECONTROLEEFISCALIZAÇÃO SERVIÇODEAUDITORIADEPORTOALEGRE

pelaautarquia,bemcomoacomplexidadeeanecessidadedemelhorestruturaçãodoórgão paraatendimentodenovasdemandas,queimportamodispêndiodomontanteaproximadode R$1,3bilhões31,relativasaprojetosvisandoàexecuçãodeobrasdemacrodrenagemnos pôlderes,EBAPs(CasasdeBombas)edemaisobrasdedrenagemeproteçãocontracheiasem regiõesafetadaspelasenchentes
Ascondutascomissivaseomissivas,ocorrerammesmoapósacientificaçãoda gestão(Período2021a2024),quantoaoconteúdodorelatóriodeauditoriadainspeçãoespecial nº363-0200/19-4
Comefeito,amanutençãodasubordinaçãodospleitosdereposiçãodepessoaldo DMAEàsdecisõesdaadministraçãocentralizada,atraiaresponsabilizaçãosubjetivadoPrefeito MunicipaledosdemaisagentesintegrantesdoCGDEP/CMDP,pelaadministraçãodepessoal daautarquiae,consequentemente,pelasfalhasdegestãoverificadaseaquiapontadas
Noponto,aexpectativaporumacondutadiversaeraaindamaiorcomrelaçãoao agenteCassiodeJesusTrogildo,SecretárioMunicipaldaSecretariaMunicipaldeGovernança LocaleCoordenaçãoPolítica(SMGOV),oqualfoiautordoprojetodeleiqueresultouna publicaçãodaLeinº12629/201932,bemcomoparticipou,comônusdoMunicípio,devários eventosnacionaiseinternacionaissobreatemáticaemSãoPaulo,CidadedoMéxico, Guadalajara,PuntaDelEsteeDubai33,masque,naprática,anuiucomasdeliberaçõesnº 104/2023enº111/2023,queindeferiramoatendimentoplenodareposiçãodototalde05(cinco) engenheirosparaoDMAE,recomposiçãoquejustificava-seno"aumento significativo na quantidadededemandas,emespecialcomainclusãodasatividadesdedrenagemurbana" (peça6718545,p12e13)
Diantedessascircunstâncias,eraesperadoqueosagentesatuassemcomzeloeem observânciaaoprincípiodaeficiênciaaoproferiremsuasdecisõescolegiadas.Cabedestacar queasdeliberaçõeseramtomadasporvoto(art2º,§4ºdoDecretonº21514/2022),nãosendo exigidaunanimidade,oquepermitiaqueeventuaisposicionamentoscontráriosfossem formalmenteregistrados.Nãoobstante,nãoháregistrodequalquercontrariedadeouressalva dosmembrosdocomitêAdemais,osagentesassumiram,imperitamente,aresponsabilidadepor decisõesrelacionadasàgestãodepessoaldoDMAE,mesmosempossuíremformaçãoou experiênciaprofissionalnaáreadesaneamento34 .
Frenteaoexposto,ascondutascomissivaseomissivasdosagentesimpedirama provisãodemelhoriasnaestruturaçãodepessoaleaadequaçãodoquadrogeraldecargosdo DMAE,resultandonumcontextodeincapacitaçãooperacionalgeneralizadadoórgãopara consecuçãodesuascompetências,sobretudonasatividadesrelacionadasaossistemasde drenagemedegestão/planejamento,manutenção,conservaçãoeoperaçãodoSistemade ProteçãoContraCheias(SPCC).
Aseguir,sãorelacionadososagenteseosrespectivosatosdeliberativosque anuíram:
-SebastiãodeAraújoMelo,PrefeitoMunicipal(Período:01/01/2021a 231

ESTADODORIOGRANDEDOSUL TRIBUNALDECONTAS
DIREÇÃODECONTROLEEFISCALIZAÇÃO SERVIÇODEAUDITORIADEPORTOALEGRE

31/12/2024):Deliberaçõesnº014/2021,nº046/2021,nº047/2021,nº062/2021,nº067/2021,nº 068/2021,nº069/2021,nº070/2021,nº059/2022,nº104/2023enº111/2023
-AndréFloresCoronel,ChefedeGabinetedoPrefeito35(PeríododeOcupaçãodo Cargo:01/01/2021a31/01/2021;28/06/2021a13/08/2024;04/11/2024 atéomomento): Deliberaçõesnº104/2023e111/2023
-AndréLuisdosSantosBarbosa,SecretáriodaSecretariaMunicipaldaSecretaria MunicipaldeAdministraçãoePatrimônio36(PeríododeOcupaçãodoCargo:15/01/2021a 18/07/2021;24/07/2021a31/12/2024):Deliberaçõesnº014/2021,nº046/2021,nº047/2021,nº 062/2021,nº067/2021,nº068/2021,nº069/2021,nº070/2021enº059/2022
-BrunoBreyerCaldas 37,SecretárioAdjuntodaSecretariaMunicipalda Fazenda(PeríododeOcupaçãodoCargo:05/01/2021a31/07/2022),SecretárioAdjuntoda SecretariaMunicipaldaTransparênciaeControladoria(PeríododeOcupaçãodoCargo: 01/08/2022a31/01/2023)eSecretárioAdjuntodaSecretariaMunicipaldePlanejamentoe AssuntosEstratégicos(PeríododeOcupaçãodoCargo:08/05/2023a31/01/2025): Deliberaçõesnº014/2021,nº046/2021,nº047/2021,nº062/2021,nº067/2021,nº068/2021,nº 069/2021,nº070/2021enº111/2023.
-CassiodeJesusTrogildo38,SecretárioMunicipaldaSecretariaMunicipalde GovernançaLocaleCoordenaçãoPolítica(SMGOV)(PeríododeOcupaçãodoCargo: 01/01/2021atéomomento):Deliberaçõesnº104/2023enº111/2023
-CezarAugustoSchirmer39,SecretárioMunicipaldaSecretariaMunicipalde PlanejamentoeAssuntosEstratégicos(PeríododeOcupaçãodoCargo:01/01/2021a 31/03/2022;02/01/2023a12/11/2024;06/12/2024atéomomento):Deliberaçõesnº014/2021,nº 046/2021enº047/2021
-JonasMartinsMachado40,Secretário(a)Adjunto(a)daSecretariaMunicipalda Fazenda (Período de Ocupação do Cargo: 21/09/2022 até o momento):Deliberaçõesnº104/2023enº111/2023.
-JulianaBentoCucchiarelli41,Procuradora-GeralAdjuntadaProcuradoria-Geral doMunicípio(PeríododeOcupaçãodoCargo:07/01/2021atéomomento):Deliberaçõesnº 014/2021,nº046/2021,nº047/2021,nº062/2021,nº067/2021,nº068/2021,nº069/2021,nº 070/2021enº104/2023
-UrbanoSchmitt 42,Secretário(a)Adjunto(a)daSecretariaMunicipalde PlanejamentoeAssuntosEstratégicos(PeríododeOcupaçãodoCargo:26/04/2021a 31/07/2022)eSecretáriodaSecretariaMunicipaldePlanejamentoeAssuntosEstratégicos (PeríododeOcupaçãodoCargo:01/08/2022a01/01/2023):Deliberaçõesnº062/2021,nº 067/2021,nº068/2021,nº069/2021,nº070/2021enº059/2022
-RicharddosSantosDias43,Secretário(a)Adjunto(a)daSecretariaMunicipalde AdministraçãoePatrimônio(PeríododeOcupaçãodoCargo:10/01/2023a14/01/2025): Deliberaçõesnº104/2023enº111/2023
- Rodrigo Sartori Fantinel 44 , Secretário da Secretaria Municipal da Fazenda(PeríododeOcupaçãodoCargo:01/01/2021a31/12/2024):Deliberaçãonº059/2022
•Diretores-Gerais
CompetiaaosocupantesdocargodeDiretor-Geral,aadministraçãoeaconduçãoda políticageraldepessoaldoDMAE(art8ºdaLeiMunicipalnº2312/1961;art5º,alínea'k'eart 232
Assinado digitalmente por: Marcelo Kipper da Silva em 14/07/25, Leandro Lobato Camargo em 14/07/25, Leandro Torres em 14/07/25, Fabio Alex Beling em 14/07/25 e outro(s). Confira a autenticidade do documento em www.tce.rs.gov.br. Identificador: PRE.FE77.2360.2A1D.FC7C.62D4.

ESTADODORIOGRANDEDOSUL
DIREÇÃODECONTROLEEFISCALIZAÇÃO SERVIÇODEAUDITORIADEPORTOALEGRE

6ºdoDecretonº18080/2012;art4º,alínea'k'eart5ºdoDecretonº20758/2020;art5º,I, alínea'k'eart.6ºdoDecretonº21.539/2022)bemcomo,apósatransferênciadosencargos sobreoSPCC,ocorridainicialmenteem2019edefinitivamenteem2021,promoveraatualização doRegimentoGeraldodepartamento(art4ºdoDecretonº20229/2019;art274doDecretonº 20.758/2020;art.191doDecretonº21.539/2022),devendodisporsobreascompetênciasde todasasunidadesdetrabalhoquecompõemasuaestruturaorganizacional,oquetambém abrangiaaresponsabilidadedeadequadamentecomporessessetores
Diantedessascircunstânciaseraesperadoqueosagentesagissemcomzeloe atençãoaoprincípiodaeficiênciaquandodaestruturaçãodepessoaldoDMAE,paraa adequadaabsorçãoecumprimentodascompetênciasrelativasaosistemadedrenagemede proteçãocontracheias,especialmenteconsiderandooconjuntodecompetênciasacrescidase complexidadesexistentes
Nesseaspecto,nãoerarazoávelqueasatividadesantesexecutadaspeloDEP tenhamsidonegligenciadasapóssuaextinção,semaelaboraçãodeumplanodetransição minimamenteviável.Essemomentodetransiçãorepresentou,inclusive,umaoportunidade relevantedeinflexão,quepossibilitavaareavaliaçãoereestruturaçãodasestruturasmunicipais responsáveispelosistemadeproteçãocontracheias,acompanhadadasuficientealocaçãode recursoshumanosparaoexercíciodessascompetências oportunidadeessaque,noentanto, nãofoiaproveitada
OcargodeDiretor-Geralfoiocupadopelosseguintesagentes:
-DarcyNunesdosSantos(Diretor-Geral-Período08/03/2018a31/12/2020);
Oagentefoidevidamentecientificadodointeiroteordorelatóriodeinspeçãoespecial constantedoprocessonº363-0200/19-4(peça6653039)45 .
Emboraaindafossemexigidosmaioresesforçosporpartedogestor,registram-se, comocircunstânciasatenuantes,asdiversasatuaçõesdoagentenatentativadeconvencimento daadministraçãocentralizada,inclusivenacondiçãodeocupantedocargodeDiretor-Geral Adjunto,duranteagestãodoPrefeitoSebastiãoMelo(2021a2024),registrandoalertasquantoà necessidadedereposiçãodepessoaldiantedosriscosdecolapsonaprestaçãodosserviços, bemcomoenfatizandoanecessidadederecomposiçãodoquadroparaaincorporaçãodas competênciasdoDEP.
-AlexandredeFreitasGarcia(Diretor-Geral-Período01/01/2021a22/01/2023);
Oagenteregistrou,noexpediente1910000001067-7,ciênciasobreainspeção especialconstantedoprocessonº363-0200/19-4(peça6718525,p18)
Registra-se,comocircunstânciaagravante,queoagentenãoadotouprovidências paraaremessadosexpedientesnº19.10.000001067-7,nº20.10.000006485-3,nº 2010000007016-0en°2110000003292-2,paraapreciaçãodaadministraçãocentralizada 233

ESTADODORIOGRANDEDOSUL TRIBUNALDECONTAS
DIREÇÃODECONTROLEEFISCALIZAÇÃO SERVIÇODEAUDITORIADEPORTOALEGRE
(CGDEP/CMDPePrefeitoMunicipal)

Oprocessonº2010000007016-0nãoremetidopeloDiretor-Geral,porexemplo, visavaareposiçãodeservidoresdoscargosdeEngenheiro,TécnicoemSaneamentoouAuxiliar Técnico,comajustificativaassentadanoincrementodeatividadesdefiscalizaçãodeserviços comaassunçãopeloDMAEdasatividadesrelacionadasàconservação,operaçãoemanutenção dasredespúblicasdedrenagemecasasdebombas-SistemadeProteçãoContraCheias (peça6718583,p.1e2),bemcomofoiressaltadoqueanãoreposiçãodevagasimportariaem prejuízosàexecuçãodasatividadesacontento,emespecialnoscontratosdeDragagemde Arroios,ReconstruçãodeRedesPluviaiseManutençõesdoSistemadeManejodeÁguas Pluviais(peça6718583,p.4).
Portanto,aomissãodoagentecontribuiuparaafaltadeprovisãodemelhoriasna estruturaçãodepessoaleaadequaçãodoquadrogeraldecargosdoDMAE,resultandonum contextodeincapacitaçãooperacionalgeneralizadadoórgãoparaconsecuçãodesuas competências,sobretudonasatividadesrelacionadasaossistemasdedrenagemede gestão/planejamento,manutenção,conservaçãoeoperaçãodoSPCC
-MauricioLoss(Diretor-Geral-Período23/01/2023a31/12/2024)
Registra-se,comocircunstânciaagravante,ofatodequeoagentetinhatotal conhecimentodosriscosatinentesàsmudançasclimáticaseosseusefeitosemPortoAlegre, umavezquefoimediadordopainel"MudançasClimáticasePortoAlegreem2050"etambém signatáriodo"DocumentoFinalda6ªConferênciadeMeioAmbiente"(peça6718567),evento realizadoemnovembrode2022,quecontoucomaparticipaçãodeváriosespecialistasna temática,cujasapresentaçõesalertaramqueoaquecimentoglobaljáeraumarealidadeem PortoAlegreequeasmudançasclimáticasimplicavamriscosdeelevaçãodoníveldo Guaíba.DentreasmoçõesaprovadaspelaAssembleiada6ªConferênciaMunicipaldoMeio Ambiente,destaca-seadenº6:
6Queapolíticadeplanejamentourbanoincluaaprevençãoegestãoderiscos edeproteçãocontracheiaseinundações,açõesdeadaptação,resiliência, utilizandocomocritérioadinâmicadasbaciashidrográficaseascaracterísticas decadalocal
Responsabilização
Responsável1
Matrizderesponsabilização
Nome: SebastiãodeAraújoMelo(CPF:159697971-20)
Função: PrefeitoMunicipal
Períodode
exercício: 01/01/2021a31/12/2024
Conduta: NãoatendeuàssolicitaçõesdereposiçãoedeincrementodepessoalencaminhadaspeloDMAE, omitindo-sequantoaospleitosdereestruturaçãoeadequaçãodoquadrodepessoaldaautarquia
Assinado digitalmente por: Marcelo Kipper da Silva em 14/07/25, Leandro Lobato Camargo em 14/07/25, Leandro Torres em 14/07/25, Fabio Alex Beling em 14/07/25 e outro(s). Confira a autenticidade do documento em www.tce.rs.gov.br. Identificador: PRE.FE77.2360.2A1D.FC7C.62D4.

ESTADODORIOGRANDEDOSUL TRIBUNALDECONTAS
DIREÇÃODECONTROLEEFISCALIZAÇÃO SERVIÇODEAUDITORIADEPORTOALEGRE
Nexode
causalidade:

Aomissãodoadministradorresponsávelnoatendimentodassolicitaçõesdereposiçãoede incrementodepessoal,resultounaincapacidadeoperacionaldoDMAEparaaincorporaçãodas atividadeseparaoadequadocumprimentodascompetênciasrelativasàgestão,operação, manutençãoecontroledoSPCC,sendodeterminanteparaafragilizaçãodaestruturadaautarquia enquantoórgãodeengenharia,limitandoasuacapacidadedeelaborarprojetosreestruturantese derealizarosinvestimentosnecessários-providênciasquenãoforamrealizadaseque contribuíramdiretamenteparaofracassodofuncionamentodoSPCCConsequentemente,a ausênciadasaçõesnecessárias,decorrentedafaltadeestruturaçãodepessoaleda incapacitaçãooperacionaldoDMAEparaocumprimentoadequadodascompetências relacionadasaoSPCC,resultouemprejuízossignificativosaoeráriomunicipal,aindanão totalmentequantificados,masquejáperfazemquantiaestimadaentreR$6aR$8bilhões
Culpabilidade: Oagentefoidevidamentecientificadodointeiroteordorelatóriodeinspeçãoespecial,constante doprocessonº363-0200/19-4,queapontouaexistênciaderiscosdeenfrentamentodegraves problemasparaaimplementaçãodasnecessidadesoperacionaisedeexpansãodosserviços anteriormenteprestadospeloDEP,tendoemvistaafaltadecapacidadeoperacionaldoDMAE decorrentedafaltadepessoal,emrazãodainterferênciadoExecutivonaautonomiadaautarquia edoimpedimentodanecessáriarecomposiçãodoquadrodeservidoresAdemais,comoimpactos negativosdafaltadereposiçãodepessoaltambémforamsalientadasasdificuldadesde planejamento,projeto,contratação,fiscalizaçãoeacompanhamentocontratual,circunstânciasque configuravamafragilizaçãodaestruturadoDMAEenquantoórgãodeengenhariaedasua capacidadeparaelaboraçãodenovosprojetosreestruturanteseinvestimentoscomrecursos própriosparaoatingimentodesuasmetasinstitucionaisDiantedessascircunstânciasera esperadoqueoagenteagissecomzeloeatençãoaoprincípiodaeficiênciaquandoda estruturaçãodepessoaldoDMAE,paraaadequadaabsorçãoecumprimentodascompetências relativasaosistemadedrenagemedeproteçãocontracheias,especialmenteconsiderandoo conjuntodecompetênciasacrescidasecomplexidadesexistentesTodavia,ogestormantevea subordinaçãodospedidosadministrativosderecomposiçãodepessoaldoDMAEaoCGDEP, posteriormentesubstituídopeloCMDP.Comisso,asdecisõesrelacionadasàgestãodepessoal doDMAEforam,negligentemente,delegadasaagentesquenãopossuemformaçãoou experiênciaprofissionalnaáreadesaneamentoConsequentemente,amanutençãoda subordinaçãodospleitosdereposiçãodepessoaldoDMAEàsdecisõesdaadministração centralizada,atraiaresponsabilizaçãosubjetivadoPrefeitoMunicipaledosdemaisagentes integrantesdoCGDEP/CMDP,pelaadministraçãodepessoaldaautarquiae,consequentemente, pelasfalhasdegestãoverificadasEssadecisãoacarretouprejuízosaoatendimentotempestivo dasdemandasderecomposiçãodepessoaldaautarquia,umavezquediversassolicitações encaminhadaspeloDMAE,injustificadamente,nãoforamatendidasplenamentepelo CGDEP/CMDP,emquepeseaexplanaçãosobreosriscosdecolapsoeparalisaçãodosserviços públicosprestadose,também,aapresentaçãodejustificativasfundamentadasnaincorporação dascompetênciasdoDEPRessalta-se,ainda,queoPrefeito,chancelouasdecisõesemitidas peloCGDEP,bemcomo,nacondiçãodemembrodoCMDP,anuiucomasautorizaçõesemitidas peloreferidocomitê,consentindo,portanto,comonãoatendimentoplenodassolicitaçõesAs decisõespeloindeferimentoprejudicaramatempestividadeeignoraramaurgênciaapresentada, bemcomodemandaramesforçosargumentativosporpartedoDMAE,paraoconvencimento quantoànecessidadedoatendimentoplenodospedidos,obtidoporautorizaçãodiretado administrador,apósumlongoeexaustivotrâmiteprocessualComocircunstânciasagravantes, salienta-seque,asDeliberaçõesnº046/2021,nº047/2021,nº067/2021enº059/2022,constantes doexpedientenº2110000002787-2,ignoraramaorientaçãojurídicadaPGM,sendoindeferidos ospedidosdenomeaçõesdeengenheirosmecânicos,cujareposiçãojustificava-senoaumentode equipamentoseletromecânicossobmanutenção,dentreosquaisasEBAPs,estruturasintegrantes doSPCCAdemandafoiautorizadapeloadministrador,em09/09/2021,4mesesapósao encaminhamentodasolicitação,sendoqueacarênciaerareportadadesdejaneirode2021 Outrossim,registra-se,comocircunstânciaagravante,queoagentetentouconferirlegalidadeaos atosadministrativosderestriçãodaautonomiaadministrativadodepartamento,praticadospelo CGDEP/CMDPduranteoperíododesuagestão,aoproporesancionararevogaçãodoart2ºda Leinº2.312/1961,pormeiodoPL007/21queresultounasançãoepublicaçãodaLeinº 12939/2021AlémdamanutençãodasubordinaçãodoDMAEaoCGDEP/CMDP,ogestor, injustificadamente,nãodeuseguimentoàssolicitaçõesdereestruturaçãoemodernizaçãodo quadrogeraldoórgão(Processosnº2110000003952-8enº2210000004786-0),bemcomonão apresentounenhumasoluçãoalternativaparamitigaçãodosriscosqueresultaramdessas decisõesComocircunstânciaagravante,registra-seofatodequeoPrefeitotinhapleno conhecimentosobreasituaçãodefragilidadedoDMAE,decorrentedafaltadepessoal,cujos impactosrefletiam-senegativamentenãoapenasnocumprimentodasatividadesmaisordinárias 235
Assinado digitalmente por: Marcelo Kipper da Silva em 14/07/25, Leandro Lobato Camargo em 14/07/25, Leandro Torres em 14/07/25, Fabio Alex Beling em 14/07/25 e outro(s). Confira a autenticidade do documento em www.tce.rs.gov.br. Identificador: PRE.FE77.2360.2A1D.FC7C.62D4.

ESTADODORIOGRANDEDOSUL TRIBUNALDECONTAS
DIREÇÃODECONTROLEEFISCALIZAÇÃO SERVIÇODEAUDITORIADEPORTOALEGRE

doórgão,relativasaossistemasdeabastecimentoetratamentodeáguaeesgotos,mastambém, eprincipalmente,naconsecuçãodascompetênciasincorporadasdoDEP,atinentesàdrenageme àoperação,manutenção,expansãoeaodesenvolvimentoeimplantaçãodemelhoriasnoSPCC Ademais,registra-secomoagravante,ofatodequeoagenteoptoupornãorecomporenão readequaroquadrodecargosdodepartamentoemrazãodaexistênciadeestudosedefinições sobreasalternativasparaaprestaçãodosserviçosdeáguaeesgoto,pormeiodaconcessãodos serviços,mesmotendociênciaqueessesestudosdemorariam,decisãoestaqueimplicou evidentesprejuízosnaprestaçãodosserviçospúblicospelaautarquiaAinda,oagentetinhapleno conhecimentodaperdaderecursosfederaisdoPACPrevenção(R$122milhões),quepreviaa destinaçãoderecursosparamelhoriasestruturais,aumentodacapacidade,aquisiçãode geradoresdeenergiaeampliaçãodecasasdebombaseàmacrodrenagemdoarroioMoinho (ProgramaDrenaPoa),bemcomofoicientificadodasconclusõesregistradasnasindicância instaurada,aqualapontoudiversosproblemasnoplanejamentodosprojetos,dentreosquaisa faltadeestruturadepessoalparaacompanhamentoepriorizaçãodosprojetosTaiscircunstâncias tambémsãoagravantesedemandavammaioratençãonaestruturaçãoorganizacionalede pessoalparaviabilizaraelaboraçãoeexecuçãodosprojetospertinentesàscompetências incorporadasPortanto,oagenteassumiutodososriscospreviamentealertadospelaEquipede Auditoria,relativosàincorporaçãodascompetênciasdoDEPpeloDMAE,numcenáriode incapacitaçãooperacionaldesteórgãoparaaadequadaabsorçãodessesserviçoseparaa expansãoeimplementaçãodemelhoriasnossistemasdedrenagemedeproteçãocontracheias, riscosessesquesematerializaramcomoeventoclimáticoocorridoemmaiode2024Comefeito, oagenteagiucomnegligênciaedescasoquantoaocumprimentodoprograma/projetodegoverno "MelhorianoSistemadeProteçãoContraCheias"estabelecidonoPlanoPlurianual2022a2025, emsentidocontrárioaoqueseriaesperadoparaumacidadeconsiderada"HUBderesiliência"e quetinhainstituído,pormeiodaLeiMunicipalnº12629/2019,umplanoderesiliênciacom objetivosvoltadosàprevençãoderiscos,baseadonagestãoderiscosdedesastresesuaredução emcasodeinundação,alagamentoedeslizamento,bemcomonagarantiadeinfraestrutura adequadaàsfamíliasresidentesemáreasderiscosAomissãotambématentoucontraaLei Complementarnº872/2020,queinstituiuapolíticadesustentabilidade,enfrentamentodas mudançasclimáticaseusoracionaldaenergia,comobjetivosvoltadosàresiliência,prevençãoe adaptaçãoemitigaçãodosimpactosdasmudançasclimáticasedeeventosextremos(aumentodo níveldoGuaíba,alagamentosedeslizamentos)Portanto,restouevidenciadaacaracterizaçãode culpagraveouerrogrosseiro,tendoemvistaqueaomissãoimplicougraveinobservânciado deverdecuidadoeafastou-sedoreferencialdo"administradormédio",poiseranotórioe perceptívelporpessoadediligêncianormalaimportânciadaadequadaestruturaçãodepessoal paraocumprimentodascompetênciasincorporadas,relativasaoSPCC.
Responsável2
Nome: NelsonMarchezanJunior(CPF:647771540-68)
Função: PrefeitoMunicipal
Períodode
exercício: 01/01/2017a31/12/2020
Conduta: NãoatendeuàssolicitaçõesdereposiçãoedeincrementodepessoalencaminhadaspeloDMAE, omitindo-sequantoaospleitosdereestruturaçãoeadequaçãodoquadrodepessoaldaautarquia
Nexode causalidade: Aomissãodoadministradorresponsávelnoatendimentodassolicitaçõesdereposiçãoede incrementodepessoalimpediuaprovisãodemelhoriasnaestruturaçãodepessoalea adequaçãodoquadrogeraldecargosdoDMAE,situaçãoquetambémrepercutiunagestão subsequente,resultandonumcontextodeincapacitaçãooperacionalgeneralizadadoórgãopara consecuçãodesuascompetências,sobretudonasatividadesrelacionadasaossistemasde drenagemedegestão/planejamento,manutenção,conservaçãoeoperaçãodo SPCCConsequentemente,aausênciadasaçõesnecessárias,decorrentedafaltade estruturaçãodepessoaledaincapacitaçãooperacionaldoDMAEparaocumprimentoadequado dascompetênciasrelacionadasaoSPCC,resultouemprejuízossignificativosaoeráriomunicipal, aindanãototalmentequantificados,masquejáperfazemquantiaestimadaentreR$6aR$8 bilhões

ESTADODORIOGRANDEDOSUL TRIBUNALDECONTAS
DIREÇÃODECONTROLEEFISCALIZAÇÃO SERVIÇODEAUDITORIADEPORTOALEGRE

Culpabilidade:
Oagentefoidevidamentecientificadodointeiroteordorelatóriodeinspeçãoespecial,constante doprocessonº363-0200/19-4,queapontouaexistênciaderiscosdeenfrentamentodegraves problemasparaaimplementaçãodasnecessidadesoperacionaisedeexpansãodosserviços anteriormenteprestadospeloDEP,tendoemvistaafaltadecapacidadeoperacionaldoDMAE decorrentedafaltadepessoal,emrazãodainterferênciadoExecutivonaautonomiadaautarquia edoimpedimentodanecessáriarecomposiçãodoquadrodeservidoresAdemais,comoimpactos negativosdafaltadereposiçãodepessoaltambémforamsalientadasasdificuldadesde planejamento,projeto,contratação,fiscalizaçãoeacompanhamentocontratual,circunstânciasque configuravamafragilizaçãodaestruturadoDMAEenquantoórgãodeengenhariaedasua capacidadeparaelaboraçãodenovosprojetosreestruturanteseinvestimentoscomrecursos própriosparaoatingimentodesuasmetasinstitucionaisDiantedessascircunstânciasera esperadoqueoagenteagissecomzeloeatençãoaoprincípiodaeficiênciaquandoda estruturaçãodepessoaldoDMAE,paraaadequadaabsorçãoecumprimentodascompetências relativasaosistemadedrenagemedeproteçãocontracheias,especialmenteconsiderandoo conjuntodecompetênciasacrescidasecomplexidadesexistentesNoentanto,ogestormantevea subordinaçãodospedidosadministrativosderecomposiçãodepessoaldoDMAEaoCGDEP, delegando,negligentemente,asdecisõesrelacionadasàgestãodepessoaldoDMAEaagentes quenãopossuemformaçãoouexperiênciaprofissionalnaáreadesaneamento Consequentemente,amanutençãodasubordinaçãodospleitosdereposiçãodepessoaldo DMAEàsdecisõesdaadministraçãocentralizada,atraiaresponsabilizaçãosubjetivadoPrefeito MunicipaledosdemaisagentesintegrantesdoCGDEP,pelaadministraçãodepessoalda autarquiae,consequentemente,pelasfalhasdegestãoverificadasEssadecisãoacarretou prejuízosaoatendimentodasdemandasderecomposiçãodepessoaldaautarquia,umavezque diversassolicitaçõesencaminhadaspeloDMAE,injustificadamente,nãoforamatendidas plenamentepeloCGDEP,emquepeseaexplanaçãosobreosriscosdecolapsoeparalisação dosserviçospúblicosprestadosRessalta-se,ainda,queoPrefeitochancelouasautorizações emitidaspeloreferidocomitê,consentindo,portanto,comonãoatendimentoplenodas solicitaçõesAinda,durantesuagestãoocorreuaperdaderecursosfederaisdoPACPrevenção (R$122milhões),quepreviaadestinaçãoderecursosparamelhoriasestruturais,aumentoda capacidade,aquisiçãodegeradoresdeenergiaeampliaçãodecasasdebombaseà macrodrenagemdoarroioMoinho(ProgramaDrenaPoa),bemcomofoicientificadodas conclusõesregistradasnasindicânciainstaurada,aqualapontoudiversosproblemasno planejamentodosprojetos,dentreosquaisafaltadeestruturadepessoalparaacompanhamento epriorizaçãodosprojetosTaiscircunstânciassãoagravantesedemandavammaioratençãona estruturaçãoorganizacionaledepessoalparaviabilizaraelaboraçãoeexecuçãodosprojetos pertinentesàscompetênciasincorporadasAlémdisso,ogestornãosemanifestouquandoda oportunidadedeadequaçãodoquadrodepessoaldoDMAE,atravésdepropostadeprojetodelei visandoacriaçãoeextinçãodecargos,consignadanoexpedientenº2010000001166-0 Portanto,oagenteassumiutodososriscospreviamentealertadospelaEquipedeAuditoria, relativosàincorporaçãodascompetênciasdoDEPpeloDMAE,numcenáriodeincapacitação operacionaldesteórgãoparaaadequadaabsorçãodessesserviçoseparaaexpansãoe implementaçãodemelhoriasnossistemasdedrenagemedeproteçãocontracheias,riscosesses quesematerializaramcomoeventoclimáticoocorridonagestãosubsequenteComefeito,o agenteagiucomnegligênciaedescasoquantoaocumprimentodoprograma/projetodegoverno "MelhorianoSistemadeProteçãoContraCheias"estabelecidonoPlanoPlurianual2018a2021, emsentidocontrárioaoqueseriaesperadoparaumacidadeconsiderada"HUBderesiliência"e quetinhainstituído,pormeiodaLeiMunicipalnº12629/2019,umplanoderesiliênciacom objetivosvoltadosàprevençãoderiscos,baseadonagestãoderiscosdedesastresesuaredução emcasodeinundação,alagamentoedeslizamento,bemcomonagarantiadeinfraestrutura adequadaàsfamíliasresidentesemáreasderiscosAomissãotambématentoucontraaLei Complementarnº872/2020,queinstituiuapolíticadesustentabilidade,enfrentamentodas mudançasclimáticaseusoracionaldaenergia,comobjetivosvoltadosàresiliência,prevençãoe adaptaçãoemitigaçãodosimpactosdasmudançasclimáticasedeeventosextremos(aumentodo níveldoGuaíba,alagamentosedeslizamentos)Portanto,restouevidenciadaacaracterizaçãode culpagraveouerrogrosseiro,tendoemvistaqueaomissãoimplicougraveinobservânciado deverdecuidadoeafastou-sedoreferencialdo"administradormédio",poiseranotórioe perceptívelporpessoadediligêncianormalaimportânciadaadequadaestruturaçãodepessoal paraocumprimentodascompetênciasincorporadas,relativasaoSPCC
Responsável3
Nome: AlexandredeFreitasGarcia(CPF:826508450-15)
Função: DiretorGeral
Assinado digitalmente por: Marcelo Kipper da Silva em 14/07/25, Leandro Lobato Camargo em 14/07/25, Leandro Torres em 14/07/25, Fabio Alex Beling em 14/07/25 e outro(s). Confira a autenticidade do documento em www.tce.rs.gov.br. Identificador: PRE.FE77.2360.2A1D.FC7C.62D4.

ESTADODORIOGRANDEDOSUL TRIBUNALDECONTAS
Períodode exercício: 01/01/2021a22/01/2023
Conduta:
Nexode causalidade:

Nãopromoveuumaestruturaçãodepessoaladequadaparaaassunção,peloDMAE,das competênciasrelacionadasaossistemasdedrenagem,deesgotopluvialedeproteçãocontra cheias,sujeitando-seàsintervençõesdaadministraçãocentralizadaeassumindoosriscosque envolviamagestãooperacionaldoórgãonumcenáriodeescassezderecursoshumanos
Acondutaomissivaatinenteàestruturaçãoadequadadepessoaldoórgão,paraincorporaçãodas competênciasrelacionadasaossistemasdedrenagem,deesgotopluvialedeproteçãocontra cheias,resultounaincapacidadeoperacionaldoDMAEparaaincorporaçãodasatividadesepara oadequadocumprimentodascompetênciasrelativasàgestão,operação,manutençãoecontrole doSPCC,sendodeterminanteparaafragilizaçãodaestruturadaautarquiaenquantoórgãode engenharia,limitandoasuacapacidadedeelaborarprojetosreestruturantesederealizaros investimentosnecessários-providênciasquenãoforamrealizadasequecontribuíram diretamenteparaofracassodofuncionamentodoSPCCConsequentemente,aausênciadas açõesnecessárias,decorrentedafaltadeestruturaçãodepessoaledaincapacitaçãooperacional doDMAEparaocumprimentoadequadodascompetênciasrelacionadasaoSPCC,resultouem prejuízossignificativosaoeráriomunicipal,aindanãototalmentequantificados,masquejá perfazemquantiaestimadaentreR$6aR$8bilhões
Assinado digitalmente por: Marcelo Kipper da Silva em 14/07/25, Leandro Lobato Camargo em 14/07/25, Leandro Torres em 14/07/25, Fabio Alex Beling em 14/07/25 e outro(s). Confira a autenticidade do documento em www.tce.rs.gov.br. Identificador: PRE.FE77.2360.2A1D.FC7C.62D4.

ESTADODORIOGRANDEDOSUL TRIBUNALDECONTAS
DIREÇÃODECONTROLEEFISCALIZAÇÃO SERVIÇODEAUDITORIADEPORTOALEGRE

Culpabilidade:
Oagenteregistrou,noexpediente1910000001067-7,ciênciasobreainspeçãoespecial constantedoprocessonº363-0200/19-4Diantedessascircunstânciaseraesperadoqueoagente agissecomzeloeatençãoaoprincípiodaeficiênciaquandodaestruturaçãodepessoaldoDMAE, paraaadequadaabsorçãoecumprimentodascompetênciasrelativasaosistemadedrenageme deproteçãocontracheias,especialmenteconsiderandooconjuntodecompetênciasacrescidase complexidadesexistentesCompetiaaoagente,nacondiçãodeDiretor-Geral,aadministraçãoea conduçãodapolíticageraldepessoaldoDMAE(art8ºdaLeiMunicipalnº2312/1961;art4º, alínea'k'eart5ºdoDecretonº20758/2020;art5º,I,alínea'k'eart6ºdoDecretonº 21539/2022)bemcomo,apósatransferênciadefinitivadosencargossobreoSPCC,ocorridaem 2021,promoveraatualizaçãodoRegimentoGeraldodepartamento(art274doDecretonº 20758/2020),devendodisporsobreascompetênciasdetodasasunidadesdetrabalhoque compõemasuaestruturaorganizacional,oquetambémabrangiaaresponsabilidadede adequadamentecomporessessetoresEmquepeseafaltadeestruturaçãodepessoaltenha sidoprecipuamenteprejudicadapelasomissõesdaadministraçãocentralizada,oagenteerao administradorresponsávelpelaautarquia,oquesignificavageriraescassezderecursoshumanos doquadrogeraldoDMAEeserresponsávelpelosresultadosoperacionaisdodepartamentoDe outrabanda,oagentenãoadotouprovidênciasparaaremessadosexpedientesnº 1910000001067-7,nº2010000006485-3,nº2010000007016-0en°2110000003292-2,para apreciaçãodaadministraçãocentralizada,fatosquedevemserconsideradoscomocircunstâncias agravantesOprocessonº2010000007016-0,porexemplo,visavaareposiçãodeservidoresdos cargosdeEngenheiro,TécnicoemSaneamentoouAuxiliarTécnica,comajustificativaassentada noincrementodeatividadesdefiscalizaçãodeserviçoscomaassunçãopeloDMAEdas atividadesrelacionadasàconservação,operaçãoemanutençãodasredespúblicasdedrenagem ecasasdebombas-SistemadeProteçãoContraCheias,bemcomofoiressaltadoqueanão reposiçãodevagasimportariaemprejuízosaexecuçãodasatividadesacontento,emespecial noscontratosdeDragagemdeArroios,ReconstruçãodeRedesPluviaiseManutençõesdo SistemadeManejodeÁguasPluviais Portanto,aomissãodoagentecontribuiuparaafalta deprovisãodemelhoriasnaestruturaçãodepessoaleaadequaçãodoquadrogeraldecargosdo DMAE,resultandonumcontextodeincapacitaçãooperacionalgeneralizadadoórgãopara consecuçãodesuascompetências,sobretudonasatividadesrelacionadasaossistemasde drenagemedegestão/planejamento,manutenção,conservaçãoeoperaçãodoSPCCCom efeito,oagenteagiucomnegligênciaedescasoquantoaocumprimentodoprograma/projetode governo"MelhorianoSistemadeProteçãoContraCheias"estabelecidonoPlanoPlurianual2022 a2025,emsentidocontrárioaoqueseriaesperadoparaumacidadequeinstituiu,pormeiodaLei Municipalnº12629/2019,umplanoderesiliênciacomobjetivosvoltadosàprevençãoderiscos, baseadonagestãoderiscosdedesastresesuareduçãoemcasodeinundação,alagamentoe deslizamento,bemcomonagarantiadeinfraestruturaadequadaàsfamíliasresidentesemáreas deriscosAomissãotambématentoucontraaLeiComplementarnº872/2020,queinstituiua políticadesustentabilidade,enfrentamentodasmudançasclimáticaseusoracionaldaenergia, comobjetivosvoltadosàresiliência,prevençãoeadaptaçãoemitigaçãodosimpactosdas mudançasclimáticasedeeventosextremos(aumentodoníveldoGuaíba,alagamentose deslizamentos)Portanto,restouevidenciadaacaracterizaçãodeculpagraveouerrogrosseiro, tendoemvistaqueaomissãoimplicougraveinobservânciadodeverdecuidadoeafastou-sedo referencialdo"administradormédio",poiseranotórioeperceptívelporpessoadediligêncianormal aimportânciadaadequadaestruturaçãodepessoalparaocumprimentodascompetências incorporadas,relativasaoSPCC
Responsável4
Nome: MauricioLoss(CPF:011042390-94)
Função: Diretor-Geral
Períodode
exercício: 23/01/2023a31/12/2024
Conduta:
Nãopromoveuumaestruturaçãodepessoaladequadaparaaassunção,peloDMAE,das competênciasrelacionadasaossistemasdedrenagem,deesgotopluvialedeproteçãocontra cheias,sujeitando-seàsintervençõesdaadministraçãocentralizadaeassumindoosriscosque envolviamagestãooperacionaldoórgãonumcenáriodeescassezderecursoshumanos

ESTADODORIOGRANDEDOSUL TRIBUNALDECONTAS
DIREÇÃODECONTROLEEFISCALIZAÇÃO SERVIÇODEAUDITORIADEPORTOALEGRE

Nexode
causalidade:
Culpabilidade:
Acondutaomissivaatinenteàestruturaçãoadequadadepessoaldoórgão,paraincorporaçãodas competênciasrelacionadasaossistemasdedrenagem,deesgotopluvialedeproteçãocontra cheias,resultounaincapacidadeoperacionaldoDMAEparaaincorporaçãodasatividadesepara oadequadocumprimentodascompetênciasrelativasàgestão,operação,manutençãoecontrole doSPCC,sendodeterminanteparaafragilizaçãodaestruturadaautarquiaenquantoórgãode engenharia,limitandoasuacapacidadedeelaborarprojetosreestruturantesederealizaros investimentosnecessários-providênciasquenãoforamrealizadasequecontribuíram diretamenteparaofracassodofuncionamentodoSPCCConsequentemente,aausênciadas açõesnecessárias,decorrentedafaltadeestruturaçãodepessoaledaincapacitaçãooperacional doDMAEparaocumprimentoadequadodascompetênciasrelacionadasaoSPCC,resultouem prejuízossignificativosaoeráriomunicipal,aindanãototalmentequantificados,masquejá perfazemquantiaestimadaentreR$6aR$8bilhões
Competiaaoagente,nacondiçãodeDiretor-Geral,aadministraçãoeaconduçãodapolíticageral depessoaldoDMAE(art8ºdaLeiMunicipalnº2312/1961;art5º,I,alínea'k'eart6ºdo Decretonº21539/2022)bemcomo,apósatransferênciadefinitivadosencargossobreoSPCC, ocorridaem2021,promoveraatualizaçãodoRegimentoGeraldodepartamento(art191do Decretonº21539/2022),devendodisporsobreascompetênciasdetodasasunidadesdetrabalho quecompõemasuaestruturaorganizacional,oquetambémabrangiaaresponsabilidadede adequadamentecomporessessetoresDiantedessascircunstânciaseraesperadoqueoagente agissecomzeloeatençãoaoprincípiodaeficiênciaquandodaestruturaçãodepessoaldoDMAE, paraaadequadaabsorçãoecumprimentodascompetênciasrelativasaosistemadedrenageme deproteçãocontracheias,especialmenteconsiderandooconjuntodecompetênciasacrescidase complexidadesexistentesEmquepeseafaltadeestruturaçãodepessoaltenha sidoprecipuamenteprejudicadapelasomissõesdaadministraçãocentralizada,oagenteerao administradorresponsávelpelaautarquia,oquesignificavageriraescassezderecursoshumanos doquadrogeraldoDMAEeserresponsávelpelosresultadosoperacionaisdodepartamento Comefeito,oagenteagiucomnegligênciaedescasoquantoaocumprimentodoprograma/projeto degoverno"MelhorianoSistemadeProteçãoContraCheias"estabelecidonoPlanoPlurianual 2022a2025,emsentidocontrárioaoqueseriaesperadoparaumacidadeconsiderada"HUBde resiliência"equeinstituiu,pormeiodaLeiMunicipalnº12629/2019,umplanoderesiliênciacom objetivosvoltadosàprevençãoderiscos,baseadonagestãoderiscosdedesastresesuaredução emcasodeinundação,alagamentoedeslizamento,bemcomonagarantiadeinfraestrutura adequadaàsfamíliasresidentesemáreasderiscosAomissãotambématentoucontraaLei Complementarnº872/2020,queinstituiuapolíticadesustentabilidade,enfrentamentodas mudançasclimáticaseusoracionaldaenergia,comobjetivosvoltadosàresiliência,prevençãoe adaptaçãoemitigaçãodosimpactosdasmudançasclimáticasedeeventosextremos(aumentodo níveldoGuaíba,alagamentosedeslizamentos)Tambémagravaasituaçãoofatodeoagente saberdosriscosdasmudançasclimáticasparaPortoAlegreEleparticipouda"6ªConferênciade MeioAmbiente"emnovembrode2022eassinouodocumentofinal,quedefendiaanecessidade deplanejamentourbanocomfoconaprevençãoegestãoderiscosdecheiaseinundações
Portanto,restouevidenciadaacaracterizaçãodeculpagraveouerrogrosseiro,tendoemvista queaomissãoimplicougraveinobservânciadodeverdecuidadoeafastou-sedoreferencialdo "administradormédio",poiseranotórioeperceptívelporpessoadediligêncianormalaimportância daadequadaestruturaçãodepessoalparaocumprimentodascompetênciasincorporadas, relativasaoSPCC
Responsável5
Nome: DarcyNunesdosSantos(CPF:609533650-34)
Função: DiretorGeral
Períodode
exercício: 08/03/2018a31/12/2020
Conduta:
Nãopromoveuumaestruturaçãodepessoaladequadaparaaassunção,peloDMAE,das competênciasrelacionadasaossistemasdedrenagem,deesgotopluvialedeproteçãocontra cheias,sujeitando-seàsintervençõesdaadministraçãocentralizadaeassumindoosriscosque envolviamagestãooperacionaldoórgãonumcenáriodeescassezderecursoshumanos

ESTADODORIOGRANDEDOSUL TRIBUNALDECONTAS
DIREÇÃODECONTROLEEFISCALIZAÇÃO SERVIÇODEAUDITORIADEPORTOALEGRE

Nexode
causalidade:
Culpabilidade:
Acondutaomissivaatinenteàestruturaçãoadequadadepessoaldoórgão,paraincorporaçãodas competênciasrelacionadasaossistemasdedrenagem,deesgotopluvialedeproteçãocontra cheias,resultounaincapacidadeoperacionaldoDMAEparaaincorporaçãodasatividadesepara oadequadocumprimentodascompetênciasrelativasàgestão,operação,manutençãoecontrole doSPCC,sendodeterminanteparaafragilizaçãodaestruturadaautarquiaenquantoórgãode engenharia,limitandoasuacapacidadedeelaborarprojetosreestruturantesederealizaros investimentosnecessários-providênciasquenãoforamrealizadasequecontribuíram diretamenteparaofracassodofuncionamentodoSPCCConsequentemente,aausênciadas açõesnecessárias,decorrentedafaltadeestruturaçãodepessoaledaincapacitaçãooperacional doDMAEparaocumprimentoadequadodascompetênciasrelacionadasaoSPCC,resultouem prejuízossignificativosaoeráriomunicipal,aindanãototalmentequantificados,masquejá perfazemquantiaestimadaentreR$6aR$8bilhões
Oagentefoidevidamentecientificadodointeiroteordorelatóriodeinspeçãoespecialconstante doprocessonº363-0200/19-4Competiaaoagente,nacondiçãodeDiretor-Geral,a administraçãoeaconduçãodapolíticageraldepessoaldoDMAE(art8ºdaLeiMunicipalnº 2312/1961;art5º,alínea'k'eart6ºdoDecretonº18080/2012;art4º,alínea'k'eart5ºdo Decretonº20758/2020)bemcomo,apósatransferênciainicialdosencargossobreoSPCC, ocorridaem2019,promoveraatualizaçãodoRegimentoGeraldodepartamento(art4ºdo Decretonº20229/2019),devendodisporsobreascompetênciasdetodasasunidadesdetrabalho quecompõemasuaestruturaorganizacional,oquetambémabrangiaaresponsabilidadede adequadamentecomporessessetoresDiantedessascircunstânciaseraesperadoqueoagente agissecomzeloeatençãoaoprincípiodaeficiênciaquandodaestruturaçãodepessoaldoDMAE, paraaadequadaabsorçãoecumprimentodascompetênciasrelativasaosistemadedrenageme deproteçãocontracheias,especialmenteconsiderandooconjuntodecompetênciasacrescidase complexidadesexistentesEmquepeseafaltadeestruturaçãodepessoaltenha sidoprecipuamenteprejudicadapelasomissõesdaadministraçãocentralizada,oagenteerao administradorresponsávelpelaautarquia,oquesignificavageriraescassezderecursoshumanos doquadrogeraldoDMAEeserresponsávelpelosresultadosoperacionaisdodepartamento Comefeito,oagenteagiucomnegligênciaedescasoquantoaocumprimentodoprograma/projeto degoverno"MelhorianoSistemadeProteçãoContraCheias"estabelecidonoPlanoPlurianual 2018a2021,emsentidocontrárioaoqueseriaesperadoparaumacidadequeinstituiu,pormeio daLeiMunicipalnº12629/2019,umplanoderesiliênciacomobjetivosvoltadosàprevençãode riscos,baseadonagestãoderiscosdedesastresesuareduçãoemcasodeinundação, alagamentoedeslizamento,bemcomonagarantiadeinfraestruturaadequadaàsfamílias residentesemáreasderiscosAomissãotambématentoucontraaLeiComplementarnº 872/2020,queinstituiuapolíticadesustentabilidade,enfrentamentodasmudançasclimáticase usoracionaldaenergia,comobjetivosvoltadosàresiliência,prevençãoeadaptaçãoemitigação dosimpactosdasmudançasclimáticasedeeventosextremos(aumentodoníveldoGuaíba, alagamentosedeslizamentos)Portanto,restouevidenciadaacaracterizaçãodeculpagraveou errogrosseiro,tendoemvistaqueaomissãoimplicougraveinobservânciadodeverdecuidadoe afastou-sedoreferencialdo"administradormédio",poiseranotórioeperceptívelporpessoade diligêncianormalaimportânciadaadequadaestruturaçãodepessoalparaocumprimentodas competênciasincorporadas,relativasaoSPCCEmboraaindafossemexigidosmaiores esforçosporpartedogestor,registram-se,comocircunstânciasatenuantes,asdiversasatuações doagentenatentativadeconvencimentodaadministraçãocentralizada,inclusivenacondiçãode ocupantedocargodeDiretor-GeralAdjunto,duranteagestãodoPrefeitoSebastiãoMelo(2021a 2024),registrandoalertasquantoànecessidadedereposiçãodepessoaldiantedosriscosde colapsonaprestaçãodosserviços,bemcomoenfatizandoanecessidadederecomposiçãodo quadroparaaincorporaçãodascompetênciasdoDEP
Responsável6
Nome: JulianaGarciadeCastro(CPF:014345810-80)
Função: MembroCGDEP-SecretáriadaSecretariaMunicipaldePlanejamentoeGestão
Períodode
exercício: 01/01/2017a31/12/2020
Conduta: Anuiu,colegiadamente,comomembrodoCGDEP,adecisões,injustificadas,quedenegaram pedidosderecomposiçãodeservidoresdoDMAE,paraosquaishaviacomprovaçãodeurgência
Assinado digitalmente por: Marcelo Kipper da Silva em 14/07/25, Leandro Lobato Camargo em 14/07/25, Leandro Torres em 14/07/25, Fabio Alex Beling em 14/07/25 e outro(s). Confira a autenticidade do documento em www.tce.rs.gov.br. Identificador: PRE.FE77.2360.2A1D.FC7C.62D4.

ESTADODORIOGRANDEDOSUL TRIBUNALDECONTAS DIREÇÃODECONTROLEEFISCALIZAÇÃO SERVIÇODEAUDITORIADEPORTOALEGRE
Nexode causalidade:
Culpabilidade:

Ascondutasresultaramnonãoatendimentodospleitosdereposiçãoedeincrementodepessoal nosquantitativosdecargosdemandadospeloDMAE,impedindoaprovisãodemelhoriasna estruturaçãodepessoaleaadequaçãodoquadrogeraldecargosdoDMAE,situaçãoque tambémrepercutiunagestãosubsequente,resultandonumcontextodeincapacitaçãooperacional generalizadadoórgãoparaconsecuçãodesuascompetências,sobretudonas atividadesrelacionadasaossistemasdedrenagemedegestão/planejamento,manutenção, conservaçãoeoperaçãodoSPCCConsequentemente,aausênciadasaçõesnecessárias, decorrentedafaltadeestruturaçãodepessoaledaincapacitaçãooperacionaldoDMAEparao cumprimentoadequadodascompetênciasrelacionadasaoSPCC,resultouemprejuízos significativosaoeráriomunicipal,aindanãototalmentequantificados,masquejáperfazemquantia estimadaentreR$6aR$8bilhões
Ascondutasocorrerammesmoapósacientificaçãodagestãoquantoaoconteúdodorelatóriode auditoriadainspeçãoespecialnº363-0200/19-4Amanutençãodasubordinaçãodospleitosde reposiçãodepessoaldoDMAEàsdecisõesdaadministraçãocentralizadaimplicaaatraçãoda responsabilizaçãosubjetivadoPrefeitoMunicipaledosdemaisagentesintegrantesdoCGDEP, pelaadministraçãodepessoaldaautarquiae,consequentemente,pelasfalhasdegestão verificadasDiantedessascircunstâncias,eraesperadoqueaagenteatuassecomzeloeem observânciaaoprincípiodaeficiênciaaomanifestarseuvotonasdecisõescolegiadasTodavia,a agenteassumiu,imperitamente,aresponsabilidadepelasdecisõesrelacionadasàgestãode pessoaldoDMAE,mesmosempossuirformaçãoouexperiênciaprofissionalnaáreade saneamentoComocircunstânciaagravante,aagenteanuiucomoatendimentoinsuficiente, registradonaautorizaçãonº139/2019,oqualrepercutiunafaltadeprovidênciasparao atendimentodosprocessosnº1910000001067-7enº2010000006485-3,posteriormente instauradosNessemesmoatodeautorização,oComitêconcedeuumprazoparaqueoDMAE apresentasseminutadeprojetodeleicomareestruturaçãodoquadrodeservidoresparafinsde atualizaçãocomasatuaisdemandasdodepartamentoContudo,apesardaapresentaçãodo projetodereadequaçãonoprocesso2010000001166-0,injustificadamente,nãohouvequalquer seguimentoe/ourespostapelaagente,queeramembrotitulardoCGDEP,queteveconhecimento daproposta,emreuniãoocorridanodia05/02/2020Comefeito,oagenteagiucomnegligênciae descasoquantoaocumprimentodoprograma/projetodegoverno"MelhorianoSistemade ProteçãoContraCheias"estabelecidonoPlanoPlurianual2018a2021,emsentidocontrárioao queseriaesperadoparaumacidadequeinstituiu,pormeiodaLeiMunicipalnº12629/2019,um planoderesiliênciacomobjetivosvoltadosàprevençãoderiscos,baseadonagestãoderiscosde desastresesuareduçãoemcasodeinundação,alagamentoedeslizamento,bemcomona garantiadeinfraestruturaadequadaàsfamíliasresidentesemáreasderiscosAscondutas tambématentaramcontraaLeiComplementarnº872/2020,queinstituiuapolíticade sustentabilidade,enfrentamentodasmudançasclimáticaseusoracionaldaenergia,comobjetivos voltadosàresiliência,prevençãoeadaptaçãoemitigaçãodosimpactosdasmudançasclimáticas edeeventosextremos(aumentodoníveldoGuaíba,alagamentosedeslizamentos)Portanto, restouevidenciadaacaracterizaçãodeculpagraveouerrogrosseiro,tendoemvistaqueas condutasimplicaramgraveinobservânciadodeverdecuidadoeafastaram-sedoreferencialdo "administradormédio",poiseranotórioeperceptívelporpessoadediligêncianormalaimportância daadequadaestruturaçãodepessoalparaocumprimentodascompetênciasincorporadas, relativasaoSPCC
Responsável7
Nome: LeonardoMaranhãoBusatto(CPF:003761200-02)
Função: MembroCGDEP-SecretáriodaSecretariaMunicipaldaFazenda
Períodode
exercício: 01/01/2017a06/04/2020e30/11/2020a31/12/2020
Conduta: Anuiu,colegiadamente,comomembrodoCGDEP,adecisão,injustificada,quedenegoupedido derecomposiçãodeservidoresdoDMAE,paraosquaishaviacomprovaçãodeurgência
Assinado digitalmente por: Marcelo Kipper da Silva em 14/07/25, Leandro Lobato Camargo em 14/07/25, Leandro Torres em 14/07/25, Fabio Alex Beling em 14/07/25 e outro(s). Confira a autenticidade do documento em www.tce.rs.gov.br. Identificador: PRE.FE77.2360.2A1D.FC7C.62D4.

ESTADODORIOGRANDEDOSUL TRIBUNALDECONTAS
DIREÇÃODECONTROLEEFISCALIZAÇÃO SERVIÇODEAUDITORIADEPORTOALEGRE
Nexode causalidade:
Culpabilidade:

Ascondutasresultaramnonãoatendimentodospleitosdereposiçãoedeincrementodepessoal nosquantitativosdecargosdemandadospeloDMAE,impedindoaprovisãodemelhoriasna estruturaçãodepessoaleaadequaçãodoquadrogeraldecargosdoDMAE,situaçãoque tambémrepercutiunagestãosubsequente,resultandonumcontextodeincapacitaçãooperacional generalizadadoórgãoparaconsecuçãodesuascompetências,sobretudonasatividades relacionadasaossistemasdedrenagemedegestão/planejamento,manutenção,conservaçãoe operaçãodoSPCCConsequentemente,aausênciadasaçõesnecessárias,decorrentedafalta deestruturaçãodepessoaledaincapacitaçãooperacionaldoDMAEparaocumprimento adequadodascompetênciasrelacionadasaoSPCC,resultouemprejuízossignificativosaoerário municipal,aindanãototalmentequantificados,masquejáperfazemquantiaestimadaentreR$6a R$8bilhões
Acondutaocorreumesmoapósacientificaçãodagestãoquantoaoconteúdodorelatóriode auditoriadainspeçãoespecialnº363-0200/19-4Amanutençãodasubordinaçãodospleitosde reposiçãodepessoaldoDMAEàsdecisõesdaadministraçãocentralizadaimplicaaatraçãoda responsabilizaçãosubjetivadoPrefeitoMunicipaledosdemaisagentesintegrantesdoCGDEP, pelaadministraçãodepessoaldaautarquiae,consequentemente,pelasfalhasdegestão verificadasDiantedessascircunstâncias,eraesperadoqueoagenteatuassecomzeloeem observânciaaoprincípiodaeficiênciaaomanifestarseuvotonasdecisõescolegiadasTodavia,o agenteassumiu,imperitamente,aresponsabilidadepelasdecisõesrelacionadasàgestãode pessoaldoDMAE,mesmosempossuirformaçãoouexperiênciaprofissionalnaáreade saneamentoComocircunstânciaagravante,oagenteanuiucomoatendimentoinsuficiente, registradonaautorizaçãonº139/2019,oqualrepercutiunafaltadeprovidênciasparao atendimentodosprocessosnº1910000001067-7enº2010000006485-3,posteriormente instauradosNessemesmoatodeautorização,oComitêconcedeuumprazoparaqueoDMAE apresentasseminutadeprojetodeleicomareestruturaçãodoquadrodeservidoresparafinsde atualizaçãocomasatuaisdemandasdodepartamentoContudo,apesardaapresentaçãodo projetodereadequaçãonoprocesso2010000001166-0,injustificadamente,nãohouvequalquer seguimentoe/ourespostapeloagente,queeramembrotitulardoCGDEP,queteveconhecimento daproposta,emreuniãoocorridanodia05/02/2020Comefeito,oagenteagiucomnegligênciae descasoquantoaocumprimentodoprograma/projetodegoverno"MelhorianoSistemade ProteçãoContraCheias"estabelecidonoPlanoPlurianual2018a2021,emsentidocontrárioao queseriaesperadoparaumacidadequeinstituiu,pormeiodaLeiMunicipalnº12629/2019,um planoderesiliênciacomobjetivosvoltadosàprevençãoderiscos,baseadonagestãoderiscosde desastresesuareduçãoemcasodeinundação,alagamentoedeslizamento,bemcomona garantiadeinfraestruturaadequadaàsfamíliasresidentesemáreasderiscosAcondutatambém atentoucontraaLeiComplementarnº872/2020,queinstituiuapolíticadesustentabilidade, enfrentamentodasmudançasclimáticaseusoracionaldaenergia,comobjetivosvoltadosà resiliência,prevençãoeadaptaçãoemitigaçãodosimpactosdasmudançasclimáticasede eventosextremos(aumentodoníveldoGuaíba,alagamentosedeslizamentos)Portanto,restou evidenciadaacaracterizaçãodeculpagraveouerrogrosseiro,tendoemvistaqueaconduta implicougraveinobservânciadodeverdecuidadoeafastou-sedoreferencialdo"administrador médio",poiseranotórioeperceptívelporpessoadediligêncianormalaimportânciadaadequada estruturaçãodepessoalparaocumprimentodascompetênciasincorporadas,relativasaoSPCC Responsável8
Nome: NelsonNemoFranchiniMarisco(CPF:562681570-87)
Função: MembroCGDEP-Procurador-GeraldoMunicípio
Períodode
exercício: 05/08/2019a19/04/2020
Conduta: Anuiu,colegiadamente,comomembrodoCGDEP,adecisões,injustificadas,quedenegaram pedidosderecomposiçãodeservidoresdoDMAE,paraosquaishaviacomprovaçãodeurgência
Nexode causalidade: Ascondutasresultaramnonãoatendimentodospleitosdereposiçãoedeincrementodepessoal nosquantitativosdecargosdemandadospeloDMAE,impedindoaprovisãodemelhoriasna estruturaçãodepessoaleaadequaçãodoquadrogeraldecargosdoDMAE,situaçãoque tambémrepercutiunagestãosubsequente,resultandonumcontextodeincapacitaçãooperacional generalizadadoórgãoparaconsecuçãodesuascompetências,sobretudonasatividades relacionadasaossistemasdedrenagemedegestão/planejamento,manutenção,conservaçãoe operaçãodoSPCCConsequentemente,aausênciadasaçõesnecessárias,decorrentedafalta deestruturaçãodepessoaledaincapacitaçãooperacionaldoDMAEparaocumprimento adequadodascompetênciasrelacionadasaoSPCC,resultouemprejuízossignificativosaoerário municipal,aindanãototalmentequantificados,masquejáperfazemquantiaestimadaentreR$6a R$8bilhões
Assinado digitalmente por: Marcelo Kipper da Silva em 14/07/25, Leandro Lobato Camargo em 14/07/25, Leandro Torres em 14/07/25, Fabio Alex Beling em 14/07/25 e outro(s). Confira a autenticidade do documento em www.tce.rs.gov.br. Identificador: PRE.FE77.2360.2A1D.FC7C.62D4.

ESTADODORIOGRANDEDOSUL TRIBUNALDECONTAS DIREÇÃODECONTROLEEFISCALIZAÇÃO SERVIÇODEAUDITORIADEPORTOALEGRE

Culpabilidade:
Ascondutasocorrerammesmoapósacientificaçãodagestãoquantoaoconteúdodorelatóriode auditoriadainspeçãoespecialnº363-0200/19-4Amanutençãodasubordinaçãodospleitosde reposiçãodepessoaldoDMAEàsdecisõesdaadministraçãocentralizadaimplicaaatraçãoda responsabilizaçãosubjetivadoPrefeitoMunicipaledosdemaisagentesintegrantesdoCGDEP, pelaadministraçãodepessoaldaautarquiae,consequentemente,pelasfalhasdegestão verificadasDiantedessascircunstâncias,eraesperadoqueoagenteatuassecomzeloeem observânciaaoprincípiodaeficiênciaaomanifestarseuvotonasdecisõescolegiadasTodavia,o agenteassumiu,imperitamente,aresponsabilidadepelasdecisõesrelacionadasàgestãode pessoaldoDMAE,mesmosempossuirformaçãoouexperiênciaprofissionalnaáreade saneamentoComocircunstânciaagravante,oagenteanuiucomoatendimentoinsuficiente, registradonaautorizaçãonº139/2019,oqualrepercutiunafaltadeprovidênciasparao atendimentodosprocessosnº1910000001067-7enº2010000006485-3,posteriormente instauradosNessemesmoatodeautorização,oComitêconcedeuumprazoparaqueoDMAE apresentasseminutadeprojetodeleicomareestruturaçãodoquadrodeservidoresparafinsde atualizaçãocomasatuaisdemandasdodepartamentoContudo,apesardaapresentaçãodo projetodereadequaçãonoprocesso2010000001166-0,injustificadamente,nãohouvequalquer seguimentoe/ourespostapeloagente,queeramembrotitulardoCGDEP,queteveconhecimento daproposta,emreuniãoocorridanodia05/02/2020Comefeito,oagenteagiucomnegligênciae descasoquantoaocumprimentodoprograma/projetodegoverno"MelhorianoSistemade ProteçãoContraCheias"estabelecidonoPlanoPlurianual2018a2021,emsentidocontrárioao queseriaesperadoparaumacidadequeinstituiu,pormeiodaLeiMunicipalnº12629/2019,um planoderesiliênciacomobjetivosvoltadosàprevençãoderiscos,baseadonagestãoderiscosde desastresesuareduçãoemcasodeinundação,alagamentoedeslizamento,bemcomona garantiadeinfraestruturaadequadaàsfamíliasresidentesemáreasderiscosAscondutas tambématentaramcontraaLeiComplementarnº872/2020,queinstituiuapolíticade sustentabilidade,enfrentamentodasmudançasclimáticaseusoracionaldaenergia,comobjetivos voltadosàresiliência,prevençãoeadaptaçãoemitigaçãodosimpactosdasmudançasclimáticas edeeventosextremos(aumentodoníveldoGuaíba,alagamentosedeslizamentos)Portanto, restouevidenciadaacaracterizaçãodeculpagraveouerrogrosseiro,tendoemvistaqueas condutasimplicaramgraveinobservânciadodeverdecuidadoeafastaram-sedoreferencialdo "administradormédio",poiseranotórioeperceptívelporpessoadediligêncianormalaimportância daadequadaestruturaçãodepessoalparaocumprimentodascompetênciasincorporadas, relativasaoSPCC
Responsável9
Nome: LizianedosSantosBaum(CPF:928424450-15)
Função: MembroCGDEP-SecretáriaAdjuntadaSecretariaMunicipaldaFazenda
Períodode
exercício: 07/04/2020a29/11/2020
Conduta:
Nexode causalidade:
Anuiu,colegiadamente,comomembrodoCGDEP,adecisão,injustificada,quedenegoupedido derecomposiçãodeservidoresdoDMAE,paraosquaishaviacomprovaçãodeurgência
Acondutaresultounonãoatendimentodospleitosdereposiçãoedeincrementodepessoalnos quantitativosdecargosdemandadospeloDMAE,impedindoaprovisãodemelhoriasna estruturaçãodepessoaleaadequaçãodoquadrogeraldecargosdoDMAE,situaçãoque tambémrepercutiunagestãosubsequente,resultandonumcontextodeincapacitaçãooperacional generalizadadoórgãoparaconsecuçãodesuascompetências,sobretudonasatividades relacionadasaossistemasdedrenagemedegestão/planejamento,manutenção,conservaçãoe operaçãodoSPCCConsequentemente,aausênciadasaçõesnecessárias,decorrentedafalta deestruturaçãodepessoaledaincapacitaçãooperacionaldoDMAEparaocumprimento adequadodascompetênciasrelacionadasaoSPCC,resultouemprejuízossignificativosaoerário municipal,aindanãototalmentequantificados,masquejáperfazemquantiaestimadaentreR$6a R$8bilhões


Culpabilidade:
Acondutaocorreumesmoapósacientificaçãodagestãoquantoaoconteúdodorelatóriode auditoriadainspeçãoespecialnº363-0200/19-4Amanutençãodasubordinaçãodospleitosde reposiçãodepessoaldoDMAEàsdecisõesdaadministraçãocentralizadaimplicaaatraçãoda responsabilizaçãosubjetivadoPrefeitoMunicipaledosdemaisagentesintegrantesdoCGDEP, pelaadministraçãodepessoaldaautarquiae,consequentemente,pelasfalhasdegestão verificadasDiantedessascircunstâncias,eraesperadoqueaagenteatuassecomzeloeem observânciaaoprincípiodaeficiênciaaomanifestarseuvotonasdecisõescolegiadasTodavia,a agenteassumiu,imperitamente,aresponsabilidadepelasdecisõesrelacionadasàgestãode pessoaldoDMAE,mesmosempossuirformaçãoouexperiênciaprofissionalnaáreade saneamentoComefeito,oagenteagiucomnegligênciaedescasoquantoaocumprimentodo programa/projetodegoverno"MelhorianoSistemadeProteçãoContraCheias"estabelecidono PlanoPlurianual2018a2021,emsentidocontrárioaoqueseriaesperadoparaumacidadeque instituiu,pormeiodaLeiMunicipalnº12629/2019,umplanoderesiliênciacomobjetivosvoltados àprevençãoderiscos,baseadonagestãoderiscosdedesastresesuareduçãoemcasode inundação,alagamentoedeslizamento,bemcomonagarantiadeinfraestruturaadequadaàs famíliasresidentesemáreasderiscosAcondutatambématentoucontraaLeiComplementarnº 872/2020,queinstituiuapolíticadesustentabilidade,enfrentamentodasmudançasclimáticase usoracionaldaenergia,comobjetivosvoltadosàresiliência,prevençãoeadaptaçãoemitigação dosimpactosdasmudançasclimáticasedeeventosextremos(aumentodoníveldoGuaíba, alagamentosedeslizamentos)Portanto,restouevidenciadaacaracterizaçãodeculpagraveou errogrosseiro,tendoemvistaqueacondutaimplicougraveinobservânciadodeverdecuidadoe afastou-sedoreferencialdo"administradormédio",poiseranotórioeperceptívelporpessoade diligêncianormalaimportânciadaadequadaestruturaçãodepessoalparaocumprimentodas competênciasincorporadas,relativasaoSPCC
Responsável10
Nome: MarcoAntonioKaramSilveira(CPF:611.005.440-20)
Função: MembroCGDEP-SecretárioMunicipaldaSecretariaMunicipaldeTransparênciaeControladoria
Períodode exercício: 19/03/2020a31/12/2020
Conduta: Anuiu,colegiadamente,comomembrodoCGDEP,adecisões,injustificadas,quedenegaram pedidosderecomposiçãodeservidoresdoDMAE,paraosquaishaviacomprovaçãodeurgência
Nexode causalidade:
Ascondutasresultaramnonãoatendimentodospleitosdereposiçãoedeincrementodepessoal nosquantitativosdecargosdemandadospeloDMAE,impedindoaprovisãodemelhoriasna estruturaçãodepessoaleaadequaçãodoquadrogeraldecargosdoDMAE,situaçãoque tambémrepercutiunagestãosubsequente,resultandonumcontextodeincapacitaçãooperacional generalizadadoórgãoparaconsecuçãodesuascompetências,sobretudonasatividades relacionadasaossistemasdedrenagemedegestão/planejamento,manutenção,conservaçãoe operaçãodoSPCCConsequentemente,aausênciadasaçõesnecessárias,decorrentedafalta deestruturaçãodepessoaledaincapacitaçãooperacionaldoDMAEparaocumprimento adequadodascompetênciasrelacionadasaoSPCC,resultouemprejuízossignificativosaoerário municipal,aindanãototalmentequantificados,masquejáperfazemquantiaestimadaentreR$6a R$8bilhões

ESTADODORIOGRANDEDOSUL TRIBUNALDECONTAS DIREÇÃODECONTROLEEFISCALIZAÇÃO SERVIÇODEAUDITORIADEPORTOALEGRE

Culpabilidade:
Ascondutasocorrerammesmoapósacientificaçãodagestãoquantoaoconteúdodorelatóriode auditoriadainspeçãoespecialnº363-0200/19-4Amanutençãodasubordinaçãodospleitosde reposiçãodepessoaldoDMAEàsdecisõesdaadministraçãocentralizadaimplicaaatraçãoda responsabilizaçãosubjetivadoPrefeitoMunicipaledosdemaisagentesintegrantesdoCGDEP, pelaadministraçãodepessoaldaautarquiae,consequentemente,pelasfalhasdegestão verificadasDiantedessascircunstâncias,eraesperadoqueoagenteatuassecomzeloeem observânciaaoprincípiodaeficiênciaaomanifestarseuvotonasdecisõescolegiadasTodavia,o agenteassumiu,imperitamente,aresponsabilidadepelasdecisõesrelacionadasàgestãode pessoaldoDMAE,mesmosempossuirformaçãoouexperiênciaprofissionalnaáreade saneamentoComefeito,oagenteagiucomnegligênciaedescasoquantoaocumprimentodo programa/projetodegoverno"MelhorianoSistemadeProteçãoContraCheias"estabelecidono PlanoPlurianual2018a2021,emsentidocontrárioaoqueseriaesperadoparaumacidadeque instituiu,pormeiodaLeiMunicipalnº12629/2019,umplanoderesiliênciacomobjetivosvoltados àprevençãoderiscos,baseadonagestãoderiscosdedesastresesuareduçãoemcasode inundação,alagamentoedeslizamento,bemcomonagarantiadeinfraestruturaadequadaàs famíliasresidentesemáreasderiscosAscondutastambématentaramcontraaLei Complementarnº872/2020,queinstituiuapolíticadesustentabilidade,enfrentamentodas mudançasclimáticaseusoracionaldaenergia,comobjetivosvoltadosàresiliência,prevençãoe adaptaçãoemitigaçãodosimpactosdasmudançasclimáticasedeeventosextremos(aumentodo níveldoGuaíba,alagamentosedeslizamentos)Portanto,restouevidenciadaacaracterizaçãode culpagraveouerrogrosseiro,tendoemvistaqueascondutasimplicaramgraveinobservânciado deverdecuidadoeafastaram-sedoreferencialdo"administradormédio",poiseranotórioe perceptívelporpessoadediligêncianormalaimportânciadaadequadaestruturaçãodepessoal paraocumprimentodascompetênciasincorporadas,relativasaoSPCC Responsável11
Nome: AndréLuísdosSantosBarbosa(CPF:589864560-87)
Função: MembroCGDEP/CMDP-SecretáriodaSecretariaMunicipaldeAdministraçãoePatrimônio
Períodode exercício: 15/01/2021a31/05/2024
Conduta: Anuiu,colegiadamente,comomembrodoCGDEP/CMDP,adecisões,injustificadas,que denegarampedidosderecomposiçãodeservidoresdoDMAE,paraosquaishaviacomprovação deurgência
Nexode causalidade:
Ascondutasresultaramnaobstaculizaçãoeprocrastinaçãodoatendimentodospleitosde reposiçãodepessoal,acarretandoprejuízonatempestividadedaestruturaçãodepessoaldo órgãoe,consequentemente,nasuacapacidadeoperacionalenaqualidadedosserviçospúblicos desaneamentoAdemais,asdecisõespeloindeferimentoignoraramaurgênciaapresentada,bem comodemandaramesforçosargumentativosporpartedoDMAE,paraoconvencimentoquantoà necessidadedoatendimentoplenodospedidos,obtidoporautorizaçãodiretadoPrefeito,apósum longoeexaustivotrâmiteprocessualConsequentemente,aausênciadasaçõesnecessárias, decorrentedafaltadeestruturaçãodepessoaledaincapacitaçãooperacionaldoDMAEparao cumprimentoadequadodascompetênciasrelacionadasaoSPCC,resultouemprejuízos significativosaoeráriomunicipal,aindanãototalmentequantificados,masquejáperfazemquantia estimadaentreR$6aR$8bilhões

ESTADODORIOGRANDEDOSUL TRIBUNALDECONTAS
DIREÇÃODECONTROLEEFISCALIZAÇÃO SERVIÇODEAUDITORIADEPORTOALEGRE
Culpabilidade:

Ascondutasocorrerammesmoapósacientificaçãodagestão(Período2021a2024),quantoao conteúdodorelatóriodeauditoriadainspeçãoespecialnº363-0200/19-4Amanutençãoda subordinaçãodospleitosdereposiçãodepessoaldoDMAEàsdecisõesdaadministração centralizadaimplicaaatraçãodaresponsabilizaçãosubjetivadoPrefeitoMunicipaledosdemais agentesintegrantesdoCGDEP/CMDP,pelaadministraçãodepessoaldaautarquiae, consequentemente,pelasfalhasdegestãoverificadasDiantedessascircunstâncias,era esperadoqueoagenteatuassecomzeloeemobservânciaaoprincípiodaeficiênciaao manifestarseuvotonasdecisõescolegiadasTodavia,oagenteassumiu,imperitamente,a responsabilidadepelasdecisõesrelacionadasàgestãodepessoaldoDMAE,mesmosempossuir formaçãoouexperiênciaprofissionalnaáreadesaneamentoComocircunstânciasagravantes, salienta-seque,oagenteanuiucomasDeliberaçõesnº046/2021,nº047/2021,nº067/2021enº 059/2022,constantesdoexpedientenº2110000002787-2,queignoraramaorientaçãojurídicada PGM,sendoindeferidosospedidosdenomeaçõesdeengenheirosmecânicos,cujareposição justificava-senoaumentodeequipamentoseletromecânicossobmanutenção,dentreosquaisas EBAPs,estruturasintegrantesdoSPCCAdemandafoiautorizadapeloPrefeito,em09/09/2021, 4mesesapósaoencaminhamentodasolicitação,sendoqueacarênciaerareportadadesde janeirode2021Comefeito,oagenteagiucomnegligênciaedescasoquantoaocumprimentodo programa/projetodegoverno"MelhorianoSistemadeProteçãoContraCheias"estabelecidono PlanoPlurianual2022a2025,emsentidocontrárioaoqueseriaesperadoparaumacidadeque instituiu,pormeiodaLeiMunicipalnº12629/2019,umplanoderesiliênciacomobjetivosvoltados àprevençãoderiscos,baseadonagestãoderiscosdedesastresesuareduçãoemcasode inundação,alagamentoedeslizamento,bemcomonagarantiadeinfraestruturaadequadaàs famíliasresidentesemáreasderiscosAscondutastambématentaramcontraaLei Complementarnº872/2020,queinstituiuapolíticadesustentabilidade,enfrentamentodas mudançasclimáticaseusoracionaldaenergia,comobjetivosvoltadosàresiliência,prevençãoe adaptaçãoemitigaçãodosimpactosdasmudançasclimáticasedeeventosextremos(aumentodo níveldoGuaíba,alagamentosedeslizamentos)Portanto,restouevidenciadaacaracterizaçãode culpagraveouerrogrosseiro,tendoemvistaqueascondutasimplicaramgraveinobservânciado deverdecuidadoeafastaram-sedoreferencialdo"administradormédio",poiseranotórioe perceptívelporpessoadediligêncianormalaimportânciadaadequadaestruturaçãodepessoal paraocumprimentodascompetênciasincorporadas,relativasaoSPCC
Responsável12
Nome: BrunoBreyerCaldas(CPF:010567330-71)
Função: MembroCGDEP/CMDP-SecretárioAdjuntodaSecretariaMunicipaldaFazendaedaSecretaria MunicipaldePlanejamentoeAssuntosEstratégicos
Períodode
exercício: 05/01/2021a31/07/2022e08/05/2023a31/05/2024
Conduta: Anuiu,colegiadamente,comomembrodoCGDEP,adecisões,injustificadas,quedenegaram pedidosderecomposiçãodeservidoresdoDMAE,paraosquaishaviacomprovaçãodeurgência
Nexode causalidade:
Ascondutasresultaramnaobstaculizaçãoeprocrastinaçãodoatendimentodospleitosde reposiçãodepessoal,acarretandoprejuízonatempestividadedaestruturaçãodepessoaldo órgãoe,consequentemente,nasuacapacidadeoperacionalenaqualidadedosserviçospúblicos desaneamentoAdemais,asdecisõespeloindeferimentoignoraramaurgênciaapresentada,bem comodemandaramesforçosargumentativosporpartedoDMAE,paraoconvencimentoquantoà necessidadedoatendimentoplenodospedidos,obtidoporautorizaçãodiretadoPrefeito,apósum longoeexaustivotrâmiteprocessualConsequentemente,aausênciadasaçõesnecessárias, decorrentedafaltadeestruturaçãodepessoaledaincapacitaçãooperacionaldoDMAEparao cumprimentoadequadodascompetênciasrelacionadasaoSPCC,resultouemprejuízos significativosaoeráriomunicipal,aindanãototalmentequantificados,masquejáperfazemquantia estimadaentreR$6aR$8bilhões

ESTADODORIOGRANDEDOSUL
DIREÇÃODECONTROLEEFISCALIZAÇÃO SERVIÇODEAUDITORIADEPORTOALEGRE

Culpabilidade:
Ascondutasocorrerammesmoapósacientificaçãodagestão(Período2021a2024),quantoao conteúdodorelatóriodeauditoriadainspeçãoespecialnº363-0200/19-4Amanutençãoda subordinaçãodospleitosdereposiçãodepessoaldoDMAEàsdecisõesdaadministração centralizadaimplicaaatraçãodaresponsabilizaçãosubjetivadoPrefeitoMunicipaledosdemais agentesintegrantesdoCGDEP/CMDP,pelaadministraçãodepessoaldaautarquiae, consequentemente,pelasfalhasdegestãoverificadasDiantedessascircunstâncias,era esperadoqueoagenteatuassecomzeloeemobservânciaaoprincípiodaeficiênciaao manifestarseuvotonasdecisõescolegiadasTodavia,oagenteassumiu,imperitamente,a responsabilidadepelasdecisõesrelacionadasàgestãodepessoaldoDMAE,mesmosempossuir formaçãoouexperiênciaprofissionalnaáreadesaneamentoComocircunstânciasagravantes, salienta-seque,oagenteanuiucomasDeliberaçõesnº046/2021,nº047/2021enº067/2021, constantesdoexpedientenº2110000002787-2,queignoraramaorientaçãojurídicadaPGM, sendoindeferidosospedidosdenomeaçõesdeengenheirosmecânicos,cujareposição justificava-senoaumentodeequipamentoseletromecânicossobmanutenção,dentreosquaisas EBAPs,estruturasintegrantesdoSPCCAdemandafoiautorizadapeloPrefeito,em09/09/2021, 4mesesapósaoencaminhamentodasolicitação,sendoqueacarênciaerareportadadesde janeirode2021Comefeito,oagenteagiucomnegligênciaedescasoquantoaocumprimentodo programa/projetodegoverno"MelhorianoSistemadeProteçãoContraCheias"estabelecidono PlanoPlurianual2022a2025,emsentidocontrárioaoqueseriaesperadoparaumacidade considerada"HUBderesiliência"equeinstituiu,pormeiodaLeiMunicipalnº12629/2019,um planoderesiliênciacomobjetivosvoltadosàprevençãoderiscos,baseadonagestãoderiscosde desastresesuareduçãoemcasodeinundação,alagamentoedeslizamento,bemcomona garantiadeinfraestruturaadequadaàsfamíliasresidentesemáreasderiscosAscondutas tambématentaramcontraaLeiComplementarnº872/2020,queinstituiuapolíticade sustentabilidade,enfrentamentodasmudançasclimáticaseusoracionaldaenergia,comobjetivos voltadosàresiliência,prevençãoeadaptaçãoemitigaçãodosimpactosdasmudançasclimáticas edeeventosextremos(aumentodoníveldoGuaíba,alagamentosedeslizamentos)Portanto, restouevidenciadaacaracterizaçãodeculpagraveouerrogrosseiro,tendoemvistaqueas condutasimplicaramgraveinobservânciadodeverdecuidadoeafastaram-sedoreferencialdo "administradormédio",poiseranotórioeperceptívelporpessoadediligêncianormalaimportância daadequadaestruturaçãodepessoalparaocumprimentodascompetênciasincorporadas, relativasaoSPCC
Responsável13
Nome: CezarAugustoSchirmer(CPF:200564350-53)
Função: MembroCGDEP/CMDP-SecretáriodaSecretariaMunicipaldePlanejamentoeAssuntos Estratégicos
Períodode
exercício: 01/01/2021a31/03/2022e02/01/2023a31/05/2024
Conduta: Anuiu,colegiadamente,comomembrodoCGDEP,adecisões,injustificadas,quedenegaram pedidosderecomposiçãodeservidoresdoDMAE,paraosquaishaviacomprovaçãodeurgência
Nexode causalidade:
Ascondutasresultaramnaobstaculizaçãoeprocrastinaçãodoatendimentodospleitosde reposiçãodepessoal,acarretandoprejuízonatempestividadedaestruturaçãodepessoaldo órgãoe,consequentemente,nasuacapacidadeoperacionalenaqualidadedosserviçospúblicos desaneamentoAdemais,asdecisõespeloindeferimentoignoraramaurgênciaapresentada,bem comodemandaramesforçosargumentativosporpartedoDMAE,paraoconvencimentoquantoà necessidadedoatendimentoplenodospedidos,obtidoporautorizaçãodiretadoPrefeito,apósum longoeexaustivotrâmiteprocessualConsequentemente,aausênciadasaçõesnecessárias, decorrentedafaltadeestruturaçãodepessoaledaincapacitaçãooperacionaldoDMAEparao cumprimentoadequadodascompetênciasrelacionadasaoSPCC,resultouemprejuízos significativosaoeráriomunicipal,aindanãototalmentequantificados,masquejáperfazemquantia estimadaentreR$6aR$8bilhões

ESTADODORIOGRANDEDOSUL TRIBUNALDECONTAS DIREÇÃODECONTROLEEFISCALIZAÇÃO SERVIÇODEAUDITORIADEPORTOALEGRE
Culpabilidade:

Ascondutasocorrerammesmoapósacientificaçãodagestão(Período2021a2024),quantoao conteúdodorelatóriodeauditoriadainspeçãoespecialnº363-0200/19-4Amanutençãoda subordinaçãodospleitosdereposiçãodepessoaldoDMAEàsdecisõesdaadministração centralizadaimplicaaatraçãodaresponsabilizaçãosubjetivadoPrefeitoMunicipaledosdemais agentesintegrantesdoCGDEP/CMDP,pelaadministraçãodepessoaldaautarquiae, consequentemente,pelasfalhasdegestãoverificadasDiantedessascircunstâncias,era esperadoqueoagenteatuassecomzeloeemobservânciaaoprincípiodaeficiênciaao manifestarseuvotonasdecisõescolegiadasTodavia,oagenteassumiu,imperitamente,a responsabilidadepelasdecisõesrelacionadasàgestãodepessoaldoDMAE,mesmosempossuir formaçãoouexperiênciaprofissionalnaáreadesaneamentoComoscircunstânciasagravantes, salienta-seque,oagenteanuiucomasDeliberaçõesnº046/2021enº047/2021,constantesdo expedientenº2110000002787-2,queignoraramaorientaçãojurídicadaPGM,sendoindeferidos ospedidosdenomeaçõesdeengenheirosmecânicos,cujareposiçãojustificava-senoaumentode equipamentoseletromecânicossobmanutenção,dentreosquaisasEBAPs,estruturasintegrantes doSPCCAdemandafoiautorizadapeloPrefeito,em09/09/2021,4mesesapósao encaminhamentodasolicitação,sendoqueacarênciaerareportadadesdejaneirode2021Com efeito,oagenteagiucomnegligênciaedescasoquantoaocumprimentodoprograma/projetode governo"MelhorianoSistemadeProteçãoContraCheias"estabelecidonoPlanoPlurianual2022 a2025,emsentidocontrárioaoqueseriaesperadoparaumacidadequeinstituiu,pormeiodaLei Municipalnº12629/2019,umplanoderesiliênciacomobjetivosvoltadosàprevençãoderiscos, baseadonagestãoderiscosdedesastresesuareduçãoemcasodeinundação,alagamentoe deslizamento,bemcomonagarantiadeinfraestruturaadequadaàsfamíliasresidentesemáreas deriscosAscondutastambématentaramcontraaLeiComplementarnº872/2020,queinstituiua políticadesustentabilidade,enfrentamentodasmudançasclimáticaseusoracionaldaenergia, comobjetivosvoltadosàresiliência,prevençãoeadaptaçãoemitigaçãodosimpactosdas mudançasclimáticasedeeventosextremos(aumentodoníveldoGuaíba,alagamentose deslizamentos)Portanto,restouevidenciadaacaracterizaçãodeculpagraveouerrogrosseiro, tendoemvistaqueascondutasimplicaramgraveinobservânciadodeverdecuidadoeafastaramsedoreferencialdo"administradormédio",poiseranotórioeperceptívelporpessoadediligência normalaimportânciadaadequadaestruturaçãodepessoalparaocumprimentodascompetências incorporadasrelativasaoSPCC
Responsável14
Nome: JulianaBentoCucchiarelli(CPF:826696940-04)
Função: MembroCGDEP/CMDP-Procuradora-GeralAdjuntadaPGM
Períodode
exercício: 07/01/2021a31/05/2024
Conduta: Anuiu,colegiadamente,comomembrodoCGDEP,adecisões,injustificadas,quedenegaram pedidosderecomposiçãodeservidoresdoDMAE,paraosquaishaviacomprovaçãodeurgência
Nexode causalidade: Ascondutasresultaramnaobstaculizaçãoeprocrastinaçãodoatendimentodospleitosde reposiçãodepessoal,acarretandoprejuízonatempestividadedaestruturaçãodepessoaldo órgãoe,consequentemente,nasuacapacidadeoperacionalenaqualidadedosserviçospúblicos desaneamentoAdemais,asdecisõespeloindeferimentoignoraramaurgênciaapresentada,bem comodemandaramesforçosargumentativosporpartedoDMAE,paraoconvencimentoquantoà necessidadedoatendimentoplenodospedidos,obtidoporautorizaçãodiretadoPrefeito,apósum longoeexaustivotrâmiteprocessualConsequentemente,aausênciadasaçõesnecessárias, decorrentedafaltadeestruturaçãodepessoaledaincapacitaçãooperacionaldoDMAEparao cumprimentoadequadodascompetênciasrelacionadasaoSPCC,resultouemprejuízos significativosaoeráriomunicipal,aindanãototalmentequantificados,masquejáperfazemquantia estimadaentreR$6aR$8bilhões

ESTADODORIOGRANDEDOSUL TRIBUNALDECONTAS
DIREÇÃODECONTROLEEFISCALIZAÇÃO SERVIÇODEAUDITORIADEPORTOALEGRE

Culpabilidade:
Ascondutasocorrerammesmoapósacientificaçãodagestão(Período2021a2024),quantoao conteúdodorelatóriodeauditoriadainspeçãoespecialnº363-0200/19-4Amanutençãoda subordinaçãodospleitosdereposiçãodepessoaldoDMAEàsdecisõesdaadministração centralizadaimplicaaatraçãodaresponsabilizaçãosubjetivadoPrefeitoMunicipaledosdemais agentesintegrantesdoCGDEP/CMDP,pelaadministraçãodepessoaldaautarquiae, consequentemente,pelasfalhasdegestãoverificadasDiantedessascircunstâncias,era esperadoqueaagenteatuassecomzeloeemobservânciaaoprincípiodaeficiênciaao manifestarseuvotonasdecisõescolegiadasTodavia,aagenteassumiu,imperitamente,a responsabilidadepelasdecisõesrelacionadasàgestãodepessoaldoDMAE,mesmosempossuir formaçãoouexperiênciaprofissionalnaáreadesaneamentoComocircunstânciasagravantes, salienta-seque,aagenteanuiucomasDeliberaçõesnº046/2021,nº047/2021enº067/2021, constantesdoexpedientenº2110000002787-2,queignoraramaorientaçãojurídicadaPGM, sendoindeferidosospedidosdenomeaçõesdeengenheirosmecânicos,cujareposição justificava-senoaumentodeequipamentoseletromecânicossobmanutenção,dentreosquaisas EBAPs,estruturasintegrantesdoSPCCAdemandafoiautorizadapeloPrefeito,em09/09/2021, 4mesesapósaoencaminhamentodasolicitação,sendoqueacarênciaerareportadadesde janeirode2021Comefeito,aagenteagiucomnegligênciaedescasoquantoaocumprimentodo programa/projetodegoverno"MelhorianoSistemadeProteçãoContraCheias"estabelecidono PlanoPlurianual2022a2025,emsentidocontrárioaoqueseriaesperadoparaumacidade considerada"HUBderesiliência"equeinstituiu,pormeiodaLeiMunicipalnº12629/2019,um planoderesiliênciacomobjetivosvoltadosàprevençãoderiscos,baseadonagestãoderiscosde desastresesuareduçãoemcasodeinundação,alagamentoedeslizamento,bemcomona garantiadeinfraestruturaadequadaàsfamíliasresidentesemáreasderiscosAscondutas tambématentaramcontraaLeiComplementarnº872/2020,queinstituiuapolíticade sustentabilidade,enfrentamentodasmudançasclimáticaseusoracionaldaenergia,comobjetivos voltadosàresiliência,prevençãoeadaptaçãoemitigaçãodosimpactosdasmudançasclimáticas edeeventosextremos(aumentodoníveldoGuaíba,alagamentosedeslizamentos)Portanto, restouevidenciadaacaracterizaçãodeculpagraveouerrogrosseiro,tendoemvistaqueas condutasimplicaramgraveinobservânciadodeverdecuidadoeafastaram-sedoreferencialdo "administradormédio",poiseranotórioeperceptívelporpessoadediligêncianormalaimportância daadequadaestruturaçãodepessoalparaocumprimentodascompetênciasincorporadas, relativasaoSPCC
Responsável15
Nome: UrbanoSchmitt(CPF:255350130-72)
Função: MembroCGDEP/CMDP-SecretárioAdjuntoeTitulardaSecretariaMunicipaldePlanejamentoe AssuntosEstratégicos
Períodode
exercício: 24/06/2021a01/01/2023
Conduta:
Nexode causalidade:
Anuiu,colegiadamente,comomembrodoCGDEP,adecisões,injustificadas,quedenegaram pedidosderecomposiçãodeservidoresdoDMAE,paraosquaishaviacomprovaçãodeurgência
Ascondutasresultaramnaobstaculizaçãoeprocrastinaçãodoatendimentodospleitosde reposiçãodepessoal,acarretandoprejuízonatempestividadedaestruturaçãodepessoaldo órgãoe,consequentemente,nasuacapacidadeoperacionalenaqualidadedosserviçospúblicos desaneamentoAdemais,asdecisõespeloindeferimentoignoraramaurgênciaapresentada,bem comodemandaramesforçosargumentativosporpartedoDMAE,paraoconvencimentoquantoà necessidadedoatendimentoplenodospedidos,obtidoporautorizaçãodiretadoPrefeito,apósum longoeexaustivotrâmiteprocessualConsequentemente,aausênciadasaçõesnecessárias, decorrentedafaltadeestruturaçãodepessoaledaincapacitaçãooperacionaldoDMAEparao cumprimentoadequadodascompetênciasrelacionadasaoSPCC,resultouemprejuízos significativosaoeráriomunicipal,aindanãototalmentequantificados,masquejáperfazemquantia estimadaentreR$6aR$8bilhões

ESTADODORIOGRANDEDOSUL TRIBUNALDECONTAS DIREÇÃODECONTROLEEFISCALIZAÇÃO SERVIÇODEAUDITORIADEPORTOALEGRE

Culpabilidade:
Ascondutasocorrerammesmoapósacientificaçãodagestão(Período2021a2024),quantoao conteúdodorelatóriodeauditoriadainspeçãoespecialnº363-0200/19-4Amanutençãoda subordinaçãodospleitosdereposiçãodepessoaldoDMAEàsdecisõesdaadministração centralizadaimplicaaatraçãodaresponsabilizaçãosubjetivadoPrefeitoMunicipaledosdemais agentesintegrantesdoCGDEP/CMDP,pelaadministraçãodepessoaldaautarquiae, consequentemente,pelasfalhasdegestãoverificadasDiantedessascircunstâncias,era esperadoqueoagenteatuassecomzeloeemobservânciaaoprincípiodaeficiênciaao manifestarseuvotonasdecisõescolegiadasTodavia,oagenteassumiu,imperitamente,a responsabilidadepelasdecisõesrelacionadasàgestãodepessoaldoDMAE,mesmosempossuir formaçãoouexperiênciaprofissionalnaáreadesaneamentoComocircunstânciasagravantes, salienta-seque,oagenteanuiucomasDeliberaçõesnº067/2021enº059/2022,constantesdo expedientenº2110000002787-2,queignoraramaorientaçãojurídicadaPGM,sendoindeferidos ospedidosdenomeaçõesdeengenheirosmecânicos,cujareposiçãojustificava-senoaumentode equipamentoseletromecânicossobmanutenção,dentreosquaisasEBAPs(CasasdeBombas), estruturasintegrantesdoSPCCAdemandafoiautorizadapeloPrefeito,em09/09/2021,4meses apósaoencaminhamentodasolicitação,sendoqueacarênciaerareportadadesdejaneirode 2021Comefeito,oagenteagiucomnegligênciaedescasoquantoaocumprimentodo programa/projetodegoverno"MelhorianoSistemadeProteçãoContraCheias"estabelecidono PlanoPlurianual2022a2025,emsentidocontrárioaoqueseriaesperadoparaumacidadeque instituiu,pormeiodaLeiMunicipalnº12629/2019,umplanoderesiliênciacomobjetivosvoltados àprevençãoderiscos,baseadonagestãoderiscosdedesastresesuareduçãoemcasode inundação,alagamentoedeslizamento,bemcomonagarantiadeinfraestruturaadequadaàs famíliasresidentesemáreasderiscosAscondutastambématentaramcontraaLei Complementarnº872/2020,queinstituiuapolíticadesustentabilidade,enfrentamentodas mudançasclimáticaseusoracionaldaenergia,comobjetivosvoltadosàresiliência,prevençãoe adaptaçãoemitigaçãodosimpactosdasmudançasclimáticasedeeventosextremos(aumentodo níveldoGuaíba,alagamentosedeslizamentos)Portanto,restouevidenciadaacaracterizaçãode culpagraveouerrogrosseiro,tendoemvistaqueascondutasimplicaramgraveinobservânciado deverdecuidadoeafastaram-sedoreferencialdo"administradormédio",poiseranotórioe perceptívelporpessoadediligêncianormalaimportânciadaadequadaestruturaçãodepessoal paraocumprimentodascompetênciasincorporadas,relativasaoSPCC Responsável16
Nome: RodrigoSartoriFantinel(CPF:922992530-68)
Função: MembroCGDEP/CMDP-SecretárioMunicipaldaSecretariaMunicipaldaFazenda
Períodode exercício: 01/01/2021a31/05/2024
Conduta: Anuiu,colegiadamente,comomembrodoCGDEP,adecisão,injustificada,quedenegoupedido derecomposiçãodeservidoresdoDMAE,paraosquaishaviacomprovaçãodeurgência
Nexode causalidade: Acondutaresultounaobstaculizaçãoeprocrastinaçãodoatendimentodopleitodereposiçãode pessoal,acarretandoprejuízonatempestividadedaestruturaçãodepessoaldoórgãoe, consequentemente,nasuacapacidadeoperacionalenaqualidadedosserviçospúblicosde saneamentoAdemais,adecisãopeloindeferimentoignorouaurgênciaapresentada,bemcomo demandouesforçosargumentativosporpartedoDMAE,paraoconvencimentoquantoà necessidadedoatendimentoplenodospedidos,obtidoporautorizaçãodiretadoPrefeito,apósum longoeexaustivotrâmiteprocessualConsequentemente,aausênciadasaçõesnecessárias, decorrentedafaltadeestruturaçãodepessoaledaincapacitaçãooperacionaldoDMAEparao cumprimentoadequadodascompetênciasrelacionadasaoSPCC,resultouemprejuízos significativosaoeráriomunicipal,aindanãototalmentequantificados,masquejáperfazemquantia estimadaentreR$6aR$8bilhões

ESTADODORIOGRANDEDOSUL TRIBUNALDECONTAS
DIREÇÃODECONTROLEEFISCALIZAÇÃO SERVIÇODEAUDITORIADEPORTOALEGRE
Culpabilidade:

Ascondutasocorrerammesmoapósacientificaçãodagestão(Período2021a2024),quantoao conteúdodorelatóriodeauditoriadainspeçãoespecialnº363-0200/19-4Amanutençãoda subordinaçãodospleitosdereposiçãodepessoaldoDMAEàsdecisõesdaadministração centralizadaimplicaaatraçãodaresponsabilizaçãosubjetivadoPrefeitoMunicipaledosdemais agentesintegrantesdoCGDEP/CMDP,pelaadministraçãodepessoaldaautarquiae, consequentemente,pelasfalhasdegestãoverificadasDiantedessascircunstâncias,era esperadoqueoagenteatuassecomzeloeemobservânciaaoprincípiodaeficiênciaao manifestarseuvotonasdecisõescolegiadasTodavia,oagenteassumiu,imperitamente,a responsabilidadepelasdecisõesrelacionadasàgestãodepessoaldoDMAE,mesmosempossuir formaçãoouexperiênciaprofissionalnaáreadesaneamentoComocircunstânciaagravante, salienta-seque,oagenteanuiucomaDeliberaçãonº059/2022,constantedoexpedientenº 2110000002787-2,queignorouaorientaçãojurídicadaPGM,sendoindeferidosospedidosde nomeaçõesdeengenheirosmecânicos,cujareposiçãojustificava-senoaumentode equipamentoseletromecânicossobmanutenção,dentreosquaisasEBAPs,estruturasintegrantes doSPCCAdemandafoiautorizadapeloPrefeito,em09/09/2021,4mesesapósao encaminhamentodasolicitação,sendoqueacarênciaerareportadadesdejaneirode2021Com efeito,oagenteagiucomnegligênciaedescasoquantoaocumprimentodoprograma/projetode governo"MelhorianoSistemadeProteçãoContraCheias"estabelecidonoPlanoPlurianual2022 a2025,emsentidocontrárioaoqueseriaesperadoparaumacidadequeinstituiu,pormeiodaLei Municipalnº12629/2019,umplanoderesiliênciacomobjetivosvoltadosàprevençãoderiscos, baseadonagestãoderiscosdedesastresesuareduçãoemcasodeinundação,alagamentoe deslizamento,bemcomonagarantiadeinfraestruturaadequadaàsfamíliasresidentesemáreas deriscosAcondutatambématentoucontraaLeiComplementarnº872/2020,queinstituiua políticadesustentabilidade,enfrentamentodasmudançasclimáticaseusoracionaldaenergia, comobjetivosvoltadosàresiliência,prevençãoeadaptaçãoemitigaçãodosimpactosdas mudançasclimáticasedeeventosextremos(aumentodoníveldoGuaíba,alagamentose deslizamentos)Portanto,restouevidenciadaacaracterizaçãodeculpagraveouerrogrosseiro, tendoemvistaqueacondutaimplicougraveinobservânciadodeverdecuidadoeafastou-sedo referencialdo"administradormédio",poiseranotórioeperceptívelporpessoadediligêncianormal aimportânciadaadequadaestruturaçãodepessoalparaocumprimentodascompetências incorporadas,relativasaoSPCC
Responsável17
Nome: CassiodeJesusTrogildo(CPF:485695000-25)
Função: MembroCGDEP/CMDP-SecretáriodaSecretariaMunicipaldeGovernançaLocaleCoordenação Política
Períodode
exercício: 01/01/2021a31/05/2024
Conduta: Anuiu,colegiadamente,comomembrodoCGDEP,adecisões,injustificadas,quedenegaram pedidosderecomposiçãodeservidoresdoDMAE,paraosquaishaviacomprovaçãodeurgência
Nexode causalidade:
Ascondutasresultaramnaobstaculizaçãoeprocrastinaçãodoatendimentodospleitosde reposiçãodepessoal,acarretandoprejuízonatempestividadedaestruturaçãodepessoaldo órgãoe,consequentemente,nasuacapacidadeoperacionalenaqualidadedosserviçospúblicos desaneamentoAdemais,asdecisõespeloindeferimentoignoraramaurgênciaapresentada,bem comodemandaramesforçosargumentativosporpartedoDMAE,paraoconvencimentoquantoà necessidadedoatendimentoplenodospedidos,obtidoporautorizaçãodiretadoPrefeito,apósum longoeexaustivotrâmiteprocessualConsequentemente,aausênciadasaçõesnecessárias, decorrentedafaltadeestruturaçãodepessoaledaincapacitaçãooperacionaldoDMAEparao cumprimentoadequadodascompetênciasrelacionadasaoSPCC,resultouemprejuízos significativosaoeráriomunicipal,aindanãototalmentequantificados,masquejáperfazemquantia estimadaentreR$6aR$8bilhões

ESTADODORIOGRANDEDOSUL
DIREÇÃODECONTROLEEFISCALIZAÇÃO SERVIÇODEAUDITORIADEPORTOALEGRE

Culpabilidade:
Ascondutasocorrerammesmoapósacientificaçãodagestão(Período2021a2024),quantoao conteúdodorelatóriodeauditoriadainspeçãoespecialnº363-0200/19-4Amanutençãoda subordinaçãodospleitosdereposiçãodepessoaldoDMAEàsdecisõesdaadministração centralizadaimplicaaatraçãodaresponsabilizaçãosubjetivadoPrefeitoMunicipaledosdemais agentesintegrantesdoCGDEP/CMDP,pelaadministraçãodepessoaldaautarquiae, consequentemente,pelasfalhasdegestãoverificadasDiantedessascircunstâncias,era esperadoqueoagenteatuassecomzeloeemobservânciaaoprincípiodaeficiênciaao manifestarseuvotonasdecisõescolegiadasTodavia,oagenteassumiu,imperitamente,a responsabilidadepelasdecisõesrelacionadasàgestãodepessoaldoDMAE,mesmosempossuir formaçãoouexperiênciaprofissionalnaáreadesaneamentoNesseaspecto,acircunstância podeserconsideradacomoumagravante,poisaexpectativaporumacondutadiversaeraainda maiorcomrelaçãoaoagente,oqualfoiautordoprojetodeleiqueresultounapublicaçãodaLeinº 12629/2019,bemcomoparticipou,comônusdoMunicípio,devárioseventosnacionaise internacionaissobreatemáticaemSãoPaulo,CidadedoMéxico,Guadalajara,PuntaDelEstee Dubai,masque,naprática,anuiucomasdeliberaçõesnº104/2023enº111/2023,que indeferiramoatendimentoplenodareposiçãodototalde05(cinco)engenheirosparaoDMAE, recomposiçãoquejustificava-seno"aumentosignificativonaquantidadededemandas,em especialcomainclusãodasatividadesdedrenagemurbana"Comefeito,oagenteagiucom negligênciaedescasoquantoaocumprimentodoprograma/projetodegoverno"Melhoriano SistemadeProteçãoContraCheias"estabelecidonoPlanoPlurianual2022a2025,emsentido contrárioaoqueseriaesperadoparaumacidadeconsiderada"HUBderesiliência"equeinstituiu, pormeiodaLeiMunicipalnº12629/2019,umplanoderesiliênciacomobjetivosvoltadosà prevençãoderiscos,baseadonagestãoderiscosdedesastresesuareduçãoemcasode inundação,alagamentoedeslizamento,bemcomonagarantiadeinfraestruturaadequadaàs famíliasresidentesemáreasderiscosAscondutastambématentaramcontraaLei Complementarnº872/2020,queinstituiuapolíticadesustentabilidade,enfrentamentodas mudançasclimáticaseusoracionaldaenergia,comobjetivosvoltadosàresiliência,prevençãoe adaptaçãoemitigaçãodosimpactosdasmudançasclimáticasedeeventosextremos(aumentodo níveldoGuaíba,alagamentosedeslizamentos)Portanto,restouevidenciadaacaracterizaçãode culpagraveouerrogrosseiro,tendoemvistaqueascondutasimplicaramgraveinobservânciado deverdecuidadoeafastaram-sedoreferencialdo"administradormédio",poiseranotórioe perceptívelporpessoadediligêncianormalaimportânciadaadequadaestruturaçãodepessoal paraocumprimentodascompetênciasincorporadas,relativasaoSPCC
Responsável18
Nome: AndreFloresCoronel(CPF:580184760-04)
Função: MembroCMDP-ChefedeGabinetedoPrefeito
Períodode
exercício: 28/06/2021a31/05/2024
Conduta: Anuiu,colegiadamente,comomembrodoCGDEP,adecisões,injustificadas,quedenegaram pedidosderecomposiçãodeservidoresdoDMAE,paraosquaishaviacomprovaçãodeurgência
Nexode causalidade:
Ascondutasresultaramnaobstaculizaçãoeprocrastinaçãodoatendimentodospleitosde reposiçãodepessoal,acarretandoprejuízonatempestividadedaestruturaçãodepessoaldo órgãoe,consequentemente,nasuacapacidadeoperacionalenaqualidadedosserviçospúblicos desaneamentoAdemais,asdecisõespeloindeferimentoignoraramaurgênciaapresentada,bem comodemandaramesforçosargumentativosporpartedoDMAE,paraoconvencimentoquantoà necessidadedoatendimentoplenodospedidos,obtidoporautorizaçãodiretadoPrefeito,apósum longoeexaustivotrâmiteprocessualConsequentemente,aausênciadasaçõesnecessárias, decorrentedafaltadeestruturaçãodepessoaledaincapacitaçãooperacionaldoDMAEparao cumprimentoadequadodascompetênciasrelacionadasaoSPCC,resultouemprejuízos significativosaoeráriomunicipal,aindanãototalmentequantificados,masquejáperfazemquantia estimadaentreR$6aR$8bilhões

ESTADODORIOGRANDEDOSUL TRIBUNALDECONTAS

Culpabilidade:
Ascondutasocorrerammesmoapósacientificaçãodagestão(Período2021a2024),quantoao conteúdodorelatóriodeauditoriadainspeçãoespecialnº363-0200/19-4Amanutençãoda subordinaçãodospleitosdereposiçãodepessoaldoDMAEàsdecisõesdaadministração centralizadaimplicaaatraçãodaresponsabilizaçãosubjetivadoPrefeitoMunicipaledosdemais agentesintegrantesdoCGDEP/CMDP,pelaadministraçãodepessoaldaautarquiae, consequentemente,pelasfalhasdegestãoverificadasDiantedessascircunstâncias,era esperadoqueoagenteatuassecomzeloeemobservânciaaoprincípiodaeficiênciaao manifestarseuvotonasdecisõescolegiadasTodavia,oagenteassumiu,imperitamente,a responsabilidadepelasdecisõesrelacionadasàgestãodepessoaldoDMAE,mesmosempossuir formaçãoouexperiênciaprofissionalnaáreadesaneamentoComefeito,oagenteagiucom negligênciaedescasoquantoaocumprimentodoprograma/projetodegoverno"Melhoriano SistemadeProteçãoContraCheias"estabelecidonoPlanoPlurianual2022a2025,emsentido contrárioaoqueseriaesperadoparaumacidadeconsiderada"HUBderesiliência"equeinstituiu, pormeiodaLeiMunicipalnº12629/2019,umplanoderesiliênciacomobjetivosvoltadosà prevençãoderiscos,baseadonagestãoderiscosdedesastresesuareduçãoemcasode inundação,alagamentoedeslizamento,bemcomonagarantiadeinfraestruturaadequadaàs famíliasresidentesemáreasderiscosAscondutastambématentaramcontraaLei Complementarnº872/2020,queinstituiuapolíticadesustentabilidade,enfrentamentodas mudançasclimáticaseusoracionaldaenergia,comobjetivosvoltadosàresiliência,prevençãoe adaptaçãoemitigaçãodosimpactosdasmudançasclimáticasedeeventosextremos(aumentodo níveldoGuaíba,alagamentosedeslizamentos)Portanto,restouevidenciadaacaracterizaçãode culpagraveouerrogrosseiro,tendoemvistaqueascondutasimplicaramgraveinobservânciado deverdecuidadoeafastaram-sedoreferencialdo"administradormédio",poiseranotórioe perceptívelporpessoadediligêncianormalaimportânciadaadequadaestruturaçãodepessoal paraocumprimentodascompetênciasincorporadas,relativasaoSPCC Responsável19
Nome: JonasMartinsMachado(CPF:813208840-91)
Função: MembroCMDP-SecretárioAdjuntodaSecretariaMunicipaldaFazenda
Períodode exercício: 21/09/2022a31/05/2024
Conduta: Anuiu,colegiadamente,comomembrodoCGDEP,adecisões,injustificadas,quedenegaram pedidosderecomposiçãodeservidoresdoDMAE,paraosquaishaviacomprovaçãodeurgência
Nexode causalidade: Ascondutasresultaramnaobstaculizaçãoeprocrastinaçãodoatendimentodospleitosde reposiçãodepessoal,acarretandoprejuízonatempestividadedaestruturaçãodepessoaldo órgãoe,consequentemente,nasuacapacidadeoperacionalenaqualidadedosserviçospúblicos desaneamentoAdemais,asdecisõespeloindeferimentoignoraramaurgênciaapresentada,bem comodemandaramesforçosargumentativosporpartedoDMAE,paraoconvencimentoquantoà necessidadedoatendimentoplenodospedidos,obtidoporautorizaçãodiretadoPrefeito,apósum longoeexaustivotrâmiteprocessualConsequentemente,aausênciadasaçõesnecessárias, decorrentedafaltadeestruturaçãodepessoaledaincapacitaçãooperacionaldoDMAEparao cumprimentoadequadodascompetênciasrelacionadasaoSPCC,resultouemprejuízos significativosaoeráriomunicipal,aindanãototalmentequantificados,masquejáperfazemquantia estimadaentreR$6aR$8bilhões

ESTADODORIOGRANDEDOSUL TRIBUNALDECONTAS

Culpabilidade:
Ascondutasocorrerammesmoapósacientificaçãodagestão(Período2021a2024),quantoao conteúdodorelatóriodeauditoriadainspeçãoespecialnº363-0200/19-4Amanutençãoda subordinaçãodospleitosdereposiçãodepessoaldoDMAEàsdecisõesdaadministração centralizadaimplicaaatraçãodaresponsabilizaçãosubjetivadoPrefeitoMunicipaledosdemais agentesintegrantesdoCGDEP/CMDP,pelaadministraçãodepessoaldaautarquiae, consequentemente,pelasfalhasdegestãoverificadasDiantedessascircunstâncias,era esperadoqueoagenteatuassecomzeloeemobservânciaaoprincípiodaeficiênciaao manifestarseuvotonasdecisõescolegiadasTodavia,oagenteassumiu,imperitamente,a responsabilidadepelasdecisõesrelacionadasàgestãodepessoaldoDMAE,mesmosempossuir formaçãoouexperiênciaprofissionalnaáreadesaneamentoComefeito,oagenteagiucom negligênciaedescasoquantoaocumprimentodoprograma/projetodegoverno"Melhoriano SistemadeProteçãoContraCheias"estabelecidonoPlanoPlurianual2022a2025,emsentido contrárioaoqueseriaesperadoparaumacidadeconsiderada"HUBderesiliência"equeinstituiu, pormeiodaLeiMunicipalnº12629/2019,umplanoderesiliênciacomobjetivosvoltadosà prevençãoderiscos,baseadonagestãoderiscosdedesastresesuareduçãoemcasode inundação,alagamentoedeslizamento,bemcomonagarantiadeinfraestruturaadequadaàs famíliasresidentesemáreasderiscosAscondutastambématentaramcontraaLei Complementarnº872/2020,queinstituiuapolíticadesustentabilidade,enfrentamentodas mudançasclimáticaseusoracionaldaenergia,comobjetivosvoltadosàresiliência,prevençãoe adaptaçãoemitigaçãodosimpactosdasmudançasclimáticasedeeventosextremos(aumentodo níveldoGuaíba,alagamentosedeslizamentos)Portanto,restouevidenciadaacaracterizaçãode culpagraveouerrogrosseiro,tendoemvistaqueascondutasimplicaramgraveinobservânciado deverdecuidadoeafastaram-sedoreferencialdo"administradormédio",poiseranotórioe perceptívelporpessoadediligêncianormalaimportânciadaadequadaestruturaçãodepessoal paraocumprimentodascompetênciasincorporadas,relativasaoSPCC Responsável20
Nome: RicharddosSantosDias(CPF:027230740-80)
Função: MembroCMDP-SecretárioAdjuntodaSecretariaMunicipaldeAdministraçãoePatrimônio
Períodode exercício: 10/01/2023a31/05/2024
Conduta:
Anuiu,colegiadamente,comomembrodoCGDEP,adecisão,injustificada,quedenegoupedido derecomposiçãodeservidoresdoDMAE,paraosquaishaviacomprovaçãodeurgência
Nexode causalidade: Acondutaresultounaobstaculizaçãoeprocrastinaçãodoatendimentodopleitodereposiçãode pessoal,acarretandoprejuízonatempestividadedaestruturaçãodepessoaldoórgãoe, consequentemente,nasuacapacidadeoperacionalenaqualidadedosserviçospúblicosde saneamentoAdemais,adecisãopeloindeferimentoignorouaurgênciaapresentada,bemcomo demandouesforçosargumentativosporpartedoDMAE,paraoconvencimentoquantoà necessidadedoatendimentoplenodospedidos,obtidoporautorizaçãodiretadoPrefeito,apósum longoeexaustivotrâmiteprocessualConsequentemente,aausênciadasaçõesnecessárias, decorrentedafaltadeestruturaçãodepessoaledaincapacitaçãooperacionaldoDMAEparao cumprimentoadequadodascompetênciasrelacionadasaoSPCC,resultouemprejuízos significativosaoeráriomunicipal,aindanãototalmentequantificados,masquejáperfazemquantia estimadaentreR$6aR$8bilhões

ESTADODORIOGRANDEDOSUL TRIBUNALDECONTAS
DIREÇÃODECONTROLEEFISCALIZAÇÃO SERVIÇODEAUDITORIADEPORTOALEGRE
Culpabilidade:

Acondutaocorreumesmoapósacientificaçãodagestão(Período2021a2024),quantoao conteúdodorelatóriodeauditoriadainspeçãoespecialnº363-0200/19-4Amanutençãoda subordinaçãodospleitosdereposiçãodepessoaldoDMAEàsdecisõesdaadministração centralizadaimplicaaatraçãodaresponsabilizaçãosubjetivadoPrefeitoMunicipaledosdemais agentesintegrantesdoCGDEP/CMDP,pelaadministraçãodepessoaldaautarquiae, consequentemente,pelasfalhasdegestãoverificadasDiantedessascircunstâncias,era esperadoqueoagenteatuassecomzeloeemobservânciaaoprincípiodaeficiênciaao manifestarseuvotonasdecisõescolegiadasTodavia,oagenteassumiu,imperitamente,a responsabilidadepelasdecisõesrelacionadasàgestãodepessoaldoDMAE,mesmosempossuir formaçãoouexperiênciaprofissionalnaáreadesaneamentoComefeito,oagenteagiucom negligênciaedescasoquantoaocumprimentodoprograma/projetodegoverno"Melhoriano SistemadeProteçãoContraCheias"estabelecidonoPlanoPlurianual2022a2025,emsentido contrárioaoqueseriaesperadoparaumacidadeconsiderada"HUBderesiliência"equeinstituiu, pormeiodaLeiMunicipalnº12629/2019,umplanoderesiliênciacomobjetivosvoltadosà prevençãoderiscos,baseadonagestãoderiscosdedesastresesuareduçãoemcasode inundação,alagamentoedeslizamento,bemcomonagarantiadeinfraestruturaadequadaàs famíliasresidentesemáreasderiscosAcondutatambématentoucontraaLeiComplementarnº 872/2020,queinstituiuapolíticadesustentabilidade,enfrentamentodasmudançasclimáticase usoracionaldaenergia,comobjetivosvoltadosàresiliência,prevençãoeadaptaçãoemitigação dosimpactosdasmudançasclimáticasedeeventosextremos(aumentodoníveldoGuaíba, alagamentosedeslizamentos)Portanto,restouevidenciadaacaracterizaçãodeculpagraveou errogrosseiro,tendoemvistaqueacondutaimplicougraveinobservânciadodeverdecuidadoe afastou-sedoreferencialdo"administradormédio",poiseranotórioeperceptívelporpessoade diligêncianormalaimportânciadaadequadaestruturaçãodepessoalparaocumprimentodas competênciasincorporadas,relativasaoSPCC
Notas
1Foiconsideradoomêsdeabrilporseracompetênciaanterioraocorrênciadasenchentes 2Apartirde2018houveadiminuiçãode30cargosdeProcuradorMunicipal 3Disponívelem:http://leismunicipais/khucm
4Paratanto,considerou-seasproposiçõesdereadequaçãodoquadrodepessoalapresentadas peloDMAE(Processos2110000003952-8e2210000004786-0) Assim,nãoforam consideradoscargoscombaixaocupaçãoe/oucomatribuiçõesnãomaisnecessáriasaoórgão, deacordocomessasproposições,asaber:AgentedeTreinamento,Tesoureiro,Carpinteiro, Ferreiro,Pedreiro,Pintor,Contínuo,AuxiliardeServiçosGerais,OperadordeArtesGráficas, Telefonista,GuardaMunicipal,MestredeObras,OperadordeRede,AuxiliardeEnfermagem, AuxiliardeServiçoSocial,TécnicoemAgrimensura,TécnicoemArquivo,Técnicoem Contabilidade,TécnicoemHigieneDental,Arquivista,Bibliotecário,CirurgiãoDentista,Contador, EngenheirodeOperação,Estatístico,Farmacêutico,MédicoeAssessorAdministrativoII
5InstituídopeloDecretonº19651/2017Disponívelem:http://leismunicipais/knova
6Disponívelem:http://leismunicipais/zlpvxAcessoem07/04/2025
7Disponívelem:https://transparenciaportoalegrersgovbr/pessoal/quadro-funcional/temporarios 8VideanáliseemtópicoespecíficonoAnexo
9OSINISA(SistemaNacionaldeInformaçõesemSaneamentoBásico)temprevisãonoart53da LeiFederal11445/2007Osistemaobjetivaacoletadedadosdaprestaçãodosserviçosde abastecimentodeágua,deesgotamentosanitário,dalimpezaurbanaemanejoderesíduos sólidos,dadrenagememanejodaságuaspluviaisurbanasecomaimplementaçãodonovo MóduloGestãoMunicipal,quesedispõeacoletareorganizarasinformaçõesacercadocadastro deprestadores,docadastrodereguladores,dosinstrumentosdeplanejamentomunicipal referenteaosaneamentobásico,daprestaçãoregionalizada,dassoluçõesalternativasparao acessoaoabastecimentodeáguaeaoesgotamentosanitário,entreoutrasDisponívelem: https://wwwgovbr/cidades/pt-br/acesso-a-informacao/acoes-eprogramas/saneamento/sinisa/sinisa-1
10AexceçãodasLeisMunicipaisnº13113/2022enº13692/2023 11OfícioDCFnº09196/2019,de08/11/2019
12Ogestortambémreafirmousualinhadeaçãoaoquestionarjudicialmenteoteordatutelade urgênciaconcedidanoTCE/RS(Processonº363-0200/19-4/0,sustentandoalegalidadedo controlefinalísticodoDMAE
Assinado digitalmente por: Marcelo Kipper da Silva em 14/07/25, Leandro Lobato Camargo em 14/07/25, Leandro Torres em 14/07/25, Fabio Alex Beling em 14/07/25 e outro(s). Confira a autenticidade do documento em www.tce.rs.gov.br. Identificador: PRE.FE77.2360.2A1D.FC7C.62D4.

ESTADODORIOGRANDEDOSUL TRIBUNALDECONTAS DIREÇÃODECONTROLEEFISCALIZAÇÃO SERVIÇODEAUDITORIADEPORTOALEGRE

13Conformeoart7º,IIIdoDecretonº19651/2017,competeaocoordenadordoCGDEP encaminhar ao Prefeito Municipal as conclusões do Comitê Disponível em: http://leismunicipais/knova
14Aautorização139/2019nãofoiassinadapelotitulardaSecretariaMunicipaldeTransparênciae Controladoria
15Videcurrículosinformadosemnotasderodapé
16VidecurrículoDisponívelem:https://wwwlinkedincom/in/juliana-garcia-de-castro-5346b7199/? originalSubdomain=br
17Vide currículo Disponível em: https://wwwlinkedincom/in/leonardo-busatto-3b63406/? originalSubdomain=br
18VidecurrículoDisponivelem:http://lattescnpqbr/2856643486387996
19VidecurrículoDisponívelem:
https://prefeiturapoabr/sites/default/files/usudoc/secretarias/curriculos/nelson-nemo-franchinimarisco/curriculo-nelson-nemo-franchini-mariscopdf
20VidecurrículoDisponívelem:http://lattescnpqbr/4369729355822171
21Disponívelem:http://leismunicipais/21wfg
22Em01/03/2024,esteTCE-RSemitiuacertidãonº2490/2024,quecertificouparao3º Quadrimestrede2023,opercentualdedespesasdepessoalde55,57%Emcumprimentoa tuteladeurgênciaconcedidanoprocessoderetificaçãodecertidãonº14724-0200/24-4,foi retificadaacertidão,recebendoonº4614/2024,cujoíndiceapuradopassouaserde50,27% Em26/06/2024,aDireçãodeControleeFiscalizaçãodesteTCE-RSencaminhouaos administradorespúblicosoOfícioCircularnº22/2024,comunicando-ossobreadecisãoproferida noProcessonº014471-0200/24-0,emquefoifixadoonovoentendimentodestaCortesobrea matéria
23Processos2110000000769-3,2110000004664-8,2210000007070-6e2310000011948-4
24Oaditivoestabeleceuonovoprazodevigenciade58mesesacontardasuacelebração (ocorridaem05/12/2019)
25ManifestaçãoapresentadaemrespostaaRDI687390
26Oprojetovisavaoincrementode04Arquitetose32Engenheiros
27Oprojetovisavaoincrementode07Arquitetose31Engenheiros,númerosexatosao apresentadocomonecessidadedecontrataçãotemporária
28Disponívelem:https://wwwyoutubecom/watch?v=KbVhNssjclw 29OpedidofoiencaminhadoaoCGDEPem13/05/2021,sendoqueaautorizaçãopeloPrefeito ocorreuem09/09/2021
30Processosnº2410000005881-2enº2410000007001-4
31ConsiderandoacotaçãoatualdodólaremR$5,83(USD110000000,00x5,83= 641300000,00)Memóriadecálculo=R$500000000,00+200000000,00+641300000,00= 1341300000,00)Cálculorealizadoem31/01/2025
32VidenotíciasobreparticipaçãodoagentenofórumglobalsobremudançaclimáticanaAlemanha eartigodesuaautoriapublicadonositedaPrefeituraMunicipal Disponívelem: https://prefeiturapoabr/smgov/noticias/porto-alegre-participa-de-forum-global-sobre-mudancaclimatica-na-alemanha e https://prefeiturapoabr/smgov/noticias/artigo-porto-alegre-cidaderesiliente
33Oagenteparticipoudosseguinteseventos:07/11/2022-ResilientCitiesNetwork,emSãoPauloSP;14a18/11/2022-PrimeiroEncontroRegionaldeDiretoreseDiretorasdeResiliência,na CidadedoMéxico/México;28/02a02/03/2023-VIIIPlataformaRegionalparaaReduçãodo RiscodeDesastresnasAméricasenoCaribe,emPuntaDelEste/Uruguai;02a09/10/2023FórumInternacionaldeResiliênciaUrbana,emDubai/EmiradosÁrabesUnidos;21a24/11/2023 -CongressoInternacionaldeResiliênciaMetropolitana,emGuadalara/MéxicoPublicações disponíveisem:https://www2portoalegrersgovbr/dopa/verconteudophp?protocolo=383432, https://www2portoalegrersgovbr/dopa/verconteudophp?protocolo=383439, https://www2portoalegrersgovbr/dopa/verconteudophp?protocolo=407576, https://www2portoalegrersgovbr/dopa/verconteudophp?protocolo=447809, https://www2portoalegrersgovbr/dopa/verconteudophp?protocolo=453337
34Videcurrículosinformadosemnotasderodapé
35https://wwwprefeiturapoabr/sites/default/files/usudoc/secretarias/curriculos/andrecoronel/curriculo-andre-coronelpdf
36VidecurrículoDisponívelem:https://wwwlinkedincom/in/andr%C3%A9-barbosa-05a40090/ 37https://wwwlinkedincom/in/bruno-breyer-caldas/e https://prefeiturapoabr/sites/default/files/usudoc/secretarias/curriculos/bruno-breyercaldas/curriculo-bruno-breyer-caldaspdf
38https://prefeiturapoabr/sites/default/files/usudoc/secretarias/curriculos/cassio-trogildo/curriculocassio-trogildo.pdf
Assinado digitalmente por: Marcelo Kipper da Silva em 14/07/25, Leandro Lobato Camargo em 14/07/25, Leandro Torres em 14/07/25, Fabio Alex Beling em 14/07/25 e outro(s). Confira a autenticidade do documento em www.tce.rs.gov.br. Identificador: PRE.FE77.2360.2A1D.FC7C.62D4.

ESTADODORIOGRANDEDOSUL
DIREÇÃODECONTROLEEFISCALIZAÇÃO SERVIÇODEAUDITORIADEPORTOALEGRE

39https://prefeiturapoabr/sites/default/files/usudoc/secretarias/curriculos/cezar-augustoschirmer/curriculo-cezar-augusto-schirmerpdf
40https://prefeiturapoabr/sites/default/files/usudoc/secretarias/curriculos/jonas-martinsmachado/curriculo-jonas-martins-machadopdf
41https://prefeiturapoabr/sites/default/files/usudoc/secretarias/curriculos/juliana-bentocucchiarelli/curriculo-juliana-bento-cucchiarellipdf
42https://prefeiturapoabr/smpg/noticias/urbano-schmitt-e-nomeado-secretario-adjunto-deplanejamento-e-assuntos-estrategicos
43https://prefeiturapoabr/sites/default/files/usudoc/secretarias/curriculos/richard-dos-santosdias/curriculo-richard-dos-santos-diaspdf
44https://prefeiturapoabr/sites/default/files/usudoc/secretarias/curriculos/rodrigo-sartorifantinel/curriculo-rodrigo-sartori-fantinelpdf
45OfícioDCFnº635/2019
5.3.5ImplementaçãoIntempestivadoPlanodeResiliência
Situaçãoencontradapelaequipedeauditoria
ALein.12.629de11denovembrodede2019instituiuoPlanodeResiliênciaCezar BusattonoMunicípiodePortoAlegre(peça6718642),eoDecreton22263de19deoutubro de20231regulamentouaLeinº12629,de11denovembrode2019,paraestabelecerosmeios deaçãoparatornaroMunicípioreferênciaemresiliênciaurbananaAméricaLatinaatéoanode 2025,pormeiodastemáticasdeMobilidadeUrbana,LegalizaçãodeTerras,Prevençãode Riscos,CulturadePazeEcossistemaDinâmicoeInovadoreinstituioComitêPermanentede Resiliência(CPR)(peça6718620).
Ainda,constata-sequeomunicípiodePortoAlegreéconsideradocomopioneirona integraçãoderedesinternacionaisderesiliência,conformepreconizaosítiodainternet específico2Emoutubrodoanode2023,PortoAlegrefoiumadas20cidadesconvidadasa participardoGlobalResilienceForum,conquistandomarcossignificativos,incluindoaconquista doHUBdeResiliência,conferidopeloEscritóriodasNaçõesUnidasParaPrevençãode Desastres(UNDRR)3
AfimdeterconhecimentodasatividadesqueoCPRestárealizando,foienviadaa RDIn664722(peça6220984)conformesegue:
1-ConsiderandoaLein12629,de11denovembrode2019,queinstituiuo PlanodeResiliêncianoMunicípiodePortoAlegre,Art3°,incisoIII,conforme segue:Art3ºOMunicípiodePortoAlegrebuscarátornar-sereferênciaem resiliênciaurbananaAméricaLatinaatéoanode2025,pormeiodosseguintes temas,comseusrespectivosobjetivos:III–prevençãoderisco:
a)possuirumagestãoderiscodedesastresquepromovaasuaredução, principalmente,emcasodeinundação,alagamentoedeslizamento;e
b)garantirinfraestruturaadequadaàsfamíliasqueresidememáreasderisco elevadopormeiodafiscalização,daprevençãodeocupações,do monitoramentodasáreasderiscoedasaçõesestratégicasdeplanejamento;
ConsiderandooDecreton22263de19deoutubrode2023,queregulamentou aLein.12.629de11denovembrode2019,afimdeestabelecerosmeiosde 258

ESTADODORIOGRANDEDOSUL
DIREÇÃODECONTROLEEFISCALIZAÇÃO SERVIÇODEAUDITORIADEPORTOALEGRE

açãoparatornaroMunicípioreferênciaemresiliênciaurbananaAméricaLatina atéoanode2025,pormeiodastemáticasdeMobilidadeUrbana,Legalização deTerras,PrevençãodeRiscos,CulturadePazeEcossistemaDinâmicoe InovadoreinstituioComitêPermanentedeResiliência(CPR);
ConsiderandoqueoMunicípiodePortoAlegrepossuiocertificadodeHUBde resiliência,conferidopeloEscritóriodasNaçõesUnidasparaaprevençãode Desastres(UNDRR);
Solicita-seadisponibilização:
a)DaPortariaquenomeouostitularesesuplementesdoComitêPermanentede Resiliência;
b)Detodasasatasdereunião,documentosproduzidospelocomitêatéa presentedata,alémdeoutrosregistrosqueforampertinentesàsações realizadas
Em resposta(peça6235232)datadade13/11/2024aosquestionamentos,foi esclarecidoque"atéopresentemomento,nãohouveoportunidadedeinstauraçãodoComitê PermanentedeResiliência,oque,acredita-se,devaocorrernasprimeirassemanasdoanode 2025",nãohavendo,assim,portariaquenomeieoCPR.
Quantoaoatendimentoàletra"b",restouoenviodedocumentosrealizadospor outrosGruposdetrabalhoqueabordamotemadaresiliênciamunicipal
Verifica-se,portanto,queametade"estabelecerosmeiosdeaçãoparatornaro MunicípioreferênciaemresiliênciaurbananaAméricaLatinaatéoanode2025",especialmente natemáticadePrevençãodeRiscos,muitoprovavelmentenãoseráalcançada,sequerhavendo aconstituiçãodeumcomitê,primeiropassoparaqueseviabilizasseocompromisso assumidopelacapital
Mesmoqueaconstituiçãodocomitêeadiscussãodesoluçõesemseuâmbitonão garantisseaexecuçãotempestivadasobrasnecessáriasparaevitarainundaçãodacapitalem maiode2024,mormenteoalteamentodosdiques,odescumprimentodalegislaçãomunicipal, art.3º,incisoIII,a)daLeiMunicipaln.12.629/2019éflagrantenocasoemtela,umavezquea nãoimplantaçãodocomitêaténovembrode2024sinalizaparaainviabilidadepráticade cumprimentodameta:
Art3ºOMunicípiodePortoAlegrebuscarátornar-sereferênciaemresiliência urbananaAméricaLatinaatéoanode2025,pormeiodosseguintestemas, comseusrespectivosobjetivos:
III–prevençãoderisco:
a)possuirumagestãoderiscodedesastresquepromovaasuaredução, principalmente,emcasodeinundação,alagamentoedeslizamento;e

ESTADODORIOGRANDEDOSUL TRIBUNALDECONTAS
DIREÇÃODECONTROLEEFISCALIZAÇÃO SERVIÇODEAUDITORIADEPORTOALEGRE

b)garantirinfraestruturaadequadaàsfamíliasqueresidememáreasderisco elevadopormeiodafiscalização,daprevençãodeocupações,do monitoramentodasáreasderiscoedasaçõesestratégicasdeplanejamento; (Grifonosso)
Aindaqueocaputdoart3ºrefiraoverbobuscar,ademoradequase4anos somentepararegulamentaraLeide2019,oqueocorreucomaediçãododecretodeoutubro de2023,nãodeixadúvidasqueagestãomunicipalnegligenciouaimportânciadecumpriraLei Passaram-se4anospararegulamentaresobroupoucomaisde2anos(out/23adez/25)para havermedidaspráticasconsentâneasàpolíticaaprovadapeloLegislativoesancionadapelo ExecutivodePortoAlegre
Consequênciasparaaadministraçãoesociedade
AregulamentaçãotardiadaLein.12.629de11denovembrodede2019,ocorrida somentenofinalde2023,eanãocomposiçãodoComitêPermanentedeResiliência(CPR)atéo finaldoanode2024,inviabilizouaadoçãodemedidastendentesàreduçãoderiscos relacionadosainundaçõesnacapitalPortoAlegreecomprometeaqualidadedoresultadodo PlanodeResiliência,cujametatemporalfinalísticaéoanode2025
Comisso,nãosemobilizouatempoaconvergêncianecessáriadosdiversosatores dasociedadeedaadministraçãopúblicaquepoderiamagirparaaadoçãodemelhorespráticas destinadasaoincrementodaresiliênciadacidadeNostermosdoart2ºdaLei:
[]entende-seporresiliênciaacapacidadedosindivíduos,dascomunidades, dasinstituições,dasempresasedossistemasdeummunicípiodesobreviver, adaptar-seecrescer,independentementedostiposdeestressescrônicose choquesagudosquevivenciam
Pontua-sequeainstituiçãodoCPRoportunizaria,nostermosdoart2ºdoDecreto 22263/2023,anecessáriaaproximaçãodosdiversossetoresquelidamcomrisconomunicípio, inclusiveodeinundações,demodoqueafragilidadeidentificadanoitemGovernançadeste relatóriopoderiaserconsideravelmenteamenizada:
Art2ºFicainstituídooComitêPermanentedeResiliência(CPR),órgãointerno daAdministraçãoPública,presididopeloChefedoExecutivoMunicipal,com focoemaçõesintersetoriaisecoordenadas,afimdegarantirentregas maisrobustas,integradaseresultadosmaisefetivos.
(Grifonosso)
Asituaçãotambémcolaborouparaodesincentivoàculturaderiscoedeprevenção, tantonaesferapúblicacomonaesferaprivada
Énessecenárioque,aofinaldeabrilde2024,ocorreuocatastróficoeventodecheia

ESTADODORIOGRANDEDOSUL TRIBUNALDECONTAS
DIREÇÃODECONTROLEEFISCALIZAÇÃO SERVIÇODEAUDITORIADEPORTOALEGRE

doGuaíba,comseverosdanosemdiversossetoresosquaispoderiamsermitigadosoumesmo evitadoscasoaLein12629/2019tivessesidoobservada
AomissãotambématentoucontraaLeiComplementarnº872/2020,queinstituiua políticadesustentabilidade,enfrentamentodasmudançasclimáticaseusoracionaldaenergia, comobjetivosvoltadosàresiliência,prevençãoeadaptaçãoemitigaçãodosimpactosdas mudançasclimáticasedeeventosextremos(aumentodoníveldoGuaíba,alagamentose deslizamentos).
Consequentemente,aausênciadasaçõesnecessárias,decorrentedafaltadeações voltadasparaaresiliênciaeprevençãoderiscos,comvistasaocumprimentodosobjetivos ediretrizeslegalmenteestabelecidas,resultouemprejuízossignificativosaoeráriomunicipal, aindanãototalmentequantificados,masqueperfazemquantiaestimadaentreR$6aR$8 bilhões
Leiseoutrasnormasaplicáveisaocaso
LeiOrdinárianº12629/2019-InstituiuoPlanodeResiliênciaCezarBusattono MunicípiodePortoAlegre; Decretonº22263/2023;
LeiComplementarnº872/2020-Instituiuapolíticadesustentabilidade, enfrentamentodasmudançasclimáticaseusoracionaldaenergia
LeiFederalnº10406/2002,artigo186;
RegimentoInternodoTribunaldeContasdoEstado(AprovadopelaResoluçãonº 1028/2015),art139;
Conclusõesdaequipedeauditoria
Faceoexposto,verifica-sehaverumdesalinhamentonaaçãodagestãomunicipalao participardeeventosnacionaiseinternacionais4(peça6779637),aoinstituirgrupodetrabalho paraelaboraçãodoPlanodeAçãoClimática(peça6779624)eaopromoverapublicaçãode ações5quedãoaentenderumapreocupaçãocomatemática,masnãopromoveraefetiva adoçãodemedidasparaaexecuçãodapolíticanostermosdaLei,emrespeitoaoprincípioda legalidade
Reforça-seanoçãodequeapreocupaçãocomatemáticaderesiliênciaémuitomais ummovimentoexógeno,voltadoaumumpúblicoexternoàcapital,doqueummovimento endógeno,voltadoàadoçãodemedidasconcretasnacidade,equeaLeidoPlanode ResiliênciaCezarBusattonoMunicípiodePortoAlegreémaisumanormacomeficácia comprometida
Eraesperada,portanto,condutadiversadoChefedoExecutivoMunicipalnoperíodo de2021até2024,oSrSebastiãodeAraújoMelo,poiseraoresponsávelpelaregulamentação daLei12629/2019etambémoindicadocomopresidentedocomitêoqualnãofoiconstituído formalmente(art.2ºeart.5ºdoDecreto22.263/2023)atémaiode2024.
digitalmente por: Marcelo Kipper da Silva em 14/07/25, Leandro Lobato Camargo em 14/07/25, Leandro Torres em 14/07/25, Fabio Alex Beling em 14/07/25 e outro(s). Confira a autenticidade do documento em www.tce.rs.gov.br. Identificador: PRE.FE77.2360.2A1D.FC7C.62D4.

ESTADODORIOGRANDEDOSUL TRIBUNALDECONTAS DIREÇÃODECONTROLEEFISCALIZAÇÃO SERVIÇODEAUDITORIADEPORTOALEGRE

Diantedetodaaconjunturaapresentada,emqueatemáticaresiliênciae enfrentamentodasmudançasclimáticasaparentavaserumapreocupaçãodagestãomunicipal, restaevidenciadaacaracterizaçãodeculpagraveouerrogrosseiro,tendoemvistaquea intempestividadedaregulamentaçãoeaomissãoquantoàefetivacomposiçãoeconvocaçãodo ComitêPermanentedeResiliência(CPR)implicaramgraveinobservânciadodeverdecuidadoe afastaram-sedoreferencialdo"administradormédio",poiseranotórioeperceptívelporpessoa dediligêncianormalaimportânciadaefetivaçãodasaçõesediretrizesestabelecidaspelaLei 12.629/2019.
Responsabilização
Responsável1
Matrizderesponsabilização
Nome: SebastiãodeAraújoMelo(CPF:159697971-20)
Função: PrefeitoMunicipal
Períodode exercício: 01/01/2020a31/12/2024
Conduta: RegulamentaçãointempestivadaLeinº12629/2019,queInstituioPlanodeResiliênciaCezar BusattonoMunicípiodePortoAlegre
Nexode causalidade: Ademoradequase4anosnaregulamentaçãodaLeiimpossibilitouodebateeaadoçãode soluçõestempestivasparamitigarouevitarosdanoscausadospelagrandecheiadoGuaíbade maiode2024Tambémdesincentivouaculturaderiscoeprevençãopelasociedade,como tambémnãopromoveuaintegraçãodosdiversosatoresquepoderiamcolaborarparatornara cidadedePortoAlegremaisresilienteConsequentemente,aausênciadasaçõesnecessárias, decorrentedafaltadeaçõesvoltadasparaaresiliênciaeprevençãoderiscos,comvistasao cumprimentodosobjetivosediretrizeslegalmenteestabelecidas,resultouemprejuízos significativosaoeráriomunicipal,aindanãototalmentequantificados,masquejáperfazemquantia estimadaentreR$6aR$8bilhões
Culpabilidade:
EradeverdoChefedoExecutivodePortoAlegreregulamentartempestivamenteaLeinº 12629/2019edarcumprimentoaostermosaliestabelecidos,emespecialparaoportunizaro debateadequadodeboaspráticasematurarsoluçõeseaçõesatéoanode2025Esperava-se condutadiversadoagente,portanto,emespecialconsiderandooseventoseapublicidadequea gestãoàfrentedoExecutivopromoviaouparticipavaenvolvendoatemáticadaresiliência ambientalAomissãotambématentoucontraaLeiComplementarnº872/2020,queinstituiua políticadesustentabilidade,enfrentamentodasmudançasclimáticaseusoracionaldaenergia, comobjetivosvoltadosàresiliência,prevençãoeadaptaçãoemitigaçãodosimpactosdas mudançasclimáticasedeeventosextremos(aumentodoníveldoGuaíba,alagamentose deslizamentos)Diantedetodaaconjunturaapresentada,emqueatemáticaresiliênciae enfrentamentodasmudançasclimáticasaparentavaserumapreocupaçãodagestãomunicipal, restaevidenciadaacaracterizaçãodeculpagraveouerrogrosseiro,tendoemvistaque aintempestividadedaregulamentaçãoimplicougraveinobservânciadodeverdecuidadoe afastou-sedoreferencialdo"administradormédio",poiseranotórioeperceptívelporpessoade diligêncianormalaimportânciadaefetivaçãodasaçõesediretrizesestabelecidaspelaLei 12629/2019
Responsável2
Nome: SebastiãodeAraújoMelo(CPF:159697971-20)
Função: PrefeitoMunicipal
Períodode exercício: 01/01/2020a31/12/2024
Conduta: DeixoudecomporeconvocaroComitêPermanentedeResiliência(CPR),instituídopeloDecreto nº22263/2023
Assinado digitalmente por: Marcelo Kipper da Silva em 14/07/25, Leandro Lobato Camargo em 14/07/25, Leandro Torres em 14/07/25, Fabio Alex Beling em 14/07/25 e outro(s). Confira a autenticidade do documento em www.tce.rs.gov.br. Identificador: PRE.FE77.2360.2A1D.FC7C.62D4.

ESTADODORIOGRANDEDOSUL TRIBUNALDECONTAS
DIREÇÃODECONTROLEEFISCALIZAÇÃO SERVIÇODEAUDITORIADEPORTOALEGRE
Nexode causalidade:
Culpabilidade:

AcomposiçãodoCPReraoprimeiropassoparadarcumprimentoàLeinº12629/2019A inexistênciadoCPRinviabilizouodebateeaadoçãodesoluçõestempestivas,nostermosdaLei, paramitigarouevitarosdanoscausadospelagrandecheiadoGuaíbademaiode2024Também desincentivouaculturaderiscoeprevençãopelasociedade,comotambémnãopromoveua integraçãodosdiversosatoresquepoderiamcolaborarparatornaracidadedePortoAlegremais resiliente
EradeverdoChefedoExecutivodePortoAlegre,nostermosdosarts2º,5ºe7ºdoDecreto 22263/2023,comopresidentedoCPR,impulsionaroatodecomposiçãodocomitê,nomeandoos seusmembros,econvocarosintegrantesparaasreuniõesquadrimestrais,afimdeoportunizaro debateadequadodeboaspráticasematurarsoluçõeseaçõesatéoanode2025Esperava-se condutadiversadoagente,portanto,emespecialconsiderandooseventoseapublicidadequea gestãoàfrentedoExecutivopromoviaouparticipavaenvolvendoatemáticadaresiliência ambientalAomissãotambématentoucontraaLeiComplementarnº872/2020,queinstituiua políticadesustentabilidade,enfrentamentodasmudançasclimáticaseusoracionaldaenergia, comobjetivosvoltadosàresiliência,prevençãoeadaptaçãoemitigaçãodosimpactosdas mudançasclimáticasedeeventosextremos(aumentodoníveldoGuaíba,alagamentose deslizamentos)Diantedetodaaconjunturaapresentada,emqueatemáticaresiliênciae enfrentamentodasmudançasclimáticasaparentavaserumapreocupaçãodagestãomunicipal, restaevidenciadaacaracterizaçãodeculpagraveouerrogrosseiro,tendoemvistaqueaomissão quantoàefetivacomposiçãoeconvocaçãodoComitêPermanentedeResiliência(CPR)implicou graveinobservânciadodeverdecuidadoeafastou-sedoreferencialdo"administradormédio", poiseranotórioeperceptívelporpessoadediligêncianormalaimportânciadaefetivaçãodas açõesediretrizesestabelecidaspelaLei12629/2019
Notas
1Disponívelem:http://leismunicipais/0w1db
2Disponível em: https://prefeiturapoabr/smgov/porto-alegre-cidade-resiliente Acesso em: 10/03/2025
3Disponível em: https://prefeiturapoabr/gp/noticias/porto-alegre-recebe-titulo-de-hub-deresiliencia-durante-encontro-do-icleiAcessoem10/03/2025
4Vide notícia de participação mais recente Disponível em: https://prefeiturapoabr/smamus/noticias/plataforma-de-monitoramento-climatico-de-porto-alegree-lancada-na-cop-29-noAcessoem:10/03/2025
5Disponível em: https://prefeiturapoabr/gp/noticias/porto-alegre-recebe-titulo-de-hub-deresiliencia-durante-encontro-do-icleiAcessoem10/03/2025
5.3.6RecomendaçõesGeraisParaMelhoriadoSPCC
Situaçãoencontradapelaequipedeauditoria
AEquipedeAuditoriaverificou,aolongodaexecuçãodostrabalhos,queexistemuito poucadocumentaçãoarespeitodoSistemadeProteçãoContraCheiasdePortoAlegre(SPCC)
Nãofoipossívelteracessoaestudos,memoriaiseprojetossobreosdiquesmais antigos,existindoapenasalgumasplantasquedemonstramalocalizaçãodestesdiquesna cidadeFoinosdiquesdaZonaNortequeocorreuaentradadomaiorvolumedeáguapara dentrodacidade
Sobreasestaçõesdebombeamentopluvialantigas,existepoucadocumentação, basicamenteapenasalgumasplantasquenãodetalhamsuficientementetodasasinformações necessárias
digitalmente por: Marcelo Kipper da Silva em 14/07/25, Leandro Lobato Camargo em 14/07/25, Leandro Torres em 14/07/25, Fabio Alex Beling em 14/07/25 e outro(s). Confira a autenticidade do documento em www.tce.rs.gov.br. Identificador: PRE.FE77.2360.2A1D.FC7C.62D4.

ESTADODORIOGRANDEDOSUL TRIBUNALDECONTAS
DIREÇÃODECONTROLEEFISCALIZAÇÃO SERVIÇODEAUDITORIADEPORTOALEGRE

Afaltadedocumentaçãoprejudicaamanutençãocorretaeaboaoperaçãodo sistema,principalmentetratando-sedeestruturasessenciaisàproteçãodacidadeequeainda terãoumalongavidaútilDiversosprofissionaisirãotrabalharnoSPCCaolongodasdécadas vindourase,naausênciadedocumentaçãoadequada,háriscodenovasfalhasdaestrutura concebidaparaevitarinundações
Assim,recomenda-searealizaçãodeumapesquisaamplaparareunirtodaa documentaçãoqueporventuraaindaexista,incluindooacervodoantigoDNOSexistenteno ArquivoNacionaleemoutrosórgãosfederaiscomooantigoDNER(diques)quepossamterem seusacervosalgumadocumentaçãoreferenteaoSPCC
Recomenda-setambémarealizaçãodelevantamentosasbuiltdetodasaspartesdo sistemaemquehouvercarênciadedocumentaçãoouquevenhamaternovasintervenções corretivasquealteremaconcepçãooriginaldasestruturaseoseufuncionamento
Percebeu-sequeosdiquessãoapartedosistemadeproteçãoquerecebemenos atençãoporpartedopoderpúblicoPassa-seaimpressãodequeosdiquessãoalgoperene, semnecessidadedemanutençãooudeatençãoalguma.Poroutrolado,osfatosmostramque grandepartedosdiquesdaZonaNortenãotinhaaalturaadequadapararesistirauma inundaçãocomoade2024,equeoutraspartessãoocupadasirregularmenteparaaconstrução demoradias,issosemqueopoderpúblicotomeprovidênciasparamanteraintegridadedessas estruturas
Poroutrolado,haviaumestudodaMETROPLANsobreascheiasdoRioGravataí quejádemonstravaquealgunsdiquesdePortoAlegrenãotinhamalturasuficientepararesistira um evento extremo de cheia.Outrasfontes de informação,como levantamento aerofotogramétricooumodelodigitaldoterreno,estavamdisponíveisepoderiamfacilmenteser cruzadoscomalocalizaçãodosdiques,comofoifeitoposteriormentepeloDMAE,demonstrando queosdiquesdaZonaNortenãotinhamaalturasuficiente.
TambéménecessárioreverasituaçãodosdiquesnosviadutosdaBR290, especialmenteaqueledaBR116elinhadoTRENSURBedaAssisBrasilemdireçãoà Cachoeirinha,procurandosoluçõesparaquenãohajaumcaminholivreparaentradadeáguana cidadenesseslocais
AsituaçãojuntoàBR116éespecialmentecrítica,poisexistepoucoespaçofísico paraaimplantaçãodeumasolução,eaconfluênciadasviasestálocalizadamuitopróximoàfoz doRioGravataí,permitindoaentradadeumagrandevazãodeáguasprovenientesdoGuaíba, emcasodeumacheia
Assimsendo,recomenda-sequesejadadamaisatençãoaosdiquescomum programapermanentedemonitoramentoemanutençãodosmesmos,conformejáestá positivadonoPlanoMunicipaldeSaneamento.
Sobreasestaçõesdebombeamentopluvial,recomenda-sequesejafeitauma 264
Assinado digitalmente por: Marcelo Kipper da Silva em 14/07/25, Leandro Lobato Camargo em 14/07/25, Leandro Torres em 14/07/25, Fabio Alex Beling em 14/07/25 e outro(s). Confira a autenticidade do documento em www.tce.rs.gov.br. Identificador: PRE.FE77.2360.2A1D.FC7C.62D4.

ESTADODORIOGRANDEDOSUL TRIBUNALDECONTAS
DIREÇÃODECONTROLEEFISCALIZAÇÃO SERVIÇODEAUDITORIADEPORTOALEGRE

análisecríticadasuaconcepçãoedoseudimensionamento,confrontandoeverificandocoma situaçãoatualparaidentificarpossíveisfragilidadescomoaquelasexistentesnasEBAPs13,17e 18,quepermitiramoretornodaságuas.
Tambémserecomendaarealizaçãodeestudosparaaimplantaçãoderedundância nofornecimentodeenergiaparaasEBAPsEntende-sequealimentaçãoatravésdeduaslinhas deenergiaindependentespodesermaiseficienteeterumcustomenor,nolongoprazo,doque autilizaçãodegeradoresacombustível.
Porfim,recomenda-searealizaçãodeestudosparaatualizarodimensionamentodo sistema,emfunçãodosníveisdeáguaatingidospeloeventoocorridoemmaiode2024Este estudoédevitalimportância,especialmenteemrelaçãoàverificaçãodaalturanecessáriapara osdiques
6ANEXO-ANÁLISEEXPEDIENTESREPOSIÇÃODEPESSOAL
•Processonº18.10.000003153-9
Trata-sedeprocessoinstauradoem19/04/2018,oqualcontémestudoelaborado peloDMAEcomaprojeçãodeaposentadoriasatéoanode2020(previsãodeque565 servidorespreenchamascondiçõesparaaposentadoria),oquerepresentariaareduçãode 37,4%doquadrodepessoalTambémforamefetuadoslevantamentosdenecessidadede ingresso,verificaçãorelativaàexistênciadeconcursosvigentes(peça6718581,p.1a266)
Asolicitaçãodereposiçãodeservidores(totalde206cargos)foiencaminhadapelo Diretor-GeraldoDMAE,em23/04/2018paraapreciaçãoeautorizaçãopeloPrefeitoMunicipale pelostitularesdaSecretariaMunicipaldaFazenda(SMF)eSecretariaMunicipalde PlanejamentoeGestão,membrosintegrantesdoComitêparaGestãodeDespesasdePessoal (CGDEP),sendotambémcientificadosostitularesdaSecretariaMunicipaldeServiçosUrbanos (SMSURB)eSecretariaMunicipaldeInfraestruturaeMobilidadeUrbana(SMIM)(peça6718581, p.267a272)Odespachoapresentouasseguintesconsideraçõessobreoriscoiminentedo nãoatendimentodeserviçosemvirtudedafaltadepessoal,sendosalientadoqueas necessidadesdecontrataçõesnãoconsideramaeventualagregaçãodenovasfunções comaincorporaçãodoDEP,circunstânciaquedemandariaoutrascontrataçõespara atendimentodessascompetências:
AGS-SMSURB/GS-SMIM/GS-SMF/GS-SMPG/GP-GVP/GP-PMPA, Senhores, VimospedirseuapreçoparaconsiderarasnecessidadesdoDMAEde contrataçãodeservidoresparamanutençãodeatividadesessenciaispara população,quaissejamabastecimentodeáguapotáveletratamentodeesgoto sanitário
NacondiçãodeDiretorGeraldesseDepartamentodesde14/11/2017, pudemosnoscertificardequenãorestamdúvidasdequeemcasonãose providenciemalgumascontrataçõesdeservidoresjáhabilitadose classificadosemconcursosvigenteseseadotemosencaminhamentos 265

ESTADODORIOGRANDEDOSUL TRIBUNALDECONTAS
DIREÇÃODECONTROLEEFISCALIZAÇÃO SERVIÇODEAUDITORIADEPORTOALEGRE

administrativosparamontagemdeconcursosparaoutroscargos,há riscosiminentesdenãoatendimentodeserviços.Assolicitaçõesdetodas GerênciaseDiretoriasdeadoçãodeprovidênciasparaessascontrataçõestem sidoincessantes,poisesseGestorestemvividodesafioseobstáculosmuito altosparacumprimentodesuasmetas
AsameaçasreaissãodeficarmosimpossibilitadosdeoperarasEstações deTratamentodeÁguaedeEsgotos,comimpactosgravesparaa populaçãoeresponsabilizaçãodosGerenteseDiretoresdoDMAE,e majoritariamentedoDiretorGeral.
HáqueseconsiderarqueasatividadesdoDMAEdecaptaçãodeáguabruta, tratamento,adução,reservaçãoedistribuição,alémdasatividadesdecoleta, condução,tratamentodeesgotossanitáriosedisposiçãofinaldeefluentes ocorremininterruptamentetodosdiasdoano.Tambémdevemosressaltarque osprofissionaisresponsáveisporessasatividadesofazemcontratadose remuneradossobfiscalizaçãodosseusconselhosprofissionaisrespectivosea disponibilizaçãodeequipesdetrabalhoéumdosfatoresinerentessob responsabilidadedoAdministradordoDMAE,semoquenãopodemcumprir comsuasobrigações
Anecessidadedecontrataçãocomurgênciadecorredoaceleradoprocessode inatividadedeinúmerosservidoresemfasedeaposentadoria,traduzidonas informaçõesdoanexo3753793,querelacionaos565servidoresque completarãoseusrequisitosatéoano2020Orelatóriodoperfildequadrode pessoal3753794mostraadiminuiçãodequantidadedefuncionáriosem atividadedesdeoano2006,fatorpreocupanteContribuitambémorecente adventodapossibilidadedeaposentadoriaespecialportrabalhoespecialem condiçõesinsalubresjárepercutecomofatoradicionaldeagravamentodessa situação,que,inadvertidamente,nãoestásobcontroledogestorpúblico
OenvelhecimentodoquadrogeraldeservidoresdoDMAEtambéméuma realidadepresente,etambémsobesseprismaacontrataçãodenovos funcionáriossefaznecessário,aopassoqueaduzàsequipesquejádetémo conhecimentopráticodasfunçõesespecíficasdosaneamento,profissionais maisjovenspararenovação,aprendizado,comprometimentoemanutenção futuradoatendimentoàcidade,aspectotambémconstantenorelatórioanexo 3753794
Emprojeçãoparaocenárioimediatodecurtoprazoeaindadentrodessagestão municipalnospróximosanos,aGerênciadeGestãodePessoasinformaque haverámais565servidorescompletandoseusrequisitosparapedidode aposentadoria,fatoque,seconsumadosemareposiçãodeservidoresresultará aparalisaçãocompletadeatividades
DeoutrapartetambémdevemosdemonstrarqueaAutarquiaDMAEgozadeum comprometimentodedespesascomfolhadepagamentodepessoalainda favorávelcompercentualatualde46,2%(fechamento2017),índicequejáinclui todosrepassesparacobrimentodedéficitprevidenciário(despesasextraorçamentárias)Emesmocomascontrataçõesqueestamossolicitando,ainda quefossemefetivadasdepronto-atendimento,elevariamesseíndicede comprometimentopara49%,portantoaquémdolimiteprudencialdaLei ResponsabilidadeFiscal,talcomodemonstradonaplanilha3753795Tal

ESTADODORIOGRANDEDOSUL TRIBUNALDECONTAS
DIREÇÃODECONTROLEEFISCALIZAÇÃO SERVIÇODEAUDITORIADEPORTOALEGRE

cenáriopoderásetornarmaispositivonesseanode2018,umavezqueos trabalhoseempenhosdasequipesnasáreasdearrecadaçãoecobrançatem repercutidoemganhossignificativosparaoDepartamento,poisno1ºtrimestre jáhouveganhosexpressivosemrelaçãoao1ºtrimestrede2017Alémdissoos ingressosdeservidoresnãosedarãodeformainstantâneaeconcomitante,mas simdeformapaulatina,portantooDMAEtemplenacapacidadefinanceirade integralizaressesservidores.
Tambémdeve-seteremmentequemesmocomapossibilidadedequese efetiveacontrataçãoporConcessãoouParceriaPúblico-Privadadeparte dasatividadesdoDMAE,taiscomoosserviçosdeesgotosanitário,nãose eximeanecessidadeprementedecontrataçãodeservidoresparaoquadro efetivo,namedidaemquehácargosfundamentaisqueseencontramcom carênciapreocupantedepreenchimentoParaessescargosfundamentais nãosedispõedeprazosparaavaliaçãodecenários,poisospedidosde aposentadoriaemprofusãoestãocausandofaltadesubstitutosparaservidores comafastamentoslegais(TratamentodeSaúde,Férias,Licenças-Prêmio), obrigandoaconvocaçãodehoras-extraordináriasemexcesso,gerando despesascrescenteseaumentandoosriscosdeeventosacidentesdetrabalho eesgotamentoporjornadademasiada,oquepordecorrênciapodeampliaros afastamentos,causandoaindamaisproblemasnagestãodepessoasAinda nessediapasãoéimprescindívelacontrataçãodeservidoresaindaque hajaserviçosconcedidose/outerceirizados,poisacondução,fiscalização esupervisãodecontratosexigemrepresentantesdaAdministração formalmentedesignadosqueestejamapropriadosdeconhecimentoe devidamentecapacitados.
Sendoassim,restaevidenciadoquehásituaçõescríticasereiteramosos nossospedidosEmfacedetudoisso,vimossolicitarduasprovidências, quaissejamaconvocaçãodeservidoresjáclassificadosnosconcursos abaixo,nasrespectivasquantidades,eaautorizaçãoparaelaboraçãode concursospúblicosparaosdemaiscargosdatabelaposterior
Salientamosporfinalqueessascontrataçõessãoasnecessidadesquese mostramnoscenáriosatuaisdefunçõesdoDMAErelacionadasà distribuiçãodeáguapotáveletratamentodeesgotossanitáriossema consideraçãodeagregaçãodenovasfunções,taiscomoacontrataçãode manutençãoeconservaçãodossistemaspluviaisedrenagemurbanado extintoDEP.Casoseefetivemtaisfunçõescomoatribuiçõesadicionaisdo DMAE,outrascontrataçõesdeoutrosservidoresprecisarãoserestudadas eavaliadasvisandoaquelesatendimentos.
()
Assim, sugerimos encaminhar os procedimentos necessários visando autorizaçãopeloSenhorPrefeitoMunicipalpara:
1.IngressodenovosservidoresnesteDepartamentodeConcursosVigentes, conformeplanilha3753976
Esseingressoimediatoseriade65servidores.Sãoconcursosjárealizados comcandidatosclassificados OCargodeEngenheiroenglobavárias especialidades(civil,mecânico,eletricista,químico,cartógrafo)portantoas 267


vagaspodemserpreenchidasporquaisquerumadessasespecialidadesNo momentohánecessidadede6engenheiroscivis,3engenheirosquímicose2 engenheirosmecânicos,entretantonãodispomosdeconcursodeengenheiro mecânico
2RealizaçãodeConcursoPúblicoparaoscargosrelacionadosnaplanilha 3753988.Assim,vimossolicitaraautorizaçãoparaingressodos65 servidoresdosconcursosvigentesjárealizadoseaautorizaçãopara realizaçãodeconcursosparaosdemaiscargossolicitadosacimaque contemplam141servidores.Esseingressototalizaria206servidores. Dentreasnecessidadesmaisprementesdecontrataçãodeconcurso,há urgênciaexpressaparaTécnicoemTratamentodeÁguaeEsgoto,poisháum granderiscodeparalisaçãodeestaçõesporfaltadepessoas
Rogamosapreciaçãoeautorização.
Aanáliseauditorial,registradanoProcessonº363-0200/19-4,concluiuquea consistênciadoestudoefetuadomostrava-sesuficienteparajustificarasreiteradassolicitações dejustificativasparaospleitosdereposiçãodepessoal,porpartedaadministraçãocentralizada (peça6718531,p62a66):
()Apesardetodooestudoefetuado,cominúmerasinformaçõesde necessidadedepessoal,alertasderiscodedesabastecimento,projeçõesde aposentadorias,excessodehorasextras,entreoutrasconsiderações,aúltima movimentaçãonoprocessoocorreuem15/05/2018,ondehouveaindicaçãode queforam iniciados dois novos expedientes, sendo o de nº 18.10.000003766-9,relativoaingressodepessoal(reposiçãodevagapor vacância)enº1810000003863-0,referenteaconcursopúblico(pedidode aberturaeacompanhamento),osquaisserãoanalisadosemitensespecíficos
AEquipedeAuditoriaidentificaqueaconsistênciadoestudoefetuadoé suficienteparasubsidiarasreiteradassolicitaçõesdejustificativasutilizadaspela AdministraçãoCentralizadaparaprorrogaradecisãosobreopleito, apresentandoalertasobreoriscodedesabastecimento,projeçõesde aposentadorias,excessodehorasextras,entreoutrasconsiderações
Quantoaosdesdobramentosprocessuais,verifica-sequeatravésdoprocesso 1810000003766-9foisolicitadaaconvocaçãode06EngenheirosCivis,03 EngenheirosQuímicos,01Arquitetoe45AssistentesAdministrativos, totalizando55convocações.Emresumo,detodoopedidoefetuadopela Autarquia,apenas9nomeaçõesparaocargodeengenheiroforam atendidas(videseção3.1.6).
Jánoprocesso18.10.000003863-0,dos141postosdeingressantes solicitadosatravésdeconcursocomcaráterdeurgência,foiencaminhada aaberturadeconcursoparaapenasUMAVAGAdeTécnicoem SaneamentoeUMAVAGAdeTécnicoemTratamentodeÁguaeEsgoto, atéomomentonãoefetivados(videseção3.1.7).
(Grifou-se)

ESTADODORIOGRANDEDOSUL TRIBUNALDECONTAS
DIREÇÃODECONTROLEEFISCALIZAÇÃO SERVIÇODEAUDITORIADEPORTOALEGRE

Oprocessodeorigemnãotevenovasmovimentaçõesalémdaquelasregistradas norelatóriodeinspeçãoespecial(Processonº363-0200/19-4)
Quantoaodesdobramentosnoexpediente1810000003863-0,alémdaAutorização nº010/2019(aberturadeconcursopúblicocontemplando1vagaparaoscargosdeTécnicoem SaneamentoeTécnicoemTratamentodeÁguaeEsgotos)(peça6718621),oCGDEPemitiua Autorizaçãonº139/2019(aberturadeconcursopúblicoparaototalde23vagas,contemplando1 vagaparaoscargosdeOperadordeMáquinasEspeciais,Fresador,SoldadorIndustrial,Técnico Industrial,AuxiliardeServiçosTécnicoseOperadordeSubestação;2vagasparaAuxiliar Eletromecânico;6vagasparaAgentedeSaneamento;e8vagasparaInstaladorHidrossanitário, bemcomoanomeaçãode11AssistentesAdministrativose1Administrador)(peça6718605,p 9e10)eaAutorizaçãonº047/2020(nomeaçãode3EngenheirosCivis)(peça6718605,p56a 58).
AindaqueoCGDEPtenhaautorizadoaaberturadeconcursospúblicosea nomeaçõesdeservidores,pormeiodasautorizaçõesnº10/2019,n°139/2019enº047/2020,o atendimentoficoumuitoaquémdopleitoinicialmenteformalizadoereiteradamente justificadopeloDMAE.
Noponto,registra-sequeaautarquiasolicitouaautorizaçãodeaberturadeconcurso públicopara12cargosoperacionais(totalde141cargos),bemcomoanomeaçãode9 engenheiroscivis,2engenheirosmecânicos,5administradores,5técnicosemsaneamentoe3 auxiliaresdeserviçostécnicosEmresposta,obteveautorizaçãoparaaberturadeconcurso públicopara10cargosoperacionais(totalde23cargos)eparanomeaçãode3engenheiros civis
Alémdeinsuficientesparaoatendimentodademandanecessáriaerequisitadapelo órgão,verificou-sequenãoforamrealizadosconcursospúblicosautorizadosparaoscargos efetivosdeAgentedeSaneamento1,AuxiliarEletromecânico,AuxiliardeServiçosTécnicos, Fresador2,InstaladorHidrossanitário,MontadorEletromecânico3,OperadordeMáquinas Especiais4,OperadordeSubestação5,SoldadorIndustrial6eTécnicoIndustrial7(autorização nº139/2019)
Acontrataçãodaempresapararealizaçãodessesconcursospúblicostramitouno expediente20.10.000000981-0,oqualnãoteveseguimentoemrazãodasituaçãodecalamidade públicadecorrentedapandemiadoCOVID-19,apesardaexistênciadeparecerjurídicoda ProcuradoriaGeraldoMunicípio-PGM(NotaTécnicaGLCPI-DMAEnº592/2020),exaradoem 22/07/2020,queconcluiupelapossibilidadedaaberturadeconcursosparaopreenchimentode vacânciasexistentesepelaviabilidadedoseguimentodacontratação(peça6718643)
Nomesmosentido,aProcuradoriaMunicipalSetorial01(MatériadePessoal)da PGMmanifestou-senoprocesso200000048274-0,em24/07/2020,pormeiodaInformação PMS-01nº7/2020(peça6718641,p26a33),emrespostaaconsultafeitapelaSecretaria MunicipaldePlanejamentoeGestão(SMPG),concluindopelapossibilidadederealizaçãode concursospúblicosenomeaçõesdeservidoresefetivosparafinsdereposiçãode 269
Assinado digitalmente por: Marcelo Kipper da Silva em 14/07/25, Leandro Lobato Camargo em 14/07/25, Leandro Torres em 14/07/25, Fabio Alex Beling em 14/07/25 e outro(s). Confira a autenticidade do documento em www.tce.rs.gov.br. Identificador: PRE.FE77.2360.2A1D.FC7C.62D4.

ESTADODORIOGRANDEDOSUL TRIBUNALDECONTAS
DIREÇÃODECONTROLEEFISCALIZAÇÃO SERVIÇODEAUDITORIADEPORTOALEGRE
vacânciasocorridasaqualquertempo
•Processonº18.10.000009190-6

Oprocessofoiinstauradoem16/11/2018eapresentaatentativadeviabilizara terceirizaçãocomoalternativaaospleitosdereposiçãodepessoalnãoatendidos(peça6718582, p1e2)Emdespachoemitido,em23/05/2019,pelaDiretoriadeOperaçõesdoDMAE,foram salientadososprejuízosdecorrentesdonãoatendimentodaadministraçãocentralizadaaos pleitosdereposiçãodepessoaledecontrataçãodeserviçosterceirizados(peça6718582,p 80):
Considerandoquepassaram-se90diasdesdeaultimamovimentaçãodeste expedientenãohavendoposicionamentodaPGAPCSPconformedespacho 6295198
Considerandoqueasdemandasdereposiçãodepessoaloperacional encaminhadaspeloprocesso1710000005686-2restaraminfrutíferasesem perspectivadesoluçãodecurtoprazo;
Considerandoqueasdiretrizesdaadministraçãomunicipalvemnosentidoda terceirizaçãodosserviços;
Econsiderandoqueoexercíciodaresponsabilidadetécnicadeacordocomo CódigodeÉticadoprofissionaldeengenhariaexigeoaportedosrecursos necessáriosparaoplenoexercíciodaprofissão
Solicitamosparecerquantoàalternativapropostaumavezque consideramosqueosprofissionaisdeengenhariavinculadosàesta Diretoria,nãopoderãoserresponsabilizadospelosprejuízos,oraem curso,decorrentesdonãoatendimentodasdemandasdevazamentosde águaemtempohábil,poluiçãodosrecursoshidricosdecorrentesda demoranosatendimentosdeextravazamentosdeesgoto,indenizações adminstrativasporprejuizoscausadosaterceirosdecorrentesdeburacos emviaspelaoperaçãoeconservaçãodeficientedossistemasdeáguae esgotosdacidadedePortoAlegre.
(Grifou-se)
Apósasdiscussõeseconclusãosobreaviabilidadejurídicadacontrataçãode serviçosterceririzadosdemanutençãonossistemasdeabastecimentodeáguaecoletade esgotos(peça6718582,p.81a84,),oDiretor-GeraldoDMAEencaminhouoprocessopara viabilizaçãodacontrataçãopretendida(peça6718582,p87)
Em06/10/2020,aDiretoriadeOperaçõesemitiudespachotrazendoinformações sobreascontrataçõesefetivadaseemandamento,parafinsdegarantiracontinuidadedos serviçosdemanutençõespreventivasecorretivasnossistemasdeáguaeesgotos,face àdeficiêncianoquadrodeservidoresOdespachotambémsalientaanecessidadedeceleridade noandamentodosconcursospúblicosautorizadosparaareposiçãodevagassolicitadas,tanto noscargosoperacionaisetécnicosquantonoscargosadministrativosedeapoio(peça6718582, 270
Assinado digitalmente por: Marcelo Kipper da Silva em 14/07/25, Leandro Lobato Camargo em 14/07/25, Leandro Torres em 14/07/25, Fabio Alex Beling em 14/07/25 e outro(s). Confira a autenticidade do documento em

ESTADODORIOGRANDEDOSUL TRIBUNALDECONTAS
DIREÇÃODECONTROLEEFISCALIZAÇÃO SERVIÇODEAUDITORIADEPORTOALEGRE

p94e95)
Em31/12/2020,aDiretoriaGeraldoDMAEapresentoudespacho,asersubmetidoà novagestão,comrelatosobreasituaçãodaautarquiaquantoaonãoatendimentoda necessidadedeincrementodepessoal,emquepeseadeliberaçãofavorávelquantoà contrataçãodemão-de-obrapormeiodecontratosdeprestaçãodeserviços(peça6718582,p 96e97):
ÀDO:
CuidaosautosdeanáliseedeliberaçãodepostulaçãodessaDiretoriade Operações(5393655),paraadoçãoeacionamentodosatosquevisema aberturadeConcursoPúblico,paraincrementodepessoalemcargosefetivos noPlanodeCargosdesteDepartamento
Justificadocomargumentaçõesanexasearroladasnesteeemoutros expedientesquetratamdamatéria,visandopotencializarestaautarquiacom capacidadeinstaladadepessoal,visandoamelhoriadaoperaçãoecorreta observânciaecumprimentodesuasfinalidadesprecípuas
Contudo,frenteaosimpasseserevesesqueestaadministraçãoenfrentouseja notocanteasquestõesdeordemadministrativas,econômicasoumesmo políticas,característicosdocenáriodaadministraçãopública,nãoapenasnesta Cidade,masnoEstadoenoPaís,agravadopeladecretaçãodeCalamidade PúblicanamunicipalidadeemfacedaPandemia,queoriginousobrecargade trabalhoeinúmerasfrentesdetrabalhoemergenciais,comnecessidadede instituirinúmerosregramentosnormativos,nãofoipossívelatéomomentoa adoçãofáticadeliberaçãopeloGovernoparaviabilizartaisanseios
Outrossim,valeregistrarnesteprocessoqueestaDireçãodirecionou tratativaseesforçosnosentidodeimplementarasprovidênciasemeios eficazesparaatingimentodesteobjetivo,inclusivecomcomprovaçãode tais ações e esforços registrados nos autos dos processos 19.10.000001067-7,19.10.000000903-2,19.10.000001067-7,18.10.0000037669,18.10.000003863-0,18.10.000003153-9,alémdeoutrostantos,restando registradosaosautosdosaludidosexpedientesasprovidênciasadotadas, asquaisresultaraminfrutíferas,emquepesesernotóriaasituaçãograve noqueserefereamanutençãodosistemaeprestaçãodeserviçosde coleta,tratamentoeabastecimentodeáguaedestinaçãodeesgotos
Entretanto,nãofoiautorizadaaadoçãodemedidasemeioseficazespara atingimentodesteobjetivo,atéomomento,emquepeseterhavido sucessoedeliberaçãofavorávelàcontrataçãodemão-de-obra,que sabemoséconsideradapormuitoscomoformade“burlar”àexigênciado concursopúblico,masquerestoucomoalternativaparasoluçãodos sériosproblemasenfrentadosnestaGestão
Destarte,considerandoquepoderáhaverreflexosfuturamenteparao DMAEeparaestaGestãoquepodeseralvodeapontamentospeloTCE/RS paraesteadministrador,vistoqueépacíficoquedeveriaterhavido incrementodepessoalnoquadrodesteDepartamento,paraviabilizara corretaconduçãodossistemas,processosetambémaoatendimentono

ESTADODORIOGRANDEDOSUL TRIBUNALDECONTAS
DIREÇÃODECONTROLEEFISCALIZAÇÃO SERVIÇODEAUDITORIADEPORTOALEGRE

níveldesatisfaçãoalmejadopelasociedade,estamosrestituindoeste processoadministrativo,comopresenteregistro,paraodevido acompanhamentoeprosseguimentodasdiscussõesefundamentaçõesa seremapresentadasparaanovagestãoquedeveassumircomonovo governo,emfacedehavercomprovaçãodanecessidadedepotencializaro quadrodepessoal,visandoobterasdeliberaçõesparafinsdeaberturados concursospúblicoseposteriorincrementopornomeaçãonosrespectivos cargosdeprovimentoefetivo,paraosquaisnãologramossucessonesta Gestão.
(Grifou-se)
Em07/01/2021,aDiretoriadeOperaçõesemitiudespachoparafinsde reencaminhamentodoprocessoeatualizaçãodasinformaçõestrazidasanteriormente,parafins deanáliseecientificaçãodaatualDireção-Geral,empossadacomanovagestãomunicipalpara operíodode2021a2024,nosseguintestermos(peça6718582,p98e99):
ÀDG-DMAE:
PorsugestãodaDireçãoanteriordoDMAEnoDespacho12590822 reencaminhamosopresenteprocessoparaanálisedaatualDireçãoGeral ConformemanifestaçãodopróprioexDiretorDarcyNunesdosSantos(grifo nosso),demonstra-seacarênciadepessoaleasituaçãogravequese encontraoDepartamentoparaatendimentodosserviços:
"Outrossim,valeregistrarnesteprocessoqueestaDireçãodirecionou tratativaseesforçosnosentidodeimplementarasprovidênciasemeios eficazesparaatingimentodesteobjetivo,inclusivecomcomprovaçãodetais açõeseesforçosregistradosnosautosdosprocessos1910000001067-7, 1910000000903-2,1910000001067-7,1810000003766-9,18100000038630,1810000003153-9,alémdeoutrostantos,restandoregistradosaosautos dosaludidosexpedientesasprovidênciasadotadas,asquaisresultaram infrutíferas,emquepesesernotóriaasituaçãogravenoquesereferea manutençãodosistemaeprestaçãodeserviçosdecoleta,tratamentoe abastecimentodeáguaedestinaçãodeesgotos"
Entretanto,nãofoiautorizadaaadoçãodemedidasemeioseficazespara atingimentodesteobjetivo,atéomomento,emquepeseterhavido sucessoedeliberaçãofavorávelàcontrataçãodemão-de-obra,que sabemoséconsideradapormuitoscomoformade“burlar”àexigênciado concursopúblico,masquerestoucomoalternativaparasoluçãodos sériosproblemasenfrentadosnestaGestão."
Aindarelativamenteafaltadepessoal,houveapublicaçãodaInformação Nº73/2020noRelatóriodoProcessoNº00363-0200/19-4deInspeção EspecialdoTCE-18/12/2020,órgãodecontroleexterno,queconstatoua protelação daAdministração Municipal anterior em promover o preenchimentosdasvacânciasdecargoseosprejuízosqueessasações dagestãoanteriorcausaram.
Visandodiminuirosprejuízosecomoalternativaparaatendimentodas demandasoperacionais,essaDiretoriadeOperaçõeselencounoDespachoDO 272

ESTADODORIOGRANDEDOSUL TRIBUNALDECONTAS DIREÇÃODECONTROLEEFISCALIZAÇÃO SERVIÇODEAUDITORIADEPORTOALEGRE

(11709693)asprovidênciastomadasparagarantiracontinuidadedosserviços, asquaisforamatualizadasaseguir:
Jácontratados:
-Processo2010000003045-2-ServiçosdeManutençãonosSistemasde AbastecimentodeÁguaeColetadeEsgotosnoMunicípiodePortoAlegre,e seuscomponentes,operadospeloDMAE-PlanoEmergencialdaDOpara PandemiadoCOVID19(deveráserencerradoem21/01/2021esubstituídopor novocontratoemergencial(2010000009399-3);
-Processo1910000010894-4-Serviçosdeadequaçõesemelhoriasderedes deabastecimentodeáguanoperímetrourbanodePortoAlegre/RS(em andamentodesdejunho/2020);
Emlicitação:
-Processo2010000002989-6-ServiçodeLocaçãodeEquipamentoscomMão deObraparaLimpezaeDesassoreamentodosColetoresdeEsgotos,Coletores Tronco,InterceptoreseÓrgãosAcessórios,operadospeloDepartamento, atravésdehidrojateamentoesucçãoavácuo,aseremrealizadosnoperímetro urbanodePortoAlegre(foirealizadopregãoeletrônicoemdezembro/2020e estáemfasedehabilitação);
-ProcessosdeServiçosdeManutençãoeConservaçãodeRedese EquipamentosdoSistemadeDrenagemPluvial:2010000002101-1(Norte) (seráabertoenvelopedaspropostasem12/01/2021),20100000052987(Centro),2010000005299-5(Leste),2010000005300-2(Sul)(Licitaçõesserão dias27,28e29/01/2021);
-Processo2010000008196-0-ServiçosTécnicosEspecializadospara ManutençõesPreventivaseCorretivasnasRedeseRamaisdosSistemasde AbastecimentodeÁguadePortoAlegre(PregãoEletrônicocomabertura previstaparadia25/01/21)
EmelaboraçãodasEspecificaçõesTécnicas:
-ServiçosdeManutençãoPreventivaeCorretivanasRedeseRamaisde EsgotosdePortoAlegre(aguardadecisãodeviabilidade)
Alémdosprocessosrelacionadosanteriormente,existem48contratosem andamentopelaDOnassuasgerências(GMAN,GDCO,GLOGeGDs)com contrataçãodeterceiros(manutençãoelétricaemecânica,caminhõespipa, repavimentação,ligaçõesdeáguaeesgotos,extensõesesubstituiçõesde redesdeáguaeesgotos,consertosereconstruçõesderedescloacaise pluviais,instalaçãodeventosas,dentreoutros)
Noentanto,salientamos,comonoDespachoanteriorosriscosemterceirizar atividadesessenciaiscomoasdoDepartamento:
" comoemqualquercontratodaAdministraçãoPública,correm-seriscosem demandarasatividades,principalmenteasdeabastecimentodeáguaecoletae tratamentodeesgotos,denaturezaessencial,paraexecuçãodeterceirosHáo riscodenãoatendimentoacontentopelaContratada,atrasodosprazose

ESTADODORIOGRANDEDOSUL
DIREÇÃODECONTROLEEFISCALIZAÇÃO SERVIÇODEAUDITORIADEPORTOALEGRE

cronogramas, falta de experiência técnica, dificuldades financeiras das empresas,dentreoutros Essassituaçõespodemlevarasuspensõesemesmo rescisões contratuais e podem deixar descobertas essas atividades Entretanto,nãofoiautorizadaaadoçãodemedidasemeioseficazespara atingimentodesteobjetivo,atéomomento,emquepeseterhavidosucessoe deliberação favorável à contratação de mão-de-obra, que sabemos é consideradapormuitoscomoformade“burlar”àexigênciadoconcursopúblico, masquerestoucomoalternativaparasoluçãodossériosproblemasenfrentados nestaGestão"
RessaltamosquedesdeoDespachodaDOanterior,houverammaisbaixasde servidoresdaáreaoperacionalpormorteouaposentadoriasAlémdas vacânciasdecargosquejáocorreram,poderáhaverumcontingenteainda maiordesolicitaçõesdeaposentadoriasdosservidoresquejáatingiramas condiçõesparatal,emvirtudedapossívelencaminhamentoparatramitaçãona CâmaraMunicipaldeVereadoresdoprojetodeReformadaPrevidência Municipal
Reiteramosfaceaoexposto,quesejadadaadevidaceleridadenoandamento dosconcursospúblicosautorizadosparaareposiçãodasvagasdeservidores solicitadasporestaDiretoria,tantonoscargosoperacionaisetécnicosquanto noscargosadministrativosedeapoio
(Grifou-se)
Em12/03/2021oDiretor-Geralregistraciênciaeencaminhaoexpediente aoGabinetedoDiretor-GeralAdjuntoparaacompanhamentodademanda,sendoestaaúltima movimentaçãodoprocesso(peça6718582,p100)
Diantedoexposto,verificou-sequeoDMAEadotouacontrataçãodealgunsserviços comoalternativaanãoreposiçãodeservidoresocupantesdoquadrogeraldecargosda autarquia,sendoaatualgestãodevidamentecientificadadasituaçãoexistentenoórgão,aqual aindarevelaanecessidadedeincrementodepessoal,bemcomodaexistênciadorelatóriode auditoriaregistradonoprocessodeinspeçãoespecialnº363-0200/19-4
•Processonº19.10.000001067-7
Oexpedienteteveaberturaem06/02/2019pelaDireção-GeraldoDMAE,como objetivodeefetuarosdevidosencaminhamentosparaatendimentodadecisãoconstanteno Processonº363-0200/19-4,quedeterminou,emsedeacautelatória,queoPrefeitoabstivessede praticaratosdeinterferêncianaautonomiadaautarquiaequeoDiretor-Geraladotasse providênciasafimdeevitarriscosdecomprometimentoouinterrupçãodaprestaçãoadequada dosserviçosdeáguaeesgoto,sendorealizadaconsultasobrecomoatenderadecisãodeste TCE-RS(peça6718525,p.2a5).
Oúltimoregistrodeacompanhamentofeitonorelatóriodeauditoriadoprocesso supracitado,fezreferênciaaodespachoemitidopelaPMEem27/02/2019,oqualconcluique


paradarcumprimentoàdecisão,nãoteriaoutrasoluçãosenãoaadoçãodeprovidênciasno sentidodaaberturadosconcursospúblicossolicitados,bemcomoprosseguimentodaanáliseda eventualcontrataçãotemporária(peça6718531,p.79e80).Oparecerjurídicofoiremetidopara ciênciadoPrefeitoMunicipal,registradaem05/04/2019(peça6718525,p9e10)8
Posteriormente,oexpedientetevenovasmovimentações,comosregistrosfeitospela DiretoriadeTratamentoeMeioAmbiente(DT),em03/04/2020e04/11/2020,dealertassobre riscosdecomprometimentoouinterrupçãodoserviçopúblicodeáguaeesgotonocaso denãohaveraimediatareposiçãodepessoal,especialmenteconsiderandooavançoda pandemiadoCovid-19(contrataçãourgente/emergencialde40cargosdeTécnicoem TratamentodeÁguaeEsgotoseaberturadeconcursosparaoscargosdeAgentede Saneamento,OperadordeMáquinasEspeciais,OperadordeSubestaçãoeTécnicoem TratamentodeÁguaeEsgotos)(peça6718525,p11,12e14)
Em30/11/2020,aDireção-Geralregistrouciênciadasconsideraçõesesinalizou que,diantedocenárioapresentado,compoucosservidoresingressantesnoprocessode contrataçãoemergencial,restacomoalternativaacontrataçãodasoperaçõesdasunidadespor empresasprestadorasdeserviços,atravésdelicitação(peça6718525,p15)
Em10/12/2020,aDTapresentouoresumodoandamentodosprocessosrelativos aosconcursospúblicosparacargosessenciaisàáreaoperacionaldeestaçõesdetratamentode águaeesgotoseatividadesdelaboratório(peça6718525,p16e17),sendoreferidooingresso deapenas8servidorestemporáriosdocargodeTécnicoemTratamentodeÁguaeEsgotos, bemcomoatramitaçãodeprocessosvisandoaaberturadeconcursospúblicosparaoscargos deAgentedeSaneamento,OperadordeMáquinasEspeciaiseOperadordeSubestação,no processo20.10.000000459-1,eparaocargodeTécnicoemTratamentodeÁguaeEsgotos,no processo1910000004147-5
Aolongodenovemeses,oprocessotevetramitaçãoapenasparaoregistroda ciênciaemanifestaçãodonovoDiretor-Geral,ratificandoainformaçãoprestadapeloDiretorGeralAdjunto,nosseguintestermos(peça6718525,p.19e20):
Emrelaçãoaostópicosnº1(sic)enº3,quesereferemaosCargosdeTécnicos emTratamentodeÁguaeEsgotos,hámanifestaçõesereiteradassolicitações departedaDireçãoGeralencaminhadasaoComitêCGDEPnoexpedienteSEI nº21.10.000000769-3.
Emrelaçãoaotópiconº2,ospedidosdeservidoresparaosCargosdeAgente deSaneamento,OperadordeMáquinasEspeciaiseOperadordeSubestação estãosendoplanejadosdentrodeumplanejamentogeraldere-estruturação organizacionaladministrativadoDMAEporpartedaDireçãoGeral,nosquais essasfunçõesserãoatendidasemparteporfuncionáriosdeEmpresas ContratadasAssimsendo,apesardeexistirautorizaçãopararealizaçãode concursoparaessescargos,asquantidadesreaisdenecessidadedeingresso aindaestãosendoapuradaspelaDireçãoGeralpara(sic)quesepossa deliberararealizaçãodosconcursos

ESTADODORIOGRANDEDOSUL TRIBUNALDECONTAS
DIREÇÃODECONTROLEEFISCALIZAÇÃO SERVIÇODEAUDITORIADEPORTOALEGRE

Em10/09/2021,aDTsolicitouatençãoespecialquantoànecessidadedecargosde OperadordeSubestação,osquaisatuamnaoperaçãodasEstaçõesdeBombeamentode ÁguaBruta(EBABs),estruturasquecaptamebombeiamáguadomanancialatéasestaçõesde tratamentodeágua(ETAs)paraseremtratadas,tendoemvistaqueessasunidadesoperam emsituaçãocrítica,abaixodoquadronecessário,gerandograndequantidadedehoras extrasparacoberturadosturnosdetrabalho(peça6718525,p21e22)
Parademonstraçãoapresentoutabelacomaquantidadedehorasextrasrealizadas pelosservidoresdocargodeOperadordeSubestaçãodaGerênciadeTratamentodeÁguanos mesesdedezembro/2020aagosto/2021Alémdisso,trouxeinformaçãosobreaperspectivade aposentadoriasdediversosservidoresocupantesdessescargos
Porfim,reiterouanecessidadedarealizaçãodeconcursopúblicoparaocargode OperadordeSubestação,conformeautorizaçãodoCGDEPnº139/20199 (Processo 1810000003863-0-(peça6718605,p9e10)),parafinsdeevitarumasituaçãodecolapso daoperaçãoOdespachofoiencaminhadoàDGeaoDiretor-GeralAdjunto
Em11/10/2021,aGerênciadeDistribuiçãoeConduçãodaDOinformousobrea impossibilidadedeatenderasolicitaçãoderemanejodeservidores,referindoaexistênciade déficitdepessoaleanecessidadederecomposiçãodoquadrodeoperadoresdesubestaçãodo setorem28servidores,salientandoqueaautomaçãonãoviabilizaareduçãobruscade operadoresdosníveisatualmenteexistentespelosdiversosmotivosexplanados(falhas operacionais,dificuldadesnamanutençãoemtempohábildistânciaentreasunidades operacionais,fragilidadestecnológicas,riscosdeacidentesenecessidadedelimpezacontínua) (peça6718525,p37e38)
Em14/10/2021,aDiretoriadeGestãoAdministrativa(DA)encaminhadespachoà DGeaoDiretor-GeralAdjunto,informandoqueaAutorizaçãoCGDEPnº139/2019não contemplaanecessidadedaDT,oquedemandariaoencaminhamentoàCGDEPparaobtenção deautorizaçãourgentedeconcursopúblicoaoscargosnecessários(peça6718525,p41)
Namesmadata,oDiretor-GeralAdjuntoemitedespachodirecionadoàDGeàDA, concluindopelanecessidadederealizarconcursospúblicosparacontrataçãodosservidores paraafunçãorequeridacombrevidade(peça6718525,p42)
Oprocessotemcomoúltimamovimentaçãoaemissãodedespacho,em15/10/2021, pelaDAencaminhandooprocessoàGPES/C-DESENVOLV,bemcomotrazendoainformação dequeasnecessidadesdevagasencontram-seemestudo/mapeamentopelasdireçõesdo DMAE(peça6718525,p43)
Frenteaoexposto,tendoemvistaoentendimentoquantoàinsuficiênciada Autorizaçãonº139/2019doCGDEPparaoatendimentodasnecessidadesdoDMAE,aqual autorizouapenas01vagadeOperadordeSubestação,oprocessonãoteveseguimentopelo administradorresponsáveldaautarquia,quenãoadotouprovidênciasparabuscar,peranteo Executivo,aautorizaçãopararealizaçãodeconcursopúblicoparaoscargosnecessários

ESTADODORIOGRANDEDOSUL TRIBUNALDECONTAS
DIREÇÃODECONTROLEEFISCALIZAÇÃO SERVIÇODEAUDITORIADEPORTOALEGRE

Alémdisso,verificou-sequetambémnãofoidadoseguimentoaosdemaisprocessos 10quevisavamarealizaçãodeconcursospúblicosparaoscargosdeAgentedeSaneamento11 , OperadordeMáquinasEspeciais12eOperadordeSubestação13,funçõesparaasquais foramefetivadascontrataçõestemporárias Apesardasituaçãocríticaevidenciada, especialmentecomrelaçãoàfaltadeOperadoresdeSubestação,ascontrataçõestemporárias dessescargossótiveraminícioemjunhode2023(peça6718622,p.383a390).
RelativamenteaoscargosdeTécnicoemSaneamentoeTécnicoemTratamentode ÁguaeEsgoto,houvearealizaçãodeconcursosparacargosefetivos,osquaisforam homologadosem13/01/2021(Edital002/2021),consoanteregistradonoexpedientenº 1910000004147-5NoâmbitodesteTCE-RS,foramregistradas06(seis)admissõesdocargo deTécnicoemSaneamentoe39(trintaenove)admissõesdocargodeTécnicoemTratamento deÁguaeEsgotos14 .
•Processonº20.10.000006485-3
Oprocessofoiinstaurado,em08/09/2020,pelaDiretoriadeTratamentoeMeio Ambiente(DT),tendocomoobjetoasolicitaçãoanálisejurídicasobreapossibilidadede aditamentodocontratonº180000030923-7,parafinsdedisponibilizaçãodemãodeobraparaa realizaçãodeatribuiçõesdoscargosdeOperadordeSubestaçãoeOperadordeEstação, enquantonãoforefetivadoconcursoquecontempleareposiçãodasvagasexistentesnesses cargos(peça6718544,p1)
Em22/03/2021,aDTencaminhouoexpedienteàDiretoriaGeralparafinsde cientificaçãosobretodoohistóricodedemandaporpessoal,iniciadonoprocesso 1710000003007-315comabuscaporreposiçãodoquadrodepessoaleque,posteriormente, seguiunoprocesso20.10.000006485-3comabuscaporsoluçõesalternativasparasuprira demanda(peça6718544,p20a22)Nodespachotambéméapresentadoolevantamento atualizadodoquadrodevagaseaprevisãodenovasvacânciasporaposentadoria,concluindo pelanecessidadedoingressode13(treze)OperadoresdeSubestaçãonaGTAGe03(três)na GATE,sobpenadesoluçãodecontinuidadenoserviçoessencialdebombeamentode águabrutaetambémnaáreadebombeamentodeesgotos,conformerelatadonoPlano EmergencialdaDT(Processo20.10.000003044-416).
OpedidofoireiteradopelaDT,em19/07/2021,sendoreferidaanecessidadede16 OperadoresdeSubestaçãoparaatendimentodasEstaçõesdeBombeamentodeÁguaBrutado DMAE(EBABs)einformadaaexistênciade104cargosvagos(peça6718544,p24e25)
Em14/09/2021,aGerênciadeGestãodePessoas(GPES)informouqueademanda estariasendodiscutidanoexpediente1910000001067-7,sendoestaaúltimamovimentaçãodo processo(peça6718544,p28)
Consoanteacimarelatado,notópicodeanálisedoexpediente1910000001067-7,o DMAEobteveautorizaçõesdoCGDEPparaarealizaçãodeconcursospúblicos(autorizaçõesnº
digitalmente por: Marcelo Kipper da Silva em 14/07/25, Leandro Lobato Camargo em 14/07/25, Leandro Torres em 14/07/25, Fabio Alex Beling em 14/07/25 e outro(s). Confira

ESTADODORIOGRANDEDOSUL TRIBUNALDECONTAS
DIREÇÃODECONTROLEEFISCALIZAÇÃO SERVIÇODEAUDITORIADEPORTOALEGRE

10/2019enº139/2019)17,porém,diantedainsuficiênciaparaoatendimentodademanda necessária,oprocessonãoteveseguimentopeloadministradorresponsáveldaautarquia,que nãoadotouprovidênciasparabuscar,juntoaoExecutivo,aautorizaçãopararealizaçãode concursopúblicoparaoscargosnecessários.
•Processonº20.10.000007016-0
Oexpedientefoiaberto,em24/09/2020,pelaCoordenaçãodeLogísticaI(C-LOGIS I),unidadesubordinadaàGerênciadeLogística(GLOG)daDiretoriadeOperações(DO),como objetivoinicialdereposiçãodeservidoresparaoexercíciodefunçõesdegestoresdecontratoe fiscalizaçãodecampodoscontratos(2cargosdeEngenheiroepelomenos1cargotécnico,de TécnicoemSaneamentoouAuxiliarTécnico)Comojustificativaparaopedidoforamdestacadas asdiversasatividadesdesempenhadas,alémdoseuincrementocomaassunçãopeloDMAE dasatividadesrelacionadasàconservação,operaçãoemanutençãodasredespúblicasde drenagemecasasdebombas(SistemadeProteçãoContraCheias)(peça6718583,p1e 2).
Em19/10/2020aC-LOGISIreiterouopedidodereposiçãodevagasemvirtudeda confirmaçãode3(três)exoneraçõesdeengenheirosocupantesdecargoscomissionadosFoi referidaqueanãoreposiçãodasvagasimportariaemprejuízosàexecuçãodasatividades acontento,emespecialnoscontratosdeDragagemdeArroios,ReconstruçãodeRedes PluviaiseManutençõesdoSistemadeManejodeÁguasPluviais(peça6718583,p4)
Namesmadata,opedidofoireforçadopelaDOquesalientouqueasaídados servidoresinviabilizamasatividadesdefiscalizaçãodoscontratosemandamento,oque resultanareduçãodoritmodosserviçoscomoformade"manteromínimocontrolee segurançajurídicaàsatividadesdoscontratosdedrenagematéareposiçãodoquadrode fiscalização"(peça6718583,p.5).
ADireçãoGeraldoDMAEencaminhouoprocessoàSecretariaExecutivadoCGDEP em27/10/2020,solicitandoautorizaçãoparaelaboraçãodeprocessoseletivointernona PrefeituradePortoAlegreparafinsdecedênciaaoDMAEde3(três)EngenheirosCivis,tendo emvistaaexoneraçãodeservidores,advindosdaSMSURB,queatuavamematividades relativasàsredespúblicasdedrenagemecasasdebombas,recentementerepassadasao DMAEcombasenaLeiMunicipalnº12504/2019(peça6718583,p6e7)
Em05/11/2020,apósajuntadaaoprocessodaResoluçãonº019/2020doCGDEP (peça6718583,p8a10),oprocessofoiencaminhadopeloDiretor-GeralàGerênciadeGestão dePessoas(GPES),paraprovidênciasatinentesarealizaçãodeprocessoseletivointerno(peça 6718583,p11),sendo,namesmadata,encaminhadoàCoordenaçãodeDesenvolvimento(CDESENVOLV)(peça6718583,p12)
Tendoemvistaatrocadadireçãodoórgãocomanovagestãomunicipal,opedido foireiteradoaonovoDiretorGeralem24/02/2021,sendooprocessoporeleencaminhadoà DiretoriadeGestãoAdministrativa(DA)paraprovidências.Em25/02/2021,oprocessoé novamenteencaminhadoàC-DESENVOLV(peça6718583,p13a16) 278
digitalmente por: Marcelo Kipper da Silva em 14/07/25, Leandro Lobato Camargo em 14/07/25, Leandro Torres em 14/07/25, Fabio Alex Beling em 14/07/25 e outro(s). Confira a autenticidade do documento em www.tce.rs.gov.br. Identificador:

ESTADODORIOGRANDEDOSUL TRIBUNALDECONTAS DIREÇÃODECONTROLEEFISCALIZAÇÃO SERVIÇODEAUDITORIADEPORTOALEGRE

Em24/04/2021,aC-LOGISIemitiudespachosolicitandoadevidaatençãoe celeridadenoandamentodoexpediente,tendoemvistaoagravamentodasituaçãodafaltade corpotécnico(peça6718583,p17)OpedidofoicorroboradopelaGerênciadeLogística (GLOG),queressaltouapreocupaçãocomanecessidadedetécnicosparaafiscalizaçãode contratosvindouros(peça6718583,p18)
Em22/06/2021aDOemitiudespachosolicitandomedidasurgentesparao preenchimentodasvacâncias,comconsideraçõesarespeitodasatividadesdesempenhadasno DMAEatinentesamanutençãodossistemasdedrenagemurbanaeaosistemadeproteção contracheias(peça6718583,p19e20)Tambéméreferidoocrescimentodonúmerode contratosdeterceirizaçãodemãodeobraeconsequentenecessidadedeprofissionais habilitadosparaoexercíciodasfunçõesdegestão,fiscalizaçãoesupervisãodessescontratos Seguetranscriçãodorelato:
ÀDGeDA/GPES
Em2018foiatribuído[sic]aoDMAEasatividadesdemanutençãodos sistemasdedrenagemurbanaincluindoosistemadeproteçãocontra cheiasqueestavaemprocessoderecuperaçãoemanutençãoatravésde contrataçãodeterceirosfiscalizadosporumaestruturabaseadaemCCs
ConsiderandoasreiteradasmanifestaçõesdestaDO(11625313,11877329e 13229993).Naáreademanutençãoderedesdedrenagemurbana6CCs atuavamjácomdeficiênciadeatendimentonoauxílioafiscalizaçãoegestão doscontratosdeturmasepequenasobrasque5cargosdenívelsuperiorengenhariacivileumdenívelmédioalémdaelaboraçãodosprojetosbásicos paracontrataçãodeserviçosdepluvialquehojesãonatotalidadeterceirizados
AGLOG hoje além de elaborar os projetos básicos e orçamentos para a contrataçãodeserviçosterceirizados,realizaagestãodosseguintescontratos:
20.10.000008424-2-SERVIÇOSDELOCAÇÃODEEQUIPAMENTOSCOM MÃODEOBRAPARALIMPEZAEDESASSOREAMENTODOSCOLETORES DE ESGOTOS, COLETORES TRONCO, INTERCEPTORES E ÓRGÃOS ACESSÓRIOS, OPERADOS PELO DMAE, ATRAVÉS DE HIDROJATEAMENTOESUCÇÃOAVÁCUO,ASEREMREALIZADOSNO PERÍMETROURBANODEPORTOALEGRE
2010000008196-0 - SERVIÇOS TÉCNICOS ESPECIALIZADOS PARA MANUTENÇÕESPREVENTIVASECORRETIVASNASREDESERAMAIS DOSSISTEMASDEABASTECIMENTODEÁGUADEPORTOALEGRE(COM ORDEMDEINÍCIOPARA01/07/2021)
2010000009399-3-EXECUÇÃODESERVIÇOSDEMANUTENÇÕESNOS SISTEMASDEABASTECIMENTODEÁGUAECOLETADEESGOTOSDO DMAE–DISTRITAIS
19.10.000010058-7-EXECUÇÃODOSSERVIÇOSDEDIAGNÓSTICOPOR IMAGEM (VÍDEO-INSPEÇÃO) EM TUBULAÇÕES DE ÁGUAS PLUVIAIS E ESGOTOSMISTOS 279
Assinado digitalmente por: Marcelo Kipper da Silva em 14/07/25, Leandro Lobato Camargo em 14/07/25, Leandro Torres em 14/07/25, Fabio Alex Beling em 14/07/25 e outro(s). Confira a autenticidade do documento em www.tce.rs.gov.br. Identificador: PRE.FE77.2360.2A1D.FC7C.62D4.

ESTADODORIOGRANDEDOSUL TRIBUNALDECONTAS
DIREÇÃODECONTROLEEFISCALIZAÇÃO SERVIÇODEAUDITORIADEPORTOALEGRE
1910000009552-4–REPAVIMENTAÇÃODEVALASZONASUL
1910000003434-7–REPAVIMENTAÇÃOEVALASZONANORTE

1910000003435-5–REPAVIMENTAÇÃOZONASCENTROELESTE
00100032317900000 – RECONSTRUÇÕES E PEQUENAS OBRAS PLUVIAIS
1810000005784-8–LOCAÇÃODERETROESCAVADEIRAS
180000038831-5–TURMASPLUVIAIS
Aindatemasseguintescontrataçõesemprocessodelicitação:
2110000004273-1-DRAGAGEMEDESSASSOREAMENTODEARROIOS, VALAS,CANAISEBACIASABERTASBACIADOARROIODILÚVIO
21.10.000004536-6-DRAGAGEMEDESSASSOREAMENTODEARROIOS, VALAS,CANAISEBACIASABERTASZONANORTE
2110000004441-6-DRAGAGEMEDESSASSOREAMENTODEARROIOS, VALAS,CANAISEBACIASABERTASZONASUL
Etemcomopendenteaelaboraçãodosseguintesprojetosbásicos:
SERVIÇOS TÉCNICOS PARA MANUTENÇÃO E IMPLEMENTAÇÃO DE MELHORIAS NOS SISTEMAS DE DISTRIBUIÇÃO DE ÁGUA DE PORTO ALEGRE
LIMPEZAEDESASSOREAMENTODEGALERIASPLUVIAIS
SERVIÇOS TÉCNICOS ESPECIALIZADOS PARA MANUTENÇÕES PREVENTIVASECORRETIVASNASREDESERAMAISDOSSISTEMASDE ESGOTAMENTOSANITÁRIODEPORTOALEGRE
SERVIÇOSDELOCAÇÃODEEQUIPAMENTOSCOMMÃODEOBRAPARA LIMPEZAEDESASSOREAMENTODOSCOLETORESPLUVIAIS,ATRAVÉS DEHIDROJATEAMENTOESUCÇÃOAVÁCUO,ASEREMREALIZADOSNO PERÍMETROURBANODEPORTOALEGRE
Comocrescentenúmerodecontratosterceirizadoscadavezmaispesaa necessidadedeprofissionaishabilitadosparaexercerasfunçõesdegestão, fiscalizaçãoesupervisãodoscontratos Éimpossívelmanterumcontratosem fiscalização adequada sob grande risco de medições imprecisas e baixa qualidadedeserviços,comprejuízosaconfiabilidadedosistema,aoerárioeao atendimentoapopulação
Desta formasolicitamos medidas urgentes para preenchimento das vacâncias com ingresso de servidores, contratados, estagiários e/ou temporários,naGerênciadeLogística
Amedida de contratação emergencial de 9 técnicos em saneamento e 5 estagiáriosdenívelsuperiorparaatuarnestapodeatenuarosproblemas,mas nãodispensamedidasdefinitivasdeingressodeservidores


DIREÇÃODECONTROLEEFISCALIZAÇÃO SERVIÇODEAUDITORIADEPORTOALEGRE
Casonãoocorraoingressocomurgênciaseránecessárioavaliarquais contrataçõesdeverãotercontinuidadeequaisdeverãosersuspensas, bem como sobre o cancelamento de licitações em andamento, considerandoqueaGerênciadeLogísticajáultrapassousuacapacidade máximapararealizarafiscalizaçãoadequadanasfrentesdetrabalhodos serviçoscontratados
(Grifou-se)
EmatendimentoaopedidofeitopelaDA,aDOapresenta,em15/07/2021,oMapa GeraldeCargoseNecessidades(peça6718583,p27a60),demonstrandoanecessidadedo totalde09(nove)cargosdeengenheiro(peça6718583,p58),sendo02(dois)paraa GerênciadeManutençãoIndustrial(GMAN)(peça6718583,p50a53)e07(sete)paraa GerênciadeLogística(GLOG)(peça6718583,p55a57).
Em15/07/2021,aDOemitiudespachocomoencaminhamentodoprocessoàDAeà DG,salientandoaurgênciadanecessidadedeaberturadeconcursoparapreenchimentodas vagas,emrazãodos"riscosdenãoatendimentodapopulaçãodePortoAlegrenos serviçosessenciaisdeoperaçãoemanutençãodosSistemasdeAbastecimentodeÁgua, EsgotamentoSanitárioeDrenagemPluvial"(peça6718583,p61)
OexpedienteseguiutramitandointernamentenoDMAEaté02/09/2021nãosendo feitonenhumregistrodoatendimentoàsolicitaçãopleiteada.
Diantedoexposto,emquepeseaDiretoriadeOperaçõestenhaapresentado relevantesjustificativaseargumentadosobreosriscosdanãoreposiçãodeengenheirosparao exercíciodefunçõesdegestoresdecontratoefiscalizaçãodecampodoscontratos, especialmenteemrazãodoaumentodascontrataçõesterceirizadas,devidoàassunçãodas atividadesdemanutençãodossistemasdedrenagemurbanaedosistemadeproteçãocontra cheias,nãohouveprovidênciasparaodevidoprosseguimentodoprocessoporparteda gestãoresponsávelpeloDMAE
Salienta-seque,posteriormente,houveaautorizaçãoparanomeaçãode04(quatro) cargosefetivosdeEngenheiroCivil(Processo2210000011658-7),comnomeaçõesiniciadas apenasemjulho/2023,sendo02(duas)destinadasàGLOG,unidadevinculadaàDO.A GerênciadeManutençãoIndustrial(GMAN)18,unidaderesponsávelpelagerenciamentoe fiscalizaçãodecontratosrelacionadosàmanutençãoeletromecânicadascasasde bombaseparaqualtambémfoireferidaanecessidadedeengenheiros,nãofoi contemplada.Relativamenteàscontrataçõestemporáriasde02(dois)EngenheirosCivis (admissõesemsetembroeoutubro/2022),efetivadascombasenaLeiMunicipalnº13113/2022 (Processo22.0.000007066-5),nenhumadessasadmissõesfoidirecionadaàDOeàGMAN19 .
•Processonº21.10.000000769-3
Oprocessofoiinstaurado,em03/02/2021,pelaGerênciadeGestãodePessoas (GPES),tendocomoobjetoasolicitaçãodoingressode39servidores(7vagasdocargode TécnicoemSaneamentoe32vagasdocargodeTécnicoemTratamentodeÁguaeEsgotos), tendoemvistaahomologaçãofinaldosConcursosPúblicos087e088 281
Assinado digitalmente por: Marcelo Kipper da Silva em 14/07/25, Leandro Lobato Camargo em 14/07/25, Leandro Torres em 14/07/25, Fabio Alex Beling em 14/07/25 e outro(s). Confira a autenticidade do documento em www.tce.rs.gov.br. Identificador: PRE.FE77.2360.2A1D.FC7C.62D4.


DIREÇÃODECONTROLEEFISCALIZAÇÃO SERVIÇODEAUDITORIADEPORTOALEGRE
Nodespachoinauguralforamapresentadasasseguintesjustificativasparaopleito, queexpuseramaprementenecessidadederecomposiçãodepessoalexistentenoDMAE(peça 6718584,p.1a5):
ÀDG
TendoemvistaahomologaçãofinaldosConcursosPúblicos087-Técnicoem Saneamentoe088-TécnicoemTratamentodeÁguaeEsgotos,encaminhamos opresenteexpedienteparaanáliseedeliberaçãodoDiretor-Geralemrelaçãoa solicitandodeingressodeservidores,conformeabaixo
Anexamosrepercussãofinanceiradeingressode07vagasnocargodeTécnico emSaneamentoe32vagasnocargodeTécnicoemTratamentodeÁguae Esgotos(13038617)
1TÉCNICOEMSANEAMENTO:
VAGAS:07
SOLICITAÇÃODEINGRESSO:07
ÁREA:DIRETORIADEGESTÃOEDESENVOLVIMENTO
JUSTIFICATIVAS:SEI2110000000388-4
CoordenaçãodeObras/GEPO-03(três)TécnicosemSaneamento:
-01TécnicoemSaneamentoparaaEquipedeLoteamentos:Terátempor funçãooacompanhamentoefiscalizaçãodeextensõesderedesdeáguae esgotoporLoteamentosedemaisEmpreendimentosparticulares,bemcomo EquipamentosdeBombeamentodeÁguaeEsgotoedeTratamentoLocalde EsgotonestesEmpreendimentosHánecessidadedestetécnicopara,alémdas atividadesdefiscalizaçãodosserviçospropriamenteditos,realizartodoo ControledocumentalnecessárioàemissãodasCertidõesdeRecebimentodas Obras,necessáriosparaadevidaliberaçãodoLoteamentojuntoaosdemais órgãosmunicipais;
-01TécnicoemSaneamentoparaaEquipedeObrasCivis:Teráporfunçãoo acompanhamentoefiscalizaçãodeobrascivisemUnidadesdoDMAE,bem comoapoiaraEquipedeLoteamentosnasobrascivisdeterceirosHá necessidadedestetécnicoprincipalmenteparaaatividadedeconferênciae mediçãodearmadurasparaconcretagens,levantamentodequantitativosde serviçosdereformaseacompanhamentodosserviçospropriamenteditos;
-01TécnicodeSaneamentoparaaEquipedeRedes:Teráporfunçãoo acompanhamentoefiscalizaçãodeobrasdeimplantaçãoderedesdeáguae esgotopeloDMAEHánecessidadedestetécnicoparaauxiliarnamediçãodos serviços,paraauxiliarosengenheirosdaEquipenasatividadesdemarcaçãode paradasoperacionaisparaEntroncamentoeCortesdeRedes,executara conferênciadecadastrosexecutadospelascontratadas.
*CoordenaçãodeProjetos/GEPO-02(dois)TécnicosemSaneamento:


-AEquipedeTopografia:Teráporfunçãooapoioàequipesdeprojetoseobras nodesenvolvimentodesuasatividades,efetuandolevantamentostopográficose conferenciasdeobrasecadastrosnecessáriosHojeelacontacomtrês servidores,edoisdosdestescomaposentadoriapróxima
*GerenciadePlanejamento-GPLA:
-01TécnicoemSaneamentoparaaEquipedeNovosEmpreendimentos(EQNOVOEMP):Teráporfunçãoauxiliaraelaboraçãodeviabilidadestécnicasde novosempreendimentosetramitaçãodeprojetosdeloteamentos,possível necessidadedecomparecimentoemreuniõesdasComissõesdeaprovaçãode projetodaPMPAOingressodeservidorvirásuprirasnecessidadesdaequipe quecontacomservidoraprestesaseaposentarequeviureduzidoseuefetivo comumaexoneraçãoapedido(AndersonMachadodeSouza)eumarelotação (ThamysZerwesLuz);
-01TécnicodeSaneamentoparaaEquipedeDocumentaçãoTécnicae Geoprocessamento(EQDOCGEO):Teráporfunçãootratamentodosdadose cadastrosexistentesnoDepartamentoeamanutençãodosmesmos,assim comoreceber,avaliarecorrigirnovoscadastrosencaminhadosporempresas contratadasnaexecuçãodasobrasOingressodeumservidortécnicoem saneamentoéemvirtudedaexoneraçãodatécnica(CCElenMartendeLima) querespondiapelasdemandasdocadastrodadrenagemurbana
2TÉCNICOEMTRATAMENTODEÁGUAEESGOTOS:
VAGAS:32
SOLICITAÇÃODEINGRESSO:32
ÁREA:DIRETORIADETRATAMENTOEMEIOAMBIENTE
JUSTIFICATIVAS:SEI2110000000393-0
Preambularmente,caberegistrarque:
ADiretoriadeTratamentoeMeioAmbienteéoórgãodedireção,controle, supervisãoeorientaçãoestratégicadasatividadesrelacionadasaosserviçosde operaçãoecontroledequalidadedasestaçõesdetratamentodeágua, operaçãoecontroledeeficiênciadasestaçõesdetratamentodeesgotos, monitoramentodequalidadedeáguanossistemasdedistribuição, monitoramentodosrecursoshídricos,resíduosegestãoambientalnoâmbitodo Departamento";
-conformePlanoMunicipaldeSaneamentoBásico,Vol1-Diagnóstico(PMSB Vol1),noquetangeaoAbastecimentodeÁgua,aDT,atravésdaGTAG,é responsávelpelaoperaçãodeseisEstaçõesdeBombeamentodeÁguaBruta (EBABs),seisEstaçõesdeTratamentodeÁgua(ETAs)eumaEstaçãode BombeamentodeÁguaTratada,partedosSistemasdeAbastecimentodeÁgua (SAAs)dePortoAlegre,bemcomopelocontroledaqualidadedaáguapara consumohumano,assimdefinidosnostermosdoANEXOXXDAPORTARIA DECONSOLIDAÇÃONº5DOMINISTÉRIODASAÚDEDE03DEOUTUBRO DE2017;

ESTADODORIOGRANDEDOSUL TRIBUNALDECONTAS
DIREÇÃODECONTROLEEFISCALIZAÇÃO SERVIÇODEAUDITORIADEPORTOALEGRE

-tambémdentrodoescopodaDT,vinculadoaoDiagnósticodoPMSBenoque tangeaoEsgotamentoSanitário,cabeàGATEaoperaçãoeocontroleanalítico dedezEstaçõesdeTratamentodeEsgotos,parteintegrantedosdezSistemas deEsgotamentoSanitário(SES)doMunicípio,operaçãodeseteEstaçõesde BombeamentodeEsgoto-EBEs,demodoaatenderasLicençasdeOperação (LOs)emitidaspelosórgãosambientais,FEPAMeSMAM; -finalmente,aindaestãoafetosàDTosmonitoramentosdaqualidadedoLago GuaíbaeosprocessosdeGestãoAmbientaldoDepartamento,taiscomoapoio aoslicenciamentosdeobraseinstalações,politicadegestãoderesíduos, representaçãoemórgãoscomoComitêsdeBaciaHidrográfica,COMAMADTGATEaindarespondeportodaainterfacecomórgãoscomoIBAMA,FEPAM, SMAMs,DMLU,entreoutros
-aDTécompostapelaGerênciadeTratamentodeÁgua(GTAG),Gerênciade GestãoAmbientaleTratamentodeEsgoto(GATE)eEquipedeProjetos Especiais-EQ-PROJESPAsGerênciassubdividem-seemcincoCoordenações cada,alémde15EquipesnaGTAGe14EquipesnaGATE;
-nomomento,aDTtem227servidoresefetivos,sendo121naGTAG,98na GATEe8naDiretoria,distribuídosconformeplanilha12869166;atuamnaDT hoje23servidorestemporários;
-nocargodeTTAEatuamnaDThoje,63(sessentaetrêsservidores)eno cargodeTécnicoemSaneamento14(quatorze)servidores;considerandoestes cargostemos39(trintaenovepostosvagos);noentantoparaaoperaçãode ETEseETAs,aindadevemosconsiderarafaltadepessoalemoutrocargo específicoOcargodeOperadordeEstaçãodeTratamentocontahojecom53 (cinquentaetrês)servidoresefetivosnaDTParaestecargo,temosademanda de68(sessentaeoito)postosvagos,conformetabela12869166Paraa operaçãosatisfatóriadossistemasdeabastecimentodeáguaetratamentode esgotos,estestrêscargossãoessenciais;noentanto,ocertame 1910000004147-5nãocontemplouocargodeOperadordeEstação,tendoem vistaquehádefiniçãotécnicadaáreadeGestãodePessoasqueocargode OperadordeEstaçãodeTratamentodeveserprogressivamentesubstituídopelo cargodeTTAE
ODmaevemsistematicamente,desde2017,registrandoanecessidadede recomposiçãodeseuquadrodeservidoresquedesenvolvemsuas atividadesdiretamentenoTratamentodaÁgua,GestãoAmbientee TratamentodeEsgotos(SEI1710000003717-5)Nesteperíodonãoocorreu oingressodeservidoresnoscargosdaáreaoperacional,apenas movimentosdeaposentadoriadojáenxutoquadro,conformeregistrosde aposentadoriasconstantenoprocesso17.10.000003717-5.Sóestásendo possívelamanutençãodoabastecimentodeáguaetratamentodeesgotos nomunicípiodePortoAlegre,vistoaautorizaçãodecontratação emergencialeporprazodeterminadoparaocargodetécnicode tratamentodeáguaeesgotos-TTAEs(Lei12715,de16dejulhode2020)
Emquepese,apresençadosservidorestemporários(ingressaramatéo presentemomento23servidorestemporários),cujoalgunsprazosde contratofindamjáprimeiroquadrimestrede2021,semantêma necessidadedeaporteexpressivodeHEparaosservidoresdaárea 284

ESTADODORIOGRANDEDOSUL TRIBUNALDECONTAS
DIREÇÃODECONTROLEEFISCALIZAÇÃO SERVIÇODEAUDITORIADEPORTOALEGRE

operacional.Asnecessidadesdepessoalsãosupridasatualmentecom aumentoprogressivodeHoras-Extras,porémistosobrecarregaos servidoresquehojeatuamnosprocessosdetratamentodeáguae esgotosOexcessodeHEgeraprocessosdefadigaeadoecimento,com cargasdeaté90horas-extrasmensaisparacadaservidor
AtualmenteaDiretoriadeTratamentotem32(trintaedoiscargos)vagospara técnicodetratamentoemáguaeesgotosImportanteressaltarqueosservidores lotadosnestescargosnaDiretoriadeTratamento,desempenhamfunçõesde grandecomplexidade,taiscomomonitorartodaaqualidadedaáguadistribuída aosmunícipesAtividadescomocoletadeamostrasnoLagoGuaíbademanda grandetempodetreinamentodoservidor,hajavistaquetodaacadeiade análisesécobertapelaISO17025
(Grifou-se)
Oprocessoseguiusuatramitação,comdestaqueparaasseguintesocorrências:
05/02/2021:Solicitaçãodeautorizaçãoparaoingressodeservidoreséencaminhada peloDiretor-Geral(DG)doDMAEaoGabinetedoPrefeito(peça6718584,p7)
NamesmadataexpedienteéencaminhadoàSecretariaExecutivadoComitêGestor deDespesasdePessoal(SECEXP-SMAP)(peça6718584,p9)
09/03/2021: SECEXP-SMAP emite despacho solicitando ao DMAE o encaminhamentodeinformaçõessobreosconcursospúblicosdoscargossolicitados,bemcomo sobreaindicaçãodasvacânciasocorridasnosúltimos12(doze)mesesparaoscargos solicitadose,ainda,sobreareduçãodaforçadetrabalhonoperíodode2017a2020(peça 6718584,p10)
15/03/2021:Emresposta,aGPESapresentouasinformaçõessobre:oprazode validadedoconcurso(13/01/2023,prorrogávelpormais2anos);onúmerodecandidatos habilitadosparacadaumdoscargos(7candidatosparaTécnicoemSaneamentoe49 candidatosparaTécnicoemTratamentodeÁguaeEsgotos);oquantitativodevacânciasno cargodeAuxiliardeServiçosTécnicos(totalde2vacânciasem2020e9em2019),cargoque estariasendosubstituídopelocargodeTécnicoemSaneamento,criadoem2012;eo quantitativodevacânciasnocargodeTécnicoemTratamentodeÁguaeEsgotos(2em2020e 3em2019)enocargodeOperadordeEstação(5em2020e6em2019),oqualestariasendo substituídopelocargodeTécnicoemTratamentodeÁguaeEsgotos(peça6718584,p12a14) Noquetangeàreduçãodaforçadetrabalho,foiapresentadográficoilustrativo,quedemonstraa reduçãodeumtotalde219servidores,noperíodocompreendidoentredezembro/2017e dezembro/2020
Namesmadata,aSECEXPsolicitanovamenteoretornoaoDMAEparaprestação deinformaçõescomplementaressobrearepercussãofinanceiraeareduçãodaforçadetrabalho ocorridaespecificamentenoscargospleiteadosenoscargosquevirãoasersubstituídos(peça 6718584,p16)
16/03/2021:EmrespostaàsolicitaçãodaSECEXP,aGPESemitedespachoque apresentainformaçõessobreareduçãodeforçadetrabalhoocorridaespecificamentenos cargosdeAuxiliardeServiçosTécnicos(12servidores),TécnicoemSaneamento(2servidores), OperadordeEstação(17servidores)eTécnicoemTratamentodeÁguaeEsgotos(10 servidores).Tambémsãojuntadasasrepercussõesfinanceiras,sendomencionadoquenos 285


anosde2020e2021ocorreram86vacânciasemdiversosoutroscargos,demodoquea repercussãofinanceiradessasvacânciasseriasuficienteparaosingressossolicitados(peça 6718584,p.17a21).
09/04/2021: SECEXP-SMAP emite despacho solicitando os seguintes esclarecimentos(peça6718584,p23):
a)Quaisosimpactosquepodemsergeradosaoatendimentosdosserviços prestadospeloDepartamentoMunicipaldeÁguaeEsgoto(DMAE),casonão fosseaprovadoopedidodenomeação;
b)ConsiderandoocontratotemporáriodeTécnicoemTratamentodeÁguae Esgotoqueestáemandamentoepossuicontratosfindandono1ºquadrimestre de2021,solicitamosinformaçãoquantoapossibilidadedenomeaçãodos servidoresefetivos,emsubstituiçãoaostemporários,conformeoscontratos destesfindarem;
c)QuesejaencaminhadaplanilhacontendoarelaçãodosTécnicosem TratamentodeÁguaeEsgotocontratadosemvirtudedaLei12715/2020,com datadeinícioefimdoscontratostemporários
13/04/2021:Emresposta,aGPESemitenovodespacho,queapresentaarelaçãode servidorestemporárioscontratadosemvirtudedaLeinº12715/2020erespectivasdatasde inícioefim,bemcomoasseguintesinformaçõesparaatendimentodosquestionamentos(peça 6718584,p.25a27):
A)QUAISOSIMPACTOSQUEPODEMSERGERADOSAOATENDIMENTOS DOSSERVIÇOSPRESTADOSPELODEPARTAMENTOMUNICIPALDE ÁGUAEESGOTO(DMAE),CASONÃOFOSSEAPROVADOOPEDIDODE NOMEAÇÃO
TÉCNICOEMSANEAMENTO:
AnãonomeaçãodeTécnicosemSaneamentotraráprejuízosàfiscalizaçãode obraseprojetos,ondeostécnicostêmporcompetênciaconferência, levantamentoeacompanhamentodosserviçosAinda,atuarãonamarcaçãode paradasoperacionaisparaentroncamentoecortesderedesOuseja,os projetoseobrasserãoprejudicadosemseudesenvolvimentoeritmo
Afiscalizaçãodecontratospelaáreadedesenvolvimentoabrange planejamento,projetoseobras;envolvendoemtornode50contratosNa fiscalizaçãodecontratosdeobras,paraatenderemtornode30contratos, dispomosdeapenas04fiscaisdecampoAsdemandasdeserviçosestão relacionadasalevantamentosesondagensdetrechosdeviaseáreaspara implantaçãodeunidadesoperacionais,mediçõesdeserviçosemexecução, conferênciadedadoslevantadosparafinsdeavaliaranecessidadedeaditivos deobras,avaliaçãodeobstáculosfísicosquepossamacarretaratrasosnos cronogramasdasobraseavaliaçãodenovasdemandasparacomplementação dosobjetoscontratados
Afaltadefiscalizaçãopresenteecontínuanoscontratosemexecução,razãode nossopedidodeTécnicosdeSaneamentoparafiscalização,podeocasionaros seguintesimpactos:


1)Errosdequantidadesdeserviçosexecutadoscompagamentosindevidos, tantoamaiorquantoamenordosefetivamenteexecutados;
2)Avaliaçãoequivocadadenecessidadedenovosserviçosdemandando aditivosdesnecessários;
3)Faltadeagilidadenodespachodedemandasdoscontratados,ocasionando atrasonoscronogramasdeexecução;
4)Alongamentodeprazodoscontratostendocomoconsequêncianecessidade dereajustesporatrasosdecronograma;
5)Apontamentosdemáexecuçãoouomissãodeinformaçõesporpartedas auditoriasmunicipaisoudoTCE-RS,responsabilizandoaschefiasefiscaisde obraspormáexecuçãodoscontratos;
6)Atrasosnasentregasdasobras,trazendoprejuízosascomunidadesaserem beneficiadas,ficandoumaimagemdegradadadoDepartamentocomo incompetênciaourelaxamentodesuasobrigações.
TÉCNICOEMTRATAMENTODEÁGUAEESGOTOS
Impactosimediatos:
ODMAEnãocumprirásuamissãojuntoaomunicípio
ODMAEnãoterácondiçõesdegarantiroserviçopúblicodeáguaeesgoto;
ODMAEnãoatenderáàdemandadetratamentoeabastecimentodeáguano município;
ODMAEnãocumpriráaPortariadePotabilidadedoMinistériodaSaúde;
ODMAEnãoatenderáàdemandadetratamentodeesgotos;
ODMAEperderáaté16milhõesemrecursosdecontratosjáfirmadoscoma AgênciaNacionaldeÁguas-ANA/PRODES,porfaltadepessoalnaoperaçãoe naáreaanalítica;
ODMAEnãocumprirásuasatuaislicençasdeoperaçãodeETAseETEs;
ODMAEestaráincorrendoeminfraçõesambientais,porfaltadeatendimento aoscondicionantesdelicençasambientais,itensdemonitoramentoambiental;
ODMAEnãoterácondiçõesdeatenderàsdemandasdelicenciamento ambientaldosserviçosdedrenagempluvial;
Teremosumcolapsonaprestaçãodoserviçodeabastecimentodeáguae tratamentodeesgotosemcurtoprazo,conformejárelatadonosexpedientes: 2010000003044-4, 1710000003717-5, 2110000000393-0 e demais vinculados
AbaixoelencamosexemplospráticosnasrotinasdaDiretoriade TratamentoeMeioAmbiente,jáafetadospelafaltadepessoalnoscargos deTTAEETSan:

ESTADODORIOGRANDEDOSUL TRIBUNALDECONTAS
DIREÇÃODECONTROLEEFISCALIZAÇÃO SERVIÇODEAUDITORIADEPORTOALEGRE

-HojeosLaboratóriosdaGTAGrealizamemmédia,3milanálisesdaágua tratadadiariamente;acasonãohajanomeaçãoparaservidoresefetivos;o DMAEnãoterácondiçõesdeatenderàPortariadePotabilidadeemcurto espaçodetempo,salientandoquehojeexistemservidoresdessaáreaem condiçõesdeaposentadoriadeformaimediata;
-ODMAErealizaocontroledemaisde700pontosdarededeabastecimento darededeáguatratada,cujasatividadessãodesenvolvidasporestes profissionais,hojequalquerfalta,pormotivosdiversos,écobertacomdobrasde HE;entretantohojeestamosnotetodeHEdosTTAESeTSans.
-Hoje24%doscargosdeTTAEemETAssãotemporários,sendoqueestamos comoperandocomomínimopessoalnecessárioparanãopararasplantasOu seja,acasoanomeaçãonãosejaefetivadadeformaimediata,aDiretoriaGeral doDMAEdeverábuscarareorganizaçãodoatualquadro,prevendoa paradadeoutrasplantaspararemanejodepessoalAsseisETASdoDMAE tratameabastecemáguaparaumuniversode1481859pessoasnomunicípio
-Reorganizaçãodasescalasdetrabalhoparaquêaáreaoperacionalde tratamentoeabastecimentodeáguacontinue,porémdeformaprecária
Efeitos:aDireçãoGeraldoDMAEdeveráindicarapassagemdealgumasETES paraomodoby-pass,ouseja,otratamentodeemesgotosemalgumas estaçõesprecisarápararNestemomento,oDMAEdeveránotificarórgãos comoSMAM,FEPAM,ComitêsdeBaciaeAgênciaNacionaldeÁguas Teremosgrandedeaportedeesgotos“innatura”noLagoGuaíbaeArroios.A previsãodeparadadeETEscomoaETESarandi,ensejaráasuspensãodo contratoANA-PRODESeperdaderecursosnacasade4milhõesdereais, conformecontratojáassinadoem2019pelomunicípionapessoadoSr Prefeito
-Todososmonitoramentosambientaisdasatuaislicençasdeoperaçãodas ETEssãorealizadosnosLaboratóriosdeMonitoramentodaGATE,acasonão hajaanomeaçãoimediatadoscargos,ecomprevisãodeaposentadorias imediatasnesseslocais,podemosprevertambémonãoatendimentodas condicionantesdelicençasdeoperaçãodasETEsAqui,salienta-seaETE Serraria,cujocontratocomaANA-PRODESdeveráserretomadoatéfinalde dezembro,havendoaindaomontantede12milhõesdereaisaserauferido pelaDMAE,quesofreriscodeperdapelafaltadepessoaloperacionale analítico
-EmvirtudedafaltadeTécnicosemTratamentodeÁguaeEsgotoseTécnicos emSaneamentoasatividadesdecoletaeanálisedeamostrasdoLagoGuaíba deverãoserreduzidasdeformadrástica;assimasanálisesdascaptaçõesdo DMAEestarãoemrisco.AnálisesdebalneabilidadeparaaSMAMUSnão poderãoserrealizadas,pelafaltadepessoalnacoletaenaáreaanalítica
ADiretoriadeTratamentoeMeioAmbienterealizatodoocontroledaGestão AmbientaldoDMAE,respondendoporcontroleserelatóriosàPolíciaFederal, IBAMA,MP,SMS,FEPAM,SMAMUS,ComitêsdeBaciaCargoscomoo TécnicoemSaneamentosãovitaisparaosuportenestasáreas.Hojeexistem demandasrepresadasquenãoserãoatendidas,emvirtudedafaltade pessoalAquifrisamosavindadosserviçosdepluvialquecontamcom

ESTADODORIOGRANDEDOSUL TRIBUNALDECONTAS
DIREÇÃODECONTROLEEFISCALIZAÇÃO SERVIÇODEAUDITORIADEPORTOALEGRE
grandepassivoambientalaserregularizado.

ODMAErealizacoletasparamonitoramentodapresençadoSARS-CoV2, emparceriacomórgãoscomoaSecretariadeEstadodaSaúdeAcasonão logremosêxitonasnomeaçõesdeformaimediata,algunsprofissionais hojeenvolvidosnascoletas,poderãoserrealocadosemplantas operacionaisdeformaamanteracontinuidadedoserviço,porémcoma suspensãodediversascoletas,taiscomoadareferidapesquisa.
ADiretoriadeTratamentoeMeioAmbientetambémsereportaaorelatadono despacho(13043316)aondeconstamasjustificativas,históricoenecessidade denomeaçãoimediataparaoscargosdeTTAEeTécnicoemSaneamento NocargodeTTAEatuamnaDThoje,61(sessentaeumservidores)eTécnico emSaneamento14(quatorzeservidores);considerandoestescargostemos39 (trintaenovepostosvagos);noentantoparaaoperaçãodeETEseETAs, aindadevemosconsiderarafaltadepessoalemoutrocargoespecífico, OperadordeEstaçãodeTratamentoHojecontacom53(cinquentaetrês) servidoresefetivosnaDTParaestecargo,temosademandade68(sessentae oito)postosvagos,conformetabela12869166Paraaoperaçãosatisfatóriados sistemasdeabastecimentodeáguaetratamentodeesgotos,estestrêscargos sãoessenciais;noentanto,ocertame1910000004147-5nãocontemplouo cargodeOperadordeEstação.
Assim,lembrandoqueoscargosemtela,sãoessenciaisparaqueoDMAE continuerealizandooserviçodeabastecimentoedetratamentode esgotosaomunicípio,podemosafirmarqueanãonomeaçãoimediatadas vagasdemandadas,levaráaocolapsodoserviçoprestadoemcurto espaçodetempo,aindanoanocorrente
B)CONSIDERANDOOCONTRATOTEMPORÁRIODETÉCNICOEM TRATAMENTODEÁGUAEESGOTOQUEESTÁEMANDAMENTOEPOSSUI CONTRATOSFINDANDONO1ºQUADRIMESTREDE2021,SOLICITAMOS INFORMAÇÃO QUANTO A POSSIBILIDADE DE NOMEAÇÃO DOS SERVIDORES EFETIVOS, EM SUBSTITUIÇÃOAOSTEMPORÁRIOS, CONFORMEOSCONTRATOSDESTESFINDAREM
Háanecessidadedeacordarumprazoparanomeaçãodeservidorefetivoem substituiçãoaoservidortemporário,considerandoosprazosparaingresso, conformeLC133/85,deaproximadamente40(quarenta)dias,considerando: nomeação,posseematé30(trinta)diaseexercícioematé05(cinco)diasede nomínimo20(vinte)diasparatreinamentobásicodoingressanteOuseja, devemosterautorizaçãoparaingressodeservidorefetivocom60diasde antecedênciadofinaldocontratodoservidortemporário,paraquenãohaja descontinuidadedasatividadesedaprestaçãodosserviçosàpopulação (Grifou-se)
05/05/2021:CGDEPemiteaDeliberaçãonº014/2021deferindoanomeaçãode11 (onze)TécnicosemTratamentodeÁguaeEsgotoe2(dois)TécnicosemSaneamento(peça 6718584,p39e40)Namesmadata,oPrefeitomanifestaconcordânciaeautorizaanomeação dosservidores(peça6718584,p.53).
23/06/2021:ACoordenaçãodeDesenvolvimento(C-DESENVOLV)emitedespacho, 289

ESTADODORIOGRANDEDOSUL TRIBUNALDECONTAS
DIREÇÃODECONTROLEEFISCALIZAÇÃO SERVIÇODEAUDITORIADEPORTOALEGRE

ratificadopelaGPES,informandosobreaconclusãodosingressosdoscargosautorizadose solicitandooseguimentodostrâmitesdeencaminhamentodeautorizaçãoparaosdemais ingressos(7TécnicosemSaneamentoe32TécnicosemTratamentodeÁguaeEsgotos), consoantepedidoinicial20(peça6718584,p59e60)
24/06/2021:DAencaminhaasolicitaçãoparadeliberaçãodoCGDEP,salientandoa importânciadasnomeações,nestestermos(peça6718584,p61):
ÀSECEXP/SMAP
Em05/02/2021,oDMAEsolicitaaoCGDEPaliberaçãoparacontrataçãodede TécnicoemSaneamento(TS)07vagaseTécnicosemTratamentodeÁguae Esgotos(TTAES)32vagas
ApósdiversosquestionamentoshouveadeliberaçãodoComitê,despacho 14013534,deapenas11(onze)TTAESe02(dois)TS
Osatuaiscontratostemporáriosterãoseuencerramento,conformejá encaminhadonoprimeirosemestrede2021,ouseja,nestemomento
Assim,considerandoosprazosdetramitaçãoparanomeação,considerandoque hánecessidadedetreinamentodosnovosingressantes,reiteramosa autorizaçãoparaacontrataçãode21TTAESe05TS,deformaurgente
Essescargossãoresponsáveispelasanálisesdaqualidadedaáguatratada noMunicípiodePortoAlegre,bemcomorespondemadiversosórgãosde controle,taiscomoVigilânciaSanitária,FEPAM,MPentreoutros
Afaltadestamãodeobraincidediretamentenaqualidadedaáguatratada entregueàpopulaçãodePortoAlegre
Diante do expostoreiteramosanecessidadedeautorizaçãoparao chamamentodestestécnicos,sobpenaderesponsabilizaçãocasohaja notificaçãodaqualidadedeáguaentregueaosmunícipes
Todasasinformaçõesnecessáriasconstamnoprocesso
(Grifou-se)
29/06/2021:DAreiterasolicitaçãoencaminhadaem24/06/2021(peça6718584,p. 62)
05/07/2021: SECEXP-SMAP emite despacho solicitando informações complementaresparaseguimentodoprocesso:repercussãofinanceira,vacânciasocorridasapós aúltimaautorização,informaçãosobrecontratostemporáriosvincendosnãorenováveis,quadro evolutivodaforçadetrabalhonosúltimosanos,informaçãosobreaberturasdenovosserviçose oquadromínimoparasuamanutenção,seopedidoédecargoefetivooutemporárioe concordânciadotitulardoórgão(peça6718584,p63e64)
06/07/2021:GPESemitedespachocomasinformaçõessolicitadasesugerindoo encaminhamentoàDGparaapresentaçãodenovaconcordânciaemrelaçãoaopedido(peça 6718584,p.66a68).Dentreasinformaçõesprestadas,ésalientadaaimportânciada autorizaçãoimediatade21TécnicosdeTratamentodeÁguaeEsgotos,emrazãoda impossibilidadederenovaçãodascontrataçõestemporárias21edoprazomédiode45diaspara


ingresso,alémdanecessidadedetreinamentomínimodosingressantesAdemais,são novamentetrazidosargumentostécnicossobreanecessidadedasnomeações22 ,inverbis:
TÉCNICOEMTRATAMENTODEÁGUAEESGOTOS-TTAE
Nãohánovasunidadesoperacionais,masanecessidadeurgentedeingresso detécnicosparamanteraoperaçãodasEstaçõesdeTratamentodeÁguaede Esgotosexistentes
Lembramosquetivemosoingressodasunidades:ETESarandiem2013,ETE Serrariaem2014eETEChácaradasNascentesem2016,semorespectivo acréscimodeservidores,acrescidoaoelevadonúmerodeaposentadorias ocorridasnosúltimosanosHáanecessidadedeingressode51(cinquentae um)técnicosemtratamentodeáguaeesgotos,entretantooDmaecontacom 21cargosvagos,númeromáximodenossasolicitação
TÉCNICOEMSANEAMENTO:
Alémdasdiversasobrasjáemandamento,estamosiniciandoobrasde SubstituiçãodeRedesdeAbastecimentonoQuadriláterodoCentro,com interfacecomaobraestratégicadaPMPAeSubstituiçãodeRedesde AbastecimentonaRegiãodaAssisBrasil,bemcomooplanejamentodoDMAE prevêolançamentonoiníciodo2ºSemestredosseguintesEditais,todoseles paraexecuçãodeobrasemregiõesbastanteadensadasesujeitasamuitas interferências:
-Execuçãode03Adutorasdefundamentalimportânciaparagarantiro abastecimentodeváriasregiõesdacidade,novalordecercadeR$25milhões;
-ImplantaçãodeRedesdeEsgotoSanitárionaBaciadoHumaitá,novalorde cercadeR$30milhões;
-SubstituiçãodeRedesdeAbastecimentonoBomFim,novalordecercadeR$ 15milhões;
-SubstituiçãodeRedesdeAbastecimentoemDiversasÁreas,novalordecerca deR$20milhões;
-ImplantaçãodeRedesdeDrenagememDiversasÁreas,novalordecercade R$10milhões
AlémdestasobrascomrecursosprópriosaseremSupervisionadaspela CoordenaçãodeObras,oDMAEestácriandoumaestruturaespecíficaparaas obrascomRecursosExternosDentrodestaUnidadeserãofiscalizadasas seguintesobras:
-ExecuçãodoSistemadeAbastecimentodeÁguaPontadoArado,formadapor 07obrasecominvestimentodecercadeR$230milhões;
-AmpliaçãodoSistemadeAbastecimentoSãoJoão,formadapor09obrase cominvestimentodecercadeR$80milhões;
-AmpliaçãodaMacrodrenagemdoArroioAreia,formadapor23obrasecom investimentodecercadeR$110milhões;

ESTADODORIOGRANDEDOSUL TRIBUNALDECONTAS
DIREÇÃODECONTROLEEFISCALIZAÇÃO SERVIÇODEAUDITORIADEPORTOALEGRE

-ImplantaçãodeMacrodrenagemeMicrodrenagemnoTúnelVerde,formada por5obrasecominvestimentodecercadeR$35milhões.
Destaforma,hánecessidadedeingressoimediatodeTécnicosem Saneamento,sendoquenestemomentocomoháapenas05vagasdisponíveis solicitamosoingressodetodosestesprofissionais
NamesmadataodespachoératificadopeloDGsendoencaminhadoàSECEXPSMAP(peça6718584,p.70).
07/07/2021:CGDEPemiteaDeliberaçãonº062/2021deferindoanomeaçãode01 (um)TécnicoemTratamentodeÁguaeEsgotoe01(um)TécnicoemSaneamentoeorientando paraqueoDMAEavalieanecessidadedepessoalequecasoaindasejanecessárioque procedaamanutençãodacontrataçãotemporáriadeaté20(vinte)TécnicosdeTratamentode ÁguaeEsgotos,conformeoscontratossejamencerrados,afimdeevitarasobreposiçãode despesas(peça6718584,p71a72)
13/07/2021:Prefeitoapresentamanifestaçãodeconcordânciacomadeliberaçãodo CGDEP,sendoautorizadaasduasnomeações(peça6718584,p76)
19/07/2021:DAemitedespachoreiterandoasolicitaçãodeautorizaçãopara contrataçãode20TécnicosdeTratamentodeÁguaeEsgotose4TécnicosemSaneamento, tendoemvistaainformaçãoanteriormenteprestada,emquefoireafirmadaanecessidadede ingressodosservidoresealertadaaexpiraçãodoprazodevalidadedoscontratostemporáriose aimpossibilidadedesuasrenovações,inverbis(peça6718584,p.80):
ÀSECEXP-SMAP
ConsiderandoainformaçãoSECXP-SMAP14815967queorientaparaqueo Departamentoprocedaamanutençãodacontrataçãotemporáriadeaté20 (vinte)TécnicodeTratamentodeÁguaeEsgoto(TTAE),conformeoscontratos sejamencerrados,evitandoasobreposiçãodedespesas,reiteramosa informaçãoDA-DMAE13460985,ondereafirmamosanecessidadedeingresso dosservidoresealertamosparaoprazodevalidadedoscontratostemporários aindano1ºsemestrede2021,lei12715de16/07/20,ondeconforme mencionadonodespachoGPES14685612oscontratostemporáriosqueestão vencendonospróximosmeses,nãopodemserrenovados,assimsefaz necessárioingressoimediatodototaldessequantitativo,pararealização detreinamentoespecíficoaestesfuncionáriosapósoingressoparaentão poderemdarinícioaoperaçãodesuasatividades,destaforma,não podendoaguardarodesligamentoparaentãodarencaminhamentoao ingresso.
Assim,reiteramosaautorizaçãoparaacontrataçãode20TTAESe04TS, deformaurgente,deformaacomplementaraautorização14815967que deliberouapenaspelanomeaçãode01(um)TécnicoemSaneamentoe01(um) TécnicoemTratamentodeÁguaeEsgoto(TTAE),deformaaatendera solicitação14564569,poisessequantitativoénecessárioparaatendermos minimamenteanecessidade/qualidadedaáguatratadaentregueà populaçãodePortoAlegre,sobpenaderesponsabilizaçãocasohaja notificaçãodaqualidadedeáguaentregueaosmunícipes
20/07/2021:DGratificaainformaçãoeencaminhaàSECEXP-SMAP(peça6718584, p.82). 292

ESTADODORIOGRANDEDOSUL TRIBUNALDECONTAS
DIREÇÃODECONTROLEEFISCALIZAÇÃO SERVIÇODEAUDITORIADEPORTOALEGRE

02/08/2021:DAemitedespachoparafinsdeencaminhamentodecomplementação dasinformaçõesanteriormenteprestadas,sendoapresentadaalistadasvacânciasocorridas (peça6718584,p83a91)
16/08/2021:CGDEPemiteasdeliberaçõesnº069/2021(peça6718584,p.92e93)e nº070/2021(peça6718584,p94e95)ADeliberaçãonº069/2021concluiupeloindeferimento dopedidodereconsideraçãodasnomeaçõesde04(quatro)TécnicosemSaneamento,aopasso queaDeliberaçãonº070/2021concluiupeloindeferimentodopedidodenomeaçãodos TécnicosemTratamentodeÁguaeEsgotos,bemcomopelaadoçãodeprovidênciasnosentido doencaminhamentodeprojetodeleiparacontrataçãotemporáriadoscargosnecessários,para "viabilizarotérminodosestudoseproposiçõesdefuturodaprestaçãodeserviçodeáguae esgotoparaPortoAlegreeconsequentementea(sic)manutençãodaprestaçãodosserviçosde águaeesgotos(sic)noperíodo"
23/08/2021:ODiretor-AdjuntodoDMAEemitedespachoparafinsapresentação denovasargumentaçõesealertaaoCGDEPquantoàsconsequênciasdasreiteradasnegativas deautorizaçãodeingressodeservidores.Juntamentecomodespachoforamapresentados dadosindicadorescomparativosdecapitaisbrasileirasecidadesdeportesemelhanteaPorto Alegre,osquaisdemonstramainadequaçãodoquadrodepessoaldoDMAE,especialmente considerandoqueosoperadoresdosserviçosdeabastecimentodeáguaeesgotamento sanitárionessascidadesnãoexecutamserviçosrelacionadosàdrenagemeàproteçãode cheias(peça6718623)(peça6718624)Paramelhorentendimentoseguetranscriçãointegral dasconsideraçõesapresentadas(peça6718584,p.150e152):
ASECEXP-SMAP/GS-SMAP/GS-SMF/GS-SMTC/PG-PGM,
Emrazãodasreiteradasnegativasdeautorizaçãodeingressodeservidores,na condiçãodeDiretorGeralnoperíodode2018a2020e,estandocomoDiretor Adjunto,vimosampliarasargumentaçõesealertaraesseComitêquandoàs gravesconsequênciasqueestãoseacumulandodentrodeumcenáriocom perspectivasruinscasoasdecisõesnãosemodifiquememrelaçãoaesta situação
Objetivandoanáliseverdadeiramentecríticaquantoaosserviçosfinalísticose foconosresultadosextraimosdoSistemaNacionaldeInformaçõesde SaneamentoSNIS(http://wwwsnisgovbr/),indicadorescomparativospara capitaisbrasileirasecidadesdeportesemelhanteaPortoAlegre(Belém, Brasília,Campinas,Curitiba,Goiania,Recife)parademonstraçãodosequívocos queesseComitêestacometendoumavezquedesconheceoSaneamento Básicoenãopossuinenhumprofissionalintegrantequesejaoriundodessa atividade,anexosnasplanilhas15270584e15270681
Daplanilharesumo(15270681)pode-severificar:
QuantoaoAbastecimentodeÁgua
AscidadesdeBelémeRecifepossuemdéficitsimportantedeinfraestruturade abastecimentodeágua(72,1%e89,3%decobertura),enquantoqueasdemais cidadestemindicadoressemelhantesaPortoAlegre
QuantoaoEsgotamentoSanitário
AscidadesdeBelémeRecifeestãobastanteatrasadastantoquantoàcoleta 293

ESTADODORIOGRANDEDOSUL TRIBUNALDECONTAS
DIREÇÃODECONTROLEEFISCALIZAÇÃO SERVIÇODEAUDITORIADEPORTOALEGRE

quantoaotratamentodeesgotos(Belem15,1%e2,82%,Recife43,9%e 74,69%),enquantoqueasdemaistemíndicesdecoberturadecoleta semelhantes(PortoAlegre91,4%easdemaisvariandodesde89,5%a99,9%)e índicesdetratamentoumpoucomaiores(PortoAlegre64,1%easdemais variandodesde71,18%a94,64%)
QuantoaDrenagemUrbanaeProteçãoContraCheias
SomenteoDMAEemPortoAlegreexecutaessasatividades,nasdemais cidadesooperadordeabastecimentodeáguaeesgotamentosanitárionão executaesseserviço,estandoaoencargodaPrefeituralocal Quantoàtarifaçãodosusuáriosearrecadação
AscidadesdeBrasília,Campinas,CuritibaeGoiâniapraticamtarifasque oscilamentre7,4%a32,2%maioresquePortoAlegre,(PortoAlegreR$4,54,as demaisdesdeR$4,88aR$5,87)
Quantoàestruturadepessoal,despesascomfolhadepagamentoerelaçãode economias/funcionário
EnquantooDMAEutiliza1580colaboradores(sic),ascidadesdeBrasília, Campinas,CuritibaeGoiâniapossuemquadrosvariandodesde2226a 2.465pessoas.SomenteRecife(1.386)eBelém(975)possuemquadrosde funcionáriossignificativamentemenoresquePortoAlegre.Entretanto essascidadestemindicadoresdeSaneamentobastanteinferiores.
Deoutraparte,narelaçãodequantidadedeeconomias/funcionários,a discrepânciaébastanteacentuada,emqueessascidadesapresentam indicadoresvariandoentre405,06a874,59,abaixodoDMAE(895,45)entre 2,3%e54,7%Quantoàmargemdedespesascompessoalpróprio (indicadorIN032),oDMAEseencontraigualmentebastanteenxutona medidaemqueatingeíndicede35,5%,enquantoqueBelém,Brasilia, CampinaseRecifeoscilamdesde49,3%até76,6%.Goiâniaapresenta 20,06%em2019,masnosanosanterioresesteveem52,4%e63%,portanto essedadonãoparececonfiávelSomenteCuritibatemindicadores coerentes,apresentandoem2019oíndice30,35%enosanosanteriores 31,8%e33,3%,maspossui2465funcionáriosparaosserviçosde AbastecimentodeÁguaeEsgotamentoSanitário
Sendoassim,sobváriosaspectosoenxugamentodoquadrodeservidores jáultrapassoutodososparâmetrosemcomparaçãocomoutrascidades doBrasildemesmoporte,comprovadamenteatravésdeindicadores oficiaisdoSaneamentoBásico.Ascidadesdeportesemelhantedetém entre600a800maisservidoresqueoDMAEenãopraticamatividadesde drenagemurbanaeproteçãocontracheias(noPlanodeSaneamento PMSB2015oDEPpossuía219funcionáriosaopassoqueoDMAE absorveuentre2019e2021apenas74pessoas,reduçãode145pessoas).
Soma-seaindaofatodequejáhá285servidoresemcondiçõesplenasde aposentadoriaimediata,portantoaperspectivademaisperdadecapacidadede atuaçãoecolapsogeralérealeiminente
Poroutrolado,quaisquerestudosdeConcessãodepartedoBNDESaindase 294

ESTADODORIOGRANDEDOSUL
DIREÇÃODECONTROLEEFISCALIZAÇÃO SERVIÇODEAUDITORIADEPORTOALEGRE

encontramincompletoseinsegurosparaquaisquertiposdecontratação,uma vezquecontémenormesfalhasdediagnósticoaonãocontemplaradrenagem urbana,nãocontemplarsaneamentodoArroioDiluvioenãocontemplara ConstruçãodaETAPontadoArado,portantonãoháviabilidadedeefetivação deumaConcessãoantesde18a24mesespormaisqueseaceleremos processos.
Deoutraparte,jáseadotouacontrataçãodeváriasatividadesatravésde prestadoresdeserviço,tem-serealizadoinvestimentoscontínuosemprocessos deautomação,inclusivecomcontrataçãodeaumentodeproduçãodeáguapor processomodernodeestação100%automatizadadeultrafiltração,emesmo sobessaóticahánecessidadedecontrataçãodeservidoresparafiscalizaçãoe gestãodoscontratosemfacedainstruçãoIN07/2020edaLei12827/2021Há maisdeR$400milhõeseminvestimentoscontratadosemdesenvolvimentoe istoexigeconduçãoporpartedeservidoresestatutáriosdoquadroefetivopor obrigaçãolegal
Nosúltimosanostemosconstatadoaumentodeperdasdeágua,aumentoda evasãodereceitasediminuiçãodaeficiênciadeatendimentodosserviçossem queoutrosfatoresalémdareduçãodeservidorespossamjustificaresses resultadosAssimsendo,areduçãodaforçadetrabalhojácausouprejuízos econômicoscomopodeserverificadonapublicaçãoDadosGerais (http://lproweb.procempa.com.br/pmpa/prefpoa/dmae/usudoc/dadosgerais2021web.pdf).
Dopontodevistadacapacidadefinanceiraparacontrataçãotambémháplenas condiçõesdepartedoDMAEArepercussãofinanceira13931121representa apenas0,5%daarrecadaçãodaAutarquiaMesmosomando-searepercussão financeira13923157doexpediente2110000002787-2aindanãosealcança nemmesmo1,0%daarrecadação,enquantoqueasdespesasdepessoalcom ativosestáem28%ecomdéficitdeinativosem17%Nãosetratadeatingir 2.200ou2.300funcionários,masdecontarcomcapacidadedegestãodo Saneamentoparaatendimentodapopulaçãoparaserviçosessenciais,dentreos quaisomaisessencialdetodososserviçosqueéoabastecimentodeágua
Emrazãodetudoisso,reiteramosospedidosfeitosem14054529doexpediente 2110000002787-2eem13015156destepresenteexpediente
(Grifou-se)
08/09/2021:DGemitedespachodirecionadoaoGabinetedoPrefeito,informando sobrearealizaçãodereuniãoemqueoPrefeitosolicitouoencaminhamentodoprocessopara autorizaçãodanomeaçãodosaprovadosnoscargosdeTécnicoemSaneamento(4vagas)e TécnicoemTratamentodeÁguaeEsgotos(20vagas)(peça6718584,p.158).
09/09/2021:PrefeitoemiteautorizaçãoparanomeaçõesrequeridaspeloDMAE, sendo4(quatro)TécnicosemSaneamentoe20(vinte)TécnicosemTratamentodeÁguae Esgotos(peça6718584,p.159).
15/09/2021:JuntadadeanexoscontendoasnecessidadesdeingressosnoDMAE doscargosdeTécnicoemSaneamento(4),TécnicoemTratamentodeÁguaeEsgotos(20), Engenheiro(1)eEconomista(4),bemcomoapresentadasasrespectivasjustificativas,relativas aocumprimentodemetasdoPROMETA(desempenhodoprocessodetratamentodeesgoto, manutençãodeíndicedequalidadedaáguadistribuídaemanutençãodacapacidadede 295

ESTADODORIOGRANDEDOSUL TRIBUNALDECONTAS
DIREÇÃODECONTROLEEFISCALIZAÇÃO SERVIÇODEAUDITORIADEPORTOALEGRE

bombeamentodascasasdebombaspluviais),àexecuçãodeobras(sistemadeabastecimento deáguadaPontadoArado,ampliaçãodosistemadeabastecimentoSãoJoão(peça6718584, p.162a171)enecessidadedeplanejamentoeconômicovoltadoàgestãodopatrimôniode equipamentos,àestruturaçãodasatividadescomerciaisederelacionamentocomusuários,à ampliaçãodaarrecadaçãoeàreduçãodainadimplência
Comrelaçãoaocargodeengenheirofoiapresentadacomojustificativaameta atinenteàmanutençãodacapacidadedebombeamentodascasasdebombaspluviais (PROMETA18),sendodestacadasimportantesfragilidadenaGerênciadeManutenção(GMAN) paraexecuçãodetarefasvoltadasàmanutençãoemelhoriasnasEBAPs(peça6718584,p 170):
13393-ManteraCapacidadedeBombeamentodasCasasdeBombasPluviais (PROMETA18,Meta2024=85%)
Atualmente,apenasumtécnicoestádedicadoaosassuntosdemanutençãodo sistemapluvial,aindaque,SMJ,estedeveatenderoutrasdemandasda GerenciadeManutenção
Acreditamosserplenamentepossívelmanterametade85%dedisponibilidade e até superá-la, contudoénecessáriocorrigiroatualgargalode manutenção,aoqualsedestacaaausênciadepelomenos(nomínimo), maisumEngenheirodedicadoàtarefademanutençãoemelhoriasnas estaçõesdebombeamentodopluvial.Porexemplo,osproblemascitados anteriormentepoderiamserparcialmenteatendidosporumEngenheiro Mecânicodedicadoafiscalizarserviços,elaborarcontrataçõesegerenciara manutençãomecânicadossistemasdepluvialAténovembrode2020tínhamos umEngMecânico“treinado”naSGSPCCqueestavafazendoumbomtrabalho ejátivemosatédoisEng.Mecânicosdedicadosaessatarefa,tempoemque conseguimospassarde40%paramaisde70%adisponibilidadedosistemae fazercontrataçõesqueatéhojemantémelevadoíndicededisponibilidade
OatualGestordocontratodemanutençãomecânicaacumulaatarefade Coordenadorabrangendoumaáreamaiordeserviçosemesmonão conhecendosuaexperiênciaecapacidade,diantedodesafiodosistemapluvial quesabemosserenorme,observamosquepodehaverdificuldadesemmanter osíndicesatuaisdedisponibilidade,comotemosverificadoumadificuldadeem elevaçãodoíndice.Alémdisso,seobservouqueserviçosjácontratados nãoapresentamavelocidadedeexecuçãoadequada,acredita-sequepor faltadepessoalqualificadodisponívelparafiscalizar.
(Grifou-se)
16/09/2021:SECEXP-SMAPemitedespachoencaminhandooexpedientepara continuidadedasnomeaçõesautorizadaspeloPrefeito,desdequeatendidososrequisitosdaLei deResponsabilidadeFiscal(LRF),LeiComplementarnº173/2020eorientaçãodoTCE/RS, quaissejam(peça6718584,p172e173):
a)NãoultrapassarolimitemáximodecargosdeTécnicoemSaneamentoe TécnicosemTratamentodeÁguaeEsgoto(TTAE)jáocupadosno DepartamentoMunicipaldeÁguaeEsgoto(DMAE),emdataanteriora publicaçãodaLei173/2020; 296

ESTADODORIOGRANDEDOSUL TRIBUNALDECONTAS
DIREÇÃODECONTROLEEFISCALIZAÇÃO SERVIÇODEAUDITORIADEPORTOALEGRE

b)Existênciadevacânciasnãosupridascomindicaçãonominaldareposição parapossibilitarosregistroseatendimentoaoTCE/RS;e
c)Sendousadasvacânciasdecargosdistintosaosnomeadoscomoreposição, quesejavalidadoeanexadoaesteexpedientemanifestaçãodaPME-DMAE quantoaestapossibilidade
17/09/2021:ADivisãodeInformaçõesLegaiseGerenciaisdaContadoria-Geraldo Município(CTGM/SMF)emitedespachoinformandopeladesnecessidadedeumanovaanálise derepercussãofinanceiraquantoàLRF,poisjárealizadaejuntadaaoprocessonodia 04/05/2021Areferidaanáliseconcluiupelaconformidadecomolimitedegastoscomdespesas depessoaemrelaçãoàreceitacorrentelíquida(peça6718584,p.174).
22/09/2021:C-DESENVOLVinformaqueasprovidênciasparanomeaçõesde servidoresdocargodeTécnicoemTratamentodeÁguaeEsgotosestátramitandonoprocesso 2110000000393-0e,emrelaçãoàsnomeaçõesparaocargodeTécnicoemSaneamentono processo2110000003581-6Essafoiaúltimamovimentaçãodoexpediente(peça6718584,p 180).
Diantedoexposto,emquepeseoprocessotenhasidoconcluídocomoatendimento dopleitoinicialdoDMAE,ficouevidenciadoqueaatuaçãodoCGDEPimpôsgrandes dificuldadesaoatendimentodasolicitaçãoIssoporque,mesmoquediantedeinúmeras justificativasedaprestaçãodeinformaçõessuficientespeloDepartamento,nosentidoda urgência,dosimpactosedasgravesconsequênciasdonãoatendimentodademanda,oórgão fezdemasiadase,porvezes,repetidasexigências,concluindo,injustificadamente, peloindeferimentodasolicitação,aqualsófoiobtidaapósasrazõesexpostaspelo Diretor-GeralAdjuntoearealizaçãodereuniãoentreoPrefeitoeaDiretoriaGeraldo DMAE,queculminoucomadecisãopelaautorização
•Processonº2110000002787-2
Trata-sedeprocessoinstaurado,em20/04/2021,pelaGerênciadeGestãode Pessoas(GPES),oqualtevecomoobjetoasolicitaçãodenomeaçãode04(quatro) Economistasede02(dois)EngenheirosMecânicos,tendoemvistaanecessidadedeforçade trabalhoporcontadevacânciassemreposição(peça6718586,p1a3)Comojustificativaa DiretoriadeGestãoAdministrativa(DA)referiuaassunçãopeloDMAEdascompetênciasdo DEP,nosseguintestermos:
Acontrataçãodessescargosjustifica-sediantedaautorizaçãoaoDMAEpara gerir,operar,manter,conservarerecuperarosistemaeseuscomponentes, inclusivecomrelaçãoatodasasfunçõeseseçõesdaDivisãodeObrase ProjetosdoDepartamentodeEsgotosPluviais(DEP),bemcomoexecutardireta ouindiretamenteestudos,projetos,obraseserviços,objetivandoamelhoriaeo adequadofuncionamentodosserviços,bemcomooplenoatendimentodos usuários,observadosseuslimitestécnicosefinanceiros
Nomesmosentido,em13/05/2021,opleitofoireforçadopeloDiretor-GeralAdjunto comasseguintesjustificativas(peça6718586,p4a7):
ADG-DMAE,Comojustificativaparaospedidosdenomeaçãodeengenheiros 297

ESTADODORIOGRANDEDOSUL TRIBUNALDECONTAS DIREÇÃODECONTROLEEFISCALIZAÇÃO SERVIÇODEAUDITORIADEPORTOALEGRE
mecânicoseeconomistasvimosnosmanifestar
Nomeaçãode02engenheirosmecânicos

Relembramosqueem2018,expedienteSEInº1810000003863-0,despacho 4036445,de30/05/18,encaminhamosessasolicitaçãodeingressopara engenheirosmecânicos,queresultounoConcursoPúblicodoexpedienteSEI nº180000088818-0, originário no despacho nº6545057, que recebeu autorizaçãodeingressonº139/2019(8837505)em22/11/2019porpartedo ComitêCGDEP
AsatividadesdoDMAE,estabelecidasnaLeinº2312/1961,ampliadaspelaLei Complementarnº897/2021,englobamAbastecimentodeÁgua,Esgotamento SanitárioeDrenagemUrbanaparatodapopulaçãodePortoAlegre ininterruptamente,demandandoserviçospor24horastodososdias,nãoapenas nos horários convencionais de trabalho em inúmeros equipamentos eletromecânicosnessessistemasdeprestaçãodeserviçosessenciais
OparquedeequipamentoseletromecânicosdosSistemasreferidosacimatem recebidosignificativasampliaçõespoisasinfraestruturastemaumentado continuadamente,exigindo continuamente aumento das atividades de planejamento,deprojeto,deoperaçãoedemanutenção,edasreferidas contratações,asquaissomentepodemserconduzidasporprofissionais engenheirosmecânicos
Paraexemplificar:
Quantidadedeequipamentoseletromecânicossobmanutençãonosúltimos anos:
2012:havia4237equipamentoseletromecânicos; 2013:aumentou-separa4702; 2014:ampliou-separa5562; 2015:5596; 2016:5616; 2017:5686; 2018:5758; 2019:atingiu-se6083equipamentos;
Esseaumentodaquantidadedeequipamentosécausadapelaexpansãoda cidadeepeloaumentodasautomatizações,porémexigeincrementode servidorescomcapacidadeplanejamentodaoperaçãoedasmanutençõessem oqueseproduzgrandesprejuízos;
EngenheirosMecânicosnoDMAEedatasdeingresso: Atualmentesão8servidores,tendoocorridoumaexoneração: CarlosRenatodeSouzaSilva:16/06/2015; 298


HersonVargasdaCosta:14/05/2012; RafaelSpiesLopes:19/03/2012;
LucasLorenzeSilva:13/08/2014; RogerioAlvesOliveira:22/12/2015; RicardoCaparrosGuimaraes:08/11/1984-jáestáemabonopermanência; LuizFernandoAlvesdaSilva:02/09/1991-aposentadoriaem23/09/2022; CarlosCasagrandeMaiocchi:20/08/2001-aposentadoriaem12/03/2022; Exoneração:NataldeÁvilaAntonini-exoneraçãoapedidoem15/09/2020;
Obrascomrecursosjácontratadoscujaslicitaçõesestãoemandamentopara execuçãodeobrascomaumentodoparquedeequipamentos:
-SistemaPontadoAradoEstaçãodeÁguaBruta:R$26144857,84;
-SistemaPontadoAradoEstaçãodeTratamentoeEBAT:R$113.253.873,86; -SistemaSAASãoJoão(EBATSarandi/EBATAryTarragô):R$5109558,17; -MacrodrenagemArroioAreia(EBAPSilvioBrum):R$10360734,11;
-EBAPnº06:FiscalizaçãodoTermodeCompromissonº002310254008(SEI 160000036313-1documento9776918)paraaumentodacapacidadedevazão; Emresumodosdadosacima,temostidoincrementodequantidadede equipamentos(4237unidadespara6083unidades)emaisdeR$154 milhõesemobrascontratadasqueenvolvemimplantaçãodenovos equipamentos,oquejájustificariaoingressodemais04engenheiros mecânicossomenteemrazãodasaposentadoriaseexonerações,sem considerarmosaexpansãodainfraestrutura,masemrazãodafaltadevagas para04engenheirosmecânicos,solicitamosanomeaçãode02servidores quesejustificaplenamente
Alémdissoressalte-sequeem01/05/2019oDMAEassumiuaGestãode22 EstaçõesdeBombeamentoÁguasPluviaisquefazemaproteçãodacidade contraalagamentossemterhavidoincrementodenenhumengenheiro mecânico.Sãomaisde80bombashidráulicas,seusrespectivosmotores elétricos,painéisdeacionamento,gradeamentoseoutrosdispositivose nãosedispõedeservidoresparaessagestão,umavezqueoengenheiro mecânicodoextintoDEP(servidorMichelangeloPetruzelis)seaposentou eoengenheiromecânicoqueatuavanessaatividadeeraCCCargoem Comissãotendosidoexonerado.Recentemente,porexemplo,tivemosas ocorrênciasdeoperaçãoemanutençãodaCasadeBombasdaTrincheiradaAv Cearájuntoàentradadacidadequecausaraminúmerostranstornosà população,comcongestionamentos,aumentodeconsumodecombustíveise poluição,prejuízosdiversosàcidadeeaatuaçãodoDMAEnãodispunhade técnicosespecíficos,tendoquedeslocarservidoresqueestavamatuandoem outrasunidadeseportantodeixando-asvulneráveisafalhasEsseexemploé

ESTADODORIOGRANDEDOSUL TRIBUNALDECONTAS
DIREÇÃODECONTROLEEFISCALIZAÇÃO SERVIÇODEAUDITORIADEPORTOALEGRE

apenasumdoseventosqueocorremrotineiramenteparademonstrarotamanho dosimpactoseprejuízosqueafaltadessesprofissionaisproduzComefeitoa faltadessesprofissionaisproduzumprejuízofinanceiromuitíssimomaior doqueadespesadasuanomeação
Nomeaçãode04economistas
AnecessidadedeEconomistassedáemdecorrênciadagestãodoenorme patrimôniodeequipamentosreferidosacimaquecarecemdeplanejamento econômicoquantoaosseusdesempenhoseusos,demandamdespesas altíssimasdeenergiaelétrica(atualmentedaordemdeR$85milhõesanuais), alémdanecessidadedemaiorestruturaçãodasatividadescomerciaisede relacionamentocomosusuários,necessidadedeampliaçãodaarrecadaçãoe reduçãodainadimplência
Paraexemplificar:
Inadimplênciacrescente:
2015:percentualde16,3%; 2016:18,2%; 2019:18,1%; 2020:21,7%; 2021:26,1%;
Incrementodearrecadaçãoanualpotencialpelainadimplência:R$165milhões;
ParafinsdecomparaçãoofinanciamentoparaimplantaçãodanovaEstação deTratamentodeÁguaPontadoAradoenvolveR$220milhões,portantoa reduçãodainadimplênciaparaníveisrazoáveiscusteariaessaobraemapenas 2anosdearrecadaçãosemterhavidoanecessidadedecontrataçãode financiamento
Gestãodosrecursosfinanceiros;
ODMAEtemauferidoarrecadaçõesdaordemdeR$600milhõesanuais, enquantoquecompanhiasdesaneamentoemcidadessemelhantesnoBrasil atingemdeR$800aR$850milhõesanuais,portantoháumaenormecarência detrabalhotécnicodeanálisedosperfisdeconsumo,análiseeconômicados medidores,análisedainadimplência,estudoeconômicodospotenciaisde acréscimosdeofertasdeserviços,eoutrasanálises
Alémdisto,oDMAEgerenciaumcaixafinanceirodemaisdeR$200milhões, queenvolveaplicaçõesfinanceiraseplanejamentodascontrataçõesde fornecedoreseseuspagamentos,havendoemtornode400liquidações mensaissendoprocessadascontinuamente
Gestãodoorçamento:
Talcomoagestãodosrecursosfinanceirosnasatividadesdeaplicações, liquidaçõesepagamentos,oseconomistassãonecessáriosnasatividadesde 300

ESTADODORIOGRANDEDOSUL TRIBUNALDECONTAS
DIREÇÃODECONTROLEEFISCALIZAÇÃO SERVIÇODEAUDITORIADEPORTOALEGRE

planejamentoorçamentárioerotinasdeemissãodePedidosdeLiberação(PLs), ressaltando-sequeoDMAEgerenciamaisde400contratosdefornecedores, alémdasaquisiçõesdemateriaisatravésdemaisde250pregõeseletrônicos anuais
AnálisedePerdasdeÁgua:
ODMAEnecessitaanalistasparaavaliaçãodasrepercussõeseconômicas decorrentesdasperdasdefaturamentoedasperdasfísicasdeágua
Gestãodoscontratosdefinanciamento
EstãoassinadosmaisdeR$300milhõesemcontratosdefinanciamentopara expansãodeinfraestruturasquedemandamanáliseseconômicasegestãodos contratos,paraoqueoconhecimentodematemáticafinanceiradosprofissionais Economistasénecessáriovisandoaumentodosresultados.
Emresumo,demonstramosexistirumpatrimôniogigantescodeequipamentos quecarecemdeplanejamentododesempenhoeconômicoedemandam vultosasdespesascomenergiaelétrica,edemonstramosqueasatividades comerciaisedearrecadaçãoparacombateàinadimplência,alémdasvárias atividadesdegestãofinanceira,gestãoorçamentária,gestãodecontratosde financiamentoeanálisesdeperdasdemandamumgrandelequedeaçõesque templenoretornoeconômicoparaatividadesdesaneamento.Háquese salientarqueosdesafiosdeSaneamentoregistradosnoPlanodeSaneamento doMunicípiodemandammaisdeR$6bilhõeseminvestimentos,oquerequer apoiofundamentaldasatividadesdematemáticafinanceiraegestãoporparte deEconomistas
Encaminhamosparasuaanáliseedeliberação
(Grifou-se)
Oprocessoseguiusuatramitação,comdestaqueparaasseguintesocorrências:
13/05/2021:Diretor-GeralratificadespachodoDiretor-GeralAdjuntoeencaminha expedienteparaanáliseedeliberaçãodaSecretariaExecutivadoComitêGestordeDespesasde Pessoal(SECEXP-SMAP)(peça6718586,p8)
08/06/2021:OComitêGestordeDespesasdePessoal(CGDEP)emiteas Deliberaçõesnº046/2021enº047/2021,indeferindoanomeaçãode01(um)Economistaede 01(um)EngenheiroMecânico,sendodeferidaanomeaçãodeapenas01(um)Engenheiro Mecânico,emrazãodainexistênciadevacânciasnosúltimos12(doze)meses (peça 6718586,p9a12)
09/06/2021:PrefeitomanifestaconcordânciacomaDeliberaçãonº047/2021, autorizandoanomeaçãode01(um)EngenheiroMecânico(peça6718586,p.13).
21/06/2021:DiretoriadeOperações(DO)emitedespachoqueapresentanovas argumentaçõesquantoànecessidadede02(dois)EngenheirosMecânicosparaaGerênciade ManutençãoIndustrial(GMAN)(peça6718586,p14e15):
ÀDA
ODMAEcontacomumparquecommaisde200plantasindustriais,sendouma

ESTADODORIOGRANDEDOSUL TRIBUNALDECONTAS
DIREÇÃODECONTROLEEFISCALIZAÇÃO SERVIÇODEAUDITORIADEPORTOALEGRE

partedegrandeportecomoasEstaçõesdeTratamentodeEsgotos,Estações deTratamentodeÁguaeelevatóriasEstasunidadespossuidezenasde milharesdeequipamentoseletromecânicosdetodanaturezaquesãoatendidas emparteporequipesprópriaseparteporterceirizadasParaaáreaindustrialo DMAEcontacomapenasdoisengenheirosmecânicosquesequerdãoconta dasimensasplantasdetratamentodeesgotosprincipalmentenafiscalizaçãode contratos.
Em2018foiatribuídoaoDMAEasatividadesdemanutençãodossistemasde drenagemurbanaincluindoosistemadeproteçãocontracheiasqueestava emprocessoderecuperaçãoemanutençãoatravésdecontrataçãode terceirosfiscalizadosporumaestruturabaseadaemCCs
Essaestruturafoiperdidacomatransiçãodegovernoparaafiscalizaçãodos serviçosdemanutençãoerecuperaçãodas22EstaçõesdeBombeamentode ÁguasPluviaiseos14portões
Tambémparaasáreasdebombeamentodeáguaseesgotoseemespecial tratamentodeáguacomtodosossistemasdedosagemdeprodutosquímicos algunsdeleperigososcontamosapenascomumengenheiromecânico,queé CCmistoeestáemviasdeaposentadoria
Comoprocessocrescentedeterceirizaçãodosserviçoscadavezpesaa necessidadedeprofissionaishabilitadosparaexercerasfunçõesdegestão, fiscalizaçãoesupervisãodoscontratosÉimpossívelmanterumcontratosem fiscalizaçãoadequadasobgranderiscodemediçõesimprecisasebaixa qualidadedeserviços,comprejuízosaconfiabilidadedosistema,aoerárioeao atendimentoapopulação
ConformefoidiscutidonareuniãocomoDG,areposiçãodestescargosna GMAN,quejáfoianalisadapelagerência,DOeDGcomoomínimonecessário, deveserrealizadadaformamaisrápidapossíveldadaafaltaperdaconstante deservidores,adificuldadedeatendimentodasdemandas,otempode aprendizadoeafaltadeofertadessesserviçosnomercadosejapor inexistência,qualidadedeserviçosoucustosaceitáveisComonívelderedução contínuadacapacidadedemobilizaçãoatualdaGMANpodemosembreve chegaramedidasextremasdeterqueescolherasregiõesqueserãoatendidas, comimpactodiretoapopulaçãoAGMANestáemconstantereagrupamento dasequipesparaatendimentodasdemandasemergenciais,asrotinasde manutençãopreventivativeramqueseremsuamaioriaserabandonadasoque passaagerarumafragilidadedosistema,aumentodefalhas,falhasmais graveserepercutindoemcustosmaiorespararecuperaçãodeequipamentos emaiortempoderetomadadeoperaçãoDestaformaentendemosquenãohá opçãosemprejuízoaointeressepúblico,senãoanomeaçãodosdois engenheirosmecânicosparaaGMAN
21/06/2021:ADivisãodeInformaçõesLegaiseGerenciaisdaContadoriaGeraldo Município(DILG/CTGM/SMF)emitedespachosobreanálisedocomprometimentodadespesade pessoalemfunçãodareceitacorrentelíquida,relativaànomeaçãode01(um)Engenheiro Mecânico,cujocálculoresultounopercentualde44,03%(peça6718586,p.16e17).Ato contínuo,oSecretárioMunicipaldaFazendaemitedeclaraçãodequeoimpactofinanceiroestá 302
Assinado digitalmente por: Marcelo Kipper da Silva em 14/07/25, Leandro Lobato Camargo em 14/07/25, Leandro Torres em 14/07/25, Fabio Alex Beling em 14/07/25 e outro(s). Confira a autenticidade do documento em www.tce.rs.gov.br. Identificador: PRE.FE77.2360.2A1D.FC7C.62D4.


DIREÇÃODECONTROLEEFISCALIZAÇÃO SERVIÇODEAUDITORIADEPORTOALEGRE
emconformidadecomolimitedegastoscomdespesadepessoalemrelaçãoàreceitacorrente líquida
Namesmadata,tendoemvistaqueopleitonãofoiatendidoemsuatotalidade,aDA emitedespachosolicitandoareconsideraçãodopedido,parafinsdeautorizaçãoparao chamamentode01(um)EngenheiroMecânicoe04(quatro)Economistas(peça6718586,p 18)NoreferidodespachoédestacadonovamentequeoDMAEassumiuaoperaçãodoDEP, bemcomoéapresentadainformaçãodequehaveriam298(duzentosenoventaeoito) servidoresaptosaseaposentaremaqualquertempoOpedidofoiratificadopeloDiretor-Geral (peça6718586,p19)
28/06/2021:PublicadanoDiárioOficialdoMunicípio(DOPA)aPortariadeNomeação nº1026,sendonomeado01(um)candidatoaprovadonocargodeEngenheiro(peça6718586,p. 20)
05/07/2021:DAreiteraasolicitaçãodenomeaçãode01(um)EngenheiroMecânico, considerandoavacânciade01(uma)vaganessecargo,bemcomoreiteraopleitoparaocargo deEconomista(peça6718586,p21)
02/08/2021:PublicadanoDOPA,aPortariadeNomeaçãonº1244,sendo nomeado01(um)candidatoaprovadonocargodeEngenheiro,emvirtudedocandidato nomeadopelaPortarianº1026nãotertomadopossenoprazolegal(peça6718586,p22e23)
09/08/2021:DAreiteranovamenteasolicitaçãodeautorizaçãoparachamamentode 01(um)cargodeEngenheiroMecânicoe04(quatro)Economistas(peça6718586,p24)
16/08/2021:CGDEPemiteaDeliberaçãonº067/2021,indeferindoopedidode reconsideraçãodasnomeaçõesde04(quatro)Economistas,eaDeliberaçãonº068/2021, indeferindoopedidodenomeaçãode01(um)Engenheiro(peça6718586,p.25a28).Na mesmadata,aSECEXP-SMAPencaminhaasdeliberaçõesaoDMAE(peça6718586,p29), bemcomosalientaquesejamverificadasasorientaçõescontidasnaResoluçãoCGDEP 007/2021(documento15179042noprocesso21.0.000061657-223).
25/08/2021:DOemitedespachocomaexposiçãodemotivosparaoatendimentoda solicitação(peça6718586,p30e31),cujanecessidaderemontaajaneirode202124Também éjuntadoorelatório"IntegraçãoOperacionaldosServiçosdeÁguasPluviaisaoDMAE(peça 6718586,p32a39),quefoiencaminhadocomorespostaaoquestionamentofeitopelaauditoria doTCEemabrilde2019Abaixoseguetranscriçãointegraldodespachoexarado:
ÀDAeDG
Duranteoanode2017aáreademanutençãodosistemadedrenagemestava completamentedesestruturadaemfunçãodeváriosproblemasemcontratos queforamcanceladosedasextinçãodasequipesdecampoprópriasporfalta depessoal.Ademandadeprotocolosdo156POAacumuladasuperava15mile aquantidadesdegruposmotor-bombadasestaçõesdebombeamentodeágua tratadaemfuncionamentoerasomentede42%eaindaassimcombaixa confiabilidadeForamcontratadosnovosserviçoserecompostaaequipetécnica atravésdeCCsacrescentandocincoengenheiroscivis,umengenheiro mecânicoeumdenívelmédio
Comaincorporaçãodosserviçosdemanutençãodosistemadedrenagem urbanaedosistemadeproteçãocontracheiashouvequestionamentoporparte doTCEsobrealgumimpactonegativonosserviçosdeáguaeesgotocloacalno DMAE,quejáapresentavaproblemasemfunçãodareduçãodoquadrode servidoresEmresposta,foiencaminhadoem24042019orelatório15337587 303
Assinado digitalmente por: Marcelo Kipper da Silva em 14/07/25, Leandro Lobato Camargo em 14/07/25, Leandro Torres em 14/07/25, Fabio Alex Beling em 14/07/25 e outro(s). Confira a autenticidade do documento em www.tce.rs.gov.br. Identificador: PRE.FE77.2360.2A1D.FC7C.62D4.

ESTADODORIOGRANDEDOSUL
DIREÇÃODECONTROLEEFISCALIZAÇÃO SERVIÇODEAUDITORIADEPORTOALEGRE

"IntegraçãoOperacionaldosServiçosdeÁguasPluviaisaoDMAE"como compromissodequeaquantidadedeservidoresqueseriamcedidosaoDMAE juntamentecomosCCatenderiamademandadeserviçossemcomprometero quadrodoDMAEcomoutrasatividades
Entretantoaofinalde2020einíciode2021ocorreuaexoneraçãosem reposiçãodoscincoengenheiroscivis,umengenheiromecânicoeumdenível médioqueatuavamnoauxíliodafiscalizaçãodeserviçosdecampo,gestãode contratos,elaboraçãodeprojetosbásicosparacontrataçãodeserviços, orçamentoeoutrasatividades,sendonecessárioqueestastarefasfossem assumidasdeformaprecáriapelosservidoresqueatuavamcomáguaeesgoto cloacal
Especificamentenocasodoengenheiromecânico,queatuavanagestãodos contratosdemanutençãodeEstaçõesdeBombeamentodeÁguasPluviais (EBATs)edosportõesdocaisquerecuperaramtodososportõese elevarama90%ofuncionamentodasestações,aexoneraçãodomesmo semreposiçãodeixoudescobertoaefetivafiscalizaçãodessesserviços quesãopermanentesparamanteroíndicededesempenhodosistema
Asatividadesdeprojeto,fiscalização,supervisãodeserviçosdemanutenção mecânicadasEBATsedoportõesdocaissãoatribuiçõesexclusivasde EngenheiroMecânicoconformeoArt.12daResoluçãonº218,de29dejunho de1973eLeiFederal5194de24dedezembrode1966,sendoquearealização dessasatividadesporoutramodalidadedeengenhariaouqualquerprofissional nãohabilitadocaracterizaoexercícioilegaldaprofissãodeengenheiro mecânico
Odespacho12903620doprocesso2110000000487-2jásolicitavae21de janeirode2021areposiçãodoprofissional
Solicitamosporessesmotivosanomeaçãodeumengenheiromecânicoparaa atividadedescrita
01/09/2021:DiretoriaGeral(DG)encaminhaàSECEXP-SMAPparaanálisee manifestação,tendoemvistaodespachoemitidopelaDO(peça6718586,p40)
08/09/2021:DGemitedespachodirecionadoaoGabinetedoPrefeito,informando sobrearealizaçãodereuniãoemqueoPrefeitosolicitouoencaminhamentodoprocessopara autorizaçãodanomeaçãodosaprovadosnoscargosdeEngenheiroMecânico(1vaga)e Economista(4vagas)(peça6718586,p41)
09/09/2021:PrefeitoemiteautorizaçãoparanomeaçõesrequeridaspeloDMAE(peça 6718586,p42)
15/09/2021:EmatendimentoàsolicitaçãodaSECEXP-SMAP,aGPESapresenta despachocominformaçõessobreasvacânciasocorridasnocargodeEconomista,noperíodode 1997a2018(totalde5vacâncias),bemcomoinformaonúmerodeservidoreseconomistas existentesnoDMAE,noperíodode1995a2019(totalde5economistasem1995quepassou para3economistasem2021),enúmerodevagasatualmenteexistentes(4vagas)(peça 6718586,p43e44)
NamesmadataoexpedienteéremetidopeloDiretor-GeralàSECEXP-SMAP,sendo referidoqueemreuniãopresencialrealizadacomoPrefeito,restouacordadooatendimentodo pleito,"tendoemvistaavisãodefuturoparaoDMAE"(peça6718586,p45)

ESTADODORIOGRANDEDOSUL TRIBUNALDECONTAS
DIREÇÃODECONTROLEEFISCALIZAÇÃO SERVIÇODEAUDITORIADEPORTOALEGRE

17/09/2021:SECEXP-SMAPemitedespachosugerindoquenãosejaultrapassadoo limitemáximodecargosjáocupadosemdataanterioraodapublicaçãodaLeiComplementarnº 173/2020,bemcomoquesejamindicadasnominalmenteasvacânciasnãosupridas,concluindo pelasugestãodequeparaocargodeEconomista,anomeaçãoselimitea02(duas)vagas (peça6718586,p46e47)
23/09/2021:AGPESemitedespachosolicitandoaemissãodeparecerpela ProcuradoriaGeraldoMunicípio(PGM)quantoàpossibilidadedenomeaçãode04(quatro) Economistas,ematendimentoasugestãodaCoordenaçãodeDesenvolvimento(peça6718586, p48e49)
27/09/2021:PublicadanoDOPAaPortariadeNomeaçãonº1540,sendonomeado 01(um)candidatoaprovadonocargodeEngenheiro(peça6718586,p50)
04/10/2021:ProcuradoriaMunicipalEspecializadaAutárquicaDMAEdaPGM(PMEDMAE)emiteaNotaTécnicanº24/2021(peça6718586,p51e52),queconcluiupela inviabilidadedanomeaçãodeservidores,tendoemvistaoentendimentoassentadonaNota TécnicadaProcuradoriaSetorialcomatuaçãonamatériadepessoal(documento15705195do ProcessoSEI210000094594-0),nosentidodenãoseremaptasaprovimento,pornãose trataremdevacâncias,"asvagasexistentesdecargosjamaisprovidos".Oparecertambém ressaltaapossibilidadedasnomeaçõesrestantesocorremem2022,tendoemvistaquea vedaçãolegaldaLeiComplementarnº173/2020terminaem31/12/2021
07/10/2021:PublicadanoDOPAaPortariadeNomeaçãonº1578,sendonomeados 02(dois)candidatosaprovadosnocargodeEconomista(peça6718586,p53)
19/11/2021:Considerandoavacânciaporaposentadoriade01(um)servidordo cargodeEngenheiroMecânico,Diretor-Geralencaminhasolicitaçãoparaautorizaçãopelo GabinetedoPrefeito,sendodestacadaaimportânciadareposiçãodocargo(peça6718586,p 54).
26/11/2021:ExpedienteéencaminhadopeloGabinetedePrefeitoàSecretaria ExecutivadeDespesadePessoal(SEDPES-SMAP)(peça6718586,p.55).
30/11/2021:SEDPES-SMAPemiteoParecernº001/2021,queconcluipornãohaver óbiceanomeação,desdequeatendidasasrecomendaçõesprocessuais(repercussãofinanceira abaixodeR$6333,00)eprevidenciárias(garantiadenãoultrapassarotetodoINSS,enquanto nãoatendidasasquestõesdeprevidênciacomplementar)(peça6718586,p56e57)
19/01/2022:C-DESENVOLVencaminhaoexpedienteàGPESparaandamentodo pedidodenomeaçãode02(dois)servidoresdocargodeEconomistaereiteraçãodopedidode nomeaçãode01(um)servidordocargodeEngenheiroMecânico(peça6718586,p58)
08/02/2022:ApóstramitarnaGPESenaDA(peça6718586,p59e60),oDiretorGeralmanifestaconcordânciacomopleitoeencaminhaaoGabinetedoSecretáriodaSMAP (peça6718586,p.61).
09/02/2022:ExpedienteéencaminhadoàSEDPES-SMAP(peça6718586,p62)
25/03/2022:SEDPES-SMAPemiteaDeliberaçãonº006/2022(peça6718586,p.63a 65),queconcluipornãohaveróbicenanomeaçãode02(dois)Economistase01(um) EngenheiroMecânicoComrelaçãoàsrecomendaçõesanteriormenteapresentadasnoParecer nº001/2021foiressaltadaaausênciadeimpedimentolegalnacontinuidadedasnomeaçõese queolimitadorrelativoacontribuiçãoprevidenciária,atéolimiteestabelecidodotetodoINSS, seráefetuadoapenasapósacontrataçãoehomologaçãojuntoaoPREVICdaempresapara realizaçãodosserviçosdeprevidênciacomplementar,estandoasnomeaçõessujeitasaoregime atéentãoestabelecidoparatodososservidoresmunicipais
305
Assinado digitalmente por: Marcelo Kipper da Silva em 14/07/25, Leandro Lobato Camargo em 14/07/25, Leandro Torres em 14/07/25, Fabio Alex Beling em 14/07/25 e outro(s). Confira a autenticidade do documento em www.tce.rs.gov.br. Identificador: PRE.FE77.2360.2A1D.FC7C.62D4.

ESTADODORIOGRANDEDOSUL TRIBUNALDECONTAS DIREÇÃODECONTROLEEFISCALIZAÇÃO SERVIÇODEAUDITORIADEPORTOALEGRE

28/03/2022:PrefeitoemitedespachohomologandooParecernº006/2022, remetendooexpedienteparaprosseguimentodasnomeaçõesrequeridas(peça6718586,p66)
29/03/2022:EquipedeIngressodaSMAPinformaquenãohámaiscandidatos habilitadosparaocargodeEconomista(ConcursoPúblico621)(peça6718586,p.67).
31/03/2022:PublicadanoDOPAaPortariadeNomeaçãonº633,sendonomeado01 (um)candidatoaprovadonocargodeEngenheiro(peça6718586,p.68).
20/04/2022:PublicadanoDOPA,aPortariadeNomeaçãonº712,sendonomeado01 (um)candidatoaprovadonocargodeEngenheiro,emvirtudedadesistênciaformaldocandidato nomeadopelaPortarianº633(peça6718586,p69e70)
13/10/2022:GPESencaminhaàDAsolicitaçãodeingressode02(dois)Engenheiros Mecânicos,tendoemvistaavacânciadecargosporaposentadoriaeporexoneraçãoapedido deservidorrecentementenomeadopelaPortarianº712(peça6718586,p71e72)
NamesmadataaDAencaminhaasolicitaçãoàDG(peça6718586,p.73).
14/10/2022:DGencaminhaexpedienteparaanáliseedeliberaçãopelaSEDPESSMAP(peça6718586,p.74).
31/10/2022:OComitêMunicipalparaGestãodeDespesadePessoal(CMDP)emite aDeliberaçãonº059/2022,queconcluipelodeferimentodanomeaçãode01(um)Engenheiro Mecânicoparasubstituiçãodavacânciaporexoneraçãoepeloindeferimentodopedidode nomeaçãodasegundavaga,ocorridaporvacânciaporaposentadoria,tendoevistaqueocorreu hámaisde12meses(peça6718586,p75e76)
04/11/2022:DAemitedespachoreiterandoanecessidadedochamamentode01 (um)EngenheiroMecânico,negadopelaDeliberaçãonº059/2022Odespachofoihomologado peloDiretor-GeraleencaminhadoàSEDPES-SMAP(peça6718586,p.77e78).
08/11/2022:PublicadanoDOPAaPortariadeNomeaçãonº2205,sendonomeado 01(um)candidatoaprovadonocargodeEngenheiro(peça6718586,p.79).
16/11/2022:PublicadanoDOPA,aPortariadeNomeaçãonº2224,sendo nomeado01(um)candidatoaprovadonocargodeEngenheiro,emvirtudedadesistênciaformal docandidatonomeadopelaPortarianº2205(peça6718586,p80e81)
13/12/2022:CoordenaçãodeRelaçõesdeTrabalhoemitedespachoqueinformaque servidorentrouemexercícioem12/12/2022(peça6718586,p.82).
29/12/2022:DAreiteraàSEDPES-SMAPasolicitaçãodechamamentodemais01 (um)EngenheiroMecânico(peça6718586,p.83).
17/02/2023:CMDPemiteaDeliberaçãonº036/2023,queconcluipelaaprovaçãoda nomeaçãode01(um)EngenheiroMecânico(peça6718586,p84e85)
22/02/2023:DAencaminhaoexpedienteparanomeaçãonaDiretoriadeTratamento, comlotaçãonaGMAN(peça6718586,p86)
27/02/2023:PublicadanoDOPAaPortariadeNomeaçãonº442,sendonomeado01 (um)candidatoaprovadonocargodeEngenheiro(peça6718586,p87)
21/03/2023:PublicadanoDOPA,aPortariadeNomeaçãonº573,sendonomeado01 (um)candidatoaprovadonocargodeEngenheiro,emvirtudedocandidatonomeadopela Portarianº442nãotertomadopossenoprazolegal(peça6718586,p88)
30/03/2023:EmitidaaPortariadeNomeaçãonº711,parafinsdenomeaçãode01 (um)candidatoaprovadonocargodeEngenheiro,emvirtudedadesistênciaformaldocandidato nomeadopelaPortarianº573(peça6718586,p.89e90).
08/05/2023:PublicadanoDOPA,aPortariadeNomeaçãonº1114,sendo 306

ESTADODORIOGRANDEDOSUL TRIBUNALDECONTAS
DIREÇÃODECONTROLEEFISCALIZAÇÃO SERVIÇODEAUDITORIADEPORTOALEGRE

nomeado01(um)candidatoaprovadonocargodeEngenheiro,emvirtudedadesistênciaformal docandidatonomeadopelaPortarianº711(peça6718586,p91)
29/05/2023:PublicadanoDOPA,aPortariadeNomeaçãonº1391,sendo nomeado01(um)candidatoaprovadonocargodeEngenheiro,emvirtudedocandidato nomeadopelaPortarianº1114nãotertomadopossenoprazolegal(peça6718586,p92e93)
31/05/2023:CoordenaçãodeRelaçõesdeTrabalhoemitedespachoconcluindoo expediente,tendoemvistaoingressodoservidor(peça6718586,p94)
Diantedoexposto,emquepeseopleitodoDMAEtenhasidoautorizadopelo Prefeito,verificou-sequeoórgãonãoconseguiuefetivarplenamenteasnomeações demandadasIssoporqueoDepartamentojamaispreencheuonúmerototaldecargosde Economistasdoquadrogeral(duasvagasnuncaforamprovidas),situaçãoqueimpediua realizaçãodessasnomeaçõesnoexercíciode2021,emrazãodavedaçãolegalestabelecida pelaLeiComplementarnº173/2020Ademais,noexercíciode2022,quandodotérminoda vigênciadareferidaleiedapossibilidadedeefetivarasnomeações,nãoexistiammais candidatoshabilitadosparaochamamento(ConcursoPúblico621)
Noquedizrespeitoàtramitaçãodoexpediente,ficouevidenciadoqueaatuaçãodo CGDEPimpôsdificuldadesaoatendimentodasolicitação,ignorandoasinúmerasjustificativase informaçõestrazidaspeloDMAE,nosentidodaimportânciaerelevânciadareposiçãodos cargosdeengenheirosmecânicos25,necessáriosdiantedoaumentodeequipamentos eletromecânicossobmanutençãoetambémdaassunção,peloDepartamento,dascompetências doextintoDEP,relativasàdrenagemurbanaeaosistemadeproteçãocontracheias
Ademais,paramelhorilustrarosprejuízosdafaltadereposiçãodeprofissionaisdo cargodeEngenheiroMecânicoedafaltaderazoabilidadeedemotivaçãodasdecisõesdo CGDEP/CMDP,seguetranscriçãodedespacho,emitidoem21/01/2021,pelogestorresponsável pelaGMAN,constantedoprocesso21.10.000000487-2(peça6718617,p.5):
ÀDO
OEng°JocemarSilvaeraresponsávelpelagestãoefiscalizaçãodocontratode manutençãodeEbap´s(Estaçõesdebombeamentodeáguaspluviais),contrato n°001.000337.17.0.00000,alémdasupervisãoeorientaçãodetodasas atividadesdemanutençãomecânicarealizadasnasEbap´s,quecompõemo sistemadeproteçãocontracheiasdomunicípiodePortoAlegreEntraas atividadesqueestavamsendorealizadas,encontram-sediversasmelhoriasnas referidasestações,taiscomosubstituiçãodemotoreselétricospormotores novos,instalaçãodebombasreformadasecomportasdedescarga
Ainda,temosacontratação2010000006707-0,queprevêasubstituiçãode41 comportasdegravidadenasestaçõesdebombeamentopluvial,umserviço altamenteespecializadocomduraçãoestimadade10mesesequenecessitará defiscalizaçãoconstanteporpartedoDMAE,comvisitasconstantesediárias aoslocaisdeinstalaçãoOEng°Jocemarseriatambémofiscaldestecontrato CabesalientarquequandoosserviçosdoantigoDEP(departamentodeesgotos pluviais)foramincorporadospeloDMAE,jáconstavaemsuaestruturaum EngenheiroMecânico(Eng°ThierriMoraes)responsávelpelasatividades descritasacimaOEng°Jocemarfoitreinadopeloseuantecessorepossuía conhecimentosespecíficosdasatividadesdemanutençãoedaestruturadas

ESTADODORIOGRANDEDOSUL TRIBUNALDECONTAS
DIREÇÃODECONTROLEEFISCALIZAÇÃO SERVIÇODEAUDITORIADEPORTOALEGRE

Ebaps,quediferemmuitodasestaçõesdebombeamentodeáguaeesgotosdo DMAE,tantopelasuaestruturafísica,sistemadefuncionamentoetipode bombasutilizadas
Destaforma,comasaídadoEng°Jocemaresemadevidareposiçãoem curtoespaçodetempo,haveráimpactossignificativosnamanutençãodo sistemadeproteçãocontracheias,compossibilidadedesuspensãode contratos, cancelamento de novas contratações e investimentos necessários,comimpactodiretonacapacidadedebombeamentodas estaçõesemcasosdegrandeschuvasealagamentos.
Omesmovaleparaoscargosdeeconomistas,cujanecessidadefoijustificadapelo cenáriodeinadimplênciacrescenteaolongodosúltimosanosedacorrespondenteoportunidade demelhoriasrelacionadasaoincrementodearrecadação,aoplanejamentoeavaliação econômicadagestãopatrimonial,financeiraeorçamentária
Noponto,oportunosalientarque,asDeliberaçõesnº046/2021,nº047/2021(peça 6718586,p9a12),nº067/2021(peça6718586,p25e26)enº059/2022(peça6718586,p 75e76),aoindeferiremospedidosdenomeaçõesdeeconomistasedeengenheirosmecânicos, emrazãodainexistênciadevacânciasnosúltimos12(doze)mesesedaLeiComplementar Federalnº173/2020,ignoraramaorientaçãojurídicaemitidapelaPGM(InformaçãoPMS-01nº 7/2020(peça6718641,p.26a33)),emitidaem24/07/2020,queconcluiupelapossibilidadede realizaçãodeconcursospúblicosenomeaçõesdeservidoresefetivosparafinsdereposiçãode vacânciasocorridasaqualquertempo,entendimentoposteriormenteconfirmadoemconsulta realizadajuntoaesteTCE-RS(peça6718616,p.28a31).
Assim,verificaram-seirregularidadesquantoàmotivaçãodosatosdecisórios emitidospeloCGDEP/CMDP,comevidentesprejuízosàtempestividadedoatendimentodas demandasdoDMAE,asquaissóforamatendidasemrazãodaautorizaçãodiretapeloPrefeito Municipal(oatendimentoplenodasolicitaçãode2engenheirosmecânicossófoiautorizadoem 09/09/2021,4mesesapósasolicitaçãoencaminhadaaoCGDEP/CMDP)Talsituaçãorevelaa supremaciadofatorpolíticodasautorizaçõesdasdemandasdepessoaldoDMAEeo caráterburocráticoedispensáveldocomitêcomoinstânciaautorizativaemitigadorada autonomiaadministrativadoDepartamento
•Processonº21.10.000003292-2
Trata-sedeprocessoinstaurado,em10/05/2021,pelaGerênciadeDistribuiçãoe Condução(GDCO)daDiretoriadeOperações26,oqualtevecomoobjetoexporasituaçãode faltadepessoalrelativaaoquadrofuncionaldaCoordenaçãodeOperaçãodeRedes,sendo ressaltadooriscodecolapsoporcontadaprevisãodenovasvacânciaspor aposentadoriaseaperdadeconhecimentosobreofuncionamentodosistemaesuas nuances.Abaixo,seguetranscriçãodorelatoregistrado(peça6718587,p1e2):
ÀDO,
Emborajátenhamossolicitadoareposiçãodoquadrofuncionalporoutros processosSEIeemailsvenhoatravésdestememanifestarcomrelaçãoao quadrofuncionaldaC-OPREDESqueseencontracomocontingentede servidoresextremamentebaixo 308

ESTADODORIOGRANDEDOSUL TRIBUNALDECONTAS
DIREÇÃODECONTROLEEFISCALIZAÇÃO SERVIÇODEAUDITORIADEPORTOALEGRE

AC-OPREDESrealizalevantamentodepressõesvisandoidentificaras condiçõesdossistemasdedistribuiçãodeaguaeidentificaçãodevazamentos nãoaparentes,atendimentosnoturnosemergenciais,inclusivedesinalização, verificaçãodelimitesdesistemas,nasparadasoperacionaisidentificaasáreas queficarãodesabastecidasepelamanobraderedesvisandopossibilitaras manutençõesSalientamosquenorompimentodeadutorasaceleridadedas açõesmitigaosprejuízoseriscosaintegridadedaspropriedadesepopulação
Noorganogramaatualacoordenaçãofoiprojetadaparatrabalharcom7 equipes,sendode4servidoresporequipe,totalizando28servidoresque deveriamcomporasequipesdecampoDestas7equipes,2trabalhamem turnosnoturnos,vistoquecabeaestacoordenaçãorealizaroprimeiro atendimentoaosvazamentosnoturnosdeadutoraseredesdemaiordiâmetro, inclusivesinalizandoolocalquandonecessárioDas5equipes,1trabalhaem horáriodiferenciado,visandorealizarumainterfacecomaequipedoturno noturno
SalientamosqueamanobradegrandesRGe/ouválvulasdemandamgrandes esforçosfísicos,são70,80voltascomachavedemanobrautilizando-seo esforçocoletivodaequipe(colocamoscanosnasextremidadesdachaveeos servidoresfazemoesforçoemconjunto)bemcomoaexecuçãodemanobrasde redemaislocalizadasexigemumnumeromaiordeRGaseremmanobrados
Atualmenteacoordenaçãocontacom17servidoresdecampoqueestão distribuídosdestaforma:6servidoresnasequipesdanoitetrabalhandoem turnose11servidoresdistribuídosnasequipesdodia,nestemomento trabalhandodeformaprecáriaemturnosPortanto,estamoscom5servidores emumturnodiurnoeoutros6emoutroturnodiurnoIstoformaequipesde2 servidores,sendoinsuficienteparaaaberturaoufechamentodeválvulasou registrosdemaiorporteLembramosqueoprevistoeram4servidorespor equipedadooesforçoexigido
Aconsequênciadestasituaçãosãoáreasmaioresmanobradas,utilizaçãodeum numeromenorderegistros,eanecessidadedeseaglutinarasequipesvisando arealizaçãodefechosmaioresecomistodemorandomaistempoaaguaa parareconsequentementeumamaiorperdadeáguaefaturamentoInclusive colocandoemriscoaspropriedadesepessoasqueficamamercêdestes volumesTambémconsequentementeaspesquisasdevazamentossãomais demoradasaseremrealizadas,aumentandoassimodesperdíciodeagua tratadaeconsequentementedevalores
Porémasituaçãoquejáestabemgraveficarámaisgraveainda,nos colocandoemriscodecolapso,poisnopróximoanode2022teremos5 servidoresquedeverãosolicitaraposentadoria,veranexonoprocesso.
Alémdafaltadeservidoresparaatenderasdemandasaindatemosaquestão daperdadoconhecimento Contrariamenteaopensamentodealguns administradoresatuaissalientamosquenestaatividadeoconhecimentotácito éfundamentalJáverificamosemalgumasáreasqueafaltadosservidores maisexperientes,semadevidareposiçãoemtempohábil,trouxeum desconhecimentodaformacomoosistemasecomportaesuasnuances.A digitalizaçãodoscadastroseaimplantaçãodesoftwaresauxiliam,masnão substituemesteconhecimentodecampodevidoaimprecisãodosregistrose 309


DIREÇÃODECONTROLEEFISCALIZAÇÃO SERVIÇODEAUDITORIADEPORTOALEGRE
dossistemasLembramosquelevamosde2a3anos,pelomenos,para realizarmosumaformaçãobásicanestaáreaSãodetalhespráticosquese aprendenodiaadiaJustamenteporestacaracterísticaestesserviçosnãose prestamcontrataçãopormotivosóbviosanaturezadarelaçãodestecaminho
Destaformasolicitamosareposiçãodoquadrodeservidoresdestacoordenação aomenos,mesmoquedeformaparcial,visandoevitarumcolapsonas atividadesoperacionaisdoDepartamento
OexpedientefoiremetidoparaciênciadaDiretoriaGeral(DG)edaDiretoriade GestãoAdministrativa(DA)(peça6718587,p4e5)Emrespostaaoquestionamentofeitopela DA,aDOratificouainformaçãorelativaàdemandadeservidoresnecessários,constanteem despachoeplanilhajuntadosaoprocesso2110000003999-4,queremetemànecessidadede 48servidoresparaaGerênciadeManutençãoIndustrial(GMAN)e51paraaGDCO(peça 6718587,p.7)(peça6718625,p.5e9).
Oprocessoseguiusuatramitação,registrando-seasseguintesocorrências:
17/06/2021:Apósarealizaçãodereunião,aDAsolicitaàGDCOaapresentaçãode informaçãoatualizadadanecessidadedecargosequantidadesdeservidores(peça6718587,p 10)
18/06/2021:AGDCOjuntaplanilhadanecessidademínimaeidealdecargos27,bem comoapresentaasseguintesinformações(peça6718587,p11e12):
ÀDO,
Conformeosolicitadoestamosapresentandonovamenteasnecessidadesde reposiçãofuncionalnaC-OPREDESSalientamosqueháurgênciadevidoa [sic]expectativadeaposentadoriasem2022equenestemomentojá estamosenfrentandodificuldadesparaatenderasdemandasoquepode acarretaremriscodeprejuízospatrimoniaisedaintegridadefísicada populaçãodeportoAlegredevidoaotempodereaçãodeatendimentoa crises.
AtualmenteasequipessãoformadasporservidoresdoscargosdeInstalador Hidrossanitário,OperárioespecializadoeOperárioPossivelmente,sehouver tempohábilparaacriaçãodasvagas,oidealseriasubstituirmosestescargos pelodeAgentedeSaneamentoNatabela14500994apresentamosdeforma claraanecessidademínimaeaidealSalientamosqueanecessidademínima nosremeteaolimitedacapacidadedeatendimentodefato,gerando descompassosnomomentodefériaseafastamentoslegaisDestaforma preconizamosatenderasolicitaçãodoquantitativoideal,aqualatendeo planejadonaconstituiçãodesteorganogramavigentenoDMAE
Aquantidademínimafoipensadaemtermosadisposiçãonastrêsequipes, duasquecorremturnosde12por36ànoiteeaquefazaligaçãodasdiurnas comoturnodanoite,com4servidores,poisnãopodemcontarcomoauxiliode outrasequipesemdeterminadosmomentos.eas4diurnascom3servidores.
Reforçamosquedadaasituaçãolimítrofequenosencontramosseacriaçãode vagasparaocargodeAgentedeSaneamentoformorosa,asvagasdevemser preenchidaspelosdecargoInstaladorHidrossanitário
SalientamosqueatabelaanexaconsideratodososservidoresdaCoordenação, 310

ESTADODORIOGRANDEDOSUL TRIBUNALDECONTAS
DIREÇÃODECONTROLEEFISCALIZAÇÃO SERVIÇODEAUDITORIADEPORTOALEGRE
porémnãoháanecessidadederecomposiçãonaparteinterna Noscolocamosadisposiçãoparaesclarecimentos

(Grifou-se)
21/06/2021:DespachoemitidopelaDOencaminhaàDAasinformaçõesdaGDCOe acrescentaanecessidadede7(sete)cargosdeTécnicosemSaneamentoparaatendimentodas áreasdeadutoraseperdas(peça6718587,p13)
Namesmadata,oprocessotramitacomacientificaçãodaDAeéencaminhadoà GerênciadeGestãodePessoas(GPES)queporfimremeteàCoordenaçãode DesenvolvimentoEssassãoasúltimasmovimentaçõesdoprocesso(peça6718587,p14e 15).
EmconsultaàlistadeandamentosdoprocessoSEI,verifica-sequeoprocessofoi concluídonaunidadeC-SELEÇÃOem21/10/202128,nãohavendoregistrodoencaminhamento doexpedienteparaautorizaçãodademandapelaadministraçãocentralizada,demodoqueasua tramitaçãoocorreuexclusivamentenoâmbitointernodoDMAE
Posteriormente,houveaautorizaçãoparacontrataçãotemporáriadoscargosde TécnicoIndustrial,MontadorEletromecânico,OperadordeMáquinasEspeciais,Fresadore SoldadorIndustrial,pormeiodasLeisMunicipaisnº13032/2022enº13561/2023(videtópico deanálisedoprocesso2110000004664-8);edoscargosdeAgentedeSaneamento,Técnico deSaneamentoeOperadordeSubestação,pormeiodaLeiMunicipalnº13.345/2022(vide tópicodeanálisedoprocesso2210000007070-6)ReferenteaoscargosdeEngenheiro Mecânicoaautorizaçãoocorreunoexpediente2110000002787-2
Contudo,caberessaltarquealémdasvagasdessascontrataçõestemporáriasnão teremsidopreenchidasporcompletoetereminiciadoapenasapartirdejulhode2022,os quantitativosautorizadospelasLeisnº13.032/2022enº13.561/2023foraminferioresaos quantitativosdecargosinformadoscomonecessáriopelaDO(peça6718625,p5e9)
•Processonº22.10.000011658-7
Trata-sedeprocessoinstaurado,em30/12/2022,pelaGerênciadeGestãode Pessoas(GPES),oqualtevecomoobjeto,inicialmente,asolicitaçãodeingressode02(dois) Engenheiros Civis para desempenhar as atividades de execução, fiscalização e acompanhamentodeobraseserviçosdeengenharia(peça6718545,p.1).Namesmadata,a solicitaçãofoiautorizadaeencaminhadapelaDiretoriaGeral(DG)àSecretariaExecutivade DespesasdePessoal(SEDPES)(peça6718545,p2e3),quemanifestou-se,em15/02/2023, peladevoluçãodoexpedienteparaatendimentodasexigênciasconstantesnaResolução 001/2023CMDP(peça6718545,p4)
Oprocessoseguiusuatramitação,comdestaqueparaasseguintesocorrências relacionadasaoDMAE:
17/02/2023:ACoordenaçãodeRelaçõesdeTrabalhoemitedespachocoma solicitaçãode03(três)EngenheirosCivis,sendoapresentadasnovamenteasatividadesaserem desempenhadaspelosnomeados(execução,fiscalizaçãoeacompanhamentodeobrase serviçosdeengenharia),bemcomoafonteorçamentáriaeajustificativafundamentadado pedido,baseadanoaumentosignificativodedemandas,emespecialcomainclusãodas atividadesdedrenagemurbanaenalimitaçãodoquadrodeservidoresdentetoresdo 311

ESTADODORIOGRANDEDOSUL TRIBUNALDECONTAS
DIREÇÃODECONTROLEEFISCALIZAÇÃO SERVIÇODEAUDITORIADEPORTOALEGRE

cargodeEngenheiro,oqualnãoteriafolgas,fazendocomquetodavacâncianecessitede imediatareposição(peça6718545,p5e6)
NamesmadataopedidoéhomologadopelaDGeencaminhadoparaprovidências, sendoenviadoàSEDPES(peça6718545,p7e8)
25/05/2023:GPESencaminhaàDGnovasolicitaçãode03(três)vagasde Engenheiro,sendo02(dois)EngenheirosCivise01(um)EngenheiroQuímico,sobasmesmas justificativasanteriormenteapresentadas(peça6718545,p9e10)
NamesmadataoexpedienteéremetidopelaDGaoGabinetedoPrefeito(peça 6718545,p11)
12/07/2023:GPESencaminhaàDGnovasolicitaçãode05(cinco)Engenheiros, sendo04(quatro)EngenheirosCivise01(um)EngenheiroQuímico,sobasmesmas justificativasanteriormenteapresentadas(peça6718545,p12e13)
NamesmadataoexpedienteéremetidopelaDGaoGabinetedoPrefeitoeà SEDPES-SMAP(peça6718545,p14)
19/07/2023:OComitêMunicipalparaGestãodeDespesasdePessoal(CMDP)emite aDeliberaçãon°104/2023,deferindoanomeaçãode03(três)Engenheiros,entreasáreas CivileQuímico(peça6718545,p.15a17).
20/07/2023:PublicadanoDiárioOficial(DOPA)asPortariasdeNomeaçãonº1955e nº1956,comanomeaçãode02(dois)candidatosaprovadosnocargodeEngenheiroCivile01 (uma)candidataaprovadanocargodeEngenheiroQuímico(peça6718545,p18e19)
21/07/2023:DiretorAdjuntodoDMAEemitedespachoreiterandoopedidode nomeaçãodemais02(dois)engenheiroscivis,talcomoencaminhadopelaGPESepelaDG, sendoapresentadosmaisargumentosnosentidodanecessidadedoórgãoparacumpriros investimentospúblicoscontratadoseampliarasentregasdeserviçosàpopulação,inverbis (peça6718545,p.20e21):
ADG-DMAE,reiterandoopedidodenomeaçãodemais2engenheiroscivis,tal comoencaminhadopelaGerênciadeGestãodePessoasem24384135epela DireçãoGeralem24413605,vimosapresentarmaisdemonstraçõesdas necessidadesdoDMAEparacumprirosinvestimentospúblicosquejáestão contratadoseampliarasentregasdeserviçosparaapopulação Quantoaosinvestimentoscontratadosemandamento,apenasdaquelesde maiorvalorpodemosreferir:
-SAAPontadoArado:conformerelatórioresumodeandamento(24552620)se tratamdeinvestimentosparaampliaçãodoabastecimentodeáguadeR$244 milhões,queestáemandamentoatravésde9contratos(7contratosde ExecuçãodeObras,1contratoparaTrabalhoTécnico-Sociale1contratopara ApoioaoGerenciamento),játendosidoaplicadosmaisdeR$94milhões, portantoqueaindarestamR$150milhõesparaseremrealizados;
-SAASãoJoão:conformecontratocomBRDE,setratamdeinvestimentosde R$87milhões,comsituaçãoatualdeandamentoconformerelatórioresumode empreendimento(24552596)aindacomapenas44%deexecução,portanto restandoseremaplicadosmaisdeR$45milhões;
-MacrodrenagemBaciaArroioAreia:setratamde27obrascominvestimentos 312

ESTADODORIOGRANDEDOSUL TRIBUNALDECONTAS
DIREÇÃODECONTROLEEFISCALIZAÇÃO SERVIÇODEAUDITORIADEPORTOALEGRE

demaisdeR$107milhões,queconformerelatórioresumodoempreendimento (24552647)estaemandamentocomexecuçãoacumuladade42% correspondentesa10obrasconcluídaseduasobrasemandamento,portanto restandoaindaseremaplicadosmaisdeR$60milhõesem15outrasobras;
-ServiçosTécnicosEspecializadosparaManutençõesPreventivaseCorretivas nosSistemasdeEsgotoseDrenagemdoMunicípiodePortoAlegre:setratam de2contratosnoquesomammaisdeR$36milhõesparaprestaçãodeserviços rotineirosdemanutençãodecanalizaçõesdeesgotoedeáguaspluviaisque abarcam48equipesdeserviçosderuaqueexigemacompanhamentoe fiscalização(anexo24552453);
-ServiçosdeDragagem,DesassoreamentoeLimpezaemArroios,Canaise BaciasdeAmortecimentoAbertas:setratamde3contratoscomvalortotal atualizadodemaisdeR$57milhõesquepossuemdiversasfrentesdeatuação conforme24552428;
-Serviçosdeligações,reconstruçõesepequenasextensõesderedenos sistemasdeesgotamentosanitárioedrenagempluvialdoDMAEnazonacentro doMunicípiodePortoAlegre:setratamde4contratosencaminhadospara contrataçãodemaisR$30milhõesparaprestaçãodeserviçosrotineirosde reconstruçãoepequenasextensõesdecanalizaçõesqueabarcammais40 equipesdeserviçosderuaqueexigemacompanhamentoefiscalização,sendo queseencontramemfasedelicitaçãoparacontrataçãoeparaosquais atualmentenãosedispõedeengenheiroscivis(processosnº2210000005279-1 enº2210000005278-3;
-MacrodrenagemPontaGrossaTúnelVerde:setratamdeinvestimentosde maisdeR$45milhõesemfasedecontrataçãoderecursosjuntoaoBRDE(SEI nº220000013642-9)cujosprojetosdeengenhariajáseencontramem elaboraçãoatravésdocontratonº22.10.000004086-6,particularmentepara essasobrastambémnãosedispõeatualmentedeequipedeengenheiroscivis paraacompanhamentoefiscalização;
Alémdetodasessasaçõesacima,sãováriososdemaisprojetosdeengenharia emdesenvolvimentoparaEsgotamentoSanitário(RegiõesHumaitá,Anchieta, CristoRedentor)eparaMacroeMicrodrenagemnacidade(RuaGralhaAzulRuaAndorinhas,QuartoDistritointegralmente,BaciadoArroioMoinho,etc)e paraAbastecimentodeÁgua(substituiçõesderedesnoCentroHistórico,nos BairrosSãoGeraldoeFloresta,noBairroSarandi,alémdediversasexpansões deredesdeáguaemnúcleosurbanosinformais);
Sendoassim,entendemosqueochamamentodemais2engenheiroscivispara cumprimentodessesobjetivossefazplenamentejustificávelRessaltamosquea prestaçãodeserviçosdeengenhariaeaimplantaçãodeobras,mesmoque atravésdeprestadoresdeserviço,requeremacompanhamentoefiscalização, hajavistaasorientaçõesdoSrPrefeitonaOrdemdeServiçonº05/2023que dispõesobreasnormaseosprocedimentosaseremadotadosparacondução decontratosAausênciadeservidoresparaessasfunçõesnãopodeser substituídaporoutrosprestadoresdeserviço,e,sendoassim,váriasdessas açõesnãoserãopossíveisdeseremrealizadas
NamesmadataaDGencaminhaareiteraçãodopedidoàSEDPES-SMAP(peça 313
Assinado digitalmente por: Marcelo Kipper da Silva em 14/07/25, Leandro Lobato Camargo em 14/07/25, Leandro Torres em 14/07/25, Fabio Alex Beling em 14/07/25 e outro(s). Confira a autenticidade do documento em www.tce.rs.gov.br. Identificador: PRE.FE77.2360.2A1D.FC7C.62D4.

ESTADODORIOGRANDEDOSUL TRIBUNALDECONTAS
DIREÇÃODECONTROLEEFISCALIZAÇÃO SERVIÇODEAUDITORIADEPORTOALEGRE
6718545,p22)

27/07/2023:CMDPemiteaDeliberaçãonº111/2023,autorizandoanomeaçãode01 (um)EngenheiroCivil(peça6718545,p23a25)
10/08/2023:PublicadanoDOPAaPortariadeNomeaçãonº2178,comanomeação de01(um)candidatoaprovadonocargodeEngenheiroCivil(peça6718545,p.26).
11/08/2023:ADivisãodeInformaçõesLegaiseGerenciaisdaContadoriaGeraldo Município(DILG/CTGM/SMF)emitedespachosobreanálisedocomprometimentodadespesade pessoalemfunçãodareceitacorrentelíquida(percentualentre38,42%e39,92%nosexercícios de2023a2025),acompanhadadedeclaraçãodoSecretárioMunicipaldaFazendadequeo impactofinanceiroestáemconformidadecomolimitedegastoscomdespesadepessoalem relaçãoàreceitacorrentelíquida(peça6718545,p27a33)
15/08/2023:PublicadanoDOPAaPortariadeNomeaçãonº2244,sendo nomeado01(um)candidatoaprovadonocargodeEngenheiroCivil,emvirtudedetersido tornadasemefeitoanomeaçãode01(um)candidatopelaPortarianº1955(peça6718545,p34 e35)
22/08/2023:GPESencaminhanovasolicitaçãodeingressode01(um) EngenheiroCivil,sobasmesmasjustificativasanteriormenteapresentadas(peça6718545, p.36e37).
24/08/2023:PublicadanoDOPAaPortariadeNomeaçãonº2319,sendo nomeado01(um)candidatoaprovadonocargodeEngenheiroCivil,emvirtudedetersido tornadasemefeitoanomeaçãode01(um)candidatopelaPortarianº2244(peça6718545,p38 e39)
NamesmadataDGencaminhaoexpedienteaoGabinetedoPrefeitopara autorizaçãodasolicitaçãodeingressode01(um)EngenheiroCivil(peça6718545,p40)
25/08/2023:PrefeitoemiteoMemorandonº726/2023autorizandoanomeaçãode 01(um)EngenheiroCivilparaoDMAE(peça6718545,p41)
28/08/2023:SEDPES-SMAPemitedespachoinformandoque,considerandoa autorizaçãodoPrefeito,nãohánecessidadedesubmissãodopleitoaoCMDP,devendoapenas serrealizadaatualizaçãodarepercussãofinanceiradasnomeaçõesautorizadas,junto àDILG/CTGM/SMF(peça6718545,p.42).
29/08/2023:DILG/CTGM/SMFemitedespachosobreanálisedocomprometimentoda despesadepessoalemfunçãodareceitacorrentelíquida(percentualentre38,74%e40,20% nosexercíciosde2023a2025),acompanhadadedeclaraçãodoSecretárioMunicipalda Fazendadequeoimpactofinanceiroestáemconformidadecomolimitedegastoscomdespesa depessoalemrelaçãoàreceitacorrentelíquida(peça6718545,p.43a49).
05/09/2023:PublicadanoDOPAaPortariadeNomeaçãonº2368,comanomeação de01(um)candidatoaprovadonocargodeEngenheiroCivil(peça6718545,p50)
Diantedoexposto,aindaqueoprocessotenhasidoconcluídocomoatendimentodo pleitodoDMAE,ficouevidenciadoqueaatuaçãodoCMDPimpôsgrandesdificuldadesao atendimentodasolicitação.Issoporque,mesmodiantedeinúmerasjustificativas(aumento significativodedemandas,tendoemvistaainclusãodasatividadesdedrenagemurbanaea limitaçãodoquadrodeservidoresdentetoresdocargodeEngenheiro)edaprestaçãode informaçõessuficientespeloDepartamento,nosentidodanecessidadeeimportânciado provimentodecargosdeEngenheirosparaasatividadesdefiscalizaçãoeacompanhamentode obraseserviços,asautorizaçõesdocomitê,registradasnasDeliberaçõesn°104/2023(peça 314


DIREÇÃODECONTROLEEFISCALIZAÇÃO SERVIÇODEAUDITORIADEPORTOALEGRE
6718545,p15a17)enº111/2023(peça6718545,p23a25),foram,injustificadamente, sempreaquémdassolicitaçõesencaminhadaspeloDepartamento,demodoqueasprimeiras autorizaçõesparciaissóforamobtidas5mesesapósainstauraçãodoprocesso29,sendo necessáriaaindaaautorizaçãodiretadoPrefeitoparaoatendimentodopleitoemsuatotalidade 30
•Processo2310000005213-4
Trata-sedeprocessoinstaurado,em07/06/2023,pelaGerênciadeGestãode Pessoas(GPES),parafinsdesolicitaçãodeautorizaçãoparaarealizaçãodeconcursopúblico paraosseguintescargos(totalde49vagas):Biólogo(1vaga),MédicodoTrabalho(1vaga), Químico(1vaga),TécnicoemTratamentodeÁguaeEsgotos(1vaga),Técnicoem Saneamento(1vaga),TécnicoIndustrial(6vagas),AuxiliardeServiçosTécnicos(5vagas), Fresador(2vagas),MontadorEletromecânico(5vagas),OperadordeMáquinasEspeciais(10 vagas),SoldadorIndustrial(6vagas),AgentedeSaneamento(1vaga),InstaladorHidrossanitário (5vagas),OperadordeSubestação(2vagas)eAssistenteAdministrativo(2vagas)Como justificativaéapresentadolongoarrazoado,comdestaqueparaorelatodanecessidadedos cargosoperacionaisparapossibilitaracontinuidadedoatendimentodasdemandasda populaçãoedanecessidadedemodernizaçãodaestruturadepessoaldoDMAEparaa realizaçãodafiscalizaçãoedoacompanhamentodosserviçoseobrasprestadospor empresasterceirizadas,atividadeparaqualseriaimprescindívelocargodeTécnicoem Saneamentoetambémparaoalertaquantoaosprejuízosrelacionadosafaltadeservidores (peça6718588,p.3a5):
EncaminhamosparaanáliseedeliberaçãodessaDiretoriadeGestão AdministrativaasolicitaçãodeautorizaçãoparaarealizaçãodeConcurso Públicoparaoscargosabaixorelacionados:
()
InformamosqueocargodeTécnicoemSegurançadoTrabalhoestácom concursopúblicoemandamento,jácomEditalpublicadopelaAdministração Centralizada,comoDMAEsendoinclusonesseprocesso
RessaltamosqueparaoscargosdeTécnicoemSaneamento,Agentede SaneamentoeOperadordeSubestação,jáexisteaautorizaçãopararealização deconcursopúblicopara01vaga+CadastroReserva(CR),conforme Deliberação052/2022-CMDP(20790216),quetramitouatravésdoprocesso 2210000006533-8SugerimosquesejareanalisadajuntoaoCMDPemrazão daalteraçãodonúmerodevagassolicitadastersidoalteradoparaocargode OperadordeSubestação
Oscargosparaosquaissesolicitaaautorizaçãopararealizaçãode ConcursoPúblicosãocargosoperacionais,semosquaisoDmaeterá grandedificuldadedemanteroatendimentoàsdemandasdapopulação Atividadesoperacionaisprecisamcontarcomequipesprópriasdeformaa garantiracontinuidadedasmesmas.
()
OcargodeAgentedeSaneamento,bemcomodeInstaladorHidrossanitário compõemequipesoperacionaisdecampoquerealizamasatividadesde 315
digitalmente por: Marcelo Kipper da Silva em 14/07/25, Leandro Lobato Camargo em 14/07/25, Leandro Torres em 14/07/25, Fabio Alex Beling em 14/07/25 e outro(s). Confira a autenticidade do documento em www.tce.rs.gov.br. Identificador: PRE.FE77.2360.2A1D.FC7C.62D4.

ESTADODORIOGRANDEDOSUL TRIBUNALDECONTAS
DIREÇÃODECONTROLEEFISCALIZAÇÃO SERVIÇODEAUDITORIADEPORTOALEGRE

manutençãoderedesdeáguaeesgotosemanutençãodeadutoras,esão fundamentaisparacorrigirvazamentosdeáguaeextravasamentode esgotos
OcargodeOperadordesubestaçãoseresponsabilizapelaoperaçãodas estaçõesdebombeamentodeáguaeesgotosquefazempartedossistemasde abastecimentodeágua,coletaeconduçãodeesgotos,semesseprofissional nãohácomolevarágua,emespecial,àsáreasmaisaltasdacidade, conduzirosesgotosparaasunidadesdetratamentoeeliminaros alagamentosemperíodosdechuva
OcargoamploTécnicoemSaneamento,podeserprovidoporváriasformações técnicas,conformedefiniçõesdoEdital,econtemplaTécnicoemEdificações, Química,Biologia,MeioAmbiente,Saneamento,ElétricaeMecânicaDessa forma,pode,emcasodenecessidade,desempenharsuasatividadesemvários locaisdoDmaee/ououtrasSecretariasouDepartamentosdomunicípio Amodernizaçãodarealizaçãodasatividades,commuitosserviçossendo prestadosporempresasterceirizadas,requerqueoDepartamento organizeumaestruturadepessoalquepossarealizarafiscalizaçãoeo acompanhamentodessesserviçoseobrasDessaforma,ocargode TécnicoemSaneamentoéimprescindívelparaafiscalizaçãodessas atividades.
Afaltadeservidoresvemacarretandoprejuízos,sejapeloaumentodo tempo de resposta em situação emergenciais, que prolongam desabastecimentosnossistemasdeágua,ouextravasamentosdeesgotos "innatura"emcasodefalhasnossistemasdeconduçãoeelevaçãode efluentescloacaisComoníveldereduçãocontínuadacapacidadede mobilizaçãodasequipesdemanutençãoindustrialpode-se,embreve, chegarasituaçõesextremas,comoporexemplo:terqueescolheras regiõesqueserãoatendidas,causandoimpactodiretoàpopulação.
EsteDmaejárealizoutodasasaçõespossíveis,visandoaotimizaçãodas suasequipes,bemcomoestáplanejandoaimplantaçãodeprogramade automaçãodasunidadesoperacionaisEntretanto,atualmente,comas equipesdisponíveissóépossívelatenderasdemandasdemanutenção emergencial,eembrevenemessaspoderãoseratendidasemsua totalidade,comaagilidadenecessáriaTalsituaçãotraz,ainda,como consequênciaaimpossibilidadederealizarmanutençõespreventivas, gerandoumafragilidadedossistemas,aumentodonúmeroedagravidade dasfalhas,repercutindoemcustosmaiorespararecuperaçãode equipamentosemaiortempoderetomadadeoperaçãodossistemas LembramosqueaLeiMunicipalnº13345/2022autorizouacontratação temporáriaeemcaráteremergencialdoscargosdeTécnicodeSaneamento, AgentedeSaneamentoeOperadordeSubestaçãoealeiMunicipal 13.032/2022aautorizouacontrataçãotemporáriadeMontadorEletromecânico, OperadordeMáquinasEspeciais,SoldadorIndustrial,FresadoreseTécnico Industrial
OcargodemédicodotrabalhoénecessárioparaqueoDepartamento mantenhaemdiaoseuprogramadePCMSO-ProgramadeControleMédicode 316

ESTADODORIOGRANDEDOSUL TRIBUNALDECONTAS
DIREÇÃODECONTROLEEFISCALIZAÇÃO SERVIÇODEAUDITORIADEPORTOALEGRE

SaúdeOcupacionalRessaltamosqueoDMAErealizasuasprópriasperíciasde ingressodeservidores,bemcomodisponibilizaatendimentomédicoaseus servidores
Incluímostambémasolicitaçãodeingressodeservidoresdocargode AssistenteAdministrativo,cargodeapoio,defundamentalimportânciapara atendimentodasdemandasdasáreasmeiodoDepartamento,incluindoasque envolvemencaminhamentosderotinasadministrativasrelativasàcontratos
Ressalvamosqueparaoautorizaçãodeaberturadenovoprocessodeconcurso públicoparaocargodeAssistenteAdministrativo,énecessárioochamamento dos23aprovadosnoconcursoemvigência,chamamentoestequetramita atravésdoprocesso2210000010647-6
Osconcursosdeverãoserrealizadosporempresaespecializadanarealização deConcursoPúblico
Emrelaçãoaosprazos,informamosqueoprazodecontrataçãodaempresa especializadaédeaproximadamente90diasequeoprazomédioparaa realizaçãodosconcursospúblicoséde,nomínimo,6(seis)meses,período compreendidodesdeapublicaçãodoEditaldeAberturaatéaHomologação Finaldocertame
AnexamosaRepercussãoFinanceiraparaoscargosdiversos(23932786)e assistenteadministrativo(23932818)
(Grifou-se)
TendoemvistaadeliberaçãodaDiretoriadoDMAE,foramrevisadososquantitativos totaisdevagas,sendoencaminhadanovasolicitação,em10/07/2023,comareduçãoparaototal de33vagas31 (peça6718588,p10a12):Biólogo(1vaga),MédicodoTrabalho(1vaga), Químico(1vaga),TécnicoemTratamentodeÁguaeEsgotos(1vaga),Técnicoem Saneamento(1vaga),TécnicoIndustrial(5vagas),AuxiliardeServiçosTécnicos(4vagas), Fresador(2vagas),MontadorEletromecânico(6vagas),OperadordeMáquinasEspeciais(2 vagas),SoldadorIndustrial(3vagas),AgentedeSaneamento(1vaga),InstaladorHidrossanitário (4vagas),OperadordeSubestação(1vaga)
AsolicitaçãofoihomologadapeloDiretor-Geral,queremeteuoexpediente,em 11/07/2023,paraanáliseeautorizaçãopeloGabinetedoPrefeito,destacandoqueopedidofoi retificadoconforme"alinhamentoemreuniãocomoGP"(peça6718588,p.14)..Talcircunstância demonstraquehouveanecessidadereduçãodosquantitativosparaqueopleitopudesseser autorizadopeloadministraçãocentralizada
Em08/08/2023,oCMDPemitiuaDeliberaçãonº112/2023,autorizandoarealização dosconcursospúblicossolicitadospeloDMAE(peça6718588,p16a18)
Diantedaautorização,oDMAEefetivou,noprocesso2310000012317-1,a contrataçãodeempresa32paraarealizaçãodosconcursospúblicos,resultandonapublicação33 dosseguinteseditais:EditaldeAbertura001/2024(peça6718644,p1a34),paraprovimento doscargosefetivosdeOperadordeSubestação(1vaga),AssistenteAdministrativo(1vaga), TécnicoemSaneamento(1vaga),TécnicoemTratamentodeÁguaeEsgotos(1vaga),Técnico Industrial(5vagas),Biológo(1vaga)eQuímico(1vaga);eEditaldeAbertura002/2024(peça 6718644,p35a71),paraprovimentodoscargosefetivosdeInstaladorHidrossanitário(4 317
Assinado digitalmente por: Marcelo Kipper da Silva em 14/07/25, Leandro Lobato Camargo em 14/07/25, Leandro Torres em 14/07/25, Fabio Alex Beling em 14/07/25 e outro(s). Confira a autenticidade do documento em www.tce.rs.gov.br. Identificador: PRE.FE77.2360.2A1D.FC7C.62D4.

ESTADODORIOGRANDEDOSUL TRIBUNALDECONTAS DIREÇÃODECONTROLEEFISCALIZAÇÃO SERVIÇODEAUDITORIADEPORTOALEGRE

vagas),OperadordeMáquinasEspeciais(2vagas),SoldadorIndustrial(3vagas),Agentede Saneamento(1vaga),Fresador(2vagas),MontadorEletromecânico(6vagas)eAuxiliarde ServiçosTécnicos(4vagas).
Oeditaldehomologaçãodoresultadofinaldosconcursospúblicosparaoscargos previstosnoEditaldeAbertura001/2024(Edital029/2024)foipublicadonaEdição7371,de 15/10/2024,doDiárioOficialdoMunicípio(peça6718644,p72a74)Comrelaçãoaoscargos previstosnoEditaldeAbertura002/2024,ahomologaçãodoresultadofinalocorreupormeiodo Edital035/2024,publicadonaEdição7405,de05/12/2024,doDiárioOficialdoMunicípio(peça 6718644,p75a77)Oprocessosegueemandamentonãosendoaindaregistradasadmissões atéadatadofechamentodopresenterelatório34
NãoobstantetenhaseverificadooatendimentodasolicitaçãopeloCMDP,o processo revela o contexto e as dificuldades existentes no exercício das competênciaspeloDMAE,1anoantesdaenchentedeMaiode2024Conformedestacado pelaGPES,naquelemomento,oórgãosódisporiadeequipesparaoatendimentodedemandas demanutençãoemergencial,estandoimpossibilitadoderealizarmanutençõespreventivasAinda foidestacadoqueembrevenemasdemandasdemanutençãoemergencialpoderiamser atendidasemsuatotalidadeecomaagilidadenecessária.
1ParaocargodeAgentedeSaneamentohouve,posteriormente,autorizaçãopeloExecutivopara realizaçãodecontrataçõestemporárias,pormeiodasLeisMunicipaisnº13345/2022(Processo nº2210000007070-6)enº13779/2023(Processonº2310000011948-4)
2ParaocargodeFresadorhouveposteriormente,autorizaçãopeloExecutivopararealizaçãode contrataçõestemporárias,pormeiodasLeisMunicipaisnº12715/2020(Processo 2010000002341-3),nº13032/2022enº13561/2022(Processonº2110000004664-8)
3ParaocargodeMontadorEletromecânicohouveposteriormente,autorizaçãopeloExecutivo pararealizaçãodecontrataçõestemporárias,pormeiodasLeisMunicipaisnº13032/2022enº 13561/2022(Processonº2110000004664-8)
4ParaocargodeOperadordeMáquinasEspeciaishouve,posteriormente,autorizaçãopelo Executivopararealizaçãodecontrataçõestemporárias,pormeiodasLeisMunicipaisnº 12715/2020(Processonº2010000002341-3),nº13032enº13561/2023(Processonº 2110000004664-8)
5ParaocargodeOperadordeSubestaçãohouve,posteriormente,autorizaçãopeloExecutivo pararealizaçãodecontrataçõestemporárias,pormeiodasLeisMunicipaisnº13345/2022 (Processonº2210000007070-6)enº13779/2023(Processonº2310000011948-4)
6ParaocargodeSoldadorIndustrailhouve,posteriormente,autorizaçãopeloExecutivopara realizaçãodecontrataçõestemporárias,pormeiodasLeisMunicipaisnº12715/2020(Processo nº2010000002341-3),nº13032/2022enº13561/2023(Processonº2110000004664-8)
7ParaocargodeTécnicoIndustrialhouve,posteriormente,autorizaçãopeloExecutivopara realizaçãodecontrataçõestemporárias,pormeiodasLeisMunicipaisnº12715/2020(Processo nº20.10.000002341-3),nº13.032enº13.561/2023(Processonº21.10.000004664-8).
8AmedidacautelarfoisuspensapeloPoderJudiciário,emdecisãoproferida,em20/01/2020,pelo JuizdeDireitoda4ªVaradaFazendaPúblicadoForoCentraldaComarcadePortoAlegre (Processonº5002095-5520208210001/RS)Opedidodeanulaçãodadecisãocautelarfoi julgadoprocedente,emsentençaproferidanodia19/10/2020
9OCGDEPautorizouarealizaçãodeconcursopúblicoparaapenas1vagadeoperadorde subestação
10Processos1810000003863-0,2010000000459-1e2010000000981-0
11ParaocargodeAgentedeSaneamentohouveautorizaçãopeloExecutivopararealizaçãode contrataçõestemporárias,pormeiodasLeisMunicipaisnº13345/2022(Processonº 2210000007070-6)enº13779/2023(Processonº2310000011948-4)
12ParaocargodeOperadordeMáquinasEspeciaishouveautorizaçãopeloExecutivopara realizaçãodecontrataçõestemporárias,pormeiodasLeisMunicipaisnº12715/2020(Processo nº2010000002341-3),nº13032enº13561/2023(Processonº2110000004664-8)
13ParaocargodeOperadordeSubestaçãohouveautorizaçãopeloExecutivopararealizaçãode contrataçõestemporárias,pormeiodasLeisMunicipaisnº13345/2022(Processonº 2210000007070-6)enº13779/2023(Processonº2310000011948-4)
14AdmissõesanalisadasnosProcessosnº5144-0200/22-3enº10043-0200/23-0Asadmissões 318
Assinado digitalmente por: Marcelo Kipper da Silva em 14/07/25, Leandro Lobato Camargo em 14/07/25, Leandro Torres em 14/07/25, Fabio Alex Beling em 14/07/25 e outro(s). Confira a autenticidade do documento em www.tce.rs.gov.br. Identificador: PRE.FE77.2360.2A1D.FC7C.62D4.

ESTADODORIOGRANDEDOSUL TRIBUNALDECONTAS DIREÇÃODECONTROLEEFISCALIZAÇÃO SERVIÇODEAUDITORIADEPORTOALEGRE
tiveraminícioemmaiode2021

15Processoinstauradoem06/06/2017comasolicitaçãode8(oito)servidoresdocargode OperadoresdeSubestaçãoparaatuaremnaGTAGEm09/10//2017foiinformadooseguimento dademandanoprocesso1710000003873-2Porém,noperíodoentredezembro/2019e março/2021oprocessoretomouasuatramitação,comareiteraçãodanecessidadede servidoreseabuscadenovasalternativasetentativasparaaviabilizaçãodademanda (automaçãodaEBABPontadoArado,Autorizaçãonº139/2019CGDEPparaaberturade concursopúblico,remanejodeservidores,cancelamentodecedênciadeservidoràCâmara Municipal)Asúltimasinformaçõesapresentadasnoprocessotrazemdespachocontendoa atualizaçãodademandaporservidorespelaGTAG,passandoaserde13(treze)servidoresdo cargodeOperadordeSubestação,bemcomoainformaçãodequeademandaseguiuparaà DireçãoGeral,noexpediente2010000006485-3Últimamovimentaçãoem05/10/2022 (encaminhamentoàPME)
16Oprocessotratadoplanejamentodeaçõesemergenciaisparaenfrentamentodosriscos advindosdapandemiadoCovid-19OplanofoielaboradopelaDiretoriadePlanejamentoeMeio Ambiente(DT)eodocumentosofreualteraçõesduranteavigênciadasituaçãodecalamidade Noperíodohouveaimplementaçãodedeslocamento/remanejodeservidoresdaGATEparaa áreaoperacionaldasestaçõesdetratamentodeágua(GTAG)
17AutorizaçõesobtidasnoProcesso1810000003863-0
18AtualmenteaGMANintegraaDiretoriadeTratamentodeÁguaeEsgotos
19InformaçõesobtidasemconsultaaoSIAPC
20ConformeinformaçãodaC-DESENVOLV,oingressodeTécnicosemTratamentodeÁguae Esgotosestásendorealizadoatravésdoprocesso2110000000393-0eodeTécnicosem Saneamentoatravésdoprocesso2110000003581-6
21Novamenteéapresentadatabelaquetrazasmesmasinformaçõesanteriormenteprestadas sobreadatalimitedevigênciadascontrataçõestemporáriassemapossibilidadede prorrogação
22Tambémfoinovamenteapresentadainformaçãosobreoquadroevolutivodosreferidoscargos nosúltimosanos,atualizadaatéoexercíciode2021
23Processoanalisadoemtópicoespecífico
24Opedidodereposiçãofoifeitoem21/01/2021
25ConformeabordadooCGDEPautorizouanomeaçãodeapenas01(um)engenheiromecânico, sendoasegundanomeaçãoautorizadadiretamentepeloPrefeito
26NaatualestruturaorganizacionalaGDCOésubordinadaàDiretoriadeTratamentodeÁguae Esgotos
27Aplanilhainformacomoquantitativomínimo11servidoresecomoquantitativoideal16 servidoresdocargodeAgentedeSaneamento,considerandoqueochamamentodesses servidoressejapossívelemtempohábilDocontrário,registraquesehouvermorosidadena criaçãodenovasvagasdeformaemergencialdeveráserutilizadoocargodeInstalador Hidrossanitárioparapreencheraslacunas
28Oprocessofoireabertonovamenteapenasem29/07/2024,paraatendimentodarequisiçãode auditoria
29Apesardeinstadoasemanifestarnoprocessoem17/02/2023,oCMDPsóapresentouresposta em19/07/2023,demodoquenoperíodo,houvenecessidadedereadequaçãodopedidoinicial encaminhadopeloDMAE,passandode02para05engenheiros
30ConsoanteinformaçõesobtidasnoSIAPC,osnomeadosforamlotadosnaCoordenaçãode Desenvolvimento(2lotações),setorvinculadoaDiretoriadeGestãoeDesenvolvimento;ena GerênciadeLogística(2lotações),setorvinculadoàDiretoriadeOperações
31FoiretiradoocargodeAssistenteAdministrativo
32Empresacontratada:InstitutoAvaliadeInovaçãoemAvaliaçãoeSeleção
33Ocronogramadeexecuçãodoconcursofoiprorrogadodiantedasituaçãodecalamidadepública decorrentedasinundaçõesocorridasemMaio/2024
34Tambémnãoconstaainformaçãosobreconvocações/nomeaçõesnositedoDMAEDisponível em:https://prefeiturapoabr/dmae/concursos-e-estagios
7ANEXO-ANÁLISEEXPEDIENTESREESTRUTURAÇÃO/MODERNIZAÇÃOQUADRO GERALDECARGOS
•Processonº20.10.000001166-0
Trata-sedeexpedienteabertopelaGerênciadeGestãodePessoas(GPES),em 319
Assinado digitalmente por: Marcelo Kipper da Silva em 14/07/25, Leandro Lobato Camargo em 14/07/25, Leandro Torres em 14/07/25, Fabio Alex Beling em 14/07/25 e outro(s). Confira a autenticidade do documento em www.tce.rs.gov.br. Identificador: PRE.FE77.2360.2A1D.FC7C.62D4.

ESTADODORIOGRANDEDOSUL TRIBUNALDECONTAS
DIREÇÃODECONTROLEEFISCALIZAÇÃO SERVIÇODEAUDITORIADEPORTOALEGRE

07/02/2020,parafinsdeencaminhamentodeMinutadeProjetodeLei,visandoaadequaçãodo quadrodepessoaldoDMAE,pormeiodacriaçãoeextinçãodecargos(peça6718589,p14e 15).
Aminutapassouporadequaçõesparafinsdeatendimentodassugestõesindicadas emparecerdaProcuradoriaMunicipalEspecializadaAutárquicadoDMAE(PME-DMAE)(peça 6718589,p17a19e33),sendooprocessoencaminhado,em12/04/2020,pelaDiretoriaGeral (DG)àSecretariaExecutivadoComitêGestordeDespesasdePessoal(SECEXP-SMPG),ao GabinetedoSecretárioMunicipaldaFazenda(GS-SMF),aoGabinetedaSecretárioMunicipalde PlanejamentoeGestão(GS-SMPG)eaoGabinetedoProcuradorGeraldoMunicípio(GPGPGM)(peça6718589,p47)Odespachodeencaminhamentomencionaqueoprojetodelei elaboradotratadecomplementodaapresentaçãorealizadaemreuniãoocorridanodia 05/02/2020noCGDEP,bemcomoatendeopedidoconstantenoexpediente1810000003863-0 1 ,inverbis:
ASECEXP-SMPG/GS-SMPG/GS-SMF/GPG-PGM, Emcomplementoàapresentaçãorealizadaem05/02/20noComitêCGDEP, atendendoopedido9600503,constantenoexpediente1810000003863-0, vimosapresentaraMinutadeProjetodeLei10071293,comrespectiva repercussãofinanceira10071292,bemcomodeclaraçãodeadequação orçamentária10071294eapreciaçãodaProcuradoriaPME-DMAE(9697276)
EntendemosqueessaPropostadeLeiatualizaasrelaçõesdetrabalhodo Departamento,modernizaoquadrodecargos,aumentaoganhodecargoscom maiorcapacidadeanaliticanosentidodetornaraatuaçãodoEstadocompapel bemmaisGerencialediminuimuitoasatividadesoperacionais
Deoutraparte,esseProjetodeLei,seaprovado,garanteumadiminuiçãode despesascomquadrodefuncionários
Parasuaapreciação
Emsíntese,aminutadeprojetodelei(peça6718589,p36a40)propõeacriação decargos/vagasdeAdministrador(21),Arquiteto(04),AssistenteSocial(02),Engenheiro(32), Psicólogo(01),Químico(03)eAnalistadeTecnologiadeInformação(02),TécnicoIndustrial (04),TécnicodeSaneamento(50),MontadorEletromecânico(20),OperadordeMáquinas Especiais(20)eAgentedeSaneamento(250);aextinçãodevagasdoscargosdeArquivista (03),Farmacêutico(05),AgentedeServiçosExternos(100),Contínuo(60),AuxiliardeServiços Gerais(60),Operário(273),Carpinteiro(09),Ferreiro(04),InstaladorHidrossanitário(230), Motorista(54),Pintor(08),ServentedeLaboratório(16),Mestre-de-Obras(21),Operário Especializado(581),OperadordeArtesGráficas(04),Telefonista(19),AssistenteAdministrativo (200)eGuardaMunicipal(90);aextinçãodoscargosdeBibliotecário,Técnicoem Agrimensura,TécnicoemArquivo,AuxiliardeEnfermagem,AuxiliardeServiçoSocial,Operador de Rede e Pedreiro; eaextinção,àmedidaquevagarem,doscargosde Farmacêutico,Carpinteiro,Ferreiro,Pintor,ServentedeLaboratório,Mestre-de-Obras,Operário Especializado,OperadordeArtesGráficas,TelefonistaeOperário.
Ademais,oprojetoapresentaasseguintesjustificativas(peça6718589,p41a45):
Apresentesolicitaçãobaseia-senanecessidadedeadequaçãodoquadrode 320
Assinado digitalmente por: Marcelo Kipper da Silva em 14/07/25, Leandro Lobato Camargo em 14/07/25, Leandro Torres em 14/07/25, Fabio Alex Beling em 14/07/25 e outro(s). Confira a autenticidade do documento em www.tce.rs.gov.br. Identificador: PRE.FE77.2360.2A1D.FC7C.62D4.


pessoaldesteDepartamento,deformaaacompanharanecessáriaatualização dasatividadesdesempenhadaspeloDepartamento,qualificandoeaprimorando odesempenhodagestãodoDmae,deformaabuscaramelhoriacontínuados serviçosprestadosàpopulaçãodePortoAlegre
EmrelaçãoaoscargosdeTécnicodeSaneamento,TécnicoIndustrial,Montador Eletromecânico,OperadordeMáquinasEspeciaiseAgentedeSaneamento nossasolicitaçãodecorredanecessidadeprementedoDmaedeaumentarseu quadrodepessoaltécnico,comvistaaampliarsignificativamenteasvagase cargosquedãomaiorpossibilidadedegerenciamentoedecontrataçõespor desempenhoeresultadodasatividadesdesaneamentoecontamcom atribuiçõesmaisamplas,oqueirápotencializarasatividadesdasequipes
EmrelaçãoaoscargosdeNívelSuperior:Administrador,Arquiteto,Assistente Social,Engenheiro,Psicólogo,QuímicoeAnalistadeTecnologiada Informações,informamosqueadefasagemdevagasnestescargosvem crescendoaolongodotempo,tendoemvistaanecessidadecadavezmaiorde servidoresquepossamplanejareexecutaratividadesdemaiorcomplexaseque possamefetivamenteseresponsabilizartecnicamentepelasmesmas
Importante,ainda,referirqueaampliaçãodoscargosdenívelsuperiortraráas condiçõesdecumprimentodasexigênciasdaSMTCeCGMquantoàs segregaçõesdefunçõesentreGestordeContratoeFiscaldeContrato,tendo emvistaagrandequantidadedecontrataçõesquedesenvolvemosno Departamento,oquejustificaanecessidadedeincrementodevagasdoscargos deAdministradoreEngenheiro
Emrelaçãoàextinçãodevagasedecargosamesmaocorrenaquelescargos comatribuiçõesmuitoespecíficasedebaixacomplexidadeoucujoo quantitativodevagasnãocondizescomaatualrealidadedoDmaeoucargos cujasatividadesoDepartamentonãomaisnecessita.
Ainda,visandoanãotrazernenhumprejuízoaosatuaisservidoresdoDmae,foi incluídaprevisãodequeaosservidoresinvestidosnoscargosemextinçãoestão asseguradastodasasvantagensinerentesaocargo,emespecialaprogressão funcional(art4º,§2º)
Assim,apresentamosabaixoumquadrogeraldanossapropostadecriaçãoe extinçãodevagas: ()
Conformeseverificanastabelasacima,apresentepropostapretendea, imediatamente,criar409vagas,representandorepercussãofinanceiradeR$ 15598718,69(quinzemilhões,quinhentosenoventaeoitomilsetecentose dezoitoreaisesessentaenovecentavos)somentenomomentode preenchimentodasvagas,apósasdevidasautorizações,eextinguir1736 vagas,comrepercussãofinanceiradeR$50.237.717,81(cinquentamilhões, duzentosetrintaesetemil,setecentosedezessetereaisetrintaeoitentaeum centavos)Aocolocaremextinçãodiversoscargos,aolongodotemporesultará naextinçãodemais173vagasDessaforma,oquadrodeservidoresefetivosdo Dmaequehojeéde3634vagaspassarádeimediato,apósaprovaçãoda presentelei,acontarcom2307vagas

ESTADODORIOGRANDEDOSUL TRIBUNALDECONTAS
DIREÇÃODECONTROLEEFISCALIZAÇÃO SERVIÇODEAUDITORIADEPORTOALEGRE

Emsíntese,apropostalevadaàapreciaçãodessaCâmaraMunicipaldePorto Alegresolicitaa)criaçãode409vagasnoscargosessenciaiseestratégicos paraarealizaçãodasatividadesdoDepartamento:Administrador, Arquiteto,AssistenteSocial,Engenheiro,Psicólogo,Químico,Analistade TecnologiadaInformação,TécnicoIndustrial,TécnicodeSaneamento, MontadorEletromecânico,OperadordeMáquinasEspeciaiseAgentede Saneamento; b) aextinçãode1736vagasnoscargosdebaixa complexidadee/oucujasatribuiçõesesteDepartamentonãonecessita mais:Arquivista,Farmacêutico,AgentedeServiçosExternos,Contínuo,Auxiliar deServiçosGerais,Operário,Carpinteiro,Ferreiro,InstaladorHidrossanitário, Motorista,Pintor,ServentedeLaboratório,Mestre-de-Obras,Operário Especializado, Operador de Artes Gráficas, Telefonista, Assistente AdministrativoeGuardaMunicipal;c)extinguiroscargosdeBibliotecário, TécnicoemAgrimensura,TécnicoemArquivo,AuxiliardeEnfermagem,Auxiliar deServiçoSocial,OperadordeRedeePedreiroed)colocaremextinção,à medidaquevagarem,oscargosFarmacêutico,Carpinteiro,Ferreiro,Pintor, ServentedeLaboratório,Mestrede-Obras,OperárioEspecializado,Operadorde ArtesGráficas,TelefonistaeOperário.
Em20/04/2020,aSECEXP-SMPGemitiudespachodevolvendooexpedientepara adequaçãodoprojetodeleiasseguintessugestões(peça6718589,p.55):
()
a)Nãoextinçãodoscargosqueaindapossuemservidoresocupandovagas;
b)Repercussãofinanceiradaextinçãodecargoscomvaloresmaispróximose proporcionaisapropostadecriaçãodecargos;
c)AdequaçãodoProjetodeLeicomasalteraçõespropostas/realizadas;
d)Encaminhamentoderepercussãofinanceiraatualizada;
Destaca-sequeoscargosremanescentespoderãoserutilizadosfuturamente, emcontrapartida,paracriaçãodenovoscargosquevieremaseremnecessários noDepartamentoMunicipaldeÁguaeEsgoto(DMAE)
Emresposta,aDGdestacoumanifestou-senosseguintestermos:
ASECEXP-SMPG/GS-SMPG,
Emrespostaàsconsiderações10139744,vimosapresentarasargumentações abaixo
1)Nãohavendoimpedimentolegal,entendemosqueéimportantemantermosa proposiçãodeenquadramentodoscargosaindaocupadosnasituação"em extinção"Assim,garantimosparaofuturoquenãosepromovammais concursosecontrataçõesdeservidoresparaessasfunções;
2)AproposiçãodesteProjetodeLeicarregajustamenteumcaráterde minimizaçãodasdespesascomfolhadepagamentodeservidores,poresta razãoarepercussãofinanceiraquantoàcriaçãodecargosésignificativamente 322
digitalmente por: Marcelo Kipper da Silva em 14/07/25, Leandro Lobato Camargo em 14/07/25, Leandro Torres em 14/07/25, Fabio Alex Beling em 14/07/25 e outro(s). Confira a autenticidade do documento em www.tce.rs.gov.br. Identificador:

ESTADODORIOGRANDEDOSUL TRIBUNALDECONTAS DIREÇÃODECONTROLEEFISCALIZAÇÃO SERVIÇODEAUDITORIADEPORTOALEGRE

menordoquearepercussãofinanceiradecorrentedaextinçãodevagas;
Porfimressaltamosqueessaproposiçãovisamodernizaçãoadministrativado quadrodeservidoresnamedidaqueampliaasquantidadesdevagasemcargos analíticosegerenciais,ampliaasquantidadesdevagasparaoscargosnovos quepossuemmaiorversatilidadedeaproveitamentoereduzsensivelmenteas quantidadesdevagasemcargosdecunhomeramenteoperacionaleemcargos quejásetornaramobsoletospelamodernizaçãodosprocessosdetrabalho
Entendemosqueessaproposiçãoestáalinhadacomasdiretrizesdegoverno, portantogostaríamosquefosseapreciadapeloComitêCGDEP
DiantedareiteraçãodoDMAE,aSECEXP-SMPGmanifestou-senovamente,em 02/08/2020,encaminhandooprocessoparaanálisejurídicadaPGM,inverbis(peça6718589,p 58e60):
ÀPMS-01/PGM,
ConsiderandoqueoProjetodeLei10071293temcomoobjetivoaestruturação doscargosdoDepartamentoMunicipaldeÁguaeEsgoto(DMAE),extinguindo cargosquenãosãomaisocupadosnoreferidoDepartamentoecriandonovos cargosquesãonecessáriosdentrodamodernizaçãodaestrutura;
Considerandoqueosvaloresquedeixamdesergastoscomonãoprovimento doscargosextintoseovalorasergastocomosnovoscargos,quandoprovidos, geramrepercussãofinanceirazerada(10071292);
Considerandoosimpedimentosexistentesemvirtudedoperíodoanteriorao pleitoeleitoraleasproibiçõesimpostasaosMunicípiosquedecretaram calamidadepública,atravésdaLeiFederal173/2020;
ASECRETARIAEXECUTIVADOCGDEPencaminhaopresenteexpediente comquestionamentoquantoapossibilidadedecontinuidadedopresenteProjeto deLei,hajavistaosmotivosacimaexpostos
Nãosendopossíveldarcontinuidadenopresenteexpediente,questionamos comodevemosprocederouatéqueetapadaanálisepodemosavançarpara posteriorrevalidaçãonoexercícioanterior,deformaaatenderalegalidadedos atosadministrativos
()
ÀPMS-01/PGM,
Emtempo,emcomplementaçãoaoDespachoSECEXP-SMPG11072793, informamosquegrandepartedoscargosaseremextintossãocargos operacionaisqueestãovagoshámaisde12(doze)meses,razãopelaqualeles nãocompõemovalorgastocomdespesasdepessoalativo
Ademais,talinformaçãodeveserconsideradaparafinsdeanálisedaviabilidade doProjetodeLei
Semmais,ficamosadisposiçãocasosejamnecessáriasinformações 323


DIREÇÃODECONTROLEEFISCALIZAÇÃO SERVIÇODEAUDITORIADEPORTOALEGRE
complementares
AProcuradoriaMunicipalSetorial01(MatériadePessoal)daPGMemitiu,em 10/08/2020,aNotaTécnicanº251/2020,queconcluiuqueoprojetonãoincideemqualquer condutavedadapelaLeinº9504/1997,masque,diantedoprevistonaLeiComplementarnº 173/2020,aindaquenãoimpliqueemaumentodedespesa,nãohápossibilidadedeproveros cargosporventuracriados,vistoque,emsetratandodecargosnovos,seuprovimentonãose caracterizacomoreposiçãodevacância(peça6718589,p70a74)
Oexpedienteseguiusuatramitaçãoparaatendimentodeajustes,relativosà repercussãofinanceira,solicitadospelaSECEXP-SMPG(peça6718589,p75a80)Aúltima movimentaçãodoprocessofoiaemissãodedespachopelaDG,em04/09/2020,encaminhando oprocessoàGPESparaatendimentodasolicitaçãodaSECEXP-SMPG
Diantedoexposto,aindaquepossívelainiciativalegislativa,verificou-sequea propostademodernizaçãodoquadrogeraldecargosdoDMAEnãoteveseguimento
•Processonº21.10.000003952-8
Trata-sedeprocessoinstaurado,em15/06/2021,pelaCoordenaçãode Desenvolvimento,unidadevinculadaaGerênciadeGestãodePessoas(GPES),parafinsde reunirasinformaçõessobreanecessidadedepessoalnoâmbitodoDMAE,sendoapresentado ànovaadministração(Período2021a2024)estudodeMapadeVagasatualizadodo Departamento,queevidenciouanecessidadedareposiçãode395servidores2,incluídonesse quantitativoanecessidadedacriaçãode175vagas3(cargosdeAgentedeSaneamento, MontadorEletromecânico,TécnicoemSaneamento,OperadordeMáquinasEspeciais,Técnico emSaneamentoeTécnicoIndustrial)(peça6718590,p24a26)Tambéméapresentada minutadeprojetodeleicompropostadecriaçãoeextinçãodevagasnoquadrodeservidores, acompanhadadeplanilhascomarepercussãofinanceirasemoaumentodedespesasde pessoal,conformeaLeiFederalnº173/2020(peça6718590,p2-23)Ajustificativafoi apresentadanosseguintestermos:
OProjetodeLeiqueoraencaminhamosaesseExecutivotemporfinalidade procederaadequaçõesnoPlanoClassificadodeCargosdesteDepartamento, instituídopelaLeinº6203/88esuasalterações,oqualobjetiva:
1incrementarvagasnoscargosdeTécnicoIndustrial(TP-20507),Técnicoem Saneamento(TP-20807),MontadorEletromecânico(OP-20206),Operadorde MáquinasEspeciais(OP-20605)eAgentedeSaneamento(OP-21504)
2.extinguirvagasdoscargosOperárioEspecializado(OB-2.05.02),Auxiliarde ServiçosTécnicos(OB-20106),AuxiliarEletromecânico(OP-2-0405)e InstaladorHidrossanitário(OP-2-1004)
ApresentedemandadecorredanecessidadeurgentedoDmaedeaumentarseu quadrodeservidoresnaquelescargosquecompõemsuasprincipaisequipesde formaapermitirqueoDepartamentorecomponhaessasequipesedessaforma possarealizartodasasatividadesquesãodesuaresponsabilidadeeque garantirãooplenofuncionamentodasunidadesoperacionaisdoDMAE (EstaçõesdeTratamentodeÁgua,EstaçõesdeTratamentodeEsgotos, EstaçõesdeBombeamentodeÁguaBruta,EstaçõesdeBombeamentodeÁgua TratadaeEstaçõesdeBombeamentodeEsgotos) 324
Assinado digitalmente por: Marcelo Kipper da Silva em 14/07/25, Leandro Lobato Camargo em 14/07/25, Leandro Torres em 14/07/25, Fabio Alex Beling em 14/07/25 e outro(s). Confira a autenticidade do documento em www.tce.rs.gov.br. Identificador: PRE.FE77.2360.2A1D.FC7C.62D4.

ESTADODORIOGRANDEDOSUL TRIBUNALDECONTAS
DIREÇÃODECONTROLEEFISCALIZAÇÃO SERVIÇODEAUDITORIADEPORTOALEGRE

EmrelaçãoàextinçãodevagasdoscargosdeOperárioEspecializadoamesma nãotraráprejuízosàsatividadesdesteDepartamento,poisasatribuiçõesdesse cargosãoespecíficasedebaixacomplexidade,bemcomooquantitativode vagasnãoestádeacordocomaatualrealidadedoDmaeOscargosdeAuxiliar Eletromecânico,AuxiliardeServiçosTécnicoseInstaladorHidrossanitárioforam substituídos pelos cargos de Montador Eletromecânico,Técnico em SaneamentoeAgentedeSaneamento,respectivamente.
Oprocessoseguiusuatramitação,registrando-seasseguintesocorrências:
07/07/2021:OexpedientefoiencaminhadopelaDiretoriadeGestãoAdministrativa (DA)àDiretoriaGeral(DG)paraautorizaçãoeposteriorencaminhamentoàSecretariaExecutiva doCGDEP(SECEXP-SMAP)(peça6718590,p27)
NamesmadataoDiretor-Geralratificouasinformaçõesprestadaseautorizouo encaminhamentoàSECEXP-SMAPdoestudodasvagasnecessáriaserepercussãofinanceira doquadronecessáriodeservidoresparaque"nãohajaainterrupçãodosserviçosnomunicípio" (peça6718590,p.28).
Emconsultaalistadeandamentosdoprocesso,constaorecebimento doexpediente,nomesmodia,pelaSEDPES-SMAP(SecretariaExecutivadeDespesasde PessoaldoComitêMunicipalparaGestãodeDespesasdePessoal-CMDP),órgãoque substituiuaSECEXP-SMAP,consoanteDecretosMunicipaisnº21239/20214,nº21360/20225 e21567/20226OCGDEPfoiextintopeloDecretoMunicipalnº21239/20217,sendoassuas competências,posteriormente,assumidaspeloCMDP,criadopeloDecretoMunicipalnº 21514/20228
01/12/2021:ACoordenaçãodeDesenvolvimentoapresentanovamanifestaçãopara finsdejuntadadelevantamentodenecessidadesdepessoal,elaboradoapósarealizaçãode reuniõescomasdiretoriasdoDMAE,sendotambémapresentadomaterialreferenteàproposta deadequaçãodoquadrodeservidores,aqual,apartirdacriaçãoeextinçãodecargosevagas, visaàmodificaçãodaestruturadoDepartamentoTalmodificaçãoalterariaoquadrodepessoal daautarquia,passandodocenárioatualde55cargos/carreirasexistenteserespectivas3662 vagas,paraototalde24cargos/carreiras,compostospor2.086vagas(peça6718590,p.29a 41)
18/03/2022:Juntadaaoexpedientedenovomaterialreferenteàpropostaatualizada deadequaçãodoquadrodeservidoresdoDMAE,oqualapresentanovaprojeçãopara umcenáriofuturo,emqueoquadroseriaintegradopor26cargos/carreiras,compostospor2094 vagas.Odocumentoapresentaaindaarepercussãofinanceiradapropostaeasituaçãode ausênciadeimpeditivos/restriçõesnoquetangeàrelaçãoentreadespesacompessoalea receitacorrentelíquida(peça6718590,p48a57)
10/05/2022:DAemitedespachoparafinsdeencaminhamentodoprocessopara consideraçõeseprosseguimentopelaDG,comasatualizaçõessobreasnecessidadesde pessoaldoDMAE,conformeapresentaçãorealizadanodia04/04/2022aoSr.Prefeito.Alémda propostadeconcursoemcargosnecessáriosepropostadenovaestruturaçãodaautarquia, tambéméreferidaapropostadecontrataçãoemergencialnoscargosdeAssistente Administrativo,AdministradoreEconomistas.Abaixoseguetranscriçãododespachoexarado (peça6718590,p58a68):
ÀDG/DMAE
Prezados, 325

ESTADODORIOGRANDEDOSUL TRIBUNALDECONTAS
DIREÇÃODECONTROLEEFISCALIZAÇÃO SERVIÇODEAUDITORIADEPORTOALEGRE

Encaminhamosoprocessoemtela,atualizadaasnecessidadesdepessoaldo Departamento,deacordocomaapresentaçãodia04/04/2022aoSrPrefeito
Trata-sedepropostadeaberturadeconcursoparaoDepartamentoemcargos necessários,bemcomopropostadenovaestruturaçãocomextinçãoecriação devagasecargos,repercussãofinanceira,conformedemonstradonodespacho 18559457
Tambémpropomosacontrataçãoemergencial,noscargosdeAssistente Administrativo,AdministradoreEconomistas,considerandoanecessidade imediatadestescargosequantitativos,parasuprirmosdemandasno Departamento,casohajaentendimentodestaopção,tambémencaminhamosa repercussãofinanceira
Assim, solicitamos suas considerações e após encaminhamento à SEDPES/SMAPeLEGIS/GPEstamosàdisposiçãoparaesclarecimentos
18/05/2022:Expedienteéencaminhadoparaanáliseedeliberaçãopela SEDPES/SMAP(SecretariaExecutivadoComitêMunicipalparaGestãodeDespesasde Pessoal-CMDP)(peça6718590,p69)
05/07/2022:ExpedienteéencerradonaAJLdoGabinetedoPrefeito,pormeiode despachoexaradonosseguintestermos(peça6718590,p70):
Ciente
ConsiderandoqueamatériacabeaoComitêMunicipalparaGestãode DespesasdePessoal(CMDP),comoassessoramentodaSEDPES-SMAP, encerrooexpedienteApósdeliberaçãofavoráveldoComitêeinstruçãodo processocomminutaetramitaçãonostermosdaOS005/2021,retornepara análise
16/08/2022:DAemitedespachocientificandotodasasdemaisdiretoriasdoDMAE sobreosestudosrealizadosedemonstraçãodanecessidadedealteraçãodecargosevagas, paratornaroDepartamentomaisotimizadoeminimizarpossíveisdesviosdefunçõesA manifestaçãotambémfazreferênciasobreoencaminhamentodaapresentaçãoaoGabinetedo PrefeitoeàSEDPES/SMAP,concluindopelasolicitaçãodeprovidênciaspararealizaçãode concursopúblicoeencaminhamentodeprojetodeleiparaprovimentodecargosevagas necessárias(peça6718590,p71)
23/08/2022:DiretoriadeTratamentodeÁguaeEsgotos(DT)emitedespacho manifestandopelamanutençãodasnecessidadesdereposiçãodepessoalanteriormente apresentadas,porémapresentaconsideraçõesarespeitodasprioridadesesugereaadoçãodo modelodecontrataçãoemergencial,reforçandooentendimentopela"necessidadedequeos serviços desempenhados pelo Departamento que necessitam de prontidão e elevada qualificaçãoeconhecimentodoserviçodevemserexecutadosporservidoresconcursados" , tendoemvistaque"oregimedecontrataçãodeserviçosparaessescasostemdemonstrado prejuízoàqualidadedosserviçosentreguesàpopulação"(peça6718590,p72a73)Abaixo seguetranscriçãododespachoexarado:
ÀDA,
AsgerênciasdaDTemciênciaaopresenteexpediente,manifestamque,com 326

ESTADODORIOGRANDEDOSUL TRIBUNALDECONTAS
DIREÇÃODECONTROLEEFISCALIZAÇÃO SERVIÇODEAUDITORIADEPORTOALEGRE

relaçãoàsdemandasdepessoalcontidasnoslevantamentosdoanode2021, 16528705e16528734(referentesàGDCOeGMAN),semantémanecessidade dereposiçãodogrupofuncional;entretanto,fazemosalgumasbreves consideraçõesatítulodecontribuiçãonaconstruçãodademandade contrataçãoemergencialerealizaçãodeconcursopúblico:
1-Foicitadooprocesso22.10.000002578-6,sobreanecessidadede contrataçãoemergencialparaoscargosdeadministrador,assistente administrativoeeconomistaNãovemosóbicenademanda;entretanto;oDMAE temenormeslacunasdeservidoresnasáreasoperacionais;sugerimosreavaliar ademandadequantitativosparaocargodeassistenteadministrativoàluzdas prioridadesdoDepartamentonestemomento;
2-ADTaproveitaaoportunidadeemanifestaanecessidadedereposição imediatadosseguintescargosequantitativos.Emvirtudedaurgênciadesta reposiçãosugerimosousodomodelodecontrataçãoemergencial,seguidade concursopúblicoparaprovimentodecargos:
-GerênciadeTratamentodeEsgotos/GATE:03agentesdesaneamento;01 operadordemáquinasespeciais;01técnicoemsaneamento;
-GerênciadeDistribuiçãoeColeta-GDCO-35agentesdesaneamento;4 técnicosemsaneamento;
-GerênciadeTratamentodeÁgua-GTAG:04agentesdesaneamento;01 operadordemáquinasespeciais;08operadoresdesubestação;
-GerênciadeManutençãoIndustrial-GMAN-processoseletivoemergencialem cursovideprocessoSEI:2210000002798-3;-DT-01Engenheirocivil
Ademandadescritanoitem2tratadequantitativosnecessáriosparaquenão hajasoluçãodecontinuidadenosserviçosprestadospelaDT.Enfatizamosque asgerênciasretrocitadasatendemoprocessodetratamentodeágua(6ETAS), tratamentodeesgotos(9ETEs),operaçãodebombeamentodeáguatratada (87EBATs),estaçõesdebombeamentodeáguabruta(6EBABs),reservatórios deágua(101unidades),serviçodecaminhãopipa(7veículosemoperação); estaçõesdebombeamentodeesgoto(36EBEs),estaçõesdebombeamentode águapluviais(23EBAPs);serviçosdemanobraemrededeáguaeesgotose manutençãodeadutorasAGMANatuanamanutençãoeletromecânicade todasasestruturasretrocitadasedemaisquesurjamnaestruturado DepartamentoTodasasgerênciastemmodelodefuncionamentode24horas, 7diasporsemana,excetoaáreaadministrativa
Noquetange,aoposicionamentodestaDiretoria,temosmantidoaposição sobreanecessidadedequê[sic]osserviçosdesempenhadospelo Departamentoquenecessitamdeprontidãoeelevadaqualificaçãoe conhecimentodoserviçodevemserexecutadosexclusivamenteporservidores concursados;hajavistaqueoregimedecontrataçãodeserviçosparaestes casostemdemonstradoprejuízoàqualidadedosserviçosentreguesà população
Porfim,vistoqueesteprocessoobjetivapropostadeaberturadeconcursopara oDepartamentoemcargosnecessários,equeoscargosdeAssistente Administrativo,Administrador,AssistenteSocial,Biólogo,EngenheiroCivile 327

ESTADODORIOGRANDEDOSUL TRIBUNALDECONTAS
DIREÇÃODECONTROLEEFISCALIZAÇÃO SERVIÇODEAUDITORIADEPORTOALEGRE

EngenheiroQuímicojáforamincluídosemconcursopúblicojáemandamento, comprevisãodeprovasem09/10/2022(OrganizadoraFundaçãoLaSalle,Edital de Abertura nº 059/2022 (https://fundacaolasalleorgbr/wpcontent/uploads/2022/05/edabertpoa5922pdf), sugerimos suprimir a solicitaçãoparaestescargosdopresenteprocessodeautorizaçãoparaabertura deconcurso
Entendemos ser prioridade haver concurso público vigente para o Departamento,comapossibilidadedechamamentodosaprovados,mediante necessidadesjáexpostasnesteexpediente,bemcomoparasuprimentodas vagasquesurgiremdasaposentadoriasrealizadaseemandamento ÀDGeGDA, Paraconhecimento.
25/08/2022:EmrespostaàmanifestaçãodaDT,aDAemitedespachocomas seguintesinformações(peça6718590,p74e75):
ÀDT
Prezados,
Emrespostaasuasconsiderações,informamos:
DEMANDA1
QuantoaoconcursoemergencialparaAssistenteAdministrativo/Administrador /Economista-asolicitaçãofoiretiradaapósasreuniõesjuntoaonúcleode governo,tendoemvistaoconcursopúblicoemandamentopelaSMAP DEMANDA2
AcontrataçãotemporáriapropostaeapresentadaparaAgentedeSaneamento( 100vagas)eTécnicoemSaneamento(100vagas),tramitaemoutroprocesso, detodaformaesteprocessodeverápassarpelaCâmaraMunicipal,pois necessitadeautorização;
EstamosencaminhandonovoeditalparaacontrataçãotemporáriadaGMAM hajavistoquenãoobtivemosêxitonooutroedital,comoédeconhecimento dessaDiretoria;bemcomopropostadeconcursopúblicoparaessescargos,que tambémtramitaemoutroprocesso;
QuantoademandadeEngenheiroCivil,informamosqueháatualmenteno quadrodoDepartamento76EngenheirosCivil
Quantoaosdemaiscargosqueestãoemconcursopúblicosendorealizadopela SMAP,SIM,estamosaguardandoafinalizaçãoesolicitamosautorizaçãopara ampliaçãodevagasdentrodenossasnecessidades,especialmenteem assistenteadministrativo
Assim,tãologohajaahomologaçãodoconcursopúblicopelaSMAPfaremoso chamamentodentrodasnecessidadesdecargosevagas,desdeque 328

ESTADODORIOGRANDEDOSUL TRIBUNALDECONTAS
DIREÇÃODECONTROLEEFISCALIZAÇÃO SERVIÇODEAUDITORIADEPORTOALEGRE
autorizados,comojáexplicitadoanteriormente;

ADAeGPEStrabalhaeestátrabalhandocomempenhoematenderas necessidadedepessoalàtodasasdireções,afimdebematenderàdemanda deabastecimento,manutençãodasredesdeágua,esgotocloacalepluvialno MunicípiodePortoAlegre
LembramosqueesteprocessoestácomasnecessidadesdesdeSET/2021e houvemudançasapósasreuniõescomocentrodegoverno,oobjetivoera socializaromaterialapresentadoaoGP
Estamosàdisposiçãoparaesclarecimentos
Att
ÀDGeDGA paraconhecimento
Odespachoemitidofoiaúltimamovimentaçãodoprocesso
Relativamenteàspropostasdeaberturadeconcursosparacargosefetivosede adequaçãodoquadroenovaestruturação,apartirdacriaçãoeextinçãodevagasecargos,não houvequalquermanifestaçãodosmembrosdoCMDPedoPrefeitonoexpediente,emque peseoregistrodacientificaçãodessesagentespúblicos,atravésdereuniõescomocorpo diretivodoDMAE(peça6718590,p58e71)
NotocanteàefetivaçãodascontrataçõestemporáriasparaoscargosdeAgentesde Saneamento,OperadordeMáquinasEspeciais,TécnicosemSaneamento,Operadoresde Subestação,houveaautorizaçãolegislativapelasLeisMunicipaisnº13032/20229(Operadorde MáquinasEspeciais)enº13.345/202210(AgentesdeSaneamento,TécnicoemSaneamentoe OperadoresdeSubestação)
•Processonº22.10.000004786-0
Trata-sedeprocessoinstaurado,em08/06/2022,pelaGerênciadeGestãode Pessoas(GPES),parafinsdeencaminhamentodeMinutadeProjetodeLei,visandoa adequaçãodoquadrodepessoaldoDMAE,pormeiodacriação,alteraçãoeextinçãodecargos (peça6718591,p1a15)Comojustificativaparaacriaçãode1122vagas,extinçãoimediata de1747vagaseextinçãoprogressivaalongoprazodemais348vagasecargos,foram apresentadososseguintesargumentos:
Apresentesolicitaçãobaseia-senanecessidadedeadequaçãodoquadro depessoaldestaAutarquia,deformaaacompanharanecessária atualizaçãodasatividadesdesempenhadaspeloDMAE,qualificandoe aprimorandoodesempenhodagestãodoDmae,deformaabuscara melhoriacontínuadosserviçosprestadosàpopulaçãodePortoAlegre.
EmrelaçãoaoscargosdeTécnicodeSaneamento,MontadorEletromecânico, OperadordeMáquinasEspeciais,SoldadoreAgentedeSaneamentonossa solicitaçãodecorredanecessidadeprementedoDmaedeaumentarseuquadro depessoaltécnico,comvistaaampliarsignificativamenteasvagasecargos quedãomaiorpossibilidadedegerenciamentoedecontrataçõespor 329

ESTADODORIOGRANDEDOSUL TRIBUNALDECONTAS DIREÇÃODECONTROLEEFISCALIZAÇÃO SERVIÇODEAUDITORIADEPORTOALEGRE

desempenhoeresultadodasatividadesdesaneamentoecontamcom atribuiçõesmaisamplas,oqueirápotencializarasatividadesdasequipes
AcriaçãodoscargosdeTécnicoemSaneamentoirásuprirasnecessidadesdas demandascomaextinçãodosseguintescargos:
-AuxiliardeServiçosTécnicos,82vagasemsuatotalidade;
-TécnicoIndustrial,20vagasemsuatotalidade;
-TécnicoemTratamentodeÁguaeEsgotos,95vagasemsuatotalidade Sendoumtotalde194(centoenoventaesete)vagas
Importantefrisar,queparaacolocaçãodoscargosreferidosacimaemextinção, éprimordialaautorizaçãodecriaçãodasvagasdocargodeTécnicode Saneamento,sobpenadeficaroDepartamento,semcondiçõesdeexecutaros serviçosàpopulação
AcriaçãodocargodeOperadordeMáquinasespeciaisirásupriras necessidadesdasdemandasdocargodeMotorista,sendo67vagasemsua totalidade
Ressaltamosainda,queparaaextinçãodoscargosdeMotoristaecriaçãodos cargosdeOperadordeMáquinasEspeciaisénecessárioamudançadas atribuiçõesdoscargoscriados,incluindoaatribuiçãonadescriçãosintética: operarveículosautomotoreseincluirnadescriçãoanalítica:conduzirveículos automotoresdestinadosaotransportedepassageirosecargaseretirara expressão:eventualmenteconduziroutrosveículos
AcriaçãodoscargosdeAgentedeSaneamentoirásuprirasnecessidadesdas demandascomaextinçãodosseguintescargos:
i-InstaladorHidrossanitário,450vagasnasuatotalidade;
ii-OperárioEspecializado,707vagasemsuatotalidade;
iii-Operário,302vagasemsuatotalidade;
iv-Carpinteiro,10vagasemsuatotalidade;
v-Ferreiro,5vagasemsuatotalidade;
viPedreiro,30vagasemsuatotalidade
Sendoumtotalde1504(milquinhentasequatro)vagas
Importantefrisar,queparaacolocaçãodoscargosreferidosacimaemextinção, éprimordialaautorizaçãodecriaçãodasvagasdocargodeAgentede Saneamento,sobpenadeficaroDepartamento,semcondiçõesdeexecutaros serviçosàpopulação
Emrelaçãoàextinçãodevagasedecargosamesmaocorrenaquelescargos comatribuiçõesmuitoespecíficasedebaixacomplexidadeoucujoo quantitativodevagasnãocondizescomaatualrealidadedoDmaeoucargos cujasatividadesoDepartamentonãomaisnecessita 330

ESTADODORIOGRANDEDOSUL TRIBUNALDECONTAS
DIREÇÃODECONTROLEEFISCALIZAÇÃO SERVIÇODEAUDITORIADEPORTOALEGRE

EmrelaçãoaoscargosdeNívelSuperior:Administrador,Arquiteto, Economista,Engenheiro,QuímicoeAnalistadeTecnologiadaInformação, informamosqueadefasagemdevagasnestescargosvemcrescendoao longodotempo,tendoemvistaanecessidadecadavezmaiorde servidoresquepossamplanejareexecutaratividadesdemaiorcomplexas equepossamefetivamenteseresponsabilizartecnicamentepelas mesmas.
RessaltamosqueoDMAEhojecontacom04(quatro)servidoresdetentoresdo cargodeAdministradoradidose23(vinteetrês)servidoresEngenheirosadidos
Importante,ainda,referirqueaampliaçãodoscargosdenívelsuperior traráascondiçõesdecumprimentodasexigênciasdaSMTCeCGMquanto àssegregaçõesdefunçõesentreGestordeContratoeFiscaldeContrato, tendoemvistaagrandequantidadedecontrataçõesquedesenvolvemos noDepartamento,oquejustificaanecessidadedeincrementodevagas doscargosdeAdministradoreEngenheiro
Ainda,visandoanãotrazernenhumprejuízoaosatuaisservidoresdoDmae, incluímosprevisãodequeaosservidoresinvestidosnoscargosemextinção estãoasseguradastodasasvantagensinerentesaoscargos,emespeciala ascensãofuncionalpormeiodaprogressãoepromoção(art4º,§2º)
Assim,apresentamosabaixoumquadrogeraldanossapropostadecriaçãoe extinçãodevagas:
()
Conformeseverificanastabelasacima,apresentepropostapretendea, imediatamente,criar1122vagas,representandorepercussãofinanceiradeR$ 38525991,65(trintaeoitomilhõesquinhentosevintecincomilnovecentos noventaumreaissessentacincocentavos),somentenomomentode preenchimentodasvagas,apósasdevidasautorizações,eextinguir1747 vagas,comrepercussãofinanceiradeR$68912057,56(sessentaoitomilhões novecentosedozemilcinquentasetereaiscinquentaseiscentavos)Aocolocar emextinçãodiversoscargosevagas,aolongodotemporesultaránaextinção demais348vagasquerepresentafinanceiramenteR$15.349.703,94(quinze milhõestrezentosequarentanovemilsetecentostrêsreaisnoventaquatro centavos,totalizandoumaREDUÇAOR$84261761,50(oitentaquatromilhões duzentossessentaummilsetecentosesessentaumreaiscinquentacentavos) Dessaforma,oquadrodeservidoresefetivosdoDmaequehojeéde3662 vagaspassarádeimediato,apósaprovaçãodapresentelei,acontarcom2689 vagas
Emsíntese,apropostalevadaàapreciaçãodessaCâmaraMunicipaldePorto Alegresolicitaa)criaçãode1122vagasnoscargosessenciaiseestratégicos paraarealizaçãodasatividadesdoDepartamento:Administrador,Arquiteto, Economista,Engenheiro,Químico,AnalistadeTecnologiadaInformação, TécnicodeSaneamento,MontadorEletromecânico,OperadordeMáquinas Especiais,SoldadorIndustrial,AgentedeSaneamentoeTécnicoem EnfermagemdoTrabalho;b)aextinçãode1747vagasnoscargosdebaixa complexidadee/oucujasatribuiçõesesteDepartamentonãonecessitamais: Arquivista,Biólogo,CirurgiãoDentista,Farmacêutico,Médico,Agentede 331
Assinado digitalmente por: Marcelo Kipper da Silva em 14/07/25, Leandro Lobato Camargo em 14/07/25, Leandro Torres em 14/07/25, Fabio Alex Beling em 14/07/25 e outro(s). Confira a autenticidade do documento em www.tce.rs.gov.br. Identificador: PRE.FE77.2360.2A1D.FC7C.62D4.

ESTADODORIOGRANDEDOSUL TRIBUNALDECONTAS
DIREÇÃODECONTROLEEFISCALIZAÇÃO SERVIÇODEAUDITORIADEPORTOALEGRE

ServiçosExternos,Contínuo,AuxiliardeServiçosGerais,Operário,Auxiliar Eletromecânico,OperadordeEstaçãodeTratamento,Carpinteiro,Ferreiro, InstaladorHidrossanitário,Motorista,Pintor,ServentedeLaboratório,Auxiliarde ServiçosTécnicos,Mestre-de-Obras,OperadordeSubestação,Operário Especializado, Operador de Artes Gráficas, Telefonista, Assistente AdministrativoeGuardaMunicipal;c)extinguiroscargosdeAuxiliarde Enfermagem,AuxiliardeServiçoSocial,Pedreiro,OperadordeRede, Bibliotecário,Estatístico,TécnicoemAgrimensuraeTécnicoemArquivod) colocaremextinção,àmedidaquevagarem,oscargosdeAuxiliardeServiços Gerais,AuxiliardeServiçosTécnicos,AuxiliarEletromecânico,Carpinteiro, CirurgiãoDentista,Contínuo,Farmacêutico,Ferreiro,InstaladorHidrossanitário, MestredeObras,MotoristaOperadordeArtesGráficas,OperadordeEstação deTratamento,Operário,OperárioEspecializado,Pintor,Serventede Laboratório,TécnicoemHigieneDental,TécnicoemTratamentodeÁguae Esgotos,TécnicoIndustrial,TelefonistaeTécnicoemTreinamentoeSeleção
Em10/06/2022apropostafoiencaminhadaparaanáliseedeliberaçaopelaDiretoria deGestãoAdministrativa(DA)(peça6718591,p16),sendoremetidoparaanáliseda ProcuradoriaGeraldoMunicípio(PGM)(peça6718591,p20)
Paralelamenteaoencaminhamentodoprojetodelei,tambémfoiincluídano processo,em23/06/2022,demandarelativaaopedidodeautorizaçãourgentedeconcurso públicoparaoscargosdeAssistenteAdministrativo(100vagas),TécnicoemSaneamento(80 vagas)eAgentedeSaneamento(60vagas),tendoemvistaque"aatualsituaçãodecarênciade pessoal está na iminência de provocar um colapso administrativo e operacional no Departamento"(peça6718591,p.21e22).Asolicitaçãofoiencaminhadaparaapreciaçãoda DiretoriaGeral(DG),queremeteuoexpedienteparaautorizaçãodoPrefeito,em28/06/2022 (peça6718591,p23e24)
Oprocessoseguiusuatramitação,registrando-seasseguintesocorrências:
29/06/2022:DespachoemitidopeloGabinetedoPrefeitoencaminhaoprocessopara àSecretariaExecutivadeDespesadePessoal(SEDPES),parafinsdeanálise,instruçãoe posteriordeliberaçãopeloComitêMunicipalparaGestãodeDespesasdePessoal(CMDP)(peça 6718591,p.25).
01/07/2022:EmitidaNotaTécnicanº177/2022pelaProcuradoriaMunicipal Especializada(peça6718591,p26a31)Oparecerjurídicoapresentouconclusãopornão haveróbiceaoprojetodelei,sendoreferidoquealémdoprojetodeleinãoimplicaremaumento dedespesa,acarretaráreduçãodedespesa,considerandooscargososquaissepretende extinguirecriar,tratando-sede"providência essencial em virtude da nova estrutura do Departamento"
12/07/2022:SEDPESemitedespachosolicitandoaoDMAEumasériede informaçõesadicionaisparaoseguimentodaapreciação(peça6718591,p.33e34).
26/08/2022:EmrespostaaDG,fundamentadanasinformaçõesanteriormente prestadaspelaGPESeDA(peça6718591,p.78a82),emitiudespachonosseguintestermos (peça6718591,p83e84):
ÀGP-PMPA
Encaminhoexpediente,ematendimentoaodespachoGP-PMPA(19572368),o qualseguemasinformaçõesadicionaissolicitadas: 332

ESTADODORIOGRANDEDOSUL TRIBUNALDECONTAS
DIREÇÃODECONTROLEEFISCALIZAÇÃO SERVIÇODEAUDITORIADEPORTOALEGRE

•Processo2110000003952-8–processoabertointernonoDMAE,para quecadadireçãoinformasseanecessidadedepessoal(mínimoe máximo),estudofinalizadoemSET/2021,eremodeladoapósreuniãocom Sr.Prefeitoem04/04/2022,nesteprocessoconstaanecessidadedepessoale foiencaminhadoàSEDPES/SMAPeLEGIS/GPem18/05/2022,comonão tínhamosretorno,assimencaminhamosoprocesso2210000004786-0em 10/06/2022
•Nesteprocesso2210000004786-0constaoProjetodeLei,oriundoda necessidadedepessoal,readequandovagasecargosnecessáriopara concursopúblicoNosfoidevolvidocomquestionamentosdaSEDPESem 12/07/2022Em20/07/2021–fomoschamadosparareuniãosobredesvio função,quandooSrPrefeitonossolicitouapresentaçãodasnecessidadesde pessoal,quealinhássemosjuntoàSMAPRealizamosareuniãocomRodrigo daSEDPES,em25/07/2022,ondeapresentamosomaterialquefoielaborado juntoàsdiretoriasdoDepartamento,ealinhamosumapropostadeconcurso paracargosespecíficosdoDMAE,deumaformaqueasdemaissecretarias,em casodeconcessãodoDepartamento,pudessemtambémaproveitaresses cargosDestareuniãoencaminhamosumapropostareduzidadecargose vagas,paraqueatendaaoDepartamentoequesereduzaapossibilidadede eventuaisdesviosdefunçãoMaterialestánoprocesso2210000004786-0 SolicitamosquequandohouverareuniãoSEDPESqueoDepartamentoseja chamadoaparticipar
•Processo2210000007070-6-trataoprocessodecontratação emergencialdeTécnicoeAgentedeSaneamento,encontra-senoLEGISGPdesde12/08/2022,apósreuniãocomoVice-Prefeitonodia03/08/2022, comoformapaliativadeatenderasáreasoperacionais,atéquesedefinao modeloconcessãoEsseprojetoemergencialcarecedeautorizaçãolegislativa
SalientamosanecessidadedeAssistenteAdministrativo,considerandoafalta destamãodeobranoDepartamentonasdiretorias,citamosaquestãode atendimentodaDiretoriaComercial,comoexemplo,fatorelatadopeloDiretorda ÁreanareuniãocomPrefeitoemabril,enaáreadaDA/GPESemummesmo setorestamosnaiminênciadedesligamentode3servidoresqueestãoem condiçõesdechamamentoemConcursosPúblicosdeoutrasesferaspública Comoháconcursopúblicoabertoeaptoaserhomologadoemnovembro/22, importanteautorizaraampliaçãodevagasparaochamamentodepessoal, nestecargo
SalientamosquenoProjetodeLeiReduzido(processo2210000004786-0), constaanecessidadedeconcursopúblicoparacontemplaroscargosvagos daGMAM,considerandofracassadaatentativadecontrataçãotemporária; adequaçãodevagasdoscargosdeAgenteeTécnicodeSaneamento; eadequaçãodevagasdocargodeAdministrador,poisháconcursopúblico abertopelaSMAPenãotemosvagasparachamamento,emudançanas atribuiçõesdocargoOperadordeMáquinasEspeciais,passandoesseapoder dirigirveículoslaeves,poisestamosextinguindoocargodemotorista

ESTADODORIOGRANDEDOSUL TRIBUNALDECONTAS
DIREÇÃODECONTROLEEFISCALIZAÇÃO SERVIÇODEAUDITORIADEPORTOALEGRE

08/10/2022:GPESemitedespacho(peça6718591,p93e94),acompanhadode novaminutadelei(peça6718591,p86a92),visandoacriaçãode100cargosdeTécnicoem Saneamentoe100cargosdeAgentedeSaneamentoAbaixoseguetranscriçãododespacho:
ÀDA
Encaminhamos,conformesolicitado,MinutadeProjetodeLei(20759268)que temoobjetivodecriar100(cem)cargosnaclassedecargosdeTÉCNICOEM SANEAMENTOe100(cem)cargosnaclassedecargosdeAGENTEDE SANEAMENTO,conformejustificativasapresentadasnamencionadaMinutade ProjetodeLei
Emrelaçãoarepercussãofinanceira,acriaçãode200cargosapresenta repercussãofinanceiraparaoexercíciode2022(02meses)deR$ 2208634,16,sendoquepropomosaextinçãode243cargos,comrepercussão financeiradeR$2213704,56,tambémparaoexercíciode2022,representando umadiferençaamenordeR$5070,40,conformeresumoabaixo: ()
Informamosqueasolicitaçãooraencaminhadavisaaadequaroquadrode cargosefetivosdesteDepartamento,deformaaestarpreparadoparaaatender asdemandasdapopulaçãodePortoAlegrequandodasdefiniçõesdoMunicípio sobreaformadeprestaçãodosserviçoshojesobresponsabilidadedoDMAEe estálinhadaàsolicitaçãoencaminhadapormeiodoSEI2210000007070-6que tratadacontrataçãotemporáriade100TécnicoemSaneamento,100Agentede Saneamentoe20OperadordeSubestação
Ressaltamosquedeixamosdeincluiracriaçãodecargosparaaclassedecargo deOPERADORDESUBESTAÇÃO,tendoemvistaqueoDMAEcontacom120 cargosvagosedessaformanãosefaznecessáriaasolicitaçãodenovasvagas Assim,encaminhamos:
-MinutadeProjetodeLeiquecria200cargoseextingue258cargos-doc 20759347
-RepercussãoFinanceira-criaçãode200cargos-doc.20759352
-RepercussãoFinanceira-extinçãode200cargos-doc20759353
Anovaminutadeprojetodeleirestringiu-seapenasàcriaçãodecargosdeTécnico deSaneamentoedeAgentedeSaneamento,propostaemquantitativosexpressivamente inferioresaosestabelecidosnoprojetoanterior(100vagasparacadacargoaopassoqueo projetoanteriorestabelecia400vagasparaTécnicodeSaneamentoe550vagasparaAgentede Saneamento)Ademais,foiretiradaapropostadecriaçãodecargosdeAdministrador(13 vagas),Arquiteto(07vagas),Economista(08vagas),Engenheiro(31vagas),Químico(06 vagas),AnalistadeTecnologiadaInformação(06vagas),MontadorEletromecânico(50vagas), OperadordeMáquinasEspeciais(40vagas),SoldadorIndustrial(10vagas)eTécnicoem EnfermagemdoTrabalho(1vaga).
10/10/2022:DAencaminhaoexpedienteparaaSEDPES,sendonamesmadata emitidaaDeliberaçãonº053/2022doCMDP,aqualconcluipelaautorizaçãodoenviodoprojeto 334
Assinado digitalmente por: Marcelo Kipper da Silva em 14/07/25, Leandro Lobato Camargo em 14/07/25, Leandro Torres em 14/07/25, Fabio Alex Beling em 14/07/25 e outro(s). Confira a autenticidade do documento em www.tce.rs.gov.br. Identificador: PRE.FE77.2360.2A1D.FC7C.62D4.


DIREÇÃODECONTROLEEFISCALIZAÇÃO SERVIÇODEAUDITORIADEPORTOALEGRE
deleiparacriaçãodecargosdeAgentedeSaneamento(100cargos)edeTécnicoem Saneamento(100cargos)(peça6718591,p96a98)
14/10/2022:ADivisãodeInformaçõesLegaiseGerenciaisdaContadoriaGeraldo Município(DILG/CTGM/SMF)emitiuanálisesobreocomprometimentodadespesadepessoal emfunçãodareceitacorrentelíquida,relativaàrepercussãofinanceiradoprojetodelei, cujocálculoresultouempercentuaisentre40,76%e44,03%e,consequentemente,abaixodo limiteparaemissãodealerta(peça6718591,p102e103)Atocontínuo,oSecretárioMunicipal daFazendaemitedeclaraçãodequeoimpactofinanceiroseránulo,estandoemconformidade comolimitedegastoscomdespesadepessoalemrelaçãoàreceitacorrentelíquida(peça 6718591,p104e105)
07/02/2023:Considerandoatrocadotitular,oexpedienteérestituídopelaAssessoria paraAssuntosEspeciaiseInstitucionaisLegislativosdaPGMaonovoDiretorGeraldoDMAE, parareanálisedointeressenatramitaçãodaproposta(peça6718591,p.107).
13/03/2023:Diretorgeralinformaqueanecessidadeestámantida(peça6718591,p 108)
04/04/2024:AAssessoriaparaAssuntosEspeciaiseInstitucionaisLegislativosda PGMemitedespachocertificandoqueoencaminhamentodoprojetodeleiobjetodo expedientenãofoiautorizadopeloPrefeito,sendooprocessoencerradonestadata(peça 6718591,p109)
Frenteaoexposto,aindaqueanteriormenteautorizadopeloCMDP11,o encaminhamentodoprojetodeleinãoteveseguimentoemvirtudededecisãoexclusivado PrefeitoMunicipal,nãosendoregistradasnoexpedientequaisseriamasjustificativaspara tomadadedecisão
Importantemencionarqueoprojetodeleiinicialmenteentendidocomonecessário paraoDMAEfoiposteriormentemodificado,demodoqueonovoprojetoapresentouuma reduçãoexpressivanosquantitativosprevistosparaoscargosdeTécnicodeSaneamentoe AgentedeSaneamento.Alémdisso,foiretiradaapropostadecriaçãodediversoscargos,entre osquais,cargosdenívelsuperior,necessáriosemrazãodadefasagemnonúmerodevagas existentesedanecessidadecadavezmaiordeservidoresparaplanejamentoeexecuçãode atividadesdemaiorcomplexidade,bemcomoparaassegurarocumprimentodoprincípioda segregaçãodefunçõesentregestordecontratoefiscaldecontrato,tendoemvistaagrande quantidadedecontrataçõescelebradaspeloDepartamento
Noquedizrespeitoàsolicitaçãodeaberturadeconcursopúblicoparaoscargosde AssistenteAdministrativo,TécnicoemSaneamentoeAgentedeSaneamento,tambémnãofoi registradanenhumaautorizaçãonoprocessoemanálise12 .
1Em16/02/2020oCGDEPemitiudespachoedevolveuoreferidoexpedienteaoDMAEparaque fosseelaboradoprojetodeleicomamodernizaçãodoscargosequadrodepessoal
2FoireferidoqueademandadaDiretoriadeOperaçõesestariacontempladaparcialmente,tendo emvistaoenvioparcialdassuasnecessidades,oquedemandariaumnovoprojetodeleipara atendimento
3Tambémfoimencionadaasolicitaçãodecriaçãode22vagasrealizadanoProcessoSEI 2110000004664-8,referenteaoscargosdeFresador(2),MontadorEletromecânico(12), OperadordeMáquinasEspeciais(2),SoldadorIndustrial(3)eTécnicoIndustrial(3)
4Disponívelem:
5Disponívelem:http://leismunicipais/revhz,consultaem07/11/2024
6Disponívelem:http://leismunicipais/eydrz,consultaem07/11/2024
7Disponívelem:http://leismunicipais/zqmat,consultaem07/11/2024
8Disponívelem:http://leismunicipais/zlpvx,consultaem07/11/2024 335
Assinado digitalmente por: Marcelo Kipper da Silva em 14/07/25, Leandro Lobato Camargo em 14/07/25, Leandro Torres em 14/07/25, Fabio Alex Beling em 14/07/25 e outro(s). Confira a autenticidade do documento em www.tce.rs.gov.br. Identificador: PRE.FE77.2360.2A1D.FC7C.62D4.

ESTADODORIOGRANDEDOSUL TRIBUNALDECONTAS
DIREÇÃODECONTROLEEFISCALIZAÇÃO SERVIÇODEAUDITORIADEPORTOALEGRE

9Disponível em: http://leismunicipais/odwsz Vide tópico de análise do expediente 2110000004664-8Posteriormente,houveapublicaçãodaLeinº13561/2023,tratadano mesmoprocesso
10Disponível em: http://leismunicipais/096nb Vide tópico de análise do expediente 2210000007070-6
11TambémfoiautorizadopelopróprioPrefeitoMunicipal,queassinouaDeliberaçãonº053/2022
12PormeiodasLeisMunicipaisnº13345/2022enº13779/2023,foiautorizadaacontrataçãode temporáriasdecargosdeTécnicoemSaneamentoeAgentedeSaneamento
8ANEXO-ANÁLISEEXPEDIENTESCONTRATAÇÕESTEMPORÁRIAS
•Processonº20.10.000002341-3-LeiMunicipalnº12.715/2020
Oprocessofoiinstaurado,em18/03/2020,pelaDiretoriaGeral(DG),parafinsde solicitaçãodeautorizaçãolegislativaparacontrataçãoemergencial,porprazodeterminado,de 40(quarenta)TécnicosemTratamentodeÁguaeEsgotos(peça6718546,p1)Oexpediente tramitouparaanálisejurídicaeadequaçãodaminutadeprojetodelei(peça6718546,p.2a 20),sendoposteriormenteencaminhadoaoComitêparaGestãodeDespesasdePessoal (CGDEP),queautorizouoprosseguimentodoprojetodelei(peça6718546,p21a24)
EmatendimentoàsugestãodaAssessoriaparaAssuntosEspeciaiseInstitucionaisLegislativodaProcuradoriaGeraldoMunicípio(peça6718546,p25),aminutadeprojetodelei foireadequadaparacontemplartambémacontrataçãotemporáriadoscargosdeFresador(01), OperadordeMáquinasEspeciais(02),SoldadorIndustrial(05)eTécnicoIndustrial(01),cuja propostaconstanoprocesso2010000002335-9(peça6718546,p26a36)
Aminutadoprojetofoinovamentemodificada(peça6718546,p.37a45),sendoo projetoencaminhadoaoPoderLegislativoem04/06/2020,comaprovaçãoem22/06/2020(peça 6718546,p46a55),resultandonapublicaçãodaLeiMunicipalnº12715/2020(peça6718546, p.56a61).Ajustificativaapresentadaexpôsosproblemasdeinsuficiênciadoquantitativo deservidoresparaocumprimentodascompetênciasrelativasàoperaçãodeestaçõesde tratamentodeáguaedeesgoto,bemcomoasatividadesdemanutençãoindustrialdasunidades operacionais(estaçõesdetratamentoedebombeamentodeáguaeesgotos),dentrodocontexto dapandemiadoCovid-19:
ODepartamentoMunicipaldeÁguaeEsgotos(DMAE)éumaAutarquia municipalquetemacompetência,entreoutras,dotratamentodaáguapara consumohumanoedotratamentoedestinofinaldosesgotossanitáriosdePorto AlegreParacumprircomessascompetênciasprecisacontarcomumquadrode servidoresemquantidadesuficientepararealizaraoperaçãode6(seis) EstaçõesdeTratamentodeÁgua(ETAs)e10(dez)EstaçõesdeTratamentode Esgoto(ETEs),alémdoscontrolesanalíticoseambientais,bemcomoas atividadesdemanutençãoindustrialdasunidadesoperacionais(Estaçõesde TratamentodeÁgua,EstaçõesdeTratamentodeEsgotos,Estaçõesde BombeamentodeÁguaBruta,EstaçõesdeBombeamentodeÁguaTratadae EstaçõesdeBombeamentodeEsgotos)
DiantedoatualcontextodapandemiadonovoCoronavírus(COVID-19), declaradapelaOrganizaçãoMundialdaSaúde(OMS),comalgumasorientações expedidas,pontua-sealgumasconsideraçõesarespeitodoquadrofuncionaldo DMAE:
-aexistênciade23(vinteetrês)servidoresatuandodiretamentenessas atividadesfundamentaisdaGerênciadeTratamentodeÁguaeGerênciade 336

ESTADODORIOGRANDEDOSUL TRIBUNALDECONTAS
DIREÇÃODECONTROLEEFISCALIZAÇÃO SERVIÇODEAUDITORIADEPORTOALEGRE
TratamentodeEsgotoscomidadeacimade60(sessenta)anos;

-aexistênciade4(quatro)servidorescomcomplementodeidadede60 (sessenta)anosatéomêsdeJulhode2020;
-adeclaraçãodoMinistériodaSaúdedequeaidadede60(sessenta) anoséumbalizadordeclassificaçãodepessoassobriscomaiorde contraçãodoCOVID-19;
-queocargodeTTAEabrangetodasasfunçõesnecessáriaspara manutençãodasatividadesoperacionaisedeanáliseslaboratoriaisdas GerênciasdeTratamentodeÁgua(GTAG)edeGestãoAmbientale TratamentodeEsgotos(GATE);
-quenãopodemosentraremriscodedescontinuidadedosserviços;e¿ -aessencialidadedosserviçosdeabastecimentodeáguaede tratamentodeesgotossanitários
Alémdisso,érealidadequeoquadrodeservidoresdoDMAEéumquadro envelhecido;14%(quatorzeporcento)dosservidoresdoscargosacima possuem60(sessenta)anosoumais,constituindogrupoderisco,comsaúde debilitada,commaiorpossibilidadedecontrariaradoecimento,eemespecialo COVID-19,conformeamplamentedivulgadopelosórgãosdesaúdeNãoprever apossibilidadedessesservidores(com60anosoumais)seafastaremnesse momentodapandemiadoCOVID-19énãoconsiderarosdadosquearealidade mundialtemnosapresentados
Diantedoexposto,passa-seaexporanecessidadedeautorizaçãopara contrataçãoemergencialdoscargosrequeridosnopresenteprojetodelei
EmrelaçãoaocargodeTécnicoemTratamentodeÁguaeEsgotos(TTAE), ressaltamosqueéoprofissionalquetemaatribuiçãodeatuarnaoperaçãoeno controledequalidadedossistemasdetratamentoedistribuiçãodeáguae tratamentoedestinaçãodeesgotos
Assim,considerando:
-areduçãodoquadrodeservidorescomatribuiçõesdeoperaçãodeETAse ETEs,OperadoresdeEstaçãodeTratamento,TTAEseTécnicosem Saneamento;
-oaumentodonúmerodeunidadesoperacionaisdegrandeporte,comoETE SerrariaeETESarandi;
-anecessidadedosservidoresqueexercemaatividadedeoperaçãodeETAse ETEstrabalharemnoregimedetrabalho12hx36h,deformacontinuada,24 horas/dia,365dias/ano;
-aausênciadeumservidornaescalageralprovoca,necessariamente,a convocaçãodeoutro,demodoamanterosSistemasdeAbastecimentodeÁgua edeEsgotamentoSanitárioemfuncionamento,trazendocomoconsequênciao aumentodonúmerodehorasextraordinárias,oadoecimentofuncionaleorisco defalhasoperacionaisporfadigalaboral; 337

ESTADODORIOGRANDEDOSUL TRIBUNALDECONTAS
DIREÇÃODECONTROLEEFISCALIZAÇÃO SERVIÇODEAUDITORIADEPORTOALEGRE

-asdificuldadesparamanutençãodasunidadesoperacionaisdetratamentode águaeesgotoemoperação,comiminentesprejuízosàpopulaçãodoMunicípio; -eoriscodenãoseconseguirmaisoperarasestaçõesdetratamentodeágua eesgotoporabsolutaindisponibilidadedeservidorescomessaatribuição
EmrelaçãoaoscargosdeFresador,OperadordeMáquinasEspeciais,Soldador IndustrialeTécnicoIndustrial,informamosquesãoosprofissionaisque compõemasequipesdemanutençãoindustrial,necessáriasparagarantiro plenofuncionamentodasunidadesoperacionaisdoDMAE,garantindoassimo tratamentoedistribuiçãodeáguatratada,serviçoessencial,emespecialno contextoatualdepandemiadoCOVID-19Seriacalamitososenestemomento detantasdificuldadessociais,ondeahigiene,entreoutrosaspectos,évitalpara ocontroledapropagaçãodoCOVID-19,apopulaçãodePortoAlegresofrercom odesabastecimentodeágua
Assim,pelotodooexpostoacima,eemespecialasituaçãodefragilidadequeo DMAEseencontra,emrelaçãoaoscargosabrangidospelopresenteProjetode Lei,parapossibilitaroabastecimentodeáguadetodaapopulaçãodePorto Alegre,emumcontextosingulardepandemiadoCOVID-19,caracterizaa necessidadeurgenteedeinteressepúblicoparaacontrataçãourgenteepor prazodeterminado,de40(quarenta)TTAE,1(um)Fresador,2(dois) OperadoresdeMáquinasEspeciais,5(cinco)SoldadorIndustriale1(um) TécnicoIndustrial
Ressaltamosquefoiautorizado,peloSenhorPrefeito,ConcursoPúblicopara provimentoefetivonoDMAEdoscargosabaixo,noentanto,aindademandará maiorprazoparaefetivação:
-TécnicoemTratamentodeÁguaeEsgotos(TTAE),procedimentosem andamentoatravésdoSEI1910000004147-5e
-Fresador,OperadordeMáquinasEspeciais,SoldadorIndustrialeTécnico Industrial,entreoutros,procedimentosemandamentoatravésdoSEI 20.10.000000981-0.
Reforçamos,portodooexpostoacima,anecessidadeurgentedecontratação porprazodeterminadode40(quarenta)TécnicosemTratamentodeÁguae Esgotos,1(um)Fresador,2(dois)OperadoresdeMáquinasEspeciais,5(cinco) SoldadorIndustriale1(um)TécnicoIndustrial,paragarantiracontinuidadedo funcionamentodosSistemasdeAbastecimentodeÁguaedeEsgotamento SanitárioemPortoAlegre
Sãoestas,SenhorPresidente,asconsideraçõesquefaçoaomesmotempoem quesubmetooProjetodeLeiàapreciaçãodestaCasa,aguardandobreve tramitaçãolegislativaeanecessáriaaprovaçãodamatéria
NoâmbitodesteTCE-RS,foramregistradas26(vinteeseis)admissõesdocargode TécnicoemTratamentodeÁguaeEsgotos,01(uma)admissãodocargodeFresador,05 (cinco)admissõesdocargodeSoldadorIndustrial1 Portanto,nãoforampreenchidas14 (catorze)vagasdocargodeTécnicoemTratamentodeÁguaeEsgotosenenhumadasvagas existentesparaocargodeOperadordeMáquinasEspeciais(2vagas)edeTécnicoIndustrial(1 vaga)Asadmissõesforamefetivadaspormeiodeprocessoseletivosimplificado(Edital 338
digitalmente por: Marcelo Kipper da Silva em 14/07/25, Leandro Lobato Camargo em 14/07/25, Leandro Torres em 14/07/25, Fabio Alex Beling em 14/07/25 e outro(s). Confira a autenticidade do documento em www.tce.rs.gov.br. Identificador:

001/2020)2 .
ESTADODORIOGRANDEDOSUL TRIBUNALDECONTAS
DIREÇÃODECONTROLEEFISCALIZAÇÃO SERVIÇODEAUDITORIADEPORTOALEGRE

•Processonº21.10.000004664-8-LeisMunicipaisnº13.032/2022enº 13.561/2023
Oprocessofoiinstaurado,em28/06/2021,pelaGerênciadeGestãodePessoas (GPES),parafinsdeencaminhamentoparaanáliseedeliberaçãosobreminutasdeprojetosde leivisandoacontrataçãoemergencialdoscargosdeTécnicoIndustrial(03vagas),Montador Eletromecânico(12vagas),OperadordeMáquinasEspeciais(2vagas),Fresador(2vagas)e SoldadorIndustrial(3vagas),bemcomoacriaçãoeextinçãodecargosevagasdecargos efetivos,comoobjetivodeadequarosquantitativosdecargosefetivosàrealidadeatualdo DMAE(peça6718592,p.16).
OprocessofoiremetidopelaDiretoriaGeral(DG)aoCGDEP,quesolicitouaanálise jurídicapréviapelaProcuradoriaGeraldoMunicípio(peça6718592,p.18e20).O parecerjurídico(NotaTécnicaPMS-01nº192/2021),datadode09/07/2021,concluiupela contrariedadedoprojetoàsdisposiçõesdaLeinº7770/1996(prazodecontrataçãosuperiora 180dias),bemcomopornãoestarevidenciadaanecessidadedecontrataçãotemporária,tendo emvistaaexistênciadeoutroprojetodeleiparacriaçãodecargosefetivossobajustificativade necessidadepermanentedosserviçosPoroutrolado,aanálisejurídicaconcluiuporinexistir óbicesjurídicosaoprojetodeleidecriaçãodenovoscargosefetivos(peça6718592,p.21a23): ()
Adentrandodiretamenteàsrespostasdosquestionamentos,relativamenteà minutadeprojetodeleiquetratadacontrataçãotemporáriadediversoscargos paraoDMAE(14595916)easuabaselegal,informamosqueoreferidotexto nãoestáemconsonânciacomasdisposiçõesdaLein°7770/1996,poisprevê prazoparaacontrataçãotemporáriasuperiora180dias,estabelecidonoart4°
Paraalémdoperíododecontrataçãoqueestáemdesacordocomotextolegal, nãoestáevidenciadaanecessidadedacontrataçãotemporáriapara atendimentodeexcepcionalinteressepúblico,nostermosdoart1°-aqual, justifica-separaeventosdiretamenteligadosaomomentoequepassadaa excepcionalidade,seextinguirãoNãopareceserocasodoprojetoapresentado, vistoque,inclusive,asduasminutasdeprojetodeleisãocolidentes:numa,criasecargosdeprovimentoefetivoatestandonecessidadeperenedaqueles serviços,noutra,acontrataçãodosmesmoscargosparaexcepcionalinteresse públicoedeatendimentodenecessidadetemporáriaHáumacontradiçãonos anseiosadministrativos,portanto
Aexposiçãodemotivosapresentadanaminutadoprojetoparatentar justificaracontrataçãotemporária,nãoapresentanenhumasituação atípicaquejustifiquecontrataçãonoformatotemporário,poisrelataa necessidadecorriqueiraemdecorrênciadasaídadeservidoresdoquadro eque,naturalmente,temqueserrepostodeformapermenente.Em especial,referimosasseguintescitações:
"Lembramosqueaolongodosanoshádiminuiçãoconstantedonúmero deservidoresnoDmae,situaçãotambémvivenciadapelasequipesde manutençãoindustrial,gerandograndesdificuldadesparaatendimentode suasatividades.(...) 339

ESTADODORIOGRANDEDOSUL TRIBUNALDECONTAS DIREÇÃODECONTROLEEFISCALIZAÇÃO SERVIÇODEAUDITORIADEPORTOALEGRE

EsteDmaejárealizoutodasasaçõespossíveis,visandoaotimizaçãodassuas equipes,bemcomoestáplanejandoaimplantaçãodeprogramadeautomação dasunidadesoperacionais Entretanto,atualmente,comasequipesdisponíveis sóépossívelatenderasdemandasdemanutençãoemergencial,eembreve nem essas poderão ser atendidas em sua totalidade, com a agilidade necessária Talsituaçãotraz,ainda,comoconsequênciaaimpossibilidadede realizar manutenções preventivas, gerando uma fragilidade dos sistemas, aumentodonúmeroedagravidadedasfalhas,repercutindoemcustosmaiores pararecuperaçãodeequipamentosemaiortempoderetomadadeoperação dos sistemas. Reforçamos que já realizamos todas as ações possíveis de reorganização de equipes e atividades, inclusive muitas atividades foram terceirizadas,eestamosbuscandoalternativastecnológicasparaotimizaras atividades,masquehánecessidadedecontarmoscomequipesmínimas,com conhecimentoeprontidão,paraatenderoDepartamento24horas,07diaspor semana
( )
Informamos,ainda,queháautorizaçãoparaarealizaçãodeConcursoPúblico paraprovimentoefetivonoDMAEdoscargosdeTécnicoIndustrial,Montador Eletromecânico, Operador de Máquinas Especiais, Fresador e Soldador Industrial,entreoutros,masqueaindaencontra-seemtramitação Sãoestas, Senhor Presidente, as considerações que faço ao mesmo tempo em que submeto o Projeto de Lei à apreciação desta Casa, aguardando breve tramitaçãolegislativaeanecessáriaaprovaçãodamatéria"
Porfim,edefundamentalrelevânciajurídica,éainformaçãocontidana exposiçãodemotivosquedácontadaexistênciadeautorizaçãoparaa realizaçãodecertameparaprovimentodecargosefetivos-paraosquaisse pretendeacontrataçãoemergencial-oque,porsisójáinviabilizariao prosseguimentodapretensãodacontrataçãotemporária:Informamos,ainda, queháautorizaçãoparaarealizaçãodeConcursoPúblicoparaprovimento efetivonoDMAEdoscargosdeTécnicoIndustrial,MontadorEletromecânico, OperadordeMáquinasEspeciais,FresadoreSoldadorIndustrial,entreoutros, masqueaindaencontra-seemtramitação
()
Destasorte,adocumentaçãoacostadanoexpedientedemonstranãoestarem preenchidasascondiçõesparaaregulartramitaçãodascontratações temporáriaspretendidas
MinutadeProjetodeLeiparacriaçãoeextinçãodecargos: Poroutrolado,aparentemente,inexistemóbicesjurídicosaoProjetodeLeique crianovoscargosdeTécnicoIndustrial,MontadorEletromecânico,Operadorde MáquinasEspeciais,FresadoreSoldadorIndustrialeextinguecargosde provimentoefetivodeOperárioEspecializado,noDepartamentoMunicipalde ÁguaeEsgotosedáoutrasprovidências(14596081),vezquearepercussão financeiraapresentadaaparececom'zero'incrementodedespesa,em decorrênciadacompensaçãonosnovoscargoscomaextinçãodosantigos,não incidindonasvedaçõesdoincisoIIdoart8°daLeiComplementarn°173/2020

ESTADODORIOGRANDEDOSUL TRIBUNALDECONTAS
DIREÇÃODECONTROLEEFISCALIZAÇÃO SERVIÇODEAUDITORIADEPORTOALEGRE
(Grifou-se)

OexpedienteretornouaoDMAEque,pormeiodaGPES,apresentounovos esclarecimentosemrespostaàNotaTécnicaPMS-01nº192/2021,nosentidodaviabilidadedo projeto,emrazãodequeaimplantaçãodeprogramadeautomação3nasunidadesoperacionais alterariaanecessidadedeequipes,assimcomoosprazosparaingressodeservidoresefetivos implicariaaesperadeaproximadamente10meses(peça6718592,p31e32)
OprocessofoidistribuídoàAssessoriaparaAssuntosEspeciaiseInstitucionaisda PGM,queemitiuanáliseobjetivaetécnicadasproposições,semadentrarnosfundamentos jurídicosexplicitadosnaNotaTécnicaPMS-01nº192/2021(peça6718592,p36a40)
Em24/12/2021,aProcuradoriaMunicipalEspecializadaAutárquicadoDMAEemitiu despachoinformandoqueamatériateriacondiçõesparaoprosseguimento,emquepesealerta sobreoentendimentodiversoquantoàviabilidadedoprojeto,consoanteNotaTécnicaPMS-01 nº192/2021(peça6718592,p54)
Em31/01/2022,oprocessofoiremetidoaoGabinetedoPrefeitocomaminutado projetodelei,sendonamesmadataencaminhadooprojetoàCâmaraMunicipal(PLE003/2022) (peça6718592,p74a81,83a90)
CabedestacarqueoparecerprévioemitidopelaProcuradoriadaCâmaraMunicipal tambémapresentouanálisejurídicaqueconcluiuqueajustificativaapresentadaparaa realizaçãodecontrataçõestemporáriasnãorevelaumanecessidadetemporáriadoDMAE, massimpermanentes,"decorrentedainérciadaadministraçãoqueapesardadiminuição constantedonúmerodeservidoresnoDMAE,aolongodeanos,nãotomouasmedidas necessáriasparaareposiçãodosservidores"(peça6718592,p110a112)
Apesardasorientaçõesjurídicas,oprojetofoiaprovadopeloLegislativo Municipal,resultandonapublicaçãodaLeiMunicipalnº13032/20224e,posteriormente,na emissãodoDecretoMunicipalnº21.445/2022,queautorizouarealizaçãodeprocessoseletivo simplificado(peça6718592,p125a131)
Asadmissõesforamregistradasnosexpedientes2210000002798-3(Edital 001/2022)5 (peça6718626,p98e100)e2210000007447-76(Edital002/2022eEdital 01/2023-PSS002/2023)(peça6718627,p46,47,52,106a108,111e112)Noexpediente 2210000002798-3foramregistradasasadmissõesde03(três)cargosdeSoldadorIndustriale 01(um)cargodeTécnicoIndustrial,aopassoque,noexpediente2210000007447-7,foram registradasasadmissõesde10(dez)cargosdeMontadorEletromecânico,02(dois)Operadores deMáquinasEspeciais,02(dois)cargosdeFresadorede02(dois)cargosdeTécnicoIndustrial 7
Portanto,nãoforampreenchidas2vagasparaocargodeMontadorEletromecânico
Apartirde29/05/2023,oexpedienteseguiutramitaçãopararealizaçãodenova contratação temporária de 05 (cinco)Técnicos Industriais, 12 (doze) Montadores Eletromecânicos,03(três)OperadoresdeMáquinasEspeciais,02(dois)Fresadorese03(três) SoldadoresIndustriais(peça6718592,p158e178)
AminutadoprojetodeleifoiencaminhadadiretamenteàAssessoriaparaAssuntos EspeciaiseInstitucionaisdaPGM,queemitiuanáliseobjetivaerestritaàadequaçãotécnicadas proposições,concluindopelaconformidadedoprosseguimento(peça6718592,p181a183)O ProjetodeLeinº014/2023foiencaminhadopeloPrefeitoàCâmaraMunicipal,em 12/06/2023,sobasmesmasjustificativasapresentadasparaascontrataçõestemporárias anteriormenteautorizadaspelaLeiMunicipalnº13032/2022(peça6718592,p184a189):
Assinado digitalmente por: Marcelo Kipper da Silva em 14/07/25, Leandro Lobato Camargo em 14/07/25, Leandro Torres em 14/07/25, Fabio Alex Beling em 14/07/25 e outro(s). Confira a autenticidade do documento em www.tce.rs.gov.br. Identificador: PRE.FE77.2360.2A1D.FC7C.62D4.

ESTADODORIOGRANDEDOSUL TRIBUNALDECONTAS
DIREÇÃODECONTROLEEFISCALIZAÇÃO SERVIÇODEAUDITORIADEPORTOALEGRE

OpresenteProjetodeLeitemporobjetivopossibilitaracontratação emergencial,porprazodeterminado,5(cinco)TécnicosIndustriais,12(doze) MontadoresEletromecânicos,3(três)OperadoresdeMáquinasEspeciais,2 (dois)Fresadorese3(três)SoldadoresIndustriaisOscargoscontemplados nesteprojetodeleisãoprofissionaisquecompõemasequipesdemanutenção industrial,necessáriasparagarantiroplenofuncionamentodasunidades operacionaisdoDMAE(EstaçõesdeTratamentodeÁgua,Estaçõesde TratamentodeEsgotos,EstaçõesdeBombeamentodeÁguaBruta,Estaçõesde BombeamentodeÁguaTratadaeEstaçõesdeBombeamentodeEsgotos)
Importantesalientarque,aolongodosanos,houvediminuiçãoconstantedo númerodeservidoresnoDMAE,situaçãotambémvivenciadapelasequipesde manutençãoindustrial,gerandograndesdificuldadesparaatendimentodesuas atividades
Afaltadeservidoresvemacarretandoprejuízos,sejapeloaumentodotempode respostaemsituaçãoemergenciais,queprolongamdesabastecimentosnos sistemasdeágua,ouextravasamentosdeesgotosinnaturaemcasodefalhas nossistemasdeconduçãoeelevaçãodeefluentescloacaisComonívelde reduçãocontínuadacapacidadedemobilizaçãodasequipesdemanutenção industrialpode-se,embreve,chegarasituaçõesextremas,comoporexemplo: terqueescolherasregiõesqueserãoatendidas,causandoimpactodiretoà população
ODMAEjárealizoutodasasaçõespossíveis,visandoàotimizaçãodassuas equipes,bemcomoestáplanejandoaimplantaçãodeprogramadeautomação dasunidadesoperacionaisEntretanto,atualmente,comasequipesdisponíveis sóépossívelatenderasdemandasdemanutençãoemergencial,eembreve nemessaspoderãoseratendidasemsuatotalidade,comaagilidade necessáriaTalsituaçãotraz,ainda,comoconsequênciaaimpossibilidadede realizarmanutençõespreventivas,gerandoumafragilidadedossistemas, aumentodonúmeroedagravidadedasfalhas,repercutindoemcustosmaiores pararecuperaçãodeequipamentosemaiortempoderetomadadeoperação dossistemas.
Reforça-sequejáforamrealizadastodasasaçõespossíveisdereorganização deequipeseatividades,inclusivemuitasatividadesforamterceirizadas,e estamosbuscandoalternativastecnológicasparaotimizarasatividades,mas quehánecessidadedecomporequipessuficientes,comconhecimentoe prontidão,paraatenderoDepartamento24horas,7diasporsemana
Deoutrolado,oMunicípioestárealizandoestudosparaidentificarasmelhores alternativasparaaprestaçãodeserviçosdoDMAEàpopulação.Entretanto,até queosreferidosestudossejamconcluídos,énecessáriogarantiraprestaçãode serviçodequalidadeparaapopulaçãoeacontrataçãotemporáriaéamedida maisadequada,bemcomooprazodascontrataçõesde365(trezentose sessentaecinco)dias,prorrogáveispelomesmoperíodo,éonecessáriopara queseestabeleçamasdefiniçõesepossíveisimplementaçõesdonovomodelo Assim,pelotodooexpostoacima,eemespecialasituaçãodefragilidadequeo DMAEseencontra,emrelaçãoaoscargosabrangidospelopresenteProjetode Lei,parapossibilitaroabastecimentodeáguaecorretaconduçãoetratamento dosesgotosdacidade,impactandotodaapopulaçãodePortoAlegre, 342
digitalmente por: Marcelo Kipper da Silva em 14/07/25, Leandro Lobato Camargo em 14/07/25, Leandro Torres em 14/07/25, Fabio Alex Beling em 14/07/25 e outro(s). Confira a autenticidade do documento em www.tce.rs.gov.br. Identificador: PRE.FE77.2360.2A1D.FC7C.62D4.

ESTADODORIOGRANDEDOSUL TRIBUNALDECONTAS
DIREÇÃODECONTROLEEFISCALIZAÇÃO SERVIÇODEAUDITORIADEPORTOALEGRE

caracterizaanecessidadedecontrataçãoporprazodeterminado,paraatender necessidadetemporáriaedeexcepcionalinteressepúblico,de5(cinco) TécnicosIndustriais,12(doze)MontadoresEletromecânicos,3(três) OperadoresdeMáquinasEspeciais,2(dois)Fresadorese3(três)Soldadores IndustriaisparagarantiracontinuidadedofuncionamentodosSistemasde AbastecimentodeÁguaedeEsgotamentoSanitárioemPortoAlegre
TaiscircunstânciasdenotamplenoconhecimentodoPrefeitoMunicipalsobrea situaçãodefragilidadedoDMAEemrazãodadiminuiçãoconstantedeservidoresparaa operaçãodeserviçosessenciais e tambémrevelamoplenoconhecimentodas consequênciasnegativasdanãoreposiçãodepessoal,comimpactosdiretosnaprestação dosserviçosdeabastecimentoetratamentodeáguaeesgotosededrenagemurbana
Submetido à análise da Procuradoria da Câmara Municipal, apesar doencaminhamentodedoisprojetosdeleiconsecutivosparaarealizaçãodecontratações temporáriasparaosmesmoscargos(PLE003/2022ePLE014/023)etambémdo estabelecimentodeprazosuperioraomáximopermitidopelaLeiMunicipalnº7.770/19968 (prazode365diasprorrogávelporigualperíodo),oparecerprévioemitido9concluiuporestar configuradaumanecessidadetransitória,emsentidocontrárioàanáliseanteriormenteemitida paraoPLE003/2022(peça6718592,p.203e204).
OprojetofoiaprovadopeloLegislativoMunicipal,resultandonapublicaçãodaLei Municipalnº13.561/202310 (peça6718592,p.223a226).Atocontínuo,oprocessoseguiu tramitandopararegistrosdosatosrelativosàrealizaçãodeprocessoseletivosimplificado(Edital 001/2023-PSS003/2023)(peça6718592,p237a255),dasadmissõesrealizadas11(peça 6718592,p.324a326,332,333,383e388)edaautorizaçãodopedidodeprorrogaçãoda validadedoprocessoseletivopúblicopormais365dias,acontarde25/10/2024(peça6718592, p361a368),pormeiodoDecretonº22813/202412(peça6718592,p391,392e394)
NoâmbitodesteTCE-RS,comfundamentonaLeiMunicipalnº13561/2023,foram cadastradas1302(duas)admissõesdocargodeFresador,07(sete)admissõesdocargode MontadorEletromecânico,05(cinco)admissõesdocargodeTécnicoIndustrial,03(três) admissõesdocargodeSoldadorIndustriale02(duas)admissõesdocargodeOperadorde MáquinasEspeciaisTodavia,noexpediente2110000004664-8foramregistradasadmissõesdo totalde08(oito)MontadoresEletromecânicos,03(três)OperadoresdeMáquinasEspeciaise06 (seis)TécnicosIndustriais,evidenciandoquenãohouveocadastramentodetodososatos admissionaispeloórgãoauditadoperanteesteTCE-RS
Portanto,nãoforampreenchidas4vagasdocargodeMontadorEletromecânico.
•Processonº22.0.000007066-5-Leinº13.113/2022
Oprocessoinstaurado,em19/01/2022,peloGabinetedePrefeito,parafinsde elaboraçãodeminutadeprojetodeleivisandoaautorizaçãoparaoPoderExecutivocontratar profissionais,emcaráteremergencialeportempodeterminado,paraatuaremnaforçatarefade diagnósticossobreaestruturafísicadasescolasmunicipais(lotaçãonaSecretariaMunicipalde Educação-SMED)(peça6718523,p.7a11).
Aminutasofreualteraçõesparafinsdecontemplaçãodeoutrosórgãosdomunicípio (peça6718523,p.30a37e58a66),demodoqueoDMAEtambémmanifestou-senoprocesso pelanecessidadedeautorizaçãoparainclusãonacontrataçãoemergencialde07(sete) Arquitetose31(trintaeum)Engenheiros,assimdistribuídos:EngenheiroCivil(15cargos), EngenheiroQuímico(3cargos),EngenheiroElétrico(6cargos)eEngenheiroMecânico(7
Assinado digitalmente por: Marcelo Kipper da Silva em 14/07/25, Leandro Lobato Camargo em 14/07/25, Leandro
em 14/07/25, Fabio Alex Beling em 14/07/25 e outro(s). Confira a autenticidade do documento em www.tce.rs.gov.br. Identificador: PRE.FE77.2360.2A1D.FC7C.62D4.

ESTADODORIOGRANDEDOSUL TRIBUNALDECONTAS
DIREÇÃODECONTROLEEFISCALIZAÇÃO SERVIÇODEAUDITORIADEPORTOALEGRE
cargos)(peça6718523,p71e72)

Em17/03/2022oSecretárioMunicipaldeAdministraçãoePatrimôniodeliberoupela autorizaçãodecontinuidadedoProjetodeLei,parafinsdecontrataçãotemporáriade23(vintee três)EngenheirosCivise19(dezenove)Arquitetos(peça6718523,p74e75)Quandodo encaminhamentododespachoaoGabinetedoPrefeito(GP),aSecretariaExecutivadeDespesa dePessoal(SEDPES-SMAP)ressaltouque"duranteavalidaçãodoSecretáriodestaSMAPao projetoentroupedidodeinclusãodequantitativosparaoDMAE",oqualnãoconstounaminuta validada,oquedemandariarevalidaçãonocasodeintençãodeatenderasolicitação(peça 6718523,p76)
ApóssolicitaçãodoPrefeito(peça6718523,p88),aminutafoialterada,passandoa preverototalde27(vinteesete)EngenheirosCivise23(vinteetrês)Arquitetos,sendoopedido doDMAEatendidocomainclusãodeapenas02(dois)EngenheirosCivise02(dois) Arquitetos14 (peça6718523,p79a87)Observa-sequeajustificativaapresentadaparao DMAEreferiuaincorporaçãodascompetênciaseestruturasdoDepartamentodeEsgotos Pluviais(DEP),nosseguintestermos:
DMAE
ODepartamentoMunicipaldeÁguaeEsgotoincorporouoDepartamentode EsgotosPluviais(DEP)ecomissofoiassumidonovasestruturasNãohá concursovigenteparaengenheirocivil,eareposiçãodealgunsengenheiros civisquesaíramsedeuporengenheiromecânicoExistem400estruturaspara manter,entreprédiosadministrativos,reservatóriosecasasdebombas,todas emprecáriascondiçõesquedevemserreparadase/oureformadasenissoos arquitetosserãoindispensáveis
Tendoestasdemandasatendidaspelopresenteprocesso,enquantodaremos continuidadenoresolveremdefinitivocomahomologaçãodosconcursos públicoseacriaçãodoscargosfaltantes,sendopossívelatendermosaos projetoseentregasquePortoAlegreprecisaemerece
Em21/03/2022,oprojetodeleifoiencaminhadopeloPrefeitoàCâmaraMunicipal (peça6718523,p.114a123),adespeitodoparecerjurídicoemitidopelaProcuradoriaGeraldo Municípioterconcluídopornãoseverificaropreenchimentodosrequisitosparaascontratações temporáriassolicitadas,anteaexistênciadeaprovadosparaoscargosdeprovimento efetivoetendoemvistaqueasjustificativasapresentadasnãodemonstraramaexistência dedemandastemporáriaseemergenciais,massimdeexecuçãodeatribuiçõesordináriase doatendimentodedemandaspermanentesdosórgãosenvolvidos(peça6718523,p42a50)
Nomesmosentido,aunidadeAssuntosJurídicoseLegislativos(AJL),vinculadaao GabinetedoPrefeito,eaProcuradoriadaCâmaraMunicipalemitirampareceresqueconcluiram queasjustificativasapresentadasparaarealizaçãodecontrataçõestemporáriasnão revelamnecessidadestemporáriasdosórgãosmunicipais,massimpermanentes(peça 6718523,p140a144e198a200)
ApesardasorientaçõesjurídicasoprojetofoiaprovadopeloLegislativoMunicipal (peça6718523,p174a181),resultandonapublicaçãodaLeiMunicipalnº13113/202215(peça 6718523,p216a222)
Em25/08/2022,tendoemvistaahomologaçãodoProcessoSeletivoSimplificado 004/202216,oSecretárioMunicipaldeAdministraçãoePatrimôniodeterminouo encaminhamentodoexpedienteparacontinuidadedostrâmitesdecontrataçãotemporária(peça 344

ESTADODORIOGRANDEDOSUL TRIBUNALDECONTAS
DIREÇÃODECONTROLEEFISCALIZAÇÃO SERVIÇODEAUDITORIADEPORTOALEGRE
6718523,p240e241)

Atocontínuooprocessoseguiutramitaçãoparaarealizaçãodasconvocaçõese admissõesdosprofissionaisaprovados(peça6718523,p243a355)eparaprorrogaçãodos contratosereposiçõesdevacâncias(peça6718523,p356a475)17RelativamenteaoDMAE, houveaprorrogaçãodoscontratosde02(dois)arquitetose01(um)Engenheiro(peça6718523, p369,372,374,377,382,384,390,417,425e426)
AsprovidênciasparaaefetivaçãodascontrataçõespeloDMAEforamregistradasno expediente22.0.000079874-0.
NoâmbitodesteTCE-RS,foramcadastradas02(duas)admissõesdocargode Engenheiroe02(duas)admissõesdocargodeArquiteto18:
Nome Cargo PeríododoContrato Lotação19
AnaCarolinaVictoriaDa CostaRibeiro EngenheiroCivil 19/09/2022a13/09/2023 DiretoriadeTratamento
JoseMariaPaim EngenheiroCivil 03/10/2022a31/03/2023 GerênciadeSuprimento
FernandadeBittencourt Escobar Arquiteto 13/09/2022a07/09/2023
MariaClaraSchillingSardi Arquiteto 21/09/2022a15/09/2023
GerênciadePlanejamento
GerênciadePlanejamento
Apesardasjustificativasparaascontrataçõestemporáriasteremsidofundamentadas naincorporaçãodascompetênciaseestruturasdoDepartamentodeEsgotosPluviais(DEP), nenhumdosservidoresadmitidosfoialocadonessasfunções,considerandoasinformações apresentadaspeloDMAE,emrespostaaoitem5daRDI641506(peça6718532) (peça 6718478,p27a32e35a39),posteriormentecomplementadapelarespostaaRDI685030 (peça6718533)(peça6718516)(peça6718517).
Assim,nãoobstanteailegalidadedascontrataçõestemporáriasempreendidaspara atendimentodenecessidadespermanentesdosórgãosmunicipais,verificou-sequeoDMAE teveopleitoatendidodeformamuitoaquémaosolicitado,umavezqueanecessidaderealera de07(sete)Arquitetose31(trintaeum)Engenheiros,fundamentadaprecipuamentena incorporação,pelaAutarquia,dascompetênciaseestruturasdoDepartamentodeEsgotos Pluviais(DEP),asquaisnãoforamsequerpriorizadas.
Ademais,alémdeevidenciarumageneralizadademandaporservidoresdoscargos deEngenharianoâmbitodetodoosórgãosmunicipais,aanálisedoexpedientedemonstrauma evidentenecessidadedeincrementodoquadrodepessoaldoDMAEparaacompanharo acréscimodassuascompetênciase,consequentemente,proporcionaraadequadaprestação dosserviçospúblicosderesponsabilidadedoDepartamento.Caberegistrarqueessa necessidadetambémfoireveladanasproposiçõesdeprojetodelei,registradasnosexpedientes 2010000001166-020e2210000004786-021,visandoàadequaçãodoquadrodepessoaldo DMAEequenãotiveramseguimentopelaadministraçãocentralizada.
Porfim,importanteconsignarqueoart11daLeiMunicipalnº13113/2022, reconhecendoaordinariedadedasfunçõespúblicasaseremexercidas,estabeleceuodeverde tomadadeprovidênciaspeloExecutivoMunicipal,paraacontrataçãoefetivadeengenheiros civisearquitetosporconcursopúblico22
Nesseaspecto,posteriormente,houveoingressodeservidoresdocargode Engenharia23,exclusivamenteparareposiçãodevacâncias24 (casodosprocessos 2210000011658-725,2410000001312-626e2410000004481-127)Porém,constatou-seque 345

ESTADODORIOGRANDEDOSUL TRIBUNALDECONTAS
DIREÇÃODECONTROLEEFISCALIZAÇÃO SERVIÇODEAUDITORIADEPORTOALEGRE

nemmesmoasfragilidadesdoórgão,fortementeevidenciadasapósasenchentesdeMaiode 2024,foramsuficientesparaasautorizaçõesdassolicitaçõesregistradasnosexpedientes 24.10.000005881-2e24.10.000007001-4,asquaisforamnegadaspeloComitêMunicipalpara GestãodeDespesasdePessoal(CMDP)(peça6718618,p22a24),emdecisãonão fundamentadaemargumentosjuridicamenteplausíveis,poisbaseou-seemsupostasvedações daleieleitoral(art.73,VdaLeiFederalnº9.504/1997)edaLeideResponsabilidadeFiscal(art. 21,IIIdaLeiComplementarFederalnº101/2000),ignorandoasinformaçõesapresentadaspelo DMAE,asquaiscomprovaramaexistênciadecompensaçãofinanceiradiantedaocorrênciade 04vacânciasdocargodeEngenheiro,bemcomo,indodeencontroaoposicionamentojurídico emitidopelaPGM(NotaTécnicaPMS-01nº251/2020),em10/08/2020(peça6718589,p70a 74):
ALeinº9504/1997,aovedarcondutasemanoeleitoral,objetivacoibiraações queafetemaigualdadedeoportunidadesentreoscandidatosnopleitoeleitoral Portanto,referidaLeinãotrazemseusdispositivosentravesàcontinuidadeda prestaçãodosserviçospúblicos,visando,sim,obstarousodamáquinapública emfavoroudesfavordecandidatosNotocanteaquestõesdepessoal,oart 73,dareferidaLeiprevê:()
Ainda,oportunosalientarqueaprópriaSEDPES-SMAP,secretariaexecutivado CMDP,emitiuoseguintedespachonoprocesso2110000000393-0,informandoquenãoé consideradoaumentodedespesadepessoalquandosetratardereposiçãodecorrentede vacânciasdecargosefetivos(peça6718628,p.44).:
Informamosque,deacordocomodespacho18255261,noprocesso 220000033299-6,nãohánecessidadedeenvioparaaDILG-CTGM/SMF quandoforemreposiçõesdecorrentesdevacânciasdecargosefetivosou vitalícios,poisnãosãoconsideradasaumentodedespesadepessoal,desde querealizadasnamesmaquantidadeenamesmajornadadetrabalhodo(s) cargo(s)recém-vacante(s).
Emborataisprocessostenhamsidoinstauradosapósaocorrênciadaenchente,a negativaaospedidosdereposiçãodeengenheirosrevelaumacondutatemeráriadosmembros doCMDP,acarretandoprejuízosaoacompanhamentodeprojetosedasobrasemandamento, quevisamareestruturaçãoemelhoriasnossistemasdedrenagemedeproteçãocontracheias, conformesalientadonasjustificativasapresentadasnessassolicitações(peça6718618,p1) (peça6718619,p.5):
AoDGDMAE:
TendoemvistaqueosimpactosdainundaçãonoSPCC(EBAPseDiques) resultaram na necessidade de 02 Editais para projetos de recuperação/reconstituição/reforçodestasestruturas,quenasequenciagerarão diversascontrataçõesdeobrasparaestasadequações,bemcomo considerandooreduzidocorpotécnicodestaDDparaatendimentodestes projetoseobras,entendemospertinenteoingressodeservidornocargode EngenheiroCivilapartirdoConcursoemvigência,nointuitodeefetuaras interfacesentreasaçõesdeprojetoedeobras
Comestecaráterdeinterface,oreferidoprofissionalficarialotadonoGabinete destaDD,demodoquesuaatuaçãopossatransitarentreasGerênciasde ProjetosedeObras,bemcomojuntoàCDRENAGEM,queapesarde 346

ESTADODORIOGRANDEDOSUL TRIBUNALDECONTAS
DIREÇÃODECONTROLEEFISCALIZAÇÃO SERVIÇODEAUDITORIADEPORTOALEGRE

hierarquicamentesubordinadaaoGDA,temtambémconstantearticulaçãocom estaDD
Sendoassim,solicitamossuaapreciaçãoehavendoconcordânciaremetero expedienteàDA/GPESparaosdemaisprocedimentosparaoingresso
Destacamosquehánomomento01vagaemabertonocargodeEngenheirono Departamento,vistoqueoingressoautorizadodeEngenheiroMecânicoparaa GMANacabounãoseconcretizandopeladesistênciadoúltimoaprovadono Concursoparaestetipodeprofissional
(...)
ÀC-RELTRAB:
TendoemvistaqueforamaprovadosnoâmbitodoProgramaPACcomrecursos extraordináriosaexecuçãodeobrasdeMacrodrenagemnosPoldersdas EBAPs04,05e10,obrasestasqueimportamemummontantedecercadeR$ 500milhões;
Tendoemvistaqueencontra-seemfaseavançadaparaobtençãoderecursos definanciamentojuntoaoBancoMundialparaexecuçãodasObrasde MacrodrenagemnoPolderdaEBAP03,obrasestasqueimportamemum montantedecercadeR$200milhões;
Tendoemvistaqueencontra-seemnegociaçõescomoBancoNDBparaa obtençãodefinanciamentoparaexecuçãodeobrasdeDrenagemeProteção ContraCheiasemregiõesafetadaspeloeventohidrológicoextremode maio/2024,compossibilidadedeummontantedeU$110milhões;
TendoemvistaanecessáriaefundamentalinterfaceentreasáreasdestaDD queseenvolverãocomosprocessosnecessáriosatéaefetivaçãodosaportes derecursos,bemcomocomaCDRENAGEM,faz-senecessáriooingressode EngenheiroCivildoconcursohoraemvigênciaparaquepossaatuarnesta relação,considerandoaurgênciaeimportânciadestasintervenções,assim comoasobrecargajáexistentenasEquipesTécnicasdasGerênciasque compõeestaDiretoria.
Outrossim,demonstramoentendimentodaadministraçãocentralizadaquantoà adequaçãodoquadroatualdeengenheirosdoDMAE,ignorandotodososestudosapresentados pelaautarquia,bemcomoacomplexidadeeanecessidadedemelhorestruturaçãodoórgão paraatendimentodenovasdemandas,queimportamodispêndiodomontanteaproximadode R$1,3bilhões28,relativasaprojetosvisandoàexecuçãodeobrasdemacrodrenagemde EBAPs(CasasdeBombas)edemaisobrasdedrenagemeproteçãocontracheiasemregiões afetadaspelasenchentes
•Processonº22.10.000007070-6-LeiMunicipalnº13.345/2022
Oprocessofoiinstaurado,em11/08/2022,pelaGerênciadeGestãodePessoas (GPES),parafinsdeencaminhamentoparaanáliseedeliberaçãosobreminutadeprojetodelei visandoacontrataçãotemporária(emergencial)de100(cem)TécnicosdeSaneamentoe100 (cem)AgentesdeSaneamento,peloprazode180diasprorrogáveisporigualperíodo(peça 6718593,p9)
347

ESTADODORIOGRANDEDOSUL TRIBUNALDECONTAS
DIREÇÃODECONTROLEEFISCALIZAÇÃO SERVIÇODEAUDITORIADEPORTOALEGRE

OprocessofoiremetidoàProcuradoriaMunicipalEspecializadaAutárquicado DMAE,quepormeiodaInformaçãonº6999/2022,entendeupornãohaveróbicesàtramitação damatéria,considerandodemonstradaaexcepcionalidadedasituaçãoenfrentada,diantedo iminentecolapsonaoperaçãodasEstaçõesdeTratamentodeÁgua(ETAs)edeEstações deTratamentodeEsgotos(ETEs)porcontadareduçãodoquadrodeservidores(peça 6718593,p.15a20)
ApesardaPGMterapresentadoumnovoposicionamentojurídicoquantoà possibilidadedoseguimentodascontrataçõestemporárias,diferentementedospareceres emitidosanteriormente,osquaisforamcontráriosporcontadanãodemonstraçãodeuma necessidadetransitória,cabeasseverarqueemnenhummomentohouveaafirmaçãodanão existênciadeumanecessidadepermanentedoDMAEDessemodo,oposicionamentofavorável, fundamentou-senascircunstânciasapresentadas,asquaisconstituiriamumanecessidade transitóriaaliadaaoexcepcionalinteressepúblico,aindaquesetratandodeatividades essenciaisepermanentes:
Atemáticaenvolvendoacontrataçãoparaserviçosordináriospermanentesdo Estadomerecemaioresreflexões.Issoporquetemseconsideradoquea admissãotemporária,nessescasos,nãoévedadaemqualquerhipótese, cabendoanalisarseacircunstânciadamodalidadedecontrataçãonãose constituiemnecessidadetransitóriaaliadoaoexcepcionalinteressepúblico, aindaquedigarespeitoaatividadesessenciaisepermanentesdaatividade estatal
FoioqueentendeuoSTFporocasiãodojulgamentodaADI3247,darelatoria daMin.CármenLucia:
EMENTA:AÇÃODIRETADEINCONSTITUCIONALIDADE ART 2º,INC VII, DA LEI 6915/1997 DO ESTADO DO MARANHÃO CONTRATAÇÃO DE PROFESSORESPORTEMPODETERMINADO INTERPRETAÇÃOEEFEITO DAS EXPRESSÕES “NECESSIDADE TEMPORÁRIA” E “EXCEPCIONAL INTERESSEPÚBLICO” POSSIBILIDADEDECONTRATAÇÃOTEMPORÁRIA PARA SUPRIR ATIVIDADES PÚBLICAS DE NATUREZA PERMANENTE TRANSITORIEDADECARACTERIZADA.PARCIALPROVIMENTODAAÇÃO. 1 A natureza permanente de algumas atividades públicas - como as desenvolvidasnasáreasdasaúde,educaçãoesegurançapública–nãoafasta, deplano,aautorizaçãoconstitucionalparacontratarservidoresdestinadosa suprirdemandaeventualoupassageira Necessidadecircunstancialagregada ao excepcional interesse público na prestação do serviço para o qual a contrataçãoseafiguraprementeautorizaacontrataçãonosmoldesdoart 37, inc IX,daConstituiçãodaRepública 2 Acontrataçãodestinadaaatividade essencialepermanentedoEstadonãoconduz,porsi,aoreconhecimentoda alegadainconstitucionalidade Necessidadedeexamesobreatransitoriedade dacontrataçãoeaexcepcionalidadedointeressepúblicoqueajustifica3Ação direta de inconstitucionalidade julgada parcialmente procedente para dar interpretaçãoconformeàConstituição (ADI3247,Relator(a):Min CÁRMEN LÚCIA,TribunalPleno,julgadoem26/03/2014,ACÓRDÃOELETRÔNICODJe158DIVULG15-08-2014PUBLIC18-08-2014)
Naoportunidade,oSTFconsiderouquemesmoemsituaçõescomunsde prestaçãodeserviçospúblicospodeadvircircunstânciaqueimponha contrataçãotemporária

ESTADODORIOGRANDEDOSUL TRIBUNALDECONTAS DIREÇÃODECONTROLEEFISCALIZAÇÃO SERVIÇODEAUDITORIADEPORTOALEGRE
()

Assim,considerandosetratardecontrataçãoindispensávelàcontinuidadeda prestaçãodeserviçosessenciais,nãoháóbiceàtramitaçãodamatéria
Oprocessoseguiutramitação,sendoincluídasnoprojeto20vagasdocargode OperadordeSubestação,autorizadaspeloDiretorGeralemreuniãorealizadaem03/10/202229
Apósnovasdiscussõessobreoprojeto,aminutaatualizadafoiencaminhadapela GPESàDiretoriadeGestãoAdministrativa(DA),sendosalientadoqueacontrataçãotemporária propostaseria"amelhoralternativaaseradotadanestemomentoemqueosestudosde alternativas de prestação de serviços pelo DMAE ainda não foram concluídos"equea "solicitaçãodecriaçãodecargosdeTécnicoemSaneamentoeAgentedeSaneamentotramita peloSEI22.10.000004786-0easolicitaçãodeautorizaçãoparaarealizaçãodeConcurso PúblicoparaoscargosdeTécnicoemSaneamento,AgentedeSaneamentoeOperadorde SubestaçãotramitapeloSEI2210000006533-8"(peça6718593,p45)
Noponto,consoanteregistradonostópicosespecíficosdeanálisesdosexpedientes 2110000003952-8e2210000004786-0,nãofoidadoqualquerseguimentoàspropostasde reestruturaçãoeadequaçãodoquadrodecargosdoDMAE,bemcomo,apesardeautorizadano expediente2210000006533-8,houveorecuodoPrefeitoMunicipalnotocanteàdemandade realizaçãodeconcursopúblicoparaoscargosefetivosdeAgentedeSaneamento,Técnicoem SaneamentoeOperadordeSubestação.
Retomandoaoexpedientesobanálise,verificou-searemessadoprocessopara análisedoComitêMunicipalparaGestãodeDespesadePessoal(CMDP)que,em10/10/2022, emitiuaDeliberaçãonº051/2022,concluindopelaautorizaçãodoenviodoprojetodelei,para contratataçãotemporáriade100AgentesdeSaneamento,100TécnicosdeSaneamentoe20 OperadoresdeSubestação(peça6718593,p46a49)
Noentanto,emdespachoemitidoem24/10/2022,aAssessoriaparaAssuntos EspeciaiseInstitucionaisLegislativosdaPGMinformousobreaelaboraçãodenovaminutade projetodelei,comaalteraçãodoquantitativodascontrataçõesemrazãodesolicitaçãodo Prefeito(peça6718593,p68):
Oquantitativopassoupornovamodificação,sendoaversãofinaldaminutade projetodeautorizadapeloPrefeito(peça6718593,p70,107a115),comosubsequente encaminhamentodoProjetodeLeinº035/2022àCâmaraMunicipal,em01/11/2022(peça 6718593,p.116a123).Oprojetoapresentouaseguintejustificativa:
OpresenteProjetodeLeitemporobjetivopossibilitaracontrataçãoemcaráter temporário,porprazodeterminado,de50(cinquenta)TécnicosdeSaneamento, 50(cinquenta)AgentesdeSaneamentoe20(vinte)OperadoresdeSubestação, totalizando120(centoevinte)servidorestemporáriosOscargoscontemplados nesteprojetodeleisãoprofissionaisquecompõemasequipesoperacionaisde manutençãoderedesdeágua,deesgotocloacaledepluvial,realizamas atividadesdefiscalizaçãoeacompanhamentodosserviçoseobrascontratados, deformaagarantirodesempenhodosContratosemvigência,bemcomo operamasestaçõesdebombeamento,asestaçõesdetratamentodeáguae esgotoeatuamnoslaboratóriosdoDepartamento
Lembramosqueaolongodosanoshouvediminuiçãoconstantedonúmerode servidoresdoDMAE,gerandograndesdificuldadesparaatendimentodas diversasatividadessobresponsabilidadedoDepartamento.Afaltadeservidores 349

ESTADODORIOGRANDEDOSUL TRIBUNALDECONTAS DIREÇÃODECONTROLEEFISCALIZAÇÃO SERVIÇODEAUDITORIADEPORTOALEGRE

vemacarretandoprejuízos,sejapeloaumentodotempoderespostaem situaçãoemergenciais,queprolongamdesabastecimentosnossistemasde água,ouextravasamentosdeesgotosinnaturaemcasodefalhasnossistemas deconduçãoeelevaçãodeefluentescloacais,bemcomocolocaemriscoa operaçãodasestaçõesdetratamentodeáguaeesgotoeocontrolerealizado noslaboratórios Reforçamosqueasituaçãoatualcolocaemriscoa manutençãodasatividadesequepoderáocasionarocolapsooperacionaldo DMAE
ODMAEjárealizoutodasasaçõespossíveis,visandoàotimizaçãodassuas equipesEntretanto,atualmente,comasequipesdisponíveissóépossível atenderasdemandasdemanutençãoemergencial,eembrevenemessas poderãoseratendidasemsuatotalidade,comaagilidadenecessáriaTal situaçãotraz,ainda,comoconsequênciaaimpossibilidadederealizar manutençõespreventivas,gerandofragilidadedossistemas,aumentodo númeroedagravidadedasfalhas,repercutindoemcustosmaiorespara recuperaçãodeequipamentosemaiortempoderetomadadeoperaçãodos sistemas
Reforçamosquejárealizamostodasasaçõespossíveisdereorganizaçãode equipeseatividades,inclusivemuitasatividadesforamterceirizadas,eestamos buscandoalternativastecnológicasparaotimizarasatividades,masquehá necessidadedecontarmoscomequipesmínimas,comconhecimentoe prontidão,paraatenderoDepartamento24horas,7diasporsemana
Deoutrolado,oMunicípioestárealizandoestudosparaidentificarasmelhores alternativasparaaprestaçãodeserviçosdoDMAEàpopulaçãoEntretanto,até queosreferidosestudossejamconcluídos,énecessáriogarantiraprestaçãode serviçodequalidadeparaapopulaçãoeacontrataçãotemporáriaéamedida maisadequada
RessaltamosqueestáprevistooencaminhamentodeProjetodeLeipara criaçãodecargosdeprovimentoefetivodeAgentedeSaneamentoedeTécnico deSaneamento,garantindoque,qualquerquesejamasconclusõesarespeito deeventualreestruturaçãodosserviçosprestadospeloDepartamento,oDMAE estaráprontopara,senecessário,recomporoquadroefetivocomoingressode servidorestécnicoseoperacionais
Emconjuntocomessasmedidas,seráabertotambémconcursopúblicoparaos cargosdeAgentedeSaneamento,TécnicodeSaneamentoeOperadorde Subestação
Assim,pelotodooexpostoacima,eemespecialasituaçãodefragilidadequeo DMAEseencontra,emrelaçãoaoscargosabrangidospelopresenteProjetode Lei,parapossibilitaroabastecimentodeáguaecorretaconduçãoetratamento dosesgotosdacidade,impactandotodaapopulaçãodePortoAlegre,emum contextosingulardepandemiadonovoCoronavírus(COVID-19),caracterizaa necessidadeurgenteedeinteressepúblicoparaacontrataçãoemergenciale porprazodeterminado,de50(cinquenta)TécnicosdeSaneamento,50 (cinquenta)AgentesdeSaneamentoe20(vinte)OperadoresdeSubestação paragarantiracontinuidadedofuncionamentodosSistemasdeAbastecimento deÁguaedeEsgotamentoSanitárioemPortoAlegre

ESTADODORIOGRANDEDOSUL TRIBUNALDECONTAS
DIREÇÃODECONTROLEEFISCALIZAÇÃO SERVIÇODEAUDITORIADEPORTOALEGRE

Informamos,ainda,queháexpedienteespecíficosolicitandoautorizaçãoparaa realizaçãodeConcursoPúblicoparaprovimentoefetivonoDMAEdoscargosde TécnicoemSaneamento,AgentedeSaneamentoeOperadordeSubestação queseencontraemtramitação
Sãoestas,SenhorPresidente,asconsideraçõesquefaçoaomesmotempoem quesubmetooProjetodeLeiàapreciaçãodestaCasa,aguardandobreve tramitaçãolegislativaeanecessáriaaprovaçãodamatéria
TaiscircunstânciasdenotamoplenoconhecimentodoPrefeitosobreasituaçãode fragilidadedoDMAEemrazãodadiminuiçãoconstantedeservidoresparaaoperaçãode serviçosessenciaisetambémrevelamoplenoconhecimentodasconsequênciasnegativasda nãoreposiçãodepessoal,comimpactosdiretosnaprestaçãodosserviçosdeabastecimentoe tratamentodeáguaeesgotosededrenagemurbana
Destaca-sequeoParecerPrévioemitidopelaProcuradoriadaCâmaraMunicipal tambémconcluiupelaconformidadedoprojeto,fundamentadonapremissadeque"orequisito datemporariedadedizrespeitopropriamenteànecessidade,enãoànaturezadaatividade",o que"significaqueacontrataçãotemporáriapodeserdestinadaaosuprimentodeatividadede caráterpermanenteoueventualdaAdministraçãoPública"(peça6718593,p150a152)
OprojetofoiaprovadopeloLegislativoMunicipal(peça6718593,p129a 136),resultandonapublicaçãodaLeiMunicipalnº13.345/202230 (peça6718593,p.178a 183)enarealizaçãodoprocessoseletivosimplificado001/2023,cujosatoseadmissõesforam registradosnoexpediente2210000011759-1
PormeiodaPortarianº207/2024(peça6718622,p383a390,393a398),foi divulgadaarelaçãodosservidoresadmitidosecontratados:33(trintaetrês)admissõesparao cargodeTécnicoemSaneamento,47(quarentaesete)admissõesparaocargodeAgentede Saneamentoe20(vinte)admissõesparaocargodeOperadordeSubestaçãoAsadmissões tiveraminícioentre27/04/2023e19/12/2023eforamcadastradas31noâmbitodesteTCE-RS
Portanto,nãoforampreenchidas17vagasdocargodeTécnicoemSaneamentoe3 vagasdocargodeAgentedeSaneamento
•Processo230000064559-1-LeiMunicipalnº13692/2023
Oprocessofoiinstaurado,em31/05/2023,pelaAssessoriaTécnicadaSecretaria MunicipaldeObraseInfraestrutura(SMOI),parafinsdesolicitaçãoderenovaçãodaequipede engenheirosearquitetostemporárioslotadosnaUnidadedeProjetosdaSecretariaMunicipalde ObraseInfraestrutura,responsávelpelaelaboração,análise,fiscalizaçãoecontroledeprojetos relacionadosàmanutençãoereformadasescolasmunicipais(SMED),doscentroscomunitários (SMELJ)edosprédiosdosprópriosmunicipais,bemcomoreferentesàconstruçãodenovas unidadesdesaúde(SMS)(peça6718594,p1e2)
Em31/07/2023,oexpedientefoiremetidopelaSMOIàSEDPES-SMAP,coma solicitaçãodoencaminhamentodeprojetodeleiparacontrataçãotemporáriasdeengenheirose arquitetos,acompanhadodaminutadeprojetodelei(peça6718594,p15e16e18a26)
OCMDPautorizouacontinuidadedoprojetodeleipormeiodaDeliberaçãonº 124/2023(peça6718594,p49e50),entendendotratar-sedeumvolumeatípicoetransitóriode demandasdecurtoprazoepeladesnecessidadedepessoalnomédioelongoprazo,emque peseasolicitaçãoinicialtersidoclaraarespeitodanecessidadedeprofissionaisparao acompanhamentoefiscalizaçãodascontrataçõespretendidas(dentreasquaisamanutençãode

ESTADODORIOGRANDEDOSUL TRIBUNALDECONTAS
DIREÇÃODECONTROLEEFISCALIZAÇÃO SERVIÇODEAUDITORIADEPORTOALEGRE

escolasmunicipais),atividadesdecaráterpermanenteecontínuonasearadaadministração pública
Aminutasofreualterações,sendoemitidospareceresjurídicosqueconcluírampor nãohaveróbicesàtramitação(peça6718594,p41a43,48e85a88)Em25/08/2023,o projetodeleifoiencaminhadopeloPrefeitoàCâmaraMunicipal(peça6718594,p89a95)
Tendoemvistaanecessidadedeadequaçõesaotextoproposto,parafinsde inclusãodeoutrosórgãosdomunicípio(DMAE,DMLU,DEMHABeSecretariaMunicipalde HabitaçãoeRegularizaçãoFundiária-SMHARF),em15/09/2023,oPrefeitoencaminhou mensagemretificativaaoprojetodeleinº027/23(peça6718594,p102a110)Relativamente aoDMAE,oprojetopreveuacontrataçãode02(dois)arquitetoseajustificativaapresentada referiuaincorporaçãodascompetênciaseestruturasdoDepartamentodeEsgotos Pluviais(DEP),nosseguintestermos(peça6718594,p108):
QuantoaoDepartamentoMunicipaldeÁguaeEsgotos(DMAE)cumpre ressaltarquefoiincorporadooDepartamentodeEsgotosPluviais(DEP)e comissoforamassumidasnovasestruturas,aindanãoincorporadasna suatotalidadeàsrotinasdoDMAEdevidoàfaltadeefetivo,oqueocasiona umacarênciaespecíficanaáreadeaprovaçãodeprojetosdeedificaçõesnos quesitoságua,esgotoedrenagem
(Grifou-se)
OprojetofoiaprovadopeloLegislativoMunicipal(peça6718594,p120a124), resultandonapublicaçãodaLeiMunicipalnº13692/202332(peça6718594,p178a181)
AtocontínuofoirealizadoehomologadooProcessoSeletivoSimplificado021/2023 paraprovimentodecargostemporáriosdeEngenheiroseArquitetos,conformeaLeiMunicipalnº 13692/2023DiantedaexistênciadequestionamentodoConselhodeArquiteturaeUrbanismo (CAU-RS)sobreodescumprimentodeacordofirmadocomomunicípioem16/08/2022,emqueo municípiocomprometeu-seadarandamentoaosconcursospúblicosparacargosefetivosde arquitetos33,aDiretoriadeSeleçãoeProvimentodaSMAPencaminhouoexpedientepara deliberaçãoeautorizaçãodoCMDP(peça6718594,p187e188)
Em05/12/2023,oCMDPemitiuaDeliberaçãonº214/2023,autorizandoa contrataçãotemporáriade21engenheiroscivise13arquitetos(peça6718594,p189a191)
RelativamenteaoDMAE,oórgãoconseguiupreencherasduasvagasestabelecidas pelaLeiMunicipalnº13692/2023,pormeiodecontrataçõesquetiveraminícioapenasem 15/02/202434,registradasnoexpediente2310000012355-4(peça6718629,p43,49,81,84, 93e96)
Nome Cargo PeríododoContrato Lotação35
RobertaCaruccioMontanari Arquiteto 15/02/2024a08/02/2025
MarinaCorrêaEschiletti Arquiteto 29/05/2024a02/08/2024
EquipedeProjetos Complementares(Gerênciade Projetos)
CoordenaçãodeManutenção deBensImóveis(Gerênciade Obras)
MariaClaraSchillingSardi Arquiteto 16/09/2024a25/12/2024 GerênciadeObras
Apesardoprojetodeleitersidoencaminhadoeaprovadosobafundamentação 352
Assinado digitalmente por: Marcelo Kipper da Silva em 14/07/25, Leandro Lobato Camargo em 14/07/25, Leandro Torres em 14/07/25, Fabio Alex Beling em 14/07/25 e outro(s). Confira a autenticidade do documento em www.tce.rs.gov.br. Identificador: PRE.FE77.2360.2A1D.FC7C.62D4.

ESTADODORIOGRANDEDOSUL TRIBUNALDECONTAS DIREÇÃODECONTROLEEFISCALIZAÇÃO SERVIÇODEAUDITORIADEPORTOALEGRE

assentadanafaltadeefetivonoDMAE,paraassumirasatividadesoriundasdaincorporaçãodo DEP,outravez,assimcomoverificadonoprocesso220000007066-5,nãohouveaalocação dessascontrataçõestemporáriasparaatuação,prioritariamente,nossistemasdedrenagemede proteçãocontracheias,considerandoasinformaçõesapresentadaspeloDMAE,emrespostaao item5daRDI641506(peça6718532) (peça6718478,p27a32e35a39),posteriormente complementadapelarespostaaRDI685030(peça6718533)(peça6718516)(peça6718517).
Ademais,nãoobstanteailegalidadedascontrataçõestemporáriasempreendidas paraatendimentodenecessidadespermanentesdosórgãosmunicipais,verificou-seque novamenteoDMAEteveopleitoatendidodeformamuitoaquémàssuasnecessidadesreais, levando-se em conta as solicitações explanadas nos processos 220000007066-5 36,2010000001166-037e2210000004786-038,quevisavamoincrementode7cargosde arquitetose31engenheiros
Deoutrabanda,opresenteexpedientedemonstraaplenaciênciadoPrefeito MunicipalquantoaosproblemasdefaltadepessoalexistentesnoDMAEedemonstra negligêncianoquedizrespeitoaprecariedadeexistentenaprestaçãodosserviçosincorporados doextintoDEP,pois,declarouexpressamente,em15/09/2023,queessascompetênciasainda nãotinhamsidototalmenteincorporadasàsrotinasdoórgãodevidoàfaltadeefetivo
•Processo23.10.000011948-4-LeiMunicipalnº13.779/2023
Trata-sedeexpedienteinstaurado,em18/12/2023,pelaGerênciadeGestãode Pessoas(GPES),parafinsdeencaminhamentoparaanáliseedeliberaçãosobre03(três) minutasdeprojetosdeleis,comosseguintesobjetos(peça6718595,p28):
1)Criaçãoealteraçãodenomenclaturadefunçõesgratificadas,comafinalidadeda criaçãodeestruturaorganizacionaldedicadaàgestãodecontratos(peça6718595,p1a5);
2)Autorizaçãoparacontrataçãotemporária(porprazodeterminado)de40(quarenta) TécnicosdeSaneamento,20(vinte)TécnicosemTratamentodeÁguaeEsgotos,20(vinte) AssistentesAdministrativos,50(cinquenta)AgentesdeSaneamentoe30(trinta)Operadoresde Subestação(peça6718595,p.6a13);
3)AdequaçãodoQuadrodePessoaldoDMAE,comacriaçãoeextinçãodecargose alteraçãodeatribuiçõesdoscargosdeOperadordeMáquinasEspeciaiseAgentede Saneamento(peça6718595,p14a27);
ApesardaDiretoriaGeral(DG)manifestar-sefavoravelmenteatodososprojetos (peça6718595,p.29e30),oexpedienteseguiutramitaçãoapenasparaoencaminhamentoda minutadeprojetovisandoaaautorizaçãodascontrataçõestemporáriasApósamodificaçãoda minuta39 (peça6718595,p31a39),oexpedientefoiremetidoàProcuradoriaMunicipal EspecializadaAutárquicadoDMAE(peça6718595,p.40),quepormeiodaInformaçãonº 7129/2023(peça6718595,p50a55),entendeupornãohaveróbicesàtramitaçãoda matéria,considerandodemonstradaaexcepcionalidadedasituaçãoenfrentada,diantedo iminentecolapsonaoperaçãodasEstaçõesdeTratamentodeÁgua(ETAs)edeEstações deTratamentodeEsgotos(ETEs)porcontadareduçãodoquadrodeservidores.
Caberessaltarqueoparecerjurídicoapresentouosmesmosfundamentose argumentoslançadosnaanálisejurídicaemitidanoprocesso2210000007070-6,cujaopiniãofoi favorávelàminutadeprojetodelei,posteriormenteconvertidonaLeiMunicipalnº13345/2022, queautorizouarealizaçãodecontrataçõestemporáriasparacargosidênticosaodoprojetosob 353
do documento em www.tce.rs.gov.br. Identificador: PRE.FE77.2360.2A1D.FC7C.62D4.

ESTADODORIOGRANDEDOSUL TRIBUNALDECONTAS
DIREÇÃODECONTROLEEFISCALIZAÇÃO SERVIÇODEAUDITORIADEPORTOALEGRE

análise(cargosdeTécnicodeSaneamento,AgentedeSaneamentoeOperadordeSubestação)
Assevera-seque,assimcomonaoportunidadeanterior,emnenhummomentoo órgãojurídicosustentouainexistênciadeumanecessidadepermanentedoDMAEAssim, emboraignorandoaincapacidaderesolutivadaadministraçãomunicipalaopromoverreiteradas contrataçõestemporáriasparaserviçoscontínuosepermanentes,oposicionamentofavorável fundamentou-senascircunstânciasapresentadas,asquaisconstituiriamumanecessidade transitóriaaliadaaoexcepcionalinteressepúblico,aindaquetratando-sedeatividades essenciaisepermanentes:
Atemáticaenvolvendoacontrataçãoparaserviçosordináriospermanentesdo Estado merece maiores reflexões Isso porque tem se considerado que a admissão temporária, nesses casos, não é vedada em qualquer hipótese, cabendoanalisarseacircunstânciadamodalidadedecontrataçãonãose constituiemnecessidadetransitóriaaliadoaoexcepcionalinteressepúblico, aindaquedigarespeitoaatividadesessenciaisepermanentesdaatividade estatal
FoioqueentendeuoSTFporocasiãodojulgamentodaADI3247,darelatoria daMinCármenLucia:
EMENTA:AÇÃODIRETADEINCONSTITUCIONALIDADE.ART.2º,INC.VII, DA LEI 6915/1997 DO ESTADO DO MARANHÃO CONTRATAÇÃO DE PROFESSORESPORTEMPODETERMINADO INTERPRETAÇÃOEEFEITO DAS EXPRESSÕES “NECESSIDADE TEMPORÁRIA” E “EXCEPCIONAL INTERESSEPÚBLICO” POSSIBILIDADEDECONTRATAÇÃOTEMPORÁRIA PARA SUPRIR ATIVIDADES PÚBLICAS DE NATUREZA PERMANENTE TRANSITORIEDADECARACTERIZADA PARCIALPROVIMENTODAAÇÃO
1 A natureza permanente de algumas atividades públicas - como as desenvolvidasnasáreasdasaúde,educaçãoesegurançapública–nãoafasta, deplano,aautorizaçãoconstitucionalparacontratarservidoresdestinadosa suprirdemandaeventualoupassageira Necessidadecircunstancialagregada ao excepcional interesse público na prestação do serviço para o qual a contrataçãoseafiguraprementeautorizaacontrataçãonosmoldesdoart 37, inc IX,daConstituiçãodaRepública 2 Acontrataçãodestinadaaatividade essencialepermanentedoEstadonãoconduz,porsi,aoreconhecimentoda alegadainconstitucionalidade Necessidadedeexamesobreatransitoriedade dacontrataçãoeaexcepcionalidadedointeressepúblicoqueajustifica.3.Ação direta de inconstitucionalidade julgada parcialmente procedente para dar interpretaçãoconformeàConstituição (ADI3247,Relator(a):Min CÁRMEN LÚCIA,TribunalPleno,julgadoem26/03/2014,ACÓRDÃOELETRÔNICODJe158DIVULG15-08-2014PUBLIC18-08-2014)
Na oportunidade, o STFconsiderou que mesmo em situações comuns de prestação de serviços públicos pode advir circunstância que imponha contrataçãotemporária.
()
Assim,considerandosetratardecontrataçãoindispensávelàcontinuidadeda prestaçãodeserviçosessenciais,nãoháóbiceàtramitaçãodamatéria
Assinado digitalmente por: Marcelo Kipper da Silva em 14/07/25, Leandro Lobato Camargo em 14/07/25, Leandro Torres em 14/07/25, Fabio Alex Beling em 14/07/25 e outro(s). Confira a autenticidade do documento em www.tce.rs.gov.br. Identificador: PRE.FE77.2360.2A1D.FC7C.62D4.

ESTADODORIOGRANDEDOSUL TRIBUNALDECONTAS
DIREÇÃODECONTROLEEFISCALIZAÇÃO SERVIÇODEAUDITORIADEPORTOALEGRE

Outrossim,asjustificativasparaoprojetotambémsãoasmesmasque fundamentaramasLeisMunicipaisnº13032/2022,nº13345/2022enº13561/2023, demonstrandooplenoconhecimentodoPrefeitosobreasituaçãodefragilidadedoDMAE emrazãodadiminuiçãoconstantedeservidoresparaaoperaçãodeserviçosessenciaise tambémrevelamoplenoconhecimentodasconsequênciasnegativasdanãoreposiçãode pessoal,comimpactosdiretosnaprestaçãodosserviçosdeabastecimentoetratamento deáguaeesgotosededrenagemurbana:
OpresenteProjetodeLeitemporobjetivopossibilitaracontrataçãoemcaráter temporário,porprazodeterminado,de40(quarenta)TécnicosdeSaneamento, 20(vinte)TécnicosemTratamentodeÁguaeEsgotos,50(cinquenta)Agentes deSaneamentoe30(trinta)OperadoresdeSubestação,totalizando140(cento equarenta)servidorestemporáriosOscargoscontempladosnesteprojetodelei sãoprofissionaisquecompõemasequipesoperacionaisdemanutençãode redesdeágua,deesgotocloacaledepluvial,realizamasatividadesde fiscalizaçãoeacompanhamentodosserviçoseobrascontratados,deformaa garantirodesempenhodosContratosemvigência,operamasestaçõesde bombeamento,asestaçõesdetratamentodeáguaeesgotoeatuamnos laboratóriosdoDepartamento
Lembramosqueaolongodosanoshouvediminuiçãoconstantedonúmerode servidoresdoDMAE,gerandograndesdificuldadesparaatendimentodas diversasatividadessobresponsabilidadedoDepartamentoAfaltadeservidores vemacarretandoprejuízos,sejapeloaumentodotempoderespostaem situaçãoemergenciais,queprolongamdesabastecimentosnossistemasde água,ouextravasamentosdeesgotosinnaturaemcasodefalhasnossistemas deconduçãoeelevaçãodeefluentescloacais,bemcomocolocaemriscoa operaçãodasestaçõesdetratamentodeáguaeesgotoeocontrolerealizado noslaboratórios Reforçamosqueasituaçãoatualcolocaemriscoa manutençãodasatividadesequepoderáocasionarocolapsooperacionaldo DMAE
ODMAEjárealizoutodasasaçõespossíveis,visandoàotimizaçãodassuas equipesEntretanto,atualmente,comasequipesdisponíveissóépossível atenderasdemandasdemanutençãoemergencial,eembrevenemessas poderãoseratendidasemsuatotalidade,comaagilidadenecessáriaTal situaçãotraz,ainda,comoconsequênciaaimpossibilidadederealizar manutençõespreventivas,gerandofragilidadedossistemas,aumentodo númeroedagravidadedasfalhas,repercutindoemcustosmaiorespara recuperaçãodeequipamentosemaiortempoderetomadadeoperaçãodos sistemas
Reforçamosquejárealizamostodasasaçõespossíveisdereorganizaçãode equipeseatividades,inclusivemuitasatividadesforamterceirizadas,eestamos buscandoalternativastecnológicasparaotimizarasatividades,masquehá necessidadedecontarmoscomequipesmínimas,comconhecimentoe prontidão,paraatenderoDepartamento24horas,7diasporsemana.
Deoutrolado,oMunicípioestárealizandoestudosparaidentificarasmelhores alternativasparaaprestaçãodeserviçosdoDMAEàpopulaçãoEntretanto,até queosreferidosestudossejamconcluídos,énecessáriogarantiraprestaçãode serviçodequalidadeparaapopulaçãoeacontrataçãotemporáriaéamedida 355
em www.tce.rs.gov.br. Identificador: PRE.FE77.2360.2A1D.FC7C.62D4.

ESTADODORIOGRANDEDOSUL TRIBUNALDECONTAS
DIREÇÃODECONTROLEEFISCALIZAÇÃO SERVIÇODEAUDITORIADEPORTOALEGRE
maisadequada

RessaltamosqueestáprevistooencaminhamentodeProjetodeLeipara criaçãodecargosdeprovimentoefetivodeTécnicodeSaneamento,Técnicode TratamentodeÁguaeEsgotoseAgentedeSaneamento,garantindoque, qualquerquesejamasconclusõesarespeitodeeventualreestruturaçãodos serviçosprestadospeloDepartamento,oDMAEestaráprontopara,se necessário,recomporoquadroefetivocomoingressodeservidorestécnicose operacionais
Emconjuntocomessasmedidas,estáemandamentoarealizaçãodeConcurso PúblicoparaoscargosdeTécnicodeSaneamento,TécnicoemTratamentode ÁguaeEsgotos,AgentedeSaneamentoeOperadordeSubestaçãoEncontrasenaetapadecontrataçãodeinstituiçãoespecializadaparaarealizaçãodo Concurso.
Assim,pelotodooexpostoacima,eemespecialasituaçãodefragilidadequeo DMAEseencontra,emrelaçãoaoscargosabrangidospelopresenteProjetode Lei,parapossibilitaroabastecimentodeáguaecorretaconduçãoetratamento dosesgotosdacidade,impactandotodaapopulaçãodePortoAlegre, caracterizaanecessidadeurgenteedeinteressepúblicoparaacontratação emergencialeporprazodeterminado,de40(quarenta)Técnicosde Saneamento,20(vinte)TécnicosemTratamentodeÁguaeEsgotos,50 (cinquenta)AgentesdeSaneamentoe30(trinta)OperadoresdeSubestação paragarantiracontinuidadedofuncionamentodosSistemasdeAbastecimento deÁguaedeEsgotamentoSanitárioemPortoAlegre
Sãoestas,SenhorPresidente,asconsideraçõesquefaçoaomesmotempoem quesubmetooProjetodeLeiàapreciaçãodestaCasa,aguardandobreve tramitaçãolegislativaeanecessáriaaprovaçãodamatéria
Noponto,consoanteregistradonostópicosespecíficosdeanálisesdosexpedientes 2110000003952-8,2210000004786-0etambémverificadonestepresenteprocesso,nãofoi dadoqualquerseguimentoàspropostasdereestruturaçãoeadequaçãodoquadrodecargosdo DMAE,bemcomo,apesardeautorizadanoexpediente22.10.000006533-8,houveorecuodo PrefeitoMunicipalnotocanteàdemandaderealizaçãodeconcursopúblicoparaoscargos efetivosdeAgentedeSaneamento,TécnicoemSaneamentoeOperadordeSubestação
Oprocessoseguiutramitação,sendoremetidoparaanálisedoComitêMunicipalpara GestãodeDespesadePessoal(CMDP)que,em20/12/2023,emitiuaDeliberaçãonº220/2023, concluindopelaautorizaçãodoenviodoprojetodelei(peça6718595,p.67a69).
Apósaavaliaçãofavorávelquantoàadequaçãotécnicaejurídico-formaldoprojeto emitidapelaAssessoriaparaAssuntosEspeciaiseInstitucionaisLegislativosdaPGM(peça 6718595,p84a87),oPrefeitoencaminhouoProjetodeLeinº047/2022àCâmaraMunicipal, em20/12/2023(peça6718595,p88a93)
OParecerPrévioemitidopelaProcuradoriadaCâmaraMunicipaltambémconcluiu pelaconformidadedoprojeto,fundamentadonapremissadeque"orequisitodatemporariedade dizrespeitopropriamenteànecessidade,enãoànaturezadaatividade",oque"significaque acontrataçãotemporáriapodeserdestinadaaosuprimentodeatividadedecaráterpermanente oueventualdaAdministraçãoPública"(peça6718595,p113e114)
OprojetofoiaprovadopeloLegislativoMunicipal(peça6718595,p.98a 102),resultandonapublicaçãodaLeiMunicipalnº13779/202340 (peça6718595,p142a 356
Assinado digitalmente por: Marcelo Kipper da Silva em 14/07/25, Leandro Lobato Camargo em 14/07/25, Leandro Torres em 14/07/25, Fabio Alex Beling em 14/07/25 e outro(s). Confira a autenticidade do documento

ESTADODORIOGRANDEDOSUL TRIBUNALDECONTAS
DIREÇÃODECONTROLEEFISCALIZAÇÃO SERVIÇODEAUDITORIADEPORTOALEGRE

146)enarealizaçãodoprocessoseletivosimplificado001/2024,cujosatoseadmissõesforam registradosnoexpediente241000000009-1
Pormeioportarianº30480002/2024(peça6718608,p391a399,402a407),foi divulgadaarelaçãodosservidoresadmitidosecontratados:32(trintaedois)admissõesparao cargodeTécnicoemSaneamento,17(dezessete)admissõesparaocargodeTécnicoem TratamentodeÁguaeEsgotos,41(quarenteeuma)admissõesparaocargodeAgentede Saneamentoe28(vinteeoito)admissõesparaocargodeOperadordeSubestaçãoAs admissõestiveraminícioentre19/04/2024 e26/07/2024NoâmbitodesteTCE-RSforam cadastradas4124(vinteequatro)admissõesdeTécnicosemSaneamento,08(oito)admissões deTécnicosemTratamentodeÁguaeEsgotose30(trinta)admissõesparaocargodeAgente deSaneamento
Portanto,nenhumdoscargostevesuasvagastotalmentepreenchidas,restandosem preenchimento8vagasdocargodeTécnicoemSaneamento,3vagasdocargodeTécnicoem TratamentodeÁguaeEsgotos,9vagasdeAgentedeSaneamentoe2vagasdeOperadorde Subestação
1AdmissõesanalisadasnoProcessonº16016-0200/23-7
2EditalautorizadonoprocessoSEI2010000005670-2
3ConformedestacadonaanálisedoProcesso1910000001067-7,aautomaçãonãoviabilizariaa reduçãobruscadeoperadoresdosníveisatualmenteexistentespordiversosmotivosexplanados (falhasoperacionais,dificuldadesnamanutençãoemtempohábildistânciaentreasunidades operacionais,fragilidadestecnológicas,riscosdeacidentesenecessidadedelimpezacontínua)
4Disponívelem:http://leismunicipais/odwsz
5AsadmissõesparaoscargosdeSoldadorIndustrial(3cargos)eTécnicoIndustrial(1cargo) iniciaramem25/07/2022
6AdmissõesparaoscargosdeMontadorEletromecânico(4cargos,inícioentre17/11/2022e 30/11/2022e6cargos,inícioentre28/07/2023e05/10/2023),OperadordeMáquinasEspeciais (2cargos,inícioentre12/12/2022e28/12/2022),TécnicoIndustrial(2cargos,inícioentre 30/11/2022e14/12/2022),Fresador(2cargos,inícioentre07/08/2023e14/08/2023).
7NoâmbitodesteTCE-RS,comfundamentonaLeiMunicipalnº13032/2022,foram cadastradas03(três)admissõesdocargodeSoldadorIndustrial,02(duas)admissõesdocargo deTécnicoIndustrial,02(duas)admissõesdocargodeFresadore10(dez)admissõesdocargo deMontadorEletromecânicoNãoforamcadastradostodososatosadmissionaisrealizados
8Art4ºAsadmissõesserãoefetivadasportempodeterminado,observadooprazode180(cento eoitenta)diasParágrafoúnicoHavendocomprovadanecessidade,asadmissõesprevistasno caputdesteartigovigorarãopeloprazode180(centoeoitenta)dias,podendoserprorrogadas umavez,porigualperíodoDisponívelem:http://leismunicipais/pghty
9ParecerPrévionº591/23
10Disponívelem:http://leismunicipais/0oda6
11AtravésdasPortarias409/2024e1398/2024foramregistradasasadmissõesde06Técnicos Industriais,08MontadoresEletromecânicos,03OperadoresdeMáquinasEspeciais,02 Fresadorese03SoldadoresIndustriais
12Disponívelem:http://leismunicipais/1l4zw
13Atospendentesdeanáliseauditorial
14AminutatambémincluiucargosparaaSecretariaMunicipaldeDesenvolvimentoSocial(SMDS) eparaaSecretariaMunicipaldeParcerias(SMP),estabelecendo1cargodeEngenheiroe1 cargodeArquitetoparacadaumadessassecretarias
15Disponívelem:http://leismunicipais/tzxia,consultaem15/12/2024
16Homologadoem08/08/2022
17OExecutivotambémpublicouoDecretonº21810/2022paraprorrogaçãodoprazodevalidade doProcessoSeletivoSimplificadonº004/2022Disponívelem:http://leismunicipais/096ne, consultaem15/12/2024
18Atospendentesdeanáliseauditorial
19ConsoanteinformaçõesobtidasnoSIAPC
20Oprojetovisavaoincrementode04Arquitetose32Engenheiros
21.Oprojetovisavaoincrementode07Arquitetose31Engenheiros,númerosexatosao apresentadocomonecessidadedecontrataçãotemporária
Assinado digitalmente por: Marcelo Kipper da Silva em 14/07/25, Leandro Lobato Camargo em 14/07/25, Leandro Torres em 14/07/25, Fabio Alex Beling em 14/07/25 e outro(s). Confira a autenticidade do documento em www.tce.rs.gov.br. Identificador: PRE.FE77.2360.2A1D.FC7C.62D4.

ESTADODORIOGRANDEDOSUL TRIBUNALDECONTAS
DIREÇÃODECONTROLEEFISCALIZAÇÃO SERVIÇODEAUDITORIADEPORTOALEGRE

22Art11NocursodascontrataçõestemporáriasdequetrataestaLei,oExecutivoMunicipal tomaráasmedidasnecessáriasparaacontrataçãoefetivadeengenheiroscivisearquitetos,por concursopúblico,paraaexecuçãodefunçõespúblicasordinárias
23Tambémfoiautorizadaacedênciade01cargodeArquitetonoprocesso2410000000596-4, aindanãoatendidapelaadministraçãocentralizada
24Tambémfoiautorizadaareposiçãode01EngenheiroMecâniconoprocesso24100000020467,todavianãofoiefetivadaemrazãodoconcursonãotermaiscandidatosaprovadosApenasno processo2310000003885-9tratou-sedeincrementodeservidor(1cargodeEngenheiro Químico)Videtópicoespecíficodeanálise
25Reposiçãode5vacânciasdocargodeEngenheiroCivil
26Reposiçãode1vacânciadocargodeEngenheiroCivil
27Reposiçãode5vacânciasdocargodeEngenheiroMecânico
28ConsiderandoacotaçãoatualdodólaremR$5,83(USD110000000,00x5,83= 641300000,00)Memóriadecálculo=R$500000000,00+200000000,00+641300000,00= 1341300000,00)Cálculorealizadoem31/01/2025
29Emdespachoexaradoem05/10/2022tambémfoireferidaaautorizaçãodoPrefeitoMunicipal
30Disponívelem:http://leismunicipais/odwsz
31Atospendentesdeanáliseauditorial
32Disponívelem:http://leismunicipais/0whto,consultaem06/03/2025
33Vide notícia veiculada no site da Prefeitura Municipal, disponível em: https://prefeiturapoabr/smap/noticias/acordo-inedito-entre-conselho-de-arquitetura-e-prefeiturae-homologado-pela-justica
34Asanteriorescontrataçõestemporáriasdearquitetosseencerraramemsetembrode2023, conformeregistradonotópicodeanálisedoexpediente220000007066-5
35FontedeInformações:SIAPC,DiárioOficialEletrônicodoMunicípio(DOPA)eresposta apresentadapeloDMAEàRDI666502
36ODMAEsolicitouoingressode7Arquitetose31Engenheiros
37Oprojetovisavaoincrementode04Arquitetose32Engenheiros
38Oprojetovisavaoincrementode07Arquitetose31Engenheiros,númerosexatosao apresentadocomonecessidadedecontrataçãotemporária
39ForamretiradososcargosdeAssistenteAdministrativo
40Disponívelem:http://leismunicipais/1108r
41Atospendentesdeanáliseauditorial
9CONCLUSÕES
Conformedetalhadonesterelatório,oRioGrandedoSulenfrentouemabrile maiode2024umadasmaiorescatástrofesclimáticasdahistóriadopaís,impulsionadapor umvolumeexcepcionaldechuvasEsseeventoextremofoioápicedeumperíodode precipitaçõesacimadamédia,queseestendeude2023aoiníciode2024,resultantedeuma complexacombinaçãodefatoresclimáticos,comdestaqueparaainfluênciadofenômenoEl Niño
EmPortoAlegre,nocomeçodemaiode2024,houveaelevaçãodoníveldoGuaíba atéacotade5,37m,oquesuperouoregistrohistóricodacheiade1941,quandoonível alcançou4,75mEmrazãodaexistênciadeumsistemadediques,muro,comportaseestações debombeamento,haviaaexpectativadequeasregiõesprotegidaspeloSPCCnãofossem alagadas.Issonãoocorreu,demodoquearegiãocentralenortedacapitalforaminundadas.O SPCC,sobresponsabilidadedoDMAE,autarquiadoExecutivodePortoAlegre,foipostoà provaefalhou
Destaca-sequeemabrilemaiode2024todooEstadodoRioGrandedoSulsofreu muitocomosefeitoscatastróficosdasvolumosaschuvasincidentesOsdeslizamentosdeterrae asinundaçõestrouxeramseverosdanosemmuitasáreas,aexemplodaregiãometropolitanade PortoAlegre,incluindoacapital,EldoradodoSul,Guaíba,NovoHamburgo,SãoLeopoldoentre 358
Assinado digitalmente por: Marcelo Kipper da Silva em 14/07/25, Leandro Lobato Camargo em 14/07/25, Leandro Torres em 14/07/25, Fabio Alex Beling em 14/07/25 e outro(s). Confira a autenticidade do documento em www.tce.rs.gov.br. Identificador: PRE.FE77.2360.2A1D.FC7C.62D4.

ESTADODORIOGRANDEDOSUL TRIBUNALDECONTAS
DIREÇÃODECONTROLEEFISCALIZAÇÃO SERVIÇODEAUDITORIADEPORTOALEGRE

outrasDentreestas,PortoAlegreeraumadaspoucascidadesquepossuíaumsistemade proteçãoconcebidoparapoderfazerfrenteàelevaçãorecordedoníveldoGuaíba naquelesdias.
Desdeadécadade1970,oSPCCpreviaproteçãoatéacotade6metros,em respostaàcheiahistóricade1941acrescidadeumamargemde1,20mTalcotabalizouo projetodoselementosdosistema,demodoqueosdiquesforamconcebidosparasuportarcotas aindasuperiores,entre6e7metros,considerandoahidrodinâmicadoscursosd'águaà montantedocaisdoporto,easEBAPsprojetadascomcâmarasdedespejoemcotaslimite iguaisouacimade6moudotadasdetampasherméticasAindaqueseconsiderequeolimite funcionaldealgumasEBAPssejaligeiramenteinferioraolimitefísicode6m,asfalhas verificadasem2024ocorreramemcotasinferioresàelevaçãohistóricade1941
Nessesentido,aindaqueoeventoextremode2024tenhasidoinevitável,a elevaçãoobservadadoníveld'águaeraplenamenteprevisívelemanteve-seabaixodolimite deproteçãoreferencialde6m,oquedeplanoafastaaaplicaçãodaexcludentede responsabilidadeporforçamaiorpelaexcepcionalidadedoeventodecheia,aomenos quandosediscutemasfalhasdoSPCC
Diantedocenárioatual,marcadopormudançasclimáticasepelamaior frequênciadeeventosextremos,seriaesperadoqueesseníveldeproteçãopensadoem 1970fosse,nomínimo,mantidoouampliado–oquenãoocorreuAocontrário,osistemafoi progressivamentefragilizado,apontodequeapresentariafalhasmesmonumeventualcenário deumacheiacomparávelàde1941
DeacordocomopróprioDMAE,aságuasqueinvadiramacidadetiveramcomo principalorigem:
1) Falhasnosdiquesdazonanorte;
2) Falhasnascomportas/portõesdomurodaMauá;
3) Passagemdeáguanastampasdoscondutosforçados;
4) Passagemdeáguaatravésderedesconectadasdiretamenteao GuaíbaeaoarroioDilúvio;
5) PassagemdeáguapelasEBAPseEBABs.
AEquipedeAuditoriaanalisoucadaumadessascausas,confirmandoas fragilidadeseaprofundandoainvestigaçãoparaidentificarasorigenseosagentes públicoseprivadosresponsáveisOSPCCfoi,então,avaliadosobasperspectivasdesua concepção,manutençãoegestão.
Observou-seque,emmaiode2024,oSPCCeraumsistemacomfragilidades preexistentes,quenãorecebeuaatençãonecessáriaparaoperareficientemente,mesmoantes daextinçãodoDepartamentodeEsgotosPluviais(DEP)em2017

ESTADODORIOGRANDEDOSUL
DIREÇÃODECONTROLEEFISCALIZAÇÃO SERVIÇODEAUDITORIADEPORTOALEGRE

EmboraoDMAEtenhaabsorvidoasresponsabilidadesdoDEPepromovido melhoriasnacapacidadedebombeamentodasEBAPs,éevidentequeoSPCC,nosúltimos anos,nãofoitratadocomoumsistemaintegrado.Suamanutençãoecuidadoenvolvemnão apenasequipamentosmecânicos,mastambémaintegridadedosdiquesearegulaçãode intervençõesestruturais,comoalçasdeacessoaviadutos
Emoutraspalavras,osistemafoipriorizado,nosúltimosanos,paraadrenagemdas águaspluviaisinternas,emdetrimentodesuafunçãoprimordialdecontençãodascheias doGuaíbaAoperação,manutençãoeosinvestimentosdasúltimasgestõesevidenciamuma claranegligênciaemrelaçãoaoriscodeumagrandecheiacomoade1941,fator determinanteparaocolapsodoSPCCem2024,oquegerouumprejuízoaoerário estimadopeloprópriomunicípiodaordemdeR$6a8bilhões.
Exemplo dessa negligência foi aindefiniçãodaresponsabilidadepelo monitoramento,manutençãoeampliaçãodosdiquesdazonanortedacapital,estruturasque semostraramasmaisfrágeisdoSPCCeporondeosmaioresvolumesdeáguadoGuaíba adentraramparaointeriordacidadeAdemais,ainsuficiênciadascotasdecoroamentodo sistemadediquesexistenteem2024permiteconfirmarque,mesmoemumacheiademenor magnitude,comoade1941,haveriaafalhadaproteçãodacapital,tendoemvistaquehá váriospontosdessasestruturasemcotainferiora4,75m
Aanáliserevelouquenumerosasfalhaseramdeconhecimentodagestãodo DMAEedaPrefeitura,masnãoreceberamotratamentoadequadoExemplosincluem ocupaçõesemdiquesdesdeadécadade80eaalturainsuficientedessasestruturas, problemaidentificadodesde2015Alémdisso,adocumentaçãodoSPCCrevelou-seesparsa ouincompleta,comprometendoagestãocorretadosistema
Aprevisãoorçamentáriadosúltimosanosemprogramasrelacionadosàdrenagem dacapitalevidenciaqueosvaloresinvestidosnoSPCCestavammuitoaquémdo necessário.Mesmoquandohaviaaprevisãoderecursosnosinstrumentosdeplanejamento, comonaLeiOrçamentáriaAnual,ficouclaroqueasgestõesexecutarammontantesmuito inferioresaoestimado,oqueseatribuiaumconjuntodefragilidadesrelacionadasànão priorizaçãodoSPCC,ànãocaptaçãoderecursosfinanciados,àfaltadeprojetospara atualizaçãodosistema,àdeficiêncianacapacidadedegestãoefiscalizaçãodenovasobrase serviçoseatémesmoàperdaderecursospúblicosjágarantidosoriundosdoOrçamentoGeral daUnião,ouseja,umcusteioquenãocomprometeriaoorçamentodomunicípiodePortoAlegre.
Aavaliaçãodasresponsabilidadespelasfalhasdemonstrouquemuitosagentes tinhamciênciadosriscos,masaestruturaadministrativaexistentedificultouaadoçãode medidastempestivasAauditoriafocou,portanto,naestruturaçãodoDMAEparaoperar, mantereampliaroSPCC,revelandoinúmerasfragilidades,comoadeficienteorganizaçãoe regulamentaçãodasfunçõesaseremdesempenhadaspeloDMAE,oumesmoaconstituiçãode equipesdetrabalhoalijadasdepoderdeexecuçãoeplanejamento,poisconstituídasporapenas umagente.TaisfragilidadeseramdeconhecimentodaDireção-GeraldoDMAEedos prefeitosàfrentedoExecutivodePortoAlegre,poisfoiaprópriagestãomunicipalque 360

ESTADODORIOGRANDEDOSUL TRIBUNALDECONTAS DIREÇÃODECONTROLEEFISCALIZAÇÃO SERVIÇODEAUDITORIADEPORTOALEGRE
definiutaldesenhoinstitucional.

CumpredestacarqueomunicípiodePortoAlegreassumiuem1990a responsabilidadepelagestãodoSPCC,implantadopeloDNOS,enteextintodaUniãoDesde então,nãoseidentificouummovimentodoMunicípioparaqueaUniãoretomeessa responsabilidade,aindaqueseidentifiquem,pelomenosdesde2012,recursosdaUnião direcionadosparacustearamacrodrenagemeelementosdoSPCCdacapital(DrenaPOA), açãoqueconfirmaaparticipaçãodaesferafederalemseumisterfixadonoartigo21, incisoXVIIIdaCF/88.
AanálisetambémrevelouasgrandesdificuldadesdoDMAEemmantersua autonomiaadministrativa,especialmenteparareporereestruturarseuquadrodepessoal,que seencontradefasado,comapenas28,8%doscargosprovidosem2024,parafazerfrenteàs suasresponsabilidadesÉalarmantequeaequipeprincipaldoDMAEparageriroSPCCfosse compostaporapenasumservidor
Peloquadroreveladonaanálisedaauditoria,épossívelconcluirqueasomissões administrativasconstatadasprivaramoDMAEeapopulaçãodaoportunidadeconcretade umarespostamaiseficazdiantedaocorrênciasdeeventosdecheiacomoade2024
Alémdisso,énotóriaaausênciadeumaculturaderisconaoperacionalizaçãoda açãopública.Issoéparadoxal,considerandoqueasgestõesmaisrecentespromoverame participaramdediversascampanhaseeventossobreresiliênciaclimáticaemeioambiente Contudo,nãohouvealocaçãoeexecuçãoorçamentáriasuficientesparaoSPCC,nema disponibilizaçãodepessoalparageri-lo.AgestãoderiscosdoDMAEnãorefletiua responsabilidadenecessáriapelagestãodoSPCCemseuplanejamentoestratégico,ea governançaparaaproteçãodacidademostrou-sealtamentedeficitária
Nãoérazoávelqueafaltadeprovidênciasporpartedegestõespassadassirva, agora,comosubterfúgioparaqueasgestõesmaisrecentespossamseomitirdiantedas responsabilidades legalmente assumidas, precipuamente definidas em legislações contemporâneaspublicadasporelaspróprias.Talraciocíniolevariaàconclusãodequeseria admitidaafaltadeprovidênciasadaeternumporpartedosgestoresresponsáveis,demodoa isentarasrecentesgestões,quesinalizaramparaatençãoàresiliência,prevençãoderiscose enfrentamentodasmudançasclimáticas,masquenapráticanãoadotaramasprovidências cabíveisnoquetangeaoadequadofuncionamentodoSPCC.
AoDMAEforamatribuídascompetênciasrelativasàgestão,operação,conservação, manutençãoeexecuçãodeobraseserviçosnecessáriosàexpansão,desenvolvimentoe melhoriasdoSPCC.Portantolhecompetiaagircomvistasaentenderaconcepçãodo sistemaeidentificareventuaisfalhas(somenteagoraconhecidas),pormeiodeações voltadasàverificaçãodasestruturasedoadequadofuncionamentodascomportasedascasas debombas;aomonitoramentodaalturaedaestabilidadedosdiques,oqueimplicariaa prementenecessidadedereassentamentodasfamíliasparaqueasmedidascorretivasfossem possíveis;eàresoluçãodasdemaisfalhas,tambémnegligenciadaspelasúltimasgestões

ESTADODORIOGRANDEDOSUL TRIBUNALDECONTAS DIREÇÃODECONTROLEEFISCALIZAÇÃO SERVIÇODEAUDITORIADEPORTOALEGRE

Taisprocedimentos,majoritariamente,constavamclaramenteregistradosnoPlano MunicipaldeSaneamentodePortoAlegre,de2015enoCadernodeEncargosdoDEP,de 2005,demodoqueagestãodeixoudeobservarinstrumentosmunicipaisháanos disponíveis
ComoagravantedacondutadosgestoresdoSPCC,destaca-sequedois episódiosdecheianoGuaíbaem2023jáindicavamfalhasemequipamentosdosistema,mas nãodespertaramosensodeurgêncianecessárioparaacorreçãodosproblemasNaqueleano, tambémsepreviaumaforteatuaçãodofenômenoElNiño,historicamenteassociadoaperíodos maischuvosos,oquedefatoseconfirmouem2024
EmboraasfalhasdoSPCCem2024reflitamomissõesdediversasgestões passadas,essehistóriconãodeveservirdeatenuanteouexcludentedeculpabilidadedos gestoresmaisrecentes.Atemáticaambiental,asmudançasclimáticaseoseventos extremosganharamrelevânciairrefutávelnaúltimadécada.
Acondutadasgestõesmunicipaisfoicontraditórianamedidaemquehouvea ediçãodeleisenormasrelacionadasàresiliênciaclimática,gestãoderiscosemudanças climáticas, mas essas normas não se materializaram em projetos ouintervençõesconcretasnasestruturasmaiscríticasemPortoAlegrecomo,nocaso,os elementosdoSPCC.
ExemplodissofoiodestaquedamatériaquandodapublicaçãodaLeiMunicipalnº 12.629/2019,queinstituiuumplanoderesiliêncianomunicípio,comobjetivosvoltadosà prevençãocombasenagestãoderiscosdedesastresesuareduçãoemcasodeinundação, alagamentoedeslizamento,bemcomonagarantiadeinfraestruturaadequadaàsfamílias residentesemáreasderiscos;edaLeiComplementarnº872/2020,queinstituiuapolíticade sustentabilidade,enfrentamentodasmudançasclimáticaseusoracionaldaenergia,com objetivosvoltadosàresiliência,prevençãoeadaptaçãoemitigaçãodosimpactosdas mudançasclimáticasedeeventosextremos(aumentodoníveldoGuaíba,alagamentose deslizamentos)
Nomesmosentido,emperíodorecente,omunicípioinstituiugrupodetrabalho paraelaboraçãodoPlanodeAçãoClimáticaetambémautorizouoafastamentode diversosagentespúblicosparaparticipaçãoemeventosnacionaiseinternacionais, relacionadosàtemáticaresiliênciaemudançasclimáticas,oqueevidenciouumasériede iniciativascompoucosefeitospráticosatémomentoparaenfrentarosriscosmais evidentesegraves
Importantedestacarqueessasaçõesembrionárias,numcontextocrescentede eventosextremosedeconsequênciascadavezmaisgraves,nãoforamcapazesdeimpulsionar anecessáriaatualizaçãotempestivadoSPCCdiantedoaumentodaintensidadeefrequência dasinundaçõesnacapitalMaisimportanteaindaéqueasgestõeseasiniciativascitadas, relacionadasàsmudançasclimáticas,sequerconseguirammanterafuncionalidadedeum sistemapensadonadécadade70doséculopassado.
362

ESTADODORIOGRANDEDOSUL TRIBUNALDECONTAS
DIREÇÃODECONTROLEEFISCALIZAÇÃO SERVIÇODEAUDITORIADEPORTOALEGRE

Portanto,nãoérazoávelquegestoresdoséculoXXIjustifiquemsuasinércias combaseempráticasdoséculopassado.Aciênciaeaengenhariaavançaram significativamente:hácondiçõesdemonitoramentoeprevisãoclimáticamaisassertivas, ferramentasdemonitoramentodechuvaseriosemtemporeal,capacidadedealertae comunicaçãoinstantâneacomapopulação,emodelosdesimulaçãoeprediçãodeinundações muitomaismodernosdoqueosdisponíveisnadécadade1990
Ademais,osinúmerosincidentesdecorrentesdeeventosextremoscadavez maisfrequentesglobalmentedeveriamsersuficientesparaevidenciarqueoriscodenovos desastresécrescente,nãodesprezível,ecomconsequênciascadavezmaisseveras. Assim,oriscotornou-semuitomaisevidenteparaasgestõesrecentesemcomparaçãocomas dadécadade1990,oquepermiteaimputaçãoderesponsabilidadesemqualqueratenuação poresseaspecto
Urgeumapeloparaqueagestãopúblicaabandoneaculturacontemplativadas tragédiasÉumconsensonaacademiaenosforostécnicosespecializadosanecessidadede umaaçãoproativaecontínuaemrespostaaosfenômenosnaturaiscadavezmaisseveros, comprevisãodeinvestimentosepolíticaspúblicasdemédioelongoprazoparamitigar desastresOSPCCfoiprojetadoparaumeventocomoode1941acrescidodemais1,20mde cota,hámaisde80anos,enesteambientedemudanças,eventosaindamaisseverosqueo de2024sãoesperadosnofuturo
Diantedetodoocontextocaracterizado,hádiversosindíciosqueapontamparaa exigibilidadedecondutadiversadosdiversosgestoreseagentesqueaocaboforam responsabilizadosporcadaumdosachadosdeauditoria,sendotambémfartososindíciosda caracterizaçãodaculpagraveouerrogrosseiro,tendoemvistaqueasaçõeseomissões implicaramemgraveinobservânciadodeverdecuidado,afastando-sedoreferencialdo "administrador médio"Eranotórioeperceptívelporpessoadediligêncianormala importânciadaadequadamanutenção,operação,gestão,financiamentoeatualizaçãodo SPCCdiantedosriscosquetalsistematemfunçãodemitigar.Inclusive,muitosagentes adotaramposturacontraditóriaaofomentarodebatedaresiliênciaemudançasclimáticas,mas nãoimplementaraçõesconcretasmesmoestandonaposiçãoenodeverdefazê-las
Paraaperplexidadedetodos,mesmoqueoSPCCtenhasidoprojetadosoba perspectivadeumeventocríticode1941,acotade6metrosdoGuaíba–referênciadeproteção limitedosistemaconstruídoapartirde1970–seriaosuficienteparaprotegerocentroeazona nortedacidadedePortoAlegrenumeventocomoodemaiode2024(cota5,37m),casoo sistemafossebemmantido,operadoesofresseasatualizaçõestempestivasfaceàsfalhas identificadasaolongodos50anosquesesucederamdesdeasuaimplantaçãoNão obstante,verificou-sequemesmocheiasmenores,comoade1941emqueoGuaíbaalcançou 4,75m,seocorressemnovamente,jácomprometeriamaproteçãodacidade.
Comoconsequência,alémdosprejuízoseimpactosàvidademilharesde pessoas,aenchentecausouumextraordináriodanoaoeráriomunicipal,demodoqueo custopúblicodadestruiçãofoiestimadoentreR$6eR$8bilhões,sendocompostopelo impactoeconômico-financeiroadvindodareduçãodereceitasdetributos,taxasetarifas,bem


comopelasdespesasdiretamenterelacionadasaoenfrentamentodacrise(manutençãoegestão deabrigos,causaanimaledemaiscontrataçõesnecessárias)epelasdespesasnecessárias paraareconstruçãodainfraestruturadacidade(incluídasobrasdereconstruçãodedrenageme segurançahídrica)
Importanteressaltarqueoprejuízoaoerárioaindanãorestatotalmentequantificado emrazãodaexistênciademilharesdeaçõesindividuaisedaAçãoCivilPúblicadoMinistério PúblicoEstadual,postulandoacondenaçãodomunicípioaopagamentodeindenizaçõespor danosmateriaisemoraisindividuais
Nessecontexto,aindaquenãohajaapuraçãoeliquidaçãodefinitivadomontantedo danoaoerário,écertoqueosprejuízosfinanceirossãoexpressivos,comestimativas preliminaresbilionáriasAssim,diantedamagnitudedosprejuízosedacaracterizaçãoda culpagraveouerrogrosseironasaçõeseomissõesdosagentespúblicoseprivados, indicadosnamatrizderesponsabilização,nãosetratandodemerainfringênciaàleise regulamentos,entende-seporaplicáveloart71,VIIIdaConstituiçãoFederaleoart136do RegimentoInternodesteTCE-RS,quedispõemsobreaaplicaçãodemultaproporcionalao danoaoerário
Porfim,considerandotodooexpostosugere-se:
a)aaplicaçãodapenalidadedemultaproporcionalaodanocausadoaoerário, previstanoartigo136doRegimentoInternodesteTCE-RS–RITCE,nostermosdopreconizado noincisoVIIIdoart71daConstituiçãoFederal,atodososresponsáveisreferidosnasmatrizes deresponsabilização,levandoemconsideraçãoograudereprovabilidadedasrespectivas condutas;
b)acientificaçãodaUnidadeCentraldeControleInternodoMunicípiodePorto Alegreparaqueprocedaaoacompanhamentodasdeterminaçõeserecomendaçõesconstantes desseprocesso,devendonotificaresteTribunaldeContasemcasodedescumprimento,sob penaderesponsabilizaçãosolidária,nostermosdo§2ºdoartigo100daResoluçãonº 1028/2015;
c)oencaminhamentodesterelatórioàCâmaraMunicipaleàComissãoParlamentar deInquérito(CPI)instauradaequetemcomoobjetoainvestigaçãosobreoDMAE;
d)oencaminhamentodesterelatórioaoMinistérioPúblicodoRioGrandedoSul
10PROPOSTADEENCAMINHAMENTO
Anteoexposto,comoobjetivodecontribuirparaosaneamentodasinconformidades oufragilidadesidentificadasnesterelatório,apresentam-sesinteticamenteasrespectivas sugestõesderecomendações:

ESTADODORIOGRANDEDOSUL TRIBUNALDECONTAS
DIREÇÃODECONTROLEEFISCALIZAÇÃO SERVIÇODEAUDITORIADEPORTOALEGRE

Recomenda-sequeomunicípiorealoquecomceleridadeashabitaçõesirregulares sobreosdiquesdazonanorteedemaisregiõesdacidade,eprocedaàrecomposiçãodos trechoseventualmenteafetadosporestasocupações
Recomenda-sequesejamfeitosestudoselevantamentosdecampoparadeterminar comprecisãoascotasatingidaspelacheiademaiode2024equesejamreavaliadasascotas necessáriasemcadaumdosdiquesdomunicípioApósarealizaçãodestesestudos,quesejam realizadascomceleridadeobrasparacorrigiraalturadosdiques.
Recomenda-seainstitucionalizaçãodeumprogramademonitoramentoefetivoda situaçãodosdiques,tantoparaevitarasocupaçõesirregulares,quantoparaverificar periodicamenteaestabilidadeealturaadequadadasestruturas
•513RedesConectadasDiretamenteaoGuaíbaeaoArroioDilúvio
Sugere-seaexpediçãodedeterminaçãoaoExecutivoeaoDMAEparaqueadote providênciasnosentidodeexecutarasintervençõeseobrasnecessáriasparaevitaraocorrência doretornodaságuasemredesconectadasdiretamenteaoGuaíbaeaoarroioDilúvio
•514FalhasEstruturaisnasEstaçõesdeBombeamentoPluvialedeÁguaBruta
Recomenda-sequeoDMAErealize,comceleridade,estudos,projetoseobraspara corrigirasvulnerabilidadesdasestaçõesdebombeamentopluvial13,17e18,quepermitirama entradadaságuasdoGuaíbanacidade.Damesmoforma,recomenda-sequeoDMAErealize, comceleridade,estudos,projetoseobrasparacorrigirasvulnerabilidadesdasestaçõesde bombeamentodeáguabrutaMoinhosdeVentoeSãoJoão
Recomenda-sequeoDMAEreviseosprojetoseinstalaçõesfísicasdetodasas EBAPseEBABs,incluindoasválvulasderetenção(comportasdegravidade),documentando essarevisão,comointuitodeidentificarpossíveisfragilidadesquepossampermitiraentradade águadoGuaíbaouarroiosafluentesCasoencontradaalgumafragilidade,procedacom celeridadeestudos,projetoseobrasparacorrigirpossíveisfragilidades
•523ExtravasamentosemCondutosForçados
Recomenda-sequeoDMAEcorrijaosproblemasdevedaçãoquecausaramos extravasamentosrelatadosnoscondutosforçadosdasavenidasPolônia,Missões,Ernestoda FontouraeAssisBrasilequeadotemedidaspararealizaramanutençãopreventivaperiódica comoobjetivodeevitarfuturosextravasamentosemtodososcondutosforçadosdacidade
•531FragilidadesnaIncorporaçãodasCompetênciasdoDEP
Sugere-seaexpediçãodedeterminaçãoaosadministradoresresponsáveispelo ExecutivoMunicipalepeloDMAE,paraquepromovamaalocaçãosuficientedeservidorespara oadequadocumprimentodassuascompetências,especialmentenossetoresresponsáveispelo planejamentoeacompanhamentodeobrasdemelhoriaepelagestão,manutenção, conservaçãoeoperaçãodoSPCC
•532FaltadeInvestimentoseProjetosnaMelhoriadoSPCC
Sugere-seaexpediçãodedeterminaçãoaoadministradorresponsávelpeloExecutivo Municipalparaqueatenteparaaprevisãoeexecuçãoorçamentáriasuficientedosprogramase projetosrelacionadosàsmelhoriasnosistemadeproteçãocontracheias
Sugere-seaexpediçãodedeterminaçãoaosadministradoresresponsáveispelo 365

ESTADODORIOGRANDEDOSUL TRIBUNALDECONTAS DIREÇÃODECONTROLEEFISCALIZAÇÃO SERVIÇODEAUDITORIADEPORTOALEGRE

ExecutivoMunicipalepeloDMAEparaquepromovamaalocaçãosuficientedeservidoresdos cargosdeengenhariaearquiteturanaárearesponsávelpelaelaboraçãodeprojetos relacionadosaossistemasdedrenagemedeproteçãocontracheias,demodoaviabilizara buscadefinanciamentosparaaexecuçãoeoacompanhamento/fiscalizaçãodeobrasde melhoriasnessessistemas
•533FalhadeGovernançaeGestãodeRiscosparaOperação,Manutençãoe MonitoramentodoSPCC
Sugere-sequeaavaliaçãodeEstudosdeViabilidadeUrbanísticaeaaprovaçãode projetosemquehajainterferênciaemestruturasdoSPCCpossuamanáliseestruturada,por meiodeprotocolosbemdefinidos,elaboradaportécnicoscapacitados,demaneiraqueos preceitosbásicosparagarantiadaintegridadedasestruturasdosistemadeproteçãosejam condicionantesparaaaprovaçãodosemprendimentospúblicoseprivados
Sugere-sequeoPlanoDiretoreoutrossistemasmunicipaispertinentesidentifiquem asestruturaseequipamentodoSPCCecondicionemalertasquandodaproposiçãodeprojetos ouempreendimentosquepossamimpactarnestasestruturas.Tambémsepropõeque,quando houverexecuçãodeobrasnestasáreas,quehajanotasdealertanaspranchasdeprojetopara pontoscríticoseformasdeintervenção
EmespecíficoparaoGasômetroeoutrasconcessõesfuturasouexistentesque envolvamestruturasdosistemadeproteção,sugere-seainserçãodecláusulasespecíficas definindocorretamentequaisintervençõesprecisamdeautorizaçãoouaprovaçãodaequipe responsávelpeloSPCC,bemcomoeventualarmazenamentoemanutençãodosequipamentose estruturas,easdefiniçõesclaraseobjetivasquantoàsresponsabilidadessobrecadaencargoe ação
Recomenda-sequesejaestruturadoumsistemaconjuntocomaDefesaCivilpara monitoramentodasestruturascomponentesdoSistemadeProteçãoContraCheias,atribuindoe institucionalizandoasresponsabilidadesrelativasaestafiscalização,emespecialdosdiques, comaparticipaçãodoDMAEedoDEMHAB,dentrodesuasatribuições,paraaidentificaçãoe mitigaçãodepontosderiscoemcomunidadesirregularmenteassentadas
Sugere-seaexpediçãodedeterminaçãoaoDMAEparaqueadoteprovidênciasno sentidodarevisãointegraldasuamatrizderiscos,demodoaincorporarosriscoseameaças críticasatinentesaoSPCC,emconsonânciacomoestabelecidonoPMSB.
Sugere-seaexpediçãodedeterminaçãoaoExecutivoparaqueadoteprovidências nosentidodaimplantaçãodeumaestruturadegovernançaqueassegure:ainterlocuçãodo DMAEcomosdemaisórgãospúblicosmunicipaiscomcompetênciasdiretamenterelacionadasà gestãodoSPCC;eaefetivaimplementaçãodeumapolíticainstitucionaldegestãoderiscosem todaaadministraçãopúblicamunicipal,comfulcronoatendimentodosobjetivosdaLeiMunicipal nº12629/2019edoDecretoMunicipalnº20969/2021
•534FaltadeEstruturaçãodePessoal-Nãoatendimentodospleitosdereposição deservidoresedereestruturação/modernizaçãodoquadrogeraldoDMAE
Sugere-seaexpediçãodedeterminaçãoaosadministradoresresponsáveispelo ExecutivoMunicipalepeloDMAE,paraqueadotemprovidênciasnosentidodarecomposiçãode servidoresedoincrementodecargosnecessáriosaoadequadocumprimentodascompetências atinentesaossistemasdedrenagem,esgotospluviaisedeproteçãocontracheias
Sugere-seaexpediçãodedeterminaçãoaosadministradoresresponsáveispelo 366

ESTADODORIOGRANDEDOSUL TRIBUNALDECONTAS DIREÇÃODECONTROLEEFISCALIZAÇÃO SERVIÇODEAUDITORIADEPORTOALEGRE

ExecutivoMunicipalepeloDMAEparaquepromovamoencaminhamentodeprojetodelei visandoareestruturaçãodoquadrogeraldecargosdaautarquia,noprazode180dias,parafins dereadequaçãodoórgãoasuarealidadeatual.
•5.3.6RecomendaçõesGeraisParaMelhoriadoSPCC
Recomenda-sequesejadadamaisatençãoaosdiquescomumprograma permanentedemonitoramentoemanutençãodosmesmos,conformejáestápositivadonoPlano MunicipaldeSaneamento
Recomenda-sequesejafeitaumaanálisecríticadaconcepçãodasestaçõesde bombeamentopluvialedoseudimensionamento,confrontandoeverificandocomasituação atualparaidentificarpossíveisfragilidadescomoaquelasexistentesnasEBAPs17e18,que permitiramoretornodaságuas
Recomenda-searealizaçãodeestudosparaaimplantaçãoderedundânciano fornecimentodeenergiaparaasEBAPsEntende-sequealimentaçãoatravésdeduaslinhasde energiaindependentespodesermaiseficienteeterumcustomenor,nolongoprazo,doquea utilizaçãodegeradoresacombustível
Recomenda-searealizaçãodeestudosparaverificaranecessidadedeserem mantidasemoperaçãoatotalidadedascomportasdomurodaMauá,eaquelaslocalizadasna avenidaCasteloBrancoenaBR290(comportas8a14),vistoqueelassãopontosfracosdo sistemadeproteção,estandosujeitasafalhas,comoocorreuduranteasrecentescheias.
Recomenda-searealizaçãodeestudosparaatualizarodimensionamento do sistema,emfunçãodosníveisdeáguaatingidospeloeventoocorridoemmaiode2024Este estudoédevitalimportância,especialmenteemrelaçãoàverificaçãodaalturanecessáriapara osdiques
Porfim,considerandooscritériosdematerialidade,criticidadeerelevância,sugereseaintimaçãodosresponsáveisidentificadosnoquadroabaixoparaapresentardefesaou esclarecimentos,nostermosdodispostonoartigo12,incisoIV,doRegimentoInternodeste TribunaldeContas,emrelaçãoaosseguintesitens:
AlexandredeFreitas Garcia 826508450-15
531 FragilidadesnaIncorporaçãodasCompetênciasdoDEP 533 FalhadeGovernançaeGestãodeRiscosparaOperação, ManutençãoeMonitoramentodoSPCC 534
AndreFlores Coronel 580184760-04534
AndréLuísdos SantosBarbosa 589864560-87534
FaltadeEstruturaçãodePessoal-Nãoatendimentodospleitosde reposiçãodeservidoresedereestruturação/modernizaçãodo quadrogeraldoDMAE
FaltadeEstruturaçãodePessoal-Nãoatendimentodospleitosde reposiçãodeservidoresedereestruturação/modernizaçãodo quadrogeraldoDMAE
FaltadeEstruturaçãodePessoal-Nãoatendimentodospleitosde reposiçãodeservidoresedereestruturação/modernizaçãodo quadrogeraldoDMAE BombasSinos IndustriaeComercio Ltda 01894407/000172 521
FalhanaManutençãodasComportas/PortõesdoMurodaMauá 522 FalhanaManutençãodaEBAP13
BrunoBreyer Caldas 010567330-71534
FaltadeEstruturaçãodePessoal-Nãoatendimentodospleitosde reposiçãodeservidoresedereestruturação/modernizaçãodo quadrogeraldoDMAE

ESTADODORIOGRANDEDOSUL TRIBUNALDECONTAS
DIREÇÃODECONTROLEEFISCALIZAÇÃO SERVIÇODEAUDITORIADEPORTOALEGRE
CarlosOliveira Cardoso 436192900-91511
CassiodeJesus Trogildo 485695000-25534
CezarAugusto Schirmer 200564350-53534
531
DarcyNunesdos Santos 609533650-34

FalhasdosDiques
FaltadeEstruturaçãodePessoal-Nãoatendimentodospleitosde reposiçãodeservidoresedereestruturação/modernizaçãodo quadrogeraldoDMAE
FaltadeEstruturaçãodePessoal-Nãoatendimentodospleitosde reposiçãodeservidoresedereestruturação/modernizaçãodo quadrogeraldoDMAE
FragilidadesnaIncorporaçãodasCompetênciasdoDEP 533 FalhadeGovernançaeGestãodeRiscosparaOperação, ManutençãoeMonitoramentodoSPCC 534
IsabelLeonBacil Costa 827276860-72523
JonasMartins Machado 813208840-91534
JoséEduardo CoutinhoTessis 532700880-00523
JulianaBento Cucchiarelli 826696940-04534
JulianaGarciade Castro 014345810-80534
LeonardoMaranhão Busatto 003761200-02534
LizianedosSantos Baum 928424450-15534
FaltadeEstruturaçãodePessoal-Nãoatendimentodospleitosde reposiçãodeservidoresedereestruturação/modernizaçãodo quadrogeraldoDMAE
ExtravasamentosemCondutosForçados
FaltadeEstruturaçãodePessoal-Nãoatendimentodospleitosde reposiçãodeservidoresedereestruturação/modernizaçãodo quadrogeraldoDMAE
ExtravasamentosemCondutosForçados
FaltadeEstruturaçãodePessoal-Nãoatendimentodospleitosde reposiçãodeservidoresedereestruturação/modernizaçãodo quadrogeraldoDMAE
FaltadeEstruturaçãodePessoal-Nãoatendimentodospleitosde reposiçãodeservidoresedereestruturação/modernizaçãodo quadrogeraldoDMAE
FaltadeEstruturaçãodePessoal-Nãoatendimentodospleitosde reposiçãodeservidoresedereestruturação/modernizaçãodo quadrogeraldoDMAE
FaltadeEstruturaçãodePessoal-Nãoatendimentodospleitosde reposiçãodeservidoresedereestruturação/modernizaçãodo quadrogeraldoDMAE LuizFernando JacobsenAlbrecht 582548890-15523
ExtravasamentosemCondutosForçados
MarceloLuisDiel 577925690-04 521 FalhanaManutençãodasComportas/PortõesdoMurodaMauá 522 FalhanaManutençãodaEBAP13
MarcoAntonioGil Faccin 804093500-87513
MarcoAntonio KaramSilveira 611005440-20534
MarcoAntonioLima Benites 368601900-00514
MarcosGoulart Machado 881029800-44 511
RedesConectadasDiretamenteaoGuaíbaeaoArroioDilúvio
FaltadeEstruturaçãodePessoal-Nãoatendimentodospleitosde reposiçãodeservidoresedereestruturação/modernizaçãodo quadrogeraldoDMAE
FalhasEstruturaisnasEstaçõesdeBombeamentoPluvialede ÁguaBruta
FalhasdosDiques
512FalhasEstruturaisdasComportas/Portões13e14doMurodaMauá 521 FalhanaManutençãodasComportas/PortõesdoMurodaMauá MarcusVinicius Caberlon 198669250-72513
MauricioLoss 011042390-94 531
RedesConectadasDiretamenteaoGuaíbaeaoArroioDilúvio
FragilidadesnaIncorporaçãodasCompetênciasdoDEP 533 FalhadeGovernançaeGestãodeRiscosparaOperação, ManutençãoeMonitoramentodoSPCC 534 FaltadeEstruturaçãodePessoal-Nãoatendimentodospleitosde reposiçãodeservidoresedereestruturação/modernizaçãodo quadrogeraldoDMAE 531 FragilidadesnaIncorporaçãodasCompetênciasdoDEP 532 FaltadeInvestimentoseProjetosnaMelhoriadoSPCC 368
Assinado digitalmente por: Marcelo Kipper da Silva em 14/07/25, Leandro Lobato Camargo em 14/07/25, Leandro Torres em 14/07/25, Fabio Alex Beling em 14/07/25 e outro(s). Confira a autenticidade do documento em www.tce.rs.gov.br. Identificador: PRE.FE77.2360.2A1D.FC7C.62D4.

NelsonMarchezan Junior 647771540-68533
534
NelsonNemo FranchiniMarisco 562681570-87534

FalhadeGovernançaeGestãodeRiscosparaOperação, ManutençãoeMonitoramentodoSPCC
FaltadeEstruturaçãodePessoal-Nãoatendimentodospleitosde reposiçãodeservidoresedereestruturação/modernizaçãodo quadrogeraldoDMAE
FaltadeEstruturaçãodePessoal-Nãoatendimentodospleitosde reposiçãodeservidoresedereestruturação/modernizaçãodo quadrogeraldoDMAE
RafaelSpiesLopes 008563180-94512FalhasEstruturaisdasComportas/Portões13e14doMurodaMauá
RicharddosSantos Dias 027230740-80534
RobertoFrederico Kranz 240947900-63514
RodrigoSartori Fantinel 922992530-68534
FaltadeEstruturaçãodePessoal-Nãoatendimentodospleitosde reposiçãodeservidoresedereestruturação/modernizaçãodo quadrogeraldoDMAE
FalhasEstruturaisnasEstaçõesdeBombeamentoPluvialede ÁguaBruta
FaltadeEstruturaçãodePessoal-Nãoatendimentodospleitosde reposiçãodeservidoresedereestruturação/modernizaçãodo quadrogeraldoDMAE
SebastiãodeAraújo Melo 159697971-20 531 FragilidadesnaIncorporaçãodasCompetênciasdoDEP 532 FaltadeInvestimentoseProjetosnaMelhoriadoSPCC 533 FalhadeGovernançaeGestãodeRiscosparaOperação, ManutençãoeMonitoramentodoSPCC 534 FaltadeEstruturaçãodePessoal-Nãoatendimentodospleitosde reposiçãodeservidoresedereestruturação/modernizaçãodo quadrogeraldoDMAE 535 ImplementaçãoIntempestivadoPlanodeResiliência
SergioAntonio PavanattoCerentini 481734280-34523
UrbanoSchmitt 255350130-72534
Éaopiniãotécnica
ExtravasamentosemCondutosForçados
FaltadeEstruturaçãodePessoal-Nãoatendimentodospleitosde reposiçãodeservidoresedereestruturação/modernizaçãodo quadrogeraldoDMAE
Assinado digitalmente por: Marcelo Kipper da Silva em 14/07/25, Leandro Lobato Camargo em 14/07/25, Leandro Torres em 14/07/25, Fabio Alex Beling em 14/07/25 e outro(s). Confira a autenticidade do documento em www.tce.rs.gov.br. Identificador: PRE.FE77.2360.2A1D.FC7C.62D4.