Centro Cultural São Carlos - Gabrielle Zampolo

Page 1

Trabalho de Graduação Interdisciplinar IICentro Cultural São Carlos

Trabalho apresentado como parte de requisito à obtenção do grau de Bacharel, pelo Programa de Graduação em Arquitetura e Urbanismo da Unicep, InstituiçãodeEnsinoSuperior.

Orientador:MarcosPauloMarchetti

Autora: Gabrielle Zampolo
SãoCarlos-2022

A cultura é todo aquele complexo que inclui o conhecimento, as crenças, a arte, a moral, a lei, os costumes e todos os outros hábitos e capacidades adquiridos pelo homem como membro de umasociedade".

4

RESUMO

ABSTRACT

Os espaços de cultura e entretenimento fazem parte da estruturação da cidade, pois eles geram e propagam conhecimentos e experiências, incentivam a integração e participação social, valorizando o convívio em sociedade e gerando oportunidades de crescimento pessoal e intelectual.Ao fazer um levantamento e análise da malha urbana na cidade de São Carlos-SP, através de pesquisas e mapas de estudo, nota-se que os equipamentos culturais públicos estão localizados apenas na região central da cidade, deixando as outras áreas com carência de espaços culturais. O objetivo central do trabalho é: abordar e analisar o tema da cultura e sua importância para a formação do ser humano e sua vida em sociedade. Propondo assim, como solução, a criação de um Centro Cultural na região Noroeste da cidade. O terreno escolhido para a intervenção fica na Avenida João Dagnone, entre as Ruas Mário Pisani e a Francisco Possa, bairro São CarlosIII,localizadopertodoCampusIIdaUSP-SãoCarlos.O projeto proposto de um Centro Cultural tem como objetivo requalificar arquitetônica e urbanisticamente a área que vai ser implantado, proporcionando experiências culturais e de interatividade, a partir da criação de espaços projetados para a realização de aulas de dança, teatro, oficinas culturais, ateliês, uma área para eventos e exposições, um teatro multiuso para jovensadolescenteseadultos.

Cultureandentertainmentspacesarepartofthecity'sstructure, as they generate and disseminate knowledge and experiences, encourage integration and social participation, valuing living in societyandgeneratingopportunitiesforpersonalandintellectual growth. When carrying out a survey and analysis of the urban fabric in the city of São Carlos-SP, through surveys and study maps, it is noted that public cultural facilities are located only in the central region of the city, leaving other areas with a lack of spaces cultural. The main objective of the work is: to approach and analyze the theme of culture and its importance for the formation of the human being and his life in society. Thus proposing, as a solution, the creation of a Cultural Center in the northwestregionofthecity.Thelandchosenfortheintervention is located on Avenue João Dagnone, between street Mário Pisani and Francisco Possa, in the São Carlos III neighborhood, located near Campus II of USP - São Carlos. The proposed project for a Cultural Center aims to requalify the area that will be implemented architecturally and urbanistically, providing cultural and interactivity experiences, based on the creation of spaces designed to hold dance classes, theater, cultural workshops, ateliers, an area for events and exhibitions, a multipurposetheaterforteenagersandadults.

5

SUMÁRIO

ReferênciasProjetuais……….............................................35 CentroCulturaldeEventoseExposições………………36 CentrodeArteeCultura………………………………….40 EstratégiasProjetuais…....................................................44 Implantação………………………………………………..50 BlocoAdministrativo………………………………………60 BlocoEducativo……………………………………………66 CafeteriaeSetordeServiço……………………………..72 Cobertura…………………………………………………..78 MemorialdeVegetação………………..…………………….82 Referências……....................................................................84 Resumo........................................................................5 Abstract….....................................................................5 Introdução………..........................................................8 Justificativa……..........................................................10 OqueéCultura?………………………………………….11 CulturaeCidadania……………………………………….12 CulturaeLazer…………………………………………….14 CulturaeosCentrosCulturais…………………………..15 Objetivos….............................................................................19 Localização…........................................................................20

INTRODUÇÃO

8

O município de São Carlos, situado na região Centro-Leste e comumapopulação,segundooInstitutoBrasileirodeGeografia e Estática (IBGE) 2021, de 256.915 habitantes, desde o século XIX contribui com a economia da região. Em 1884 foi implantado a ferrovia, sendo um marco no desenvolvimento da cidade, pois era responsável pelo transporte da produção cafeeira do município até Porto de Santos, se tornando um dos maisimportantespolosdaindústria.Atualmente,acidadeéuma das maiores potências em termos de educação, ciências, indústria e agropecuária do estado de São Paulo. Seu desenvolvimento é tão amplo que fica atrás somente da capital paulistaedacidadedeCampinas.

A cidade possui alguns edifícios públicos culturais, porém a maioria deles se encontra na região central da cidade. Entretanto, nos últimos anos, houve um revés na área e isso resultou na descontinuidade de vários pontos culturais. O Centro Municipal de CulturaAfro-Brasileira Odette dos Santos, o Centro Cultural Espaço 7 e o Instituto Cultural JanelaAberta ainda estão abertos, porém todos estão localizados na região centraldacidade,deixandooutrasáreasdesfavorecidas.

FoifeitoumlevantamentonacidadedeSãoCarlos,paramapear a região e visualizar os melhores pontos para a inserção de um novoequipamentoculturalvoltadoparaapopulação.

Foi levado em consideração fatores como: As necessidades da comunidade, os equipamentos culturais já existentes na cidade, afaixaetária,opúblicoalvo,arendamensaldoresponsávelea mobilidade.

Apartir deste estudo, foi escolhida a região Noroeste da cidade para a intervenção, o terreno escolhido na Avenida João Dagnone, entre as Ruas Mário Pisani e a Francisco Possa, bairro São Carlos III, localizado perto do Campus II da USPSãoCarlos.Éumaáreabemconsolidadacompredominânciade lotesresidenciais,comérciolocalemoradiasestudantis.Aregião escolhida concentra população de baixa renda, com pouco acessoaequipamentosculturaisecomdisponibilidadedeterra.

O projeto proposto de um Centro Cultural tem como objetivo potencializaracultura,requalificaraáreaquevaiserimplantado, promoveraintegraçãoeoconvíviosocialdosusuários.Gerando assim, oportunidade de crescimento pessoal e intelectual. Através da criação de um espaço que ofereça e incentive aos jovens e adultos: O ensino, a criação e novas formas de expressão (corporal, intelectual e artística), onde são realizadas diversas atividades, entre elas, aulas de artes, teatro, dança, workshops, oficinas, ateliês, possui uma área para eventos e exposições e área convivência. Proporcionando à população uma dinâmica cultural que contribua ao desenvolvimento pessoal,coletivoeemsociedade.

9

JUSTIFICATIVA

Pormeiodedadosessecapítulotemcomopropósitojustificara pertinênciadotema.

10

O QUE É CULTURA?

Paraaculturaterumsentidouniversalmulticulturalcomose tem hoje, ela passou por um longo processo. Ele começou naFrança,noséculoXVII,ondepassouaterumsignificado de cultivo de valores e hábitos nobres. Porém, com o passar do tempo, o termo vai adquirindo novos e mais amplos sentidos, tendo-se uma polarização do conceito, sendo assim, ele não é mais de uso exclusivo e individualista da nobreza, mas como um processo de civilização,tornando-seumaexpressãolivreepopular.

Segundo Santos (2006,s/n):

[...] a cultura pode ser tratada como uma realidade estanque, de características acabadas, capaz de explicar a vida da sociedade e o comportamento de seus membros: se a cultura não mudasse não haveria o que fazer senão aceitar como naturais as suascaracterísticas,eestariamjustificadasassimas suasrelaçõesdepoder.(SANTOS,2006,s/n)

Sendo assim, as primeiras definições da palavra cultura começaram a surgir através das reflexões referentes à diversidade humana, fazendo com que os pesquisadores e estudiosos começassem a pensar na especificidade humana através da diversidade dos povos e de seus costumes.

11

ParaSantos,existemduasconcepçõesdecultura,aprimeiraé sobre a realidade social, sendo assim, a cultura se refere a tudo o que caracteriza a existência de um povo ou de grupos no interior de uma sociedade.Asegunda, é sobre as crenças, asideiaseoconhecimentodeumpovo.

Cultura é um termo amplo e complexo que passa por constantes transformações. Ele remete e caracteriza a existênciadeumpovo.Éaherançasocialdeumacomunidade ou grupo que é transmitida a seus descendentes, orientando seu comportamento, suas ações e expectativas na convivência em sociedade. É um agente de identificação pessoal e social, ummodelodecomportamentoqueintegrasegmentossociaise gerações.

culturais, que são espaços voltados para disseminar conhecimento e estimular o desenvolvimento dos indivíduos, trabalhando novas formas de expressões, incentivando portanto,aintegraçãoeparticipaçãosocial,caminhandoassim, paraodesenvolvimentodeumasociedademaisigualitária.

CULTURAE CIDADANIA

De acordo com a Declaração Universal dos Direitos Humanos, os direitos civis, os direitos políticos e os direitos sociais, são direitos fundamentais do ser humano, cuja matriz está na Declaração dos Direitos Humanos, de 1948, no art.27 (FERNANDES,Idem)

Artigo27ºdaDeclaraçãoUniversaldosDireitosHumanos

O ser humano precisa buscar pelo conhecimento, seguindo as suas preferências e valores, e não ficar a mercê somente daquilo que é oferecido, pois em muitos casos o que é oferecido não é o suficiente para a formação pessoal, moral e intelectual do indivíduo e no desenvolvimento da sua capacidadederelacionar-secomopróximo.

Todaapessoatemodireitodetomarpartelivrementena vida cultural da comunidade, de fruir as artes e de participar no progresso científico e nos benefícios que desteresultam.

Atualmente, o termo cultura está associado a várias atividades como o teatro, a música, as artes plásticas, manifestações culturais, entre outras. Segundo Pellegrin (2004, s/n) “as cidades não têm oferecido espaços de lazer suficientes para que todos desfrutem”. Por isso, é necessário encontrar novos estímulos,quepodemvir,porexemplo,apartirdocentros

Porém, nem sempre foi assim, apenas na segunda metade do século XX, passou a ter um aumento no interesse das Constituições a fim de proteger a cultura. Foi uma conquista progressiva, devido à luta de movimentos sociais em prol da dignidadedapessoahumana,masdeextremaimportância.De acordo com (FERNANDES, 2011) “Às três categorias precisam coexistir para que os direitos sejam plenos e sua articulação garantaoexercíciodacidadania”

12

Ouseja,osdireitoshumanossãoosprincípiosdelibertaçãoda opressãoedadominação,sendofundamentosdeliberdade,da justiça e da paz. Fazendo com que prevaleça a liberdade individual, a igualdade e o ideal democratico, para assim, atingirmosprogressoeconômico,socialecultural.

A Legislação Federal, possui linhas mestras que garantem os direitos fundamentais dos cidadãos e da organização do Estado, têm também regras e princípios gerais sobre aspectos variadosdavidaemsociedade.Naparte referenteàculturano Brasil, ela reforça os princípios de acesso a esse tipo de equipamento por toda a população, conduzindo assim, a defesa,avalorização,apromoçãoeadifusãodebensculturais no Brasil, de acordo com a Lei Nº 12.343, DE 2 DE DEZEMBRODE2010.

Capítulo III – Do acesso: Universalizar o acesso dos brasileiros à arte e à cultura, qualificar ambientes e equipamentos culturais para a formação e fruição do público, permitir aos criadores o acesso às condições e meiosdeproduçãocultural.

3.1.19 Estimular a criação de centros de referência e comunitários voltados às culturas populares, ao artesanato,àstécnicaseaossaberestradicionaiscoma finalidade de registro e transmissão da memória, desenvolvimento de pesquisas e valorização das tradições locais. (Lei nº 12.343, de 2 de dezembro de 2010).

DeacordocomWaaleWaterman(2012,p.114):

As sociedades são unidas pela cultura.Acultura é uma estrutura comum de referência que permite às pessoas que a ela pertencem se comunicar com facilidade e se comportarem bem. Ela compreende conhecimentos, valores e crenças coletivos e determina a maneira pela qual cada pessoa se move e planeja seus deslocamentosnodiaadia.ACulturaénossomanualde operaçãoparaaesferapública.

Portanto, não podemos considerar a questão cultural como apenas entretenimento, ela é um guia de extensão social de cidadania, de experiências de vida e de saberes, capaz de proporcionar uma dinâmica sociocultural e a participação na comunidade.

Um Centro Cultural tem como função se relacionar com a comunidade e os acontecimentos locais. Tendo sempre em vista beneficiar e favorecer os indivíduos e os grupos locais. Ela é uma extensão social da cidadania, junção de saberes e experiências de vida. Ela é capaz de renovar um grupo social através da música, poesia, literatura, artes plásticas, entre outrasváriasmanifestaçõesculturais.

13

CULTURAE LAZER

A Constituição de 1988 define o lazer como direito social, ao lado da educação, da saúde, da alimentação, da moradia, da segurança, da previdência social, entre outros. Sendo assim, é considerado uma necessidade básica do ser humano, sendo visto como prioridade na formação de crianças, jovens e adolescentes. E é de responsabilidade do poder público garantiroacessoatodos.

Artigo 227 da Constituição da República Federativa do Brasil de1988.

DeacordocomapsiquiatraMireiaFortesViannaSulzbach.

`` A arte nos ajuda a não nos sentirmos sozinhos, pois você percebe que existem outras pessoas que compartilhamosmesmossentimentosquevocê.Elatem o poder de ser comum, de conectar as pessoas no movimentodesentiralgo.``

Mireia reforça, que o bem-estar psicológico ganha quando estamos em contato com a arte, pois ela tem a função de nos identificar como indivíduos, conhecer cultural e nos situar no mundo. Logo, se a arte é comum, ela deve estar acessível a todos.

Art. 227. É dever da família, da sociedade e do Estado assegurar à criança e ao adolescente, com absoluta prioridade, o direito à vida, à saúde, à alimentação, à educação, ao lazer, à profissionalização, à cultura, à dignidade, ao respeito, à liberdade e à convivência familiarecomunitária,alémdecolocá-losasalvodetoda forma de negligência, discriminação, exploração, violência,crueldadeeopressão.

O lazer é essencial para os seres humanos, ele proporciona uma qualidade de vida melhor, satisfação, prazer, felicidade, criatividade e liberdade de escolha. A cultura e o entretenimento estão diretamente relacionados ao bem-estar. Encontrar amigos, ir ao cinema, assistir a uma peça de teatro, participar de oficinas são atividades que aumentam o nível de serotonina e ocitocina, hormônios associados ao prazer e bem-estarpsíquico,consequentementemelhoraasaúdefísica.

ComoafirmaapsiquiatraMireiaFortesViannaSulzbach.

Segundo Silva, Lopes e Xavier (2009), o Brasil é apontado como um país com grandes desigualdades sociais e isso gera preocupaçãoecuriosidadeparasabercomoolazerestásendo planejado pelo poder público. Porém, as cidades brasileiras não oferecem espaços de lazer suficientes para que haja contato e troca entre os diferentes conteúdos culturais, desta forma, nota-se que os espaços de lazer estão longes de se tornar um local que possibilita as pessoas a terem um livre acesso a atividades integradoras, socializadoras, democráticas edebemestar.

14

CULTURAE OS CENTROS CULTURAIS

Como podemos compreender, o termo cultura tem um significado histórico, e ele foi se tornando cada vez mais popular e de acesso a todos, possuindo um sentido muito amplo,abrangendoumadiversidadedeusos.

Os primeiros países a incentivar a implantação de centro culturais foram a França e a Inglaterra, ele era chamado de centro de artes, e a partir deles a cultura passou a ter um sentidoinformacional,ganhandoforças. No Brasil, o surgimento de centros culturais se deu na década de 80, na cidade de São Paulo- SP, e a partir dele foi se dissipando e outros centros culturais foram construídos em várias cidades do país. Quando pensamos em espaços que promovam e incentivem a cultura, existem diversos termos, e com isso há uma confusão entre casa de cultura, espaço culturalecentrosculturais,epodemosdefini-loscomo:

Centro Cultural - possui um porte maior e equipamentos permanentes.

Instituições mantidas pelo poder público, podendo ou não ter apoio de iniciativas privadas. São espaços que orientam, e desenvolvem um conjunto de atividades culturais variadas de modo organizado, como; aulas de dança, música, teatro, cinema,etc.

No Brasil, existem os mais variados tipos de modelos de centros culturais, não há um modelo definido específico de centro cultural, o espaço físico de cada um, é determinado a partir da quantidade e da variedade de atividades oferecidas. Portanto, o centro cultural é um espaço privilegiado que impulsiona ações culturais, facilitando o acesso e produção de cultura, voltadas para o desenvolvimento do ser humano e da cidadania.

Casa de Cultura - umcentroculturalpequeno. Podem ser apoiadas pelo governo ou por iniciativa privada, possui um número de funções e acervo reduzido, normalmente são instituições voltadas para a divulgação de uma modalidade cultural específica, como; poesia, teatro, ou também para a representaçãodeculturasestrangeiras,comumaprogramação especializada.

Eles são espaços criados para a comunidade, sendo convidativos e inspiradores, capazes de estimular seus freqüentadores, permitindo o encontro criativo entre pessoas e o trabalho cultural, se tornando uma extensão social de cidadania, da popularização de saberes e das experiências de vida,quebuscaeincentivaatrocade experiênciasculturais.

Espaço Cultural - voltadoparareflexãoeaçõesculturais. Espaçosculturaisnãoprecisamdeumlocalespecíficodefinido, ele pode ser entendido como qualquer espaço, formal ou informal que se dedica a promover uma ou outra atividade cultural, não um conjunto delas. Eles não precisam ser constantesnempossuirumacervodemateriais.

Como podemos concluir, a cultura é importante para toda a sociedade, sendo fundamental para o desenvolvimento de criançasejovens,elaéumaexpressãodaconstruçãohumana. Elaéumelementodetransformação,quetambémpodecriare ampliar as possibilidades para a vida profissional de jovens e adolescentes.

15

Os Centros Culturais são exemplos de participação social e integração,elesestabelecemimportantespapéisnaconstrução da imagem das cidades, na formação da cidadania e na produçãodeconhecimento.

No segundo semestre de 2021 , foi feito um levantamento analisando a malha urbana na cidade de São Carlos-SP. A partir disso, foi notado a necessidade de desenvolver um equipamentovoltadoparaaáreacultural,poisévisívelamaior concentração de equipamentos culturais localizados na região central, deixando outras áreas que atualmente estão bem consolidadassemdistribuiçãoadequadadessesequipamentos, fazendo com que o público tenha que se deslocar até a área central para desfrutar de cultura e lazer, e isso, por inúmeros motivos muitas vezes não é possível. Sendo assim, foram levadas em consideração vários fatores que serão explicados mais a fundo no próximo capítulo, como: a disposição dos equipamentos culturais existentes na cidade, as necessidades dacomunidade,afaixaetária,opúblicoalvoeamobilidade.

A partir dessa análise da região, foi possível visualizar os melhores pontos para a inserção de um novo equipamento voltado para a população. Sendo assim, conclui-se que a melhor área para inserção de um edifício cultural é no bairro SãoCarlosIII, naAvenidaJoãoDagnone,entreasRuasMário PisanieaFranciscoPossa.

O projeto proposto de um Centro Cultural visa à criação de espaços projetados para a realização de aulas de dança, teatro, oficinas culturais, ateliês, uma área para eventos e exposições, um teatro multiuso, uma área de convivência para jovens adolescentes e adultos com faixa etária entre 16 a 29 anos. O projeto tem como objetivo requalificar arquitetônica e urbanisticamente a área que vai ser implantado, promover a integraçãoeoconvíviosocialdosusuáriosecriarespaçosque gerem oportunidades para a prática de atividades culturais e integração social. Proporcionando experiências culturais e de interatividade, expressões corporais, valorização do convívio em sociedade e oportunidade de crescimento pessoal e intelectual.

16
17

OBJETIVOS

18

OBJETIVOS GERAIS

Desenvolver um projeto arquitetônico de um Centro Cultural para a cidade de São Carlos-SP, com o objetivo promover integração e desenvolvimento pessoal e social, através de espaços projetados para incentivar a busca por novos conhecimentos, e impulsionar diferentes modalidades de cultura.

OBJETIVOS ESPECÍFICOS

● Requalificaraáreaondeseráimplantado;

● Promoverintegraçãoeconvíviosocialaosusuários;

● Criarespaçosquepromovaeincentivecrescimento pessoal,emsociedadeeprofissional;

● Geraroportunidadesparaapráticadeatividades culturaiseartísticas.

19
20
Fontedaimagem:GoogleEarth

LOCALIZAÇÃO

Apartir de análises do terreno de São Carlos, este capítulo tem comopropósitoabordaradefiniçãodaáreaescolhida.

SÃO CARLOS - SP

Localização: RegiãoCentro-LestedoestadodeSãoPaulo.

População:256.915habitantes(IBGE,2021)

O município é formado pela sede e pelos distritos de Água Vermelha,BelaVistaSão-carlense,SantaEudóxiaeVilaNery. Com a economia fundamentada em atividades industriais e na agropecuária (neste setor, destaca-se a produção de cana-de-açúcar, laranja, leite e frango). A cidade se torna um importante centro regional industrial. Servida por sistemas rodoviário e ferroviário, São Carlos conta com grandes empresas multinacionais, como; Leica Geosystems, VolkswageneaFaber-Castell.Atualmente,acidadedestaca-se pela presença de instituições de pesquisa voltadas à alta tecnologia. Possui grande número de empresas e centros tecnológicos, desenvolvidos em torno de duas das mais destacadas universidades do país: a Universidade de São Paulo (USP), e a Universidade Federal de São Carlos (UFSCar).Além destas duas universidades, São Carlos possui outras instituições de ensino superior ou profissional, como; Senai, Senac, o Centro Universitário Central Paulista (UNICEP), Atheneu, o Instituto de Educação e Tecnologia de São Carlos (IETECH), e um polo da Universidade Virtual do EstadodeSãoPaulo(Univesp).

21

ÁREADE INTERVENÇÃO - Zoneamento.

Fonte:PrefeituradeSãoCarlos. Mapasemescala.

Zona 1 - Ocupação Consolidada Zona 2 - Ocupação Induzida Zona 3 - Ocupação Condicionada

Zona 4 - Qualificação e Ocupação Controlada

Zona 5 - Proteção e Ocupação Controlada

OterrenoestálocalizadoemumaáreadeOcupaçãoInduzida comoscoeficientes: CO=70% CP=15% CAM=3,5 CAB=2 CA=1,4resd.unifamiliar

22

ÁREADE INTERVENÇÃO -Localização.

No segundo semestre de 2021 foi delimitado um eixo orientador para que os alunos pudessem escolher uma área para desenvolver o projeto de acordo com as potencialidades relacionadas ao tema do trabalho. O eixo orientador corta a cidade de São Carlos-SP, começandonaRuaMiguelPetroni,passapelocentroseguindopelaRuaViscondedeInhaúma,eterminanaAvenidaMorumbi.

Áreadeestudo. Eixoorientador

Dentro desse limite, a área indicada no mapa, é a área que melhor favorece o desenvolvimento desse projeto por conta de suas característicasepotencialidadecomo proximidade a equipamentos quedãoapoioaumcentrocultural,a faixa etária dobairro,epor serumasdas rotas de acesso à cidade, potencializandosualocalização.

Fonte:MapaurbanodeSãoCarlos. Mapasemescala. 23

ÁREADE INTERVENÇÃO

- Emrelaçãoaotemaapresentado.

A cidade conta com alguns pontos de cultura, porém a maioria dos equipamentos públicos e privados, relacionados ao tema, se encontra na região central. Entretanto, nos últimos anos a cidade passou por alguns reveses na área, e houve a descontinuidade de algunspontosdecultura.

Fonte:MapaurbanodeSãoCarlos. Mapasemescala.

Áreadeestudo.

Para a escolha do local de inserção do Centro Cultural, alguns fatores foram determinantes.

O primeiro deles foi pelo fato do terreno estar localizado em um bairro bem consolidado da cidade, e com carência de equipamentosculturais.

24

LEGENDA- EQUIPAMENTOS CULTURAIS

CENTRO CULTURAL

1-KatahiriCentroTradicionalIndígrna(fechadotemporariamente)

2-CentroCultural-USPSãoCarlos (fechadotemporariamente)

3-ContribuintedaCultura (fechadotemporariamente)

4-CentrodeIntercâmbioCulturalBrasilEstadosUnidosCicbeu (fechadotemporariamente)

5-CentroMunicipaldeCulturaAfro-Brasileira “OdettedosSantos”

6-EstaçãoCultura

7-CDMSConselhoMunicipaldeDiversidadeSexualdeSãoCarlos

8-CentrodeFormaçãoArtísticaAnnaPoncioMarques

9-AssociçãoCulturaleEsportivaNipoBrasileiradeSÃoCarlos(ACENB)

10-CasaeSedeCulturalLacrê

11-CentroCultural-USPSãoCarlos (fechadotemporariamente)

EQUIPAMENTOS PRIVADOS

EscolasdeDança

EscolasdeMúsica

TeatroseAnfiteatros

25

ÁREADE INTERVENÇÃO

- UsodoSolo.

Residencial. Comercial e Serviço. Institucional. Equipamento Público. Sem uso. Uso Institucional Patrimônio Indisponível

Sistema de Recreio Área dest. sistema viário

Como podemos observar pelo mapa de uso de solo, a maior parte dos edifícios da área de estudo é de uso residencial, e no entorno imediato, possui áreas destinadas a sistema de recreio. Área de intervenção.

26

ÁREADE INTERVENÇÃO - Ocupação

Sem uso.

Edifício com 1 pavimento.

Edifício com 2 pavimento.

Edifício com 3 pavimento.

Área de intervenção.

Como podemos observar pelo mapa de ocupação, a maior parte do dos edifícios do entorno são de 1 pavimento. No entanto, parte edificada da quadra escolhida, que faz fundo com a área de intervenção, são construções de 2 pavimentos.

27
Fonte:PrefeituradeSãoCarlos 28

ÁREADE INTERVENÇÃO - ÁreaseEquipamentospúblicos.

LEGENDA:

01-CentroPúb.deEconomiaSolidáriadeProdução-“RosaSundermann”-Conj.Hab.S.CarlosIII.

FuturosEquipamentos.

18-USF-Conj.Hab.ArnonMelo.

04-EcopontoIV-Lot.SocialSãoCarlosIII

CentroComunitário.

02-CentroComunitárioAstolphoLuizdoPrado/CRAS-ArnondeMello.

EscolasEstaduais

20-BentoSilvaCésar-SãoCarlosV.

EquipamentosEsportivosMunicipais.

26-CanchadeMalhaJoaquimMarcelinodeSouza-SantaFelícia. 29-ComplexoEsport.“JoséLuizRochaRodrigues”-Pq.SantaFelíciaJardim. 30-QuadraCoberta“ValdomiroAlvesGuimarães”-SantaFelícia.

CEMEIs

01-CEMEIGildeneyCarreri-ArnondeMello/SCV. 11-CEMEIAméliaMeirellesBotta-ArnondeMello/SCV. 23-EEAtíliaPradoMargarido–SantaFelícia. 33-CEMEI VicentedePaulaRochaKeppe-NRIvoMorganti. 49-CEMEIProfessorHomeroFreire-Pq.SantaFelíciaJardim.

AtençãoBásica

50-NIS-SantaFelícia. 55-USFRomeuTortorelli.

56-UBS``Dr.BenjamimLopesOzores-SantaFelícia.

29

ÁREADE INTERVENÇÃO -Terrenoescolhido. Sol da Manhã Sol da Tarde

Fonte:PrefeituradeSãoCarlos. Mapasemescala.

LEGENDA- Áreas Públicas.

UsoInstitucional PatrimônioIndisponível SistemadeRecreio Áreadest.sistemaviário Áreadeintervenção.

LEGENDA- Ruas eAvenida RuaMárioPisani RuaFranciscoPossa Av.JoãoDagnone

OterrenoescolhidoficanaAvenidaJoãoDagnone,entreasRuas MárioPisanieaFranciscoPossa,bairroSãoCarlosIII.

Ele é destinado para uso institucional e possui uma área de 3.400,00m². 30
31

Pontosdeônibus.

LEGENDA- Faixa etária. Adolescentesde6a15anos. Jovensde16a29anos. Idosode60anosoumais..

LEGENDA- Linhas de ônibus. Linha27 Linha38-41-49e54

Linha40 Linha47 Linha55

Fonte:MapaurbanodeSãoCarlos. Mapasemescala. 32

ÁREADE INTERVENÇÃO - Levantamentotopográfico

O terreno fica de frente para a Avenida João Dagnone,elepossuiumaáreade3.400,00m2eum desnívelde4,5memaproximadamente87metrosde comprimento,sendoassim,possuiumainclinaçãode aproximadamente 5,17%.

33

REFERÊNCIAS PROJETUAIS

Este capítulo irá analisar e estudar referências arquitetônicas quecolaboraramparaodesenvolvimentodoprojetoproposto.

34
35

Centro Cultural de Eventos e Exposições

Fonte:FilipeGebrimDoria Fonte:FilipeGebrimDoria Localização:Paraty,RiodeJaneiro. Ano:2014 Área:6.500m² Autor:FilipeDoria Principaismateriais: ● Madeira ● Vidro ● Peçasmetálicas. 36
O projeto apresentado é uma proposta para o Concurso Nacional de Projetos para o Centro Cultural de Eventos e Exposições de Paraty-RJ. O edifício está localizado no limite entre a área loteada e o início da MataAtlântica, e a integração do mesmo com seu entorno é uma dasprincipaisdiretrizesdoprojeto.Filipecriouumedifícioqueéuma“umaáreaemmeioànatureza,comMataAtlânticapreservada.” Desconstruindoasdelimitaçõesentreosespaçosedificadosenãoedificado”.

Fonte:FilipeGebrimDoria

Programadenecessidade:

1-Praçadeacesso

2-Praçainterna 3-Café

4-Restaurante

5-Salasdereunião 6-Guardavolumes 7-Bilheteria 8-Auditório

9-Espaçomultiuso 10-Depósito 11-Cozinhaeventos 12-Camarins

13-Ambulatório 14-Cargaedescarga 15-Estacionamento 16-Embarqueedesembarque

17-Administração 18-Brigadadeincêndio 19-Saladeprodução 20-Saladeimprensa

37

Fonte:FilipeGebrimDoria

Circulaçãoepermanência

Blocos internos Maisrestrito

Fonte:FilipeGebrimDoria

38

ANÁLISE CONCLUSIVA

Oprojeto,CentroCulturaldeEventoseExposiçõesde Paraty-RJ, tem como objetivo atender um grande público,elepossuiumademandadeespaçosamplos, generosos e flexíveis, que foram dispostos de forma funcionalnoterreno.Comapropostadeintegração,a disposição do programa de necessidades com os espaços de permanência e circulação se dá de maneiragradual. O ponto de maior relevância do projeto como referência é a compartimentação do programa de necessidade em blocos individuais e a relação que isso cria entre os ambientes internos e a circulação internaeexterna.

39
Fonte:FilipeGebrimDoria
Ano:2017 Área:405m² Arquitetos:ArielFurman,Daniela
Principaismateriais: ● Brisesdemadeira ● Vidrotermoisolante O edifício está localizado na região metropolitana chilena, dentro de um estabelecimento educacional em um terreno de 5000 m². O edifíciopossuiumaáreaverdeemseuentornoeficaentredoispoloscomfunçõesdistintas,naalasul,estãoasatividadesrecreativas eesportivasdocolégioenadireçãooeste,aparteteóricaeformal.
40
Centro deArte e Cultura Fonte:NicoSaieh Localização:Talagante,Chile.
Garcia-Huidobro
Fonte:NicoSaieh

Comumaáreatotalde1.450m²,oedifíciofoiseparadoemtrêsáreas:400m²paraoprogramadenecessidadesnointeriordoedifício, 200m² para o terraço e 850 m² destinados a construção de uma praça que atua como hall de entrada e é usado para diferentes atividadesculturais.

PlantaBaixa

Fonte:Archdaily (Modificado pela autora), 2018

Terraço externo

Programa do centro cultural

Vestiários e banheirosdeapoio a quadra poliesportiva do setorsul.

Flexibilidade dos espaços. Podem se adaptar para receber diversas atividades.

Programadenecessidade:

● Salasdeestudo

● Saladeartes

● Salademúsica

● Vestiários

● Bar

● Terraço

● Praça

O edifício tem como proposta ser um espaço de pausa/ transição entres os dois polos educativos localizados nos recintos adjacentes. Com o intuito de incorporar o edifício ao entorno, através da transparência dos volumes centrais, criandoassim,apossibilidadedeatravessaroedifíciocomuma continuidade visual, com o objetivo de admirar e habitar a área verde existente. Ele é uma plataforma de conversa sobre os ensinosdosprogramasteóricoserecreativosexistentes.

41

As principais preocupações dos arquitetos durante a elaboração do projeto, foi com os fatores climáticos, como: a ventilaçãoeiluminação.

EstudodosCondicionantesFísicos.

Fonte:Archdaily,2018

Fonte:Archdaily,2018

Aparte do edifício que abriga o programa de necessidades, como as salas e o bar, são espaços fluidos e flexíveis. Possibilitando assim, usosdiversos.

Foi utilizado vidro temperado e brises verticais para espaços mais desfavoráveis,paracontrolareaproveitaromáximodeluznatural.

Fonte:NicoSaieh

Fonte:NicoSaieh
42

ANÁLISE CONCLUSIVA

O projeto Centro de Artes e Cultura na cidade de Talagante, Chile, com seu programa de necessidades, possui assim, a função de ser um edifícios de apoio para os polos educacionaisexistentesnoterreno.

Os espaços livres e o terraço transmitem a sensação de liberdadeeintegraçãocomasáreasexternaseapraça.

As salas de estudo e de música, assim como o bar tem o fechamento com divisórias de vidro, flexibilizando o ambiente, podendoentão,variareampliarouso.

Os pontos mais relevantes do projeto como referência, é a materialidade e como ela foi usada para solucionar os problemasclimáticos,eacriaçãodeambientesflexíveis,como objetivodereceberdiversasatividades.

43
Fonte:NicoSaieh

ESTRATÉGIAS PROJETUAIS

Através das análises das referências e do programa de necessidades foram estabelecidas as diretrizes projetuais que serãoapresentadasnestecapítulo.

44
45

PROGRAMADE NECESSIDADES

O Centro Cultural conta com um programa de necessidades feito para o desenvolvimento de atividades educativas e culturais. Ele possui: bloco administrativo, bloco educativo, setor de serviço, e espaços de lazer e estar. Os ambientes foram projetados para serem flexíveis e multiuso, ou seja, são espaços que exercem mais de uma função, e podem abrigar mais pessoas, caso seja necessário. Assimhaveráummelhoraproveitamentodosespaçosedasatividadesquesãodesenvolvidasnoedifício.

O Centro Cultural tem a capacidade de comportar uma estimativa de 400 pessoas em suas dependências. E ele se encontra dividido nosseguintessetores:

UN AMBIENTE ÁREA

BlocoAdministrativo Total:195.46 m² 1 Bilheteria 19,50 m² 1 Administrativo 26,41 m² 1 Salade Reunião 14,10 m² 1 EstoqueeAlmoxarifado 16,55m² 1 Copa/SaladeFuncionários 51,60m² 1 VestiárioFemininoPcD 7,24 m² 1 VestiárioMasculinoPcD 6,48m² 2 Banheirodosfuncionários 9,13m²

ÁreaComuns Total:262,38 m² 1 SalaMultiuso1 84,02 m² 1 SalaMultiuso2 52,50 m² 1 Cafeteria(Cozinhaedepósito) 33,34m² 1 Deck 80,63 m² 1 Estacionamento -

46
47
BlocoEducativo Total:601,46m² 1 AteliêdeArtesanato 51m² 1 AteliêdeDesenhoePintura 51m² 1 SaladeTeatroeDança 51m² 1 Fraldário 4,90m² 1 Sanitário 35,74m² 1 TeatroMultiuso 225,92m² 2 Camarins 10,88m² 2 Banheiros/VestiáriosCamarinsPcD 6,53m² 1 Depósito 9,18m² 1 Acessointernoaopalco 53,12m² UN AMBIENTE ÁREA ÁreasVerdes JardinsInternosJardinsExternoSetordeServiço Total:31,01m² 1 SanitárioI 9,35m² 1 SanitárioII 9,66m² 4 SanitárioPcD 3m²
49

Implantação

50

R.FranciscoPossa

Av.João Dagnone

51
R. Mário Pisani

Relação com o Entorno

O Centro Cultural está acomodado entre as cotas 861 e 864 do terreno localizado no bairro São Carlos III, com acesso principal atravésdaAv.JoãoDagnone.

O programa de necessidades está setorizado e dividido em 3 blocos individuais. O acesso aos blocos se dá no decorrer da circulação interna, todos eles dispostos de frente para a áreadeconvivênciacentral.

Os blocos foram dispostos pensando no acesso e circulação e também com a intenção de se ter um melhor aproveitamento datopografianaturaldoterreno.

As entradas principais de cada bloco estão dispostas entre as cotas 861 e 863, criando assim, três platôs individuais, porém todos acessíveis com a inclinação máxima interna entreosedifíciosde4%.

Em frente ao Centro Cultural, na Av. João Dagnone está disposto um lote destinado a sistema de recreio que atualmente se encontra desqualificado. Portanto, foi criada uma diretriz de ocupação que futuramente será instalado uma praça. Por ser um elemento unificador com o entorno, fazendo-se com que não haja um limite definidoentredentroefora,contribuindopara a relação de fluidez e permeabilidade. Fazendo com que o edifício seja mais convidativo e abrangente, criando também novas possibilidades de adaptação para diversasatividades.

R. Francisco Possa

Lotedestinadoasistemaderecreio= DiretrizesdeOcupação

52

Distribuição do Programa de necessidades e Circulação.

OCentroCulturalfoipensadoparaodesenvolvimentodeatividadesdeintegraçãoeaprendizagem,como:umteatromultiuso,aulasde dança,teatro,ateliêdepintura,desenhoeartesanato,workshops,exposiçõeseapresentações.

Circulação Interna Circulação Externa Acesso de Ônibus Acesso de Veículos

R. Mário Pisani
Escala 1: 400 53

Implantação e Distribuição dos ambientes

R.FranciscoPossa

Av.João Dagnone

R. Mário Pisani
Escala 1: 400 54

15

16

17

18

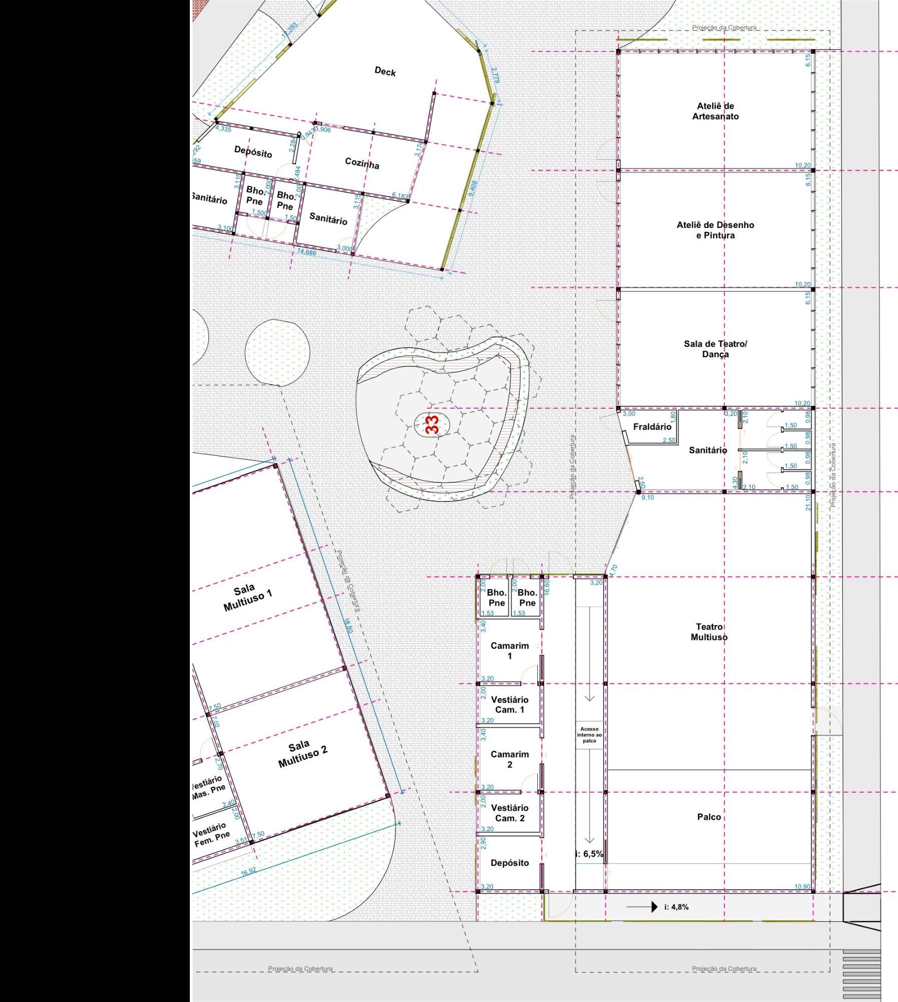
19 - Depósito 20 - Banheiro/ Vestiário Camarim 2 21 - Camarim 2 22 - Banheiro/ Vestiário Camarim 1 23 - Camarim 1 24 - Banheiro PcD 25 - Banheiro PcD 26 - Palco 27 - Teatro Multiuso 28 - Sanitário 29 - Fraldário 30 - Sala de Teatro e Dança 31 -Ateliê de Desenho e Pintura 32 -Ateliê deArtesanato 33 - Área de convivência Central 34 - Estacionamento 35 - Ponto de Ônibus

LEGENDA 1 55
- Deck 2 - Depósito 3 - Cozinha 4 - Sanitário 5 - Banheiro PcD 6 - Banheiro PcD 7 - Sanitário 8 - Bilheteria 9 - Sala de Reunião 10 -Administrativo 11 - Depósito/Almoxarifado 12 - Copa/ Sala dos funcionários 13 - Banheiro dos funcionários 14 - Banheiro dos funcionários
- Vestiário Masculino PcD
- Vestiário Feminino PcD
- Sala Multiuso 2
- Sala Multiuso 1
CorteAA Corte BB
1: 150
1: 150 56
Escala
Escala
Corte CC Escala 1: 260 Escala 1: 260 57 Corte DD
Vista Norte
58
Vista Oeste

Vista Sul

Vista Leste
59

BlocoAdministrativo

O bloco administrativo é o responsável pelo planejamento, por gerenciar e organizar as atividades desenvolvidas no Centro Cultural, fazendo assim o atendimento aos usuários, nele também estão dispostasassalasmultiuso.

60
61

Planta humanizada eAcessos

O bloco administrativo comporta os seguintes ambientes:

- Bilheteria

- Recepção

- Administrativo

- SalaReunião

- Copa/SaladosFuncionários

- VestiárioFemininoPcD

- VestiárioMasculinoPcD

- Almoxarifado

- Estoque

- SalaMultiuso1

- SalaMultiuso2

A bilheteria e o administrativo possuem acessos individuais, porémsãoambientescomconceitoaberto. Através do administrativo se tem acesso aos ambientes internosdeusoexclusivodosfuncionários. Assalasmultiusopodemseracessadasatravésdastrêsportas dispostasnoperímetrodassalas.

Acessoaoadministrativo

Acessoabilheteria

Acessoàssalasmultiuso

62 Escala 1: 200

Malha estrutural e Sistema construtivo

O bloco possui estrutura metálica com a vedação em alvenaria tradicional, é coberto com uma laje inclinada e telhastermoacústicas.

As salas multiuso possuem o fechamento com esquadrias de alumínio e vidro temperado, e a divisão interna é feita

Os painéis pivotantes são compostos porperfisdealumínioepossuemuma camada de vidro e aplicação de uma textura em palha, para se obter mais privacidade, porém, permitindo a flexibilidadedosambientes.

Escala 1: 50
PcD 63
PcD
64
65

Bloco Educativo

O bloco educativo é onde estão dispostos os ambientes destinados às realizações das atividades artísticaseculturais. Eleestádivididoentre:astrêssalasflexíveis,oteatro multiuso e o bloco de apoio, com os camarins e acessointernoaopalco.

66
67

Planta humanizada eAcessos

O bloco Teatral comporta os seguintes ambientes:

-AteliêdeArtesanato -AteliêdeDesenhoePintura -SaladeTeatroeDança -2BanheirosPcD -Sanitário -Fraldário -Camarim1

-Banheiro/VestiárioCamarim1 -Camarim2 -Banheiro/VestiárioCamarim2 -Depósito -AcessointernoaoPalco -TeatroMultiuso

Tanto os banheiros quanto o fraldário possuem acesso individual. Oblocodeapoiopossuiumaentradaesaídaexclusiva. O teatro multiuso possui uma única entrada e uma saída de emergência.

Acessoaoblocodeapoio

Acessoaosbanheirosefraldário

Acessoaoteatromultiuso

AcessoàsSalaseAteliês

Saídadeemergênciadoteatromultiuso

Escala 1: 260 68

O Bloco Educativo é composto pelo Teatro Multiuso e seu bloco de apoio com os camarins e banheiros, as salas e ateliês. Ele é construído em estrutura metálica e sua vedação é em alvenaria tradicional.As salas e ateliês possuem uma pele de vidro temperado. O bloco possui duas lajes inclinadas e a cobertura é telha

No Bloco de apoio, a parte interna de circulação possui cobertura de

Em frente aoAteliê de artesanato foram posicionados painéis móveis

Escala 1: 30

Os painéis são feitos de metal galvanizado e a vegetação suspensa é fixada na grelha metálica instaladadentrodospainéis.

Os painéis são fixados na fachada do edifício através de um trilho disposto a 0,50m de distância da mesma.

Escala 1: 260

+862,60

69
PcD PcD
70
71

Cafeteria e Setor de Serviço

A cafeteria é o principal ponto de encontro e integraçãodocomplexo,neleestádispostoacozinha, odepósitoeumdeckcomasmesascobertasporum perolado modular hexagonal. O setor de serviço dispõedossanitáriosebanheirosPcDcentrais.

72
73

Planta humanizada eAcessos

Acafeteria comporta os seguintes ambientes:

-2Sanitários

-2BanheirosPcD -Depósito -Cozinha -Balcão -Deck

Osbanheirospossuemacessoindividual.

A cozinha e o depósito possuem acesso externoeumaligaçãointerna.

O deck é aberto, a cobertura é estruturada atravésdepilares.

O bloco é de estrutura metálica com vedaçãoemalvenariatradicional.

Acessoacozinhaedepósito

Acessoaosbanheiros

Acessoacafeteria

Pontodeônibus

Sanitário Sanitário Depósito Cozinha
Balcão Bho. PcD Bho. PcD i:7% 74 Escala 1: 150
Deck

A cafeteria e os sanitários são construídos em estrutura metálica com a vedação de alvenaria tradicional, coberta com

O deck é aberto e sua cobertura é uma marquise modular hexagonal estruturada através de pilares. Foram posicionados painéis com jardim vertical para vedação e controle da

Detalhe dos Painéis móveis vegetais

Com o objetivo de fornecer uma separação, masnãocobrir,ospainéis instalados na cafeteria são fixos. Sendo assim, promovendo também, uma proteção contra a insolação. Os painéis são feitos de metal galvanizado e a vegetação suspensa é fixada na grelha metálica instalada dentro dos painéis.

+863,16

Escala 1: 75
Escala 1: 150
75
PcD PcD
76
77

Cobertura

78
79

Planta de Cobertura

R.FranciscoPossa

Av.João Dagnone

R. Mário Pisani
Escala 1: 400 80

Planta de Cobertura - Detalhes construtivos

A cobertura dos blocos é feita de forma individual e independente. Cada bloco possui sua própria cobertura, o

Móduloripado Módulofechado Vidrotemperado Móduloaberto

Escala 1: 75
81

Memorial de vegetação

Nome científico: Lagerstroemiaindica

Nome popular: (Extremosa ou Resedá)

Nome científico:Tropaeolum majus Nome popular: (capuchinha)

Nome científico: Cosmosbipinnatus

Nome popular: (Cosmosdejardim)

Nome científico: Euphorbialeucocephala

Nome popular: (Noivinha)

Nome científico: Cycasrevoluta

Nome popular: (sagu-de-jardim)

Nome científico: Philodendronmartianum

Nome popular: (Pacová)

82

Nome científico: Monstera deliciosa Nome popular: (costela-de-adão)

Nome científico: Zoysiajaponica Nome popular: (Gramaesmeralda)

Nome científico: Terastigmavoinierianum Nome popular: (Trepadeira-castanha)

Nome científico: Tibouchinagranulosa

Nome popular: (quaresmeira)

Nome científico: Eugeniauniflora

Nome popular: (Pitangueira)

Nome científico: Rosawichuraiana

Nome popular: (Rosa-trepadeira)

83

REFERÊNCIAS

84

BIBLIOGRÁFICAS

BARATTO, Romullo. Menção Honrosa no Concurso para o Centro Cultural de Eventos e Exposições em Paraty. ArchDaily, 2014. Disponível em:< https://www.archdaily.com.br/br/01-187428/mencao-honrosa-no-concurso-pa ra-o-centro-cultural-de-eventos-e-exposicoes-em-paraty-slash-filipe-gebrimdoria>.Acessoem:13de abrilde2022.

BRASIL. Lei nº 12.343, de 02 de Dezembro de 2010. Institui o Plano Nacional de Cultura - PNC, cria o Sistema Nacional de Informações e IndicadoresCulturais-SNIICedáoutrasprovidências.

BRASIL. Constituição (1988). Constituição da República Federativa do Brasil.CapítuloIII.

BRASIL. Constituição (1988). Constituição da República Federativa do Brasil.CapítuloVII.

Centro de Arte e Cultura / FURMAN-HUIDOBRO arquitectos associados. ArchDaily, 2017. Disponível em: < https://www.archdaily.com.br/br/876036/centro-de-arte-e-cultura-furman-huid obro-arquitectos-asociados>.Acesso10deAbrilde 2022.

Cultura. Significados, Disponível em: <https://www.significados.com.br/cultura/#:~:text=A%20origem%20da%20pa lavra%20cultura,cultivo%20e%20crescimento%20das%20planta%C3%A7% C3%B5es.>.Acessoem:17deabrilde2022.

Cultura. Significados, Disponível em: <https://www.significados.com.br/cultura/#:~:text=A%20origem%20da%20pa lavra%20cultura,cultivo%20e%20crescimento%20das%20planta%C3%A7% C3%B5es.>.Acessoem:17deabrilde2022.

85

DORIA,Filipe.CentroCultural,deEventoseExposições.FilipeDoria,2014.

Disponível em: < https://filipedoria.com/projetos/centro-cultural-de-eventos-e-exposicoes-de-p araty-2/>Acessoem:10demarçode2022.

Entendaporqueaculturaeolazersãoimportantesparaobem-estar.GZH Vida, 2013. Disponível em:< https://gauchazh.clicrbs.com.br/saude/vida/noticia/2013/10/entenda-por-quea-cultura-e-o-lazer-sao-importantes-para-o-bem-estar-4313341.html>. Acessoem:16deabrilde2022.

FERNANDES, Natalia Morato. A cultura como direito: reflexões acerca da cidadaniacultural.SeminárioCiênciasSociaiseHumanas,Londrina,2011.

FRÓIS, Katja Plotz. Globalização e Cultura: A identidade no mundo de iguais.(Pesquisainterdisciplinaremciênciashumanas),Florianópolis,2004.

GOMES, Christianne Luce; ISAYAMA, Hélder Ferreira (orgs.), O Direito SocialaoLazernoBrasil.Campinas,SP:AutoresAssociados,2015,234pp.

GOMES,C.L.Dicionáriocríticodolazer.BeloHorizonte:AutênticaEditora, 2004.

GOMES, Leandro. A falta de acesso à cultura na sociedade brasileira. Medium, 2016. Disponível em:<https://medium.com/@leandrogomes/a-falta-de-acesso-%C3%A0-cultur a-na-sociedade-brasileira-b16e81ddf09>.Acessoem:12deAbrilde2022.

NEVES, Renata Ribeiro. Centro Cultural: a Cultura à promoção da Arquitetura.RevistaEspecializeOn-lineIPOG-Goiânia-5ªEd.2013.

Parabéns São Carlos: 163 anos e uma breve história da Capital da Tecnologia. RPS Engenharia, 2020. Disponível em:<https://www.rpsengenharia.com.br/parabens-sao-carlos-163-anos-e-umabreve-historia-da-capital-da-tecnologia/#:~:text=S%C3%A3o%20Carlos%20pe rmanece%20como%20uma,atividade%20econ%C3%B4mica%20local%20da %20%C3%A9poca.>Acessoem:10demarçode2022.

RAMOS,BorgesLuciene.Ocentroculturalcomoequipamentodisseminador deinformação:umestudosobreaaçãodoGalpãoCineHorto.

SANTOS, José. O que é Cultura. 91 f. ed. São Paulo: : Brasiliense, 2006. Disponível em: < https://edisciplinas.usp.br/pluginfile.php/5767487/mod_resource/content/1/O %20que%20%C3%A9%20Cultura%20%20-%20Jose%20Luiz%20dos%20S antos.pdf>.Acessoem:10demaiode2022.

SANTOS,JoséLuisdos.Oqueécultura.SãoPaulo:Brasiliense,2006.

SILVA,M.J.V.;LOPES,P.W.;XAVIER,S.H.V.AcessoaLazernasCidades doInterior:umOlharSobreProjetoCINESESICultural.VISeminário2009. ANPTUR.SãoPaulo,2009.

SILVA,ThaisaCristina;PAULO,Elizabethde,PINTO,GabrielaBaranowski. Os centros culturais como espaços de lazer: O caso de Belo Horizonte.(Dissertação)UniversidadeEstadualdeSantaCruz,2012.

86
87

Turn static files into dynamic content formats.

Create a flipbook
Issuu converts static files into: digital portfolios, online yearbooks, online catalogs, digital photo albums and more. Sign up and create your flipbook.