Kaylee 2025

Page 1


Zhongyuan (Kaylee) Fu

PROFESSIONAL WORK

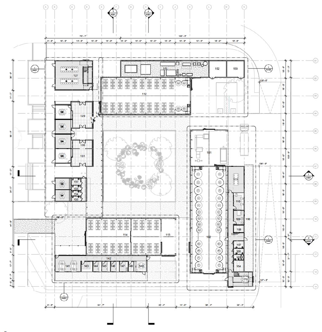
01 Favia Winery

WINERY CAMPUS – PRODUCTION, HOSPITALITY & OFFICE SPACES

02 Wharf Development MIXED-USE PROJECT

03 St. Helena Montessori School

K-12 SCHOOL CAMPUS: MASTER PLAN, GYMNASIUM & HIGH SCHOOL BUILDING

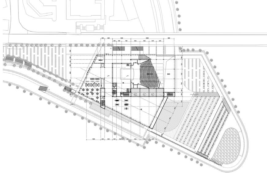
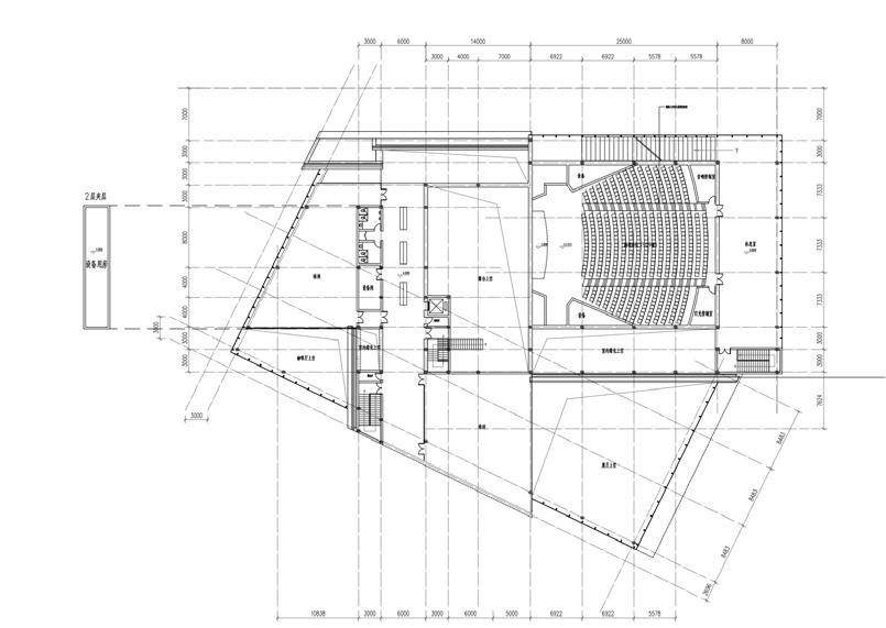
04 Ziyang Tea Song Culture & Art Center

PUBLIC CULTURAL FACILITY: ART EXHIBITION, PERFORMANCE HALL, COMMUNITY USE

The pavilion is built with a steel structural frame and woodframed exterior walls. Interior surfaces are planned with marinegrade plywood or wood veneer HPL panels, ensuring durability in humid conditions. The assembly includes robust waterproofing measures to support the building’s winemaking functions.

Fermentation Pavilion

This winery masterplan reimagines wine production as a spatial journey through nature. Spread across 29,365 SF, the project houses fermentation and barrel rooms, hospitality areas, and farming infrastructure in distinct yet interwoven pavilions. With indoor-outdoor transitions, breezeblock corridors, and open-air tasting rooms immersed in biodynamic vineyards, the architecture fosters deep connection between guests, wine, and landscape. The campus evolves over time with a phased build strategy and modular growth.

Wharf Development is a mixed-use waterfront project combining residential and retail programs. The design features a refined material palette of concrete, metalframed glazing, and warm wood soffits, aiming to balance urban density with coastal openness. Early-phase work focused on massing studies, pedestrian flow, and waterfront integration.

03 St. Helena Montessori School

MH Architects

Type: K-12 School

Role in team: Site drawing, gym and high school drafting, and coordination with consultants

Status: Design Development

Location: St. Helena

Lot Size: 20.66 acres

A campus expansion for St. Helena Montessori School, including a new gymnasium and high school building. The project emphasizes flexible learning environments, integration with the rural landscape, and a community-centered layout.

Helena Montessori School

The roof tiles are large, light-colored slate tiles that are installed in a dry-hanging fashion. Slate tiles are the classic roofing material for local traditional buildings, and we chose this material to echo the local culture and environment.

In order to simulate the appearance of a traditional handmade slate roof, which has a very irregular pattern, we designed two types of tiles, which can be cut to extend the pattern in groups of four, on a 10cm modular basis, to facilitate prefabrication in the factory and on-site construction.

ACADEMIC WORK

01 Old Memory, New Life

An addition to an old brick house in Shanghai

Instructor: Deqing Bu Individual work

Time:2022.10-2022.11

History & Generation

Wusong Road in Shanghai was built in 1856, and was one of the earliest roads opened in Hongkou by the Shanghai Bureau of Public Works, which was officially named by the Bureau of Public Works in 1863. So far, countless historical buildings remain here, and many of them have been converted into modern financial office buildings, making it a busy and poetic street.

Site and surrounding buildings

The Wusong Road neighbourhood of Shanghai is a street where old and new buildings coexist. It is both a busy street and one with a strong historical and cultural atmosphere with old Shanghai.

Section Drawing

From

the outside, the tilted core intervenes into the old building.
Internally, a fusion is created between the old and new structures.
Sloping perimeter structural columns reinforce the overhanging portions of the building to distribute the loads.
Inclined core in the interior space as recreational space and equipment room.

Structural section perspective

The materials, in addition to the concrete used to create the texture, also used metal aluminum panels to give a calming atmosphere, mapping the interior and exterior views.

The floor of the building is made of local stone, which combines with the natural wind and light of the interior to create a sense of returning to nature.

Responding to the environment

The building brings in natural wind, light and rain. Adapted to the hot and humid climate of tropical Mumbai, the building opens up several walls to allow natural sea breezes to enter the house, bringing in indoor climate micro-circulation. When rainfall occurs, it falls through the roof and creates a micro-cascade landscape inside, eventually falling into a circular recessed space with a drainage system, which is filtered and transported to a pool at the entrance.

1:100 Physical model Material: PLA

Karamba Analysis & Optimization

Main Strual Members Boundary Conditions

Load case 0: Gravity + Vertical Mesh Load of 1kN/m2

Our maximum displacement is 2.36cm at the entrance of the outer section. Using the given limit of L/240, we meet the deflection requirements for the greatest displaced beam.

Maximum Utilization= 62.8%

Maximum Axial Stress= 13.8kN/cm2

05 Towards the Sun

An underground city citizen pursues the path of sunshine rights and freedom

Individual work

Time:2022.1-2022.3

After the deterioration of the earth's environment in 2080, human beings lived in a huge underground city to rebuild society, abolished religion, and to admire the supreme leader: Big Brother. The upper class tampered with history and destroyed the evidence that the world advocated social equality in order to better maintain the status quo of the class. The underground city is strictly hierarchical, and they must live by the original hierarchical system since birth. They cannot cross the class and enter the upper class.

The life of the citizens seems to be orderly. In order to get closer to the sun, they work hard, but unknowingly, they fall into the trap of capitalism.

Just when the lower human beings almost forget what the sun-drenched world really is, a young man wakes up and manages to launch a civil uprising to the higher floors to reveal the deceptions of capitalism.

SCENARIO I: HARSH EXTERNAL ENVIRONMENT, CAPITALISM BUILDS NEW CITIES

Since the environmental degradation of the Earth in 2080, human beings have been living in huge underground cities to rebuild their society, abolishing religion and turning to faith in the supreme leader. They live in a strict hierarchy from birth, according to the name tag that comes with their birth, doing the assigned work, not crossing the hierarchy into the upper class of the city, and never even seeing the sunlight.

SCENARIO II: THE UPPER ECHELONS ENJOY SUNLIGHT AND POLITICAL POWER

The diligence center is located in the middle and lower part of the city, and the work space is centralized. The center of the Diligent Center is vertically transparent, allowing citizens to directly look up to the political center and always feel grateful for the leadership of Big Brother.

The Above-ground Viewing Sun Tower is at the top level of the city, and it is also the only part that can directly contact the light and watch the sun. It is used for the leisure and residence of the first-class people.

Through the transmitted light on the roof and the prestored light energy of the solar tower, this part has both the functions of planting and animal husbandry, providing meat and vegetables for the upper-class people and staple food for the lower-class people.

The political center is located on the central level of the city, providing citizens with space for weekly regular meetings and bill adjudication, enhancing the people's centripetal force for the leadership of Big Brother, and consolidating the social stability of the city.

SCENARIO IV: POLITICAL CONGRESS

06 FACADE*n

A facade of chinese culture

Advanced Architectural Design Workshop

Instructor: Ali Rahim, Bingyu Guo, Miguel Matos

Collaborator: Xiang Chen

Group work

Time:2022.7

Sculptures in architectural details are important parts of its beauty. All sculptures have narrative and aesthetic logic, but as a small decoration, their value and significance are often ignored.

Through these technologies we used, traditional Chinese architectural elements are no longer limited by strict geometric layout, which not only inherits the characteristics of traditional culture but also creates a new structural model that is used to enrich and develop the Chinese architectural design language in the new era.

Image Generation

By feeding traditional architectural elements into artificial intelligence and using traditional Chinese carvings as the picture style, a hybrid image was generated through multiple tests.

Find the structure behind by reading the generated images, extract the structure and texture in the image and make a personal understanding.

Module Splicing Steps

Taking into account the assembly of the facade modules, each section is designed to be assembled in such a way that small pieces can be nested together.

Small pieces are embedded with each other

We implement these concepts in the following 4 technical ways:

1. The arches break the original geometric system by overlapping and reversing the direction, and some are intervened and cut by objects

2. The strip eaves are no longer only parallel to the top of the structure, but are integrated into the curved surface of the arch as a texture, forming a new architectural detailing

3. On the wood carving, the curves, and vacancies carved in the shape of dragons and vines break the original complete classical structure, cut off the complete arch, and at the same time connect different parts to reassemble the composition

4. The lips transformed by the lines extracted through the carving art affect the details. We use the lips to redefine the boundary of the structure so that it no longer develops according to the original horizontal and vertical directions, but fits together along the curve.

Turn static files into dynamic content formats.

Create a flipbook
Issuu converts static files into: digital portfolios, online yearbooks, online catalogs, digital photo albums and more. Sign up and create your flipbook.